Как построить студию звукозаписи.
Roger D`Arcy, THE BOOK «Акустические проекты Recording Architecture» .
Предисловие.
При планировании производства звукозаписывающей студии,(подразумевается, что проектные работы уже закончены цена проекта студии звукозаписи) мы рекомендуем приглашение строителей, имеющих представление о специфике данных работ. Иллюзии о том, что строительство студии звукозаписи, относится к обычным общестроительным работам, разбиваются уже на начальном этапе закладки кабельных каналов в “плавающий” пол. И вопрос рекламы нашей компании здесь не главный, мы просто хотим вас уберечь от тех ошибок , которые мы, в свое время, уже совершили.
Тут надо отчетливо понимать, что любой строительный просчет обойдется очень дорого. Это не ремонт квартиры, где можно впоследствии, что-то подшпаклевать или подмазать, здесь возникает риск полной нефункциональности студии, например, из-за одной незначительной щели. Стоит ли играть с огнем, решать не нам.
Введение.
Создание новой, или реконструкция существующей звукозаписывающей студии должно успешно сочетать в себе решение широкого спектра архитектурных и акустических задач. Основываясь на свой многолетний опыт работы, компания RA London, разделила процесс проектирования и строительства любой студии на рабочие этапы (стадии работ с 1-ой по 10-ю, см. ниже). Подобная разбивка позволяет упростить весь процесс реконструкции в целом. Кроме того, так заказчику становится более наглядно видно, как формируется бюджет строительства, и какие основные позиции он включает. Иногда, какая-то отдельная часть работ может казаться незначительной, но для представления общего бюджета, суммирование именно таких, на первый взгляд незначительных частей, по всем указанным этапам, оценит стоимость проекта в целом, и обеспечит уверенность в том, что ничего важного не упущено.
Этапы работ по производству студии звукозаписи
, (RA London).1. Работа с помещением.
2. Звукоизоляция.
3. Акустическая обработка.
4. Отделка.
5. Электромонтаж.
6. Свет.
7. Прокладка аудио кабелей.
8. Вентиляция и кондиционирование.
9. Вспомогательные помещения.
10. Точное позиционирование и крепление аудио мониторов.
Необходимо отметить, что все 10 этапов работ не выполняются в строгой последовательности, а зачастую могут идти параллельно. Тем не менее, указанная последовательность весьма информативна с точки зрения составления рабочих смет, и определения порядка привлечения тех или иных субподрядчиков к выполнению проекта.
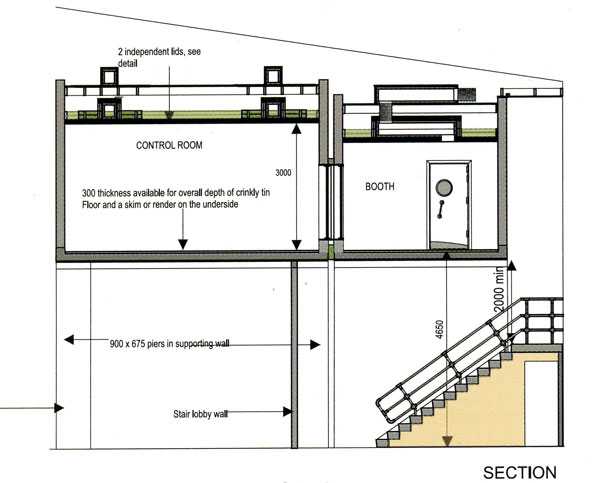
1. Работа с помещением.
Помещением будет называть территорию, где располагается будущая студия. Это может быть что угодно, начиная с обычной комнаты внутри офисной или жилой зоны, до отдельно стоящего в чистом поле здания (на фото
Большинство проектов нашей компании были выполнены внутри существующих строений, которые если и подвергались модификации, то небольшой.
Работа с помещением может ограничиться простой закладкой существующих дверных/оконных проемов, но может включать в себя и демонтаж старых стен с возведением новых конструкций. Также, внутри рабочего помещения, для формирования студийных зон, часто оказываются нужны новые стены и перегородки.
Звукоизоляционные конструкции студии всегда достаточно массивны, и иногда приходится укреплять плиты перекрытия верхних этажей, а на нижнем уровне укладывать фундаменты под опорные элементы.
В редких случаях, для увеличения объема или высоты студии, бывает необходимо ликвидировать часть центрального этажа здания или углубиться в грунт в цоколе. Может потребоваться замена или модернизация системы вентиляции и кондиционирования, отопления или электропитания. Старые здания надо тщательно проверять на предмет передачи вибраций от трамвайных линий и веток метрополитена. Часто приходится дополнительно обеспечивать водонепроницаемость цокольных конструкций. Все это включает в себя этап работы с помещением. Данный этап может оказаться весьма затратным для заказчика, и важность его трудно переоценить.
Выбор помещения для строительства студии звукозаписи очень важен. Размер, форма и пропорции студии оказывают существенное влияние на ее будущие акустические характеристики. Поэтому при наличии выбора, предпочтение следует отдать отдельно стоящему зданию.
Наряду с этим, ограничения, накладываемые существующими конструкциями имеющегося помещения, могут вылиться в оригинальное дизайнерское решение, придуманное с чистого холста. Строительство в отдельно стоящем здании может оказаться дешевле за счет отсутствия необходимости согласовывать время работ с соседями, простоты доступа и организации рабочего пространства на объекте.

Первостепенной также является задача определения необходимой площади будущей студии. Очень часто встречается недооценка требуемого пространства помещения. Общая площадь объекта должна учитывать не только звукоизолирующий контур для каждой из зон студии, внутреннюю акустическую обработку этих зон, но и, что принимается в расчет реже всего, входные тамбуры, коридоры и пожарные выходы, позволяющие будущей студии функционировать в нормальном режиме.Существует тенденция упрощать подход к решению этого вопроса, когда заказчик или звукорежиссер берут за основу аналогичные помещения, и просто суммируют их внутреннюю площадь, принимая полученное значение за базовое, не представляя, какое реальное пространство скрывается за отделочным контуром построенной студии. Фактически, реальная площадь объекта может отличаться от указанной на 20%, а при частом расположении колонн или неправильной геометрии помещения на 30% или более.
Наглядный пример приведен выше. Из общей площади помещения в 60 кв. м. получилась контрольная комната в 42 кв м. Потери полезной площади составили 18 кв. м. или 30%
2. Звукоизоляция.
Когда мне задавали вопрос – как построить студию звукозаписи, многие почему-то подразумевали, что я отвечу только на вопрос как сделать хорошую звукоизоляцию. Звукоизоляция очень важный аспект в построении студии, но его обязательно надо рассматривать только как составляющую комплекса мер.
Под звукоизоляцией понимают все элементы, которые в совокупности позволяют добиться звуконепроницаемости студийной оболочки. Важно понимать отличие этого раздела проектирования от оптимизации внутренних акустических параметров студии. Данный этап работ целиком посвящен уменьшению уровня шума, покидающего или проникающего в студию из других помещений здания, а также между граничащими студийными зонами. Хорошая звукоизоляция базируется на шести основных элементах:
Стены: желательно ставить новые кирпичные или блочные независимые стены, с дополнительной виброзащитой по периметру, не допуская жесткого контакта с внешним контуром студийной оболочки. Также используются ГКЛ перегородки по деревянному каркасу, установленные специальным образом, и формирующие внутреннюю геометрию помещения.
Полы: используются как специальные многослойные, на засыпном каркасе поверх чернового пола, так и “плавающие” конструкции полов.
Потолки: подвесной потолок, необходимого уровня звукоизоляции, может быть прикреплен непосредственно к плите перекрытия, исключив жесткий контакт с ней, но эффективнее сформировать так называемую «коробку в коробке» смонтировав звукоизолирующий слой потолка только на внутренней оболочке стен, которая, в свою очередь, держится на плавающем полу.
Акустические двери: где возможно, необходимо формировать входные тамбуры из двух дверей. Акустические двери должны обладать антирезонансными свойствами и большой массой, позволяющей звуку затухать при переходе границы. Важным параметром качества двери, является наличие уплотнения по периметру дверной коробки, включая верхнюю и нижнюю дверные щели и установка доводчика.
Окна: окна между студиями, выполняются по специальной технологии в новых звукоизоляционных контурах. В случае, когда новые стены отсутствуют, допускается дополнительное остекление существующих или перенесенных оконных проемов.
ФВШ: фильтры воздушные шумоизоляционные. Применяются для ослабления внешних шумов, проникающих в студию через вентиляционные отверстия. Не путать со стандартными внутренними фильтрами воздуховода, которые глушат шумы турбулентности воздушного потока и шум от вентиляционной установки.
Примечание (ASPD)-Отверстия, проделанные в звукоизоляционных оболочках, для прохождения магистралей систем вентиляции и кондиционирования воздуха, требуют герметизации специальными фильтрами, для сохранения у контура, заданного уровня шумоизоляции.

Cream, London
Стены.
В тех случаях, когда позволяет допустимая нагрузка на перекрытие, наилучшим вариантом звукоизолирующего контура стен является тяжелый бетонный блок (100 х 215 мм), с плотностью 2000 кг/м3, уложенный горизонтально, широкой стороной. Если помещение выполняется по принципу «коробка в коробке», то подобные стены необходимо устанавливать на виброразвязывающую полосу, способную выдерживать большие нагрузки.
В том случае, если допустимые нагрузки на перекрытие не позволяют использовать бетонные блоки или кирпич, хорошим решением является многослойное разнородное листовое покрытие (фанера, ГКЛ, ГВЛ) по деревянному каркасу. Внутренний состав сэндвича стен, как правило, идентичен сэндвичу потолка в том же помещении.



Примечание (от ASPD)- выше представлены разрезы шумоизолирующих облицовок для студий записи. Тут необходимы пояснения. Одинарная композитная конструкция используется, когда есть возможность установки кирпичной стены или стены из пеноблоков для разделения помещений студии. Данная конструкция служит для облицовки кирпичных перегородок, и предназначена для увеличения шумоизоляции до необходимого уровня. В случае, когда нет возможности использовать кирпичные перегородки, требуемый уровень шумоизоляции, возможно, получить, используя “Double laminate construction” (название RA). Наличие в составе сэндвича стены МДФ или фанеры дает возможность в дальнейшем устанавливать на шумоизоляционную оболочку низкочастотных модулей – ловушек, которые при навеске на ГКЛ не смогут надежно зафиксироваться. Под “barrier matting” подразумевается тяжелая акустическая резина толщиной 3-4мм. Skim coat plaster- штукатурка для ГКЛ.
Полы.
Наилучшим решением является применение армированной бетонной стяжки, уложенной на подушку из плотной минеральной ваты (базальтового волокна), и не имеющей жестких стыков с черновым полом и стенами. Подобная конструкция значительно ослабляет ударные шумы и вибрации, проникающие из соседних студийных помещений и окружающих источников шума.

Плавающий пол на основе армированной бетонной стяжки.
Разрез показывает стыковку со стеной из «Double laminate construction».
В качестве альтернативы, менее эффективной, но также применяемой, можно использовать, так называемые, сухие плавающие полы, засыпные деревянные лаги, которые укладываются на минеральную вату плотностью 80-120 кг/м3.

Засыпной вариант плавающего пола. Состав пола (мин. вата 100мм, фанера 18мм,брус 50х50мм., каленый песок, фанера 18мм, акустическая резина, фанера 18мм.)
Потолки.
В тех случаях, когда позволяет высота помещения, лучше применять изолированный независимый потолок, лежащий непосредственно на плавающих стенах, и не имеющий контакта ни с внешними стенами, ни с плитой перекрытия сверху. Состав потолка идентичен составу звукоизолирующего короба стен. На чертежах ниже представлены некоторые варианты узлов соединения шумоизоляционной оболочки стены и потолка.



Типичное расположение потолочных балок, для монтажа звукоизолирующего потолка контрольной комнаты, представляющего собой «Double laminate construction», уложенных с перехлестом швов.

Далее сделаем небольшое отступление, ниже проиллюстрирована, пожалуй, самая оригинальная техника звукоизоляции. В качестве примера разобрана студия Hulgrave Hall, расположенная в Лондоне. Изначально, уровень проникающих и структурных шумов был настолько высок, что достичь приемлемого для работы звукорежиссера уровня шума стандартными методами звукоизоляции оказалось невозможно. Как строить студию звукозаписи, если по расчетам, в микрофон будут попадать все шумы от проходящего метро. Тогда было принято решение о «подвесе студии в воздух». Стены контрольной комнаты и примыкающей студии выполнены из бетонных блоков. Они установлены через вибропрокладки на два независимых армированных железобетонных перекрытия, которые в свою очередь, опираются на комбинацию из поддерживающих несущих стен. Таким образом, обе студийные зоны абсолютно развязаны и расположены высоко над черновым полом, на уровне второго этажа помещения. Каждая звукоизолирующая оболочка имеет двойной потолок с вентиляционными отверстиями, защищенными специальными фильтрами ФВШ. Любое примыкание или соприкосновение стен, полов и потолков произведено через вибрационные ленты различной толщины и упругости. Только это решение смогло обеспечить тот уровень шумоизоляции, который позволял полноценно функционировать студии.

Cream, London
Как строить студии 2
www.aspd.ru
Студия звукозаписи — как она устроена? THE WALL
Музыка – привлекательное и воодушевляющее хобби, которое в последние несколько лет появилась возможность монетизировать благодаря Яндекс.Музыке и iTunes. Вспомним, что еще 10 лет назад, в пресловутом 2007 году, музыканты лезли из кожи вон, чтобы записать свою пластинку и залить её во ВКонтакте на стену в надежде, что она разнесется по просторам социальной сети.
Трагично то, что музыка действительно была неплохой, но качество записи заставляло выключать трек. В статье мы погружаемся в деятельность настоящей звукозаписывающей студии, в которой можно создать качественный альбом, и благодарим Андрея Штыля, руководителя студии «Тайга», за подробное разъяснение того, как устроена кухня звукозаписи.

Что надо продумать заранее
Когда вы окончательно решились на то, чтобы открыть звукозаписывающую студию, надо продумать наперед все возможные задачи, которые в ней можно будет решить, например:
— записать звук;
— провести репетицию;
— проводить занятия;
— снять видео-клип;
— вместить оркестровую группу;
— сделать озвучку;
— записать саундтрек.
Это те задачи, которые определил для студии «Тайга» ее основатель: «…только на стадии подготовки мы с ребятами изучили тонну литературы в сети и отсмотрели десятки часов видео на Youtube, чтобы примерно прикинуть смету и определить параметры нашего детища».
Группа The Hatters записала свой клип на песню «Зима» на студии «Тайга»
Как искать помещение
Следующий важный этап – поиск помещения. В Петербурге, например, сдаётся в аренду достаточно много коммерческих помещений, которые можно приспособить под звукозаписывающую студию. Как говорит основатель студии «Тайга», «мы искали помещение всего 2-3 недели, причем ориентировались только на Васильевский остров. Нам неважна была шаговая доступность от метро, главное – просторное помещение, в котором можно экспериментировать с пространством.»
Дома вдоль университетской набережной Васильевского острова принадлежат по большей части XIX веку, поэтому имеют исключительно толстые стены между квартирами. Это способствовало тому, что в дальнейшем на звукоизоляцию было потрачено меньше денег. Хотя это звукоизоляция скорее от соседей, чем между помещениями.
Работа с акустикой
И даже сейчас до настоящего рок-н-ролла еще далеко, потому что третий этап – задать необходимые акустические свойства всему пространству. На «Тайге» было принято решение, что на этом экономить нельзя, и надо сразу устанавливать всё самое необходимое: использовать диффузоры (звукоизоляционные панели) двух типов и комбинировать их между собой в разных помещениях:
— в контрольной комнате используется поролон с просветами,
— в основном помещении комбинируются деревянные диффузоры Skyline с поролоновыми,
— вся площадь (стены и потолок) звукозаписывающей будки покрыта поролоновыми диффузорами.
Но такой точный расчет не обязывает отказываться от экспериментов. У звукорежиссера выработана своя схема, из которой зачастую исключаются благоустроенные помещения:
— сухой голос (голос как будто на студийной записи, когда не слышно ничего лишнего) лучше записывать в будке;
— комнатного эффекта с небольшим эффектом эхо можно достичь только в основном помещении;
— для длинных хвостов реверберации (эхо) микрофон выносится за пределы студии – в коридор или соседнее помещение.

Пример комбинированной звукоизоляции

Процесс создания звукоизоляционной панели
Контрольная комната
Мозговым центром каждой студии должна быть контрольная комната. В фильмах про музыкантов вы точно ее видели – это то самое помещение с большим пультом, из которого звукорежиссер смотрит на музыкантов через окно. Ядром современной контрольной комнаты составляют следующие инструменты (не музыкальные!):
— мощный компьютер, на «Тайге» стоит Mac Pro 2014 года,
— программное обеспечение, на «Тайге» — Universal Studio,
— аналогово-цифровой преобразователь (АЦП),
— доустановленные плагины в программное обеспечение,
— миди-клавиатура на 8 октав,
— мониторы, на «Тайге» — Adam A8X.

Основа контрольной комнаты
«При умелом обращении на таком железе и софте, — говорит Андрей Штыль, — вполне можно записать любой альбом, выпущенный до 2005 года или даже позже. Это сильный набор, который позволяет контролировать звуковой поток в реальном времени и избегать помарок в сведении дорожек».
О музыкальных инструментах и оборудовании
Разумеется, на студии должен быть минимальный набор музыкальных инструментов с самого начала: хорошая ударная установка, бас-гитара, гитара и микрофоны.
Студийная ударная установка должна быть мобильной, но не в плане транспортировки. У самих барабанов должна быть возможность подставлять дополнительные том-барабаны. В классической схеме их три (два навесных и один напольный). Томы – это барабаны с низким тембром. Когда барабанщик делает переход по ним, то кажется, что звук идёт сверху вниз. На записи их количество варьируется в зависимости от задачи, которую выполняет ритм-секция: задаем только ритм или же усиливаем звучание низких частот.
Установка ударника группы «Metallica»
Поэтому томов может быть три навесных и два напольных, или один навесной и один напольный. Скажем, у ударника группы Metallica Ларса Ульриха конструкция ударной установки действительно массивная, у ударника Imagine Dragons двухрядная, тогда как Джон Отто из Limp Bizkit ориентируется больше на тарелки, поэтому ему важна компоновка железа, а не барабанов.

Установка ударника группы «Imagine Dragons»
Студийная ударная установка должна быть податливой в плане конструкции и добавления новых барабанов, железа и звукоснимателей.

Запись барабанов на студии «Тайга»
Из струнных инструментов важно иметь несколько гитар, например, Gibson и Fender. Gibson – это гитара, из который выросли все последующие гитары для металла, а Fender даёт более мягкое звучание для джаза, блюза, фанка и инди-рока. Но арсенал гитар требуется обязательно расширить несколькими акустическими инструментами и несколькими разновидностями, например, укулеле или банджо.

Набор струнных инструментов студии «Тайга»
Основа всей записи – микрофоны. Это тот самый инструмент, которого всегда не хватает. Так, чтобы получить максимальную отдачу от ударной установки, требуется установить и звукосниматели на каждый барабан и под каждую тарелку, и поставить два общих конденсаторных для фона.
Минимальный набор:
— Конденсаторные микрофоны на стойках типа «паук» — студийный микрофон исключительно для записи,
— Концертные микрофоны,
— Звукосниматели для струнных инструментов,
— Звукосниматели для ударных.

Микрофон на стойке «паук»
Вопросы управления
«Для управления мы с партнерами применяем самые простые инструменты,- говорит Андрей Штыль, — Google Календарь, например. Зачастую расписание плотное: мы маркируем цветом тип работы и распределяем нагрузку на студию. Например, занятия по гитаре могут вполне идти во время сведения. Я свожу в контрольной комнате в наушниках, мне совсем не мешает акустическая или даже электро-гитара, но с ударкой сложнее».

Основатель студии Андрей Штыль за работой (он очень не любит, когда его фотографируют)
Основой управления на звукозаписывающей студии основатели «Тайги» считают то, что надо поддерживать работоспособность оборудования и своевременно обновлять «стафф». Под обновлением подразумевается постоянная продажа оборудования тем, кому этих мощностей хватает. Дело уже не в износе, а в нехватке выдачи.
Мнение одного из партнеров
Павел Падалко, барабанщик группы «8 по Гринвичу», один из основателей, звукорежиссеров и преподавателей «Тайги», согласился дать развернутый комментарий относительно студии.

«Ты спрашиваешь, что главное на студии… Хочу сказать, что аспектов огромное множество, но я расскажу о самых ощутимых и важных, по крайней мере, для меня.
Помещение. Один и тот же акустический инструмент очень по-разному может звучать и «вести себя» в разных помещениях. Когда мы записываем инструмент, мы записываем не только его нативный звук, но и отражения от комнаты. Вот здесь-то и будет особо чувствоваться разница.
Оборудование. Один их главных технических аспектов, который отличает студийную запись от домашней. Все микрофоны звучат по-разному, любой компрессор, эквалайзер или же ревербератор дают совершенно разные насыщения инструменту. Звукорежиссёр, конечно же, знает, какой из аппаратов лучше всего применить в том или ином случае.
Психология. Я считаю этот фактор одним из самых весомых в работе на студии. Психологическая задача звукорежиссера при записи – помочь вам по полной раскрыть вашу задумку. Звукорежиссёр не имеет «замыленности» в восприятии материала и поэтому никогда не допустит халтуры с вашей стороны, когда дома через несколько дублей вы можете уже принимать не самую удачную запись за самую лучшую.»
Автор: Пётр Ермаков
thewallmagazine.ru
Как оборудовать домашнюю студию звукозаписи своими руками

Музыканты – люди творческие, и для продуктивной работы им нужна свобода. А для музыканта свобода, зачастую, равняется возможности записывать материал когда и как захочется. Каждый музыкант задумывается о том, как создать личную студию своими руками. Такое решение – это способ преодолеть зависимость от графиков работы профессиональных студий. Кроме того, это дополнительная степень творческой свободы. Разберемся в вопросе и выясним как своими руками создать студию звукозаписи у себя дома.
Как работает студия звукозаписи
Проведем небольшой ликбез на тему того, что из себя представляет полноценная студия. Для записи музыки необходимо:
- Акустически подготовленное помещение. Это тема для отдельной статьи. Тем не менее, ниже мы коснемся основных принципов оборудования помещения под студию
- Оборудование для звукозаписи. Список необходимого “железа” обширен, но для начала хватит и “джентльменского набора”: компьютера со звуковым редактором, звуковой карты или USB — интерфейса, внешнего предусилителя (преампа), мониторов и наушников. Со временем, перечень расширяется за счет разнообразных микшерных пульты, микрофонов, MIDI — контроллеров и так далее
- Пособия по звукозаписи. Не важно, в какой форме получать знания: из книг или видеоуроков на Youtube, знания вам понадобятся. Музыкант, который решил оборудовать студию дома автоматически становится собственным продюсером. Слушабельность и качество записи теперь зависит от него
Поговорим о том, как в целом устроена студия. Представление о студийной работе легко получить из документальных фильмов, коих музыкальные коллективы выпускают множество. Классическая студия состоит из двух отдельных помещений: комнаты записи и контрольной комнаты. В первом происходит, как понятно из названия, процесс записи. Там располагается необходимое оборудование: микрофоны, усилители. Половину контрольной комнаты занимает микшерный пульт (та самая панель с миллионом крутилок и кнопок), другие контроллеры, студийные мониторы.
В случае с “живыми” группами, партии отдельных инструментов записывают по очереди: начинают с ударных и заканчивают басом. Электронным музыкантам в этом смысле проще, потому что им не приходится исполнять ничего “в живую”. Но общие правила записи применяются и к ним.
В условиях домашней студии создать два просторных, изолированных друг от друга помещения получается не так часто. Поэтому важно адаптировать помещение таким образом, чтобы оно могло исполнять обе роли одновременно.
Перейдем к вопросу о том, как сделать домашнюю студию звукозаписи своими руками. Об акустической подготовке помещения пишутся целые статьи и книги, поэтому коснемся только главных аспектов, без которых не обходится оборудование помещения под звукозапись. Начнем с выбора помещения.
Выбираем помещение
Бытует стереотип, что не каждое помещение годится для акустической подготовки. Что студия – это обязательно дом на отшибе, который становится источником повышенной сейсмической активности и головной боли соседей. Это не так: особых требований к помещениям для студий нет. Более того, в России студии, зачастую, оборудуют в офисных и жилых зданиях. Тут главное – хорошая шумоизоляция. Если она выполнена на должном уровне, ни обитатели студий, ни их соседи не догадаются о существовании друг друга. А значит, превратить свое жилище в студию без вреда для окружающих вполне реально.
Чтобы все получилось, при выборе помещения под студию (если выбор вообще есть) придерживайтесь следующих принципов:
- Чем просторнее комната, тем лучше. Да, маленькие уютные помещения настраивают на творческий лад. Но по мере приобретения нового “железа” такие комнаты превращаются в склады оборудования и инструментов, в которым места для музыканта не остается.
- Шум – враг номер один. Никому не понравится, если на записи помимо инструментов будет слышно, как за окном работает мусоровоз или поют птицы.
- Пол – основа основ. Убедитесь, что он ровный и лишен явных дефектов (трещин, выбоин и так далее). Учитывайте, что в помещении придется монтировать “плавающий пол”, о котором речь пойдет ниже.
Когда помещение выбрано, время подумать о шумоизоляции.
Звукоизоляция студии
Сделать отдельную комнату — студию в условиях квартиры сложно, но возможно. Добиться этого можно кучей способов: от “украшения” стен коврами и одеялами до полноценного акустического ремонта. Первый способ дешев и сердит, второй затратен, но эффективен. На нем и остановимся.
Чтобы сделать из комнаты полноценную студию, придется попотеть. В процессе, рука мастера (или самого музыканта) коснется каждой плоскости в помещении от пола до потолка. Итак, правильная звукоизоляция включает в себя:
- Монтаж звукопоглощающего покрытия на стенах. В условиях квартиры для этого используют многослойное листовое покрытие. В результате получается “сэндвич” из фанеры, гипсокартона и гипсоволокнистого листа, который кладется поверх стены помещения.
- Монтаж “плавающего пола”. Для домашней студии подойдет пол, состоящий из слоев минеральной ваты, фанеры, каленого песка (да, песка), и акустической резины. Применение классического варианта с бетонной стяжкой для оборудования домашней студии неоправданно дорого и сложно.
- Монтаж подвесных потолков. Если места в комнате много, то оптимальный вариантом станет укладка потолка на каркас из звукопоглощающих стен стен. Состав потолка при этом повторяет состав звукопоглощающих стен.
- Установка акустических дверей. Главный принцип – делайте шлюз из двойных дверей, когда это возможно. Нужно, чтобы двери обладали антирезонансными свойствами и гасили звуковые колебания.
- Дополнительное остекление окон. Чем толще окно, тем лучше оно гасит звуковые волны.
Итоги
Превратить комнату, в студию возможно. Да, это затратно и сложно, но результат проделанной работы выльется в качественные записи и дополнительную творческую свободу. При оборудовании домашней студии недоступны решения, применяемые при строительстве полноценных студий. Но сделать так, чтобы записанные дома демо звучали пристойно вполне реально. Пространство вариантов здесь велико: применяют и упомянутые выше одеяла, и полноценный и недешевый ремонт. Во втором случае музыкант получит адаптированное для записи музыки помещение. В правильно изолированной комнате можно включать усилители на полную громкость, не опасаясь за душевный покой соседей. Да и они перестанут донимать лишним шумом по вечерам. Не стоит забывать и о самом звукозаписывающее оборудование, подбору которого посвящена на одна статья.
comments powered by HyperCommentsmsk.spbsht.ru
Как создать бюджетную студию звукозаписи
Рано или поздно каждый музыкант приходит к выводу: «А неплохо было бы создать свою студию звукозаписи!». Отличная мысль! Но только в мечтах и планах все выглядит красиво, грандиозно, но на деле – осуществляется очень редко. Почему? Большинство останавливается, подсчитав, на их взгляд, совершенно неподъемную сумму, требуемую для создания собственной студии звукозаписи. Да, такая задача действительно стоит немалых денег, но что, если попытаться ее упростить и свести затраты к минимуму?
Возможно, на этом моменте воображение наших читателей уже саркастически нарисовало наивные попытки автора создать вторую «The Record Plant» за две зарплаты среднестатистического жителя страны, но смею вас огорчить: у нас планы поскромнее. Мы не претендуем на роль конкурента «The Record Plant», «Hansa Tonstudio» или каких-то других студий с мировыми именами. Но прибедняться тоже не будем! Мы создадим достойную домашнюю студию со всеми необходимыми составляющими, но без излишеств (а именно так пока назовем, то, что не вмещается в рамки нашего бюджета, и без чего можно спокойно обойтись в первое время).
5 главных составляющих студии звукозаписи
Даже путь в тысячу ли начинается с первого шага.
Лао–цзы
Делая первые шаги к реализации задуманного, стоит всегда помнить, что грандиозные дела требуют терпения, времени и целеустремленности. Известнейшие группы начинали с бесплатных выступлений на маленьких городских сценах, многие знаменитые певцы когда-то пели в местных ресторанах, а история некоторых лучших студий звукозаписи начиналась с небольшой комнатки съемной квартиры. Вывод один: главное начать.
Мы не будем останавливаться на особенностях выбора помещения для создания студии (только не забывайте о звукоизоляции), а перейдем сразу к технической составляющей. Начнем, конечно, с самых основных элементов, без которых работа не представляется возможной. Доукомплектовать новыми деталями и музыкальными девайсами мы всегда успеем, но сейчас главная задача — сделать студию такой, чтобы можно было работать.
Компьютер
Разумеется, системные характеристики компьютера для студии звукозаписи чем выше, тем лучше. Но поскольку мы составляем план-минимум, сильно разгоняться не будем, а остановимся на минимальных допустимых параметрах.
На самом деле, нужные характеристики зависят от программного обеспечения, которое мы будем использовать в работе. Например, популярная программа Pro Tools требует 4 Гб ОЗУ и 15 Гб свободного места на жестком диске. Но одной программой мы точно не ограничимся!
Идеальным бюджетным вариантом будет 2-4-ядерный компьютер с 64-битным процессором и минимальным объемом оперативной памяти – 4 Гб. Что касается жесткого диска, то лучше предпочесть диск SSD типа — для хорошей скорости записи и считывания данных.
Звуковая карта
Звуковые карты можно найти на разный бюджет, но следует учесть, что разница в ценах обусловлена качеством внутренней обработки. Хотя некоторые недорогие звуковые карты тоже могут порадовать высоким качеством! Пример тому — Focusrite Scarlett Solo New – новинка 2016 года с отличными параметрами. Почти фантастическим соотношением «качественно+недорого» может удивить так же 2-канальный USB аудиоинтерфейс ALESIS IO2 EXPRESS.
Для домашней студии нам вполне хватит параметра 24 бит / 48 кГц, но если позволяет бюджет — 24 бит / 96 кГц — все же будет лучшим вариантом.
Также звуковые карты отличаются количеством микрофонных входов, что тоже имеет определенное влияние на стоимость. Для недорогой домашней студии одного микрофонного и одного инструментального входа вполне достаточно.
Студийный микрофон
Рассматривая разные виды студийных микрофонов, лучше всего сделать выбор в пользу конденсаторного. Почему? Ленточные и ламповые — слишком дорогие (а мы договорились делать бюджетную студию). Электретные — существенно проигрывают в качестве звука. Динамические — для сцены. А вот конденсаторные — это для нас. Во-первых, качественно. Во-вторых, недорого.
Мы подобрали 3 отличных варианта, полностью отвечающие нашим требованиям: Marshall Electronics MXL 770, SUPERLUX HO8, Behringer C1U.
Студийный мониторинг
Студийный мониторинг включает в себя наушники и акустические системы (студийные мониторы), от которых зависит «правильность» звучания. На наших мониторах звук должен быть идеальным — то есть, только таким, каким он был записан и сведен. Без приукрашений и искажений.
Среди трех типов студийных мониторов (ближнего, среднего и дальних полей), в первую очередь, стоит приобрести мониторы ближнего поля. В идеальном случае, конечно, лучше купить все три, но мы договаривались в первое время делать все экономно.
Просматривая различные модели представленных товаров в интернет-магазине, мы сделали вывод, что самым оптимальным вариантом может стать ALESIS M1 ACTIVE 320USB, Mackie CR3 или KRK Rokit 4 G3 BK, Presonus Eris E5.
К студийным наушникам мы предъявили не менее высокие требования: точный и чистый звук при относительно невысокой цене. Таковыми являются и данные модели: PreSonus HD7, Behringer HPS5000, AKG K92.
Миди-клавиатура
Миди-клавиатура со встроенным контроллером — необходимый компонент, так как в противном случае управлять домашней студией звукозаписи невозможно. Стоимость данного элемента зависит от количества клавиш и возможностей управления звуками, воспроизводимых при помощи программного обеспечения. Выбирая качественную, но недорогую клавиатуру, мы решили остановиться на наиболее подходящих вариантах: M-Audio Keystation MINI 32 II и Alesis V Mini.
Приобретя данные компоненты и установив необходимое программное обеспечения на компьютер (но обязательно легальное!), мы можем начинать работу. Для начала всего этого вполне хватит, но дальше, по мере продвижения успеха, мы будем апгрейдить нашу студию модерновой техникой, постепенно улучшая качество работы и выходя на новый уровень. Дальше придумаем красивое название студии, возможно даже с фирменным логотипом. Создадим свой сайт, сделаем рекламу и очень скоро выйдем в плюсы… Но это все перспектива. Продолжение успешного, хоть и скромного начала.
Как мы уже говорили, чтобы мечты о собственной студии звукозаписи не превратились в далекие от реальности грезы, главное — начать. Желательно, прямо сейчас! Ведь как показывают исследования в области психологии (да и собственная практика), планы, за осуществление которых мы не беремся на протяжении первых 24 часов от их возникновения, почти никогда не трансформируются в действия. Поэтому, приступайте к работе прямо сейчас. Хотя бы создайте бизнес-план.
Если вы точно знаете, какие модели компонентов вам нужны или же вам только предстоит выбирать их среди сотен различных вариантов, загляните на https://www.robik-music.com/! Ассортимент данного интернет-магазина отличается множеством товаров, отвечающих нашему главному требованию — низкая цена + высокое качество. Кстати, здесь вы найдете и все названные модели составляющих студии звукозаписи, о которых мы писали выше. Воспользуйтесь нашими советами, существенно сократив время на поиски вариантов.
reproduktor.net
