Квартира-распашонка — что это такое, планировка однокомнатной и двухкомнатной распашонки, плюсы и минусы
Плюсы и минусы квартиры-распашонки
Квартиры-распашонки, как и другие виды жилья в многоквартирных домах, имеют свои особенности, преимущества и недостатки. Расскажем о каждом плюсе и минусе подробно.
Преимущества распашонки
🔹 Выход окон на разные стороны света. В обычных квартирах чаще всего все окна выходят на солнечную сторону. Но не всем нужно большое количество солнечного света, поэтому распашонка — идеальное решение для семей, в которых кто-то любит солнце, а кто-то нет. Если вам нравится естественное освещение, можете выбрать однушку-распашонку с окнами спальни, выходящими на восток, или обустроить в одной из жилых комнат спальню, а в другой-гостиную.
🔸 Большой обзор. Это особо важно для семей с детьми. Из распашонки можно посмотреть одновременно и на улицу, и во двор многоквартирного дома, причем потратить на это буквально одну минуту — это поможет контролировать, где находятся дети, в любую минуту. В больших квартирах есть дополнительные окна, которые выходят на третью сторону и обеспечивают таким образом максимальный обзор.
🔹 Комнаты расположены далеко друг от друга. В стандартных планировках жилые комнаты находятся друг напротив друга и не имеют общих стен. Это очень удобно, потому что вы легко сможете уединиться в спальне и не слышать шума, который издают домочадцы. Особенно этот плюс полезен для семей с маленькими детьми: можно обустроить в одной комнате спальню, в другой детскую. Тогда шумные игры детей не будут мешать родителям отдыхать.
🔸 Можно купить один гарнитур. Дизайнеры рекомендуют создавать общий интерьер для всей квартиры-распашонки. Поэтому можно купить один большой гарнитур и сэкономить — если приобретать шкафы, кровати, тумбы и другие предметы мебели по отдельности, они обойдутся дороже. Кроме того, не придется выбирать интерьер для каждой комнаты отдельно: можно использовать схожие отделочные материалы во всех комнатах.
🔹 Легкое проветривание. Окна в таких квартирах расположены друг напротив друга, поэтому воздух в помещении легко освежить естественным путем, просто открыв окна и двери. Проветривание завершится за 1–2 минуты. Это большое преимущество жаркими летними днями, когда кто-то в семье заболевает, когда в доме много гостей — во всех этих случаях проветривание нужно для здорового микроклимата.
🔸 Проходные комнаты отсутствуют. В большинстве планировок все жилые комнаты в распашонках изолированные. Проходные комнаты присутствуют в небольшом количестве решений. Это удобно — можно создать спальни для всех членов семьи, не теряя свободного пространства. В проходных комнатах обычно же размещают гостиную либо спальню, но в этом случае спать в ней не очень комфортно.
🔹 Два балкона. Так как окна выходят на противоположные стороны дома, в современных планировках недвижимости могут быть предусмотрены два балкона, две лоджии или балкон и лоджии. Это существенно расширяет полезную площадь квартиры. Например, можно расширить кухню, если перенести часть гарнитура на лоджию, или использовать закрытый застекленный балкон в качестве мини-гардеробной.
🔸 Легкая перепланировка. Из-за особой планировки квартир в большинстве случаев несущими стенами выступают только внешние, а внутренние можно переносить без сложных экспертиз и процедур. Достаточно только получить соответствующее разрешение. А еще можно обойтись вообще без него, если использовать мобильные перегородки или перегородки из гипсокартона: например, с их помощью можно обустроить в большой спальне кладовую или гардеробную.
🔹 Большой коридор. В распашонках коридор обычно больше, чем в обычных квартирах, потому что имеет несколько выходов в другие комнаты. Также он может изгибаться в форме буквы «Г» либо плавно переходить в проходную комнату, кухню. Это дает возможность разместить больше мебели и сделать коридор более функциональным. Например, в нем можно разместить шкаф для хранения обуви и вещей, поставить большое зеркало, полку для обуви, удобный пуф для переобувания.
Недостатки распашонки
👎 Зависимость от качества остекления. Квартиру-распашонку обычно легко проветрить, и это преимущество. Но из этого преимущества выходит и недостаток. Так как окна расположены друг напротив друга, велика вероятность возникновения сквозняков. Особенно если пластиковые окна установлены неправильно, балкон застеклен или есть небольшие щели в остеклении. Поэтому нужно обращать особенное внимание на качество остекления и остекления балконов, лоджий. Например, использовать современные стеклопакеты, которые не будут пропускать холодный воздух внутрь помещения. Дополнительная защита от сквозняков — закрытые межкомнатные двери.
👎 Необходимость выдерживать единый стиль интерьера. Если в квартире-распашонке использовать разные стили интерьера для разных комнат, она будет выглядеть нелепо и аляписто. Многие дизайнеры рекомендуют использовать единый стиль оформления. Это может послужить серьезным недостатком, особенно если у разных членов семьи разные предпочтения в цветах, стилях, концепциях.
👎 Половина всегда находится в тени. Это — еще один недостаток, который вытекает из преимущества. Так как окна расположены на противоположных сторонах, одна из них всегда будет находиться в тени. Это плохо для семей, в которых все любят солнечный свет. А еще из-за недостаточного количества естественного освещения в таких квартирах будет тратиться больше ресурсов на отопление и освещение, если сравнивать их с обычным линейным жильем, окна которого выходят на солнечную сторону.
👎 Слишком длинный коридор. Это относится к многокомнатным «распашонкам», планировка которых немного неправильная. В этом случае, особенно если коридор слишком узкий, вы получаете много свободного пространства, которое никак нельзя использовать. Это увеличивает стоимость жилья в пересчете на квадратный метр полезной площади.
j.etagi.com
Дизайн двухкомнатной квартиры распашонки: множество вариантов для вас
Многие люди интересуются, как правильно разработать дизайн двухкомнатной квартиры распашонки. Не стоит этому удивляться, большинство семей живут именно в квартирах такого типа и не собираются никуда уезжать.

Как показывает практика, в двух комнатах может найтись место даже для троих человек. Поэтому разменивать такое помещение, например, на новую студию таким семьям не имеет никакого смысла. А на покупку двухкомнатного жилья в новом доме людям часто не хватает средств.

Каким именно будет дизайн квартиры, решается в зависимости от того, сколько человек в ней проживает. Обычно одинокие люди и молодые пары в одной комнате обустраивают спальню, а в другой – гостиную.
Но когда семья с детьми, то возникают трудности. Ведь одно помещение нужно отдать детям, а во втором родителям приходится организовать сразу две зоны: спальню и гостиную.
Поэтому все популярнее становится кардинальная перепланировка распашонки. Однако прежде чем ее проводить, необходимо определить все плюсы и минусы имеющейся площади. Тогда станет ясно, что нужно изменить.

Плюсы и минусы квартиры распашонки
Распашонки характеризуются необычной планировкой, именно поэтому они и получили такое название. Комнаты, как рукава рубашки, не имеют общих стен, а расположены друг за другом. Обычно они разделяются коридором, или кухней. Но иногда одна комната проходная.

Самым важным плюсом планировки квартиры распашонки можно считать то, что окна выходят на противоположные стороны дома. Благодаря этому в помещениях мало темных углов.
Такое расположение позволяет одновременно иметь теневую и солнечную сторону. Это создает комфортную температуру в доме даже летом.

Из минусов можно отметить сквозняки. Но они ощущаются, только если неправильно вставлены окна, или недостаточно утеплен балкон.
Варианты перепланировки квартиры распашонки
Так как в квартире есть две жилые комнаты плюс коридор, кухня и туалет с ванной, то существует несколько вариантов перепланировки.
Причем не всегда стены сносятся, иногда устанавливаются дополнительные перегородки:
- Если в помещении проживает семья с ребенком, а хозяевам не хочется совмещать спальню и гостиной, то большая комната делится на две маленькие. Для этого устанавливается дополнительная перегородка. В получившихся комнатах обустраивают гостиную и детскую.Но устанавливать дополнительное ограничение пространства лучше, когда в помещении имеется два окна. Если так получается, что в детской или гостиной не будет окна, то лучше не возводить стену из кирпича, или гипсокартона, а просто установить раздвижные двери. Также отделить детскую зону от гостиной можно аркой или стеллажом.

- Если кухня кажется слишком маленькой, ее можно объединить с гостиной. Это делают семьи, которые любят принимать гостей. В этом случае снесенная стена освобождает место для обеденного стола или дополнительного мягкого уголка.

- Если человек живет один, можно объединить кухню с коридором и гостиной. Стены остаются только в ванной, туалете и спальне.

- Если в доме имеется большой балкон или лоджия, их также можно объединить с одной из комнат. Там можно получить еще несколько метров и установить шкаф для хранения всех вещей, обустроить кабинет, или уголок для занятий спортом. В случае такой перепланировки балкон нужно утеплить. В этой зоне можно сделать и полы с подогревом.

- Если в коридоре достаточно места, то можно «расширить» пространство ванной комнаты или кухни. Также можно поменять дверные проемы на арки, или убрать двери и поставить рамки. Так в квартире появится ощущение простора. Этот вариант подходит, если в квартире живет только один человек.

Прежде чем проводить перепланировку, хозяину придется получить на это разрешение и обратиться к специалистам, которые скажут, какие стены можно сносить, а какие нет.

Разработка интерьера в квартире распашонке
Когда собственники определятся с тем, будет проводиться перепланировка или нет, можно переходить к разработке дизайна интерьера двухкомнатной квартиры.
Лучше распечатать несколько экземпляров плана жилища и раздать каждому члену семьи, чтобы все нарисовали, что хотят увидеть в итоге. Так будет проще определиться с тем, как оформлять все зоны в помещении.

Как можно заметить на выставленных в интернете фото, дизайн двухкомнатной квартиры создается по одним и тем же принципам. Специалисты часто сочетают разные фактуры и текстуры.
Таким образом они создают эффект расширения пространства, ведь в старых домах не такие уж большие площади.

Часто используются зеркальные панели, витражи и стекла в межкомнатных дверях. Также ощущение простора создается благодаря использованию арок и раздвижных перегородок. Дизайнеры также любят использовать подиумы и ниши в стенах.

При разработке дизайна двухкомнатной квартиры распашонки стоит продумать, каким будет освещение в комнатах. Именно свет позволяет создать уют в помещении.
Оформление интерьера в квартире распашонки
Разработать интерьер для однокомнатной квартиры проще, чем для дома, где две комнаты. Если в первом случае все помещение, включая ванную и туалет, можно оформить в едином стиле, то в двухкомнатной квартире масса вариантов.

Там, где жилые площади разделяются коридором, дизайнеры рекомендуют использовать два разных стиля, но одну цветовую гамму. Самым ярким помещением в этом случае может быть кухня.

Если в квартире есть проходная комната, то лучше использовать один стиль, но разную цветовую гамму. К примеру, гостиную можно оформить в ярких тонах, а спальню – в спокойных.
Если была проведена перепланировка, и отделена только спальня, то можно использовать абсолютно разные стили, которые не перекликаются между собой.
Интерьер «студии», входящей в квартиру распашонку может быть современным и вызывающим, а спальня в таком случае должна быть оформлена «по-домашнему», в самых спокойных тонах, чтобы ночью можно было отдохнуть.

Разработка дизайна комнат без перепланировки
Далеко не все решаются совершать глобальную перестройку распашонки. У некоторых людей на это не хватает средств, другим некогда ходить по разным инстанциям и собирать необходимые бумаги. В этом случае при разработке дизайна придется сразу определить, какие функции будут нести комнаты.
Например, в большой комнате хозяева могут не только принимать гостей, но и работать, поэтому ее придется разделить на две зоны. Часто гостиная является столовой, а иногда, если во второй комнате живут дети, это еще и спальня.

Но сколько бы ни было зон, их легко можно разграничить и без возведения перегородок.
Вот несколько способов:
- Отделить обеденную зону от зоны отдыха можно с помощью напольного покрытия. Там, где стоит обеденный стол, можно положить плитку, а во второй зоне – ламинат или ковровое покрытие. Также можно сделать разный уровень пола или поставить стол на небольшой подиум.

- Отделить рабочую зону можно с помощью низкого потолка, который по цвету будет отличаться от основного. Лучше в этом случае выбирать покрытие с глянцевым эффектом.
- Также разделить пространство можно с помощью света. В рабочей или обеденной зоне он должен быть ярким, а в зоне отдыха – теплым и интимным.

- Отделить зоны можно диваном, комодом, барной стойки или другой мебелью. В зависимости от выбранного стиля интерьера, можно разграничить пространство с помощью больших ваз, растений в горшках или небольших ширм.
Дизайн двухкомнатной квартиры распашонки должен разрабатываться с учетом основного правила оформления небольших помещений: как можно меньше мебели и как можно больше светлых цветов.

Приглашаем авторов, дизайнеров и магазины к сотрудничеству. Читайте об этом в соответствующем разделе
dekodiz.ru
75 идей дизайна для двухкомнатной квартиры серии 44т «распашонка»
Квартиры распашонки имеют такое название из-за необычной планировки. Комнаты расположены в виде рукавов рубашки, в последовательном порядке «друг за другом», и у них нет общих стен. Как правило, они отделяются общим кухней либо коридором. Однако иногда одна комната может быть – проходная. Дизайн двухкомнатной квартиры распашонки предназначен для создания комфортных условий для всей семьи.

При разработке дизайна следует учитывать мнение каждого члена семьи
Как сделать наиболее целесообразным дизайн-проект двухкомнатной квартиры П-44т?
Благодаря основательному и взвешенному дизайн-проекту внутреннего пространства квартиры, получится гармонично соединить разделенные коридором, санузлом либо кухней комнаты, заполнив их атмосферой тепла и комфорта. Для эффективного использования каждого метра помещения в дизайн-проект вносятся изменения о смещении либо строительстве перегородок, демонтаже либо перемещении стен, увеличении площади за счет балкона либо террасы. Проектирование жилплощади распашонки серии П-44т с перепланировкой может предполагать деление огромной комнаты на 2 небольшие, соединение туалета и ванной комнаты, либо соединение кухни с комнатой для гостей.

Большое помещение с двумя окнами можно разделить на две комнаты
Плюсы и минусы квартиры распашонки
Стоит обозначить все плюсы и минусы, при создании проекта дизайна квартиры распашонки:
- Главным плюсом такого вида планировки квартиры является то, что окна выходят на разные стороны. Поэтому в помещении практически всегда светло и мало затемненных углов. Это позволяет иметь в наличии одновременно и темную и светлую сторону. Таким образом, в посещении всегда комфортная температура воздуха в любое время года.
- В качестве минуса можно назвать – сквозняки. Однако, они присутствуют только в случае, если некачественно установлены окна, либо балкон не утеплен.

Распашонки чаще всего располагаются в торцевой части дома
Гарантией безопасной перепланировки является создание предельно точных чертежей всего помещения, и их четкое соблюдение.
Варианты перепланировки квартиры распашонки
Благодаря наличию двух жилых комнат, для квартиры распашонки существует множество различных вариантов перепланировки.

Пространство двухкомнатной квартиры открывает массу вариантов для дизайнерских перепланировок
Не обязательно сносить стены, иногда достаточно просто установить дополнительные перегородки. Предлагаем вашему вниманию распространенные варианты перепланировки квартиры распашонки.
Для семьи с ребенком
Если владельцам квартиры не нравится идея соединить спальню и гостиную, то эту проблему можно решить, разделив одну комнату на 2, при помощи перегородки. В образованных комнатах создают помещение для гостиной и детской. Этот способ планировки отлично подходит для комнат, в которых есть как минимум 2 окна. Если в какой-либо из комнат окно будет отсутствовать, то рекомендуется не строить кирпичную или гипсокартонную стену, а установить обычные раздвижные двери. Разграничение территории осуществляют аркой либо стеллажом, тем самым разделяя зоны детской и гостиной.

Совмещенная гостиная в современном стиле

Детское пространство отделено раздвижной перегородкой

В достаточно небольшом пространстве удалось разместить всю необходимую для ребенка мебель

На кухне площадью в 14 квадратов разместился обеденный стол для всей семьи

Комната для взрослых представляет собой спальню-кабинет

Домашний офис организован на утепленном балконе
Для гостеприимных хозяев квартиры
Небольшая кухня в этом варианте может быть объединена с гостиной. Таким способом освободится пространство для кухонной и столовой зоны с большим обеденным столом.

Объединение кухни и гостиной сделает помещение свободным и комфортным

Разделить функциональные зоны можно с помощью барной стойки или дивана
Для одного человека
Можно создать единое пространство, для этого необходимо кухню объединить с гостиной. При этом стены останутся исключительно в туалете, ванной комнате и спальне. Дополнительно, при наличии в квартире балкона или лоджии, их можно совместить с одной из комнат. Такое объединение позволит добавить дополнительную площадь, поставить платяной шкаф-гардероб, создать кабинет – рабочее место, обустроить место для спортивных тренажеров. Прежде всего, балкон необходимо утеплить, установить теплый пол с подогревом.

Квартира начинается с просторной и светлой прихожей

Гостиная оформлена в современном стиле

Небольшая кухня линейной планировки с барной стойкой вместо обеденного стола

В самой маленькой комнате разместилась уютная спальня

Ванной в санузле нет, зато есть душевая кабина, большая и современная
Важно знать! Сносить несущие стены – запрещено. Поэтому до проведения всех работ по перепланировке, необходимо обратиться к специалистам, Они предоставят информацию о том, какие стены можно сносить, а какие нет.
Оформление интерьера в квартире распашонке
Оформление интерьера в квартире распашонки имеет массу вариантов. Например, для выделения различных зон в одном помещении можно применить 2 различных стиля в одной цветовой гамме. Так можно выделить более светлым или более ярким оттенком пространство гостиной.

Оформление кухни и гостиной в едином стилевом направлении
Или же при наличии в квартире проходной комнаты, возможно оформление интерьера в одном стиле, но в различных оттенках. В частности, пространство гостиной можно выполнить в ярких тонах, а спальню – в пастельных.

Спокойные пастельные оттенки способствуют полноценному отдыху
Разработка дизайна комнат без перепланировки
Разработать практичный дизайн, и создать привлекательный внешний облик квартиры можно и без перепланировки. Это можно осуществить, зная различные архитектурные приемы и обладая умением правильно применять художественные техники.

Яркие акценты разбавят монотонный интерьер
Что способствует эффективному использованию полезной площади пространства:
- зонирование пространства;
- многофункциональная мебель;
- комбинирование различных цветов и оттенков;
- органичное декорирование.
Дизайн ванной комнаты
Дизайн ванной комнаты необходимо формировать таким образом, чтобы даже из небольшой площади сделать пример передовой дизайнерской идеи. Главное, что необходимо предусмотреть в любой ванне – это удобную систему хранения различных принадлежностей, таких как косметика, фен и все моющие средства.

Интерьер компактной ванной комнаты в стиле лофт
Какой дизайн подходит для маленькой ванной?
Четкие линии могут увеличить площадь маленькой ванной комнаты. Также для визуального увеличения помещения стоит установить на светлой стене зеркало. А от напольных шкафов следует отказаться, их стоит заменить встроенной мебелью. Дверь должна открываться наружу, чтобы не уменьшать размер ванной комнаты. Отличным решением для небольшой ванной являются раздвижные двери.

Дизайн ванной комнаты в бежевых тонах
Какой дизайн подходит для совмещенного санузла?
Варианты расположения предметов в совмещенном санузле:
- Обычный. Ванна устанавливается возле стены, а мебель располагается перпендикулярно ванне.
- Без углов. Дизайн всех предметов выполняется в виде полукруга вокруг центрального объекта интерьера – ванной.
Мебель для ванной должна быть изготовлена из влагостойких материалов, например: стекло, пластик, МДФ, ДСП.

В интерьере небольшого санузла не должно быть лишних деталей

В дизайн небольшой комнаты отлично впишется угловая акриловая ванна
Очень удобным шкафом для ванной является встроенный от пола до потолка шкаф, или стеллаж с раздвижными дверями.
Плитку для ванной лучше выбирать в соответствии с размером помещения, то есть, чем меньше помещение, тем меньше и сама плитка. Так как визуально это воспринимается так, что в просторной ванной больше плиток, и наоборот. Для небольших ванных пригодится как матовая, так и глянцевая плитка.
Современные ванные комнаты декорируют в стиле минимализм, хай тек либо классическом стиле.

Современная ванная комната в стиле хай-тек
При грамотном подходе, создавая проект планировки, двушку-распашонку в П-44т можно превратить в уютную и идеальную площадь для проживания.
Видео: 3 варианта планировки двухкомнатной распашонки серии 44т
Фотогалерея
Дизайн двушки в стиле лофт
Для семьи с двумя детьми
С утепленной лоджией и гардеробом
Кухня в двушке-распашонке
В современном стиле
‘; blockSettingArray[9][«setting_type»] = 1; blockSettingArray[9][«element»] = «h3»; blockSettingArray[9][«elementPosition»] = 1; blockSettingArray[9][«elementPlace»] = 9; blockSettingArray[10] = []; blockSettingArray[10][«minSymbols»] = 0; blockSettingArray[10][«minHeaders»] = 0; blockSettingArray[10][«text»] = ‘
‘; blockSettingArray[10][«setting_type»] = 1; blockSettingArray[10][«element»] = «h3»; blockSettingArray[10][«elementPosition»] = 1; blockSettingArray[10][«elementPlace»] = 10; blockSettingArray[11] = []; blockSettingArray[11][«minSymbols»] = 0; blockSettingArray[11][«minHeaders»] = 0; blockSettingArray[11][«text»] = ‘
‘; blockSettingArray[11][«setting_type»] = 1; blockSettingArray[11][«element»] = «h3»; blockSettingArray[11][«elementPosition»] = 1; blockSettingArray[11][«elementPlace»] = 11; blockSettingArray[12] = []; blockSettingArray[12][«minSymbols»] = 0; blockSettingArray[12][«minHeaders»] = 0; blockSettingArray[12][«text»] = ‘
‘; blockSettingArray[12][«setting_type»] = 1; blockSettingArray[12][«element»] = «h3»; blockSettingArray[12][«elementPosition»] = 1; blockSettingArray[12][«elementPlace»] = 12; blockSettingArray[18] = []; blockSettingArray[18][«minSymbols»] = 0; blockSettingArray[18][«minHeaders»] = 0; blockSettingArray[18][«text»] = ‘
‘; blockSettingArray[18][«setting_type»] = 3; blockSettingArray[18][«element»] = «p»; blockSettingArray[18][«directElement»] = «#toc_container»; blockSettingArray[18][«elementPosition»] = 0; blockSettingArray[18][«elementPlace»] = 1; blockSettingArray[21] = []; blockSettingArray[21][«minSymbols»] = 0; blockSettingArray[21][«minHeaders»] = 0; blockSettingArray[21][«text»] = ‘
‘; blockSettingArray[21][«setting_type»] = 3; blockSettingArray[21][«element»] = «p»; blockSettingArray[21][«directElement»] = «wrap-socials_webnavoz»; blockSettingArray[21][«elementPosition»] = 0; blockSettingArray[21][«elementPlace»] = 1; blockSettingArray[22] = []; blockSettingArray[22][«minSymbols»] = 0; blockSettingArray[22][«minHeaders»] = 0; blockSettingArray[22][«text»] = ‘
‘; blockSettingArray[22][«setting_type»] = 3; blockSettingArray[22][«element»] = «p»; blockSettingArray[22][«directElement»] = «wrap-socials_webnavoz»; blockSettingArray[22][«elementPosition»] = 0; blockSettingArray[22][«elementPlace»] = 2; blockSettingArray[23] = []; blockSettingArray[23][«minSymbols»] = 0; blockSettingArray[23][«minHeaders»] = 0; blockSettingArray[23][«text»] = ‘
‘; blockSettingArray[23][«setting_type»] = 3; blockSettingArray[23][«element»] = «p»; blockSettingArray[23][«directElement»] = «widget_1»; blockSettingArray[23][«elementPosition»] = 0; blockSettingArray[23][«elementPlace»] = 1; blockSettingArray[24] = []; blockSettingArray[24][«minSymbols»] = 0; blockSettingArray[24][«minHeaders»] = 0; blockSettingArray[24][«text»] = ‘
‘; blockSettingArray[24][«setting_type»] = 3; blockSettingArray[24][«element»] = «p»; blockSettingArray[24][«directElement»] = «widget_5»; blockSettingArray[24][«elementPosition»] = 1; blockSettingArray[24][«elementPlace»] = 1; var jsInputerLaunch = 15;
dizainvfoto.ru
Квартира распашонка — что это такое? Размеры, планировка, схема и дизайн
При поиске новой квартиры для своей семьи люди рассматривают множество вариантов и иногда встречаются с неизвестными ими прозвищами квартир. Но для того чтобы сразу оценить, стоит ли просматривать такую квартиру, или можно отложить ее просмотр, нужно хорошо разбираться в ее простонародном названии. 
Одним из таких прозвищ является название «распашонка» или «бабочка». Так что же подразумевается под данным прозвищем квартиры?
Квартира-распашонка: что это?
Слово «распашонка» или «бабочка» в отношении квартирной планировки означает квартиру, комнаты которой располагаются друг напротив друга и разделяются коридором, а окна комнат выходят на разные стороны дома: на улицу и во двор.
В центре квартиры находится коридор, заканчивающийся обычно кухней, помещением санузла или встроенной кладовкой (гардеробом).
История названия и современность
История названия начинается со времен массовой застройки городов «хрущевскими» домами, состоящими из малогабаритных квартир, и призванных в короткие сроки обеспечить граждан Советского Союза жильем.
Произошло название из-за сходства планировки таких квартир с детскими рубашками-распашонками. Комнаты, расходящиеся в разные стороны – это рукава распашонки, а коридор, разделяющий их это центральная часть рубашки. Окна комнат представляют собой отверстия в рукавах, а вход в квартиру обычно является низом распашонки.
Квартиры этой планировки пользуются популярностью и у современных застройщиков и граждан. Практически ни один план жилого комплекса не обходится без таких квартир, они пользуются спросом и быстро раскупаются.
Вариант названия «бабочка» настолько же уместен к данной планировке. Комнаты это крылья, а коридор – тельце бабочки.
Основные виды планировки «распашонки»
Название «распашонка» применяется к однокомнатным, двухкомнатным и даже к некоторым трехкомнатным квартирам.
Для однокомнатных квартир планировка практически стандартная: прихожая квартиры заканчивается ванной и туалетом или совмещенным санузлом, слева и справа по коридору расположены входы в кухню и гостиную.
Для двухкомнатных и трехкомнатных вариантов гораздо больше, но все они зависят от планирования расположения всех квартир дома и площади, отведенной на них.
Приведем в пример несколько из них:
- Квартира со стандартным расположением кухни – самая распространенная планировка. Возле входной двери справа или слева располагается жилое помещение. В конце коридора прямо ванная комната и туалет, друг напротив друга, находятся входы в кухню и второе жилое помещение.
- Еще один стандартный вариант: коридор заканчивается кухней, по обе стороны коридора располагаются входы в жилые комнаты. Санузел находится перед кухней на одном с ней уровне.
- Современный вариант новостроек: прихожая ведет в кухню-студию, уже объединенную с гостиной. Справа расположена комната меньшей площади. Туалет и ванная находятся справа, на одном уровне с кухней.
- Вариант с кухней и санузлом у входа в квартиру. Коридор из прихожей ведет на кухню, мимо санузла, с одной стороны, и спальни с другой. В конце прихожей вход во вторую комнату.
Преимущества квартиры-распашонки
Семьи, не один год проживающие в квартирах-распашонках, отмечают несколько преимуществ по сравнению с квартирами других планировок:
Прекрасный обзор местности, особенно для жильцов верхних этажей высотных домов. Закатами и восходами солнца можно любоваться из окон или с балконов своей квартиры.- Комнаты квартиры одновременно расположены на солнечной и затененной стороне дома, поэтому каждый может расположиться с комфортом в зависимости от предпочтений освещенности.
- Квартира очень легко и быстро проветривается, что является неоспоримым преимуществом в случае болезни кого-то из семьи, при большом количестве гостей, а также в жаркие летние дни.
- Нет проходных комнат, за редким исключением отдельных планировок;
- Во многих домах старой постройки жилые комнаты таких квартир имеют одинаковую площадь;
- В современных новостройках эти квартиры очень часто имеют 2 балкона;
- Разделение комнат коридором удобно и для семьи с детьми подростками и для взрослых детей, живущих с родителями. Жилые комнаты не имеют общих стен, поэтому каждая комната будет уютной и тихой.
- При перепланировке квартиры можно выделить еще одну комнату, или объединить кухню с прилегающей к ней комнатой, создав, таким образом, современную гостиную с барной стойкой или другими тенденциями квартирного дизайна.
- Покупка одного многофункционального комплекта мебели поможет обустроить квартиру в едином стиле и найти применение всей мебели.
Минусы распашонки
Несмотря на большое количество плюсов, такие квартиры имеют и некоторые минусы:
- При неправильно установленных окнах, возможны сквозняки, грозящие простудными заболеваниями и пониженной комнатной температурой в осенне-зимний период.
- Наличие теневой стороны может быть не только плюсом, но и минусом. Многие ищут квартиру с окнами, выходящими только на солнечную сторону, поэтому придется уделять особое внимание хорошему искусственному освещению.
- Дизайн всех комнат для органичности квартиры в целом должен быть выдержан в едином стиле. Особенно это касается полов и общей цветовой гаммы.
Перепланировка
Несмотря на удобство планировок квартир-распашонок, люди всегда стремятся к лучшему и стараются либо визуально увеличить пространство, либо добавить еще одну комнату в процессе перепланировки.
Современные архитекторы дают возможность перепланировки, предусматривая желания будущих жильцов еще на этапах проектирования и строительства домов, а вот в домах старой постройки перепланировка иногда вызывает трудности.
Важно знать, что прежде, чем начинать перепланировку квартиры, необходимо получить разрешение на эту процедуру. Согласно действующему законодательству все изменения в планировке квартиры должны быть внесены в ее технический паспорт. Перенос инженерных сетей, сантехнического и электрического оборудования также вносится в технический паспорт квартиры. Невыполнение этих требований грозит самодеятельным архитекторам штрафами и предписаниями на возвращение квартиры к соответствию действительного техпаспорта.
Процесс получение разрешения не составляет особой сложности, если в ваши планы не входит снос или частичное разрушение несущих стен, а также перемещение кухни в другое место квартиры
В этом случае достаточно нанести планируемые изменения на план квартиры, согласовать их и получить разрешение в БТИ.
Для более сложных перепланировок необходима разработка проекта, согласование, утверждение и только после этого получение разрешения.
Варианты перепланировок
- Вариант первый. Выделение дополнительной комнаты.
Большую комнату делим на 2 маленьких при помощи перегородок из гипсокартона или кирпича.
Минусом такого варианта является отсутствие необходимого количества окон в комнате, что сразу делает этот проект непригодным в случае наличия в переделываемом помещении только одного окна.
Но даже если в вашей комнате всего одно окно, не отчаивайтесь, выделить часть комнаты под кабинет или мастерскую можно установив высокий стеллаж или перегородку высотой в полстены, оформив вторую половину перегородки оригинальными занавесями.
- Вариант второй. Создание гостиной-студии.
Этот вариант отлично подходит тем, кто любит принимать большое количество гостей или хочет преобразить свою гостиную на европейский манер.
В этом случае достаточно объединить кухню с прилегающей к ней комнатой и современно обустроить полученную гостиную-студию, установив шикарную барную стойку или применив иные методы современного дизайна квартир.
- Вариант третий. Жилая комната на месте кухни.
Самый сложный вариант, так как не всегда можно найти новую площадь для кухни в прихожей или другом месте.
Главная проблема заключается в требовании санитарно-технических и противопожарных норм в размещении плиты не менее 5 метров от стояка.
Кстати, использовать этот вариант можно только в случае оборудования квартиры электроплитой.
- Вариант четвертый. Использование балкона или лоджии.
Сделайте из лоджии функциональную комнату: кабинет, гардероб, мастерскую или игровую комнату. Конечно, придется принять меры по ее утеплению и оборудованию, но они будут того стоить.
Разрешение на объединение лоджии с комнатой будет получить нелегко, но в случае успеха можно существенно увеличить площадь помещения, получив при этом панорамное окно, приняв естественные меры по утеплению полученного метража.
- Вариант пятый. Совмещенный санузел.
В квартирах, где ванная и туалет являются отдельными смежными помещениями, можно рассмотреть вариант их объединения.
Тем самым можно получить дополнительное пространство для установки стиральной машины, угловой ванны или душевой кабины и прочих других приятных мелочей.
Конечно, решаться на этот вариант можно только тщательно продумав все плюсы и минусы, особенно при большой численности семьи.
Напоследок несколько полезных советов тем, кто не готов к масштабным перепланировкам квартиры, но, тем не менее, хочет ее улучшить.
- Установите раздвижные двери вместо обычных межкомнатных – они не только визуально и практически расширят пространство, но и будут прекрасно смотреться.
- Поставьте в одной жилой комнат шкаф-купе – в нем гораздо больше места для хранения вещей, в том числе и громоздкой сезонной верхней одежды.
- Если на вашей кухне всегда царит порядок, объедините ее с коридором при наличии такой возможности. Тем самым вы увеличите площадь кухни и получите дополнительное пространство для установки шкафчиков и других мест хранения кухонной утвари.
moidom911.ru
Дизайн двухкомнатной квартиры распашонки: 3 проекта

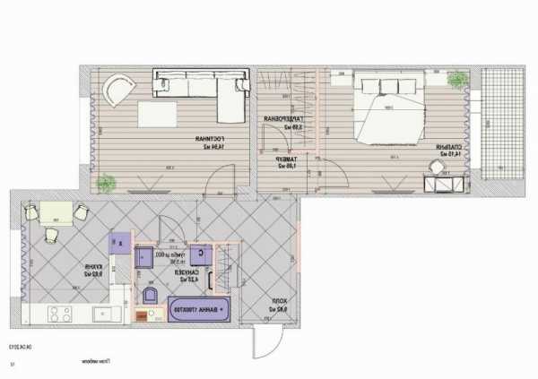
Двухкомнатные квартиры распашонки получили свое интересное название благодаря особенностям планировки: две комнаты идут друг за другом, за счет чего одна из них имеет два входа.
Обычно площадь таких квартир составляет больше 50 кв. м, что позволяет выполнить перепланировку жилья. Например, если у вас нет детей, можете оборудовать в одной комнате спальню, а вторую сделать гостиной, объединенной с кухней.

Квартира распашонка с проходной кухней
На скандинавские интерьеры можно смотреть вечно. С первого взгляда они кажутся такими уютными и гармоничными, а если присмотреться повнимательнее, вы поймете насколько они функционально продуманы.
Эта скандинавская квартира расположена в Норвегии, проект создан местной студией Box Studios. Она оформлена по всем принципам этого стиля. Здесь полно деревянной мебели и отделки, есть яркие акценты на текстиле, присутствует кирпичная кладка, установлен камин, полно настенного декора, который украшает белые стены. В общем, все идеально продумано!

План двухкомнатной квартиры распашонки

Создавая дизайн двухкомнатной квартиры распашонки, придерживайтесь единого стиля. Не стоит экспериментировать с объединением нескольких стилей интерьера, так как это, скорее всего, приведет с дисгармонии. Только представьте дизайн в скандинавском стиле в одной комнате и строгую классику в другой. Как минимум, это будет выглядеть нелепо.

Гостиная в современном скандинавском стиле.

Зона кухни и отдыха частично разделена перегородкой. Двери в таком пространстве были бы лишние.

Оформить меловую стену можно при помощи специальной краски.

Красивая кухня наполнена светом, от чего она кажется куда больше своих размеров.

Просторная спальня в белом цвете.

Второй камин в квартире

Вместо изголовья — надпись. Почему бы и нет?

Фотографии создают особое настроение в спальне. Плюс их легко менять, тем самым обновляя интерьер.

Квартира с проходной гостиной
Стильная двухкомнатная квартира распашонка, площадью 54 кв. м, имеет проходную гостиную. Такая планировка наиболее популярна. Интерьер в светлых цветах с голубыми акцентами был разработан Кирой Шелмановой.


Раздвижная дверь помогает сохранить полезную площадь комнаты для более полезных вещей. Установив на ее месте обычную распашную, от кресел со столиком пришлось бы отказаться.

Кухня в современном стиле

Фартук с разнообразной плиткой смотрится более интересно.

Альтернатива масивному шкафу-купе — встроенная ниша с раздвижными дверьми.



Квартира распашонка с проходной гостиной-столовой
Каждый квадратный метр квартиры продуман с умом. Благодаря этому на 58 кв. м удалось разместить все необходимые зоны для отдыха, готовки и сна.

План двухкомнатной квартиры


Маленькая гостиная-столовая


Небольшая спальня со входом в ванную

Основная часть вещей расположена в нишах для хранения, организованных между спальней и гостиной.

Стильная черная кухня

Двухлинейная планировка отлично подходит для такой узкой маленькой кухни

www.gd-home.com
Квартира распашонка — что это такое, что означает и фото 2019 год
Иногда люди, занимаясь поиском квартиры для покупки, сталкиваются с неизвестными вариантами, например задаются вопросом: «Квартира распашонка — что это такое?» Как она выглядит и какими особенностями планировки обладает — известно не всем. А ведь перед покупкой нужно досконально изучить все особенности недвижимости, нюансы ее обустройства, общие плюсы и минусы.
Дорогие читатели! Наши статьи рассказывают о типовых способах решения юридических вопросов, но каждый случай носит уникальный характер.Если вы хотите узнать, как решить именно Вашу проблему — обращайтесь в форму онлайн-консультанта справа или звоните по телефонам ниже. Это быстро и бесплатно!
Что представляет из себя квартира распашонка?
Это название, как правило, относится к жилищу, которое включает в себя пару жилых комнат, расположенных друг напротив друга. Но самое важное, что характеризует данную планировку — это окна данных помещений.
Окна в «распашонке» выходят на разные стороны относительно периметра квартиры. Например, одно окно открывает вид на южную сторону, а второе на северную. Или же одно окно выходит во двор, а из другого можно наблюдать рядом расположенные дома или улицу. Соответственно, не только комнаты в «распашонке», но и сами окна располагаются на противоположных сторонах.
к содержанию ↑Откуда появилось такое название?
Что значит «квартира распашонка»? Если внимательно присмотреться к плану данной квартиры, можно заметить небольшое сходство с детской рубашкой-распашонкой. Дело в том, что между расположенными налево и направо комнатами находится коридор или прихожая, ванная комната и туалет. В некоторых квартирах может присутствовать небольшое дополнение в виде маленькой хозяйственной кладовки. Данная часть, состоящая из всех перечисленных помещений, и является центральной частью распашонки.
А вот расходящиеся в разные стороны комнаты будут представлять левый и правый рукавчик детской одежды. Ну и, конечно же, сами окна — это отверстия на рукавах.
к содержанию ↑Изначально «распашонками» называли малогабаритные хрущевские квартиры с комнатами, выходящими на разные стороны дома, иногда с проходной комнатой по середине.
Основные виды планировки «распашонки»
Распространены несколько типов планировки для таких квартир. Отличия зависят от расположенности в доме и заимствованной площади.
- Распашонка со стандартной кухней. Прихожая квартиры выходит на ванную и туалет. Слева от входной двери располагаются проходы в гостиную и кухню. Справа вход в спальню.
- Распашонка с кухней-студией (на фото в начале статьи). Прихожая сразу же переходит в кухню. Слева от входа дверь в гостиную. Справа от кухни вровень с ней находится туалет и ванная, рядом вход в спальню.
- Кухня рядом со спальней. Справа от входной двери два прохода, один ведет мимо ванной и туалета на кухню, следующий проводит в спальню. Напротив спальни располагается гостиная.


Преимущества квартиры-распашонки
Удачное отделение жилых комнат друг от друга
Многим членам семьи приходится достаточно сложно проживать в комнатах, расположенных рядом. Кто-то громко слушает музыку, кто-то топает по комнате или кашляет. Проживание в распашонке позволяет разместить взрослых и детей в разных помещениях, что весьма удобно. Так, в одном конце квартиры можно оборудовать хорошую детскую/подростковую, в другом обустроить взрослую спальню.
Для бездетной пары вариантов также предостаточно. Например, в одной стороне будет находиться спальня, а в другой — гостиная комната. И даже храпящие гости, оставшиеся на ночь, не побеспокоят хозяев.
к содержанию ↑Возможность оборудовать кухню-студию
Если в планировке кухня находится напротив входной двери или чуть поодаль, то не составит труда создать привлекательную студию.
Она не будет иметь стенки и потому сможет обладать достаточно большой площадью. Расположить там и большой кухонный гарнитур и барную стойку, выделить обеденную зону не составит труда. Главное «не заходить» на территорию прихожей. Иначе она станет совсем маленькой и неуютной.
С другой стороны, не всем хозяйкам понравится, что каждый входящий в дом будет сразу видеть кухонное пространство. Хотя это, в общем, не так уж и страшно.
к содержанию ↑Возможность добавления третьей комнаты
Данный плюс скорее относится к проведению ремонта и желанию выделить еще одно дополнительное помещение. Можно ограничиться в данном случае лишь возведением небольшой арки или проведением зонирования пространства посредством гипсокартонной стены. Оба варианта приемлемы.
Еще один вариант — это перенос кухни. В планировке, где кухня расположена на одном уровне с гостиной, не составит труда превратить кухню в еще одну комнатку. Поэтому при покупке распашонки стоит рассматривать и возможность получения квартиры с более, чем двумя комнатами.
Совмещение с балконом является лишь визуальным увеличением пространства в случае использования одинаковой стилистики и правильного его переоборудования. Но также присутствует вариант, когда стену между залом и балконом частично удаляют. Остается практичное продолжение жилой комнаты. Правда, при использовании данного решения стоит помнить о необходимости утеплить балкон, установить теплое остекление или же провести теплые полы.
к содержанию ↑Возможность покупки большого гарнитура для всех комнат в одном стиле
Если владельцы пожелают практично и оригинально обустроить жилище, они могут прибегнуть к весьма интересному варианту: купить один большой набор мебели для всей квартиры. Так, для каждой комнаты найдется свой предмет мебели, который будет полезен. Дизайнеры не рекомендуют заставлять распашонку разными по стилистике изделиями. Исключение лишь составляет оформление детской, в этой комнате можно использовать любую мебель.
к содержанию ↑Хороший обзор из окон
Пожалуй, этот плюс не так важен, как предыдущие, но все же имеет место быть. Вид из распашонки открывается отличный. С каждой стороны можно смотреть на разные прилегающие части дома. Особенно данное качество квартиры радует жителей высоток. Оттуда можно любоваться всем, чем угодно.
Минусы распашонки
Например, использовать разную стилистику в оформлении комнат не рекомендуется. Все части должны идеально сочетаться, а не быть противоположностями друг друга. Желательно подбирать тона отделки в одной цветовой гамме и использовать одинаковое половое покрытие. Таким образом, будет выполнено аккуратное и стильное зонирование.
Наличие только одной солнечной стороны, если таковая и вовсе будет присутствовать, удручает многих покупателей. Если приобрести за подобную цену можно линейную квартиру, у которой окна выходят к солнцу, то следует отдать предпочтение «линейке».
В общем, квартиры-распашонки не являются чем-то из ряда вон выходящим. Они и удобны, и комфортабельны, и могут быть изменены по желанию владельцев. Но самое главное: они достаточно просторны и позволяют жить в мире и дружбе всей семье.
Не нашли ответа на свой вопрос? Узнайте, как решить именно Вашу проблему — позвоните прямо сейчас:Это быстро и бесплатно!
| Поделиться с друзьями: |
kvartira3.com
Квартира распашонка — что это за зверь? Плюсы и минусы, планировки
В погоне за количеством квадратных метров и красивой, не такой, как у остальных, отделкой квартиры, многие покупатели жилья почему-то забывают о… Если и не о главном, то об очень важном элементе, структуре или, другими словами, скелете каждой квартиры – о планировке.
Её значимость нельзя недооценивать, а переоценить ну просто не получится. Как много на рынке недвижимости предложений, которые стали бы только привлекательнее, если бы набор из жилых комнат, кухни и санузла там был представлен в другом виде. И в то же время – как много квартир, порядок помещений в которых выбран и реализован так удачно, что там сразу хочется жить, даже несмотря на дешёвые обои и маленькую площадь.
Многие застройщики знают о важности планировок, поэтому стараются подбирать для своих клиентов только лучшие варианты. Другие, также зная об этой важности, наоборот, оставляют квартиры пустыми пространствами – пусть планировкой их владельцы занимаются самостоятельно.
Последнее особенно популярно в объектах бизнес-класса и в апартаментах – когда для обустройства жилья есть всё, что нужно (по крайней мере, деньги и возможности), грех этим не воспользоваться.
Но интересно, что стоя перед чистым холстом, большинство предпочитает изображать на нём самую простую квартиру-распашонку.

И застройщики до сих пор стараются сделать так, чтобы окна желанных квартир выходили сразу на две стороны. Эта наша статья – о распашонке, королеве квартирных планировок, её истории, плюсах и минусах.
Квартира-распашонка – это что?
Самое простое объяснение для планировки под названием “распашонка”, наверное, такое – это квартира, в которой комнаты находятся по разные стороны от коридора. Понятно, что окна комнат, при этом, выходят на две противоположные стороны дома. Получается, что из одной половины квартиры обычно видно улицу, а из другой, соответственно, двор; одна половина солнечная, а другая чаще находится в тени. Распашонки – практически инь и ян рынка недвижимости.

Однокомнатные “распашонки”
В теории, распашонкой может быть квартира с любым количеством комнат – ну, разве что не студия. Но однокомнатные распашонки встречаются не так уж часто, хотя всё-таки и бывают – в конце коридора у них находится санузел (раздельный или совмещённый, не так важно), а по разные стороны от него, слева и справа, лежат кухня и жилая комната.

Однокомнатная распашонка
Вот, скажем, проснулись вы утром в своей спальне, вышли из неё в коридор, зашли в туалет, потом привели себя в порядок в ванной, а затем отправились на кухню готовить завтрак. И ваша квартира сама напоминает вам, в какой очерёдности осуществлять все эти действия, не даёт всё перепутать и, скажем, позавтракать, не почистив зубы. Очень удобно!
Двухкомнатные и трехкомнатные “распашонки”
Однако особенно популярна данная планировка в квартирах с количеством комнат больше одной – с двумя или даже тремя. Оно и понятно – там её возможности используются как-то более грамотно, что ли, на полную катушку. И даже не очень зависят от количества квадратных метров, хотя, конечно, чем их больше, тем лучше.

Есть распашонки, в которых с одной стороны от упирающегося в санузел коридора находится гостиная, а с другой – кухня и спальня. Есть похожие на них, в которых кухня сразу объединена с гостиной, а напротив неё располагаются, скажем, спальня или взрослая + детская, если речь идет о трех- и четырехкомнатных квартирах.

Есть такие, в которых коридор ведёт на кухню, а слева и справа от него – комнаты и санузел рядом с одной из них. Это, кстати, очень интересный вариант, потому что на кухне в нём тоже будут окна.
И ещё упомянем практически такой же вариант, только чуть улучшенный – кухня-гостиная в конце коридора, комнаты (спальни, детские, кабинеты – всё, на что хватит фантазии) слева и справа. Но, в общем, даже несмотря на разнообразие наполнения, все распашонки делаются по одной структуре – коридор лежит в основе, как позвоночник, а слева, справа и спереди на него что-то “наращивается”.

А почему именно “распашонка”?
Название данной планировки квартир не менее двояко, чем она сама. Некоторым оно нравится своей простотой, других ею же и отталкивает, но все согласятся, что в контексте рынка недвижимости, среди разнообразных “апартаментов”, “лофтов” и “таунхаусов”, русское слово “распашонка” звучит как-то не так. Кому-то оно покажется понятным сразу, даже без объяснений. А вот другим, в особенности, наверное, людям молодым, так легко не поддастся. Пришла пора объяснить самым недогадливым, почему же квартира-распашонка называется “распашонкой”.

Увы, к распахнутым объятиям, с которыми такая квартира, кажется, готова принять жильцов, её название никакого отношения не имеет. А объясняется оно подмеченным кем-то сходством с детскими рубашками-распашонками – ну, знаете, такими, без пуговиц спереди. Низ такой рубашки – это вход, центральная её часть – коридор, а рукава – комнаты.

Аналогию можно продолжить, сказав, что начало рукавов – это двери в комнаты, а концы – это окна. И даже несмотря на то, что по этой логике у некоторых квартир-распашонок бывает по два рукава с каждой стороны (это на каких же детей, интересно, их планируется надевать?!), сравнение всё равно кажется на редкость удачным.
Если вдруг вам оно по какой-то причине не нравится, можете использовать не такое популярное, но тоже известное (по крайней мере, специалистам) и весьма красивое определение – квартира-”бабочка”. Тут без ассоциаций с какими-либо другими бабочками, кроме настоящих: коридор – это тельце насекомого, а комнаты квартиры – это его крылья.
Кто первым понял, что распашонки – это круто
Согласно некоторым источникам, история планировки-распашонки начинается ещё со времён Советского Союза, и связана она с небезызвестными “хрущёвками”. Распашонки предлагают максимально функциональное использование площади квартиры, а ещё компенсируют своим удобством скромную площадь, не самую привлекательную отделку и тонкие стены.
Да, может быть, в каких-нибудь коммуналках сталинских времён стены были толще, а комнаты просторнее, но, при этом, по комфорту они распашонкам явно уступают. Если раньше даже в рамках одной квартиры устраивалось нечто похожее на общежитие, то теперь в рамках всё той же одной квартиры у каждого члена семьи был свой уголок. Поверить в эту версию происхождения названия тем более легко потому, что Никита Хрущёв наверняка любил рубашки-распашонки, а точнее, их украинский вариант – вышиванки.

И хотя располагать комнаты в одном жилом помещении по две стороны от коридора, чтобы окна выходили на разные стороны света, явно додумались и до хрущёвских времён, популярность этой идеи идёт откуда-то оттуда.
До сих пор застройщики, работающие в разных классах недвижимости, от “стандарта” до “премиума”, пользуются её преимуществами и стараются предлагать распашонки своим клиентам всегда, когда это возможно. Кажется, у такого жилья сплошные плюсы – но так ли это на самом деле?
Плюсы квартиры-распашонки
Плюсов у квартир-распашонок и правда хватает. Например, из ваших окон всегда будет хороший обзор – на две стороны света минимум, а то и на три. Из шумной комнаты с видом на улицу вы всегда сможете сбежать в тихую комнату с видом на двор. Хотите посмотреть, нет ли пробок – выгляните в одно окно, хотите узнать, как ребёнок проводит время в песочнице – выгляните в другое. В современных новостройках распашонки часто ещё и получают два балкона. Уж хотя бы с одного из них вид будет замечательный, а второй, как все это обычно делают, можно использовать в качестве кладовки.

Фото – Игоря Соболева
Сюда же можно записать ещё один плюс – из двух половин вашей квартиры одна наверняка будет светлой и солнечной, а другая тёмной и теневой. Возможность сбежать в тень в знойный летний день или наоборот просыпаться с лучами солнца весной надо ценить.
Более практический и не связанный с эстетикой окружения плюс данной планировки заключается в том, что из-за неё в квартире не будет проходных комнат. Хотите разделить гостевую и хозяйскую зоны? Пожалуйста. Мечтаете, чтобы маленькие дети не мешали вам наслаждаться сном в спальне? Проще простого. Дети-подростки просят уединённости? Что ж, её тоже будет легко им обеспечить.
И даже если когда-нибудь вам покажется, что семья стала какой-то разобщённой – выход есть
Можете, например, объединить кухню с одной из комнат, превратить её в просторную гостиную – вместе готовить, есть и смотреть телевизор. Так что, хоть распашонка и сильно зависит от своей структуры, к вариациям она тоже готова.
И ещё один плюс распашонки – уж совсем практический. Если вы недовольны работой вытяжки, не бойтесь, здесь эту проблему легко решить. Открывайте окна в двух комнатах, расположенных напротив друг друга, и наслаждайтесь гуляющим по квартире ветерком. Ваши друзья, живущие в квартирах с линейной планировкой, будут завидовать тому, как быстро вы проветриваете и остужаете помещения.

Минусы “распашонок”
К сожалению, не всё так просто, и близкая к идеалу планировка всё-таки не идеальна. Причём, интересно, что многие её минусы вытекают из её же плюсов. Взять хотя бы упомянутую выше возможность к быстрому проветриванию – многие могут справедливо укорить её в создании лишних сквозняков.
СЕ ЛЯ ВИ
Нам не известна точная статистика заболеваний в связи с планировкой квартиры, но есть ощущение, что обитатели распашонок простужаются чаще остальных.
Или вот те же солнечная и теневая стороны. А как в распашонке себя будут чувствовать те, кто определился – “Люблю солнце” или “Люблю тень”? Вариативность преувеличена – приготовьтесь к тому, что, скажем, кухня у вас всегда будет тёмная, а спальня всегда светлая. Компромисс – это, как известно, не всегда хорошо.
Нужно также признать, что распашонка сама по себе – это не панацея. Среди них тоже бывают более и менее удачные. Среди последних, например, такие, в которых слишком длинный коридор – в погоне за уютом и уединённостью в каждой комнате мы получаем никак не используемые и, можно сказать, лишние квадратные метры.

Того же самого следует бояться тем, кто привык к экономии. Это вполне логично, но нельзя не сказать, что маленькую и, соответственно, дешёвую распашонку найти не так уж просто – уж точно сложнее, чем студию или линейную однушку. На рынке недвижимости за всё, даже просто за удобную планировку, приходится платить дополнительно.
Выводы
Да, квартиры-распашонки не лишены минусов. Людям одиноким и желающим сэкономить они вообще не очень подходят. Но для семей планировок лучше, чем эта, пока не придумали – ну и уже вряд ли придумают. Внимание на их недолгую историю обращать не стоит, вместо этого лучше постараться сделать так, чтобы планировка была не единственным достоинством вашей квартиры.
Внимание! Несмотря на хороший пример работы мастера на видео, некоторые корпуса ЖК “Новокосино-2” являются долгостроями. Подробнее – по данной ссылке.
novostroyman.ru

Прекрасный обзор местности, особенно для жильцов верхних этажей высотных домов. Закатами и восходами солнца можно любоваться из окон или с балконов своей квартиры.