Свет в ванной комнате,правильный выбор и размещение с фото
Не напрасно психологи рекомендуют особое внимание уделить созданию интерьера в ванной. Эта комната играет важную роль в поддержании физического и психического состояния. Она обеспечивает условия для гигиенических процедур, дарит заряд бодрости и хорошего настроения по утрам, готовит ко сну вечером. Важно не только правильно выбрать сантехническое оборудование для максимального удобства, но и создать соответствующую атмосферу. В решении этой задачи основополагающим моментом является освещение. Необходимо разобраться, как расположить свет в ванной, чтобы она стала комфортным кабинетом, домашним мини-салоном для релаксации, гигиенических процедур.
Роль света в интерьере ванной
Оборудование осветительной системы в этом помещении требует ответственного подхода. Есть определенные сложности в этом процессе. Прежде всего, при создании освещения необходимо учитывать специфические условия эксплуатации. Даже в просторной комнате, оснащенной качественной вентиляцией, влажность, температура воздуха будет периодически повышаться. Светильники, расположенные в ванной, должны быть рассчитаны на эти параметры.
Разрабатывая схему осветительной системы, выбирая места расположения светотехнических приборов, их мощность, необходимо ориентироваться на функции света в ванной комнате. Освещение:
- создает комфортные условия для всех процедур;
- подчеркивает достоинства сантехнического оборудования, отделочных материалов;
- является одним из главных украшений интерьера;
- при необходимости выполняет визуальную коррекцию комнаты.

Освещение является одним из главных украшений ванной
В большом помещении выполняется зонирование, позволяющее для каждой процедуры выделить автономный участок. В этом случае предусматривается индивидуальное освещение для каждой зоны. В маленьких комнатах главные осветительные приборы обычно размещаются на полотке, в верхней части стен. Но должны быть дополнительные светильники в зоне размещения зеркала. В противном случае будет сложно бриться, выполнять косметические процедуры.
Правильное размещение светильников предоставит возможность продемонстрировать привлекательность плитки на стенах, мозаики, напольных покрытий. При помощи света в ванной комнате дизайн интерьера можно сделать максимально выразительным, изысканным.

Правильный свет в ванной комнате сделает интерьер выразительнее
В оформлении этого помещения сложно использовать декор. Площадь его ограничена, сложные условия не позволяют украсить интерьер предметами, не обладающими должной устойчивостью к внешним воздействиям. С этой функцией отлично справятся светильники. Они могут стать достойными украшениями обстановки.
Необходимость в коррекции ванной возникает часто. В большинстве случаев требуется зрительно расширить комнату, поднять потолки, создать ощущение простора. Свет в решении этой задачи окажет существенную помощь. Отражение потоков глянцевыми поверхностями, качественное освещение светлой отделки визуально увеличит помещение, придаст интерьеру легкости.

Правильный свет помогает визуально поднять потолки
к оглавлению ↑Специфика электропроводки в ванной комнате
Решать, как расположить светильники в ванной, какие светотехнические приборы будут использоваться в системе, необходимо на подготовительном этапе перед ремонтом. Проводка в этом помещении выполняется скрытым способом, требуется:
- создать точную схему прокладки кабелей;
- выбрать провода с учетом мощности всех электроприборов;
- выполнить безопасное, надежное подключение.
В монтаже электричества в ванной используются алюминиевые, медные кабели сечением 4 мм, 2,5 мм соответственно. Для определения точного размера для конкретного помещения общий показатель мощности делится на 220. Однако самостоятельно делать выбор расходных материалов для системы освещения не стоит. Лучше доверить эту работу специалисту, который будет делать проводку.

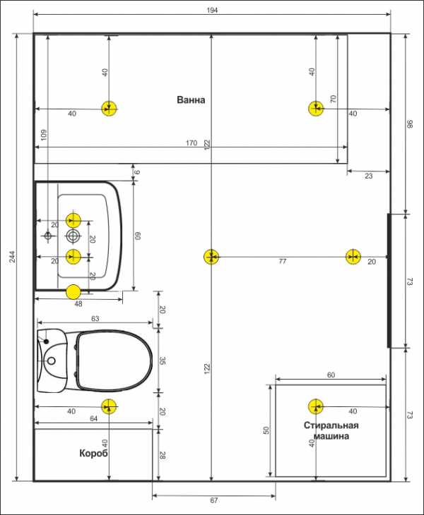
Пример плана системы освещения
Наличие точной схемы размещения источников света позволяет провести в нужных местах штробление стен, потолка, уложить кабель по оптимальным маршрутам, обеспечить удобное пользование светильниками.
к оглавлению ↑Главные требования к светильникам
В современных ванных используется большое количество видов светильников. Модели выбираются с учетом специфических факторов помещения. Есть общие требования к приборам, которые будут создавать свет в ванной комнате. Они должны:
- иметь необходимый уровень защиты от влаги;
- соответствовать предназначению, стилю интерьера;
- быть простыми в уходе.
В ассортименте каждого производителя светотехнической продукции есть модели, имеющие различные уровни защиты от пыли, влаги, механических воздействий. Для этой комнаты все они имеют значение.

Все светильники должны иметь должный уровень защиты от влаги
Каждый светильник будет важным элементом интерьера, нередко выполняет не только практические, но и декоративные функции. Нужно выбирать модели, которые безупречно справятся с обоими предназначениями.
Регулярные уборки являются обязательным условием для поддержания должного порядка. Конструкция светотехнических приборов должна обеспечивать удобство в удалении пыли, загрязнений. Все поверхности должны обладать устойчивостью к бытовой химии, которую придется применять в уборке.
Свет в ванной выполняет и декоративные функции
к оглавлению ↑Оптимальные уровни защиты для светильника в ванной
Правильно выбрать свет для ванной комнаты поможет знание методики расшифровки маркировки светотехнических приборов. В обозначении уровней защиты используется три цифры:
- первая обозначает изоляцию от пыли;
- вторая свидетельствует о герметичности, исключающей проникновение влаги;
- третья показывает уровень устойчивости к механическим воздействиям.
По защищенности от пыли светильники делятся на 7 категорий. Цифра «0» говорит об отсутствии защиты, полной открытости, максимальная пыленепроницаемость обозначается «6».

Таблица уровней защиты
По водонепроницаемости устройства делятся на 9 категорий. Это важнейший показатель для ванной. Приборы с цифрой «0» не имеют защиты от влаги, абсолютно непригодны для этого помещения. Светильники 8 уровня могут функционировать, находясь в воде. Для оформления интерьера в ванной использовать их необязательно. Категория водонепроницаемости выбирается с учетом расположения прибора, интенсивности воздействия влаги.
Уровень устойчивости к ударам варьируется в диапазоне показателей 0-10. Максимальные показатели для светильников необязательны. Но приборы, размещенные в зонах возможных случайных ударов, должны обладать достойной прочностью. Это обеспечит безопасность в пользовании.
к оглавлению ↑Размещение светильника и водонепроницаемость
Выбирая свет для ванной комнаты, нужно помнить о требованиях безопасности. Необязательно покупать для нее все светильники с максимальной защитой от влаги. Этот показатель зависит от зоны, в которой прибор будет располагаться. Есть рекомендации специалистов, которыми можно руководствоваться при приобретении источников света.
- В I зону входят душевые боксы, участки у ванны, раковины. Для нее могут выбираться светильники с IP от 674.
- К зонам II уровня относится верхняя часть, расположенная над ванной. Здесь не исключен риск попадания капель, душевых струй. Источники света должны иметь маркировку с IP от 452.
- Зоны III расположены в полуметре от ванны, раковины. В этих участках на осветительный прибор могут попадать капли воды. Модели должны иметь IP от 242.
- Участки, находящиеся далеко от раковин, ванн, относятся к IV зоне. В ней может скапливаться конденсат, воздух периодически будет иметь повышенный уровень влажности. Можно располагать в этих участках светильники с IP от 011.

Расшифровка степени защиты (IP)
Качественная изоляция рабочих узлов осветительного прибора исключает риск короткого замыкания, способного привести к выходу светильников из строя, пожару.
Лампы в светильниках в ванной
Внимательного выбора заслуживают не только модели светильников, но и типы ламп. Они должны создавать комфортный свет в ванной комнате, обеспечивать уютную атмосферу, обладать надежностью, экономичностью. Сейчас бытовые светотехнические приборы оснащаются лампами:
- накаливания;
- галогенными;
- люминесцентными;
- светодиодными.
Лампа накаливания стоит дешево, при включении сразу обеспечивает полную мощность освещения, создает потоки теплого оттенка. Но служат такие источники света сравнительно недолго, потребляют много электроэнергии. Нельзя устанавливать их в пластиковые плафоны, так как лампа сильно нагревается.

Лампы накаливания сильно нагреваются
Галогенные модели намного экономичнее аналогов с нитью накаливания. Они служат дольше в несколько раз, экономично расходуют энергию. Нередко такие лампы устанавливаются в споты, точечные модели. В создании системы освещения можно использовать источники 220 В или 12 В. Двенадцативольтовым приборам потребуется специальный трансформатор.

Галогенные лампы экономично расходуют энергию
Люминесцентные лампы в большинстве своем монтируются у зеркал, раковин, обеспечивают качественное освещение рабочей зоны. В ассортименте есть модели с разными оттенками свечения. Специалисты не советуют применять люминесцентные трубки в ванной. Их функционирование находится в зависимости от напряжения, колебаний температуры. К тому же при работе лампы шумят, что может помешать качественной релаксации.

Люминесцентные лампы для освещения зеркал
В дизайне света в ванной комнате одним из самых популярных участников сейчас стали светодиоды. У них много преимуществ. Светодиодные источники света имеют максимальный срок службы, отличаются низким уровнем потребления энергии. Кроме того, можно установить цветные светодиоды, создать нужную атмосферу, регулировать интенсивность света и его оттенки. В светодиодной продукции много вариантов, позволяющих выбрать модели для основного, дополнительного освещения, локальной подсветки.

Цветной светодиодный свет в ванной комнате
к оглавлению ↑Общие принципы размещения осветительных приборов
Независимо от площади ванной, в ней создается три зоны. Это позволяет создать комфортные условия для всех процедур. Нужно определить, как расположить свет в ванной, чтобы обеспечить качественное освещение зон:
- умывания, косметических процедур;
- купания, принятия душа;
- стирки, переодевания, хранения вещей.

Пример зонального освещения в ванной комнате
В зоне умывания нужно обеспечить качественную подсветку зеркала, раковины. Расположение светильников в месте купания зависит от вида сантехнического оборудования. Источники света могут находиться в боксе, над ванной, в душевом уголке. Зону переодевания, стирки может освещать общий потолочный светильник. Дополнительно могут устанавливаться точечные светильники в мебели для максимального удобства.
к оглавлению ↑Уровни расположения светильников
На фото света в ванных комнатах отражены три уровня размещения приборов. В этой комнате монтируется освещение:
- верхнее,
- среднее,
- нижнее.
Потолочные светильники необходимы для удобства пользования комнатой. Они создают основной свет, освещают все зоны. В ассортименте светотехнической продукции можно найти варианты для комнаты любой площади с учетом стиля, особенностей дизайна. На верхнем уровне могут располагаться люстры, плафоны, используется точечный свет в ванной.

Потолочные светильники создают основной свет
Освещение среднего уровня называется рабочим. В этой зоне находятся источники света, обеспечивающие комфортность в проведении процедур. В большинстве своем для этих целей выбираются настенные модели.

Светильники среднего уровня обеспечивают комфортность в проведении процедур
Нижний свет не является обязательным элементом для создания должной комфортности. Это освещение является декоративным, используется для придания интерьеру оригинальности, создания особой атмосферы. Кроме того, установка светильников в нижней зоне позволяет выполнить визуальную коррекцию, расширить комнату, сделать ее просторнее.

Нижний свет создает особую атмосферу
к оглавлению ↑Типы источников света, их особенности
Создать безупречный дизайн света в ванной комнате сейчас несложно. Огромный ассортимент светотехнической продукции позволяет реализовать любой проект, создать в помещении абсолютный комфорт. В системе освещения могут использоваться светильники:
- подвесные;
- накладные;
- встраиваемые;
- настенные;
- точечные;
- светодиодные конструкции.
В просторной комнате с высокими потолками можно установить люстру с несколькими источниками света для качественного освещения помещения. Если стены не обладают большой высотой, хорошим вариантом станет накладная модель. В маленьких помещениях устанавливаются встраиваемые светильники, не требующие свободного пространства.

Люстра подойдет для ванной с высокими потолками
Настенные приборы являются оптимальным вариантом для оформления рабочих зон. Точечный свет в ванной может использоваться в качестве основного освещения. Эти светильники могут монтироваться в зоне косметических процедур, купания. Устройства этого типа имеют качественную герметизацию, высокий уровень защиты от влаги. Они устанавливаются в любых зонах.

Настенные светильники для оформления рабочих зон
Популярным элементом современного дизайна являются светодиодные ленты. Для монтажа LED конструкций ограничений нет, в любой зоне можно создать эффектную подсветку. Существенным плюсом таких моделей является возможность регулировки интенсивности и цвета свечения. Для этого они оснащаются специальными устройствами.

Светодиодные ленты создают эффектную подсветку
к оглавлению ↑Рекомендации по выбору светильников
Не так просто выбрать оптимальный свет для ванной комнаты в огромном ассортименте. Помощь в поиске могут оказать рекомендации профессионалов:
- В освещении зеркала нужно исключить неестественность изображения, тени. Не нужно устанавливать источник света под зеркалом, использовать цветные светильники. Лучшим вариантом является бра с матовыми, белыми плафонами. Приборы устанавливаются по бокам.
- Зону купания можно не освещать дополнительно. Но если хочется создать атмосферу, способствующую релаксации, расслаблению, можно повесить над ванной бра, использовать светильники для подсветки дна. Необходимо учитывать, что непосредственно над емкостью навесные светильники устанавливать нельзя. В душевых кабинах последнего поколения есть автономное освещение.

Освещение зоны купания способствуюет релаксации
- Точечный свет в ванной может существенно повысить комфортность, привлекательность интерьера. Эти элементы используются для установки на потолке, стенах, в нишах, ступенях, пьедесталах и др. Монтаж таких источников света в мебели обеспечивает удобство в пользовании.
- Стоит использовать в интерьере напольные светильники, обеспечивающие максимально уютную атмосферу. Хорошим решением могут стать наливные полы с подсветкой, морским декором.

Напольный светильник в ванной комнате
- При выборе ламп нужно учитывать цветовую гамму интерьера. Источники света галогенные, с нитью накаливания, светодиодные, люминесцентные могут создавать теплое, холодное свечение в различных оттенках. Нужно обеспечить соответствие тонов, при необходимости корректировать дизайн, добавлять тепла или прохлады при помощи светотехнических приборов.
Грамотный выбор источников света, сочетаний приборов разных типов позволит создать максимальный комфорт, уют.
к оглавлению ↑Освещение ванной в классических стилях
Почитатели роскоши, любители максимального уюта отдают предпочтение классическим стилям, направлениям кантри. В таких оформлениях устанавливаются источники света с теплым свечением. Дизайн моделей выбирается с учетом стиля, основных оттенков интерьера. Для уютной обстановки используются:
- потолочные люстры;
- настенные бра;
- встраиваемые светильники.
На высоком потолке можно монтировать люстру с подвесом. В модельном ряду таких светильников несложно найти изделие для любого стиля. Необязательно выбирать люстру из хрусталя. Современные технологии обработки стекла позволяют создавать качественные имитации природного минерала. В кантри стилях хорошо смотрятся флористические модели, конструкции с матовыми плафонами.
В создании комфортного света для ванной комнаты используются настенные бра в винтажном стиле. Они устанавливаются у зеркал, раковины, могут использоваться в зоне купания. Важно выбрать модели, имеющие надежную защиту от воздействия влаги.

Эффектные бра в винтажном стиле
Если комната маленькая, потолки низкие, создать уютный, красивый интерьер помогут накладные потолочные люстры, встраиваемые светильники. В ассортименте есть модели в классическом стиле, которые станут достойным украшением оформления.
Можно использовать в классическом стиле и напольное освещение. Оно позволит подчеркнуть красоту напольных покрытий «под дерево», имитирующих природный камень. Эти источники света наполнят атмосферу комфортом, внесут нотки шика.

Накладные потолочные люстры для небольших ванных комнат
к оглавлению ↑Светильники в современных стилях
Современные стили часто используются для оформления ванных комнат. Их лаконичность, функциональность соответствуют специфике помещения. Для минимализма, хай-тека, лофта выбираются:
- потолочные, настенные, встраиваемые, напольные модели;
- светильники с простой конструкцией, сдержанным дизайном;
- инновационные источники света с новейшими технологиями.
Производители светотехнической продукции предлагают много вариантов для ультрасовременных стилей. Эти интерьеры украшают люстры пауки, модели с имитацией фонарей, конструкции причудливых форм. Нередко в качестве общего освещения используются прожекторы.

Светильники-прожекторы идеально подойдут для современного интерьера
Точечный свет в ванной, оформленной в современном стиле, может играть основополагающую роль. Такие изделия используются для базового, бокового освещения, из них создается «звездное небо» на потолке, обрамления зеркал, подиумов и др.
Появление светодиодов позволило дизайнерам реализовать любую творческую задумку. В современных стилях используются светильники из трубок, элементов, создаются подсветки из ЛЕД-лент и др. Пользуются популярностью системы с диммерами, контролерами, предоставляющие возможность устанавливать нужную интенсивность световых потоков, выбирать оттенки свечения. Это позволяет установить нужную атмосферу для утренних бодрящих процедур и вечерней релаксации.

Системы с диммером позволят регулировать степень освещения
к оглавлению ↑Общие принципы создания осветительной системы в ванной комнате
К созданию системы освещения в ванной необходимо подойти ответственно. Она должна обеспечить комфортные условия в помещении, гарантировать удобное пользование. Виды светильников, их размещение определяются персонально для конкретной комнаты. Можно в качестве примеров использовать фото света в ванной комнате. Однако необходимо соблюдать несколько требований для обеспечения безопасности:
- прокладка кабелей системы должна проводиться закрытым способом;
- схему проводки должен составлять профессиональный электрик;
- следует грамотно выбирать места установки светильников, в ванне не должно быть удлинителей, тройников;
- светильники должны иметь необходимый уровень защиты от влаги;
- при выборе местонахождения прибора необходимо минимизировать риск попадания воды.

Свет в ванной комнате должен гармонировать с стилем интерьера
Современный ассортимент позволяет выбрать надежные, безопасные источники света для любой зоны. Они помогут создать комфорт для умывания, косметических процедур, купания. Однако при выборе моделей следует внимательно изучить маркировку, убедиться, что прибор соответствует требованиям по уровню защиты. Стоит обратить внимание на обработку, отделку конструкций. Все металлические детали должны иметь покрытия, не позволяющие образовываться ржавчине. Материалы должны сохранять свойства под воздействием воды, бытовой химии.
к оглавлению ↑Фотогалерея – свет в ванной комнате
yellowhome.ru
Советы по освещению ванной комнаты

Освещение в ванной комнате является ключевым моментом и требует перед установкой некоторых размышлений: 1. Какой тип освещения лучше использовать и как его спланировать 2. Куда разместить светильники, и сколько их надо.
И для начала сразу определимся по типу освещения, их всего два: естественное и искусственное.
Естественное освещение – использование дневного и солнечного света для освещения внутренних помещений. Искусственное освещение – освещение помещений при помощи искусственных источников света.
Для городской ванной комнаты редко, когда используется естественное освещение, поэтому лучше сразу разобраться в вариантах искусственного освещения:
1. Встроенные светильники в натяжной потолок – самым оптимальным источником света для натяжного потолка является светодиодные светильники, так как они слабо нагреваются и обладают эффективной светоотдачей, также можно использовать галогеновые светильники с обязательным алюминиевым отражателем и обычные лампочки накаливания. Освещение при натяжном потолке подразделяется на несколько вариантов, которые могут быть применены как по отдельности, так и вместе:
Центральное – светильник расположенный по центру

Точечное – светильники крепятся по всему потолку

По периметру

Звездное небо – обычные или оптоволоконные светодиоды устанавливают в виде звездного неба, или различных созвездий

Во избежание деформации натяжного потолка необходимо использовать лампочки мощностью не превышающие рекомендуемую. Лампочка накаливания – до 50Вт, галогеновая лампочка – до 35Вт.
2. Светильник на обычный потолок – в данном варианте, оптимальным решением станет плафон в виде тарелки или шара, который закрепляется на потолке или стене.

3. Подсветка зеркал — она должна быть достаточно яркой, чтобы обеспечить ровное освещение, и свести к минимуму отражение теней на лице. Для маленьких зеркал можно использовать светильники, расположив их по обе стороны на уровне лица, что идеально подходит для нанесения макияжа, для больших, устанавливают горизонтальное освещение – идущее сверху по всему периметру. Кроме того, избежать бликов поможет использование светильников с полупрозрачными белыми плафонами, светильники же с прозрачным стеклом, напротив, имеют тенденцию их вызывать.


Как и для маленьких, так и для больших зеркал, светильники практичнее всего устанавливать независимо от общего света, то есть они должны иметь свой выключатель и желательно с регулятором интенсивности освещения – такой способ поможет сэкономить на электроэнергии.
4. Подсветка душа-ванны – зона, требующая дополнительного освещения, здесь следует сразу оговорится, что не душевая кабинка, которая как правило уже оборудована соответствующей подсветкой, а обычный душ над ванной. Зона где освещение играет функциональную роль, которое будет способствовать комфортному бритью, уходу за лицом, ну или для чтения книг и изучения этикеток. Для таких целей лучше всего подойдут специальные светильники, разработанные для использования во влажной среде, а так как они выполнены в виде бра, то помимо практичности принесут в ванную и эстетическую красоту.

Сколько нужно светильников для оптимального освещения в ванной комнате небольшого размера. Разберем на примере ванной комнаты в хрущевке, которая составляет 1,9х1,6м.
Единицы измерения для конкретных помещений на 1 фт2 и 1м2
|
Прихожая |
5-7 FC |
55-75лк |
|
Столовая |
10-20 FC |
110-215лк |
|
Ванная |
20-50 FC |
215-540лк |
|
Общее кухонное освещение |
20-50 FC |
215-540лк |
|
Рабочее освещение кухни |
50-100 FC |
540-1075лк |
|
Гостиная |
10-20 FC |
110-215лк |
|
Спальня |
20-50 FC |
215-540лк |
|
Гараж-мастерская |
100-200 FC |
1075-2150лк |
Начнем с расчета общей площади ванной — S= a x b (длина, умноженная на ширину).
S = 1,9м х 1,6м
S=3,04м2
Затем полученную площадь умножаем на люксы, приведенные в табличке. Первое значение в табличке минимальное освещение, второе максимальное, яркое, рассчитаем оба.
215 х 3,04 = 653.6 люменов (минимальное)
540 х 3,04 = 1641.6 люменов (максимальное)
Теперь полученное количество люменов переводим в лампочки, придерживаясь нижеприведенной таблички.
|
Лампа накаливания |
Люминесцентная |
Светодиодная |
Световой поток лм |
|
20Вт |
5-7Вт |
2-3Вт |
Около 250лм |
|
40Вт |
10-13 Вт |
4-5 Вт |
Около 400лм |
|
60 Вт |
15-16 Вт |
8-10 Вт |
Около 700лм |
|
75 Вт |
18-20 Вт |
10-12 Вт |
Около 900лм |
|
100 Вт |
25-30 Вт |
12-15 Вт |
Около 1200лм |
|
150 Вт 200 Вт |
40-50 Вт 60-80 Вт |
18-20 Вт 25-30 Вт |
Около 1800лм Около 2500лм |
Освещение малогабаритной ванной при минимальном количестве люксов.
|
Лампа накаливания |
Люминесцентная |
Светодиодная |
|
20Вт- 2-3шт |
5-7Вт – 2-3шт |
2-3 Вт – 2-3шт |
|
40Вт – 1-2шт |
10-13Вт -1-2шт |
4-5Вт – 1-2шт |
|
60Вт – 1шт |
15-16Вт – 1шт |
8-10Вт- 1шт |
|
75Вт-1шт |
18-20Вт – 1шт |
10-12Вт – 1шт |
|
100Вт — |
25-30 – |
12-15 — |
|
150Вт- |
40-50Вт — |
18-20Вт — |
|
200Вт- |
60-80Вт- |
25-30Вт- |
Освещение малогабаритной ванной при максимальном количестве люксов.
|
Лампа накаливания |
Люминесцентная |
Светодиодная |
|
20Вт- 6-7шт |
5-7Вт – 6-7шт |
2-3 Вт – 6-7шт |
|
40Вт – 4шт |
10-13Вт -4шт |
4-5Вт – 4шт |
|
60Вт – 2шт |
15-16Вт – 2шт |
8-10Вт- 2шт |
|
75Вт-1-2шт |
18-20Вт – 1-2шт |
10-12Вт – 1-2шт |
|
100Вт -1шт |
25-30 – 1шт |
12-15 -1шт |
|
150Вт-1шт |
40-50Вт -1шт |
18-20Вт -1шт |
|
200Вт- |
60-80Вт- |
25-30Вт- |
Ванная это комната с которой начинается и завершается день, поэтому так важно установить в ней комфортное и функциональное освещение, которое будет отвечать всем требованиям.
Варианты освещения в ванной комнате фото





the-light.ru
Освещение маленькой ванной
Всем нам хотелось бы жить в просторных апартаментах, размещающихся в отдельно стоящем доме где-нибудь в живописной местности с видом на чарующий своей красотой ландшафт.
Но, реальность чаще всего далека от этих мечтаний и приходится обустраиваться в малогабаритной квартире так, чтобы проживание в ней сделать как можно более комфортным.
Для этого можно использовать различные дизайнерские приемы – подбор цветового оформления, декорирование и, конечно же, правильный выбор освещения.
Давайте в этой статье поговорим об освещении маленькой ванной, посмотрим, какие решения смогут визуально увеличить пространство, чтобы придать комнате более презентабельный вид.
Светильники для маленькой ванной
Как бы нам ни хотелось, но никакие приемы не смогут 4 квадратных метра превратить в 10. Но следует приложить усилия к тому, чтобы уровень освещенности был достаточным и без того маленькое пространство комнаты не терялось в тенях.
Светильники следует выбирать такой мощности, чтобы комната была освещена ярким, но не слепящим светом. В статье о выборе светильников мы уже касались вопроса мощности ламп для освещения ванной, можно придерживаться приведенных в статье рекомендаций и для устройства освещения маленькой ванной.
Не рекомендуется в маленькой комнате вешать один светильник. Такое решение хоть и позволит уменьшить трудоемкость работ по оборудованию ванной светильниками, но визуально сделает ванну еще меньше, так как свет будет распространяться не равномерно по всему объему комнаты, создавая густые темные тени в углах, за предметами мебели и за сантехническими приборами, скрадывая пространство.
Одним из основных правил устройства освещения в маленькой по размеру ванной (в хрущевке или современной малогабаритной квартире) – это равномерное освещение всей комнаты за счет нескольких потолочных или настенных светильников.
Светильники при этом могут быть любыми – светодиодные точечные светильники (споты), люминесцентные энергосберегающие лампы, лампы накаливания, галогенные светильники. Главное, чтобы их световой поток обеспечивал достаточную яркость освещения.
При неправильном подключении может наблюдаться моргание светодиодных ламп.
На фото ниже представлены возможные варианты размещения светильников в маленькой комнате (изображения кликабельны, нажмите, чтобы увеличить):



Регулируемая мощность освещения
Еще один совет по освещению небольшой ванной касается установки регулятора освещения.
В сочетании с зонированием освещения в комнате можно создать совершенно особый уют, при этом не уменьшая визуально ее габариты.
Зонирование освещения
Выделение зон светом может кардинально изменить внешний вид маленькой ванной. Чаще всего выделяют зону зеркала, устанавливая светильники, позволяющие ярко осветить лицо для нанесения макияжа утром или для вечернего туалета перед сном.
Верхний свет при этом может быть не таким ярким, позволяя создать приятный глазу перепад уровня освещенности.
Также можно использовать местную подсветку сантехприборов и предметов мебели.



Светодиодная подсветка
Современные светодиодные светильники уже прочно вошли в нашу жизнь. Низкое потребление электроэнергии, продолжительный срок службы и отсутствие вредного для глаз мерцания завоевывают с каждым днем все больше поклонников по всему миру.
Но для освещения ванной можно использовать не только точечные светильники или настенные бра со светодиодными лампами. Использование светодиодной декоративной подсветки поможет реализовать различные дизайнерские идеи и придать интерьеру ванной особую красоту.



Оформление потолка
Потолок в маленькой ванной, как и вся комната в целом, должен быть оформлен в светлых тонах. Это может быть светлый потолок из панелей ПВХ, реечный потолок из алюминия или натяжной потолок с глянцевым блеском.
Реечные потолки с зеркальными вставками хорошо рассеивают свет в объеме ванной комнаты, делают ее визуально светлее и несколько увеличивают в размерах.
В маленькой комнате не следует делать зеркальный потолок. Это визуально превратит ее в настоящий колодец.
Поэтому лучше сделать светлый потолок из светоотражающего материала и подсветить его снизу настенными светильниками или использовать потолочные светильники, выступающие из-под потолка немного вниз так, чтобы излучаемый ими свет попадал на потолок и отражался от него по всему объему ванной.


Использование зеркал
Еще одним решением, позволяющим зрительно увеличить объем ванной комнаты, является использование зеркал.
Зеркала могут быть разной формы – длинные, квадратные, прямоугольные, овальные. Главное, чтобы они располагались на уровне глаз, отражая предметы интерьера и другие зеркала, тем самым создавая иллюзию дополнительного объема.
Использование шкафчиков с зеркалами, зеркал встраиваемых в кафельную плитку при отделке стен, а также размещение большого зеркала над раковиной поможет несколько увеличить видимый размер комнаты.


***
Как видите, даже в небольшой ванной с помощью правильно подобранного освещения можно создать комфорт и придать комнате совершенно новый вид.
Смотрите также:
- <Светодиодное освещение в ванной
- Встраиваемые точечные светильники>
Добавить комментарий
krasivaya-vannaya.ru
Правильное освещение в ванной комнате: выбор ламп, дизайн
Ванная комната – это помещение в доме, в котором освещение должно быть ярким и безопасным. В этом помещении условия для работы электрических осветительных приборов сложные – влажность и перепады температуры. Освещение в ванной требует внимательного подхода в аспекте размещения, направленности, количества источников, типа светильников и ламп.
Требования
Ванная комната, если она совмещена с туалетом или отдельная, относится к зонам повышенной влажности. Поэтому в процессе подбора осветительных приборов и их монтажа требуется помнить об обеспечении безопасности их использования.
Важно! Освещение в ванной, независимо от его типа, требуется создавать максимально приближенным к естественному.
Требования по подбору и монтажу:
- Разводка проводки – скрытая.
- Распределительная коробка и выключатели монтируются за пределами помещения – требование ГОСТ.
- Степень защиты электроприборов от IP 44. При установке светильников в ванной этот параметр – IP 67.
- Для соединения кабелей лучше использовать герметичные клеммники.
- Для открытой проводки необходимо использовать гофротрубки или специальные короба, что крепятся к стене.
- Одним осветительным прибором не обойтись. Нужен как минимум светильник возле зеркала, в других местах на стене.
- Розетку требуется размещать от крана на расстоянии 2,5 м, не меньше. Если прибор оснащен влагозащитой, то это расстояние уменьшается до 60 см.
- Нельзя использовать удлинители (переноски) лучше смонтировать розетки с запасом для каждого бытового прибора, что может использоваться в ванной.
Не следует забывать, что количество и мощность светильников стоит подбирать исходя из дизайнерской идеи, используемой отделки, ее цвета, размера комнаты.
Нужно подсветить все функциональные зоныЗоны влажности
Есть требования, касательно подбора осветительного прибора исходя из его размещения в ванной. Существует классификация по зонам влажности. Конкретней:
- Первая или места повышенной влажности. Тут может течь вода, есть высокая концентрация пара. Такие участки размещаются возле ванной, внутри душевой. Тут допускается использование лампочек мощностью 12 В, осветительный прибор с индексом защиты IP 674.
- Вторая. Участки возле раковины, а также те, что примыкают к ванной. Тут есть риск попадания влаги в виде капель или пара. Мощность лампы – до 24 Вт, индекс защиты осветительного прибора – IP 425.
- Третья. Как минимум в 50 см от края умывальника, ванной. Разрешено использовать лампочки любой мощности, защита осветительного прибора – IP 242, что считается достаточной.
- Четвертая. Сюда отнесено все остальное пространство. Влага доходит в виде пара или конденсата.
Виды ламп, их преимущества и недостатки
Осветительные приборы, которые используются в санузле, рассчитаны на установку разных типов ламп. Каждый используемый сегодня источник света имеет свои особенности и специфику применения и это требуется учитывать, подбирая их для такой комнаты.
Лампа накаливания
Лампочка Ильича дешевая, доступна в любом магазине, но для ванны это не лучший вариант. Она не любит влажности, поэтому есть риск, что лопнет при попадании на разогретую лампу влаги. Срок службы ее едва ли превысит 1000 часов. Подобные лампы сильно разогреваются, при этом создают слабый световой поток. Их крайне нежелательно использовать с пластиковыми и тканевыми абажурами. В первом случае есть риск, что плафон начнет плавиться, во втором, что вовсе воспламениться. Несмотря на все недостатки, ее дешевизна по-прежнему привлекает покупателей.
Важно! Лампочка накаливания самая «прожорливая». Она потребляет много электроэнергии.
Галогенная лампа
Такие лампочки часто используются в спотах. Их светоотдача в разы больше, чем у предыдущего варианта, греются они меньше, а служат больше. В продаже удастся найти лампы такого типа, что рассчитаны на использование при напряжении 220 или 12 В. Во втором случае необходима установка трансформатора.
Вариант использование галогенных ламп в точечных светильниках в вваннойЛюминесцентные лампы
Эти современные энергосберегающие лампы дают мощный световой поток, при этом отлично себя показали при использовании в любых условиях, в том числе во влажной ванной. Срок службы их исчисляется годами, при условии присутствия стабильного напряжения в сети.
Получиться найти модели таких ламп разных оттенков, что помогает создавать оригинальные световые эффекты. Также есть разные варианты исполнения: линейные и компактные лампы, которые охватывают разную площадь освещения. Работают все типы ламп бесшумно.
Проблемы, которые могут с ними возникать – необходимость разгорания. На это уходит около 2 минут. Не любят они понижения температуры. При использовании их не нужно забывать, что перегоревшую или поврежденную люминесцентную лампу нельзя выбрасывать с бытовым мусором – она требует специальной утилизации.
Светодиодные лампы
Светодиодные лампы самые экономичные из тех, что сегодня можно купить. Срок службы их превышает 50 тыс. часов. Лампы можно вкручивать в стандартный цоколь, поэтому ими можно заменять любые другие типы источников света. Среди преимуществ:
- Экологическая безопасность.
- Качественный световой поток.
- Минимальное энергопотребление.
Недостатками называют высокую цену, к тому же заявленный срок службы они отрабатывают не всегда, так как перепады напряжения в сети и постоянное «клацание» сказываются весьма негативно.
Вариант использования подсветки из светодиодной ленты или специальных светильников, элементами которого являются диоды также неплохой. С их помощью удается создать оригинальные световые эффекты, часто именно ленту используют для монтажа на мебель в ванной, подсветки зеркала, создания ощущения парения мебели, при монтаже под ней. Практически для всех лент требуется подключение дополнительного преобразователя, так как их рабочее напряжение 12 В.
Использование светодиодной подсветкиМнение эксперта
Алексей Бартош
Специалист по ремонту, обслуживанию электрооборудования и промышленной электроники.
Задать вопрос экспертуВажно! За счет использования диодных лент в нестандартных местах, например, на бортиках ванной, удается визуально расширить пространство, создать приглушенный свет. Такие приемы помогут расслабиться во время приема ванной после тяжелого рабочего дня.
к содержанию ↑Как рассчитать необходимую мощность светильников?
От того, насколько правильно будет рассчитана мощность ламп, зависит комфорт нахождения в помещении и удобство проведения всех процедур в нем. К тому же неправильный подбор мощности ламп может привести к ухудшению зрения и даже оказать влияние на нервную систему.
Часто при выборе мощности лампы чаще всего уделяют внимание Ваттам, то есть энергопотреблению. Это важный показатель, но не основной при выборе. Ключевой показатель – световой поток.
| Цветопередача | Степень цветопередачи | Коэффициент цветопередачи | Лампы |
| Очень высокая | 1 А | Свыше 90 | Галогенные, люминесцентные, что дают теплый белый свет, лампы накала. |
| Очень высокая | 1 В | 80–89 | Люминесцентные дневного света. |
| Высокая | 2 А | 70–79 | Люминесцентные холодного дневного света. |
| Высокая | 2 В | 60–69 | Люминесцентные ЛД, ЛБ. |
| Достаточная | 3 | 40–59 | ДРЛ |
| Низкая | 4 | Меньше 39 | ДНат |
Требования для ванной и санузлов по освещенности – 200 люменов на 1 кв. м в разных лампах этому показателю соответствуют:
- Накаливания – 25 Вт – 200 Лм, 100 Вт – 1350 Лм.
- Галогенная – 42 Вт – 625 Лм, 70 Вт – 1170 Лм.
- Люминесцентная – 40 Вт – 2000 Лм.
- Светодиодная – 40 Вт – 6000 Лм.
Для светлой ванной нужно меньше искусственных источников светаПроводя расчет светового потока для этой комнаты нужно брать во внимание:
- Размеры комнаты.
- Цвет и отражаемость материалов, что использованы в отделке.
- Высоту потолков.
- Расстановку мебели.
Количество светильников и их тип
Расчет необходимого количества светильников осуществляется исходя из площади комнаты. Так, если она небольшая – до 5 метров квадратных, то вполне достаточно одного центрального света и 2–3 дополнительных светильников на стенах.
Важно! В дополнительной подсветке нуждается зона умывальника, зеркала. В таком случае проведение утренних процедур будет максимально удобным.
Для просторных ванн нужно зональное освещение. Оно не только сделает пребывание в комнате удобным, но и поможет выделить отдельные функциональные зоны, подчеркнуть конфигурацию и т. д. Определиться с количеством и типом осветительных приборов нужно еще до момента начала проведения отделочных работ. В таком случае удастся сделать проводку согласно требованиям.
Что касается типа светильника, то этому также следует уделить внимание. Классификация приборов достаточно разнообразна. Первая касается типа расположения на поверхности. Варианты: открытый тип, встроенный. Последний вариант предпочтительней для небольших комнат.
Точечное освещение над зеркаломПо расположению:
- Потолочные. Классические модели, которые не составит труда вписать в любой дизайн интерьера. В каждой ванной нужно предусмотреть хотя бы один такой светильник. Он будет центральным элементом.
- Настенные. Их задача подсветить отдельные зоны. Как уже упоминалось, требуется это для зеркал, раковины.
- Напольные. Они чаще выполняют декоративную функцию, за счет этого интерьер становится особенно оригинальным. Отдельные модели способны визуально расширить пространство.
Каждый из этих вариантов может быть использован в качестве рабочего, декоративного, направленного или общего освещения.
к содержанию ↑Особенности монтажа
В зависимости от типа осветительного прибора существуют свои особенности монтажа, их следует рассмотреть. Независимо от особенностей проведения монтажных работы подключение производится только после обесточивания автоматов на щитке и проверки отсутствия напряжения в проводах.
На основной потолок
Для размещения по центру комнаты, то есть в качестве основного освещения, используются шарообразные плафоны и модели-тарелки. Для монтажа к бетонному потолку используют метизы подходящего размера, дюбеля. То есть такие, чтобы они смогли выдержать вес осветительного прибора. Если потолок деревянный, то помогут в процессе монтажа саморезы по дереву.
Важно! Подобные осветительные приборы не требуют монтажа каких-либо вспомогательных крепежных элементов. Чаще всего их основа прикручивается прямо к потолку.
На гипсокартонный потолок
Для ванной часто используется в качестве отделки потолка влагостойкий гипсокартон, подвесной потолок с ним идеально ровный. В него чаще монтируют точечные светильники. Разводку для них требуется делать до момента накручивания листов и их отделки. Для удобного подключения длина проводов, к которым будет подсоединяться «точка» должна составлять не менее 20 см. Отверстия под светильник вырезаются при помощи специальной насадки на дрель.
Мнение эксперта
Алексей Бартош
Специалист по ремонту, обслуживанию электрооборудования и промышленной электроники.
Задать вопрос экспертуВажно! При планировании схемы расположения важно исключить попадание светильника на профиль, на котором удерживается ГКЛ.
Процесс монтажа точечных встраиваемых светильников:
- Сначала необходимо отключить и обязательно проверить отсутствие напряжения.
- Подсоединить светильник к клеммам на кабеле.
- Ввести его корпус в предварительно подготовленное отверстие, удерживая защелки.
- Вкрутить лампу.
Если осуществляется монтаж накладных светильников, то этот процесс еще легче. Крепятся они на предварительно подготовленную планку, далее подсоединяются провода и вкручивается лампа.
Если в качестве светильника выбрана потолочная люстра, то процесс монтажа похож, правда, требуется предварительно подготовить крепеж. Это может быть крюк ил закладная под кронштейн. Устанавливать люстру прямо на лист гипсокартона нельзя, так как он не способен выдержать ее вес.
На натяжной потолок
Процесс установки светильников для натяжного потолка, пожалуй, самый сложный, ведь натянутое полотно достаточно легко повредить неумелыми действиями. Следует помнить такие моменты:
- Продумать размещение светильников и их количество нужно до момента установки полотна.
- Под все светильники сформировать проводку, кабеля заизолировать и поднять, так чтобы они не доставали до уровня будущего потолка из пленки.
- Для крепежа любых светильников сделать закладные платформы или крючки. Эти крепежи должны размещаться на пару миллиметров выше уровня полотна.
- Прежде чем делать в полотне отверстия наклеить термокольца, дождаться пока клей на них полностью высохнет.
- Для осветительных приборов, что используются в натяжных потолках можно применять только люминесцентные или светодиодные лампы. Они не греются, а значит, не повредят полотно.
Расположение светильников
Важно правильно располагать светильники. Если все продумать хорошо, то можно использовать в разы меньше источников света, а значит сэкономить на счетах за электроэнергию. Среди важных нюансов, которые нужно учитывать:
- Равномерность. Этого удастся достичь, если разместить много маломощных осветительных приборов.
- Обязательно расположение светильников в ключевых функциональных зонах помещения.
- Чтобы избежать бликов, следует направлять световой поток так, чтоб он не отражался от зеркальных поверхностей.
- Повесить светильник непосредственно над зеркалом – не лучшее решение. В таком случае отражение искажается. Удобнее размещать настенные светильники по бокам или сверху и по бокам.
- Оригинально выглядят цветные плафоны на светильниках. Но такую иллюминацию не нужно размещать возле зеркала, так как гореть они будут красиво, но отражение исказиться.
- Стоит «поиграть» с вариантами размещение ленты со светодиодами, она поможет воплотить самые нестандартные идеи дизайнера. В том числе подсвечивать ванну, тут можно использовать неоновый свет, светодиодную ленту при этом можно закрыть оргстеклом.
- Подключение светильников требуется проводить отдельными линиями, так чтобы объем освещения можно было регулировать на свое усмотрение и проводить включение необходимого количества ламп.
- При создании освещения в ванной существует ярусность – это выглядит красиво. К верхнему уровню относят приборы, что размещены выше чем 1,8 м от пола, то есть все потолочные светильники. Средний – на уровне глаз человека, разного рода настенные бра и споты. Иногда монтируются светильники нижнего яруса, размещаются они на расстоянии около 10 см от пола. Подобное решение выполняет исключительно декоративную задачу, хотя установив на нижнем уровне ночники с датчиком движения можно значительно упростить ночные «сонные» походы в туалет.
- Для небольших ванных удобно использовать мебельные светильники, которые легко монтируются в шкафчики, ниши, на полочки. В таких помещениях в основном устанавливаются галогенные лампочки.
- Комбинированный или совмещенный вариант освещения удобно использовать для реализации внутреннего освещения в ванной, подойдет такой вариант для комнаты любого размера.
Вывод
Освещение в ванной комнате не менее важно, чем отделка и подбор сантехнических приборов. Причем в случае со «светом» требуется учесть куда больше нюансов, а монтаж практически всех приборов удастся осуществить собственными руками.
lampaexpert.ru
фото, правильная организация света, идеи подсветки
На первый взгляд освещение в ванной комнате не представляет собой сложной или многовариантной задачи. В небольшом помещении достаточно одной лампочки на потолке, в помещении побольше их может быть и две. Как ни странно, такой подход является преобладающим. Абсолютное большинство людей не задумываются об особенностях освещения столь важного помещения.
Да, большинство довольствуется тем, что досталось от строительных организаций, зачастую еще советских. А напрасно, свет в ванной комнате формирует не только настроение на короткий отрезок времени, но и много чего другого. В быту мелочей не бывает, все происходящее имеет свое определенное влияние.
Как нельзя организовывать освещение, и как нужно

Как нельзя организовывать освещение
Особенность ванных комнат в абсолютном большинстве городских квартир состоит в том, что они не знают естественного освещения. Но вот одна 75-ваттная лампа в малопривлекательном плафоне – вещь привычная. Хотя даже малогабаритная ванная должна предусматривать наличие не менее двух ламп мощностью по 50 ватт каждая. При этом такая лампа, или же светильник, могли размещаться где угодно, но не там, где это удобно жильцам.
Несложно себе представить лампу над дверью, лишь косвенно влияющую на пространство около зеркала. Или лампу, которая светит в зеркало из-за спины человека, пытающегося в таких условиях побриться.
Бытует мнение, что такое освещение санузла рассчитано исходя из отсутствия в этом помещении какой-либо мебели или других вещей. Возможно это так, а может быть, и нет, но фактом остается возможность изменить ситуацию без проведения серьезного ремонта.
Но дело в том, что частичными доработками общая проблема не решается. Если сначала организовать освещение, а потом под него продумывать ремонт, будет крайне сложно найти подходящий вариант. Все элементы могут выглядеть гармонично только во взаимодействии, организацию пространства нельзя делить на независимые части. Ванной такой подход касается особенно. Даже только потому, что в этом помещении далеко не одна зона, требующая особенного освещения. Те, кто пробовал побриться при светящей в зеркало из-за спины лампе, поймут, о чем речь.
Как размещать источники света в ванной

Размещение источников света в ванной
Освещение ванной комнаты начинается с ее планирования. Размещение сантехнических приборов, мебели, разнообразных вариантов доступа водопроводным учетным приборам и не только – это первый этап планирования. После того как точно определено, где будет стоять умывальник, и где у ванны начало, можно приступать к планированию освещения. Оно, вне наименьших сомнений, должно быть зонированным, или же раздельным.
Что такое зонирование помещения? Это условное его разделение на функциональные части, предназначенные для того или иного вида использования.
Подсветка в ванной должна быть разнообразной. Светильник над зеркалом, у которого бреются или прихорашиваются, должен хорошо освещать лицо. Светильник над ванной должен давать достаточно света для ощущения комфорта в этой части пространства ванной комнаты. Светильник у двери указывает на вход и выход. Свои варианты освещения должны быть у шкафчиков с утварью и бытовой химией, у потайных шкафов, обеспечивающих доступ к водопроводной арматуре, и тому подобное. При этом источники света в каждой зоне не должны перекрывать не свою территорию. В совокупности все лампы, светодиоды и другие приборы должны обеспечивать высококачественное и комфортное освещение в ванной комнате.
Ошибки в проектировании и реализации освещения в ванной комнате будут стоить очень недешево, так как придется в случае неудачи не просто заменить некоторое количество светильников, но иногда и прокладывать электропроводку заново.
Выбор вариантов освещения ванной комнаты

Вариант размещения освещения в ванной комнате
Освещение ванной комнаты – не просто элемент дизайнерского замысла, но и самостоятельное и крайне важное для хозяев помещения решение. Элементы освещения могут классифицироваться по высоте размещения, как:
- Потолочные, размещаемые традиционно на противоположной полу части помещения.
- Средние, примерно на уровне глаз.
- Нижние, высота размещения которых определяется объектом освещения.
Потолочные варианты размещения осветительных приборов предназначены для общего освещения помещения. Но, в случае применения светодиодных приборов такое освещение вполне может быть и зональным.
Освещение на уровне глаз или чуть выше подойдет для основного зеркала, шкафчиков и тому подобного.
Нижнее освещение в ванной касается тех же шкафчиков, доступа к измерительным приборам и т.п.
Наиболее удобный вариант приборов для организации зонального освещения появился относительно недавно. Это точечные светильники. Они состоят из светодиодов, могут варьироваться в широкой гамме мощности и других характеристик, а, главное – позволяют очень тонко настроить пространство под требования пользователей.
Подбором определенного количества светодиодов, их размещением в пространстве ванной комнате можно добиться таких результатов, которые лампы накаливания или люминесцентные лампы никогда не дадут.
Еще раз о зонировании

Зонирование пространства в ванной с помощью освещения
Главный принцип, исходя из которого должно организовываться освещение в ванной, состоит из определения главных и второстепенных зон помещения. Главной территорией, требующей особо качественного освещения, является зеркало и близлежащее к нему пространство. Осветительных приборов так должно быть ровно столько, чтобы отображение рядом находящегося человека было максимально естественным. То есть, каждый должен в зеркале ванной комнаты видеть то, что есть на самом деле. Любое искажение и принятое в связи с ним решение о, например, особенностях макияжа, могут основательно и надолго испортить настроение тому, кто такому зеркалу доверился.
Для того чтобы близкое к естественному освещение у зеркала стало реальностью, одних только потолочных светильников будет явно недостаточно. Помогут сделать все как надо некоторое количество бра, размещенных наиболее рациональным образом. Хорошим решением также будет регулируемый светильник.
Практически в каждой ванной комнате есть место, в котором располагается бытовая техника. Это может быть стиральная машина либо что-нибудь другое. Там тоже нужно хорошее освещение, и оно должно быть зональным. Например, одного бра с выключателем может быть достаточно, чтобы обеспечить зону загрузки и выгрузки белья в стиральной машине достаточным и комфортным светом.
В ванной, даже при маленьких ее размерах, есть достаточно большое количество потайных мест, или мест, к которым обращаются редко. Там тоже необходимо освещение, ведь иначе будет сложно найти то, что ищешь. Но дорогих и мощных светильников для таких мест явно не надо, как и фонариков или зажженных спичек. Скромные фонарики-светлячки решат эту проблему наилучшим образом. Они малогабаритные, потребляют минимум электроэнергии, и замена элементов питания в них проводится очень редко.
Оригинальность

Оригинальное освещение в ванной
Из ванной комнаты можно устроить все, что заблагорассудится. Одними только осветительными приборами не будет проблемы устроить звездное небо, залитый солнечным светом берег южного моря и прочее, и прочее. Вариантов оригинального освещения ровно столько же, сколько фантазии у того, кто это освещение обустраивает.
Главное – чувство гармонии, тщательный подход к подбору вариантов освещения и понимание, что именно необходимо сделать.
Поделиться статьей:
potolokexpert.com
Освещение в ванной комнате — делаем красивым безопасным и надежным. Видео.
Здесь следует отметить, что создание освещения в середине ванной имеет свои особенности, которые в основном проявляются в соблюдении необходимых правил безопасности.
В первую очередь эти особенности обусловлены условиями, которые наблюдаются в середине этого типа помещения. Как известно, здесь постоянно используется большое количество воды.
Она необходима для полного и частичного мытья тела. Во время этого процесса могут образовываться различные брызги, которые могут попадать на любой предмет. Конечно, когда вода попадет на светильник и будет иметь контакт с электричеством, то ничего хорошего из этого не получится.
Также в ванной комнате постоянно образуется большое количество пара, что также является негативным для любой электрики. Учитывая такие условия, требования к электропроводке и светильникам являются более высокими.
Требования к светильникам
В первую очередь, освещение в ванной комнате должно создаваться из тех светильников, которые обладают защитой от воды. Другими словами они не должны бояться контакта с водой и не должны допускать ее проникновения вовнутрь себя.
Вода не должна контактировать с теми элементами, через которые проходит ток. Каждый светильник должен иметь маркировку как минимум IР24. Это означает то, что его конструкция является водонепроницаемой.
Также каждый светильник, который будет монтироваться в ванной комнате и который будет частью системы освещения, должен обладать защитным плафоном. Каждый элемент, сделанный из металла, должен быть покрыт защитным слоем. Этот слой убережет металлические элементы от коррозии.
Зоны комнаты с наличием ванны
Требования к устройствам, которые создадут освещение в ванной комнате, также зависят и от того, в какой части помещения эти устройства находятся. В общем, можно выделить четыре основных части:
- зона с наибольшим уровнем влажности. В ней находятся душевая кабина или ванна, а также раковина. Здесь постоянно протекает вода и устройства для подачи света должны обладать защитой не менее IP674. При этом желанным является установка светильников с 12-вольтными лампами. Такое освещение в ванной комнате является безопасным для человека;
- зона, которая окружает вышеназванную. Ее ширина составляет 60 см от края раковины или душевой кабины. Высота равняется 2,25 метра. Здесь также существует большая вероятность попадания брызг и капель воды. Осветительное устройство должно обладать защитой не менее IP452. Также рекомендуется использовать низковольтные лампочки;
- третья часть ванной, которая нуждается в освещении и имеет невысокую влажность, находится на расстоянии 60 сантиметров от раковины и душевой кабины. Сюда могут попадать только капли, поэтому светильник может иметь маркировку IP242.
- последняя часть находится на расстоянии трех метров от главных элементов нашего помещения. В эту зону могут проникать конденсат или пар. Прибор для создания света может обладать маркировкой IP011. Однако будет лучше, если эта защита будет не меньше IP242.
Как осветить ванную комнату
Типы освещения
Как видно, осветительные приборы могут устанавливаться в разных местах ванной и таким образом могут образовывать определенный тип освещения. Этих типов несколько, а именно:
- Верхнее освещение.
- Рабочее.
- Нижнее.
Если говорить о верхнем типе освещения, то он представляет собой осветительные приборы, которые монтируют на потолке ванной (можно увидеть на фото ниже).
-

- подвесные потолки в ванной. Вариант освещения
-

- освещение ванной комнаты потолочное
На потолок можно монтировать, как несколько светильников, так и одну люстру. Все зависит от размеров и ваших желаний. Так, если ванная комната является маленькой, то система освещения может быть представлена одной люстрой.
Она будет размещаться по центру. В больших помещениях для мытья следует позаботиться о том, чтобы в первой или второй зоне было устройство для подачи света. Это необходимо для достаточной освещенности места мытья.
Что касается рабочего освещения (его фото приводится ниже), то оно монтируется в той части ванной, где находятся зеркало, полочки и умывальник.

Как осветить умывальник в ванной
Эксперты рекомендуют создавать подсветку зеркала с помощью двух световых устройств, которые будут находиться над ним. При этом было бы очень хорошо, если бы эти устройства размещались на гибких кронштейнах.
Это позволит направлять свет в нужном направлении. Также можно использовать и светодиодную ленту, которая может размещаться за зеркалом и над умывальником.
Нижнее освещение состоит из тех световых устройств, которые монтируются на пол и нижнюю часть стен ванной комнаты (также подается на фото).
Декоративная подсветка пола в ванной
По сути дела, большой пользы от таких источников света нет. Они являются отличным инструментом декора и украшения внутреннего интерьера. Такая подсветка создается с помощью иллюминаторов и фонариков. Они освещают ниши, ступени, пьедесталы.
Итак, вы ознакомились с функциональными и некоторыми техническими особенностями создания системы подачи света в ванную, и теперь вы можете определиться с тем, какое освещение можно сделать в этой комнате.
Важным является и то, какие источники света будут использоваться для освещения ванной комнаты, которая может быть как маленькой, так и большой. Так, можно использовать классические лампы накаливания, светодиодные, галогенные и люминесцентные лампы.
Полезный совет: наиболее предпочтительным вариантом является использование светодиодных лампочек. Они являются наиболее безопасными и могут работать более десяти лет.
Конечно, выбор источника светового потока зависит от вас.
Расчет мощности осветительных устройств
В дальнейшем мы рассмотрим процедуру монтажа всей системы освещения внутри ванных комнат. Все начинается с разработки проекта и подсчета мощности всех светильников и приборов, которые будут использоваться в этом помещении.
Первоочередное внимание должно падать на определение уровня освещенности комнаты. Здесь имеется в виду то, сколько люмен должны создавать все светильники.
Для определения этой величины следует воспользоваться таким документом как «Строительные нормы и правила СНиП 23-05-95». В нем указано, что освещенность в ванной должна составлять 50 люмен на квадратный метр.
Вашей задачей является умножение этой величины на площадь помещения (площадь должна быть определена в квадратных метрах). Так вы узнаете общее количество люмен. После этого вам нужно определиться с типом используемых лампочек и выяснить, сколько люмен выдает один ватт этих лампочек.
Для определения мощности освещения ванной комнаты, организация которого может предусматривать различные варианты, нужно разделить общее количество люмен на количество люмен, которое может создаться одним ваттом определенной лампочки. Дальше уже определяются с количеством лампочек и светильников.
Требования к проводам и установка кабелей
К общей мощности осветительной системы приплюсовывает мощность электроприборов (стиральной машинки, бойлера и т.д.). Конечную цифру разделяют на 220 Вольт и таким образом определяют нагрузки на проводку. Исходя из этого, подбирают кабели с необходимым сечением.
В общем, для проводки тока в помещение нашего типа используют медный кабель с сечением, большим 2,5 кв. миллиметров, или алюминиевый провод с сечением, большим 4 кв. миллиметров.
Проводка в ванной, которая буде подавать ток для точечного или общего освещения, должна быть только скрытой. То есть она устанавливается в штукатурку.
Полезный совет: в середине комнаты для мытья надо размещать только проводку. Никаких распределительных коробок здесь устанавливать нельзя. Они устанавливаются в другой комнате.
Каждый светильник и электрический прибор надо заземлять. Также специалисты рекомендуют использовать УЗО. УЗО отключит ток при наличии замыкания.
При прокладке кабелей нужно сделать так, чтобы было несколько кабелей и каждый из них питал определенную систему. Так, один может поставлять ток к светильникам, другой — к электрическим приборам. К каждому такому проводу нужно подключать автоматический выключатель.
Проводка кабелей в ванной комнате для создания освещения, способы оформления которого можно увидеть на разных фото, может осуществляться с использованием гофры.
Для закрепления провода в гофре через каждый метр наносят небольшое количество гипса. Очень удобно монтировать гофру в специальные зажимы. Последние закрепляются в штробах.
После прокладки проводки приступают к монтажу всех светильников. Если в них используются низковольтные лампочки и имеется надобность в блоке питания, то эти блоки также надо устанавливать за пределами ванной комнаты.
Видео. Пример организации освещения в ванной комнате
Виды потолочных светильников и особенности монтажа, а также подключения каждого вида своими руками
Освещение в бане — правильная организация и установка
Светящийся потолок как основное освещение любой комнаты: все нюансы и последовательность монтажа
Организовуем уличное освещение загородного дома, особенности этого процессаelectricadom.com
Освещение в ванной комнате своими руками + фото
В данной статье мы рассмотрим как сделать освещение в ванной комнате своими руками, а также дадим фото и видео инструкцию.
Чаще всего освещение в ванной комнате стараются сделать как можно более ярким по сравнению с другими помещениями в доме. Это делается по нескольким причинам:
- Ванная обычно служит местом для того, чтобы человек мог привести себя в порядок. Так, женщины любят много времени проводить возле удобно расположенного зеркала, которое хорошо освещено. Мужчинам требуется тщательно выбриться перед уходом на работу или перед деловой встречей.
- Даже если в ванной есть окна, то, как правило, одного только дневного света недостаточно. В помещении, где мало светильников, будет довольно тускло и, можно сказать, даже мрачно. Поэтому чем больше света будет в ванной комнате, тем лучше.
При этом стоит учесть определенные нюансы, а именно:
- какой размер светильников выбрать;
- где их монтировать;
- сколько нужно точек для нормального освещения.
Ниже будут рассмотрены меры безопасности при прокладке электричества для ванной и способы монтажа.
Принято считать, что располагать светильники нужно на нескольких уровнях. От того, как они расположены, будет зависеть и качество освещения в ванной комнате, ведь нужно сделать так, чтобы света было достаточно, но и не слишком много.
Освещение верхней части ванной комнаты
Оригинальное потолочное освещениеЧаще всего для качественного освещения достаточно всего лишь одного светильника, если речь идет о ремонте в маленькой ванной. В тех случаях, когда ванная отличается своими большими габаритами, можно выполнить монтаж двух или более потолочных светильников.
Стоит помнить, что большое количество светильников уместно, однако, чем больше светильников, тем меньше должны быть их размеры и мощность. Подойдут мелкие светильники с галогенками, встраиваемые в гипсокартонный или натяжной потолок.
Освещение над зеркалом – еще одна часть верхней зоны освещения. Множество светильников, прикрепленных к потолку или стенам, далеко не всегда могут хорошо осветить зону зеркала, поэтому для него необходимо продумать своё индивидуальное освещение. Не будем говорить про то, какой выбрать светильник – это уже дело вкуса. Стоит лишь отметить, что светильника на один плафон вполне хватит, если он установлен по центру. Иногда также встречается композиция, в которой по верхним углам зеркала стоит по светильнику, расположенных по отношению друг к другу симметрично.
Торшеры – еще одно решение для того чтобы осветить верх ванной комнаты. Правда, их высоту нужно регулировать, иначе слишком яркий свет будет раздражать глаза. Лучше всего, если уровень света будет где-то рядом с лицом человека среднего роста, а точнее, на уровне подбородка.
Рабочий свет внутри ванной
Подсветка зеркалаВ самой ванной комнате, как и в других помещениях в квартире или доме, нужно свободное пространство разделять на зоны. Для этой цели обычно применяются светильники с локальным освещением, подобно тому, что висит над зеркалом. Если в техническом отношении ванная более сложная и имеет подиумы или ниши, то стоит всё пространство разделить на несколько отдельных зон, как это видно на фото в конце статьи.
Что принято считать самыми важными областями в ванной комнате? Одна из таких зон упоминалась ранее – это зеркало; другая находится практически рядом с ней – умывальник. Установив светильники сверху или сбоку зеркала, можно создать довольно яркое освещение, которое при этом не будет ослеплять находящегося в ванной человека. Для рассеивания света лучше всего подойдут абажуры с матовым покрытием, а также белого цвета. Также удачно будут выглядеть несколько небольших светильников, расположенных по контуру зеркала.
Обратите внимание! Цветные абажуры не будут смотреться в зоне зеркала, поскольку плохо сочетаются со многими видами дизайнов.
Подсветка ванныВыбирая акриловую ванну можно обратить внимание на встроенную подсветку. Правда, такие изделия стоят отнюдь не дешево, поэтому большинство людей предпочитают использовать более приемлемые по цене и доступные варианты. На ванну можно направить пучок света, который выделит ее; при этом большая часть помещения будет в легком затемнении. Чтобы достичь такого эффекта, необходимо на параллельной ванной стене установить красивое бра, абажур которого будет выполнен из цветного стекла. Если потолок в ванной невысок, свет группируется в необходимом месте на потолке.
Подсветка мебели
Зеркало с подсветкойКроме обычного потолочного или настенного освещения можно выполнять подсветку в мебели ванной комнаты. Так, можно встроить в поверхность шкафов, ящиков или полок маленькие светильники, благодаря которым в ванной создастся уютная и непринужденная обстановка, будет легче найти какие-либо предметы и вещи.
Освещение на полу ванной

Это освещение можно смело назвать декоративным, так как слишком ярко в помещении от него не будет. Зато с помощью специальных напольных светильников, какие используются для освещения дорожек в саду, можно создать подсветку пола ванной. Подойдут как цветные фонарики, так и прозрачные плафоны. Лучше всего, если светильники будут неприметными. Яркие цвета подойдут лишь для красочной сантехники и аналогичной отделки комнаты.
Монтаж освещения

Поскольку монтаж освещения своими руками выполняется наряду с прокладкой кабеля для одной — двух розеток, последний момент также будет рассмотрен.
Прокладка электропроводки в ванной, стены которой еще не оштукатурены, будет намного проще, чем если в штукатурке бить штробы. В первом случае достаточно просто крепить на стены кабель, выводя нужные концы на светильники или выключатели.
Обратите внимание! Штробы – специальные углубления в стене, ширина и глубина которых зависит от того, какой толщины материал в них будет прокладываться.
Для прокладки освещения лучше всего использовать плоский медный кабель, многожильный, сечением 1–1,5 мм². Такой кабель легко изгибать на поворотах, также с ним легко работать. Если фирма-производитель кабеля вызывает сомнения, лучше приобрести кабель большего сечения, поскольку написанные на его оболочке данные могут быть заниженным.
Кабель ВВГДля зданий, где присутствует заземление, обязательно покупается 3-х жильный кабель, а на выключатели – двухжильный. Если заземления нет, то вполне достаточно двухжильного кабеля.
Обратите внимание! Даже если в доме нет защитного проводника, то по свежим ПУЭ нужно прокладывать 3-х жильный кабель. Вполне возможно, что стояк в вашем доме в недалеком будущем будет реконструирован.
Распределительную коробку лучше ставить в смежном помещении с ванной, чтобы избежать попадания внутрь ее влаги. Подойдет круглая коробка с крышкой без винтиков. Если же в соседней с ванной комнате уже выполнен ремонт и стены бить нельзя, тогда нужно приобрести специальную герметичную коробку, обычно квадратную, в которой выход под провод сделан в резиновом уплотнителе, а крышка плотно закрывается при помощи винтиков.
Обратите внимание! Распределительная коробка, в какой бы комнате она ни стояла, никогда не прячется под потолок, кроме случаев с подвесным потолком Armstrong, где снимаются плитки. Но, поскольку такой тип потолка неприменим для ванной, коробки врезаются исключительно в стену.
Выключатель света вне ваннойВыключатели в целях удобства ставятся снаружи ванной. Для них в стене вырезается отверстие под подрозетник, который устанавливается туда с помощью алебастра. При этом подрозетник не должен выпирать из стены или быть в ней слишком утопленным. Если нет желания делать пыльную работу, можно сверху на стену поставить накладной выключатель.
Для светильников в ванной не нужно делать никаких отверстий. По сути, только в одном месте сквозь стену ванной делается отверстие, куда будут заходить все провода светильников, чтобы соединяться с выключателями и питающим кабелем, а также провода для розетки. Провод на светильник выводится в том месте, где будет освещение, и оставляется конец длиной около 25–30 см. Это же относится и к светильникам, которые будут расположены в полу.
Обратите внимание! Если несколько светильников будут включаться с помощью одного выключателя, то их можно подключить последовательно, вместо того, чтобы тянуть от каждого из них отдельный кабель.
Внутри ванной провода крепятся так:
- В стене сверлом диаметром 6 мм по направлению кабеля сверлятся отверстия приблизительно через каждые 30 см.
- В них забиваются пластмассовые дюбеля 6×40, на шуруп которых наматывается проволока-протяжка с гофры или кусочек медного провода.
- Затем прокладывается кабель от выключателя (светильника, розетки) к коробке и фиксируется этими проводками. При этом скрутка не должна быть сверху, иначе стену будет неудобно штукатурить или сложно будет замазать штробу.
- Провода лучше всего прокладывать на небольшом расстоянии от потолка (около 10 см) на одном уровне, чтобы потом было легко вспомнить, где они проложены, когда понадобится закрутить в стену шурупы для крепления зеркала или полок. Несколько рядом идущих проводов можно прокладывать вместе в одной штробе.
- Кабель для розеток, который прокладывается наряду с системой освещения, можно взять сечением 1,5 мм², кроме случаев, когда в розетку будет включаться стиральная машинка – тогда нужно медный кабель 2,5 мм². В тех случаях, когда к распределительной коробке на ванную подходит провод меньшего сечения, кабель для розетки следует прокладывать к послеучетным автоматам или же к ближайшей коробке, где питающий провод 2,5 мм² или больше (со счетчика).
Подключение проводов в коробке
Подключение проводов в распределительной коробкеВ коробке провода подключаются по следующей схеме:
- Красный или розовый цвет – фаза.
- Синий или другой – ноль.
- Если провода другого цвета, тогда в качестве фазы всегда выбирается более темный цвет.
Цвет проводов питающего кабеля берется по факту (как подключено до этого).
Рассмотрим пример с кабелем без заземления (если оно есть, то просто собирается со всех кабелей), где красный провод – фаза, синий – ноль.
С питающего кабеля фаза идет на выключатель (примем со всех выключателей красный цвет), затем после выключателя идет на светильник (синий с выключателя на красный светильника). Все нули (синие провода светильников и аналогичный цвет питающего кабеля) соединяются в одну скрутку. Кабель на розетку подключается напрямую к питающему кабелю.
Нормальное качество скруток достигается в том случае, если длина зачищенной жилы составляет около 6 см. Все провода в одной скрутке хорошенько скручиваются (руками или пассатижами), затем изолируются – сначала тканевой термоизоляционной лентой, затем обычной. После этого скрутки аккуратно распределяются по коробке, после чего она закрывается крышкой.
Для удобства на фазные провода светильников и приходящие выключателей можно повесить бирки из малярной ленты и написать там ручкой или маркером наименование кабеля, чтобы потом не путаться. Затем крепятся светильники и выключатели (ну и розетка). Когда всё готово, электричество проверяется – все светильники должны включаться своими выключателями, розетка также должна подавать электричество. После этого штробы замазываются, и можно выполнять отделку стен, потолка и пола.
Обратите внимание! Если стены не оштукатурены, то подрозетники лучше ставить в последнюю очередь.
Видео
В этом видео рассказывается как сделать в ванной правильное освещение:
Обратите внимание на советы из этого видео:
Фото
Светильники над раковиной
Потолок как звездное небо
Точечная подсветка
Бра в ванной
Подсветка потолка
Светильники на фоне черного кафеля
Светодиодная подсветка
Бра и люстра в ванной
Подсветка нишиПоследняя редакция: 11.09.2016 Автор: Сташков Максим Геннадиевич
vannayasvoimirukami.ru


