Современный дизайн маленькой квартиры: пространство для молодого мужчины
Наверх Перепланировки- Каталог домов
- Квартира
- Спальня
- Кухня
- Столовая
- Гостиная
- Ванная комната, санузел
- Прихожая
- Детская
- Мансарда
- Маленькие комнаты
- Рабочее место
- Гардеробная
- Библиотека
- Декорирование
- Мебель
- Аксессуары
- Загородный дом
- Ландшафт
- Системы хранения
- Коридор
- Уборка
- Фундамент
- Кровля
- Стены
- Окна
- Двери и перегородки
- Потолок
- Балконы и лоджии
- Внутренние конструкции
- Пол
- Водоснабжение и канализация
- Отопление
- Вентиляция и кондиционирование
- Газо- и энергоснабжение
- Освещение
- Сантехническое оборудование
- Безопасность и домашняя автоматика
- Бани, сауны, бассейны
- Строительные материалы
- Отделочные материалы
- Инструменты
- Техника
- Законы и финансы
www.ivd.ru
12 признаков по-настоящему брутального интерьера
Наверх Перепланировки- Каталог домов
- Квартира
- Спальня
- Кухня
- Столовая
- Гостиная
- Ванная комната, санузел
- Прихожая
- Детская
- Мансарда
- Маленькие комнаты
- Рабочее место
- Гардеробная
- Библиотека
- Декорирование
- Мебель
- Аксессуары
- Загородный дом
- Ландшафт
- Системы хранения
- Коридор
- Уборка
- Фундамент
- Кровля
- Стены
- Окна
- Двери и перегородки
- Потолок
- Балконы и лоджии
- Внутренние конструкции
- Пол
- Водоснабжение и канализация
- Отопление
- Вентиляция и кондиционирование
- Газо- и энергоснабжение
- Освещение
Сантехническое оборудование- Безопасность и домашняя автоматика
- Бани, сауны, бассейны
- Строительные материалы
- Отделочные материалы
- Инструменты
- Техника
- Законы и финансы
www.ivd.ru
R.S.: чисто мужской интерьер двухкомнатной квартиры
СтанзаДизайн интерьера, Архитектура г. Минск
Опубликовано:

Тип проекта
Дизайн-проект квартиры
Место
г. Москва
Площадь
78 кв. м
Стиль
Современный
Антураж и атмосферность присущи не только огромным частным домам и пентхаусам. Особенность этого проекта в том, что в отличии от популярных пастельных оттенков, которые часто используются в небольших пространствах, заказчик рискнул довериться мнению дизайнеров и использовать для оформления квартиры достаточно темные цвета. В то же время, изобилие натурального дерева (более характерное для стиля эко, нежели для современного), придали интерьеру живости и теплоты.
Гостиная
Цветовая гамма:
Стиль: Современный
Обстановка комнаты: Столовая зона
Для отделки стен гостиной использовались деревянные панели в сочетании со стеклом. Так как высота стен небольшая, потолок простой, одноуровневый. В интерьере использовано много видов светильников и типов освещения. Самая массивная лампа — большая зеркальная люстра — находится над обеденной зоной. Для освещения зоны отдыха применяется напольный прожектор-тренога и декоративная подсветка акцентной стены с телевизором. Чтобы интерьер не казался слишком уж сдержанным, он разбавлен яркими вкраплениями желтой обивки стульев и насыщенными красками картины. Модная фишка гостиной — обеденный стол из спила натурального дерева.
Кухня
Цветовая гамма:
Стиль: Современный
Планировка кухни: Прямая кухня
Обстановка кухни: С островом, Барная стойка
Кухня отделена от гостиной лишь условной перегородкой-шторой. Помещение проходное, поскольку из коридора оно плавно перетекает в присоединенную закрытую лоджию. Именно поэтому здесь минимум мебели. Для удобства кухонная раковина вынесена на остров. На нем же располагается небольшая барная стойка. Главным декоративным элементом выступает черная графитная стена, на которой можно оставлять пометки, послания и делать рисунки.
Спальня
Цветовая гамма:
Стиль: Современный
Обстановка комнаты: Рабочее место, Гардеробная
Кровать: Двуспальная кровать
Интерьер спальни простой, минималистичный. Главные ее украшения — мягкое изголовье кровати (выполненное в технике капитоне) и сруб дерева над ним. Визуально спальня является буферной зоной между черными стеклянными фасадами гардеробной и светлым рабочим местом в присоединенной лоджии.
Ванная комната
Цветовая гамма:
Стиль: Современный
Обстановка ванной: Душевая кабина, С туалетом
Основной цвет ванной комнаты — черный мрамор. Он выгодно подчеркивает белизну фаянса и нежный оттенок тумбы и кафеля, которым выложена душевая кабинка и небольшая полка-ниша.
Санузел


Цветовая гамма:
Стиль: Современный
Дополнительный санузел без ванной также выполнен на контрасте черных стен и белой сантехники.
Коридор


Цветовая гамма:
Стиль: Современный
Читайте также
designmyhome.ru
100+ идей интерьера комнаты для молодого человека и фото дизайна
Здесь вы узнаете, как обустроить интерьер для однокомнатной квартиры или отдельной комнаты молодого человека и увидите фото удачных идей дизайна. Многие считают, что личное пространство парня выглядит однообразно и скучно. На самом деле это не так, ведь интерьер комнаты – это полное отражение индивидуальности молодого человека и в большинстве случаев отличается креативностью. Именно в собственной комнате студент или ученик старших классов встречается с друзьями, выполняет домашние задания, спит и отдыхает, поэтому она должна быть поделена на отдельные зоны.
Интерьер для комнаты молодого человека и цветовая гамма
Часто дизайнеры рекомендуют оформлять личное пространство юноши в нейтральных тонах, так как с их помощью намного легче подчеркнуть строгость и сдержанность мужского интерьера. К сожалению, такой подход приводит к созданию невзрачного и однообразного дизайна. Добавьте немного экспрессии и динамики в интерьер с помощью ярких цветов и контрастов.










Комната парня – это одновременно спальня, гостиная и кабинет, поэтому обстановка должна способствовать положительному настрою и в то же время отличаться оригинальностью.
Яркие тона в интерьере комнаты молодого человека применяйте в малых количествах для того, чтобы выделить переход из одной зоны в другую или расставить акценты. В последнее время для отделки стен все чаще используют разные цвета, ведь и их помощью можно исправить недостатки помещения и выделить функциональные зоны.










Спальный уголок постарайтесь выполнить в теплых оттенках, чтобы атмосфера в нем располагала к отдыху.
Яркие цвета в рабочей зоне будут стимулировать активность, а нейтральные идеально подойдут для обустройства места для хранения вещей.
Если вы решили использовать яркие оттенки, то помните, что в насыщенном цвете можно сделать только одну стену, иначе комната зрительно существенно уменьшится.










Стильный дизайн интерьера для комнаты молодого человека – фото
Правильно подобранная отделка стен поможет скрыть недостатки помещения. Например, в комнату с низкими потолками часто клеят обои с вертикальными полосами. Нейтральная отделка стен в полоску делает зрительно выше потолок.
Темный пол – практичный вариант для комнаты парня, при этом освежить покрытие легко с помощью светлого ковра.










Яркая люстра придает изюминку интерьеру и разбавляет монотонность. Мебель в модном деревянном оттенке дуб шамони идеально впишется в комнату юноши.
Устали от ярких красок? Тогда полностью от них откажитесь. Сегодня в моде монохромные интерьеры, поэтому не бойтесь показать свою индивидуальность. Монохромный интерьер можно создать на основе серого, черного, белого или коричневого цвета. Некоторые мужчины предпочитают насыщенные фиолетовые, синие или болотные цвета, на основе которых также создаются монохромные интерьеры.





Монохромные цвета при формировании интерьера создают гибкость, поэтому парень в такой комнате сможет повесить картины, фото, музыкальные инструменты и преобразить интерьер. Элементы декора не только придают обстановке изюминку, но и подчеркивают вкус и характер хозяина квартиры.
Как обустроить модный интерьер в комнате парня
На данный момент всего несколько стилей пользуются большой популярностью и при этом точно подойдут для оформления дизайна комнаты молодого парня. Это – минимализм, хай-тек, конструктивизм, модерн, эко-стиль. Если юноша отличается целеустремленностью и знает, что хочет, то может смело объединять несколько стилей в собственной комнате. Думаете получится хаос? Продумайте все до мелочей, тогда достигните интересного сочетания разных направлений в дизайне. Попробуйте объединить лофт и классику.





Хотя электронные книги постепенно вытесняют обычные, в интерьерах до сих пор пользуются спросом книжные шкафы.
Мода изменчива, поэтому за ней не угнаться. Используйте основные приемы опытных дизайнеров, смотрите фото интерьеров комнаты молодого человека, и тогда получившая обстановка не устареет в течение короткого времени. Главное, чтобы в комнате было комфортно, поэтому смело отказывайтесь от любых стереотипов.
Как обставить мебелью комнату молодого человека
В мужском интерьере особенно ценится удобство и функциональность. При выборе мебели отдавайте предпочтение вместительным и простым конструкциям, которые идеально впишутся в любой интерьер.
Сначала определитесь с мебелью для спальной зоны: диван или кровать? После этого можете перейти к учебной зоне и подобрать письменный или компьютерный стол.





Шкафы, полки не должны занимать много свободного места, ведь у парня чаще всего мало вещей.
Расстановку мебели начните с выбора места для кровати или дивана. В большинстве случаев спальную зону располагают возле окна или возле стены. Прикроватные тумбы можно не использовать в комнате парня.
Для того чтобы рабочая зона освещалась большую часть времени естественным путем, ее располагают возле окна. В дизайне комнаты парня очень важно максимально эффективно обустроить рабочий уголок и при этом сделать так, чтобы он не загромождал интерьер.





При оформлении интерьера комнаты молодого человека учитывается вкус, характер и возраст. Юноша-подросток хочет больше отличаться от других, и мало задумывается о практичности интерьера, в то время как зрелый молодой человек ценит функциональность.
Интерьер небольшой комнаты для молодого человека – фото
Свои особенности имеет и интерьер небольшой комнаты (10-15 кв.м) для молодого человека, который привлекает оригинальными и достаточно смелыми дизайнерскими решениями.
У свободной стены или в нише расположите шкаф-купе, если покупаете каждый предмет мебели отдельно. В наборы для спальни чаще всего входят обычные распашные шкафы. Если в комнате есть компьютер, то не стоит оборудовать отдельное место для телевизора, который будет редко использоваться.










gorodzolotoy.ru
комната для мужчины-холостяка, интерьер, однокомнатная, 20 лет, 30 лет
У большинства дом заядлого холостяка или молодого человека, проживающего в комнате самостоятельно, ассоциируется с кожаным диваном, пылью и разбросанной одеждой. И если 10 лет назад это представление и соответствовало действительности, то большая часть современных мужчин стараются придать своему жилищу больше индивидуальности. Тем более что в наши дни существует множество незамысловатых и комфортных дизайнов интерьера.
Что подразумевает комната для молодого человека
Существует устоявшееся клише, что в холостяцкой квартире должны царить бардак и безвкусица.

Но всё больше мужчин стремится к функциональности и индивидуализации собственных жилищ. И обустраивают свое жилье согласно дизайн-проекта помещения.
Говоря о характерных чертах холостяцкой квартиры, можно выделить следующие:
- Индивидуализм. Такое жилище обустраивается только для одного человека. Оно полностью отражает его стремления и интересы.
- Удобство. В холостяцком доме практичность и комфорт возведены в абсолют. Причём, у хозяина квартиры здесь полная свобода. Он вполне может пожертвовать целыми комнатами или зонами, если они ему попросту не нужны.
- Это правило работает и наоборот. Если домовладелец хочет поставить посреди гостиной бильярдный стол, то никто ему этого не запретит.
- Минимум декора. Естественно, в любом жилье используются декоративные элементы. Но в этом случае их должно быть немного. Чрезмерно вычурные и пафосные вещи лучше здесь не использовать Неуместно в холостяцком доме будут выглядеть и семейные фотографии или живые цветы.
- Организованность. В доме не должно быть беспорядка. Для поддержания чистоты желательно рационально организовать пространство для хранения вещей и одежды.

Современные стили однокомнатных квартир
Чаще всего в однокомнатных квартирах проживают молодые парни или студенты, и преимущественно это съемное жилье. Мужчины же предпочитают более просторное жилье. Даже если это будет и однушка, то она будет более просторной (более 30 кв.м), и более обособленная без привычных женских изюминок.
Брутализм для заядлых холостяков
Этот стиль довольно часто применяется для обустройства холостяцких жилищ. Брутализм – довольно строгое и аскетичное направление. Оно предполагает максимальную простоту. Выполненное в этом стиле пространство лишено каких-либо украшений. Также здесь не приветствуется отделка – только голые бетонные поверхности.
Во всём интерьере прослеживается урбаничность. Стиль жизни большого города направлен на максимальную функциональность и комфорт, что, несомненно, важно для современны мужчин. Каждая комната и вещь в такой квартире имеет собственное предназначение. Здесь нет ничего необдуманного и ненужного.

Цветовая палитра этого стиля достаточно сдержанная. Здесь не приветствуется использование ярких кричащих оттенков. Основная цветовая гамма представлена чёрным, белым и оттенками серого.
При желании можно использовать и другие насыщенные цвета, но только в малом количестве.
Интерьер квартиры в стиле брутализм должен быть подчёркнуто современным, аскетичным и прочным. По этой причине основными используемыми материалами являются необработанный железобетон, стекло, металл и грубый древесный массив. Помимо голого бетона стены могут отделываться выкрашенной в светлый цвет кирпичной кладкой или деревянными панелями сероватых оттенков. В качестве альтернативы можно просто окрасить стены в серый цвет.
Больше всего внимания в описанном интерьере уделяется потолку. Он является самой неординарной частью обстановки. Если позволяет высота, его можно декорировать деревянными перекладинами или гипсокартонными коробами. В таком помещении приветствуется обилие как естественного, так и искусственного света. По этой причине окна обычно не завешиваются.
Привычные шторы и занавески здесь неуместны. Если вы хотите защитить квартиру от излишков дневного света, можно просто завесить окна фактурной тяжёлой шторой.
Что касается мебели, она должна быть максимально практичной и простой. Здесь приветствуются геометрические формы и многофункциональность. В этом стиле мебель никогда не расставляется в центре комнаты. Чаще всего она жмётся к стенам, чтобы максимально освободить пространство помещения.

Для хранения вещей организуются скрытые ниши, открытые полки и ящики. Никакой захламлённости не допускается.
Лофт для изысканных мужчин
Лофт также является одним из ярких современных стилей, достойных иметь место в холостяцком жилье. Буквально loft переводится как чердак. Это направление основано на преобразовании старых промышленных помещений в жилые дома. Выполненные в этом стиле квартиры должны быть максимально просторными. Большая часть стен в них попросту убирается. Чем больше свободного пространства – тем лучше.

Лофт позволяет сочетать современные технические новинки с незамысловатой фабричной эстетикой – бетоном, кирпичной кладкой, неоштукатуренными стенами, потолочными балками и неприкрытыми коммуникациями.
В этом стиле проводка, вентиляционные и прочие трубы являются полноценной частью интерьера.
Описанный стиль направлен на простор и функциональность. Отделить перегородками можно только ванную и спальню. Все остальные комнаты должны объединяться в единое пространство. Не менее важным элементом лофта являются окна. Они должны быть максимально большими. От тюлей и штор лучше воздержаться.

Помимо выше сказанного это направление обладает следующими особенностями:
- Открытая планировка – комнаты разделяются не с помощью стен и перегородок, а посредством зонирования цветом, мебелью и освещением.
- Сохранение индустриальных черт. В этом стиле не приветствуется замысловатая внутренняя отделка. Старая кирпичная кладка, торчащие трубы коммуникаций и не ошкуренный бетон – идеальный антураж для лофта.
- Сочетание старого и нового – отказ от отделки не предполагает лишений благ цивилизации. Вы вполне можете обзавестись современным телевизором, компьютером, или стереосистемой.
- Главная роль в таком интерьере отводится мебели – она должна быть удобной и многофункциональной. Вообще? здесь можно использовать любую меблировку, вплоть до антиквариата.
- Необычные аксессуары – обстановка лофта простая, но не аскетичная. Его можно украсить всевозможными плакатами, дорожными знаками, картинами. Даже граффити здесь будет выглядеть уместно.

Хай-тек: холостятская коморка
Хай-тек – подчёркнуто современное направление. Оно сочетает граничащую с аскетизмом простоту и повсеместное использование современной техники и материалов.
Это направление характеризуется следующими чертами:
- Чёткость и подчёркнутая строгость линий. Обтекаемые формы и замысловатая мебель здесь неуместны. Всё в интерьере хай-тек сделано максимально функционально и просто. В этом стиле много встроенных ящиков, скрытых шкафов и бытовой техники. Это не только простота. Это простота, призванная сделать жизнь лучше.
- Повсеместное применение любых современных материалов. Пластик, стекло, бетон, металл и синтетические ткани чаще всего используются для обустройства интерьера.
- Минимум отделки и декора. В большинстве случае все материалы используются в своём первозданном виде. Бетон и кирпич оставляют как есть. Если вы хотите оставить стены гладкими, то их можно окрасить в светлый сдержанный цвет.

- Применение раздвижных перегородок и дверей. Такие конструкции обычно делаются из металла и матового стекла. Они позволяют разграничить между собой комнаты или функциональные зоны.
- Обилие света. Причём в этом случае предпочтение отдаётся не естественному, а искусственному освещению. В таком интерьере применяется огромное количество встроенных и скрытых светильников и светодиодных лент. Они могут закрепляться в потолке, стенах или мебели.
- Базовыми цветами стиля являются белый, серый и металлик. Естественно, можно разбавить интерьер и более насыщенными оттенками, но использовать их нужно умеренно. Например ванная комната в черно-белом цвете смотрится отлично.

- В хай-тек может применяться декор. Это могут быть всевозможные картины, фотографии, постеры, статуэтки. Главное, не перестараться.
- Ведущую роль занимает современная техника. Она применяется повсеместно. Огромные телевизоры, компьютеры и прочие современные девайсы выставляются напоказ.

Интерьер в стиле рок
Тематический интерьер для меломанов на сегодняшний день является довольно актуальным направлением. Такое решение позволяет создать наиболее уютную для себя обстановку. Это относительно новый стиль и как таковых устоявшихся канонов тут нет. Чтобы добиться максимального соответствия заявленному направлению рекомендуется придерживаться следующих советов:
- Квартира в стиле рок должна быть максимально простой. От вычурного декора и замысловатой мебели лучше воздержаться.
- В интерьере рекомендуется использовать простые материалы. В отделке стен приветствуется кирпичная кладка ил необработанное дерево. В принципе, вы можете взять и другие материалы, главное, чтобы они были грубоватыми и фактурными.
- Функционализм. Не используйте ненужных вещей и мебели.

- Изобилие освещения. Здесь можно сочетать естественный и искусственный свет. Окна желательно делать объёмными. При необходимости их можно завесить однотонными римскими или прямыми классическими шторами. Для дополнительного освещения можно использовать лампы, бра или современные поворотные светильники.

Крупные вычурные люстры здесь неуместны.
Глэм-рок, как новое веяние моды в дизайне интерьера: видео
Особенности оформления
Мебельный гарнитур
Мебель для холостяцкой квартиры должна быть максимально простой, удобной и функциональной. Так для гостиной можно использовать необычные модульные диваны. Желательно применять меблировку простых геометрических форм.

Несмотря на устоявшиеся клише, беспорядка и захламлённости желательно избегать. Для одежды и вещей желательно организовать компактные места хранения. Это могут быть всевозможные ящики, полки или шкафы купе. В любом доме обязательно должна быть кухня. Вне зависимости от интерьерного стиля, она обязана оборудоваться всей необходимой для жизни техникой и меблировкой. Привычного обеденного стола в холостяцкой квартире не найти. Вместо него нередко используется функциональная барная стойка.
Не меньше внимания нужно уделить и спальне. Все внимание должно быть сосредоточено на спальном месте. Его нередко оформляют на специальном подиуме или дополнительно освещают. Кровать при этом должна быть просторной и удобной.

Декор
Вне зависимости от интерьерного стиля, декор холостяцкого жилища должен быть умеренным. Чрезмерный пафос и вычурность здесь не приветствуются. Все элементы и вещи должны прежде всего отражать стремления и интересы хозяина. Здесь вполне можно использовать всевозможные фотографии, постеры, статуэтки, картины, вплоть до граффити. Чтобы придать помещению немного тепла в гостиной или спальне можно разместить ковёр.

Декоративные камины в интерьере гостиной.
Я мозаику сложу из разбившихся зеркал смотрите как в этом материале.
Изделия из жидкого гранита: https://trendsdesign.ru/materialy/granit/zhidkij-granit-novaya-perspektiva-v-stroitelstve.html
Заключение
К обустройству жилища для молодого мужчины нужно подходить индивидуально и взвешенно, в этом отлично помогает программа для дизайна квартиры . Такой дом делается только для одного человека и должен полностью соответствовать его потребностям и предпочтениям. Для этих целей лучше выбирать минималистичные современные стили, такие как лофт или брутализм, и всё это можно провернуть даже в общежитии. Не менее актуальным в этом случае будет ещё только развивающийся интерьер в стиле рок.
В качестве напольного покрытия используйте ламинат Krono. Почему поднимается ламинат после укладки и как это исправить расскажет эта статья.
trendsdesign.ru
Мужской интерьер квартиры — PORUSSKI.me
У каждого своё представление о том, как должна выглядеть именно его квартира, загородный дом или дача. Конечно, существуют некоторые признаки, составляющие основу жилого пространства, правила, следуя которым происходит зонирование площади и распределение всех необходимых помещений. Продумывая интерьер, мы пытаемся не оставить без внимания каждый квадратный метр, при этом часто отказываясь от своих фантазий и желаний в пользу более стандартных решений.
Мужской интерьер от женского довольно сильно отличается, что естественно, ведь речь идёт о полных противоположностях. Если заказчиком выступает женщина, то, скорее всего, мы получим домашнее уютное гнёздышко, и абсолютно неважно, какому стилю в дизайне было отдано предпочтение. То же самое происходит с архитекторами, дизайнерами и декораторами, которые занимаются оформлением дома. Многие решения будут зависеть от того, сильный пол или слабый работал над вашим проектом.
Сегодня мы расскажем о квартире, где невооружённым взглядом читается мужской характер. Здесь ни одно решение не принималось женщиной. Апартаменты являются олицетворением потребностей и желаний заказчика. Понять и воспроизвести все просьбы владельца помог Алексей Корчинский, основатель и главный архитектор студии Like Interior.
Алексей Корчинский – архитектор, дизайнер, старший преподаватель МАРХИ, член Союза Московских Архитекторов. Профессиональной деятельностью Алексей занимается с 2005 года. В 2012 году основал студию архитектуры и дизайна Like Interior. Фирма специализируется на проектировании зданий малой этажности (частные загородные дома, отели), разрабатывает дизайн-проекты интерьеров жилых и общественных помещений. В статье «Эксклюзив без антиквариата» мы уже знакомили читателя с одной из работ Алексея. Эти два проекта абсолютно противоположны не только благодаря выбранной стилистике, но и основному подходу к проработке и оформлению пространства.
like.interior / likeinterior.su / likeinterior
Функциональное зонирование
Вашему вниманию представлен дизайн-проект двухэтажной квартиры в ЖК “Дубровская слобода”. При работе с подобными объектами за основу, как правило, берется функциональное зонирование частного двухэтажного дома: первый этаж – нежилой, в основном он отдан общественным помещениям (кухня, столовая, гостиная, хозяйственные помещения), а также под гостевые комнаты; второй этаж целиком предназначен для хозяев дома и их детей.
В данном же случае заказчиком и архитектором было рассмотрено и принято нестандартное решение. На первом этаже – спальные зоны с дополнительными необходимыми помещениями, а второй этаж полностью отдан для приёма гостей. Конечно, такой выбор сделан был по нескольким причинам: владелец квартиры – мужчина в возрасте, у которого после рабочего дня есть желание прямиком пройти в свою комнату, зона столовой больше используется только в выходные дни. И не стоит оглядываться на классические планировки, ваш дом должен в первую очередь отвечать вашим требованиям.
Прихожая

Попадая в квартиру, многих может удивить такое яркое и насыщенное по цвету пространство. Красный цвет был продиктован выбором древесных пород, задействованных в изготовлении дверей, шкафов и лестницы. В основе дерева проявляется красный оттенок. Поэтому именно данное сочетание цвета и материала смотрится эффектно и гармонично.
Обратите внимание на лестницу: ступени отличаются между собой, это было сделано из-за недостатка естественного освещения. Чередование тональности дубовых ступеней способствует аккуратному подъёму и спуску. Для изготовления лестницы был приглашён отечественный подрядчик.

Дерево – основной материал
Детская комната



Хозяйская спальня
Вся встроенная мебель, шкафы, гардеробные, детская кровать, двери на первом и втором этажах, часть кухонного гарнитура изготавливались из дерева российским производителем по специально разработанным чертежам. Полы в помещениях: инженерная доска, модульный паркет. Двери заслуживают особого внимания. Это эксклюзивное решение, где используются сочетания двух/трёх материалов: массивная основа, вставки деревянного шпона (тонированный палисандр на 1 этаже, тонированный корень на 2 этаже), а также зеркальная внутренняя часть в санузлах, которая визуально увеличивает пространство.

Санузел на 1 этаже
Санузел на 2 этаже
Гостевая комната
Гостевая комната отличается от общей строгой и продуманной концепции. Яркость красок и их сочетание, занимательная форма светильника и сочная картина на стене раскрывают образ озорного весёлого мальчишки, который прячется в каждом взрослом мужчине, независимо от возраста и статуса.

Кухня-столовая



Кухня-столовая – самая интересная, необычная и неповторимая часть квартиры!
Во-первых, выход на просторный балкон. В данном случае вы сможете ощутить себя посетителем частного загородного дома, где выход на террасу из столовой зоны является одной из востребованных и часто встречаемых частей архитектурного решения. Во-вторых, редко кто решится на кухонный гарнитур в металлической отделке. Но производимый эффект стоит всех сил, которые тратятся на полировку поверхностей. В помещении используется много металла – гарнитур, нижняя часть колонн, стол, стулья, светильники. Площадь оконных проёмов даёт большое количество естественного освещения, что позволяет солнечному свету играть на отражающих поверхностях в ясные дни.




Обратите внимание на фартук. Здесь использован тот же самый паркет, который мы видели на полу в детской спальне! Смотрится очень необычно и стильно.
Камин – ещё одна примечательная составляющая часть этого проекта. Именно из-за возможности установки камина заказчик остановил свой выбор на покупке данных апартаментов.


Звуковая комната
Последним достоянием и гордостью квартиры является звуковая комната. Самое любимое и долгожданное помещение владельца. Рисунок пола имеет индивидуальный дизайн и состоит из разных элементов – в центре комнаты лежит модульный паркет, а по периметру – массивная доска. Дерево – хороший звукопоглощающий материал. Отделка стен – «Линкруста» – рельефное покрытие, которое дополнительно расписывал художник. Узор покрытия был выбран нейтральный, чтобы не добавлять помещению классической стилистики. Также выбор пал именно на данный узор для улучшения звуковых характеристик. Во избежание эффекта звонкости, который проявляется в помещении при открытом остеклении, было решено использовать звукопоглощающие шторы. Плотная светонепроницаемая ткань также помогает при просмотре кинофильмов и телепередач. В комнате сделан только потолочный свет с лампами малой мощности.


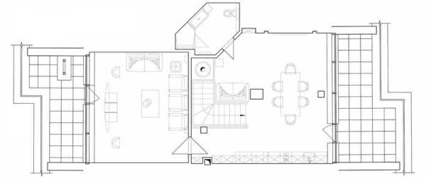
План 1 этажа
План 2 этажа
Интерьер с мужским характером – довольно редкое явление, если только мы не имеем дела с квартирой холостяка. Данный проект демонстрирует хороший вкус и точность исполнения. Здесь продуманно функциональное назначение каждого предмета без лишних элементов декора. Использование небольшого количества текстиля также играет свою роль в формировании интерьера. На наш взгляд, данный проект – отличный пример сотрудничества двух представителей сильного пола.
Фотограф: Евгения Южная, специально для Porusski.me
porusski.me
Современный дизайн интерьера для молодого человека / парня
Содержание:
Нюансы, которые стоит учесть
Обустраивая дизайн квартиры для молодого человека, важно учесть следующие нюансы:
- Возрастная категория.
Например, у 18-летнего студента и 25-летнего мужчины будут разные пожелания и потребности в обстановке жилища. Детальней о возрастных категориях мы расскажем далее.
- Больше пространства и меньше загромождения декором и деталями.
- Интересы и предпочтения.
Прислушайтесь к себе и собственным желаниям, представьте идеальное для себя жилище.
Изложите все это дизайнеру, который отшлифует информацию и создаст уютную квартиру, о которой вы всегда мечтали.
- Тип планировки.
Они бывают открытыми и закрытыми. Также есть компромиссное решение – объединенная кухня-гостиная (студия), к которой примыкает одна или несколько отдельных комнат.
Определитесь со стилем, который бы подошел и вам, и особенностям квартиры. Есть немало идей дизайна интерьера для молодого человека, который можно реализовать даже в небольшом жилище.
- Функциональность.
Обстановка должна быть не только стильной, но и функциональной. Это важно для места постоянного проживания. Жилье должно быть комфортным, а в погоне за модными тенденциями есть риск недоработать этот нюанс.
Определитесь, какие должны быть зоны в интерьере для парня. Детальней о зонах мы расскажем далее.
- Особенности деятельности или хобби.
Нередко важно, чтобы обстановка вдохновляла на продуктивную трудовую деятельности или занятие любимым хобби. Но если работа утомляет или занимает в жизни слишком много места, то лучше, чтобы дома была обстановка, способствующая расслаблению и отвлечению от рабочих будней.
Интерьер молодого парня с учетом возрастной категории
В таком возрасте чаще всего жизнь парня бурлит за пределами жилища. Многие юноши этого возраста утверждают, что им достаточно, чтобы квартира олицетворяла минимализм – спальное место, рабочий стол, небольшая кухня, место для хранения вещей. Чем меньше вещей, тем легче навести порядок.
Помещение важно сделать еще и уютным, функциональным, визуально привлекательным и без излишеств в виде обилия декора или калейдоскопа цветов.
Так как 18 – 19 лет – это студенческий возраст, зона для учебы должна быть продуманна особенно тщательно. Предусмотрите хорошее искусственное и дневное освещение, удобный письменный стол. Он может включать в себя место для компьютера и ноутбука. Обустройте полки для хранения литературы. Сторонникам минимализма подойдут компактные и закрытые полки.
При обустройстве интерьера молодого парня нужно учитывать его хобби, которое может быть и недолговременным. Многие юноши увлекаются музыкой, компьютерами, футболом, скейтами и т. д. Отведите в жилище место для таких интересов. Также элементы хобби могут быть включены в общую обстановку интерьера.
Так как хобби может быть недолговременным, можно сделать оформление зоны для хобби, позволяющее легко его переделать или вовсе убрать.
В этом возрасте у парней часто появляется больше пожеланий и предпочтений в интерьере. Насытившись обстановкой минимализма, многие понимают, что хотят нечто большего. Поэтому важно при обустройстве дизайна комнаты для молодого человека четко сформулировать, каким бы он хотел видеть конечный результат.
Серьезные отношения с девушкой также побуждают пересмотреть обстановку в жилище, больше адаптировав ее для пары – удобная двуспальная кровать или модель раскладного дивана, который ее заменит, расширение функционала кухни, вместительные и закрытые шкафчики в ванной комнате.
- 25 лет и старше
Окончив учебное заведение, целесообразно сузить рабочую зону (кроме случая, если вы работаете не на дому). Таким способом освободится больше площади.
В этом возрастном периоде некоторые хобби становятся постоянными, что важно учесть при оформлении жилища. Когда нахлынет поток работы или одолеет усталость, взгляните или погрузитесь в мир хобби, чтобы насытить себя приятными эмоциями и получить заряд вдохновения.
У многих в 25 лет и старше появляется желание поддерживать хорошее здоровье с помощью спорта, но не всегда есть время посещать тренажерный зал. Из этих соображений можно выделить в интерьере комнаты молодого парня место для тренажеров, гантелей или штанги. Если площадь жилища невелика, но есть желание поставить тренажер, выберите такой, который бы прорабатывал как можно больше мышц, например, орбитрек. Если есть просторная лоджия, в ней можно обустроить мини тренажерный зал и хранить спортивный инвентарь.
Если вы планируете завести семью, к обустройству интерьера появляется еще больше требований, главное из которых – выделение личного пространства каждому члену семьи. Подробнее о таких решениях в дизайне мы писали в статье Интерьер квартиры для молодой семьи.
Идеи зонирования
Предлагаем рассмотреть основные идеи зонирования независимо от возрастной категории.
Отбросьте стереотип, что гардеробная не для дизайна интерьера для парня, и что ему достаточно шкафа. Если позволяет площадь, сделайте гардеробную, в которой упорядоченно можно хранить одежду. Во-первых, меньше вещей будет на виду, во-вторых, в гардеробной, где вещи рассортированы, проще что-либо найди.
Если планировка не предусматривает зону для гардеробной, ее можно сделать самостоятельно из гипсокартона.
Зона отдыха – не менее важная часть современного дизайна для молодого человека. Гостиная хорошо подходит для ее реализации.
Учитывайте, какой тип времяпровождения вам по душе.
Любите смотреть фильмы? Установите на одной из стен большой телевизор, а напротив него комфортный диван, дополненный подлокотниками-трансформерами: под ними находится пространство для мини-бара, а сами подлокотники могут трансформироваться в небольшой столик.
Любите настольные игры с друзьями? Тогда вам потребуется стол для компании и соответствующая мебель. Друзья могут расположиться за столом как на стульях, так и на диване и креслах.
Как уже было сказано в предыдущем разделе, дизайн квартиры для парня должен включать в себя рабочую зону. В студенческом возрасте она нужна для учебы, а когда человек работает, то с большой вероятностью бывают периоды, когда работу приходится брать домой, а выполнять ее за обеденным столом или на диване неудобно.
В кухонной зоне все должно быть максимально просто и функционально. Если вы используете различную бытовую технику для приготовления еды, спрячьте ее за дверками шкафов или встройте в гарнитур, чтобы кухня не казалась перегруженной предметами и соблюдалась идея минимализма.
Предусмотрите хорошую вытяжку, которую также можно хорошо замаскировать. Молодые парни редко прибегают к сложным кулинарным рецептам (выпечка, тушение), отдавая предпочтение жарке продуктов, от которых обильно идут испарения.
Дизайн спальни для молодого парня должен располагать к отдыху. В квартире студии зону сна можно выделить перегородкой или ширмой, другим напольным покрытием (приятным для босых ног) и освещением. В отдельной комнате в интерьере спальни для парня можно сделать обои теплых тонов с невыразительным орнаментом.
На стенах можно сделать изображение ночного города, дополнив его подсветкой с регулируемым уровнем яркости.
Выбор цвета
Отбросьте стереотип, что для современного дизайна комнаты для молодого человека нужно выбирать «мужские цвета» – сдержанные и преимущественно темные.
Цветовая палитра должна в первую очередь нравиться и вызывать положительные эмоции, а дизайнер учтет особенности вашего жилища и выбранного стиля, и поможет сделать любимую цветовую гамму максимально гармоничной в помещении.
Помочь определиться с выбором цвета может предпочитаемый стиль и интересы.
Примеры:
- Любите свежесть моря и средиземноморскую красоту?
Выведите на главный план синий и голубой цвет, дополнив его белым. Также отлично подойдет оливковый и немного лазурного тона.
- Вы экстраверт с активной жизненной позицией?
Тогда задействуйте насыщенные и яркие цвета, а также контрасты. Синий, желтый, зеленый, фиолетовый будут пробуждать энергию и улучшать настроение.
- Предпочитаете минимализм?
Используйте светлые тона: все оттенки белого, бежевого, пастельную гамму, коричневый, черный и серый цвет. Но даже в таком варианте желательно сделать хотя бы одно или несколько ярких вкраплений.
- Хотите, чтобы интерьер комнаты для парня воплощал зимнюю свежесть?
Выберите снежно-белый цвет, дополните его голубым, а в качестве вкраплений используйте синий или тон потеплее.
Мебель
При выборе мебели для дизайна квартиры молодого парня используйте принцип – сохранить больше свободного пространства, и не забудьте про функциональность предметов.
Оптимально подойдет мебель, которую можно трансформировать или которая может сочетать в себе несколько функций. Примеры: кровать, под которой есть выдвижные ящики, складной стол для гостиной, диван с выдвижным столиком.
Также подойдут вместительные шкафы-купе, за дверками которых можно разместить много вещей. Для отдыха и приема гостей подойдет комфортный диван с декоративными подушками.
Заключение
Не только девушкам непросто угодить в обустройстве жилища. Для реализации дизайна комнаты молодого парня также следует учесть ряд факторов, о которых мы рассказали в сегодняшней статье.
Если объединить пожелания парня с выбранным стилем, особенностями жилища и модными тенденциями, то получится создать интерьер, о котором можно только мечтать.
✽ ✽ ✽
Еще фото квартир? Более 1 200 фото дизайна в совремеменных стилях и 480 фото классических интерьеров квартир, среди которых вы обязательно сможете выбрать самый лучший для себя вариант или на его основе создать свою оригинальную идею, а дизайнеры вам в этом помогут.
www.topdom.ru
