серии домов (п44т, п3, 121 серия, 97, И-155) планировка распашонка и линейная
В квартире становится комфортнее, когда планировка сделана практично и гармонично. Двухкомнатная квартира – это вариант для молодой пары (с ребёнком или без) либо для семьи на 3–4 человека. В таком жилье хватит места для организации функционального пространства для каждого члена семьи: можно разграничить детскую, спальню или зал-гостиную. Перед выбором планировки двухкомнатной квартиры рекомендуется ознакомиться с видами домов и помещений.

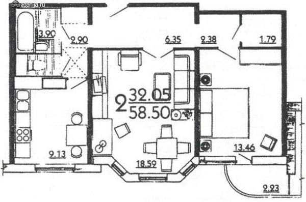
Пример планировки
Чем квартира универсальнее – тем проще грамотно распределить пространство и сделать перепланировку, так как много типовых проектов. Подробнее об этом почитайте в статье: проект перепланировки квартиры.
Выбрать правильный вариант для себя несложно, если знать критерии, по которым определяется удобство планировки.
Критерии выгодной планировки
Критерии планировки универсальны, ознакомившись с ними, подберете жилье и поймете на что в первую очередь смотреть при рассмотрении вариантов. Ознакомимся с ними по порядку:
- Наличие к квартире подсобного помещения, «тёмной комнаты». В нем будет удобно хранить вёдра, швабры, пылесосы и так далее. Если площадь кладовки позволяет (от 1,2–1,5 кв. м) – оборудуйте там гардеробную;
- Большая площадь кухни. Так, для двухкомнатной квартиры 50 кв. м просторной считается кухня9 кв. м. Если размеры будут больше, то сделайте зону отдыха;
- Высокие потолки. Нормальная высота – 2,5 – 2,8 м;
- Наличие достаточного дневного света в комнатах, который полезен для организма и экономит электроэнергию. Если окна маленькие и света попадает мало – придётся использовать в основе искусственное освещение;
- Просторная лоджия, балкон. В таком помещении приятно подышать свежим воздухом не выходя из дома и хранить габаритные вещи: санки, велосипеды, одеяла для гостей, банки с соленьями;
- Окна выходящие на разные стороны, это позволит сохранить дневной свет на протяжении дня;
- Широкие коридоры.

Зонирование площади двухкомнатной квартиры
Функциональные зоны
Идеальная планировка двухкомнатной квартиры предполагает гармоничное распределение зон. Функциональность определяется наличием следующих факторов:
- Кухня – место для приготовления и приема пищи. Женская часть нашего общества проводит там много времени и поэтому особо трепетно относится к выбору кухонного пространства. Если размеры и планировка квартиры позволяют (53 кв. м. и больше), то стоит учесть ряд факторов при выборе кухни. Подробнее об этом в статье: планировка кухни.
- Спальная зона – место для отдыха и восстановления после рабочего дня. Если в семье дети и планировка жилья удачная – организация нескольких спальных зон будет разумным решением.
- Санузел – разделенный или совмещенный. Чаще люди склоняются к первому варианту, если квартира просторная, то попробуйте разместить отдельную раковину для мытья рук в туалете.
Если все зоны присутствуют, но такое расположение не дает достаточного объема пространства для комфортного проживания – смело переходите к рассмотрению от двушки к трешке либо заранее обдумайте варианты перепланировки будущего жилья. Подробнее об этом в статье: перепланировка двухкомнатной квартиры.
Типовые планировки
Планировок двухкомнатных квартир – множество. Помещения отличаются друг от друга площадью и расположением комнат. Популярными являются квартиры с планировкой типа «распашонка» и «линейная». Рассмотрим серии различных домов и их особенности.
Серия п-44
Двушки в панельных домах серии П-44 стандартны. Площадь таких квартир двух видов: 50,2 кв.м. либо 57,8 в «распашонках». Срок эксплуатации у таких домов большой, поэтому в ближайшее время сносу помещения не подлежат.

Достоинствами также являются следующие факторы: есть место для консьержа, грузовые лифты, продумана система удаления дыма, легко сверлятся стены, в них отсутствует керамзит .
К отрицательным моментам относится следующее: если плохая герметизация межпанельных швов, то возможно попадание влаги, часто панели трескаются, со временем происходит отшелушивание краски;
Серия п-44т
Ближе к 2000 годам стала появляться следующая серия домов П-44Т. Такие жилые помещения имеют улучшенную планировку. Окна кухни – эркеры трапециевидной формы. Площади впечатляют размерами: общая – 52 – 64 кв. м, жилая – 19 – 34, кухни – 8,3 – 13,2. Высота потолков тоже порадует будущих жильцов и составляет 2,7 м. Со второго этажа появляются застекленные лоджии.

П3
Дома серии п3 строились в 70-х годах. В этой серии панельных домов планировка двушки удобна для проживания: жилые комнаты изолированы друг от друга. Размерами стандартные: площадь – 53,4 кв. м; жилая – 32,1; кухня – 9,2. Санузел раздельный.
121 серия
121 серия дома бывает 5, 9 и 10 этажными. Планировки 121 серии включают подсобные помещения, стоимость и звукоизоляция тоже порадует. Площади варьируются от 54 до 66 и выше кв. м. Отличительная черта – большая кухня: 9 квадратных метров.

97 серия
Схема 97 серии бывает двух видов планировок: с кухней 8,69 кв. м, и кухней 13,66. Преимущества: лоджии по 5 кв. м и раздельные ванная и туалет.

Приведем также примеры следующих планировок:
И-155



Серия 103


Каркасно-панельные дома на основе 1-335А

ПЗМ

ГМС-3


Планировка в домах серии 101
Заключение
Выбирая подходящую планировку двухкомнатной квартиры, обращайте внимание на важные моменты: расположение комнат, площади функциональных зон, высота потолков, достаточное количество дневного света, наличие балкона или лоджии. Идеальна та двушка, в которой удобно чувствуют себя все члены семьи.
skedraft.ru
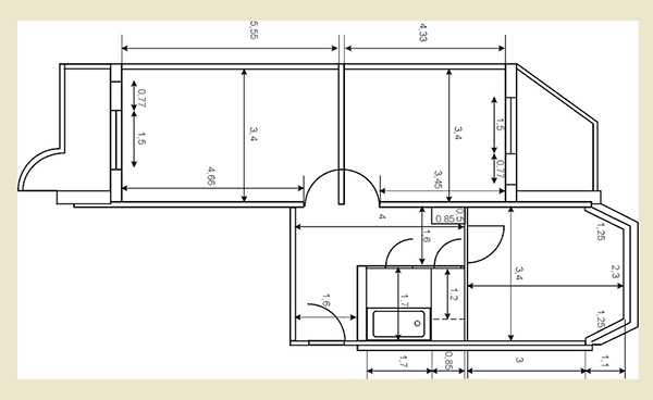
П-44Т двушка-распашонка. Прихожая-коридор. | postroim-vmeste.ru
Здравствуйте, уважаемые вдолевщики!
Наконец-то подходит к концу наш ремонт, длиною в год. Это первая наша квартира, первый ремонт в новостройке, первые ошибки и первые удачные решения) В общем, как-то только у нас оказалось готово хоть что-то, что я могу показать, я решила не сдерживать себя)) Этим что-то сегодня будет прихожно-коридорная зона в абсолютно типовой для Москвы и области серии дома — П-44Т. Квартира — двушка-распашонка, угловая. Планировки с размерами легко находятся в Интернете, но, на всякий случай, добавлю картинку.

Постараюсь, особо не грузить вас текстом, отмечу лишь то, что, на мой взгляд, после пары недель проживания оказалось удобно или не очень. Начнем с того, что в первую очередь предстает взору всяк сюда входящего)



Тумба справа — для обуви. Мне кажется, это лучшее решение на всем протяжении ремонта) Вот некоторые мои знакомые и родственники, пока я ждала эту тумбу и после того, как ее поставили, с заговорческим видом сообщали мне о существовании галошниц. Скажу честно, на мой взгляд, галошница — это самое бесполезное изобретение человечества. Как бы кроме босоножек, балеток, туфель и кед, у меня еще огромное количество такой обуви как сапоги, ботинки, полуботинки и полусапоги. Более того, сапог у меня больше, чем босоножек. Может, я не до конца понимаю, как пользоваться галошницей, но мне кажется, что этот атрибут пригоден только где-нибудь на Бали. Короче, это крайне удобная вещь, которую я сделала для себя так, как мне удобно и мне удобно!)


Шкаф хорош тем, что в него спряталась стиральная машинка. Ванная в квартире настолько маленькая, что, как мне кажется, человека, ее спроектировавшего, надо найти и подвергнуть публичным пыткам)) В общем, как засунуть стиралку в ванную — я не представляла. А вот в шкаф в коридоре она поместилась прекрасно) Он ровно напротив ванной, что тоже удобно.
Какого-нибудь декора еще просит сюда моя душа, но пока ничего глаз не зацепило. Буду думать)
Движемся дальше, вид от кухни:

И от шкафа:

Вешалки, кстати — это аналог вешалок Шведской компании Swedeze (или как-то так), которые стоят баснословных денег. Но, как выяснилось, наши столярные мастерские могут сделать все) В том числе такие вот штуки в 5 раз дешевле, чем делают шведы)
Из неудобного на сегодняшний день: я забыла сделать проходной выключатель для бра у входной двери. Неудобно… Я люблю, когда бра включены, очень красивый нежный свет, но выходя из квартиры, приходится идти их выключать почти к комнате(
Ну и не рассчитала расстояние от вешалки до стены у входа. Не могу найти контейнера для обуви теперь, который бы встал туда. Пока стоит между двумя вешалками, но еще один точно бы не помешал.
Ламинат лежит по всей квартире без порогов. Пока, присутствие ламината в коридоре меня не смущает. Дальше посмотрим.
Ну и вид от комнаты:

Входная дверь — моя боль)
Я не знаю, что мной управляло, когда я ее выбрала( Но пока так. Думаю покрасить эти черные края белым… Отделку, те наличники, сделать не получается, так как там тумба стоит вплотную.
А картина закрывает щиток.
Ну и еще несколько фото


На все вопросы отвечу с удовольствием.
К критике отношусь здраво)
На советы из серии «а не перекрасить ли Вам стены в голубой/желтый/белый/…» или аналогичные могу реагировать злобно или вовсе не реагировать)
Спасибо за внимание)
UPD)
Так как внутреннее наполнение тумбы сфоткать пока не могу, в том числе и потому, что оно не доделано, добавляю чертеж… Рисовала я его сама, чтобы скинуть мастеру и хотя бы примерно объяснить, чего я хочу, так что не обессудьте)

- справа за дверкой (как бы скрытые) — 4 ящика: под всякую мелочевку, в том числе обувные принадлежности; под ящиками две полки: одна по высоте 20 см — подходит для туфель на каблуке и всяких полусапог, ботильонов и пр., вторая — около 30см высотой, туда встают сапоги
- две широкие дверцы: верхние 4 полки под туфли/сабо/кеды/босоножки. Ну и немного места остается под мужские ботинки, хотя выделяла со скрипом))), под ними полка 20см высотой — опять же для чуть более высокой обуви, ну и низ — под сапоги
В ряд встает от 3 до 4-х пар обуви в зависимости от ее ширины, но, в основном все же 3(((
Если откровенно, то места все равно не очень хватает, но это лучше, чем галошница. Лучше, чем хранить «несезонную» обувь в коробках в шкафу или под кроватью. Лучше, чем заставить обувью весь коридор и прихожку.
Опять же, это мое сугубо личное мнение))
Фото тумбы внутри с наполнением:


И фото стыка камня с потолочным плинтусом и с напольным плинтусом:


postroim-vmeste.ru
Дизайн двухкомнатной квартиры п44т распашонка. Фото
От дизайна интерьера напрямую зависит уют в квартире, поэтому во время ремонта своими руками рекомендуем продумать все до мелочей. Двухкомнатные угловые квартиры-распашонки серии П-44Т размещаются в торце здания, имеют эркерную зону в гостиной. Согласно планировке прихожие размещены во внутреннем углу, а две просторные комнаты напротив друг друга.
Идеи для дизайна двушки П-44Т
Стены двухкомнатной квартиры серии П 44-Т несущие, поэтому перепланировка этих помещений не подразумевается. Вместо этого для изменения дизайна можно использовать новые перегородки, чтобы провести зонирование помещения. В качестве перегородок можно использовать стеллажи, мебель или гипсокартон. Санузел в двухкомнатных квартирах по проекту П 44-Т может быть, как раздельным, так и совмещённым.
Предлагаем три варианта для перепланировки двухкомнатной квартиры П 44-Т распашонки:
- В первом случае комната имеет раздельное пространство для родителей и их ребёнка. Это подходит для семейной пары со школьником, студентом. В них включается: спальня, гардеробная (места для хранения) либо кабинет. Спальня для родителей располагается в большой комнате, зона для проведения обедов переносится в эркер. В родительской спальне обустраивается гардеробная.
Санузел лучше сделать раздельным. Для экономии места в ванной устанавливается душевая кабинка, туалет изолируется.
Этот вариант подразумевает размещение всех комнат вместе. Вместо детской делается большая спальня. Гостиная в двухкомнатной квартире распашонке совмещается с кухней-столовой.
В санузле (совмещённый вариант), рядом с душевой кабинкой монтируются: биде, стиральная, сушильная машинки.

- Во втором варианте семья с 2 детьми отдаёт большую комнату детям. Маленькая комната играет роль родительской спальни. В комнате детей находятся 2 кровати, 2 рабочих места, шкаф либо гардеробная. Одно из рабочих мест размещается в отапливаемой лоджии. Для взрослого ребёнка лучше поставить раскладной вариант дивана. В кухне ставится большой диван. В эркере устанавливается барная стойка. Санузел делается раздельным.
- В третьем варианте, жильё отделывается для человека, имеющего надомную работу или для пары, которая любит принимать гостей. В небольшой комнате делается спальня. Кабинет размещается на тёплой лоджии. Просторная комната отводится для обустройства гостиной. Угловой просторный диван с барной стойкой размещаются там же.
Для активной молодой семьи требуется квартира с объёмными местами хранения, с комфортными зонами для работы, отдыха (гостиной). В просторной комнате двухкомнатной квартиры П 44-Т будет находиться спальня с гардеробной. На лоджии кабинет. Детская кроватка должна быть в просторной комнате родителей. Небольшая комната идёт для гостиной. Она размещает угловой диван, кресло.Из кухни в этом случае лучше сделать дополнительно проём. Телевизор размещается на стене между проёмами в прихожую и кухню. Санузел в этом варианте объединяется и расширяется за счёт коридорной части. Кухонный проём, выходящий в коридорную часть квартиры, закладывается. На месте проёма устанавливается духовой шкаф, холодильник/
Также почитайте: Планировка однокомнатной квартиры в доме серии п44т
Каждый вариант имеет свои плюсы и минусы, поэтому смотрите фото дизайна двухкомнатных квартир п 44-т распашонка и выбирайте для себя лучший. Даже если в квартире все стены несущие, можно изменить дизайн и привнести в интерьер что-то новое.
thewalls.ru
Распашонка П-44Т: ya_dizayner
Прекрасная семья въезжает в первую свою квартиру после 15 лет в коммуналке.Сын — подросток и малютка дочка))
План квартиры:

Хочется света и цвета, а какого — непонятно))) Пожелания разнообразны:
Заказана кухня в белом глянце, куплен светлый ламинат, выбрана нравящаяся гамма, с остальным пока тупик.

Пришли ко мне))
Вот какая получилась планировка:
Мы делали ее не сразу всю квартиру, а поэтапно по комнатам — черновая отделка уже готова, все стены на своих местах, даже электрика проведена (это некоторые ограничения накладывало, кстати)
Начали с кухни. Вариантов было штук шесть, но изменения несущественные — смотрели разные столы и стулья, основная концепция была принята сразу.


Комната сына. Хочет фотообои на всю стену — что-то техническое.
Планировка — я предложила 2 варианта, с учетом того, что телевизор уже имеет свое место (не делайте так — сначала распланируйте мебель, потом проводите электрику)

Принят этот:

Предлагаю такое решение по комнате. Мальчик в восторге, но смущает голубой — слишком»девчачий»)))
Начинаю рисовать другой вариант
Тут выясняется, что у него зеленый — любимый цвет.
Этот вариант попал «в яблочко»))
Переходим к спальне-гостиной.
Просят сделать перегородку на полстеночки, чтобы спрятать кровать.
Получается не очень(( Предлагаю свой вариант — слева.
И тут опять выясняется, что телевизор не может быть перенесен (еще раз — не делайте так)))
Предлагаю отказаться от перегородки, тем более, что «гостиная» больше для семьи — поваляться вечером на диване, фильм посмотреть всем вместе.
Или переставить кровать на другую стену (не захотели)

Итак, с расстановкой определились, думаем о наполнении. Предлагаю зонировать вот так:
Вроде нравится, но что-то смущает.

Присылают картинки в серых тонах. Ну конечно — лишний цвет))
Убираю. Более спокойная гамма сразу нравится:
Детская дочке сложилась сразу — понравились обои в горошек, они и сделали весь интерьер.

Затем ванная и коридор — все шкафы вынесены в прихожую, поддерживаю тему кухни — белый глянец, цвет какао и зеленые нотки.
Ребята планируют въехать к сентябрю — пожелаем им удачного воплощения проекта и легкого ремонта!
ya-dizayner.livejournal.com
П-44Т двушка-распашонка. Прихожая-коридор.
П-44Т двушка-распашонка. Прихожая-коридор. Здравствуйте, уважаемые вдолевщики!Наконец-то подходит к концу наш ремонт, длиною в год. Это первая наша квартира, первый ремонт в новостройке, первые ошибки и первые удачные решения) В общем, как-то только у нас оказалось
П-44Т двушка-распашонка. Прихожая-коридор.
Здравствуйте, уважаемые вдолевщики!
Наконец-то подходит к концу наш ремонт, длиною в год. Это первая наша квартира, первый ремонт в новостройке, первые ошибки и первые удачные решения) В общем, как-то только у нас оказалось готово хоть что-то, что я могу показать, я решила не сдерживать себя)) Этим что-то сегодня будет прихожно-коридорная зона в абсолютно типовой для Москвы и области серии дома — П-44Т. Квартира — двушка-распашонка, угловая. Планировки с размерами легко находятся в Интернете, но, на всякий случай, добавлю картинку.
Постараюсь, особо не грузить вас текстом, отмечу лишь то, что, на мой взгляд, после пары недель проживания оказалось удобно или не очень. Начнем с того, что в первую очередь предстает взору всяк сюда входящего)


Тумба справа — для обуви. Мне кажется, это лучшее решение на всем протяжении ремонта) Вот некоторые мои знакомые и родственники, пока я ждала эту тумбу и после того, как ее поставили, с заговорческим видом сообщали мне о существовании галошниц. Скажу честно, на мой взгляд, галошница — это самое бесполезное изобретение человечества. Как бы кроме босоножек, балеток, туфель и кед, у меня еще огромное количество такой обуви как сапоги, ботинки, полуботинки и полусапоги. Более того, сапог у меня больше, чем босоножек. Может, я не до конца понимаю, как пользоваться галошницей, но мне кажется, что этот атрибут пригоден только где-нибудь на Бали. Короче, это крайне удобная вещь, которую я сделала для себя так, как мне удобно и мне удобно!)
Дальше идем против часовой стрелки и поворачиваем в коридор, ведущий на кухню, справа — двери в санузлы.

Шкаф хорош тем, что в него спряталась стиральная машинка. Ванная в квартире настолько маленькая, что, как мне кажется, человека, ее спроектировавшего, надо найти и подвергнуть публичным пыткам)) В общем, как засунуть стиралку в ванную — я не представляла. А вот в шкаф в коридоре она поместилась прекрасно) Он ровно напротив ванной, что тоже удобно.
Какого-нибудь декора еще просит сюда моя душа, но пока ничего глаз не зацепило. Буду думать)
Движемся дальше, вид от кухни:
И от шкафа:
Вешалки, кстати — это аналог вешалок Шведской компании Swedeze (или как-то так), которые стоят баснословных денег. Но, как выяснилось, наши столярные мастерские могут сделать все) В том числе такие вот штуки в 5 раз дешевле, чем делают шведы)
Из неудобного на сегодняшний день: я забыла сделать проходной выключатель для бра у входной двери. Неудобно… Я люблю, когда бра включены, очень красивый нежный свет, но выходя из квартиры, приходится идти их выключать почти к комнате(
Ну и не рассчитала расстояние от вешалки до стены у входа. Не могу найти контейнера для обуви теперь, который бы встал туда. Пока стоит между двумя вешалками, но еще один точно бы не помешал.
Ламинат лежит по всей квартире без порогов. Пока, присутствие ламината в коридоре меня не смущает. Дальше посмотрим.
Ну и вид от комнаты:
Входная дверь — моя боль)
Я не знаю, что мной управляло, когда я ее выбрала( Но пока так. Думаю покрасить эти черные края белым… Отделку, те наличники, сделать не получается, так как там тумба стоит вплотную.
Провода, конечно, спрячутся, пока и тут еще не все доделано…
А картина закрывает щиток.
Ну и еще несколько фото

На все вопросы отвечу с удовольствием.
К критике отношусь здраво)
На советы из серии «а не перекрасить ли Вам стены в голубой/желтый/белый/…» или аналогичные могу реагировать злобно или вовсе не реагировать)
Спасибо за внимание)
Источник
www.globalsuntech.com
