Размеры кухонной мебели стандарт которого стоит придерживаться

Любая кухня должна быть многофункциональным и удобным помещением. Она предназначается для приготовления разных блюд, а нередко используется для их комфортного принятия. Поэтому здесь обычно устанавливается достаточно большое количество различных предметов интерьера. Чтобы получить действительно комфортное и оптимальное пространство, непременно учитывается размер помещения. Также изучаются размеры кухонной мебели стандарт, при учете данных параметров имеется возможность даже на ограниченном пространстве установить все необходимые конструкции для данного помещения.
Габариты кухонных гарнитуров
Выпускается большое количество мебели для кухни. Мебель для кухни может быть представлена в разных видах, но непременно в данном помещении устанавливается кухонный гарнитур. Основным назначением кухонного гарнитура выступает не только создание оптимального пространства для комфортной и простой готовки, но и украшение помещения, поэтому он должен быть привлекательным и интересным.
При выборе гарнитура непременно учитываются типовые размеры, позволяющие определить, каковы минимальные показатели того или иного предмета интерьера. Перед покупкой конструкции рекомендуется начертить специальный план помещения, чтобы предварительно наглядно увидеть, какая мебель будет располагаться в каждом участке комнаты.
Типичные гарнитуры, продающиеся в готовом виде, обладают длиной от 1.8 м до 2.6 м. Наиболее востребованными считаются модульные конструкции, состоящие из большого числа однотипных модулей. Они комбинируются друг с другом разными способами, что дает возможность каждому владельцу помещения создавать идеальную для него конструкцию. В собранном виде в таком гарнитуре имеются все необходимые элементы для качественного процесса готовки.
Кухонная мебель с размером стандартным состоит из нескольких элементов:
- напольные шкафчики, причем они могут быть прямыми или угловыми;
- навесные шкафы, прикрепляющиеся к стене помещения на оптимальном расстоянии не только от пола, но и от столешницы;
- выдвижные ящики, предназначенные для хранения мелких предметов, а они обычно имеются в нижних тумбах гарнитура;
- шкафы, оснащенные дверцами и полками, применяемыми для содержания разной посуды или продуктов питания.
На напольных тумбах непременно имеется столешница, выступающая в качестве основной рабочей зоны для приготовления разных продуктов. Кухня может содержать разное количество ящиков, тумб или иных элементов, так как наполнение полностью зависит от ее размеров, а также от пожеланий непосредственных пользователей помещения.
Длина гарнитура может быть разной, а также нередко выбирается угловая конструкция, предназначенная для небольших помещений. В ней обычно в углу устанавливается тумба, используемая для монтажа мойки.
Для самостоятельного расчета оптимальных размеров кухонного гарнитура могут использоваться стандартные размеры мебели, а также индивидуальные особенности помещения. Для этого создается план, и выполняются действия:
- определяется длина всех стен помещения, вдоль которых планируется монтировать разную мебель;
- решается, какой формой будет обладать кухонный гарнитур;
- определяется, какая техника будет применяться для работы на кухне, причем она может быть стандартной или встраиваемой;
- создается план помещения, на котором рисуется вся мебель и техника, для чего учитываются стандартные габариты данных предметов интерьера.
Если выбирается угловая кухня, то обычно ее размеры равны 1,5х2 м, так как такие габариты оптимальны для небольшого помещения. Однако если комната обладает значительной площадью, то непременно ее владельцы отходят от типовых размеров, чтобы обеспечить получение многофункционального и удобного для использования помещения.





Размеры шкафов
Шкафы являются непременными элементами на любой кухне. Они могут выступать в качестве части гарнитура или приобретаться отдельно. Желательно заранее проектировать полностью весь нижний ярус кухни, состоящий из этих шкафов, устанавливаемых на полу. Для этого создается общий план, причем при проектировании следует учитывать размер помещения.
Напольные
Для оптимального создания нижнего яруса кухни следует изучить рекомендации специалистов по размеру данных конструкций:
- учитываются первоначально габариты варочной зоны, так как стандартная высота нижних тумб должна быть равна высоте газовой или электрической плиты;
- глубина шкафов приравнивается к ширине плиты, так как не допускаются какие-либо выступы, создающие препятствия для оптимального и свободного передвижения по комнате;
- стандартной высотой для нижних ящиков гарнитура считается расстояние в 85 см, причем оно оптимально для людей, рост которых не превышает 170 см, а для более высоких людей желательно немного увеличивать данный параметр;
- высота кухонной столешницы рассчитывается не только в зависимости от роста человека, так как дополнительно учитывается, на какой высоте планируется прикреплять верхний ярус конструкции;
- желательно, чтобы столешница нависала над шкафами примерно на 5 см, а сзади должно оставляться расстояние в 10 см, так как за шкафами обычно прокладываются разные трубы и иные элементы коммуникационных сетей, поэтому не допускается, чтобы они зажимались;
- две фасадные дверцы ящиков по ширине должны быть примерно 90 см;
- полки внутри тумб могут обладать разными параметрами, поэтому размеры отсеков определяются для каждого пользователя индивидуально.
В процессе определения основных параметров нижнего яруса гарнитура учитывается, что человек, работающий на кухне, не должен поднимать руки выше пояса, а иначе будет создаваться дискомфорт в процессе использования помещения по назначению.



Навесные
План расположения всей мебели на кухне дополнительно должен содержать информацию о том, где будут находиться навесные шкафы, а также, как они будут фиксироваться. Для этого учитываются советы опытных дизайнеров:
- размеры шкафов являются одинаковыми по ширине с нижними тумбами;
- их глубина стандартно равняется 30 см, так как если они будут слишком сильно выступать вперед, то для человека, выполняющего какие-либо действия на кухне, будет создаваться опасность удариться головой о ящики;
- высоту следует подбирать индивидуально, так как она полностью зависит от того, каким ростом обладает непосредственный пользователь помещения, причем он без необходимости для вставания на табуретку должен дотягиваться до самой верхней полки настенного ящика;
- от столешницы, выступающей основной рабочей зоной, до навесного шкафа должно оставляться расстояние примерно в 45 см, так как если это расстояние будет меньше, то будут создаваться определенные сложности в процессе готовки пищи;
- если планируется устанавливать вытяжку над плитой, то между этими приборами непременно оставляется не меньше 70 см.
Таким образом, при изучении всех параметров мебельного гарнитура на кухне, можно обеспечить создание оптимальных условий в данном помещении для каждого пользователя. Для этого учитываются стандартные размеры кухонной мебели.



Особенности расположения столешницы
Разные проекты, описывающие создание оптимального пространства на кухне, непременно содержат данные о том, какими характеристиками и размерами должна обладать столешница. Она используется в качестве полноценной рабочей поверхности для приготовления пищи.
Чтобы пользоваться конструкцией на самом деле было удобно и комфортно каждому человеку, учитываются стандарты, применяемые для обычных кухонь:
- если люди отличаются невысоким ростом, не превышающим 150 см, то удобной для них будет столешница на уровне 75 см от пола;
- для людей со средним ростом, не превышающим 180 см, от пола до столешницы оставляется расстояние примерно в 90 см;
- в процессе определения этого параметра рекомендуется учитывать высоту имеющейся кухонной мойки, так как она и столешницы должны быть идентичными;
- наибольшими размерами должна обладать конструкция, предназначенная для нарезки разных продуктов, так как иначе все движения будут скованными и неудобными;
- при использовании встроенной варочной панели учитывается, что она по высоте должна быть немного ниже рабочей поверхности.
Чтобы снизить вероятность удара о верхние ящики гарнитура, предпочтительной глубиной столешницы считается 70 см.
Также в процессе выбора столешницы следует обращать внимание на материал, из которого она выполнена. Наиболее популярными считаются конструкции из ДСП, покрытие специальными влагостойкими средствами. Дополнительно они могут покрываться особой ламинированной пленкой, существенно повышающей их срок службы.

Кухонные столы
В процессе выбора оптимальных размеров различной кухонной мебели важно определиться, какие габариты нужны для обычных кухонных столов. Данные столы используются в качестве обеденной зоны, поэтому применяются для комфортного принятия пищи.
Для удобства их использования желательно учитывать определенные стандарты:
- оптимальные размеры обеденного стола определяются в зависимости от количества людей, применяющих его для непосредственного принятия пищи, причем на одного человека должно быть выделено около 40х60 см;
- в середине должна оставаться свободная зона, равная примерно 20 см;
- при учете таких габаритов стандартной столешница не может быть меньше, чем 80 см, а вот длина конструкции может быть разной, так как учитывается, сколько человек одновременно будет пользоваться ею по назначению.
Наиболее востребованными считаются прямоугольные столы, предназначенные для четырех человек, а их высота равна 75 см при ширине 80 см. Если помещение обладает слишком маленькими размерами, поэтому установить в нем комфортные столы и иные конструкции сложно, то для него оптимальным выбором считается раскладная конструкция, не занимающая много места в собранном виде.
Таким образом, кухонная мебель представлена в многочисленных видах. Ее объем может быть любым, так как учитывается размер помещения и количество людей, пользующихся им по назначению. Важно учитывать основные стандарты и нормы в процессе выбора и установки различной мебели. Это гарантирует удобство и комфорт применения всей комнаты, а также человек, осуществляющий процесс готовки, не будет испытывать какие-либо сложности в процессе перемещения по комнате или использования ее основных элементов.

Видео
mblx.ru
стандартные габариты кухонного гарнитура (высота, ширина)

Ученые выяснили, что хозяйка проводит на кухне 1117 дней, то есть почти 3 года своей жизни. От правильно подобранных размеров кухни зависит ее общее самочувствие, степень утомляемости, эмоциональный фон. Неудобное расположение кухонных гарнитуров, слишком большие габариты влияют на производительность труда, забирая лишнее время и силы на ненужные перемещения. Каковы же стандартные размеры кухни, и как выбрать оптимальный вариант в конкретном индивидуальном случае?

Размеры мебельного гарнитура должны обеспечивать максимально комфортное перемещение человека по комнате и удобство использования кухонной утвари
Особенности кухонных гарнитуров
Для кухни размер гарнитура играет очень важную роль. Во-первых, каждый сантиметр свободного пространства используется максимально рационально, если мебель точно вписывается в планировку помещения. Во-вторых, хозяйка чувствует себя комфортно, не дотягиваясь до высоких полок и не пытаясь достать нужный предмет из глубоких нижних ящиков. При разработке стандартных размеров кухонь ученые взяли за основу антропометрические характеристики людей европейской расы. К ним относятся рост и размеры человека, находящегося в покое и в движении. Также учитываются параметры необходимой бытовой техники. На основании этих показателей были выявлены стандартные размеры кухонного гарнитура.

Правила соблюдения размеров кухонных модулей и расстояний между ними

Сетка размеров кухонных фасадов (зеленым цветом выделены стандартные размеры)
Нижний ярус
- Высота нижнего ряда модулей от пола составляет 85 см для человека ростом до 170 см. Для высоких людей тумбы можно приподнять на 5–6 см. Такое расположение позволяет не поднимать руки во время работы выше пояса.
- Глубина кухонного гарнитура в среднем составляет 45 см, однако цифра может меняться в зависимости от размеров плиты. Важно, чтобы этот показатель совпадал и для мебели, и для техники, иначе плита будет выступать вперед, создавая определенные неудобства при готовке и при свободном перемещении по кухне.
- Ширина шкафов может варьироваться от 40 до 80 см, при этом размах открытых дверей должен быть не более 40–50 см. Для маленьких кухонь лучше подбирать мебель с выдвижными полками в целях экономии пространства.
- Типовые размеры кухонных столешниц – это толщина 3–5 мм и глубина 60 см. Чтобы не придавливать электропроводку, поверхность должна выступать над основным шкафом на 10 см сзади, а также на 5 см спереди.
Минимальные габариты рабочей зоны на кухне

Высота рабочей поверхности может быть разной, у некоторых моделей есть регулировка с помощью ножек
Верхний ярус
- Стандартная высота кухонного гарнитура – 50–90 см, однако при выборе гарнитура следует учитывать рост человека. Он должен дотягиваться рукой до верхней полки. При желании цифру можно увеличить на высоту табуретки или стула, на который может стать человек. Также рекомендуется принимать во внимание, что расстояние между рабочей поверхностью и нижним фасадом верхней полки в идеале составляет 45 см.
- Стандартная глубина навесных шкафов – 30 см, а ширина должна соответствовать ширине нижнего яруса.
- Вытяжку рекомендуется устанавливать в 80 см от поверхности газовой плиты и в 70 – от электрической. При превышении этих размеров эффективность работы агрегата значительно снизится, а понижение цифры грозит скорым выходом вытяжки из строя из-за перегорания фильтра.
- Общая ширина фасадных дверей должна составлять не более 90 см. Это касается и верхнего, и нижнего яруса.

Навесные шкафы располагаются с учетом роста жильцов

Типовые размеры верхних шкафчиков кухонного гарнитура
Компоновки кухонных гарнитуров
Кухонные гарнитуры следует выбирать в зависимости от планировки кухни (стандартной или нестандартной). Помещение квадратной или прямоугольной формы не вызывает особых проблем и позволяет приобрести практически любой гарнитур. При нестандартной планировке со скошенными углами, нишами для коммуникаций следует отдавать предпочтение изготовлению гарнитура под заказ. Фирмы-производители предоставляют свои услуги по проектированию и составлению дизайн-проекта кухни с учетом индивидуальных размеров. Схема создается опытным специалистом, который обычно выезжает на дом для замера и расчета будущего кухонного гарнитура. С размерами определяются в зависимости от местонахождения коммуникаций и габаритов помещения, чтобы максимально рационально использовать каждый сантиметр свободной площади. Далее проект отдают на утверждение заказчику, а уже после фирма приступает непосредственно к изготовлению мебели.

«Идеальный» размер кухонной дверцы – 720х450 мм, именно такой размер воспринимается большинством людей как наиболее эстетичный
Существуют следующие виды компоновки гарнитуров.
- Прямая кухня – наиболее бюджетный и универсальный вариант. Для стандартной планировки такая компоновка позволяет оборудовать комфортное и компактное рабочее место. Кухонный гарнитур располагается в один ряд у длинной стены, без углов и поворотов. Если его длина превышает 3,7 м, следует подумать о том, чтобы переставить холодильник напротив или сбоку для соблюдения принципа треугольника. В противном случае хозяйке придется постоянно перемещаться вдоль всей кухни, что не способствует эффективной работе. К преимуществам относится относительно низкая цена мебели, поскольку индивидуальное изготовление здесь неуместно. Для приобретения гарнитура достаточно знать высоту и длину стены. Для того, чтобы эргономично использовать пространство, желательно выбирать высокий гарнитур в 3 яруса от пола до потолка. Это позволит визуально увеличить размеры кухни, к тому же антресоли обеспечат дополнительным местом для хранения кухонной утвари.
- Угловая кухня пользуется наибольшим спросом, поскольку подходит для помещений любых габаритов: от маленькой хрущевки до квартиры-студии в новострое. Стандартный гарнитур в виде буквы Г или L создает максимально комфортные условия для хозяйки в процессе приготовления пищи, визуально объединив плиту, мойку и холодильник. Важно, чтобы расстояние между ними не превышало 1,5 м, иначе придется совершать лишние маневры, перемещаясь от одного предмета к другому. При разработке проекта следует обращать внимание на конфигурацию и глубину угла. Скошенный угол выглядит необычно и оригинально, однако полным людям будет сложно дотянуться до угловой мойки и до верхних полок. Также могут возникнуть проблемы при мытье стены. Прямой угол – оптимальный вариант, но и его глубина не должна быть слишком большой.
- G-образная кухня подходит для квадратных помещений. Гарнитур находится вдоль трех стен, а к одной из боковин примыкает перпендикулярно расположенная столешница, которая может служить и рабочей поверхностью и барной стойкой для быстрого перекуса. Такая компоновка распространена в кухнях, объединенных со столовой или гостиной, ведь стойка дополнительно выполняет функцию зонирования пространства.
- Островная компоновка предполагает наличие отдельно стоящего модуля в центре помещения со встроенной мойкой и варочной поверхностью. Его расстояние от пола должно равняться высоте основного гарнитура (85–90 см), однако стандарты могут быть изменены при желании заказчика или вследствие определенных технических нюансов. Например, при переносе мойки требуется обеспечить определенный наклон труб, чтобы не возникало засоров. Для этого остров приподнимают от пола на 10–20 см.

Основные типы планировки кухни

Угловая Г-образная планировка – наиболее распространенная, а в маленькой кухне просто незаменима
Советы по обустройству кухни
Кухонное помещение следует обустраивать в зависимости от размеров и планировки кухни, учитывая границы функциональных зон (рабочей и столовой). Маленькие кухни в хрущевках 4–7 кв. м нуждаются в индивидуальном подходе к планированию интерьера, ведь в площадь надо вместить необходимую бытовую технику и оставить место для обеденного стола. Дизайнеры рекомендуют предварительно составить список приборов, без которых невозможно обойтись. В первую очередь, это плита. Если в доме готовят не много, 4 конфорки можно заменить на 2 и развернуть поверхность вертикально. Это значительно увеличит площадь рабочей поверхности. Если есть возможность, холодильник рекомендуется вынести на балкон или в коридор либо заменить его на компактную мини-модель.
Для кухонь среднего размера в 10–12 кв. м подойдут угловые, линейные и G-образные гарнитуры. Чтобы интерьер выглядел стильно и современно, желательно подбирать мебель со встроенной бытовой техникой. Следует заранее уведомить проектировщиков о наличии посудомоечной или стиральной машины, чтобы изготовить для них специальные ниши. Зрительно сужает пространство вертикальное расположение шкафов от пола до потолка, в то время как горизонтальное – увеличивает. Зато потолок визуально кажется ниже чем он есть на самом деле.

Самое бюджетное решение – приобретение стандартного гарнитура с оптимальными для вашей кухни размерами

Выполнение гарнитура под заказ – наиболее дорогой вариант, зато в этом случае вы получите кухню, максимально удовлетворяющую вашим потребностям
Большие просторные кухни свыше 12 кв. м дают широкий простор для фантазии, ведь здесь можно выбрать любую компоновку: от островной до банальной линейной. Дизайнеры советуют выделить для рабочей зоны 4–7 кв. м для того, чтобы хозяйка чувствовала себя максимально комфортно. В случае с островной планировкой следует обращать внимание на то, чтобы обеспечить беспрепятственный доступ к модулю со всех сторон. Проход должен составлять не менее 1,2 м, иначе за поверхностью будет неудобно работать.
Размеры кухонного гарнитура в стандарте общепринятых значений не всегда соответствуют пожеланиям хозяйки по организации рабочего места. При выборе мебели лучше учитывать индивидуальные особенности помещения, которые помогут рационально использовать пространство и обеспечат комфортные условия для готовки на кухне.

Видео: как правильно произвести замеры вашей кухни.
prokuhni.info
Размеры кухонного гарнитура: как правильно рассчитать?
С Петровских времен определение Küche вошло в ряд русских слов, которое обозначало избу «поварню» при богатом домовладении в царской Руси. Подсобное помещение стали делить на функциональные зоны для хранения кухонного скарба и места готовки пищи. Если раньше пользовались примусами и русскими печами, то в наше время оборудование и набор домашней утвари для приготовления продуктов состоит из большого списка.
Современная кухня

Стандартные кухонные гарнитуры стоят дешевле сделанных по индивидуальным размерам, но выглядят не так привлекательно
Для любой хозяйки кухня – объект гордости и комфорта в доме. Ведь большую часть свободного времени женщина проводит именно на кухне. Готовка завтраков, обедов, ужинов и сбор всей семьи за чашечкой вечернего чая происходят на этом общем пространстве.

Красивая и уютная кухня-гостиная для квартиры-студии
Общая комната должна быть комфортным и функциональным пространством. За уют отвечает правильная схема и размеры отдельных элементов, размещенных на данной площади.

Нижние шкафы для кухни важно сделать максимально удобными и функциональными, так как в них хранится основная кухонная утварь
Иногда стандартные размеры кухонного гарнитура не соответствуют площади кухонной комнаты. В данном случае склоняются к индивидуальному заказу современной конструкции набора мебели и обустройству всей кухни.

Верхний ярус должен поместить всю посуду, до которой можно дотянутся рукой
Длительный опыт показал, что главным аспектом эргономики кухонного пространства является правило “рабочего треугольника” и его соблюдение. В современных жилищах размер кухонных помещений начинается от 6 кв. м. и больше, а высота потолков доходит до 3.5 метров. А значит и размеры мебельного гарнитура должны соответствовать точным размерам внутреннего помещения для приготовления еды в вашем доме или квартиры.

Эскиз угловой кухни с подробными замерами
Допустимое размещение рабочего треугольник

Зоны рабочего треугольника: рабочая поверхность, зона длительного хранения продуктов, чистая зона
Общие стандарты выбранных столов, шкафов и рабочего оборудования влияют на все рабочие процессы в момент приготовления пищи.

Возможные варианты расположения мебели с учетом рабочего треугольника
Полезный функционал рабочего треугольника (мойка, холодильник, плита) складывается из свободного доступа к этим предметам и безопасности их использования. Соответственно все должно быть «под рукой» во время работы.

Один из важных этапов при создании эскиза – грамотное размещение крупной бытовой техники
Предварительно выбираем оптимальный размер мебели и оборудования для обустройства кухонного помещения. Затем составляем четкий план размещения мебельного гарнитура, учитывая размеры шкафов для посуды и модульной сборки гарнитура.

Стандартный модульный набор для кухонного рабочего угла 2500*1500
Если вас заинтересовал модульный набор шкафов для домашней утвари, то это лучший вариант корпусной мебели в доме или коммунальной квартире, он подходит многим владельцам собственного жилья.

Эргономичное размещение функциональных зон
Настроение и цвет
Современная мебель легко вписывается в интерьер любого помещения. Стандартные размеры кухонной мебели позволяют установить гарнитуры общепринятых размеров от 1.8 до 2.6 метров. В этих сборках присутствуют все функции значимых компонентов на общей кухни в квартире или коттедже.

Бело-сиреневая кухня – красивый и современный вариант
Выбранный цвет фасадов и поверхностей столов соответствуют цветовой палитре интерьера. Столовый текстиль и его цветовая гамма подчеркивают душевное состояние проживающих.

Дизайн интерьера английской кухни в зеленых тонах
Подобранный стандарт размера кухонного набора мебели легко впишется в площадь комнатного пространства.Сочетание, контраст цвета шкафов и поверхностей в соответствии с цветовой гаммой интерьера дома, квартиры создадут полную картину выбранного стиля при оформлении дома. Дополнением послужит диодная подсветка модулей шкафов и полок гарнитура.

Пример чертежа столешницы и фото ее готового варианта
Все размеры мебельного набора должны соответствовать среднему росту владельца кухни и проживающих в квартире, доме. Это главный показатель успешной эксплуатации кухонного гарнитура в помещении.

Общую высоту кухонного оборудования можно условно разбить на четыре зоны: очень низкая, низкая, средняя, высокая

Зона доступности элементов кухонного оборудования
Допустимые размеры шкафов и поверхностей

Правила расчетов кухонной мебели нужно изучить до заказа кухни
Все должно работать на сохранение сил того человека, кто больше времени проводит за готовкой пищи. Общие габариты кухонной мебели должны соответствовать росту и размерным данным потребителя. Движения по кухни должны быть свободными, без напряжения и лишних шагов.

Высота нижнего ряда должна подбираться в зависимости от роста
Для среднего роста высота поверхности столешниц должна достигать 85 сантиметров. Учитываются индивидуальные способности «хозяина» кухонного помещения:
- манера передвижения в комнате,
- привычки в проведении процесса готовки,
- метод включения/выключения оборудования.

Расчет габаритов кухонных шкафчиков в зависимости от роста
Эти «мелочи» влияют на размеры верхнего и нижнего яруса мебельного гарнитура. Современная конструкция и размеры выбранной мебели по средним стандартам модулей подходят многим собственникам домов и владельцам дачных участков.

Глубина шкафчиков – это важный показатель, который обеспечивает полноценное хранение необходимых предметов на кухне

Стандарты ширины обычно применяются при производстве кухонной мебели
Допустимые размерные значения корпусных гарнитуров подбираются согласно общей площади дома/квартиры. Но остаются нормы установки стационарного оборудования, а именно плиты: 15- 20 сантиметров от окна и стены, до 50 см. от морозильного шкафа.

Удобное и функциональное расположение кухонной мебели
На кухне должна быть установлена вытяжка для фильтрации воздуха в комнате. Габариты очистительной техники должны соответствовать варочной поверхности плиты. Учитывая стандартные размеры гарнитуров очистительный прибор (вытяжка) имеет ширину до 60 сантиметров.

Размещение вытяжки над плитой
Малогабаритные кухни (хрущевские постройки, малосемейки) оснащены узкими плитами и в них устанавливают компактные вытяжки, а вот глубина этих приборов зависит от высоты потолков.

Правильный замер кухни и составление проекта – залог того, что кухонный гарнитур идеально впишется в кухню и не потребует переделок
Общие габариты подвижных модулей должны вписываться в размер площади кухонной комнаты. Соответствие высоты рабочей поверхности и дополнительных столов и тумбочек скажутся на производительности труда на общественной, индивидуальной кухне.

Не существует оптимальной высоты кухонного гарнитура, – для каждой хозяйки она будет своя
При размещении корпусной мебели и стандартного оборудования следует обратить внимание на все мелочи.

В кухнях, сделанных на заказ, высоту кухонного гарнитура можно установить разноуровневую или одноуровневую, что позволяет сделать гарнитур наиболее удобным
Для создания благоприятной рабочей атмосферы следует обратиться к профессионалам, потому как нарушения по размещению и обустройству кухонного набора мебели и стационарного оборудования могут подвергнуться административному контролю и штрафам за нарушение допусков при оборудовании кухонной комнаты.
Видео: Стандартные размеры кухонной мебели.
‘; blockSettingArray[7][«setting_type»] = 1; blockSettingArray[7][«element»] = «h3»; blockSettingArray[7][«elementPosition»] = 1; blockSettingArray[7][«elementPlace»] = 6; blockSettingArray[8] = []; blockSettingArray[8][«minSymbols»] = 0; blockSettingArray[8][«minHeaders»] = 0; blockSettingArray[8][«text»] = ‘
‘; blockSettingArray[8][«setting_type»] = 1; blockSettingArray[8][«element»] = «h3»; blockSettingArray[8][«elementPosition»] = 1; blockSettingArray[8][«elementPlace»] = 7; blockSettingArray[9] = []; blockSettingArray[9][«minSymbols»] = 0; blockSettingArray[9][«minHeaders»] = 0; blockSettingArray[9][«text»] = ‘
‘; blockSettingArray[9][«setting_type»] = 1; blockSettingArray[9][«element»] = «h3»; blockSettingArray[9][«elementPosition»] = 1; blockSettingArray[9][«elementPlace»] = 8; blockSettingArray[10] = []; blockSettingArray[10][«minSymbols»] = 0; blockSettingArray[10][«minHeaders»] = 0; blockSettingArray[10][«text»] = ‘
‘; blockSettingArray[10][«setting_type»] = 1; blockSettingArray[10][«element»] = «h3»; blockSettingArray[10][«elementPosition»] = 1; blockSettingArray[10][«elementPlace»] = 9; blockSettingArray[11] = []; blockSettingArray[11][«minSymbols»] = 0; blockSettingArray[11][«minHeaders»] = 0; blockSettingArray[11][«text»] = ‘
‘; blockSettingArray[11][«setting_type»] = 1; blockSettingArray[11][«element»] = «h3»; blockSettingArray[11][«elementPosition»] = 1; blockSettingArray[11][«elementPlace»] = 10; blockSettingArray[12] = []; blockSettingArray[12][«minSymbols»] = 0; blockSettingArray[12][«minHeaders»] = 0; blockSettingArray[12][«text»] = ‘
‘; blockSettingArray[12][«setting_type»] = 1; blockSettingArray[12][«element»] = «h3»; blockSettingArray[12][«elementPosition»] = 1; blockSettingArray[12][«elementPlace»] = 11; blockSettingArray[13] = []; blockSettingArray[13][«minSymbols»] = 0; blockSettingArray[13][«minHeaders»] = 0; blockSettingArray[13][«text»] = ‘
‘; blockSettingArray[13][«setting_type»] = 1; blockSettingArray[13][«element»] = «h3»; blockSettingArray[13][«elementPosition»] = 1; blockSettingArray[13][«elementPlace»] = 12; blockSettingArray[14] = []; blockSettingArray[14][«minSymbols»] = 0; blockSettingArray[14][«minHeaders»] = 0; blockSettingArray[14][«text»] = ‘
‘; blockSettingArray[14][«setting_type»] = 1; blockSettingArray[14][«element»] = «h4»; blockSettingArray[14][«elementPosition»] = 1; blockSettingArray[14][«elementPlace»] = 1; blockSettingArray[15] = []; blockSettingArray[15][«minSymbols»] = 0; blockSettingArray[15][«minHeaders»] = 0; blockSettingArray[15][«text»] = ‘
‘; blockSettingArray[15][«setting_type»] = 1; blockSettingArray[15][«element»] = «h4»; blockSettingArray[15][«elementPosition»] = 1; blockSettingArray[15][«elementPlace»] = 2; blockSettingArray[16] = []; blockSettingArray[16][«minSymbols»] = 0; blockSettingArray[16][«minHeaders»] = 0; blockSettingArray[16][«text»] = ‘
‘; blockSettingArray[16][«setting_type»] = 1; blockSettingArray[16][«element»] = «h4»; blockSettingArray[16][«elementPosition»] = 1; blockSettingArray[16][«elementPlace»] = 3; blockSettingArray[17] = []; blockSettingArray[17][«minSymbols»] = 0; blockSettingArray[17][«minHeaders»] = 0; blockSettingArray[17][«text»] = ‘
‘; blockSettingArray[17][«setting_type»] = 1; blockSettingArray[17][«element»] = «h4»; blockSettingArray[17][«elementPosition»] = 1; blockSettingArray[17][«elementPlace»] = 4; blockSettingArray[18] = []; blockSettingArray[18][«minSymbols»] = 0; blockSettingArray[18][«minHeaders»] = 0; blockSettingArray[18][«text»] = ‘
‘; blockSettingArray[18][«setting_type»] = 1; blockSettingArray[18][«element»] = «h4»; blockSettingArray[18][«elementPosition»] = 1; blockSettingArray[18][«elementPlace»] = 5; blockSettingArray[19] = []; blockSettingArray[19][«minSymbols»] = 0; blockSettingArray[19][«minHeaders»] = 0; blockSettingArray[19][«text»] = ‘
‘; blockSettingArray[19][«setting_type»] = 1; blockSettingArray[19][«element»] = «h4»; blockSettingArray[19][«elementPosition»] = 1; blockSettingArray[19][«elementPlace»] = 6; blockSettingArray[20] = []; blockSettingArray[20][«minSymbols»] = 0; blockSettingArray[20][«minHeaders»] = 0; blockSettingArray[20][«text»] = ‘
‘; blockSettingArray[20][«setting_type»] = 1; blockSettingArray[20][«element»] = «h2»; blockSettingArray[20][«elementPosition»] = 1; blockSettingArray[20][«elementPlace»] = 1; blockSettingArray[21] = []; blockSettingArray[21][«minSymbols»] = 0; blockSettingArray[21][«minHeaders»] = 0; blockSettingArray[21][«text»] = ‘
‘; blockSettingArray[21][«setting_type»] = 3; blockSettingArray[21][«element»] = «p»; blockSettingArray[21][«directElement»] = «#toc_container»; blockSettingArray[21][«elementPosition»] = 0; blockSettingArray[21][«elementPlace»] = 1; blockSettingArray[22] = []; blockSettingArray[22][«minSymbols»] = 0; blockSettingArray[22][«minHeaders»] = 0; blockSettingArray[22][«text»] = ‘
‘; blockSettingArray[22][«setting_type»] = 3; blockSettingArray[22][«element»] = «p»; blockSettingArray[22][«directElement»] = «social»; blockSettingArray[22][«elementPosition»] = 0; blockSettingArray[22][«elementPlace»] = 1; blockSettingArray[23] = []; blockSettingArray[23][«minSymbols»] = 0; blockSettingArray[23][«minHeaders»] = 0; blockSettingArray[23][«text»] = ‘
‘; blockSettingArray[23][«setting_type»] = 3; blockSettingArray[23][«element»] = «p»; blockSettingArray[23][«directElement»] = «social»; blockSettingArray[23][«elementPosition»] = 0; blockSettingArray[23][«elementPlace»] = 2; blockSettingArray[25] = []; blockSettingArray[25][«minSymbols»] = 0; blockSettingArray[25][«minHeaders»] = 0; blockSettingArray[25][«text»] = ‘
‘; blockSettingArray[25][«setting_type»] = 3; blockSettingArray[25][«element»] = «p»; blockSettingArray[25][«directElement»] = «#nav_menu-2»; blockSettingArray[25][«elementPosition»] = 1; blockSettingArray[25][«elementPlace»] = 1; blockSettingArray[26] = []; blockSettingArray[26][«minSymbols»] = 0; blockSettingArray[26][«minHeaders»] = 0; blockSettingArray[26][«text»] = ‘
‘; blockSettingArray[26][«setting_type»] = 3; blockSettingArray[26][«element»] = «p»; blockSettingArray[26][«directElement»] = «widget_construct»; blockSettingArray[26][«elementPosition»] = 1; blockSettingArray[26][«elementPlace»] = 1; blockSettingArray[27] = []; blockSettingArray[27][«minSymbols»] = 0; blockSettingArray[27][«minHeaders»] = 0; blockSettingArray[27][«text»] = ‘
‘; blockSettingArray[27][«setting_type»] = 1; blockSettingArray[27][«element»] = «h2»; blockSettingArray[27][«elementPosition»] = 1; blockSettingArray[27][«elementPlace»] = 1; var jsInputerLaunch = 15;
berkem.ru
Размеры кухонных шкафов и их стандарт, габариты модулей и расположение

Обустройство кухонного помещения дело не из легких, необходимо обустроить ее так, чтобы она получилась функциональной и не загроможденной. По этой причине во время покупки мебели для этого помещения стоит учитывать ее параметры. Именно поэтому стандартные размеры кухонных шкафов зачастую совпадают с параметрами кухонь типовых многоэтажек. Но лучше предварительно измерить площадь этой комнаты, высоту, длину, глубину, это поможет наиболее точно подобрать нужный гарнитур.
Размеры шкафов
Чтобы правильно рассчитать и выбрать размеры шкафов для кухни требуется знать некоторые особенности, а также какой размер кухонных шкафов стандарт существует. Если не приходилось заниматься этим делом, то конечно могут возникнуть определенные сложности. Для начала требуется сделать замеры помещения, рассчитать площадь кухни, измерить место, на которое планируется установка будущего кухонного гарнитура. Желательно предварительно разработать приблизительный проект будущей кухни. Но чтобы выполнить правильно и точно, обязательно необходимо понимать, что такое высота, ширина, длина, а также правильное размещение модульной мебели в пространстве.
Многие прибегают к помощи профессионалов, потому что знающие специалисты в этом деле смогут все сделать так, как нужно. Профессионал сам приедет домой, снимет необходимые мерки и подберет походящие конструкции. Однако даже в этих случаях потребуется знать некоторые правила. Человек со стороны может не учесть важные нюансы – предпочтения к мебели (встроенная или модульная), рост хозяйки, стиль будущего дизайна кухонного помещения и многое другое. По этой причине обязательно нужно предварительно изучить правила расчетов кухонной мебели.

Нижний ряд
При установке шкафов на кухни стоит знать параметры нижнего ряда. Совсем не имеет значения стиль кухонного помещения – классика, лофт или хай-тек.
Стандартные размеры нижнего ряда кухни обычно бывают такими:
- стандартная высота (общая) должна быть 85 см;
- размер высоты цоколя или высота нижних шкафов кухни от пола — 10 см;
- глубина шкафов должна составлять не меньше 46 см. Если имеются выдвижные ящики, то сам ящик обычно забирает 45 см и 1 остается для свободного места до поверхности задней стенки модульной конструкции. Наиболее востребованными считаются размеры глубины от 56 до 58 см;
- стандартная глубина или ширина столешницы может иметь три размера – 60 см, 90 см и 1 метр и 20 см;
- размер толщины столешницы – 28, 30 и 40 мм. Этот параметр определяет прочность и стоимость мебели;
- уровень нависания столешницы – 30-50 мм с передней стороны и 50-100 мм с задней части шкафов. Если учитывать этот запас, то можно будет в дальнейшем нормально разместить электрическую проводку и трубы, которые проходят вдоль стеновой поверхности;
- размер ширины фасадов составляет от 30 до 40 см. Не стоит устанавливать мебель с размером ширины фасада больше 90 см, потому что это вызовет сильные неудобства во время эксплуатации мебели;
- показатели высоты в промежутках внутренних полок. Эти параметры обычно составляют от 20 до 40 сантиметров. Но они не считаются обязательными, каждый потребитель может подбирать оптимальные размеры по желанию.
Параметры имеют тесную взаимосвязь, по этой причине важно строго соблюдать размеры, это поможет сохранить стиль и функциональность кухонного помещения. Высоту нижних кухонных шкафов можно скорректировать, к примеру, при помощи выкручивающих ножек. Если имеется высокий шкаф, то у него можно убрать ножки, а если низкий, то, наоборот, для прибавления высоты можно его дополнить ножками. Но не забывайте про функциональность, важно чтобы модульная кухня выглядела органично. А вот размер шкафчиков зависит от столешницы, от ее параметров.
Стоит учитывать размер столешницы. Востребованными считаются столешницы от 60 см. Глубина кухонных шкафов может быть от 46 см. Не стоит выполнять столешницу меньше этого размера, потому что в кухонном помещении требуется большая и удобна рабочая поверхность, на которой можно будет производить необходимые работы по приготовлению еды. При этом размере поверхности можно будет с легкостью подобрать шкафы под мойку, газовую плиту, под встраиваемую технику.
Столешницы с размером от 90 см идеально подходят для больших кухонных помещений. Глубина нижних шкафчиков обычно составляет от 76 см. А вот столешницы с размером от 120 см подходят для профессиональных кухонь или для кухонных помещений в стиле лофт. При помощи этих больших поверхностей можно создавать остров в комнате.





Верхние модули
Рассматривая размеры навесных кухонных шкафов, также стоит рассмотреть параметры и верхних модулей. Это позволит намного облегчить задачу выбора, а также определить, на какой высоте вешать кухонные шкафы. Для обеспечения функциональности и полноценного хранения на кухне посуды, продуктов и другой утвари стоит внимательно ознакомиться с правилами расчета размеров верхних модулей. Это поможет понять, на какой высоте вешаются кухонные шкафы.
Навесные верхние шкафы обычно имеют размеры:
- высота верхних шкафов должна составлять от 790 до 900 мм;
- стандартная глубина верхних шкафов составляет от 300 мм. Если же на кухне имеется широкая рабочая поверхность, то тогда глубина будет равна ее половине;
- показатель расстояния от рабочей области (зона фартука) составляет не меньше 450 мм. Но этот показатель можно для удобства подкорректировать под параметры роста, он может достигать 55-60 см;
- размер ширины фасадов с высокими верхними шкафами должен совпадать с параметрами нижнего ряда;
- регулировка расстояния до техники зависит от ее вида – до кухонной вытяжки оно обычно составляет примерно 70-75 см для электрической плиты, а для газовой – 75-80 см;
- допустимая высота навесных шкафов от пола до потолка должна быть 210 см. Высокий шкаф может быть больше, два метра 50 см.
Кухни с размерами, которые указаны выше, являются наиболее оптимальными для кухонных помещений типовых многоэтажек. Главные параметры, которые обязательно нужно учитывать – это размеры расстояния от нижнего ряда до верхних полок, они должны быть не меньше 450 мм. Это поможет с максимальным удобством разместить все необходимую технику, посуду и кухонную утварь.




Угловые модели
В это помещение часто устанавливаются угловые модели для хранения на кухни посуды, утвари, продуктов. Но чтобы ее монтаж был выполнен успешно, стоит внимательно рассмотреть параметры этого вида мебели. Таблица ниже показывает точную схему расчетов угловых моделей.
| Наименование | Размер (в сантиметрах) |
| Высота гарнитура от пола и до поверхности потолка должны быть стандартными. | От 180 до 250, шкаф колонка будет самой высочайшей зоной гарнитура (почти 250). |
| Глубина верхних и нижних шкафов. | 30-40 и 46-50 |
| Ширина фасадов. Этот параметр обычно стандартный, как и у всех видов кухонь. | От 30 до 40 |
| Параметры толщины столешницы. Желательно выбирать изделия с большой толщиной, особенно под мойку на кухню. | 2, 3, 4 |
| Размер расстояния от рабочей поверхности можно корректировать под себя. | Он должен быть не меньше 46. |
Но многие профессионалы рекомендуют подбирать размеры угловой кухни по своему желанию, главное чтобы она была удобной. Современные модели разных производителей, к примеру, белорусские кухни ЗОВ, лофт, обеспечивают максимальное удобство и функциональность.





Как правильно выбрать размер
Стандарт размеров шкафов на кухне обычно рассчитан под типовые кухонные помещения. При выборе мебели, обязательно нужно предварительно измерить свою кухню, важно чтобы гарнитур можно было точно встроить в комнату. Но при этом изделия не должны мешать, вызывать неудобства. Если будет установлена колонка для кухни, то пенал не должен загромождать помещение и вписываться под размеры высоты. Конечно, если мебель подбирается для кухни лофт, то особых трудностей и ограничений при выборе не возникает, а вот для небольшой комнаты подобрать мебельные изделия намного сложнее.
Высота
Оптимальная высота от пола должна быть средней от 180 до 250 см. Высота нижнего ряда должна подбираться в зависимости от роста. В среднем она должна быть около 80-85 см. При выборе оцените габариты изделий, они должна подходить под ваш рост. Если повесить навесные шкафы выше установленного уровня, то могут возникнуть некоторые трудности. Важно чтобы между столешницей нижнего ряда и верхними шкафами оставался промежуток 46-50 см.
Общая высота кухонных шкафов не должна превышать 250 см, иначе гарнитур просто не войдет в комнату.



Глубина
Глубина шкафчиков – это важный показатель, который обеспечивает полноценное хранение необходимых предметов на кухни. Глубина стандартных изделий должна быть 30-40 см, глубоких 50 см. При желании можно использовать кухонный шкаф с большей глубиной, главное чтобы он не загромождал комнату.



Ширина
Стандарты ширины обычно применяются при производстве кухонной мебели, по этой причине с расчетом этого параметра не возникает особых сложностей. Но все-таки стоит предварительно ознакомиться с подробной деталировкой:
- размер ширины одностворчатых конструкций составляет от 300 до 500 мм;
- показатель ширина двустворчатых изделий варьируется от 600 до 1000 мм;
- по ширине угловые конструкции обычно производятся от 900 мм. А вот ширина фасадов рассчитывается согласно геометрической формуле равнобедренных треугольников – она равна 130 сантиметрам;
- параметры ширины верхних шкафов зависят от нижнего ряда – в среднем они составляют от 30 до 100 см;
- ширина фасадов верхних угловых конструкции равна 85 см.




Правило рабочего треугольника
Есть несколько идей, при помощи которых можно расставить все конструкции, мойку, плиту, а также технику, так, чтобы она обеспечивала функциональность и максимальное удобство. Обычно для кухни во многих магазинах предоставлены шкафы стандартных размеров. Но если их расставить правильно, а также использовать некоторые идеи хранения в шкафах кухонной посуды, продуктов, то даже небольшая комната будет выглядеть намного выигрышно, и визуально станет шире. Но стоит соблюдать некоторые нюансы, иначе получится захламленная кухня с нагромождением всякой мебели.
Важно при обустройстве кухонного помещения, независимо от его дизайна (лофт, хай-тек, классика), учитывать предпочтения хозяйки. В первую очередь особое внимание нужно уделить рабочей зоне, потому что именно в этом месте женщине приходится проводить большую часть времени. Вешать шкафы следует с учетом роста хозяйки, но не стоит забывать и об ее предпочтениях. Расстановка модулей должна быть гармоничной и удобной.
Стоит выделить несколько зон рабочего треугольника:
- первая самая главная зона – рабочая поверхность. К ней может относиться газовая плита, столешница, микроволновая печь;
- вторая кухонная зона длительного хранения продуктов – морозильная камера, холодильник;
- чистая зона — в этой зоне моется посуда, овощи. В эту область устанавливается мойка, посудомоечная машина.
Если рассматривать многочисленные чертежи и фото становится ясно, что расстояние между зонами не должно быть больше двух длин вытянутой руки. От холодильника приходится сразу идти к мойке, чтобы ополоснуть продукты. После этого вы подходите к рабочей поверхности, чтобы приготовить продукты. После окончания работ снова приходится идти к холодильнику, чтобы убрать оставшиеся продукты или остывшее блюдо. При приготовлении часто приходится подходить к шкафам, в которых хранятся специи, приправы и другие необходимые продукты. По этой причине во время установки, а также при подвешивании мебели стоит рассчитать все правильно, чтобы каждый предмет располагался рядом, но при этом не нарушал функциональность этого помещения.
Подвесы, стеллажи и другие верхние конструкции должны находиться по высоте и рядом, чтобы у хозяйки всегда все было под рукой.


Видео
Чертежи










mblx.ru
Размеры кухонной мебели стандартные
Дизайнеры, которые обустраивают небольшие городские квартиры, ставят перед собой задачу сделать помещения стильными и максимально функциональными. В большей степени это касается кухонь, где всё должно быть максимально продумано и удобно. Уже давно выведена формула, помогающая рассчитать стандартные размеры кухни и кухонной мебели. Оптимальное расстояние от варочной поверхности до холодильника, или от холодильника до мойки, позволят хозяйки сэкономить время и силы при приготовлении пищи. Вот о стандартных размерах кухонной мебели мы и поговорим сегодня.
Правильные размеры кухонного гарнитура есть, но не всегда они нужны
Почему так важны стандарты
Исследователи и дизайнеры интерьера выяснили, что при неправильной организации рабочего пространства женщина испытывает дискомфорт и значительные физические нагрузки, готовя еду на кухне хотя бы два раза в день. Например, женщине требуется несколько раз нагнуться к нижним ящикам, чтобы достать нужную посуду, или же наоборот карабкаться к верхним полкам. Из-за неправильно организованного рабочего пространства многие хозяйки проводят на кухне по полтора-два часа ежедневно. Но если грамотно подойти к выбору мебели и ее расстановке, это время сокращается в время в три раза.

При проектировании кухонных гарнитуров учитывается средний рост человека. Однако если мебель делается на заказ, то лучше изготавливать мебель под конкретного человека, который чаще всего находится на кухне. При этом должны учитывать все нюансы – высота столов, габариты мебели, размеры кухонной утвари.
Типовые кухни изготавливаются на основе тех параметров, которые получили ученые. Все данные европейской расы усреднялись и вычислялись стандартные значения. Для очень высокого или наоборот низкого человека использование такой кухни будет не очень удобным, несмотря на то, что многие кухонные гарнитуры регулируются по высоте. Но это лишь редкие исключения.
Размеры типовой кухни
Размеры типовой кухни полезно знать даже если у вас нестандартная кухня
Сегодня при создании кухонной мебели учитываются не только размеры человека в состоянии покоя, но и в движении. Габариты кухонной мебели – это цифры, которые рассчитывались не одно десятилетие:
- Если кухонная тумба рассчитана на две двери, то ее общая длина не должна быть больше 90 сантиметров. Полки, находящие внутри шкафа, регулируются в зависимости от индивидуальных предпочтений хозяйки.
- Высота тумб – 85 сантиметров. В этот показатель входит и столешница. Данная высота считается идеальной для человека, чей рост не превышает 170 сантиметров. Однако, при необходимости тумбы приподнимаются, но на пять-шесть сантиметров.
- Столешница на кухонных тумбах нависает на пять сантиметров спереди и на десять сзади. Делается это с той целью, чтобы не придавливать мебелью проводку, которая проходит за гарнитуром.
- Глубина шкафов кухни рассчитывается исходя из размером варочной поверхности. Если же варочная поверхность окажется больше, то это создаст неудобства при работе и испортит внешний вид кухни.

Совет: Отрегулируйте высоту рабочей поверхности так, чтобы при приготовлении пищи руки хозяйки не поднимались выше пояса.
Проектирование нижнего яруса кухни
Главная часть кухонного гарнитура – это нижний ярус. Нижние шкафы для кухни важно сделать максимально удобными и функциональными, так как в них хранится основная кухонная утварь. Габаритные размеры нижнего яруса исходя и размеров варочной поверхности и необходимого пространства для приготовления еды.
Нижний ярус должен быть глубоким, чтобы все влезло
Выбирая кухонный гарнитур учитывайте такие рекомендации:
- Отдавать предпочтение лучше тумбам с выдвижными ящиками, чем с полками. Вам не нужно каждый раз наклоняться к полкам и искать необходимую вам вещь. Выдвинув ящик, вы сразу увидите, что в нем находится. В дорогих моделях кухонной мебели ящики выдвигаются полностью, а не на половину. Качественная фурнитура позволяет открывать ящики легким движением руки без особых усилий. Подобного рода решение значительно упростит жизнь женщине.
- Чтобы сэкономить средства, закажите гарнитур с обычными дверцами, но с ящиками вместо полок. Таким образом вы получите недорогую, но в тоже время функциональную кухню.
- В том случае, если вам нужно место для мусорного ящика или другого крупного габаритного предмета, но вы не хотите портить общую дизайнерскую задумку, сделайте ящики обманки. Внешне фасад выглядит как три выдвижных шкафчика, но на деле это один глубокий ящик.
![красивый гарнитур]()
- Оригинальное решение – три или четыре ящика в одном. За одним стандартным фасадом скрываются ящики поменьше. Таким образом это не портит общую стилистическую задумку и решает проблемы с хранением.
- Не отказывайтесь от лотков и разделителей внутри ящиков для хранения посуды. Подобные модули помогут держать порядок на кухне и сэкономят место.
- Не забывайте об оригинальности. Половникам и лопаткам необязательно висеть на стене, уберите их в специально оборудованный ящик на нижнем ярусе.
- Поднимете кухонную технику повыше. Со встроенной бытовой техникой осуществить это достаточно просто.
- Узкие шкафчики. В таких шкафчиках можно хранить бутылочки с соусами и баночки со специями.
Проектирование верхнего яруса кухни
Верхний ярус должен поместить всю посуду
Стандартные размеры кухонной мебели касаются не только нижних тумб, но и верхних частей. При проектировании или покупке важно учитывать рекомендованные стандартные размеры:
- Глубина шкафов не более 30 сантиметров. Этого достаточно для размещения на полках продуктов или посуды, но при этом шкаф не мешает хозяйке.
- Высота расположения верхней полки зависит от роста владельца кухни. Он должен свободно дотягиваться до нее рукой. Если габариты кухни позволяют, то увеличьте высоту ящиков на высоту невысокой табуретки или подставку.
- Расстояние до верхнего модуля от столешницы – не более 45 сантиметров. При этом важно учесть индивидуальные предпочтения.
- Высота размещения вытяжки зависит от типа поверхности для варки. Для электрических плит высота составляет 70 сантиметров, а 80 сантиметров – для газовых.
- Ширина кухонного гарнитура – это один параметр для верхнего и нижнего яруса.
Размещение функциональных зон
Эргономичность важна для каждой хозяйки
Заранее подготовьте чертежи столов с размерами основных кухонных зон – местом для приготовления еды, мытья посуды, варочной поверхностью. Не забудьте о секции для посуды и продуктов. Оптимальное расстояние зон друг от друга – не более 2,5 метров. Вот шесть вариантов размещения рабочих зон:
- Островной. В таком случае в центре размещается тумба с плитой и поверхностью для приготовления пищи. Напротив располагается мойка, в углу — холодильник. Посередине комнаты иногда размещают мойку, но такой вариант наиболее затратный.
- Полуостровной. Данный способ используется для большого помещения, где важно разделить кухню на две части. В качестве разделителя выступает барная стойка, там же размещается мойка или варочная поверхность.
![кухня]()
- Однорядный. Если на кухне всего один ряд из мебели, то наилучший порядок рабочих зон – это холодильник, мойка, варочная поверхность. Вы берете продукты, моете их и готовите.
- Двухрядный. В маленьких кухнях мебель обычно размещается в два ряда. В таком случае одна рабочая зона выносится на противоположную сторону. Однако не рекомендуется устанавливать варочную поверхность и плиту на одной полосе.
- П-образный. Посередине размещается мойка, а в двух противоположных от друг друга сторонах – холодильник и плита. Такой вариант удобен, так как рабочие зоны попадают в равнобедренный треугольник.
- Г-образный. Такая планировка позволяет сделать полностью изолированный рабочий треугольник.

Размеры мебели для кухни будут соответствовать принятым стандартам и индивидуальным предпочтениям владельца, если кухонный гарнитур изготавливается на заказ. При этом у вас появится шанс отказаться от стереотипов и сделать кухню предельно функциональной. Установка дополнительных вращающихся стоек для рюмок и фужеров, узкие шкафчики – такие детали сэкономят время, потраченное на приготовление пищи, и пространство, что подходит для маленьких кухонь.
ПОСМОТРЕТЬ ВИДЕО
Чтобы получить кухню своей мечты, лучше обратиться за помощью к профессиональному дизайнеру, которого вы найдете в мебельных салонах. Он займётся проработкой внешнего вида будущей кухни и позаботится о функциональности. Размеры мебели на кухню при этом будут учитывать исходя из габаритов помещения и особенностей планировки. Прежде чем обращаться к дизайнеру, снимите все необходимые замеры. Стоит учитывать, что кухня на заказ обойдётся дороже стандартного кухонного гарнитура, поэтому важно грамотно распределить денежные ресурсы.
obzorkuhni.ru
Размеры кухонной мебели: стандарт
Типовые размеры кухонной мебели хороши тем, что при крепком каркасе вы в любой момент обновите внешний вид гарнитура за счет простой смены фасадов. Это гораздо дешевле, чем тратиться на покупку новых шкафов. Да и в случае каких-либо повреждений найти замену для пострадавшей дверцы будет намного проще.

Еще один плюс стандартизации – размерная линейка встраиваемой бытовой техники и аксессуаров. Если столешница будет опущена ниже нормы, то духовка может просто не поместиться в нужную тумбочку.
Кто и как определяет стандарт размеров
Еще в 20-е годы прошлого столетия советские инженеры собрали статистические данные о средних антропологических размерах европейцев, проживающих в СССР. Измеряли людей разного роста, телосложения и возраста в различных положениях.

- Стоя с опущенными и поднятыми руками.
- Стоя с вытянутыми вперед и в стороны руками.
- В наклонном положении (имитируя движение, характерное для желающих что-либо достать с низкой полки или ящика).
- На присядках.
- Сидя, держа руки в различных положениях.
При этом учитывались мышечные движения, характерные для выполнения того или иного вида работ. Например, резать продукты и раскатывать тесто удобнее на столах разной высоты.
Среднестатистический человек оказался ростом 170 см, поэтому вся типовая мебель изготовлена под него. Если ваш рост существенно выше или ниже, то вам будет неудобно на стандартной кухне. А расплачиваться за типовой проект придется болью в спине и руках.
Кроме антропологических факторов, влияющих на высоту и ширину шкафов, также свою роль играют принятые большинством производителей форматы листового материала. При его раскройке большая часть площади должна использоваться в дело, оставляя минимальное количество обрезков. Размерный шаг у отечественных материалов равен 0.5-1 м, а у зарубежных – 0.6-1.2 м. Соответственно, и габариты выкраиваемых деталей под рациональное использование листа будут немного отличаться.
Стандартная высота шкафов
Высота рабочей поверхности должна быть на 5 см ниже согнутой в локте руки. Это необходимо, чтобы при нарезке продуктов правильно работали мышцы. В противном случае у вас будут уставать кисти или болеть спина. При среднестатистическом росте комфортной будет высота в 85 см. Если ваш рост выше или ниже 170 см, то нужно позаботиться о том, чтобы ваши руки принимали правильное положение при работе.

Для этого сегодня мебель устанавливается на регулируемые ножки. К тому же есть возможность использовать для столешницы материал различной высоты. Таким образом, при стандартных фасадах у вас будет гарнитур, в который легко можно встроить современную бытовую технику. А ваше тело будет комфортно себя чувствовать во время работы.
Иногда встречается ситуация, когда женщина меньше среднего роста, а мужчина выше. Например, у хозяйки рост 150 см, а у ее мужа – 190 см. Что делать? Ведь в этом случае неудобно будет обоим.
Выход может состоять в том, чтобы сделать разновысокие участки. Например, для женщины выделить рабочую поверхность, а для мужчины рядом поставить барную стойку. В качестве варианта можно рассматривать также толстую разделочную доску, которая компенсирует разницу в росте домочадцев.

Навесные шкафы устанавливаются на высоте около 40-60 см от столешницы. Это оптимальная высота для первой полки. Вы можете легко увидеть, что на ней находится, и свободно перемещать на ней предметы, не вставая на табурет и не поднимая руки выше головы.
Высота навесного шкафа зависит от количества полок. Как правило, активно пользуются преимущественно нижней. На второй хранятся предметы, которые реже достаются. А на третьей находит приют все то, что требуется раз в пятилетку, и за чем лень тянуться каждый раз, поднимаясь на табурет-стремянку.
Поэтому высота верхнего шкафа может быть от 30 до 90 см. Среднестатистический показатель равен 50-72-90 см.

Глубина шкафов
Глубина навесного шкафа строго вымерена. Он должен давать достаточно свободного места для того, чтобы было удобно работать на рабочей поверхности. Поэтому его редко делают глубже 30 см. Хотя, на западных моделях встречаются модели с глубиной в 40 см. Но в таких гарнитурах и столешницы изготавливаются шириной в 80-90 см.

Нижние элементы с одной стороны предоставляют достаточно места для разделки продуктов, а с другой – не допускают «слепых пятен», которые неудобно использовать, т.к. последние будут обязательно захламляться.

Стандартная ширина столешницы в современном гарнитура равна 60 см. Реже – 40 см. Узкие элементы используются в мини-кухнях.
Верхний свес составляет 3-5 см. Это нужно для того, чтобы обеспечить правильное положение спины и ног во время работы. В противном случае вам придется постоянно наклоняться вперед, а это было бы утомительно.
За гарнитуром по стене зачастую проходят различные трубы: подвод горячей/холодной воды, отвод канализации, газопровод и электрика. Чтобы дать возможность коммуникациям свободно подходить к нужным участкам, задний свес также равен 5 см. А внизу на уровне плинтуса короб шкафа может отстоять от стены на 10-15 см, чтобы канализационные трубы свободно могли расположиться за мебелью.
Итого, из 60 см в реальности для системы хранения остается в лучшем случае 50.
Ширина фасадов
Общепринятый градиент ширины фасадов равен 15 см. Это ширина самой узкой карго, выпускаемого в промышленном варианте. Далее просто умножаем 15 на нужное число и получаем ширину шкафа.
Вместе с тем не рекомендуется делать нижний модуль шире 90 см. Это уменьшает прочность конструкции и требует внутренней разбивки корпуса на более мелкие отсеки. Иначе столешница просто просядет по центру.
Еще один аргумент в пользу подобного ограничения нашелся у антропологов. Размах рук при открывании нижнего шкафа соответствует именно этому размеру. Делать шире не стоит, т.к. пользователю будет неудобно пользоваться гарнитуром.

Однако, как уже было оговорено раньше, макет раскроя накладывает свои правила на размеры фасадов. Поэтому вы можете увидеть детали шириной в 40, 50 и 80 см. Они не делятся на 15, зато отлично вписываются в типовые гарнитуры и помогают экономить материал при изготовлении мебели.
Габариты кухонных столов
За столом работа может выполнятся как стоя, так и сидя. При этом общепринятая высота в 75 см позволяет раскатывать тугое тесто «от плеча», задействуя массу корпуса. Это гораздо легче, чем при движении «от локтя», когда приходится перенапрягать мышцы рук.

При принятии пищи и работе в положении сидя эта высота считается оптимальной, т.к. при этом руки свободно лежат на поверхности и находятся в естественном согнутом положении, когда предплечья находятся на одном уровне с локтевым суставом или чуть ниже его.
Как вы видите, все стандарты для корпусной кухонной мебели разработаны с учетом размеров тела человека. При этом современные гарнитуры позволяют регулировать высоту рабочей поверхности и подстраивать ее под конкретного пользователя.
Приобретая стандартные модули, вы всегда можете поменять внешний вид кухни, просто установив новые фасады. Главное – собрать крепкий каркас, который способен прослужить 25-50 лет без ремонта.
Werri
ikuch.ru
от общего к частному – Сделаем мебель сами
Здравствуйте друзья.
Сегодня мы с вами займемся рассмотрением такого, очень важного вопроса, как расчет размеров кухни.
Для примера, возьмем самый простой вариант кухонного гарнитура – прямой.
Всегда нужно начинать расчет с определения общих, габаритных размеров.
После чего, переходить на размеры модулей, и, в конце – к деталировке. То есть, идти «от большего к меньшему».
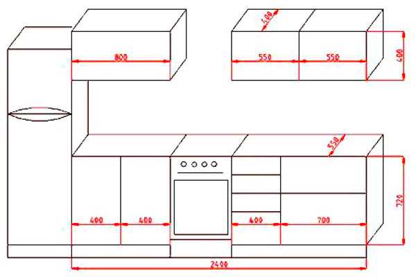
Итак, сначала начнем считать гарнитур по ширине.
Габаритная ширина (по столешнице, расположенной от стенки до стенки помещения) равна 2600мм.
Дадим зазоры по низу (от габаритного размера) по 15мм с каждой стороны. То есть, общая ширина нижних модулей получится равной:
2600-15-15=2570(мм)
Дальше, крайний (правый) модуль должен быть под мойку. Предположив, что мойка будет круглая (500мм), сделаем ширину этого модуля 600мм.
Так как варочную поверхность не рекомендуется устанавливать рядом с мойкой, сделаем рядом с коробом под мойку, рабочий короб, шириной 500мм, а после него, модуль такой же ширины по варочную поверхность (она у нас будет двухкомфорочная, а если бы была четырехкомфорочная, то ширина короба под нее была бы равна 600мм).
Теперь важный момент!
Нам нужно «подогнать» верхние модули под нижние так, чтобы верхний короб под вытяжку был точно над коробом под варочную поверхность. На данный момент, общее расстояние от правой стены до начала короба под варочную равно:
15+600+500=1115 (мм)
Дадим зазоры по верху такие же, как и по низу (по 15мм на сторону), соответственно, общая ширина верха будет такая же, как и низа (2570мм).
Но, «подгоняя» короба друг к другу, нужно еще учесть то, что в зоне мойки, должен быть короб (чаще всего, верхний) по сушилку.
В данном случае, его можно спроектировать прямо над мойкой, а можно его спроектировать вторым по счету (справа налево).
По этому, мы спроектируем первый верхний короб шириной 500мм под сушилку, а второй – рабочий, с полками. Мы должны выйти на тот же общий размер, что и по низу (от стены до короба под варочную):
15+500+600=1115 (мм)
Ширина короба под вытяжку будет так же равна 500мм.
На данном этапе, половина кухни по ширине у нас уже спроектирована правильно.
На рисунке специально двумя вертикальными прямыми показана соосность двух, рассматриваемых нами коробов.
Теперь спроектируем вторую половину.
Предположим, слева вверху, расположен котел, который нужно закрыть коробом, ширина которого должна быть 530мм. Значит, между ним и спроектированным нами верхом, «влезет» еще один короб, шириной 440мм:
2570-500-600-500-530=440 (мм).
Низ можно спроектировать еще проще:
Можно сделать один короб на три отдела, ширина которого будет равна:
2570-600-500-500=970 (мм).
Вот мы и рассчитали размеры кухни по ширине.
Теперь давайте займемся высотой.
Допустим, общая высота гарнитура (с учетом всех зазоров) должна быть 2300мм.
Спроектировав нижнюю базу высотой 850мм, и дав отступ верха от низа в 600мм, верхняя база так же получится 850мм.
Высоту короба под вытяжку можно рассчитать, зная, что расстояние от вытяжки до плиты должно быть 700-800мм. По этому, если расстояние между верхней и нижней базами равно 600мм, то расстояние от нижней базы до вытяжки (габариты вытяжки не берем в расчет) будет равно 800мм.
Значит, высота этого короба будет равна:
850-200=650 (мм)
Само собой разумеющиеся, что низ (850мм) состоит из высоты короба, отступа его от пола (или, высоты опор, равных в данном случае 100мм), и толщины столешницы.
Сразу же можно просчитать ширину:
Верх – стандартный, 300мм, низ отстоит от стены на 100мм (под стандартной столешницей 600мм). Глубина нижних коробов, в это случае, зависит только от того, какой «нахлест» столешницы дать по переднему краю.
Все, этих всех размеров уже достаточно для того, чтобы сделать всю деталировку этого гарнитура.
На этом я заканчиваю, до встречи.
www.sdmeb.ru


