Кровать с ящиками своими руками: чертежи, пошаговая инструкция
Мебель в спальне должна быть максимально удобной, комфортной и практичной. Ультрасовременные модели кроватей не перестают удивлять оригинальными формами и дизайном, но классика всегда востребована и остается в моде. Например, кровать с ящиками своими руками может создать практически каждый, кто хоть немного знаком с азами столярного искусства.
Эта модель считается самой популярной. Она включает в себя не только ложе, но и достаточно объемный и удобный ящик для постельного белья и других вещей. Такую мебель чаще всего ставят в детской спальне или в комнатах с малой площадью.
Кровать с ящиками своими руками чертежи, схемы
Практичность данной модели сделала ее самой востребованной, и порой мужчины приступают к самостоятельному изготовлению такой мебели. Работа состоит из трех этапов:
- создание чертежа и схемы;
- подбор материалов;
- сборка кровати.
Для того чтобы смастерить кровать с ящиками для хранения, стоит ознакомиться с главными правилами столярного дела.
Чтобы создать чертеж, необходимо определиться с моделью и провести замеры. Важно учесть ширину, длину и высоту изделия, размеры таких деталей, как задняя и передняя спинка. Определяются высота и ширина ящика для хранения постельного белья. Создавая чертеж, необходимо рассчитать и глубину ложа там, где должен располагаться матрац.
Большую роль играет выбранная модель мебели. От этого и стоит исходить, создавая свою схему. Кровать может быть двуспальной или полуторной, односпальной или детской. Габариты и размеры берутся стандартные для этих типов мебели.
Сделанные под кроватью ниша или ящик должны иметь свои размеры. Их отдельно вносят в чертежи. Необходимо заранее продумать все детали и учесть малейшие нюансы при разработке индивидуального варианта спального места.
Замеры самого помещения желательно сделать после определения места расположения будущего изделия, не забыв учесть при этом длину выдвинутого ящика.
Инструмент
На втором этапе выбирают, из какого материала будет выполнено столярное изделие. Приобретается необходимый инструмент с подручными столярными материалами.
Из инструментов для создания в домашних условиях кровати с выдвижными ящиками понадобятся следующие:
- рулетка;
- циркулярная и торцовочная пила;
- дрель;
- электролобзик;
- шуруповерт и шурупы;
- наждачная бумага или шлифовальная машинка с абразивными дисками;
- антисептик;
- лак, грунтовка и кисти.
Кроме того, в зависимости от модели, потребуются дюпеля, гайки, болты, уголки, ролики для выездного механизма.
Материалы
Специалисты рекомендуют новичкам работать с ЛДСП. Данный материал более податлив и мастерить из него нетрудно. Ламинированная плита имеет свою толщину и плотность, расцветку и структуру поверхности. Здесь выбор всегда остается индивидуальным.
Для изготовления ящиков используют МДФ. Этот материал пригоден для частичного использования в мебели, но не для самого каркаса кровати. Более тяжелый и прочный материал – мебельный щит.
Некоторые предпочитают работать с натуральными плитами и досками. Создание кровати из досок имеет свою специфику. Важно правильно выбирать сечение брусьев. Для того чтобы конструкция прослужила дольше, лучше всего работать с обрезными досками хвойных деревьев.
Кровать из ДСП при правильно организованной работе можно создать за 1-2 суток, а работа с деревом может занять намного больше времени и сил.
Пошаговая инструкция сборки кровати с выдвижными ящиками
Важнейший этап в работе – распиловка материала на детали конструкции. Например, если работать с таким материалом, как МДФ, то изначально на поверхности листа делают разметку всех элементов.
Распил и торцовка элементов из МДФ
После нанесения на лист разметки рекомендуется еще раз сделать контрольные замеры. Распиливать лучше всего при помощи лобзика.
Все края срезанного материала заклеивают мебельной кромочной лентой. Работу надо выполнять аккуратно. После застывания клея все излишки удаляют ножом.
Монтаж корпуса
При помощи дрели в таких деталях, как изголовье, средняя, задняя стенки и боковые панели, делаются отверстия для винтов. Конструкция собирается воедино при помощи торцовочного ключа.
К изголовью и задней спинке присоедините на уголки боковые детали. Часто используют для этого небольшие брусья или планки. Фасадную и заднюю части прикрепите к рейкам и вкрутите шурупы.
Если в модели учтены ножки, то на данном этапе их можно присоединить. Затем стоит установить на дюбелях лист под матрац.
Для того чтобы сделать кровать с ящиками, изначально нужно собрать главную конструкцию, а выдвижные детали делаются отдельно.
Сборка и установка ящиков
- две боковые стенки;
- фасадная часть;
- задняя часть;
- дно ящика.
Небольших емкостей (шириной 40 см или 50 см) можно сделать несколько вместо одного большого ящика. Такой вариант будет более прочен. Нагрузка на опоры колес направляющих выдвижного ящика будет меньшей.
Для того чтобы конструкция кровати с выдвижными ящиками была прочной, стоит избирательно и внимательно подойти к выбору материала. Мебельщики рекомендуют на дно выдвижных емкостей брать ДВП и качественные колесные опоры.
В передней и задней деталях, в боковых элементах делаются при помощи дрели отверстия для дюбелей. Последние ставятся на столярный клей. В нижней части всех деталей делают канавку для установки панели дна. Ее устанавливают на клей. К фасадной части цепляют ручку. Колесико и его механизм крепятся на нижней части боковых стенок.

Кровать с ящиками сборка



Что вы делайте со старой мебелью?Poll Options are limited because JavaScript is disabled in your browser.Увозим на дачу, в деревню, в гараж 37%, 247 голосов
247 голосов 37%
247 голосов — 37% из всех голосов
Ремонтируем, обновляем 23%, 154 голоса
154 голоса 23%
154 голоса — 23% из всех голосов
Выкидываем 20%, 131 голос
131 голос 20%
131 голос — 20% из всех голосов
Отдаём, дарим 12%, 83 голоса
83 голоса 12%
83 голоса — 12% из всех голосов
Продаём 8%, 53 голоса
53 голоса 8%
53 голоса — 8% из всех голосов
Всего голосов: 668
05.04.2018
×
Вы или с вашего IP уже голосовали.Укладка матраса
Для того чтобы исключить скольжение матраца по мебели, можно использовать специальную ленту велкро. Она отлично подходит для этих целей.
Укладка матраса осуществляется следующим образом:
- На крышку для матраса нужно прикрепить отрезки ленты крючками вверх.
- На сам матрас подшить ленту противоположной стороной.
- Количество лент определяется по ширине текстильного изделия и самой кровати. Многие предпочитают нашивать ленту в горизонтальном направлении.
Собрать самостоятельно мебель для спальни может даже новичок в таком деле, как столярное. Самое главное в данной работе – это последовательность действий, грамотное выполнение чертежей и самих замеров. В остальном работа не доставляет трудностей.
vseme.ru
Как сделать ящик для кровати — особенности конструкции
Убирая каждое утро постельные принадлежности в многочисленные комоды вдоль стен спальни, многие задумываются, как было бы просторно в комнате без этих шкафчиков, которые несут исключительно складские функции и только мешают проходу. К тому же это главные сборщики пыли, которую так хорошо видно на их полированной поверхности.

Схема ящика для белья.
А решение вопроса находится рядом, стоит только обратить внимание на пространство, которое занимает кровать. Домашним умельцам всего лишь необходимо узнать, как сделать ящик для кровати и спрятать в него всю постель.
Таким образом, кровать будет нести дополнительную функцию хранения тех принадлежностей, которые для нее же и предназначены. Теперь с комодами можно распрощаться, по крайней мере, в спальной комнате, и освободить пространство в самой интимной части квартиры.
Варианты конструкции

Схема ящика под кровать.
Приняв решение использовать пространство под кроватью для устройства там ящиков с постельными принадлежностями, необходимо решить вопрос их конструкции. Ящики могут быть выдвижными, с укрепленными на дне роликами. Такая конструкция проста в исполнении и не требует серьезной переделки самой кровати.
Но есть один минус — необходимость создания возле кровати свободного пространства для выезда ящиков, а это не всегда возможно сделать, не совершив революционных перестановок во всей спальной комнате.
Есть вариант конструкции, когда доступ к свободному пространству под кроватью можно получить, поднимая на специальных кронштейнах само основание кровати, на котором лежит матрас.
Но вновь возникает осложнение — каждый раз для доставания постели необходимо снимать покрывало, затем матрас, а иногда и кого-то из членов семейства. Хотя современные матрасы и не тяжелы, но это явное неудобство.
К тому же ежедневное поднимание основы может привести к быстрому износу каркаса кровати. Кровати сами по себе относятся к статической мебели и не предназначены для частого перемещения. Крепление кронштейнов для подъемного механизма также потребует усиления всей конструкции спальной кровати.
Большинство мастеров-мебельщиков отдают явное предпочтение варианту, когда ящики выдвигаются. Такая конструкция практически не затрагивает саму кровать и требует минимальной переделки каркаса. В изготовлении кровати с выезжающими панелями не вызывают сложностей и не требуют применения сложных механизмов, например, микролифтов, для плавного поднятия и опускания ложа кровати.
Выбор материалов и комплектующих

Схема ящика для кровати с отделениями для белья.
Ящики можно конструктивно вписать в уже имеющуюся кровать, если позволяет высота между полом и каркасом, но можно и построить новую кровать с органично вписанными выдвижными панелями и даже шкафчиками. Второй вариант по затратам усилий и материальных средств превосходит первый, но еще значительнее превосходит и по полученному эффекту.
Для изготовления спального места необходимо в первую очередь сделать набросок — чертеж будущей конструкции, и на его основании начать подбор материалов, фурнитуры, крепежных элементов и отделки.
Изготовление крупногабаритной мебели в домашних условиях всегда связано с серьезными проблемами в части обработки поверхности деталей конструкции, которые имеют большие размеры.
Для производства мебели в мастерских используются специальные станки, которые позволяют обработать исходный материал с профессиональным качеством и отделкой. Некоторые операции тяжело осуществить в квартире, например, кромкование торцов или шлифование фигурных вырезов.
Как выход, многие домашние мастера заготавливают самостоятельно материал, делают необходимые чертежи и отдают в мебельные мастерские, где изготавливаются все детали коробки кровати, а дома уже осуществляется сборка и подгонка по месту.
Непосредственно сам ящик под кровать уже можно изготовить и дома, так как он не отличается большими размерами и не требует особых знаний.

Пример 2. Чертеж двухспальной кровати с выдвижными ящиками.
Но здесь возникает вопрос с фасадами. Их также лучше заказать, особенно если выбор пал на лицевые части, изготовленные по технологии МДФ.
Список материалов, которые необходимо приобрести для изготовления коробки для кровати и выдвижных ящиков:
- ДСП для каркаса кровати и ящиков;
- ДВП для днищ ящиков;
- фанера;
- бруски для основы;
- рейки;
- мебельные стяжки для сбора каркаса;
- ролики для ящиков;
- конфирматы;
- саморезы;
- мебельные гвоздики.
Из инструментов для сборки мебели могут понадобиться:
- аккумуляторный шуруповерт с набором бит;
- дрель с коронками под мебельные стяжки;
- ножовка по дереву;
- струбцины;
- набор отверток;
- рулетка, угольник и карандаш.
Особенности конструкции

Пример 2. Чертеж двухспальной кровати с выдвижными ящиками.
Благодаря интернету имеется возможность ознакомиться с множеством различных вариантов конструкций как одно-, так и двуспальных кроватей. Но в своей основе они имеют одинаковую базу, для кровати, рассчитанной на двух человек, это будет 1600 х 2000 мм.
Кстати, все размеры в мебельном производстве даются в миллиметрах, поэтому, готовя чертежи для мебельного цеха, необходимо избегать указания размера в сантиметрах, так как мастер может неправильно вас понять.
Для усиления жесткости самой кровати в качестве дна коробки лучше использовать фанеру, а в ящиках ДВП, так как оно легче, да и у ящиков другая нагрузка.
Ящики могут выдвигаться как с двух сторон кровати, так и одним большим с торца. Все зависит от планировки спальной комнаты и наличия свободного пространства.
Различают два вида конструкций выдвижных ящиков. Если ящики небольших размеров и не предполагается давать им большой нагрузки, их можно крепить на направляющих, и они будут выдвижными, как в тумбочках или комодах. Ящики, в которые будут складываться постельные вещи, лучше сделать на напольных роликах. Так, они не будут перегружать каркас кровати, и их будет легче перемещать.
Фасады ящиков можно заказать из МДФ или изготовить из того же ДСП, что и основа кровати, чтобы они сильно не выделялись в общем дизайне мебели.
dekormyhome.ru
Кровать с ящиками своими руками: инструкция от мастеров
Содержание:
- Подготовка необходимых материалов и инструментов
- Изготовление кровати с ящиками
Один из больных вопросов семейной повседневности звучит так: куда каждое утро убирать постельное белье? Подушки и одеяла для гостей, стратегические запасы простыней и полотенец тоже требуют места. Предлагаем прогрессивное решение: сделать кровать с ящиками своими руками. Подумайте, какая кубатура под спальным ложем пропадает впустую. Пару комодов или вместительный бельевой шкаф можно будет просто изъять из оборота, переправив белье в ящики.
Получить доступ к ящикам можно двояким путем – выкатить их или поднять ложе кровати с помощью подъемного механизма. Второй вариант исключает создание мертвой зоны перед кроватью, неизбежной в случае выдвигания модулей вперед. Однако подъем ложа имеет свои серьезные минусы, и один из них – чтобы достать из ящика нужную вещь, каждый раз придется убирать с кровати матрас, покрывало и отдыхающего члена семьи.

Сегодня мы остановимся на выдвижной модели. Кстати, она не только удобна, но и психологически более близка пользователям, по способу действия напоминая обычный шкаф. Согласно замыслу дизайнера, кровать с ящиками предназначена не только для ночного сна. Вместо обычного матраса здесь предусмотрен японский футон, украшенный цветной тесьмой и декоративными деталями. Галогеновые светильники, лоскутный плед и множество ярких подушек дополняют картину блаженного ничегонеделанья в воскресный день. Итак, определившись с местоположением кровати в комнате, приступаем к работе.
Подготовка необходимых материалов и инструментов
Основание должно выдерживать серьезные нагрузки, поэтому выбираем для него столярную плиту толщиной 30 мм. Вот подробный список материалов для изготовления кровати с ящиками:
- Столярные плиты размерами 30х300х2000 мм – 4 шт.
- Столярные плиты (или доски) 19х210 (145) мм – 2,5 кв. м.
- Фанера толщиной 9 мм – 3 кв. м.
- Струганная доска, 20х95 мм – 6 погонных метров.
- Брусок 28х45 мм – 4,5 погонных метра.
- Брусок 45х45 мм – 2 пог. м.
- Рейка 20х38 мм – 2 пог. м.
- Рейка 20х20 мм – 2 пог. м.
- Комплекты мебельных стяжек – 16 шт.
- Мебельные ролики высотой 35 мм – 8 шт.
- Шурупы.
- Столярный клей.
- Мебельный лак.
Инструменты, необходимые для работы:
- Ножовка (электроножовка).
- Фрезерная машинка.
- Дрель.
- Шуруповерт.
- Струбцины.
- Отвертка.
- Рулетка, линейка, карандаш.
- Малярная кисть.
Общий размер кровати составит 2060х1692 мм. Конечно, каждый мастер может прикинуть, как сделать кровать с ящиками соразмерной своему помещению. Размечаем пиломатериал и выкраиваем заготовки, сверяясь с параметрами, указанными на чертеже изделия.

Изготовление кровати с ящиками
На четырех основных плитах, из которых будем собирать корпус кровати, делаем по два декоративных выреза V-образной формы.
Цоколь, выпиленный из досок толщиной 20 мм, изнутри привинчиваем на шурупы к боковым стенкам каркаса, заранее промазав стенки высверленных отверстий столярным клеем. Таким же образом крепим изнутри корпуса короткие вертикальные стойки из досок. Стойки примут на себя нагрузку продольных брусков, удерживающих ложе кровати.

По трем сторонам корпуса изнутри привинчиваем бруски 28х45 мм, которые будут служить опорой под реечное основание ложа. В качестве мерки вставляем между ними торец центральной балки.
Решая вопрос, как сделать кровать с ящиками своими руками и при этом обеспечить разборность конструкции, соединяем элементы корпуса между собой посредством мебельных стяжек. Стяжки крепятся к несущим брускам или боковым стенкам каркаса. Подобные крепления позволят легко разобрать изделие.
Прикручиваем брусок 20х38 мм к центральной поперечной перемычке. Крепим эту конструкцию к боковой стенке каркаса. Продольная центральная балка присоединяется к перемычке на уголки. Стяжки и уголки обеспечат достаточную жесткость и надежность всей конструкции.

Теперь прикручиваем боковую стенку к спинкам кровати, используя по две боковые стяжки с каждой стороны. Верхний опорный продольный брусок размерами 45х45 мм крепим к стенке на одну стяжку, нижний брусок 20х38 мм – на один шуруп.

Сверху к центральной балке приклеиваем рейку 20х20 мм. Она разделит поверхность балки на две равные части, которые послужат опорами для реечного основания с обеих сторон. Саму балку соединяем со спинкой мебельными стяжками.
Стороны выдвижных ящиков выпиливаем из столярного щита или досок толщиной 19 мм. Собираем их на шурупах, добавляя в гнезда немного клея для более прочного соединения. Задние стенки ящиков слегка скашиваем сверху, чтобы беспрепятственно провести мебельные ролики под нижним бруском, приподняв тыльную часть модуля. Этот же продольный брусок не даст ящику выкатиться из-под кровати полностью.

Днища ящиков выкраиваем из 9-миллиметровой фанеры и крепим к торцам стенок на шурупы.
Привинчиваем мебельные ролики ко всем четырем нижним углам каждого ящика. Теперь их можно легко выкатить из-под кровати, невзирая на вес уложенных туда вещей.
Лицевую панель притягиваем к передней стенке выдвижного ящика струбцинами и прикручиваем изнутри на 8 шурупов. Повторяем то же самое со вторым ящиком.

Ширина лицевых элементов должна быть на 6 мм уже ширины боковых стенок каркаса. Это делается для того, чтобы спинки кровати слегка выступали. Тогда изделие выглядит более эстетичным.
Кромки стенок корпуса можно скруглить или оставить прямоугольными – это дело вкуса. Теперь осталось отшлифовать все элементы кровати и покрыть матовым лаком.
Собрав кровать с ящиками, мы получили одновременно и спальное место, и объемный шкаф. Сложив в выдвижные ящики белье, вы удивитесь, почему эта умная мысль не пришла вам в голову раньше. Особенно такая конструкция порадует владельцев малогабариток, освободив им заметную толику жизненного пространства.
www.mebelniykrug.ru
Обзор двуспальной кровати с выдвижными ящиками. Приятная простота конструкции
Здравствуйте друзья!
В этой статье мы поговорим с вами об общих принципах проектировки двуспальной кровати, которая имеет выдвижные ящики.
В данном случае, это будет кровать, имеющая четыре таких ящика (по обеим сторонам). Так же оговорюсь, что рассматриваемый нами пример – базовый, и не единственно возможный. Данное изделие можно проектировать по-разному.
В данном случае, все детали нашей кровати имеют толщину ДСП, из которого изготовлены (16 мм). На практике, в данном случае, можно использовать двойное ДСП (например, переднее и заднее быльце), либо, при желании, вместо быльцев из ДСП, можно поставить быльца из МДФ, которые можно заказать. Так же, для примера, рассматриваются ящики, глубина которых равна 600мм, но в эту кровать можно спроектировать и ящики, глубина которых может быть 800мм, и больше.

Так же, не следует забывать, что, при использовании такой кровати (вместе с матрацем, разумеется), на перегородки, предназначенные под матрац, ложится цельный лист ДВП (в размер проема), в котором сделаны отверстия для вентиляции матраца.
Итак, начнем.
Проектировка любой кровати начинается с определения размеров матраца.
То есть, все размеры кровати (кроме вертикальных, разумеется), привязаны к размерам матраца.
В данном примере, мы будем использовать матрац, размеры которого равны:
2000х1800х200 (мм).
Кровать будем проектировать так, чтобы боковая часть матрица была видна. Для этого высоту лотка под матрац возьмем 100 мм. Если учесть, что в этот лоток будут крепиться еще три планки под матрац, то чистая высота проема этого лотка получится:
100-16=84 (мм)
А раз так, то матрац будет выступать над этим лотком на:
200-84=116 (мм) – вполне нормально.
Лоток под матрац проектируем таким образом, чтобы зазоры между ним и матрацем с каждой стороны были равны 5 мм, или по 10мм по ширине и глубине.
Если ширина матраца равна 2000мм, то внутренний проем под него должен быть 2010мм. С учетом конструкции лотка, его габаритный размер по ширине будет равен:
2010+32=2042 (мм)
Таким же образом определяем его размер по глубине:
1810+32=1842 (мм)

В лоток нужны три планки под матрац. Ширина крайних планок будет равна 300 мм, а центральной – 600 мм. Разумеется, глубина этих планок будет равна глубине проема всего лотка (1810 мм).
Под лотком будет идти общая перегородка. Ее назначение следующее:
- Она предаст жесткость всей конструкции
- К ней будут крепиться две перегородки с направляющими для ящиков
- К ней будут так же крепиться быльца кровати (к ней и к самому лотку)
- В эту перегородку (и в перегородки под направляющие для ящиков) будут так же крепиться регулируемые опоры, на которых будет установлена кровать.
Хочется отметить тонкий момент: Общая перегородка должна быть такой же ширины, как и весь лоток (2042 мм), так как к ней будут крепиться быльца кровати.
А вот края других двух перегородок должны быть на одном уровне с краями планок лотка под матрац (или, другими словами не «доходить» до края кровати на 16мм – толщину бока кровати 100х2042 (мм)). Дело в том, что плоскость фасада выдвижного ящика кровати и ее бока (100х2042 (мм)), должна быть одна. То есть, сам фасад должен находиться строго под боком кровати.




Если мы будем проектировать высоту фасадов ящиков равной 250мм (под высоту самого ящика в 150мм), то высота наших перегородок будет так же равна 250мм.
Размеры (глубина) двух других перегородок (с направляющими для ящиков) высчитаем следующим образом:
1810:2=905 (мм) – половина внутреннего проема кровати
905-8=897 (мм) – глубина перегородки, где 8мм – половина толщины продольной поперечины (250х2042 (мм)).
Рассчитаем быльца. Все быльца сделаем шире лотка кровати на 20 мм.
1842+20=1862 (мм)
И если высота фасадов (без зазоров) равна 250мм, то высота быльца меньшего быльца будет равна:
250+100=350 (мм), где 100 мм – высота лотка под матрац.
Высоту большего обыльца можно сделать 1000 мм.

С высотой фасада мы определились, она равна 250 мм (это расчетная высота). Дадим зазор в 2мм на высоту, и получим рабочую высоту фасада:
250-2=248 (мм)
Теперь рассчитаем ширину фасадов. Общий проем под фасады равен 2042 мм. Делим этот размер на два, и получаем общую ширину:
2042:2=1021 (мм).
Дадим зазор в 2 мм на ширину фасада, и получим:
1021-2=1019 (мм) – это фактическая ширина фасада.
Не стоит забывать, что если эти фасады будут из ДСП, и будут облагорожены кромкой ПВХ 2,0 мм, то на от их размеров, нужно будет еще отнять по 4 мм (толщину кромки с одной и с другой стороны).
Теперь нам осталось рассчитать ящики.

Итак, общий проем под ящики (между быльцами) равен 2042 мм. Отнимем толщину перегородки, равную 16мм, и разделим получившийся размер на два. Получим проем под один ящик:
(2042-16):2=1013 (мм).
Теперь отнимем 26мм – зазоры под направляющие с двух сторон:
1013-26=987 (мм) – это ширина самого ящика.
Чтобы узнать ширину его двух фронтальных деталей, нужно от полученного размера отнять 32мм (толщину двух его боков):
987-32=955 (мм)
Ну и глубина ящиков, как было сказано выше, у нас будет 600мм. Плюс ко всему, так как ящики получаются довольно большие, в них будет перегородка.
Направляющие под выдвижные ящики крепятся на перегородки и на внутреннюю сторону быльцев.
Подробнее об расчетах и установке выдвижных ящиков можно прочесть здесь и здесь.
Теперь можно записать общую деталировку (размеры ДВП на ящики и на лоток под матрац, предлагаю вам посчитать самим).
- Бок1 – 100х2042 (2 шт)
- Бок2 – 100х1810 (2 шт)
- Дет1 – 1810х300 (2 шт)
- Дет2 – 1810х600
- Перег1 250х2042
- Перег2 – 250х897 (2 шт)
- Быльце1 – 350х1862
- Быльце2 – 1000х1862
- Дет.ящ1 – 150х600 (8 шт)
- Дет.ящ2 – 150х955 (8 шт)
- Перег. ящ – 150х568 (4 шт)
- Фасады – 248х1019 (4 шт)
Для наглядности, на рисунке детали кровати пронумерованы, всоответствии с их списком, приведенным выше:

И, в конце – реальная фотография такого изделия.

Вот так, довольно просто можно спроектировать подобную мебель. Как было сказано выше – это не единственный пример, подобную мебель можно проектировть разными способами.
О том, как проектируется односпальная кровать с выдвижными ящиками, читайте в этой статье.
А на этом все, до встречи!
www.sdmeb.ru
Как сделать ящик для кровати – особенности конструкции
Убирая каждое утро постельные принадлежности в многочисленные комоды вдоль стен спальни, многие задумываются, как было бы просторно в комнате без этих шкафчиков, которые несут исключительно складские функции и только мешают проходу. К тому же это главные сборщики пыли, которую так хорошо видно на их полированной поверхности.

Схема ящика для белья.
А решение вопроса находится рядом, стоит только обратить внимание на пространство, которое занимает кровать. Домашним умельцам всего лишь необходимо узнать, как сделать ящик для кровати и спрятать в него всю постель.
Таким образом, кровать будет нести дополнительную функцию хранения тех принадлежностей, которые для нее же и предназначены. Теперь с комодами можно распрощаться, по крайней мере, в спальной комнате, и освободить пространство в самой интимной части квартиры.
Варианты конструкции
Схема ящика под кровать.
Приняв решение использовать пространство под кроватью для устройства там ящиков с постельными принадлежностями, необходимо решить вопрос их конструкции. Ящики могут быть выдвижными, с укрепленными на дне роликами. Такая конструкция проста в исполнении и не требует серьезной переделки самой кровати.
Но есть один минус – необходимость создания возле кровати свободного пространства для выезда ящиков, а это не всегда возможно сделать, не совершив революционных перестановок во всей спальной комнате.
Есть вариант конструкции, когда доступ к свободному пространству под кроватью можно получить, поднимая на специальных кронштейнах само основание кровати, на котором лежит матрас.
Но вновь возникает осложнение – каждый раз для доставания постели необходимо снимать покрывало, затем матрас, а иногда и кого-то из членов семейства. Хотя современные матрасы и не тяжелы, но это явное неудобство.
К тому же ежедневное поднимание основы может привести к быстрому износу каркаса кровати. Кровати сами по себе относятся к статической мебели и не предназначены для частого перемещения. Крепление кронштейнов для подъемного механизма также потребует усиления всей конструкции спальной кровати.
Большинство мастеров-мебельщиков отдают явное предпочтение варианту, когда ящики выдвигаются. Такая конструкция практически не затрагивает саму кровать и требует минимальной переделки каркаса. В изготовлении кровати с выезжающими панелями не вызывают сложностей и не требуют применения сложных механизмов, например, микролифтов, для плавного поднятия и опускания ложа кровати.
Выбор материалов и комплектующих
Схема ящика для кровати с отделениями для белья.
Ящики можно конструктивно вписать в уже имеющуюся кровать, если позволяет высота между полом и каркасом, но можно и построить новую кровать с органично вписанными выдвижными панелями и даже шкафчиками. Второй вариант по затратам усилий и материальных средств превосходит первый, но еще значительнее превосходит и по полученному эффекту.
Для изготовления спального места необходимо в первую очередь сделать набросок – чертеж будущей конструкции, и на его основании начать подбор материалов, фурнитуры, крепежных элементов и отделки.
Изготовление крупногабаритной мебели в домашних условиях всегда связано с серьезными проблемами в части обработки поверхности деталей конструкции, которые имеют большие размеры.
Для производства мебели в мастерских используются специальные станки, которые позволяют обработать исходный материал с профессиональным качеством и отделкой. Некоторые операции тяжело осуществить в квартире, например, кромкование торцов или шлифование фигурных вырезов.
Как выход, многие домашние мастера заготавливают самостоятельно материал, делают необходимые чертежи и отдают в мебельные мастерские, где изготавливаются все детали коробки кровати, а дома уже осуществляется сборка и подгонка по месту.
Непосредственно сам ящик под кровать уже можно изготовить и дома, так как он не отличается большими размерами и не требует особых знаний.
Пример 2. Чертеж двухспальной кровати с выдвижными ящиками.
Но здесь возникает вопрос с фасадами. Их также лучше заказать, особенно если выбор пал на лицевые части, изготовленные по технологии МДФ.
Список материалов, которые необходимо приобрести для изготовления коробки для кровати и выдвижных ящиков:
- ДСП для каркаса кровати и ящиков;
- ДВП для днищ ящиков;
- фанера;
- бруски для основы;
- рейки;
- мебельные стяжки для сбора каркаса;
- ролики для ящиков;
- конфирматы;
- саморезы;
- мебельные гвоздики.
Из инструментов для сборки мебели могут понадобиться:
- аккумуляторный шуруповерт с набором бит;
- дрель с коронками под мебельные стяжки;
- ножовка по дереву;
- струбцины;
- набор отверток;
- рулетка, угольник и карандаш.
Особенности конструкции
Пример 2. Чертеж двухспальной кровати с выдвижными ящиками.
Благодаря интернету имеется возможность ознакомиться с множеством различных вариантов конструкций как одно-, так и двуспальных кроватей. Но в своей основе они имеют одинаковую базу, для кровати, рассчитанной на двух человек, это будет 1600 х 2000 мм.
Кстати, все размеры в мебельном производстве даются в миллиметрах, поэтому, готовя чертежи для мебельного цеха, необходимо избегать указания размера в сантиметрах, так как мастер может неправильно вас понять.
Для усиления жесткости самой кровати в качестве дна коробки лучше использовать фанеру, а в ящиках ДВП, так как оно легче, да и у ящиков другая нагрузка.
Ящики могут выдвигаться как с двух сторон кровати, так и одним большим с торца. Все зависит от планировки спальной комнаты и наличия свободного пространства.
Различают два вида конструкций выдвижных ящиков. Если ящики небольших размеров и не предполагается давать им большой нагрузки, их можно крепить на направляющих, и они будут выдвижными, как в тумбочках или комодах. Ящики, в которые будут складываться постельные вещи, лучше сделать на напольных роликах. Так, они не будут перегружать каркас кровати, и их будет легче перемещать.
Фасады ящиков можно заказать из МДФ или изготовить из того же ДСП, что и основа кровати, чтобы они сильно не выделялись в общем дизайне мебели.
dekorspalni.ru
Ящик под кровать своими руками
![]() |
Перед тем как начать изготавливать ящик под кровать, измерьте просвет между полом и вашей кроватью. В списке материалов указаны размеры деталей для ящика высотой 15,9 см. Такой ящик поместится под большинством кроватей, однако вы можете изменить высоту своего изделия, если просвет под вашей кроватью позволяет поставить под нее более низкий либо более высокий ящик.
Список материалов для изготовления ящика под кровать своими руками:
Боковые стенки (фанера) – 1,9х 13,3×61,0 см – 2 шт.
Задняя и передняя стенки (фанера) – 1,9х 13,3×59,1 см – 2 шт.
Днище (фанера) – 1,9 х 13,3 х 13,3 см – 1 шт.
Крышка (фанера) – 0,6 х 57,8 х 57,8 см – 1 шт.
Заготовка для накладок на кромки (цельная древесина) – 1,9 х 5,4 х 127,0 см – 1 шт.
![]() |
50 мм финишные гвозди;
25 мм отделочные гвозди;
38 мм финишные гвозди.
Круглая деревянная ручка – 1 шт.;
Деревянные колесики с осями диаметром от 5 до 10 см – 4 шт.
Изготовление деталей для ящика
1. Изготовление деталей своими руками. Вырежьте детали для ящика под кроватью в соответствии с размерами, которые указаны в списке материалов. Для накладок можно использовать цельную сосну.
2. Выбирание фальцев. Выберите фальцы в торцах боковых стенок ящика и в нижних кромках днища и задней стенки, как показано на рисунке «Общий вид ящика под кровать». Выберите фальцы в нижних кромках боковых стенок, как показано на рисунке «Поперечный разрез ящика».
![]() |
Сборка ящика под кровать
1. Ящик под кровать — сборка. Скрепите между собой четыре стенки ящика клеем и 50 мм финишными гвоздями. Прикрепите днище клеем и 25 мм отделочными гвоздями.
2. Установка накладок ящика. С помощью стусла и ножовки с обушком или же дереворежущего станка, позволяющего резать под углом, вырежьте четыре отрезка для накладок со скошенными под углом 45° концами. Фальцы в нижних кромках накладок, пишет Инфобуд, должны быть обращены в сторону ящика. Прикрепите накладки к верхним кромкам стенок клеем и 38 мм финишными гвоздями, чтобы наружные кромки накладок были заподлицо со стенками ящика, как показано на рисунке «Поперечный разрез ящика».
3. Высверливание отверстия в крышке. Перовым сверлом или зенковкой высверлите в крышке отверстие для фальца, расположив его на расстоянии около 5 см от передней кромки крышки (см. «Общий вид ящика под кровать»).
![]() |
1. Отделка древесины. Отшлифуйте ящик и крышку наждачной бумагой, покройте их морилкой, а затем масляным лаком. Вместо лака можно использовать краску. Проморите или окрасьте колесики перед их установкой.
2. Установка ручки ящика. Нанесите метку в середине передней стенки и прикрепите на это место ручку с помощью шурупа.
3. Установка колесиков для ящика. В каждой боковой стенке ящика под кровать высверлите по два отверстия для осей, расположенных на расстоянии 5 см от передней и задней стенок, и на таком расстоянии от днища, чтобы после крепления колесиков остался зазор величиной 6 мм. Вставьте в каждое колесико ось и закрепите оси на клею в предназначенных для них отверстиях. Будьте аккуратны и старайтесь не запачкать клеем ту часть оси, которая контактирует с колесиком и лицевые фасады ящика под кровать.
Похожие статьиwww.sibear.ru
Кровать с ящиками своими руками: как сделать?
Комфортная жизнь всегда сопровождается эргономичной и максимально проработанной мебелью. Уже никого не удивляют шкафы-купе и кровати-шкафы, но среди всех современных новшеств можно найти проверенную классику — кровать с ящиками. Изготовить кровать с ящиками своими руками не сложно технически, причем для этого не потребуется много сил и времени, зато качественный результат еще не раз даст о себе знать.

Кровать с ящиками удобна для помещений с маленькой площадью, так как на ней можно не только спать, но и хранить вещи в ящиках.
Выборка и распиловка
Перед тем как сделать кровать своими руками, нужно правильно подобрать под нее материалы, ибо от них зависят сроки эксплуатации, внешний вид и качество изготавливаемой конструкции.
Проще всего работать с ЛДСП, т.к. этот материал очень податлив, а полностью процесс можно организовать за 1 день. У него огромнейший запас расцветок, причем нет даже ни одной, отдаленно напоминающей оригинальные цвета древесины. Плотность и толщина зависят от пожеланий, поэтому тут можно выбирать любые удобоваримые варианты.
Размеры кровати с выдвижными ящиками.
Но есть и два своих особенных минуса — отсутствие экологичности и упругости. Из-за отсутствия упругости материал становится неустойчив к боковому давлению даже при условии максимальной плотности. А вот отсутствие экологичности обусловлено способом изготовления, т.к. применяются синтетические смолы, выбрасывающие в окружающую среду вредные химические соединения.
МДФ используется достаточно часто при изготовлении мебели на фабриках, причем данная мебель не отличается высоким качеством. Шкафы и кровати из МДФ в народе получили название «одноразовые», ибо держатся не более 15 лет, поэтому для кровати с ящиками данный материал лучше не использовать. Оптимальная сфера использования — столы, полочки, перегородки и прочие места со стабильными нагрузками.
Более сложный материал — это мебельный щит. Благодаря специфике изготовления он ничем не отличается от обыкновенной древесины в плане экологичности (склейка брусьев и досок производится при помощи исключительно натуральных компонентов). При работе особых сложностей не будет, если есть базовые навыки обработки древесины, т.к. разницу почувствовать будет сложно.
Перед сборкой необходимо определится с материалом каркаса, так как от него будут зависеть сроки эксплуатации, надежность и вид будущей кровати.
Внешний вид в итоге ограничивается лишь природными цветовыми вариациями, ибо ненатуральный рисунок сделать будет невозможно.
Есть и у него 2 минуса — высокая цена и сложность в приобретении в ряде городов во всем мире. Для изготовления мебели используются только хвойные породы деревьев.
Для обрезной доски и бруса используются исключительно хвойные породы деревьев, т.к. в противном случае конструкция будет быстро приходить в негодность.
Самое сложное в данном случае — это выбор сечения, поэтому для опорной конструкции будет взят традиционно брусок 27*27 мм, а для доски — 15*150 мм. Из досок и брусьев можно изготовить даже полноценную кровать, но ее внешний вид будет значительно уступать аналогам.
Вернуться к оглавлению
Подготовка материалов
Инструменты и материалы:
- мебельный щит;
- рулетка;
- брусок;
- электролобзик;
- наждачная бумага;
- антисептик;
- кисть плоская.
В данном случае будет использоваться мебельный щит 20 мм для укрепления конструкции бруса, а в качестве подматрасника — обрезная доска.
Инструменты для изготовления кровати своими руками.
Перед тем как сделать кровать с ящиками, нужно правильно организовать распиловку щита:
- 1650*330 мм (3 шт.) — изголовье и подножие;
- 150*330 (14 шт.) — перегородки в несущей конструкции;
- 1910*330 (2 шт.) — боковая панель;
- 1650*150 (1 шт.) — накладка на подножие;
- 1932*150 (2 шт.) — накладка на боковую панель, а также скрытие лицевой стороны;
- 1500*252 (2 шт.) — центральная перегородка;
- 1910*100 (1 шт.) — продольная перегородка, перпендикулярная центральной.
Затем нужно распилить брусок:
- 225 мм (8 шт.) — изготовление ножек, именно на этой высоте будет фиксироваться основное ребро жесткости;
- 1500 мм (2 шт.) — ребра жесткости у изголовья и подножия;
- 1910 мм (1 шт.) — продольное ребро.
Обрезная доска будет нарезаться на месте, т.к. ее можно будет подстроить по желанию мастера. Но на данном этапе нужно всю древесину зашкурить при помощи наждачной бумаги-нулевки, после чего покрыть антисептиком против воздействия влаги и дать высохнуть. А за это время отдохнуть, после чего можно продолжать рабочую деятельность.
Вернуться к оглавлению
Основная рабочая деятельность
Инструменты и материалы:
- шуруповерт;
- рулетка;
- мебельный щит;
- брусок;
- обрезная доска;
- шурупы.
Несмотря на долгую и сложную распиловку, собрать кровать с ящиком будет уже не так сложно, но при этом нужно особенно внимательно относиться к вопросам точности.
В самом начале нужно собрать раздельно подножие, боковую часть и центральную перегородку, т.к. они сложносоставные. Вся работа проходит по схеме на рис. 2, поэтому сложностей быть не может.
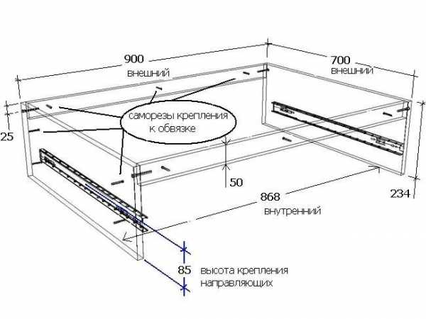
Схема крепления направляющих.
На данный момент и при всей дальнейшей деятельности все стыки оформляются специальными оцинкованными шурупами, для которых изначально сверлится отверстие небольшого диаметра, а лишь потом происходит сцепка. Тут важно этот пунктик не забывать, т.к. в противном случае можно ненароком пустить трещину по древесине, из-за чего придется переделывать весь сегмент. На каждый шов используются по 2 шурупа, а при продольных стыках потребуется фиксация с шагом 250 мм.
Теперь формируется периметр из щитов. Для этого достаточно их приставить друг к другу, после чего прихватить шурупами.
Для обеспечения качества, а вместе с этим скрытия всех стыков нужно воспользоваться планками. Для их фиксации нельзя использовать описанную выше схему, т.к. крайне нежелательно, чтобы металл был виден снаружи. Поэтому делаются косые отверстия под 45 градусов сквозь опору в горизонтальные панели, при этом ни в коем случае нельзя пройти насквозь, дабы не пришлось искать способ осторожно зашлифовать дерево, чтобы ничего не было видно. Проще всего смонтировать центральную перегородку, т.к. она ниже остальных.
На этом основная конструкция готова, но остается укрепляющая часть и подматрасник. Бруски устанавливаются согласно чертежу, что достаточно просто и быстро. Вся фиксация осуществляется сквозь брусок в щит, но при этом нужно избегать выходов металла наружу.
А вот подматрасник немного сложнее, ибо нужно правильно расположить все доски, а вместе с этим обеспечить им надежную фиксацию. Длина каждой доски равноценна внутренней длине, т.к. в данном случае подматрасник физически невозможно смонтировать на ширину. Шаг между досками составляет 10 см, а на каждом удобном месте фиксации вкручивается по 1 шурупу таким образом, чтобы утопить даже шляпки, которые могут оцарапать матрас.
Вернуться к оглавлению
Завершающие штрихи
Схема сборки кровати с ящиками.
Инструменты и материалы:
- электролобзик;
- шуруповерт;
- мебельный щит;
- кисть;
- лак и морилка;
- мебельные заглушки.
Лишь теперь можно изготовить ящик под кровать своими руками. Сделать его можно из щита, т.к. доска окажется слишком узкой. Для этого потребуется совершить следующий распил:
- 240*760 — 2 шт.;
- 240*778 — 1 шт.;
- 240*921 — 1 шт.;
- 778*760 — 1 шт.
Особенностью распила служит то, что на 3 щитах делаются косые срезы под 45 градусов, чтобы обеспечить качественный стык. Для крепления лицевой стороны используются оцинкованные уголки, которыми производится стяжка конструкции. А нижняя панель фиксируется при помощи шурупов, но шляпки необходимо утапливать в древесине, дабы не оставлять следов на полу.
С лицевой стороны фиксируются любые интересующие ручки. При желании можно удлинить ящики, как на рис. 3, но для этого уйдет очень много материалов.
В самом конце вся кровать своими руками покрывается морилкой и лаком.
Делать это нужно в специальном помещении с хорошим проветриванием, а после окончания работ нужно оставить все на 36 часов, дабы лак высох.
Все видимые шляпки шурупов закрываются специальными мебельными заглушками под цвет материала. После окончания можно приступать к эксплуатации.
Если есть большое желание продлить сроки эксплуатации, то можно под кровать своими руками прибить резиновые прокладки 3 мм. Монтаж производится на штапиковые гвозди, поэтому особых сложностей не возникнет, причем на каждую резинку — по 5 гвоздей (4 в углах и 1 в центре). Резина стабилизирует нагрузки, а вместе с этим будет служить в качестве выравнивающего элемента на неровных полах.
masterpomebeli.ru




