варианты дизайна 1-комнатной квартиры площадью 36, 32, 30 и 40 кв. м для семьи с ребенком
В современных реалиях однокомнатные квартиры пользуются большой популярностью, как у молодых, так и у семейных людей в возрасте. Это обусловлено низкой стоимостью таких жилищ, а также их практичностью и функциональностью. Но приобретая свою, хоть и небольшую жилплощадь в новостройке, нам хочется сделать планировку максимально уютной и удобной для жизни.
Планировка однокомнатной квартиры хороша тем, что здесь можно воплотить практически все идеи и замыслы за небольшое количество времени, не прибегая к использованию «замудренных» проектов и дорогостоящих услуг дизайнеров интерьера. Вам под силу сделать это самому. Таким образом, можно будет вложить часть себя в интерьер будущего гнездышка.
Особенности планировки
Однокомнатные квартиры действительно очень востребованы.
В любом случае, приобретая квартиру в новом или же в старом доме, любое пространство можно переделать под себя.
Существует ряд недостатков однокомнатных квартир, которые необходимо учитывать при планировке:
- маленькая площадь жилого пространства – в среднем, она составляет 32 кв м;
- в большинстве проектов квартиры имеют низкие потолки;
- небольшое пространство, отведенное под санузел и кухню;
- тесный коридор;
- отсутствие антресолей;
- не всегда есть балкон или лоджия;
- чаще всего такие квартиры расположены в многоэтажных домах, а не в пятиэтажках.

Однако несомненным плюсом однокомнатных квартир является то, что они имеют расположение во внутренней части дома, а это значит, что эти квартиры значительно теплее тех, что находятся в торцевой половине. Вот несколько золотых правил, которыми следует руководствоваться при планировки однокомнатной квартиры:
- старайтесь показать больше свободного пространства. Это поможет создать чувство простора и свободы;
- не забывайте использовать больше света. Если источников естественного освещения мало, то без раздумий устанавливайте бра, торшеры, настольные лампы;
- играйте с цветовыми сочетаниями. Нет обязательного правила делать потолок белым, он может быть любого цвета.
Воспользуйтесь хитрым приемом – потолок всегда должен быть на несколько оттенков светлее стен. Это визуально увеличит помещение; - в интерьер можно добавить глянцевый потолок и ряды зеркал на стенах. Все это так же значительно увеличит пространство жилища;
- отдайте предпочтение стилю минимализм. В его основе лежит простота форм и лаконичность;
- постарайтесь максимально использовать встроенную мебель;
- в качестве перегородки между комнатами можно использовать книжный шкаф или стеллаж. Этот вариант намного практичней, чем перегородка из гипсокартона или ДСП.
Зонирование пространства
Для создания дополнительного места в 1-комнатной квартире используют принцип зонирования пространства.
Частым явлением считается переделка однокомнатной квартиры в двухкомнатную с помощью перегородок, стеллажей и возведения новых стен. Но не стоит забывать о том, что
Лучше всего реорганизовывать квартиры площадью 37, 40 и 42 кв. м.
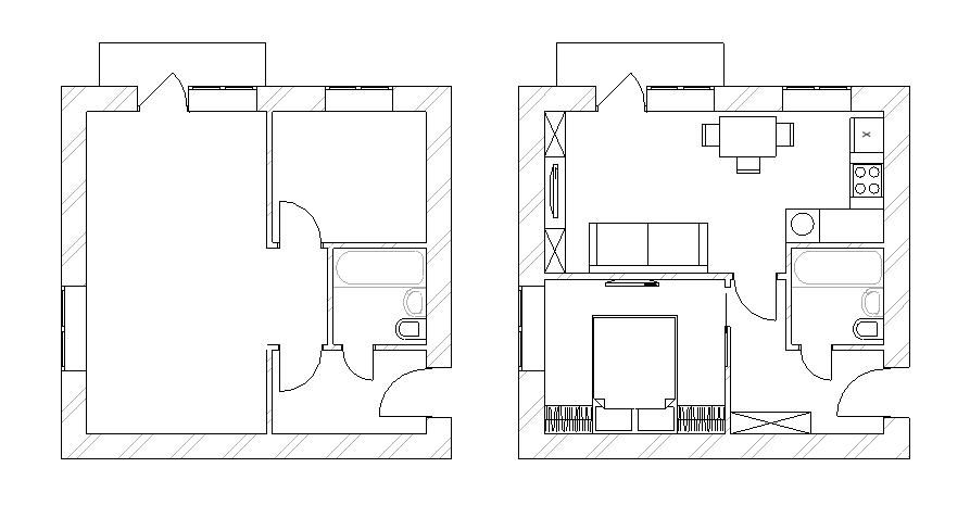
Для чего устанавливаются перегородки и стены в однокомнатной квартире? Ответ прост – для создания новой отдельной комнаты. Какой она будет являться, зависит от жильцов. Это может быть детская, если речь идет о семье с ребенком среднего и старшего возраста. Также дополнительное пространство может стать гардеробной, кладовкой, кабинетом и даже небольшой гостиной.
Самыми распространенными вариантами перепланировки являются следующие:
- кухню часто переносят в гостиную, тогда гостиная или спальня становиться отдельной закрытой комнатой, а кухня в свою очередь, вписывается в оставшееся пространство.
Таким образом, есть возможность совместить зону готовки и зону прима пищи. Самое удобное при таком варианте размещения – не нужно переносить коммуникации, а достаточно всего лишь повернуть патрубки в другую сторону;
- рабочую зону, как правило, размещают вдоль стен. Туда прекрасно впишется рабочий стол, стул и стеллаж с книгами или высокий и неглубокий книжный шкаф. Есть примеры интерьеров и с двумя шкафами, что выглядит отнюдь не загромождено, а вполне удачно и симметрично. Если квартира угловая, то прекрасным вариантом станет размещение рабочей зоны напротив окна. Это будет не только функционально, но и станет благоприятно воздействовать на работоспособность домочадцев;
- вместо кухни (в помещении, где она должна размещаться) можно сделать детскую или же спальню. Даже при таком раскладе в квартире площадью 30 кв м удается разместить двуспальную кровать.
Если ваша квартира квадратная или прямоугольная, тогда разместив в отдельной комнате спальню, можно оформить оставшееся пространство под студию. Такой прием очень популярен на Западе, и все чаще используется и в современных российских квартирах.
При зонировании своей квартиры воспользуйтесь следующими рекомендациями:
- на плане обозначайте зоны разными цветами, это будет выглядеть нагляднее и понятнее. Например, зону кухни – красным, гостиной – зеленым, рабочую зону – желтым, а санузел – синим;
- не бойтесь менять уровень пола и потолка. Это значительнее облегчит работу при выделении функциональных зон;
- акцентируйте внимание на освещении. Игра света и тени зачастую меняет внешний облик пространства до неузнаваемости;
- выберите несколько предметов мебели внушительных размеров, чтобы обозначить ими функциональные зоны.

Следует запомнить, что любое изменение внутреннего пространства вашей квартиры необходимо привести в соответствие со строительными нормами. Каждый раз перед началом крупного ремонта и выполнения сложных строительных манипуляций проект должен быть утвержден в службе по эксплуатации жилых зданий. Таким образом, не пренебрегайте дизайнерским планом и проектом будущего жилья. На данный момент существует множество готовых проектов на любой вкус. Наиболее распространены разработки для квартир площадью 35 и 36 кв м.
Строительные изменения внутреннего пространства происходят следующим образом:
- применяются гипсокартонные перегородки и специальные устройства, которые создают ниши и островки. Балкон, если такой имеется, иногда вписывают в пространство квартиры.
Но стоит позаботиться о гидро- и теплоизоляции. Если вы сносите и вновь создаете перегородки, то обращайте внимание на вентиляцию и вытяжку;
- напольное покрытие различно для каждой из зон. Ковролин в гостиной, плитка в ванной, а линолеум на кухне. То же самое происходит и с отделкой стен. Не забывайте, что в вашем распоряжении контролирование уровня пола и потолка. Такая хитрость может значительно отразиться на восприятии пространства. После этого можно приступить к самому интересному – оформлению интерьера, расстановке мебели, а также добавлению штрихов и акцентов с помощью аксессуаров.
В зависимости от формы квартиры
Планировка будущего места жительства полностью опирается на размеры и форму пространства.
Если вы грамотно все расставите и примете во внимание форму квартиры, то по итогу получите не только уютную и просторную квартиру, но и удобное для жизни уютное местечко.
Стоит также принимать во внимание и ваши личные предпочтения. Существуют ярые фанаты квартир- студий и необычных лофтов. Как правило, это молодые люди, занимающиеся карьерой и, не обремененные созданием семьи. Для молодых семей с маленькими детьми и людей старшего поколения отлично подойдут улучшенные «хрущевки» и малогабаритные квартиры, где обязательно будет отдельная комната для еще одной спальни.
Существует три основные схемы однокомнатных квартир:
- это угловая квартира, для которой характерно 2-3 окна и окружение несколькими наружными стенами;
- также есть две похожие формы – квадратная и прямоугольная квартиры.
Они отличаются расположением внутри дома и круговой планировкой внутри квартиры.
Угловая
Современное жилье сейчас достаточно разнообразно, потому что архитекторы не скупятся на идеи и создают замысловатые проекты домов. Из-за этого иногда страдают планировки квартир. Появляется большое количество жилплощади сложной конфигурации и угловые площади, поэтому зачастую людям, приобретающим такие квартиры, сложно грамотно зонировать пространство.
Считается, что у таких жилищ есть еще ряд минусов – шум, холодный ветер и большое количество окон, в которые постоянно кто-то смотрит.
На самом деле многие недостатки прекрасно превращаются в достоинства.
Например, при правильном утеплении квартиры вы не будете чувствовать дискомфорт в холодное время года. Напротив, в таком жилище всегда будет тепло и уютно, да и утеплитель нужен далеко не всегда. Современные строительные технологии справляются с этой задачей еще на стадии строительства.
Обилие окон для малогабаритной квартиры просто находка, так как большое количество проницаемого света сделает пространство больше и светлее.
В случае с угловой квартирой оптимальным вариантом будет совмещение кухни с гостиной. Отдельную комнату лучше выделить для спальни. Кухня встроенная, вписывается в одну прямую. Обеденный стол стоит за диваном.
Таким образом, пространство приобретает правильную геометрическую форму.
Прямоугольная
Для создания проекта оформления прямоугольной квартиры необходимо применять особые техники и методы оптической коррекции жилого пространства.
Чаще всего квартиры прямоугольного типа – это квартиры-студии. Они имеют свои преимущества и недостатки. К негативным сторонам относятся небольшая площадь, отсутствие лоджии или балкона, отсутствие шумоизоляции, наличие сквозняков.
Положительные качества такой квартиры – это обилие света, отсутствие перегородок и перестенков, единое жилое пространство, простота уборки.
Особенностью планировки такой квартиры является принцип зонирования. Так как пространство едино и не разделено ничем, то жилец сам должен позаботиться о разграничении функциональных зон, если это необходимо. Гостиную следует разместить в центре квартиры (ближе к окну). С помощью стеллажа или книжного шкафа можно отделить от гостиной рабочую зону или спальню. С другой стороны стоит поставить барную стойку, которая отделит от гостиной кухню и обеденную зону.
Квадратная
Планирование квадратной квартиры почти ничем не отличается от прямоугольного предшественника.
Единственная особенность такого жилья – его очень маленький размер. Как правило, такие квартиры имеют площадь около 30 кв м.
Совет, которым необходимо воспользоваться в этом случае – это сделать трансформацию помещения.
В такой маленькой квартире необходимо скомпоновать все предметы так, чтобы пространство было использовано максимально по назначению. Выбирайте встроенную мебель и мебель-трансформеры. Рабочую зону лучше перенести к окну, чтобы можно было работать при естественном освещении. При желании ее получится отделить от основного помещения шторой.
Если в квартире высокие потолки, то можно смело воспользоваться двухъярусной конструкцией.
Как оформить?
Дизайн интерьера играет огромную роль в восприятии пространства жилых помещений.
В особенности, если речь идет о маленькой квартире. Правильно выбранный стиль и ловкие дизайнерские решения могут увеличить пространство и создать иллюзию большей площади комнаты.
Существует несколько базовых принципов, которые помогут вам зрительно расширить помещение:
- использование большого количество источников освещения;
- выбирать светлые цвета стен, потолка и пола;
- отдавать предпочтение встроенной и трансформирующейся мебели;
- избегайте длинной мебели вдоль стен;
- украшайте стены зеркалами, обращенными друг напротив друга;
- не загромождайте комнату лишними предметами декора и аксессуарами.
Дизайн интерьера полностью зависит от предпочтений жильца.
Существует множество готовых проектов на любой вкус, воссоздающих в интерьере тот или иной стиль, будь то неоклассика или хай-тек. Но чаще всего, делая стандартный ремонт в малогабаритной квартире, жильцы и дизайнеры обращаются к минимализму. Минимализм сочетает в себе простоту и функциональность, что прекрасно дополняет небольшую площадь квартиры. Здесь правят светлые оттенки, минимум деталей и компактная и функциональная мебель.
Популярен в сегодняшнее время стиль квартир-студий. Это, как правило, полностью не разграниченное пространство, высокие потолки, и панорамные окна. В отделке присутствует имитация дерева, кирпича и бетона. Мебель в минималистическом стиле соседствует с антикварными предметами. Большое количество растений и аксессуаров – декоративные подушки, гирлянды, подсвечники и статуэтки.
Для молодых семей предпочтительным является оригинальный колониальный стиль. Он сочетает в себе комфорт и удобство. Характерными особенностями этого стиля является соседство с традиционными мотивами экзотических заморских включений. Плетеная мебель, металлические осветительные приборы, предметы декора в виде картин, вееров, рогов животных. Все это создает контраст востока и запада, соединившихся в этом интерьере.
Если квартира-студия предназначается для пожилых людей или пенсионеров, то отличным дизайнерским решением станет оформление интерьера в типовом стиле прованс.
Деревянная мебель в сочетании с цветастым текстилем создает атмосферу уюта и домашнего очага. На стенах прекрасно разместятся семейные фотографии в красивых рамах, а главным акцентом квартиры станет кухня и обеденная зона.
Полной противоположностью стиля прованс считается стиль хай-тек. Это направление чаще выбирают молодые люди, которые любят и ценят современный стиль и новые технологии. Сочетание белого, черного и металлических цветов делает интерьер структурированным. Яркие акценты в виде глянца, блеска и полупрозрачной мебели добавляют комнате грациозность и пафос.
Что касается мебели, то главное, что нужно делать – это избегать громоздкие и массивные предметы.
На кухне лучше использовать встроенную технику, а гарнитуры располагать по одной линии, например, вдоль стены в зоне приготовления пищи. Кухню лучше отделить от гостиной барной стойкой или тумбами-островами, и это место использовать в качестве обеденной зоны.
В гостиной телевизор лучше повесить на стену, а диван разместить напротив и обратить его спинкой к зоне кухни. Рабочую зону можно отделить от гостиной стеллажом или книжным шкафом. Также там следует поместить дополнительное освещение. Спальная зона может находиться либо в отдельной комнате, либо в этом же помещении. Тогда ее следует отделить от основного пространства шторой, а саму кровать сделать складывающейся.
В спальную зону прекрасно впишется шкаф – купе.
Красивые варианты в интерьере
Как показывает практика, в однокомнатной квартире могут проживать люди разных возрастов, профессий и в разном количестве. От правильного выбора планировки, подходящего оформления и удачно расставленной мебели будет зависеть, насколько комфортной станет жизнь в этой квартире. Станет ли она местом, куда с радостью хочется бежать после трудного дня, или же это будет тесная и темная лачуга, где нет свободного места ни одной лишней вещи?
Существуют дизайнерские проекты, в которых удается не совмещать кухню с жилой комнатой. В такой функциональной комнате отлично соседствуют гостиная, спальня и рабочая зона.
Кровать лучше выбрать откидную, которая прячется днем в шкаф, а диван раскладывающийся. Это помогает здорово сэкономить место. Оптически вытянуть и расширить пространство помогут зеркала на стенах и шкафах, а также обои в вертикальную полоску.
Еще один вариант интерьера квартиры-студии, где от общего пространства отделен только санузел. Современные инновации помогают отделить функциональные зоны друг от друга межкомнатными перегородками. Эффект большого пространства создается с помощью светлой цветовой гаммы и большого количества осветительных приборов. Кстати, в интерьере можно использовать не только обои и декоративную краску, но и древесину светлых пород и теплых оттенков. Это сделает ансамбль мягче и утонченнее.
Довольно редко, но встречаются интерьеры с двумя спальнями в однокомнатной квартире.
Такой нестандартный случай достаточно сложен в исполнении. Идеальным вариантом будут две полноценные комнаты, при этом оставив достаточно пространства для других функциональных зон. В этом случае одну спальню можно сделать в одной части квартиры, используя откидную кровать.
Визуально разделить пространство поможет подиум или иное возвышение для второй кровати, либо следует прибегнуть к установке кровати-чердака, где спальное место расположена сверху, а внизу находиться рабочая зона.
Далее вы можете ознакомиться с одним из удачных проектов однокомнатной квартиры.
youtube.com/embed/FGKhZtgiI1M?modestbranding=1&iv_load_policy=3&rel=0″/>
варианты дизайна 1-комнатной квартиры площадью 36, 32, 30 и 40 кв. м для семьи с ребенком
В современных реалиях однокомнатные квартиры пользуются большой популярностью, как у молодых, так и у семейных людей в возрасте. Это обусловлено низкой стоимостью таких жилищ, а также их практичностью и функциональностью. Но приобретая свою, хоть и небольшую жилплощадь в новостройке, нам хочется сделать планировку максимально уютной и удобной для жизни.
Планировка однокомнатной квартиры хороша тем, что здесь можно воплотить практически все идеи и замыслы за небольшое количество времени, не прибегая к использованию «замудренных» проектов и дорогостоящих услуг дизайнеров интерьера. Вам под силу сделать это самому. Таким образом, можно будет вложить часть себя в интерьер будущего гнездышка.
Особенности планировки
Однокомнатные квартиры действительно очень востребованы. Об этом свидетельствует тот факт, что практически во всех новостройках есть площади подобного плана. Но не стоит забывать и о вторичном рынке недвижимости. Здесь широко представлены «хрущевки» и «брежневки» в панельных домах советского типа.
В любом случае, приобретая квартиру в новом или же в старом доме, любое пространство можно переделать под себя.
Существует ряд недостатков однокомнатных квартир, которые необходимо учитывать при планировке:
- маленькая площадь жилого пространства – в среднем, она составляет 32 кв м;
- в большинстве проектов квартиры имеют низкие потолки;
- небольшое пространство, отведенное под санузел и кухню;
- тесный коридор;
- отсутствие антресолей;
- не всегда есть балкон или лоджия;
- чаще всего такие квартиры расположены в многоэтажных домах, а не в пятиэтажках.

Однако несомненным плюсом однокомнатных квартир является то, что они имеют расположение во внутренней части дома, а это значит, что эти квартиры значительно теплее тех, что находятся в торцевой половине. Вот несколько золотых правил, которыми следует руководствоваться при планировки однокомнатной квартиры:
- старайтесь показать больше свободного пространства. Это поможет создать чувство простора и свободы;
- не забывайте использовать больше света. Если источников естественного освещения мало, то без раздумий устанавливайте бра, торшеры, настольные лампы;
- играйте с цветовыми сочетаниями. Нет обязательного правила делать потолок белым, он может быть любого цвета.
Воспользуйтесь хитрым приемом – потолок всегда должен быть на несколько оттенков светлее стен. Это визуально увеличит помещение; - в интерьер можно добавить глянцевый потолок и ряды зеркал на стенах. Все это так же значительно увеличит пространство жилища;
- отдайте предпочтение стилю минимализм. В его основе лежит простота форм и лаконичность;
- постарайтесь максимально использовать встроенную мебель;
- в качестве перегородки между комнатами можно использовать книжный шкаф или стеллаж. Этот вариант намного практичней, чем перегородка из гипсокартона или ДСП.
Зонирование пространства
Для создания дополнительного места в 1-комнатной квартире используют принцип зонирования пространства.
Частым явлением считается переделка однокомнатной квартиры в двухкомнатную с помощью перегородок, стеллажей и возведения новых стен. Но не стоит забывать о том, что такой вариант подходит лишь для квартир с электроплитами.
Лучше всего реорганизовывать квартиры площадью 37, 40 и 42 кв. м.
Для чего устанавливаются перегородки и стены в однокомнатной квартире? Ответ прост – для создания новой отдельной комнаты. Какой она будет являться, зависит от жильцов. Это может быть детская, если речь идет о семье с ребенком среднего и старшего возраста. Также дополнительное пространство может стать гардеробной, кладовкой, кабинетом и даже небольшой гостиной.
Самыми распространенными вариантами перепланировки являются следующие:
- кухню часто переносят в гостиную, тогда гостиная или спальня становиться отдельной закрытой комнатой, а кухня в свою очередь, вписывается в оставшееся пространство.
Таким образом, есть возможность совместить зону готовки и зону прима пищи. Самое удобное при таком варианте размещения – не нужно переносить коммуникации, а достаточно всего лишь повернуть патрубки в другую сторону;
- рабочую зону, как правило, размещают вдоль стен. Туда прекрасно впишется рабочий стол, стул и стеллаж с книгами или высокий и неглубокий книжный шкаф. Есть примеры интерьеров и с двумя шкафами, что выглядит отнюдь не загромождено, а вполне удачно и симметрично. Если квартира угловая, то прекрасным вариантом станет размещение рабочей зоны напротив окна. Это будет не только функционально, но и станет благоприятно воздействовать на работоспособность домочадцев;
- вместо кухни (в помещении, где она должна размещаться) можно сделать детскую или же спальню. Даже при таком раскладе в квартире площадью 30 кв м удается разместить двуспальную кровать.
Если ваша квартира квадратная или прямоугольная, тогда разместив в отдельной комнате спальню, можно оформить оставшееся пространство под студию. Такой прием очень популярен на Западе, и все чаще используется и в современных российских квартирах.
При зонировании своей квартиры воспользуйтесь следующими рекомендациями:
- на плане обозначайте зоны разными цветами, это будет выглядеть нагляднее и понятнее. Например, зону кухни – красным, гостиной – зеленым, рабочую зону – желтым, а санузел – синим;
- не бойтесь менять уровень пола и потолка. Это значительнее облегчит работу при выделении функциональных зон;
- акцентируйте внимание на освещении. Игра света и тени зачастую меняет внешний облик пространства до неузнаваемости;
- выберите несколько предметов мебели внушительных размеров, чтобы обозначить ими функциональные зоны.

Следует запомнить, что любое изменение внутреннего пространства вашей квартиры необходимо привести в соответствие со строительными нормами. Каждый раз перед началом крупного ремонта и выполнения сложных строительных манипуляций проект должен быть утвержден в службе по эксплуатации жилых зданий. Таким образом, не пренебрегайте дизайнерским планом и проектом будущего жилья. На данный момент существует множество готовых проектов на любой вкус. Наиболее распространены разработки для квартир площадью 35 и 36 кв м.
Строительные изменения внутреннего пространства происходят следующим образом:
- применяются гипсокартонные перегородки и специальные устройства, которые создают ниши и островки. Балкон, если такой имеется, иногда вписывают в пространство квартиры.
Но стоит позаботиться о гидро- и теплоизоляции. Если вы сносите и вновь создаете перегородки, то обращайте внимание на вентиляцию и вытяжку;
- напольное покрытие различно для каждой из зон. Ковролин в гостиной, плитка в ванной, а линолеум на кухне. То же самое происходит и с отделкой стен. Не забывайте, что в вашем распоряжении контролирование уровня пола и потолка. Такая хитрость может значительно отразиться на восприятии пространства. После этого можно приступить к самому интересному – оформлению интерьера, расстановке мебели, а также добавлению штрихов и акцентов с помощью аксессуаров.
В зависимости от формы квартиры
Планировка будущего места жительства полностью опирается на размеры и форму пространства.
Если вы грамотно все расставите и примете во внимание форму квартиры, то по итогу получите не только уютную и просторную квартиру, но и удобное для жизни уютное местечко.
Стоит также принимать во внимание и ваши личные предпочтения. Существуют ярые фанаты квартир- студий и необычных лофтов. Как правило, это молодые люди, занимающиеся карьерой и, не обремененные созданием семьи. Для молодых семей с маленькими детьми и людей старшего поколения отлично подойдут улучшенные «хрущевки» и малогабаритные квартиры, где обязательно будет отдельная комната для еще одной спальни.
Существует три основные схемы однокомнатных квартир:
- это угловая квартира, для которой характерно 2-3 окна и окружение несколькими наружными стенами;
- также есть две похожие формы – квадратная и прямоугольная квартиры.
Они отличаются расположением внутри дома и круговой планировкой внутри квартиры.
Угловая
Современное жилье сейчас достаточно разнообразно, потому что архитекторы не скупятся на идеи и создают замысловатые проекты домов. Из-за этого иногда страдают планировки квартир. Появляется большое количество жилплощади сложной конфигурации и угловые площади, поэтому зачастую людям, приобретающим такие квартиры, сложно грамотно зонировать пространство.
Считается, что у таких жилищ есть еще ряд минусов – шум, холодный ветер и большое количество окон, в которые постоянно кто-то смотрит.
На самом деле многие недостатки прекрасно превращаются в достоинства.
Например, при правильном утеплении квартиры вы не будете чувствовать дискомфорт в холодное время года. Напротив, в таком жилище всегда будет тепло и уютно, да и утеплитель нужен далеко не всегда. Современные строительные технологии справляются с этой задачей еще на стадии строительства.
Обилие окон для малогабаритной квартиры просто находка, так как большое количество проницаемого света сделает пространство больше и светлее.
В случае с угловой квартирой оптимальным вариантом будет совмещение кухни с гостиной. Отдельную комнату лучше выделить для спальни. Кухня встроенная, вписывается в одну прямую. Обеденный стол стоит за диваном.
Таким образом, пространство приобретает правильную геометрическую форму.
Прямоугольная
Для создания проекта оформления прямоугольной квартиры необходимо применять особые техники и методы оптической коррекции жилого пространства.
Чаще всего квартиры прямоугольного типа – это квартиры-студии. Они имеют свои преимущества и недостатки. К негативным сторонам относятся небольшая площадь, отсутствие лоджии или балкона, отсутствие шумоизоляции, наличие сквозняков.
Положительные качества такой квартиры – это обилие света, отсутствие перегородок и перестенков, единое жилое пространство, простота уборки.
Особенностью планировки такой квартиры является принцип зонирования. Так как пространство едино и не разделено ничем, то жилец сам должен позаботиться о разграничении функциональных зон, если это необходимо. Гостиную следует разместить в центре квартиры (ближе к окну). С помощью стеллажа или книжного шкафа можно отделить от гостиной рабочую зону или спальню. С другой стороны стоит поставить барную стойку, которая отделит от гостиной кухню и обеденную зону.
Квадратная
Планирование квадратной квартиры почти ничем не отличается от прямоугольного предшественника.
Единственная особенность такого жилья – его очень маленький размер. Как правило, такие квартиры имеют площадь около 30 кв м.
Совет, которым необходимо воспользоваться в этом случае – это сделать трансформацию помещения.
В такой маленькой квартире необходимо скомпоновать все предметы так, чтобы пространство было использовано максимально по назначению. Выбирайте встроенную мебель и мебель-трансформеры. Рабочую зону лучше перенести к окну, чтобы можно было работать при естественном освещении. При желании ее получится отделить от основного помещения шторой.
Если в квартире высокие потолки, то можно смело воспользоваться двухъярусной конструкцией.
Как оформить?
Дизайн интерьера играет огромную роль в восприятии пространства жилых помещений.
В особенности, если речь идет о маленькой квартире. Правильно выбранный стиль и ловкие дизайнерские решения могут увеличить пространство и создать иллюзию большей площади комнаты.
Существует несколько базовых принципов, которые помогут вам зрительно расширить помещение:
- использование большого количество источников освещения;
- выбирать светлые цвета стен, потолка и пола;
- отдавать предпочтение встроенной и трансформирующейся мебели;
- избегайте длинной мебели вдоль стен;
- украшайте стены зеркалами, обращенными друг напротив друга;
- не загромождайте комнату лишними предметами декора и аксессуарами.
Дизайн интерьера полностью зависит от предпочтений жильца.
Существует множество готовых проектов на любой вкус, воссоздающих в интерьере тот или иной стиль, будь то неоклассика или хай-тек. Но чаще всего, делая стандартный ремонт в малогабаритной квартире, жильцы и дизайнеры обращаются к минимализму. Минимализм сочетает в себе простоту и функциональность, что прекрасно дополняет небольшую площадь квартиры. Здесь правят светлые оттенки, минимум деталей и компактная и функциональная мебель.
Популярен в сегодняшнее время стиль квартир-студий. Это, как правило, полностью не разграниченное пространство, высокие потолки, и панорамные окна. В отделке присутствует имитация дерева, кирпича и бетона. Мебель в минималистическом стиле соседствует с антикварными предметами. Большое количество растений и аксессуаров – декоративные подушки, гирлянды, подсвечники и статуэтки.
Для молодых семей предпочтительным является оригинальный колониальный стиль. Он сочетает в себе комфорт и удобство. Характерными особенностями этого стиля является соседство с традиционными мотивами экзотических заморских включений. Плетеная мебель, металлические осветительные приборы, предметы декора в виде картин, вееров, рогов животных. Все это создает контраст востока и запада, соединившихся в этом интерьере.
Если квартира-студия предназначается для пожилых людей или пенсионеров, то отличным дизайнерским решением станет оформление интерьера в типовом стиле прованс.
Деревянная мебель в сочетании с цветастым текстилем создает атмосферу уюта и домашнего очага. На стенах прекрасно разместятся семейные фотографии в красивых рамах, а главным акцентом квартиры станет кухня и обеденная зона.
Полной противоположностью стиля прованс считается стиль хай-тек. Это направление чаще выбирают молодые люди, которые любят и ценят современный стиль и новые технологии. Сочетание белого, черного и металлических цветов делает интерьер структурированным. Яркие акценты в виде глянца, блеска и полупрозрачной мебели добавляют комнате грациозность и пафос.
Что касается мебели, то главное, что нужно делать – это избегать громоздкие и массивные предметы.
На кухне лучше использовать встроенную технику, а гарнитуры располагать по одной линии, например, вдоль стены в зоне приготовления пищи. Кухню лучше отделить от гостиной барной стойкой или тумбами-островами, и это место использовать в качестве обеденной зоны.
В гостиной телевизор лучше повесить на стену, а диван разместить напротив и обратить его спинкой к зоне кухни. Рабочую зону можно отделить от гостиной стеллажом или книжным шкафом. Также там следует поместить дополнительное освещение. Спальная зона может находиться либо в отдельной комнате, либо в этом же помещении. Тогда ее следует отделить от основного пространства шторой, а саму кровать сделать складывающейся.
В спальную зону прекрасно впишется шкаф – купе.
Красивые варианты в интерьере
Как показывает практика, в однокомнатной квартире могут проживать люди разных возрастов, профессий и в разном количестве. От правильного выбора планировки, подходящего оформления и удачно расставленной мебели будет зависеть, насколько комфортной станет жизнь в этой квартире. Станет ли она местом, куда с радостью хочется бежать после трудного дня, или же это будет тесная и темная лачуга, где нет свободного места ни одной лишней вещи?
Существуют дизайнерские проекты, в которых удается не совмещать кухню с жилой комнатой. В такой функциональной комнате отлично соседствуют гостиная, спальня и рабочая зона.
Кровать лучше выбрать откидную, которая прячется днем в шкаф, а диван раскладывающийся. Это помогает здорово сэкономить место. Оптически вытянуть и расширить пространство помогут зеркала на стенах и шкафах, а также обои в вертикальную полоску.
Еще один вариант интерьера квартиры-студии, где от общего пространства отделен только санузел. Современные инновации помогают отделить функциональные зоны друг от друга межкомнатными перегородками. Эффект большого пространства создается с помощью светлой цветовой гаммы и большого количества осветительных приборов. Кстати, в интерьере можно использовать не только обои и декоративную краску, но и древесину светлых пород и теплых оттенков. Это сделает ансамбль мягче и утонченнее.
Довольно редко, но встречаются интерьеры с двумя спальнями в однокомнатной квартире.
Такой нестандартный случай достаточно сложен в исполнении. Идеальным вариантом будут две полноценные комнаты, при этом оставив достаточно пространства для других функциональных зон. В этом случае одну спальню можно сделать в одной части квартиры, используя откидную кровать.
Визуально разделить пространство поможет подиум или иное возвышение для второй кровати, либо следует прибегнуть к установке кровати-чердака, где спальное место расположена сверху, а внизу находиться рабочая зона.
Далее вы можете ознакомиться с одним из удачных проектов однокомнатной квартиры.
youtube.com/embed/FGKhZtgiI1M?modestbranding=1&iv_load_policy=3&rel=0″/>
варианты дизайна 1-комнатной квартиры площадью 36, 32, 30 и 40 кв. м для семьи с ребенком
В современных реалиях однокомнатные квартиры пользуются большой популярностью, как у молодых, так и у семейных людей в возрасте. Это обусловлено низкой стоимостью таких жилищ, а также их практичностью и функциональностью. Но приобретая свою, хоть и небольшую жилплощадь в новостройке, нам хочется сделать планировку максимально уютной и удобной для жизни.
Планировка однокомнатной квартиры хороша тем, что здесь можно воплотить практически все идеи и замыслы за небольшое количество времени, не прибегая к использованию «замудренных» проектов и дорогостоящих услуг дизайнеров интерьера. Вам под силу сделать это самому. Таким образом, можно будет вложить часть себя в интерьер будущего гнездышка.
Особенности планировки
Однокомнатные квартиры действительно очень востребованы. Об этом свидетельствует тот факт, что практически во всех новостройках есть площади подобного плана. Но не стоит забывать и о вторичном рынке недвижимости. Здесь широко представлены «хрущевки» и «брежневки» в панельных домах советского типа.
В любом случае, приобретая квартиру в новом или же в старом доме, любое пространство можно переделать под себя.
Существует ряд недостатков однокомнатных квартир, которые необходимо учитывать при планировке:
- маленькая площадь жилого пространства – в среднем, она составляет 32 кв м;
- в большинстве проектов квартиры имеют низкие потолки;
- небольшое пространство, отведенное под санузел и кухню;
- тесный коридор;
- отсутствие антресолей;
- не всегда есть балкон или лоджия;
- чаще всего такие квартиры расположены в многоэтажных домах, а не в пятиэтажках.

Однако несомненным плюсом однокомнатных квартир является то, что они имеют расположение во внутренней части дома, а это значит, что эти квартиры значительно теплее тех, что находятся в торцевой половине. Вот несколько золотых правил, которыми следует руководствоваться при планировки однокомнатной квартиры:
- старайтесь показать больше свободного пространства. Это поможет создать чувство простора и свободы;
- не забывайте использовать больше света. Если источников естественного освещения мало, то без раздумий устанавливайте бра, торшеры, настольные лампы;
- играйте с цветовыми сочетаниями. Нет обязательного правила делать потолок белым, он может быть любого цвета.
Воспользуйтесь хитрым приемом – потолок всегда должен быть на несколько оттенков светлее стен. Это визуально увеличит помещение; - в интерьер можно добавить глянцевый потолок и ряды зеркал на стенах. Все это так же значительно увеличит пространство жилища;
- отдайте предпочтение стилю минимализм. В его основе лежит простота форм и лаконичность;
- постарайтесь максимально использовать встроенную мебель;
- в качестве перегородки между комнатами можно использовать книжный шкаф или стеллаж. Этот вариант намного практичней, чем перегородка из гипсокартона или ДСП.
Зонирование пространства
Для создания дополнительного места в 1-комнатной квартире используют принцип зонирования пространства.
Частым явлением считается переделка однокомнатной квартиры в двухкомнатную с помощью перегородок, стеллажей и возведения новых стен. Но не стоит забывать о том, что такой вариант подходит лишь для квартир с электроплитами.
Лучше всего реорганизовывать квартиры площадью 37, 40 и 42 кв. м.
Для чего устанавливаются перегородки и стены в однокомнатной квартире? Ответ прост – для создания новой отдельной комнаты. Какой она будет являться, зависит от жильцов. Это может быть детская, если речь идет о семье с ребенком среднего и старшего возраста. Также дополнительное пространство может стать гардеробной, кладовкой, кабинетом и даже небольшой гостиной.
Самыми распространенными вариантами перепланировки являются следующие:
- кухню часто переносят в гостиную, тогда гостиная или спальня становиться отдельной закрытой комнатой, а кухня в свою очередь, вписывается в оставшееся пространство.
Таким образом, есть возможность совместить зону готовки и зону прима пищи. Самое удобное при таком варианте размещения – не нужно переносить коммуникации, а достаточно всего лишь повернуть патрубки в другую сторону;
- рабочую зону, как правило, размещают вдоль стен. Туда прекрасно впишется рабочий стол, стул и стеллаж с книгами или высокий и неглубокий книжный шкаф. Есть примеры интерьеров и с двумя шкафами, что выглядит отнюдь не загромождено, а вполне удачно и симметрично. Если квартира угловая, то прекрасным вариантом станет размещение рабочей зоны напротив окна. Это будет не только функционально, но и станет благоприятно воздействовать на работоспособность домочадцев;
- вместо кухни (в помещении, где она должна размещаться) можно сделать детскую или же спальню. Даже при таком раскладе в квартире площадью 30 кв м удается разместить двуспальную кровать.
Если ваша квартира квадратная или прямоугольная, тогда разместив в отдельной комнате спальню, можно оформить оставшееся пространство под студию. Такой прием очень популярен на Западе, и все чаще используется и в современных российских квартирах.
При зонировании своей квартиры воспользуйтесь следующими рекомендациями:
- на плане обозначайте зоны разными цветами, это будет выглядеть нагляднее и понятнее. Например, зону кухни – красным, гостиной – зеленым, рабочую зону – желтым, а санузел – синим;
- не бойтесь менять уровень пола и потолка. Это значительнее облегчит работу при выделении функциональных зон;
- акцентируйте внимание на освещении. Игра света и тени зачастую меняет внешний облик пространства до неузнаваемости;
- выберите несколько предметов мебели внушительных размеров, чтобы обозначить ими функциональные зоны.

Следует запомнить, что любое изменение внутреннего пространства вашей квартиры необходимо привести в соответствие со строительными нормами. Каждый раз перед началом крупного ремонта и выполнения сложных строительных манипуляций проект должен быть утвержден в службе по эксплуатации жилых зданий. Таким образом, не пренебрегайте дизайнерским планом и проектом будущего жилья. На данный момент существует множество готовых проектов на любой вкус. Наиболее распространены разработки для квартир площадью 35 и 36 кв м.
Строительные изменения внутреннего пространства происходят следующим образом:
- применяются гипсокартонные перегородки и специальные устройства, которые создают ниши и островки. Балкон, если такой имеется, иногда вписывают в пространство квартиры.
Но стоит позаботиться о гидро- и теплоизоляции. Если вы сносите и вновь создаете перегородки, то обращайте внимание на вентиляцию и вытяжку;
- напольное покрытие различно для каждой из зон. Ковролин в гостиной, плитка в ванной, а линолеум на кухне. То же самое происходит и с отделкой стен. Не забывайте, что в вашем распоряжении контролирование уровня пола и потолка. Такая хитрость может значительно отразиться на восприятии пространства. После этого можно приступить к самому интересному – оформлению интерьера, расстановке мебели, а также добавлению штрихов и акцентов с помощью аксессуаров.
В зависимости от формы квартиры
Планировка будущего места жительства полностью опирается на размеры и форму пространства.
Если вы грамотно все расставите и примете во внимание форму квартиры, то по итогу получите не только уютную и просторную квартиру, но и удобное для жизни уютное местечко.
Стоит также принимать во внимание и ваши личные предпочтения. Существуют ярые фанаты квартир- студий и необычных лофтов. Как правило, это молодые люди, занимающиеся карьерой и, не обремененные созданием семьи. Для молодых семей с маленькими детьми и людей старшего поколения отлично подойдут улучшенные «хрущевки» и малогабаритные квартиры, где обязательно будет отдельная комната для еще одной спальни.
Существует три основные схемы однокомнатных квартир:
- это угловая квартира, для которой характерно 2-3 окна и окружение несколькими наружными стенами;
- также есть две похожие формы – квадратная и прямоугольная квартиры.
Они отличаются расположением внутри дома и круговой планировкой внутри квартиры.
Угловая
Современное жилье сейчас достаточно разнообразно, потому что архитекторы не скупятся на идеи и создают замысловатые проекты домов. Из-за этого иногда страдают планировки квартир. Появляется большое количество жилплощади сложной конфигурации и угловые площади, поэтому зачастую людям, приобретающим такие квартиры, сложно грамотно зонировать пространство.
Считается, что у таких жилищ есть еще ряд минусов – шум, холодный ветер и большое количество окон, в которые постоянно кто-то смотрит.
На самом деле многие недостатки прекрасно превращаются в достоинства.
Например, при правильном утеплении квартиры вы не будете чувствовать дискомфорт в холодное время года. Напротив, в таком жилище всегда будет тепло и уютно, да и утеплитель нужен далеко не всегда. Современные строительные технологии справляются с этой задачей еще на стадии строительства.
Обилие окон для малогабаритной квартиры просто находка, так как большое количество проницаемого света сделает пространство больше и светлее.
В случае с угловой квартирой оптимальным вариантом будет совмещение кухни с гостиной. Отдельную комнату лучше выделить для спальни. Кухня встроенная, вписывается в одну прямую. Обеденный стол стоит за диваном.
Таким образом, пространство приобретает правильную геометрическую форму.
Прямоугольная
Для создания проекта оформления прямоугольной квартиры необходимо применять особые техники и методы оптической коррекции жилого пространства.
Чаще всего квартиры прямоугольного типа – это квартиры-студии. Они имеют свои преимущества и недостатки. К негативным сторонам относятся небольшая площадь, отсутствие лоджии или балкона, отсутствие шумоизоляции, наличие сквозняков.
Положительные качества такой квартиры – это обилие света, отсутствие перегородок и перестенков, единое жилое пространство, простота уборки.
Особенностью планировки такой квартиры является принцип зонирования. Так как пространство едино и не разделено ничем, то жилец сам должен позаботиться о разграничении функциональных зон, если это необходимо. Гостиную следует разместить в центре квартиры (ближе к окну). С помощью стеллажа или книжного шкафа можно отделить от гостиной рабочую зону или спальню. С другой стороны стоит поставить барную стойку, которая отделит от гостиной кухню и обеденную зону.
Квадратная
Планирование квадратной квартиры почти ничем не отличается от прямоугольного предшественника.
Единственная особенность такого жилья – его очень маленький размер. Как правило, такие квартиры имеют площадь около 30 кв м.
Совет, которым необходимо воспользоваться в этом случае – это сделать трансформацию помещения.
В такой маленькой квартире необходимо скомпоновать все предметы так, чтобы пространство было использовано максимально по назначению. Выбирайте встроенную мебель и мебель-трансформеры. Рабочую зону лучше перенести к окну, чтобы можно было работать при естественном освещении. При желании ее получится отделить от основного помещения шторой.
Если в квартире высокие потолки, то можно смело воспользоваться двухъярусной конструкцией.
Как оформить?
Дизайн интерьера играет огромную роль в восприятии пространства жилых помещений.
В особенности, если речь идет о маленькой квартире. Правильно выбранный стиль и ловкие дизайнерские решения могут увеличить пространство и создать иллюзию большей площади комнаты.
Существует несколько базовых принципов, которые помогут вам зрительно расширить помещение:
- использование большого количество источников освещения;
- выбирать светлые цвета стен, потолка и пола;
- отдавать предпочтение встроенной и трансформирующейся мебели;
- избегайте длинной мебели вдоль стен;
- украшайте стены зеркалами, обращенными друг напротив друга;
- не загромождайте комнату лишними предметами декора и аксессуарами.
Дизайн интерьера полностью зависит от предпочтений жильца.
Существует множество готовых проектов на любой вкус, воссоздающих в интерьере тот или иной стиль, будь то неоклассика или хай-тек. Но чаще всего, делая стандартный ремонт в малогабаритной квартире, жильцы и дизайнеры обращаются к минимализму. Минимализм сочетает в себе простоту и функциональность, что прекрасно дополняет небольшую площадь квартиры. Здесь правят светлые оттенки, минимум деталей и компактная и функциональная мебель.
Популярен в сегодняшнее время стиль квартир-студий. Это, как правило, полностью не разграниченное пространство, высокие потолки, и панорамные окна. В отделке присутствует имитация дерева, кирпича и бетона. Мебель в минималистическом стиле соседствует с антикварными предметами. Большое количество растений и аксессуаров – декоративные подушки, гирлянды, подсвечники и статуэтки.
Для молодых семей предпочтительным является оригинальный колониальный стиль. Он сочетает в себе комфорт и удобство. Характерными особенностями этого стиля является соседство с традиционными мотивами экзотических заморских включений. Плетеная мебель, металлические осветительные приборы, предметы декора в виде картин, вееров, рогов животных. Все это создает контраст востока и запада, соединившихся в этом интерьере.
Если квартира-студия предназначается для пожилых людей или пенсионеров, то отличным дизайнерским решением станет оформление интерьера в типовом стиле прованс.
Деревянная мебель в сочетании с цветастым текстилем создает атмосферу уюта и домашнего очага. На стенах прекрасно разместятся семейные фотографии в красивых рамах, а главным акцентом квартиры станет кухня и обеденная зона.
Полной противоположностью стиля прованс считается стиль хай-тек. Это направление чаще выбирают молодые люди, которые любят и ценят современный стиль и новые технологии. Сочетание белого, черного и металлических цветов делает интерьер структурированным. Яркие акценты в виде глянца, блеска и полупрозрачной мебели добавляют комнате грациозность и пафос.
Что касается мебели, то главное, что нужно делать – это избегать громоздкие и массивные предметы.
На кухне лучше использовать встроенную технику, а гарнитуры располагать по одной линии, например, вдоль стены в зоне приготовления пищи. Кухню лучше отделить от гостиной барной стойкой или тумбами-островами, и это место использовать в качестве обеденной зоны.
В гостиной телевизор лучше повесить на стену, а диван разместить напротив и обратить его спинкой к зоне кухни. Рабочую зону можно отделить от гостиной стеллажом или книжным шкафом. Также там следует поместить дополнительное освещение. Спальная зона может находиться либо в отдельной комнате, либо в этом же помещении. Тогда ее следует отделить от основного пространства шторой, а саму кровать сделать складывающейся.
В спальную зону прекрасно впишется шкаф – купе.
Красивые варианты в интерьере
Как показывает практика, в однокомнатной квартире могут проживать люди разных возрастов, профессий и в разном количестве. От правильного выбора планировки, подходящего оформления и удачно расставленной мебели будет зависеть, насколько комфортной станет жизнь в этой квартире. Станет ли она местом, куда с радостью хочется бежать после трудного дня, или же это будет тесная и темная лачуга, где нет свободного места ни одной лишней вещи?
Существуют дизайнерские проекты, в которых удается не совмещать кухню с жилой комнатой. В такой функциональной комнате отлично соседствуют гостиная, спальня и рабочая зона.
Кровать лучше выбрать откидную, которая прячется днем в шкаф, а диван раскладывающийся. Это помогает здорово сэкономить место. Оптически вытянуть и расширить пространство помогут зеркала на стенах и шкафах, а также обои в вертикальную полоску.
Еще один вариант интерьера квартиры-студии, где от общего пространства отделен только санузел. Современные инновации помогают отделить функциональные зоны друг от друга межкомнатными перегородками. Эффект большого пространства создается с помощью светлой цветовой гаммы и большого количества осветительных приборов. Кстати, в интерьере можно использовать не только обои и декоративную краску, но и древесину светлых пород и теплых оттенков. Это сделает ансамбль мягче и утонченнее.
Довольно редко, но встречаются интерьеры с двумя спальнями в однокомнатной квартире.
Такой нестандартный случай достаточно сложен в исполнении. Идеальным вариантом будут две полноценные комнаты, при этом оставив достаточно пространства для других функциональных зон. В этом случае одну спальню можно сделать в одной части квартиры, используя откидную кровать.
Визуально разделить пространство поможет подиум или иное возвышение для второй кровати, либо следует прибегнуть к установке кровати-чердака, где спальное место расположена сверху, а внизу находиться рабочая зона.
Далее вы можете ознакомиться с одним из удачных проектов однокомнатной квартиры.
youtube.com/embed/FGKhZtgiI1M?modestbranding=1&iv_load_policy=3&rel=0″/>
варианты дизайна 1-комнатной квартиры площадью 36, 32, 30 и 40 кв. м для семьи с ребенком
В современных реалиях однокомнатные квартиры пользуются большой популярностью, как у молодых, так и у семейных людей в возрасте. Это обусловлено низкой стоимостью таких жилищ, а также их практичностью и функциональностью. Но приобретая свою, хоть и небольшую жилплощадь в новостройке, нам хочется сделать планировку максимально уютной и удобной для жизни.
Планировка однокомнатной квартиры хороша тем, что здесь можно воплотить практически все идеи и замыслы за небольшое количество времени, не прибегая к использованию «замудренных» проектов и дорогостоящих услуг дизайнеров интерьера. Вам под силу сделать это самому. Таким образом, можно будет вложить часть себя в интерьер будущего гнездышка.
Особенности планировки
Однокомнатные квартиры действительно очень востребованы. Об этом свидетельствует тот факт, что практически во всех новостройках есть площади подобного плана. Но не стоит забывать и о вторичном рынке недвижимости. Здесь широко представлены «хрущевки» и «брежневки» в панельных домах советского типа.
В любом случае, приобретая квартиру в новом или же в старом доме, любое пространство можно переделать под себя.
Существует ряд недостатков однокомнатных квартир, которые необходимо учитывать при планировке:
- маленькая площадь жилого пространства – в среднем, она составляет 32 кв м;
- в большинстве проектов квартиры имеют низкие потолки;
- небольшое пространство, отведенное под санузел и кухню;
- тесный коридор;
- отсутствие антресолей;
- не всегда есть балкон или лоджия;
- чаще всего такие квартиры расположены в многоэтажных домах, а не в пятиэтажках.

Однако несомненным плюсом однокомнатных квартир является то, что они имеют расположение во внутренней части дома, а это значит, что эти квартиры значительно теплее тех, что находятся в торцевой половине. Вот несколько золотых правил, которыми следует руководствоваться при планировки однокомнатной квартиры:
- старайтесь показать больше свободного пространства. Это поможет создать чувство простора и свободы;
- не забывайте использовать больше света. Если источников естественного освещения мало, то без раздумий устанавливайте бра, торшеры, настольные лампы;
- играйте с цветовыми сочетаниями. Нет обязательного правила делать потолок белым, он может быть любого цвета.
Воспользуйтесь хитрым приемом – потолок всегда должен быть на несколько оттенков светлее стен. Это визуально увеличит помещение; - в интерьер можно добавить глянцевый потолок и ряды зеркал на стенах. Все это так же значительно увеличит пространство жилища;
- отдайте предпочтение стилю минимализм. В его основе лежит простота форм и лаконичность;
- постарайтесь максимально использовать встроенную мебель;
- в качестве перегородки между комнатами можно использовать книжный шкаф или стеллаж. Этот вариант намного практичней, чем перегородка из гипсокартона или ДСП.
Зонирование пространства
Для создания дополнительного места в 1-комнатной квартире используют принцип зонирования пространства.
Частым явлением считается переделка однокомнатной квартиры в двухкомнатную с помощью перегородок, стеллажей и возведения новых стен. Но не стоит забывать о том, что такой вариант подходит лишь для квартир с электроплитами.
Лучше всего реорганизовывать квартиры площадью 37, 40 и 42 кв. м.
Для чего устанавливаются перегородки и стены в однокомнатной квартире? Ответ прост – для создания новой отдельной комнаты. Какой она будет являться, зависит от жильцов. Это может быть детская, если речь идет о семье с ребенком среднего и старшего возраста. Также дополнительное пространство может стать гардеробной, кладовкой, кабинетом и даже небольшой гостиной.
Самыми распространенными вариантами перепланировки являются следующие:
- кухню часто переносят в гостиную, тогда гостиная или спальня становиться отдельной закрытой комнатой, а кухня в свою очередь, вписывается в оставшееся пространство.
Таким образом, есть возможность совместить зону готовки и зону прима пищи. Самое удобное при таком варианте размещения – не нужно переносить коммуникации, а достаточно всего лишь повернуть патрубки в другую сторону;
- рабочую зону, как правило, размещают вдоль стен. Туда прекрасно впишется рабочий стол, стул и стеллаж с книгами или высокий и неглубокий книжный шкаф. Есть примеры интерьеров и с двумя шкафами, что выглядит отнюдь не загромождено, а вполне удачно и симметрично. Если квартира угловая, то прекрасным вариантом станет размещение рабочей зоны напротив окна. Это будет не только функционально, но и станет благоприятно воздействовать на работоспособность домочадцев;
- вместо кухни (в помещении, где она должна размещаться) можно сделать детскую или же спальню. Даже при таком раскладе в квартире площадью 30 кв м удается разместить двуспальную кровать.
Если ваша квартира квадратная или прямоугольная, тогда разместив в отдельной комнате спальню, можно оформить оставшееся пространство под студию. Такой прием очень популярен на Западе, и все чаще используется и в современных российских квартирах.
При зонировании своей квартиры воспользуйтесь следующими рекомендациями:
- на плане обозначайте зоны разными цветами, это будет выглядеть нагляднее и понятнее. Например, зону кухни – красным, гостиной – зеленым, рабочую зону – желтым, а санузел – синим;
- не бойтесь менять уровень пола и потолка. Это значительнее облегчит работу при выделении функциональных зон;
- акцентируйте внимание на освещении. Игра света и тени зачастую меняет внешний облик пространства до неузнаваемости;
- выберите несколько предметов мебели внушительных размеров, чтобы обозначить ими функциональные зоны.

Следует запомнить, что любое изменение внутреннего пространства вашей квартиры необходимо привести в соответствие со строительными нормами. Каждый раз перед началом крупного ремонта и выполнения сложных строительных манипуляций проект должен быть утвержден в службе по эксплуатации жилых зданий. Таким образом, не пренебрегайте дизайнерским планом и проектом будущего жилья. На данный момент существует множество готовых проектов на любой вкус. Наиболее распространены разработки для квартир площадью 35 и 36 кв м.
Строительные изменения внутреннего пространства происходят следующим образом:
- применяются гипсокартонные перегородки и специальные устройства, которые создают ниши и островки. Балкон, если такой имеется, иногда вписывают в пространство квартиры.
Но стоит позаботиться о гидро- и теплоизоляции. Если вы сносите и вновь создаете перегородки, то обращайте внимание на вентиляцию и вытяжку;
- напольное покрытие различно для каждой из зон. Ковролин в гостиной, плитка в ванной, а линолеум на кухне. То же самое происходит и с отделкой стен. Не забывайте, что в вашем распоряжении контролирование уровня пола и потолка. Такая хитрость может значительно отразиться на восприятии пространства. После этого можно приступить к самому интересному – оформлению интерьера, расстановке мебели, а также добавлению штрихов и акцентов с помощью аксессуаров.
В зависимости от формы квартиры
Планировка будущего места жительства полностью опирается на размеры и форму пространства.
Если вы грамотно все расставите и примете во внимание форму квартиры, то по итогу получите не только уютную и просторную квартиру, но и удобное для жизни уютное местечко.
Стоит также принимать во внимание и ваши личные предпочтения. Существуют ярые фанаты квартир- студий и необычных лофтов. Как правило, это молодые люди, занимающиеся карьерой и, не обремененные созданием семьи. Для молодых семей с маленькими детьми и людей старшего поколения отлично подойдут улучшенные «хрущевки» и малогабаритные квартиры, где обязательно будет отдельная комната для еще одной спальни.
Существует три основные схемы однокомнатных квартир:
- это угловая квартира, для которой характерно 2-3 окна и окружение несколькими наружными стенами;
- также есть две похожие формы – квадратная и прямоугольная квартиры.
Они отличаются расположением внутри дома и круговой планировкой внутри квартиры.
Угловая
Современное жилье сейчас достаточно разнообразно, потому что архитекторы не скупятся на идеи и создают замысловатые проекты домов. Из-за этого иногда страдают планировки квартир. Появляется большое количество жилплощади сложной конфигурации и угловые площади, поэтому зачастую людям, приобретающим такие квартиры, сложно грамотно зонировать пространство.
Считается, что у таких жилищ есть еще ряд минусов – шум, холодный ветер и большое количество окон, в которые постоянно кто-то смотрит.
На самом деле многие недостатки прекрасно превращаются в достоинства.
Например, при правильном утеплении квартиры вы не будете чувствовать дискомфорт в холодное время года. Напротив, в таком жилище всегда будет тепло и уютно, да и утеплитель нужен далеко не всегда. Современные строительные технологии справляются с этой задачей еще на стадии строительства.
Обилие окон для малогабаритной квартиры просто находка, так как большое количество проницаемого света сделает пространство больше и светлее.
В случае с угловой квартирой оптимальным вариантом будет совмещение кухни с гостиной. Отдельную комнату лучше выделить для спальни. Кухня встроенная, вписывается в одну прямую. Обеденный стол стоит за диваном.
Таким образом, пространство приобретает правильную геометрическую форму.
Прямоугольная
Для создания проекта оформления прямоугольной квартиры необходимо применять особые техники и методы оптической коррекции жилого пространства.
Чаще всего квартиры прямоугольного типа – это квартиры-студии. Они имеют свои преимущества и недостатки. К негативным сторонам относятся небольшая площадь, отсутствие лоджии или балкона, отсутствие шумоизоляции, наличие сквозняков.
Положительные качества такой квартиры – это обилие света, отсутствие перегородок и перестенков, единое жилое пространство, простота уборки.
Особенностью планировки такой квартиры является принцип зонирования. Так как пространство едино и не разделено ничем, то жилец сам должен позаботиться о разграничении функциональных зон, если это необходимо. Гостиную следует разместить в центре квартиры (ближе к окну). С помощью стеллажа или книжного шкафа можно отделить от гостиной рабочую зону или спальню. С другой стороны стоит поставить барную стойку, которая отделит от гостиной кухню и обеденную зону.
Квадратная
Планирование квадратной квартиры почти ничем не отличается от прямоугольного предшественника.
Единственная особенность такого жилья – его очень маленький размер. Как правило, такие квартиры имеют площадь около 30 кв м.
Совет, которым необходимо воспользоваться в этом случае – это сделать трансформацию помещения.
В такой маленькой квартире необходимо скомпоновать все предметы так, чтобы пространство было использовано максимально по назначению. Выбирайте встроенную мебель и мебель-трансформеры. Рабочую зону лучше перенести к окну, чтобы можно было работать при естественном освещении. При желании ее получится отделить от основного помещения шторой.
Если в квартире высокие потолки, то можно смело воспользоваться двухъярусной конструкцией.
Как оформить?
Дизайн интерьера играет огромную роль в восприятии пространства жилых помещений.
В особенности, если речь идет о маленькой квартире. Правильно выбранный стиль и ловкие дизайнерские решения могут увеличить пространство и создать иллюзию большей площади комнаты.
Существует несколько базовых принципов, которые помогут вам зрительно расширить помещение:
- использование большого количество источников освещения;
- выбирать светлые цвета стен, потолка и пола;
- отдавать предпочтение встроенной и трансформирующейся мебели;
- избегайте длинной мебели вдоль стен;
- украшайте стены зеркалами, обращенными друг напротив друга;
- не загромождайте комнату лишними предметами декора и аксессуарами.
Дизайн интерьера полностью зависит от предпочтений жильца.
Существует множество готовых проектов на любой вкус, воссоздающих в интерьере тот или иной стиль, будь то неоклассика или хай-тек. Но чаще всего, делая стандартный ремонт в малогабаритной квартире, жильцы и дизайнеры обращаются к минимализму. Минимализм сочетает в себе простоту и функциональность, что прекрасно дополняет небольшую площадь квартиры. Здесь правят светлые оттенки, минимум деталей и компактная и функциональная мебель.
Популярен в сегодняшнее время стиль квартир-студий. Это, как правило, полностью не разграниченное пространство, высокие потолки, и панорамные окна. В отделке присутствует имитация дерева, кирпича и бетона. Мебель в минималистическом стиле соседствует с антикварными предметами. Большое количество растений и аксессуаров – декоративные подушки, гирлянды, подсвечники и статуэтки.
Для молодых семей предпочтительным является оригинальный колониальный стиль. Он сочетает в себе комфорт и удобство. Характерными особенностями этого стиля является соседство с традиционными мотивами экзотических заморских включений. Плетеная мебель, металлические осветительные приборы, предметы декора в виде картин, вееров, рогов животных. Все это создает контраст востока и запада, соединившихся в этом интерьере.
Если квартира-студия предназначается для пожилых людей или пенсионеров, то отличным дизайнерским решением станет оформление интерьера в типовом стиле прованс.
Деревянная мебель в сочетании с цветастым текстилем создает атмосферу уюта и домашнего очага. На стенах прекрасно разместятся семейные фотографии в красивых рамах, а главным акцентом квартиры станет кухня и обеденная зона.
Полной противоположностью стиля прованс считается стиль хай-тек. Это направление чаще выбирают молодые люди, которые любят и ценят современный стиль и новые технологии. Сочетание белого, черного и металлических цветов делает интерьер структурированным. Яркие акценты в виде глянца, блеска и полупрозрачной мебели добавляют комнате грациозность и пафос.
Что касается мебели, то главное, что нужно делать – это избегать громоздкие и массивные предметы.
На кухне лучше использовать встроенную технику, а гарнитуры располагать по одной линии, например, вдоль стены в зоне приготовления пищи. Кухню лучше отделить от гостиной барной стойкой или тумбами-островами, и это место использовать в качестве обеденной зоны.
В гостиной телевизор лучше повесить на стену, а диван разместить напротив и обратить его спинкой к зоне кухни. Рабочую зону можно отделить от гостиной стеллажом или книжным шкафом. Также там следует поместить дополнительное освещение. Спальная зона может находиться либо в отдельной комнате, либо в этом же помещении. Тогда ее следует отделить от основного пространства шторой, а саму кровать сделать складывающейся.
В спальную зону прекрасно впишется шкаф – купе.
Красивые варианты в интерьере
Как показывает практика, в однокомнатной квартире могут проживать люди разных возрастов, профессий и в разном количестве. От правильного выбора планировки, подходящего оформления и удачно расставленной мебели будет зависеть, насколько комфортной станет жизнь в этой квартире. Станет ли она местом, куда с радостью хочется бежать после трудного дня, или же это будет тесная и темная лачуга, где нет свободного места ни одной лишней вещи?
Существуют дизайнерские проекты, в которых удается не совмещать кухню с жилой комнатой. В такой функциональной комнате отлично соседствуют гостиная, спальня и рабочая зона.
Кровать лучше выбрать откидную, которая прячется днем в шкаф, а диван раскладывающийся. Это помогает здорово сэкономить место. Оптически вытянуть и расширить пространство помогут зеркала на стенах и шкафах, а также обои в вертикальную полоску.
Еще один вариант интерьера квартиры-студии, где от общего пространства отделен только санузел. Современные инновации помогают отделить функциональные зоны друг от друга межкомнатными перегородками. Эффект большого пространства создается с помощью светлой цветовой гаммы и большого количества осветительных приборов. Кстати, в интерьере можно использовать не только обои и декоративную краску, но и древесину светлых пород и теплых оттенков. Это сделает ансамбль мягче и утонченнее.
Довольно редко, но встречаются интерьеры с двумя спальнями в однокомнатной квартире.
Такой нестандартный случай достаточно сложен в исполнении. Идеальным вариантом будут две полноценные комнаты, при этом оставив достаточно пространства для других функциональных зон. В этом случае одну спальню можно сделать в одной части квартиры, используя откидную кровать.
Визуально разделить пространство поможет подиум или иное возвышение для второй кровати, либо следует прибегнуть к установке кровати-чердака, где спальное место расположена сверху, а внизу находиться рабочая зона.
Далее вы можете ознакомиться с одним из удачных проектов однокомнатной квартиры.
youtube.com/embed/FGKhZtgiI1M?modestbranding=1&iv_load_policy=3&rel=0″/>
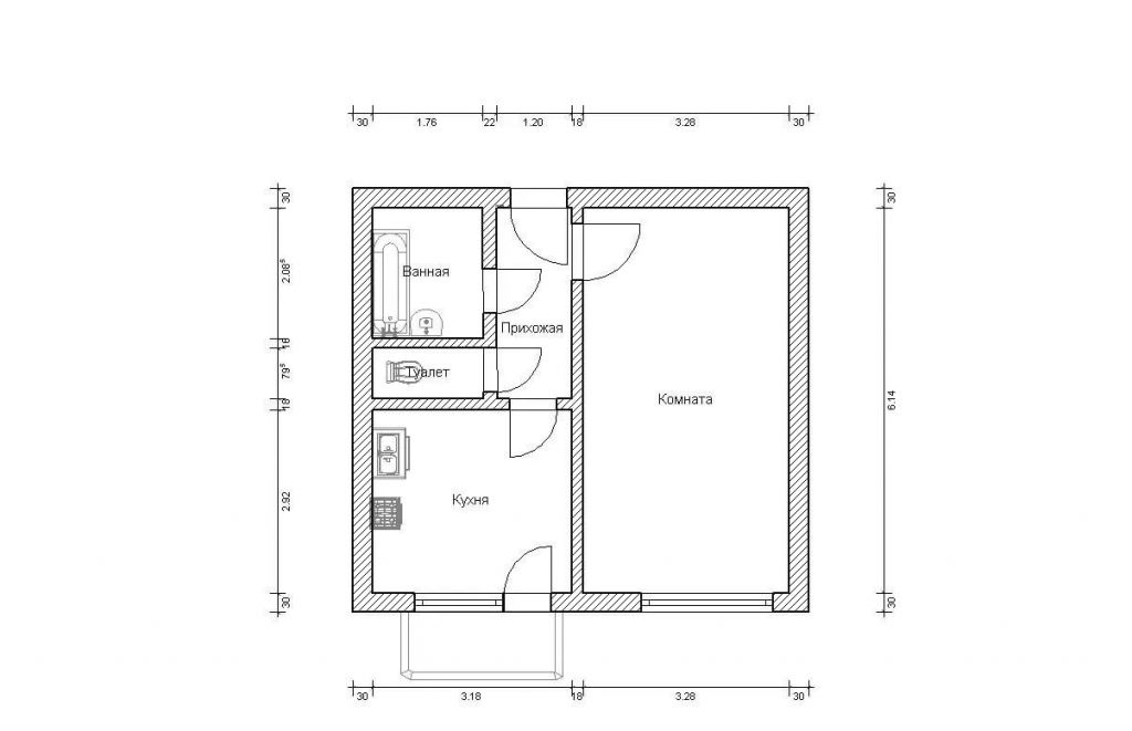
Планировка однокомнатных квартир: популярные варианты, советы эксперта
Как не ошибиться с планировкой, покупая однокомнатную квартиру, как эффективно разделить пространство в небольшом жилье и какие для этого использовать методы, разбираемся вместе с экспертом
Фото: Shutterstock
Небольшая квартира — хороший вариант для разных жизненных сценариев, но жизнь в однушке имеет и свои особенности.
Поскольку комната всего одна, крайне важно спланировать пространство так, чтобы для всего нашлось место, пространство осталось функциональным и не создалось захламленности. Разбираем вместе с экспертом основные типы планировочных решений для квартир небольшой площади.
Какую планировку выбрать
Уже при покупке квартиры и осмотре разных вариантов имеет смысл определиться, сколько человек будут в ней жить и смогут ли они делить одну спальню.
- Студия — это единое помещение, в котором размещают и кухню, и гостиную, и спальню. Отдельно в таких квартирах вынесен санузел, иногда кладовая или гардеробная.
- Однокомнатная квартира подразумевает отделенную стеной кухню, а также выделенный коридор и санузел.
- Евродвушка — это средний вариант между однокомнатной квартирой и двухкомнатной. Обычно кухня расширена таким образом, чтобы в нее поместилась и зона для отдыха или гостиная. Спальня при этом отделена стеной, но нередко по площади меньше, чем в однокомнатных квартирах.
Санузел изолирован, а вот коридор может быть совмещен с общей зоной.
Важный момент при выборе планировки — назначение квартиры: будут ли жильцы в ней только ночевать, захватывая небольшой отрезок времени, или дома постоянно будет кто-то находиться, в том числе работать. Все это отразится на использовании пространства и тех зонах, которые необходимо будет выделить при ремонте и обустройстве.
Как правило, в однокомнатных квартирах необходимо иметь несколько ключевых зон:
- зона сна, которую можно совместить с зоной отдыха;
- зона приготовления и приема пищи — кухня и/или столовая;
- рабочая зона — место для стола или компьютера;
- зона хранения — шкафы и стеллажи.
Надежда Коркка, управляющий директор компании «Метриум» (участник партнерской сети CBRE):
— При покупке квартиры в первую очередь стоит обратить внимание на репутацию и реализованные проекты застройщика.
Это позволит не приобрести потенциальный долгострой или вариант со значительным объемом недоделок.
Выбор планировки зависит от изначального запроса конкретного покупателя. Например, если он планирует жить один, то ему вполне достаточно классической однокомнатной квартиры или студии. В свою очередь, для пары или семьи с маленьким ребенком оптимальным вариантом будет евродвушка.
Угловая планировка
Плюсы:
- окна выходят на две, а в некоторых вариантах на три стороны света;
- за счет этого квартира лучше освещена, можно встретить варианты с несколькими окнами в угловой комнате;
- стены и углы прямые;
- квартиры хорошо проветриваются;
- экономия на электричестве благодаря хорошей естественной освещенности.
Минусы:
- в комнатах, где за стеной нет соседей, может быть значительно холоднее;
- из-за окон, выходящих на разные стороны, возникает сквозняк;
- дополнительные затраты на отопление.

При планировании угловой комнаты рекомендуется внимательно отнестись к размещению спального места. Если планировка подразумевает, что оно будет находиться у стен с окнами, необходимо продумать отопление. Можно отделить зону спальни у окна перегородками, чтобы избежать сквозняков.
Надежда Коркка:
— Главным плюсом такой квартиры будет хорошее естественное освещение, что очень ценно в условиях города. Помимо этого, в них тише из-за отсутствия соседей с одной или нескольких сторон. Не стоит забывать и про вид из окон, особенно если они выходят сразу на две стороны. Полностью реализовать все эти преимущества позволит качественный дизайн-проект.
Фото: Shutterstock
Квадратная планировка
Это самый любимый вариант у дизайнеров интерьеров.
Квадратная квартира правильной формы позволяет дать волю фантазии в планировке.
Плюсы:
- возможно размещение угловой мебели;
- это позволяет увеличить количество мест для хранения;
- ровные углы и стены.
Надежда Коркка:
— Такие квартиры считаются более просторными за счет квадратной формы. Поэтому в них проще зонировать пространство, легче найти место для крупногабаритной мебели и предметов интерьера, больше вариантов для их размещения и перестановки.
Несмотря на то что квадратная форма позволяет «разгуляться» в планировании интерьере, важно не забывать о требованиях закона. Не все можно поменять местами, даже если очень хочется. Например, «мокрые» зоны и несущие стены должны в любом случае остаться на своих местах. Кухню с газовой плитой необходимо отделить от жилых помещений.
В остальном владельцы вправе разместить зоны так, как хочется.
Важно, чтобы они отвечали своим назначениям и располагались там, где регулярно используются. Например, зона дневного отдыха чаще всего размещается недалеко от кухни. Ведь если кто-то постоянно дома днем, он часто будет захаживать на кухню, а делать это неудобно через проходную зону спальни. Рабочую зону, если она используется ежедневно, стоит разместить у окна. Нередко компьютерный стол выносят на балкон или лоджию, предварительно утеплив помещение. Таким образом, происходящее в квартире не мешает человеку, работающему за компьютером.
Спальню стоит отделить перегородкой и не размещать в непосредственной близости от коридора или входной двери. Часто даже с прочной дверью сохраняется высокая слышимость, которая будет мешать отдыхать.
Прямоугольная планировка
Такой вариант планировки отличается тем, что квартира будет вытянута по одной стороне. Случаются конфигурации, когда широкая сторона жилья приходится на стены с окнами. Это идеальный вариант, ведь так все помещения получают достаточно естественного света.
Плюсы:
- если квартира вытянута по стороне окон, то все помещения получают достаточно естественного освещения;
- ровные стены и углы позволяют использовать любую мебель.
Минусы:
- если квартира вытянута от окна, то помещение недополучит дневного света;
- возможны дополнительные траты на электричество;
- сложность с расположением дневных зон.
Варианты, когда в квартире одно или два окна на одной стене и жилье вытянуто вглубь от них, считаются менее удачными. Большая часть квартиры недополучает естественного освещения и расположить зоны в ней сложнее. Как правило, зон, которые используются днем, а значит, требуют естественного света, больше, чем условно ночных. Это гостиная, кухня, рабочая зона и детская. Обустроить их около одной стены с окном будет сложно.
Фото: Shutterstock
В таком случае предлагается совместить зону отдыха и спальню за счет диванов с раскладными механизмами и разместить их у окна.
Кухонную и столовую зоны можно расположить в глубине помещения. При этом нужно уделить особое внимание освещению.
Надежда Коркка:
— Преимущество прямоугольной планировки с оптимальным соотношением сторон (4:3) заключается в простоте обустройства: вряд ли для этого потребуются сложный дизайн-проект и эксклюзивная мебель. Это особенно актуально для тех, кто стремится переехать максимально быстро или ограничен в деньгах. Но от таких решений не стоит ждать индивидуальности.
Помимо этого, возможна ситуация, когда проектом дома предусмотрены комнаты вытянутой формы с одним окном. Казалось бы, это никак не исправить, кроме как выполнив перепланировку, которая возможна далеко не всегда. Однако можно добавить помещению простора за счет светлой отделки и таких же предметов интерьера, а также разместив длинный или угловой диван.
Нестандартная планировка
Квартиры нестандартных планировок стараются привлечь своим уникальным проектом.
Застройщики часто выделяют ниши за счет угловых или полукруглых конструкций зданий. Такой необычный подход может подкупить будущих владельцев. Однако стоит иметь в виду, что нестандартная планировка может повлечь за собой сложности.
Минусы:
- сложность подбора мебели — под неровные стены требуется мебель по форме;
- невозможность использовать всю площадь квартиры из-за неровных углов и стен.
Надежда Коркка:
— Застройщики для привлечения внимания клиентов нередко проектируют однокомнатные квартиры нестандартной планировки. Они могут быть скошенной, вытянутой, полукруглой, веерообразной или трапециевидной формы, иметь эркеры. Из этого вытекает их главный недостаток — сложность разработки дизайн-проекта и подбора мебели. Однако если подойти к процессу тщательно и выбрать подходящие под конкретную планировку предметы интерьера, то можно нивелировать недостатки. Например, если комната имеет выступ, то в нем можно обустроить спальное место или установить шкаф.
В свою очередь, скругленный угол хорошо подходит для обустройства рабочего пространства.
Основная проблема нестандартных планировок заключается в сложности подбора мебели. Чаще всего мебель, будь то кровать, шкаф, диван или стеллаж, имеет прямые углы. В то время как нестандартная планировка может не позволить эффективно разместить такие предметы. Ведь если к полукруглой стене приставить прямой диван, часть места будет пустовать. Все это сказывается на фактическом уменьшении полезного пространства. Кроме того, чтобы на неровную стену установить карниз, батарею или повесить картину, нужно приложить смекалку и мастерство. Затрат на ремонт при таких планировках может оказаться больше.
Фото: Shutterstock
Поэтому рекомендуется в выделенных нишах размещать зоны, которые не требуют наличия мебели строгих форм.
Это может быть рабочая зона с диваном и небольшим приставным столиком по центру, зона столовой с круглым столом посередине или детская.
Свободная планировка (студия)
В планировке типа студии отсутствуют межкомнатные двери, что оставляет большой простор для креатива. Можно использовать любые варианты зонирования пространства.
Минусы:
- совмещение кухни и спальни — запахи от готовки могут мешать отдыху в гостиной или спальне;
- потребуются затраты на мощную вытяжку или вентиляцию.
Плюсы:
- студии популярны благодаря низкой стоимости;
- такой тип жилья удобен эргономикой — все под рукой, не нужно ходить из комнаты в комнату, открывать и закрывать двери;
- требует меньше мебели и затрат на ремонт и отделку.
Основной проблемой таких квартир считается совмещение кухни и спальни в одном помещении. Запахи готовки остаются в комнате и могут мешать отдыху, да и в целом вид кухонной атрибутики не сочетается с идеей отдыха.
В этом вопросе важно продумать систему вентиляции. Мощную вытяжку нужно расположить так, чтобы она захватывала запахи готовки до того, как они успеют распространиться по дому. Размещение кухни у окна поможет, если вентиляционная шахта не справляется с воздухообменом.
Фото: Shutterstock
В студиях нередко используют дизайн кухонь, которые полностью имитируют стены. Фасады без ручек, все инструменты для приготовления пищи и хозяйственные принадлежности убраны в шкафы.
В таком виде кухню можно даже не опознать с первого взгляда.
Надежда Коркка:
— Главные преимущества студии — низкая цена и максимальное использование полезной площади. Однако при обустройстве студий нередко возникает проблема зонирования пространства. Решить ее можно разными способами. Например, кто-то устанавливает легкие перегородки, но этот вариант отличается трудоемкостью. Также для этих целей можно использовать мебель (стеллаж или шкаф), шторы или крупные растения.
Безусловно, при выборе студии может возникнуть проблема отделения кухонной зоны от жилой. Для этих целей можно использовать как уже упомянутые легкие перегородки и шторы, так и, например, барную стойку.
Зонирование в однокомнатной квартире
Для отделения зон в квартире можно использовать разные инструменты и методы.
Фото: Shutterstock
К основным способам зонирования помещения относятся:
- гипсокартонные перегородки — почти стены с той разницей, что выполнить их можно любой формы, а внутри разместить дополнительные ниши, которые станут еще одним местом для хранения;
- перегородки из брусьев отлично впишутся в стиль сканди или экостиль с доминированием дерева в интерьере.
Они визуально разделяют помещение на зоны, как и стены, но промежутки между брусьями позволяют проникать свету и воздуху; - перегородки из стекла и металла очень популярны в интерьерах в стиле лофт. Ими нередко отделяют спальни или коридор. Они практичны за счет того, что физически перекрывают доступ в помещение, поэтому препятствуют проникновению уличной грязи в жилое пространство. Если стекло прозрачное, оно не мешает естественному освещению. Нередко к таким перегородками добавляют занавески, чтобы можно было визуально скрыть спальное место;
- раздвижные перегородки, по сути, выполняют роль дверей. Их можно раскрыть днем, чтобы помещение казалось больше, и сдвинуть по мере необходимости, полностью отделив одну из зон;
- мебель может стать своего рода перегородкой или визуально разделить помещение. Самое простое — это стеллаж. Им можно отделить рабочую зону. Важно помнить о безопасности, закрепив его к стене одной стороной. Диван, барная стойка или кухонный остров помогут отделить кухню от гостиной;
- подиумы помогают не только выделить какую-то зону, но и визуально разнообразить пространство, создав дополнительные места для хранения.
Например, спальное место можно приподнять на подиуме, а в саму конструкцию встроить ящики для постельного белья или других вещей; - шторки и ширмы — самый простой способ закрыть одну зону. Хорошо подходят для съемных квартир, где нельзя вносить существенные изменения в интерьер, а отделить, к примеру, спальню необходимо.
Надежда Коркка:
— Для однокомнатных квартир характерны те же приемы, что и для студий. Например, рабочее пространство от спального места можно отделить, установив шкаф или стеллаж, это будет наиболее бюджетным вариантом. Другим приемом зонирования выступает разный уровень пола или просто разное по цвету покрытие. Также применяются различные перегородки (в том числе легкие и сдвижные), но подобные варианты менее распространены из-за стоимости и трудоемкости монтажа.
80 идей планировки однокомнатной квартиры в хрущевке — INMYROOM
Любой
владелец квартиры, в независимости от количества квадратных метров и комнат,
старается сделать ее как можно удобней.
Довольно трудной задачей является
сделать это в небольшой однокомнатной хрущевке или студии, но все-таки возможной
при применении верных и подходящих стилей. С таким подходом можно сделать не
только удобную, но и стильную, изящную квартиру.
Планировка однокомнатной квартиры – это очень кропотливая и сложная работа. Но даже в этом случае можно подобрать наиболее удачные варианты. В первую очередь необходимо все распланировать таким образом, чтобы у каждого из проживающих в квартире было свое личное пространство. Для этого часто применяется распределения комнат на зоны.
Планировка и зонирование
При выполнении планировки однокомнатных квартир, особенно в хрущевке или студии, часто проводят распределение пространства на зоны. При этом следует подбирать всю отделку и мебель только светлых тонов. Это очень важно, так как можно визуально сделать пространство шире и объемнее.
На сегодняшний день большой популярностью пользуется
бежевый оттенок, который сделает интерьер студии или хрущевки утонченным, и в
то же время достаточно простым.
Для визуального увеличения пространства можно
остановить свой выбор на отделке в скандинавском стиле. Стоит заметить, что при
выборе точечного верхнего освещения также пространство станет гораздо просторнее.
Обратите внимание на то, что при разделении квартиры на функциональные зоны, нельзя обойтись без арок, некоторых перегородок, больших стеллажей и своеобразных подиумов. При умелом использовании всех перечисленных элементов может получиться уютная и функциональная квартира, которую сложно будет отнести к хрущевке, при этом площадь ее вовсе не изменится.
Также, при выполнении планировки однокомнатных квартир стоит уделить внимание и зеркалам, которые значительно расширяют пространство и добавляют в него много света. Большие зеркала можно применить и для выделения одной из зон.
Рассмотрите некоторые фото примеры планировки однокомнатных квартир по типу «хрущевки» и «студии».
Цветовая гамма
Цвет играет очень важную
роль при отделке любой квартиры, неважно хрущевки или студии.
Всем уже давно
известно, что светлые тона являются прекрасным отражателем света, и поэтому
благодаря им, пространство становиться в визуальном восприятии намного
просторнее.
Очень важно знать, что теплые оттенки зрительно приближают элементы. К таким относятся оранжевый, желтый и красный тона. А вот у холодных оттенков, наоборот, обратное действие, которое визуально отдаляет элементы. К холодным тонам относятся синий, лиловый и зеленый. Именно поэтому, при наличии небольшого пространства стоит отдавать предпочтение холодным светлым оттенкам.
Часто применяют и такой способ зрительного увеличения пространства, как использование обоев с полосами, расположенными горизонтально либо вертикально. Их эффект зрительного увеличения хорошо заметен на фото.
Выбор мебели
Планировка однокомнатной квартиры также подразумевает
правильный выбор мебели, который должен быть в соответствии с некоторыми
факторами, такими как мобильность, малогабаритность и многофункциональность.
Нельзя в хрущевке использовать объемные шкафы.
Приспособления для хранения
личных вещей стоит распределить по всей площади. Небольшие шкафчики и полки для
хранения всяческих мелочей можно установить в прихожих либо коридорах.
Прекрасно будут подходить для хрущевки предметы мебели со встроенными колесиками. Также большое значение имеет материал, из которого изготавливается мебель. Наиболее удачно в хрущевке будет смотреться мебель в светлых пастельных тонах с глянцевыми светоотражающими фасадами. Здесь неплохо смотрится поверхность из стекла либо из прозрачного пластика.
Расширение пространства Для того чтобы сделать помещение несколько шире в визуальном восприятии, стоит выполнять отделку, применяя только светлые тона, такие как охра, белый, слоновая кость, древесный, пастельный.
Чаще
всего при оформлении хрущевки специалисты используют скандинавский стиль,
поскольку он является наиболее подходящим из-за преобладания в нем белого
цвета. Для данного стиля используется мебель, выполненная только в светлых
оттенках и большое число различных светильников, которые добавляют помещению
некоторую изысканность и особую привлекательность.
Обратите внимание на планировку однокомнатной квартиры фото, которой представлено ниже.
Кухня
Наиболее важным предназначением кухни является приготовление пищи. Обеденный стол можно поставить в другой комнате. В кухонном помещении размещаются только основные рабочие поверхности, плита и холодильник. При желании оставить стол все-таки на кухне, стоит остановить свой выбор на форме овала либо небольшого круга.
При наличии хорошо функционирующей вытяжной системы можно обойтись без межкомнатных дверей, либо установить своеобразные выдвижные двери. Шторы либо жалюзи должны обязательно быть в светлых тонах, то же самое касается и стен.
Мебель должна быть в одной цветовой гамме со стенами. Для кухни в хрущевке или студии можно использовать мебель-трансформер, которая разбирается и собирается при необходимости. Для кухни с небольшими параметрами отлично подойдет люстра больших размеров, оформленная также в светлых тонах.
Санузел
Чаще
всего хрущевки не отличаются раздельной ванной и туалетом, в обратном случае –
для экономии пространства стоит совместить две комнаты в одну.
Для того чтобы значительно сэкономить пространство в ванной комнате существует некоторое количество маленьких хитростей:
- Расположение стиральной машины под умывальником. В таком случае выполняется подбор специальной раковины, у которой отсутствует ножка. При этом раковина размещается на достаточно высоком уровне;
- Еще один вариант, машинку разместить на кухне, но в хрущевке она также обычно маленького
размера;
- Установка небольшой душевой кабины
вместо ванны;
- Радиатор в ванной стоит заменить на
полотенцесушитель, который не займет большое количество пространства.
Квартира-студия
Планировка квартиры студии заключается в разделении всего пространства на несколько зон. При небольшом количестве проживающих – это четыре зоны:
- Зона для сна;
- Зона для приема гостей;
- Зона для приготовления пищи;
- Зона для работы.
При
планировке студии стоит придерживаться некоторых правил:
№1.
Разделение на зоны можно проводить с помощью света, а точнее его оттенков. Чаще
всего наиболее яркое освещение относится к зоне для гостей, а самое рассеянное
– к зоне сна.
№2. Спальную зону можно обосновать на небольшом возвышении, в котором будут
предусмотрены для удобства определенное количество ящиков.
№3. Распределение зон студии можно выполнять также с помощью различного напольного
покрытия.
№4. Разделение кухонного пространства и гостиной от зоны отдыха можно выполнить с
помощью специальных этажерок. Для этой же цели можно применить барную стойку.
№5. Также можно использовать мебель, способную трансформироваться. Для таких целей
отлично подойдет шкаф-кровать.
Хрущёвка 30 кв. м
Помещение
с такими параметрами обычно бывает в хрущевке. Планировка однокомнатной хрущевки является не самой легкой
задачей. Обычно
дизайнеры рекомендуют хрущевки разделять на несколько зон. С планировкой стоит
постараться, поскольку места должно хватить на все необходимое.
Для визуального увеличения крошечной хрущевки стоит отдавать предпочтение только светлым тонам. Также не помешает размещение зеркальных поверхностей, которые добавят в помещение дополнительный свет.
В хрущевке не стоит использовать большое количество украшений и аксессуаров. И желательно также применять трансформирующуюся мебель. В качестве кровати можно выбрать угловой диван, как это представлено на фото.
Однушка более 40 кв. м
Данный вариант хрущевки будет замечательным для молодой семьи с ребенком. В такой квартире нежелательно использовать объемные шкафы и массивные кровати. Сюда отлично впишутся шкафы-купе, этажерки до самого потолка, угловые диваны и другая подобная компактная мебель.
В варианты
планировки однокомнатных квартир отлично вписываются компактные раздвижные
двери. К достоинствам таких дверей относят экономичность пространства. Для небольшого
помещения часто применяются складывающиеся двери, которые по принципу действия
напоминают гармошку.
Интерьер для семьи с ребенком
Для того чтобы разместить в небольшой хрущевке семью с ребенком стоит постараться разделить одно помещение на две комнаты, потому что только так все смогут себя чувствовать наиболее комфортно.
Для разделения помещения можно применять, как и различные шторы, так и специальные ширмы. Также желательно отвести пространство, которое будет предназначаться только для ребенка. Данную зону стоит выделить с помощью обоев с изображением любимых сказочных героев. Здесь отлично подойдет мебель, способная раскладываться и складываться.
Делая планировку однокомнатной квартиры, главное знать определенные правила и следовать им!
Фото галерея
Смотрите еще 80 фото красивого интерьера для однокомнатной квартиры.
Видео
🏡 Планировка однокомнатной квартиры: разновидности, зонирование, оптимизация пространства
В последнее время однокомнатные квартиры пользуются повышенным спросом среди разных категорий граждан: студентов, молодых семейных пар и пожилых людей.
Это вызвано практичностью, функциональностью и доступной ценой данного вида жилой недвижимости. Однако многие считают, что практически невозможно обустроить «однушку» таким образом, чтобы в ней с комфортом проживало хотя бы два человека, не говоря уже о семейной паре с ребёнком. В сегодняшнем обзоре эксперты редакции онлайн-журнала HouseChief расскажут, как сделать своё небольшое жилище функциональным и уютным при помощи различных вариантов планировки однокомнатной квартиры.
ФОТО: avatars.mds.yandex.net
Читайте в статье
Общие рекомендации по планировке малогабаритного жилья
Обустроить однокомнатную квартиру таким образом, чтобы она была функциональной и комфортной для проживания — довольно сложная задача, которая зачастую требует участия профессионального дизайнера интерьеров. Как правило, «однушка» представляет собой квартиру небольшой площади с единственной комнатой, кухней и совмещенным санузлом.
Однако даже малогабаритное жильё может стать уютным, функциональным и внешне привлекательным.
На комфортность проживания влияет не только общая площадь квартиры, но и грамотная планировка, правильно подобранная цветовая гамма и умеренное количество декоративных элементов. Ниже мы рассмотрим несколько эффективных способов обустройства малогабаритного помещения и нюансы оформления интерьера, которые помогут более эффективно организовать пространство вашего жилища.
Грамотно выполненная планировка однокомнатной квартиры площадью 25 или 40 м² позволяет:
- визуально увеличить свободное пространство;
- эргономично скомпоновать предметы мебели;
- более рационально использовать и без того небольшую жилую площадь.
Как произвести переобустройство однокомнатной квартиры — личный выбор каждого человека. Можно кардинально перепланировать своё жильё или же обойтись малой «кровью», изменив дизайн интерьера. Поскольку малогабаритные квартиры в основном приобретают студенты или семейные пары без детей, то чаще всего владельцы такой недвижимости отдают предпочтение открытой студийной планировке.
Однако, выбирая данный вариант, следует быть готовым к тому, что самым изолированным помещением в квартире будет санузел. Поэтому, затевая перепланировку, нужно взвесить все плюсы и минусы каждого варианта.
ФОТО: blogkadrovika.ru
Виды планировок
Существует несколько основных видов планировки однокомнатных квартир: типовая (угловая, квадратная, прямоугольная), нестандартная и свободная (студия). Именно планировка во многом определяет, как будет обустроено ваше жильё. Учитывается цветовая гамма, планируемые к использованию материалы, способы разделения пространства на функциональные зоны, количество мебели и техники.
Многое зависит от планировки квартирыФОТО: sslp.ru
Типовая
Раньше проектам многоэтажных жилых домов присваивался номер и серия. Это были здания с одинаковой (типовой) планировкой квартир. Дома определённой серии строились по всей стране. В разных городах можно было увидеть совершенно идентичные здания.
Яркий пример тому «хрущёвки», «сталинки» или «чешки». Однако даже в одинаковых строениях типовая планировка и площадь однокомнатных квартир могли отличаться в зависимости от расположения и конфигурации помещения.
ФОТО: static.imfast.comДаже с типовой планировкой квартиру можно сделать уютной и комфортной
ФОТО: limeproekt.ru
Угловое расположение квартиры
Угловое расположение подразумевает большее количество окон, чем в квартире, расположенной посередине здания. Это бесспорное преимущество может быть удачно использовано при зонировании малогабаритного жилья. Благодаря обилию дневного света, помещение будет казаться визуально просторнее. Пространство у одного из оконных блоков можно отвести под рабочее место. А кухню объединить с гостевой зоной. Спальное место рекомендуется максимально изолировать от остального пространства. Если в квартире есть балкон или лоджия, то спальню можно обустроить там, предварительно проведя работы по остеклению и утеплению.
ФОТО: img02.domclick.ruГлавное преимущество однокомнатных квартир — много естественного света
ФОТО: design-homes.ru
Прямоугольная конфигурация
Обустраивая квартиру прямоугольной конфигурации, рекомендуется применять визуальную корректировку жилого пространства. Как правило, площадь «однушки» небольшая, но отсутствие выступов и перегородок даёт возможность максимально эффективно использовать метод разбивки помещения на различные функциональные зоны. Место для отдыха обустраивается у оконного проёма, рабочее место отгораживается посредством стеллажа или книжного шкафа, а отделить кухню от гостиной можно при помощи барной стойки.
Квартира прямоугольной конфигурацииФОТО: avatars.mds.yandex.netВытянутая форма квартиры слегка осложняет её обустройство
ФОТО: avatars.mds.yandex.net
Обустройство квартиры квадратной формы
Квартиры с квадратной конфигурацией, как правило, небольших размеров со средней площадью порядка 30 м². Однако и такое ограниченное пространство можно обустроить с комфортом, если использовать мебель-трансформер и грамотно сгруппировать предметы обстановки.
Рабочая зона устраивается у окна, а если в квартире высокие потолки, то можно применить многоуровневые решения.
ФОТО: design-homes.ruКвартира-студия с квадратной планировкой
ФОТО: housesdesign.ru
Нестандартная планировка «однушки»
Современные жилые дома изобилуют квартирами с нестандартной планировкой. Это создаёт определённые трудности при обустройстве помещений и поэтому лучше всего обратиться за помощью к профессиональным дизайнерам интерьеров. В плане квартиры могут быть скошенными, со скруглёнными углами или выступом трапециевидной или полукруглой формы. При обустройстве можно использовать нестандартную мебель и отделочные материалы с оригинальными текстурами.
Нестандартная планировкаФОТО: arxip.comНестандартная планировка позволяет сделать интерьер более интересным
ФОТО: arxip.com
Квартира-студия
В последнее время всё большую популярность приобретает студийная планировка независимо от того, сколько комнат в квартире.
Отличительная черта студий — практически полное отсутствие межкомнатных перегородок. Наиболее востребован этот вариант при обустройстве «однушек». Благодаря такому решению, увеличивается пространство, освещённость и функциональность. В основном объединяется вместе кухня, гостиная и прихожая, санузел полностью изолируется, а спальное место отделяется от остальных зон при помощи перегородок, ширм или текстиля. Студийная планировка прекрасно подойдёт студентам, пожилым людям и семейным парам без детей.
ФОТО: inredhome.ruСтудийная планировка – это много свободного пространства
ФОТО: avatars.mds.yandex.net
Способы зонирования в однокомнатной квартире
В квартирах со свободной планировкой или студиях для выделения кухни, гостиной, спальни, прихожей и рабочего места дизайнеры интерьеров используют метод зонирования. Функциональные зоны могут подчёркиваться цветом, текстурой отделочных материалов, мебелью, текстилем, ширмами, перегородками или использованием подиумов и многоуровневых потолков.
Рассмотрим основные способы зонирования пространства в однокомнатной квартире.
ФОТО: artm.pro
Выделение функциональных зон при помощи многоуровневых решений
Наиболее популярный способ зонирования в современных малогабаритных квартирах — использование подиумов и многоуровневых потолков. Однако этот вариант больше подходит для жилья с высокими потолками. Подиум — отличное решение для выделения таких зон, как спальня, столовая или рабочее место. Помимо разделения пространства, эту конструкцию можно использовать в качестве системы хранения, обустроив в ней удобные и вместительные выдвижные ящики. Также в подиум часто встраивают трансформирующееся спальное место.
Зонирование с помощью подиумаФОТО: avatars.mds.yandex.net
Не менее интересным решением будет зонирование пространства при помощи многоуровневых потолков. Конструкция для выделения функциональной зоны может использоваться самостоятельно или вместе с подиумом, в точности повторяя его очертания.
ФОТО: dekoriko.ru
При наличии высоких потолков можно прибегнуть к обустройству второго уровня, на котором располагают спальную зону или рабочее место. Это довольно оригинальное и практичное решение, позволяющее высвободить свободное пространство для других целей.
Вынесение спальной зоны на второй уровеньФОТО:vplate.ru
Цветовое разграничение
При обустройстве помещений, особенно с маленькой площадью, дизайнеры интерьеров довольно часто проводят зонирование при помощи цвета. Это довольно оригинально, красиво и позволяет визуально сделать квартиру более просторной за счёт исключения перегородок, ширм или штор. Цветовое разграничение может быть выполнено на контрасте или благодаря плавному переходу одного тона в другой.
Цвет играет большое значение при зонированииФОТО: remontnik.ru
Перегородки и раздвижные конструкции
Зонирование однокомнатной квартиры при помощи перегородок или раздвижных дверей является довольно практичным вариантом.
Если в комнате всего одно окно, то рекомендуется устанавливать конструкции из прочного калёного стекла или пластика. Перегородки могут быть стационарными или мобильными. Первый вариант в основном используют для отделения спальной зоны, особенно, если в семье есть ребёнок, или разграничения кухни и гостиной. Конструкция может быть любой конфигурации, высотой от 1 метра и до потолка, исполняться из самых разных материалов (гипсокартон, ЛДСП, пластик, стекло или стеклоблоки, дерево и др.). Часто в стационарных перегородках из гипсокартона устраивается ниша для полок, что увеличивает функциональность подобного разграничителя зон, а также дополнительное локальное освещение. Единственный недостаток подобных конструкций, это то, что их нельзя при необходимости сложить или передвинуть.
ФОТО: pronovostroyku.ru
Если по каким-то причинам вам не подходят стационарные перегородки, то для зонирования можно использовать раздвижные конструкции. Это хороший вариант для квартир с маленькой площадью.
Раздвижные перегородки не перегружают пространство. С их помощью можно в любой момент сделать помещение более просторным или быстро оградить определённую зону, например, спальную. Перегородки могут быть сплошными, полупрозрачными или комбинированными со стеклянными вставками.
ФОТО: avatars.mds.yandex.net
Ширмы и шторы как способ зонирования
Если у вас нет возможности или желания устанавливать стационарные или раздвижные конструкции, а зонировать помещение всё же нужно, то дизайнеры интерьеров рекомендуют использовать для этих целей ширмы. Они изготавливаются из разных материалов и могут иметь жёсткую раму или быть складными. Современные производители мебели предлагают большой выбор ширм разных конструкций в любых стилевых и цветовых решениях, что позволит вписать их в тот или иной интерьер. К достоинствам конструкции следует отнести то, что её легко можно убрать или поставить в любой части комнаты, отделив зону спальни, рабочего места, кухни и т.
д…
ФОТО: bucwar.ru
Почти забытый способ зонирования — использование штор. Применяя текстиль для выделения функциональной зоны, нужно помнить, что главное, это правильно подобранный дизайн занавесей, чтобы они не выглядели нелепо в интерьере. Такой вариант зонирования больше предпочитают люди старшего поколения. Шторы легко устанавливаются, с их помощью можно отделить определённую зону, кроме кухни.
Зонирование при помощи шторФОТО: decorexpro.com
Шкафы и стеллажные конструкции
В основном мебель расставлялась вдоль стен, но её можно использовать совершенно по-другому. Шкафы и стеллажи — отличное решение для зонирования пространства однокомнатной квартиры. Шкафом-купе можно отделить рабочее место или спальную зону от гостиной, а непрезентабельную заднюю стенку конструкции декорировать любыми способами. К тому же, подобная мебель, помимо зонирования, используется для хранения книг, одежды и прочих вещей.
ФОТО: zakazkupe.ru/Стеллаж — довольно функциональный вид мебели
ФОТО: bangkoklibrary.comСтеллаж разграничивает пространство и служит системой хранения
ФОТО: avatars.mds.yandex.net
Использование освещения для зонирования квартиры
Не менее популярен вариант зонирования с помощью грамотно подобранного освещения. Этот способ, как и в случае с использованием различных цветов, не перегружает помещение, делает его более легким и визуально просторным. Над обеденной зоной размещают один большой или несколько маленьких светильников с регулировкой длины шнура, в гостиной можно установить центральную люстру и торшер, на рабочем месте — настольную лампу, а в спальне — небольшие ночники на тумбочках или на стене.
Разноуровневое освещение как способ зонированияФОТО:avatars.mds.yandex.net
Оптимизация пространства однокомнатной квартиры
Существенным недостатком однокомнатных квартир является их небольшая площадь и поэтому владельцы малогабаритного жилья стараются использовать как можно эффективнее.
Дизайнеры интерьеров разработали большое количество вариантов обустройства маленьких «однушек», где декоративные элементы имеют практическое назначение, а мебель представлена в необходимом минимуме. Также нужно учитывать количество людей в малогабаритной квартире.
ФОТО:mtdata.ru
Квартира холостяка
Людям. не обремененным семьей и детьми, как правило не нужно много вещей. Больше всего ценится много свободного пространства и комфорт. Именно поэтому холостяки выбирают студийную планировку, где обязательно должно быть:
- просторная кухня с обеденной зоной;
- вместительная гардеробная;
- уютная гостевая и спальная зоны.
Совмещенный санузел должен быть полностью изолирован от остального пространства. Спальная зона может выделяться прозрачными раздвижными дверьми или перегородкой из стеклоблоков с декоративной подсветкой. В гостиной можно расположить небольшой диванчик, журнальный или кофейный столик, теле- , видео- и аудиоаппаратуру, полки или стеллажи для книг.
Кухня отделяется от гостевой зоны диваном, невысокой перегородкой, аквариумом или барной стойкой.
При создании интерьера предпочтение отдается таким стилевым направлениям как: минимализм, лофт или хай-тек. Обставляя однокомнатную квартиру для холостяка стоит выбирать практичную и многофункциональную трансформирующуюся мебель.
ФОТО:v-kvartiremont.ruФОТО:vip-1gl.ruФОТО:inthi.ruЖилье семейной пары
В квартире молодой семейной пары особое внимание уделяется обустройству спальной зоны. Так же должна быть функциональная кухня, уютная гостиная и вместительная система хранения. Поскольку у каждого члена семьи имеются свои потребности, то при обустройстве однокомнатной квартиры это нужно учитывать. Обстановка гостиной может быть такой же как у холостяка, но в нее желательно добавить вместительный комод, в спальне устраивается дамский уголок с туалетным столиком и пуфом. Кстати для обустройства спальни можно использовать площадь балкона или лоджии, предварительно застекленной и утепленной.
В квартире молодой пар появляется больше декоративных элементов и текстиля, которые делают жилище более комфортным и уютным.
Обустройство «однушки» для семейной пары с детьми
Обустройство малогабаритного жилья для семейной пары с детьми довольно сложная задача, поскольку нужно учесть много факторов. Жилое пространство должно быть разделено на 3 зоны: взрослая, детская и совместного пользования. Обстановка должна отвечать потребностям всех членов семьи: ребенку необходимо полноценное место для учебы и сна, а спальню взрослых рекомендуется максимально изолировать.
Поскольку однокомнатные квартиры не отличаются большой площадью, то всю свободную площадь нужно использовать по максимуму. В кухне можно использовать подоконник в качестве дополнительной рабочей поверхности, небольшого обеденного столика или сделать из него барную стойку. Детскую зону или спальню родителей рекомендуется помещать на подиум в котором устанавливаются вместительные ящики или трансформирующееся спальное место.
Фото интерьеров однокомнатных квартир с интересными вариантами планировок
Сделать однокомнатную квартиру функциональной, комфортной и удобной для проживания задача не из простых. Лучше всего для обустройства малогабаритного жилья пригласить профессионального дизайнера интерьеров. Однако услуги специалиста не всем по карману и поэтому мы предлагаем познакомиться с некоторыми интересными вариантами планировок однокомнатных квартир. Надеемся, что они помогут при обустройстве вашего жилища.
В заключение предлагаем посмотреть видеоролик о создании идеальной перепланировки однокомнатной квартиры.
ПОНРАВИЛАСЬ СТАТЬЯ? Поддержите нас и поделитесь с друзьями
Примеры плана квартиры с 1 спальней
Особенности квартиры с 1 спальней
В зависимости от размера квартиры план этажа с 1 спальней может содержать множество ценных элементов. Просмотрите, чтобы увидеть, какие из них наиболее важны для вас.
- Гардероб и другие кладовые помещения. Планы небольших квартир с 1 спальней иногда не включают прихожую или кладовку в прихожей. Так что, если вы цените пространство, выделенное для хранения, вы можете рассмотреть планировку ближе к размеру 750 кв. футов (75 м2).Точно так же, если вы предпочитаете гардеробную в спальне, вам следует обратить внимание на большие планы этажей.
- Стиральная машина/сушилка. В некоторых 1-комнатных квартирах может быть предусмотрено место для встроенной стиральной машины и сушилки. Это может быть ванная, кухня, ниша или отдельная комната. В небольших квартирах стиральная машина с сушкой может быть сложена для экономии места, но даже в этом случае удобно иметь устройство прямо в своей квартире.
- Модернизированная ванная комната. Ванные комнаты в квартирах с 1 спальней могут варьироваться от небольших размеров с компактной раковиной и душевой кабиной до больших спа-зон с местом для большой раковины и полноразмерной ванны.
Еще одно удобство, на которое вы, возможно, захотите обратить внимание: доступ в ванную комнату как из спальни, так и из гостиной. Этот тип планировки предлагается на некоторых планировках и облегчает доступ в ванную комнату из любой точки квартиры. - Кухонные принадлежности. В кухне для 1-комнатной квартиры идеально иметь много верхних и нижних шкафов для дополнительного хранения. Еще одна полезная опция — барная стойка для быстрого приема пищи. Наконец, для бытовой техники, хотя плита и холодильник довольно стандартны, вам может понадобиться планировка со встроенной посудомоечной машиной или микроволновой печью.
- Столовая. В большой квартире с 1 спальней у вас может быть место для обеденного стола между кухней и гостиной. В идеале поищите достаточно места для стола на 4 персоны — подходящего размера, чтобы вы могли пригласить одного или нескольких гостей на ужин.
- Камин. Если вы любите поваляться у костра зимой, обратите внимание на планировку квартир с камином.

- Стол или рабочее место. Если вам требуется рабочее место в квартире, хорошо иметь гостиную, в которой можно разместить хотя бы небольшой письменный стол.Таким образом, вам не нужно заправлять постель перед звонком в Zoom!
- Балкон. Балкон, внутренний дворик или терраса – хороший вариант для некоторых планировок квартир с 1 спальней. Это дает место для стола бистро и обеда на свежем воздухе, возможность выращивать растения в горшках на открытом воздухе и, возможно, хранить велосипед или другие предметы на открытом воздухе.
- Окна. При просмотре планов квартир с 1 спальней обязательно обратите внимание на количество предлагаемых окон. Квартира с 1 спальней намного светлее и кажется более просторной благодаря большому количеству окон.
При просмотре планов этажей подумайте о наиболее важных для вас элементах. Надеюсь, вы сможете найти все свои пожелания в одном плане квартиры.
Планировка апартаментов в университетских виллах — проживание на территории кампуса
В University Villas есть апартаменты с 1, 2 и 4 спальнями.
Апартаменты с 4 спальнями University Villas
Двухэтажные апартаменты с четырьмя (4) спальнями предлагаются с двумя (2) различными возможными конфигурациями, в которых могут разместиться от пяти до шести человек.*
Конфигурация 1 : Эта конфигурация рассчитана на пять (5) жильцов, при этом спальня на первом этаже квартиры используется как двухместная комната. Каждая из трех (3) спален на верхнем этаже используется как одноместная. Опять же, одноместный номер с прилегающей гардеробной считается одноместным номером премиум-класса, а две другие спальни наверху — обычными одноместными номерами.*
Конфигурация 2 : Третья конфигурация аналогична Конфигурации 2, но вмещает шесть (6) резидентов.В этой конфигурации спальня наверху с примыкающей гардеробной также используется как спальня с двуспальной кроватью.
*Наличие университетских вилл Premium Singles зависит от количества студентов, запрашивающих жилье на территории кампуса в любой данный год.
University Villas Апартаменты с 4 спальнями Размеры и характеристики
Одноместный или двухместный номер «Премиум» с 4 спальнями и гардеробной
Размеры комнаты: 12,5 ‘Д x 11’ Ш
Гардероб: 72″Д x 56″Ш
Одноместный или двухместный номер «Премиум» с 4 спальнями и ванной комнатой
Размер комнаты: 12.5’Д x 11’Ш
Гардероб: 68″Д x 24″Г x 78″В
Стандартный одноместный номер с 4 спальнями
Размеры комнаты: 10,5 ‘Д x 9’ Ш
Шкаф: 58″Д x 24″Г x 78″В
Размеры мебели
Каркас кровати: 80,5″Д x 55,5″Ш x 37″В
Размеры матраса: 72″Д x 51″ x 7″В
Максимальная высота под кроватью: 30 дюймов
Комод / 3 выдвижных ящика: 26″Д x 24″Ш x 30″В
Индивидуальная тумба с выдвижным ящиком: 26″Д x 24″Ш x 10″В
Стол: 42″Д x 24″Ш x 31″В
Стул: 35″ В x 19″ Г x 18″ Ш
Апартаменты с 2 спальнями University Villas
В University Villas также есть апартаменты с двумя спальнями, в которых проживает в общей сложности два человека в однокомнатных номерах.
University Villas Апартаменты с 2 спальнями Размеры и характеристики
Одноместные номера с 2 спальнями
Размеры спальни: 13’Д x 9,5’Ш и 10,5’Д x 9’Ш
Размеры шкафа: 88″Д x 24″Г x 78″В и 64″Д x 24″Г x 78″В
Размеры мебели
Каркас кровати: 80,5″Д x 55,5″Ш x 37″В
Размеры матраса: 72″Д x 51″ x 7″В
Максимальная высота под кроватью: 30 дюймов
Комод / 3 выдвижных ящика: 26″Д x 24″Ш x 30″В
Индивидуальная тумба с выдвижным ящиком: 26″Д x 24″Ш x 10″В
Стол: 42″Д x 24″Ш x 31″В
Стул: 35″ В x 19″ Г x 18″ Ш
Апартаменты с 1 спальней University Villas
На университетских виллах также доступно очень ограниченное количество квартир с 1 спальней, в которых проживает один студент.
На что обращать внимание при просмотре планов этажей в Интернете
ЧТЕНИЕ 7 МИНУТ
При поиске квартиры в Интернете планы этажей предоставляют важную информацию о планировке квартиры.
Но они также могут быть несколько запутанными. Если вы когда-нибудь смотрели на план квартиры и задавались вопросом… что вообще означает этот символ? Это руководство для вас.
Обычный план этажа представляет собой двухмерный чертеж сверху в масштабе, дающий вам представление о планировке квартиры с высоты птичьего полета.Он показывает комнаты и их расположение по отношению друг к другу, а также расположение светильников, окон и дверных проемов.
3D-планы этажей3D-план этажа также предлагает вид сверху вниз, но план выглядит объемным и реалистичным. 3D-план этажа обычно выполняется в масштабе и часто включает в себя мебель, чтобы показать, как вещи вписываются в пространство. Некоторые 3D-планы этажей включают цвета краски и другую внутреннюю отделку, чтобы оживить план этажа.
Общие символы плана этажа Вы найдете символы на большинстве обычных планов этажей (реже в 3D-версиях).
Квадраты, круги и линии часто используются для представления некоторых стандартных функций. Планы этажей квартир сильно различаются по дизайну, но вот некоторые часто используемые символы и их значение:
На традиционных планах этажей сплошные линии обозначают стены. Толстая линия обычно указывает на внешнюю стену, а тонкая линия указывает на внутреннюю стену.
Квадрат с точкамиКвадрат с точками может использоваться для обозначения архитектурного выреза или элемента, например, сводчатого или лоткового потолка.(Сводчатый потолок имеет вершину, в то время как многоуровневый потолок представляет собой плоскую часть потолка, которая выше остальной части потолка.) Двойной потолок будет иметь два квадрата с пунктирными линиями.
Сплошной квадрат или кругЕсли в квартире есть колонны, они, скорее всего, будут представлены сплошным квадратом или кругом на плане этажа.
Т-образная форма Если вы видите что-то похожее на стол с коротким основанием (сплющенная Т-образная форма), это обычно представляет собой камин.
Однако это зависит от жилого комплекса, поэтому вы также можете увидеть камин, представленный в виде коробки или прямоугольника с формой, напоминающей шляпу внутри.
Светлая наклонная линия, идущая от стены, указывает на дверной проем. Обычно от конца линии отходит дуга, указывающая, в каком направлении открывается дверь. Это важная деталь, которую вы должны знать, когда думаете о расстановке мебели.
Незаполненные строкиСплошная линия, представляющая наружную стену, может иметь незакрашенный участок.Это представляет собой окно. Иногда, если окно открывается наружу, на это указывает дуга.
Прямоугольник с параллельными линиямиЕсли вы видите прямоугольник, содержащий ряд параллельных линий, это означает лестницу. Обычно стрелка используется для указания направления лестницы.
Номер за номером Внутренняя часть плана этажа — это место, где все становится немного сложнее.
Вы можете увидеть много квадратов и символов, и они могут обозначать разные вещи.К счастью, на большинстве планов этажей каждая комната помечена, поэтому легко найти гостиную, кухню, спальню и так далее. Давайте пройдемся по типичному плану этажа, комната за комнатой.
Это дверь в квартиру. Если он не помечен, он, скорее всего, будет единственным символом дверного проема вдоль толстой внешней линии (если вы не смотрите на дом или таунхаус, у которого есть задний вход). Знание того, где находится дверной проем, поможет вам понять, что вы увидите, когда войдете в квартиру.Ты будешь стоять посреди гостиной? Есть ли отдельный вход или фойе? Вы входите в квартиру через кухню?
Гостиная В гостиной ищите незаполненные линии вдоль толстой линии, чтобы узнать, где расположены окна. Если есть балкон, патио или крыльцо, вы увидите либо символ двери (или два символа двери, если есть французские или двойные двери), либо что-то похожее на два окна (две незаполненные линии), которые слегка перекрывают друг друга — это раздвижная дверь.
Если в квартире есть патио или балкон, это будет отмечено большим прямоугольником с открытыми линиями (указывающими на перила, а не сплошные стены).
Вы можете увидеть затенение на полу или небольшие прямоугольники. Обычно это тип напольного покрытия, будь то ковер или дерево.
КухняКухонная раковина может иметь форму квадрата с меньшим квадратом внутри (представляющего одинарную раковину) или прямоугольника с двумя квадратами внутри (представляющего двойную раковину).Если один квадрат заштрихован, скорее всего, это сушильная доска.
Квадрат с надписью «DW» — это посудомоечная машина.
Кухонные шкафы будут квадратными или прямоугольными вдоль стены. Если вы видите пунктирную линию через квадрат или прямоугольник, это означает, что наверху есть верхние шкафы.
Квадрат с буквой «OV» часто означает печь. Другой распространенный символ, квадрат с четырьмя кругами внутри, указывает на плиту.
Если кухонная зона состоит из маленьких квадратиков, пол на кухне, вероятно, выложен плиткой.
Деревянный пол обозначен длинными прямоугольниками.
Холодильник также обычно изображается с квадратом (иногда в нем будет написано «Ref»).
Если в квартире есть кладовая, это может быть указано на плане этажа линиями стен и символом двери.
СтоловаяЕсли в квартире есть отдельная столовая, это место будет помечено как «столовая». Если это план этажа с открытой планировкой без отдельной столовой, вы можете увидеть ее помеченной как «столовая».
Спальня Обратите внимание на расположение двери и то, как она открывается, когда вы смотрите на спальню — это поможет вам понять, куда поместится более крупная мебель, например, ваша кровать и комод. Гардероб в спальне будет прямоугольным или квадратным, в зависимости от его размеров. Двери в шкафу и направление, в котором они открываются, обозначены символами дверей. Если вы видите горизонтальную коробку внутри шкафа, это указывает на полку (и штангу для подвешивания одежды внизу).
Если вы видите пунктирные линии, это обычно означает двойные полюса в одежде.
Так же, как и на кухне, квадрат внутри квадрата представляет собой раковину в ванной (также может быть овал внутри квадрата). Вы также можете увидеть прямоугольник, состоящий из двух квадратов, что указывает на двойную раковину.
Ванна может быть представлена по-разному. Стандартная ванна, вероятно, будет выглядеть как прямоугольник с еще одним слегка закругленным прямоугольником внутри.Если в квартире есть сад или спа-ванна, это будет показано большим прямоугольником с овалом внутри. Если вы видите квадрат с буквой «Х» внутри, это чаще всего ливень.
Туалет обычно представляет собой овал, прикрепленный к небольшому прямоугольнику.
Если вы видите маленькие квадратики по всему полу, это обычно означает, что пол в ванной выложен плиткой.
Прачечная Вы можете увидеть маленькую комнату, иногда с дверью, состоящую из двух квадратов.
Это прачечная или прачечная.
Если в квартире есть стиральная и сушильная машины или коммуникации, это будет отмечено соседними квадратиками (квадраты будут иметь соответствующие «W» и «D», или это может быть один квадрат с W/D внутри) .
Вспомогательные символыЕсли вы видите квадрат с надписью HWT или кружок с надписью HW или WH в середине, это бак горячей воды (HWT) и водонагреватель (HW или WH). Вы можете найти эти символы во внутреннем или внешнем хранилище или, возможно, в шкафу внутри квартиры.
Определение размеров Теперь, когда вы знаете, что обозначает большинство символов, давайте поговорим об их размерах. Под каждой меткой комнаты вы увидите несколько цифр. Это размер комнаты. Так, например, если столовая имеет размеры 10 футов 4 дюйма на 8 футов 2 дюйма, ширина комнаты составляет десять футов четыре дюйма, а длина — восемь футов два дюйма. Обычно размеры плана этажа указываются сначала по ширине, а затем по длине.
Даже зная это, может быть трудно визуализировать пространство только по цифрам.Если вы хотите убедиться, что ваш обеденный стол будет удобно вписываться в столовую, измерьте стол, принимая во внимание пространство, которое вам понадобится вокруг него для стульев, и доступность. Посмотрите на план этажа и обратите внимание на входы и окна, так как вы не захотите их загораживать. Вам понадобится не менее 30 дюймов свободного пространства вокруг дверей и входов. Если вы все еще не уверены, возьмите малярную ленту или малярную ленту и отметьте размеры в вашем текущем жилом пространстве.
Обратите внимание на планировку квартиры, а не полагайтесь только на квадратные метры.Форма комнат, а не общий размер, будет играть большую роль в том, насколько хорошо ваша мебель будет вписываться в пространство. Также стоит отметить, что квадратные метры не всегда измеряются одинаково — многое зависит от того, что входит в комплект. Например, квадратные метры могут измеряться общей площадью или жилой площадью.


Воспользуйтесь хитрым приемом – потолок всегда должен быть на несколько оттенков светлее стен. Это визуально увеличит помещение;
Таким образом, есть возможность совместить зону готовки и зону прима пищи. Самое удобное при таком варианте размещения – не нужно переносить коммуникации, а достаточно всего лишь повернуть патрубки в другую сторону;
Если ваша квартира квадратная или прямоугольная, тогда разместив в отдельной комнате спальню, можно оформить оставшееся пространство под студию. Такой прием очень популярен на Западе, и все чаще используется и в современных российских квартирах.
Но стоит позаботиться о гидро- и теплоизоляции. Если вы сносите и вновь создаете перегородки, то обращайте внимание на вентиляцию и вытяжку;
Они отличаются расположением внутри дома и круговой планировкой внутри квартиры.

Воспользуйтесь хитрым приемом – потолок всегда должен быть на несколько оттенков светлее стен. Это визуально увеличит помещение;
Таким образом, есть возможность совместить зону готовки и зону прима пищи. Самое удобное при таком варианте размещения – не нужно переносить коммуникации, а достаточно всего лишь повернуть патрубки в другую сторону;
Если ваша квартира квадратная или прямоугольная, тогда разместив в отдельной комнате спальню, можно оформить оставшееся пространство под студию. Такой прием очень популярен на Западе, и все чаще используется и в современных российских квартирах.
Но стоит позаботиться о гидро- и теплоизоляции. Если вы сносите и вновь создаете перегородки, то обращайте внимание на вентиляцию и вытяжку;

Таким образом, есть возможность совместить зону готовки и зону прима пищи. Самое удобное при таком варианте размещения – не нужно переносить коммуникации, а достаточно всего лишь повернуть патрубки в другую сторону;
Если ваша квартира квадратная или прямоугольная, тогда разместив в отдельной комнате спальню, можно оформить оставшееся пространство под студию. Такой прием очень популярен на Западе, и все чаще используется и в современных российских квартирах.
Но стоит позаботиться о гидро- и теплоизоляции. Если вы сносите и вновь создаете перегородки, то обращайте внимание на вентиляцию и вытяжку;
Они отличаются расположением внутри дома и круговой планировкой внутри квартиры.

Воспользуйтесь хитрым приемом – потолок всегда должен быть на несколько оттенков светлее стен. Это визуально увеличит помещение;
Таким образом, есть возможность совместить зону готовки и зону прима пищи. Самое удобное при таком варианте размещения – не нужно переносить коммуникации, а достаточно всего лишь повернуть патрубки в другую сторону;
Если ваша квартира квадратная или прямоугольная, тогда разместив в отдельной комнате спальню, можно оформить оставшееся пространство под студию. Такой прием очень популярен на Западе, и все чаще используется и в современных российских квартирах.
Но стоит позаботиться о гидро- и теплоизоляции. Если вы сносите и вновь создаете перегородки, то обращайте внимание на вентиляцию и вытяжку;
Они отличаются расположением внутри дома и круговой планировкой внутри квартиры.
Санузел изолирован, а вот коридор может быть совмещен с общей зоной.
Они визуально разделяют помещение на зоны, как и стены, но промежутки между брусьями позволяют проникать свету и воздуху;
Например, спальное место можно приподнять на подиуме, а в саму конструкцию встроить ящики для постельного белья или других вещей;
Еще одно удобство, на которое вы, возможно, захотите обратить внимание: доступ в ванную комнату как из спальни, так и из гостиной. Этот тип планировки предлагается на некоторых планировках и облегчает доступ в ванную комнату из любой точки квартиры.