Дизайн-проект двухкомнатной квартиры п44т «распашонка»: фото планировки двушки-«распашонки» П-44Т
Как сделать наиболее целесообразный дизайн-проект двухкомнатной квартиры П-44Т «распашонка» — фото планировки
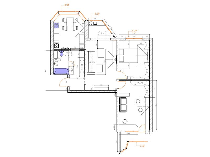
Сразу оговорюсь: существует две распространенные вариации этих квартир. Двушки-«распашонки» в торце дома (коих меньшинство) обладают приятным, но непростым с точки зрения самостоятельного ремонта дополнением — в виде эркера в гостиной. И заслуживают отдельного разговора. В этой статье речь пойдет о перепланировке внутрисекционной двухкомнатной распашной квартиры П-44Т с эркером (фото ниже) на кухне и без эркера в гостиной.
Наталья Преображенская | Бюро «Уютная Квартира»
Особенности планировки
Двухкомнатная квартира-«распашонка» в доме П-44Т — или, как ее еще называют, «угловая двушка» — ориентирована таким образом, что во внутреннем углу находится прихожая. От линейной двухкомнатной квартиры «распашонка» отличается чуть более просторными комнатами.
В такой квартире практически все стены несущие, поэтому кардинальную перепланировку проводить априори невозможно. Есть смысл поупражняться с функциональным наполнением помещений, изредка — с возведением перегородок и мебелью.
Важно: В каждом из предложенных вариантов перепланировки ванную комнату и санузел можно объединить или оставить раздельными. Решения, которые я описываю в этой статье, разработаны и воплощены для реальных заказчиков — и каждый раз с учетом их интересов. Вы же, исходя из потребностей вашей семьи, вольны выбрать собственное рациональное дизайн-решение, учитывающее необходимые вам размеры комнат.
Наталья Преображенская | Бюро «Уютная Квартира»
Вариант 1. Личное пространство для родителей и ребенка
Эта задача — одна из самых популярных для тех семей, где есть ребенок школьного возраста или студент: необходимы личные комнаты, где есть полноценные спальная зона, рабочее место или гардероб, а также места для хранения.
В этом случае выделяем изолированные спальни, семейное место можно организовать в достаточно просторной кухне — устроить в эркере обеденную зону. А в большей из спален удобно расположить вместительную угловую гардеробную.
Совет: Для трех взрослых жильцов двухкомнатной квартиры-«распашонки» я не рекомендую объединять санузел. Ради экономии пространства в ванной можно разместить просторную душевую кабину, а туалет оставить изолированным.
Наталья Преображенская | Бюро «Уютная Квартира»
Вариант 1а. Взрослые дети и родители под одной крышей
Решение подойдет в ситуации, когда молодая семья или взрослый ребенок не успели или пока не собираются отделяться от родителей или от одного из родителей.
Вместо детской в этом случае организовываем полноценную спальню, а роль гостиной зоны успешно выполняет кухня-столовая. В варианте с молодой семьей в одной из комнат в перспективе даже найдется место для детской кроватки.
На примере этой планировки «распашонки» я показываю, как будет «работать» объединенный санузел: помимо душевой кабины мы можем разместить здесь биде, а также стиральную и сушильную машины.
Наталья Преображенская | Бюро «Уютная Квартира»
Вариант 2. Семейная пара с двумя детьми
Второй по популярности запрос: часто ситуация такова, что родители пока не готовы приобрести более просторную квартиру, но хотят грамотно распорядиться текущими условиями. В этом случае логично отдать комнату большего метража под детскую, а маленькую отвести под спальню родителей. Этот вариант позволит разместить в детской две кровати, большой шкаф или гардеробную и два рабочих места (одно из них — на утепленной лоджии).
Если дети разновозрастные, что встречается чаще, взрослому ребенку я советую купить функциональный раскладной диван. Тогда в дневное время в детской появится своеобразная гостиная зона, где дети смогут играть и смотреть телевизор.
В кухне размещаем просторный диван, а в эркере обустраиваем барную зону для завтраков. Санузел в этом варианте планировки я бы порекомендовала не объединять, иначе при схожем графике работы-учебы утро будет начинаться с очередей в ванную и туалет.
Наталья Преображенская | Бюро «Уютная Квартира»
Вариант 3. Гостеприимная пара / Хозяин, часто работающий из дома
В этом случае функциональные зоны лучше поменять местами: в маленькой комнате обустроить изолированную спальню с рабочим местом на лоджии, а в большой — просторную гостиную. Это будет удобно, если хозяин квартиры иногда приглашает домой коллег и клиентов или компанию друзей. Большой угловой диван и барная стойка прекрасно выполнят свои предписанные роли.
Совет: Если в гостиной поставить «глухую» барную стойку, она очень комфортно отделит мягкую зону от коридора. Если в ней, например, сбоку предусмотрены полки, — получается двойная выгода: она послужит местом для хранения книг и журналов.
Наталья Преображенская | Бюро «Уютная Квартира»
Вариант 4. Активная молодая семья
В этом варианте почти всегда нужна удобная квартира с достаточным количеством мест для хранения одежды и спортинвентаря, полноценным рабочим местом и гостиной для встреч с друзьями. И — с «прицелом» на пополнение. Поэтому в большой комнате вполне логично организовать просторную спальню с гардеробной, а на лоджии можно обустроить комфортный «домашний офис». В перспективе в просторной спальне прекрасно поместится и кроватка для малыша. А вот маленькой комнаты вполне достаточно для уютной гостиной, куда очень органично вписывается угловой диван стандартных размеров и удобное кресло.
Здесь будет целесообразно пробить проем из кухни (чтобы делать такой ремонт, потребуется согласование перепланировки и укрепление стены) и тем самым установить логичную связь между гостиной и столовой. Телевизор располагаем в стенном проеме между дверьми из кухни и прихожей.
Совет: В этом случае я советую не только объединить санузел, но и расширить его за счет части коридора — такую перепланировку будет нетрудно согласовать. Дверной проем из кухни в коридор закладываем, а в освободившемся на его месте функциональном пространстве можно поставить, например, духовой шкаф и холодильник. Такой планировочный ход сделает столовую и ванную более просторными, несмотря на изменения в перегородках.
Наталья Преображенская | Бюро «Уютная Квартира»
Спонсируемые
Ihr Ansprechpartner für Komplettsanierungen & Neubau | Düsseldorf
Дизайн-проект двухкомнатной квартиры серии п44т (распашонка)
Перейти к содержанию
Дизайн-проект двухкомнатной квартиры серии п44т (распашонка)дизайн квартиры:
Авторский надзор
Все разделы
Электрика от 70 р/м2
Отопление от 80 р/м2
Вентиляция от 50 р/м2
Водоснабжение от 80 р/м2
Заказать звонок
Инженеров
Дизайнера
Менеджера
проектов
Дизайн-проект двухкомнатной квартиры-распашонки п44т
«Двушка» в панельном доме не пригодна для проживания большой семьи.
Дизайн-проект двухкомнатной квартиры серии п44т (распашонка) поможет определить сильные и слабые стороны жилища. Чтобы превратить жилье в комфортабельное гнездо, надо тщательно продумать зонирование и интерьер.
Планировочные решения
При обустройстве «двушки» обращают внимание на состав семьи и привычки всех обитателей. Комнаты у «распашонки» не имеют общих стен и располагаются одна за другой. Между жилым пространством находится кухня или прихожая, хотя иногда встречаются проходные варианты.
Окна выходят на противоположные стороны здания, что позволяет организовать солнечную и теневую части. Комфортная температура сохраняется в любое время года, а в помещениях мало темных углов. Единственным минусом является постоянные сквозняки, которые ощущаются при дефектах в балконном или оконном блоке.
Для серии п44т дизайн-проекты 2 комнатных квартир-распашонок тщательно изучают технические характеристики дома. В типовых застройках редко разрешают кардинальные изменения, хотя неудобства можно сгладить.
Например, большее помещение делят тонкой перегородкой на две части, в результате чего появляется пространство для детской и спальни. Ребенку оставляют вариант с окном, а взрослым монтируют искусственную подсветку.
Крохотную кухню объединяют с гостиной. На месте снесенной стены ставят мягкий уголок или оборудуют полноценную столовую. Для холостяка совмещают зал и комнату для приготовления пищи с прихожей. С перегородками оставляют только маленькую спальню и санузел. Балкон утепляют и обустраивают под кабинет, бар или систему хранения. Замена стандартных дверных проемов на арки или раздвижные модели добавляет к полезной площади по одному квадрату.
Если глобальная перепланировка запрещена, то в «распашонке» приходится приспосабливать доступные метры. Большую комнату «отдают» под гостиную, совмещающую функции кабинета и столовой. Зонирование осуществляют при помощи мебели и отделки. Семье с ребенком придется оборудовать пространство под спальню. Границы «проводят» передвижными ширмами, кадками с цветами и стеллажами.
Варианты дизайна двухкомнатной квартиры-распашонки п44т
Как правильно оформить
Интерьер – это лицо жилища, поэтому дизайнеры уделяют отделке и обстановке максимум времени. Все пространство выполняют в одной цветовой гамме, хотя кухню разрешается сделать яркой. Если есть проходная комната, то ее оформляют в едином фоне с соседним помещением. Создается ощущение одного пространства, разъединённого стеной.
В гостиной гармонично вписывается классика, хотя неплохо смотрится и скандинавский минимализм. Нейтральные теплые оттенки сочетаются с шоколадными акцентами. На полу удачно расположен коврик с длинным ворсом, а на стенах картины.
Разрабатывая дизайн-проект двухкомнатной квартиры распашонки п44т, специалисты рекомендуют экспериментировать с оформлением. В помещении-студии зонирование проводят при помощи цветовых переходов. Например, напольное покрытие в кухне отличается от оттенка линолеума или паркета в гостиной и прихожей. В качестве ложной стены используют аквариум или стеклянные блоки.
Системы хранения разгружают фон и делают жилье более уютным. Шкафы гармонично вписываются в общую концепцию и являются продолжением интерьера. Встроенные модели до потолка выполняют функцию гардеробной. Зеркальная облицовка дверей визуально увеличивает пространство и «прячет» мебель от постороннего взора. Ниши приспосабливают под полки для мелочей.
Чуть ниже, вы сможете сориентироваться по стоимости дизайн проекта двухкомнатной квартиры-распашонки п44т .
Стоимость разработки дизайн-проекта двухкомнатной квартиры-распашонки
Эскизный
дизайн-дома₽ 750 р./м2
Обмерный план дома.Планировочные решения (не более 2 вариантов).

План демонтажа/ возведения перегородок и стен (при необходимости).
План расположения мебели и оборудования.
План привязки сантехнического оборудования( при наличии).
План расположения силовых и слаботочных розеток и электрических выводов.
- Совмещенный план потолков с расположением светильников.
Совмещенный план расположения светильников и выключателей.
План напольных покрытий.

Архитектурный разрез.
Заказать звонок
Минимальная стоимость работ от 15000 р.
Базовый
дизайн-дома₽ 1100 р./м2
Обмерный план дома.
Планировочные решения по перепланировке (при наличии) и переустройству помещения( не более 4 вариантов).
Демонтажно-монтажный план дома.
Экспликация помещений после перепланировки.
План расстановки мебели и оборудования, включая декоративные элементы в доме.

План привязки сантехнического оборудования (при наличии).
План пола с указанием: отметок уровня пола, типа напольных покрытий, их рисунка и размера.
Экспликация полов всех помещений.
План потолка с указанием типа используемого материала.
Совмещенный план потолка с расположением светильников
Совмещенный план с расположением светильников и выключателей.
План расположения силовых и слаботочных розеток и электрических выводов.

Развертки и разрезы внутренних стен основных помещений со всеми декоративными элементами.
Схема заказных, нестандартных изделий с размерами.
Спецификация отделочных материалов.
Спецификация светильников.
Ведомость отделки помещений.
Заказать звонок
Минимальная стоимость работ от 20000 р.
Полный
дизайн с визуализацией₽ 1600 р./м2
Обмерный план дома.

Планировочные решения по перепланировке (при наличии) и переустройству помещений дома (не более 4 вариантов).
Демонтажно-монтажный план.
Экспликация помещений после перепланировки.
План расстановки мебели и оборудования, включая декоративные элементы в доме.
План привязки сантехнического оборудования(при наличии).
План пола с указанием: отметок уровня пола, типа напольных покрытий, их рисунка и размера.

Экспликация полов всех помещений.
План потолка с указанием типа используемого материала.
Совмещенный план потолка с расположением светильников.
Совмещенный план с расположением светильников и выключателей.
План расположения силовых и слаботочных розеток и электрических выводов.
Развертки и разрезы внутренних стен основных помещений со всеми декоративными элементами.
Схема заказных, нестандартных изделий с размерами.

Спецификация отделочных материалов.
Спецификация светильников.
Ведомость отделки помещений.
Перспективы помещений: 3D визуализация.
Заказать звонок
Минимальная стоимость работ от 25000 р.
Спешим напомнить! Компания ведет надзор за проектом на всем этапе его выполнения и гарантирует высокое качество проводимых работ. По телефонам указанным на сайте наши специалисты предоставят консультацию по проектам, заинтересовавшим заказчика.
Заказать звонок
Профессиональный дизайнер в оговоренные сроки выполнит качественный дизайн-проект двухкомнатной квартиры распашонки п44т с учетом всех пожеланий заказчика.
Остались вопросы?
Оставьте сообщение или укажите имя и телефон, мы с удовольствием вам перезвоним.
name
Телефон
Сообщение
Нажимая на кнопку «Отправить» вы даете согласие на обработку своих персональных данных.
Добрый день. Для того чтобы сформировать предварительное коммерческое предложение, вам нужно выбрать Нажимая на кнопку «Отправить», вы даете согласие на обработку своих персональных данных. |








м.
м.
м.
м.
м.
м.
м.
м.
м.

)
)