лучшие идеи и проекты перепланировки, реальные фото
Понравилась статья? Следите за новыми идеями из мира строительства, дизайна, полезных советов в нашем канале. Подписывайтесь на нас в Яндекс.Дзене. Подписаться.
Из простой однокомнатной квартиры можно сделать уютное жилье. Есть много разных идей, как создать квартиру своей мечты, правильно разграничивая пространство. Даже из небольшой квартиры получаются современные, просторные комнаты. Перед тем, как что-то предпринять, подумайте над каждой деталью. Ничего не упускайте из виду, любая мелочь может быть полезной.

Уют и комфорт в квартире зависят от грамотного подхода к организации интерьера, а вовсе не от количества квадратных метров
Необходимые документы и разрешения при переделке однушки в двушку
При планировке жилья необходимы будут такие документы, как согласованный проект на перепланировку, подача заявления от владельца квартиры, технический паспорт, документы на право владением квартиры. Перепланировку можно будет делать в случае получения владельцем разрешения. Собственнику запрещается переделывать квартиру без согласования и разрешения.

Только после получения утвержденного проекта перепланировки можно будет приступать к ремонтным работам
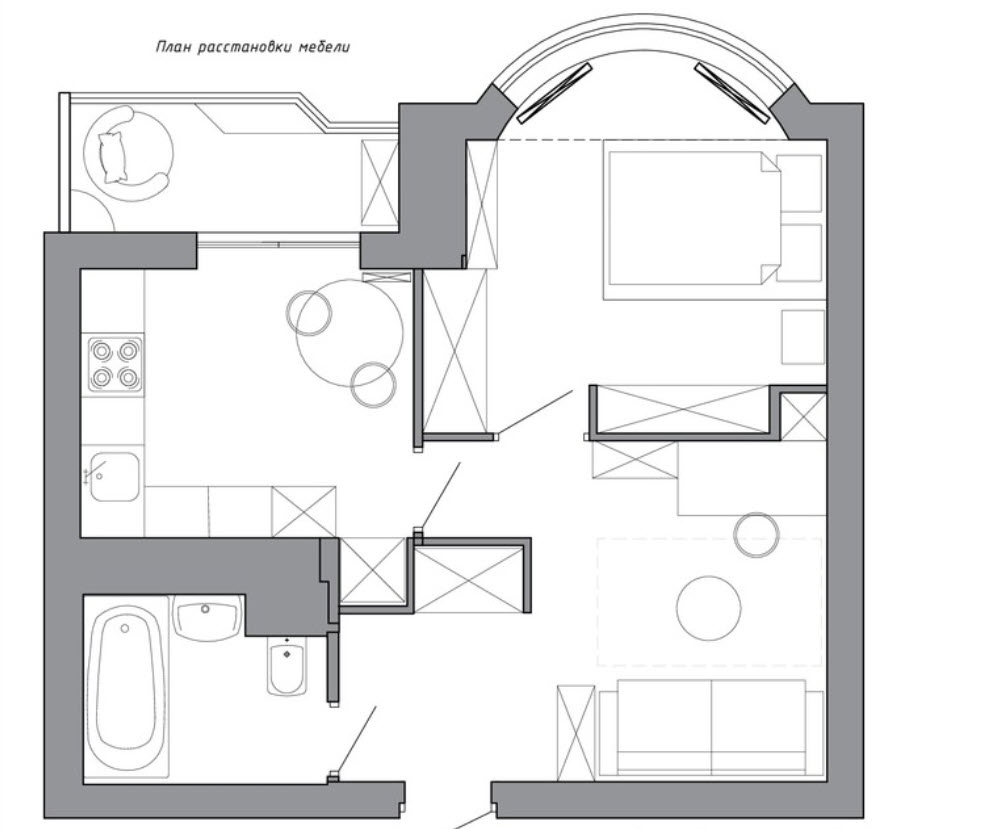
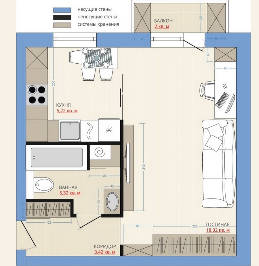
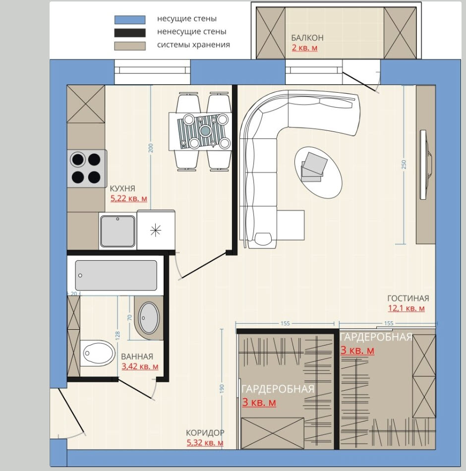
Готовые схемы проектов переделки однокомнатной квартиры в двухкомнатную разной площади
При перепланировке в 38 кв м учитывается все до мелочей. Для такой квартиры лучше всего подойдут такие стили, как хай-тек, скандинавский или кантри. При использовании одного из стилей в квартире будет уютно и просторно. Важно заранее все распланировать, как из однушки сделать двушку и постепенно начать перестройку. Главное, выбрать подходящий вариант и тем самым можно преобразить свою жилплощадь.

Спальная зона выделена в небольшую, но отдельную комнату. Большая часть пространства досталась кухне-гостиной, в которой раскладной диван служит дополнительным местом для сна
При 40 кв м комнаты могут быть открытыми, что придаст квартире неповторимый вид. При перепланировке в любой интерьер можно внести “изюминку” и тогда все будет смотреться изящно и красиво. Каждому хозяину квартиры можно создать индивидуальный проект и решить как из однушки сделать двушку 40 кв. Разграничивая помещения в квартире нужно сделать так, что все было компактно расставлено.

Приватное место для ночного отдыха размещено за стеклянной перегородкой, что позволило сохранить в спальне естественное освещение
При 43 кв м будет уютно, если разграничить основную комнату перегородкой. У тех, у кого есть дети сделать для них игровую комнату. Если владелец проживает один, то ему можно создать уютное офисное помещение. Все гармонично сочетаться в соответствие с установленными правилами.

Комната с двумя окнами разделена на спальную и гостиную зоны, последняя отделена от кухни барной стойкой
При 45 кв м в одной комнате можно установить кровать и диван без потери основного стиля. Вторая половина может быть занята кухней в американском стиле. Здесь можно все разграничить так, чтобы уместились:
- напольные вешалки;
- небольшие шкафчики;
- напольный торшер;
- столик;
- диван и т.д.

Благодаря перепланировки удалось организовать просторную кухню-гостиную и уютную спальную зону с небольшим гардеробом
При 50 кв м может получиться в одной половине уютная спальня, а в другой отдельный уголок отдыха. В качестве перегородки можно поставить прозрачные. Это придаст помещению современный, презентабельный вид. В квартире может быть объединена кухня с гостиной и отдельная спальня. Все это может быть удобным вариантом для семейной пары.

Функциональный интерьер с достаточно большой спальной комнатой, кухне-гостиной и рабочим кабинетом на утепленной лоджии
При перепланировке 55 кв м можно сделать интерьер в швейцарском стиле, использовав светлые оттенки. Интерьер лучше не перегружать лишними деталями, а повесить украшения на стены и потолок. Если даже дизайн простой, то интерьер может получиться стильный и современный.

Популярные варианты и проекты перепланировки однушки в двушку
Из любой может получиться квартира-студия, которую по достоинству оценят гости. Небольшую площадь можно разделить стеллажом или большим шкафом. Это позволит визуально поделить комнаты на соответствующие зоны.

Отделить спальную зону можно небольшой перегородкой с местом для телевизора
Создание квартиры-распашонки
Гардеробная, находящаяся в центре однокомнатной квартиры-распашонки может разделять кухню и гостиную. Со стороны кухни в стене комнаты могут быть ниши для хранения мелких и крупных деталей, а также посуды.

С ролью гардероба прекрасно справится вместительный шкаф-купе с раздвижными дверцами
Вдоль стены может находится обеденная группа, а именно стеклянный столик со стульями. Так квартира может назваться еще потому, что оба окна будут выходить на разные стороны, если комнаты расположены друг напротив друга.
Создание квартиры-студии (из квартиры распашонки)
Что касается этого варианта, то здесь с использованием нестандартных подходов можно создать в помещении уют и комфорт. Все это достигается, благодаря стараниям и внесению новшеств. Сегодня нередко делают из однушки реальную двушку с фото, применяя один из современных стилей. Лоджия и балкон станут дополнительными помещениями для отдыха.

Одним из преимуществ студийной планировки является значительное сохранение площади за счет отсутствия перегородок и дверных конструкций
Отделение пространства спальни и гостиной гипсокартонными стенами
Используя разную цветовую гамму можно однушку переделанную в двушку сделать просторнее. Обои, имитирующие кирпичную стену можно наклеить в гостиной. Здесь же можно поставить диван еврокнижка, а также шкаф купе. Для спальни подойдет небольшая раскладная кровать.

Гипсокартонная перегородка очень тонкая, поэтому занимает минимум свободного пространства
Обеденная зона должна быть свободной и без нагромождений. Гарнитур может быть небольшим и вписываться в интерьер квартиры. Удобно разделить гостиную и спальню гипсокартонной стеной, которая не займет много места.
Использование декоративных перегородок (штор, мебели)
При переделки актуальным будет создание декоративных перегородок из красивых стеллажей. Они идеально подойдут к любому интерьеру. В детской можно создать уютный уголок и повесить для украшения между перегородками красивое полотно или яркие шторы. В качестве освещения сделать точечные светильники или подвесные лампы. Каждый может выбрать по своему вкусу.

Квартира-студия с гостиной и спальной зоной, отделенной с помощью шторы из плотной ткани
Если спросите, как сделать хорошую евродвушку из однокомнатной квартиры, то из нее получится идеальный вариант современной квартиры.
Из любой, старой неуютной квартиры получится просторная, если правильно разграничить площадь.
Мебель должна быть встроенной, тогда для нее потребуется минимум места. Светлые тона в сочетании с фотообоями придадут комнатам эстетичный, приятный вид.

Фотообои с панорамным видом украсят комнату и зрительно увеличат размеры помещения
На стенах можно сделать фигуры в виде квадратов и ромбиков, внеся что-то необычное в интерьер. Каждый метр должен быть заставлен по мере необходимости, но и плюсом будет экономия свободного пространства.
Переделка однокомнатной квартиры в уютную двухкомнатную для разного количества человек
Из однокомнатной квартиры может получиться двухкомнатная. Для разделения комнат можно установить распашную или раздвижную дверь. Это будет выглядеть необычно, но и придаст интерьеру особенный вид. Этим можно сэкономить квадрат площади.

Для тех, кому важен уют и размеренный быт, большую часть комнаты можно отвести под спальню с удобной кроватью, шкафом-купе и другими системами хранения
Привычным делом будет совместить гостиную и кухню. Перегородка может быть из гипсокартона, для которого следует сделать специальный каркас из профиля. Если все правильно установить, то такая перегородка между комнатами будет смотреться просто потрясающе.

Для кухонной зоны лучше выбрать угловую планировку, обеспечивающую максимальное удобство процесса приготовления пищи
Если семья с ребенком (с 2 детьми), то как лучше всего сделать из однушки в двушку, чтобы всем было комфортно. Здесь одним из плюсов будет являться большая площадь, из которой получится презентабельная жилплощадь. Для детей можно соорудить детскую комнату и здесь же разместить небольшой турник, где маленьким детям будет интересно потренироваться. Для подростков можно сделать место для занятий за ноутбуком. Комнату сделать в виде офиса, в деловом стиле.

Для детской зоны важно продумать количество предметов мебели, учесть их качество и безопасность
Квартиру можно разграничить на две небольшие половину со встроенной мебелью. Для бытовой техники всегда должно быть достаточно места, так как без нее не обойтись. Ванную и туалет можно оборудовать современной сантехникой небольших размеров. Стены можно украсить лепниной или декоративной штукатуркой.

Размещенная на стене сантехника экономит пространство ванной комнаты и облегчает уборку
Для 3 и более человек
Для семьи из 3 человек можно сделать просторную квартиру, в которой будет удобно всем. Неплохим вариантом будет установка между комнатами стеклоблока, это во многом сэкономит место и сделает дешевле переделку. Вариант считается выигрышным и тем самым в отделяемой комнате сохраняется естественное освещение.

Из стеклоблоков можно сделать полноценную перегородку или использовать их в качестве декоративных элементов в составе комбинированной конструкции
Для 4 и более человек
Для большой семьи идеальным вариантом будет разделение комнат стеллаж. На нем можно разместить все, начиная от книг и заканчивая сувенирами. Тем самым у домочадцев будет зона для отдыха и своеобразная библиотека, как говорится все под рукой.

Невысокий стеллаж разделит комнату на зоны, сохранив при этом естественное освещение
Идеи визуального зонирования квартиры для увеличения пространства
- Использование мебели-трансформера. Прекрасным вариантом будет использование такой мебели. Она достаточно компактная и может складываться. Для однокомнатной квартиры лучшего не найти. Выпускаемая мебель зарекомендовала себя, как лучшая. Это могут быть не только диваны, но и столы, стулья и кровати.
- Использование зеркал и больших окон. Отлично, когда в квартире большие окна, естественное освещение лучше светильников и торшеров. Применение перегородки в виде зеркала внесет в ваш интерьер “изюминку”. Такое встретишь не часто. Прекрасно, когда двери шкафа-купе с зеркалами. В квартире уже не нужно вешать дополнительное зеркало. При этом встроенный шкаф-купе можно заполнить всеми необходимыми вещами. Лишнего в квартире быть не должно.
- Установка модульной мебели. Одним из лучших вариантов будет установка такой мебели. Сегодня для квартиры подойдут модульные гостиные, стенки, с наличием полок и ящиков. Такая мебель будет необходимой для тех, стремится иметь просторную жилплощадь.

Зеркальная стена визуально увеличит площадь комнаты ровно в два раза

В маленькой комнате крайне нежелательно располагать слишком много мебели, чтобы не перегрузить интерьер

Визуальному увеличения пространства небольшой комнаты способствует светлая отделка стен и потолка
Для малогабаритной квартиры подойдет линейный или угловой вариант. Популярным стало использовать мебель в виде Г-образной и П-образной форме, а также стенок-горок. В такой мебели есть множество разных секций, куда можно складывать все ненужное.

Ценители роскоши и семейных традиций могут выбрать интерьер в классическом стиле

Молодое поколение чаще всего выбирает более современные интерьеры – хай-тек, минимализм или модерн
Для квартиры мебель можно выбрать в стиле модерн, классика или фьюжн. Один из предложенных вариантов точно подойдет. В каждом случае это подчеркнет ваш стиль и вкус и будет замечен вашими гостями. Так, что друзья стремитесь к лучшему, оставляя позади все старое! В интерьере используйте современные и неповторимые дополнения!
Видео: Грамотная перепланировка однушки в двушку
Фото реализаций лучших дизайнерских идей
20 толковых идей по перепланировке однокомнатной квартиры с примерами 100+ Фото
Популярные варианты перепланировки однушек
Идея 1. Кухня вместе с гостиной
Перепланировка квартиры в этом случае предполагает соединение гостиной с кухней, таким образом можно получить дополнительное свободное пространство. Для зонирование пространства можно установить стеклянную перегородку.

Идея 2. И диван и… кровать
При желании иметь одновременно кровать и диван в однокомнатной квартире-студии следует расположить их друг напротив друга. Сегодня существуют современные кровати, монтирующиеся в стену.

Идея 3. Проходная кухня или кухня-ниша
В квартире-студии либо однокомнатной квартире можно обустроить проходной вариант кухни в коридоре, либо на ее месте, но сместив немного в сторону от входа. Таким образом, больше места освободится для мебели. Обычно такое дизайнерское решение подразумевает мини-кухню с гарнитуром не больше 1,8 м.

Идея 4. Перегородки из стекла
Чтобы зонировать «однушку», стоит использовать стеклянные перегородки, которые пропускают световой поток и смотрятся практически незаметно. Они не утяжеляют и не загромождают пространство. Это очень важно. Такая ошибка в маленькой квартире недопустима.

Идея 5. Кровать в стене

Идея 6. Раздвижная перегородка

Идея 7. Открытая детская для ребенка в студии вместе с родителями




Идея 8. Задействовать площадь прихожей

Идея 9. Использовать встроенные системы для хранения в 1-комнатной квартире
Встроенные системы для хранения вещей решают вопрос размещения вещей и при этом не загромождают пространство.



Идея 10. Сделать двушку из однокомнатной квартиры
Чтобы результат превзошел ожидания, следует придерживаться некоторых приемов:
- пространство разделите стеклянными блоками – так получите две функциональные и естественно освещенные зоны. Прочный материал идеален для установки перегородок в квартире;
- перегородка из гипсокартона сделает одну зону глухой, комната лишится естественного освещения. Такая перегородка сгодится для спальни, где искусственный свет будет смотреться даже лучше. Для этого стоит использовать бра, светильники и торшеры;
- зонирование мебелью – это декоративный вариант перепланировки с отсутствием тепло- и звукоизоляции.
Если высота потолков в квартире больше 2,5 метров, можно соорудить «второй этаж», например, для детской. Оптимальным вариантом для лестницы будут ступени из тумбочек, где можно разместить игрушки, книги, детские вещи.
В однокомнатной квартире хорошо выглядит зонирование разноцветными обоями и текстилем.

Идея 11. Сделать из однушки трешку
При наличии фантазии однокомнатную квартиру реально переоборудовать в трехкомнатное пространство. Однако такой ход выполним для помещений, площадью от 40 кв.м. Для функциональности перепланировки обычно необходимо сносить стену кухни. Так помещение будет квадратным, что расширит возможности для работы дизайнера. Идеальным будет решение об угловом расположении комнат.
В однокомнатной «трешке» будут спальня, детская и гостиная. В центральной зоне разместится гостиная, соединяющая все комнаты в единое пространство. Чтобы оно получилось воздушным и легким, двери из проекта стоит исключить. Стеновые перегородки поднимать рекомендуется не выше, чем на 1,4 метра. На кухне – можно использовать стол-трансформер, а в ванной – компактную душевую кабинку.

Идея 12. Делаем студию
Квартиры-студии сегодня становятся весьма актуальными. Это современный вид жилья, где перегородками выступают ширмы, полочки и стойки. Если придумать невысокую гипсокартонную стену, она сделает помещение уютнее.
Зону для приготовления пищи и гостиную можно разделить аркой. В такой перепланировке обязательно используют разное напольное покрытие: в гостиной – ламинат, в кухне – плитку. Гостевую зону лучше расположить около окна. Сюда стоит разместить диван, шкаф, кресла, столик и телевизор. На кухне следует установить барную стойку.

Идея 12. Cпальня за шторой
- подходит для пары без детей
- экономная реализация.



Идея 13. Cпать на диване, кухня отдельно
Сегодня такой планировки стараются избегать, спать нужно на кровати!

Идея 14. Если высокие потолки — задействуй пространство!

Идея 14. Кровать на подиуме — хранение внизу
Идея 15. Столешница и стол вместе
Идея 16. Кровать в нише
Идея 17. Зонирование стеллажом
Идея 18. Зеркальный шкаф во всю стену добавляет объема
Идея 19. Хранение вдоль всей стены до потолка
Идея 20. Стенка для хранения + рабочее место
Еще несколько идей перепланировок — реализация с фото

















































Примеры однокомнатных квартир с перепланировкой — план
А как вы решили проблему нехватки свободной площади в однокомнатном жилье?



























Как сделать двухкомнатную квартиру из однокомнатной?

Перепланировка однокомнатной квартиры в двухкомнатную – оптимальный вариант, когда нельзя сразу же, с места в карьер, продать «однушку», чтобы купить «двушку».
Необходимость перепланировки
Распространённый вариант – когда будущие молодожёны съехались, а финансовые вливания каждого из супругов не позволяют осуществить покупку дома или квартиры своей мечты. Необходимость перепланировки может быть связана и с рождением ребенка, которому впоследствии понадобится детская. Идея перепланировать однокомнатное жильё в двухкомнатное применима и к частному домику общей (не только жилой) площадью в 25-40 квадратных метров.
Перепланировка квартиры в многоэтажном доме, если вы живёте не на последнем этаже, влечёт за собой сбор разрешительных справок. Даже когда стена, планируемая к сносу – перегородка, а не часть несущего остова, согласование с вашей жилконторой и иными службами всё равно потребуется. В своём же частном доме, если это не двух- или трёхэтажный, вы вправе менять план так, как посчитаете нужным.
Общее сходство – трогать несущие стены без заключения стройэкспертов нельзя.

Основная мотивация – когда два человека, живущие в однокомнатной квартире, имеют разные взгляды на режим дня. Когда парень хочет, например, поиграть в очередную сетевую игру, так как он никуда не спешит и у него «удалёнка», а девушке завтра в 7: 30 ехать на работу. Или, наоборот, у семьи есть желание отделить спальное ложе от угла с компьютерным столом. Особенно это касается квартир-студий, где прихожая, кухня, спальня и гостиная – единое целое. Легче, когда кухня отдельно – в данном случае ноутбук переносят на кухню и закрывают дверь в спальню.
Нередкая причина – избежать воздействия малого пространства однокомнатной квартиры на психику. Наконец, проект малогабаритной квартиры можно переделать из чисто дизайнерских мотивов, чтобы приблизиться к квартире своей мечты.
Способы изменения пространства
Если изначально в квартире не было внутренних глухих стен, то пытаться их воссоздать не следует. Они отнимут до нескольких квадратных метров. Но альтернативные решения всё же есть.
- Гипсокартон – возможно возведение с нишами, например, под одежду, книги, какие-либо личные вещи. Форма и подсветка зависят от изобретательности и вкуса хозяина.
Одно из креативных решений – перегородка с окошками. Их обрамление контрастирует с остальной частью перегородки.
- Стеклянная перегородка. Используется специальное небьющееся оргстекло. Оно не должно быть прозрачным – вспомните, как раньше застекляли окна и двери бань и душевых. Если использовать прозрачное стекло – отгородиться от излишнего шума можно, но приватности не будет никакой.
Стеклопакет почти не уменьшает жилое пространство.
- Переносная ширма. Если речь идёт о спальне – днём прозрачная для света ширма будет пропускать солнечный свет в отгороженное пространство. Отдалённо напоминает раздвижные (автоматические) двери в гипермаркете или рольставни (конструкция может быть на роликах). Другой вариант – деревянные или композитные панели, отдалённо напоминающие ряды плотно подогнанного пазла-черепицы.
- Фальшокно – это, по сути, окно, напоминающее то, что выходит из жилой комнаты или кухни на застеклённый балкон или лоджию.

- Ниша со шторой. Подойдёт для прямоугольной комнаты с единственным окном.
- Поворачивающийся стеллаж. Это перегородка-ниша с полками, вращающаяся вокруг своей оси. Обычный стеллаж – ещё она разновидность полочной перегородки – не отодвигается и не поворачивается. Стеллаж для книг может не иметь задней стенки – это, по сути, прозрачная для обзора ячеистая конструкция.
- Планочная перегородка. Чаще всего выполняется из натурального дерева. Основная конструкция сработана из одинаковых досок, выстроенных поперечно в ряд.
Существуют и другие перегородочные конструкции, не похожие ни на одну из перечисленных.
Перегородкой
Перегородка – не обязательно сплошная стена. Это может быть ячеистая конструкция любой разновидности.
Многие стремятся сделать её по возможности непрозрачной и звуконепроницаемой – особенно в случаях, когда семейная пара обзавелась уже детьми, а уединиться всё же хочется.
Шторой
Чтобы штора смотрелась изысканно и законченно, потолок в отгораживаемом пространстве должен быть выше. Это даст возможность спрятать карниз от посторонних глаз. Нижний край шторы может быть скрыт аналогично – пол образует в этом месте ступеньку, уходящую вниз на 10 см. Чтобы скрыть боковые края, стена также отводится вбок – с каждой из обеих сторон. Если штора распрямлена, то посетитель может и не заметить сразу, что это ткань, а не стена.
Допустимо сооружение небольшого подиума, огороженного шторой с двух или трёх сторон. Конструкция легко убирается при необходимости. Таким способом удаётся за минуту либо отгородить спальное пространство, либо вернуть комнате прежнюю квадратуру.
Вторым этажом
Спальня на втором этаже – атрибут не только полутораэтажных частных домов. Там бы она и вправду смотрелась идеально. Достоинство «второго этажа» в комнате – отсутствие необходимости выпрямляться во весь рост. Главное – беспроблемно забраться и улечься на такую кровать. Такая спальня надёжно изолирует вас от постороннего наблюдения со стороны. Прообраз такой конструкции – «двухэтажная» кровать. Используется это решение в квартирах старой (советской) планировки (например, в «сталинках») с трёх- и более метровыми потолками.
Неприменима в общежитиях и многоквартирных домах, где стоя, рукой можно достать до потолка, – в так называемых хрущёвках и брежневках.
Лучшие идеи дизайна
Выбор варианта из предложенных ниже позволит вместить в имеющиеся 33, 35, 38, 40 или 45 кв. м. полноценную кухню-гостиную и спальню.
Так, кровать в пенальном отсеке – путь получить отгороженную, изолированную спальню практически в любой однокомнатной квартире. Отчаянные обладатели комнат в общежитии воплощали такую идею даже в комнате с метражом всего в 15-20 квадратов. В этом случае кровать отгораживается довольно тонким зеркальным оргстеклом. Полученный вариант напоминает нечто, похожее на зеркальный шкаф-купе. Зеркальное покрытие придаст оставшейся площади, не захваченной таким ограждением, визуальный простор, а зеркало отразит искусственный и естественный свет, сделав комнату предельно светлой. Приватность из-за непрозрачности замкнутого пространства обеспечится на высшем уровне.

Обладатели квартиры в кирпичном малоэтажном строении, с длинным коридором и очень большим окном в жилой комнате, предпочтут лофт-оформление. Перегородки состоят при этом из полупрозрачного, матового стекла. Можно также использовать раму для стекла из чёрного дерева или алюминия, обклеенного декорирующей лентой с деревянной текстурой. Отличным дополнением станут переплёты.
Уменьшение размеров прихожей и санузла, перенос кухни позволит создать не самую тесную спальню. Возле окна пространство играет роль гостиной, где можно расположить диван. Отделка светлых тонов позволит квартире приобрести визуальный объём.
При обустройстве просторной спальни можно вместить два шкафа-купе для одежды. В спальне будет сосредоточена большая часть пространства, а кухня и гостиная потеснятся. Яркость дизайна при этом обеспечится броской палитрой, в которой и оформлена квартира.
Выдвижная мебель – западный писк моды. В специальной нише обустраиваются выдвижные кровать, стол, даже диван. Это позволяет обустроить просторное жилое пространство, не загромождённое лишними вещами.
Спальня, расположенная на антресолях, удобна, когда сами антресоли достаточно надёжны.
Это не должна быть не вполне прочная мебель из ДСП – рекомендуется найти предметы, которые, кроме веса сложенных в шкафы вещей, выдержат ещё и 200 кг дополнительной массы – двух человек, спящих наверху (их вес с некоторым запасом).

Без стен – вариант, предусматривающий естественные стены по проекту. Отгорожен лишь санузел. По сути, это и есть квартира-студия.
«Двушка» с детской комнатой предусматривает создание небольшого, всего несколько квадратных метров, помещения, в котором размещается подростково-детская кровать, а перегородки при этом являются полупрозрачными и несколько затемнёнными. Ребёнку, да и подростку, важен доступ к естественному дневному свету – остеклив и хорошо утеплив лоджию или балкон, вы можете перенести жизненное пространство для ребёнка именно в него. Большой подоконник нередко применяется в качестве небольшого стола – можно его доработать, прикрепив к нему небольшую столешницу из прочного и неломкого пластика. Получится отличный заменитель полноценного журнального столика или даже маленькой парты.

«Холостяцкий» вариант – расширение зоны санузла, перенос входа в спальню, вынос дивана на лоджию либо обустройство зоны отдыха на балконе.
Последний необходимо остеклить и утеплить, чтобы он был пригоден для зимнего использования.

Вариант для молодожёнов – примерно то же самое, только гардеробная становится больше, в санузле размещается стиральная машина и организуется большее пространство для дополнительных полок и шкафчиков. Кухня-гостиная предполагает использование угловой мебели, а для прихода гостей должен быть предусмотрен раскладной стол. На лоджии или балконе организовывается домашний мини-офис.
Если у семейной пары родился ребёнок – ему вскоре потребуется отдельный благоустроенный «отсек» для учёбы и отдыха.

Рекомендации
Не располагайте диван, столы, стулья, кровать вплотную к отопительным батареям. Они могут ухудшить свободную циркуляцию нагреваемого воздуха к потолку.
Не разрешается переносить отопительные батареи на балкон или лоджию, если они изначально не размещались там по плану.
Не рекомендуется перепланировать квартиру – если это не студия – таким образом, чтобы прихожая располагалась в спальне. Прихожая – «буферное» место, этакий квартирный «пятачок»: пыль и грязь, возможно, заносимые в небольшом количестве с улицы и подъезда на подошвах обуви, не должны попадать в чистое помещение, которым и является спальня. Исключение составляют лишь малометражные комнаты в общежитии, где из общего коридора вы сразу попадаете к себе в комнату.

Душевая должна располагаться в совмещённом или раздельном санузле. Сама кабина не должна находиться в прихожей, на кухне или в гостиной – на виду у остальных обитателей и гостей квартиры. Недопустимо устанавливать душевую вплотную к унитазу или рукомойнику – между ними должно быть хотя бы небольшое, в метр, расстояние. Желательно спрятать кабинку в отдельный отсек.

Примеры
Так, большинство стандартных «хрущёвок», обладающих раздельной кухней и жилой комнатой, легко перепланировать в квартиры-студии. Пошагово этот процесс выглядит следующим образом. Для этого кухня соединяется с жилой комнатой. Возле прихожей обустраивается отдельный отсек, играющий роль гардеробной, – в него переносится большинство шкафов из гостиной. Это позволяет высвободить значительное количество жилого пространства, отправив «вещевое хранилище» в отгороженный «загон».

Некоторые однокомнатные квартиры «брежневок» также переделываются «пополам». Жилую комнату легко превратить в две примерно равные части, так как окна в неугловых квартирах располагаются лишь с одной стороны.
Но единственное жилое пространство после перепланировки не может похвастаться значительно большим количеством освободившегося места.
Варианты перепланировки однокомнатной квартиры в двухкомнатную
Нередко люди, ставшие обладателями просторной однокомнатной квартиры, со временем начинают задумываться – нельзя ли разделить одну просторную комнату, получив тем самым две?
На самом деле это вполне возможно, но перепланировка однокомнатной квартиры в двухкомнатную должна проводиться опытными специалистами, чтобы впоследствии не было причин для сожаления.
Тогда после окончания ремонтных работ вы получите две не слишком больших, но отдельных комнаты. Это может быть гостиная и спальня, гостиная и кабинет или же гостиная и детская комната.
Пример перепланировка однокомнатной квартирыНа сегодняшний день существует огромное количество самых разных вариантов, поэтому для каждого конкретного случая можно подобрать подходящее решение. При правильном подходе к перепланировке, можно превратить однокомнатную квартиру в уютную двухкомнатную, не тратя время на согласование проведения работ с различными организациями.
Всё, что для этого требуется, – не затрагивать при работе несущие стены. Остальные же переделки в квартире могут проводиться по желанию владельца.
Вернуться к оглавлениюСодержание материала
Как правильно проводить перепланировку
Большинство планировок стандартных однокомнатных квартир имеет лишь одну стену с окном. Поэтому из двух комнат, которые получаются после перепланировки, только одна будет иметь естественное освещение.
Перепланировка с просторными комнатамиЭто является приемлемым вариантом, ведь если разделять помещение не поперёк, а вдоль, можно получить две комнаты, в каждой из которых будет по половине окна, однако комнаты будут настолько узкими, что находиться в них будет совершенно некомфортно, а установить какую-либо мебель – просто невозможно.
Пример перепланировки однокомнатной квартиры вдольВпрочем, это касается большинства типовых квартир, но не всех. Более конкретное мнение опытный дизайнер сможет составить лишь после осмотра квартиры, в которой будет проводиться перепланировка.
Вернуться к оглавлениюРазделяем комнату гипсокартоном
Одним из самых простых, а вместе с тем дешёвых, и потому весьма популярных вариантов перепланировки является установка перегородки из гипсокартона. Она устанавливается поперёк помещения, после чего в перегородке прорубается дверь.
В результате владелец жилья получит две небольшие комнаты, которые может обустроить и использовать по собственному усмотрению. Для монтажа гипсокартонной перегородки используется металлический профиль, выступающий в роли основной несущей конструкции. К профилю крепится гипсокартон.

При необходимости между листами можно уложить звукоизоляционный материал. Тогда обитатели обеих комнат смогут не мешать друг другу шумом, который легко проникает через пустотелые перегородки.
Главными плюсами этого варианта, как уже говорилось выше, является простота и низкая стоимость. Однако здесь имеются и определённые недостатки. Например, при установке гипсокартонной перегородки, естественное освещение будет затрагивать лишь одну из комнат – ту, в которой остаётся окно. Поэтому придётся тщательно продумать систему искусственного освещения – расположить светильники таким образом, чтобы они качественно освещали всё помещение.
Впрочем, если вам хочется, чтобы естественный свет проникал в обе комнаты, это можно построить. Но сложность конструкции перегородки существенно возрастёт. В ней придётся сделать оконный проём. Для обеспечения хорошей звукоизоляции лучше всего снабдить этот проём стеклопакетом. Стоимость проведения работ возрастёт, но оно того стоит – теперь в оба помещения будет проникать солнечный свет.
Очень светлый дизайн квартиры с естественным освещениемКогда вы создадите из однокомнатной двухкомнатную квартиру, помещения будут не слишком просторными. Придётся экономить каждый квадратный метр, необходимый не только для установки необходимой мебели, но и просто для комфортного проживания. Поэтому опытные дизайнеры рекомендуют устанавливать нетрадиционную распашную дверь, а раздвижную. Тем самым вы сможете сэкономить почти квадратный метр площади, который можно будет использовать с большей пользой.

Шкаф-купе вместо стены
Ещё одним удачным решением для проведения перепланировки квартиры можно назвать шкаф-купе. На сегодняшний день многие компании предлагают свои услуги по изготовлению и сборке мебели практически любой конфигурации. И владельцы однокомнатной квартиры могут воспользоваться этим в своих целях. Ведь шкаф-купе может иметь двойное назначение – кроме прямого, он будет выполнять ещё и функцию перегородки между двумя комнатами.

При этом пользоваться шкафом для хранения вещей могут обитатели обеих комнат. Для этого вместо задней стенки устанавливаются дополнительные дверцы. Прямо в шкафу предусматривается установка проходной двери. Застеклённый проём, также включённый в состав шкафа-купе, позволит естественному свету проникать в дальнее от окна помещение.
Кому-то подобное решение может показаться неудобным – ведь шкаф-купе занимает значительно больше места, чем перегородки из гипсокартона. Но при этом не стоит забывать – шкаф в любом случае придётся устанавливать в каждом помещении, чтобы хранить одежду, бельё и спальные принадлежности.
А два шкафа точно займут значительно больше места, чем один. Немаловажно, что шкаф-купе, используемый в качестве перегородки, имеет высоту до самого потолка, а значит, в нём можно будет хранить огромное количество самых разных вещей, которые вы хотите иметь под рукой.
Шкаф-купе до самого потолкаПри распределении вещей в шкафу действовать следует максимально вдумчиво. Например, на нижних и средних полках лучше всего хранить вещи, которыми вы пользуетесь ежедневно – одежду, подушки, одеяла и другие. А вот верхние полки лучше выделить под хранение одежды, не подходящей для сезона.
Так же, как в предыдущем варианте, естественного освещения будет недостаточно. Поэтому немаловажным шагом будет установка дополнительных источников освещения – люстр и светильников. В результате вы получаете небольшие, но полноценные комнаты.
Если вы планируете использовать одну из них в качестве детской, то лучше будет выделить детям ту, которая имеет собственное окно – детям очень важно получать достаточно естественного освещения. Вторую комнату можно использовать сразу как гостиную и спальню для родителей.
Вернуться к оглавлениюСтеллаж в качестве перегородки
Если в квартире проживает всего один постоянный обитатель, желающий из однокомнатной хрущёвки сделать двухкомнатную, тем самым получив помещение для отдельной спальни или кабинета, то нет необходимости в установке глухой перегородки.
Стеллаж-перегородкаТакже ненужной становится высокая звукоизоляция помещений друг от друга. В таком случае можно установить обычный стеллаж.
Он может быть открытым или закрытым – это зависит от пожелания владельца квартиры.
Конечно, стеллаж здесь является не только разделителем комнаты, но и предметом функционала, а также украшением помещения.
Поэтому полки можно оформить изящными дверцами со стёклами, зеркалами или витражом. Установив на полки цветы или различные безделушки и сувениры, вы сможете легко превратить одну из комнат в прекрасное место для отдыха. Сам стеллаж может иметь любой вид. Он может иметь множество полок для книг и дисков или же использоваться для хранения посуды и праздничных сервизов – здесь всё зависит от вашей фантазии и пристрастий.
Интересный радиоэфир о перепланировке квартир в Москве
Вернуться к оглавлениюКак быть с кухней
Один из самых часто задаваемых вопросов, связанных с перепланировкой, так или иначе связан с кухней. Если владельцы решили переделать всю квартиру, то подобная переделка, наверняка, затронет и её. И здесь может быть несколько вариантов, о которых будет полезно узнать, прежде чем принять окончательное решение по перепланировке.
Если вы хотите получить более просторные комнаты, кухней придётся пожертвовать. Что ж, чтобы получить что-то, нужно что-то отдать. Тем более что во многих европейских квартирах кухня, совмещённая с гостиной, давно уже стала привычной нормой.
Для этого стенка, разделяющая кухню и комнату, сносится (если она является несущей, необходимо не только получить соответствующее разрешение, но и укрепить стены несущими балками), после чего получившееся помещение разделяется на две части – спальня и гостиная, совмещённая с кухней.
Гостиная, совмещённая с кухнейЭто довольно удобно. Но необходимо всерьёз озаботиться установкой мощной вытяжки, если вы не хотите, чтобы запахи, возникающие при готовке, разносились по всей комнате, впитываясь в мебель. Ещё один плюс этого решения – использование лоджии, находящейся на кухне.
Использование стеклопакетов, качественной тепло- и звукоизоляции, а также тёплых полов, позволяет присоединить лоджию к жилому помещению, тем самым увеличивая его площадь.
Впрочем, если вы не готовы к столь радикальным переменам, можно просто перенести стену между кухней и комнатой. Небольшая кухня в этом случае станет совсем маленькой, зато вы выиграете пару квадратных метров, сделав свою гостиную более просторной. Возможно, часть бытовой техники (холодильник или стиральную машину) придётся переместить в другие помещения (прихожая и санузел соответственно), чтобы выиграть лишний квадратный метр для кухни. Описанная выше идея с лоджией может остаться актуальной и в этом случае.
Проект объединения кухни с лоджиейКонечно, чтобы дизайн получившихся помещений полностью отвечал вашим ожиданиям, его разработку стоит доверить опытным специалистам. Да, придётся потратить определённую сумму. Зато вы точно не будете разочарованы получившимся результатом.
Вариант перепланировки однокомнатной квартиры площадью 30 кв. м в двухкомнатнуюВернуться к оглавлениюВторой этаж в квартире
В старых частях многих крупных городов нередко можно увидеть квартиры с удивительно высокими потолками, например, однокомнатные сталинки. Да, когда-то были времена, когда строители не старались сэкономить на высоте помещений.
Хоть и редко, но встречаются помещения, высота потолков в которых достигает 3,5-4 метров!
Если это касается вашей квартиры, можете считать, что вам крупно повезло. Вы сможете преобразовать свою однокомнатную квартиру непросто в двухкомнатную, но и в двухэтажную!
Конечно, перед проведением работ необходимо провести сложные расчёты, позволяющие второму этажу выдержать как постоянные нагрузки (мебель), так и временные (обитатели комнаты).
Обычно в качестве несущей конструкции выступает металлопрофиль (уголок), прикрепляемый к стенам помещения, а также доски, служащие полом для второго этажа. На втором этаже чаще всего располагают либо детскую комнату, либо спальню родителей. Первый этаж может оставаться гостиной комнатой или же кабинетом. Но при подобной перепланировке необходимо всерьёз задуматься – достаточно ли хороша вентиляция в помещении?

Если вентиляция недостаточна, то находиться на втором этаже будет просто некомфортно – слишком душно.
При необходимости может быть установлена вытяжка или использованы другие способы усиления вентиляции помещения. Преобразование обычной комнаты в двухэтажную может удивить многих людей.
Но всё-таки в результате вы получаете полноценное, просторное помещение, в котором с комфортом сможет жить 3-4 человека. Поэтому игра, несомненно, стоит свеч. Финансовые затраты на подобную перепланировку будут сравнительно небольшими, а получившийся результат удовлетворит даже самого придирчивого владельца и обитателя квартиры.
Вернуться к оглавлениюОбщие моменты
Из-за сложного жилищного вопроса миллионы людей в нашей стране идут на хитрость, стараясь выгадать и сэкономить каждый свободный квадратный метр. И во многих случаях, узнав, как из однокомнатной сделать двухкомнатную квартиру, они понимают, что подобное решение вопроса будет оптимальным. При минимальных затратах они получают две пусть не слишком просторных, но вполне уютных комнат, в которых может свободно проживать 2-4 человека.

В этом видео рассказывается о других вариантах перепланировки однокомнатных квартир
В обычной однокомнатной квартире такому количеству людей уместиться будет довольно тяжело. Насколько удачно будет осуществлён замысел, зависит от многих факторов, включая правильность перепланировки и качество проведения работ.
Ещё один вариант перепланировки для семьи с детьмиТак что, в большинстве случаев лучше доверить эту непростую работу специалистам. Оплатив их услуги, вы получите великолепный результат – большой опыт и наличие специализированных навыков и знаний позволят им выполнить задачу действительно качественно.
😍 Как переделать однокомнатную квартиру в двухкомнатную: схемы, проекты, советы
Не у всех есть возможность приобретения квартиры большей площади, чем имеющаяся. А между тем иногда человеку необходимо место, где он мог бы уединиться. Особенно это касается однокомнатных квартир. И чаще здесь даже не вопрос уединения, а необходимость отделить спальное место от основной комнаты, в которой могут бывать гости. В сегодняшней статье будет рассмотрено 5 вариантов законной переделки однокомнатной квартиры в двухкомнатную со схемами планировки, для которых не требуется специальных разрешений.
Перепланировка однокомнатной квартиры – задача непростаяФОТО: remontexperts.ru
Содержание статьи
Что такое переделка и чем она отличается от перепланировки
Многие путают эти два понятия, не делая между ними различий. На самом деле перепланировка потребует от владельцев огромного времени, хождений по инстанциям для получения необходимых разрешений. При этом не факт, что в итоге они будут получены. Попробуем разобраться с основными критериями понятия «переделка».
К подобному следует быть готовым, затевая перепланировкуФОТО: спецстрой37.рф
При переделке однокомнатной квартиры в двухкомнатную не потребуется разрешений на следующие виды работ:
Вот, собственно, и всё. Любые действия с существующими перегородками уже потребуют согласования перед началом работ или по факту их выполнения. Однако в последнем случае может получиться ситуация, когда перепланировка не прошла согласование. В этом случае собственника обяжут вернуть помещения в первоначальный вид.
Главное, чтобы стены не оказались несущимиФОТО: msk.uslugi-online.info
Перепланировка с реальной точки зрения и со стороны закона
Несмотря на то, что любая перепланировка должна быть согласована, на деле всё немного иначе. Большинство владельцев не утруждают себя хождением по инстанциям и самостоятельно демонтируют или переносят межкомнатные перегородки (к несущим не относится). Такие действия чреваты лишь возникновением сложностей при продаже квартиры. Но и согласовать их довольно просто параллельно со сбором документов на куплю-продажу жилья. Поэтому о таких вариантах сегодня также стоит поговорить. Но начать следует с наиболее простых способов переделки.
Подобные действия в многоэтажном доме незаконныФОТО: novosibirsk-obl.tiu.ru
Зонирование или разграничение при помощи мебели
Самый распространённый и простой вариант, при котором спальное место отгораживается при помощи шкафа. Получается скрытое от приходящих людей помещение, отдельное от общей комнаты. В этом случае шкаф лучше развернуть дверцами к кровати, а заднюю стенку можно скрыть за зеркалами, что визуально увеличит площадь.
К такому же варианту можно отнести установку лёгкой гипсокартонной перегородки. Плюсом подобной переделки является её простота возведения и последующего демонтажа при необходимости. Что касается минусов, главным здесь является отсутствие оконного проёма в отгороженном помещении, а значит, дневной солнечный свет в него не попадёт.
Примерно так можно использовать обычный шкафФОТО: oselya.ua
Демонтаж оконного блока лоджии или балкона
Довольно распространённое решение, которое, совместно с утеплением балкона или лоджии, может превратить их в уютный небольшой кабинет. При такой планировке имеет смысл смонтировать систему «Тёплый пол». Однако стоит учитывать, что запитать её от централизованного отопления надзирающие органы не позволят. Идеальным решением здесь будет укладка электрических матов.
Ещё одна проблема при отделке балкона – несущая способность плиты. Здесь нельзя делать толстую стяжку + тёплый пол + плитку. Такой «сэндвич» будет иметь слишком большой вес, что довольно опасно. А вот лоджии лишены подобных проблем.
Из балкона получится отличный рабочий кабинетФОТО: balkony-chelyabinsk.ru
Ещё одной частой ошибкой домовладельцев можно назвать удаление части стены, с которой демонтируется оконный блок. Сначала необходимо узнать, не является ли она несущей. В противном случае возникает опасность обрушения всего фасада здания.
Как отдельная комната балкон также неплохФОТО: interiorsroom.ru
Совмещение гостиной с кухней с установкой дополнительных перегородок
Обычно перегородка между гостиной и кухней не является несущей. Если её демонтировать, появляется больше пространства, а значит и простора для воображения. Очень интересно будет смотреться квартира с совмещёнными кухней и гостиной, в которой спальное место отгорожено стеклянными или зеркальными раздвижными переборками. В этом случае перегородку всегда можно отодвинуть в сторону, превратив уже двухкомнатную квартиру в студию.
Довольно интересный проект перепланировкиФОТО: mnarchitects.art
Вообще, в квартирах с маленькими площадями зеркала играют очень важную роль, помогая визуально расширить пространство. Однако не стоит забывать и о том, что лучшее – это враг хорошего. Всего должно быть в меру.
Двухуровневые квартиры и возможность подобной переделки
В домах советской постройки иногда встречается вариант очень высоких (3.5-4 м) потолков. Именно в таких помещениях можно спальное место вынести на второй уровень. Конечно, лестница на второй этаж займёт немного пространства, но оно будет несоизмеримым, к примеру, с двуспальной кроватью.
Вот пример типичной двухуровневой квартирыФОТО: yandex.kz
Подобная перепланировка требует основательных расчётов с обязательным примыканием минимум к двум несущим стенам. Также будет необходим монтаж прочного каркаса, опор и чёткого плана дома. Ведь вес конструкции будет приличным. Она запросто может перегрузить несущие опоры дома. Чаще всего на такую перепланировку владельцы не идут без согласования с контролирующими органами.
Возможные последствия несогласованной перепланировки
Согласования с контролирующими органами и архитектурными отделами необходимы не по причине того, что все хотят заработать. Прежде всего, это безопасность всех жильцов, проживающих в многоэтажном доме. Не единичны случаи, когда по причине демонтажа несущей стены обрушивались целые подъезды. И с каждым днём такие согласования всё более актуальны в свете современного строительства, стремящегося вверх – этажей в жилых зданиях становится всё больше, а значит и нагрузка на несущие конструкции возрастает.
К подобному может привести и незаконная перепланировкаФОТО: obmer24.nethouse.ru
Также категорически запрещены любые действия с перегородкой между санузлом и ванной комнатой. В редких случаях архитектурные отделы дают разрешение на совмещение этих помещений. Да и то, чаще всего оно даётся владельцам квартир последних этажей.
Действия, предпринимаемые для узаконивания перепланировки
Для того чтобы сделать кардинальную перепланировку на законных основаниях, необходимо произвести следующие действия:
- Составить черновой проект, обозначив на нём удаляемые или переносимые перегородки, расположение новых стен, дверных проёмов.
- Обратиться в архитектурный отдел местной администрации для согласования. Здесь специалисты определят возможность выполнения того или иного действия, посоветуют, как лучше сделать перепланировку квартиры, произведут необходимые расчёты. В итоге домовладелец получит согласованный проект.
- Собрать пакет документов, в который входят свидетельство на право собственности, технический и кадастровый паспорта на квартиру, заявление на перепланировку и согласованный проект, который подаётся в надзорные органы.
- После этого, в установленный законом срок владелец получает разрешение и производит перепланировку в точном соответствии с проектом. Отступать от него нельзя.
- По окончании ремонта документы подаются в бюро технической инвентаризации (БТИ), специалист приходит в квартиру и проверяет соблюдение проекта.
Результатом всех этих действий становится получение нового технического паспорта от БТИ с внесёнными изменениями в планировку. Предлагаем ознакомиться с некоторыми проектами подобной перепланировки.
Стоит ли затевать масштабную перепланировку
Для однокомнатной квартиры основательная перепланировка совершенно ни к чему. Слишком многого от неё выиграть не удастся, а хождений по кабинетам и финансовых затрат на масштабную реконструкцию будет в избытке. Подобные действия имеют смысл, если квартира имеет большую площадь. Что касается однокомнатного жилища, то здесь лучше обойтись зонированием помещения, отделением спального места шкафами, лёгкими гипсокартонными перегородками или стеклянными раздвижными панелями. Этого будет более чем достаточно.
Некоторые переделки смотрятся очень привлекательноФОТО: stroymasterok.com
Также для однокомнатных квартир приемлем вариант с превращением лоджии или балкона в отдельное помещение. В нём, к примеру, может делать уроки ребёнок. Что же касается стен, то их не просто так нарисовали в проекте многоквартирного дома. Над подобными проектами трудятся одновременно целые архитектурные отделы, просчитывая каждую мелочь. Поэтому и вмешательство в проект может закончится весьма плачевно.
Подводя итог вышесказанному
Иногда без перепланировки однокомнатной квартиры попросту не обойтись. Особенно, если речь идёт о семье с подрастающим ребёнком, которому требуется отдельное спокойное место для занятий и отдыха. Но и в этом случае лучше обойтись без глобальных переделок, связанных с разрушением стен и перегородок. Сначала следует подумать, стоит ли необходимость отдельного помещения беготни по инстанциям и затрат на ремонт квартиры. Если хорошо поразмыслить над этим вопросом и взвесить все «за» и «против», ответ придёт сам собой. И уже тогда, приняв взвешенное решение можно браться за работы по законной переделке однокомнатной квартиры в двухкомнатную, руководствуясь схемами и проектами планировки.
Интересное место установки холодильника – с фантазией у владельца всё в порядкеФОТО: stroymasterok.com
Надеемся, что изложенная в сегодняшней статье информация поможет кому-либо из читателей принять правильное решение или выполнить работы по перепланировке. В комментариях ниже Вы можете задать интересующие Вас вопросы, поделиться своим мнением о переделках помещений или оставить отзыв о статье. Также редакция онлайн-журнала Homius просит поделиться своим опытом, если Вы сами сталкивались с подобной задачей. И ещё, пожалуйста, не забывайте оценивать наши обзоры. А мы напоследок, как обычно предлагаем Вашему вниманию короткий, но достаточно информативный видеоролик, который поможет более полно раскрыть сегодняшнюю тему.
Предыдущая
ПланировкиКвартира свободной площади: проекты перепланировки для малогабаритных апартаментов
Понравилась статья? Сохраните, чтобы не потерять!
ТОЖЕ ИНТЕРЕСНО:
ВОЗМОЖНО ВАМ ТАКЖЕ БУДЕТ ИНТЕРЕСНО:
Как из однокомнатной квартиры сделать двухкомнатную
Многих жильцов однокомнатных квартир интересует ответ на вопрос: как улучшить свои жилищные условия? Особенно это важно, если в доме есть дети подростки. Как вариант, можно разделить комнату на две зоны, получив из неё двухкомнатную.
Проживающие в хрущевке люди, пожалуй, самые находчивые в мире, они изыскивают все возможные пути «отвоевывания» каждого квадратного сантиметра и безжалостности площади, ограниченной 30 кв. м, 40 кв. м, 43 кв. м и даже 50 кв.м. Важным бонусом в процессе переделки является высота потолков – чем выше, тем лучше.
Распространёнными материалами, как из однокомнатной квартиры сделать двухкомнатную, являются кирпич, гипсокартон, стеклоблоки и мебель. Обилие строительных материалов позволяет произвести зонирование одной комнаты без перепланировки, как при помощи стен, так и при помощи всевозможных колонн и небольших перегородок, примеры смотрите на фото.
Как правило, в хрущёвке комнаты имеют прямоугольную продолговатую неправильную форму, абсолютно не приспособленные для пропорционального разделения, у любого человека вызывающие желание осуществить передел где-то поперёк.

Вдоль комнату разделить не удастся, так как вместо полноценных комнат вы рискуете получить две узкие беговые дорожки. Вариантов трансформации однокомнатной квартиры – ограниченное количество. В данной статье мы рассмотрим наиболее распространённые варианты как из однокомнатной квартиры сделать две комнаты.
Как разделить комнату на две зоны, варианты и способы зонирования
Самыми популярными способами сделать двухкомнатную квартиру из однокомнатной являются разделение комнаты на гостиную и спальню.

Гостиная и спальня
Вы можете отделить одну комнату от другой кирпичной, гипсокартонной стеной, стеклоблоками или при помощи мебели (см фото). Первый вариант вынудит вас столкнуться с государственными органами, которые следят за тем, чтобы владелец жилища ненароком не снёс несущие стены.
Попросту говоря, при условии возведения капитальной стены, вам необходимо будет пройти процедуру узаконивания перепланировки. Поэтому наименее конфликтными являются три последних варианта.

Переделка однокомнатной квартиры на две комнаты при помощи:
Перегородка из гипсокартона позволяет сделать одну из комнат глухой, то есть без естественного освещения. Такое помещение с точки зрения уединённости и отсутствия раздражителей в виде дневного света, будет оптимальным решением для спальни (примеры на фото). Ввиду отсутствия естественного света, следует максимально обеспечить искусственное освещение. Лучшим решением для такой комнаты будут не люстры, а точеные светильники, установленные по периметру потолка, а также бра и торшеры.

Этот вариант оформления перепланировки достаточно выигрышен, так как позволяет сохранить естественное освещение в отделяемом помещении. Ввиду высокой прочности данного материала, он рассматривается дизайнерами как наиболее вероятный вариант.
- С помощью мебели
Данный способ как из однокомнатной квартиры сделать двухкомнатную, является декоративным, так как в этом случае вам не удастся добиться полного эффекта создания автономных комнат. Кроме того, уровень звукоизоляции не позволяет называть комнату, отделённую методом установки мебели, отдельной (см фото). Преимуществом в этом случае является то, что вентиляция отделяемого помещения будет более естественной, циркуляция воздуха в обоих помещениях не будет нарушаться.

Кроме того, в случае разделения комнаты методом установки стены из гипсокартона и стеклоблоков вам следует задуматься о том, чтобы дверной проём был достаточно большим, так вентиляция в такой комнате тоже отсутствует.
Территория детства
Если высота потолков в вашем жилище выше 2,5 м, в однокомнатной квартире можно соорудить второй этаж, предоставив его в качестве комнаты детям. Такая импровизация позволит разделить её на зоны игрового пространства и спального места ребёнка. Кроме того, в целях экономии пространства, лестницу, ведущую на верхний этаж, можно сделать небольшими тумбами-ступеньками для хранения игрушек, книг или белья фото. Такое оформление комнаты позволит вам сделать как спальное, так и игровое (рабочее) место для ребёнка.
Сделать из однокомнатной квартиры две комнаты также будет актуальна для семей с разнополыми или разновозрастными детьми. Вы можете оформить жилое пространство для каждого ребёнка индивидуально, в зависимости от его пола и возраста. Так в детской комнате мальчикам подходит трек с машинками и зона для игры с конструктором, девочке необходимо место для кукольного домика и стоянка для волшебных пони.

Если малышам дошкольного возраста хватит детского столика для рисования с упаковкой карандашей и фломастеров, то школьникам понадобится серьёзное рабочее место. Эти и другие особенности можно учесть при переделке комнаты в квартире под детскую комнату для мальчика и девочки либо для детей разных возрастов.
Кроме того, если у вас нет других вариантов, как жить с детьми в одной комнате, можно оформить зонирование таким образом, что в одной комнате будет заключено и взрослое, и детское жизненное пространство.
Визуальное разделение комнаты
Сделать из однокомнатной квартиры двухкомнатную, можно добиться при помощи визуального эффекта, путём наклеивания двух типов обоев, а также с помощью шкафа или штор. Гармоничным методом разделения комнаты является установка барной стойки между двумя зонами, как показано на фото.

Вы можете оклеить две части комнаты разными типами и цветами обоев, разделив помещение при помощи шкафа. Такие помещения смотрятся очень гармонично и не вносят диссонанса в общее впечатление о дизайне интерьера.

Опять же, разные цвета штор или обоев по-особенному будут видоизменять комнату, некоторые цвета склонны к визуальному уменьшению помещения, некоторые, наоборот, способны зрительно увеличить их объём.
Поэтому при выборе цвета отделки или аксессуаров задумайтесь, какого эффекта вам хотелось бы добиться – увеличения пространства или создания уютной обстановки и его оптическая минимизация.
Кухня и гостиная
Также часто прибегают к объединению кухни с гостиной комнатой, оформляя их в одно помещение, так называемую кухню-студию, с целью визуального увеличения площади помещения (см фото). Такая комната совмещает в себе функции кухни, столовой и гостиной, делаясь центральным местом в квартире.

Наличие такой смешанной комнаты позволит встречать гостей, проводить домашние торжества в кругу близких людей в уютной и непринуждённой обстановке. Очень выигрышно в данном случае смотрятся наклеенные обои двух типов, разделяющие комнату в квартире на функциональные зоны.
Балкон с комнатой
Вы можете увеличить площадь основной комнаты за счёт лоджии или балкона. Предварительно утеплив, установив современные стеклопакеты, вы получите более просторную основную комнату, поставив вместо перегородки барную стойку. Можно разделить её и на две более пропорциональные комнаты. В данном случае балкон даёт дополнительное преимущество в несколько лишних квадратных метров (см фото). При площади от 43 кв. м — 50 кв.м и выше, и при наличии лоджии, из однокомнатной можно сделать даже трёхкомнатную квартиру!

Кроме того, наличие балкона или лоджии даёт возможность оформления их в качестве уединённого рабочего кабинета, в котором можно гармонично оформить рабочее место.
Опытным путём
Сэкономить на жилой площади можно, установив не просто двухъярусную кровать, а трёхъярусную кровать с диваном на первом «этаже».

Так, одна семья с двумя маленькими детьми, проживающая в однокомнатной квартире, сделала ее переделку на двухкомнатную. Ввиду высоких потолков, высотой 2,90 м, хозяин-изобретатель в «глухой» комнате без окон сделал трёхъярусную кровать: третий ярус был на уровне 2,10 м с высоким бортом для старшего ребёнка, второй – на уровне 1,20 м, с более низким бортом, а первый ярус выезжал на роликах из-под второго. Комната же с окном использовалась как гостиная и кабинет.
Для того чтобы из однокомнатной квартиры сделать двухкомнатную, и получить максимальную полезность от каждого сантиметра площади, необходимо проявить максимум фантазии. Для этой цели великолепно подойдёт мебель, изготовленная по специальному заказу, с учётом габаритов помещения. И запомните: ваш уют – только в ваших руках.
как из однушки сделать двушку, способы, лучшие идеи и особенности реализации жилья с разными размерами (35, 40, 42 44, 52 кв. м)
Перепланировка однокомнатной квартиры – частый вопрос новых хозяев маленькой жилплощади. Как использовать свободные метры, спланировать главные зоны, но в то же время сохранить уют? В настоящее время много информации по этому поводу, а также фирм, занимающихся подобной проблемой.
Особенность и сложность задачи
Как правило, однушки не обладают большой площадью. Только одно помещение отводится под жилую комнату и если площадь менее 44 кв. м, то разграничить функциональное пространство довольно сложно. Но все же существуют способы выполнить перепланировку.


Варианты перепланировки 1 комнатной квартиры практически все основываются на:
- присоединение балкона;
- перенесение кухни;
- разделение перегородкой комнаты;
- в редких случаях постройки второго уровня.
Конечно же, если однокомнатная квартира имеет площадь 45 м2, то, скорее всего, жилая комната или кухня довольно большие. Если жилплощадь весьма просторная, то часть комнаты можно отгородить для той же детской или гостиной.
Если же кухня площадь 12 кв. м, то лучше попробовать отвести ее под жилую комнату. Но здесь встает вопрос, а разрешат ли. Ведь в законе четко прописаны разрешения, запреты, отступать от которых не рекомендуется. Рассмотрим этот вопрос подробнее.
Как разработать и узаконить проект
Если вы решили модернизировать свое жилье, не стоит экономить время, бюджет на согласовании данных работ. Обычно это «выходит боком». Во-первых возникнут проблемы при продаже. Во-вторых, по незнанию, вы случайно можете убрать несущую конструкцию или ослабить ее, что приведет к трещинам в здании или разрушениям.
Первым делом необходимо обраться в органы местного самоуправления и БТИ (бюро технической инвентаризации), уточнить все нюансы по согласованию перепланировки однокомнатной квартиры.

Для разработки проекта перепланировки однокомнатного жилья, согласования, проверки вашего варианта, обратитесь в департамент архитектуры или другим специалистам, которые имеют соответствующее право.
Более подробную информацию по узакониванию перепланировки можете изучить в данной статье.
Основные требования
Главное условие к проекту: любое изменение планировки однокомнатной квартиры должно быть согласовано с соответствующими органами. Во время этой процедуры вы ознакомитесь со всеми нюансами, подберете вариант, который удовлетворит вас. Специалисты подскажут, где находятся несущие конструкции, количество квадратных метров, которые можно задействовать под жилое помещение, насколько возможно изменение его площади. К тому же запрещено увеличивать нагрузку на несущие стены, на плиты перекрытия. Новая стяжка для выравнивания пола не должна быть толще, чем 5 см, а новые межкомнатные перегородки не должны превышать толщину в 7 см.

Требования к перепланировке
Запрещено делать изменения, которые видоизменят фасад дома (панорамные окна, застекление балкона). Нельзя делать на балконе теплый пол от центрального отопления, а также устанавливать там отопительные приборы.
Запрещено расширять коридор, ванну, кухню в ущерб спальне. А кухня должна изолироваться от жилой комнаты. На кухне нельзя перемешать или убирать вытяжки и воздуховоды.
Запрещено устанавливать приборы, которые увеличивают или уменьшают потребление ресурсов (перекрывающие вентиля, дополнительные батареи).
При нарушении правил БТИ собственник несет ответственность, в случае их обнаружения будет оштрафован. Также, он будет должен вернуть однокомнатной квартире первоначальный вид. Но все же существуют лазейки обойти некоторые правила, сделать достойную и правильную перепланировку.
Варианты переделки
Идей перепланировки однокомнатной квартиры довольно много. Возможно изменение площади жилой зоны, от уменьшения санузла и прихожей, до зонированием пространств предметами (шкафы, полки, гипсокартонные перегородки). Рассмотрим основные возможные варианты перепланировки 1-комнатного жилья.
Визуальная перепланировка
Если ваша однокомнатная квартира имеет площадь 33-42 кв. м, то можно повысить качество жизни, сделав зонирование пространства. Небольшая площадь может быть разделена шкафом или стеллажом. Такой вариант не только уменьшит донесение различных шумов из других частей комнаты, но и визуально разделит комнату на зоны. За шкафом обустраивают спальню, если хозяева не любят, когда семейное ложе всегда на виду. При этом части помещения станут самостоятельными функциональными зонами. Получится детская или спальная зона. Дизайн и декор почерпнут индивидуальность пространства.

Визуальное разделение пространства
Делаем студию
Если однокомнатная квартира около 30-35 кв. м, то можно переделать ее в студию. Перегородки «съедают» полезное пространство. Прихожая и кухня станут частью общей комнаты, но зато пространство становится функциональным.

Из однокомнатной в студию
Если все же есть необходимость изолирования кухни и коридора, то можно установить подвижный шкаф. На такой стене размещается телевизор, проектор, навесные шкафы, полки, что также сэкономит небольшую площадь.
Делаем двухкомнатную
Перепланировка однокомнатной квартиры 52 м2 дает широкие возможности по сравнению с однушками с площадью 32-40 кв. м. Сделать из однушки двушку можно путем отделяющей перегородки. Перегородка может быть выполнена из матового стекла, раздвижных дверей, деревянных стеллажей или конструкции из гипсокартона. Достаточно поставить перегородку, разделить помещения либо установить дверь и получится детская или небольшая спальня.

Из однушки в двушку
Такая перепланировка превращает одну комнату в две. При установке стеклянной перегородки и раздвижных дверей есть один плюс. Если их раздвинуть, можно объединить пространства, получить шикарную студию. При использовании деревянных стеллажей отлично экономится с пользой пространство для хранения вещей (книги, техника, различные аксессуары). Помещение за гипсокартонной конструкцией можно отдать детской комнате или превратить в маленькую спальню.
К тому же можно совместить кухню и комнату, получится большая столовая. Перепланировка однокомнатной квартиры в двухкомнатную тоже возможна. Зависит от размера помещения, фантазии, финансов, так как самые интересные идеи требуют больших вложений для их воплощения.
Расширяем пространство за счет балкона
Целесообразным будет присоединение лоджии или балкона к комнате или кухне, при площади однокомнатной квартиры в 33 кв. м. Площадь помещения за счет балкона (лоджии) существенно увеличиться. Также, это считается одним из вариантов перестройки однушки в двушку. Переустройство однокомнатной квартиры выходит, если бывшую кухню перенести на балкон, а вместо нее обустроить спальню. Таким образом, получится небольшая двухкомнатная квартира.

Расширяем кухню за счет балкона
На балконе обустраивают рабочий кабинет или игровую зону для детей, гардеробную комнату или небольшой тренажерный зал.
Проблема такого варианта в том, что тяжело добиться разрешения на перепланировку. Также необходимо заняться отоплением данной зоны. При централизованном отоплении это также становится проблемой.
Однокомнатная квартира с высокими потолками
Если в однокомнатной квартире высокие потолки (не менее 3,5-4 м), то можно сделать второй этаж. Такие варианты жилья называются двухуровневыми. Для воплощения, потребуется возвести конструкцию второго этажа и лестницу, которая займет место. Лестница чаще всего используется винтовая из-за своей компактности. Помимо этого второй этаж надо усилить металлоконструкциями или колоннами. Такой вариант однокомнатной квартиры проблематично осуществить из-за узаконивания, но все же реально.

Однокомнатная квартира с высокими потолками
Двухуровневая квартира дает возможность в полной мере использовать все пространство. На втором этаже можно сделать спальню, а первый этаж останется для приема гостей, кухни и санузла.
Популярные варианты
Существует несколько вариантов перепланировок однокомнатных квартир. Среди них выделяют:
- Добавление к жилой зоне балкона;
- Переделка в студию;
- Объединение санузла;
- Снос не несущих стен и заменой их стеллажами или мебелью;
- Зонирование кухни.
При выборе вида перепланировки стоит учитывать особенности однокомнатной квартиры и желания членов семьи. Например, если хозяин работает дома, то необходимо отвести место для кабинета. Если в семье дети, то необходимо зонирование на игровую зону и детскую спальню. Можно сэкономить место, если совместить в одной зоне кухню, столовую и гостиную. Для этого подойдет компактный угловой диван, раскладной стол и пара небольших стульев без спинки.

Пример перепланировки

Понравилась статья? Следите за новыми идеями из мира строительства, дизайна, полезных советов в нашем канале. Подписывайтесь на нас в Яндекс.Дзене. Подписаться.





