два варианта оформления – 2-комнатные
Разбираемся, как с помощью нескольких дизайнерских приемов заставить интерьер звучать по-новому.
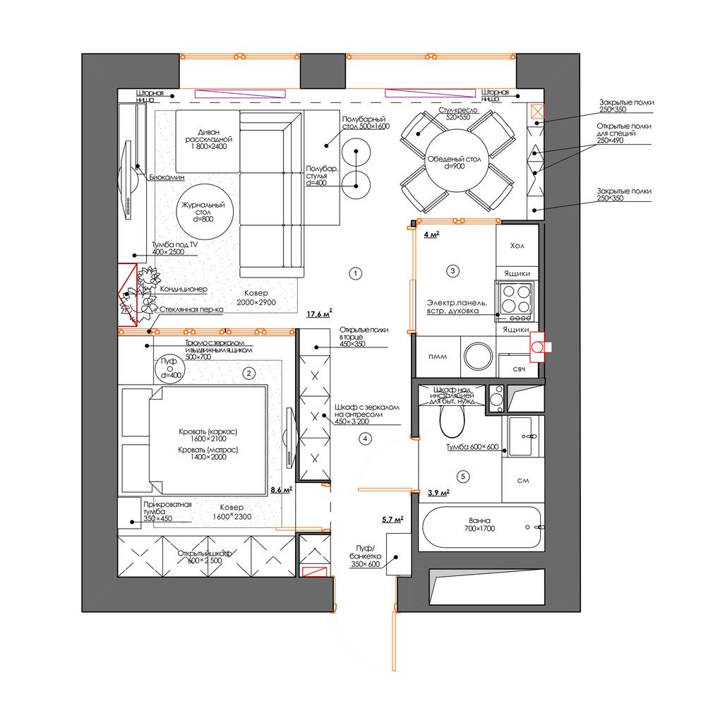
Иногда всего пара деталей могут кардинальным образом изменить облик всего интерьера. Проект этой небольшой студии с отдельной спальней, который разработала дизайнер Кристина Саакян, тому подтверждение. Давайте разберемся, как с помощью нескольких предметов мебели и декора заставить интерьер звучать по-новому.
Содержание:
1. Планировка
Для начала внимательно изучим план помещения: такой вариант перепланировки подойдет не только владельцам однокомнатных квартир в новостройке (в этом проекте площадь до перепланировки составляла 40 м²), но и собственникам небольших хрущевок. Правда, во втором случае необходимо будет тщательно все рассчитать.
Что было сделано: присоединена и утеплена лоджия — здесь разместилось рабочее место; кухня вынесена в коридор (при использовании электрической плиты такой перенос возможен), а на ее месте теперь спальня с вместительным гардеробом за раздвижными дверьми.
2. Стилистика и материалы
Квартира небольшая, и ее не хочется перегружать декором и фактурами, поэтому лучшим выбором в данном случае станет лаконичный скандинавский стиль или практичный современный. Нейтральная основа сделает пространство легче и воздушнее: белоснежные стены, кухонные фасады и потолок; светлое дерево — ламинат, отделка стен на лоджии, верхние кухонные шкафы и другие предметы мебели. Ванная выдержана в тех же тонах: светлая бежевая плитка и белая сантехника. В противовес открытой студии — камерная уютная спальня: стены выкрашены в небесно-голубой, на окнах — плотные темные портьеры.
3. Главный синий
Визуализация — это отличный способ еще на этапе разработки проекта понять, какой вариант оформления смотрится интереснее. Так, в первом случае акцентная стена глубокого синего цвета задала настроение всему интерьеру.
В дополнение к ней была подобрана цветастая сине-желтая плитка — на полу в прихожей, кухонной зоне и на лоджии (ей также выложен кухонный фартук), комод с синими ящиками, пара светильников над обеденным столом. На этом фоне особенно ярко смотрятся желтые детали — тумба в прихожей и один из шнуров-подвесов над столом.
4. В экостиле
В этом случае синюю стену заменили на систему хранения с деревянными реечными фасадами, яркую плитку — на более спокойную, с неброским «лоскутным» орнаментом, а вход в спальню сделали из матового стекла с деревянной расшивкой. На наш взгляд, второй вариант смотрится мягче, он более камерный, обволакивающий по сравнению с первым, ярким и динамичным.
Думаем, что не стоит пренебрегать услугами дизайнера — как бы рекламно это ни звучало: в нашем примере на впечатление об интерьере в целом влияют довольно большие и затратные вещи — система хранения в гостиной или акцентная стена, матовая стеклянная перегородка или белая дверь-невидимка, яркая плитка на полу или более спокойная.
Поэтому определиться с окончательным внешним видом квартиры стоит еще до начала ремонта.
Если же вам не терпится что-нибудь поменять в своем жилище, не прибегая к глобальным переделкам, то эти статьи точно вдохновят вас на небольшой ремонт:
Дайджест Квартблога
Проект на выходные: преображение гостиной — Проект на выходные: идеи, как бюджетно, и не только, обновить гостинную буквально за одни выходные.
Проект на выходные: преображение спальни — Как сделать спальню красивой? 8 идей, любую из которых можно успеть реализовать за одни выходные.
Проект на выходные: преображение ванной — Всего два дня и ваша ванная комната будет радовать вас обновленным видом.
Проект на выходные: преображение кухни — Что можно сделать со своей кухней за выходные, чтобы вдохнуть в нее новизну.
Проект на выходные: преображение прихожей и коридора — Провести выходные с пользой для дизайна: каких перемен требуют самые незаметные помещения в квартире?
Фотографии с сайта caandesign.
com
Из однушки двушка | «Печёный»
С Новым годом! С 1 по 10 января мы работаем. Ждём ваших звонков! 🙂
Евгениядизайнер интерьера
г. Одинцово
UP-квартал
1-комнатная
41 м2
2017 год
При покупке заказчиками эта уютная квартирка площадью 44 кв.м была со свободной планировкой — то есть с возможностью расставить стены и перегородки, как душе угодно. Перед нами стояла задача сделать из однушки двушку: вместить сюда спальню и гостиную-гостевую. Смотрите ниже, что получилось!
— Кухня с панорамным видом — просто мечта!
— Мы объединили лоджию с кухней, чтобы максимально увеличить площадь. Получилось и правда круто! Здесь чуть более 15 кв. м, есть телевизор и уютный диванчик, чтобы посидеть с друзьями или посмотреть за ужином кино в одиночестве.
Подборка в тему: Дизайн неоклассика (63 фото)
— Обычно вы стараетесь оттенить чем-то белые фасады — ярким фартуком или стенами.
Почему тут решили сделать всю кухню белой?
— Хотелось подчеркнуть воздушность интерьера, добавить простора. Светлая кухня не выглядит скучной и блёклой, потому что глазу есть за что зацепиться. Тут притягивают внимание молдинги на кухонных шкафчиках и стенах, золотистая фурнитура, плитка на полу, цветные мягкие стулья и цветочные принты в рамах в столовой зоне — пусть все эти детали не яркие, но они в совокупности делают интерьер кухни очень интересным и насыщенным.
Подборка в тему: Кухня неоклассика (16 фото)
— Какого размера получилась эта гостиная?
— Маленького, всего 8 кв.м 🙂 Что поделать, перепланировка однушки в двушку крадёт место. Если разложить диван, то останется проход вдоль стены с телевизором. Но и цель достигнута: нам нужно было сделать изолированную комнату, в которой можно посидеть вечером с книгой или перед теликом, и где могли бы при случае переночевать родственники или друзья. За дверью слева находится миниатюрная спальня – чтобы в неё хоть немного проникал дневной свет, мы сделали межкомнатные двери с матовыми стеклянными вставками.
Подборка в тему: Дизайн однокомнатной квартиры 40 (81 фото)
Кстати!
Планировка без ограничений!
Мы работаем над планировкой до тех пор, пока она вас не устроит. И не важно, сколько будет вариантов: 5, 7, 10… Ограничений нет!
Классная консультация!
Руководитель подробно расскажет, как проходит проектирование, поделится опытом, поможет определить бюджет и т.д. И всё это совершенно бесплатно!
Более 13 лет на рынке!
Это подтверждает, что мы предлагаем качественный продукт по оптимальной цене, работаем честно и на нас можно положиться!
Гарантия 1 год!
Мы гарантируем качественные чертежи! Если найдется ошибка, мы бесплатно и оперативно устраним их. Гарантия действует в течение года после сдачи дизайн-проекта!
— Ой, это что, вся спальня? Размером с кровать?
— Такая малютка, да. Зато отдельная. 🙂 Чтобы расширить визуально пространство, мы сделали одну стену зеркальной — ту, что за туалетным столиком.
Совет дизайнера
Очень маленькую комнатку лучше сделать максимально светлой, с однотонными стенами без крупных рисунков и картин. Визуально можно увеличить пространство с помощью крупных зеркал и глянцевой мебели. Чтобы комната без окна не превратилась в мрачную каморку, выбирайте дверь с большими стеклянными вставками, через которые хоть немного будет попадать дневной свет.
— Сантехника золотого цвета выглядит очень необычно.
— Да, и как всё необычное, стоит дороже. 🙂 Санузел редко входит в дизайн-проект, однако в этом случае заказчица решила не экономить на визуализации. Здесь нет каких-то невероятных дизайнерских решений, могу только обратить внимание на идею с тем, как можно изящно вписать стиральную машину под столешницу с умывальником. Главный секрет в том, чтобы стиралка и мебель были одинакового цвета.
Подборка в тему: Санузел 2018 (28 фото)
А сколько стоит мой дизайн-проект?
Общая площадь, м2:
0
Объект:
Выберите…Комната1-к квартира2-к квартира3-к квартира4-к квартира5-к квартираТаунхаусКоттедж
1. Укажите площадь
2. Выберите тип объекта
3. Жмите!
План перепланировки
Однокомнатной квартиры
Вот и план квартиры, наглядно демонстрирующий, как из однушки сделать двушку. Возле спальни — вместительная гардеробная, в которой прячутся все вещи, в том числе и верхняя одежда. Благодаря этой комнате удалось не перегружать гостиную и спальню лишними деталями – комодами, полками и стеллажами, не говоря уже о шкафах, которые попросту некуда было бы поставить. 🙂
Похожие дизайн-проекты
Перепланировка однокомнатной
Дизайн квартиры-студии
Двушка из однушки
фото. Как разделить на две зоны
09.07.2020 Прочтёте за 5 мин.
Перед владельцами небольших однокомнатных квартир, задумывающимися о проведении ремонта под ключ, в первую очередь, встает вопрос о том, как грамотно спланировать жилое пространство, в котором смогут себя комфортно себя чувствовать все члены семьи и приглашенные гости. Профессиональные дизайнеры ГК «Фундамент» имеют богатый опыт реализации таких проектов с учетом модных тенденций и с оригинальных авторских решений.
Дизайн интерьера однокомнатной квартиры по адресу ул. Ярцевская, д. 34, площадью 45 кв. м.
Благодаря опыту и чувству стиля наши специалисты даже на такой площади квартиры, как 40 с небольшим кв. м, способны создать комфортный и функциональный интерьер, полностью отвечающий потребностям современного жителя мегаполиса.
Идеи дизайна однокомнатной квартиры 40 кв. м с разделением на зоны
Прежде всего, в однокомнатной квартире 40 кв. м нужно выделить необходимые функциональные зоны: гостиную, спальню, кухню.
Дизайн интерьера однокомнатной квартиры по адресу ул. Фестивальная, д. 48, к…, площадью 40 кв. м.
1. Изолированная спальня
Создать в «однушке» полноценную изолированную спальню можно путем объединения комнаты и прихожей. Представленное ниже планировочное решение позволило нашим дизайнерам выделить необходимую площадь для просторной неклассической комнаты для сна с двуспальной кроватью, гардеробным шкафом, камином и диваном у окна. Несмотря на отсутствие гостиной в этой квартире, ее функции частично берет на себя столовая зона на кухне. Единое цветовое решение квартиры в светлых бежевых тонах зрительно расширяет пространство.
2. Спальня-гостиная на подиуме
Иногда недостаток жилой площади вынуждает обладателей однокомнатной квартиры отказаться от той или иной функциональной зоны.
Профессиональные дизайнеры интерьера смогут задействовать весь «потенциал» помещения таким образом, чтобы члены семьи не испытывали ни малейшего дискомфорта. Для зонирования единого студийного пространства однокомнатной квартиры можно использовать подиум со встроенными ящиками для хранения. Раскладной диван, расположенный здесь, образует зону гостиной, а также выполняет функции спального места.
Дизайн интерьера однокомнатной квартиры по адресу г. Люберцы, Октябрьский пр-т…, площадью 48 кв. м.
3. Небольшая столовая зона, отделенная барной стойкой от кухни
В студийном пространстве однокомнатной квартиры найдется место и для небольшой столовой зоны, которая служит элементом дизайна гостиной и в то же время удобно расположена рядом с кухней, отделенной от основного помещения барной стойкой.
4. Спальня в нише у окна
Грамотное планировочное решение позволяет оптимизировать пространство квартиры с созданием просторной кухни-гостиной и спальной зоны у окна, условное отделяемой плотными портьерами.
5. Гостиная-спальня и кабинет в комнате с балконом
Дизайн помещений однокомнатной квартиры требует повышенного внимания к функциональности. Нередко необходимо, чтобы одна комната выполняла функции и гостиной, и спальни, и кабинета. Используя возможности модульной мебели, реализовать задуманное будет не так сложно. У окна лучше всего поставить письменный стол с удобными стеллажами для книг.
6. Стеклянная прозрачная перегородка между гостиной и кухней
Если кухня 9 кв. м и гостиная занимают смежные отдельные помещения, как при стандартной планировке, то установка стеклянной перегородки или дверей между ними будет оригинальным дизайнерским решением.
7. Как выделить столовую зону
Благодаря стеклянной части стены между кухней-столовой и гостиной, создается ощущение единого пространства, но в то же время острее чувствуется отдельность каждого помещения. Сходная цветовая гамма, акценты лимонного цвета задают особый тон всему интерьеру.
8. Компактная столовая зона на границе кухни-гостиной
Столовая зона может быть совсем компактной, как в данном дизайн-проекте. Небольшой минималистичный стол со стульями ар-деко расположен на границе между кухней и гостиной в студийном пространстве красивой квартиры, интерьер которой представляет собой эффектный микс стилей неоклассика, минимализм и помпезная классика.
9. Гостиная и спальня в одном лице
Для того чтобы выделить разные функциональные зоны, зонировать одну комнату в квартире можно, например, с помощью мебели. Такой прием позволяет в отсутствие гостей задействовать «гостиную» как зону отдыха в спальне – для чтения или просмотра ТВ-передач.
10. Спальня и гостиная в единой стилистике
Еще один вариант зонирования однокомнатной квартиры в современном стиле с помощью мебели, без возведения дополнительных перегородок. Диванные подушки с одинаковым узором, общая цветовая гамма создают единое эстетическое пространство, одинаково хорошо приспособленное и для комфортного отдыха, и для приема гостей.
Способы зонирования пространства однокомнатной квартиры 40 кв. м. Фото интерьеров
В дизайне однокомнатной квартиры площадью от 40 кв. м зонирование пространства – один из самых актуальных вопросов. Не всегда студийное пространство является наиболее комфортным и приемлемым вариантом. Если требуется отгороженное пространство для спокойного отдыха или занятий, не обойтись без специальных приемов.
11. Стеклянные раздвижные двери, отделяющие спальню от гостиной
Чтобы не только зонировать помещение, но и создать комфортное пространство, в котором можно уединиться, подойдут раздвижные двери из прозрачного стекла или пластика. Их установка не займет столько времени и сил, как монтаж дополнительной стены, а интерьер однокомнатной квартиры станет более комфортным.
12. Перегородка со стеллажом между кухней и гостиной
Отделить гостиную от кухни можно и с помощью стеллажа. Сквозные полки позволят разместить различные предметы и книги, при этом будет сохраняться ощущение единства студийного пространства.
13. Кухня-гостиная в стиле неоклассика с элементами ар-деко
Визуально разграничить зоны можно с помощью дизайна пола и потолка. Такой прием будет эффектно смотреться в дизайне интерьера кухни-гостиной. Сочетание стиля неоклассика и элементов ар-деко создает праздничную и торжественную атмосферу, которая идеально подходит для «парадных» помещений.
14. Небольшая гостиная
Перегородку между кухней и гостиной можно сделать неполной – вместо дверного блока оборудовав широкий проем, связывающий два помещения. С одной стороны, такой расположение создает некую камерность отдельных комнат, с другой – напоминает студийные пространства, придает обстановке современный вид.
15. Яркие акценты
Яркие акценты синего и красного оттенков создадут оригинальную обстановку в интерьере небольшой однокомнатной квартиры. Белый цвет, взятый за основу интерьера, визуально увеличивает пространство, а акценты насыщенных оттенков делают помещение по-своему уютным и стильным.
Как сделать интерьер однокомнатной квартиры функциональным? Несколько дизайнерских приемов
Интерьер современной однокомнатной квартиры 40 кв. м должен быть не только функциональным, но и эстетичным. Для реализации этого на практике полезно ознакомиться с оригинальными идеями и приемами, которые в своей работе используют профессиональные дизайнеры.
16. «Уголок для творчества» в гостиной
Дизайн помещения в легком неоклассическом стиле в бежевых тонах с мягкими сиреневыми акцентами прекрасно подойдет для создания романтической обстановки комнаты, которая является одновременно гостиной, спальней (благодаря функциональному дивану) и рабочим кабинетом. Пианино в интерьере в сочетании с классическими элементами дизайна напоминает обстановку гостиных прошлых эпох.
17. Отражающая поверхность стены в зоне кухни
Отражающая поверхность – стеклянная или глянцевая – идеально подойдет для дизайна небольшой кухни в однокомнатной квартире.
Такой прием визуально увеличивает пространство и за счет отраженного света.
18. Нишевые полки для хранения в гостиной
В однокомнатной квартире 40 кв. м важно предусмотреть полки для хранения книг, разных принадлежностей и вещей. Чтобы интерьер комнаты не напоминал складское помещение, важно продумать функционально и ненавязчивое решение: к примеру, нишевые полки, расположенные в диванной зоне.
19. Использование жилого пространства
При разработке дизайн-проекта однокомнатной квартиры предельно важно использовать каждый сантиметр жилого пространства. При этом нужно избегать загромождения лишними предметами, интерьер должен оставаться воздушным.
20. Подоконник в качестве обеденной зоны на кухне 6 кв. м
Проектирование интерьера кухни площадью 6 кв. м требует от дизайнера тщательного подхода к планировке и зонированию. Конечно, функциональность таких интерьеров важнее всего: поэтому расширенный с помощью специальной столешницы подоконник используется в качестве обеденного стола.
21. Дизайн кухни с барной стойкой
Грамотно спланированный интерьер кухни позволит выделить несколько необходимых зон: обеденная зона расположена в центре, а компактная барная стойка добавляет помещению функциональности.
22. Кабинетная зона на балконе
Балкон или лоджию можно переоборудовать под кабинет – это известный прием. Для оригинального дизайна гостиной с балконом в однокомнатной квартире отлично подойдут элементы популярного экостиля.
23. Дизайн небольшой квартиры с детской комнатой
Конечно, однокомнатная квартира не предусматривает создания полноценных отдельных комнат: детской, спальни, кабинета. Но с помощью декораторских приемов даже небольшой кусочек пространства можно сделать функциональным и эстетичным, как этот интерьер детской комнаты с лимонными и голубыми цветовыми акцентами.
24. Дизайн квартиры с камином
Даже в маленькой квартире, такой как однокомнатная квартира-студия площадью 46 кв.
м, можно реализовать все задуманные идеи и мечты. Ставшая в последнее время тенденция к обустройству камина в гостиной находит воплощение и в этом дизайн-проекте.
25. Неоклассическая спальня и камин
Дизайн квартиры в неоклассическом стиле позволяет создать немного романтический и, в то же время, современный интерьер. Нотки ностальгии привносит в обстановку студийного пространства квартиры и биокамин, расположенный в ТВ-зоне гостиной.
Профессиональное проектирование интерьера однокомнатной
Обустроить интерьер «однушки» площадью всего 40 кв. м так, чтобы владельцы могли им по праву гордиться, а по своей функциональности он не уступал просторным современным апартаментам, под силу только профессиональным дизайнерам. Грамотно задействовать при проектировании каждый сантиметр пространства, не жертвуя эстетическими свойствами интерьера и провести ремонт однокомнатной квартиры под ключ по дизайн-проекту – такую по-настоящему ювелирную работу могут выполнить лишь опытные специалисты.
Как перепланировать однокомнатную квартиру в двухкомнатную?
Возможно ли увеличить площадь однокомнатной квартиры почти на 10 кв. м? Легко — считает дизайнер Анна Верховцева.
На фото:
Главные составляющие этого интерьера – холодный камень, теплое дерево и живая зелень.
Сведения о квартире: однокомнатная квартира площадью 43 кв. м в престижном жилом комплексе «Миллениум-2» в самом центре Ростова-на-Дону.
Владельцы квартиры: молодая семья с ребенком.
Пожелания клиентов: сделать экологичный интерьер и максимально расширить жилую площадь.
План 1-комнатной квартиры после перепланировки.
Изначально эта квартира имела только одну жилую комнату, а ее площадь составляла 43 кв. м. Заказчики, молодая семья с ребенком, хотели увеличить полезную площадь и дали согласие на полную перепланировку. Перед дизайнером Анной Верховцевой встал вопрос, как перепланировать однокомнатную квартиру в двухкомнатную? Решение было простое — снос всех ненесущих внутренних перегородок и присоединение большого балкона.
В результате размеры квартиры значительно увеличились — до 54 кв. м. Заново выстроенные стены разделили жилое пространство на несколько отдельных помещений — кухню-гостиную, две спальни и ванную комнату. Спальни выстроены в ряд, а от зоны общего пользования (кухня-гостиная, ванная и прихожая) их отделяет череда шкафов.
Заказчики оказались заядлыми поклонниками всего натурального — как в интерьере, так и в образе жизни. Они любят природу, принципиально не водят автомобиль и не смотрят телевизор. Стилевое решение пришло само собой — только экостиль. Именно поэтому на кухне появилось панно из зеленых растений и видеопроектор, благодаря которому вечером кухня превращается в настоящий кинозал.
Прихожая. Свою экологическую сущность интерьер демонстрирует уже во входной зоне: присесть здесь можно на большой валун, а примета здорового образа жизни — велосипед — демонстративно вывешен на стене.
Кухня-гостиная. Общественная зона оформлена в бледно-серой палитре.
Яркие акценты — живая зелень в кадках, горшках и контейнерах.
На фото:
Детская. Минималистичный интерьер детской оживляет «зеленая» стена, которая весной перекликается с растущей зеленью за окном.
На фото:
Родительская спальня. Так как родительская спальня лишена окон, было решено разгородить два спальных места стеклянной стеной. При желании со стороны хозяйской спальни ее можно закрыть плотными шторами.
На фото:
Ванная. В качестве зонирующего элемента в санузле выступает «зеленая» дорожка, которая визуально разбивает помещение на две разнофункциональные зоны.
На фото:
Проект дизайнера Анны Верховцевой — участник конкурса «Лучший 3D-проект квартиры до 70 кв.
м.» на сайте pinwin.ru. Ссылка на страницу проекта: http://www.pinwin.ru/konkurs.php?kact=2&knid=27&rbid=4344
лучшие варианты дизайна. Неоклассическая спальня и камин
Позволить приобрести себе большие апартаменты может далеко не каждый. Многие довольствуются небольшими площадями. Именно поэтому однокомнатная квартира 40 кв. м. является довольно распространенным типом жилья, в котором вполне сможет ужиться полноценная семья из трех человек.
Основной проблемой малогабаритного жилого помещения является необходимость в рациональной организации полезного пространства. Однако, несмотря на небольшие размеры, квартиру студию 40 кв. м. возможно организовать так, после чего получится удобное функциональное пространство, имеющее свой уникальный стиль и внешний облик.
Начало работ по обустройству однушки
Начало ремонта квартиры 40 кв. м. стоит начинать с разработки проекта. Если возможности обратиться к профессиональный дизайнерам-проектировщикам нет, то простых набросков карандашом на бумажном полотне будет достаточно для того, чтобы произвести примерные расчеты и распланировать полезное пространство удобно.
При составлении проекта обращать внимание стоит на следующие моменты:
- бюджет, в который уже включены денежные средства на непредвиденные траты;
- конструктивные особенности помещения, включая все ниши, выступы, перекладины и т.д.;
- количество домочадцев, которые проживают на площади постоянно, с учетом их нужд и желаний;
- выбранная стилистическая концепция;
- месторасположение главных мебельных групп и аксессуаров.
Приемы зонирования
Так как площадь в 40 квадратов нельзя назвать очень большой, а проживающим на них людям хочется ощущать комфорт, при организации планировки квартиры 40 кв. м. рекомендуется использовать приемы зонирования.
Возведение перегородки с целью визуально и практически разграничить функциональные участки. Возможно возвести гиспокартонную конструкцию, которая перекрывала бы площадь не полностью, а лишь на 40 процентов.
Стеллажи с открытыми сквозными секциями.
На таких полочках легко разместятся любимые книжные издания, приятные сувенирные вещицы и другие аксессуары.
А закупив ящики из пластмассы, имитирующие ротанговые короба, можно хранить на таких стеллажах даже бельевые комплекты или одежду. При этом общий вид такой мебельной конструкции не будет выглядеть громоздко, а помещение захламленным.
Подиум – не только является инструментом для зонирования, но еще и весьма функциональным решением. Такая конструкция очень четко разделяет пространство, а в комбинации с занавесами на нем удается скрыть размещенную кровать от посторонних взглядов.
С конструктивной точки зрения подиум хорош тем, что пространство пол ним используется как полноценная вместительная система хранения.
Стилистика небольших помещений
Простой принцип оформления дизайна квартиры 40 кв. м. заключается в использовании светлой колористики. Именно, исходя из этого условия, и подбираются стили помещения, среди которых самыми подходящими являются:
Классицизм с его правильными формами и симметрией, здесь четко соблюдаются пропорции.
Для отделки стеновых поверхностей подойдут нежные полотна обоев, на полу лучше выстелить паркет или ламинат.
Минималистические направления хороши своими прямыми углами и простейшими формами. Эти стилистики исключают вычурность, палитра тонов светлая, с включением ярких деталей.
Лофт стилизация с промышленным характером как нельзя кстати придется для небольшой жилплощади.
Выбор мебельных групп
При выборе мебельного оснащения для небольшой однушки следует понимать, что стандартные мебельные группы здесь просто неуместны. Наиболее подходящими моделями станут модульные комбинации, которые можно подбирать по нужным размерам, а комплектация будет отвечать всем требованиям.
Хороши модули тем, что все предметы имеют одинаковую стилистику, благодаря чему весь дизайнерский концепт будет единым целым.
Другая очень вместительная и полезная вещь в интерьере 40-ка метровой однушки это шкаф-купе, возведенный от пола до самого потолочного полотна.
Максимально удобно использовать на небольших площадях транформирующуюся мебель. Среди таких предметов полезными будут откидного типа стол, превращающийся в систему хранения, кровать, которую можно днем использовать как диван или же модель, которая убирается в дневное время в шкаф как на фото квартиры 40 кв. м. и т.д.
Что касается размещения, то в спальной зоне кровать лучше расположить возле оконного проема. При этом целесообразно заменить обычные шторы на коротенькие легкие занавески и жалюзи.
Обустраивая кухню предпочтение следует отдавать многофункциональным гарнитурам, выполненным из светлых глянцевых материалов. Отражающийся от таких поверхностей свет наполнит пространство воздухом, создавая иллюзию просторного помещения.
В угловой части кухонного участка можно разместить мягкий диванчик и закругленный обеденный стол.
Чтобы разделить кухонную и гостевую зоны, возможно воспользоваться деревянной компактной перегородкой, которая послужит установкой под телевизионную технику.
Поставив в гостевую зону небольшой мягкий диван и компактный столик, можно организовать уютное пространство для приема гостей и приятного времяпрепровождения.
Динамику и индивидуальность помогут привнести в интерьерную композицию яркие аксессуары, аквариумы, изящные полотна картин, подходящие под стилистику интерьера.
Фото квартиры 40 кв. м.
Алла Бондарева, 34 года
Приобрели с мужем трехкомнатную квартиру 66м2, она требовала серьезного ремонта, поэтому решили обратиться к фирме-профессионалу. Знакомые нам посоветовали Студию Ремонтов, обратили внимание на выполнение сроков и хорошие цены. Мы нашли ее сайт в интернете, хорошенько его изучили и в конце концов созвонились со Студией. У нас было свое представление квартиры после ремонта, которое рассказали прорабу, а потом получили от него советы.
После ремонта квартира выглядела как мы и хотели, рабочие оказались ребята хорошие и сделали ремонт на совесть. Особенно рады, что ремонт не затянулся, компания уложилась в срок и стоимость к счастью не увеличилась) Очень приятно, что рабочие после работ убрались и квартиру оставили чистой. В итоге осталось очень хорошее впечатление от ремонта в целом и от работников Студии Ремонтов, всем советую.
Евгений Плотников, 52 года
Несколько месяцев назад делал ремонт своей двушки в компании Студия Ремонтов, остался доволен, ремонт красивый! Заказал капитальный ремонт, очень надеялся, что не прогадал с компанией. Отдельное спасибо прорабу Александру за помощь в подборе материалов, теперь немного в этом разбираюсь. Подсказал, на чем можно сэкономить и наоборот, где лучше потратить чуть больше денег, но зато ремонт будет долговечнее. Еще мне не пришлось целый день ходить по строительным магазинам, материалы выбирали через интернет, фирма потом сама всё доставила, так я сэкономил время и силы.
Когда закончился ремонт в кухне и ванной понял, что работы сделаны хорошо и все переживания прошли. Из минусов, в конце увидел погрешность, но рабочие сразу исправили ее без разговоров. В итоге моя двушка выглядела отлично, спасибо Студии Ремонтов!
Андрей Горин, 36 лет
Светлана Кузнецова, 40 лет
Благодарю компанию Студия Ремонтов за красивую квартиру. Пишу кратко, очень довольна качеством работ, а главное, что компания успела закончить ремонт в сроки. Квартиру я планировала сдать в аренду, поэтому нужно было ее освежить и заказала косметический ремонт. Сама долго выбирала фирму в основном по отзывам, поэтому хочу отметить что, Студия Ремонтов хороший вариант.
Арина Алексеева, 31 год
Пишу отзыв о Студии Ремонтов спустя полгода после ремонта квартиры. Делали ремонт под ключ 2-комнатной квартиры. Когда искала компанию учитывала самые важные для меня факторы: цена, возможность рассрочки (!), хорошие отзывы и примеры работ. Пересмотрела много сайтов, хороших и не очень, и наконец выбрала несколько компаний.
Потом созвонилась с ними, уточнила цены, и остановилась на Студии Ремонтов. После составления сметы решили оформить рассрочку, что для нас было очень удобно. По ходу ремонта решили сделать перепланировку, объединили кухню с гостиной, давно об этом мечтали)) хотя стоимость ремонта после этого и увеличилась, результат был потрясающий!
Если вам требуются мастера, которые качественно проведут ремонт квартиры 40 кв. м в Москве, воспользуйтесь сервисом YouDo. С его помощью вы быстро найдете опытных исполнителей, которые недорого выполнят работу. Профессионалы учитывают любые ваши пожелания и справляются с самыми сложными заданиями. Если вы только планируете ремонт однокомнатной квартиры, узнайте на Юду среднюю стоимость отделочных работ под ключ в 1-комнатном жилье.
Услуги по проведению ремонтных работ
На YouDo вы найдете предложения от строительных фирм и частных исполнителей, которые возьмутся за выполнение ремонтных работ в однокомнатной квартире 40 кв.м. Бригада мастеров в удобное для вас время примется за:
- косметический ремонт
- комплексный ремонт
- евроремонт
Специалисты находят индивидуальный подход к каждому заказу, и используют в работе современные технологии и качественные материалы.
Подрядчики в удобное для вас время приступят к выполнению ремонта однокомнатной квартиры 40 кв. метров, которая расположена в:
- новостройке
- хрущевке
- сталинке
- панельной многоэтажке
Высококвалифицированные сотрудники ремонтно-строительных организаций, предлагающих свои услуги на YouDo, могут гарантировать, что ремонт вашей квартиры-однушки площадью 40 метров кв. будет выполнен точно в срок. Мастера помогут сделать небольшое помещение уютным и удобным для жизни семьи или одного человека.
Особенности проведения ремонтно-строительных работ
Ремонт в однокомнатной квартире, который выполняют исполнители Юду, включает в себя работы в каждом из помещений жилья площадью 40 метров кв.:
- комнате-гостиной
- кухне
- ванной
- прихожей
Евроремонт в однокомнатной большой квартире, площадь которой составляет 40 метров кв., подразумевает полное обновление отделки и коммуникаций. Бригада мастеров или частный специалист выполнит демонтаж старых обоев, плитки, ламината или линолеума.
Если необходима замена окон, подрядчик позаботится об этом в первую очередь. Специалисты соблюдают технологию выполнения такой работы, что обеспечивает отсутствие щелей между рамой окна и подоконником, и сохранение тепла в комнатах квартиры 40 кв. м.
Если современный дизайн квартиры площадью от 39 м2 предполагает перепланировку, на этом этапе мастера уберут ненужные старые перегородки и проведут монтаж новых, используя листы гипсокартона и металлическую обрешетку. После этого в каждом из помещений квартиры площадью 40 квадратов исполнителем Юду будет выполнена стяжка пола и выравнивание стен.
При комплексном ремонте ванной комнаты в квартире площадью 40 квадратов профессионалы выполнят демонтаж старой сантехники, труб, облицовки стен, пола. После выравнивания поверхностей и укладки кафельной плитки, ремонтники проложат новые канализационные и водопроводные трубы.
На кухне однокомнатной студии 40 кв. м бригада мастеров установит стеклянный фартук над рабочей поверхностью или положит плитку.
Часть помещения может оклеиваться обоями с рисунком или под покраску. Исполнители Юду, проводя ремонт однокомнатной студии, организуют систему принудительной вытяжки, установят мебель и подключат бытовую технику. В комнате и служебных помещениях ремонтники проложат новую проводку, ориентируясь на дизайн-проект жилья площадью 40 м кв.
В отличие от комплексного, косметический ремонт квартиры 40 кв. метров включает только чистовую отделку, например:
- покраску стен в комнате или кухне
- перенавеску дверей
- укладку коврового покрытия
Высококвалифицированные мастера сделают вашу квартиру площадью 40 квадратов красивой и соответствующей всем вашим пожеланиям.
Преимущества работы профессиональных мастеров
Опытные специалисты Москвы и Московской области, телефоны которых вы узнаете на YouDo, качественно выполняют ремонтно-строительные работы в однушках площадью 40 метров кв. в хрущевках и новостройках. В первую очередь, подрядчик возьмется за составление сметы.
Окончательная дата завершения ремонта квартиры 40 кв. м фиксируется в договоре с выбранным вами исполнителем. Приемка работ может выполняться поэтапно.
Прораб бригады или частный исполнитель предоставит консультацию, если необходима помощь в выборе материалов для отделки:
- гостиной
- кухни
- санузла
- коридора
В зависимости от бюджета ремонта однокомнатной квартиры 40 кв. м опытный специалист поможет выбрать качественные двери, кафельную плитку и ламинат. Кроме того, вы можете поручить прорабу покупку расходных материалов, в соответствии со сметой. Их стоимость подтверждается чеками. Исполнитель индивидуально проконсультирует вас при покупке отделочных материалов для помещений разного назначения. Для ванных комнат они должны быть влагоустойчивыми, а для прихожей – износостойкими.
Шумный ремонт квартиры 40 кв. м в хрущевках, новостройках и других многоквартирных домах проводится в разрешенное законом время. Учитывая это, опытные исполнители планируют средний срок выполнения ремонта в однокомнатных квартирах 40 кв.
м. Заказчик выполняет окончательную приемку выполненных работ, подписывая акт.
Цены на услуги специалистов
На Юду вы узнаете, сколько стоят услуги проведения современного комплексного или косметического ремонта квартир 40 кв. метров, а также сможете связаться с исполнителем по телефону и обсудить цену. Стоимость работы зависит от:
- общей площади однушки
- необходимости монтировать перегородки или делать стяжку
- срочности задания
Ремонт однокомнатной новой или старой квартиры 40 кв. метров будет выполнен недорого, все расходы на материалы учитываются при составлении сметы, где указывается средняя цена на них. С помощью удобного сервиса вы не только узнаете, сколько стоит ремонт квартиры 40 кв. м под ключ, но и быстро найдете бригаду опытных мастеров. Благодаря исполнителям YouDo ремонт квартиры 40 кв. м. будет стоить недорого.
Для создания стильного дизайна квартиры 40 кв. м. важно учитывать все особенности планировки и обустройства функциональных зон.
Грамотное зонирование малогабаритки и выбор подходящего стиля наполнят интерьер уютом и красотой.
- Не следует украшать помещение слишком люстрами с большим количеством декоративных элементов, так как, подобное оформление визуально опустит потолок. Лучшим вариантом освещения станут разноуровневые точечные светильники.
- Чтобы пространство не смотрелось захламленным, желательно отдать предпочтение компактной встроенной технике и мебели с хорошей вместительностью.
- Рекомендуется выполнять интерьер в более светлой гамме, например, белой, бежевой, кремовой, песочной или светло-серой, так как, темные тона зрительно уменьшат пространство.
- Для оформления окон лучше подойдут тонкие облегченные шторы, рулонные модели или жалюзи.
Планировки 40 кв. м.
Для того, чтобы добиться максимально удобной планировки и оригинального дизайна, необходимо заранее продумать создание развернутого проекта, включающего в себя технический план и схемы расположения различных коммуникаций и прочего.
В маленькой квартире будет уместно использование не слишком громоздкой, трансформирующейся мебели, достаточное количество света, отделки в светлых оттенках, зеркальных и глянцевых поверхностей, предоставляющих визуальное расширение пространства.
При прямоугольной форме помещения, важно грамотно организовывать зонирование для разделения жилой площади на две части, чтобы придать ей более пропорциональный вид.
Для однокомнатной квартиры
В дизайне однушки, в первую очередь учитывают геометрическую форму квартиры, а также наличие конструктивных углов, выступов или ниши. С помощью подобных элементов, можно зонировать пространство, не используя дополнительные конструкции.
На фото дизайн однокомнатной квартиры 40 квадратов, с нишей, оборудованной кроватью.
Для тех, кто предпочитает уют, комфортный дизайн и размеренный быт, основную часть комнаты можно отвести под спальное место с кроватью, зеркалом, шкафом-купе, комодом и другими системами хранения.
Оставшуюся площадь будет уместно оборудовать под рабочую зону со столом, креслом или стулом и организовать гостевую с диваном, навесным телевизором и тумбой для размещения разных мелочей.
Для квартиры-студии
Данное студийная квартира, представляет собой единое жилое пространство, состоящее из нескольких функциональных зон с обособленным санузлом, отделенным стенами. Одним из преимуществ подобного планировочного варианта, является значительное сохранение площади, благодаря отсутствию дверных конструкций.
На фото интерьер квартиры-студии 40 квадратных метров, выполненный в светлых тонах.
Квартира-студия считается достаточно комфортным решением для небольшой семьи, молодой пары или холостяка. При создании интерьера, важно не нарушить гармоничность окружающего пространства и не перегрузить его за счет сплошных перегородок, предпочитая им более легкие и мобильные модели.
Также для сохранения воздушности в помещении, лучше использовать модульные мебельные предметы или конструкции-трансформеры, нежели устанавливать монолитные изделия. В отделке желательно применять натуральные и экологичные материалы, так как, под постоянное проживание отводится только одна комната.
На фото квартира-студия 40 кв., с гостиной и спальной зоной, разделенными при помощи штор.
Для евродвушки
Двухкомнатная квартира евро-стандарта, по сути представляет собой более расширенный вариант квартиры-студии с обособленной дополнительной комнатой. Наиболее популярным планировочным решением, является разделение данного жилья на кухню-гостиную и спальню.
Также в отдельном помещении иногда обустраивают детскую, а совмещенное пространство занимают под спальную, кухонную зону, столовую или при наличии балкона, оборудуют кабинет для работы.
На фото интерьер современной кухни-гостиной в квартире евродвушке 40 кв. м.
Лоджию также можно задействовать под место отдыха, обеденную зону, барную стойку или разместить на ней холодильник либо духовой шкаф.
На фото дизайн квартиры евродвушки, площадью 40 квадратных метров.
Перепланировки 40 м2
Достаточно распространенной является перепланировка квартиры из однокомнатной в двухкомнатную, которая совершается за счет полного евроремонта, разделения пространства различными перегородками или установки новых стен. Например, дополнительное помещение часто отводят под детскую, гардеробную, кабинет или даже небольшую гостиную.
Идеи зонирования
Для четкого зонирования, применяют самые разнообразные дизайнерские способы. Например, разнофактурную или контрастную отделку, гипсокартонные, деревянные, пластиковые или стеклянные перегородки, которые благодаря своему лаконичному исполнению, не будут загромождать пространство.
При наличии высоких потолков, можно отдать предпочтение многоуровневым конструкциям, с установкой верхнего яруса, предполагаемого для оборудования спальни или рабочего места.
На фото однушка 40 квадратов, со спальной зоной, отделенной шторами.
Прекрасным разграничителем могут послужить шторы или мобильные ширмы, представляющие собой напольный или потолочный вариант. Не только добиться разделения площади, но и практически до неузнаваемости преобразить внешний вид помещения, получится с помощью освещения и различной подсветки. Также для отделения функциональных зон, выбирают стеллажи, комоды или более массивные предметы мебели, в виде шкафа.
На фото зонирование спального места и гостиной зоны с помощью невысокого стеллажа, в однокомнатной квартире 40 кв. м.
Такой вариант, как шкаф, будет особенно уместен в качестве перегородки для спальной зоны. Кроме того, подобные мебельные элементы, могут отличаться любым дизайном, быть двухсторонними или представлять собой купейные конструкции. Не менее отличное решение, представляют собой раздвижные двери из самых различных материалов, которые очень часто применяют в зонировании кухни-гостиной.
На фото интерьер студийной квартиры 40 кв.
, со стеклянной перегородкой отделяющей спальную зону.
Дизайн функциональных зон
Варианты оформления различных сегментов.
Кухня
Кухонное пространство является достаточно важной частью жилого помещения и отличается своим собственным внутренним зонированием. В совмещенной кухне, особое внимание обращают на качественную работу вытяжки и бесшумное функционирование бытовых предметов. При создании проекта, в первую очередь учитывают расположение вентиляций, от которых зависит размещение кухни.
На фото дизайн отдельной кухни в однокомнатной квартире 40 квадратных метров.
Для большей практичности и вместительности, следует установить гарнитур со шкафами под потолок, для удобства оборудовать рабочую поверхность между плитой и мойкой, а также заранее предусмотреть, где будут располагаться электроприборы и розетки для них. Достаточно оригинальным дизайном обладает компактный кухонный островок, который за счет правильного размещения, поспособствует реальной экономии квадратных метров.
Детская
В дизайне детской, очень важно обдумать количество мебельных предметов, их качественность и безопасность. Например, для малогабаритной комнаты более рационально использовать раскладную мебель, предоставляющую значительную экономию полезной площади.
Для семьи с ребенком в однушке или квартире-студии, можно подобрать зонирующие элементы, в виде штор, ширм или меблировки, а также разграничить пространство с помощью разной облицовки пола или стен. Для создания более благоприятной атмосферы в детской, рекомендуется установка светильников, имеющих рассеянный свет или отражательные свойства.
На фото однокомнатная квартира 40 квадратных метров, оборудованная детским уголком.
Гостиная и зона отдыха
В проектировке квартиры 40 кв., гостиная может представлять собой часть кухни и быть отделенной с помощью перегородки, барной стойки или являться отдельной полноценной комнатой с диваном, телевизором, аудиосистемой, креслами, пуфами и прочим.
На фото интерьер гостиной в скандинавском стиле в дизайне квартиры 40 квадратов.
В небольшом зале, не желательно располагать слишком много мебельных предметов, чтобы не перегрузить помещение. Наделить обстановку гостевой комнаты особым стилем и комфортом, поможет мягкий ковер, разноформатная и разнотекстурная отделка стен, а также различные варианты освещения.
На фото дизайн гостевой комнаты в квартире 40 квадратных метров.
Гардеробная
Жилье 40 квадратов, предполагает достаточное количество места для организации отдельной гардеробной или для более упрощенного и экономного решения, которым является установка полок с занавеской в качестве дверей. Такой дизайнерский ход, отличается очень современным и эффектным видом и наделяет обстановку уютностью.
Спальная зона
В обустройстве зоны для сна или обособленной спальни, используют минимальное количество меблировки. Например, предпочитают встроенные шкафы-купе, занимающие минимум площади, сверхузкие полки и стеллажи в изголовье кровати или компактные угловые конструкции.
Для значительной экономии площади, можно заменить спальное ложе, раскладным диваном, который в дневное время в собранном виде, не будет отнимать полезные метры. В однушке или квартире-студии, кровать устанавливают в специально оборудованную нишу или на подиум, таким образом получается добиться красивого, эстетичного оформления и практичного дизайна.
На фото спальная зона, расположенная в нише в интерьере однокомнатной квартиры 40 кв.
Кабинет
Рабочее место часто обустраивают в небольшой нише, на лоджии, в углу, совмещают с подоконником или располагают вдоль стены. Наиболее рациональным будет дополнить данный участок, складным письменным или компьютерным столом, встроенным стеллажом, неглубоким книжным шкафом или навесными полочками.
В угловой квартире, мини-кабинет можно расположить возле окна, что обеспечит качественное естественное освещение.
Ванная комната и туалет
Для небольшого объединенного санузла, особенно будет уместно использование больших зеркал, расширяющих пространство, квадратной раковины с коробом под стиральную машинку, эргономичных полочек, расположенных над унитазом, компактных душевых кабин, подвесной сантехники и прочих элементов, сохраняющих полезную площадь.
На фото интерьер небольшого санузла в серо-белых тонах в дизайне квартиры 40 кв.
Фото в различных стилях
В скандинавском дизайне, в отделке используются светлые, почти белые оттенки, мебельные предметы, изготовленные из натурального дерева, достаточно необычные системы хранения, в виде коробок, ящиков и корзинок, расставленных на полочках, а также различный декор, такой как, картины, фотографии, зеленые растения, свечи, шкуры животных, яркая посуда или текстиль.
Стиль минимализм, отличается интерьером в белых и графичных серых тонах в сочетании с хромированными стальными, стеклянными, пластиковыми, керамическими, искусственными и натуральными каменными материалами. Меблировка обладает простыми геометрическими формами с легкими изгибами и не имеет лишнего декора. В комнате в основном присутствует рассеянное освещение и осветительные приборы, в виде неоновых или галогеновых ламп, окна декорируют вертикальными или горизонтальными жалюзи.
Особой легкостью, непринужденностью и французской романтикой, характеризуется прованс, который предполагает изящный декор, цветочный принт, винтажную мебель с налетом старины и нежную цветовую гамму, способствующую созданию непередаваемого комфорта.
На фото дизайн квартиры-студии 40 кв., выполненный в стиле лофт.
В дизайне современного направления, приветствуется наличие стильных аксессуаров, новейшей техники в комбинации с нейтральной облицовкой. Здесь уместно применение идеально ровных поверхностей, мягких мебельных предметов, модульных многофункциональных конструкций и большое количество освещения.
Роскошный, дорогой классический интерьер, представляет собой идеальное воплощение красоты. В данном стиле присутствуют симметричные и четкие формы, мебель из качественной древесины, сложные архитектурные элементы, в виде лепнины, колонн и прочего, а также сдержанные пастельные оттенки в отделке.
Фотогалерея
Квартира 40 кв.
м., несмотря на такой относительно небольшой метраж, отличается довольно практичным, удобным и эргономичным дизайном, максимально соответствующим требованиям проживания.
В этой статье вы узнаете, что дизайн однокомнатной квартиры 40 кв м может быть очень комфортным, свободным и вызывающим восхищение, если правильно к нему подойти. Dekorin представляет вам более 15 проектов и вариантов дизайна квартир размером 40 кв. м., сочетающих в себе уют, стиль и умную планировку! В статье мы расскажем о современных тендециях в дизайне интерьера в 2019 году.
40 кв. м. — такова средняя площадь однокомнатных квартир в большинстве современных многоэтажек. В отличие от хрущевок, площадь которых составляет 28−32 кв. м, эти «однушки» предлагают больше разнообразия в планировке и дизайне пространства, и даже открывают возможность обустроить 2 отдельные комнаты — спальню и гостиную или общий зал и детскую. Выбирайте свой вариант дизайна.
1. Красивый дизайн квартиры студии 40 кв м — фото и план жилища
Владелица этих апартаментов пожелала, чтобы дизайн её квартиры был чистым, простым, элегантным и вневременным.
Как вы считаете: удалось ли дизайнеру достичь этого?
Чтобы интерьер выглядел просторнее, все отдельные зоны этой квартиры были непосредственно связаны друг с другом. Кухня объединена с гостиной, в ванную ведет прозрачная дверь, а спальня отгорожена от гостиной полуоткрытой перегородкой в виде вертикальных жалюзи. И вот вместо нескольких маленьких комнатушек получилось одно, но очень свободное и стильное помещение!
Среди других важных элементов дизайна этой квартиры 40 кв м стоит отметить светлую цветовую палитру и отсутствие массивных подвесных светильников, которые «воруют» воздух у интерьера. Обратите внимание, что встроенные точечные светильники по периметру потолка гостиной как бы отделяют эту зону от остальных областей квартиры.
2. Украинский дизайн квартиры 40 кв м — фото и 3D проект
Следующая стильная квартира площадью 40 кв м находится во Львове и была разработана дизайнерами Романом Вербищуком, Юлианной Вербой и Любовью Лазорив.
Как видно на фото, кухня здесь намного больше и удобней, чем в предыдущем варианте. А диван и кровать, несмотря на то, что стоят почти впритык, разделяются прозрачной стеклянной перегородкой.
В результате дизайн квартиры выглядит открытым и воздушным, а стильная плитка на кухне и в ванной приносит в нее интересную изюминку.
3. Дизайн двухкомнатной квартиры на площади 40 кв м — фото и план
Если в предыдущем варианте дизайна однокомнатной квартиры 40 кв м, выбор был сделан в пользу большой кухни и ванной, то здесь — в пользу просторной спальни. Однако, как вы видите, здесь также была установлена стеклянная перегородка между залом и опочивальней, чтобы дом выглядел просторным и светлым. В дизайне также использовались природные материалы в контрасте с яркими оттенками интерьера. И кстати, модная геометрическая плитка и в этом дизайне квартиры сыграла не последнюю роль!
Также читайте:
Еще раз просим вас обратить внимание на отсутствие габаритных светильников, а также на открытые полки и кровать на платформе со встроенными ящиками.
Умная экономия пространства в деле!
4. Комфорт и шикарный стиль в квартире 45 кв м
По дизайну этой двухкомнатной квартиры и не скажешь, что в ней всего 45 кв м! Открытые стеллажи, встроенные в стены и за диваном, позволяют с умом использовать каждый квадратный сантиметр пространства и даже создают иллюзию дополнительной высоты.
Столовая зона объединена с гостиной, спальня расположена в отдельной комнате, а вот небольшая кухня может закрываться передвижной перегородкой, что очень удобно, когда нет сил или времени навести в ней порядок.
Этот дизайн однокомнатной квартиры был включен в наш список лучших проектов во многом благодаря тому, что здесь установлена . Именно этот предмет интерьера в сочетании с лаконичным скандинавским стилем, заставляет это жилище выглядеть просторным, стильным и очень уютным. Ну и, конечно же, окно в стене между кухней и гостиной придает ему еще больше очарования и свободы.
6. Современный дизайн однокомнатной квартиры 40 кв м
Следующий в нашем списке — яркий и сочный дизайн квартиры 40 кв м в городе Софие, столице Болгарии.
Концепция этого жилища была вдохновлена LEGO, поэтому некоторые части интерьера — подставка под ТВ, полки, кухня и даже картины на стене — похожи на интересный паззл. Несмотря на яркие акценты, большая часть интерьера всё же была выполнена в белом цвете, а нейтральный дизайн спальни идеально подходит для отдыха и расслабления. Попадая в такой интерьер вы будете заряжаться позитивными эмоциями и хорошее настроение вам обеспечено.
7. Дизайн квартиры студии 45 кв м — фото и план проект
Эта потрясающе стильная квартира площадью 45 кв м расположена в Москве и была разработана дизайн-студией INT2. Как и положено студии, она состоит из всего одной комнаты, которая содержит в себе отдельные зоны гостиной, спальни, кухни и ванной комнаты. Некоторые из них разделены небольшими участками стен, другие — шторами. Дизайн квартиры оформлен в прекрасном сочетании пастельных тонов, а также скандинавского и современного стилей.
8. Необычная планировка и дизайн 1 комнатной квартиры 40 кв м
Эта маленькая однокомнатная квартира выделяется не только необычной планировкой, но и красивой комбинацией японского и .
Светлые оттенки древесины и нейтральная цветовая палитра здесь выгодно подчеркиваются синими и желтыми деталями, в том числе диванными подушками, мягкими сидениями стульев и обшивкой стены в спальной зоне. Как вам идея?
9. Дизайн однокомнатной квартиры 40 кв м для матери и дочки
Этот дизайн однокомнатной квартиры был создан польской фирмой Pressenter Design специально для матери с 6-летней дочерью. Проект жилища призван соответствовать растущим потребностям ребенка, для чего здесь было обустроено просторное место для учёбы в комплекте с подвесными шкафчиками для книг и прочих принадлежностей. Низкая подставка под телевизор и такой же высоты журнальный столик в сочетании с общим минимализмом дизайна делают эту квартиру очень легкой и свежей, а темное дерево на фоне гладких белых поверхностей создает просто шикарный эффект. Мы полагаем, что возмножно такой дизайн однокомнатной квартиры подойдёт и для супружеской пары.
Также читайте:
10.
Дизайн двухкомнатной квартиры 40 кв м: оформление гостиной и детскойНаверное, многих читателей этой статьи волнует вопрос: как обустроить отдельную детскую комнату в дизайне двухкомнатной квартиры 40 кв м? В качестве ответа мы предлагаем вам фото двух квартир, где гостиная представляет собой одновременно и спальню родителей, а отдельная детская легко вмещает 2-х детей. Чтобы кое-кто не говорил, что живя в 40 кв. метрах нельзя себе позволить второго ребенка)))
Первая из этих квартир отличается очень элегантной гостиной, объединенной с уютной кухней, и яркой детской комнатой с двухэтажной кроватью в морском стиле, который так любят многие малыши.
Второй дизайн двухкомнатной квартиры 40 кв м выполнен в стиле минимализм и отличается многофункциональной мебелью при том, что в детской комнате стоят две отдельные односпальные кровати.
11. Современный дизайн квартиры 40 кв м с элементами luxury
Просто удивительно, но эта двухкомнатная квартира с роскошной спальней имеет площадь всего 37,5 квадратных метров! Маленькая прихожая с бархатной банкеткой в нише переходит в довольно просторную кухню, а основная комната разделяется перегородкой на гостиную с рабочим местом и очень красивую спальню.
Как и в большинстве маленьких квартир, белый цвет был взят за основу и разбавлен яркими акцентами желтого (стена в прихожей, кухня, стулья в гостиной) и бирюзового (спальня) тонов. В целом эта маленькая квартира в Санкт-Петербурге выглядит модной и очень удобной. Представленный на фото дизайн двухкомнатной квартиры — образец максимально выгодного использования пространства!
12. Стильный дизайн квартиры студии 40 кв м с идеальной планировкой
Следующие две квартиры в нашем списке имеют очень похожую планировку, при которой только ванная комната располагается в отдельном помещении, а прихожая, кухня, гостиная и спальня объединены в одно целое. Для удобства спальня может быть отделена от гостиной стеклянной перегородкой со шторами или (как во втором варианте) гибкой рулонной перегородкой. Благодаря отсутствию стен и дверей (кроме ванной комнаты) достигается общая легкость и одухотворенность интерьера. Стильный дизайн квартиры студии станет вашей визиткой карточкой при встрече гостей.
Как видите, в первом случае для украшения интерьера и отделения кухни от прихожей используется интересная декоративная перегородка с узором от пола до потолка. В отличие от целостной стены, она сохраняет единство пространства, принося в него немного креатива, но не более того. Во втором варианте проектируя дизайн квартиры студии дизайнеры решили вовсе не разграничивать эти зоны.
Интересно, какой вариант дизайна однокомнатной квартиры 40 кв м из этих двоих вам нравится больше? Поделитесь своим мнением в комментариях!
13. Роскошный дизайн квартиры площадью 35 кв. м.
Пока мы плавно приближаемся к завершению этой статьи, уже очевидно, что прозрачные стеклянные перегородки между залом и спальней — это ключевой момент в создании свободного и комфортного дизайна квартир площадью до 40 кв м и превращения маленькой «однушки» во вполне удобную «двушку». Данная шикарная квартира размером 35 квадратных метров не стала исключением.
Особенным её делает смелый дизайн и цветовая схема — вместо светлых тонов и минимализма здесь мы видим яркие фиолетовые и бирюзовые акценты на стильном сером фоне, а также массивные светильники (расположенные в правильном месте!), камин и совершенно ошеломительную мраморную ванную комнату.
Кто посмеет сказать, что это крохотное жилище не является роскошным?
Также читайте:
14. Современный дизайн квартиры 40 кв. м. в стиле китайский минимализм
С одной стороны, этот дизайн однокомнатной квартиры 40 кв м включает в себя только простые декоративные элементы, но все вместе они создают очень красивую и жизнерадостную атмосферу жилища.
Минималистская мебель строгих прямоугольных форм очень элегантно и свежо выглядит на фоне ярких зеленых, розовых и фиолетовых акцентов. Спальня, отделенная романтической полупрозрачной перегородкой, обладает большим шкафом-купе, а ванная, куда ведет дверь из кухни-гостиной, имеет узкую душевую кабину, благодаря которой здесь удалось вместить и стиральную машину.
15. Дизайн квартиры студии 40 кв м в молодежном и креативном стиле
Завершаем наш сегодняшний пост очень милой, молодежной и уютной однокомнатной квартирой в городе Араде, Румыния. Кроме приятной цветовой схемы, сочетающей в себе легкие нейтральные тона с деталями практически всех цветов радуги, вас может приятно удивить полка-перегородка в гостиной, велосипед в ванной, кровать на платформе и подвесной шкаф-стол. Все в этой потрясающей квартире так и дышит любовью к жизни и окружающему миру! Возможно дизайн квартиры студии в молодежном стиле придётся по душе и людям более старшего возраста.
Мы очень старались собрать здесь самые разнообразные дизайны квартир для людей с разными вкусами и потребностями. Поэтому будем очень рады получить узнать ваше мнение. Пожалуйста, поделитесь с нами и нашими читателями: какой вариант дизайна однокомнатной квартиры 40 кв м вам понравился больше других? Что для вас важнее: большая кухня или просторная спальня? Уют или практичный минимализм? Прозрачные перегородки или твердые стены?
Еще больше идей для дизайна маленьких квартир вы можете получить в наших статьях:
Дизайн однокомнатной квартиры 40 кв м — лучшие фото и проекты на 2019 обновлено: Январь 23, 2019 автором: Маргарита Глушко
ремонт, примеры интерьера 1-комнатной квартиры, выбор отделки, проекты с зонированием
Многие люди считают, что однокомнатная квартира небольшой площади – это приговор, и подобное жилище невозможно сделать уютным и функциональным.
На самом деле это мнение ошибочно. Даже в условиях скромной квадратуры возможно создать очень красивый и гармоничный дизайн со всеми необходимыми функциональными зонами. В данной статье мы детально разберем, каким образом можно отремонтировать и обустроить однокомнатную квартиру с площадью 40 кв. м.
Особенности планировки и зонирования
Однокомнатная квартира, имеющая площадь в 40 кв. м, может получиться очень удобной, гармоничной и уютной, если ответственно отнестись к особенностям ее планировки, а также грамотно разделить имеющееся полезное пространство. К счастью, у современного пользователя есть для этого все необходимое.
Прежде чем спешить приступать к оформлению и обустройству небольшого жилища, необходимо продумать и составить подробный проект имеющейся площади.
Важно подготовить технический план квартиры, схемы расположения всех коммуникаций.
Обустраивая однокомнатную квартиру площадью 40 кв.
м, надо учитывать ее непосредственную геометрическую форму, присутствие ниш, углов и выступов конструктивного характера. Применяя такие составляющие, удастся эффективно зонировать скромное пространство без использования вспомогательных конструкций (например, мобильных перегородок).
Люди, ценящие в маленьких жилищах уют и теплую атмосферу, чаще всего отдают основную часть квартиры под спальную зону. В ней основными деталями становятся кровать, шкаф-купе, зеркала, комод и прочие вместительные системы хранения. Всю остальную площадь можно будет отвести под рабочую зону со столом, стулом или креслом, обустроить гостиную с удобным диваном, навесным телевизором и тумбой под разные мелочи.
Если 1-комнатное жилище имеет прямоугольное строение, его целесообразно будет разделить на две основные зоны.
Таким образом, вид квартиры получится более пропорциональным
Очень популярны сегодня квартиры-студии. Подобные жилища не имеют перегородок, представляя собой единое сплошное пространство. Жилища указанной планировки проектируются в целях экономии свободной площади, поскольку тут нет дверных конструкций. В устройстве небольшой студии не имеется разделяющих перегородок. Зонировать пространство можно отделочными материалами, осветительными приборами или мобильными перегородками, изготовленными из различных материалов.
Хорошо если 1-комнатная или студийная квартира имеет балкон. В таком случае организовать и обустроить имеющееся пространство будет проще.
Так, в панельном доме и квартире с балконом одну из важных функциональных зон можно разместить на балконной территории. Тут часто организовывают рабочие кабинеты, уютные зоны отдыха и релакса – каждый хозяин может сам решить, что именно здесь будет удобно разместить.
В условиях 40 квадратов необходимо располагать трансформируемые предметы мебели, которые в сложенном состоянии занимают мало места и выглядят легкими, негромоздкими.
Если не учитывать эту особенность, можно перегрузить интерьер, сделав его тесным и неуютным.
Разделить и зонировать жилое пространство в маленькой квартире можно, используя следующие детали.
- Статичные перегородки. Они могут быть выполнены из листов ГКЛ, а внутри можно организовать систему хранения.
- Ширмы, перегородки передвижного типа.
Мобильные перегородки можно при необходимости разложить, а потом снова собрать. Воздушные и изящные ширмы – тоже неплохое решение, но они подходят не ко всем стилям интерьера.
- Арки и подиумы. Тоже могут быть сделаны из гипсокартона – это эффективный, бюджетный вариант, поскольку листы ГКЛ стоят относительно недорого, но выглядят эстетично и их можно отделывать.
Делая ремонт и занимаясь планированием жилого пространства, можно прибегнуть и к объединению разных зон.
- Объединение раздельного санузла. Так комната получится более просторной, здесь можно будет поставить стиральную машину, дополнительные предметы мебели/сантехники.

- Объединение балкона с кухней или другой комнатой. Для этого надо убрать перегородку, разделяющую эти помещения.
- Объединение комнаты с кухней. Это решение позволит сформировать просторную и стильную студию.
Стилевые решения
Обустраивая 1-комнатную квартиру площадью 40 кв. м, можно обращаться к разным стилям.
Минимализм
Идеальное решение для простой и открытой планировки. Если в квартире много перегородок, их убирают. Стены, которые можно снести, частично демонтируют. В подобных жилищах отсутствуют мелкие декорации и украшения – допустимы только самые необходимые составляющие.
Стоит придерживаться правильной геометрии и 3 базовых расцветок: серой, белой и черной.
Можно вносить насыщенные акценты: красные, желтые, голубые.
Хай-тек
Современное стилистическое направление, предполагающее идеальные геометрические формы и большое количество свободного открытого пространства. В интерьере должны присутствовать металл, хром, стекло и пластик.
Нелишними будут индустриальные конструкции, декорации правильного строения, модифицированные предметы мебели и современные технические устройства.
Классика
Жилища в классическом стиле никогда не утратят актуальности. Трудно обустроить действительно шикарное и нарядное пространство классического направления в маленьком жилище, но попытаться стоит.
Главное, не перегружать обстановку, выбирать мебель и отделку в более светлых тонах. Желательно обставить жилище конструкциями из натуральных, дорогих материалов, лишенных богатого декора и пестрых украшений. Предпочтительно натуральное дерево, резные детали, спокойные расцветки.
Важно сделать интерьер шикарным, но с соблюдением цветового баланса.
Лофт
Идеальный стиль для студии или жилища, где удалена перегородка между кухней и гостиной. В таких обстановках шикарно смотрятся мансардные или панорамные окна без занавесок и штор. Стены не надо обклеивать обоями: тут больше подойдет натуральная кирпичная кладка или ее качественная имитация. В качестве материала для пола используют грубоватое дерево или мраморные плиты.
Скандинавский
Это стиль, в котором максимальный уют достигается за счет использования естественного света, пастельных оттенков.
Чтобы визуально расширить пространство, в скандинавском стиле часто применяется сдержанный белый цвет, который прекрасно смотрится в тандеме с другими красками. В рассматриваемом стилистическом направлении должны преобладать светлые деревянные поверхности. Фактура отделки должна иметь нежную, приятную текстуру.
Оформление
Рассмотрим, каким может быть оформление разных комнат или функциональных зон в 1-комнатной квартире площадью 40 кв. м.
Зал
Подбирая отделку для зала, рекомендуется отдавать предпочтение спокойным, позитивным и гостеприимным краскам. Тут будет уместен желтый, бежевый, персиковый и даже классический белый. Стены нужно отделать обоями подходящих расцветок. Особенно популярны флизелиновые полотна, но допустимо клеить и недорогие варианты на бумажной основе.
Они не такие плотные и долговечные, но в этой комнате не будут подвергаться активному отрицательному воздействию.
Для облицовки стен в зале можно приобрести стекловолокно, не вызывающее аллергии. Популярны пробковые покрытия с отличными звукоизоляционными характеристиками. Шикарно смотрятся деревянные материалы, но они требуют особого ухода и стоят дорого. Если хочется добиться интересного дизайнерского эффекта, подойдет декоративная штукатурка.
Для отделки пола подойдут такие материалы, как ламинат, ковролин, паркетная доска.
Кухня
Обустраивая кухню, рекомендуется выбирать отделочные материалы, не боящиеся высокой влажности или температурных перепадов. Подойдет плитка, пластиковые панели.
Деревянные детали тут лучше не устанавливать – они могут деформироваться.
В маленькой кухне важно придерживаться светлых красок. Они будут визуально расширять пространство, делать его просторнее и свободнее.
Если комнатка совсем маленькая, то с темными красками тут надо быть особенно осторожными.
Прихожая
Занимаясь оформлением прихожей, следует выбирать некапризные отделочные материалы, которые нельзя легко испачкать. Излишне белоснежные покрытия могут оказаться особенно уязвимыми. В прихожей вся отделка должна быть максимально практичной, долговечной и износостойкой. Это касается как стеновых, так и напольных покрытий.
Санузел
Для отделки санузла, как и в случае с кухней, следует выбирать износостойкие материалы, которым не страшна высокая влажность или перепады температуры.
Не рекомендуется клеить тут обои или устанавливать покрытия из дерева. Подойдет кафельная плитка, камень (искусственный или натуральный), поливинилхлорид.
Эти материалы хорошо себя чувствуют в условиях санузла, не деформируются, не разрушаются.
Выбор мебели
В небольшой 1-комнатной квартире с площадью 40 кв. м можно расположить все необходимые предметы мебели, но их нужно подбирать и расставлять правильно. Рассмотрим, как это лучше сделать.
- Нужно быть внимательными, обустраивая прихожую. Тут очень важно правильно расположить шкаф с одеждой – он не должен перекрывать проход. Желательно подобрать модель с крупными зеркальными деталями: они будут визуально расширять имеющееся пространство, сделают его светлее. Можно установить встраиваемую мебельную конструкцию или модель с раздвижными створками.

Подобные изделия займут меньше места.
- Следует подобрать подходящую мебель для обустройства зала. Это может быть диван, кресла, кофейный столик, пара шкафов, тумбочки, настенные полки. Главное, выбрать конструкции, которые будут гармонично вписываться в интерьер, перекликаясь с ним и по цвету, и по стилю. Мебель лучше выбирать трансформируемую – это оптимальное решение для маленькой квадратуры.
Дизайн и материалы всех предметов будут зависеть от стиля интерьера.
- При оформлении кухни лучше подбирать трансформируемую или небольшую статичную мебель из практичных, износостойких материалов, не боящихся сырости и скачков температуры. Идеально подойдет встраиваемая техника, которая не будет занимать много места. Можно установить модную барную стойку.
Она может служить в качестве перегородки, разделяющей рабочую и кухонную зоны.
- Для санузла стоит подобрать душевую кабину, а не стандартную ванну, так как последняя может занимать много свободного места. Специалисты рекомендуют приобретать угловые кабинки, так еще больше экономится пространство. Компактными и привлекательными являются подвесные сантехнические устройства.
- Обустраивая спальную зону для семьи, можно обойтись стандартной кроватью или раскладной мягкой мебелью со скрытым ложем для сна. Здесь же стоит расположить комод, зеркала. Очень красиво смотрятся кровати, встроенные в нишу. Такая модель может быть дополнена точечными светильниками, арочными конструкциями.
Если не хватает свободного места, спальную зону можно организовать на утепленном балконе.
В условиях малогабаритной 1-комнатной квартиры или студии необходимо располагать максимально компактную, практичную и многофункциональную мебель, которая будет полезной и удобной, но не займет много места. Именно поэтому трансформеры оказываются наиболее востребованными. Подойдут и современные угловые мебельные конструкции, которые надо размещать в углу комнаты, оставляя свободным все остальное пространство.
Для небольшого жилища ограниченной площади не рекомендуется покупать слишком темную, громоздкую мебель. Лучше отдавать предпочтение более светлым изделиям оптимальных габаритов. Прекрасно впишутся в дизайн и подвесные конструкции. Если предметы мебели окажутся чересчур крупными и тяжелыми, они могут перегрузить обстановку, сделать ее менее уютной и гармоничной.
Красивые примеры
Даже если жилище однокомнатное и не отличается огромной площадью, оно может смотреться стильно, современно и гармонично.
Главное, ответственно подойти к планировке квартиры, ее меблировке и отделке. Рассмотрим некоторые удачные идеи и дизайнерские проекты.
Очень красивой и уютной получится 1-комнатная квартирка площадью 40 кв. м, в которой маленькая гостиная представляет собой одно целое с кухней. Зону отдыха со светлым диваном и пуфами можно отделить от спальной зоны с уютной двуспальной кроватью при помощи стеклянных перегородок. Желательно придерживаться мягких красок: бежевых, нежно-фиолетовых, кремовых, белых. Допустимо выставить темный кухонный гарнитур с глянцевыми поверхностями.
Можно обустроить маленькую квартиру и таким образом:
- основное пространство выделить под зал: поставить под окном у стены диван, а у противоположной стены разместить белые шкафы с полками и телевизором;
- отделить от зала зону для сна, используя гипсокартон или красивую ширму;
- гостиную объединить с обеденной зоной и поставить перед диваном кухонный гарнитур с островком или барной стойкой;
- в углу возле телевизора найдет свое место рабочая зона с компьютерным столом.

Модной получится квартира с площадью 40 кв. м, в которой зал и кухня объединены в одно пространство и разделены небольшим столом. Можно прибегнуть к отделке в стиле лофт: имитации бетонных поверхностей, кирпичной кладке, деревянным покрытиям пола, белому потолку. В интерьере могут сочетаться темные, белые и серые краски. Диван лучше подобрать темно-серый. Зону гостиной можно «замкнуть» открытой спальной территорией с акцентной стеной салатового оттенка. Тут можно расположить двуспальную деревянную кровать с контрастным постельным бельем.
О том, как сделать из однокомнатной квартиры двухкомнатную, вы можете узнать ниже.
14 примеров квартир по 40 кв.
м.Маленькие однокомнатные квартиры 40 кв.м. обычно приобретают одинокие молодые люди или семейные пары с ребенком, которые пока не могут позволить себе более большую квартиру.
В такой крошечной квартире каждый сантиметр площади на счету. Что можно сделать в планировке квартиры, чтобы она стала более уютной и просторной?
Квартира 40 кв.м. — как сделать ее просторной
Квартира 40 кв.м. вполне может стать более просторной, если грамотно подойти к ее планировке. В первую очередь, нужно учесть, кто будет жить в ней. Молодым, энергичным и активным людям можно предложить превратить квартиру в студию. Объединив, кухню с комнатой, вы получите огромную площадь, комфортную для проживания. При этом в получившемся большом пространстве нужно выделить отдельные зоны.
В спальной зоне лучше всего установить откидную кровать, которая отлично экономит пространство.
Кухню отделяют от комнаты небольшой барной стойкой. Рабочее место или «кабинет» можно отделить от общего пространства с помощью стеллажа, легкой перегородки или спинки дивана.
Если в вашей квартире есть балкон, то он позволит вам добавить квартире несколько метров полезной площади. Бывший балкон можно превратить в замечательную зону отдыха, поставить здесь небольшой диванчик или столик с креслами. Также можно создать подиум и застелить его мягкими материалами. Такой подиум может использоваться для хранения вещей, благодаря внутренней полости. А сверху размещается зона отдыха.
Для того чтобы квартира 40 кв.м. стала просторней, используйте раздвижные двери, вместо распашных. Также подойдут двери гармошки или складные двери. Их главное преимущество с том, что они не съедают лишнего пространства, позволяя использовать его рационально. Раздвижные двери можно устанавливать в ванной, на кухне, в комнате.
Массивная мебель – главный враг маленькой квартиры 40 кв.
м. Стандартные шкафы, стенки, кровати, столы занимают слишком много места. Продумывая планировку квартиры, необходимо обязательно предусмотреть наличие шкафа-купе. Это одно из лучших изобретений для маленьких квартир. Раздвижные дверцы, компактность, вместительные полки, высота от пола до потолка – делают его очень удобным для хранения вещей и экономят пространство. Обратите внимание на особенно компактные угловые шкафы-купе.
Спальная зона в квартире 40 кв.м. – одно из самых проблемных мест. Поставить большую кровать в однокомнатной квартире довольно проблематично, поэтому многим приходится ограничиваться диванами. Однако не стоит забывать о существовании откидных кроватей, которые легко прячутся в шкафу. Днем ничто не выдает их существования и не занимает полезную площадь, а ночью вы получаете комфортное спальное место.
Уютная квартира 40 кв.м.
Чтобы сделать квартиру 40 кв.
м. уютной и просторной, старайтесь не загромождать пространство лишней мебелью и техникой. Плоский телевизор повесьте на стену, чтобы не занимать место тумбами и подставками. На стены повесьте полки, они пригодятся вам для хранения техники и различных мелочей.
Замечательным решением станет складная мебель – столы, стулья, которые практически не занимают места в сложенном виде. Вместо стола на кухне лучше всего установить барную стойку. Она здорово экономит место на кухне и выглядит очень стильно.
Дизайнеры советуют объединить раздельный санузел. Благодаря этому вы получите большую ванную, где поместится и стиральная машина, и раковина, и унитаз, и большая ванна. Обратите внимание на угловые ванны.
Квартиры 40-49 метров — примеры с фото
Квартира 40 метров в ИзраилеКвартира 40 метров в ИспанииУютная квартира 40 метров Квартира 40 метров с красными акцентамиКвартира 40 метров в теплых тонахКвартира 40 метров с белыми стенамиСовременная квартира 40 метровКвартира 40 метров — свежее решениеКвартира 40 метров с яркими акцентамиКвартира 40 метров в ягодных оттенкахКвартира 40 метров — простой дизайнКвартира 40 метров с мужским характеромКвартира 40 метров в скандинавском стилеУютная квартира 40 метров
Помещение для медитации и самопознания
Когда возникает необходимость создать дизайн квартиры 40 кв м, очень важно учесть два момента: этой площади вполне хватит для реализации глобальных смелых решений, а также то, что все квадратные метры должны стать максимально удобными.
функциональна и максимально полезна для владельцев нового дома. Чтобы добиться удобства планировки, сделать комнату, в которой вы будете жить, оригинальной, чтобы всегда было чем удивить гостей, нужно использовать интересные приемы, подготовить подробный проект и не бояться экспериментировать.
Где начинается ремонт?
Театр начинается с вешалки, но дизайн представляет собой однокомнатную квартиру, в том числе студию с созданием проекта. Документация и эскизы помогут рассчитать примерную стоимость, а также составят более четкое представление о том, каким будет однокомнатное пространство в ближайшем будущем.
Такой проект будет успешным, если сразу обратить внимание на несколько пунктов:
- общий бюджет, включая резервный фонд на непредвиденные расходы;
- особенности планировки квартиры, грамотное использование всех ниш и выступов;
- количество постоянно проживающих членов семьи в 1 комнатной квартире 40 кв.
м с учетом запросов каждого из них;
- презентация и выбор стиля;
- четкое распределение всей необходимой атрибутики и элементов интерьера.
Применение дизайнерских идей
Сегодня особенно популярны идеи по изменению конфигурации комнаты — объединению или разделению площади. Однако актуальность таких решений не может быть применена абсолютно ко всем. Например, если в семье есть ребенок, то проект объединения гостиной и кухни можно смело отложить в сторону, так как в этом случае жилье не будет функциональным. При таких обстоятельствах можно рассмотреть вариант установки капитальной стеклянной перегородки с занавеской, но к необычному решению следует подходить очень внимательно и внимательно.
Стилистические дизайнерские идеи для 1 комнатной студии на 40 кв м разнообразны, они могут быть разнонаправленными:
- классической степени тяжести;
- аскетичный минимализм;
- натуральный эко-стиль;
- современный хай-тек;
- деревенский кантри;
- элегантный прованс;
- дерзкий художественный стиль.

Некоторые идеи позволяют органично смешать их, добавить что-то новое и оригинальное. Здесь вы найдете различные приемы зонирования комнаты: от красивых деревянных перегородок до интересных прозрачных образцов.Тенденции дизайна однокомнатных квартир площадью 40 кв м связаны с игрой контрастов, выделением уединенных «островков». Можно рассмотреть проект по созданию зеркальных зон для визуального расширения пространства.
Как сделать правильный выбор
В проекте могут быть такие дизайнерские решения, которые раскроют характер хозяев однокомнатной квартиры. В интерьере 1-комнатной квартиры площадью 40 кв м можно отобразить умиротворение, где не будет излишней вычурности и кричащих элементов.Или, наоборот, свое место в дизайне найдут яркие акценты и сразу бросающиеся в глаза предметы, источающие позитивную агрессию.
Дизайн спальной зоны
Минимализм в однокомнатной студии площадью 40 кв.м способен быть элегантным.
Для нормальной жизни человеку необходим здоровый сон. Если говорить о однокомнатной квартире-студии, в которой площадь составляет не менее 40 кв м, то есть возможность использовать часть полезной площади для создания особой ниши. Тогда у вас получится дизайн, в котором спальное место окажется как бы на постаменте, что сделает выделенное пространство не только эстетичным, но и практичным, так как будет место, куда можно убрать габаритные вещи.
Идеальным местом в однокомнатной студии для размещения спального гарнитура будет оконный проем, который можно украсить короткими шторами. Такие шторы не отнимут «лишние» сантиметры полезной площади, за ними будет проще ухаживать, а эксплуатация — проще. Дизайн получится очень удачный, а планировка — функциональная.
Нельзя забывать, что естественное и искусственное освещение визуально расширяют границы однокомнатной квартиры.
Несмотря на то, что площадь в однокомнатной квартире 40 кв м не так уж и мала, потребуется использовать некоторые приемы, которые помогут зрительно увеличить пространство.
Сделают комнату просторнее:
- грамотный подбор цветов, где преобладают светлые пастельные тона;
- размещение массивной мебели вдоль одной стены, покупка шкафов-купе с закрытыми дверями;
- расположение обеденной зоны или зоны отдыха в центре комнаты;
- установка стеклянных перегородок, световых экранов и раздвижных дверей;
- декорирование различных предметов с зеркальной или глянцевой поверхностью и удаление всех видимых острых углов;
- обеспечивает максимальный доступ к естественному свету.
Площадь кухни
Проект, в котором полноценный встроенный гарнитур выполнен в светлых тонах, — практичное и разумное решение оформления интерьера обеденной зоны однокомнатной квартиры. Кухонные принадлежности должны быть функциональными и стильными. Для того, чтобы помещение обеденной зоны однокомнатной студии было максимально полезным, существует множество решений, которые обеспечат ее быстрое превращение в рабочее место.
Угловая зона, которая находится у противоположной стены кухни, может быть выполнена в более темных тонах.Такая конструкция органично разместит там мягкий диванчик небольших размеров. Если на кухне общей комнаты преобладают однотонные цвета, то над диваном гармонично впишется картина эпохи Прованса, выполненная в резной раме.
Проект, где оформление кухни выполнено преимущественно глянцевыми поверхностями, установлен раздвижной стол, соблюдается четкое разделение площади, что поможет зрительно увеличить пространство без потери функциональности.
Идеи украшения гостиной
Для разделения зоны кухни и гостиной можно использовать небольшую деревянную или искусственную перегородку, которая может подойти для установки телевизора.Или прозрачное стекло, которое будет смотреться оригинально и привносит современный элемент, подчеркивающий выбранный дизайн.
В гостиной оптимально разместить удобный мягкий диван и зону отдыха для приема друзей.
В углу можно расположить вместительный шкаф-купе с большим количеством полок. Этот предмет не будет выглядеть объемно, если вы выберете подходящее цветовое сочетание, в котором шкаф будет сливаться с основной стеной. Проект может включать в себя несколько стульев и небольшой столик, расположенный по центру, чтобы было комфортно пить чай при приятной беседе с гостями.
Если для спальной зоны отлично подойдут голубой, светло-розовый, бежевый оттенки, которые привносят уют и расслабление. Затем, готовя дизайн гостиной, обычно выбирают: золотистый, салатовый или коричневый цвета.
Главное постараться, чтобы интерьер 1-комнатной квартиры не был перегружен деталями, ненужными предметами декора, громоздкой мебелью или «тяжелыми» оттенками. Яркие комнатные растения, большие аквариумы, изящные элементы индивидуального дизайна создадут легкость и свежесть атмосферы вашей однокомнатной квартиры.
Рынок жилья очень разнообразен, но не всем по карману покупать элитные апартаменты с большой площадью.
Многим приходится жить в маленьких квартирах. Несмотря на это, при грамотном подходе к планировке можно отлично разместить все необходимое, что даже оставляет свободное пространство.
Даже в однокомнатной квартире 40 кв.м. можно создать атмосферу уюта и комфорта. Как добиться такого результата, вы узнаете, прочитав нашу статью. Дизайнерские идеи можно учесть при обустройстве жилища.
Особенности дизайна малогабаритных квартир
Малогабаритное жилье требует особого подхода при разработке концепции ремонта и проекта будущего дизайна. В первую очередь определите, сколько жильцов будет в квартире.
Для одного человека или молодой пары без детей вполне подойдет пространство открытой планировки, где в общей зоне можно расположить кухню и гостиную или спальню с гостиной.
Если речь идет о большой семье или нескольких поколениях, живущих под одной крышей, то без зонирования пространства не обойтись.
В этом случае придется использовать различные перегородки, раздвижные шторы или специальную многофункциональную мебель.
Многоуровневая система освещения добавит интерьеру разнообразия и наполнит его пространством.
Тогда нужно определиться со стилем помещения. Выбирая вариант, лучше обратить внимание на стиль, не требующий чрезмерного количества мебели и декора. Такой дизайнерский прием украдет лишние метры и без того небольшого помещения.
Например, классика или прованс будет совсем не уместна, а лофт или минимализм не только гармонично впишутся в пространство, но и дополнительно его расширит.
В современном дизайне квартира 40 кв. придуманы различные техники, позволяющие оптически увеличивать небольшие пространства. Например, зеркальные мебельные фасады раздвигают границы, зрительно добавляя пространства комнате.
Не лишним будет рассмотреть дизайн стен и мебели в светлых тонах.От темных тонов лучше отказаться, они уменьшат количество жилой площади.
Большие оконные проемы сыграют на руку хозяевам небольшой квартиры.
Естественный дневной свет, льющийся из окна, добавит интерьеру легкости и воздушности.
Конечно, это не сработает, если вы загромождаете комнату множеством вещей. Поэтому при ремонте квартиры и покупке мебели остановитесь на самом главном. Все лишнее следует исключить из помещения.
Стильные дизайнерские решения интерьера квартиры 40 квадратов
Принцип зонирования
На небольшой площади вполне можно разместить гостиную с рабочей зоной, а также кухню и спальню. Отсутствие стен, скрывающих лишние метры, позволяет создать полноценное и одновременно многофункциональное пространство для каждого вида деятельности. Будь то сон, отдых вечером или приготовление еды.
При использовании принципа зонирования спальное место отделяется от остального пространства занавеской, подобранной к стенам или оконным занавескам.
Интерьер в стиле лофт
Это не только стильный и модный дизайн, но и экономия на внутренней отделке.
Ведь для лофта характерны обычные крашеные стены или просто кирпичная кладка, никак не декорированная. А у бетонного потолка с открытой проводкой есть свой особенный стиль, который будет вполне понятен современной молодежи.
Дополнить интерьер необычными винтажными стульями можно со столиком. Зоны в таком помещении также объединены одним пространством, без массивных перегородок.Благодаря этому даже темные оттенки дизайна не скроют драгоценные метры.
Домашний уют
Пастельные тона и разнообразный текстиль сделают гостиную уютной и комфортной. Рациональное зонирование за счет невысоких перегородок гармонично отделяет личную спальную зону от общего обеденного пространства.
Для разделения большой комнаты уместно разместить высокие перегородки перпендикулярно окну, чтобы не перекрывать проникновение дневного света на всю площадь квартиры.
Дополнительное пространство можно создать с помощью мобильной обеденной группы, которая при необходимости отодвигается к стене, освобождая пространство.
Решение для семьи из нескольких человек
Может показаться, что небольшая квартира совсем не подходит для одновременного проживания нескольких человек. Посмотрев фото дизайна квартиры 40 кв.м, вы поймете, что при правильной планировке можно добиться такого результата, когда никто не обделен и для каждого есть свое личное пространство.
Если в комнате есть балкон или лоджия, утеплить ее и обустроить рабочее или спальное место для одного из членов семьи. Область подоконника послужит своеобразной ширмой и поможет добиться эффекта уединения.
Вместо громоздкой кровати в основной части комнаты можно разместить раскладывающийся диван, сэкономив место днем.
Квартира-трансформер
Концепция проекта — возможность изменения планировки в любой момент.Основное внимание уделяется многофункциональной модульной мебели, которую можно модифицировать. Так, раскладной стол легко превратится в обеденную или рабочую зону.
Кровать с подъемным механизмом скрывается в нише, а также освобождает место в комнате. Узкие шкафы выступают в роли разделителей отдельных зон в комнате, служа еще одним местом для хранения вещей.
Дизайн спальной зоны
Для комфортной жизни любому организму необходимо определенное количество времени на полноценный сон и отдых.В том случае, если речь идет о однокомнатной квартире, можно использовать дизайнерский подход к созданию спальной зоны.
Довольно эстетично будет смотреться возвышающаяся ниша под кроватью. Кроме того, будет дополнительное место для хранения крупногабаритных вещей. Гармонично будет смотреться спальный гарнитур у окна, не занимая лишнего места посередине комнаты.
Обеденная зона
Светлые оттенки кухонного гарнитура — практичное решение для обеденной зоны в небольшой квартире.Предметы интерьера должны быть стильными и функциональными одновременно.
Поэтому есть смысл объединить обеденную и рабочую зоны, которые при необходимости можно легко трансформировать друг в друга.
Глянцевые и стеклянные поверхности визуально расширят пространство без потери функциональности.
Гостиная
Для отделения обеденной зоны от гостиной целесообразно использовать невысокую перегородку, которая может служить не только разделителем пространства, но и тумбой под телевизор или дополнительной полкой для посуды.Очень красиво будет смотреться стеклянная перегородка с подсветкой.
Жилая зона — это место, где можно встретить друзей. Разместите в нем удобный диван для гостей и небольшой журнальный столик для чаепития.
Продумывая дизайн и разрабатывая проект однокомнатной квартиры, следует постараться, чтобы интерьер не был перегружен ненужными предметами, массивной мебелью и темными оттенками. Стеклянные вазы с цветами, красивые картины на стенах, оконный текстиль добавят уюта и помогут создать неповторимый дизайн даже в небольшом помещении.
Фото квартиры 40 кв.
Из этой статьи вы узнаете, что дизайн однокомнатной квартиры 40 кв м может быть очень комфортным, свободным и достойным восхищения, если подойти к нему правильно. Декорин представляет вам более 15 проектов и вариантов дизайна на 40 кв.м, сочетающих комфорт, стиль и продуманную планировку! В этой статье мы поговорим о современных тенденциях в дизайне интерьеров в 2019 году.
40 кв. М.- это средняя площадь однокомнатных квартир в большинстве современных многоэтажных домов. В отличие от хрущевок, которые имеют площадь 28-32 кв. М, эти «однушки» предлагают больше разнообразия в планировке и дизайне пространства, и даже открывают возможность обустроить 2 отдельные комнаты — спальню и гостиную или общую. комната и детская. Выберите свой вариант дизайна.
1. Красивый дизайн однокомнатной квартиры 40 кв.м — фото и план дома
Хозяйка этой квартиры пожелала, чтобы дизайн ее квартиры был чистым, простым, элегантным и вневременным.
Как вы думаете: удалось ли дизайнеру этого добиться?
Чтобы интерьер выглядел просторнее, все отдельные части этой квартиры были напрямую соединены между собой. Кухня совмещена с гостиной, в ванную комнату ведет прозрачная дверь, а спальня отгорожена от гостиной полуоткрытой перегородкой в виде вертикальных жалюзи. И теперь вместо нескольких маленьких комнат получилась одна, но очень свободная и стильная комната!
Среди других важных элементов дизайна этой квартиры площадью 40 кв.м стоит отметить светлую цветовую палитру и отсутствие массивных подвесных светильников, «крадущих» воздух из интерьера.Обратите внимание, встроенные точечные светильники по периметру потолка гостиной как бы отделяют эту зону от остальной части квартиры.
2. Украинский дизайн квартиры 40 кв м — фото и 3D проект
Следующая стильная квартира площадью 40 кв.м находится во Львове и была разработана дизайнерами Романом Вербищуком, Юлианной Верба и Любовью Лазорив.
Как видно на фото, кухня здесь намного больше и удобнее, чем в предыдущем варианте.А диван и кровать, несмотря на то, что они почти встык, разделены прозрачной стеклянной перегородкой.
В результате дизайн квартиры выглядит открытым и воздушным, а стильная плитка на кухне и в ванной комнате привносит в него интересную изюминку.
3. Дизайн двухкомнатной квартиры площадью 40 кв.м — фото и план
Если в предыдущем варианте дизайна однокомнатной квартиры 40 кв м выбор был сделан в пользу большой кухни и ванной комнаты, то здесь — в пользу просторной спальни.Однако, как видите, между холлом и спальней здесь также установили стеклянную перегородку, чтобы дом выглядел просторным и светлым. В оформлении также использованы натуральные материалы в отличие от светлых тонов интерьера. И, кстати, немаловажную роль в дизайне этой квартиры сыграла и модная геометрическая плитка!
Также читайте:
Еще раз просим обратить внимание на отсутствие габаритных светильников, а также на открытые полки и кровать на платформе со встроенными ящиками.
Умная экономия места в действии!
4. Комфорт и шик в квартире 45 кв.м
По дизайну этой двухкомнатной квартиры нельзя сказать, что в ней всего 45 кв.м! Открытые стеллажи, встроенные в стены и за диваном, позволяют грамотно использовать каждый квадратный дюйм пространства и даже создавать иллюзию лишней высоты.
Обеденная зона совмещена с гостиной, спальня расположена в отдельном помещении, но небольшую кухню можно закрыть подвижной перегородкой, что очень удобно, когда нет сил и времени на ее приведение в порядок.
Дизайн квартиры-студии вошел в наш список лучших проектов во многом благодаря тому, что здесь установлено. Именно этот предмет мебели в сочетании с лаконичным скандинавским стилем делает этот дом просторным, стильным и очень уютным. И, конечно же, еще больше шарма и свободы придает окно в стене между кухней и гостиной.
6. Современный дизайн однокомнатной квартиры 40 кв.м
Далее в нашем списке яркий и сочный дизайн для квартиры площадью 40 кв.
м в городе София, столице Болгарии.Идея этого жилища вдохновлена конструктором LEGO, поэтому некоторые детали интерьера — тумба под телевизор, полки, кухня и даже картины на стене — выглядят как интересная головоломка. Несмотря на яркие акценты, большая часть интерьера по-прежнему выполнена в белом цвете, а нейтральный дизайн спальни идеально подходит для отдыха и релаксации. Попав в такой интерьер, вы зарядитесь положительными эмоциями и подниметесь в хорошем настроении.
7. Дизайн однокомнатной квартиры 45 кв.м — фото и планировка проекта
Потрясающе стильная квартира площадью 45 кв. М. Расположена в Москве и спроектирована дизайн-студией INT2.Как и положено студии, она состоит всего из одной комнаты, в которой есть отдельные зоны — гостиная, спальня, кухня и ванная комната. Некоторые из них разделены небольшими участками стен, другие — шторами. Квартира выполнена в прекрасном сочетании пастельных тонов, а также скандинавского и современного стилей.
8.
Необычная планировка и дизайн 1 комнатной квартиры 40 кв.мЭта небольшая однокомнатная квартира выделяется не только необычной планировкой, но и красивым сочетанием японского и.Светлые оттенки дерева и нейтральная цветовая палитра здесь подчеркнуты синими и желтыми деталями, в том числе подушками, мягкими сиденьями и обшивкой стен в спальной зоне. Как вам идея?
9. Дизайн однокомнатной квартиры 40 кв.м для мамы и дочки
Этот дизайн однокомнатной квартиры был разработан польской фирмой Pressenter Design специально для мамы с 6-летней дочерью. Дизайн жилища разработан с учетом растущих потребностей ребенка, для чего здесь оборудована просторная рабочая зона с навесными шкафчиками для книг и другой утвари.Низкая тумба под телевизор и журнальный столик такой же высоты в сочетании с общим минимализмом дизайна делают эту квартиру очень светлой и свежей, а темное дерево на фоне гладких белых поверхностей создает просто шикарный эффект. Мы считаем, что такой дизайн однокомнатной квартиры может подойти и семейной паре.
Также читайте:
10. Дизайн двухкомнатной квартиры 40 кв.м: отделка гостиной и детской
Наверное, многих читателей этой статьи волнует вопрос: как обустроить отдельную детскую комнату в дизайне двухкомнатной квартиры 40 кв м? В качестве ответа предлагаем вам фото двух квартир, где гостиная одновременно является спальней родителей, а в отдельной детской легко могут разместиться 2 ребенка.Чтоб некоторые не говорили, что живя на 40 кв м, второго ребенка себе не по карману)))
В первых из этих апартаментов есть очень элегантная гостиная, совмещенная с уютной кухней, и светлая детская комната с двухъярусной кроватью в морском стиле, который так нравится многим детям.
Второй дизайн двухкомнатной квартиры 40 кв м выполнен в стиле минимализм и отличается многофункциональной мебелью, несмотря на то, что в детской комнате две раздельные односпальные кровати.
11.
Современный дизайн квартиры 40 кв.м с элементами роскошиУдивительно, но эта двухкомнатная квартира с шикарной спальней занимает всего 37,5 квадратных метров! Небольшая прихожая с бархатной скамейкой в нише переходит в довольно просторную кухню, а основная комната разделена перегородкой на гостиную с рабочей зоной и очень красивую спальню. Как и в большинстве малогабаритных квартир, за основу был взят белый цвет и разбавлен яркими акцентами желтого (стена в коридоре, на кухне, стулья в гостиной) и бирюзового (спальня) тонов.В целом небольшая квартира в Санкт-Петербурге выглядит модно и очень уютно. Представленный на фото дизайн двухкомнатной квартиры — пример максимально выгодного использования пространства!
12. Стильный дизайн однокомнатной квартиры 40 кв.м с идеальной планировкой
Следующие две квартиры в нашем списке имеют очень похожую планировку, в которой только ванная комната находится в отдельной комнате, а коридор, кухня, гостиная и спальня объединены в одно целое.
Для удобства спальню от гостиной можно отделить стеклянной перегородкой с занавесками или (как во втором варианте) гибкой рулонной перегородкой. За счет отсутствия стен и дверей (кроме ванной комнаты) достигается общая легкость и одухотворенность интерьера. Стильный дизайн однокомнатной квартиры станет вашей визитной карточкой при встрече гостей.
Как видите, в первом случае для украшения интерьера и отделения кухни от коридора используется интересная декоративная перегородка с рисунком от пола до потолка.В отличие от цельной стены, она сохраняет единство пространства, привнося в него немного творчества, но не более того. Во втором варианте при оформлении дизайна квартиры-студии дизайнеры решили вообще не разграничивать эти зоны.
Интересно, какой вариант дизайна однокомнатной квартиры 40 кв м из этих двух вам больше нравится? Делитесь своим мнением в комментариях!
13. Роскошный дизайн квартиры 35 кв.м.

Пока мы плавно приближаемся к концу этой статьи, уже очевидно, что прозрачные стеклянные перегородки между холлом и спальней — ключевой момент в создании свободного и комфортного дизайна квартир площадью до 40 кв.м и превратив небольшую «однушку» в вполне удобную «двушку». Эта роскошная квартира площадью 35 квадратных метров не исключение. Особенностью его является смелый дизайн и цветовая гамма — вместо светлых тонов и минимализма здесь мы видим яркие фиолетовые и бирюзовые акценты на стильном сером фоне, а также массивные светильники (в нужном месте!), Камин и камин. полностью потрясающая мраморная ванная комната.
Кто осмелится сказать, что это крохотное жилище не роскошно?
Также читайте:
14.Современный дизайн квартиры 40 кв. в стиле китайского минимализма
С одной стороны, такой дизайн однокомнатной квартиры площадью 40 кв.м включает в себя только простые элементы декора, но в совокупности они создают очень красивую и веселую атмосферу дома.
Минималистичная мебель строгих прямоугольных форм очень элегантно и свежо смотрится на фоне ярко-зеленых, розовых и лиловых акцентов. В спальне, отделенной романтической полупрозрачной перегородкой, есть большой шкаф, а в ванной, куда ведет дверь из кухни-гостиной, — узкая душевая кабина, благодаря которой можно было разместить стиральную машину.
15. Дизайн однокомнатной квартиры 40 кв.м в молодежно-креативном стиле
Завершаем сегодняшний пост очень милой, молодой и уютной однокомнатной квартирой в городе Арад, Румыния. Помимо приятной цветовой гаммы, сочетающей светлые нейтральные тона с деталями практически всех цветов радуги, вас могут приятно удивить полка-перегородка в гостиной, велосипед в ванной, кровать-платформа и навесной шкаф-столик. . Все в этой потрясающей квартире дышит любовью к жизни и окружающему миру! Возможно, дизайн квартиры-студии в молодежном стиле понравится и людям старшего возраста.
Мы очень постарались собрать здесь самые разные дизайны квартир для людей с разными вкусами и потребностями.
Поэтому будем очень рады услышать ваше мнение. Поделитесь с нами и нашими читателями: какой вариант дизайна однокомнатной квартиры 40 кв м вам понравился больше других? Что для вас важнее: большая кухня или просторная спальня? Комфорт или практичный минимализм? Прозрачные перегородки или массивные стены?
Еще больше идей по дизайну малогабаритных квартир Вы можете почерпнуть из наших статей:
Дизайн однокомнатной квартиры 40 кв м — лучшие фото и проекты на 2019 год обновлено: 23 января 2019 года автор: Маргарита Глушко
Любоваться огромными домами с шикарным дизайном, живя в маленькой квартире, для многих привычная ситуация.Но суровая реальность такова, что не каждый может позволить себе жилье с большой площадью, отдавая предпочтение небольшим пространствам. Современный дизайн интерьера продолжает доказывать, что это не такой уж и плохой вариант. Даже в однокомнатной квартире площадью 40 кв.м. Вы сможете создать уютное и комфортное «гнездышко», а мы расскажем, как это сделать.
Особенности конструкции «малогабаритного»
Квартиры с небольшой площадью — это особый «клиент», требующий соответствующего подхода. Для начала нужно определиться, кто будет жить в квартире: молодой холостяк или большая семья? В первом случае отлично подойдет пространство открытой планировки, в котором нет необходимости оформлять отдельные приватные зоны.Во втором все немного сложнее, но не так безнадежно. Грамотное зонирование комнаты с помощью штор, перегородок разной высоты и функциональной мебели поможет разделить площадь так, чтобы места хватило всем.
Далее следует определиться со стилем. К маленькой квартире здесь тоже предъявляются особые требования. Лучше остановить свой выбор на стиле, не предполагающем большого количества мебели и декора — они «съедают» драгоценные метры и без того небольшого помещения.Например, классический стиль или прованс будет выглядеть нелепо, а вот минимализм или лофт могут расширить пространство и адаптироваться к специфике планировки.
В современном интерьере уже есть множество хитрых приемов, которые зрительно увеличат небольшую площадь. Например, зеркальные поверхности создают эффект «второго измерения» и, кажется, расширяют комнату. Светлые тона не создают границ, а темные, наоборот, могут сузить квартиру. Но это не значит, что черного нужно бояться и всячески его избегать — при грамотной планировке он может придать интерьеру ощущение зрелости, не затрагивая пространство.
Обладателям высоких окон обязательно стоит воспользоваться этим и по возможности не загораживать естественный свет — лучше, если он заполняет всю комнату.
Маленький совет напоследок — не стоит забивать квартиру ненужными вещами, а лучше делать только самое необходимое.
Однокомнатные квартиры 40 м2 — фото
Для лучшего закрепления материала предлагаем вам ознакомиться с яркими дизайн-проектами квартир, в которых воплотились все вышеперечисленные рекомендации.
Дизайнерам волгоградской студии Solo Design удалось стильно и гармонично оформить эту «однокомнатную квартиру».
На небольшой площади в 40 квадратных метров разместили спальню, кухню, гостиную и рабочую зону, используя принцип зонирования.
За счет отсутствия массивных перегородок и стен квартира визуально кажется больше и не создает ощущения изолированности. Спальня отделена от остального пространства занавеской, являясь ее продолжением.
Принцип открытого пространства позволил использовать приглушенные темные цвета даже в домах с такой небольшой площадью. Но в этом случае серые стены и черные предметы мебели вместо того, чтобы уменьшать пространство, создают уютную атмосферу. Большие окна пропускают естественный свет и наполняют комнату «воздухом».
2. Брутальный лофт в однокомнатной квартире 40 кв.м.
Еще один пример того, что можно не бояться темных оттенков. Объект расположен в Москве и представляет собой однокомнатную квартиру площадью 40 кв.м. с элементами лофта. Проект разработан дизайн-студией Int2Architecture, перед которой стояла непростая задача: в короткие сроки создать стильное и презентабельное жилье в аренду.
Ограниченный бюджет только усложнил реализацию, но дизайнеры использовали нестандартные решения и спроектировали корпус максимально стильно и дешево.
Покраска кирпичных стен, открытая проводка, бетонный потолок — все это позволило сэкономить на отделке и приблизиться к стилю лофт. В интерьере использована необычная винтажная мебель, например, обеденные стулья или раковины, приобретенные на блошином рынке.
В квартире практически нет массивных перегородок и все жилые помещения представлены в одном пространстве. Но из-за этого не создается ощущение груды предметов — благодаря целостному стилю и отказу от традиционной большой кухни.
3. Уютное гнездышко — дизайн однокомнатной квартиры 40 кв.м.
В отличие от предыдущего проекта от Int2Architecture, эта квартира выполнена в светлых тонах и оформлена для комфортного проживания молодой пары.
Дизайнеры использовали принцип рационального зонирования, благодаря которому им удалось создать зоны для кухни, столовой, гостиной, спальни и кабинета — и все это, напомним, в небольшой однокомнатной квартире площадью 40 кв.
!
В проекте реализовано много интересных идей для небольшой площади.Например, спальню с кабинетом объединили в одну зону и поместили на постамент с дополнительным местом для хранения вещей. Высокая перегородка отделяет приватную зону от жилой зоны, но не препятствует проникновению естественного света. Передвижную обеденную зону можно легко переместить, чтобы освободить дополнительное пространство.
Замечательный проект дизайнера Евгении Островской — квартира на Даниловской мануфактуре в Москве.Задача просторной конструкции такого жилья усложнялась тем, что это мансарда, а значит, часть помещения сужается за счет наклонного потолка. С другой стороны, чердачное пространство выглядит уютно и открывает новые возможности для планировки.
Стиль лофт для внутренней отделки был выбран неспроста: он отлично вписывается в атмосферу мансарды и позволяет добавить функциональные и практичные детали.
Например, для расширения площади использовалась мебель-трансформер.Рядом с входной дверью находится система хранения, которая перетекает в кухонную зону. Наличие зеркал на шкафах зрительно расширяет пространство.
Дизайнеру удалось уместить здесь все необходимое для жизни и даже камин — непозволительная роскошь для такой маленькой «однушки».
5. Однокомнатная квартира 40 кв.м. на семью из трех человек
Кажется, небольшая однокомнатная квартира точно не подходит для комфортного проживания мамы с двумя детьми, когда каждому члену семьи необходимо личное пространство.Но дизайнер Ирина Ежова решила доказать, что это не так, и предложила собственные решения проблемы.
Все началось с перепланировки: в единственном помещении возвели подиум, где располагалось спальное и рабочее место для одного из детей. Зона изолирована функциональными шкафами разной высоты, а сам фасад также подходит для хранения вещей.
Для второго ребенка лоджию утеплили и превратили в место для отдыха и работы.
Хозяйка использует на ночь раскладной диван как спальное место.
Светлые тона и многоуровневая система освещения наполняют интерьер этой квартиры простором и разнообразием, зрительно увеличивая небольшую площадь.
Украинская студия Rover Building Company показала, что даже в небольшой однокомнатной квартире можно создать функциональный и светлый интерьер.Красочный дизайн, а также уютные элементы декора «оживляют» пространство и позволяют забыть о его площади — всего 40 м2.
Студия — отличный вариант для такого жилья. Отсутствие стен компенсируется низкими перегородками.
Как и в других проектах, спальню поставили на пьедестал, огородив ее стеклянной стеной. С одной стороны, такая конструкция не создает препятствий, а с другой — проводит плавную границу между жилой и личной зонами.
Специалисты утверждают, что современный комфортабельный дом не обязательно должен быть большим. На самом деле 28 м вполне достаточно человеку для нормальной жизни. 2 … Получается, что семья из четырех человек будет комфортно себя чувствовать в доме площадью чуть меньше 120 м 2 … И такой дом по праву можно назвать маленьким.
Обычно проекты небольших домов — одноэтажные. Но по желанию заказчика можно достроить полноценный второй этаж или чердак.
Для размещения всех жилых комнат на сравнительно небольшой площади и обеспечения комфортного проживания семьи размеры технических и подсобных помещений уменьшены. Хотя пространство организовано по тем же принципам, что и в любом другом проекте. Но есть особенности, которые связаны с необходимостью строго экономить полезную площадь.
Проект большого дома: борьба за каждый квадратный метр- Проектируя небольшие, архитекторы минимизируют использование внутренних перегородок.
Таким образом, комнаты разной функциональности объединяются в единое пространство. Например, гостиная, столовая, кухня сгруппированы в дневную зону и разделены чисто визуально — с использованием дизайнерских приемов. Проект домика позволяет рационально использовать каждый квадратный метр полезной площади. При этом дополнительные комнаты остаются изолированными. - Спальни членов семьи, ванные комнаты, гардеробные образуют ночную зону и расположены таким образом, чтобы максимально защитить личное пространство жителей дома от посторонних.Если дом двухэтажный, то там выносят ночную зону.
- Хозяйственную зону, состоящую из туалетов, котельной и других подсобных помещений, стараются спроектировать как можно меньше.
- Для продуктивного использования нежилых помещений стремятся ограничить количество коридоров и переходов.
- Если дом двухэтажный, санузлов должно быть два. В целях снижения затрат при устройстве инженерных сетей их ставят одна над другой.
В одноэтажном доме санузел размещен таким образом, чтобы у него был общий стояк с кухней.
- Строительство домика не зависит от конфигурации и размеров земельного участка.
- Строительство такого дома также обойдется значительно дешевле.
- Краткие сроки проектирования и строительства.
- Сравнительно небольшие затраты на коммунальные услуги и легкий уход за домом.
Тщательно продуманный проект небольшого дома позволяет рационально использовать каждый квадратный метр полезной площади.Благодаря этому заказчик за сравнительно небольшие деньги получает современное комфортное жилье. Поэтому рекомендуем выбирать профессиональные проекты небольших домов от компании Dom4m.
Ремонт в однушке 40. Планировка однокомнатной квартиры: лучшие варианты дизайна
Для создания стильного дизайна квартиры 40 кв. Важно учитывать все особенности планировки и обустройства функциональных зон.
Грамотное зонирование небольших габаритов и выбор подходящего стиля наполнят интерьер уютом и красотой.
- Не стоит украшать комнату слишком большим количеством люстр с большим количеством декоративных элементов, так как такая конструкция зрительно опустит потолок. Лучшим вариантом освещения станут многоуровневые точечные светильники.
- Чтобы пространство не выглядело загроможденным, желательно отдать предпочтение компактной встроенной технике и мебели с хорошей вместительностью.
- Рекомендуется выполнять интерьер в более светлых тонах, например, в белом, бежевом, кремовом, песочном или светло-сером, так как темные тона зрительно уменьшат пространство.
- Для оформления окон лучше подойдут тонкие легкие занавески, рулонные модели или жалюзи.
Планировки 40 м кв.
Чтобы добиться максимально удобной планировки и оригинального дизайна, необходимо заранее продумать создание детального проекта, включающего технический план и схемы различных коммуникаций и прочего.
В маленькой квартире уместно будет использовать не слишком громоздкую трансформирующуюся мебель, достаточное количество света, отделку светлых оттенков, зеркальные и глянцевые поверхности, обеспечивающие визуальное расширение пространства.
При прямоугольной форме комнаты важно правильно организовать зонирование, разделив жилую зону на две части, чтобы придать ей более пропорциональный вид.
Для однокомнатной квартиры
В дизайне однокомнатной комнаты в первую очередь учитывают геометрическую форму квартиры, а также наличие конструктивных углов, выступов или ниш.С помощью таких элементов можно зонировать пространство без использования дополнительных конструкций.
На фото дизайн однокомнатной квартиры 40 квадратов, с нишей, оборудованной кроватью.
Для тех, кто предпочитает уют, комфортный дизайн и размеренную жизнь, основную часть комнаты можно отвести под спальное место с кроватью, зеркалом, шкафом, комодом и другими системами хранения вещей.
Оставшуюся площадь уместно будет оборудовать рабочую зону со столом, креслом или стулом и организовать гостевую комнату с диваном, навесным телевизором и подставкой для размещения различных мелочей.
Однокомнатная квартира
Однокомнатная квартира представляет собой единое жилое пространство, состоящее из нескольких функциональных зон с отдельной ванной комнатой, разделенных стенами. Одно из преимуществ такого варианта планировки — значительная сохранность площади, за счет отсутствия дверных конструкций.
На фото интерьер однокомнатной квартиры площадью 40 квадратных метров, выполненный в светлых тонах.
Квартира-студия считается достаточно комфортным решением для небольшой семьи, молодой пары или холостяка. При создании интерьера важно не нарушать гармонию окружающего пространства и не перегружать его массивными перегородками, предпочитая им более легкие и мобильные модели.
Также для поддержания воздушности в помещении лучше использовать модульные предметы мебели или конструкции-трансформеры, чем устанавливать монолитные изделия.В отделке желательно использовать натуральные и экологически чистые материалы, так как для постоянного проживания отводится всего одна комната.
На фото однокомнатная квартира 40 кв., С жилой и спальной зоной, разделенными шторами.
Для евро-девочек
Двухкомнатная квартира евростандарта, по сути, представляет собой более расширенный вариант квартиры-студии с отдельной дополнительной комнатой. Наиболее популярным планировочным решением является разделение этого жилья на кухню-гостиную и спальню.
Также в отдельной комнате иногда обустраивают детскую, а объединенное пространство занимают спальную, кухонную зону, столовую или, если есть балкон, обустраивают кабинет для работы.
На фото интерьер современной кухни-гостиной в 40 кв.
Лоджию также можно использовать как место отдыха, обеденную зону, барную стойку, а также разместить на ней холодильник или духовку.
На фото дизайн квартиры евродуплекса, площадью 40 квадратных метров.
Редевелопмент 40 м2
Перепланировка квартиры из однокомнатной в двухкомнатную — обычное дело, которое осуществляется путем капитального ремонта с разделением пространства различными перегородками или установкой новых стен. Например, дополнительную комнату часто отводят под детскую, гардеробную, кабинет или даже небольшую гостиную.
Идеи зонирования
Для четкого зонирования используются самые разные дизайнерские приемы. Например, многотекстурная или контрастная отделка, перегородки из гипсокартона, дерева, пластика или стекла, которые за счет лаконичного дизайна не будут загромождать пространство.
При наличии высоких потолков можно отдать предпочтение многоуровневым конструкциям, с установкой верхнего яруса, предназначенного для обустройства спальни или рабочего места.
На фото однокомнатный номер площадью 40 квадратов, со спальной зоной, разделенной шторами.
Шторы или передвижные ширмы в напольном или потолочном исполнении могут послужить отличным разделителем. Не только добиться разделения площади, но и преобразить внешний вид комнаты практически до неузнаваемости получится с помощью освещения и различной подсветки.Также для разделения функциональных зон выбирают стеллажи, комоды или более массивные предметы мебели, в виде шкафа.
На фото зонирование спального места и жилой зоны с помощью невысокого стеллажа, в однокомнатной квартире 40 кв.
Такой вариант, как шкаф-купе, будет особенно уместен в качестве перегородки для спальной зоны. Кроме того, такие элементы мебели могут отличаться любым дизайном, быть двусторонними или представлять собой конструкции купе.Не менее отличным решением являются раздвижные двери из самых разных материалов, которые очень часто используются при зонировании кухни-гостиной.
На фото интерьер однокомнатной квартиры 40 кв.
, Со стеклянной перегородкой, разделяющей спальную зону.
Дизайн функциональных зон
Варианты дизайна для различных сегментов.
Кухня
Кухонное пространство является довольно важной частью жилого пространства и имеет собственное внутреннее зонирование.В совмещенной кухне особое внимание уделяется качественной работе вытяжки и бесшумной работе предметов домашнего обихода. При создании проекта в первую очередь учитывается расположение форточок, от которых зависит размещение кухни.
На фото дизайн отдельной кухни в однокомнатной квартире 40 кв.
Для большей практичности и вместительности следует установить гарнитур со шкафчиками под потолком, для удобства оборудовать рабочую поверхность между плитой и мойкой, а также заранее предусмотреть, где будут располагаться электроприборы и розетки для них.Компактный кухонный остров имеет довольно оригинальную конструкцию, что за счет правильного размещения поспособствует реальной экономии квадратных метров.
Детский
При проектировании детской очень важно учитывать количество предметов мебели, их качество и безопасность. Например, для небольшого помещения рациональнее использовать складную мебель, которая дает значительную экономию полезного пространства.
Для семьи с ребенком в однокомнатной квартире или квартире-студии можно подобрать элементы зонирования в виде штор, ширм или мебели, а также разграничить пространство с помощью различной облицовки пола или стен.Для создания более благоприятной атмосферы в детской рекомендуется устанавливать лампы с рассеянным светом или отражающими свойствами.
На фото однокомнатная квартира площадью 40 квадратных метров, оборудованная детским уголком.
Гостиная и зона отдыха
В дизайне квартиры 40 кв. Гостиная может быть частью кухни и отделяться перегородкой, барной стойкой, либо быть отдельной полноценной комнатой с диваном, телевизором, аудиосистемой, креслами.
, пуфы и прочее.
На фото интерьер гостиной в скандинавском стиле в дизайне квартиры 40 квадратов.
В маленькой комнате не рекомендуется размещать слишком много предметов мебели, чтобы не перегружать комнату. Мягкий ковер, многоформатная и многотекстурная отделка стен, а также различные варианты освещения помогут придать атмосфере гостевой комнаты особый стиль и уют.
На фото дизайн гостевой комнаты в квартире 40 кв.
Шкаф
Корпус 40 квадратов предполагает достаточно места для организации отдельной гардеробной или для более простого и экономичного решения — установить в качестве дверей полки с занавесками. Такой дизайнерский ход выглядит очень современно и эффектно и придает атмосфере уюта.
Спальная зона
При обустройстве спальной зоны или отдельной спальни используется минимальное количество мебели. Например, отдают предпочтение встроенным шкафам, занимающим минимум места, сверхузким полочкам и стеллажам у изголовья кровати или компактным угловым конструкциям.
Для существенной экономии места можно заменить спальную кровать на раскладной диван, который при сборке в дневное время не отнимет полезные метры. В однокомнатной комнате или квартире-студии кровать устанавливается в специально оборудованную нишу или на подиуме, таким образом достигается красивый, эстетичный и практичный дизайн.
На фото спальная зона, расположенная в нише в интерьере однокомнатной квартиры 40 кв.
Шкаф
Рабочее место часто устраивают в небольшой нише, на лоджии, в углу, совмещают с подоконником или размещают вдоль стены. Наиболее рациональным будет дополнить эту зону раскладным письменным или компьютерным столом, встроенными стеллажами, неглубоким книжным шкафом или навесными полками.
В угловой квартире у окна можно разместить мини-офис, который обеспечит качественное естественное освещение.
Ванная и туалет
Для маленькой совмещенной ванной особенно уместно будет использовать большие зеркала, расширяющие пространство, квадратную раковину с ящиком для стиральной машины, эргономичные полочки, расположенные над унитазом, компактные душевые кабины, подвесную сантехнику и другие элементы, позволяющие экономить полезное пространство.
На фото интерьер маленькой ванной в серо-белых тонах в дизайне квартиры 40 кв.
Фото в разных стилях
В скандинавском дизайне в отделке используются светлые, почти белые оттенки, предметы мебели из натурального дерева, довольно необычные системы хранения в виде ящиков, коробок и корзин, размещенных на полках, а также различный декор, например картины, фотографии и т. Д. зеленые растения, свечи, шкуры животных, яркая посуда или текстиль.
Стиль минимализм, интерьер в белых и графических серых тонах в сочетании с хромированной сталью, стеклом, пластиком, керамикой, искусственными материалами и натуральным камнем. Мебель простой геометрической формы с небольшими изгибами и без лишнего декора. В комнате преимущественно рассеянное освещение и осветительные приборы, в виде неоновых или галогенных ламп, окна украшают вертикальные или горизонтальные жалюзи.
Прованс отличается особой легкостью, непринужденностью и французской романтикой, предполагающей элегантный декор, цветочные принты, винтажную мебель с нотками старины и нежные цвета, способствующие созданию непередаваемого комфорта.
На фото представлен дизайн однокомнатной квартиры 40 кв., Выполненной в стиле лофт.
В дизайне современного тренда приветствуются стильные аксессуары, новейшие технологии в сочетании с нейтральной облицовкой. Уместно использовать идеально ровные поверхности, мягкую мебель, модульные многофункциональные конструкции и большое количество освещения.
Роскошный дорогой классический интерьер — идеальное воплощение красоты. В этом стиле симметричные и четкие формы, мебель из качественного дерева, сложные архитектурные элементы в виде лепнины, колонн и прочего, а также сдержанные пастельные тона в отделке.
Галерея фотографий
Квартира 40 кв. М., Несмотря на столь относительно небольшую метражу, она имеет довольно практичный, удобный и эргономичный дизайн, максимально соответствующий требованиям проживания.
18.07.2017 Вы прочтете это через 12 минут.
Владельцам малогабаритных квартир площадью около 40 кв.
М стоит задуматься не только о качественном ремонте и эффектном дизайне, но и, прежде всего, о том, как правильно использовать каждый сантиметр жилой площади.Ведь для того, чтобы на такой небольшой площади разместить все функциональные зоны, выделить место для каждого члена семьи, при этом убедившись, что квартира не похожа на склад с множеством перегородок, загроможденных мебелью, нужна помощь профессиональных специалистов — как в интерьерном дизайне, так и в ремонте и отделке.
Стоимость ремонта квартиры под ключ с материалами
Уровень ремонта
Стоимость всех работ
Стоимость черновых материалов
Данный вид ремонта капитальный, с монтажом (заменой) инженерных сетей (электрических и сантехнических) ), с выравниванием всех стен, полов и потолка, но с использованием более дешевых материалов (обои, краска, ламинат, плитка и т. д.)). Как правило, выполняется без дизайн-проекта.
Стоимость всех работ: 8500 руб / м2
4500 руб / м2
Данный вид ремонта выполняется по индивидуальному дизайн-проекту с выравниванием всех поверхностей до нуля и с использованием более дорогих материалов и технологий.
(декоративная штукатурка, многокомпонентная краска, паркет или массивная плита, многоуровневые потолки из гипсокартона и др.).
Стоимость всех работ: 10 000 руб. / М2
Стоимость черновых материалов: + 6000 руб./ м 2
Данный вид ремонта выполняется по детальному дизайн-проекту с подбором мебельных материалов и авторским надзором, с использованием дорогих эксклюзивных материалов и технологий (венецианская штукатурка с имитацией мрамора и малахита, штучный художественный паркет, морилка. -стеклянные окна, кованые изделия, гипсовая лепнина и др.). Нс.).
Стоимость всех работ: 17000 руб / м2
Стоимость черновых материалов: + 9000 руб / м2
На фото: косметический ремонт в квартире 45 кв.м в Москве
Главное и, по сути, единственное преимущество косметического ремонта в однокомнатной квартире — это недорогая стоимость. Однако все относительно. С помощью косметического ремонта непременно удастся «освежить» интерьер, изменить цветовую гамму, добавить элементы декора и, возможно, немного улучшить его функциональность.
Такой ремонт проводится без детального дизайн-проекта и не подразумевает кардинального переоборудования жилья.
Капитальный ремонт (под ключ) квартира 40 кв.м от группы компаний «Фундамент»
На фото: Готовый интерьер квартиры и процесс ремонта
На фото: Планировочное решение квартиры 44 кв.м
А в этом пространстве, удалось организовать не только отдельные комнаты для родителей и ребенка, но и изолированную гостиную, выполняющую функции рабочего кабинета.
Интерьер гостиной, совмещенной с кабинетом
На фото: Интерьер гостиной и рабочего кабинета в квартире 44 кв.м
Как хорошо видно из планировочного решения с расстановкой мебели, в кабинете-гостиной площадью 7,7 кв.м оборудована ТВ-зона с прямым диваном и яркими обоями на стене. , а у окна — кабинет с письменным столом и креслом.
Детская комната 8,7 кв.м в квартире 44 кв.м
На фото: Интерьер детской комнаты 8,7 кв.м в квартире 44 кв.м
На фото: Планировочное решение для квартира 42 кв.
м
Просторная гостиная-холл в квартире
На фото: Интерьер гостиной-холла в квартире 42 кв.м в стиле модерн
Мягкие бежевые и песочные тона, панно с изображением европейских городских пейзажей, Кладка в стиле лофт и лаконичная мебель делают интерьер современным и динамичным. В нем, с одной стороны, чувствуется ритм и ритм города, с другой — спокойная цветовая палитра дарит ощущение комфорта и умиротворения.
Кухня песочного тона со стеклянной столешницей
На фото: Интерьер кухни в квартире 42 кв.м в стиле модерн
Интерьер маленькой кухни (5 кв. м.) «осветлен» прозрачной столешницей и светло-песочными тонами, которые берут начало в дизайне гостиной.
Квартира 35 кв.м для молодой семейной пары
Даже в квартире площадью всего 35 кв.м можно оборудовать комфортное жилое пространство для двух или трех человек. Подтверждением тому является работа дизайнеров Группы компаний «Фундамент» над проектом этой квартиры.
План расстановки мебели в квартире площадью 35 кв.
мНаибольшую площадь квартиры (18,5 кв.м) занимает гостиная, которая одновременно выполняет функцию спальни. В маленькой кухне есть место для совместных завтраков или ужина на двоих, а в квартире — вместительные встроенные шкафы и полки для хранения вещей.
Гостиная с функцией спальни с камином
На фото: Интерьер гостиной с функцией спальни в квартире 35 кв.м
Напротив дивана расположен электрокамин с ТВ-зоной, и на первый взгляд он похож на уютную гостиную с камином. С помощью трансформируемого дивана и мобильного журнального столика гостиную легко превратить в полноценную спальню.
Однокомнатная квартира 40 кв.м со свободной планировкой
Благодаря капитальному ремонту и коренной перепланировке однокомнатная квартира площадью 40 кв.м сумела превратиться в стильную современную студию.
Фото квартиры до ремонта под ключ
На фото: Состояние квартиры до ремонта под ключ
На фотографиях, сделанных во время обмеров помещения, можно увидеть состояние квартиры до ремонта под ключ.
Специалисты вместе с заказчиком решили разработать интерьер студии, для чего необходимо было перепланировать корпус и демонтировать «лишние» перегородки.
Планировочное решение однокомнатной квартиры 40 кв.м
На фото: План расстановки мебели в квартире 40 кв.м
Планировочное решение квартиры включает: большую комнату, которая совмещает в себе функции гостиной, спальни и кабинета, просторная кухня (8 кв.М.), Прихожая (7 кв. М.), Компактный санузел и обустройство лоджии (около 3 кв. М.).
Фото квартиры 40 кв.м после ремонта по дизайн-проекту
На фото: Интерьер гостиной-спальни в квартире 40 кв.м
На фото: Интерьер кухня-гостиная со спальней в однокомнатной квартире
Компактная спальня расположена у окна и отделена от студийного пространства кухни-гостиной яркими шторами, которые можно по желанию раздвинуть или закрыть. .Мягкий светло-серый диван отделяет кухню с обеденной зоной от гостиной.
Объединение гостиной-кухни-столовой
На фото: Интерьер кухни-гостиной-столовой в 1-комнатной квартире
Организация студийного пространства — наиболее оптимальное решение для малогабаритных квартир.
Квартира-студия помогает не только сэкономить метры и сантиметры жилой площади, но и сделать интерьер по-настоящему современным и стильным.
Шкаф кухонный с барной стойкой
На фото: Интерьер кухни с кабинетом в 1-комнатной квартире 42 кв.м
На фото: Интерьер гостиной с кабинетом в 1-комнатной квартире 42 кв. м
Выдвинутый подоконник можно использовать не только как рабочий стол, но и для организации ТВ-зоны. Он сыграет роль тумбы и послужит опорой для телевизора, напротив которого логично разместить зону дивана. Обои в вертикальную полоску делают интерьер визуально шире.
Отдельная спальня за раздвижными дверями
На фото: Интерьер гостиной и спальни в квартире 42 кв.м в стиле лофт
Для обустройства отдельной спальни в 42 кв м можно установить перегородку с раздвижными дверьми. Такая конструкция практически не занимает места, а преимущества отдельной спальной комнаты очевидны.
Кухня-гостиная с балконом в натуральных бежевых и серых тонах
На фото: Интерьер гостиной и кухни в квартире 42 кв.
м в стиле лофт
Создают натуральные оттенки морской гальки и песка. теплая атмосфера в совмещенном пространстве кухни-гостиной-столовой.Графические черно-белые панно и аксессуары добавляют интерьеру особого шарма. Кирпичная кладка в стиле лофт и современная люстра делают атмосферу демократичной, что понравилось молодой паре.
Идея ремонта квартиры 42 кв.м: кухня-гостиная и отдельная спальня
На фото: Интерьер кухни-гостиной в квартире 42 кв.м в стиле минимализм
Другой пример того, как можно сделать полноценную «двушку» из однокомнатной квартиры.Убрав перегородку между гостиной и кухней, получилось пространство студии с обеденной зоной. Отдельная спальня расположена за перегородкой с раздвижными дверьми.
Однокомнатная квартира с барной стойкой 41 кв.м
На фото: Интерьер комнаты в квартире 41 кв.м в современном стиле
Барная стойка может стать универсальным предметом интерьера не только в дизайне кухонь и столовых, а также в гостиной, которая одновременно выполняет роль спальни.
Такая барная стойка особенно удобна при приеме гостей; вы также можете сесть за ним с ноутбуком и использовать его как письменный стол.
Как еще разделить интерьер однокомнатной квартиры 40 кв.м на две зоны, вы можете прочитать в отдельной статье в блоге Группы компаний «Фундамент».
Специалисты Группы компаний «Фундамент» разрабатывают и реализуют подобные проекты более 10 лет. За это время мы накопили богатый опыт и практические навыки, которыми щедро делимся с нашими клиентами.
Текст: Наталья Савушкина
Из этой статьи вы узнаете, что дизайн однокомнатной квартиры 40 кв м может быть очень комфортным, свободным и достойным восхищения, если подойти к нему правильно. Декорин представляет вам более 15 проектов и вариантов дизайна квартир от 40 кв.м, сочетающих комфорт, стиль и продуманную планировку! В этой статье мы поговорим о современных тенденциях в дизайне интерьеров в 2019 году.
40 кв. М. — это средняя площадь однокомнатных квартир в большинстве современных многоэтажных домов.
В отличие от хрущевок, которые имеют площадь 28-32 кв. М, эти «однушки» предлагают больше разнообразия в планировке и дизайне пространства, и даже открывают возможность обустроить 2 отдельные комнаты — спальню и гостиную или общую. комната и детская. Выберите свой вариант дизайна.
1. Красивый дизайн однокомнатной квартиры 40 кв.м — фото и план дома
Хозяйка этой квартиры пожелала, чтобы дизайн ее квартиры был чистым, простым, элегантным и вневременным. Как вы думаете: удалось ли дизайнеру этого добиться?
Чтобы интерьер выглядел просторнее, все отдельные части этой квартиры были напрямую соединены между собой.Кухня совмещена с гостиной, в ванную комнату ведет прозрачная дверь, а спальня отгорожена от гостиной полуоткрытой перегородкой в виде вертикальных жалюзи. И теперь вместо нескольких маленьких комнат получилась одна, но очень свободная и стильная комната!
Среди других важных элементов дизайна этой квартиры площадью 40 кв. М стоит отметить светлую цветовую палитру и отсутствие массивных подвесных светильников, «крадущих» воздух из интерьера.
Обратите внимание, встроенные точечные светильники по периметру потолка гостиной как бы отделяют эту зону от остальной части квартиры.
2. Украинский дизайн квартиры 40 кв м — фото и 3D проект
Следующая стильная квартира площадью 40 кв.м находится во Львове и была разработана дизайнерами Романом Вербищуком, Юлианной Верба и Любовью Лазорив. Как видно на фото, кухня здесь намного больше и удобнее, чем в предыдущем варианте.А диван и кровать, несмотря на то, что они почти встык, разделены прозрачной стеклянной перегородкой.
В результате дизайн квартиры выглядит открытым и воздушным, а стильная плитка на кухне и в ванной комнате привносит в него интересную изюминку.
3. Дизайн двухкомнатной квартиры площадью 40 кв.м — фото и план
Если в предыдущем варианте дизайна однокомнатной квартиры 40 кв м выбор был сделан в пользу большой кухни и ванной комнаты, то здесь — в пользу просторной спальни.
Однако, как видите, между холлом и спальней здесь также установили стеклянную перегородку, чтобы дом выглядел просторным и светлым. В оформлении использованы натуральные материалы, контрастирующие с яркими цветами интерьера. И, кстати, немаловажную роль в дизайне этой квартиры сыграла и модная геометрическая плитка!
Также читайте:
Еще раз просим обратить внимание на отсутствие габаритных светильников, а также на открытые полки и кровать на платформе со встроенными ящиками.Умная экономия места в действии!
4. Комфорт и шик в квартире 45 кв.м
По дизайну этой двухкомнатной квартиры нельзя сказать, что в ней всего 45 кв.м! Открытые стеллажи, встроенные в стены и за диваном, позволяют грамотно использовать каждый квадратный сантиметр пространства и даже создать иллюзию лишней высоты.
Обеденная зона совмещена с гостиной, спальня расположена в отдельном помещении, но небольшую кухню можно закрыть подвижной перегородкой, что очень удобно, когда нет времени и сил на то, чтобы привести ее в порядок.
Этот дизайн однокомнатной квартиры вошел в наш список лучших проектов во многом благодаря тому, что он установлен здесь. Именно этот предмет мебели в сочетании с лаконичным скандинавским стилем делает этот дом просторным, стильным и очень уютным. И, конечно же, еще больше шарма и свободы придает окно в стене между кухней и гостиной.
6. Современный дизайн однокомнатной квартиры 40 кв.м
Далее в нашем списке яркий и сочный дизайн для квартиры площадью 40 кв.м в городе София, столице Болгарии.Идея этого жилища была навеяна конструктором LEGO, поэтому некоторые детали интерьера — тумба под телевизор, полки, кухня и даже картины на стене — выглядят как интересная головоломка. Несмотря на яркие акценты, большая часть интерьера по-прежнему выполнена в белом цвете, а нейтральный дизайн спальни идеально подходит для отдыха и релаксации. Попав в такой интерьер, вы зарядитесь положительными эмоциями и подниметесь в хорошем настроении.
7. Дизайн однокомнатной квартиры 45 кв.м — фото и планировка проекта
Потрясающе стильная квартира площадью 45 кв. М. Расположена в Москве и спроектирована дизайн-студией INT2.Как и положено студии, она состоит всего из одной комнаты, в которой есть отдельные зоны — гостиная, спальня, кухня и ванная комната. Некоторые из них разделены небольшими участками стен, другие — шторами. Квартира выполнена в прекрасном сочетании пастельных тонов, а также скандинавского и современного стилей.
8. Необычная планировка и дизайн 1 комнатной квартиры 40 кв.м
Эта небольшая однокомнатная квартира выделяется не только необычной планировкой, но и красивым сочетанием японского и.Светлые оттенки дерева и нейтральная цветовая палитра здесь подчеркнуты синими и желтыми деталями, в том числе подушками, мягкими сиденьями и обшивкой стен в спальной зоне. Как вам идея?
9. Дизайн однокомнатной квартиры 40 кв.
м для мамы и дочкиЭтот дизайн однокомнатной квартиры был разработан польской фирмой Pressenter Design специально для мамы с 6-летней дочерью. Дизайн жилища разработан с учетом растущих потребностей ребенка, для чего здесь оборудована просторная рабочая зона с навесными шкафчиками для книг и другой утвари.Низкая тумба под телевизор и журнальный столик такой же высоты в сочетании с общим минимализмом дизайна делают эту квартиру очень светлой и свежей, а темное дерево на фоне гладких белых поверхностей создает просто шикарный эффект. Считаем, что, возможно, такой дизайн однокомнатной квартиры подойдет семейной паре.
Также читайте:
10. Дизайн двухкомнатной квартиры 40 кв.м: отделка гостиной и детской
Наверное, многих читателей этой статьи волнует вопрос: как обустроить отдельную детскую комнату в дизайне двухкомнатной квартиры 40 кв м? В качестве ответа предлагаем вам фото двух квартир, где гостиная одновременно является спальней родителей, а в отдельной детской легко могут разместиться 2 ребенка.Чтоб некоторые не говорили, что живя на 40 кв м, второго ребенка себе не по карману)))
В первых из этих апартаментов есть очень элегантная гостиная, совмещенная с уютной кухней, и светлая детская комната с двухъярусной кроватью в морском стиле, который так нравится многим детям.
Второй дизайн двухкомнатной квартиры 40 кв м выполнен в стиле минимализм и отличается многофункциональной мебелью, несмотря на то, что в детской комнате две раздельные односпальные кровати.
11. Современный дизайн квартиры 40 кв.м с элементами роскоши
Удивительно, но эта двухкомнатная квартира с шикарной спальней занимает всего 37,5 квадратных метров! Небольшая прихожая с бархатной скамейкой в нише переходит в довольно просторную кухню, а основная комната разделена перегородкой на гостиную с рабочей зоной и очень красивую спальню. Как и в большинстве малогабаритных квартир, за основу был взят белый цвет и разбавлен яркими акцентами желтого (стена в коридоре, на кухне, стулья в гостиной) и бирюзового (спальня) тонов.В целом небольшая квартира в Санкт-Петербурге выглядит модно и очень уютно. Представленный на фото дизайн двухкомнатной квартиры — пример максимально выгодного использования пространства!
12. Стильный дизайн однокомнатной квартиры 40 кв.м с идеальной планировкой
Следующие две квартиры в нашем списке имеют очень похожую планировку, в которой только ванная комната находится в отдельной комнате, а коридор, кухня, гостиная и спальня объединены в одно целое.Для удобства спальню от гостиной можно отделить стеклянной перегородкой с занавесками или (как во втором варианте) гибкой рулонной перегородкой. За счет отсутствия стен и дверей (кроме ванной комнаты) достигается общая легкость и одухотворенность интерьера. Стильный дизайн однокомнатной квартиры станет вашей визитной карточкой при встрече гостей.
Как видите, в первом случае для украшения интерьера и отделения кухни от коридора используется интересная декоративная перегородка с рисунком от пола до потолка.В отличие от цельной стены, она сохраняет единство пространства, привнося в него немного творчества, но не более того. Во втором варианте при оформлении дизайна квартиры-студии дизайнеры решили вообще не разграничивать эти зоны.
Интересно, какой вариант дизайна однокомнатной квартиры 40 кв м из этих двух вам больше нравится? Делитесь своим мнением в комментариях!
13. Роскошный дизайн квартиры 35 кв.м.
Пока мы плавно приближаемся к концу этой статьи, уже очевидно, что прозрачные стеклянные перегородки между холлом и спальней — ключевой момент в создании свободного и комфортного дизайна квартир до 40 кв.Эта роскошная квартира площадью 35 квадратных метров не исключение. Особенностью его является смелый дизайн и цветовая гамма — вместо светлых тонов и минимализма здесь мы видим яркие фиолетовые и бирюзовые акценты на стильном сером фоне, а также массивные светильники (в нужном месте!), Камин и камин. полностью потрясающая мраморная ванная комната.
Кто осмелится сказать, что это крохотное жилище не роскошно?
Также читайте:
14.Современный дизайн квартиры 40 кв. в стиле китайского минимализма
С одной стороны, такой дизайн однокомнатной квартиры площадью 40 кв.м включает в себя только простые элементы декора, но вместе они создают очень красивую и веселую атмосферу дома.
Минималистичная мебель строгих прямоугольных форм очень элегантно и свежо смотрится на фоне ярко-зеленых, розовых и лиловых акцентов. В спальне, отделенной романтической полупрозрачной перегородкой, есть большой шкаф, а в ванной, куда ведет дверь из кухни-гостиной, — узкая душевая кабина, благодаря которой можно было разместить стиральную машину.
15. Дизайн однокомнатной квартиры 40 кв.м в молодежно-креативном стиле
Завершаем сегодняшний пост очень милой, молодой и уютной однокомнатной квартирой в городе Арад, Румыния. Помимо приятной цветовой гаммы, в которой светлые нейтральные тона сочетаются с деталями практически всех цветов радуги, вас могут приятно удивить полка-перегородка в гостиной, велосипед в ванной, кровать-платформа и навесной шкаф-столик. Все в этой потрясающей квартире дышит любовью к жизни и окружающему миру! Возможно, дизайн однокомнатной квартиры в молодежном стиле понравится людям старшего возраста.
Мы очень постарались собрать здесь самые разные дизайны квартир для людей с разными вкусами и потребностями. Поэтому будем очень рады услышать ваше мнение. Поделитесь с нами и нашими читателями: какой вариант дизайна однокомнатной квартиры 40 кв м вам нравится больше других? Что для вас важнее: большая кухня или просторная спальня? Комфорт или практичный минимализм? Прозрачные перегородки или массивные стены?
Еще больше идей по дизайну малогабаритных квартир Вы можете почерпнуть из наших статей:
Дизайн однокомнатной квартиры 40 кв м — лучшие фото и проекты на 2019 год обновлено: 23 января 2019 года автор: Маргарита Глушко
Однокомнатная квартира 40 кв.м должен быть максимально функциональным. Такие габариты комнаты позволяют применять самые разные дизайнерские решения для зонирования и декора комнаты.
Макет
При правильной планировке квартиры 40 кв.м можно создать интересный и функциональный дизайн. Обычно в таких квартирах есть отдельные санузел и кухня, но иногда кухня объединяется с жилым пространством квартиры.
Интерьер квартиры 40 кв.м, если кухня в отдельной комнате. Тогда в гостиной вам придется объединить всего две зоны: спальню и гостиную. Вы также можете создать рабочую область.
Для квартир, в которых кухня и жилая площадь находятся в одной комнате, правильное зонирование пространства является острой необходимостью.
При разделении пространства необходимо соблюдать определенные пропорции.Лучше всего смотрится комната, разделенная в соотношении 1: 1 или 1: 2. В этом случае большая его часть должна находиться сбоку от окна.
Также необходимо учитывать планировку квартиры и количество проживающих в ней членов семьи. Эти факторы сильно влияют на возможности перепланировки и количество функциональных зон.
Способы зонирования
Есть несколько способов зонировать пространство. Самый простой из них — использование перегородок из различных материалов.Это может быть гипсокартон, фанера, ДВП или дерево. Также можно сделать перегородки из текстиля или создать функциональные ниши из гипсокартона. Такие «временные» перегородки позволяют не проводить полную перепланировку квартиры, а также изменять пропорции жилища.
Выбор материалов и размеров перегородки определяется ее функцией. Если вы хотите использовать физическое разделение комнаты, то для создания перегородки необходимо использовать гипсокартон с утеплителем из стекловаты, а дверной проем перекрыть раздвижной дверью.Если перегородка декоративная, то выбор материалов расширяется и зависит от дизайна квартиры.
Также можно зонировать пространство высокой мебелью: шкафами или стенками. У этого приема есть огромный плюс по сравнению с предыдущим — здесь сохраняется больше полезной площади и повышается функциональность предметов мебели.
Для расширения доступной площади и получения метража под рабочее место можно совместить квартиру с лоджией, но для этого необходимо получить разрешение на перепланировку жилища.
В однокомнатной квартире можно установить барную стойку, которая будет отделять зону кухни от зоны гостиной. В жилище такого формата зоны выделяются более «символично», с помощью цветовых решений.
Проект
При выборе дизайна для квартиры 40 кв м следует руководствоваться пониманием того, что в этом пространстве нужно разместить много предметов мебели, поэтому обильный декор может «засорять» квартиру и делать ее намного меньше как визуально, так и физически. .
Для небольших помещений лучше использовать минималистский или скандинавский стиль. Преобладание светлых, естественных цветов и минимум мебели поможет расширить окружающее пространство.
Чистовая
Ремонт квартиры 40 кв.м и ее первичная отделка имеет множество нюансов, которые необходимо соблюдать для хорошего конечного результата.
Для создания минималистичного интерьера характерно классическое сочетание белого и черного цветов, дополненное контрастными красными, коричневыми, синими или зелеными цветами.В интерьер отлично впишутся однотонные светлые обои без рисунков, светлый ламинат и легкие шторы. Также можно использовать водоэмульсионные краски для стен и потолка.
Если выбор пал на скандинавский стиль, то выбор цветов станет шире. В этом стиле также в почете белый цвет, но более приемлемы его естественные оттенки — молочный, ванильный, ледяной. Также приветствуются «натуральные» цвета — коричневый, песочный, зеленый, синий, желтый.
Также используется ламинат и паркет, а использование обоев для отделки стен считается неприемлемым, в этом случае необходимо использовать краски.
Если квартира-студия рассчитана на одного человека, то интерьер в стиле лофт будет смотреться эффектно. Необработанные стены, светлый ламинат и отсутствие штор и жалюзи сделают эту комнату еще более стильной.
Мебель
Людям, проекты квартир которых очень ограничены по площади, нужен каждый свободный сантиметр пространства. Здесь на помощь придет мебель-трансформер. Диван-кровать или кресло-кровать позволяют эффективно сэкономить место и заменить сразу 2 предмета мебели.
В быту очень популярны и удобны кровати со встроенными ящиками для постельного белья и одежды, а также книжные столики. Главное при выборе такой мебели — внимательно изучить крепления и прочность конструкции, ведь от этих факторов зависит как долговечность мебели, так и безопасность людей при ее использовании.
Многоярусная мебель также приобрела значительную популярность. В продаже есть конструкции, в которых на первом «этаже» находится компьютерный стол с полками и шкафом, а на втором — спальное место.Вариантов таких конструкций очень много, и подобные предметы мебели могут быть изготовлены на заказ по индивидуальному проекту.
Что касается складских помещений, то они должны иметь закрытые полки, чтобы визуально не перегружать пространство. В подобный интерьер лучше всего подходят гардеробы, не требующие места для открывания дверей.
Освещение
Для малогабаритных квартир остро стоит вопрос освещения. Темное жилище часто выглядит неуютно и кажется даже меньше, чем оно есть на самом деле.В квартире 40 кв. М, необходимо по максимуму использовать естественное освещение, для этого в интерьере следует использовать светлые шторы светлых тонов, можно и вовсе без них.
Для искусственного освещения хорошо подходят яркие точечные светильники, расположенные в разных частях потолка и равномерно освещающие все рабочие зоны квартиры. Для кухни отлично подойдет светодиодное освещение, расположенное на полках и барной стойке.
Декор
Горячее увлечение украшением маленькой квартиры несомненно приведет к перегрузке обстановки и визуальному уменьшению пространства.
Для небольших квартир требуется минимум декора. Лучше всего сочетать красоту и функциональность в окружающих предметах.
Используйте напольный коврик, принт на подушке или одеяло на диване в качестве элемента декора. Украсьте стол букетом цветов в лаконичной вазе или повесьте нарядную домработницу.
Для того, чтобы правильно оформить комнату, лучше хорошо изучить дизайнерские фото квартир 40 кв.м и получите идеи для использования в вашем доме.
Фото квартиры 40 кв.
Продуманная планировка однокомнатной квартиры 40 кв. Способна сделать жилое пространство максимально функциональным и комфортным. В отличие от скромных хрущевок, такие однушки подлежат переоборудованию, что позволяет создать хорошие жилые зоны и даже сделать из одной две комнаты (например, гостиную и детскую или спальню и небольшой кабинет).В этом обзоре мы хотим рассказать о том, какой может быть планировка одной квартиры соответствующей площади. Читайте дальше — идеальная планировка однокомнатной квартиры 45 кв., 43 или 40 кв.
Задачи реализации планировки однокомнатной квартиры площадью 40 кв.
Когда речь идет о небольшой однокомнатной квартире, особенно остро стоит вопрос разработки ее дизайна. Почему? Ведь его создание — это не пустой звук или дань моде, а залог вашей комфортной жизни в будущем.Приятная, продуманная до мелочей планировка однокомнатной квартиры 40 кв. Сделает жилище уютным и просторным и, наоборот, хаотичный дизайн не даст возможности использовать имеющееся пространство с пользой, а значит что места будет катастрофически не хватать.
Хорошие дизайнеры интерьеров знают множество способов скрыть недостатки и раздвинуть границы, даже если это чисто визуально. Благодаря профессиональной планировке однокомнатной квартиры 40 кв. Так как продуманная планировка 1-комнатной квартиры 40 кв.м. способствует правильному зонированию пространства, предполагает использование эргономичной мебели и максимальное использование ниш, все будет на своих местах, при этом свободного места будет достаточно для комфортной жизни.
Основные принципы проектирования
Грамотная планировка однокомнатной квартиры 40 кв. Решает сразу много задач и проблем. Почему? Потому что 40 квадратов — это не маленькая площадь, и с ней можно «поиграть». Обычно в таких комнатах предусмотрены просторные кухни и отдельные санузлы.Что касается стиля оформления, то это может быть что угодно — от классики или минимализма до модного сегодня ретро или даже броского поп-арта.
Спальня или гостиная?
Планировки однокомнатных квартир 40 кв. Выполняются разными способами. Под какую комнату вы бы хотели выделить большую часть жилого пространства, нужно решать сразу. Если вы любите гостей и предпочитаете активный образ жизни, остановитесь в гостиной. Интересные планировки однокомнатных квартир получаются со спальными зонами — это отличный вариант для людей, предпочитающих размеренный отдых.В любом случае отведите уголок под стол. Планировка 1-комнатной квартиры 40 кв.м. Часто предполагает наличие офиса — если вы сможете отвести под него хотя бы пять квадратов, то у вас будет то, что вам нужно.
Такие разные кухни
Выполняя планировки однокомнатных квартир 40 кв., Особое внимание дизайнеры уделяют обустройству кухонного пространства. Кухня может быть отдельной или оформлена как студия — совмещена с гостиной или спальной зоной. Если у вас часто бывают гости и с ночевкой, сделайте кухню-студию с диваном, а комнату оформьте в виде спальни.
Особенности планировки однокомнатной квартиры для семьи, или Две комнаты вместо одной
Идеальная планировка однокомнатной квартиры для семьи предполагает наличие двух комнат — например, детской и спальни для взрослых. В исполнении он не самый удобный, но позволяет обеспечить каждому домовладению свой «уголок».
Планировка однокомнатной квартиры для семьи в данном случае предполагает снос стен — крохотную квартиру, разделенную на маленькие комнаты, можно превратить в студию.Этот вариант подойдет семьям с одним маленьким ребенком. Еще одно решение — объединить кухню со спальней, а под детскую выделить 5–6 метров.
Планировка однокомнатной квартиры для семьи с ребенком
Планировка однокомнатной квартиры для семьи с ребенком в идеале должна предполагать наличие двух жилых зон — для родителей и для ребенка. Для этого:
- Сделана миниатюрная, но отдельная детская.
- В общей комнате есть место для младенца.
- Кухня отделена от жилого помещения, а родители и ребенок живут в одной просторной комнате.
Планировка однокомнатной квартиры для семьи с ребенком, предполагающая обустройство отдельной детской комнаты — оптимальный вариант. Даже небольшую комнату можно функционально обставить с помощью эргономичной мебели, и когда малыш вырастет, он не будет мешать родителям, и наоборот. При планировке однокомнатной квартиры для семьи с одним ребенком предполагается использование двухэтажных детских мебельных комплексов (на первом столе или игровом комплексе, на второй кровати), угловые шкафы.
Нужна хорошая планировка однокомнатной квартиры для семьи с ребенком? Посмотрите примеры готовых проектов в Интернете, чтобы почерпнуть интересные идеи, а еще лучше — обратитесь к профессиональному дизайнеру.
Планировка однокомнатной квартиры с двумя детьми
Планировка однокомнатной квартиры с двумя детьми выполняется практически так же, как планировка однокомнатной квартиры с ребенком. Разница в том, что малышей двое, а в детской зоне должно быть больше места.На помощь приходит все та же эргономичная функциональная мебель вроде комбинированных столов и гардеробы, двухъярусных кроватей. Планировка однокомнатной квартиры с двумя детьми обязательно должна осуществляться с учетом разницы в возрасте — ведь одно дело оборудовать гостиную для погодных девочек или детей с небольшой разницей, а другое — для подростка. и маленький ребенок. В этом случае родителям имеет смысл выделить подростку отдельный уголок, а малыша отвести к себе.
Проекты с фото
Планировка однокомнатной квартиры для семьи с ребенком может быть практически идеальной и позволит превратить даже очень ограниченное жилое пространство в просторную квартиру. Не знаю как? Достаточно взглянуть на планировки однокомнатных квартир на фото, чтобы почерпнуть интересные идеи. Планировка однокомнатной квартиры с ребенком, двумя детьми и для семьи без детей, одного человека, студента, женщины или взрослого мужчины может быть выполнена в любом стиле и предполагать использование различных элементов дизайна.
Что делать с ванной?
Планировка однокомнатной квартиры 40 кв. Может предполагать как достаточно просторную, так и минималистичную ванную комнату. В целом при планировке однокомнатных квартир площадью 40 кв. И санузлов в них можно руководствоваться двумя схемами:
- Первый санузел раздельный. В этом случае туалет и ванная разделены стеной и представляют собой отдельные комнаты. Плюсы отдельного санузла описывать не нужно, этот вариант предпочтителен для семей из нескольких человек.Что поделаешь при планировке санузла в однокомнатной квартире 40 кв. В данном случае это максимально эффективное использование площади санузла. Как? Используя минимум мебели, повесив на стены просторные шкафы, заменив ванну душевой кабиной (если комната небольшая и в ней стоит стиральная машина, для обычной ванны может просто не остаться места).
- Вторая схема — санузел совмещенный. При планировке стандартной однокомнатной квартиры 40 кв. Его используют чаще, потому что это экономит место.В моноблочной ванной комнате можно установить и и хорошую ванну, и необходимую мебель, и стиральную машину, поэтому многие обладатели просторных одноместных комнат отдают предпочтение именно этому варианту.
Обе планировки однокомнатных квартир по 40 кв.м одинаково функциональны. Что выбрать — решайте сами, учитывая текущие запросы и личные предпочтения.
Особенности планировки однокомнатной квартиры 41 кв.
Планировка однокомнатной квартиры 41 кв.выполнен так же, как и планировка однокомнатной квартиры 40 кв. Есть какие-то особенности? Они будут такими же, как и для всех однушек рассматриваемой территории. Чтобы планировка однокомнатной квартиры 41 кв. Была функциональной и вас устраивала на 100%, рассмотрите возможность сноса стен, выделения отдельных функциональных зон, объединения или, наоборот, разделения санузла.
Планы однокомнатных квартир 42 кв.
Планировка однокомнатной квартиры 42 кв.выполняется так же, как и планировка однокомнатной квартиры 40 кв. Выберите кабинет или маленькую детскую, спальню или гостиную сделайте главной комнатой — как вам больше нравится. Два метра — пусть и небольшой, но все же выигрыш, поэтому планировка однокомнатной квартиры в 42 кв. Дает определенный простор для творчества.
Основные варианты планировок однокомнатной квартиры 42 кв.м .:
- Студия — это отдельная зона или открытое пространство.
- Объединение спальни или гостиной с кухней и устройство отдельной небольшой комнаты (спальня, кабинет, детская или гардеробная).
- Создание небольшой отдельной кухни и полноценной гостиной.
Рассмотренные варианты планировки однокомнатной квартиры площадью 42 кв.м подходят для семейной пары, семьи с детьми и тех, кто живет самостоятельно.
Планы однокомнатных квартир 43 кв. также предоставляют определенный полет для творчества. Планировка однокомнатной квартиры 43 кв. Может предполагать создание одной или двух комнат, разделение или объединение санузла, просторной или очень скромной кухонной зоны.Главное помнить, что оптимальная планировка однокомнатной квартиры — 43 кв. Это та, которая соответствует потребностям вашей семьи.
Дизайн-планировка однокомнатной квартиры 44 кв.
Планировка однокомнатной квартиры 44 кв. Может осуществляться с сносом стен или без демонтажных работ. Каковы его основные особенности? Планировка однокомнатной квартиры 44 кв. Может предполагать создание отдельных функциональных зон или единого жилого пространства. Первый вариант удобен для семей, где каждому нужен свой уголок, а второй — для людей, живущих отдельно.
Планировка однокомнатной квартиры 45 кв.
5 дополнительных квадратов по сравнению со стандартной площадью 40 м². — ваша возможность сделать дополнительную комнату (пусть и небольшую), гардеробную или кладовую для хранения вещей. Как и планировка однокомнатной квартиры 40 кв.м, планировка площади 45 кв.м должна выполняться грамотно.
Купить дизайн
Красивая планировка однокомнатной квартиры 40 кв.м. (планирование в данном случае осуществляется с учетом пожеланий заказчика, актуальных тенденций в мире дизайна и особенностей конкретного объекта) — это правильное вложение.Экономя сегодня на комфорте, вы идете на сомнительный компромисс — да, хороший проект стоит недешево, но будет долго радовать вас.
Интересные планировки однокомнатных квартир можно найти в любом специализированном каталоге специализированного сайта или заказать их создание в индивидуальном порядке. Готовый проект должен включать чертежи с макетом, файл со списком мебели, материалов, галерею изображений конечного результата (в формате 3D). Лучшие планировки однокомнатных квартир можно просто позаимствовать в том виде, в каком они есть, или изменить по собственному желанию.Для каждой комнаты желательно подбирать отдельный дизайн — благо, идей много, да и возможностей для их воплощения тоже. Желательно покупать проект у проверенных компаний, которые готовы гарантировать техническую «жизнеспособность» каждого предложенного решения.
Хотите, чтобы планировка однокомнатной квартиры была 45 кв. Или раздельная планировка комнаты в однокомнатной квартире была идеальной? Свяжитесь со специалистами. И обязательно ознакомьтесь с лучшими планировками однокомнатных квартир — в Интернете или в специализированных изданиях.
Понравился тот или иной проект? Согласуйте возможность его реализации конкретно в вашем случае и реализуйте. Ваш комфорт в ваших руках.
Интерьер однокомнатной квартиры 30. Дизайн интерьера однокомнатной квартиры
Бондарева Алла, 34 года
Мы с мужем купили трехкомнатную квартиру 66м2, в ней требовался серьезный ремонт, поэтому мы решили обратиться в профессиональную компанию.Друзья посоветовали нам мастерскую ремонта, обратили внимание на соблюдение сроков и хорошие цены … Нашли ее сайт в Интернете, внимательно изучили и в итоге созвонились с мастерской. У нас было собственное представление о квартире после ремонта, о чем мы рассказали прорабу, а потом получили от него советы. После ремонта квартира выглядела так, как мы и хотели, рабочие оказались хорошими ребятами и сделали ремонт добросовестно. Особенно рады, что ремонт не затянулся, компания уложилась в срок и, к счастью, стоимость не увеличилась) Очень приятно, что рабочие прибрались после работы и оставили квартиру чистой.В итоге от ремонта в целом остались очень хорошие впечатления и от сотрудников Мастерской ремонта, всем советую.
Евгений Плотников, 52 года
Несколько месяцев назад делал ремонт своей двушки в компании Мастерская Ремонт, остался доволен, ремонт красивый! Заказал капремонт, очень надеялся, что принял правильное решение с компанией. Отдельное спасибо прорабу Александру за помощь в подборе материалов, теперь я немного разбираюсь в этом.Он мне сказал, на чем можно сэкономить и наоборот, где лучше потратить чуть больше денег, но ремонт будет более долговечным. Также мне не пришлось целый день ходить в хозяйственные магазины, материалы отбирались через Интернет, потом компания доставляла все сама, так что я сэкономил время и силы. Когда ремонт кухни и ванной был закончен, я понял, что работа сделана хорошо и все заботы ушли. Из минусов в конце увидел ошибку, но рабочие сразу без лишних слов исправили.В итоге моя двушка выглядела великолепно, спасибо Мастерской ремонта!
Андрей Горин, 36 лет
Кузнецова Светлана, 40 лет
Благодарю компанию Ремонтная Студия за красивую квартиру … Пишу коротко, очень доволен качеством выполненных работ, а главное, ремонт удалось выполнить в срок. Квартиру планировал снимать, так что нужно было ее обновить и заказал косметический ремонт … Сам долго выбирал компанию в основном на основании отзывов, поэтому хочу отметить, что Мастерская ремонта — хороший вариант.
Алексеева Арина, 31 год
Пишу отзыв о Мастерской по ремонту через полгода после ремонта квартиры. Сделали ремонт под ключ в 2-х комнатной квартире. Когда я искал компанию, я учел самые важные для меня факторы: цену, возможность рассрочки (!), Хорошие отзывы и примеры работ. Я просмотрел много сайтов, хороших и не очень, и в итоге выбрал несколько компаний. Потом созвонился, уточнил цены, остановился в мастерской по ремонту.После составления сметы мы решили оформить рассрочку, что нам было очень удобно. В ходе ремонта решили сделать перепланировку, совмещали кухню с гостиной, давно об этом мечтали)) правда после этого стоимость ремонта выросла, результат потрясающий!
Современная квартира — это совокупность предметов интерьера, каждому из которых должно быть уделено свое место в отведенной комнате. Но это касается стандартных квартир, где комнаты изолированные.Другое дело, когда необходимо улучшить дизайн однокомнатной квартиры 30 кв.м. В совмещенном и достаточно небольшом пространстве, как и в стандартной планировке, расположены кухня, гостиная, спальня, кабинет, детская и, возможно, другие функциональные зоны. В каждом из них есть мебель, декор, убранство и прочие предметы интерьера. Которая должна располагаться в строго определенном для них месте.
Распределение площади в планировке однокомнатной квартиры 30 кв.м. сделано таким образом, чтобы зоны и предметы гармонировали друг с другом и находились там, где они нужны.Пространство сформировано так, чтобы не было нагромождения. Это обеспечит удобство использования и комфортное пребывание в каждой из функциональных зон квартиры.
Как создать гармоничный дизайн интерьера, как распределить планировку, как разделить комнаты? На все эти вопросы мы ответим в этой статье с большим количеством фото.
Дизайн квартиры-студии 30 кв.м — разработка проекта
Детальный анализ пространства, тщательная планировка с продуманной мебелью, дизайн подобран по вкусу.Они способны превратить даже небольшую квартиру в студию площадью 30 кв.м. в стильном дизайнерском интерьере … Излучает уют, удобство и обеспечивает полноценное жилище.
Планировка однокомнатной квартиры, как правило, закладывается на этапе строительства дома. А основные коммуникации прокладываются уже во время строительства. Поэтому такие комнаты, как кухня и ванная с туалетом, остаются на своих местах. Но в некоторых случаях радикальные изменения не запрещены. Например, почему бы не сделать квартиру студией из квартиры-студии площадью 30 кв.м. или около того 31; 32; 33; 34 кв.м. Это вполне возможно, если сделать согласованную перепланировку однушки. На фото ниже пример планировки студии, реализованной из обычной квартиры.
Для достоверного понимания того, что и где будет располагаться в дизайне однокомнатной квартиры, необходимо делать планировку прямо в ней. Не запрещается возводить конструкции из картона, имитирующие будущие функциональные зоны. Похожий прием — нанесение геометрического плана в натуральную величину в будущих гостиных.
Будет лучше, если такие работы будут выполняться совместно со всеми членами семьи и дизайнером. Профессиональный архитектор поможет вам с правильным решением вопросов, возникающих при совместной работе. Это единственный способ получить по окончании ремонта положительный результат, который устроит всех. Фотография дизайна квартиры-студии 30 кв.м, которую вы видите снизу, — отличный пример профессиональной работы дизайнера.
Составленный план проекта по размещению жилых помещений, расстановке мебели, электроприборов передается дизайнером в электронный проект.На его основе создается дизайн-проект и учитываются мельчайшие нюансы на основе замеров.
В такой работе обязательно стоит обратить внимание на окна. Если однокомнатная квартира площадью 30 квадратных метров с двумя окнами, при условии, что окна не загромождены деревьями и постройками, то она достаточно широкая и в ней достаточно света. Если квартира прямоугольная и с одним окном, стоит уделить больше внимания вопросу освещения, а также общему дизайну и дизайну.В этом случае для стен и мебели предпочтительнее использовать светлые оттенки, а пол может быть как темного, так и светлого цвета.
Технический план при разработке дизайн-проекта однокомнатной квартиры имеет большое значение. Без его развития начинать ремонт вообще бессмысленно. Те. план — это дорожная карта, которая отвечает за успех проекта; от этого зависит удобство и комфорт всей будущей жизни. Четкий анализ мест прокладки электропроводки, систем отопления, водопровода, канализации и т. Д.Допущенные и не исправленные ошибки на начальном этапе приведут к значительной трате денег и времени в будущем.
Зонирование квартиры-студии
Так как мы имеем дело с планировкой квартиры, в которой есть только одна большая прямоугольная площадь, то в ней совершенно необходимо выделить пространство с дальнейшим делением. Это поможет поддерживать порядок в интерьере, а также поспособствует большему комфорту. Тем более, если в нем проживает более одного человека.
- Наибольшее внимание уделяется спальне, гостиной и, конечно же, кухне.Для комнаты отдыха определяется место, в котором полноценно обеспечен полноценный сон.
- Для гостиной это центральное место, потому что оно всегда символически является центром жилого пространства.
- А кухня — она всегда находится у входа, как наиболее активная и функциональная часть.
Когда схема размещения всех необходимых площадей четко определена, необходимо подумать, как отделить одну от другой.Также важен правильный подход в этом вопросе. При выборе способов такого деления необходимо учитывать несколько моментов:
- Сколько членов семьи планируют проживать. В зависимости от этого подбираются варианты разделения перегородок, количество спальных мест, наличие дополнительных зон в виде кабинета и детской и т. Д.
- Учитывается конфигурация помещения — оно прямоугольное, квадратное или имеет Г-образную планировку и т. Д.
- Сколько окон, размер и какая у них форма в такой однокомнатной квартире?
- Высота потолка
- Дизайн интерьера однокомнатной квартиры — на каком стиле было решено остановиться. От этого зависит выбор материалов и дизайна.
Зонирование кухни в однокомнатной квартире 30 кв.м.
Методы, которые используются для разделения кухни и гостиной, включают:
- открытые границы
- частично закрытые
- возможность полностью отделить одну комнату от другой.
Открыть означает визуальные способы приложения … Например, стены в кухонной студии окрашены в другой цвет. Материал будет отличаться от обоев холла, краски, стеновых панелей и т. Д. Главное — визуально заметная разница между двумя помещениями.
То же самое применимо и к полу. Тем более, что традиционный пол в виде плитки отлично способствует этому. Студийное фото ниже хорошо это демонстрирует.
Другой способ — это работа с потолком.Если в квартире-студии планируется установка натяжных или гипсокартонных конструкций. Элемент в виде фотопечати на потолке или имитации потолочной плиты — прекрасные примеры визуальных границ. Вдобавок к этому производится правильное распределение потолочного света. Дизайн квартиры-студии 30 кв.м. чье фото ниже, хороший пример.
Частичное закрытие проема — использование в интерьере между комнатами стационарных перегородок, закрывающих часть проема наполовину или на 1/3.В этом случае ограничений по типу материалов нет. Гипсокартон, стекло и т. Д. Подбираются в зависимости от дизайнерских особенностей маленькой квартиры.
Не рекомендуется в однокомнатной квартире площадью 30 кв.м. используйте неглубокие перегородки, если это гипсокартон. Предпочтительны фигурные конструкции с отверстиями. Это поможет дополнительно украсить интерьер обеих зон. А еще они послужат полочками для сувениров. Перегородка из матового стекла сделает пространство не замкнутым, а более воздушным.Аналогом этой идеи послужат стеклоблоки.
Для квартиры-студии, где кухня и гостиная представляют собой одно пространство, идеальны раздвижные перегородки … Они сохраняют все преимущества открытого пространства и при необходимости обеспечивают уединение двух комнат. Например, когда один из членов семьи еще отдыхает, то приготовление пищи на кухне с закрытой перегородкой не будет слишком мешать. Кроме того, у такого решения есть еще одно преимущество. При таком зонировании в остальное пространство меньше проникают различные запахи, пары масел и жиров.
Где поставить кровать в студии?
Кровать, а значит и вся спальня в студии, находится в самом тихом месте. Если студия с одним окном и кухней расположена у входа, проще всего оборудовать ее у окна. Для разделения используются стационарные, раздвижные и навесные перегородки в сочетании с зонированием потолка и стен, как показано на фото.
Но есть один немаловажный нюанс. Это необходимо, чтобы в дневное время в зону гостиной и кухни попадало достаточное количество света из окна.Поэтому даже если планируется сделать неширокую перегородку, лучше, если она не пропускает свет. Следовательно, вход — это материалы, пропускающие свет. А для обеспечения уютной уединенной атмосферы во время сна стоит повесить плотные шторы, как на окнах, так и там, где проходит граница между гостиной и спальней.
Студия с высокими потолками — это отличная возможность построить второй уровень для размещения спальни.Очень часто этот прием реализуется над кухней. Также есть возможность качественно произвести зонирование кухни.
Не менее важно строительство подиума для кровати. В одном случае он может служить местом для хранения вещей. По-другому она может стать запасным спальным местом, если продумать выход кровати из нее.
Гостиная студия 30 кв.м.
Это помещение не нуждается в зонировании, так как с одной стороны оно находится в центре квартиры, между кухней и гостиной, которые уже отделены от нее.С другой стороны, только в том случае, если это не гостиная, спальня, эта комната в некоторой степени является общедоступной и поэтому не требует уединения. И, конечно же, для организации гостиной достаточно разместить диван, пару кресел и журнальный столик. Такой минимальный набор мебели считается полноценной прихожей. Иногда, как на фото, достаточно установить один большой диван.
Подбор и расстановка мебели
Для организации функциональной зоны кухни мебель для нее заказывается по индивидуальным размерам.Встроенная кухня — идеальный вариант … С ее помощью можно будет добиться высокой эргономичности пространства и удобства. При проектировании можно выбрать материал изготовления, цвет, дизайн, форму, размеры и типы шкафов и т. Д.
Если вам необходимо организовать рабочую зону в гостиной, лучше ограничиться двуспальный диван, т.к. однокомнатная квартира 30 кв.м. недостаточно большой. Можно использовать мебель-трансформер, например, настенный складной столик.А если ширина комнаты позволяет, можно установить вдоль стены встроенный шкаф, в одной из ее секций вмонтированный шкаф. А еще в него можно поставить телевизор. И обязательно станет основным местом для хранения вещей.
В спальне помимо стационарной кровати часто ставят кровать-трансформер. В собранном состоянии он выглядит как шкаф и занимает немного места вдоль стены, так как находится в вертикальном положении. Кровать раскладывается и складывается без особых усилий, так как силовую нагрузку принимают на себя специальные газлифты.
Освещение
В однокомнатной квартире с одним окном установка перегородок неизбежно приведет к частичному затемнению пространства, и чем дальше в комнату, тем она будет темнее. Особенно это чувствуется в пасмурную погоду и в сумерках. Чтобы не испытывать недостатка света, рекомендуется устанавливать освещение двух типов. Это рассеяние, оно восполнит недостаток дневного света, а интенсивный свет обеспечит квартиру светом в ночное время.
В этом случае светильники должны присутствовать в каждой зоне. Там, где расположена спальня, вполне можно ограничиться настольными лампами по обе стороны от кровати и настенными светильниками с противоположной стороны.
В дизайне гостиной должно быть потолочное освещение. Светодиодные фонари, точечные светильники, люстры и т. Д. Выбирают в зависимости от дизайна. Например, первые два варианта идеальны для минимализма и модерна. Для традиционного стиля, например, для прованса, наоборот, они исключены и предпочтительнее люстра с тканевыми абажурами.Кроме того, также не будет лишним торшер или настенные бра, установленные рядом с диваном.
В дизайне кухни необходимо хорошее освещение, ведь это одна из самых активных частей квартиры. Над обеденным столом рекомендуется повесить низкий подвесной светильник с широким плафоном. А в зоне готовки на стеновой панели или под верхними шкафами устанавливается светодиодная или точечная подсветка.
Автор статьи сайт проекта
Фото дизайна квартиры-студии 30 кв.м.
Если вы владелец небольшой квартиры, это не повод для отчаяния.Даже с площадью 30 квадратных метров вы можете сделать свой дом современным, уютным, стильным и комфортным, максимально используя отведенное пространство. Сегодня Декорин расскажет, как можно спроектировать однокомнатную квартиру 30 кв. М, расскажет о возможных вариантах перепланировки и зонирования, о различных хитростях по экономии места и наглядно покажет на фото, как это может быть. Посмотрите.
И вот, вы решили с умом подойти к дизайну однокомнатной квартиры 30 квадратов? Затем рассмотрим возможные варианты экономии места:
- выдвижные столы на кухне и выдвижные кровати в спальне, которые при необходимости можно спрятать;
- вариант с двухъярусной кроватью станет незаменим, если в вашей семье есть дети;
- встроенный шкаф;
- купе станет отличным решением для хранения вещей (особенно если в квартире есть ниша) и сэкономит место.Если его двери оснащены большим зеркалом или имеют глянцевую поверхность, то это поможет зрительно расширить комнату;
- вариант с использованием широких подоконников в качестве рабочего места будет одновременно выполнять две полезные функции:
- экономить место;
- сэкономит электроэнергию, так как дневной свет дольше будет освещать поверхность;
- отличной идеей будет вариант организации рабочего пространства, когда его можно скрыть от посторонних глаз, просто закрыв дверь и создав иллюзию встроенного шкафа или сдвинув занавеску;
- большое окно в пол зрительно увеличит пространство и поможет украсить вашу комнату.
Ниже на фото хорошо видно, как это выглядит в дизайне однокомнатной квартиры 30 кв.м.
Читайте также: Дизайн малогабаритной квартиры в хрущевке: 28 фото лучших
Дизайн однокомнатной квартиры 30 кв.м. фото варианты перепланировки и зонирования помещенияРедевелопмент всегда связан с решением ряда вопросов и проблем с соответствующими услугами. Но часто оно того стоит, особенно если улучшает условия для комфортного проживания… Первое, что можно сделать — это переоборудовать однокомнатную квартиру в квартиру-студию. Это зрительно увеличит комнату и даст старт полету фантазии, так как у вас появляется больше возможных вариантов зонирования пространства. В качестве перегородки можно использовать шторы, стекло, дерево, гипсокартон, кирпич и другие перегородки различных форм и размеров.
Так же этот вид перепланировки поможет вам увеличить размеры маленькой кухоньки. Учтите, что в этом случае должна быть правильная организация пространства:
- приветствуется наличие дополнительных полочек не только над рабочей поверхностью, но и над мойкой и вытяжкой; Ящики и шкафы
- должны быть максимально просторными и удобными.
Читайте также: Идеи дизайна однокомнатной квартиры-студии + 25 фото
Второй совмещенный. Предлагаем вам просмотреть больше фото с вариантами дизайна однокомнатной квартиры 30 кв.м.
Дизайн однокомнатной квартиры 30 кв. М — как создать комфорт на небольшой площади + 42 фото обновлено: 28 января 2019 г. Автор: Светлана Меженская
10744 0 0
Даже компактная квартира — это пространство для воплощения самых смелых идей и современный дизайн, который сделает ее стильной и уютной.Используя предложенные мною идеи, можно организовать дизайн квартиры 30 кв м на русском языке, то есть так, чтобы там комфортно расположились все нужные вам зоны.
Организуем пространство
Основная хитрость визуального увеличения площади компактной 1-комнатной квартиры — это перепланировка. Прихожую можно объединить с кухней или прихожей (или с обеими комнатами, чтобы получилась студия), а затем просто удобно зонировать комнату.
Комбинация с кухней
Дизайн однокомнатной квартиры 30 кв м с совмещенной кухней и гостиной / спальней — отличное решение, например, для семей с детьми и тех, кто любит пообщаться с большой компанией.И вообще, как мне кажется, это решение идеально подходит для небольшого однокомнатного жилища, поэтому также пользуется популярностью.
Ведь так кухня не будет разделена, и люди в этой комнате будут видеть и слышать все, что происходит в гостиной. У вас будет время понаблюдать за детьми и пообщаться с семьей и друзьями, даже пока готовите закуски или чай.
Столик — в зоне обеденной зоны телевизор и спальная кровать разделены перегородкой
Спальное отделение
Грамотно реализовав дизайн однокомнатной квартиры 30 кв м, можно создать отдельную спальную зону, гардеробы, ширмы и т. Д.поможет вам в этом. Я понимаю, что хочу сделать спальную зону максимально уединенной, поэтому предлагаю несколько классных решений для квартир площадью от 30 квадратных метров.
Экономим пространство
В однокомнатных квартирах вопрос экономии места стоит особенно остро, но дизайнеры и жители придумывают все больше идей, которые позволят грамотно организовать жизнь. Русскому человеку сложно без этого обойтись, украсив интерьер однокомнатной квартиры 30 кв.М.
Лично я видел немного вариантов реализации такой идеи — максимум встроенная техника на кухне, гардеробы в гостиной или коридоре.
Но я знаю много умных идей по экономии места, и поделюсь с вами, дорогие читатели, самыми интересными из них:
- Подиум … Сделав немного выше любую часть комнаты, можно создать подиум, в который гармонично интегрируются ящики и даже кровать или диван.Это позволит не только сэкономить место, но и использовать выдвижную мебель только на определенное количество времени.
- Балкон — как дополнительная площадь … Убрав все лишнее с балкона и качественно его утеплив, можно получить дополнительные метры или даже комнату. На балконе можно организовать домашний кабинет, поставить обеденный стол и даже диванчик с телевизором.
- Подоконники … В разных комнатах подоконники можно использовать как и даже как столы, а при грамотном подходе можно организовать еще и несколько встроенных полок.
- Системы хранения, полки и шкафы в прихожей … Дизайн студии 30 кв м подразумевает небольшую прихожую, в которой, тем не менее, вам нужно будет разместить одежду, обувь и другие вещи. На помощь приходят системы хранения. Рекомендую поискать симпатичные варианты, которые впишутся в стиль интерьера. Хотя недорогие способы, как на фото ниже, очень удобны.
Благодаря выдвижным полкам такая обувница не займет много места
- Перегородки с полками … В однокомнатных квартирах для зонирования, перегородки-шкафы-купе с открытыми полками … Такое решение не только идеально сочетается с большинством современных стилей, но и экономит много места, ведь на этих полках можно хранить дорогие вам вещи. сердце.
Перегородки могут быть меньше, как на фото. Причем хранить вещи можно как внутри, так и сверху, а также использовать их как рабочий стол.
Используя подоконники и перегородки в качестве рабочего стола, а также организуя балкон как рабочее пространство, не забывайте, что возле этих зон нужно разместить 1-2 розетки для оборудования.
выводы
Инструкция по созданию дизайна квартиры 30 кв.м очень проста — в ней должно быть комфортно. Учитывая, что комната однокомнатная, придется потрудиться, чтобы обустроить все необходимые зоны, а также потребуется соблюдение правил экономии места, чтобы комната оставалась комфортной и по возможности просторной.
Расскажите в комментариях, как вы оформляете интерьер на русском языке и какие хитрости используете? И еще несколько интересных идей предлагаю вам почерпнуть из видео в этой статье.
7 июня 2016 г.Если вы хотите выразить благодарность, добавить пояснение или возражение, спросите что-то у автора — добавьте комментарий или скажите спасибо!
Дизайн однокомнатной квартиры 30 кв.м требует особого подхода. Ведь на небольшой площади следует разместить необходимые элементы. Однако именно такой интерьер может стать намного креативнее и комфортнее, ведь с небольшим пространством гораздо проще экспериментировать.
Увеличение площади
Все собственники стремятся создать в своей квартире просторную и комфортную среду.Однако далеко не всем удается выполнить эту задачу. Ведь конструкция малогабаритных 30 кв м просто не способна вместить все необходимые предметы интерьера. Как быть в этом случае?
Несколько интересных хитростей позволят зрительно увеличить пространство. В результате дизайн однокомнатной квартиры 30 кв.м создаст ощущение простора.
- На небольших площадях нельзя использовать негабаритную мебель. Лучше отдать предпочтение компактным функциональным предметам интерьера.Прекрасно подойдут встроенные в стену или нишу шкафы-купе, диваны-трансформеры, каркасная мебель. Системы хранения можно планировать и развертывать где угодно. Даже из маленьких ниш получаются отличные гардеробы.
- Зрительно расширить пространство за счет яркого освещения, отделка помещения, выполненная в светлых тонах. Желательно исключить контрастные линии и акценты. Для отделки рекомендуется выбирать максимально светлый оттенок (серый, белый, бежевый). Для разграничения зон используются еще два цвета. Они подбираются на тон темнее.Однако переходы между оттенками не должны быть резкими.
- Если в квартире будет жить 3 человека, то одних только визуальных приемов недостаточно. В этом случае рекомендуется прибегнуть к перепланировке, чтобы создать прекрасный дизайн для однокомнатной квартиры 30 кв. Фото ниже позволяет рассмотреть один из вариантов. Площадь помещения можно расширить за счет коридора, кухни, балкона.
Подбор стиля
Хозяину небольшой квартиры нужно подумать об этом заранее.При этом важно учитывать, что не каждый стиль можно использовать при оформлении однокомнатной квартиры (30 кв. М). Следует отдавать предпочтение тем направлениям, которые подразумевают наличие небольшого количества мебели, декора, ведь комната не должна казаться «загроможденной».
Чаще всего для оформления малогабаритной квартиры используют стили:
- минимализм;
- высокие технологии;
- современный.
При этом выбираются наиболее функциональные предметы интерьера.Например, спальное место можно прекрасно сочетать со шкафом или оборудовать кровать специальными ящиками.
Ремонт квартиры
Чаще всего это единственный метод, позволяющий сделать функциональный дизайн однокомнатной квартиры 30 кв. Хрущевка, а чаще всего именно такие квартиры отличаются небольшой площадью, имеет очень неудобную планировку. Крошечная кухня совершенно не позволяет разместить на ней какую-либо мебель. Поэтому перепланировку чаще всего проводят именно в хрущевских постройках.
Дизайн (30 кв. М.) Выбор многих молодых людей или семей без детей. Ведь в результате перепланировки появляется одно большое пространство. На нем прекрасно можно обустроить зону спальни.
Однако при таком подходе необходимо получить много разрешительных документов в госорганах … И еще нужно будет предоставить проект перепланировки. Поэтому, несмотря на, казалось бы, идеальное решение, к его реализации прибегают немногие.
Способы зонирования
Если все же решите сделать перепланировку, то получите прекрасную однокомнатную квартиру.Интересно, что более просторные квартиры девелоперы предлагают нечасто. Студии, даже 30 кв. М — это роскошь. Поэтому вы можете считать себя обладательницей просторного помещения.
Рассмотрим, как спроектировать однокомнатную квартиру 30 кв. На фото в статье демонстрируются отличные приемы зонирования, способные разделить участки разного функционального назначения.
Следующие методы используются для разграничения пробелов.
- Перегородки. Это самый простой способ разделить посылки.Мебель может быть отличной перегородкой. Экран — хороший вариант. Часто используют гипсокартон. Он позволяет создавать стильные и очень красивые перегородки.
- Подиум. Это один из хороших вариантов … Разные уровни всегда выглядят достаточно интересно. К тому же, если с помощью подиума выделить спальное место, то можно обойтись даже без кровати: одного матраса будет достаточно. При этом несколько
- Цветовое зонирование. Не забывай об этом. Например, для зоны гостиной можно использовать более холодную палитру, которая подстроится под рабочее настроение.А спальня оформлена в теплых тонах, что позволяет расслабиться и хорошо выспаться.
Комната-спальня
Если идея перепланировки полностью отвергнута, то нужно застраивать то помещение, которое у вас есть.
Хороший вариант — обустроить спальню из единственной комнаты. В этом случае прием гостей осуществляется на кухне, если, конечно, площадь последней позволяет это. Достаточно поставить небольшую зону отдыха, и кухонное пространство сразу превратится в уютную зону для гостей.
Интерьер спальни оформлен в традиционном стиле. Однако следует помнить о важных деталях. В обязательном порядке предусмотреть наличие рабочего стола, ведь иногда нужно что-то написать. К тому же это будет отличное место для ноутбука.
Обязательно включите что-нибудь помимо обычных шкафов.
Гостиная
Это самый распространенный вариант. Такой дизайн однокомнатной квартиры 30 кв.м смело можно причислить к классике.
Единственная комната — гостиная. При этом она также играет роль спальни. Для реализации такой идеи следует использовать раскладной диван … Конечно, довольно неудобно, что такую конструкцию придется каждый день разбирать и собирать. Но только в сложенном виде помещение будет максимально привлекательным.
Кроме того, именно так он подчеркивает наличие гостевой зоны в номере.
Независимо от того, какой вариант вы выберете, помните, что в вашей квартире должно быть уютно.От этих критериев и отталкивайтесь. Иногда даже очень простые, со вкусом оформленные апартаменты выглядят престижно, модно и стильно.
Дизайн квартиры 37 м2. Ремонт однокомнатной квартиры пошагово. Дизайн-проект однокомнатной квартиры
Бондарева Алла, 34 года
Приобрели с мужем трехкомнатную квартиру 66м2, требовал серьезного ремонта, поэтому мы решили обратиться в профессиональную компанию. Друзья посоветовали нам посетить мастерскую ремонта, обратили внимание на выполнение сроков и хорошие цены… Мы нашли ее сайт в Интернете, внимательно его изучили и в итоге созвонились со студией. У нас было собственное представление о квартире после ремонта, о чем мы рассказали прорабу, а потом получили от него советы. После ремонта квартира выглядела так, как мы хотели, рабочие оказались хорошими ребятами и сделали ремонт добросовестно. Особенно рады, что ремонт не затянулся, компания уложилась в срок и, к счастью, стоимость не увеличилась) Очень приятно, что рабочие прибрались после работы и оставили квартиру чистой.В итоге от ремонта в целом остались очень хорошие впечатления и от сотрудников Мастерской ремонта, всем советую.
Евгений Плотников, 52 года
Несколько месяцев назад делал ремонт своей двушки в компании Мастерская Ремонт, остался доволен, ремонт красивый! Заказал капремонт, очень надеялся, что принял правильное решение с компанией. Отдельное спасибо прорабу Александру за помощь в подборе материалов, теперь я немного разбираюсь в этом.Он подсказал, на чем можно сэкономить и наоборот, где лучше потратить чуть больше денег, но ремонт будет более долговечным. Еще мне не пришлось ходить по строительным магазинам, материалы выбирались через Интернет, потом компания доставляла все сама, так что я сэкономил время и силы. Когда ремонт кухни и ванной был закончен, я понял, что работа сделана хорошо и все заботы ушли. Из минусов в конце увидел ошибку, но рабочие сразу без лишних слов исправили.В итоге моя двушка выглядела великолепно, спасибо Мастерской ремонта!
Андрей Горин, 36 лет
Кузнецова Светлана, 40 лет
Хочу поблагодарить компанию Ремонтная мастерская за красивую квартиру. Пишу кратко, очень доволен качеством работы, а главное тем, что компания смогла завершить ремонт в срок. Квартиру планировал снимать, так что нужно было обновить и заказал косметический ремонт … Сам долго выбирал компанию в основном по отзывам, поэтому хочу отметить, что Мастерская ремонта — хороший вариант.
Алексеева Арина, 31 год
Пишу отзыв о Мастерской по ремонту через полгода после ремонта квартиры. Сделали ремонт под ключ в 2-х комнатной квартире. Когда я искал компанию, я учел самые важные для меня факторы: цену, возможность рассрочки (!), Хорошие отзывы и примеры работ. Я просмотрел много сайтов, хороших и не очень, и в итоге выбрал несколько компаний. Потом созвонился, уточнил цены, остановился в мастерской по ремонту.После составления сметы мы решили оформить рассрочку, что нам было очень удобно. В ходе ремонта решили сделать перепланировку, совмещали кухню с гостиной, давно об этом мечтали)) правда после этого стоимость ремонта выросла, результат потрясающий!
На примере дизайна квартиры 37 кв.м поделимся представлениями о функциональном расположении небольшого жилого помещения.
Владельцам небольших квартир часто приходится сталкиваться с проблемой нехватки места.В своих проектах профессиональные дизайнеры используют целый арсенал инструментов для экономии места. Вы можете повторить эти приемы самостоятельно.
- В дизайне стен и потолка рекомендуется отказаться от сложных архитектурных элементов: чем меньше деталей в отделке, тем свободнее кажется атмосфера. Обои с орнаментом или рисунком давят пространство — лучше использовать однотонный холст или краску. натяжной потолок зрительно приподнимает его, так как отражает свет, а темный пол выглядит солидно и придает объем.
- Многоуровневое освещение — лучшее решение для маленькой квартиры 37 кв. Оно подчеркнет уют и глубину помещения. На небольшой площади активно используется встроенное гарнитурное освещение, переносные светильники, бра. А вот громоздкие торшеры на ножках потребуют дополнительного места.
- Отдельно стоит поговорить о текстиле для окон: с одной стороны, чем светлее ткань и чем проще дизайн штор (в том числе рулонных), тем больше света проникает в комнату.Многие отказываются от штор и тюля в пользу минимализма: окна, лишенные декора, стирают границы, и взгляд скользит дальше на улицу, и комната кажется больше. Но если такой вариант неприемлем, рекомендуется использовать шторы без рисунка, а держатель подвесить к самому потолку. Это сделает комнату выше.
- Обилие декора в маленькой квартире способно сыграть злую шутку, превратив стильный интерьер в неопрятный. Стоит отдать предпочтение закрытым полкам, оставив минимум места для любимых аксессуаров.По визуальному расширению комнаты будут работать большие картины с перспективой, зеркалами, а также темная акцентная стена, которая добавит глубины.
Планировка квартир 37 кв.
Этот метраж оптимален для небольшой однокомнатной квартиры для одного взрослого или для молодой пары без детей. Кроме того, 37 кв.м легко обустроить просторную однокомнатную квартиру. Гораздо сложнее разделить счетчики для создания двух отдельных комнат: в этом случае кухню придется объединить с гостиной, либо сопоставить с тремя крохотными комнатками.Но даже в этой ситуации обустроить комфортное жилье вполне возможно. На представленных планах-схемах вы можете ознакомиться с возможными вариантами дизайна и перепланировки.
В квартире на одного человека уместен «студийный» подход — экономия места за счет проходной комнаты и отсутствия коридора. Для большой семьи планировка со смежными помещениями и отдельными входами.
На фото современная квартира-студия, оформленная в пастельных тонах.
Если в однокомнатной квартире 37 кв. Жилая площадь совпадает с кухней по размерам, комната играет роль спальни, а на кухне может быть расположен диван для приема гостей.
На фото однокомнатная квартира с кухней и столовой, оборудованная для совместных посиделок. Изюминка интерьера — яркий фартук и гарнитуры с подсветкой.
Для спальни или детской остается не так много места, поэтому многие хозяева предпочитают не увеличивать кухню, а разделить комнату на несколько функциональных зон.
Варианты зонирования
Комфорт хочет каждый, поэтому каждая функциональная зона должна быть отдельной. Особенно это актуально в квартирах-студиях, где отсутствуют полноценные перегородки, и в квартирах евродуплекс, где кухня совмещена с комнатой.
Практичный вариант — зонирование с помощью мебели: стеллаж удачно разделяет комнату на две части, выполняя функцию хранения вещей, а барная стойка помимо перегородки выполняет роль обеденного стола.
На фото просторная студия с барной стойкой и кроватью в нише.
Во избежание глухих стен в интерьере можно использовать стеклянные или зеркальные перегородки, декоративные ширмы, а также разные уровни пола. В некоторых квартирах площадью 37 кв. Есть неуместные на первый взгляд ниши, но они также могут способствовать формированию комфортного пространства, особенно если окрашены в контрастный цвет.
На фото студия 37 кв., Визуально разделены с помощью полов разных типов.
Также можно разделить комнату занавесками, что является наиболее бюджетным вариантом.
Дизайн функциональных зон
Если подходить к использованию жилой площади со всей практичностью, то в квартире 37 кв. Можно обустроить несколько уютных и стильных комнат.
Кухня
Какой бы просторной ни казалась кухня на первый взгляд, современная жизнь требует большого количества техники в зоне готовки, а уместить все необходимое в маленькой квартире не так-то просто.Оптимальный вариант, когда дорог каждый сантиметр, — это установка кухни на заказ. Профессионалы помогут решить сразу несколько задач: устроить коммуникации, розетки, встроенную технику. Вы можете самостоятельно выбрать раскладную мебель: стол, стулья, а также высокие кухонные шкафы до потолка.
На фото небольшая, но многофункциональная квадратная кухня со столиком-подоконником, посудомоечной машиной и двойной раковиной.
Гостиная
Дизайн гостиной в квартире 37 кв.могут быть в ярких тонах или расставлять цветные акценты: благодаря нейтральному фону они не потеряются в обстановке. Сдержанные оттенки сделают комнату солиднее и респектабельнее. Главный предмет в холле — диван. Расположенный в центре комнаты, он разделит зону для отдыха и приготовления пищи, а угловая конструкция сэкономит драгоценные метры и вместит больше гостей.
Спальня
Иногда спать в той же комнате, где собираются гости или где стоит компьютер.Скрыть личную и рабочую зону можно в нишах — так они не будут бросаться в глаза. Если в квартире 37 кв. Отведено под спальню отдельную комнату, большой площадью она не отличается.
Когда цель хозяина — приподнять потолок и добиться ощущения простора, дизайнеры рекомендуют выбирать невысокую мебель и не увлекаться декором. Если в приоритете место для хранения вещей, можно использовать пространство между потолком и кроватью-подиумом, уменьшив свободное пространство и тем самым создав уютное место для отдыха.
На фото небольшая спальня с продуманной системой хранения вещей и проектором.
Ванная и туалет
Санузел в квартире 37 кв. Отличается небольшими размерами, особенно если ванная и туалет раздельные. Цвет Canon White может показаться скучным в отделке, и все же он значительно расширяет пространство, особенно если используется глянцевая плитка, отражающая свет.
Допустимы и цветные изделия в облицовке маленькой ванной: особенно оригинально смотрятся стеклянные плитки с глазурью, придающие помещению глубину.Для экономии места и придания легкости обстановке можно использовать навесную мебель в тон стенам, зеркальные поверхности, светлый декор.
На фото многофункциональная монохромная ванная комната с навесными шкафчиками, зеркалом и стиральной машиной.
Детский
В любом возрасте детям нужно уединение хотя бы на время: в младенчестве — для крепкого сна, в дошкольном возрасте — для самостоятельных игр, а в школе и подростковом возрасте — для создания и укрепления личных границ.Вы можете отделить кроватку балдахином или занавеской, а ребенку постарше желательно иметь свою зону или комнату. В квартире 37 кв. Места для детской мало, но кровать-чердак станет отличным выходом из ситуации.
Исследование
Есть возможность выделить пару метров под отдельный офис — стоит использовать. Если нет, то можно поискать варианты, устроив рабочий уголок в кладовой, на балконе, у подоконника или даже в шкафу.
Как расположить 37 квадратов?
Важную роль в дизайне интерьера играет не только отделка, но и меблировка. Главный принцип — заполнить свободное пространство, визуально осветив гарнитур. Светлые фасады для хранения, неброская фурнитура и стеклянные вставки добавляют воздуха, даже если шкафы занимают много места.
На фото раскладной диван, расположенный между двумя одинаковыми шкафами.
Еще один способ избежать визуальной перегрузки 37 кв.- создание невидимой двери, которая окрашивается в цвет стен и растворяется на их фоне. Небольшие подвесные тумбы создадут впечатление, что почти не занимают места. Такого же эффекта можно добиться с помощью мебели на тонких ножках и прозрачных стульев или столов. Экономия места и двери-купе: это идеальное решение для встроенных шкафов или гардеробы в коридоре.
На фото — воплощение легкости в интерьере кухни: глянцевые фасады, прозрачная пластиковая мебель белого цвета.
Примеры в разных стилях
Рассмотрим самые популярные фасоны на 37 кв. При выборе современного стиля для интерьера невозможно ошибиться, ведь красота и функциональность здесь идут рука об руку. В нем приветствуются светлые тона с цветовыми акцентами, в него легко вписывается бытовая техника, оригинальный декор и практичная мебель.
Классический тренд с изысканными деталями в виде лепнины, резной мебели (диваны, кресла, комоды) и дорогого текстиля никогда не устареет.В такой обстановке сложно судить о тесноте комнат: бросается в глаза только изысканность и роскошь интерьера.
Любителям уютного минимализма понравится скандинавский стиль: светлые тона и четкие линии позволяют не загромождать интерьер, но прекрасно сочетаются с мягкими подушками, теплыми коврами и натуральными материалами.
На фото небольшая современная кухня с глянцевыми фасадами, освещением и наливными полами, которые способствуют визуальному увеличению площади.
Лофт-направление играет на противоречии: квартира 37 кв.м, выдержанная в грубоватом индустриальном стиле, отличается выверенной небрежностью. Кирпич, металл и дерево прекрасно сочетаются с глянцем, однотонными стенами и стильными аксессуарами.
Ценителям провинциального уюта обязательно понравится стиль Прованс: он сочетает в себе очарование антикварной мебели, цветочных орнаментов и пастельных тонов … Особенно гармонично элементы прованса перетекают в маленькие и средние комнаты.
Галерея фотографий
Дизайнеры утверждают, что о вкусе человека говорит не площадь квартиры, а ее меблировка, поэтому мы уверены, что на 37 кв. М есть все возможности для обустройства стильного и комфортного жилья.
Однокомнатная квартира площадью 37 квадратных метров считается просторной, но в то же время не слишком большой. Осуществить дизайн интерьера на такой площади — непростая задача.Необходимо тщательно продумать каждую деталь. Все воспроизвести таким образом, чтобы сохранить ощущение простора и создать комфортные условия для проживания.
Исходя из приемлемо приемлемых внутренних параметров, при формировании интерьера квартиры возможно включение в дизайн дополнительных функциональных зон. Разбейте внутреннее пространство на несколько независимо функционирующих сайтов. Это могут быть:
- место для отдыха и встреч;
- спальный уголок;
- площадь, отведенная под детскую половину.
В малогабаритных квартирах, как правило, проектировщику сложно применить стандартный подход, как это часто бывает в обычных современных квартирах Ох. Но тем интереснее выполнение поставленной цели.
Недостаточно просто выделить для каждой зоны отдельный уголок. Как уже было сказано выше, также нужно все оформить таким образом, чтобы максимально сохранить свободное пространство и при этом улучшить качество комфортного проживания.
Квартиры площадью 37 кв.м. санузлы, коридор и кухня отделены от основного помещения и не требуют зонирования. Но иногда при ремонте квартиры перегородка между кухней и большой комнатой реконструируется и помещения соединяются.
Выбор лучшего варианта дизайна интерьера
Самостоятельно провести перепланировку в квартире, даже в маленькой, сложно.Причем без определенных дизайнерских навыков. В большинстве случаев перспективные идеи превращаются в плановый плановый ремонт.
Чтобы избежать рутины и получить в итоге именно то, что принесет полное удовлетворение, лучше всего обратиться за помощью к профессиональному дизайнеру.
Человек, вооруженный опытом оформления квартир различного типа, в том числе и небольшого однокомнатного формата, легко справится с поставленной перед ним задачей. Планировка квартиры будет выполняться по всем правилам, отвечающим требованиям заказчика.
Когда средства не позволяют прибегнуть к помощи мастера-дизайнера, выходом могут служить фирменные каталоги. Найти их достаточно просто на тематических сайтах в Интернете.
Наряду с красочными видами дизайнерских вариантов дизайна больших двух-трех-четырехкомнатных современных квартир, здесь можно найти и различные фото квартиры площадью 37 кв. и примените на практике тот тип макета, который вам больше всего нравится.
Способы разделения (зонирования) пространства
Для квартир с одной комнатой наиболее подходящим количеством рабочих зон является от двух до трех выделенных пространств.Основное пространство можно разделить либо на две части: гостиная-спальня, либо на три: гостиная-спальня-кабинет.
Место, отведенное под рабочую зону, называемую офисом, занимает около двух квадратных метров. В этой части находится небольшой компьютерный стол, удобное кресло и стеллаж.
Опять же, стоит отметить, что дизайн внешнего оформления в небольших квартирах, где всего одна комната, является не менее привлекательной темой для декораторов, чем работа с квартирами, где есть большие площади, поскольку она развивает и дополняет дизайн. опыт.
Разработка проекта небольшой квартиры означает большой вклад в качество застройки. творческий подход и одновременно творческое направление мышления. Такие факторы возникают по той причине, что в большинстве случаев основной упор при разработке дизайн-проекта однокомнатной квартиры делается не на стиль оформления, а на качество практичности и функциональности.
Так как при наличии только одной полноценной комнаты многим семьям при отсутствии достаточных средств для увеличения жилой площади приходится уместить 37 квадратных метров в дизайн однокомнатной квартиры, участков, предназначенных для создать комфортное проживание в квартире.
Для одинокого человека часто предлагается пространственный вариант — квартира-студия. В этом случае снимаются все лишние ограничения: стены, перегородки. За исключением, конечно, ванных комнат. Они остаются изолированными.
Иначе получается широкое помещение, где легкие выступают зонирующими элементами прозрачными перегородками из оргстекла или широкой мебелью … Очень красиво и оригинально при такой планировке, с учетом внешней отделки дизайн выглядит как сочетание столовой. комната и гостиная.
Возвращаясь к супружеским парам, снова возникает вопрос о распределении на основную и второстепенную зоны. В самом начале статьи они уже рассматривались, но, тем не менее, о них стоит вспомнить еще раз с некоторыми дополнениями. Итак, дизайн квартиры 37 кв. предусматривает следующие распределения по функциональным зонам:
Гостевая зона. Место, где собираются гости и проводят большую часть своего отдыха.
Спальный район. Зона, где находится спальная мебель.
Детский уголок. Здесь можно расположить уголок с игрушками, если дети еще маленькие, или оборудовать учебный уголок, если они уже ходят в школу. Здесь также следует отметить, что в случае, когда дети уже начинают учиться в школе, родители предпочитают разделить комнату на две изолированные комнаты.
Таким образом, они стараются создать благоприятную среду обучения.А чтобы получить достаточно хорошую площадь в основном помещении, его совмещают с кухней.
Кухонная зона. Место приема пищи. Для красивого дизайна в этой части квартиры можно расположить кухонный гарнитур и, соответственно, однотипный уголок.
Офисные помещения. В основном это открытая площадка, где рабочее место взрослого человека. Определяющим демаркационным элементом может служить книжный шкаф.
Варианты оформления для выделения функциональных зон
Разделительным элементом между кухней и гостиной может стать барная стойка, но чаще — широкая мягкая мебель… В дополнение к этим обычным методам разделения используются другие методы. В частности, хорошо смотрится применение разграничения потолка, когда в роли разделяющего элемента выступает многоярусный потолок, обшитый листами гипсокартона.
Оригинальным способом выделить, например, детскую зону будет окраска поверхности потолка в нежные тона. Цветовая гамма в этом месте должна немного отличаться от основной. Точно так же можно выделить спальную зону.Главное — соблюдать четкое сочетание цветов, чтобы они не представляли резкого контраста.
Еще одно оригинально разделение пространства представлено устройством подиума, небольшой возвышенности, выражающей переход на территорию другой функциональной зоны.
Каждый из этих методов по-своему интересен. Дизайнер может порекомендовать кого угодно на выбор, но окончательное решение принимают непосредственно сами жильцы.
Фото квартир 37 кв.
Площадь 37 кв.м. маленьким не назовешь, тем более. Так что можно сказать, что хозяевам повезло, ведь они смогут сделать свой дом максимально комфортным, практичным и даже просторным, если, конечно, учесть несколько важных нюансов.
Для однокомнатной квартиры 37 кв.м. — это много, поэтому на такой площади можно уместить все необходимое без ущерба для жилой площади. Но все же просторным жилищем назвать нельзя, ведь комната всего одна, и в ней наверняка будет располагаться сразу несколько зон. А это усложняет дизайн интерьера, поэтому при продумывании его дизайна нужно мыслить рационально и учитывать мельчайшие детали, ведь от них может зависеть очень многое.
Стоит ли совмещать комнату с кухней?
Объединение комнаты и кухни в однокомнатной квартире — не лучшее решение.Если вы решили пойти на такой шаг, то буквально лишите себя полноценного спального места, ведь оно всегда будет на виду. Также не получится уйти на пенсию в офисе, потому что если жильцов несколько, то те из них, кто будет в зоне кухни, обязательно будут мешать рабочим или студентам. К тому же запахи, возникающие при готовке, моментально распространятся по квартире, а это тоже существенный недостаток. Поэтому от объединения лучше отказаться.
Если в квартире проживает только один человек, то даже при соединении основной гостиной с кухней ему ни в коем случае никто не будет мешать, но площадь пространства заметно увеличится, комната станет просторной. . Но прежде чем решиться на этот шаг, выясните, нет ли стены между кухней и несущей комнатой, в этом случае ее снос станет невозможным. Если все в порядке, а демонтаж одобрен соответствующими органами, то можно приступать к нему.
Может быть несколько вариантов комбинирования. Первый — частичный снос стены. Это наиболее предпочтительно, потому что вы одновременно решите две задачи: увеличите полезную площадь и спрячьте все на кухне. Второй вариант — снести всю стену. Тогда из своей однокомнатной квартиры площадью 37 квадратных метров можно сделать полноценную стильную студию, а такие проекты на данный момент очень популярны.
Объединение нескольких функциональных зон в одном помещении
Дизайн интерьера однокомнатной квартиры должен соответствовать нескольким требованиям.Важнейшие из них — практичность и функциональность. По сути, одно-единственное помещение несет большую нагрузку и должно выполнять сразу несколько функций. Но при этом жилое пространство должно быть комфортным для всех жильцов и максимально практичным, а этого порой очень сложно добиться.
Итак, какие площади могут поместиться в одной комнате? Все будет зависеть, во-первых, от количества жителей, а во-вторых, от их рода деятельности и предпочтений.
Возможные варианты:
- Гостиная и спальня.Этот вариант самый распространенный и простой, многие совмещают эти зоны. Добиться гармонии при обустройстве интерьера довольно легко, если выбрать практичный и удобный диван, который будет одновременно и очень комфортным спальным местом, и площадкой для размещения гостей. Также можно выбрать кровать, но желательно спрятать ее от посторонних глаз, например, за ширмой мобильного телефона или легким балдахином. И все же от этого лучше отказаться.
- … Если вы решили объединить гостиную и кухню, то в любом случае вам придется предусмотреть кухонную зону.И если рабочие зоны (приборы) должны быть максимально приближены к стенам, то место для приема пищи следует вынести и разместить примерно посередине. Желательно убрать спальную зону от обеденной на как можно большее расстояние, приблизив ее к дальней стене.
- Гостиная, спальня и кабинет. Это довольно сложная задача, ведь помимо спального места в комнате придется выделить еще и рабочее, причем сделать его максимально комфортным и желательно скрытым от посторонних глаз и хотя бы частично изолированным, особенно если есть несколько арендаторов.
- Спальня, кабинет и зона отдыха. Как вы заметили, в этом варианте отсутствует гостиная, и это существенный недостаток. Хотя если гости приходят к вам нечасто, а их обычно немного, то их можно разместить на кухне, а затем пригласить в основную комнату (в зону отдыха).
- Детская комната, спальня и гостиная. Если у вас есть ребенок, то обязательно выделите место для его игр, это необходимо! Кроме того, стоит помнить, что он будет расти, так что в дальнейшем ему понадобится участок для изучения.И, конечно же, без полноценного спального места не обойтись. К счастью, сегодня в продаже есть многофункциональные мебельные гарнитуры, объединяющие сразу несколько зон.
Например, вы можете приобрести комплекс, состоящий из стола (он будет находиться на первом уровне), шкафа и спального места, расположенного на втором уровне. Все это уместится у одной стены. В другом можно расположить раскладной диван, который совмещает спальное место взрослого и гостиную.
Какие зоны можно отбрасывать без ущерба? Комфортное спальное место потребуется в любом случае, поэтому без него не обойтись, хотя его можно замаскировать и совместить с жилой зоной. Ребенку тоже нужно пространство, поэтому отказываться от него нельзя. Но без гостиной вполне можно обойтись.
Грамотное зонирование
Если вы определились с зонами, то это далеко не все, и все самое сложное впереди, потому что их нужно выделить и обозначить в пространстве, а также разграничить, то есть отделить друг от друга, чтобы комната не кажется перегруженным.
Провести зонирование можно разными способами:
- Использование перегородок. Но, во-первых, их не должно быть много. Во-вторых, желательно использовать легкий и мобильный, чтобы можно было в любой момент переделать или обновить дизайн.
- Разные уровни. Если позволяет высота, то можно использовать подиумы. Например, кровать можно поставить на возвышение. Кроме того, можно сделать в стене нишу и использовать ее для размещения детской или спальной зоны.
- Цветовая гамма. Для обозначения зон можно использовать разные, но желательно комбинированные тона.
- Отделка. Используйте разные отделочные материалы для зонирования, но в большей степени это касается стен.
- Освещение. Также можно использовать освещение для разделения зон, этот прием используют многие современные дизайнеры.
Как определиться со стилем?
Для того, чтобы дизайн интерьера был законченным и гармоничным, стоит выбрать для его оформления определенный стиль.Причем желательно придерживаться выбранного направления при отделке всей однокомнатной квартиры, то есть как основных жилых помещений, так и утилитарных: санузла и кухни.
В принципе, можно выбрать любой понравившийся стиль, но желательно более простой, не содержащий большого количества элементов интерьера (многочисленные детали отнимут такие необходимые квадратные метры). Идеальны такие направления, как минимализм, лофт, поп-арт или хай-тек.
Правильная отделка
Отделка не должна быть слишком сложной, она сильно перегрузит интерьер и, возможно, визуально уменьшит пространство.Желательно, чтобы все поверхности были гладкими. А чтобы увеличить площадь и сделать интерьер более комфортным, используйте светлые оттенки, например, пастельные или натуральные.
Совет: вы можете выделить одну стену и сосредоточиться на ней. Так, он может быть светлее, темнее или оклеен фотообоями.
Выбор подходящей мебели
Под устройство однокомнатной квартиры площадью 37 кв.м. Следует использовать компактную, практичную и многофункциональную мебель. Например, кровать лучше заменить на удобную.раскладной диван с вещевым ящиком. И предпочитайте встроенный шкаф купе обычному громоздкому шкафу-купе. Создавайте стильные тандемы, а модульная мебель поможет сэкономить место.
Освещение
Центральному освещению желательно предпочесть рассеянное освещение, это не только сделает квартиру уютнее и светлее, но и зрительно увеличит пространство, а также разграничит зоны.
Декор квартиры
Аксессуары необходимы, они освежают дизайн, но поскольку комната выполняет сразу несколько функций, а элементы декора должны быть, во-первых, немногочисленными, а во-вторых, нейтральными и спокойными.
Учитывая вышеперечисленные советы, вы сможете грамотно продумать дизайн своей однокомнатной квартиры и сделать ее практичной и комфортной.
Дизайн однокомнатной квартиры — задача не из легких. Это связано с тем, что единое жилое пространство должно выполнять сразу несколько разных функций — предоставлять возможность для работы или учебы, служить местом для общения, отдыха и сна по ночам, а в некоторых случаях быть детской комнатой. в то же время. К тому же метраж таких квартир, как правило, не позволяет дизайнеру использовать стандартные решения, недостаточно просто отгородить для каждой зоны свой угол, необходимо по максимуму сохранить ощущение.свободное пространство, повышающее комфорт проживания.
Представляем вашему вниманию 12 лучших современных дизайнов однокомнатных квартир.
1. Однокомнатная квартира 42 кв.
Использование светлых тонов в дизайне квартиры позволило создать комфорт в небольшом пространстве и сохранить ощущение простора. Гостиная 17 кв.м. площадь, но здесь расположены все необходимые функциональные зоны, и каждая из них выполняет сразу несколько функций.Так, зона отдыха, или «диван», ночью превращается в спальню, зона отдыха с креслом и книжным шкафом легко трансформируется в рабочий кабинет или игровую комнату для ребенка.
Угловое расположение кухни позволило организовать обеденную зону, а стеклянная дверь «В пол», ведущая на лоджию, добавила света и воздуха.
2. Дизайн однокомнатной квартиры без перепланировки, 36 кв.
В этом проекте несущая стена оказалась препятствием для изменения планировки, поэтому проектировщикам приходилось действовать в рамках заданного пространства.Гостиная была разделена на две части открытой стеллажом — это простое решение во многих случаях очень эффективно, позволяя визуально разграничивать зоны, не загромождая пространство и не уменьшая световой поток.
Кровать у окна, там же своеобразный мини-кабинет — небольшой письменный стол с рабочим стулом. Стеллаж выполняет роль прикроватной тумбочки в спальной зоне.
В глубине комнаты, за стеллажом, играющим роль книжного шкафа и витрины для сувениров, находится гостиная с удобным диваном и большим телевизором.Полностенный шкаф-купе позволяет хранить много вещей и не загромождает пространство, его зеркальные двери визуально удваивают комнату и усиливают ее освещенность.
Холодильник перенесен из кухни в коридор, что освободило место для обеденной зоны. От навесных шкафов на одной из стен отказались, чтобы кухня казалась просторнее.
3. Однокомнатная квартира 40 кв.
Хороший проект, показывающий, насколько удобно и с учетом всех требований современного уровня комфорта обустроить квартиру на одного-двух человек без изменения первоначального планировочного решения.
Основная комната — это гостиная. Мебель в комнате: удобный угловой диван, телевизор с большим экраном на подвесной консоли — на противоположной стене. Предусмотрена большая система хранения одежды и других необходимых вещей. Присутствует и журнальный столик uk, добавляющий завершенности интерьеру. Ночью гостиная превращается в спальню — раскладывающийся диван образует комфортное место для сна.
При необходимости гостиную легко превратить в рабочий кабинет: для этого нужно открыть две дверцы системы хранения — за ними столешница, небольшая полка для документов и книг; рабочий стул выдвигается из-под столешницы.
Чтобы не перегружать пространство, которое и без того не слишком велико, на кухне отказались от традиционного верхнего ряда. навесные полки, заменяющие их открытыми полками.
При этом мест для хранения кухонной утвари и принадлежностей стало еще больше — всю стену напротив рабочей зоны занимает большая система хранения с нишей, в которую встроен диван. Рядом с ним небольшая обеденная группа … Рационально организованное пространство позволило не только сохранить свободный объем, но и удешевить кухонную мебель.
4. Современная однокомнатная квартира 37 кв.
В дизайне этой однокомнатной квартиры 37 кв. М каждая используется квадратный сантиметр … Диван, кресла и журнальный столик, образующие зону отдыха, приподняты на подиум и тем самым выделяются из общего объема. . Ночью спальное место выдвигается из-под подиума: ортопедический матрас обеспечивает полноценный сон.
А вот телевизионная панель встроена в большую систему хранения вещей — ее объем позволил скорректировать изначально неправильную, слишком вытянутую форму помещения.Под ним — живое пламя, застекленный биокамин. В коробке над хранилищем прячется экран — его можно опустить, чтобы смотреть фильмы.
Небольшая кухонная зона содержит сразу три функциональные зоны:
- вдоль одной из стен выстроена система хранения со столешницей и кухонным оборудованием, образующая кухню;
- у окна обеденная зона, состоящая из круглого стола и четырех дизайнерских стульев вокруг него; На подоконнике №
- находится зона отдыха, где можно расслабиться за чашечкой кофе за дружеской беседой, любуясь видами из окна.
5. Проект квартиры с выделенной спальней
Даже в небольшой однокомнатной квартире можно иметь отдельную спальню, и для этого не нужно переносить стены или выстраивать пространство по принципу студии: кухня занимает отдельный объем и полностью огорожена. от остальной части квартиры.
Проект предусматривает расположение спальни у единственного окна. В нем есть стандартная двуспальная кровать, узкий комод, который можно использовать как туалетный столик, и одна прикроватная тумбочка.Роль второй прикроватной тумбочки играет невысокая перегородка между спальней и гостиной — ее высота позволяет сохранить ощущение большого пространства и обеспечивает дневным светом всю жилую зону.
Сиреневые обои с изящным рисунком гармонируют с горчичным цветом стен в дизайне кухни, выполненной в едином стиле с комнатой.
6. Дизайн квартиры 36 кв.
Максимальная функциональность и безупречный дизайн — главные достоинства проекта.Гостиная и спальня были визуально разделены деревянными планками: начиная с кровати, они доходят до потолка и могут менять ориентацию так же, как и ставни: днем они «открываются» и пропускают свет в гостиную, ночью — может «закрыть» и изолировать спальное место.
Свет в гостиную добавляет нижняя подсветка консольного комода, эффектно выделяя главный декоративный предмет мебели: журнальный столик из среза огромного сундука.На комоде находится био-камин и ТВ-панель над ним. Напротив — удобный диван.
В спальне есть шкаф двойного назначения, в котором хранится не только одежда, но и книги. Постельное белье хранится в ящике под кроватью.
За счет углового расположения кухонной мебели и острова-печи удалось организовать небольшую обеденную зону.
7. Угловая квартира 32 кв.м
В проекте однокомнатной квартиры жилое пространство разделено на две части: личную и общественную.Это было сделано благодаря угловому расположению квартир, что привело к наличию в комнате двух окон. Использование в дизайне мебели ИКЕА позволило сократить бюджет проекта. В качестве декоративных акцентов использовался яркий текстиль.
Спальня и гостиная разделены системой хранения от пола до пола. Со стороны гостиной в системе хранения есть ниша под телевизор, а также полки для хранения вещей. У стены напротив находится конструкция из ящиков, в центре которых диванные подушки образуют уютное место для отдыха.
Сбоку от спальни есть открытая ниша, заменяющая для хозяев прикроватную тумбочку. К стене подвешивается еще один шкаф — под него можно поставить пуф для экономии места.
Основной цвет в дизайне — белый, что делает его визуально просторным. Обеденный стол складывается для экономии места. Его столешница из натурального дерева смягчает строгий стиль оформления и делает кухню более уютной.
8.Интерьер квартиры в современном стиле
Главным условием, поставленным перед дизайнерами, было сохранение изолированного положения кухни. Дополнительно необходимо было предусмотреть довольно большое количество мест хранения. Жилая зона должна была вместить спальню, гостиную, гардеробную и небольшой кабинет для работы. И все это на 36 кв.
Основная идея современного дизайна однокомнатной квартиры — разделение функциональных зон и их логическое сочетание с использованием контрастной цветовой гаммы: красного, белого и черного.
Красный в дизайне активно выделяет зону отдыха в гостиной и рабочий кабинет на лоджии, логично соединяя их между собой. Изящный черно-белый узор, украшающий изголовье кровати, повторяется в более мягком цветовом сочетании в отделке офиса и ванной комнаты. Черная стена с ТВ-панелью и системой хранения зрительно отодвигает диванную часть, расширяя пространство.
Спальню разместили в нише, со встроенным подиумом — ее можно использовать для хранения вещей.
9. Проект однокомнатной квартиры 43 кв.
Получив в свое распоряжение стандартную «однушку» серии ПИР-44 10.11.02 с потолками высотой 2,57, конструкторы решили по максимуму использовать предоставленные квадратные метры, не прибегая к перепланировке.
Удачное расположение дверных проемов позволило выделить место в комнате под отдельную гардеробную. Перегородка была выложена из белого декоративного кирпича, а также часть прилегающей стены — кирпич в оформлении выделил зону отдыха с креслом и декоративным камином.
Диван, служащий спальным местом, был выделен узорчатыми обоями.
Отдельная зона отдыха также была организована на кухне, заменив два стула в обеденной зоне на небольшой диван.
10. Квартира 38 кв.м в типичном доме, КОПЭ серия
Сочетание белого, серого и теплого бежевого цветов создает расслабляющую, безмятежную атмосферу. В гостиной две зоны. У окна большая кровать, напротив которой на кронштейне над высоким узким комодом установлена ТВ-панель.Его можно развернуть в сторону небольшой зоны отдыха с диваном и журнальным столиком, акцентировать на однотонном ковре бежевого цвета и расположить в задней части комнаты.
Верхнюю часть стены напротив кровати украшает огромное зеркало, прикрепленное к стене на специальной раме. Это добавляет света и делает комнату намного более просторной.
В угловой кухне много места для хранения вещей. Сочетание серого дуба для фасадов нижнего ряда шкафов, белого блеска верха и глянцевых поверхностей стеклянного фартука добавляет игру фактуры и блеска.
11. Однокомнатная квартира 33 кв.
Дизайн квартиры выполнен в современном стиле — много дерева, натуральные материалы, ничего лишнего — именно то, что нужно. Для отделения спальной зоны от остальной жилой площади использовалось стекло — такая перегородка практически не занимает места, позволяет поддерживать освещенность всей комнаты и при этом дает возможность изолировать личное часть квартиры от посторонних глаз — для этого служит занавеска, которую при желании можно задернуть.
В отделке изолированной кухни используется белый цвет как основной, цвет натурального светлого дерева служит дополнительным цветом.
12. Квартира 44 кв.м от детской
Отличный пример того, как грамотным зонированием можно добиться комфортных условий проживания в ограниченном пространстве семьи с детьми.
Помещение разделено на две части специально построенной для этого конструкцией, в которой скрывается система хранения.Со стороны детской это шкаф для хранения одежды и игрушек, со стороны гостиной, которая служит спальней для родителей, просторная система для хранения одежды и прочего.
В детском отделении разместили кровать-чердак, под которой было место для занятий школьника. «Взрослая часть» днем служит гостиной, а двуспальная кровать превращается в ночной диван.
Квартира-студия современного дизайна с перепланировкой.Удачные решения при планировке однокомнатной квартиры
Покупая квартиру, каждый старается сделать ее максимально удобной и функциональной, чтобы она отвечала всем запросам и образу жизни собственников. Рассмотрим пять решений. однокомнатная квартира. А мы покажем, как можно адаптировать малогабаритную квартиру под разные задачи и сохранить весь необходимый функционал без потери качества жилья.
На фото:
1. Однушка-двушка
Лучшее решение для малогабаритных квартир — объединение кухни-гостиной в общую зону.В этом случае лучше организовать спальню в отдельной комнате. Такое решение можно применить практически в любой квартире с небольшой площадью, исключение составляют только квартиры, в которых внутреннее пространство разделено несущими стенами. Рассмотрим вариант превращения однушки в двушку на следующем примере.
Первоначальное планировочное решение касалось одной комнаты, которая должна была служить гостиной и спальней, и очень вытянутой кухни — в виде «кареты».При нынешнем образе жизни это не очень удобно, поэтому в план перепланировки однокомнатной квартиры вошло популярное сегодня решение объединить кухню и гостиную в общей зоне.
Дизайнеры перенесли кухню в дальнюю часть помещения (что соответствует СНиП, т. К. Кухня освещена вторым светом и находится в пределах «влажных зон»), что позволило организовать зону гостиной вдоль светового фасада. окна и при этом отделяют отдельную комнату под спальней.
На фото:
Такой проект планировки однокомнатной квартиры идеально подойдет семейным парам без детей.
В этом примере также удалось сделать в спальне гардеробную, которая успешно справляется с функцией хранения вещей. Кухня разделена на два фасада: в одной части — раковина и плита, а в другой — встроенная техника, холодильник, духовка и микроволновая печь. Кухня-гостиная отделена барной стойкой, которая легко заменяет обеденный стол.
На фото:
Такое планировочное решение, можно сказать, уже стало традиционным для подобных квартир. Спальное место отгорожено от прихожей большим шкафом-купе — это позволило разделить пространство и организовать ниши для кровати. Но расстановка мебели отличается от многих других проектов. В этом случае мягкая зона не так тесно связана с телевизором — диван располагается вдоль стены, что зрительно расширило пространство.Телевизор расположен по центру, между оконными проемами, и работает сразу на две зоны: гостиную и кухню. Наполнение квартиры и функциональная составляющая отвечают всем требованиям современного человека. Есть и небольшая кухня, и полноценный обеденный стол, спальное место и системы хранения вещей.
3. Один на троих
Пожалуй, самый сложный вариант — разместить его на площади 40-50 квадратных метров. м семья из трех человек. Все мы помним, что раньше в хрущевке на 42 кв.м была полная двушка. Но это раньше, а сейчас при строительстве современного жилья — совсем другие стандарты, поэтому эта задача становится для проектировщиков настоящим испытанием. Рассмотрим пример, как сделать из однушки квартиру для семьи с маленьким ребенком.
На фото:
В данном примере кухня и гостиная также совмещены. При этом кухня располагается вдоль светлого фасада, а гостиная — в глубине комнаты.Г-образная конфигурация кухни и углового дивана делит общее пространство на две зоны. Спальня получилась сложной по форме, что позволяет разделить комнату на две части — детскую и взрослую. Кроватка в этом варианте может быть раскладной, чтобы было больше места для игр. Значительная часть пространства в темной зоне квартиры отведена под кладовую и гардеробную.
На фото:
4. Один трансформатор
Бывает, что квартира такая маленькая, а желание хозяев иметь функциональное жилье настолько велико, что единственный способ добиться желаемого результата — преображение.Рассмотрим пример использования кровати-трансформера в типовой квартире 33 кв. м
На фото:
На фото:
В таких маленьких квартирах на счету каждый сантиметр. Поэтому важно расположить все элементы таким образом, чтобы использовать пространство максимально функционально. Настоящей находкой для решения этой проблемы стал трансформер, который при необходимости можно убрать в нишу в шкафу и освободить место для гостей или занятий спортом.
Квартира для молодой пары. Владельцы часто работают дома, поэтому им необходимо полноценное рабочее место. В нашем случае кабинет был оконной зоной. Чтобы можно было уединиться и спокойно поработать, предусмотрена плотная занавеска, которую легко отгородить от общего пространства гостиной. То есть одна малогабаритная квартира используется и как кабинет, и как спальня, и как спортзал.
На фото:
5. Моноблочная комплексная конфигурация
Современное жилье стало намного разнообразнее, архитекторы не ограничиваются прямоугольными формами, и теперь все чаще можно встретить дома-башни или дома сложной конфигурации, фасады которых повторяют изгибы дороги, вдоль которой расположено здание.Людям, приобретающим такое жилье, зачастую бывает сложно грамотно спланировать свое пространство. В таких случаях лучше придерживаться правильной геометрии и постараться максимально выровнять пространство квартиры.
На фото:
Рассмотрим случай, когда кухня и гостиная совмещены и выделено спальное место. Мягкую зону образуют два дивана, телевизор расположен напротив мягкой группы — на стене, отделяющей кровать от общей зоны.Кухня построена в одну линию и содержит весь необходимый набор бытовой техники. Обеденный стол на 4-6 человек находится за спинкой дивана. Таким образом, оказалось, что общая зона кухни-гостиной, в которой мы проводим больше времени, правильной геометрической формы, а значит, в таком пространстве будет комфортно находиться и жить.
На фото:
Итак, мы рассмотрели лучшие планировки однокомнатных квартир, которые встречаются чаще всего.Они предложили решить пространство по-разному, ориентируясь на разный состав семьи и интересы людей, проживающих в таких квартирах. Какой из них лучше для вас?
| Интерьер квартиры из проекта студии дизайна интерьеров Zi-Design | Интерьер квартиры по проекту архитектурного бюро Lofting | .Интерьер квартиры из проекта студии Artinstall | .
Комментарий в ФБ Комментарий в ВК
Независимо от того, сколько комнат в квартире, хозяева стараются сделать комнату максимально комфортной и комфортной.Особая работа — сделать однокомнатную квартиру функциональной и удобной. Но при правильном подходе к общему дизайнерскому решению эта задача становится выполнимой. При этом не стоит отказываться от стильного и красивого интерьера.
Возможности хозяев здесь весьма ограничены, но доступны и самые удачные их варианты. Даже при небольшом пространстве у каждого члена семьи может быть свой уголок. Это поможет зонировать комнату.
Общие принципы и руководящие указания
При разделении небольшой однокомнатной квартиры на зоны предпочтение в ее общей отделке следует отдавать только светлым тонам и оттенкам.Они придадут комнате объем, поспособствуют зрительному увеличению даже очень маленькой квартиры. Совершенно замечательный и один из самых актуальных цветов на сегодняшний день — бежевый, читайте также. Квартира будет выглядеть удивительно просторной. Зрительно расширить пространство помогут точечные светильники, вмонтированные в потолок.
Чтобы разделить однокомнатную квартиру на функциональные зоны, хозяевам стоит подумать об использовании таких интерьерных приемов, как подиумы и арки, перегородки, даже шторы и обои.Правильное использование элементов и их актуальность помогут создать удачную планировку однокомнатной квартиры, не уменьшая при этом ее общую площадь.
Важно! Немаловажную роль в расширении пространства однокомнатной квартиры играют зеркала. Их можно использовать в общем дизайне или для выделения какой-то одной зоны.
При планировании важной расстановки мебели. Сами предметы мебели необходимо выбирать функциональные, компактные.Хорошей покупкой будет или, шкафы для вещей можно спрятать.
Выбирая мебель для описываемой ситуации, мы должны постараться, чтобы она не только выполняла свое предназначение, но и разделяла комнату на зоны и позволяла экономить ограниченное пространство.
Это интересно! Чтобы появились дополнительные метры жилой площади, можно совместить комнату и балкон или лоджию. Для объединения балкон или лоджию нужно будет хорошо утеплить.
Хорошие идеи планировки однокомнатной квартиры
Вариант №1 «Студия»
Если в квартире проживает 1-2 человека, то комнату смело можно разделить всего на четыре зоны.Это место для сна и отдыха, работы и приготовления пищи. Многие в этой ситуации решаются сделать однокомнатную квартиру. Решение современное и очень модное при современном дизайнерском подходе.
- Зоны разделены оттенками света. Например, в гостиной более яркое освещение, а в спальне и кухне — рассеянный свет.
- Спальную зону можно поднять на подиум, в который будут интегрированы ящики для хранения вещей.
- Разные зоны можно оборудовать разными напольными покрытиями.Например, удачным для гостиной будет использование красивого яркого ковра.
- Отделить кухню и гостиную от спальни поможет этажерка или аквариумы, можно посмотреть использование штанги для этой цели.
- Мебель-трансформер помогает менять комнату в зависимости от времени суток. Есть, например, шкаф-кровать. Днем он подходит для хранения вещей, а ночью его можно разложить на отдельном спальном месте.
Вариант №2 «С ребенком»
Когда в однокомнатной квартире помимо взрослых живет ребенок, нельзя забывать, что при планировке ему следует выделить небольшую площадь личного пространства.В такой ситуации зонирование квартиры будет другим. Лучше всего для малыша самая светлая и теплая часть комнаты. Пока ребенок маленький, его территория может состоять только из места для детской кроватки и небольшого столика. По мере роста в планировке однокомнатной квартиры потребуется отводить место для игр и учебы.
Особенности этой конструкции включают в себя:
- Зонирование комнаты с помощью штор или ширмы. Экраны — замечательное изобретение в интерьере, читайте
- Подсветка детского пространства обоями под окраску или нанесение маркера.
- В уголке для занятий можно поставить мебель трансформируемую. Самая популярная модель — шкаф. Блокноты и книги хранятся в шкафу; для выполнения домашних заданий стол можно выдвигать. Также можно выделить детскую зону стеллажом, что здесь будет актуально и полезно.
- Спальное место может быть построено как на низком, так и на высоком подиуме. Если подиум выше полуметра, к нему нужно сделать отдельные ступеньки.
- Небольшой компактный домик для ребенка в однокомнатной квартире можно обустроить, поставив высокую кровать, под которую можно поставить стол и шкаф для хранения вещей.Эту зону можно отделить от остальной части комнаты с помощью оригинальных обоев и паркета.
Вариант №3 «С кабинетом»
Иногда в однокомнатной квартире помимо прочего нужно организовать офис. В такой ситуации дизайнеры советуют объединить место для спальни и гостиной, а кухню объединить с шкафом. Также можно совместить кабинет и спальню, а кухню объединить с гостиной.
Это самые удачные примеры планировки однокомнатной квартиры.Мы должны постараться, чтобы каждая вещь в ограниченном пространстве имела свое место. Только такой порядок и строгий подход к функциональности помещения в конечном итоге принесут свои положительные плоды, позволят получить неповторимый и красивый дизайн.
Рационально распределенное пространство ванной-туалетной комнаты позволило установить стиральную машину, органически вписанную под туалетный столик.
Планировка комнаты. Деление на зоны
- Спальная ниша;
- Сиденье
- Рабочая зона;
- Кухонный блок.
Цветовая гамма интерьера номера выполнена в теплых кремово-кремовых тонах с добавлением темно-коричневого цвета. Сочетание выбранных цветов очень органично и создает атмосферу уюта, тепла и покоя.
Спальная ниша оборудована в основной зоне комнаты, отделена короткой перегородкой в ширину, имеет встроенную систему карнизов, на которых закреплены легкие полупрозрачные занавески, отделяющие спальную нишу от основной зоны \ комнату.В спальном отсеке предусмотрена отдельная потолочная подсветка на шесть розеток, а также дополнительная, ночная подсветка, установленная в небольшой декоративной нише в стене.
Пространство кухонного гарнитура за счет компактной мебели, удобно расположенной в функциональном отсеке, содержит всю необходимую технику. В удобных шкафах как напольной, так и навесной конструкции умещается вся необходимая кухонная утварь, что позволяет максимально разгрузить рабочие поверхности.
Обеденный стол, расположенный между пространствами кухонного блока и гостиной, органично объединяет обе территории комнаты, создавая единство общего пространства.
Удобный, функциональный угловой диван-трансформер позволяет освободить пространство гостиной, необходимое для приема гостей. Небольшая компактная мебель гостиной расставлена таким образом, чтобы в центральной части комнаты не было излишков нагромождения.Угловая конструкция дивана позволила создать в комнате дополнительный, рабочий отсек, расположенный ближе к окну.
Освещение кухонного гарнитура и зоны гостиной решено с помощью современных светодиодных люстр такого же дизайна, а также дополнительного точечного освещения в рабочей зоне.
Интерьер этой однокомнатной квартиры идеален как для молодой семьи, так и для прогрессивных представителей современной молодежи (как юношей, так и девушек), живущих самостоятельно.
Из этой статьи вы узнаете, что дизайн однокомнатной квартиры 40 кв м может быть очень комфортным, свободным и достойным восхищения, если подойти к нему правильно. Декорин представляет вам более 15 проектов и вариантов дизайна квартир площадью 40 квадратных метров. м. сочетание комфорта, стиля и продуманной планировки!
40 кв. М. — это средняя площадь однокомнатных квартир в большинстве современных многоэтажных домов. В отличие от хрущевок, площадь которых 28-32 кв.м, эти «однушки» предлагают больше разнообразия в планировке и дизайне пространства, и даже открывают возможность обустроить 2 отдельные комнаты — спальню и гостиную или общую комнату и детскую.
1. Красивый дизайн однокомнатной квартиры 40 кв.м — фото и план дома
Хозяйка этих апартаментов пожелала, чтобы дизайн ее квартиры был чистым, простым, элегантным и вневременным. Как вы думаете: удалось ли дизайнеру этого добиться?
Чтобы интерьер выглядел просторнее, все отдельные зоны этой квартиры были напрямую соединены между собой.Кухня совмещена с гостиной, в ванную комнату ведет прозрачная дверь, а спальня отгорожена от гостиной полуоткрытой перегородкой в виде вертикальных жалюзи. И вместо нескольких маленьких комнат мы получили одну, но очень свободную и стильную!
Среди других важных элементов дизайна этой квартиры площадью 40 кв.м стоит отметить светлую цветовую палитру и отсутствие массивных подвесных светильников, «крадущих» воздух из интерьера.Обратите внимание, встроенные точечные светильники по периметру потолка гостиной словно отделяют эту зону от остальной части квартиры.
2. Украинский дизайн квартиры 40 кв м — фото и 3D проект
Next стильная квартира 40 кв м находится во Львове и спроектирована дизайнерами Романом Вербищуком, Юлианной Верба и Любовью Лазорив. Как видно на фото, кухня здесь намного больше и удобнее, чем в предыдущем варианте.А диван и кровать, несмотря на то, что они почти вплотную друг к другу, разделены прозрачной стеклянной перегородкой.
В результате дизайн квартиры выглядит открытым и воздушным, а стильная плитка на кухне и в ванной комнате привносит в него интересную изюминку.
3. Дизайн двухкомнатной квартиры площадью 40 кв.м — фото и план
Если в предыдущем варианте дизайна однокомнатной квартиры 40 кв м выбор был сделан в пользу большой кухни и ванной, то здесь — в пользу просторной спальни.Однако, как видите, между холлом и спальней здесь также установили стеклянную перегородку, чтобы дом выглядел просторным и светлым. И, кстати, немаловажную роль в дизайне этой квартиры сыграла модная геометрическая плитка!
Также читайте:
Еще раз просим обратить внимание на отсутствие габаритных фонарей, а также на открытые полки и кровать на платформе со встроенными ящиками.Умная экономия места в бизнесе!
4. Комфорт и шик в квартире 45 кв.м
По дизайну этой двухкомнатной квартиры нельзя сказать, что в ней всего 45 кв.м! Открытые стеллажи, встроенные в стены и за диваном, позволяют грамотно использовать каждый квадратный сантиметр пространства и даже создать иллюзию лишней высоты.
Обеденная зона совмещена с гостиной, спальня расположена в отдельном помещении, но небольшую кухню можно закрыть подвижной перегородкой, что очень удобно, когда нет сил или времени навести порядок.
Этот дизайн однокомнатной квартиры вошел в наш список лучших проектов во многом благодаря тому, что он установлен здесь. Именно этот предмет мебели в сочетании с лаконичным скандинавским стилем делает этот дом просторным, стильным и очень уютным. И, конечно же, еще больше шарма и свободы придает окно в стене между кухней и гостиной.
6. Яркий современный дизайн однокомнатной квартиры 40 кв.м
Следующим в нашем списке идет яркий и сочный дизайн квартиры площадью 40 кв.м в городе София, столице Болгарии.Концепция этого дома была вдохновлена LEGO, поэтому некоторые части интерьера — тумба под телевизор, полки, кухня и даже картины на стене — выглядят как интересная головоломка. Несмотря на яркие акценты, большая часть интерьера выполнена в белом цвете, а нейтральный дизайн спальни идеально подходит для отдыха и релаксации.
7. Дизайн квартиры-студии 45 кв.м — фото и планировка проекта
Эта потрясающе стильная квартира площадью 45 квадратных метров находится в Москве и разработана дизайн-студией INT2.Как и положено студии, она состоит всего из одной комнаты, в которой есть отдельные зоны — гостиная, спальня, кухня и ванная комната. Некоторые из них разделены небольшими участками стен, другие — шторами. Дизайн квартиры выполнен в прекрасном сочетании пастельных тонов, а также скандинавского и современного стилей.
8. Необычная планировка и дизайн 1 комнатной квартиры 40 кв.м
Эта небольшая однокомнатная квартира выделяется не только необычной планировкой, но и красивым сочетанием японского и.Светлые оттенки дерева и нейтральная цветовая палитра здесь выгодно подчеркнуты сине-желтыми деталями, в том числе диванными подушками, мягкими креслами и обшивкой стен в спальной зоне. Как вам идея?
9. Однокомнатная квартира 40 кв.м для мамы и дочки
Этот дизайн однокомнатной квартиры был создан польской компанией Pressenter Design специально для мамы с 6-летней дочерью. Проект жилья разработан с учетом растущих потребностей ребенка, для чего здесь оборудовано просторное место для учебы, в комплекте с навесными шкафчиками для книг и других принадлежностей.Низкая тумба под телевизор и журнальный столик такой же высоты В сочетании с общим минимализмом дизайна эта квартира очень светлая и свежая, а темное дерево на фоне гладких белых поверхностей создает просто шикарный эффект.
Также читайте:
10. Гостиная и детская в дизайне двухкомнатной квартиры 40 кв.м
Наверное, многих читателей этой статьи волнует вопрос: как обустроить отдельную детскую комнату в квартире 40 кв м? В качестве ответа предлагаем вам фото двух квартир, где гостиная одновременно является спальней родителей, а в отдельной детской легко разместятся 2 ребенка.Так что некоторые не говорят, что живут в 40 кв. метров не по карману второму ребенку)))
В первых из этих апартаментов есть очень элегантная гостиная, совмещенная с уютной кухней, и светлая детская комната с двухъярусной кроватью в морском стиле, которую так любят многие дети.
Второй дизайн двухкомнатной квартиры 40 кв.м выполнен в стиле минимализм и отличается многофункциональной мебелью, несмотря на то, что в детской комнате две раздельные односпальные кровати.
11. Квартира в современном стиле 40 кв.м с элементами роскоши
Просто потрясающе, но эта двухкомнатная квартира с шикарной спальней имеет площадь 37,5 квадратных метров! Небольшая прихожая с бархатной скамейкой в нише переходит в довольно просторную кухню, а основная комната разделена перегородкой на гостиную с рабочим местом и очень красивую спальню. Как и в большинстве малогабаритных квартир, белый цвет был взят за основу и разбавлен яркими акцентами желтого (стена в коридоре, на кухне, стулья в гостиной) и бирюзового (спальня) тонов.В целом эта небольшая квартира в Санкт-Петербурге выглядит модно и очень уютно. Пример максимально выгодного использования пространства!
12. Идеальная планировка и стильный дизайн квартиры-студии 40 кв.м
Следующие две квартиры в нашем списке имеют очень похожую планировку, в которой только ванная комната находится в отдельной комнате, а прихожая, кухня, гостиная и спальня объединены в одну.Для удобства спальню от гостиной можно отделить стеклянной перегородкой с занавесками или (как во втором варианте) гибкой рулонной перегородкой. За счет отсутствия стен и дверей (кроме ванной комнаты) достигается общая легкость и одухотворенность интерьера.
Как видите, в первом случае для украшения интерьера и отделения кухни от коридора используется интересная декоративная перегородка с рисунком от пола до потолка.В отличие от целостной стены, она сохраняет единство пространства, привнося в него немного творчества, но не более того. Во втором варианте дизайнеры решили вообще не разграничивать эти зоны.
Интересно, какой вариант дизайна однокомнатной квартиры 40 кв м из этих двух вам больше нравится? Делитесь своим мнением в комментариях!
13. Роскошный дизайн квартиры всего 35 кв. м
Пока мы плавно приближаемся к завершению этой статьи, уже очевидно, что прозрачные стеклянные перегородки между холлом и спальней — ключевой момент в создании свободного и комфортного дизайна квартир площадью до 40 кв. м и превратив небольшую однушку в очень удобную квушку.Эта роскошная квартира площадью 35 квадратных метров не стала исключением. Смелый дизайн и цветовая гамма делают его особенным — вместо светлых тонов и минимализма здесь мы видим яркие фиолетовые и бирюзовые акценты на стильном сером фоне, а также массивные светильники (расположенные в нужном месте!), Камин и полностью потрясающая мраморная ванная комната.
Кто осмелится сказать, что это крохотное жилище не роскошно?
Также читайте:
14.Современный дизайн квартиры 40 кв. м. в стиле китайского минимализма
С одной стороны, такой дизайн однокомнатной квартиры площадью 40 кв.м включает в себя только простые элементы декора, но вместе они создают очень красивую и веселую атмосферу дома.
Минималистичная мебель строгих прямоугольных форм очень элегантно и свежо смотрится на фоне ярко-зеленых, розовых и лиловых акцентов.В спальне, отделенной романтической полупрозрачной перегородкой, есть большой шкаф, а в ванной, где дверь ведет из кухни-гостиной, — узкая душевая кабина, благодаря которой можно было разместить стиральную машину.
15. Креативный молодежный дизайн однокомнатная квартира 40 кв.м
Завершаем сегодняшний пост очень красивой, молодой и комфортной однокомнатной квартирой в городе Арад, Румыния. Помимо приятной цветовой гаммы, сочетающей светлые нейтральные тона с деталями практически всех цветов радуги, вас могут приятно удивить полка-перегородка в гостиной, велосипед в ванной, кровать на платформе и вешалка. кабинет.Все в этой потрясающей квартире дышит любовью к жизни и миру!
Мы очень старались создать самые разные дизайны квартир для людей с разными вкусами и потребностями. Поэтому мы будем очень рады услышать ваше мнение. Поделитесь с нами и нашими читателями: какой вариант дизайна квартиры 40 кв м вам понравился больше других? Что для вас важнее: большая кухня или просторная спальня? Комфорт или практичный минимализм? Прозрачные перегородки или массивные стены?
Владельцев однокомнатных квартир можно назвать в какой-то мере счастливчиками.Почему? Разве можно позавидовать такой маленькой жилплощади? Может! Только эту зону нужно преобразить посредством ремонта с определенными стилевыми подходами.
Подход концепции Open Space призывает убрать ненужные ненесущие перегородки и не возводить стены в новом жилье — Сейчас многие девелоперы предлагают бесплатную планировку. Меньше стен — в комнате будет визуально больше места, а ремонт ускорится, требуя меньше денег. Но для внешнего вида жилища, желательно гармоничного и целостного, необходимо определиться со стилем.Только одно условие: он не должен противоречить направлению Open Space. Для однокомнатной квартиры из вариантов стиля наиболее подходят лофт, хай-тек и арт-деко. Помните, что мы выбираем стиль ремонта Open Space. Такие фасоны соответствуют данной концепции, остается только пофантазировать о конкретных деталях.
Так как стен не будет или останутся маленькие около них возвышение разного назначения, нужно будет выделить локализации — провести зонирование, чтобы символически отделить кухонную зону, «район» гостиной. , спальный уголок и др.Пространство с определенным функционалом можно разделить визуально, конструктивно или в сочетании. Причем некоторые зоны могут выполнять две функции — активной зоной может быть еще и спальня. Перегородку между комнатой и кухней можно оставить на невысоком уровне — там можно поставить цветочные горшки или даже оборудовать небольшую барную стойку. Можно разграничить пространство шкафом-купе.
Мобильные перегородки тоже широко используются. Они легкие, легко разбираются / собираются и собираются.Такое зонирование носит структурный характер. Складные перегородки обычно выглядят невидимыми, пока их не раздвинут. Структурное зонирование, конечно, дороже визуального, но когда в квартире проживает несколько человек — незаменимо.
Ремонт однокомнатной квартиры Open Space — о стилях и зонировании
Но уловки визуального зонирования намного шире. Например, можно выделить кухню и гостиную с помощью колористики — подбор различных цветовых и тональных решений.Кухня, например, серебристая, а диваны белые или матовые и т. Д. Все зависит от того, какой стиль применяется. В лофте также используется деревянная мебель, но хай-тек не приемлет дерево и фигурные формы.
Но арт-деко в целом выглядит изысканно — шторы, рюши и т. Д. Используя цветовую методику локации, можно добиться ощущения изолированности зон, хотя физически все будет соединено воедино. Еще один способ визуального зонирования — свет. Здесь срочно нужна помощь новых светотехнических изделий.Узконаправленные, точечные светильники, осветительные шахты со светофильтрами. Используются и традиционные устройства — торшеры, бра и т. Д. Для каждого стиля есть определенные модели светотехники.
Идей ремонта однокомнатной квартиры очень много — мы просто перечислили основные приемы и рассказали об основных направлениях дизайна. В реальности для таких квартир труднее денег найти идею домашнего дизайна.
Ремонт однокомнатной квартиры свободной планировки — фото
Ибдель «однушка» Ф ‘»биċċа копейка»? Йиста! 10 Eżempji Friski
F’sitwazzjoni bħal din, l-iżvilupp mill-ġdid huwa indispensabbli, iżda r-riżultat huwa tal-għaeb.
ИмиджКвартира 20 мк ф’Моска
Ид-дезинджатури тал-истуджо «Уютная квартира» użaw armament sħiħ ta ‘għodda biex jiġġieldu l-iffullar f’dan l-appartament żgħir tat-tip ta’ lukanda, iżda żewġ soluzzjonij hija dekorattiva.
L-ewwel waħda hija tabella mibnija bit- «tieni soll tat-tieqa». Is-sashes tat-twieqi jinsabu eżatt fuq il-mejda, għalhekk m’hemm l-ebda ostaklu biex jinfetħu. Hemm spazju bejn it-tieqa u l-mejda għall-fjuri li joqgħodu fuq it-tieqa.Fl-aħħarnett, fit-tabella nnifisha hemm mejda oħra li tinġibed — għas-sintetizzatur. Awtur: Наталья Преображенская | Номер-студио «Appartament Cozy» — Ara aktar soluzzjonijiet interni: kċejjen fi stil modern
It-tieni teknika hija skrizzjonijiet u tpinġijiet f’wiċċ l-ilma. L-effett volumetriku huwa assoċjat mhux biss mal-isfond abjad, iżda wkoll mal-istruttura intaljata tal-itan (finitura tal-briks), u mal-backlight moħbi fil-limitu. Awtur: Наталья Преображенская | Номер-студио «Appartament Cozy» — Aktar ritratti ta ‘disinn interjuri: ideat ta’ disinn
Квартира 28.8 мк ф’Моска
Is-sidien ta ‘dan l-appartament żgħir (28.8 mk) b’kamra waħda, meta żviluppaw mill-ġdid, faċilment abbandunaw il-ħajt bejn il-kċina u l-kamra, imma talbu lid-disjassamal gie тас-содда iżolata. Mhux iktar kmieni milli jsir: il-kamra taqsam l-ispazju tal-għixien mill-kuritur ma ‘ajt wieħed, l-ieħor huwa kkombinat mal-closet, it-tielet mal-pantry, u r-raba’ hija purtiera. Минн: Мария Дадиани — Sib soluzzjonijiet interni ġodda: kmamar tal-għixien fi stil klassiku
Id-disinn tal-kċina-kamra tal-ajja huwa wkoll pjuttost partikolari.Ма бевкс ль-гħамара тал-кċина хоун, имма, галл-кунтрарджу, пошева галл-вири. Kċina sewda tleqq b’togħma Art Deco hija l-element dekorattiv ewlieni tal-ispazju magħqud. Барная стойка b’mera forma ta ‘djamant u xtilliera bi frejm index bil-maqlub ta’ logħob flimkien magħha. Мин.: Мария Дадиани — Sib Ritratti ta ’Disinn Intern Oriġinali: Kċejjen Klassiċi
Квартира 30 мкр Ф’Моска
Mil-lat tat-tqassim ta ‘dan l-appartament b’kamra waħda, kollox huwa pjuttost sempliċi: il-qasma bejn il-kċina u l-kamra twaqqgħet, l-art tal-insam tneħħew — dan għamilha- голи тас-сакаф джидид гал 2.9 мес. Fil-kamra, waħda mill-ħitan hija okkupata minn гардероб mibni, flimkien ma ‘l-oħra hemm sufan u skrivanija. Обеденная зона It-tielet għandu. Автур: m2project — Ara aktar soluzzjonijiet interni: ideat tad-disinn
Imma innota kif l-elementi kollha tal-ispazju miftu huma konnessi ma ‘xulxin bl-għajnuna tal-kulur. Ид-дезинджатур юта сфуматури дифференциал та ‘гриż, ли хума комбинати перфеттамент ма’ xulxin у relatati abjad u iswed. Mod faċli biex torbot id-dettalji jekk m’intix ċert dwar l-għala tal-kuluri.У брутали, оввьямент. Minn m2project — Aktar Ideat ta ‘Disinn: Kċejjen Kontemporanji
Квартира 33 мкр
Biex tagħmel appartament b’żewġ kmamar minn dan l-appartament b’kamra waħda, kien meħtieġ żvilupp mill-ġdid: il-kamra tal-banju żdiedet għad-detriment tal-kuritur, il-kuritam-detriment tal-kuritur, il-kuritam-detriment tal-kriment għ ie ffurmat post għal gwardarobba spazjuża fil- ona tad-dul, u l-parti mdejqa tal-kamra saret kamra tas-sodda.
Is-sufan fil-living room huwa mdawwar b’armarji bħal arkata — b’dan il-modissolva l-проблема тал-ażna tal-affarijiet, u l-ispazju għal skrivanija jinħeles fil-kamra.
Минн: Ольга Шангина | Фотография — Sib ritratti oriġinali tad-disinn ta ‘ġewwa: ideat ta’ disinn
Appartament ta ’33 mk f’San Pietruburgu: kastling
L-istess 33 «kwadru», iżda f’bini ġdid. Minħabba l-fatt li l-ewwel sular mhux residencenzjali kien jinsab taħt l-appartament, l-awtur tal-proġett, Nikita Zub, irnexxielu jaqbel dwar żvilupp mill-ġdid inġenjuż: il-kċina parment-kjiet-k , salott u гардеробная dehret fl-appartament, u l-kamra tas-sodda ħadet post l-eks kċina.Għalhekk, апартаменты b’kamra waħda sar appartament sħiħ b’ewġ kmamar. L-intern ta ‘l-appartament huwa mżejjen b’kuluri ċari, iżda mhux mingajr twist. Pereżempju, fil-kċina, il-ħitan kienu miżbugħa fi sfumatura sottili ta ‘beige biex ikabbru l-faati bojod. U fil-kamra tas-sodda, waħda mill-ħitan hija mgħottija b’karta tal-ajt qawwija u hija l-aċċent dekorattiv ewlieni.Awtur: TSUKKINI — Aktar ritratti tad-disinn ta ‘jewjwa: современное kċe 9000
Квартира 33 мкр Ф’Моска
Dan l-appartament stil loft għandu mhux biss ġewwa oriġinali, iżda wkoll numru ta ‘soluzzjonijiet tekniċi li ta’ min jikkunsidraw.Is-soluzzjoni hija relatata ma ‘kamra tas-sodda kejkna, li għaliha ġew iwweldjati apposta bibien tal-metall loft. Грацци галл-ieġ, иль-камра тас-содда mhix meqjusa bħala ona magħluqa. Iżda meta jkun meħtieġ, il-persjani jippermettulek tiżolaha mill-bqija tal-ispazju. Минн: Ольга Шангина | Фотография — Sib ritratti oriġinali tad-disinn ta ‘ġewwa: ideat ta’ disinn
Апартаменты 35 кв. М в Москве: ħajt ta ‘blokok tal-ħġieġ Appartamenti ta’ daqs żgħir (fir-ritratt — għażla 35 sq M) spiss ikollhom kamra spazjuża, li mhux dejuzzjem tkun razzżjonali .Jekk għandek bżonn kċina akbar еврей m’hemm imkien fejn tirranġa sodda tal-mistiedna. Iż-żewġ kompiti ġew solvuti b’suess f’dan il-proġett mill-perit Марина Кузнецова. Автур: Марина Кузнецова — Soluzzjonijiet interni oħra: kmamar tal-għixien
Мета Эвилуппо мельница-Адид иль-камра, гамлуха игħар, у касмуха ф’шеву Шони: камра тас-содда у уффиджу. Минзабба ль-митерс меħлуса у т-тваккигħ тал-партизджони беджн ил-кċина у ль-куритур, шьет иффурмата камра тал-кċина-спазджуна. Sabiex il-kamra tal-għixien tista ‘fi kwalunkwe in issir kamra tas-sodda tal-mistiedna, sofan li jintewa kien imqieged hemm, u kien imdawwar mill-kuridur bl-għajnuna ta’ blokok tal-ieġ.Materjal tajjeb għal oni kompatti: jittrasmetti d-dawl, jidher ħafif u fl-istess ħin изолви л-проблема тал-iżolazzjoni. Автур: Кузнецова Марина — Ibbrawżja r-ritratti tad-disinn interjuri: kmamar tas-sodda
Квартира 38 мкр Ф’Моска
Darba kien appartament żgħir b’żewġt ikmamar f’bini Sovjetiku ta ‘disa’ sulari — bi kmamar skuri skomdi.
Biex jimla l-appartament bid-dawl, il-perit mhux biss neħħa l-ħitan interni kollha, iżda b’xi miraklu kkoordina wkoll l-espansjoni tal-ftuħ tal-gallarija — bibien tal-ħġieġ ew install.Issa d-dawl minn tliet twieqi jgħarraq l-ispazju komuni. It-tqassim tal-appartament idawwar madwar il-kamra tal-banju: il-kuritur imur fil-kamra tal-ajja u l-kamra tas-sodda, minn hemm jiftaħ uffiju, li minnu tista ‘tara l-kamra tal-ikel, ли тиспина фил-кшина. Sabiex ma titħawwadx il-linja ta ‘fuq ta’ appartament żgħir, l-ispazji tal-ażna kollha (blokka ta ‘utilità, gwardarobba, eċċ.) Kienu kkonċentrati fi dressing room spazjua — hija tdawra tal-ispija тал-компартимент.Minn: DinSalakhov- Sib soluzzjonijiet interni ġodda: kmamar tal-għixien fi stil modern
Крым — ваш | micetimes.asia
С наступлением лета отдыхающие все больше тянутся к морю. Как заявили в туризме и в правительстве Крыма, в 2016 году ожидается увеличение туристического потока в Крым примерно на 10-30% по сравнению с 2015 годом. Неудивительно, что и количество построек в Крыму растет не по дням, а по часам. Интересное предложение местных девелоперов, потенциальных покупателей, а на какие объекты стоит обратить внимание?
По словам генерального директора федерального портала «Мировые апартаменты» Павла Луценко, росту спроса и цен на новую крымскую недвижимость способствует несколько факторов, в первую очередь — сезонных: люди приезжают на отдых, а многие задумываются о покупке. дом на полуострове.Далее рынок «разогрел» начало строительства Керченского моста. И, наконец, новостройки представляют больший интерес для покупателей, чем «второстепенные»: «Частники иногда устанавливают совершенно неадекватную цену», — отмечает эксперт.
Самые дорогие новостройки Крыма, по его словам, в Ялте (127,8 тысячи рублей за квадратный метр), Алуште (121 тысяча), Алупке (118 тысяч) и Севастополе (112,3 тысячи рублей за квадратный метр). Самые дешевые — в Феодосии (65 тысяч рублей за метр), Керчи (64,7 тысячи) и Украине (76 тысяч).
Жилой комплекс «Ялта Плаза
».Изображение: Yalta Plaza
Еще с начала года подорожали метры в Ялте (+ 13%), Севастополе (+ 9%), Алуште (+ 9%) и Керчи (+8,5 процента) — поэтому мы сосредоточимся в первую очередь на этих популярных городах.
Ялта
По данным «Мира квартир», в настоящее время в Ялте в продаже находятся 1 285 тысяч предложений, в том числе дома — 15 процентов. Средняя цена квартиры составляет 14,9 миллиона рублей, средняя цена квадратного метра — 137 тенге.8 тыс. Руб. Самое дорогое предложение Крыма — элитный пентхаус за 113,5 миллиона рублей, площадью 250 квадратных метров. В квартире три спальни, джакузи и терраса.
Как пояснила директор агентства недвижимости «Мультидом» Наталья Масальская, разделения на классы домов в Крыму нет, но, конечно, нужно отметить, что оно отличается от московского. Поэтому мы ориентируемся на местные реалии.
ЖК Opera Prima
Изображение: Opera Prima
Итак, новый премиум в Ялте, представленный проектами «Омега», «Ялта Плаза», резиденцией «Дипломат», клубным домом, Ocean Dream, «Чайный домик» и другими.В комплексе Opera Prima, например, предлагаются квартиры с индивидуальной планировкой от 70 до 534 квадратных метров, расположенные в 100 метрах от моря. Инфраструктура комплекса включает СПА-центр, ресторан, фитнес-центр. В пешей доступности набережная, рестораны, аквапарк, местные достопримечательности. С каждого балкона открывается панорамный вид. В комплексе есть собственная парковка и скоростные лифты. Стоимость квадратного метра с отделкой — от 240 тысяч рублей.
В бизнес-классе интересен ЖК «Даймонд»: на первых двух этажах комплекса расположены супермаркет, кафе и рестораны, спортивный клуб.Генеральным планом благоустройства предусмотрен собственный подъезд к комплексу и охраняемая автостоянка. Стоимость метра — 84,5 тыс. Руб.
В комфорт-классе офис «МИЭЛЬ» в Ялте выделяется ЖК «Бочаров ручей», расположенный в Ялте, с одно- и двухкомнатными квартирами свободной планировки площадью от 23 до 40 метров и с возможностью объединения нескольких квартир в один. На территории есть беседка с площадкой для барбекю, закрытая детская площадка, рядом Массандровский водопад, сосновый бор и можжевеловая роща.Пляж находится в 15 минутах езды на машине. Стоимость метра — 60 тысяч рублей.
Резиденция «Дипломат»
Фото: «Дипломат»
Самое дешевое предложение в Ялте по базе данных недвижимости «Мировые апартаменты» в поселке Кореиз, части города. Это «однушка» в ЖК «Старый Крым» (ул. Докторов Михайлова, 12) площадью 23 квадратных метра. Дом расположен в 2,5 км от моря. В квартире 835 тыс. Руб.
Севастополь
По данным «Аналитической корпоративной группы», в мае средняя стоимость квадратного метра на первичном рынке жилья Севастополя составила 70.9 тыс. В Севастополе 4,7 тысячи предложений квартир, из них более 13 процентов новостройки, по материалам «Мира квартир».
Жилье премиум-класса в городе представлено комплексами «Метрополис», «Квитоград», «Вершина успеха» и другие. В последнем 105 квартир площадью от 37 до 350 квадратных метров, с семью различными вариантами планировки и слияния. Здание состоит из 16 этажей, окна выходят на море и многие достопримечательности города — Владимирский собор, церковь Св.Николай, Константин Равелин и другие.
ЖК «Вершина успеха»
Изображение: ЖК «Вершина успеха»
Дом окружен парковой зоной, в непосредственной близости находится музей-заповедник Херсонес. К достоинствам можно отнести: автономное отопление, скоростной лифт, панорамные окна, огороженная территория с охраняемой парковкой. Стоимость квадратного метра — 95 тысяч рублей, самые дешевые квартиры — 3,5 миллиона рублей.
В среднем ценовом диапазоне интересное предложение — клубный дом «Айвазовский» расположен в Центральном районе города с развитой инфраструктурой и в 180 метрах от моря.Это каменное здание из двух семиэтажных домов. Первый этаж — жилой. «Однушки» кадры с 42 «квадратов» в ЖК стоят минимум 2,94 миллиона рублей, «двушки» (62 метра) — от 4,2 миллиона рублей. Завершение намечено на четвертый квартал 2016 года.
В сегменте «эконом» в Севастополе продаются квартиры в ЖК «Херсонесский маяк» по цене 1,37 млн руб. Дом будет готов к концу 2016 года.
Алушта
Алушты по численности постоянного населения в 10 раз меньше Севастополя — здесь около 30 тысяч «местных».Но хорошие условия для отдыха и для жизни. Соответственно предложения жилья слишком много.
Жилой комплекс «Дача Штейнгольца доктора»
Фото: ЖК «Сельский врач»
Первый — клубный дом «Дача Штейнгольца доктора» на 20 квартир, готов к заселению. Это видовые апартаменты с террасами и итальянской и испанской деревянной мебелью в классическом стиле, укомплектованные бытовой техникой Miele, Sony, Philips. Цена по запросу.
Другой вариант — тринадцатиэтажный жилой дом «На Фрунзе» — находится в 150 метрах от моря, недалеко от городского парка.Площадь квартир: 36-71 метр. Предлагается без отделки. Территория жилого комплекса огорожена и охраняется. Из окон открывается вид на море, горы, город. Прелесть в том, что у жителей есть возможность приобрести клубную карту санатория «Голубая волна» (100 метров от дома), которая позволяет пользоваться всеми услугами по специальным ценам. Дом сдан в эксплуатацию. Стоимость «однушки» площадью 46,5 квадратных метра — 4,56 миллиона рублей.
Жилой комплекс «Парк Ла Мер» расположен на берегу залива в урочище Аян Дере.Это трехэтажные виллы, а также семи- и четырехэтажные дома с квартирами площадью от 28 до 100 квадратных метров. Квартира на первом этаже с отдельным входом и патио. В комплексе есть собственная набережная и пляж, парковая зона, детская площадка. Территория огорожена. Стоимость — от 2,8 миллиона до 18 миллионов рублей.
ЖК «Парк Ла Мер»
Фото: ЖК «Парк Ла Мер»
Для массового сегмента представляет интерес ЖК «Морской квартал»: двенадцать 18-этажных монолитных домов на 510 квартир площадью от 45 до 150 метров без отделки.Помимо жилых домов, проектом предусмотрено строительство торгового центра, СПА и фитнес-зоны, наземных и подземных паркингов. В непосредственной близости от комплекса расположены аквапарк, теннисный корт, роликовый каток, детская площадка, парк, детский центр, кинотеатр, ресторан и тому подобное. Море на расстоянии 400 метров, стоимость квартир начинается от 2,35 миллиона рублей.
Керчь
В «Мире квартир» в Керчи 792 предложения, почти шесть процентов домов.Самый дорогой жилой комплекс «На улице Кирова» — состоит из четырех блоков 17-этажных монолитных домов. Все квартиры с балконами, вид на парк и море. В продаже — трехкомнатные квартиры площадью от 46 метров, стоимостью 2,7 миллиона рублей.
Лучший бюджетный вариант в городе, девятиэтажный монолитный дом по улице Войкова, состоящий из двух корпусов, в каждом по 40 квартир. При цене 57 тысяч рублей за метр.
ЖК «Морской квартал»
Изображение: ЖК «Морской квартал»
Совет на сто лет
При всем разнообразии предложений новостройку в Крыму нужно выбирать с осторожностью, предупреждают консультанты рынка недвижимости и юристы.
Во-первых, самое дешевое предложение не всегда доступно по закону. В Крыму, к сожалению, многие «сквотируют» на индивидуальных участках, поэтому есть реальный риск, что в будущем эти дома будут снесены. Важно уточнить проектно-строительную документацию и целевое назначение земельного участка. И, конечно же, покупка квартиры в доме на этапе «ямы» в Крыму так же опасна, как и везде.
Во-вторых, вы должны знать, что регистрация сделок купли-продажи недвижимости на полуострове находится в Госкомитете государственной регистрации и кадастра Республики Крым.

На таких полочках легко разместятся любимые книжные издания, приятные сувенирные вещицы и другие аксессуары.
Мобильные перегородки можно при необходимости разложить, а потом снова собрать. Воздушные и изящные ширмы – тоже неплохое решение, но они подходят не ко всем стилям интерьера.



Она может служить в качестве перегородки, разделяющей рабочую и кухонную зоны.

м с учетом запросов каждого из них;
Таким образом, комнаты разной функциональности объединяются в единое пространство. Например, гостиная, столовая, кухня сгруппированы в дневную зону и разделены чисто визуально — с использованием дизайнерских приемов. Проект домика позволяет рационально использовать каждый квадратный метр полезной площади. При этом дополнительные комнаты остаются изолированными.
В одноэтажном доме санузел размещен таким образом, чтобы у него был общий стояк с кухней.