Проектируем удобную спальню правильно
Спальня относится к личной жилой площади, которую обязательно должен иметь каждый член семьи. Эта жилая комната используется для сна и отдыха, а значит, она должна быть изолирована от других помещений. В одной спальне может размещаться два спальных места, например, для супружеской пары. В иных случаях при проектировке нового дома лучше всего планировать жилое пространство из расчета: одна спальня на одного взрослого или ребенка.
В жилье с высокой степенью комфорта каждый из жильцов имеет свою собственную личную комнату. В этой комнате в идеале можно не только спать или отдыхать, но и заниматься работой, учебой, принимать гостей. Таким образом, мы имеем следующие оптимальные размеры спальни:
- 8 кв. м. – минимум для одного человека. В комнате меньших размеров спальню устраивать нецелесообразно;
- 10-12 кв. м. – минимальный размер спальни для двух человек;
- 13-15 кв. м. – спальня средних размеров для двоих.

Иногда ее называют главной спальней; - 12-14 кв. м. – спальня одного человека в комфортабельном доме;
- 16-18 кв. м. – супружеская спальня в доме с высоким комфортом.
Стоит заметить, что излишне расширять площадь жилой комнаты, отведенной под спальню, не имеет смысла. В более просторном помещении становится менее уютно, что не очень хорошо для зоны, которую вы решили определить для сна.
Размеры спальни в домах и квартирах
Спальная комната может быть размещена и на мансардном этаже. В этом случае допускается сокращение ее площади до 7 кв. м., но лишь в том случае, если помимо спальни существует еще общая комната, размеры которой 16 и более квадратных метров.
Однако рекомендуемым минимумом для большинства стран мира остается 8 кв. м. В такой комнате можно поставить не только кровать, но и тумбу, шкаф для белья и личных вещей, а также рабочий стол и кресло.
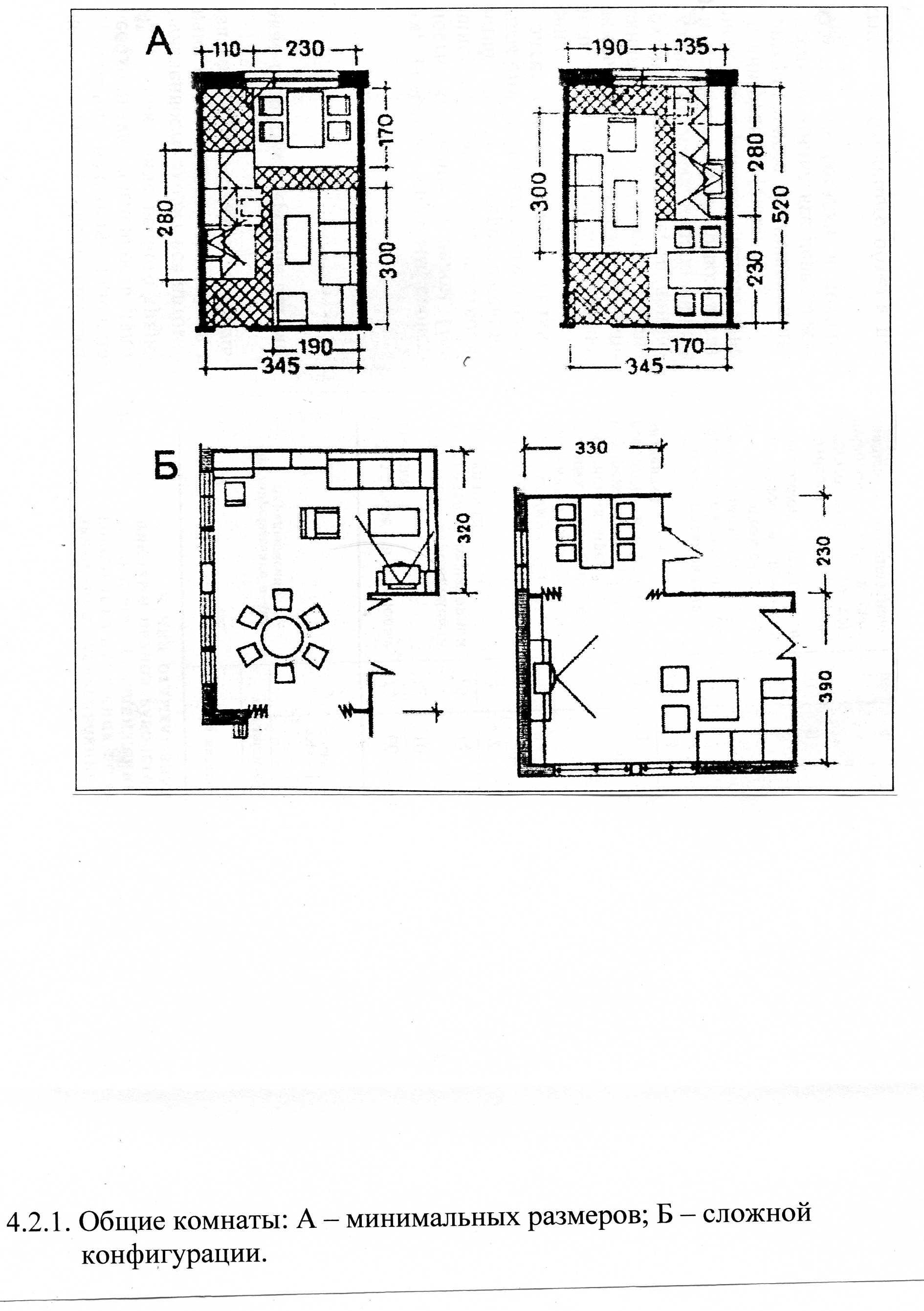
Удобная спальня для одного человека имеет форму прямоугольника. Тогда там отлично компонуются и одинарная кровать и другие предметы мебели.
Если уж мы проектируем спальню с нуля, нужно позаботиться, чтобы ее глубина была не больше, чем две ширины. А при размерах комнаты 20-24 кв. м. следует также позаботиться о красивом сложном плане помещения, в котором можно обустроить ниши или альковы.
Очень хорошо, когда проект жилой комнаты предполагает ее членение на функциональные зоны. Комфортабельная спальня включает в себя не только место сна и отдыха, но и зону, в которой хранится одежда, книги, имеется место для утренней зарядки, а также выделена зона под туалетный столик. Рядом со спальней, как правило, размещают санузел: ванную и уборную.
Как выглядит идеальная спальня
Для спальни выбирается спокойная изолированная комната с хорошим освещением. Следует учитывать, что оптимальным вариантом для спящего человека является положение, когда голова ориентирована на восток, а ноги на запад.
К тому же, кровать лучше всего ставить в глубине комнаты, а не возле двери.
Еще одна существенная деталь при выборе места для кровати – это расположение окон. Если есть возможность, то ее размещают параллельно световому фронту и так, чтобы солнечные лучи не светили в лицо спящим.
Рабочая или учебная зона, наоборот, устраивается вблизи окна. Место для хранения одежды и других вещей делают дальше от окон, в более темной части помещения.
Одно из важнейших условий комфорта спальной комнаты – это ее изоляция. То есть комната не должна быть проходной, а для того чтобы в нее попасть, строится коридор. Нежелательно, когда дверь в спальню открывается из зала, недопустимо, если спальня напрямую сообщается с кухней.
Чтобы сделать хранение одежды, обуви, книг и прочих предметов более практичным в личных жилых помещениях размещают встроенные шкафы.
Встроенный шкаф может идти вдоль стены, занимая всю ее поверхность, находиться в нише или же заменять стену или перегородку между двумя комнатами.
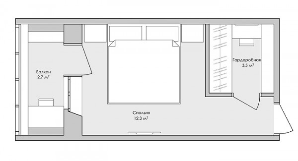
Для домов с высокой степенью комфорта обустраивается гардеробная комната, как правило, она примыкает к спальне. Эта комната полностью приспосабливается для хранения вещей, также там может стоять гладильная доска, зеркало и туалетный столик.
Планировка, проектирование спальни
Современное градостроительство почти полностью перешло на возведение домов с квартирами свободной планировки. А это позволяет выстраивать спальню любой величины. Выясняем: сколько квадратных метров отвести под комнату для сна?
На фото:
От чего зависят размеры спальни? От двух основных факторов. Важно, во-первых, кто в ней будет отдыхать: один или два человека, их возраст. Во-вторых, как конкретно будет использоваться помещение: планируется ли здесь только спать, или, например, еще смотреть кино, работать за компьютером. Кроме того, спальня может совмещаться с гардеробной или зоной отдыха.
Предназначение спальни
- для одного человека;
- для супружеской пары;
- для пожилого человека;
- для пожилой пары;
- для маленького ребенка, школьника или подростка;
- для гостей;
- для двух и более детей.
На фото:
Как правило, спальная зона ребенка располагается в детской, которая нередко бывает предназначена для двоих. При определении ее площади нужно не только исходить из нормативов, но и учитывать, что в ней также должны присутствовать зоны для игр и занятий.
Следуем нормативам
По нормативам объем воздуха, который должен приходиться на человека в спальне, равен 20-38 кубическим метрам. Следовательно, при высоте потолков 2,65 м минимально возможная площадь помещения колеблется между 9 и 15 кв. м (допустимая / оптимальная величина).
Если спальня предназначена для двух человек, цифру не следует автоматически удваивать – достаточно увеличить площадь комнаты в 1,5 раза.
Таким образом, для семейной пары вполне будет достаточно 12-25 кв. м. (допустимая / оптимальная величина). Можно, конечно, отвести под спальню и большую комнату – 30 и более метров. Однако в огромном помещении создать уютную, интимную обстановку (столь необходимую здесь) вряд ли удастся.
Вычисляем ширину и длину спальни
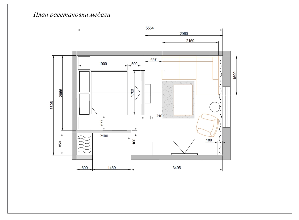
На практике к планировке спальни многие подходят утилитарно: ориентируются на количество мебели, которую собираются поместить в комнате. Но надо помнить, что между стеной и кроватью, а также между предметами мебели нужно предусмотреть проход шириной не менее 0,7-1 метра.
- Супружеская спальня. Минимальная ширина: ширина кровати + глубина комода (шкафа, туалетного столика)+ проход между ними. Получаем 140 см + 40 см + 70 см = 250 см. Длина комнаты не может быть меньше длины кровати и необходимого прохода между ней и стеной. Таким образом, минимальная длина помещения 200 см + 70 см = 270 см. В результате наименьшая из возможных площадей супружеской спальни равна 6,75 кв.
м. Но с учетом объема воздуха, необходимого для двоих, лучше предусмотреть существенно большую площадь.
На фото:
Исходя из объема воздуха, необходимого для двоих, минимальная площадь спальни для семейной пары при высоте потолков 2,65 м должна составлять минимум 12 кв. м, а оптимально – 25 кв. м.
- Спальня для пожилой супружеской пары. Должна быть чуть просторнее. Представители старшего поколения менее ловкие, подвижные и гибкие: им будет сложно крутиться на миниатюрном пятачке вокруг кровати. Само ложе надо сделать шире (от 160 см), проходы вокруг него — увеличить до 1 метра. Выходит, что такая комната не может быть меньше 11-12 кв. м. То же правило касается спальни одинокого пожилого человека: максимально широкие проходы, просторное ложе. И сходное по площади помещение (от 10 кв. м).
- Гостевая спальня. Размер гостевой спальни должен быть сопоставим с минимумом на двоих.

Ведь вам придется поставить здесь небольшой шкаф, стул и небольшой столик для предметов личной гигиены. Вашим друзьям и родственникам должно быть удобно!
На фото:
В гостевой спальне допустима минимальная ширина кровати – 100 см, однако, принято отводить под нее место, сопоставимое по площади со спальней на двоих.
Когда спальня не только для сна
Если комнату предполагается использовать не только для сна, площадь необходимых функциональных зон добавляется к площади самой спальни.
- Кабинет. На первый взгляд, рядом с туалетным столиком можно поставить компьютер, но это неправильно. Приборы не должны находиться в непосредственной близости от кровати. Требуется удалить компьютерный стол как минимум на метр от изголовья. И добавить площадь около 2 кв. м (стол 1,2 + 0,8 м + место, необходимое для отодвигания стула).
- Зона чтения.
Сесть в кресло, вытянуть ножки на пуф, положить книжку на туалетный столик по соседству. Для всего этого требуется место – как минимум 1,5 кв. м. Если в проекте спальни кресло предполагается установить в угол, по диагонали для зоны отдыха нужно выделить дополнительно 2-3 кв. м. - Гардероб. Эту функциональную зону также вполне можно обустроить на 2 кв. м, отгородив угол или часть комнаты.
Получается, что многофункциональная спальня на одного человека не может быть менее 15 кв. м. Аналогичное правило распространяется на обустройство детской спальни (игровая и рабочая зоны занимают примерно ту же площадь).
На фото:
В многофункциональной спальне предполагается работать, одеваться, отдыхать за чтением интересной книги. Поэтому следует заранее просчитать добавочную площадь, исходя из своих приоритетов.
Оптимальный размер дома для одной семьи — СибПоселки
[24.
01.18]
Будущие хозяева дома обычно рассуждают так: «Хотим на площади, скажем, в сто (двести, триста) квадратных метров разместить спальню, гостиную, кухню и спортзал!» Знакомо?:) Кто-то считает залогом комфортного дома просто значительно бОльшую площадь в сравнении с тесной городской квартирой. А кто-то мечтает воплотить увиденный где-то реальный или виртуальный типовой проект, полагаясь на опыт проектировщиков и архитекторов.
Как определить, какой площади дома будет достаточно для Вашей семьи?
Рациональный подход выглядит так. Сначала продумать количество и назначение комнат именно для своей семьи, определить для них оптимальную площадь, предусмотреть расположение подсобных помещений, а затем посчитать итоговую площадь, которую потом корректировать. Такой план действий позволит точнее поставить задачу архитектору и проектировщику, избежать строительства «лишних» комнат, предусмотреть помещения, которые в квартире не нужны, а в доме просто необходимы.
Другими словами, это способ многократно повысить комфорт будущего дома еще на этапе предварительных решений. Итак, начнем.
Для примера просчитаем метраж коттеджа для семьи из четырех человек, двоих взрослых и двоих детей. Если в вашей семье меньше людей, то свободную комнату можно использовать как гостевую или как кабинет. Если уже сейчас ваша семья насчитывает больше людей, то к этому варианту нужно добавлять дополнительные комнаты, которые будут учитывать большее количество людей в доме.
1. СПАЛЬНЯПервое очень важное помещение — это спальные комнаты. Оптимальное количество спальных комнат для 4 человек – три: одна спальня родителей и две детских спальни.
Использовать детские спальни можно в зависимости от возраста. Пока дети маленькие, они могут делить одну спальню, а вторую можно использовать как многофункциональную комнату. Например, как игровую или гостевую для бабушек и дедушек, которые будут приезжать помогать с внуками.
Когда дети подрастут и станут более самостоятельными, тогда пригодится вторая детская спальня.
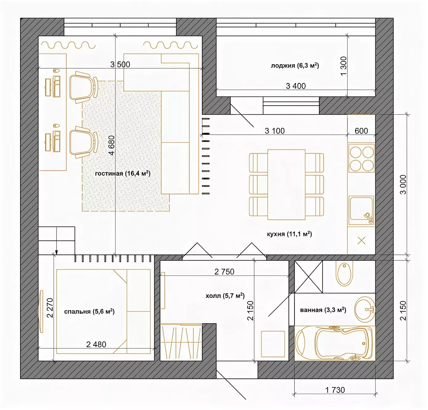
Следующая необходимая комната – это гостиная — пространство семейного досуга, место, где семья проводит больше всего времени, ее удобно совместить с кухней. Объединяя два этих помещения, получаем зону, где созданы все условия чтобы вся семья собиралась вместе, делилась впечатлениями, проводила вместе время, принимала гостей. Для частного жилого дома пространство для отдыха в виде гостиная + кухня — обязательный атрибут! Тут же делаем выход на террасу, где так же можно организовать стол. В этой комнате желательно предусмотреть несколько мест приема пищи: общий стол, возможно барная стойка, кофейный столик. Вы почувствуете настоящий комфорт, сделав такой выбор мест.
Если Ваша работа предполагает рабочее место дома, то его также можно разместить в гостиной в качестве открытого кабинета. Оптимальный метраж гостиной, совмещенной с кухней – 30-40 кв. метров.
3. САНУЗЛЫ Для комфортного частного дома санузлов должно быть два: гостевой при входе и основной в зоне спален. При минимальном наборе гостевого санузла (раковина и непосредственно туалет) площади в 1.5 м будет достаточно. Если в гостевой санузел добавить душевую кабину, метраж 3 кв. метра будет оптимальным. Основной санузел имеет более широкий набор: ванная/джакузи, туалет, биде, раковина (возможно двойная). Кроме этого, стоит подумать, в каком из санузлов расположить стиральную машину и предусмотреть место для сушки белья. Размещение всего санфаянса гостевого и основного санузлов важно разместить на этапе начальных планировочных решений дома. Это потом помогает правильно распланировать трубы воды и канализации и определить достаточный рациональный метраж санузлов.
Оптимальный метраж основного санузла — 5-10 кв. метров.
4. КОТЕЛЬНАЯЭто необязательное, но очень полезное и многофункциональное дополнение любого дома. Необязательное это помещение потому, что ряд систем отопления не требует наличия отдельного помещения. То есть, уже на этом этапе нужно понять, какую систему отопления Вы планируете. Но если в доме изначально будет запланирована котельная, тогда выбор систем отопления после общестроительных работ будет более широкий. Метраж котельной 6-7 кв. метров, хотя по нормам можно и немного меньше. 5. ВСПОМОГАТЕЛЬНЫЕ ПОМЕЩЕНИЯ
Очень часто архитекторы и застройщики забывают, что в жилом доме должно быть достаточно места для вспомогательных помещений.
Во-первых, это гардеробные. Рационально и удобно, когда каждая спальня имеет отдельную гардеробную или, как минимум, место под хороший шкаф. Кроме того, еще одна гардеробная необходима при входе в дом, для сезонной одежды, пылесоса и прочего.
Оптимальный метраж гардеробных составляет 2.5 — 3 кв. метра (из расчета по минимуму 1.2 – 1.5 кв. метра).
Во вторых, кладовая рядом с кухней для заготовок, кухонного и хоз. инвентаря. Хорошо, когда она располагается именно там, где ею будут пользоваться.
6. ПРОХОДНЫЕ ЗОНЫ: прихожая, коридор, зона возле спаленПо дому нужно передвигаться, поэтому в любом случае планируем проходные зоны. Лучшее рациональное решение, которое Вы можете сделать – это запланировать светлую прихожую. Многие застройщики и архитекторы делают досадную ошибку, которую понимают только после завершения строительства: в своем желании не тратить метраж дома на проходные зоны и распределить метраж между комнатами, коридоры делают узкими, пригодными только для передвижения по ним. Поэтому они являются стопроцентно проходными зонами, такая себе «вынужденная» трата метража. Если же наоборот, увеличить коридор, то вместо узкой проходной зоны он станет отличным многофункциональным дополнением жилого дома, где можно будет разместить пуфики или небольшой шкаф.
В зависимости от планировки дома, проходная зона занимает 10-15 кв метров. Входная группа забирает еще 5-7 кв метров.| Основные помещения | Кол-во | Площадь (min), кв. м. | Площадь (max), кв. м. |
| СПАЛЬНИ | 3 шт | 13 кв. м (39 кв.м.) | 15 кв. м (45 кв.м.) |
| ГОСТИННАЯ + КУХНЯ | 1 шт | 30 кв.м. | 40 кв.м. |
| Санузел гостевой | 1 шт | 1.5 кв.м. | 3 кв.м. |
| Санузел основной | 1 шт | 5 кв.м. | 10 кв.м. |
| Котельная | 1 шт | 6 кв.м. | 7 кв.м. |
| Гардеробная спальни | 3 шт | 1. 5 кв.м. (4.5 кв.м.) |
3 кв.м. (9 кв.м.) |
| Гардеробная при входе | 1 шт | 2.5 кв.м. | 5 кв.м. |
| Проходная зона | 1 шт | 10 кв.м. | 15 кв.м. |
| Входная группа | 1 шт | 5 кв.м. | 7 кв.м. |
| ИТОГОВАЯ ПЛОЩАДЬ | 103,5 кв.м. | 141 кв.м. | |
7. ТАБЛИЦА
Далее все необходимые комнаты и помещения вносим в таблицу и складываем минимальные и максимальные значения площади. Получаем «чистую» (без учета площади на стены и перегородки) минимальную и максимальную площадь рационального дома. Такая «вилка» уже дает примерные представления о площади будущего дома. 8. ИТОГ
А дальше площади помещений можно «двигать» в большую-меньшую сторону, добавлять/убирать какие-то из них, конкретизируя первоначальный запрос.
Руководствуясь таблицей можно начать отбирать проекты, прибрасывать планировку, обращаться к архитектору или проектировщику. Такой подход в итоге сэкономит кучу времени и сил, а дом станет более продуманным, рациональным, а значит комфортным.
You have no rights to post comments
Оптимальные размеры комнат, минимальная ширина 3 метра, индивидуальный комфортный объем: разбираемся в вопросе
Спальная — это место, которое является личным пространством, оно необходимо абсолютно каждому человеку. Как правило, в ней человек отдыхает и важно, чтобы это помещение было изолировано от других. При планировке дома важно учитывать такой параметр, как размер спальни, ведь для полноценного отдыха человеку необходимо определённое пространство.
Разделы статьи
Кухня
Есть два вариант — отдельная кухня или кухня-столовая. В последнем случае, если вы намерен принимать порядка 10 гостей, общая площадь помещения должна быть не меньше 18 квадратных метров: 8 м
2
под саму рабочую зону кухни и 10 м
2
для столовой.
Соответственно, если у вас просто кухня, без столовой, её оптимальный размер — 8 м
2
. Этого вполне хватит, чтобы готовить вдвоём и позавтракать семьёй из четырёх человек. Для кухни с островом требуется, по мнению специалистов, площадь не меньше 10 «квадратов».
Санузел и ванная комната
Для отдельного санузла с унитазом и небольшой раковиной достаточно будет 1,3 м
2
площади. Для ванной, где будет стоять стиральная машина и умывальник — не меньше 4,25 м
2
. Для размещения биде потребуется ещё примерно 0,75 «квадрата». Совмещённый санузел с двумя раковинами, ванной и стиральной машиной желательно делать площадью 7 м
2
.
Что касается остальных помещений дома, то для прихожей или холла следует выделить от 6 до 10 м
2
. Если у вас здесь будет располагаться лестница, не забывайте, что её ширина — не меньше 0,9 м, а в целом она займёт порядка 6 «квадратов». Для небольшой кладовой будет достаточно 2 м
2
, минимум столько же следует выделить под гардеробную.
Минимальная площадь тамбура в частном доме — 1,3 «квадрата».
05.05.18
Предназначение спальни
- для одного человека;
- для супружеской пары;
- для пожилого человека;
- для пожилой пары;
- для маленького ребенка, школьника или подростка;
- для гостей;
- для двух и более детей.
На фото:
Как правило, спальная зона ребенка располагается в детской, которая нередко бывает предназначена для двоих. При определении ее площади нужно не только исходить из нормативов, но и учитывать, что в ней также должны присутствовать зоны для игр и занятий.
Жизненное протестантство — важный параметр
К вопросу планировки этой комнаты многие подходят довольно примитивно. При этом учитывается количество мебели, которое предположительно будет установлено. Не стоит забывать о комфортности передвижения, между предметами мебели должно сохраняться пространство. Следовательно, не нужно загромождать помещение многочисленными шкафами и тумбочками.
СПРАВКА. Рекомендованное расстояние между кроватью и стеной, мебелью должно быть 0,7-1 м.
Рассмотрим параметры размеров спальной комнаты для разных вариантов проживания в них:
- Супружеская комната для отдыха. Рассчитывая минимальную ширину, следует учесть: ширину кровати и глубину комода, также добавьте проход между ними. Это примерно следующие цифры — 140 см + 45 см + 80 см. Рассчитывая длину, необходимо сложить размер кровати и также минимальный проход. Из этого можно вычислить, что длина комнаты будет равна 190 см + 80 см. Исходя из этих расчётов, можно предположить, что наименьшая площадь спальни должна быть 7,15 кв. м. С учётом требуемого объёма воздуха, этот показатель лучше будет увеличить.
- Спальная комната для пожилой супружеской пары. В сравнении с предыдущим вариантом, лучше будет предусмотреть чуть больше пространства, так как пожилые люди менее ловкие и подвижные, проходы нужно расширить.
На узкой кровати им будет некомфортно отдыхать, её ложе также лучше взять побольше. - Гостевая спальня. Размер данного помещения должен быть рассчитан для двоих человек. Чтобы вашим гостям было удобно, когда они остаются с ночёвкой, нужно оборудовать комнату. Поставьте в ней шкаф, компактный столик и стул.
Рассмотренные параметры являются минимально допустимыми. Если в вашем случае спальная комната имеет большее, расширенное назначение — здесь же вы проводите много времени, читаете, занимаетесь, необходимо соответственно расширять её площадь.
Что касается формы комнаты, то для одного человека вполне подойдёт прямоугольное решение, а вот для семейной пары лучше будет квадратная форма. Не перегружайте помещение ненужной мебелью или другими предметами интерьера, иначе вы не сможете здесь качественно отдохнуть и расслабиться.
ВАЖНО. При выборе площади комнаты, необходимо использовать комплексный подход. Только учитывая все параметры, вы сможете создать для себя отличную комнату для отдыха.
Вычисляем ширину и длину спальни
На практике к планировке спальни многие подходят утилитарно: ориентируются на количество мебели, которую собираются поместить в комнате. Но надо помнить, что между стеной и кроватью, а также между предметами мебели нужно предусмотреть проход шириной не менее 0,7-1 метра.
- Супружеская спальня. Минимальная ширина: ширина кровати + глубина комода (шкафа, туалетного столика)+ проход между ними. Получаем 140 см + 40 см + 70 см = 250 см. Длина комнаты не может быть меньше длины кровати и необходимого прохода между ней и стеной. Таким образом, минимальная длина помещения 200 см + 70 см = 270 см. В результате наименьшая из возможных площадей супружеской спальни равна 6,75 кв. м. Но с учетом объема воздуха, необходимого для двоих, лучше предусмотреть существенно большую площадь.
На фото:
Исходя из объема воздуха, необходимого для двоих, минимальная площадь спальни для семейной пары при высоте потолков 2,65 м должна составлять минимум 12 кв.
м, а оптимально – 25 кв. м.
- Спальня для пожилой супружеской пары. Должна быть чуть просторнее. Представители старшего поколения менее ловкие, подвижные и гибкие: им будет сложно крутиться на миниатюрном пятачке вокруг кровати. Само ложе надо сделать шире (от 160 см), проходы вокруг него — увеличить до 1 метра. Выходит, что такая комната не может быть меньше 11-12 кв. м. То же правило касается спальни одинокого пожилого человека: максимально широкие проходы, просторное ложе. И сходное по площади помещение (от 10 кв. м).
- Гостевая спальня. Размер гостевой спальни должен быть сопоставим с минимумом на двоих. Ведь вам придется поставить здесь небольшой шкаф, стул и небольшой столик для предметов личной гигиены. Вашим друзьям и родственникам должно быть удобно!
На фото:
В гостевой спальне допустима минимальная ширина кровати – 100 см, однако, принято отводить под нее место, сопоставимое по площади со спальней на двоих.
Проекты домов с спальнями
Проект дома для семьи с 2-мя детьми и бабушкой
Проект двухэтажного коттеджа для семьи из 5 человек
Проект квадратного дома 10 на 10 со спальней на 1-м этаже
Архитектурное проектирование домов: разбор ошибок и заказ
Гостиная в частном доме: оптимальный размер, расположение, фото
Где заказать проект дома в Москве?
Сколько этажей делать в загородном доме?
Комплексное проектирование по BIM технологиям для частных домов в Москве и Московской области
Строить дом или купить готовый — что выгодней?
Узнать, что мы сделаем для вас
В базу знаний для застройщиков
Проектно-строительное бюро Superdoms
Создаем загородные дома с 2010 года
- Главная
- Дома
- Проектирование
- Строительство
- Консультации
- Сопровождение
- Этапы
- Галерея
- Застройщику
- Видео
- Решения
- BIM
- Мы
- FAQ
Политика конфиденциальности
Обустройство спальни размером метра
Если спальня достаточно маленькая, то не стоит расстраиваться раньше времени, потому как вполне возможно превосходно оформить комнату, размер которой всего лишь 3 метра.
Для маленьких комнат есть много различных интересных и оригинальных приемов, которые помогут сэкономить свободное пространство и установить всю требуемую мебель.
При обустройстве небольшой спальни очень важно грамотно подобрать:
- Мебель;
- Отделку;
- Аксессуары.
Грамотно расставляя мебельный гарнитур и аксессуары, даже маленькую спальню можно сделать функциональной и практичной
Визуально несколько расширить свободное пространство комнаты при помощи отделочных материалов светлых оттенков. Однако, чтобы обозначить отдельные зоны и сделать интерьер более стильным и оригинальным, то нужно сделать достаточно темные акценты или выделить отдельные некоторые области яркими тонами. Чтобы разнообразить светлый интерьер комнаты можно использовать яркие элементы декора, текстиль и отдельные предметы мебели. Напольное покрытие лучше всего подбирать теплых оттенков. В качестве напольного покрытия лучше всего использовать паркетную доску, ламинат или ковролин.
С помощью ярких интересных акцентов можно сделать интерьер индивидуальным и достаточно оригинальным. При выборе мебели лучше всего отдать предпочтение встроенным и модульным вариантам, потому как таким образом, вполне возможно сэкономить свободное пространство. Кроме того, встроенная или модульная мебель смотрится очень стильно, оригинально и презентабельно.
При выборе модульной мебели есть возможность при надобности очень быстро буквально преобразить интерьер, достаточно только переместить отдельные элементы мебели. При правильно обустроенном интерьере спальни можно создать расслабляющую и спокойную обстановку, которая будет способствовать сну и отдыху.
Кровати больших размеров: варианты
Если при выборе размеров 1-спальной кровати определение ширины зависит от ощущений одного человека, то в супружеской спальне на выбор влияют двое, а также их взаимодействие между собой. Иногда по всем нормам постель достаточно просторна, а люди не могут выспаться.
В таких случаях можно остановить свой выбор на кровати увеличенного размера. Иногда можно встретить ошибочное мнение, что размер евро-кровати значительно больше стандартного для двуспальной. Однако разница только в определениях самого стандарта.
Нужна по-настоящему большая кровать? Обратите внимание на модели необычных форм, например, овальные или круглые. Самая маленькая круглая кровать имеет в диаметре 220 см, а есть и больше – все зависит от желания и финансовых возможностей. Для того, чтобы в спальне гармонично разместилась круглая кровать, размеры ее должны соотноситься с размерами комнаты а отделка – соответствовать стилю интерьера. Нелепо будет смотреться кровать круглой формы в этно-интерьере или в современном лофте. Не подходит она и к скандинавскому стилю. А вот в арт-деко или восточных направлениях вполне уместна.
Совет: Кровати больших размеров требуют больших спален – иначе даже самая элегантная модель будет выглядеть убого. Подбирайте кровать в соответствии не только со стилем интерьера, но и с площадью комнаты.
На фотографии ниже приведена схема кровати с размерами, как внутренними (спального места), так и внешними, для данной конкретной модели. В зависимости от дизайна внешние габариты могут меняться, в отличие от ширины матраса они не стандартизируются.
Когда спальня не только для сна
Если комнату предполагается использовать не только для сна, площадь необходимых функциональных зон добавляется к площади самой спальни.
- Кабинет. На первый взгляд, рядом с туалетным столиком можно поставить компьютер, но это неправильно. Приборы не должны находиться в непосредственной близости от кровати. Требуется удалить компьютерный стол как минимум на метр от изголовья. И добавить площадь около 2 кв. м (стол 1,2 + 0,8 м + место, необходимое для отодвигания стула).
- Зона чтения. Сесть в кресло, вытянуть ножки на пуф, положить книжку на туалетный столик по соседству. Для всего этого требуется место – как минимум 1,5 кв.
м. Если в проекте спальни кресло предполагается установить в угол, по диагонали для зоны отдыха нужно выделить дополнительно 2-3 кв. м. - Гардероб. Эту функциональную зону также вполне можно обустроить на 2 кв. м, отгородив угол или часть комнаты.
Получается, что многофункциональная спальня на одного человека не может быть менее 15 кв. м. Аналогичное правило распространяется на обустройство детской спальни (игровая и рабочая зоны занимают примерно ту же площадь).
На фото:
В многофункциональной спальне предполагается работать, одеваться, отдыхать за чтением интересной книги. Поэтому следует заранее просчитать добавочную площадь, исходя из своих приоритетов.
Также в этом разделе
Зона для сна: как правильно ее организовать
Выясняем, как превратить спальное место в оазис расслабления, даже если отдельную комнату под спальню выделить невозможно.
Единым фронтом: как объединить спальню с гостиной и не прогадать
С какими трудностями можно столкнуться и что стоит учитывать, планируя открытое пространство? О тонкостях объединения спальни с гостиной расскажут эксперты архитектурного бюро «Победа дизайна».
Современная спальня:
5 слагаемых успехаСовременный стиль сегодня – понятие растяжимое. На какие критерии ориентироваться, задумав оформить интерьер спальни в современном стиле?
Спальня в современном стиле
Что выбрать – поп-арт или минимализм, хай-тек или фьюжн? А может купить спальню по каталогу?
Спальня-мансарда
Планируете спать на чердаке? О чем следует позаботиться, прежде чем поднимать кровать под крышу?
Спальня холостяка
Как обустроить мужскую спальню? Дизайнеры советуют — не перегружать помещение мебелью и аксессуарами.
Эргономика спальни
Удобство спальни – не в ее большой площади, а в грамотной расстановке мебели. С помощью эргономики найдем идеальное место для кровати, шкафа и туалетного столика.
Спальня по фэн-шуй
Дизайн интерьера спальни по законам древних философов. Обустраиваем спальню согласно вашему здоровью, характеру и… семейному положению.
Спальня в комнате неправильной формы
Где поставить кровать в спальне, как расположить остальную мебель?
Идеальная площадь спальни
Исходя из вышеуказанных параметров, можно определить идеальные параметры различных спален:
- Для одного взрослого человека необходимо минимум 8 кв.
м. - Для двоих людей нужна комната площадью 10-12 кв.м.
- Для «хозяйской» спальни в большом доме понадобится 13-15 кв.м.
- Супружеская спальня повышенного комфорта занимает 16-18 кв.м.
Стоит отметить, что излишне большая спальня становится неуютной. Спальня небольшого размера обычно выглядит более обжитой и способствует спокойному сну.
Поэтому выбирать комнату стоит исходя из указанных параметров.
Количество спален в доме
Если ваш дом или квартира находятся на стадии планировки проекта, можно подумать о том, сколько спален стоит предусмотреть. Это количество зависит от общей площади жилья и бюджета. В идеале в доме должна быть хозяйская спальня, детская для каждого ребенка и гостевая спальня.
Если в семье есть взрослые дети, которые только приезжают в гости, а постоянно с родителями не живут, не стоит выделять для них постоянную детскую. Скорее всего, можно будет размещать их в гостевой спальне.
Гардеробная
Чаще всего спальня выполняет функцию гардеробной. Если в спальне будет устроена полноценная комната для одежды и обуви, нужно рассчитать размеры гардеробной в спальне.
Дизайнеры советуют отделить дверьми типа «купе» или «гармошка» 1,5 м или более от стены. Лучше выглядят гардеробные во всю стену. Если позволяет архитектура помещения, отличным вариантом будет угловой шкаф в спальню, размеры которого также нужно учесть, он занимает больше места, чем традиционный, но его вместимость с лихвой компенсирует затраты площади. В интернете можно найти чертежи наполнения шкафа в спальню с размерами. Это значительно упростит проектировку.
Мебель
Стандартный набор мебели для спальни обычно состоит из кровати (одно- полутора- или двуспальной), шкафа, комода, тумбочек и туалетного столика. При выборе мебели нужно учитывать следующие правила:
- Высота тумбочки должна быть равна высоте кровати;
- Глубина ящиков комода не должна превышать 60 см;
- Ширина столешницы туалетного столика обычно составляет 40-45 см;
- Если спальня малогабаритная, возможна установка туалетного уголка на подоконнике;
- Высота столика должна быть около 80 см;
На фото спален разных размеров часто изображены шкафы-купе.
Это связано с тем, что такие шкафы сильно экономят пространство комнат, даже самых маленьких и не требуют места для распахивания дверец.
Для детских спален особенно актуальны трансформируемые предметы мебели. Откидываться или выезжать может кровать, системы хранения или телевизор.
В последнее время встречается все больше мебельных гарнитуров, состоящих из двух этажей. Кровать поднимается на второй уровень, под потолок, а под ней располагают письменный стол и стеллажи с книгами и учебными принадлежностями.
Отлично экономят место стеллажи, заменяющие изголовье кровати. На них можно располагать книги, светильники, декор, даже чашки.
Если в маленькой спальне ставят не раздвижную систему, а полноценную кровать, под ней целесообразно разместить выдвижной или откидной короб для хранения постельных принадлежностей.
Создать уют можно как в самой маленькой, так и просторной спальне. Главное — учитывать архитектуру помещения и верно выбрать мебель.
Фото спален
Оптимальные размеры прикроватных тумбочек для спальни
29.03.2018Прикроватная тумбочка является полезным и незаменимым элементом обустройства спальни. Она выполняет множество функций, делая комнату очень уютной, современной и комфортной в быту. При выборе прикроватной тумбочки важно учитывать ряд факторов, включая ее дизайн, размеры и степень функциональности. Правильный выбор позволит обеспечить владельца спальни необходимым уровнем удобства.
Многие прикроватные тумбочки идут в комплекте с кроватью. Они соответствуют ее стилистическому решению и цветовой гамме. Однако не рекомендуется увлекаться готовыми наборами при оформлении аа пространства интерьера. Они могут выглядеть шаблонно, безлико и неоригинально.
При самостоятельном подборе прикроватной тумбочки можно подойти к вопросу обустройства спальни творчески.
Преимущества прикроватной тумбочки
Прикроватные столики необходимы по ряду причин:
- Конструкции объединяют компактные размеры и многофункциональность.
- Тумбочка возле кровати позволяет хранить необходимые мелочи в шаговой доступности.
- На прикроватный столик можно установить светильник для чтения перед сном.
- Прикроватная тумба может выступать в качестве декоративного акцента при оформлении комнаты.
Внимание на размер
Габариты тумбочки оказывают воздействие на количество оставшегося свободного пространства. Излишне громоздкие варианты придадут интерьеру устаревший вид. При выборе тумбочки учитывают параметры:
- высоту;
- ширину;
- глубину.
Особое внимание следует уделить высоте предмета мебели.
Она должна соответствовать параметрам кровати: с нее должно быть удобно дотянуться до поверхности столика. Именно здесь будут находиться важные мелочи: книги, расчески, будильник и многое другое. Поэтому доступ должен быть беспрепятственным.
Когда высота тумбочки эргономична и выстраивается на одном уровне с кроватью, общий дизайн интерьера выглядит более сбалансированным. Зрительно предметы мебели образуют единую линию, приятную для глаз. Уравновесить разные по высоте элементы можно за счет использования зеркал, установленных на тумбочках. Хорошим решением также станет использование столиков, объединенных с шкафами по вертикальной линии.
Ширина также играет не последнюю роль в вопросе эргономичности. Оптимальной станет модель, имеющая классические пропорции. При этом следует помнить, что прикроватная тумбочка — часть общей композиции. Поэтому она должна быть соразмерной пропорциям кровати. Огромная кровать рядом с миниатюрными столиками будет выглядеть нелепо и неправильно, точно так же, как массивные тумбочки рядом с небольшой и изящной конструкцией.
Данный аспект особенно актуален, когда речь идет о классическом интерьерном решении.
Специалисты рекомендуют выбирать прикроватные столики шириной менее 50 см, если рядом стоит небольшая двухместная или стандартная одноместная кровать. Для кровати королевских размеров ширина может составлять 50-100 см.
Обязательно следует обратить внимание на глубину элемента мебели. Оптимальным выбором для эргономики комнаты станет прикроватная тумбочка не глубже 50 см. Остальные варианты будут либо не слишком вместительными, либо затруднят доступ к кровати.
Рассматривая различные модели прикроватных столиков, следует оценить общее впечатление от стилистики оформления спальни. Для массивной кровати подойдут крупные и основательные варианты. Спальная конструкция, выдержанная в изящных пропорциях, требует наличия соответствующих элегантных тумбочек. Основное внимание уделяют вопросу достижения гармонии и органичности внутреннего пространства.
Смотреть подробнее
Особенности конструкции
Конструкция прикроватной тумбы должна полностью отвечать потребностям жителей дома или квартиры. Варианты с закрытыми ящиками позволят оптимально организовать все необходимые в быту вещи, включая: ключи, лекарства, беруши, косметические средства, письменные принадлежности и многое другое. Эргономичные и функциональные тумбочки позволят исключить хаос и потерю важных вещей в повседневной жизни.
Людям, которые предпочитают обходиться минимумом вещей, можно порекомендовать простые прикроватные конструкции без выдвижных ящиков. На горизонтальной поверхности вполне поместятся самые необходимые предметы: будильник, книга и ручка. В случае, когда спальня отличается очень маленькой площадью, можно приобрести прикроватные полочки.
Дизайн и цветовое решение
Дизайн прикроватной конструкции и ее цветовое решение зависит от общей композиции и стилистики интерьера спальни.
Если комната выдержана в элегантном и сдержанном классическом стиле, то следует обратить внимание на пропорционально гармоничные модели без лишнего декора. Цветовая палитра может варьироваться от стандартной черно-белой гаммы до роскошных оттенков бежевого, кофейного, терракотового.
Смотреть подробнее
Существуют современные направления в дизайне интерьера, допускающие смешение стилей. К наиболее распространенным относится эклектика. При правильном подходе можно дополнить кровать в классическом стиле футуристическими тумбочками, сочетать винтаж и модерн, хай-тек и ориентальный стиль.
Цветовая палитра тумбочки должна быть связана с решением интерьера спальни. Существует несколько общепринятых вариантов подбора эффектных оттенков:
- Цвет прикроватной тумбочки контрастирует с изголовьем кровати. Красиво выглядят сочетания черного и белого, белого и изумрудного, желтого и синего.
- Палитры изголовья и прикроватной конструкции совпадают.
При этом они могут быть изготовлены из различных материалов. - Тумбочка соответствует вторичному оттенку интерьерного решения.
- Прикроватный столик совпадает по цвету с оформлением горизонтальных или вертикальных поверхностей комнаты: пола, стен, потолка, дверей и окон.
- Тумбы соответствуют гамме другой мебели, которая находится в комнате, кроме кровати.
- Столики выступают в качестве ярких цветовых акцентов интерьера. Например, в комнате светло-бежевого цвета находятся тумбы открытых синих, оранжевых, бирюзовых, красных оттенков.
Популярные материалы
Современные компании изготавливают прикроватные тумбы из различных материалов:
- стекла;
- дерева;
- металла;
- пластика.
При выборе важно обратить внимание на экологичность и безопасность конструкции. Материалы, используемые при изготовлении модели, не должны приносить вред здоровью людей или домашних животных.
Очень эффектно смотрятся варианты с зеркальными поверхностями. Фактурные модели также выглядят очень оригинально и современно.
Декоративное оформление
Чтобы тумбочки приобрели оригинальный и необычный вид, можно их немного украсить. В некоторых стилях, например, в интерьерах прованс или винтаж принято декорировать столики с помощью текстиля. Можно сшить для тумбы красивую скатерть или украсить ее текстильными салфетками. Также интересно смотрятся искусственно состаренные столики, отличающиеся потертыми поверхностями.
К выбору прикроватной тумбочки следует отнестись ответственно и серьезно. Правильное решение значительно повысить уровень комфорта в доме или квартире. Чтобы найти наиболее подходящий вариант, следует просмотреть большое количество моделей. Обустраивайте свою спальню со вкусом!
Возможно вам будет интересно узнать про особенности выбора комода в скандинавском стиле, комнаты в пастельных тонах и как организовать рабочее место у окна в спальне.
Товары представленные в статье:
Рецепт семейного счастья: выбираем кровать для спальни
Рецепт семейного счастья: выбираем кровать для спальни
Кровать в спальне – тихая гавань, в которую так и хочется окунуться… Оптимальный размер, грамотно подобранное основание, подходящее по жесткости обоим, красивый дизайн… В этой статье разбираемся, какие они, самые удобные кровати для сна?
Выбор кровати для спальни – дело ответственное и даже щепетильное. Если он будет правильным, ваше утро всегда будет добрым, несмотря на ранний подъем по будильнику и капризы погоды.
Размер имеет значение
Традиционные двуспальные размеры 160х200 или 180х200 см. Для пар, которые предпочитают «свободу в отношениях», существует вариант 200х200 см. Для комнат небольшой площади – 140х200 см, так называемая полуторка, вполне комфортная для супругов обычного телосложения. Длина спального места должна рассчитываться по формуле: рост самого высокого владельца + 20 см, в противном случае ноги будут банально упираться или свисать.
Высота спального места стандартная у всех изделий.
Планируя габариты изделия и сопоставляя их с площадью комнаты, учитывайте: расстояние между стеной и боковиной кровати должно составлять минимум 70 см. Так вы сможете беспрепятственно подойти к ней с любой стороны, а также поставить в изголовье тумбу или небольшой столик.
Важную роль играют и размеры спинки. На высокую удобно облокотиться, чтобы почитать или посмотреть телевизор. На конструкцию с полками удобно ставить вещи, которые хочется держать под рукой: книги, очки, будильник или смартфон. И, конечно, неизменную тарелку для тайных ночных перекусов!
Веские основания
Два самых надежных, проверенных временем и «нестареющих» материала: металл и дерево. Они прослужат десятки лет, не деформируются и не потеряют внешнего вида. Экономичный вариант – ламинированная ДСП. Она имеет неплохие эксплуатационные характеристики, но служит меньше. Это сказывается и на цене – конструкции из древесно-стружечной плиты стоят в разы дешевле деревянных или металлических.
Форма кровати имеет непосредственное влияние на эстетику и восприятие интерьера. Классика жанра – прямоугольная или квадратная кровать с изголовьем и изножьем. В небольших спальнях отлично смотрятся модели на высоких ножках – они визуально приподнимают основание над полом и обстановка не выглядит такой «тяжелой». Одновременно глухие опорные боковины дают возможность задействовать пространство под кроватью как систему хранения.
Большой популярностью пользуются кровати круглой или овальной формы. В помещении они смотрятся очень стильно, но требуют много места для установки, поэтому приемлемы только в просторных комнатах. Удобно ли спать на круглой кровати? Несомненно да, матрас круглой формы имеет стандартное наполнение и отличается от прямоугольного исключительно формой. И ценой.
Ультрасовременное решение для маленьких комнат – кровати-трансформеры. Спальное место в таких случаях «прячется» в шкафу, подиуме или нише в стене. Отличное решение для тех, кто не хочет мириться с небольшой площадью и спать на раскладном диване.
Задаваясь вопросом, удобны ли кровати-трансформеры, подумайте – убирать ее придется ежедневно.
Опускаемся на дно
Дно у кровати может быть сплошным (из фанеры, ДСП, дерева и пр.) или реечным. Рейки или гнутые ламели обычно крепятся к каркасу с помощью специальных пазов. Дно кровати бывает стационарным или прилагается отдельно. Один из самых популярных, хорошо зарекомендовавших себя вариантов – ортопедическая платформа с двумя рядами ламелей на металлическом каркасе. Выбирая отдельное основание, отдайте предпочтение конструкции с пятью ножками – она более прочная и надежная.
Про матрас
О том, какими бывают матрасы, а также о преимуществах и недостатках каждой разновидности мы рассказывали в отдельной статье. Сегодня хочется затронуть тему выбора матраса именно для двоих, ведь существенная разница в весе может привести к дискомфорту во время сна. Вот несколько простых советов:
- Если вы не хотите чувствовать, как партнер ворочается во сне, вам нужен жесткий матрас с двойным независимым пружинным блоком или беспружинная модель с памятью формы.

- От матрасов с блоком пружин «Боннель» лучше отказаться – после нескольких месяцев использования партнер с меньшим весом начнет «скатываться» к центру кровати.
- В случае, разница в весе доходит до 40-50 кг, рекомендуем приобрести два односпальных матраса: идентичных по форме и размеру, но с разным наполнением, подходящим под индивидуальные потребности каждого. В комплект нужно будет купить ортопедический двуспальный наматрасник, который «объединит» две половины в одно целое. В результате получится очень удобная кровать!
А что с дизайном?
Внешний вид кровати – исключительно на ваше усмотрение. В последнее время все больше покупателей отдают предпочтение мягким кроватям с обивкой из кожи или ткани. Они не только уютно смотрятся, но и отличаются особой практичностью. Тем не менее, фактура дерева или блеск металла будут актуальны во все времена. Выбор за вами!
Как и какой выбрать размер кровати – оптимальный выбор в зависимости от ваших потребностей
31.
03.2021
Рейтинг статьи
Классификация кроватей по габаритам на мировом рынке
Выбор кровати для спальни – это крайне ответственная задача. От того, насколько удачным будет выбранный вариант, зависит качество сна, а значит, и качество жизни в целом. Но в процессе выбора покупатели часто устанавливают неправильные приоритеты и больше внимания обращают на дизайн, а не на практические качества мебели. Мы решили детально рассмотреть один из важнейших критериев выбора кровати для спальни – это ее размер. Наверное, многие из нас имели опыт сомнительного отдыха на спальном месте, которое совсем не подходило по габаритам. Как выбрать размер кровати и о каких особенностях нужно помнить, будем разбираться вместе.
Габариты мебели могут значительно варьироваться в зависимости от типа каркаса, наличия дополнительных функциональных элементов и механизма трансформации. Однако на рынке сформировались определенные стандарты, на которые стараются ориентироваться производители как самих кроватей, так и матрасов и прочих спальных принадлежностей.
Сегодня большинство продавцов предлагают кровати, размеры которых определяются по следующим системам:
- английская. Габариты мебели обозначаются в дюймах и футах. Такая классификация распространена в Великобритании, США и некоторых других западных странах;
- метрическая. Размеры кровати обозначаются в привычных для нас метрах и сантиметрах. Так свою продукцию обозначают практически все производители Европы и многих других регионов мира. Наша фабрика пользуется именно этой системой маркировки размеров.
Как определить нужную длину кровати
Стандартом длины кровати можно считать показатели в 200 и 190 см, этого более чем достаточно для большинства людей со средним ростом. Сложности могут возникнуть тогда, когда спальное место нужно для высокого человека. Также от стандартных решений придется отойти, если нужно подыскать оптимальное решение для спальной комнаты с небольшой площадью.
В любом случае нельзя допускать компромиссов в отношении комфорта, поэтому есть простой и проверенный способ выбора длины кровати: к росту самого высокого пользователя нужно добавить 20 см. Любителям очень больших подушек нужно увеличить результат еще на 10 см. Но нужно быть готовым к тому, что модель, выполненная по индивидуальному заказу, обойдется несколько дороже серийного аналога.
Что нужно знать о выборе кровати по ширине
Какой размер кровати выбрать, если говорить о ее ширине? В этом вопросе, как правило, ориентируются на количество постоянных пользователей. По данному критерию мебель можно разделить на следующие стандартные форматы:
- односпальные;
- полуторные;
- двуспальные.
Но в рамках этой классификации всегда присутствуют гибридные и нетипичные варианты. В качестве примера можно выделить кровати King size шириной более 2 метров.
На таком спальном месте одновременно и с комфортом может отдохнуть семья из четырех человек. Рассмотрим особенности стандартных решений более подробно.
Односпальная кровать
Мебель в этом формате чаще всего имеет ширину 70, 80 и 90 см. На таком спальном месте может хорошо выспаться не только ребенок, но и взрослый со средней комплекцией. Этой ширины вполне достаточно для того, чтобы сон не прерывался из-за страха упасть или постоянной тесноты. Односпальные модели хорошо подходят для детской комнаты, дачи или для организации дополнительных спальных мест в помещениях с небольшой площадью.
Полуторная кровать
Можно сказать, что это компромиссный вариант. Так называемая полуторка подойдет тем, кто планирует спать один, но ему мало пространства на односпальной кровати. Пары этот вариант выбирают реже, но все зависит от индивидуальных предпочтений. Ширина такой мебели может варьироваться в пределах от 100 до 140 см.
Двуспальная кровать
Модель этого класса не может быть уже 140 см. Оптимальной шириной считается показатель в 160 см: в большинстве случаев этого достаточно, чтобы не мешать своей второй половинке комфортно отдыхать. Многие производители по индивидуальному заказу изготавливают кровати шириной более стандартных 160–180 см. Обычно допустимый шаг составляет 5 см. Но нужно сразу готовиться к тому, что не только мебель обойдется дороже, но и нестандартный матрас, а также постельное белье.
Высота кровати
Говоря о размерах кровати, нельзя не затронуть тему ее высоты. Данный параметр зависит от индивидуальных предпочтений пользователей и от имеющегося или будущего матраса, поэтому производителями строго он не регламентирован. Можно лишь условно разделить высоту кроватей на три большие категории:
- низкие.
В эту категорию относятся кровати высотой не более 30 см. На сегодняшний день они остаются востребованными в странах Азии; - средние. Сюда можно отнести кровати высотой до 50 см. Как правило, именно такая высота преобладает на мебельном рынке в европейских странах. Наша компания в своей продукции использует значения, относящиеся к этой категории;
- высокие. Высота кроватей из этой категории доходит до 70 см. Такие внушительные габариты пользуются большой популярностью в США.
Габариты кровати относительно размера комнаты
Кажется, что в вопросе соотношения размеров кровати и спальни все очевидно. Стоит лишь произвести замеры комнаты и, опираясь на эти показатели, выбрать спальное место. С одной стороны, так и есть. Но, находясь в магазине, очень сложно воспроизвести в голове интерьер и особенности комнаты, которые, как может выясниться позже, очень важны.
Поэтому рекомендуется выполнить два действия.
- Ответить на следующие вопросы: как должна стоять кровать – у стены или в центре комнаты? Сколько полезного пространства в помещении можно потратить на спальное место, чтобы вся мебель не стояла впритык друг к другу?
- Схематично изобразить комнату с указанием размеров на бумаге и обозначить расположение уже имеющейся или планируемой для покупки мебели.
Полученный результат от этих действий и есть размеры подходящей кровати. А для комфортного выполнения второго действия можно воспользоваться сервисом моделирования комнаты на нашем сайте.
Наше предложение
Наша мебельная компания предлагает широкий ассортимент кроватей. В каталоге представлены модели разных размеров и дизайна, чтобы каждый нашел то спальное место, которое обеспечит комфортный и здоровый сон.
Средний размер спальни и что следует учитывать при реконструкции вашей
В среднем взрослый человек проводит около 30 процентов своей жизни в спальне.
Важно, чтобы размер вашей спальни был подходящим, чтобы вы чувствовали себя расслабленно и комфортно.
Если у вас есть дом и вы думаете о перепланировке своих спален в соответствии с вашими вкусами и требованиями к пространству, вот что вам нужно учитывать.
Начнем с основ.
Каков средний размер спальни в американском доме?
2500 квадратных футов — средний размер американского дома.Средний размер спальни составляет около 132 квадратных футов и может вместить кровать размера «queen-size».
Размер спальни обычно зависит от общей площади вашего дома. В больших домах, как правило, спальни больше, чем в кондоминиумах, квартирах или коттеджах. Однако, если вы планируете спроектировать и построить свой собственный дом или капитально перестроить существующий дом, вы можете выбрать размер спальни по своему вкусу.
Большинство домов в США имеют два типа спален в зависимости от площади в квадратных футах: основная спальня (владельца) и стандартные спальни меньшего размера.
Размер основной спальни
В зависимости от размера дома в большинстве основных спален есть кровать размера «king-size» и другая мебель, например, туалетный столик или туалетный столик. Возможно, даже останется место для гостиной.
Спальня идеального владельца достаточно велика, чтобы вместить примыкающую ванную комнату и гардеробную.
Средний размер спальни владельца в домах США составляет 14 футов на 16 футов (224 квадратных фута).
Другие размеры спальни общего владельца составляют 12 футов на 14 футов (168 квадратных футов) и 12 футов на 16 футов (192 квадратных фута).
Конечно, если вы проектируете или переделываете свой собственный дом, вы можете дать волю своему воображению и сделать главную спальню любого размера. Просто имейте в виду, что вам потребуется не менее 120 квадратных футов в любой спальне, включая главную спальню, для полноразмерной кровати.
Если вы планируете иметь комод и стул вместе с кроватью, вам потребуется около 168 квадратных футов площади.
Вам также понадобится 30-дюймовая площадь по бокам кровати, чтобы было достаточно места для передвижения и доступа к прилегающей ванной комнате и гардеробной.
Стандартный размер спальни
Обычно предназначенные для использования детьми или молодыми людьми, стандартные спальни имеют только основные удобства, а также по крайней мере одно окно и шкаф.
Эти спальни можно превратить в офисы или домашние спортзалы, если они не используются.
Средний размер спальни составляет около 132 квадратных футов, в то время как есть спальни намного больше, чем даже 144 квадратных фута.
Основное правило, которое следует учитывать при распределении пространства для стандартной спальни, заключается в том, что она должна иметь площадь не менее 120 квадратных футов, чтобы в ней могла комфортно разместиться полноразмерная кровать.
Почему вы думаете о ремонте вашей спальни?
Большинство людей, как правило, задумываются о перепланировке спальни, если они нашли дом своей мечты и хотят приспособить его к своим требованиям путем перепланировки и изменения размеров комнаты.
Ничто так не улучшает внешний вид дома, как со вкусом оформленный интерьер с современными удобствами.
Гардеробные и роскошная хозяйская ванная творят чудеса, преображая спальню. Даже простые эстетические изменения, такие как новая мебель, модернизированные светильники или встроенные места для хранения, могут вдохнуть новую жизнь в вашу комнату.
С другой стороны, если вы модернизируете спальню с ограниченным бюджетом, небольшие недорогие изменения могут изменить внешний вид помещения.
Чтобы осуществить это, вы можете рассмотреть:
- Освежить интерьер или поклеить новые обои.
- Добавление роскошного ковра или замена ковров.
- Покупка новой мебели или перестановка существующей.
- Подвесные настенные картины и картины.
- Замена старых каркасов кроватей на новейшие модели.
Индивидуальные настройки
Реконструкция спальни — одно из первых дел, которое люди решают сделать после покупки дома, в котором они планируют расти.
Если вы относитесь к тем счастливчикам, которые нашли свой дом навсегда, возможно, вы захотите составить долгосрочный план.
В наши дни многие молодые люди также инвестируют в свои дома навсегда. Это делает важным планирование для всех возрастов при реконструкции жилых помещений.
Если вы планируете состариться в доме, в котором сейчас живете, и хотите его перестроить, вам нужно подумать о том, чтобы сделать жилое пространство пригодным для пожилых людей.Это означает установку безбарьерных душевых, лифта или кресельного подъемника, более широких дверей и других удобств.
Если вы живете в двухэтажном доме, вы можете перенести основную спальню на первый этаж, в зависимости от размеров здания. Если вам нужно внести серьезные изменения, убедитесь, что окончательная структура соответствует Закону об американцах с ограниченными возможностями.
В качестве альтернативы, если вы хотите увеличить размер спальни в своем доме, вы можете снести внутренние стены или расширить существующую структуру.
См. также: 10 основных тенденций дизайна, которым следует следовать при старении на месте
Требования к пространству, которые нужно знать о
Почти всегда наша спальня — это место, где мы начинаем и заканчиваем наш день, и эстетически приятное и хорошо организованное пространство означает, что и то и другое хорошо.
Давайте рассмотрим основные требования к мебели и пространству, которые следует учитывать при реконструкции спальни.
Спальня Строительные нормы и правила
Минимальный размер спальни
Международный кодекс жилищного строительства требует, чтобы спальня имела площадь не менее 70 квадратных футов, при этом ни один размер не должен быть менее 7 футов.Это для спальни, предназначенной для одного человека. Для спальни с двуспальной кроватью вы должны добавить минимум 50 квадратных футов (всего не менее 120 квадратных футов). В городе Сиэтл есть полезный документ, в котором подробно описывается местная интерпретация требований к размеру спальни.
Минимальная высота потолка в спальне
Минимум половина потолка должна иметь высоту не менее 7 футов. Таким образом, площадь под мансардными окнами и наклонными потолками может учитываться в соответствии с минимальными требованиями к площади в квадратных футах, но по крайней мере половина комнаты должна иметь потолок во всю высоту.
Тепловая и электрическая
Спальня должна иметь как минимум две электрические розетки и систему отопления, достаточную для поддержания температуры 68 градусов по Фаренгейту или выше.
Доступ
Вы должны иметь доступ в спальню из общей зоны, например, из коридора, и вам не нужно проходить через другую спальню.
Windows
Оконные стекла вашей спальни должны составлять не менее 8 процентов площади пола, и половина этой площади окна должна быть открытой.
Выход
Если в вашей спальне нет внешней двери, вы должны предусмотреть окно, которое можно использовать в качестве аварийного выхода.
Размер оконного проема должен быть не менее 5,7 квадратных футов, а высота – не менее 24 дюймов, а ширина – 20 дюймов. Нижняя часть выходного окна должна находиться на высоте от 24 до 44 дюймов над полом.
Минимальный размер спальни по размеру кровати
Кровати имеют решающее значение для планировки и эстетики спальни. Первый шаг к планированию декора начинается с изучения среднего размера различных видов кроватей в США и их совместимости с вашими планами.
Детская кроватка
Если вы планируете превратить спальню стандартного размера в детскую или предпочитаете, чтобы ваш малыш спал в вашей основной спальне, вам потребуется освободить место для детской кроватки.Это самый маленький размер кровати с размером матраса около 2,5 на 4,5 фута и немного большей рамой. Детская кроватка поместится в любой спальне стандартного размера.
Двухъярусная кровать
Мечта большинства детей сбылась: 2,5 фута в ширину и 6 футов в длину — это стандартный размер двухъярусной кровати.
Они хорошо вписываются в стандартную комнату размером 8 на 10 футов. Вы также должны помнить о высоте потолка спальни, в которой вы хотите его разместить.
Двуспальная кровать
№Разумный выбор для небольшой спальни: две односпальные кровати обычно имеют размер 3.25 футов в ширину на 6,25 футов в ширину. Идеально подходит для молодых людей, вы можете разместить эти кровати в одном углу комнаты стандартного размера и оставить достаточно места, чтобы свободно передвигаться. Любая комната размером не менее 8 на 10 футов подойдет для двухъярусной кровати.
Полноразмерная кровать
Иногда называемые двуспальными кроватями, они идеально подходят для одиноких взрослых и подростков, которые переросли две односпальные кровати. Однако большинство пар считают их слишком маленькими для своих нужд. Полноразмерные матрасы имеют ширину 4,5 фута на 6.25 футов в длину. Минимальный рекомендуемый размер спальни для этих кроватей составляет 9 футов на 10 футов.
Двуспальная кровать
Идеально подходит для комфортного сна двух взрослых.
Кровать размера «queen-size» хорошо подходит для обычной спальни. Минимальный размер составляет около 5 футов на 6,6 футов. Минимальный размер спальни, необходимый для комфортного размещения кровати размера «queen-size», составляет 10 на 11 футов.
Большая двуспальная кровать
В то время как все кровати являются центральным элементом любой спальни, в которой они расположены, кровать размера «king-size» требует эстетического внимания.Кровать размера «king-size» доступна в двух размерах: стандартная версия и калифорнийская версия размером 6,3 фута в ширину и 6,6 фута в длину и 6 футов в ширину и 7 футов в длину соответственно. Минимальное пространство, необходимое для размещения кровати размера «king-size», составляет 10 на 12 футов.
Место, необходимое для другой мебели для спальни
Тумбочки
Доступные в различных размерах тумбочки являются незаменимой мебелью для спальни. Идеальная тумбочка должна быть той же высоты, что и ваша кровать, и пропорциональна ее размерам.
Средний размер тумбочки составляет около 2 футов в высоту, а также в глубину.
Комоды и комоды
Доступные в различных размерах, комоды и сундуки являются основными местами хранения в обычной спальне. Комоды больше подходят для больших спален, а комоды более компактны и идеально подходят для спален меньшего размера.
Стулья и зоны отдыха
При перепланировке квартиры владельца обычно выделяют место для гостиной с несколькими стульями или диванами.Размеры зоны отдыха зависят от размера спальни, но обычно составляют от 64 до 100 квадратных футов.
Составьте план
Реконструкция спальни — непростая задача, требующая тщательного планирования и выполнения.
Иногда переделки спальни недостаточно, и вам может понадобиться построить ее с нуля.
Реконструкция средней спальни требует месяцев планирования и тщательного учета нескольких факторов, включая такие основы, как размер вашего дома, количество комнат и размер спальни.
Другие факторы, на которые следует обратить внимание, включают средний размер спальни, площадь основной спальни, тип кровати и размеры других комнат.
Вам также необходимо установить бюджет и оценить, сколько вы готовы потратить на весь проект.
Если вы переделываете только главную спальню, вы можете остаться в других комнатах, пока работа будет сделана. Однако, если все спальни реконструируются, вам, возможно, придется принять альтернативные меры.
Основные параметры спальни вашей мечты
Стивен Рэндел, автор Houzz
В спальнях мы проводим больше времени, чем в любой другой комнате дома. Несмотря на то, что большую часть этого времени мы спим, мы заканчиваем и начинаем наши дни там. Организованное и хорошо продуманное пространство может улучшить ваше настроение, когда вам нужно заснуть, и хорошо начать выходной день, когда вы проснетесь.
Планирование спальни начинается с изучения стандартных размеров кроватей, какой из них вы предпочитаете и какой из них будет работать в вашем плане.
Другая мебель для спальни бывает самых разных размеров. Как только вы определите размеры своей комнаты и кровати, вы сможете принять правильное решение о комодах, сундуках, скамейках, стульях, тумбочках и так далее.
Как переосмыслить свою главную спальню
На этом плане в разрезе показана большая спальня; это 17 футов, 8 дюймов в длину и 14 футов в ширину. Предметы мебели имеют стандартные размеры, а принципы использования пространства применимы ко многим спальням.
С таким большим пространством у вас будет точка входа и маршрут движения, а также, возможно, гардеробная или зона отдыха.Рядом с кроватью вам нужна «подставка для тапочек» — мой термин для области, используемой для отрыва ног от земли и выхода на подсознательный план.
Сохраняйте вход и тираж шириной от 30 до 36 дюймов. Размеры гардеробной и зоны отдыха зависят от ваших потребностей и доступного пространства. Помещения не обязательно должны быть такими просторными, как показано на рисунке, но вы можете выделить круглую зону перед мебелью диаметром не менее 36 дюймов.
Оставьте место диаметром 30 дюймов для подставки для тапочек.
Детские кроватки. Существуют стандартные размеры матрасов, но имейте в виду, что каркасы или другая мебель для кроватей увеличивают общее пространство, необходимое для их размещения в вашей комнате. Самая маленькая из всех — детская кроватка. Размеры матраса для детской кроватки могут варьироваться, но обычно кроватки имеют ширину 28 дюймов и длину 52 дюйма. Толщина матраса также сильно различается для любого размера матраса.
Найдите вдохновение для своей идеальной детской
Двухъярусные кровати. Двухъярусные кровати имеют ширину от 30 до 33 дюймов и длину 75 дюймов.Требуемая высота зависит от мебели, которую вы покупаете для них, или от того, как вы настроите индивидуальный дизайн, например этот.
Две односпальные кровати. Стандартный двойной матрас имеет ширину 39 дюймов и длину 75 дюймов. Вы можете найти немного более длинные матрасы — 80 дюймов или 84 дюйма, — но бывает сложнее найти подходящие простыни.
Две односпальные кровати отлично подходят для небольших спален, потому что вы можете поставить кровать в углу, чтобы оставить место для отдыха и передвижения, как это было сделано здесь. Две односпальные кровати отлично подходят для детей младшего возраста, которые, как правило, чувствуют себя в них уютнее, чем в большой.
Полноразмерные кровати. Следующий размер — полноценная или двуспальная кровать. Он имеет ширину 54 дюйма и длину 75 дюймов, а также может быть длиной 80 дюймов. Полноразмерные кровати могут быть удобными для двух высоких людей, поэтому подумайте о том, чтобы перейти на кровать размера «queen-size», если у вас есть место и вы планируете часто использовать его для себя или гостей. Тем не менее, полный размер также хорош для небольших спален. Кровать в этом примере соединена с небольшими тумбочками, оставляя достаточно места для удобного прикроватного кресла.
Кровати размера «queen-size». Златовласка могла бы выбрать кровать размера «queen-size».
Будучи в самый раз, он отлично подходит для двух человек и не требует большей комнаты, как кровати размера «king-size». Кровати размера «queen-size» имеют ширину 60 дюймов и длину 80 дюймов, а также могут быть длиной 84 дюйма. Их масштаб, как показано на этом фото, работает с традиционной мебелью, такой как каркасы кроватей с балдахином.
Широкие кровати. Кровати размера «king-size» обеспечивают максимальный комфорт для двух человек и дополнительное пространство для тех, кто склонен растягиваться во время сна.Они бывают двух размеров:
1. Стандартная или восточная кровать размера «king-size»: 76 дюймов в ширину и 80 дюймов в длину
2. Калифорнийский король: 72 дюйма в ширину и 84 дюйма в длину
Для любого размера кровати вы можете найти мебель, увеличивающую общие размеры с удлиненными изножьями и встроенными тумбочками. Внимательно отнеситесь к покупке крупной мебели. Возможно, в будущем вам придется переехать в другой дом, а большие вещи может быть сложно разместить в другом месте.
Все кровати доминируют в комнате, но большая двуспальная кровать требует особого эстетического внимания. Обратите внимание, что цвета мебели и постельных принадлежностей прекрасно вписываются в общую цветовую гамму. Более темные цвета на тумбочках, комоде и произведениях искусства подчеркивают эти элементы.
Найдите новую кровать для спальни своей мечты
Тумбочки. Тумбочки могут быть солидными, как этот. Большие имеют размеры около 20 дюймов в глубину и 40 дюймов в ширину. Внимательно относитесь и к высоте.Некоторые матрасы на рынке сложены относительно высоко, и удобно, чтобы верхняя часть тумбочки была примерно на той же высоте, что и верхняя часть матраса. Наиболее распространенная высота тумбочки составляет от 26 до 28 дюймов. Меньшие тумбочки следует использовать в небольших помещениях и с меньшими кроватями.
Комоды. Комоды также сильно различаются по размеру, но самое главное, что нужно учитывать при планировании спальни, это то, что должна быть стена для кровати и стена для комода.
Вы можете найти комоды шириной до 42 дюймов; однако большинству людей нужен комод размером от 60 до 72 дюймов. Комоды обычно имеют высоту от 32 до 36 дюймов, но некоторые модели выше. Наличие зеркала над комодом встречается реже, чем в прошлом, но вы, возможно, захотите иметь его в виду при планировании своей комнаты. В этой современной комнате над комодом висит большая безмятежная фотография.
Сундуки. Более узкие и высокие, чем комоды, сундуки могут поместиться в узких стенах.У них также есть высота, которая удобна для тех, кто стоит, и они являются хорошими местами для опорожнения карманов и размещения мелких предметов. Вы найдете большинство из них шириной от 36 до 54 дюймов и глубиной от 14 до 20 дюймов. Высота обычно составляет от 48 до 60 дюймов. Традиционные детали и пропорции этой комнаты делают ее идеальным местом для этого простого сундука.
Стулья. Маленькие удобные стулья с мягкой обивкой придают спальне дополнительное измерение. Этот элемент легко упустить из виду при новой планировке спальни, но один или два стула могут стать хорошим убежищем от остальных членов семьи.
Разрешите около 36 квадратных дюймов на плане вашего этажа, а также необходимое пространство для их перемещения. Также обратите внимание на шезлонг от Weaver Design Group в этой комнате. Шезлонги требуют больше места, но добавляют роскоши в спальню. Разрешить от 66 до 72 дюймов по ширине и от 36 до 40 дюймов по глубине.
Зоны отдыха. Если вам нужна зона отдыха в спальне, вам понадобится место для столов, стульев и двухместных диванов, а также место для циркуляции, чтобы все заработало.Оставьте площадь не менее 8 на 8 футов в дополнение к вашим требованиям для кроватей, комодов и сундуков. Скорее всего, вам понадобится площадь размером 10 на 10 футов. Прямоугольная комната длиной 21 фут и шириной 14 футов вмещает спальню с большой двуспальной кроватью и гостиную.
Каков средний размер спальни для стандартной и главной спальни?
Идеи дизайна для главной спальни
Начнем с того, что к хозяйской спальне часто прилагается главная ванная или, по крайней мере, небольшая ванная комната с душевой кабиной, раковиной, унитазом, а если позволяет место, то и ванной.
При проектировании дома своей мечты из шпилек вы можете спланировать главную спальню на верхнем этаже или в той части дома, где вы можете установить ванную комнату в комнате.
Теперь, с точки зрения квадратных метров, главная спальня определенно больше, чем ваши стандартные спальни. Поэтому дизайн и декор требуют лучшей формы и функциональности.
Вы можете легко установить большую двуспальную кровать «Калифорния» в этой большой комнате, возможно, с дизайнерским изголовьем и изысканными прикроватными тумбочками.Вы даже можете выбрать кровати на платформе или кровати с балдахином, чтобы добавить изюминку.
Так как комната больше по размеру, можно выбрать яркие и вызывающие цветовые решения. Красный — предпочтительный выбор, но используйте его с осторожностью, так как он также вызывает ярость и опасность. Вы также можете использовать оттенки оранжевого, желтого, коричневого и белого цветов. Эти цвета поднимают настроение, когда вы просыпаетесь утром, и расстраивают вас в конце утомительного дня.
Читайте также – Лучшие идеи декора главной спальни
Изображение предоставлено: pinterest.ком
Что касается остальной жилой площади, то в главной спальне можно разместить небольшую зону отдыха у окна, где можно насладиться утренним кофе или завтраком. Это приятное маленькое пространство, созданное для вас и вашего супруга, чтобы расслабиться в компании друг друга. Если вы холостяк, то это место станет отличной спокойной зоной для чтения или местом, где можно полюбоваться закатом.
Вы можете установить гардеробную в своей главной спальне, что определенно сделает ее более изысканной.Рассмотрите возможность добавления шкафов или стеллажей, чтобы с гордостью демонстрировать свои изысканные приобретения и предметы декора. Если у вас уже есть комната трофеев и специально отведенные места для настенного искусства, подумайте о том, чтобы украсить эти полки индивидуальными украшениями для спальни. Отличный выбор доступен на Amazon, Etsy и других онлайн-форумах.
Вы также можете установить проекты местных художников, которые вам нравятся.
В главной спальне достаточно места для пола и хранения для всех ваших потребностей.Итак, воспользуйтесь возможностью проявить немного творчества. Добавьте удобное кресло, телевизор с плоским экраном, камин или комнатные растения, чтобы оживить жилое пространство.
Читайте также – 35 идей весеннего декора для спальни
Какой стандартный размер спальни?
Вы планируете построить новый дом или заняться масштабным проектом реконструкции? Если ответ на любой из этих вопросов положительный, вы быстро обнаружите, что важно знать стандартный размер спальни.
Может показаться, что это очень просто. Тем не менее, это, вероятно, то, о чем вам никогда не приходилось думать раньше. Я знаю, что не знала этого до того, как начала делать ремонт и поняла, что понятия не имею, насколько большой должна быть моя спальня.
Если вы боретесь с тем же вопросом, не бойтесь. Мы вас прикрыли.
Давайте углубимся и посмотрим на стандартный размер спальни.
Каков стандартный размер спальни?
Я обнаружил, что не существует общепринятых стандартов для всех дизайнеров и архитекторов.Обычно стандартный размер спальни составляет от 9 на 9 футов до 17 на 17 футов.
Хотя это может варьироваться в зависимости от архитекторов и личных предпочтений, существуют некоторые факторы, которые могут определять минимальный размер спальни.
Важнейшим фактором, определяющим размер спальни, должен быть размер кровати, которая будет в спальне. В спальне должна быть не только кровать, которая находится в комнате, но также должно быть достаточно свободного места вокруг кровати.
В большинстве случаев вам также понадобится комод, тумбочка или стол, поэтому важно учитывать такие вещи.
Связанное чтение: Как защитить вашу спальню от пыли: главные советы, которым нужно следовать
Если у вас есть двуспальная кровать, минимальный размер вашей спальни должен быть 7 футов на 10 футов.
Это не только минимальный размер, но и стандартный размер.
Есть несколько спален с двумя односпальными кроватями, которые меньше этой, но они не соответствуют нормам.Эти небольшие спальни обычно имеют размеры около 8 на 9 футов. Это не рекомендуется, потому что это не соответствует коду.
Размер спальни и размер кровати
Коды, как правило, диктуют, что площадь вашей спальни должна быть не менее 70 квадратных футов. Высота потолков также должна быть около 7 футов и 6 дюймов. Это минимум для того, чтобы спальня считалась жилым пространством.
Хотя эти минимальные требования не запрещают вам ставить кровать в комнате меньшего размера и спать в ней, вы не можете указывать эти комнаты меньшего размера как спальни с целью продажи дома или сдачи его в аренду.
Если у вас есть две односпальные кровати, минимальный размер спальни увеличивается до 9 на 9 футов. Стандартный размер спальни с двумя односпальными кроватями немного больше и составляет около 10 на 10 футов.
Минимальный размер комнаты с двуспальной кроватью составляет около 9 футов 6 дюймов на 10 футов 6 дюймов.
Минимальный размер комнаты с двумя кроватями здесь не оставляет много места для мебели, поэтому комнаты большего размера подходят для размещения нескольких кроватей
Кровати размера «queen-size» не требуют много места при стандартном размере 10 на 10 футов.Кровать размера «king-size» увеличивает стандартный размер до 10 футов на 12 футов и 6 дюймов.
Если вы планируете поставить в своей комнате двухъярусную кровать, вам, возможно, придется уделить особое внимание высоте потолка. В среднем для двухъярусной кровати нужен зазор не менее 3 футов.
Это означает, что ваш потолок должен быть между 7 футами и 6 дюймами и минимум 8 футами и 6 дюймами.
Размер главной спальни
Если в вашем доме несколько спален, то одна из них будет главной спальней.Размер главной спальни обычно больше, чем все остальные спальни в доме. Это самые желанные спальни в доме.
Я знаю, что это спальня, в которой я хочу быть.
Главная спальня среднего размера обычно имеет площадь 190 квадратных футов. В главных спальнях также часто есть большие шкафы. Я знаю, что шкаф в моей главной спальне — это гардеробная, которую я люблю.
Большие главные спальни могут даже превышать 280 квадратных футов. Большие главные спальни могут включать в себя еще до 150 квадратных футов для примыкающей главной ванной комнаты и гардеробной.
Большие главные спальни в основном зарезервированы для больших домов, потому что в небольших домах они могут монополизировать значительную часть всего пространства дома.
Я думаю, что размер является важным аспектом спальни. Я хотел убедиться, что вся моя мебель поместится в пространстве и даст мне дополнительное пространство, которое я хотел. Есть еще один немаловажный фактор. Это форма спальни.
Интересная форма спальни может придать вашему пространству уникальную или привлекательную привлекательность, но я думаю, что лучше придерживаться наиболее полезных форм.
Формы, которые слишком далеки от проторенных путей, могут оставить вас со странным пространством, в которое может быть трудно вписать нужные вам части.
Наиболее стандартными формами являются квадраты и прямоугольники, так что это самые безопасные ставки. Хотя не бойтесь экспериментировать с дизайном, если хотите приключений.
Все зависит от
При обустройстве спальни важно знать, каких размеров и форм должны быть вещи. Стандартные размеры спальни часто диктуются размером кровати, которую вы ставите в комнату.
Хотя вы можете разместить кровать в любой комнате, которая ей подходит, существует минимальный размер комнаты, прежде чем вы сможете рекламировать эту комнату как спальню.
Связанные чтения: Могу ли я сделать потрясающую спальню в моем подвале?
Не только площадь комнаты имеет значение, но и форма может значительно повлиять на дизайн и ощущение комнаты. Обязательно спланируйте заранее и узнайте, сколько места вам понадобится и что вы хотите сделать со своим дизайном.
Если вам понравилось, дайте нам знать и не стесняйтесь задавать любые вопросы, которые у вас могут быть!
Каковы основные размеры хорошо спланированной спальни?
Спальни бывают разных размеров; они могут быть компактными, среднего размера или просторными.Каким бы ни был размер вашей спальни, планировка должна быть такой, чтобы пространство было вентилируемым, не загроможденным и имело мебель подходящего размера. Основная планировка спальни вращается вокруг расположения кровати, тумбочек и шкафов, а также места для передвижения. Вот все основные размеры мебели для спальни, которые помогут вам создать эффективную планировку, которая наилучшим образом соответствует форме и размеру вашего пространства.
1. Размер кроватейКровати и матрасы классифицируются по размеру:
- Кровати размера «king-size» имеют размер 72×78 дюймов и подходят для главных спален шириной не менее 12 футов.
- Кровати размера «queen-size» размером 60×78 дюймов подходят для компактных и небольших спален.

- Односпальные кровати размером 36×72 дюйма идеально подходят для детской или спальни для одного человека.
Примечание: Перед покупкой сверите размер каркаса кровати с размером матраса.
Shalini GanguliSave Photo 2. Расстояние между двумя односпальными кроватями- Наиболее распространенный способ разделения двух односпальных кроватей — установка между ними общей тумбочки.Расстояние между двумя односпальными кроватями должно быть не менее метра.
- Минимальный зазор с другой стороны односпальной кровати (или даже двуспальной) должен быть около 24 дюймов, чтобы было удобно заправлять кровати.
- Минимальная ширина прохода по спальне должна быть не менее 3 футов; меньшее количество сделало бы пространство для циркуляции слишком узким.
Длина прикроватных тумбочек варьируется от 21 до 36 дюймов, а глубина должна составлять примерно 15 дюймов.

По эмпирическому правилу высота прикроватной тумбочки должна быть на том же уровне, что и верхняя часть матраса. Однако некоторые домовладельцы предпочитают, чтобы она была немного ниже (примерно на 1 дюйм), чтобы можно было легко дотянуться до вещей с кровати.
Rodrigues Bodycoat ArchitectsСохранить фото 4. Размеры гардероба- Максимальная ширина навесных панелей гардероба варьируется от 18 до 24 дюймов. Глубина шкафа должна быть не менее 24 дюймов, а его высота должна соответствовать уровню перемычки дверей, которая обычно составляет 7 футов.Полноразмерные шкафы касаются потолка.
- Оставьте перед шкафом свободное пространство в 36-48 дюймов, в зависимости от размера его панели, чтобы было достаточно места для циркуляции, даже если ставни шкафа открыты. №
- Для компактных или небольших спален выбирайте шкафы-купе, поскольку они являются хорошим решением для экономии места.
6.
Размер туалетного столика
Длина туалетного столика должна быть не менее 2 футов, но может варьироваться в зависимости от размера комнаты; его высота должна быть 32-36 дюймов, а глубина не менее 16 дюймов, чтобы было достаточно места для нанесения макияжа или прически.Также убедитесь, что перед комодом нет препятствий, чтобы можно было отойти на несколько шагов назад и получить полное представление о себе во время одевания.
7. Размеры учебного стола
Учебный стол должен быть не менее 4 футов в длину и 21-24 дюйма в глубину. Оставьте за рабочим столом свободное пространство в 4 фута, чтобы было достаточно места для того, чтобы один человек мог сидеть и заниматься, а другие могли удобно пройти, не мешая работнику.
Удобная высота потолка в спальне должна быть не менее 9 футов. Все, что меньше этого, делает пространство клаустрофобным.
- Зазор между настоящим потолком и подвесным потолком составляет от 5 до 6 дюймов, чтобы можно было разместить скрытые осветительные приборы.

- Если через спальню проходят лучи, используйте их для создания подносов для встроенного освещения. Постарайтесь добиться максимальной высоты потолка в спальне.
- Для спальни с низким потолком используйте только потолочные светильники.
Каков средний размер спальни в США?
Ознакомьтесь с нашим путеводителем по размерам средних спален в США и их изменению с течением времени, а также стоимости пристроек.
Хотя размер средней американской семьи уменьшился с середины двадцатого века, за то же время средний размер спальни в Соединенных Штатах увеличился в геометрической прогрессии, а также средний размер дома в США.
За последние 30 лет размер семей уменьшился на 25 процентов, но средний размер дома вырос почти на 50 процентов. Средняя площадь дома в середине 1970-х годов составляла около 1500 квадратных футов. За прошедшие десятилетия этот средний показатель увеличился до среднего размера дома более 2000 квадратных футов.
Если в прошлом спальни и особенно ванные комнаты были общими для нескольких членов семьи, то теперь каждый член семьи имеет свою спальню, если не собственную ванную комнату.
Связанный: Средняя площадь квартиры в США | Средний размер подвала в США | Средний размер столовой в США | Средний размер ванной комнаты в США | Средний размер гостиной в США | Средний размер кухни в США
Главная спальня среднего размера
Главная спальня в доме самая большая из всех спален. Его также часто называют главной спальней. Главная спальня, как правило, занимает около 11,3% площади среднего дома в Соединенных Штатах.Площадь главных спален в недавно построенных домах составляет в среднем около 14 на 16 футов или 224 квадратных фута (20,8 квадратных метра или 32 256 квадратных дюймов). Как правило, главная спальня имеет прямоугольную или квадратную форму, но можно найти и более разнообразные формы.
Сегодня главная спальня чаще представляет собой главную спальню с большой или гардеробной и полноценной ванной комнатой.
Часто главные спальни строятся с гардеробной площадью около 150 квадратных футов. Только увеличение количества и размеров туалетов и ванных комнат в мастер-каютах может частично объяснить, почему средний размер дома в США так сильно увеличился за последние десятилетия.
Современное общепринятое мнение, связанное со строительством дома, заключается в том, что главная спальня должна быть как минимум достаточно большой, чтобы в ней могла разместиться двуспальная кровать размером 10 на 12 футов. Люди часто держат в своих спальнях и другие предметы мебели, и им необходимо иметь возможность легко перемещаться по спальне. Средние размеры главной спальни меньше для двуспальных кроватей, которые составляют примерно 60 дюймов на 80 дюймов или пять футов на 6,67 фута. В то время как спальня с кроватью меньшего размера, например, кроватью размера «queen-size», должна быть меньше, чем спальня с кроватью большего размера, например, кроватью размера «king-size», в главной спальне можно использовать меньшую кровать, в которой может поместиться большая кровать.
размер.
Средняя высота потолка в доме в настоящее время составляет 9 футов (2,7432 метра). Многие люди чувствуют себя стесненными, когда оказываются под потолком высотой менее 9 футов, поэтому в настоящее время люди, строящие дома, часто выбирают потолки высотой 10 футов. Пятьдесят лет назад, в 1970-х годах, средняя высота потолков составляла 8 футов (2,44 метра). Хотя может показаться, что один фут не может иметь значения, если потолок находится значительно выше головы среднего человека, дополнительные футы или два значительно открывают комнату для глаз.
Когда речь идет о средних размерах дверей в спальню, существует установленная стандартная высота, но не одна стандартная ширина. Вместо этого существует несколько различных стандартных размеров дверей для спален, которые обычно используются. Стандартная высота двери спальни составляет 80 дюймов или шесть футов восемь дюймов, а ширина двери может быть от 24, 28, 32 до 36 дюймов.
Окна – неотъемлемая часть любого помещения.
Они позволяют естественному свету освещать комнату и позволяют обитателям видеть мир снаружи.Не существует истинного стандартного размера окна для любой комнаты, но есть повторяющиеся закономерности в размерах окон в среднем американском доме. Окна в среднем американском доме могут иметь ширину от 36 до 84 дюймов, а высоту — от 24 до 60 дюймов.
Детская спальня среднего размера
Детские спальни часто меньше, чем главная спальня, и также часто считаются спальней стандартного размера в доме. В доме часто бывает более одной спальни стандартного размера.
Большинство стандартных спален имеют ряд общих характеристик. Например, в них обычно есть только одно окно и гораздо меньший шкаф, чем в главной спальне. Этот шкаф также обычно не гардеробная, а скорее гардеробная. Также часто можно увидеть, что эти спальни превращаются в другие комнаты. Некоторые примеры включают тренажерный зал, гостевую спальню или кабинет. Стандартные спальни занимают в среднем около 17 процентов от общей площади дома.
Средний размер детской спальни составляет 11 футов на 12 футов, или средняя площадь в квадратных футах составляет 132 квадратных фута.Тем не менее, средняя детская спальня может быть размером всего 10 футов на 10 футов (100 квадратных футов или 9,29 квадратных метра). Код, в соответствии с которым должна быть построена спальня, составляет минимум семь на 10 футов. Любая комната меньше этого минимального размера спальни считается не соответствующей правилам.
Когда дело доходит до других аспектов комнаты, средние размеры, как правило, одинаковы, независимо от того, является ли это главной спальней или спальней стандартного размера. Как и в главной спальне, средняя высота потолка в детской составляет 9 футов (2,5 метра).7432 метра). Чтобы спальня соответствовала нормам, высота потолка должна быть не менее 7 футов 6 дюймов. Окна и двери, как правило, следуют тем же тенденциям, что и в главных спальнях, хотя они также имеют тенденцию к меньшей стороне.
Проблемы и решения для маленькой спальни
Когда речь идет о спальне любого типа, важно помнить об одном важном элементе, который может сделать пространство более или менее пригодным для проживания: планировка спальни.
В спальне не должно быть слишком много мебели, и любая мебель для спальни должна иметь возможность полностью и легко открываться и закрываться без необходимости каждый раз перемещать предмет мебели.Кроме того, нужно иметь возможность передвигаться по спальне, не натыкаясь на предметы.
Вот несколько способов сэкономить место в маленькой спальне, а также сделать ее больше.
В главной спальне:
Рассмотрите небольшие предметы мебели для спальни или мебель для спальни, которая служит более чем одной цели. Например, вместо того, чтобы ставить скамейку в конце кровати, вы можете рассмотреть скамейку или сундук для хранения вещей, которые можно использовать как для сидения, так и для хранения вещей.
Попробуйте навести порядок в главной спальне.Это включает в себя подъем одежды с пола и заправку постели. Вы будете шокированы тем, как опрятная и опрятная комната делает любое пространство намного больше!
В детской спальне
Используйте вертикальное пространство.
Это можно сделать разными способами, но мы поместим два ниже.
Если у вас мало места и вам нужно, чтобы некоторые из ваших детей делили спальню, рассмотрите возможность добавления двухъярусных кроватей в детскую спальню! Это позволяет разместить две кровати на площади одной односпальной кровати.Кроме того, какой ребенок не хочет двухъярусную кровать?
Кроме того, вы можете использовать вертикальное пространство, добавляя полки, будь то настенные или в виде книжного шкафа. Использование вертикального пространства не только дает вам больше места для хранения, чем простое использование горизонтального пространства, но и оставляет больше места на полу — очевидно, для игр!
Таблица размеров кровати
Было бы упущением не указать размеры кроватей при описании среднего размера спальни для разных типов спален.
- Размеры кроватки: 28″ Ш x 52″ Д (хотя некоторые кроватки больше).
- Размеры двуспальной кровати: 38″ Ш x 75″ Д
- Размеры кровати Twin XL: 38″ Ш x 80″ Д
- Размеры полной/двуспальной кровати: 54″ Ш x 74″ Д
- Размеры двуспальной кровати XL: 54″ Ш x 80″ Д
- Размеры двуспальной кровати: 60″ Ш x 80″ Д
- Размеры большой двуспальной кровати: 76″ Ш x 80″ Д
- Размер кровати размера «king-size» California: 72″ Ш x 84″ Д
- Размер кровати Wyoming King: 84″ Ш x 84″ Д
- Alaska King Размеры кровати: 108″ Ш x 108″ Д
Цитаты архитекторов
Бретт Хэнд Архитектор, П.
СБретт не только ответил в течение часа, но и оказал невероятную помощь. Он сказал нам, что его почасовая ставка составляет 125 долларов, а количество времени, необходимое для постройки мастер-комнаты или комнаты стандартного размера, зависит от используемых материалов. Он сказал, что стоимость комнат в здании может варьироваться от 3000 до 30 000 долларов. Если вы хотите узнать больше о Бретте или связаться с ним по поводу новой комнаты или ремонта вашей существующей спальни, нажмите здесь.
Средняя стоимость добавления новой спальни в доме колеблется от 50 до 250 долларов за квадратный фут.Материал, используемый для комнаты, наряду с ее отделкой, также может быстро увеличить стоимость пристройки комнаты. Если вы планируете нанять архитектора для проектирования пристройки к вашей комнате, вы должны знать, что это добавит от 875 до 2500 долларов к стоимости вашей пристройки. Тем не менее, мы настоятельно рекомендуем нанять архитектора. Если вы собираетесь потратить много денег на ремонт или дополнение комнаты, вы хотите, чтобы это было сделано правильно.
Так что нанять архитектора, работа которого заключается в проектировании зданий и помещений, — отличное решение.
Домашние подарки Stratosphere…
Примите участие, чтобы выиграть Маленькая бытовая техника
Лучшие мелкие бытовые приборы включают блендер Vitamix, кастрюлю быстрого приготовления, соковыжималку, кухонный комбайн, настольный миксер и кофеварку Keurig.
Бесплатные раскраски и книги для детей
Бесплатно скачать и распечатать.
Загрузите тысячи пользовательских раскрасок и головоломок для своих детей.
Имеет ли значение размер спальни, когда дело доходит до дизайна вашего спального места?
Основные параметры при проектировании (или перепланировке) вашей спальни
Мы проводим больше времени в своих спальнях, чем в любой другой комнате нашего дома.В то время как ваша спальня может быть оазисом спокойствия в этом занятом мире, она также может служить специальным домашним офисом или местом сбора семьи.
Здесь мы начинаем наши дни и заканчиваем их. Это место, где мы мечтаем, надеемся, планируем и, надеюсь, хорошо выспимся.
Но имеет ли значение размер при оформлении спальни? Существует ли спальня мечты идеального размера? Хотя вы, возможно, не сможете изменить размер своей спальни, если только вы не планируете ремонт дома, есть вещи, которые вы можете сделать, чтобы максимизировать пространство.В некоторых спальнях варианты расстановки мебели ограничены и довольно очевидны, но не всегда…
Планирование пространства спальни
Комната для сна – согласно большинству строительных норм и правил – должна быть не менее 70 кв. футов, что соответствует размеру небольшой детской (7 футов х 10 футов). Средняя спальня в квартире составляет 132 кв. м, в доме — 219 кв.
Первый и самый большой предмет мебели в вашей спальне — это кровать. Вы захотите измерить свою комнату перед покупкой, чтобы знать, какой размер кровати (и матраса) подойдет лучше всего.
Большинство врачей и тренеров по сну рекомендуют матрас королевского размера для пар, так как он позволяет обоим людям свободно двигаться ночью, не мешая друг другу.
Но есть ли у вас для этого место? Чтобы кровать размера «king-size» удобно разместилась в вашей комнате, вам понадобится как минимум 144 кв. фута (12’X12’).Для кровати размера «queen-size» требуется минимум 120 кв. футов (10’X12’).
Измерьте, насколько большая кровать может поместиться в вашей комнате, и при этом ходить вокруг нее. Тогда задайте себе несколько вопросов:
- Можно ли установить тумбочки с обеих сторон кровати?
- Какую еще мебель можно удобно разместить в комнате?
- Вам нужно больше одного комода и/или шкафа?
- У вас есть место для гостиной?
Где восходит и заходит солнце, и вы хотите посмотреть шоу из своей постели? Это может сыграть решающую роль в том, где вы решите поставить свою кровать.Самое популярное место для кровати — у стены (по центру) напротив двери. Если вы выберете этот вариант, инвестируйте в эффектное изголовье, так как оно станет центром внимания в комнате.
Поставить кровать напротив двери не всегда возможно, поэтому внимательно посмотрите на другие стены в комнате – достаточно ли они длинные, чтобы вместить вашу кровать и тумбочки рядом с ней? Если вы можете добавить или удалить стены, рассмотрите возможность добавления стены, которая не достигает потолка, отделяя спальную зону от функционального жилого пространства.
Если у вас есть свободное место, подумайте о том, чтобы поставить кровать по диагонали. Говоря о больших спальнях, вы также можете разместить свою кровать посередине комнаты. Этот вариант хорошо работает с минимальным количеством мебели вокруг кровати.
Меблировка маленькой спальни
В то время как в большинстве спален есть встроенный шкаф, наличие встроенного пространства для одежды является относительно новым дополнением к нашему спальному пространству. Много поколений назад было достаточно платяного шкафа или шкафа — или чулана в соседней комнате.
Если ваша спальня маленькая, и вы хотите освободить больше места на полу (и избавиться от беспорядка), подумайте о том, чтобы переместить комод в шкаф (если он достаточно большой), купите контейнеры, которые задвигаются под кровать и вместо тумбочек установите плавающие полки рядом с кроватью.Повесьте телевизор, а не подставку на пол. И избавьтесь от ненужной мебели. Для самой кровати выберите кровать только с изголовьем и без изножья, чтобы создать большее ощущение простора.
Также придерживайтесь более светлых тонов во всем, от пододеяльников и штор до ковров и другой мебели, такой как стулья и столы.
И, наконец, не забудьте про основу для матраса
Основу матраса часто упускают из виду, но на самом деле она так же важна, как и сам матрас.Правильная основа может продлить комфортный срок службы вашего матраса, обеспечить дополнительную поддержку, увеличить высоту и улучшить вентиляцию. Коробчатая пружина (пружины в деревянном или металлическом каркасе) — традиционный и популярный выбор фундамента. Кровать с прочной платформой стоит на полу и обеспечивает превосходную поддержку и долговечность. Некоторые из них имеют встроенное хранилище, что очень удобно.
Возможно, вы также захотите использовать регулируемую базу. Особенно, если вы читаете в постели, смотрите телевизор или хотите решить такие медицинские проблемы, как кислотный рефлюкс, боль в спине и храп.Благодаря пульту дистанционного управления вы можете поднять верхнюю и нижнюю части кровати для максимального комфорта.


м. Но с учетом объема воздуха, необходимого для двоих, лучше предусмотреть существенно большую площадь.
Сесть в кресло, вытянуть ножки на пуф, положить книжку на туалетный столик по соседству. Для всего этого требуется место – как минимум 1,5 кв. м. Если в проекте спальни кресло предполагается установить в угол, по диагонали для зоны отдыха нужно выделить дополнительно 2-3 кв. м.
На узкой кровати им будет некомфортно отдыхать, её ложе также лучше взять побольше.
м. Если в проекте спальни кресло предполагается установить в угол, по диагонали для зоны отдыха нужно выделить дополнительно 2-3 кв. м.
м.
При этом они могут быть изготовлены из различных материалов.
В эту категорию относятся кровати высотой не более 30 см. На сегодняшний день они остаются востребованными в странах Азии;