Серия П-44 — планировка с размерами
Несущие стены дома серии П-44
Серия П-44
Количество этажей: 17 этажей, технический этаж в уровне чердака и подвал под всем зданием.
П-44 — высота потолков: 2,5м.
Описание несущих элементов здания:
П-44 — толщина стен
Наружные стены: Трёхслойные навесные панели с эффективным утеплителем, толщина 300 мм.
Внутренние стены: Железобетонные панели толщиной 140, 180 мм.
Междуэтажные перекрытия: Ж/б панели перекрытия толщиной 140 мм, опирающиеся по контуру размером на комнату.
Перегородки: Гипсобетонные панели толщиной 80 мм.
Лестницы: Сборные ж/б из маршей и площадок.
Первое строительство домов серии П-44 приходится на 1975 год. Спраектированные здания были шестнадцатиэтажными домами, состоящими из секций, включающих расположение четырех квартир на одной лестничной клетке.
В отличие от зданий серии П-3 данный тип домов предусматривал сразу установку наружных стен из трёхслойных навесных панелей. Ещё одним отличием от серии П-3 является то, что перегородку в трехкомнатной квартире между коридором и гостиной можно сносить- толщина у неё всего 80 миллиметров и она является не несущей.
Фасады данной серии обычно выполнялись в двух цветах — бело-синих тонах или бело-светлокоричневых.
Тип дома П-44 — дополнительная информация
1. Серия П-44 — планировка с размерами
2. Планировка однокомнатной квартиры П-44 с размерами
3. Планировка П-44 двухкомнатная квартира — планировка с размерами
4. Серия П-44 — планировка с размерами трехкомнатной квартиры
5.
Планировка квартир П-44 в формате dwgСкачать
планировка с размерами. Типовые перепланировки квартир в домах П44Т План квартиры серии п 44т
Строиться она началась еще с 1997г. и по настоящее время. Имеет собственную модификацию, которая отличается от нее лишь количеством этажей — это серия П-44Т/17.
Дом П-44Т панельный, состоит из угловых и рядовых секций по четыре квартиры, где 1-комнатная квартира имеет размер жилого помещения — 19м 2 , кухня — 7-9м 2 , санузлы совмещенные; 2-комнатная квартира — 30-34 м 2 , кухня — 8-13 м 2 , санузлы раздельные; 3-комнатная квартира — 44-54 м 2 , кухня — 10-13м 2 , санузел также раздельный. Все комнаты в квартирах домов серии П-44Т изолированные. Во всех квартирах, предусмотрены эркеры и просторные лоджии. Внутренние стены состоят из сборных железобетонных панелей толщиной 16 см и 18 см. Наружные стеновые трехслойные навесные панели с утеплителем из пенополистирола и с теплоотражающей металлизированной пленкой внутри утеплителя, общая толщина 30 см; с фасадной стороны облицованы плиткой «под кирпич», начиная со второго этажа.
Перегородки из многих материалов: пазогребневые или пенобетонные блоки, гипсокартонные листы по металлокаркасу, гипсобетонные прокатные панели, но чаще всего гипсобетонные, все они одной толщины — 8 см. Перекрытия — железобетонные плиты толщиной 14 см.
Серия жилых домов П-44Т обладает различными недостатками, такими как, узкая комната в двухкомнатных линейных квартирах (с окнами на 1 сторону), швы между панелями требуют дополнительной промазки (иначе будет холодно). Возможности перепланировки в доме данного типа очень серьезно ограничены. Почти все стены являются несущими. Однако сохраняются следующие возможности допустимой перепланировки без пагубного влияния на несущие конструкции:
- В трехкомнатных квартирах перегородка между большой комнатой и коридором является ненесущей.
- Сантехблок выполнен из гипса и может быть демонтирован и/или видоизменен.
- В домах после 2007 года постройки в несущих панелях между кухней и комнатой в части квартир предусмотрена специальная ниша для выполнения дверного проёма («вафля»), которую можно демонтировать.
Все же данная серия обладает и рядом преимуществ: к планировкам были добавлены эркеры, медная электропроводка, вентиляция естественная вытяжная, горячее водоснабжение с верхним разливом, внешний вид приобрел особый цвет — красный с песочным, эркеры и лоджии покрасили в белый. Для проживания в домах серии П-44Т бывает, доступен мансардный этаж. Появилась современная система безопасности, которая реагирует на открытие служебных помещений, затоплении или угрозы возникновения пожара.
В каждом подъезде установлен один пассажирский и один грузопассажирский лифт, в 20-25-этажных секциях (подъездах) — 2 грузопассажирских и пассажирский. Количество подъездов от 1 до 8. Лестницы незадымляемые, противопожарный балкон отсутствует. Мусоропровод расположен на лестнице, с загрузочным клапаном на площадке.
Срок службы дома серии П-44Т около 100 лет, поэтому не стоит, надеяться на снос, в ближайшем времени.
Дома серии П-44Т строить начали с 1997 года и строят по сей день так как их срок эксплуатации достигает до 100 лет.
Эти многоэтажные дома от 9 до 25 этажей строят в Москве и московской области. Обычно на одной лестничной площадке располагаются одна однокомнатная квартира, две двухкомнатных квартиры и одна трёхкомнатная квартира.
Дома П44Т планировки квартир
Ещё бываю угловые секции на которых на одной лестничной площадке располагаются две трёхкомнатные квартиры и две однокомнатные квартиры.
Осуществить перепланировку квартир в типовых домах можно по типовому проекту
Так как дома серии П-44Т имеют разную этажность то и площадь однокомнатных, двухкомнатных и трёхкомнатных квартир в разных домах тоже разная. Так в однокомнатных общая площадь может быть от 37 до 39 кв.м, в двухкомнатных от 51 до 61 кв.м, а в трёхкомнатных от 70 до 84 кв.м. Соответственно и площадь кухни и жилая площадь в разных домах будут отличаться. Высота от пола до потолка в квартирах от 2.70 до 2.75 метров. Туалет и ванная комната в трёхкомнатных и двухкомнатных квартирах раздельные, а в однокомнатных квартирах совмещённые.
Однокомнатных квартир
Стандартная планировка однокомнатной квартиры состоит из прихожей, небольшого коридора, большой комнаты, кухни и совмещённого туалета с ванной.
Дом серия П 44Т планировка однокомнатной квартиры
Перепланировка панельной квартиры возможна по одному из типовых проектов которые приведены ниже.
Перепланировка однокомнатной квартиры П 44
В этом варианте заделывается коридор по которому можно было пройти на кухню и вместо коридора делается небольшая кладовка.
В прихожей делается встроенный шкаф. Вход в ванную переносится из коридора в прихожую, а вход на кухню делается прямо из комнаты.
Перепланировка П 44 однокомнатная квартира
В этом варианте заделывается коридор по которому можно было пройти на кухню и вместо него делается туалет. Прихожую увеличиваем за счёт уменьшения ванной комнаты. В прихожей делается встроенный шкаф и небольшая кладовка. Вход в ванную и в туалет будет осуществляться прямо из прихожей, а вход на кухню будет осуществляться через комнату.
В домах П 44Т перепланировка однокомнатных квартир
В этом варианте коридор по которому можно было пройти на кухню совмещается с ванной комнатой. В прихожей делается небольшая кладовка. Вход на кухню будет осуществляться через комнату.
Двухкомнатных квартир
Стандартная планировка двухкомнатной квартиры состоит из небольшой узкой прихожей, широкого коридора из которого можно попасть в обе комнаты, на кухню и в туалет с ванной комнатой.
Планировка квартир П 44Т
Ниже представлены некоторые типовые перепланировки квартир.
В доме серии П44Т перепланировка двухкомнатной квартиры
В этом варианте ванную комнату расширили за счёт коридора по которому можно было попасть на кухню и в нём же установили дополнительный туалет, а вход в старый туалет сделали из кухни. Одну комнату сделали проходной чтобы через неё можно было попасть на кухню. Вторую комнату уменьшили на ширину созданной кладовки и небольшого коридора по которому можно попасть в кладовку и во вторую комнату.
Перепланировка квартир П 44 с объединением туалета и ванны
В этом варианте произвели перепланировку ванной и туалета увеличив их площадь за счёт коридора по которому можно было попасть на кухню. Одну из комнат сделали проходной чтобы через неё попадать на кухню, а вторую комнату оставили без изменений.
Перепланировка квартир П 44Т при установке джакузи
В этом варианте также как и предыдущем совместили туалет с ванной комнатой и увеличили её площадь за счёт коридора. Но из ванной убрали стандартную ванну и поставили джакузи.
Вход на кухню сделали через комнату сделав её проходной.
Трёхкомнатных квартир
Стандартная планировка трёхкомнатной квартиры состоит из трёх отдельных комнат, большой кухни, отдельных туалета и ванной комнаты, прихожей и коридора из которого можно попасть во все помещения.
Планировка квартир П44Т
Перепланировка трехкомнатной квартиры п 44 может быть сделана по одному из типовых проектов которые приведены ниже.
Один из вариантов перепланировки трехкомнатной квартиры П44Т
В этом варианте одну из комнат увеличиваем за счёт части коридора но эта комната будет проходной так как только через неё можно будет пройти в другие две комнаты и на кухню. За счёт другой части коридора увеличится площадь ванной комнаты и в ней можно установить вместо ванны джакузи. У входа останется небольшая прихожая из которой можно будет попасть в ванную комнату, туалет и проходную комнату.
Перепланировка 3 комнатной квартиры П44Т в четырёхкомнатную
В этом варианте одну из комнат увеличиваем за счёт части коридора но эта комната будет проходной так как только через неё можно будет пройти в другие две комнаты и на кухню.
Перепланировка П 44 трехкомнатная
В этом варианте увеличивается площадь ванной комнаты за счёт части коридора по которому можно было попасть на кухню и делается дополнительно туалет. Вход на кухню будет проходить через небольшую смежную с ней комнату. Можно поэкспериментировать с дверями в две отдельные комнаты.
В сегодняшнем городском домостроительстве наиболее распространенной является планировка П44Т, которая имеет ряд безусловных достоинств. Еще в семидесятые годы было начато строительство новых домов серии П44 согласно типовым проектам. По сути, это был первый шаг к дальнейшему развитию и внедрению более современной технологии строительства и планирования жилого пространства.
Особенности планировки П44Т
П44T — планировка с размерами, отвечающими требованиям настоящего времени, предлагает около десяти решений. Разработаны варианты жилых секций для обычных и угловых квартир. Эта модель планирования применяется для жилых многоэтажных домов высотой от 9 до 25 этажей. Для комфортного подъема жильцов и мебели на нужный этаж предусмотрено как минимум два лифта: пассажирский и грузовой.
Современные идеи планирования
Основная идея планировки П44Т — это максимальное использование пространства. В этом контексте можно привести пример удачного инженерного решения, которое позволило увеличить площадь кухни. Такие важные для каждой хозяйки квадратные метры кухни были освобождены за счет размещения короба вентиляции в коридоре. П44Т — планировка с размерами, предполагающими высоту помещений 2,7 м, что обеспечивает комфорт и хороший доступ дневного света в квартиры. Современные идеи планирования дали возможность использования чердачных помещений.
На планировка квартиры П44Т с размерами шага поперечных стен, увеличенных до 4,2 м, дает возможность прекрасного благоустройства помещений. Часто их совмещают с обычным этажом, в результате чего получается двухэтажная квартира.
Преимущества П44Т
Дом П44Т планировки с размерами внутренних перекрытий 0,14 м и 0,18 м надежен и имеет длительный срок эксплуатации. Износостойкость и устойчивость наружных стен перед внешними воздействиями обеспечивается отделкой керамической плиткой толщиной 0,30 м, имитирующей кирпич, которая надежно закрепляется на фасаде. Использование качественных стеклопакетов гарантирует хорошую теплоизоляцию, защиту от шума и создает уют. Оснащение различными современными системами контроля дает гарантию безопасности в случае пожара и при угрозе затопления. Также в такого типа устанавливаются датчики открытия дверей технических помещений и электрических счетчиков. П44Т — планировка с размерами, соответствующими типовым нормам данных проектов, предполагает прокладку проводов электричества внутри панелей.
Это увеличивает безопасность эксплуатации и защиту самих проводов во время каких-либо ремонтных или строительных работ.
Очень важными преимуществами дома с планировкой П44Т являются короткие сроки возведения и длительный период эксплуатации. Гарантированный специалистами срок службы составляет более ста лет.
Планировка П44Т с размерами стен гораздо больше, чем в зданиях, строящихся в предыдущие годы, обеспечивает дополнительную надежность конструкции, лучшую звукоизоляцию квартир и хорошую теплоизоляцию помещений. При строительстве используют высококачественный тяжелый бетон, который отвечает за повышенную износостойкость.
Недостатки П44Т
Наряду с целым рядом преимуществ, можно назвать некоторые недостатки, встречающиеся в домах такого типа. Один из них — это неровность стен и полов. Устранить такой недостаток несложно, выполнив выравнивание и обеспечив дополнительную звукоизоляцию.
Технологические отличия планировки П44Т 25
Планировка П44Т 25 с размерами, описанными ниже, — это современная и усовершенствованная разновидность планировки, применяемая для жилых зданий высотой в 25 этажей с увеличением площадей квартир.
В этом ширина шага стен в поперечном сечении больше, а трехкомнатные квартиры оснащены дополнительным санузлом. Технологические отличия П44Т 25 состоят в повышенной этажности с увеличенным до трех количеством лифтов с грузоподъемностью двух из них по 630 кг и одного — 400 кг. Увеличена площадь кухни до 9 кв. м в однокомнатных; до 15,9 кв. м в двухкомнатных линейных; до 13,8 кв. м — в трехкомнатных и больших Общие площади 1-/2-/3-комнатных квартир составляют 37,4-38,8/51,7-63,4 /77-84,6 кв. м соответственно.
Эркеры в домах П44Т
П44Т — планировка с размерами, указанными выше, все чаще предусматривает использование эркеров, делая квартиры не только эстетически более привлекательными, но и увеличивая площадь помещения. Часть оконного пространства выносится на внешний фасад в виде выступа трапециевидной или другой формы, таким образом увеличивая объем помещения. Наиболее часто такой метод используется в кухнях. Благодаря эркерам помещение получает дополнительную освещенность, увеличенное пространство, а фасад дома выглядит более привлекательным.
Выступы могут быть различной формы: прямоугольной, треугольной, многоугольной или округлой. Возможно использование и оформление эркера как отдельной зоны, тогда ее отделяют от основного помещения барной стойкой или визуальной перегородкой, например, ширмой. Заслуженной популярностью также пользуется усеченный вариант — полуэркер.
Дизайнерские решения для кухонь или комнат с эркером могут быть намного интереснее обычных.
П44Т — планировка с размерами, которые прекрасно подходят для комфортной жизни, на сегодняшний день является самой распространенной в многоэтажных жилых домах. Архитекторы и проектировщики, работавшие над решением задач максимального удобства квартир, не только реализовали их в проекте, но и сделали планировку интересной и оригинальной.
Материал стен: панель с облицовкой «под кирпич»
Количество секций (подъездов): от 1. Иногда несколько подъездов в одном корпусе – это блок-секции серии П-44Т, а другие (центральные и/или угловые) – из блок-секций других серий: П-44К, П-44ТМ/25 (ТМ-25)
Количество этажей: 9-25, наиболее распространенные варианты – 14, 17.
Первый этаж чаще всего жилой
Высота потолков: 2.70 м.
Лифты: пассажирский 400 кг и грузопассажирский 630 кг, в 20-25-этажных секциях (подъездах) – 2 грузопассажирских и пассажирский (модификация получила название П-44Т/25)
Балконы: во всех квартирах, начиная со 2-го – 3-го этажа застекленные лоджии, в 2- и 3-комнатных квартирах также эркеры и полуэркеры
Количество квартир на этаже: 4
Годы строительства: с 1997 по наст. время
Панельные дома типовой серии П-44Т в Москве строились как в новых районах массовой застройки: Марьинский Парк, Люблино, Северное и Южное Бутово, Митино, Новокосино, Новое Кожухово, Жулебино, Некрасовка, пос. Северный, Ходынка, так и в старых районах, где осуществлялся и осуществляется массовый снос пятиэтажек, и ветхих зданий: Ховрино, Коптево, Бескудниково, Дегунино, Свиблово, Медведково, Юрлово, Алексеево, Измайлово, Лефортово, Перово, Нагатино, Южное Чертаново, Зюзино, Черёмушки, Солнцево, Очаково, Кунцево, Фили, Щукино, Зеленоград, ул.
1905 года, ул. Борисовсие Пруды, Нижегородская ул. Также в ряде др. районов (в т. ч. в ЦАО) дома серии П-44 построены точечно
В Московской области новостройки серии П-44Т построены и строятся в городах Железнодорожный, Балашиха (мкр. 1 Мая, мкр. 22 «Балашиха-Парк» и др.), Лобня, Красногорск, Люберцы, Московский, Котельники, Реутов (в т. ч. мкр. Новокосино-2), Одинцово (в т. ч. Немчиновка), Химки, Щербинка, а также в пос. Медвежьи Озёра (Щёлковский район), пос. Голубое и дер. Брёхово (Солнечногорский район), дер. Пыхтино и ЖК «Бутово-Парк» (Ленинский район)
Количество построенных корпусов в Москве: около 600, в Московской области – около 200 (с учетом строящихся). Серия П-44Т – самая распространенная в Москве среди всех современных типовых серий домов. Количество муниципальных домов, построенных для переселенцев из сносимого фонда, для молодых семей и т. п. – около 50%
Нормативный срок эксплуатации дома (по информации производителя) – 100 лет
Площади 1-комнатных квартир: общая: 37-40 кв.
м., жилая: 19 кв. м., кухня: 7.4-8.4 кв. м. (в 25-этажной модификации – 9 кв. м)
Площади 2-комнатных квартир: общая: 52-64 кв. м., жилая: 32-34 кв. м., кухня: 8.3-13.2 кв. м. (в 25-этажной модификации – 12.8-13.8 кв. м)
Площади 3-комнатных квартир: общая: 70-84 кв. м., жилая: 44-54 кв. м., кухня: 10-13.2 кв. м.
Все комнаты в квартирах домов серии П-44Т изолированные
Санузлы: в 1-комнатных квартирах – совмещенные, в 2- и 3-комнатных квартирах – раздельные, ванны: стандартные, длиной 170 см.
Лестницы: незадымляемые, в 20-25-этажных секциях (П-44Т/25) оснащены общими балконами. Мусоропровод: с загрузочным клапаном на каждом этаже
Тип кухонной плиты: электрическая. Вентиляция: естественная вытяжная, вентблоки в санузле и в коридоре
Стены: наружные железобетонные трехслойные панели (бетон – утеплитель полистирол – бетон) общей толщиной 30 см (теплоизоляция которых, по данным производителя, эквивалентна кирпичной стене толщиной 90 см.) Межквартирные и межкомнатные несущие – железобетонные панели толщиной 16 и 18 см.
Перегородки – гипсокартонные толщиной 8 см. Перекрытия – крупноразмерные («на комнату») железобетонные плиты толщиной 14 см.
Несущие стены: продольные межквартирные (а также межкомнатные в торцевых квартирах–«распашонках») и поперечные все (межквартирные, межкомнатные и межбалконные)
Тип секций: торцевые, рядные (рядовые, П-44-1) и поворотные (угловые). Подъезд, где расположена электрощитовая, имеет вход с 2-х сторон
Количество шагов в секции (подъезде): 7, ширина шага (расстояние между двумя соседними несущими стенами): 300 см (в 3-х центральных пролетах каждой секции), 360 см (в остальных)
Варианты цветов внешних стен: темно-оранжевый, светло-рыжий, песочный, нижние этажи – серый с отделкой под камень, эркеры и полуэркеры – белый
Тип кровли: плоско-скатная с черепицей BRAAS ДСК1. Технический этаж: над верхним жилым этажом
Отличительные особенности: серия домов П-44Т отличается от предшественницы – серии П-44 (которая строилась в 1979-2000 гг.) повышенной теплоизоляцией стен, увеличенными площадями кухонь за счет выноса вентиляционного короба в коридор, эркерами, а также узнаваемой наружной отделкой под кирпич
Иные достоинства: отопительные приборы с регуляторами температуры, медная электропроводка, горячее водоснабжение с верхним разливом, мировые стандарты по капитальности и огнестойкости (1-е классы), быстрые темпы строительства (1 этаж за 3 дня): эксперты www.
сайт не выявили ни одного случая долгостроя домов этой серии
Недостатки: качество монтажа отдельных элементов наружных стен в некоторых корпусах, узкая меньшая комната в 2-комнатных квартирах–«линейках» (с окнами на 1 сторону)
Производитель: Московский домостроительный комбинат №1 (ДСК-1)
Проектировщик: МНИИТЭП (Московский научно-исследовательский и проектный институт типологии и экспериментального проектирования)
Конструктивные характеристики и внешний вид домов типовой серии П-44Т во многом схожи с домами серий, П-44ТМ, П-44К
Квартиры в новостройках серии П-44Т можно приобрести также с муниципальной отделкой
Первый дом серии П-44Т построен в 1997 г. на ул. Маршала Василевского (Щукино). Один из самых узнаваемых в Москве разноэтажный жилой комплекс со шпилями на Рубцовской набережной Яузы (проект И-1774) построен из блок-секций серий П-44Т и П-44М
В 2005 г. на базе типовой серии П-44Т был разработан проект типовых блок-секций серии П-44К, где в каждой секции на 1 шаг меньше – 6 шагов («6-модульник»), и, соответственно, только 1- и 2-комнатные квартиры.
В настоящее время в черте МКАД эта серия строится более активно
Также был разработан 5-модульник (5-шаговая версия П-44Т), где 1-комнатные квартиры и вовсе представляют собой так называемые студии общей площадью 23-28 кв. м. В массовое производство 5-модульник (эксперты www.сайт приняли для него условное название П-44-5М) пока не пошел
Рейтинг сайт типовой серии П-44Т: 8.2 (по 10-балльной шкале)
Фото: www..dsk1.ru, www.morton.ru
Эти размеры были сняты личной мной в моей квартире на стадии окончания монтажа дома. По поводу размеров стоит отметить, что чем выше этаж, тем больше площадь квартиры так, как стены на верхних этажах более темные. В моем случае площадь квартиры больше на 0.5 квадратных метров от площади указанной в предварительном договоре купли-продажи квартиры и это более приятно, чем получить минус в площади квартиры расположенной на одном из нижних этаже.
Теперь перейдем непосредственно к планировке квартиры и сравним ее с другим предложением трехкомнатной квартиры в доме серии 111-М от компании ГВСУ.
Обмеры трехкомнатной квартиры представлены на следующем рисунке:
Сравнение 3-х комнатных квартир серии П-44Т и 111-М
Площадь у этих квартир практически одинаковая — кому что больше нравиться. Это дело вкуса и потребностей, но мне больше понравилась планировка П-44Т. Почему?
1. Расположение Санузла.
В П44-Т санузел расположен в коридоре около прихожей, а в 111-м между двумя комнатами. Во втором варианте в комнатах около санузла всегда будет слышно шум воды, открывающихся и закрывающихся дверей, что будет нарушать тишину в этих комнатах.
2. Кухня.
В П44-т и 111-М кухни имеют похожие площади, но в первом варианте кухня с эркером. Благодаря эркеру на кухне будет всегда светло, кухня будет иметь более красивый вид.
3. Коридор.
В П-44т коридор более широкий и короткий, что позволит установить в нем хороший шкаф для не сезонной одежды и других вещей, а в 111-м коридор узкий и длинный, что не позволяет воспользоваться его площадью с пользой.
4. Комнаты
В П-44Т мне понравилось то, что комнаты более широкие, что позволяет более полноценно использовать их площади, а в 111-М комнаты довольно узкие, что не позволит расставлять мебель по обе стороны комнат. Так же в П-44Т все комнаты разных размеров, благодаря этому у Вас будет больше «маневров» в выборе назначений каждой из трех комнат.
5. Балконы
В П-44Т два довольно просторных балконов, а в 111-м он один. Стоит обратить внимание, что стоимость квадратного метра холодных помещений, как правило, наполовину ниже жилого, а это значит, что за балконы Вы платите в два раза меньше и при этом получаете больше квадратных метров.
6. Вентиляц ионные короба
Расположение вентиляционных коробов и в том и другом варианте довольно удачное, но обратите внимание на то, что в П-44т короб расположен в коридоре и если дом выше 17 этажей, то плюс превращается в минус, так как появляется второй короб рядом с первым и коридор напротив санузла становиться узким^
Если у Вас возникли вопросы, то задавайте их в комментариях — я обязательно на них отвечу!
Дома серии П-44 — планировка с размерами, модификации.

Серия П-44 одна из наиболее распространённых серии панельных домов в Москве. Строится с конца 70-х годов прошлого века. Сначала расцветка была бело-голубая, затем — бело-коричневая, и ориентировочно с конца 80-х годов — бело-бежевая.
Имеет несколько современных модификаций: П 44-Т, П 44-М, П 44-К, П 44-ТМ. Поговорим, об этих модификациях чуть позже.
П-44 — планировка дома
Планировка П-44 новых модификаций
Преимущества серии дома П-44
- Имеет несколько вариантов планировок.
- Большие кухни. В трехкомнатных квартирах 12,2м.
- Все комнаты изолированны (во всех планировках).
- Балконы есть во всех квартирах.
- На этаже всего 4 квартиры, при этом 2 лифта, один из которых грузовой.
- Хорошая теплоизоляция квартир. Трехслойные панели толщиной 30 см: бетон-утеплитель-бетон.
- Удобный размер подъездов — это даёт возможность оборудовать место для консьержа.
Недостатки домов серии П-44
- Как и любой панельный дом имеет межпанельные швы, которые утепляются снаружи силами собственников квартир или ЖКХ.

- Доступность к вентиляционному коробу, который может быть срезан соседями. Риск отсутствия вентиляции в квартире. В модификациях этот недостаток устранён.
- Пониженная звукоизоляция. Требуется герметизация внутриквартирных швов.
- Небольшой размер однокомнатных квартир и совмещенный санузел.
- Практически полная невозможность перепланировки. Это проблема всех панельных домов.
Модификации с планировкой и размерами П 44-Т, П 44-М, П 44-К, П 44-ТМ
Модификация П 44-Т
Преобразился внешний вид дома и улучшена планировка квартир. Привычные цвета были заменены на красный, оранжевый под кирпич.
- Появились эркеры.
- Преобразилась крыша.
- Увеличилось количество этаже с 15-17 до 25.
П 44-Т планировка
Модификация П 44-М
- Увеличилась площадь большинства квартир. Появились четырехкомнатные квартиры. Появились дополнительные санузлы в трехкомнатных квартирах.
- Появились эркеры и полу эркеры.

- Раздельный санузел в однокомнатных квартирах.
- Размер кухонь увеличен до 14 м. в четырехкомнатных квартирах.
П 44-М планировка
Модификация П 44-ТМ или ТМ-17
Не получила широкого распространения.
- Имеет четырехкомнатные двухуровневые квартиры на последних этажах.
- Увеличен метраж квартир.
- Все балконы и лоджии остеклены.
П44-ТМ планировка
Модификация П 44-ТМ 25
- Дома от 23 до 25 этажей.
- Изменился размер всех квартир. Однокомнатные от 23 м. с разделенным санузлом.
- Появился разъём из кухни в соседнюю комнату.
- Появились противопожарные балконы с лестницами.
- Имеет 3 лифта.
П 44-ТМ 25 планировка
Модификация П 44-К
- Изменился вид балконов.
- Наличие только одно- или двухкомнатных квартир (распашонок).
- Двушки имеют два балкона.
- Эркеры в торцевых квартирах.
П 44-К планировка
Это была краткая информация домов серии П-44 с её модификациями.
Статьи по теме:
планировка квартир в домах серии П-44, П-44М, П-44Т и П-44ТМ, варианты проектов перепланировки п 44, проекты перепланировок трехкомнатной квартиры, г.Москва, 2021
ГлавнаяСпециалисты Центра согласования перепланировок «АРС» окажут Вам помощь в согласование переустройства жилплощади в домах серии П-44, П-44М, П-44Т и П-44ТМ с автором проекта дома ОАО МНИИТЭП.
Также мы поможем Вам ускорить процесс получения положительного «Технического заключения на переустройство жилья в доме серии П-44, П-44М, П-44Т и П-44ТМ» от МНИИТЭПа, если вы хотите произвести устройство проема в несущей стене.
После получения положительного Технического заключения на устройство проема мы разработаем для Вас индивидуальный проект перепланировки трехкомнатной квартиры в доме серии П-44, П-44М, П-44Т и П-44ТМ.
Планировка и типовые варианты перепланировок квартир в домах серии П-44, П-44М, П-44Т и П-44ТМ по каталогу МНИИТЭП
Планировка и варианты перепланировки квартир в домах серии П-44, П-44М, П-44Т и П-44ТМ
Изначальная планировка квартир в секции этажа дома П-44
В домах серии П 44 имеются 1 однокомнатные, 2 двухкомнатные и 3 трехкомнатные квартиры
Планировка однокомнатной квартиры П-44
Перепланировка однокомнатной квартиры П-44
Планировка 1 одно- и 2 двухкомнатной квартиры П-44
Перепланировка и совмещение двухкомнатной с однокомнатной квартирой дома П-44
<
Планировка двухкомнатной квартиры П-44
Перепланировка двухкомнатной квартиры П-44
Планировка трехкомнатной квартиры П-44
Варианты перепланировки трехкомнатной квартиры П-44Т
Варианты совмещения и перепланировки 3 трехкомнатной и 1 однокомнатной квартиры П-44
Редактор: oxcoy5
планировка для семьи с детьми.
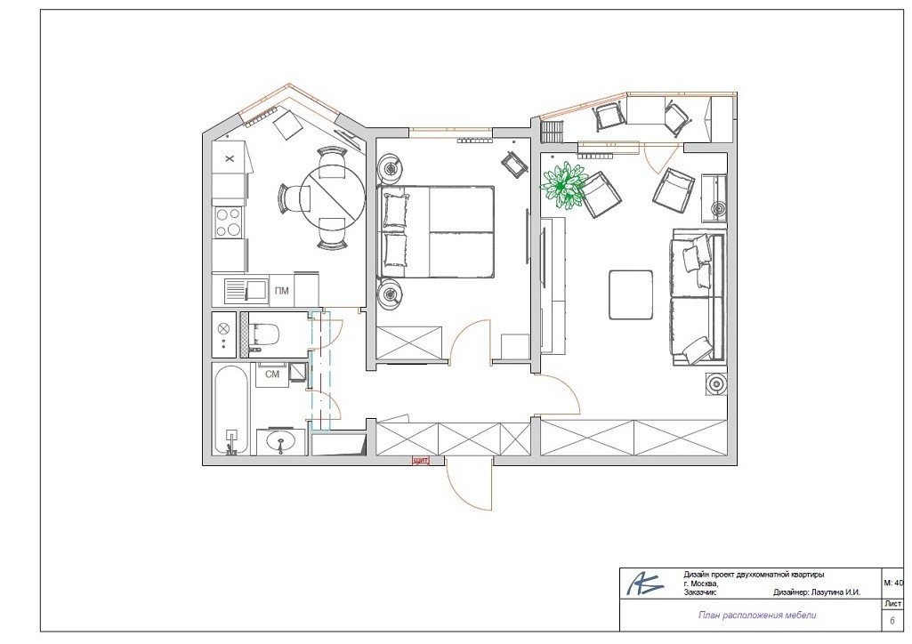
Блог сети мебельных гипермаркетов Hoff Если перепланировка невозможна, то сделать квартиру по-настоящему удобной и стильной может лишь правильно подобранная и расставленная мебель. Архитектор Анастасия Киселева сделала три удачных варианта планировки трехкомнатной квартиры площадью 75 кв. м в типовом панельном доме серии П-44Т. Для пары, семьи с ребёнком и семьи с двумя детьми она подобрала интерьер в экономичной, средней и премиальной ценовой категории.
Анастасия Киселёва |
|
АРХИТЕКТОР Руководитель Студии интерьера «Продизайн» |
Краткая информация
Главное достоинство типовой трехкомнатной квартиры в панельных домах серии П-44Т – это красивые эркеры и большие балконы. Но стены несущие, а потому перепланировку сделать не получится – придется ограничиться удачной расстановкой мебели.
Планировка для семьи с двумя детьми
Для семьи с двумя детьми даже трешка может показаться небольшой квартирой. И основная задача здесь – найти место для трех спален. Родительскую разместим в небольшой комнате без балкона и помимо кровати и шкафа установим у окна туалетный столик. Остальные две комнаты превратятся в схожие по стилистике, но отличающиеся по цвету детские. В каждой – кровать, шкаф и рабочий стол, а в помещении с эркером достаточно места еще и для диванчика и спортивного уголка.На кухне функцию готовки придется совместить со столовой и гостиной. Площадь в 13,9 кв. м это допускает. Гарнитур перенесем к стене с окном, телевизор разместим там же. Тогда возле входа появится место для диванчика, к которому приставим стол с парой стульев.
Такой квартире подойдёт светлое цветовое решение и натуральные материалы:
Создайте свой интерьер в этом стиле:
В избранноеИз избранного
В избранноеИз избранного
-25%В избранноеИз избранного
-25%В избранноеИз избранного
В избранноеИз избранного
В избранноеИз избранного
-80%В избранноеИз избранного
В избранноеИз избранного
В избранноеИз избранного
-30%В избранноеИз избранного
В избранноеИз избранного
-22%В избранноеИз избранного
В избранноеИз избранного
В избранноеИз избранного
В избранноеИз избранного
-60%Больше вариантов планировки смотрите в разделе «Готовые решения для типовых квартир»
двухкомнатная квартира в доме новой серии — INMYROOM
Ранее мы уже обращались к одной из самых популярных серий домов П-44Т, рассматривая варианты планировки кухонного пространства.
Сегодня мы поговорим о
планировочном решении квартиры в целом.
Для начала напомним основные достоинства и особенности этого здания: повышенная теплоизоляция, количество этажей – 9–25 (наличие мансардного этажа), высота потолков – 2,7 метра; есть пассажирский и грузопассажирский лифты. Яркой особенностью домов этой типовой серии является наличие эркеров.
В заключение добавим, что дом серии П-44Т считается ведущим современным типовым проектом. Поэтому сегодня мы рассмотрим варианты планировки двухкомнатной квартиры в этом доме для разных типов жильцов.
Квартира для семьи из трех человек
Задача
Спланировать пространство, предоставив каждому жильцу личное пространство, учитывая их персональные интересы. Организовать комфортабельную общую зону с возможностью приема гостей.
Решение
Учитывая наличие внутренних несущих конструкций, возможность
перепланировки стен невозможна. Единственное, что можно себе позволить, –
объединение санузла. Благодаря этой опции нам удалось избавиться от лишней двери и
сделать помещение просторнее.
Установив душевую кабину вместо ванны, мы выиграли пространство
под стиральную машину, над которой также можно разместить настенную сушилку. Раковина и унитаз остались на своем месте.
В прихожей по правую руку размещен шкаф-купе, по левую – угловые полки для обуви, консоль с зеркалом и удобный пуф. Также справа по коридору есть место для дополнительного шкафа, в котором можно хранить одежду, ожидающую своего сезона.
В кухне стойка имеет Г-образную форму, раковина установлена рядом с коммуникациями, тем самым разделяя столешницу на две рабочие зоны. Таким образом мы сохранили нужное нам пространство для обеденной зоны, расположив диван и стол на 4 персоны. Вместительный холодильник стоит особняком рядом с раскладным диваном, который в случае приема гостей легко трансформируется в спальное место.
Детская делится на две зоны – рабочую и зону отдыха. Напротив раскладного дивана находится тумба
под ТВ с прилегающими к ней двумя платяными шкафами. Балкон довольно вместительный – его площадь можно использовать для организации места для творчества ребенка.
Помещение спальни изначально просторное: здесь комфортно располагаются двухместная кровать, письменный стол, гардероб, ТВ-тумба, а также дамский столик. Балкон – идеальная зона отдыха и хранения: здесь логично установить два кресла, столик и небольшой шкаф.
Плюсы планировки:
наличие личного изолированного пространства для каждого члена семьи, а также дополнительные спальные места.
Минусы:
отсутствие ванны (компенсирует наличие душевой).
Квартира для девушки
Задача
Организовать пространство для одного человека, предусмотрев наличие дополнительных мест для приема гостей. А также персональное рабочее место, пространство для занятий спортом и домашнюю библиотеку.
Решение
Как и в предыдущем варианте, здесь было решено совместить санузел. Единственное отличие: мы сделали душевой отсек шире и в оставшийся проем разместили вертикальную стиральную машину.
В кухне столешницу вывели под эркер в виде барной стойки,
установили высокие вращающиеся стулья – зона для быстрого приема пищи
готова.
В центральной части осталось достаточно места и для классического
размещения дивана и столовой группы.
Для локации спальни выбрано меньшее из двух помещений. Тем не менее нам удалось добиться расположения наибольшего количества важных по функционалу предметов – гардероба, кровати, дамского столика, кресла, шкафа-стенки и ТВ. Мебель выстроена так, что свободный проход к балкону остался, где мы расположили беговую дорожку, тем самым решив еще одну задачу – организации зоны для занятий фитнесом.
Вторую комнату мы разбили на три зоны – рабочее место, место для отдыха (просмотр ТВ), а также зона для чтения книг в виде кресла и рядом установленного торшера. Балкон – место, где можно просто отдохнуть, любуясь красивым видом из окна за чашечкой кофе.
Плюсы планировки:
вместительная кухня с двумя зонами приема пищи. Изолированные спальня и рабочее место. Наличие помещения для занятий фитнесом.
Минус:
отсутствие ванны.
Квартира для пары средних лет
Задача
Расположить кухню и гостиную с учетом приема гостей.
Организовать спальню и по возможности установить отдельное рабочее пространство.
Решение
По своей планировке санузел остался без изменений. Такое решение позволяет нам установить ванну, стиральную машину и раковину. Унитаз изолирован.
В кухне эркерная зона используется для расположения дивана и примыкающего к нему обеденного стола со стульями. По правую руку установлена угловая тумба под ТВ, за ней – двухкамерный холодильник.
Чтобы не загромождать спальню и сохранить в ней ощущение пространства, было решено установить только двуспальную кровать с примыкающими персональными тумбами, а также гардероб и тумбу под ТВ. Справа на балконе организовано комфортное место для работы за ноутбуком в виде удобного дивана и круглого столика. Также у стены не забыли и про полки для книг и рабочего материала.
Зона гостиной поделена на две зоны. Здесь установлен угловой раскладной диван, за ним находится дополнительное рабочее место в виде письменного стола. У стены напротив по периметру располагается
библиотека.
На одной из секций можно
установить телевизор.
Плюсы планировки:
решен вопрос расположения ванны. Также предусмотрено два рабочих места, уютная кухня.
Минусы:
одно из рабочих мест расположено смежно с гостиной. В случае приема гостей работать за ним будет неудобно. Компенсировано расположением дополнительного рабочего пространства на балконе.
Планировка 2 х комнатной квартиры п44. П44Т маленькая двушка-линейка
П-44Т планировка с размерами
Планировки квартир в П44Т с вариантами перепланировки
Планировки двухкомнатных квартир серии П 44т
Двушка распашонка
Обычно имеет площадь порядка 60-64 кв.м. Кухня имеет большой эркер, а каждая из комнат по просторному балкону. По сути, это та же трешка только с «откусанной» одиннадцатиметровой комнатой и примыкающим к ней участком коридора.
Линейная двушка П-44Т
Площадь односторонних двухкомнатных квартир колеблется в районе 52 кв.
м (51-53 кв.м). В них маленькие коридоры и балконы.
Однокомнатная квартира П-44 Т
Площадь однушек в П-44Т составляет порядка 36-38 кв.м. В них маленький балкон и совмещенный санузел.
Трехкомнатные квартиры П-44Т
По площадям и конфигурациям трехкомнатных квартир в серии П-44Т наблюдается наибольший разброс (примерно от 73 до 86 метров). Планировочных решений также существует очень много. Кухни в трешках угловых секций не имеют эркеров, а их площадь обычно не превышает 10 метров. В то же время 3 комнатные квартиры в рядовых и торцовых секциях П-44Т могут похвастаться кухнями с эркером и общей площадью от 12 до 14 кв.м.
Трешка с эркером в комнате (торцевая квартира п44т)
Планировка двухкомнатных квартир в домах серии П-44Т бывает двух видов. Здесь мы рассмотрим примеры удачного переустройства каждой из «двушек».
Перепланировка 2-х комнатной квартиры П-44Т
Первый вариант планировки, который называют еще «распашонкой», не очень удобен для перепланировки.
Жилые комнаты расположены симметрично относительно входа, причем в каждой из комнат есть лоджия.
Переустройство квартиры в первую очередь коснулось хозяйственной зоны. Между прихожей и кухней убрали перегородку, теперь в прихожей стало намного светлее. На кухне устроили рабочее место для одного из родителей. Оно находится на дальнем конце столешницы, используемой в качестве обеденного стола.
Ванную комнату объединили с санузлом, вместо ванной установили душевую кабину. В результате здесь освободилось место для биде и стиральной машины.
Одну из двух комнат выделили под детскую. Здесь уместилась двухъярусная кровать и два рабочих места для детей школьного возраста. Но при этом в помещении не нашлось места для полноценного гардероба.
Гостиная одновременно является спальней для родителей. Напротив входа в гостиную расположился шкаф для одежды, рядом поставили угловой диван.
Недостатком перепланировки является то, что в квартире не организовано достаточно мест для хранения.
Совмещенный санузел тоже не слишком удобен для большого семейства.
Источник: журнал «Идеи вашего дома», дизайн 2 х комнатной квартиры П-44Т
Перепланировка в квартире второго типа сделана для семьи с ребенком-подростком. Родительская спальня оборудована в комнате напротив входа. Здесь уместился необходимый набор мебели — двуспальная кровать и прикроватные тумбы. Перед спальней устроена большая общая гардеробная, которая отделена от спальни и коридора раздвижными перегородками. Наличие гардеробной дало возможность обойтись без громоздких шкафов для одежды в остальных комнатах.
Отсутствие дверей в прихожей позволило объединить между собой все части квартиры. Большая комната с балконом разделена на две зоны: у входа расположилась гостиная с диваном и телевизором, а возле окна устроили отдельный уголок для ребенка. Здесь есть рабочее место, диван и полки для книг.
Ванная комната осталась без изменений. Кухня, коридор и прихожая объединены общим рисунком пола и отделкой стен.
Кухонный стол сделан под заказ. Своими очертаниями он повторяет форму эркерной стены. Остальная мебель на кухне расставлена Г-образно вдоль стен. Такое расположение мебели оказалось наиболее удобным для этого помещения.
В домах типовой застройки живёт огромная доля населения России и других стран постсоветского пространства, и все они рано или поздно сталкиваются с ремонтом. Так как квартиры в каждой серии построек имеют одинаковые планировки, существуют наиболее популярные и удачные решения для помещений каждой серии. В этой статье мы поговорим об особенностях дизайна двухкомнатных квартир П44Т и дадим некоторые рекомендации.
Типы
Существует всего два типа двушек с двумя в постройках этой серии:
- Так называемая «распашонка». Оба помещения расположены симметрично, в каждом из них имеется лоджия. Этот вариант считается менее удобным, потому что в дизайне 2 комнатной квартиры П44Т «распашонке» труднее выполнить перепланировку.
- Следующая разновидность таких жилищ характеризуется наличием эркера в кухонной зоне.
Эту версию легче перестроить под себя, так как в дизайне 2х комнатной квартиры п44т с эркером имеется возможность легче устроить гардеробную.
- Для первого типа жилья, удачной идеей будет убрать дверь между кухней и прихожей. Таким образом, кухня становится светлее и просторнее. Не помешает использование одинаковой отделки пола на кухне и в прихожей, это также объединит всё пространство воедино.
- Если у вас есть дети, выделите им одну из комнат, а во второй создайте одновременно и спальню и гостиную.
- Для второго вида данного жилища производят специальную кухонную мебель, повторяющую по форме эркер. Можно разместить вдоль окна столешницу, тем самым продлив рабочую поверхность, а можно приобрести или заказать стол, который впишется как надо. В любом случае, имеется возможность интересно обыграть данную особенность.
- Помимо этого, для такой жилплощади объединение прихожей и кухни тоже будет прекрасной мыслью.
- В прихожей, в пространстве между ванной и входной дверью отлично впишется небольшой шкаф, а перед входом в самое большое помещение, гардеробная.
Это позволит избежать громоздких шкафов и неопрятного вида. - Используйте светлые цвета, легкие натуральные материалы, грамотное освещение. Это позволит визуально расширить метраж и сделать место жительства гораздо более уютным.
Постарайтесь объединить все зоны жилья в одно целое благодаря общему стилевому решению.
В домах П44Т дизайн двухкомнатной квартиры в целом не отличается от любой другой, за исключением перечисленных выше моментов. Так как невозможно разобраться во всех тонкостях такого сложного процесса как проектирование будущего внешнего облика жилплощади, мы советуем привлечь профессионального дизайнера. В нашей компании работают только самые лучшие и талантливые сотрудники, которые помогут вам сделать интерьер по-настоящему удобным, стильным и надежным. Не один год вас будет радовать полученный результат. Только настоящий профессионал своего дела способен распознать все истинные желания и потребности всех членов вашей семьи. Если вы не хотите зря потратить деньги на материалы и работу строителей, дизайнер вам необходим.
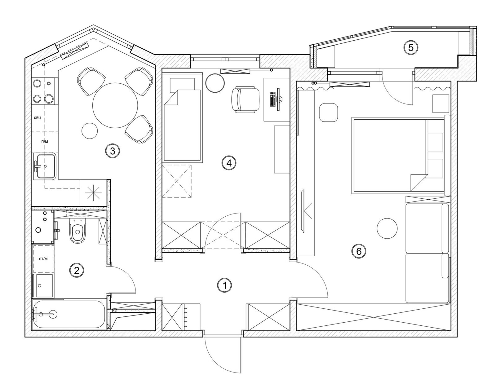
Давайте сегодня посетим 3-х комнатную квартиру, панельного дома серии П-44Т от застройщика ДСК-1
Квартира получилась хорошая и просторная, но проектировщики не стали мудрить с дизайном и планировка оказалась похожая на другие аналогичные трехкомнатные квартиры панельных домов. Комнаты все изолированные друг от друга. На кухне добавился большой эркер и в комнате угловых квартир присутствует треугольный эркер. В двух комнатах имеются балконы.
Мы с вами рассмотрим планировку трехкомнатной квартиры со следующими размерами:
Комната с балконом сапожок 17,8 кв.м. (на схеме номер 1)
Комната без балкона 14,1 кв.м. (на схеме номер 2)
Комната с балконом утюжок 11 кв.м. (на схеме номер 3)
Кухня с большим эркером 12.9 кв.м. (на схеме номер 4)
Коридор с прихожей 14,6 кв.м. (на схеме номер 7)
Жилая площадь 42,9 кв.м
Общий метраж квартиры без балконов 70.4 кв,м
схема планировки трёхкомнатной квартиры П-44Т с размерами
Открываем входную дверь и попадаем в предбанник.
Впереди идёт стена с проёмом, в котором изначально сделана небольшая арка. Справа за дверью, есть небольшое пространство, куда может поместиться небольшая гардеробная или тумба для обуви.
В этом варианте мы видим пример такой тумбы под обувь.
Так же это место может занять красивое большое зеркало в полный рост.
Проходим вперёд и попадаем в самый центр прихожей. Нас встречают три двери. Слева большая двойная дверь ведет нас в комнату 11 кв.м. и балконом башмачок. И две рядом расположенные двери — это комнаты. Что правее самая большая комната 17.8 кв.м. с балконом сапожок, и что слева маленькая комната 14 кв.м. без балкона.
Несколько интересных идей в дизайне прихожей трехкомнатной квартиры. На фото видно, что в ближнюю нам комнату слева поставили двери купе.
Ещё один интересный вариант прихожей. В арку смонтировали освещение.
А здесь по правую сторону синей прихожей, в дизайне применили колонны с освещением.
Расстановка мебели в прихожей
Если в комнатах нужно больше простора и не захламлять шкафами комнаты, для этих целей подойдет прихожая.
По длинной стене установится большой шкаф.
Кто полностью не ушел в электронные книги, а собирает дома домашнюю библиотеку, интересное решение будет если в прихожей разместить полки для книг.
В углу впишутся угловые полки.
Комната с балконом утюжок
С прихожей заходим в комнату с большим дверным проёмом. Обычно эту комнату используют под гостиную или зал. Комната хоть и не очень большая, но квадратная.
А если убрать оконные рамы и демонтировать часть подоконника, можно продлить комнату и соединить вместе с балконом.
Не всегда хватает жильцам трёх комнат. Частенько на балконах организовывают рабочие кабинеты. Оказывается и они находятся в такой ситуации, когда дорог каждый квадратный метр.
Развернёмся спиной к балкону и наблюдаем две межкомнатные двери, в стандартной планировке чистового ремонта от застройщика ДСК-1
Можно немного обыграть дверной проём.
Соорудить небольшую арку и поменять обычные двери на раздвижные.
Две двери съедают много места. И если сделать однодверный проём, можно в угол комнаты поставить угловой шкаф.
А иногда демонтируют полностью всю стену. И получается вместо комнаты просторный зал соединяющийся в одно целое с прихожей.
Большая комната с балконом Башмачок
Стандартная большая комната имеющая свой балкон. Размер по длинной стене 5.56 кв.м и по короткой 3.22 кв.м. Может предназначаться как для родителей, так и для детской комнаты.
Если балкон утеплен, стены можно обклеить обоями. Вывести розетки на балкон и для освещения повесить светильники.
Стенки которые мы помним ещё с Советских времён, становятся всё менее популярными. Вместо них в дизайнах и интерьерах квартиры часто появляются длинные комоды.
А вот цветы как были в моде, так и до сих пор украшают наши квартиры.
Комната без балкона
В третьей комнате, балкон отсутствует.
Большое и широкое окно. Размер по одной стене 4,34 кв.м. а по стене с окном 3,22 кв.м.
Хорошее место для спальни. Плотные тёмные шторы, помогут отгородиться от утреннего солнышка и в выходной день выспаться на мягкой кровати.
Над кроватью оригинально смотрятся большие картины на стене.
Шкаф будет не лишним предметом в комнате.
Ванна и туалет в 3-х комнатной квартире
Выходим из комнаты и отправляемся на кухню. По пути в коридоре нам попадается на глаза двери в ванну и туалет, а справа коридора пустое, но очень удобное пространство для шкафа.
Дом серии П-44
Первые здания серии П-44 стали появляться в 70-е, причем дома строились даже в 90-е и 2000-е, без существенных изменений. Жилые секции в П-44 однотипны: угловые либо рядовые. От типа секции и зависит планировка квартиры. Если серия рядовая, то на этаже расположено по четыре квартиры: две двухкомнатные с площадями 50.2 кв.м. (линейная) и 57.8 кв.м.
(«распашонка»), одна однокомнатная с общей площадью 37.8 кв.м и одна трехкомнатная с общей площадью 73.8 метра. Дома серии П-44 — одни из самых массовых типовых домов, впечатляет и список распространения домов П-44.
Достоинством данной серии домов является наличие системы удаления дыма из поэтажных коридоров, а также бетон без керамзита в ранних домах, что приводит к легкому сверлению. К недостаткам следует отнести качество монтажа наружных панелей, которое встречается в отдельных корпусах. В ранних домах полы на балконах сделаны криво. Дома серии П-44 однозначно не подлежат сносу в ближайшей перспективе из-за огромного потенциального срока эксплуатации.
Города распространения — Москва, Химки, Долгопрудный, Одинцово, Реутов, Серпухов, Железнодорожный, Щелково, Черноголовка, Московский, Лобня, Люберцы, Мытищи, Дзержинский, Электросталь, Кривой Рог, Иваново, Ярославль, Нижневартовск, Сургут, Петрозаводск, Тында
Фото панельного дома «п-44» с Солнцево
В угловой секции только двух- и трехкомнатные квартиры.
Внутренние стены несущие, из железобетона, толщиной 140 и 180 мм, что не позволяет изменять планировку, наружные стены с утеплителем, трехслойные, толщиной 300 мм. Узнается серия из-за характерного голубого либо зеленоватого цвета облицовочной плитки. В подъездах по два лифта: грузовой и пассажирский. Планировку можно назвать удачной: комнаты изолированы, прихожие большие, кухни не менее 8 кв.м. К минусам можно отнести маленькую гостиную в «трешке» — всего 11 кв.м., и стандартную для того времени высоту потолков в 2.64 метра.
Планировки квартир в домах серии П-44.
Макет П 44Т с габаритами. Дома серии П44Т, планировка квартир с размерами. Современные идеи планирования
Серия панельных домов П-44Т — новое поколение популярной московской серии домов. Он самый обычный современный типичный сериал в Москве. В планировки добавлены эркеры, качественно улучшена внешняя отделка зданий, добавлен мансардный этаж. Серия была разработана в середине 1990-х годов.
Год постройки: с 1997 года по настоящее время.Всего было построено около 800 домов. Нормативный срок службы дома 100 лет.
В Москве дома типовой серии П-44Т в основном строятся в районах массовой застройки: Измайлово, Лефортово, Перово, Нагатино, Южное Чертаново, Зюзино, Черремушки, Ховрино, Коптево, Бескордниково, Дегунино, Свиблово, Медведково, Юрлово, Алексеев, Солнцево, Очаково, Кунцево, Филсе, Щукино, Зеленоград, а также на ул. 1905 г., ул. Борисовские пруды и г. Нижний Новгород ул.
В Московской области Дома серии П-44Т построены в городах: Железнодорожный, Балашиха, Лобня, Красногорск, Люберцы, Москва, Котельники, Реутов, Одинцово, Химки, Щербинка, а также в пос.Медвежьи озера (Щелковский р-н), пос. Синий и дер. Брат (Солнечногорский р-н), дер. Пыхино и ЖК «Бутово Парк» (Ленинский район).
Все комнаты в квартирах домов серии П-44Т изолированные. Во всех квартирах предусмотрены эркеры и просторные лоджии. В каждой лестничной клетке имеется один пассажирский и один грузопассажирский лифт.
В однокомнатных квартирах санузлы совмещены, в остальных раздельные. Лестницы нечеткие, пожарного балкона нет.
Кухонная плита электрическая, вентиляция естественная вытяжная, блоки на кухне и в санузле. Мусор на лестнице, с загрузочным клапаном на участке.
Серия домов П-44Т отличается от предшественника (серии) повышенной теплоизоляцией стен, вентиляционным коробом в прихожей, остеклением лоджий, эркеров и полуэркеров, а также узнаваемой наружной отделкой под кирпич , для проживания в домах серии П-44Т предусмотрен мансардный этаж.
П-44Т, как и все остальные серии семейства, разрабатывался специально для. Первый дом серии П-44Т построен в 1997 году по ул. Маршал Василевский (Щукино). «Визитная карточка» — иной жилой комплекс на Рубцовской набережной Яузы (проект И-1774) построен из блок-секций серии П-44Т и.
Конструктивные характеристики I. Внешний вид Дома типовой серии П-44Т во многом аналогичны домам серии ,.
В 2005 году на базе серии С-П-44Т был разработан эскизный макет многоквартирных секций серии, где в каждой секции на одну ступень меньше (6 ступеней) и присутствуют только одно- и двухкомнатные квартиры.
В настоящее время в пределах МКАД эта серия более активна.
Подробные характеристики серии
| Проходы | с 1. |
| Этажность | с 9 по 25, самые распространенные варианты — 14, 17. |
| Высота потолка | 2,70 м. |
| Лифты | Один пассажирский (400кг.) и один грузопассажирский (630кг.). |
| Балконы | Лоджии застеклены во всех квартирах кроме первого этажа.Эркеры и полуфабрикаты во всех двухкомнатных и трехкомнатных квартирах. |
| Квартиры на этаже | 4 |
| Годы постройки | с 1997 по настоящее время |
| Построенные дома | Москва: около 600, Московская область: около 200 (включая строящиеся). |
| Площадь квартир | 1-комнатная квартира Общая: 37-40 м², жилая: 19 м², кухня: 7,4-8,4 м² 2-комнатная квартира Общая: 52-64 м², жилая: 32-34 м², кухня : 8. 3-13,2 м² 3-комнатная квартира Общая: 70-84 м², жилая: 44-54 м², кухня: 10-13,2 м² |
| Санузлы | В однокомнатных квартирах совмещенные, в двух- и трехкомнатных — раздельные. Ванны: Стандарт |
| Лестница | Без люка, с выходом на пожарный балкон. |
| Мусоропровод | С загрузочным клапаном на каждом этаже. |
| Вентиляция | Естественная и принудительная вытяжка, на кухне и в ванной. |
| Стены и перекрытия | Наружные стены — железобетонные трехслойные панели толщиной 30 см. Внутренние межкомнатные и межкомнатные — железобетонные панели толщиной 16 и 18 см. Перегородка гипсовая 8см. Перекрытие — железобетонные плиты. толщина 14 см |
| Несущие стены | Продольные межкомнатные (а также межкомнатные в торцевых квартирах) и поперечные (межкомнатные, межквартирные и междомовые). |
| Цвета и облицовка | Красный с песочным, эркеры и лоджии — белые Облицовка «под кирпич», нижних этажей — облицовка «под камень» |
| Тип крыши | Односкатная с черепицей. Технический этаж: над последним жилым этажом. Возможность обустройства мансардной квартиры. |
| Достоинство | Отопительные приборы с регуляторами температуры, медная разводка, горячее водоснабжение с верхним водосливом, быстрые темпы строительства (1 этаж за 3 дня). |
| недостатки | Качество монтажа отдельных элементов наружных стен в некоторых жилых домах, узкое помещение В двухкомнатных линейных квартирах (с окнами на первую сторону) |
| Производитель | Московский Домостроительный Комбинат №1 (ДСК-1) |
| Конструктор | МНИИТЭП |
Одним из самых востребованных проектов жилья на рынке столичных новостроек и в Подмосковье стала серия П-44Т.Дома этого типа активно застраивались как новыми районами (Люблин, Северное Бутово, Новокосино, Марьинский парк), так и местами сноса ветхого жилого фонда в районах старой застройки (Медведково, Лефортово, Щукино, Южное Чертаново и др.
) . Всего шестьсот домов этой серии в Москве и около двухсот — в Подмосковье.
Дома П-44Т выгодно отличаются от домов базового варианта П-44 (постройки до 1999 г.) остеклением лоджий, наличием полукоромыслов и эркеров, улучшенной теплоизоляцией наружных панелей и улучшенным водоснабжением. система, размещение вентиляционного отверстия в коридоре.
В целом дома этой серии считаются очень удачным инженерно-архитектурным проектом, соответствуют международным стандартам по пожарной безопасности и по капиталоемкости (1-й класс), поэтому продолжают активно строиться и в настоящее время. О прочности конструкции домов свидетельствует и тот факт, что застройщик указывает в качестве расчетного срока службы дома «100 лет». Привлекательным является сочетание относительно низкой стоимости квадратных метров и достаточно высокого уровня комфорта, а также с высокой скоростью строительства квартир серии П-44Т.
Внешний декор и конструктивные особенности серии
В серии многосекционных домов П-44Т легко узнать об эстетической отделке фасадов «под кирпич», которая придает внешнему виду бетонную конструкцию.
Наружная отделка Дома обычно выполняется в темно-оранжевых или светло-песочных тонах, а отделка нижних этажей, эркеров и полуэретеров в серо-белой цветовой гамме.
Неоспоримыми преимуществами высотных зданий серии П-44Т являются: высокий уровень шумоизоляции в наружных панелях, наличие индивидуальных регуляторов в отопительных приборах, современные системы пожаротушения, устройства оповещения о пожаре, затоплении, реагирования на открытие дверей техники, подвала, электротельфера, шахты лифта). В связи с тем, что бетонные панели имеют наиболее гладкие поверхности по сравнению с панелями в других многоэтажных домах, затраты на внутреннюю отделку квартир.
Однако отдельные отзывы свидетельствуют о наличии трещин на стыках панелей при усадке при усадке и иногда о разгерметизации «швов». Поэтому при покупке квартиры необходимо обращать внимание на качество монтажа панелей.
Особенности планировки квартир
Как и в большинстве современных новостроек, в домах П-44т комнаты изолированные.
Кроме того, в некоторых домах квартиры расположены на привлекательном этаже, привлекательном для многих потенциальных покупателей недвижимости.
Шаг поперечных стен увеличен до 4,2 м, а толщина внутренних стен 14 см и 18 см, что обеспечивает хорошую звукоизоляцию между помещениями. Квартиры имеют раздельные санузлы (за исключением совмещенных санузлов в однокомнатных квартирах). Возможна покупка квартиры с готовой муниципальной отделкой.
Недостатком П-44Т, как и других панельных домов, остается наличие большого количества несущих стен внутри квартир, что не позволяет производить перепланировку по желанию собственников жилья.Категорически запрещается резать оконные блоки или делать проемы в несущих стенах домов этой серии.
Технические характеристики
Параметр | Значение |
|---|---|
| Альтернативное название: | П-44Т. |
| Районы застройки: | Москва и Московская область (Коптево, Свиблово, Медведково, Измайлово, Новое Кожуково, Некрасовка, Красногорск, Лобня, Балашиха, Железнодорожный, Люберцы, Химки, Москва, Одинцово, Солнечногорск, в пос.Медвежьи озера, дер. Брихово, пос. Синий) |
| Строительная техника: | Панель |
| В стадии строительства: | Современный |
| Год постройки: | С 1997 г. по настоящее время |
| Перспектива движения: | Снос не предусмотрен даже в долгосрочной перспективе |
| Количество секций/входов: | От 1 до 8 (возможны комбинации подъездов разных серий — П-44Т, П-44К, П-44ТМ/25 в одном доме) |
| Этажность: | 9-25 (наиболее распространенные варианты — 14, 17) |
| Высота потолка: | 2. 70-2,75 м. |
| Балконы/лоджии: | Выше 2-3 этажа во всех квартирах застекленные лоджии. В 2-х и 3-х комнатных квартирах есть эркеры и полуэркеры. |
| Ванные комнаты: | Совмещенные — в однокомнатных квартирах, раздельные — в 2-х и 3-х комнатных. |
| Лестницы: | Неясно |
| Мусоропровод: | Мусоропровод с загрузочным клапаном на каждом этаже |
| Лифты: | 2 лифта: пассажирский (400 кг) и грузопассажирский (630 кг). В 20-25-этажных подъездах — 2 грузопассажирских и пассажирский. |
| Количество квартир на этаже: | 4 |
| Площадь квартиры: | Общая / жилая / кухня 1-комнатная квартира 37-39/19/7-9 2-комнатная квартира 51-61/30-34/8-13 3-комнатная квартира 70-84/44-54/10 -13 |
| Вентиляция: | Естественная вытяжка с коробом в коридоре |
| Стены и облицовка: | Наружные стены — ЖБ панели трехслойные (бетон — полистирол — бетон) толщиной до 30 см повышенной теплоизоляции Аварийные и межкомнатные несущие — Р/б-панели толщиной 16 и 18 см. Крупногабаритные перекрытия толщиной 14 см по ширине помещений Облицовка Наружные стены «Под кирпич», Базовые цвета — Темно-оранжевый, Светло-песочный |
| Тип крыши: | Плоская или черепичная кровля коричневого или зеленого цвета (производство Braas DSK-1). |
| Производитель: | ДСК-1 |
| Дизайнеры: | МНИИТП (Московский научно-исследовательский институт тиологии и экспериментального проектирования) |
| Преимущества: | Улучшенная шумоизоляция вызывных панелей и «швов», регуляторы на отопительных приборах, медная проводка, применение технологии закрытого стыка, соответствие международным стандартам капитализации и пожарной безопасности, современные системы безопасности. |
| Недостатки: | Неудовлетворительное качество монтажа наружных стен на отдельных участках. |
Игорь Василенко
Посетим сегодня 3 комнатную квартиру, панельный дом серии П-44Т от застройщика ДСК-1
Квартира получилась хорошая и просторная, но дизайнеры не стали мудрить с дизайном и планировка получилась похожей к другим аналогичным трехкомнатным квартирам панельных домов.Комнаты все изолированы друг от друга. В кухню добавлен большой паром, а в комнате угловых квартир присутствует треугольный эркер. В двух комнатах есть балконы.
Планировку трехкомнатной квартиры рассмотрим со следующими размерами:
Комната с балконом 17,8 кв.м. (в Схеме №1)
Комната без балкона 14,1 кв.м. (в Схеме №2)
Комната с балконом Утюг 11 кв.м. (в Схеме №3)
Кухня с большим байкером 12.9 кв.м. (в схеме №4)
Коридор с прихожей 14,6 кв.м. (на схеме №7)
Жилая площадь 42,9 кв.м
Общий вид квартиры без балкона 70,4 кВ, м
планировочная схема трехкомнатной квартиры П-44Т с размерами
Открыть входную дверь И попасть в предбаннер.
Есть стена с находкой, в которой первоначально была сделана небольшая арка. Справа за дверью есть небольшое пространство, куда может поместиться небольшая гардеробная или сумка для обуви.
В этом варианте мы видим пример такой обувной трубки.
Также это место может занять красивое большое зеркало в полный рост.
Проходим вперед и попадаем в самый центр коридора. Встречаем три двери. Левая большая двустворчатая дверь ведет нас в комнату площадью 11 кв.м. и обувь для балкона. И две соседние двери являются комнатами. Что справа самая большая комната 17,8 кв.м. с багажником балкона, а та что слева маленькая комната 14 кв.м. без балкона.
Несколько интересных идей в дизайне прихожей трехкомнатной квартиры. На фото видно, что в ближний номер вышла дверь купе.
Еще один интересный вариант прихожей. Освещение было установлено в арке.
А здесь, в правой части синего коридора, колонны с примененной в оформлении подсветкой.
Расстановка мебели в прихожей
Если места в комнатах больше и не захламляют шкафы комнаты, для этих целей подойдет прихожая.
На длинной стене будет установлен большой шкаф.
Кто не совсем перешел на электронные книги и собирает дома домашнюю библиотеку, интересным решением будет, если в прихожей разместить стеллажи для книг.
В углу подойдут угловые полки.
Комната с балконом утюг
С прихожей заходим в комнату с большим дверным проемом. Обычно это помещение используют под гостиную или холл.Комната не очень большая, но квадратная.
А если убрать оконную раму и демонтировать часть подоконника, то можно расширить комнату и соединить вместе с балконом.
Не всегда хватает жильцам трех комнат. Часто на балконах организуют работу кабинетов. Получается, что они в такой ситуации, когда дорог каждый квадратный метр.
Разворачиваемся спиной к балкону и видим две межкомнатные двери, в типовой планировке чистовой ремонт от застройщика ДСК-1
Можно немного обыграть дверной проем.
Сделайте небольшую арку и поменяйте обычные двери на раздвижные.
Две двери занимают много места. А если сделать одностворчатую дверь, можно поставить угловой шкаф в угол комнаты.
А иногда и всю стену разбирать. И получается вместо комнаты просторная комната, соединяющаяся в одно целое с прихожей.
Большая комната с балконным башмаком
Стандартный большой номер с балконом. Размер по длинной стене 5.56 кв.м и короче 3,22 кв.м. Его можно оформить как для родительской, так и для детской комнаты.
Если балкон утеплен, стены можно оклеить обоями. Выведите розетку на балкон и повесьте светильники для освещения.
Стены, которые мы помним с советских времен, становятся все менее популярными. Вместо этого в дизайне и интерьере квартиры часто появляются длинные дресоны.
Но цветы были как в моде, так до сих пор украшают наши квартиры.
Комната без балкона
В третьей комнате нет балкона.
Большое и широкое окно. Размер на одну стену 4,34 кв.м. и на стене с окном 3,22 кв.м.
Хорошая спальня. Плотные темные шторы помогают выгореть от утреннего солнца и выспаться на мягкой постели в выходной день.
Большие картины на стене оригинально смотрятся на кровати.
Шкаф не будет лишним в комнате.
Ванна и туалет в 3-х комнатной квартире
Выходим из комнаты и идем на кухню. По пути в коридоре попадаем на ушко двери в ванную и туалет, а правый коридор пустой, но очень удобный шкафчик.
- Изготовитель: ДСК-1
- Разработчики: МНИИТП

Серия П44Т состоит из 14-17-этажных прямых и угловых блочных секций с различными вариантами крыш: с мансардным выводом, с плоской крышей, с «наклонными» фризами, что позволяет составлять различные конфигурации и силуэт здания. Может иметь высоту 9-25 этажей. Новым в решении фасадов серии стало сочетание панелей, облицованных матовой керамической плиткой «Под кирпич» (ярко-оранжевого, реже песочного цвета), с окрашенными поверхностями эркеров, лоджий, карнизов и других архитектурных деталей.В торцах секций устроены треугольные эркеры. В проекте предусмотрено несколько вариантов остекления балконов и лоджий на северном фасаде. Серия П44Т стала одной из самых массовых для строительства муниципального жилья в Москве строительной мощностью более 1 млн кв. м. в год.
Усовершенствованные системы отопления, водоснабжения и вентиляции жилых домов по сравнению с серией Р44. Стояк вентшахтов, который в Р44 находился на кухне, перенесли в коридор (рядом с ванной и туалетом).
Дом П44Т состоит из угловой и рядовой секций по четыре квартиры, аналогично базовой серии П44.
В отличие от нее, в кухнях двух- и трехкомнатных квартир П-44Т установлены большие эркеры трапециевидной формы. При этом кухни односторонних двухосников, а также жилые распорки (2х и 3-х комнатные) имеют треугольные полураспорки. Также увеличена площадь квартир.
Следует понимать, что П-44Т это, по сути, группа серии — есть и применяются проекты домов П-44ТМ или ТМ-25, а также П-44К, которые имеют ряд различия в планировке квартир, а также планировка типовых этажей.Причем иногда жилые дома устраивались из нескольких вариантов секций, например, из двух секций П-44Т и четырех секций П-44К. Возможны и другие конфигурации комбинации секций.
Типовые планировки квартир домов этой серии представлены ниже.
Чаще всего первый этаж жилой. Высота потолков в доме 2,70 м. Лифты в доме: Пассажирский имеет грузоподъемность 400 кг, а грузовой — 630 кг.В доме на 20 и 25 этажей имеется один пассажирский и два грузовых лифта (модификация называется П-44Т/25).
Застекленные лоджии начинаются со второго или третьего этажа.
В двух-трехкомнатной квартире также есть стеллажи и полусекторы. На одном этаже расположены четыре квартиры.
Строительство таких домов началось с 1997 года и успешно возводится на сегодняшний день.
Дома формы П-44Т строятся, как и в новомосковских районах крупной застройки, таких как: Некрасовка, Новая кожа, Жулебино, Новокосино, Митино, Люблин, Мариинский парк, Южное и Северное Бутово, Ходянка и Поз.Северный. Также строятся в старых районах Москвы, где сносят пятиэтажки и ветхие дома, это: Южное Чертаново, Нагатино, Перово, Зюзино, Очаково, Солнцево, Кунцево, Черремушки, Фили, Ховрино, Бескудниково, Коптево, Дегунино, Медведково, Свиблово, Юрлово, Измайлово, Алексеево, Лефортово, Зеленоград, Щукино, ул. Нижний Новгород, ул. 1905 г., ул. Борисовский пруд. Дома типа П-44Т строятся и в других районах Москвы (в том числе в Средней Азии).
Новостройки Н-44Т строятся не только в Москве, но и в городах Московской области.Например: Балашиха, Железнодорожный, Люберцы, Лобня, Красногорск, Реутов, Москва, Котельники, Щербинка, Одинцово, Химки, в п.
Медвежьи озера и р. Синий, также на деревьях. Пыхино и дер. Брихово, так и в ЖК «Бутово Парк».
В Москве около 600 таких домов и в Московской области. — Около 200 (отдано под строительство). По заявлению производителя срок эксплуатации такого дома составляет 100 лет.
Двухкомнатная квартира: жилая площадь может достигать 19 квадратных метров.м, площадь кухни до 8,4 кв. м. Но хоть 7,4 (в доме 25 этажей кухня около 9 кв.м), общая площадь может достигать 40 кв.м. м. Но не менее 37 кв. м.
Двухкомнатная квартира: Жилая площадь может достигать 34 квадратных метров. м. Но хоть 19, площадь кухни до 13,2 кв. м. Но не менее 8,3 кв. м. (в доме на 25 этажей кухня от 12,8 до 13,8 кв.м), общая площадь доходит до 64 кв.м.м. Но не менее 52 кв. м.
Трехкомнатная квартира: Жилая площадь может достигать 54 квадратных метров. м. Но не менее 44 кв. м., площадь кухни до 13,2 кв. м. Но не менее 10 кв. м., общая площадь достигает 84 кв. м. Но не менее 70 кв. м.
Комнаты в домах серии П — 44Т, все изолированные.
Раздельные санузлы делаются только в двух- и трехкомнатных квартирах, в однокомнатных квартирах санузел совмещенный.Размер ванны 1,7 м. (Стандарт).
Лестницы неснабжающие, в домах на 20 и 25 этажей (Вид П-44Т/25) Балконы общие. Мусоропровод с загрузочным клапаном имеется на всех этажах.
Плита кухонная электрическая. Естественная вытяжная вентиляция и форточки в коридоре и санузле.
Наружные стены: трехслойные, толщиной 30 см, панели из железобетона (теплоизоляция таких стен равна кирпичу толщиной 90 см, по заявлению производителя). Внутренняя и межкоммуникационная несущая — панели из железобетона толщиной 16 — 18 см.Перегородки из гипсокартона толщиной 8 см. Перекрытия больших размеров по помещению, плиты из железобетона толщиной 14 см.
Продольные межстворчатые несущие стены (в концевых квартирах, в том числе межкомнатные). Все стены (межстенные, межпараллельные и межкомнатные) имеют поперечную несущую способность.
Типы секций: рядные (рядные, П-44-1), торцевые и угловые (поворотные).
В подъезде с электротельфером есть два входа.
Ступени в подъезде: семь, ширина одной ступени (шаг — расстояние между двумя стенками вагона), равна 300 сантиметрам (в трех центральных секциях секции), а в остальных секциях — 360 сантиметрам .
Варианты цвета наружных стен, могут быть: песочный, темно-оранжевый и красный. Первые этажи могут быть: белого цвета или серые с отделкой «под камень».
Кровля из плоской черепицы Braas DSK1. Над верхним (последним) жилым этажом находится технический этаж.
Отличительной особенностью дома формы П-44Т от более устаревших видов П-44 (которые строились с 1979 по 2000 г.) отличается: более высокая теплоизоляция, более увеличенная кухня, за счет удаления вентиляции коробка в коридоре, отделка наружных стен под кирпич и еркеры.
Также к преимуществам относятся: медная проводка, отопительные приборы с регулировкой температуры, первые классы мировых стандартов по капиталоемкости и огнестойкости, подача горячей воды с верхним разливом, быстрое строительство (этаж за три дня).
Но есть и недостатки такой серии: качество монтажа отдельных элементов наружных стен в отдельно стоящих домах, в двухкомнатных квартирах (нормы, с односторонними окнами), узкая малогабаритная комната.
В некоторых домах типа П-44Т можно купить квартиру с муниципальной отделкой.
По ул. Маршала Василевского в 1997 году был возведен первый дом из типа П-44Т. На набережной Яузы Рубцовского района из блоков секций П-44Т и П-44М построен один из самых видных дачных домов Москвы. . На типовой базе формы П-44Т в 2005 г. созданы типовые блоки — разрезы из вида П-44К. , где в каждой секции на одну ступеньку меньше (с 6 ступеней до семи), естественно только в однокомнатных и двухкомнатных квартирах.На сегодняшний день более активно такие виды строятся на МКАД.
Ниже — большое фото и планировка квартир этой серии (нажмите на фото для увеличения и доп. информации).
Его начали строить еще с 1997 года. И по настоящее время. Имеет свою модификацию, которая отличается от нее только этажностью – это серия П-44Т/17.
Дом П-44Т панельный, состоит из угловой и рядовой секций по четыре квартиры, где 1-комнатная квартира имеет жилую площадь — 19м 2 , кухня — 7-9м 2 , санузлы совмещены; 2-комнатная квартира — 30-34 м 2 , кухня — 8-13 м 2 , санузлы раздельные; 3 комнатная квартира — 44-54 м 2 , кухня — 10-13м 2 , санузел тоже раздельный.Все комнаты в квартирах домов серии П-44Т изолированные. Во всех квартирах предусмотрены эркеры и просторные лоджии. Внутренние стены Состоят из сборных железобетонных панелей толщиной 16 см и 18 см. Наружные стеновые трехслойные навесные панели с утеплителем из пенополистирола и с теплоотражающей металлизированной пленкой внутри, общей толщиной 30 см; Со стороны фасада облицован плиткой «под кирпич», начиная со второго этажа. Перегородки из многих материалов: пазлы или пенобетонные блоки, гипсокартонные листы для металлического каркаса, гипсокартонные прокатные панели, но чаще всего железобетонные, все одной толщины — 8 см.Перекрытие – железобетонные плиты толщиной 14 см.
Дома жилые серии П-44Т. обладал различными недостатками, такими как, узкое помещение в двухкомнатных линейных квартирах (с окнами на первую сторону), швы между панелями требуют дополнительной прокладки (иначе будет холодно). Возможности эксплуатации в доме этого типа очень серьезно ограничены. Почти все стены являются несущими. Однако при допустимой перепланировке без вредного воздействия на несущие конструкции сохраняются следующие возможности:
- В трехкомнатных квартирах перегородка между большой комнатой и коридором нецелесообразна.
- Сантехблок изготовлен из гипса и может быть демонтирован и/или модифицирован.
- В домах после 2007 года постройки в несущих панелях между кухней и комнатой в квартирах предусмотрены специальные ниши для исполнения дверных проемов («вафель»), которые можно демонтировать.
Тем не менее, эта серия имеет ряд преимуществ: в планировку добавлены эркеры, медная проводка, вентиляция, вытяжка вентиляции, ГВС с верхним разливом, внешний вид приобрел особый цвет — красный с песочным, эркеры и лоджии окрашены в белый цвет.
Для проживания в домах серии П-44Т предоставляется мансардный этаж. Появилась современная система безопасности, которая реагирует на открытие офисных помещений, затопление или угрозы возникновения пожара.
В каждом подъезде установлено по одному пассажирскому и одному грузопассажирскому лифту, в 20-25-этажных секциях (подъездах) — по 2 грузопассажирских и пассажирский. Количество подъездов от 1 до 8. Лестницы не нужны, пожарного балкона нет. Мусорная решетка расположена на лестнице, с загрузочным клапаном на площадке.
Срок службы серии Р-44Т около 100 лет, так что надеяться на снос, в ближайшее время, не стоит.
Тип дома р 44т Планировка с размерами. Типовая серия дома П44т с плоскими досками. Наружная отделка и конструктивные особенности серии
Его начали строить еще с 1997 года. И по настоящее время. Имеет свою модификацию, которая отличается от нее только этажностью — это серия П-44Т/17.
Дом П-44Т панельный, состоит из угловой и рядовой секций по четыре квартиры, где 1-комнатная квартира имеет жилую площадь — 19м 2 , кухня — 7-9м 2 , санузлы совмещены; 2-комнатная квартира — 30-34 м 2 , кухня — 8-13 м 2 , санузлы раздельные; 3 комнатная квартира — 44-54 м 2 , кухня — 10-13м 2 , санузел тоже раздельный.
Все комнаты в квартирах домов серии П-44Т изолированные. Во всех квартирах предусмотрены эркеры и просторные лоджии. Внутренние стены Состоят из сборных железобетонных панелей толщиной 16 см и 18 см.Наружные стеновые трехслойные навесные панели с утеплителем из пенополистирола и с теплоотражающей металлизированной пленкой внутри, общей толщиной 30 см; Со стороны фасада облицован плиткой «под кирпич», начиная со второго этажа. Перегородки из многих материалов: пазлы или пенобетонные блоки, гипсокартонные листы для металлического каркаса, гипсокартонные прокатные панели, но чаще всего железобетонные, все одной толщины — 8 см. Перекрытие – железобетонные плиты толщиной 14 см.
Дома жилые серии П-44Т. обладал различными недостатками, такими как узкая комната. В двухкомнатных линейных квартирах (с окнами на первую сторону) швы между панелями требуют дополнительной прокладки (иначе будет холодно). Возможности эксплуатации в доме этого типа очень серьезно ограничены. Почти все стены являются несущими.
Однако при допустимой перепланировке без вредного воздействия на несущие конструкции сохраняются следующие возможности:
- В трехкомнатных квартирах перегородка между большой комнатой и коридором нецелесообразна.
- Сантехблок изготовлен из гипса и может быть демонтирован и/или модифицирован.
- В домах после 2007 года постройки в несущих панелях между кухней и комнатой в квартирах предусмотрены специальные ниши для исполнения дверных проемов («вафель»), которые можно демонтировать.
Тем не менее, у этой серии есть ряд преимуществ: В планировки добавлены эркеры, медная проводка, вентиляция, вентиляция естественной вытяжки, ГВС с верхним водосливом, внешний вид приобрел особый цвет — красный с песочным , эркеры и лоджии окрашены в белый цвет.Для проживания в домах серии П-44Т предоставляется мансардный этаж. Появилась современная система безопасности, которая реагирует на открытие офисных помещений, затопление или угрозы возникновения пожара.
В каждом подъезде установлено по одному пассажирскому и одному грузопассажирскому лифту, в 20-25-этажных секциях (подъездах) — по 2 грузопассажирских и пассажирский. Количество подъездов от 1 до 8. Лестницы не нужны, пожарного балкона нет. Мусорная решетка расположена на лестнице, с загрузочным клапаном на площадке.
Срок службы серии Р-44Т около 100 лет, так что надеяться на снос, в ближайшее время, не стоит.
- Изготовитель: ДСК-1
- Разработчики: МНИИТП

Серия Р44Т состоит из 14-17- этажные прямые и угловые блочные секции с различными вариантами крыш: с мансардным завершением, с плоской крышей, с «наклонными» фризами, что позволяет составлять различные конфигурации и силуэт здания.Может иметь высоту 9-25 этажей. Новым в решении фасадов серии стало сочетание панелей, облицованных матовой керамической плиткой «Под кирпич» (ярко-оранжевого, реже песочного цвета), с окрашенными поверхностями эркеров, лоджий, карнизов и других архитектурных деталей. В торцах секций устроены треугольные эркеры. В проекте предусмотрено несколько вариантов остекления балконов и лоджий на северном фасаде. Серия П44Т стала одной из самых массовых для строительства муниципального жилья в Москве строительной мощностью более 1 млн кв.м. в год.
Усовершенствованные системы отопления, водоснабжения и вентиляции жилых домов по сравнению с серией Р44. Стояк вентшахтов, который в Р44 находился на кухне, перенесли в коридор (рядом с ванной и туалетом).
Дом П44Т состоит из угловой и рядовой секций по четыре квартиры, аналогично базовой серии П44.
В отличие от нее, в кухнях двух- и трехкомнатных квартир П-44Т установлены большие эркеры трапециевидной формы. При этом кухни односторонних двухосников, а также жилые распорки (2х и 3-х комнатные) имеют треугольные полураспорки.Также увеличена площадь квартир.
Следует понимать, что П-44Т это, по сути, группа серии — есть и применяются проекты домов П-44ТМ или ТМ-25, а также П-44К, которые имеют ряд различия в планировке квартир, а также планировка типовых этажей. Причем иногда жилые дома устраивались из нескольких вариантов секций, например, двух секций П-44Т и четырех секций П-44К. Возможны и другие конфигурации комбинации секций.
Типовые планировки квартир домов этой серии представлены ниже.
Чаще всего первый этаж жилой. Высота потолков в доме 2,70 м. Лифты в доме: Пассажирский имеет грузоподъемность 400 кг, а грузовой — 630 кг. В доме на 20 и 25 этажей имеется один пассажирский и два грузовых лифта (модификация называется П-44Т/25).
Застекленные лоджии начинаются со второго или третьего этажа.
В двух-трехкомнатной квартире также есть стеллажи и полусекторы.На одном этаже расположены четыре квартиры.
Строительство таких домов началось с 1997 года и успешно возводится на сегодняшний день.
Дома формы П-44Т строятся, как и в новомосковских районах крупной застройки, таких как: Некрасовка, Новая кожа, Жулебино, Новокосино, Митино, Люблин, Мариинский парк, Южное и Северное Бутово, Ходянка и Поз. Северный. Также строятся в старых районах Москвы, где сносят пятиэтажки и ветхие дома, это: Южное Чертаново, Нагатино, Перово, Зюзино, Очаково, Солнцево, Кунцево, Черремушки, Фили, Ховрино, Бескудниково, Коптево, Дегунино, Медведково, Свиблово, Юрлово, Измайлово, Алексеево, Лефортово, Зеленоград, Щукино, ул.Нижний Новгород, ул. 1905 г., ул. Борисовский пруд. Дома типа П-44Т строятся и в других районах Москвы (в том числе в Средней Азии).
Новостройки Н-44Т строятся не только в Москве, но и в городах Московской области. Например: Балашиха, Железнодорожный, Люберцы, Лобня, Красногорск, Реутов, Москва, Котельники, Щербинка, Одинцово, Химки, в п.
Медвежьи озера и р. Синий, также на деревьях. Пыхино и дер. Брихово, так и в ЖК «Бутово Парк».
В Москве около 600 таких домов и в Московской области.- Около 200 (отдано под строительство). По заявлению производителя срок эксплуатации такого дома составляет 100 лет.
Двухкомнатная квартира: жилая площадь может достигать 19 квадратных метров. м, площадь кухни до 8,4 кв. м. Но хоть 7,4 (в доме 25 этажей кухня около 9 кв.м), общая площадь может достигать 40 кв.м. м. Но не менее 37 кв. м.
Двухкомнатная квартира: Жилая площадь может достигать 34 квадратных метров. м. Но хоть 19, площадь кухни до 13.2 квадратных метра. м. Но не менее 8,3 кв. м. (в доме на 25 этажей кухня от 12,8 до 13,8 кв.м), общая площадь доходит до 64 кв.м. м. Но не менее 52 кв. м.
Трехкомнатная квартира: Жилая площадь может достигать 54 квадратных метров. м. Но не менее 44 кв. м., площадь кухни до 13,2 кв. м. Но не менее 10 кв. м., общая площадь достигает 84 кв. м. Но не менее 70 кв.м.
Комнаты в домах серии П — 44Т, все изолированные.
Раздельные санузлы делаются только в двух- и трехкомнатных квартирах, в однокомнатных квартирах санузел совмещенный. Размер ванны 1,7 м. (Стандарт).
Лестницы неснабжающие, в домах на 20 и 25 этажей (Вид П-44Т/25) Балконы общие. Мусоропровод с загрузочным клапаном имеется на всех этажах.
Плита кухонная электрическая. Естественная вытяжная вентиляция и форточки в коридоре и санузле.
Наружные стены: трехслойные, толщиной 30 см, панели из железобетона (теплоизоляция таких стен равна кирпичу толщиной 90 см, по заявлению производителя).Внутренняя и межкоммуникационная несущая — панели из железобетона толщиной 16 — 18 см. Перегородки из гипсокартона толщиной 8 см. Перекрытия больших размеров по помещению, плиты из железобетона толщиной 14 см.
Продольные межстворчатые несущие стены (в концевых квартирах, в том числе межкомнатные). Все стены (межстенные, межпараллельные и межкомнатные) имеют поперечную несущую способность.
Типы секций: рядные (рядные, П-44-1), торцевые и угловые (поворотные).
В подъезде с электротельфером есть два входа.
Ступени в подъезде: семь, ширина одной ступени (шаг — расстояние между двумя стенками вагона), равна 300 сантиметрам (в трех центральных секциях секции), а в остальных секциях — 360 сантиметрам .
Варианты цвета наружных стен, могут быть: песочный, темно-оранжевый и красный. Первые этажи могут быть: белого цвета или серые с отделкой «под камень».
Кровля из плоской черепицы Braas DSK1. Над верхним (последним) жилым этажом находится технический этаж.
Отличительной особенностью дома формы П-44Т от более устаревших видов П-44 (которые строились с 1979 по 2000 г.) отличается: более высокая теплоизоляция, более увеличенная кухня, за счет удаления вентиляции коробка в коридоре, отделка наружных стен под кирпич и еркеры.
Также к преимуществам относятся: медная проводка, отопительные приборы с регулировкой температуры, первые классы мировых стандартов по капиталоемкости и огнестойкости, подача горячей воды с верхним разливом, быстрое строительство (этаж за три дня).
Но есть и недостатки такой серии: качество монтажа отдельных элементов наружных стен в отдельно стоящих домах, в двухкомнатных квартирах (нормы, с односторонними окнами), узкая малогабаритная комната.
В некоторых домах типа П-44Т можно купить квартиру с муниципальной отделкой.
По ул. Маршала Василевского в 1997 году был возведен первый дом из типа П-44Т. На набережной Яузы Рубцовского района из блоков секций П-44Т и П-44М построен один из самых видных дачных домов Москвы. . На типовой базе формы П-44Т в 2005 г. созданы типовые блоки — разрезы из вида П-44К. , где в каждой секции на одну ступеньку меньше (с 6 ступеней до семи), естественно только в однокомнатных и двухкомнатных квартирах. На сегодняшний день более активно такие виды строятся на МКАД.
Ниже — большое фото и планировка квартир этой серии (нажмите на фото для увеличения и доп. информации).
В современном городском домостроении наиболее распространенной является компоновка П44Т, обладающая рядом безусловных преимуществ.
Еще в семидесятые годы было начато строительство новых домов серии П44 по типовым проектам. По сути, это был первый шаг к дальнейшему развитию и внедрению более современных технологий строительства и планировки жилых помещений.
Особенности планировки П44Т
П44Т — компоновка с габаритами, соответствующими требованиям современности предлагает около десяти решений. Разработаны варианты жилых секций для обычных и угловых квартир. Данная планировочная модель применяется для жилых многоэтажных домов высотой от 9 до 25 этажей.Для комфортного подъема жильцов и мебели на нужный этаж предусмотрено как минимум два лифта: пассажирский и грузовой.
Современные идеи планировки
Основная идея планировки П44Т – максимальное использование пространства. В этом контексте можно привести пример удачного инженерного решения, позволившего увеличить площадь кухни. Столь важные квадратные метры кухни для каждой хозяйки освободились за счет размещения вентиляционного короба в коридоре.
П44Т — планировка с размерами, предполагающими высоту комнат 2,7 м, что обеспечивает комфорт и хороший доступ дневного света в квартиру. Современные идеи планировки дали возможность использовать чердачные помещения. Планировка квартиры П44Т с увеличенными до 4,2 м размерами шага поперечных стен позволяет провести отличное озеленение. Часто их комбинируют с обычным полом, в результате чего получается двухэтажная квартира.
Преимущества П44Т
Планировка дома П44Т с размером внутреннего перекрытия 0.14 м и 0,18 м отличается надежностью и долгим сроком службы. Износостойкость и устойчивость наружных стен перед внешними воздействиями обеспечивает керамическая плитка толщиной 0,30 м, имитирующая кирпич, надежно закрепленная на фасаде. Использование качественных стеклопакетов гарантирует хорошую теплоизоляцию, защиту от шума и создает комфорт. Оснащение различными современными системами контроля обеспечивает гарантию безопасности в случае пожара и при угрозе затопления.
Также в этот тип дверей устанавливаются датчики открытия технических помещений и электросчетчики. П44Т — компоновка с размерами, соответствующими нормам проектных данных, предполагает прокладку электрических проводов внутри панелей. Это повышает безопасность эксплуатации и защиту самих проводов при любых ремонтных или строительных работах.
Очень важными преимуществами дома планировки П44Т являются короткие сроки строительства и длительный срок эксплуатации. Гарантированный специалистами срок службы более ста лет.
Планировка П44Т с размерами стен значительно больше, чем в строящихся домах прошлых лет, обеспечивает дополнительную надежность конструкции, лучшую звукоизоляцию квартир и хорошую теплоизоляцию помещений. При строительстве используется качественный тяжелый бетон, отвечающий за повышенную износостойкость.
Недостатки P44T.
Наряду с рядом достоинств можно назвать и некоторые недостатки, встречающиеся в домах данного типа.Одна из них – неровности стен и полов.
Устранить такой недостаток несложно, выполнив выравнивание и обеспечив дополнительную шумоизоляцию.
Технологические отличия Планировка П44Т 25
Планировка П44Т 25 с размерами, описанными ниже, является современной и усовершенствованной планировочной разновидностью, используемой для жилых домов в 25 этажей с увеличением квартир. При этом ширина стены стены в сечении больше и трехкомнатная квартира оборудована дополнительным санузлом.Технологические отличия Р44Т 25 заключаются в высоких этажах с увеличенным до трех лифтов грузоподъемностью двух из них 630 кг и одного — 400 кг. Площадь кухни увеличена до 9 квадратных метров. м в однокомнатной; до 15,9 кв. м в двухкомнатной линейной; До 13,8 кв. м — в трехкомнатных и больших габаритных площадях 1-/2-/3-комнатных квартир составляют 37,4-38,8/51,7-63,4/77-84,6 кв. м соответственно.
Эркеры в домах П44Т
П44Т — планировка с размерами, указанными выше, все чаще предполагает использование эркеров, делающих квартиры не только эстетически более привлекательными, но и увеличивающих площадь помещения.
Часть оконного пространства оформляют на наружном фасаде в виде выступа трапециевидной или другой формы, увеличивая таким образом размеры помещения. Чаще всего этот способ используют на кухнях. Благодаря эркерам помещение получает дополнительное освещение, увеличивается площадь, а фасад дома выглядит более привлекательно. Выступы могут быть различной формы: прямоугольной, треугольной, многоугольной или круглой. Можно использовать и оформлять эркер как отдельную зону, тогда она отделяется от основного помещения барной стойкой со стеллажом или визуальной перегородкой, например, ширмой.Заслуженной популярностью пользуется и усеченный вариант — полумекер.
Дизайнерские решения для кухни или комнаты с эркером могут быть гораздо интереснее обычных.
П44Т – планировка с габаритами, хорошо приспособленными для комфортной жизни, сегодня наиболее распространена в многоэтажных жилых домах. Архитекторы и дизайнеры, работавшие над решением задач максимального удобства квартир, не только реализовали их в проекте, но и сделали планировку интересной и оригинальной.
Данные размеры были сняты лично мной в моей квартире по окончанию монтажа дома. Относительно размеров стоит отметить, что чем выше этаж, тем больше площадь квартиры, так как стены на верхних этажах темнее. В моем случае площадь квартиры больше 0,5 квадратных метров от площади, указанной в предварительном договоре купли-продажи квартиры, и это приятнее, чем получить минус в квартире, расположенной на одном из нижних этажей.
Теперь перейдем непосредственно к планировке квартиры и сравним ее с другим предложением трехкомнатной квартиры в доме 111-й серии от компании GWS. Размеры трехкомнатной квартиры представлены на следующем рисунке:
Сравнение 3-х комнатных квартир серии П-44Т и 111м
Площадь этих квартир практически одинаковая — кому больше нравится. Это дело вкуса и потребностей, но мне больше понравилась планировка Р-44Т.Почему?
1. Расположение ванной комнаты.
В П44-т санузел находится в коридоре возле прихожей, а в 111-м между двумя комнатами.
Во втором варианте в комнатах возле ванной всегда будет слышен шум воды, открывающихся и закрывающихся дверей, что будет нарушать тишину в этих помещениях.
2. Кухня.
В П44-Т и 111 кухни имеют аналогичные квадраты, но в первом варианте кухня с эркером.Благодаря эркеру на кухне всегда будет светло, кухня будет иметь более красивый вид.
3. Коридор.
В П-44т Коридор более широкий и короткий, что позволит установить в нем хороший шкаф для несезонной одежды и прочего, а в 111-м коридор узкий и длинный, что не позволяет им пользоваться с пользой.
4 комнаты
В П-44т мне понравилось то, что комнаты шире, что позволяет полнее использовать их площадь, а в 111-й комнаты достаточно узкие, что не позволит разнести мебель по обеим сторонам комнат.Также в П-44Т все комнаты разной площади, благодаря этому у вас будет больше «маневров» в выборе назначений каждой из трех комнат.
5. Балконы
В П-44т два вполне просторных балкона, а в 111-м он один.
Стоит обратить внимание на то, что стоимость квадратного метра холодных помещений, как правило, наполовину ниже, чем жилых, а значит, вы платите за балконы в два раза меньше, а получаете больше квадратных метров.
6.
Если есть вопросы, то задавайте их в комментариях — отвечу!
Макет П-44Т с размерами
Планировка квартиры в п44т с вариантами перепланировки
Планировка трехкомнатной квартиры серии П 44Т
Циферблат дозатора
Обычно это площадь около 60-64 кв.м. На кухне большой эркер, а в каждой из комнат по просторному балкону.По сути, это та же трешка, только с «герметизирующей» одиннадцатипрямой комнатой и примыкающим к участку коридором.
Линейный циферблат П-44Т
Площадь односторонних двухкомнатных квартир колеблется в районе 52 кв.м (51-53 кв.м). Это небольшие коридоры и балконы.
Двухкомнатная квартира П-44 Т
Площадь Одера в П-44Т около 36-38 кв.
м. Они имеют небольшой балкон и совмещенный санузел.
Квартиры с тремя спальнями П-44Т
По площадям и конфигурациям трехкомнатных квартир в серии П-44Т наблюдается наибольший разброс (примерно от 73 до 86 метров). Планировочных решений тоже много. Кухни в угловых секциях трешек не имеют эркеров, а их площадь обычно не превышает 10 метров. При этом 3-х комнатные квартиры в рядовой и концевой секциях П-44Т могут похвастаться кухнями с эркером и общей площадью от 12 до 14 кв.м.
ТРИКА С ЭРКЕРОМ В КОМНАТЕ (ЛИЦО P44T ФАКТ)
макет с размерами. Внешняя отделка и конструктивные особенности серии
- Производитель: ДСК-1
- Разработчики: МНИИТЭП
Дома серии П44Т отличаются улучшенными планировками квартир, более эффективной тепло- и шумоизоляцией наружных стеновых панелей, а также наличием современных инженерных систем и систем безопасности (отопительные приборы с регуляторами температуры, медная проводка, технология закрытых стыков (фальцевая ), мировые стандарты капитальности и огнестойкости (1-й класс), современная система безопасности (реагирование на открытие дверей подвала, электрощитовой, чердака, шахты лифта; система оповещения о затоплении и пожаре). Серия п44т состоит из 14-17-этажных прямых и угловых блок-секций с различными вариантами кровли: с мансардным завершением, с плоской крышей, с «наклонными» фризами, что позволяет компоновать здания различной конфигурации и силуэта. Они могут быть высотой от 9 до 25 этажей. Новшеством в решении фасадов серии является сочетание панелей, облицованных матовой керамической плиткой под кирпич (ярко-оранжевой, реже песочной), с окрашенными поверхностями эркеров, лоджий, карнизов и других архитектурных деталей.
на концах секций спроектированы треугольные эркеры. проект предусматривает несколько вариантов остекления балконов и лоджий на северном фасаде. Серия п44т стала одной из самых распространенных для строительства муниципального жилья в Москве с объемом строительства более 1 млн кв. м в год.
Системы отопления, водоснабжения и вентиляции домов улучшены по сравнению с серией Р44. Стояк вентиляционной шахты, находившийся на кухне в П44, перенесли в коридор возле П44Т (рядом с ванной и туалетом).
Дом П44Т состоит из угловой и рядной секций по четыре квартиры, аналогично базовой серии П44. Напротив, кухни двух- и трехкомнатных квартир П-44Т имеют большие трапециевидные эркеры. В то же время кухни односторонних двусторонних домов, а также жилые комнаты боковых тельняшек (2-х и 3-х комнатные) имеют треугольные полуокна. Также увеличена площадь квартир.
Надо понимать, что П-44Т это, по сути, группа серий — есть проекты домов П-44ТМ или ТМ-25, а также П-44К, которые имеют ряд отличий в компоновках квартир, а также планировку типовых этажей.
Причем иногда возводят жилые дома, составленные из нескольких вариантов секций, например, две секции П-44Т и четыре секции П-44К. Возможны и другие конфигурации комбинации секций.
Типовые планировки квартир в этой серии домов представлены ниже.
Чаще всего первый этаж жилой. Высота потолков в доме 2,70 м. Лифты в доме: пассажирский имеет грузоподъемность 400 кг, грузовой — 630 кг.В здании 20 и 25 этажей, имеется один пассажирский и два грузовых лифта (модификация называется П-44Т/25).
Остекление балконов начинается со второго или третьего этажа. Встречаются также экеры и полумеры в двух-трехкомнатной квартире. На одном этаже четыре квартиры.
Строительство таких домов началось в 1997 году, и успешно возводится сегодня.
Дома типа П-44Т строятся, как и в новых московских районах крупной застройки, таких как: Некрасовка, Новое Кожухово, Жулебино, Новокосино, Митино, Люблино, Марьинский парк, Южное и Северное Бутово, Ходынка и р-н поселок.Северный.
Также ведется застройка в старых районах Москвы, где сносят пятиэтажки и ветхие дома, это: Южное Чертаново, Нагатино, Перово, Зюзино, Очаково, Солнцево, Кунцево, Черемушки, Фили, Ховрино, Бескудниково, Коптево, Дегунино, Медведково, Свиблово, Юрлов, Измайлово, Алексеево, Лефортово, Зеленоград, Щукино, ул. Нижегородская, ул. 1905 г., ул. Борисовские пруды. Дома типа П-44Т строятся и в других районах Москвы (в том числе в ЦАО).
Новостройки П-44Т строятся не только в Москве, но и в городах Московской области. например: Балашиха, Железнодорожный, Люберцы, Лобня, Красногорск, Реутов, Московский, Котельники, Щербинка, Одинцово, Химки, в селе Медвежье Озёра и селе Голубое, также на деревьях. Пыхтино и дер. Брехово, а также в жилом комплексе «Бутово-Парк».
В Москве построено около 600 таких домов и в Московской области.- около 200 (включая строящиеся). По заявлению производителя срок службы такого дома составляет 100 лет.
Однокомнатная квартира: жилая площадь до 19 кв.
м, кухня до 8,4 кв.м. но не менее 7,4 (в доме 25 этажей кухня около 9 кв.м.), общая площадь может достигать 40 кв.м. м. но не менее 37 кв.м.
Двухкомнатная квартира: жилая площадь может быть до 34 кв.м. но не менее 19, площадь кухни до 13,2 кв.м. но не менее 8,3 кв.м. (в доме в 25 этажей кухня от 12,8 до 13,8 кв.м), общая площадь доходит до 64 кв.м. но не менее 52 кв.м.
Трехкомнатная квартира: жилая площадь может быть до 54 кв.м. но не менее 44 кв.м., площадь кухни до 13,2 кв.м. но не менее 10 кв.м., общая площадь достигает 84 кв.м. но не менее 70 кв.м.
Комнаты в домах серии П — 44Т, все изолированные. Раздельные санузлы делаются только в двух- и трехкомнатных квартирах, в однокомнатной — совмещенный санузел.Ванны размером 1,7 м (стандарт).
Незадымляемые лестницы, дома в 20 и 25 этажей (тип П-44Т/25) имеют общие балконы. На всех этажах есть мусоропровод с загрузочным клапаном.
Плита кухонная электрическая. Естественная вытяжная вентиляция и вентиляционные блоки в коридоре и санузле.
Наружные стены: трехслойные, толщиной 30 см, железобетонные панели (теплоизоляция таких стен равна кирпичным стенам толщиной 90 см, по данным производителя).Межкомнатная и межкомнатная несущая — железобетонные панели толщиной 16 — 18см. Перегородки из гипсокартона толщиной 8 см. Перекрытия больших размеров в помещении, железобетонные плиты толщиной 14 см.
Продольные межквартирные несущие стены (в крайних квартирах, также межкомнатные). Все стены (межбалконные, межквартирные и межкомнатные) относятся к поперечным несущим.
Типы секций: рядовые (рядные, П-44-1), торцевые и угловые (поворотные). На входе из электрощитовой имеется два входа.
Ступени в подъезде: семь, ширина одной ступени (шаг — расстояние между двумя несущими стенами), равная 300 сантиметрам (в трех центральных пролетах секции), 360 сантиметрам на остальных секциях .
Варианты цвета наружных стен могут быть следующие: песочный, темно-оранжевый и красный. Первые этажи могут быть белыми или серыми с «каменной» отделкой.
Кровля из плоскоскатной черепицы BRAAS DSK1. Над верхним (последним) жилым этажом находится технический этаж.
Отличительная особенность дома типа П-44Т от более устаревшего типа П-44 (строились с 1979 по 2000 год): более высокая теплоизоляция, более увеличенная кухня, за счет удаления вентиляционного короба в коридор, отделка наружных стен под кирпич и эркеры.
Также к достоинствам можно отнести: медную проводку, отопительные приборы с регулировкой температуры, первые классы мировых стандартов по капитальности и огнестойкости, горячее водоснабжение с верхним разливом, быстрое строительство (этаж за три дня).
Но есть и недостатки домов этой серии: качество монтажа некоторых элементов наружных стен в отдельных домах, в двухкомнатных квартирах (линейки, с окнами в одну сторону), узкая маленькая комната.
В некоторых домах типа П-44Т можно купить квартиру с муниципальной отделкой.
По улице Маршала Василевского в 1997 году возведен первый дом типа П-44Т.
На набережной Яузы Рубцовского района построен один из самых видных, многоэтажных домов Москвы, из блоков секций П-44Т и П-44М …На типовой базе типа П-44Т в 2005 году были созданы типовые блоки — секции из вида Р-44К , где в каждой секции на одну ступень меньше (6 ступеней на место семи), из конечно, только в однокомнатных и двухкомнатных квартирах. Сегодня такие типы более активно строятся на МКАД.
Ниже представлены еще фото и планировки квартир этой серии (нажмите на фото для увеличения и дополнительной информации).
Начал строиться в 1997 году.и к настоящему. У него есть своя модификация, которая отличается от него только этажностью — это серия Р-44Т/17.
Дом П-44Т панельный, состоит из угловых и рядных секций по четыре квартиры, где 1-комнатная квартира имеет жилую площадь 19м 2 , кухня — 7-9м 2 , санузлы совмещены; 2-комнатная квартира — 30-34 м 2 , кухня — 8-13 м 2 , санузлы раздельные; 3-комнатная квартира — 44-54 м 2 , кухня — 10-13 м 2 , санузел тоже раздельный.
Все комнаты в квартирах домов серии П-44Т изолированные.Все квартиры имеют эркеры и просторные балконы. Внутренние стены состоят из сборных железобетонных панелей толщиной 16 см и 18 см. Наружные стеновые трехслойные навесные панели с утеплителем из пенополистирола и теплоотражающей металлизированной пленкой внутри утеплителя, общая толщина 30 см; с лицевой стороны облицованы плиткой под кирпич, начиная со второго этажа. Перегородки из многих материалов: пазогребневые или пенобетонные блоки, гипсокартонные листы на металлическом каркасе, гипсобетонные прокатные панели, но чаще всего из гипсобетона, все они одинаковой толщины – 8 см.Перекрытие — железобетонные плиты толщиной 14 см.
Серия жилых домов П-44Т имеет различные недостатки, такие как узкое помещение в двухкомнатных линейных квартирах (с окнами на одну сторону), швы между панелями требуют дополнительной промазки (иначе будет холодно). Возможности перепланировки в этом типе дома очень серьезно ограничены.
Почти все стены несущие. Однако остаются следующие возможности допустимой перепланировки без вредного воздействия на несущие конструкции:
- В трехкомнатных квартирах перегородка между большой комнатой и коридором не несущая.
- Сантехнический блок изготовлен из гипса и может быть демонтирован и/или модифицирован.
- В домах постройки после 2007 года в несущих панелях между кухней и комнатой в некоторых квартирах предусмотрена специальная ниша для изготовления дверного проема («вафля»), которую можно демонтировать.
Тем не менее, эта серия также имеет ряд преимуществ: в планировки добавлены эркеры, медная проводка, естественная вытяжная вентиляция, горячее водоснабжение с верхним разливом, внешний вид приобрел особую окраску — красный с песком, эркеры а лоджии покрасили в белый цвет.Для проживания в домах серии П-44Т бывает предусмотрен мансардный этаж. Появилась современная система безопасности, реагирующая на открытие офисных помещений, затопление или угрозу пожара.
В каждом подъезде имеется один пассажирский и один грузопассажирский лифт, в 20-25-этажных секциях (подъездах) — 2 грузопассажирских и один пассажирский. Количество подъездов от 1 до 8. Лестница незадымляемая, противопожарного балкона нет. Мусоропровод находится на лестнице, с загрузочным клапаном на площадке.
Срок службы дома серии П-44Т около 100 лет, поэтому надеяться на снос в ближайшее время не приходится.
Макет П-44Т с размерами
Планировки квартир в П44Т с вариантами перепланировки
Планировки двухкомнатных квартир серии П 44т
Жилет из двух частей
Обычно имеет площадь около 60-64 кв.м. На кухне большой эркер, а в каждой комнате просторный балкон. По сути, это та же трешка только с «откушенной» одиннадцатиметровой комнатой и примыкающим к ней участком коридора.
Линейная двушка П-44Т
Площадь односторонних двухкомнатных квартир колеблется в пределах 52 кв.
м (51-53 кв.м). В них есть небольшие коридоры и балконы.
Однокомнатная квартира П-44 Т
Площадь однокомнатных квартир в П-44Т около 36-38 кв.м. Они имеют небольшой балкон и совмещенный санузел.
Квартиры трехкомнатные П-44Т
Площади и конфигурации трехкомнатных квартир серии П-44Т характеризуются наибольшим разбросом (примерно от 73 до 86 метров). Планировочных решений тоже немало. Кухни в угловых секциях трешек не имеют эркеров, а их площадь обычно не превышает 10 метров. При этом 3-комнатные квартиры в общей и торцевой секциях П-44Т могут похвастаться кухнями с эркером и общей площадью от 12 до 14 кв.М.
Трешка с эркером в комнате (конец квартиры п44т)
Посетим сегодня 3-х комнатную квартиру, панельный дом серии П-44Т от застройщика ДСК-1
Квартира получилась хорошая и просторная, но проектировщики не стали мудрить с дизайном и планировка получилась быть похожей на другие подобные трехкомнатные квартиры в панельных домах.
Комнаты все изолированы друг от друга. В кухню добавлен большой эркер, а в угловой комнате квартиры присутствует треугольный эркер.Две комнаты имеют балконы.
Будем рассматривать планировку трехкомнатной квартиры со следующими размерами:
Комната с балконом багажник 17,8 кв.м. (на схеме №1)
Комната без балкона 14,1 кв.м. (на схеме №2)
Комната с балконом утюг 11 кв.м. (на схеме №3)
Кухня с большим эркером 12,9 кв.м. (на схеме №4)
Коридор с прихожей 14,6 кв.м. (на схеме №7)
Жилая площадь 42.9 кв.м.
Общая площадь квартиры без балконов 70,4 кв.м.
схема планировки трехкомнатной квартиры П-44Т с размерами
Открываем входную дверь и оказываемся в раздевалке. Впереди стена с проемом, в котором первоначально была сделана небольшая арка. Справа за дверью есть небольшое пространство, в котором может поместиться небольшая гардеробная или обувной шкаф.
В этом варианте мы видим пример такого шкафа для обуви.
Также это место может занять красивое большое зеркало в полный рост.
Проходим вперед и оказываемся в самом центре коридора. Нас встречают три двери. Слева большая двустворчатая дверь ведет нас в комнату площадью 11 кв.м. и балконные тапочки. А две соседние двери — это комнаты. Справа самая большая комната 17,8 кв.м. с лоджией сапога, а что слева небольшая комната 14 кв.м. без балкона.
Несколько интересных идей в дизайне прихожей трехкомнатной квартиры.На фото видно, что в соседней с нами комнате слева поставили дверь-купе.
Еще один интересный вариант для прихожей. Освещение было установлено в арке.
А здесь, в правой части синего коридора, в оформлении использованы колонны с подсветкой.
Расстановка мебели в прихожей
Если вам нужно больше места в комнатах и не загромождать комнату шкафами, для этой цели подойдет прихожая.
Вдоль длинной стены будет установлен большой шкаф.
Кто не совсем ушел в электронные книги, но собирает домашнюю библиотеку дома, интересным решением будет, если полки для книг разместить в прихожей.
Угловые полки поместятся в углу.
Комната с балконом утюг
Из коридора заходим в комнату с большим дверным проемом. Обычно это помещение используется как гостиная или холл.Комната хоть и не очень большая, но квадратная.
А если убрать оконные рамы и демонтировать часть подоконника, то можно расширить комнату и соединить ее вместе с балконом.
Трех комнат жильцам не всегда хватает. Нередко на балконах организуют рабочие кабинеты. Получается, что они находятся в ситуации, когда дорог каждый квадратный метр.
Оборачиваемся спиной к балкону и наблюдаем две межкомнатные двери, в типовой планировке чистовой ремонт от застройщика ДСК-1
Можно немного обыграть дверной проем.Постройте небольшую арку и поменяйте обычные двери на раздвижные.
Две двери занимают много места. А если сделать однодверный проем, можно поставить угловой шкаф в углу комнаты.
А иногда и вовсе разбирают всю стену. И получается вместо комнаты просторный холл, который соединяется в одно целое с прихожей.
Большая комната с балконом Тапочка
Стандартный большой номер с собственным балконом.Размер длинной стены 5,56 кв.м, короткой 3,22 кв.м. Может предназначаться как для родительской, так и для детской комнаты.
Если балкон утеплен, то стены можно оклеить обоями. Вынесите розетки на балкон и повесьте светильники для освещения.
Стены, которые мы помним с советских времен, становятся все менее популярными. Вместо них в дизайне и интерьере квартиры часто появляются длинные комоды.
Но цветы, как были в моде, до сих пор украшают наши квартиры.
Комната без балкона
В третьей комнате нет балкона.
Большое и широкое окно. Размер одной стены 4,34 кв.м. и вдоль стены с окном 3,22 кв.м.
Хорошее место для спальни. Плотные темные шторы помогут отгородиться от утреннего солнца и выспаться в выходной день на мягкой кровати.
Над кроватью оригинально смотрятся большие картины на стене.
Шкаф не будет лишним предметом в комнате.
Ванна и туалет в 3-х комнатной квартире
Выходим из комнаты и идем на кухню. По пути в коридоре нам попадаются двери в ванную и туалет, а справа от коридора есть пустующее, но очень удобное место для кладовки.
Серия Р-44Т
Годы постройки: с 1997 по настоящее время
Материал стен: панель с облицовкой под кирпич
Количество секций (подъездов): 1-8
Этажность: 9-25, самые распространенные варианты 14, 17
Высота потолка: 2.70-2,75 м.
Лифты: пассажирский и грузопассажирский, в 20-25-этажных секциях (подъездах) — 2 грузопассажирских и пассажирский
Балконы: балконов застеклены в 1-комнатных квартирах.
Застекленные лоджии и эркеры в 2-х и 3-х комнатных квартирах (в торцевых и угловых 2-х и 3-х комнатных квартирах также есть полуокна)
Количество квартир на этаже : 4
Панельные дома серии П-44Т в Москве построены как в новых районах массовой застройки: Мариинский парк, Северное и Южное Бутово, Солнцево, Митино, пос.Северный, Новокосино, Новое Кожухово, Некрасовка, Жулебино, Люблино, а также в старых районах, где производился массовый снос пятиэтажек, ветхого и неблагоустроенного жилья: Щукино, Зеленоград, Ховрино, Бескудниково, Коптево, Свиблово, Медведково, Измайлово, Лефортово, Перово, Нагатино, Южное Чертаново, Зюзино, Черемушки, Кунцево и многие другие. Также дома серии П-44Т во многих районах строились точечно.
В Московской области строятся/строятся новостройки серии П-44Т в городах Балашиха, Железнодорожный, Лобня, Красногорск, Люберцы, Московский, Котельники, Реутов, Одинцово, Химки, Щербинка, а также в деревня.Медвежьи Озера, пос. Синий, дер.
Брехово, дер. Пыхтино.
Количество построенных домов в Москве: около 600, в Московской области — около 200. На рынке новостроек Москвы и Московской области эта серия является одной из самых распространенных. При этом доля социальных домов составляет около 50%.
Нормативный срок эксплуатации дома (по данным производителя — ДСК-1) — 100 лет
Площадь 1-комнатных квартир (4 типоразмера): общая: 37-39 кв.м., жилая: 19 кв.м., кухня: 7-8,4 кв.м.
Площади 2-комнатных квартир (4 типоразмера): общая: 51-61 кв.м, жилая: 30-34 кв.м, кухня: 8,3-13,2 кв.м.
Площади 3-комнатных квартир (6 типоразмеров): общая: 70-84 кв.м, жилая: 44-54 кв.м, кухня: 10-13 кв.м.
Все комнаты в квартирах домов серии П-44Т изолированные
Санузлы : в 1-комнатных квартирах — совмещенные, в 2-х и 3-х комнатных — раздельные, ванны: стандартные, длиной 170 см.
Лестницы: незадымляемые. Мусоропровод: с загрузочным клапаном на каждом этаже
Тип варочной панели: электрическая
Стены: наружные железобетонные трехслойные панели (бетон — утеплитель пенополистирол — бетон) общей толщиной 30 см (теплоизоляция которых равна кирпичной стене толщиной 90 см).
(«на комнату») железобетонные плиты толщиной 14 см.
Несущие стены: продольные межквартирные и поперечные все (межквартирные и межквартирные)
Тип секции: торцевая, рядная и поворотная (угловая).Подъезд, где расположен распределительный щит, имеет вход с 2-х сторон
Количество ступеней в секции (вход) : 7, ширина ступени (расстояние между двумя соседними несущими стенами): 300 см (в 3-х центральных пролетах каждой секции), 360 см (в остальных)
Облицовка, штукатурка наружных стен: облицовка «под кирпич», нижних этажей — облицовка «под камень»
Варианты цвета наружных стен: темно-оранжевый, светло-оранжевый, нижние этажи — серый, эркеры и полуокна — белый
Тип крыши: плоская или скатная черепица производства BRAAS DSK-1, цвета: зеленый, коричневый
Отличительные особенности: серия домов П-44Т отличается от своего предшественника — серии П-44 (которая строилась в 1979-1999 гг.) повышенной теплоизоляцией стен, вентиляционным коробом в прихожей (а не в кухня), остекление лоджий, эркеров и полуокон, а также узнаваемая наружная отделка под кирпич
Другие преимущества: повышенная звукоизоляция, обогреватели с регуляторами температуры, медная проводка, технология «закрытый стык (шов)», мировые стандарты капитальности и огнестойкости (1-й класс), современная система безопасности (реакция на открытие дверей подвала , электрощитовая, мансарда, шахта лифта, система оповещения о затоплении, пожаре).
Быстрые темпы строительства (1 этаж за 3 дня): специалисты www.1 Дом. ru не выявил ни одного случая долгостроя домов этой серии.
недостатки : качество монтажа на наружной стене в отдельных корпусах
Производитель : ДСК-1 (крупнейшее предприятие строительной отрасли России)
Конструктор : МНИИТЭП
Конструктивные характеристики и внешний вид домов типовой серии П-44Т во многом аналогичны домам серии П-44М,
Первый дом серии П-44Т построен в 1997 году по ул.Маршал Василевский (Щукино). Один из самых узнаваемых в Москве многоэтажный ступенчатый жилой комплекс со шпилями на Рубцовской набережной в форме замка, построенный из блок-секций П-44Т серии
.Перепланировка однокомнатных квартир в домах П-44Т
Вроде бы: что делать с квартирой, в которой идет перепланировка? На самом деле варианты есть. Интересные решения мы сделали, например, на верхних этажах серии П-44Т (где влияние на соседей по квартире минимально).
Иногда владельцы квартир на нижних этажах также дают письменное согласие на так называемое «добровольное ухудшение жилищных условий» — например, в случаях, когда кухня расширяется за счет санузла.
В этой статье мы представляем такие решения для квартиры П-44Т. Даже в таких условиях (когда все стены в квартире несущие) за счет минимальной грамотной перепланировки можно организовать необходимую функциональную зону: как для одного человека, так и для семьи с детьми.
Наталья Преображенская | Студия «Уютная квартира»
Первоначальная планировка
Двухкомнатная квартира Н-44Т, в зависимости от секции дома, имеет площадь от 37 кв.м до 39 кв.м. Среди его достоинств – удобная лоджия, удобная прихожая и просторная гостиная, вытянутая геометрия которой позволяет разделить ее на функциональные зоны. Кухня небольшая: 7,5 кв м, но воздушная камера вынесена в коридор. Ванная комната, площадь которой не доходит до 4 м, достаточно маленькая и оригинально совмещенная.
Наталья Преображенская | Студия «Уютная квартира»
Перепланировка 1: Квартира для одного человека
В гостиной данной квартиры, как и П-44Т, целесообразно оборудовать четыре основные зоны: спальню, гостиную и рабочее место с компьютером и гардеробной. В последний помещается больше вещей и сезонной одежды, а также разного снаряжения: лыжи или коньки, сноуборд. В предлагаемом варианте (как и в большинстве случаев П-44Т) рекомендую пристроить к комнате лоджию.Реально провести между ними перегородку не получится, но сделать это можно, максимально увеличив проем — таким образом, лоджия становится частью комнаты, и в ней можно поставить, например, одно или два кресла.
Зону спальни и гостиной необходимо разделить перегородками со сквозным стеллажом: чтобы визуально разграничить пространство, но не создавать ощущение тесноты. В квартире одна просторная кухня не нужна — компактно помещается. Обратите внимание, что мы передвинули стену между кухней и ванной, создав идеально сформированную нишу для холодильника и раковины.
Угловые ванные скошены, за счет чего расширяется и ванная, и прихожая. В коридоре хорошо поместились два шкафа для одежды.
Наталья Преображенская | Студия «Уютная квартира»
Перепланировка 2: Для молодой пары
Если в планах нет детей, обычно такие заказчики ориентируются на интерьер гостиной: в этом варианте перепланировки главную роль отводим этой функциональной зоне и придаем лоджия. Предлагаю спальню отделить визуально облегченными перегородками, туда помещают компьютерный стол и небольшой книжный шкаф.
Кардинально меняя геометрию кухни, ванной и прихожей. Чтобы не ставить шкафы поперек и без того небольшой квартиры, целесообразно организовать гардеробную зону в прихожей. Также можно подключить стиральную машину (важно только правильно организовать подключение к коммуникациям).
Гардеробная на таком маленьком пространстве осуществима, если убрать проход из коридора в кухню, продолжающийся в этой ванной комнате, ведь его ширина уменьшится в пользу вместительного шкафа в прихожей.
Зато в открывшемся пространстве ванной поместилась душевая кабина. Кухня также расширена, что позволяет организовать большую зону приготовления пищи вдоль окна.
Наталья Преображенская | Студия «Уютная квартира»
Перепланировка 3: Для семьи с двумя детьми
Задача не из легких, но сталкиваемся с ней часто. Разумеется, в этом случае семья жертвует в пользу ребенка полноценной жилой площадью, в которой можно разместить спальные зоны, место для учебы и систему хранения.Для этих целей, конечно, больше подходит раскладная мебель или двухъярусная кровать. Рабочая зона в виде письменного стола с компьютером размещена на пристроенных лоджиях, бывший подоконник превращается в стену с небольшой полкой для книг. Хозяйская спальня зонирована от детской с помощью легкой перегородки с раздвижным механизмом. Здесь достаточно места для еще одного стола и небольшого шкафа для книг и журналов.
На кухне для увеличения количества посадочных мест помимо стульев советуем поставить небольшой диван.
Гарнитуры могут быть в форме буквы G, но могут быть немного тесноваты. В прихожей поместятся два шкафа для одежды. А чтобы добавить пространству динамики, примыкание плитки и паркетной доски по диагонали.
Наталья Преображенская | Студия «Уютная квартира»
Переделка 3-а: для мамы с двумя детьми
Идея планировки детской аналогична той, что я описал в предыдущем примере, при этом спальная зона мамы является по совместительству гостиной — диван выдвигается вперед.Сооружение полноценной перегородки для зонирования было неактуальным, поэтому эту функцию выполняет стеллаж. Часть комнаты за перегородкой в просторном шкафу.
Женщина часто готовит и принимает гостей, поэтому кухню сделали больше, сдвинув перегородку в сторону ванной, отодвинув небольшой диванчик. Зона приготовления пищи расположена вдоль окна.
Наталья Преображенская | Студия «Уютная квартира»
Перепланировка 4: для родителей и взрослого ребенка
По сути, это задача создания личного пространства для взрослых — две на месте студии; решил ее с помощью раздвижной перегородки между двумя зонами.
Предложите стену-трансформер, которая меняет положение и поворачивается на 90 градусов, образуя частично изолированное пространство. Очень удобно, когда, например, родителям с утра нужно пойти на кухню и не тревожить малыша. Роль гостиной выполняет расширенная кухня: здесь диван и телевизор. Соответственно проход из кухни проложен в холл, а перегородка перенесена в сторону санузла.
ТВОЯ ЧЕРДА…
Какие плюсы и минусы Вы видите в предложенной перепланировке? Может быть, вы живете в квартире? Какие еще идеи можно реализовать на таком маленьком метраже?
Схема н 44т 3 комн.Дом П44Т: планировка с размерами
Материал стен: Панель с облицовкой «под кирпич»
Количество секций (входов): от 1. Иногда несколько входов в одном корпусе представляют собой блок-секции серии П-44Т, а другие (центральные и/или угловые) — от блочные секции других серий: П-44К, П-44ТМ/25 (ТМ-25)
Этажность: 9-25, наиболее распространенные варианты — 14, 17.
Первый этаж чаще всего жилой
Высота потолков: 2,70 м.
Лифты: пассажирский 400 кг и грузопассажирский 630 кг, в 20-25-этажных секциях (подъездах) — по 2 грузопассажирских и пассажирский (модификация получила наименование П-44Т/25)
Балконы: Во всех квартирах, начиная с 2-3 этаж, лоджии застеклены, в 2-х и 3-х комнатных квартирах также эркеры и полуэркеры
Количество квартир на этаже: 4
Год постройки: с 1997г.время
Панельные дома Типовой серии серии П-44Т в Москве построены как в новых районах массовой застройки: Марьинский парк, Люблин, Северное и Южное Бутово, Митино, Новокосино, Новое Кожухово, Жулебино, Некрасовка, пос. Север, Ходянка, а также в старых районах, где производился массовый снос пятиэтажек и ветхих домов: Ховрино, Коптево, Бескудниково, Дегунино, Свиблово, Медведково, Юрлово, Алексеево, Измайлово, Лефортово, Перово, Нагатино, Юг Чертаново, Зюзино , Крупы, Солнцево, Очаково, Кунцево, Фили, Щукино, Зеленоград, ул.1905 г., ул. Борисовские пруды, г.
Нижний Новгород ул. Также в ряде других областей (в т.ч. в ЦС) серии П-44 дома
В Московской области строятся новостройки серии П-44Т и строятся в городах Железнодорожный, Балашиха (МКП 1 мая, МКП д. 22 «Балашихинский парк» и др.), Лобне, Красногорске, Люберцах, Москве, Котельниках, Реутове (в мкр. Новокосино-2), Одинцово (в т.ч. Немчиновка), Химках, Щербинке, а также в г. деревня. Медвежьи озера (Щелковский р-н), пос.Синий и дер. Брат (Солнечногорский р-н), дер. Пытино и ЖК «Бутово Парк» (Ленинский район)
Количество построенных зданий в Москве: около 600, в Московской области – около 200 (в т.ч. строящихся). Серия П-44Т — самая распространенная в Москве среди всех современных типовых серий домов. Количество муниципальных домов, построенных для переселенцев из сносимого фонда для молодых семей и др. — около 50%
Нормативная жизнь дома (по данным производителя) — 100 лет
Площадь 1-комнатных квартир: всего: 37-40 квадратные метры.м., жилая: 19 кв. м., кухня: 7,4-8,4 кв.
м. (в 25-этажной модификации — 9 кв.м)
Площадь 2-комнатных квартир: общая: 52-64 кв.м. м., жилая: 32-34 кв. м., кухня: 8,3-13,2 кв. м. (в 25-этажной модификации — 12,8-13,8 кв.м)
Площадь 3-комнатных квартир: общая: 70-84 кв.м. м., жилая: 44-54 кв. м., кухня: 10-13,2 кв. м.
Все комнаты в квартирах домов серии П-44Т изолированные
Санузлы: в 1-комнатных — совмещенные, в 2-х и 3-х комнатных — раздельные, ванны: стандартные, длиной 160 см.
Лестницы: Безотрывные, в 20-25-этажных секциях (П-44Т/25) оборудованы общие балконы. Мусоропровод: с загрузочным клапаном на каждом этаже
Тип кухонной плиты: электрическая. Вентиляция: Естественная вытяжка, форточки в санузле и коридоре
Стены: наружные железобетонные трехслойные панели (бетон — утеплитель пенополистирол — бетон) общей толщиной 30 см (теплоизоляция которых, по данным производителя, эквивалентна кирпичная стена толщиной 90 см) Аварийные и межкомнатные несущие — железобетонные панели толщиной 16 и 18 см.
Перегородки — гипсокартон толщиной 8 см. Перекрытия – крупногабаритные («на комнату») железобетонные плиты толщиной 14 см.
Стены несущие: Межкомнатные продольные (а также межкомнатные в торцевых квартирах, «распорки») и поперечные все (эскарперные, межкомнатные и межбугельные)
Тип сечения: торцевые, рядные (рядовые, П-44-1) и поворотные (угловой). Подъезд, где находится электрощит, имеет вход с 2-х сторон
Количество ступеней в секции (входе): 7, ширина ступени (расстояние между двумя соседними стенками вагона): 300 см (в 3-х центральных пролетах каждой секции) , 360 см (в остальных)
Варианты цвета наружных стен: темно-оранжевый, светло-рыжий, песочный, нижние этажи — серые с отделкой камнем, эркеры и полуэретеры — белые
Тип крыши: плоскоскатная с черепицей Braas DSK1.Технический этаж: над верхним жилым этажом
Отличительные особенности: Серия домов П-44Т отличается от предшественника — серии П-44 (которая строилась в 1979-2000 гг.) повышенной теплоизоляцией стен, увеличенными площадями кухни за счет выноса венткороба в коридоре, эркеров и узнаваемой наружной отделки под кирпич
Другие преимущества: отопительные приборы с регуляторами температуры, медная проводка, горячее водоснабжение с верхним сливом, мировые стандарты капитальности и огнестойкости ( 1-й эт.
), быстрые темпы строительства (1-й этаж за 3 дня): специалисты WWW не выявили ни одного Корпуса долгостроев этой серии
Недостатки: качество монтажа отдельных элементов наружных стен в ряде случаев, узкий Комната меньшего размера в 2-х комнатной квартире «правил» (с окнами на первую сторону)
Производитель: Московский Домостроительный Комбинат № 11 (ДСК-1)
Проектировщик: МНИИТП (Московский научно-исследовательский и проектный институт тиологии и опытного проектирования)
Конструктивные характеристики I. Внешний вид Дома временной серии П-44 во многом аналогичны домам серии П-44ТМ, П-44К
Квартиры в новостройках серии П-44Т также можно приобрести с муниципальной отделкой
Первый дом серии П-44Т построен в 1997 году по ул. Маршал Василевский (Щукино). Одним из самых узнаваемых в Москве является иной жилой комплекс со шпилями на Рубцовской набережной Яузы (проект И-1774), построенный из блок-секций П-44Т и П-44М серии
В 2005 году на базе С- Типовой серии 44Т разработан проект типовых блочных секций серии П-44К, где в каждой секции на 1 ступень меньше — 6 ступеней («6-модуль»), и, соответственно, только 1- и 2-комнатные квартиры .
В настоящее время в пределах МКАД эта серия более активна
Разрабатывалась и 5-модульная (5-ступенчатая версия П-44Т), где 1-комнатные квартиры и вовсе так называемые студии с общей площадью 23-28 кв. м. В серийное производство 5-модуль (специалисты www.сайта приняли для него условное наименование П-44-5М) пока не пошел
Рейтинг сайта образца серии П-44Т: 8,2 (по 10-бальной шкале)
Фото: www ..dsk1.ru, www.morton.ru
Дома серии П-44Т начали строить с 1997 года и строят по сей день, так как срок их службы достигает до 100 лет.Эти многоэтажные дома от 9 до 25 этажей строятся в Москве и Московской области. Обычно одна квартира-студия располагается на одном подъезде, двухкомнатные и одна трехкомнатная.
Дома п44т Планировка квартир
Имеются также угловые секции, на которых на одной лестничной площадке расположены две трехкомнатные квартиры и две однокомнатные.
Перепланировку квартир в типовых домах можно производить по типовому проекту
Так как дома серии П-44Т имеют разную штриховку, то и площади однокомнатных, двухкомнатных и трехкомнатных квартир в разных домах также различны.
Так в однокомнатной габаритная площадь может быть от 37 до 39 кв.м, в двухкомнатной от 51 до 61 кв.м, а в трехкомнатной от 70 до 84 кв.м. Соответственно, площадь кухни и жилого помещения в разных домах будет разной. Высота от пола до потолка в квартирах от 2,70 до 2,75 метра. Туалет и ванная в трехкомнатных и двухкомнатных квартирах, а в однокомнатных совмещены. Санузел в ванной установлен стандартной длины 170 см. Вентиляционные каналы естественной вентиляции проходят на кухне и в туалете.В этих домах стены выполнены из железобетонных панелей, которые вместе с утеплителем имеют толщину 30 см, а межкомнатные и межквартирные стены также выполнены из железобетонных панелей толщиной 16 или 18 см, а перегородки выполнены из гипсокартона толщиной 8 см. Плиты перекрытия делаются на всю комнату толщиной 14 см. В квартирах этих домов очень хорошая звукоизоляция, а система отопления оснащена регуляторами температуры. Ниже приведены некоторые типовые варианты перепланировки P44T.
Квартиры с одной спальней
Однокомнатная квартира стандартной планировки состоит из прихожей, небольшого коридора, большой комнаты, кухни и совмещенного санузла с ванной.
Дом серии П 44Т Планировка однокомнатной квартиры
Перепланировка панельной квартиры Возможна по одному из типовых проектов, которые представлены ниже.
Перепланировка однокомнатной квартиры п 44
В данном варианте коридор рядом с которым можно было пройти на кухню и вместо коридора сделали небольшую кладовку.В прихожей есть встроенный шкаф. Вход в санузел переносится из коридора в прихожую, а вход на кухню делается прямо из комнаты.
Перепланировка в 44 однокомнатной квартире
В данном варианте коридор рядом с которым можно было пройти на кухню а вместо него сделан туалет. Повышение интеллекта за счет уменьшения ванной комнаты. В прихожей есть встроенный шкаф и небольшая кладовая. Вход в ванную и в туалет будет осуществляться прямо из прихожей, а вход на кухню — через комнату.
В домах п 44т перепланировка однокомнатной квартиры
В данном варианте коридор в котором можно было выйти на кухню совмещен с санузлом. В коридоре небольшая кладовка.
Вход на кухню будет осуществляться через комнату.
Двухкомнатные квартиры
Стандартная планировка двухкомнатной квартиры состоит из небольшой узкой прихожей, широкого коридора, из которого можно попасть в обе комнаты, на кухню и в туалет с ванной.
Планировка квартир п 44т
Ниже приведены некоторые типовые перепланировки квартир.
В доме серии П44Т перепланировка трехкомнатной квартиры
В данном варианте расширили санузел за счет коридора, по которому можно было попасть на кухню и установили в нем дополнительный санузел, и вход к старому туалету сделали из кухни. Одну комнату сделали проходной, чтобы через нее можно было попасть на кухню.Вторую комнату уменьшили до ширины созданной кладовки и небольшого коридора, по которому можно попасть в кладовку и во вторую комнату.
Перепланировка квартиры п 44 с туалетом и ванной
В данном варианте перепланировка под ванную и туалет. Масштабируя их за счет коридора, по которому можно было попасть на кухню.
Одну из комнат сделали проходом, через нее попадающим в кухню, а вторую комнату оставили без изменений.
Перепланировка квартир П 44т при установке джакузи
В этом варианте, как и в предыдущем, туалет с ванной совмещен и увеличена его площадь за счет коридора. А вот в ванной убрали стандартную ванну и поставили джакузи. Вход на кухню сделали через комнату, сделав ее проходной.
Трехкомнатные квартиры
Стандартная планировка трехкомнатной квартиры состоит из трех отдельных комнат, большой кухни, раздельного туалета и ванной комнаты, прихожей и коридора, из которого можно попасть во все комнаты.
Планировка квартиры П44Т.
Перепланировка трехкомнатной квартиры П4 может быть выполнена по одному из типовых проектов, которые представлены ниже.
Один из вариантов перепланировки трехкомнатной квартиры П44Т
В данном варианте одна из комнат увеличится на часть коридора, но эта комната будет проходной, так что сразу можно будет пройти в две другие комнаты и на кухне.
За счет другой части коридора площадь санузла увеличится и его можно установить в нем вместо ванны-джакузи.При входе останется небольшой приход Из которого можно будет попасть в ванную, туалет и проходную комнату.
Перепланировка 3-х комнатной квартиры П44Т в четырехкомнатную
В данном варианте одна из комнат увеличится на часть коридора, но эта комната будет проходной, так что сразу можно будет пройти в две другие комнаты и в гостиную. кухня. За счет другой части коридора увеличится площадь санузла. В одной из отдельных комнат устанавливается перегородка с дверью и в итоге получится небольшая комната, которую можно использовать под кабинет.Из прихожей можно будет пройти в ванную, туалет и проходную комнату.
Перепланировка п 44 трехкомнатная
В данном варианте увеличивается площадь санузла за счет части коридора в которой можно было попасть на кухню и делается дополнительный санузел. Вход на кухню будет проходить через небольшую крытую комнату. Можно поэкспериментировать с дверями в двух отдельных комнатах.
П-44Т — новое поколение популярной московской серии домов.Он самый обычный современный типичный сериал в Москве. В планировки добавлены эркеры, качественно улучшена внешняя отделка зданий, добавлен мансардный этаж. Серия была разработана в середине 1990-х годов. Год постройки: с 1997 года по настоящее время. Всего было построено около 800 домов. Нормативный срок службы дома 100 лет.
В Москве Дома Типовой серии П-44Т в основном строятся в районах массовой застройки: Измайлово, Лефортово, Перово, Нагатино, Южное Чертаново, Зюзино, Черремушки, Ховрино, Коптево, Берекидниково, Дегунино, Свиблово, Медведково, Юрлово, Алексеев, Солнцево, Очаково, Кунцево, Фили, Щукино, Зеленоград, а также по ул.1905 г., ул. Борисовские пруды и г. Нижний Новгород ул.
В Московской области Дома серии П-44Т построены в городах: Железнодорожный, Балашиха, Лобня, Красногорск, Люберцы, Москва, Котельники, Реутов, Одинцово, Химки, Щербинка, а также в пос. Медвежьи озера (Щелковский р-н), пос.
Синий и дер. Брат (Солнечногорский р-н), дер. Пыхино и ЖК «Бутово Парк» (Ленинский район).
Все комнаты в квартирах домов серии П-44Т изолированные.Во всех квартирах предусмотрены эркеры и просторные лоджии. В каждой лестничной клетке имеется один пассажирский и один грузопассажирский лифт. В однокомнатных квартирах санузлы совмещены, в остальных раздельные. Лестницы нечеткие, пожарного балкона нет.
Кухонная плита электрическая, вентиляция естественная вытяжная, блоки на кухне и в санузле. Мусор на лестнице, с загрузочным клапаном на участке.
Серия домов П-44Т отличается от предшественника (серии) повышенной теплоизоляцией стен, вентиляционным коробом в прихожей, остеклением лоджий, эркеров и полуэркеров, а также узнаваемой наружной отделкой под кирпич , для проживания в домах серии П-44Т предусмотрен мансардный этаж.
П-44Т, как и все остальные серии семейства, разрабатывался специально для. Первый дом серии П-44Т построен в 1997 году по ул. Маршал Василевский (Щукино).
«Визитная карточка» — иной жилой комплекс на Рубцовской набережной Яузы (проект И-1774) построен из блок-секций серии П-44Т и.
Конструктивные характеристики и внешний вид домов серии П — 44Т во многом схожи с домами серии ,,.
В 2005 году на базе серии С-П-44Т был разработан эскизный макет многоквартирных секций серии, где в каждой секции на одну ступень меньше (6 ступеней) и присутствуют только одно- и двухкомнатные квартиры. В настоящее время в пределах МКАД эта серия более активна.
Подробные характеристики серии
| Проходы | с 1. |
| Этажность | с 9 по 25, самые распространенные варианты — 14, 17. |
| Высота потолка | 2.70 м. |
| Лифты | Один пассажирский (400кг.) и один грузопассажирский (630кг.). |
| Балконы | Лоджии застеклены во всех квартирах кроме первого этажа. Эркеры и полуфабрикаты во всех двухкомнатных и трехкомнатных квартирах. |
| Квартиры на этаже | 4 |
| Годы постройки | с 1997 по настоящее время |
| Построенные дома | Москва: около 600, Московская область: около 200 (включая строящиеся). |
| Площадь квартир | 1-комнатная квартира Общая: 37-40 м², жилая: 19 м², кухня: 7,4-8,4 м² 2-комнатная квартира Общая: 52-64 м², жилая: 32-34 м², кухня : 8,3-13,2 м² 3-комнатная квартира Общая: 70-84 м², жилая: 44-54 м², кухня: 10-13,2 м² |
| Санузлы | В однокомнатных квартирах совмещенные, в двух- и трехкомнатных — раздельные. Ванны: Стандарт |
| Лестница | Без люка, с выходом на пожарный балкон. |
| Мусоропровод | С загрузочным клапаном на каждом этаже. |
| Вентиляция | Естественная и принудительная вытяжка, на кухне и в ванной. |
| Стены и перекрытия | Наружные стены — железобетонные трехслойные панели толщиной 30 см. Внутренние межкомнатные и межкомнатные — железобетонные панели толщиной 16 и 18 см. Перегородка гипсовая 8см. Перекрытие — железобетонные плиты.толщина 14 см |
| Несущие стены | Продольные межкомнатные (а также межкомнатные в торцевых квартирах) и поперечные (межкомнатные, межквартирные и междомовые). |
| Цвета и облицовка | Красный с песочным, эркеры и лоджии — белые Облицовка «под кирпич», нижних этажей — облицовка «под камень» |
| Тип крыши | Односкатная с черепицей. Технический этаж: над последним жилым этажом.Возможность обустройства мансардной квартиры. |
| Достоинство | Отопительные приборы с регуляторами температуры, медная разводка, горячее водоснабжение с верхним водосливом, быстрые темпы строительства (1 этаж за 3 дня). |
| недостатки | Качество монтажа отдельных элементов наружных стен в некоторых жилых домах, узкое помещение в двухкомнатных линейных квартирах (с окнами на первую сторону) |
| Производитель | Московский Домостроительный Комбинат №1 (ДСК-1) |
| Конструктор | МНИИТЭП |
100 лучших квартир в Роли (с фотографиями)!
4 спальни
2 250 $
2227 кв.
футов
Последнее обновление 8 февраля в 14:06
Подробнее…
Новое строительство 4 BR, 4 BA End Unit Townhouse — расположен на перекрестке Эллис в Дареме — доступно уже сейчас! — Доступен сейчас! Таунхаус новой постройки, расположенный в новом районе Эллис Кроссинг Таунс, недалеко от автомагистрали NC-147 на Эллис-роуд в Дареме, Северная Каролина. Много места, отличные удобства и отличное расположение! Живите в нескольких минутах от центра Дарема, RTP, Университета Дьюка, больницы Дьюка и многого другого. Этот трехуровневый дом может похвастаться современной высококачественной отделкой и открытым чистым дизайном, который, несомненно, понравится.Инновационная планировка включает гараж на 2 машины и дополнительную комнату/спальню с полноценной ванной на первом этаже. 2-й этаж/основной уровень предлагает паркетные полы повсюду, а также открытый и просторный дизайн с большим количеством естественного света. Открытая кухня, обеденная зона, семейная комната и открытая палуба делают этот этаж идеальным для развлечений.
Кухня оснащена гранитными столешницами, фартуком из плитки метро, большим островом и бытовой техникой из нержавеющей стали. Наверху вы найдете апартаменты владельцев с двойной раковиной и душевой кабиной.2 дополнительные спальни и еще одна ванная комната идеально подходят для гостей. Наслаждайтесь этим веселым сообществом сегодня! Удобства включают крытый и открытый бассейны, здание клуба, фитнес-центр, игровую комнату с настольным теннисом и бильярдом. Вы также можете насладиться баскетболом и теннисными кортами, футбольными полями, парками для собак и игровыми площадками! Здесь, в Эллис Кроссинг Таунс, так много всего интересного! Требования:
Требуется кредитный рейтинг 650+, 3-кратный ежемесячный доход от аренды и чистая история аренды. Уведомление о всех показах не менее чем за 24 часа.Предлагается в аренду компанией Acorn + Oak Property Management. Чтобы получить дополнительную информацию или запланировать показ, свяжитесь с брокером Бритни Вомак напрямую по адресу Britney@acorn-oak.
com или посетите наш веб-сайт по адресу www.acorn-oak.com. Мы с нетерпением ждем возможности помочь вам найти ваш новый дом! Домашние животные не допускаются (RLNE7151887)
Типовая перепланировка квартир в домах П44Т. Серия P44T P 44t компоновка
Заглянем сегодня в 3-х комнатную квартиру, панельный дом серии П-44Т от застройщика ДСК-1
Квартира получилась хорошая и просторная, но дизайнеры не стали мудрить с дизайном и планировка получилась как и другие подобные трехкомнатные квартиры в панельных домах.Комнаты все изолированы друг от друга. В кухню добавлен большой эркер, а в угловой комнате квартиры присутствует треугольный эркер. Две комнаты имеют балконы.
Будем рассматривать планировку трехкомнатной квартиры со следующими размерами:
Комната с балконом багажник 17,8 кв.м. (на схеме №1)
Комната без балкона 14,1 кв.м. (на схеме №2)
Комната с балконом утюг 11 кв.м. (на схеме №3)
Кухня с большим эркером 12.9 кв.
м. (на схеме №4)
Коридор с прихожей 14,6 кв.м. (на схеме №7)
Жилая площадь 42,9 кв.м.
Общая площадь квартиры без балконов 70,4 кв, м
схема планировки трехкомнатной квартиры П-44Т с размерами
Открываем входную дверь и оказываемся в гардеробной. Впереди стена с проемом, в котором первоначально была сделана небольшая арка. Справа за дверью есть небольшое пространство, в котором может поместиться небольшая гардеробная или обувной шкаф.
В этом варианте мы видим пример такого шкафа для обуви.
Также это место может занять красивое большое зеркало в полный рост.
Проходим вперед и оказываемся в самом центре коридора. Нас встречают три двери. Большая левая двустворчатая дверь ведет нас в комнату площадью 11 кв.м. и балконные тапочки. А две соседние двери — это комнаты. Справа самая большая комната 17,8 кв.м. с балконом сапога, а что слева небольшая комната 14 кв.м. без балкона.
Несколько интересных идей в дизайне прихожей трехкомнатной квартиры.
На фото видно, что в соседней с нами комнате слева поставили дверь-купе.
Еще один интересный вариант прихожей. Освещение было установлено в арке.
А здесь, в правой части синего коридора, в оформлении использованы колонны с подсветкой.
Расстановка мебели в прихожей
Если вам нужно больше места в комнатах и не загромождать комнату шкафами, для этой цели подойдет прихожая.
Вдоль длинной стены будет установлен большой шкаф.
Кто еще не совсем ушел в электронные книги, но собирает домашнюю библиотеку, интересным решением будет, если полки для книг разместить в прихожей.
Угловые полки поместятся в углу.
Комната с балконом утюг
Из прихожей заходим в комнату с большим дверным проемом. Обычно эта комната используется как гостиная или холл.Комната хоть и не очень большая, но квадратная.
А если убрать оконные рамы и демонтировать часть подоконника, то можно расширить комнату и соединить ее с балконом.
Трех комнат жильцам не всегда хватает. Нередко на балконах организуют рабочие кабинеты. Получается, что они находятся в ситуации, когда дорог каждый квадратный метр.
Поворачиваемся спиной к балкону и наблюдаем две межкомнатные двери, в типовой планировке чистовой ремонт от застройщика ДСК-1
Можно немного обыграть дверной проем… Постройте небольшую арку и поменяйте обычные двери на раздвижные.
Две двери занимают много места. А если сделать однодверный проем, можно поставить угловой шкаф в углу комнаты.
А иногда и вовсе разбирают всю стену. И вместо комнаты получается просторный холл, который соединяется в одно целое с прихожей.
Большая комната с балконом Тапочка
Стандартный большой номер с собственным балконом.Размер длинной стены составляет 5,56 квадратных метра, а короткой – 3,22 квадратных метра. Он может быть предназначен как для родительской, так и для детской комнаты.
Если балкон утеплен, то стены можно оклеить обоями. Вынесите розетки на балкон и повесьте светильники для освещения.
Стены, которые мы помним с советских времен, становятся все менее популярными. Вместо них в дизайне и интерьере квартиры часто появляются длинные комоды.
Но цветы, как были в моде, до сих пор украшают наши квартиры.
Комната без балкона
В третьей комнате нет балкона. Большое и широкое окно. Размер одной стены 4,34 кв.м. и вдоль стены с окном 3,22 кв.м.
Хорошее место для спальни. Плотные темные шторы помогут отгородиться от утреннего солнца и выспаться в выходной день на мягкой кровати.
Над кроватью оригинально смотрятся большие картины на стене.
Шкаф не будет лишним предметом в комнате.
Ванна и туалет в 3-х комнатной квартире
Выходим из комнаты и идем на кухню. По пути в коридоре нам попадаются двери в ванную и туалет, а справа от коридора есть пустое, но очень удобное место под шкаф.
Дома серии П-44Т начали строиться в 1997 году и строятся по сей день, так как срок их службы достигает до 100 лет.Эти многоэтажные дома от 9 до 25 этажей строятся в Москве и Московской области. Обычно на одном подъезде находится одна квартира-студия, две двухкомнатные и одна трехкомнатная.
Дома П44Т Планировки квартир
Также имеются угловые секции, на которых на одной лестничной площадке расположены две трехкомнатные квартиры и две однокомнатные.
Перепланировка квартир в типовых домах может производиться по типовому проекту
Поскольку дома серии П-44Т имеют разную этажность, площадь однокомнатных, двухкомнатных и трехкомнатных квартир в разных домах также отличается.Так в однокомнатной общая площадь может быть от 37 до 39 кв.м, в двухкомнатной от 51 до 61 кв.м, а в трехкомнатной от 70 до 84 кв.м. Соответственно площадь кухни и гостиной площадь в разных домах будет отличаться. Высота от пола до потолка в квартирах от 2,70 до 2,75 метра. Туалет и ванная в трехкомнатных и двухкомнатных квартирах раздельные, а в однокомнатных совмещены.
Санузел в ванной имеет стандартную длину 170 см. Вентиляционные каналы естественной вентиляции проходят на кухне и в туалете.В этих домах стены выполнены из железобетонных панелей, которые вместе с утеплителем имеют толщину 30 см и межквартирные и внутренние стены также из железобетонных панелей толщиной 16 или 18 см, а перегородки выполнены из гипсокартона толщиной 8 см. Плиты перекрытия делаются на всю комнату толщиной 14 см. хорошая звукоизоляция, а система отопления оборудована регуляторами температуры. Ниже приведены некоторые типовые варианты перепланировки P44T.
Однокомнатные квартиры
Стандартная планировка однокомнатной квартиры состоит из прихожей, небольшого коридора, большой комнаты, кухни и туалета с ванной.
Дом серии П 44Т Планировка однокомнатной квартиры
Перепланировка панельной квартиры возможна по одному из типовых проектов, которые представлены ниже.
Перепланировка однокомнатной квартиры П 44
В этом варианте заделан коридор, по которому можно было пройти на кухню и вместо коридора сделана небольшая кладовая.
В прихожей сделан встроенный шкаф. Вход в санузел перенесен из коридора в прихожую, а вход на кухню сделан прямо из комнаты.
Перепланировка П 44 однокомнатная квартира
В этом варианте заделан коридор, по которому можно было пройти на кухню и вместо него сделан туалет. Увеличиваем прихожую за счет уменьшения санузла. В прихожей сделан встроенный шкаф и небольшая кладовка. Вход в ванную комнату и туалет будет осуществляться прямо из прихожей, а вход на кухню – через комнату.
Перепланировка однокомнатных квартир в домах П 44Т
В этом варианте коридор, по которому можно было пройти на кухню, совмещен с санузлом.В прихожей сделана небольшая кладовая. Вход на кухню будет через комнату.
Двухкомнатные квартиры
Стандартная планировка двухкомнатной квартиры состоит из небольшой узкой прихожей, широкого коридора, из которого можно попасть в обе комнаты, на кухню и в туалет с ванной.
Планировка квартир П 44Т
Ниже представлены типовые перепланировки квартир.
В доме серии П44Т перепланировка двухкомнатной квартиры
В этом варианте санузел расширен за счет коридора, через который можно было попасть на кухню и в нем установлен дополнительный санузел, а также вход в старый туалет был сделан из кухни.Одну комнату сделали проходной, чтобы через нее можно было попасть на кухню. Вторую комнату уменьшили на ширину созданной кладовки и небольшого коридора, по которому можно попасть в кладовку и во вторую комнату.
Перепланировка квартиры П 44 с туалетом и ванной
В данном варианте произведена перепланировка ванной и туалета за счет увеличения их площади за счет коридора, через который можно было попасть на кухню. Одну из комнат сделали проходной, чтобы через нее попасть на кухню, а вторую оставили без изменений.
Перепланировка квартир П 44Т при установке джакузи
В этом варианте, как и в предыдущем, туалет совмещен с ванной и увеличена его площадь за счет коридора. А вот стандартную ванну из санузла убрали и установили джакузи.
Вход на кухню сделали через помещение, сделав его проходным.
Трехкомнатные квартиры
Стандартная планировка трехкомнатной квартиры состоит из трех раздельных комнат, большой кухни, раздельного санузла и ванной комнаты, прихожей и коридора, из которого можно попасть во все помещения.
Планировка квартир П44Т
Перепланировка трехкомнатной квартиры п 44 может быть выполнена по одному из типовых проектов, которые приведены ниже.
Один из вариантов перепланировки трехкомнатной квартиры П44Т
В этом варианте одну из комнат увеличиваем за счет части коридора, но эта комната будет проходной, так как только через нее будет проходить можно пройти в две другие комнаты и на кухню. За счет другой части коридора увеличится площадь санузла и его можно установить в нем вместо ванны-джакузи.При входе будет небольшая прихожая, из которой можно будет попасть в ванную, туалет и проходную комнату.
Перепланировка 3-х комнатной квартиры П44Т в четырехкомнатную
В этом варианте одну из комнат увеличиваем за счет части коридора, но эта комната будет проходной, так как только через нее она можно будет пройти в две другие комнаты и на кухню.
За счет другой части коридора увеличится площадь санузла.В одной из отдельных комнат устанавливается перегородка с дверью, в результате получается дополнительная небольшая комната, которую можно использовать как кабинет. Из прихожей можно будет пройти в ванную, туалет и проходную комнату.
Перепланировка П 44 трехкомнатная
В этом варианте увеличивается площадь санузла за счет части коридора, через который можно было попасть на кухню и делается дополнительный санузел. Вход на кухню будет проходить через примыкающую к ней небольшую комнату.Можно поэкспериментировать с дверьми в две отдельные комнаты.
Данные размеры сняты лично мной в моей квартире на этапе отделки монтажа дома. Что касается размеров, то следует учесть, что чем выше этаж, тем больше площадь квартиры, так как стены на верхних этажах темнее. В моем случае площадь квартиры на 0,5 квадратных метра больше площади, указанной в предварительном договоре купли-продажи квартиры и это приятнее, чем получить минус в площади квартиры расположен на одном из нижних этажей.
Теперь перейдем к планировке квартиры и сравним ее с другим предложением трехкомнатной квартиры в доме серии 111-М от ГВСУ. Размеры трехкомнатной квартиры представлены на следующем рисунке:
Сравнение 3-х комнатных квартир серий П-44Т и 111-М
Площадь этих квартир практически одинакова — кому что больше нравится. Это дело вкуса и потребностей, но компоновка Р-44Т мне понравилась больше.Почему?
1. Расположение ванной комнаты.
В П44-Т санузел находится в коридоре возле прихожей, а в 111-м между двумя комнатами. Во втором варианте в комнатах возле ванной всегда будет слышен шум воды, открывающихся и закрывающихся дверей, что будет нарушать тишину в этих комнатах.
2. Кухня.
В П44-т и 111-М кухни имеют схожие площади, но в первом варианте кухня с эркером.Благодаря эркеру на кухне всегда будет светло, кухня будет иметь более красивый вид.
3. Коридор.
В П-44т коридор шире и короче, что позволит установить в нем хороший шкаф для несезонной одежды и прочего, а в 111-м коридор узкий и длинный, что не позволяет использовать его площадь с пользой.
Если у вас есть вопросы, то задавайте их в комментариях — я обязательно на них отвечу!
- Производитель: ДСК-1
- Разработчики: МНИИТЭП
Серия п44т состоит из 14-17-этажных прямых и угловых блок-секций с различными вариантами кровли: с мансардным завершением, с плоской крышей, с «наклонными» фризами, что позволяет компоновать здания различной конфигурации и силуэта.
Они могут быть высотой от 9 до 25 этажей. Новым в решении фасадов серии является сочетание матовых облицовочных панелей керамической плитки «Кирпич» (ярко-оранжевая, реже песочная), с окрашенными поверхностями эркеров, лоджий, карнизов и других архитектурных деталей.на концах секций спроектированы треугольные эркеры. проект предусматривает несколько вариантов остекления балконов и лоджий на северном фасаде. Серия п44т стала одной из самых массовых для строительства муниципального жилья в Москве с объемом строительства более 1 млн кв. м в год.
Системы отопления, водоснабжения и вентиляции домов улучшены по сравнению с серией Р44. Стояк вентиляционной шахты, которая в П44 находилась на кухне, перенесли в коридор возле П44Т (рядом с ванной и туалетом).
Дом П44Т состоит из угловой и рядной секций по четыре квартиры, аналогично базовой серии П44. Напротив, кухни двух- и трехкомнатных квартир П-44Т имеют большие трапециевидные эркеры. В то же время кухни односторонних двусторонних домов, а также жилые комнаты торцевых жилетов (2-х и 3-х комнатные) имеют треугольные полуокна.
Также увеличена площадь квартир.
Следует понимать, что П-44Т это, по сути, группа серий — существуют и используются проекты домов П-44ТМ или ТМ-25, а также П-44К, которые имеют ряд отличий в планировках квартир, а также планировка типовых этажей.Причем иногда возводят жилые дома, составленные из нескольких вариантов секций, например, две секции П-44Т и четыре секции П-44К. Существуют также другие конфигурации комбинации секций.
Типовые планировки квартир этой серии представлены ниже.
Чаще всего первый этаж жилой. Высота потолков в доме 2,70 м. Лифты в доме: пассажирский имеет грузоподъемность 400 кг, грузовой — 630 кг.В здании 20 и 25 этажей, имеется один пассажирский и два грузовых лифта (модификация называется П-44Т/25).
Застекленные лоджии начинаются со второго или третьего этажа. В двух-трехкомнатной квартире также есть кикеры и полукирпичи. На одном этаже четыре квартиры.
Строительство таких домов началось в 1997 году, и успешно возводится сегодня.
Дома типа П-44Т строятся, как и в новых московских районах крупной застройки, таких как: Некрасовка, Новое Кожухово, Жулебино, Новокосино, Митино, Люблино, Марьинский парк, Южное и Северное Бутово, Ходынка и р-н поселок.Северный. Также ведется застройка в старых районах Москвы, где сносят пятиэтажки и ветхие дома, это: Южное Чертаново, Нагатино, Перово, Зюзино, Очаково, Солнцево, Кунцево, Черемушки, Фили, Ховрино, Бескудниково, Коптево, Дегунино, Медведково, Свиблово, Юрлов, Измайлово, Алексеево, Лефортово, Зеленоград, Щукино, ул. Нижегородская, ул. 1905 г., ул. Борисовские пруды. Дома типа П-44Т строятся и в других районах Москвы (в том числе в ЦАО).
Новостройки П-44Т строятся не только в Москве, но и в городах Московской области. например: Балашиха, Железнодорожный, Люберцы, Лобня, Красногорск, Реутов, Московский, Котельники, Щербинка, Одинцово, Химки, в д. Медвежьи Озёра и д. Голубое, также в деревьях Пыхтино и дер. Брехово, а также в жилом комплексе «Бутово-Парк».
В Москве построено около 600 таких домов, а в Московской области.
— около 200 (включая строящиеся).По заявлению производителя срок службы такого дома составляет 100 лет.
Однокомнатная квартира: жилая площадь до 19 кв.м, кухня до 8,4 кв.м. но не менее 7,4 (в доме 25 этажей кухня около 9 кв.м.), общая площадь может достигать 40 кв.м. м. но не менее 37 кв.м.
Двухкомнатная квартира: жилая площадь может быть до 34 кв.м. но не менее 19, площадь кухни до 13,2 кв.м. но не менее 8,3 кв.м. (в доме 25 этажей кухня от 12.8 до 13,8 кв.м), общая площадь доходит до 64 кв.м. но не менее 52 кв.м.
Трехкомнатная квартира: жилая площадь может достигать 54 кв.м. но не менее 44 кв.м., площадь кухни до 13,2 кв.м. но не менее 10 кв.м., общая площадь достигает 84 кв.м. но не менее 70 кв.м.
Комнаты в домах серии П — 44Т, все изолированные. Раздельные санузлы сделаны только в двух- и трехкомнатных квартирах, в однокомнатных квартирах санузел совмещен. Ванны 1,7 м (стандарт).
Незадымляемые лестницы, дома в 20 и 25 этажей (тип П-44Т/25) имеют общие балконы.
На всех этажах имеется мусоропровод с загрузочным клапаном.
Плита кухонная электрическая. Естественная вытяжная вентиляция и вентиляционные блоки в коридоре и санузле.
Наружные стены: трехслойные, толщиной 30 см, железобетонные панели (теплоизоляция таких стен равна кирпичу толщиной 90 см, по заявлению производителя). Межкомнатная и межкомнатная несущая — железобетонные панели толщиной 16 — 18см.Перегородки из гипсокартона толщиной 8 см. Перекрытия больших размеров в помещении, железобетонные плиты толщиной 14 см.
Продольные межквартирные несущие стены (в крайних квартирах, также межкомнатные). Все стены (межбалконные, межквартирные и межкомнатные) относятся к поперечным несущим.
Типы секций: рядовые (рядные, П-44-1), торцевые и угловые (поворотные). На входе в распределительный щит есть два входа.
Ступени в подъезде: семь, ширина одной ступени (ступенька — расстояние между двумя несущими стенами), равная 300 сантиметрам (в трех центральных пролетах секции), 360 сантиметрам на остальных секциях .
Варианты цвета наружных стен могут быть следующие: песочный, темно-оранжевый и красный. Первые этажи могут быть белыми или серыми с «каменной» отделкой.
Кровля из плоскоскатной черепицы BRAAS DSK1. Над верхним (последним) жилым этажом находится технический этаж.
Отличительные особенности домов типа П-44Т отличаются от более устаревшего типа П-44 (которые строились с 1979 по 2000 год): имеют более высокую теплоизоляцию, более увеличенную кухню, за счет выноса вентиляционного короба в коридор, отделка наружных стен под кирпич и эркеры.
Также к преимуществам можно отнести: медную проводку, отопительные приборы с регулировкой температуры, первые классы мировых стандартов по капитальности и огнестойкости, подвод горячей воды с верхним разливом, быстрое возведение (этаж за три дня).
Но есть и недостатки домов этой серии: качество монтажа некоторых элементов наружных стен в отдельных домах, в двухкомнатных квартирах (линейки, с окнами в одну сторону), узкая маленькая комната.
В некоторых домах типа П-44Т можно купить квартиру с муниципальной отделкой.
По улице Маршала Василевского в 1997 году возведен первый дом типа П-44Т. На набережной Яузы Рубцовского района построен один из самых видных, многоэтажных домов Москвы, из блоков секций П-44Т и П-44М … На типовой базе П-44Т типа в 2005 году были созданы типовые блоки — секции из П-44К , где в каждой секции на одну ступеньку меньше (6 ступеней на место семи), естественно только в однокомнатных и двухкомнатных квартирах .Сегодня такие типы более активно строятся на МКАД.
Ниже — больше фото и планировок квартир этой серии (нажмите на фото для увеличения и дополнительной информации).
Материал стен: панель с облицовкой под кирпич
Количество секций (входов): от 1. Иногда несколько подъездов в одном здании представляют собой блочные секции серии П-44Т, а другие (центральные и/или угловые) — из блочных секций других серий: 25 (ТМ-25)
Этажность: 9-25, наиболее распространенные варианты 14, 17.
Первый этаж чаще всего жилой
Высота потолков: 2,70 м.
Лифты: пассажирский 400 кг и грузопассажирский 630 кг, в 20-25-этажных секциях (подъездах) — по 2 грузопассажирских и пассажирский (модификация получила наименование П-44Т/25)
Балконы: во всех квартирах, начиная с 2-3 этаж, балконы застеклены, в 2-х и 3-х комнатных квартирах также эркеры и полуокна
Количество квартир на этаже: 4
Годы постройки: с 1997 по настоящее время
Панельные дома Серии Р-44Т в Москве строились как в новых районах массовой застройки: Мариинский парк, Люблино, Северное и Южное Бутово, Митино, Новокосино, Новое Кожухово, Жулебино, Некрасовка, пос.Северный, Ходынка, а также в старых районах, где производился массовый снос пятиэтажек и ветхих домов: Ховрино, Коптево, Бескудниково, Дегунино, Свиблово, Медведково, Юрлово, Алексеево, Измайлово, Лефортово, Перово, Нагатино, Южное Чертаново , Черемушки, Солнцево, Очаково, Кунцево, Фили, Щукино, Зеленоград, ул. 1905 г., ул. Борисовские пруды, Нижегородская ул.
Также в ряде других районов (в том числе в ЦАО) дома серии П-44 построены точечно
В Московской области построены и строятся новостройки серии П-44Т в городах г. Железнодорожный, г. Балашиха (мкр 1 Мая, мкр 22 Балашиха-Парк и др.), Лобня, Красногорск, Люберцы, Московский, Котельники, Реутов (в т.ч. мкр. Новокосино-2), Одинцово (в т.ч. Немчиновка), Химки, Щербинка, а также в пос. Медвежьи Озера (Щелковский р-н), пос. Голубое и дер. Брехово (Солнечногорский район), дер. Пыхтино и ЖК «Бутово-Парк» (Ленинский район)
Количество построенных зданий в Москве: около 600, в Московской области — около 200 (включая строящиеся). Серия П-44Т — самая распространенная в Москве среди всех современных типовых серий домов.Количество муниципальных домов, построенных для переселенцев из сносимого фонда, для молодых семей и др. — около 50 %
Нормативный срок эксплуатации дома (по информации производителя) — 100 лет
Площадь 1-комнатной квартиры: общая: 37-40 кв.м, жилая: 19 кв.м, кухня: 7,4-8,4 кв.
м. (в 25-этажной модификации — 9 кв.м.)
Площади 2-комнатных квартир: общая: 52-64 кв.м, жилая: 32-34 кв.м, кухня: 8,3-13,2 кв.м . (в 25-этажной модификации — 12.8-13,8 кв.м.)
Площади 3-комнатных квартир: общая: 70-84 кв.м, жилая: 44-54 кв.м, кухня: 10-13,2 кв.м.
Все комнаты в квартирах домов серии П-44Т изолированные
Санузлы: в 1-комнатных — совмещенные, в 2- и 3-комнатных — раздельные, ванны: стандартные, длиной 170 см.
Подъезд: незадымляемый, на 20-25-этажных секциях (П-44Т/25) оборудованы общие лоджии. Мусоропровод: с загрузочным клапаном на каждом этаже
Тип плиты: электрическая. Вентиляция: естественная вытяжка, вентиляционные блоки в санузле и коридоре
Стены: наружные железобетонные трехслойные панели (бетон — утеплитель пенополистирол — бетон) общей толщиной 30 см (теплоизоляция которых, по данным производителя, соответствует кирпичной стене толщиной 90 см.) Межквартирные и внутренние несущие — железобетонные панели толщиной 16 и 18 см. Перегородки — гипсокартон толщиной 8 см.
Перекрытия – крупногабаритные («на комнату») железобетонные плиты толщиной 14 см.
Несущие стены: продольные межквартирные (а также межкомнатные в торцевых квартирах — «распашонки») и все поперечные (межквартирные, межкомнатные и межбалконные)
Тип сечения: торцевые, рядные (обычный, П-44-1) и поворотный (угловой). Подъезд, в котором находится распределительный щит, имеет вход с 2-х сторон
Количество ступеней в секции (входе): 7, ширина ступени (расстояние между двумя соседними несущими стенами): 300 см (в 3-х центральных пролетах каждой секции), 360 см (в остальных)
Варианты цвета наружных стен: темно-оранжевый, светло-красный, песочный, нижние этажи — серые с каменной отделкой, эркеры и полуокна — белые
Тип крыши: плоскоскатная с черепицей BRAAS DSK1.Технический этаж: над верхним жилым
Отличительные особенности: серия домов П-44Т отличается от своего предшественника — серии П-44 (которая строилась в 1979-2000 годах) повышенной теплоизоляцией стен, увеличенными площадями кухонь за счет выноса вентканала в коридор, эркеров, а также узнаваемой наружной отделки под кирпич
Прочие преимущества: обогреватели с регуляторами температуры, медная проводка, горячее водоснабжение с верхним сливом, мировые стандарты капитальности и огнестойкости ( 1 класс), быстрые темпы строительства (1 этаж за 3 дня): специалисты www.
сайт не выявил ни одного случая долгостроя домов этой серии
Недостатки: качество монтажа отдельных элементов наружных стен в некоторых домах, узкая комната меньшего размера в 2-х комнатных квартирах-«линейках» ( с окнами на одну сторону)
Производитель: Московский Домостроительный Завод №1 (ДСК-1)
Проектировщик: МНИИТЭП (Московский Научно-Исследовательский Проектный Институт Типологии и Экспериментального Проекта)
Конструктивные характеристики и внешний вид домов типа П-44Т серии во многом схожи с домами серии П-44ТМ, П-44К
Квартиры в новостройках серии П-44Т также можно приобрести с муниципальной отделкой
Построен первый дом серии П-44Т в 1997 году по ул.Маршал Василевский (Щукино). Один из самых узнаваемых в Москве многоэтажный жилой комплекс со шпилями на Рубцовской набережной Яузы (проект И-1774) построен из блок-секций П-44Т и П-44М серии
В 2005 г. на базе типовой серии П-44Т, был разработан проект типовых блок-секций серии П-44К, где в каждой секции на 1 ступень меньше — 6 ступеней («6-модуль»), и, соответственно, только 1- и 2-х комнатные квартиры.



Эту версию легче перестроить под себя, так как в дизайне 2х комнатной квартиры п44т с эркером имеется возможность легче устроить гардеробную.
Это позволит избежать громоздких шкафов и неопрятного вида.
3-13,2 м²
Технический этаж: над последним жилым этажом. Возможность обустройства мансардной квартиры.
70-2,75 м.