Дизайн двухкомнатной квартиры — 110 фото красиво оформленного интерьера
На сегодняшний день рынок недвижимости переполнен выбором двухкомнатных квартир. Объяснения такому спросу – это, прежде всего вполне адекватная стоимость на жилую площадь.

Дизайн интерьера двухкомнатной квартиры предоставляет возможность перепланировать помещение на комфортное и уютное пространство. Есть возможность для реализации всех зон квартиры, так как площадь территории вполне это позволяет.

Перед тем как начать обустраивать жилище нужно определиться: кто же будет там жить. Это может один человек, семейная пара с одним ребенком или же с детьми. От этих фактов зависит дальнейшее распределение зон помещения.

Оглавление статьи:
Начало работы – это перепланировка
Перепланировка дает возможность скрыть все имеющиеся недостатки и расширить пространство. Любая перестройка квартиры должна быть согласована с БТИ. Все вопросы уточняются с работниками данной организации.

Планировка разделяется на некоторые виды:
1. Хрущевка. Представляет собою тесное помещение: небольшие комнаты, низкие потолки. Здесь возможен демонтаж стен, которые разделяют комнаты. Можно сделать кухню – столовую – гостиную и спальню. Избавившись от ненужных стен, получится квартира — студия. Иногда зоны разделяют с помощью ширм.

2. Брежневка. Здесь в принципе не так уж и плохо. Менять, что — либо уже не так и нужно. Так как потолки сделаны повыше, немного увеличенные комнаты. Минимальное, что здесь можно сделать – это выиграть в пространстве с коридором и обьеденить санузел.

3. Сталинка. Квартиры тех времен представляют качественное жилье. Высокие потолки, габаритные комнаты, которые неплохо расположены. Большая территория при перепланировке позволяет намного увеличить нужные зоны и получиться квартира с тремя комнатами.

Дизайн панельной двухкомнатной квартиры советских времен, включает переделку инженерных систем. Ведь, электро кабеля того времени, не соответствуют нынешним требованиям.

4. Новостройки. Здесь уже все заранее спроектировано. Хозяевам еще при стройке дома предоставляется возможность составить план желаемой квартиры.

Правильное и современное зонирование пространства
Правильно организовать помещение, обеспечить нужный уровень универсальности и сделать все для удобного проживания — это и есть зонирование.

Оно дает возможность поделить квартиру на комнаты.

Каждая из них будет иметь свое предназначение: кухня-столовая-гостиная, гостиная-спальня, гостиная-кабинет, спальня-кабинет, гостиная-гардероб.

Дизайн интерьера двухкомнатной квартиры
Современный дизайн двухкомнатной квартиры зависит от выбранного стиля. При его выборе человек должен помнить, что это квартира, а не музей. Главный вопрос заключается в том, что оформление может быть как в одном, так и в разных стилях. Общий образ логичен, если создается целостная жилая зона. В квартирах с непроходимыми комнатами актуально будет применить несколько стилей. Разберемся же с ними.

Скандинавский образ
Простой и изящный. Применяют его в загородных домах и в квартирах с небольшой площадью. Удобно для повседневной жизни не нуждается в сложных элементах. Выполняется в пастельных спокойных тонах. Мебель подбирается из природной древесины и спокойного цвета. Добавить уют можно красивыми коврами и прочими элементами.

Хай – тек
Отличается высокими технологиями. Выражается четкими вертикальными и горизонтальными линиями. Стены должны быть в одинаковых тонах с минимум фактуры. Натяжной потолок и глянцевые полы, без ковров и паркетов. Комнаты должны быть выдержанные в серых, черных, белых цветах, возможно, металлик. Мебель используется с непростой конструкцией. Этот стиль подходит для активных жильцов.

Прованс
Таким стилем декорируют обычно меленькие комнаты. В меру насыщенная цветовая гамма – белый, оливковый, бежевый цвета, оттенки синего. Мебель устанавливают с эффектом старины. Чтобы выдержать все характеристики стиля, не нужно забывать об аксессуарах их должно быть много.
Минимализм
В его основу заложен японский стиль. Это простота, гармоничность, сдержанность. Этому стилю подчиняются чистые оттенки: красные, серые, черные. Обязательно много стеклянных изделий или же металлических. Если внести в образ элементы декора, то это будет современно и изящно.

Ар – деко
Это применение классического стиля с современным. Цветовая гамма разнообразна. Здесь обычно экспериментируют. Основные оттенки: красный, изумрудный, сапфирный Дополняют образ черный, синий цвета, могут быть золотые. Для декора используют фарфоровые элементы, зеркала, скульптуры.

Английский образ
Ему свойственна элегантность. Тем, кто ценит спокойную атмосферу такой стиль очень подойдет. В интерьере должны быть – камины, книжные полки. Такому стилю свойственные спокойные тонна: серый, белый и оливковый. Мебель покупают деревянную.

Фото дизайна двухкомнатной квартиры







































mirdizajna.ru
Дизайн двухкомнатной квартиры
Двухкомнатные квартиры — самое, пожалуй, распространенное жилье в нашей стране, ведь некоторое время они составляли примерно 60% от общего количества квартир во всех строящихся домах. Если дома старой постройки, то и площадь будет примерно одинаковой — от 40 до 45 квадратов для «хрущевок» и около 50 у «сталлинок». Но количество проживающих бывает очень разным: от одного человека до четырех-пяти. Естественно, потребности и требования при обустройстве различные. Разрабатывая дизайн двухкомнатной квартиры это необходимо учитывать.
Совместная и раздельная планировка
Содержание статьи
Совместная планировка двухкомнатной квартиры, это когда во вторую комнату можно попасть только через первую. Для одного человека это удобно: первая комната может использоваться как гостиная, а вторая — как спальня. Точно такое же распределение «ролей» предпочитают пары. При таком составе семьи совмещенные комнаты — это удобно.

Варианты планировки двухкомнатных «хрущевок» домов разных серий
Если квартира находится в доме «хрущевской» постройки, то кухня в ней очень маленькая. Для холостяка это, в общем, не проблема, а вот для пары маленькая площадь неудобна. Самый распространенный в этом случае вариант ремонта — объединение кухни и первой комнаты. В некоторых вариантах планировки это возможно. Получаемая тогда совмещенная площадь по-новому делится между двумя помещениями. Иногда к зоне кухни отводится только площадь, которая получилась после удаления стены и уже этого бывает достаточно. А имеющаяся площадь бывшей комнаты делится на две зоны — столовую и гостиную.

Варианты планировки двухкомнатных «хрущевок» домов разных серий
Семье с детьми при такой планировке неудобно. Детям обычно отводят дальнюю комнату — они раньше ложатся спать. При этом родителям в проходной комнате неудобно. Мало того, что в ней совмещаются гостиная и спальня, так еще ни о какой приватности речь не идет: дети в любой момент могут решить сходить в туалет или на кухню. В этом случае основная идея ремонта — разделить комнаты за счет переноса или установки новых перегородок, а также смещения дверей.

Одна из самых нелюбимых двухкомнатных квартир — «трамвайчик» легко трансформируется, превращаясь в жилье с раздельной планировкой и кладовкой или гардеробной
Часто при этом идут на уменьшение полезной площади. Но иногда, наоборот, жилая площадь становится больше. Такое бывает в «хрущевках» с большим количеством кладовок: их превращают в жилую площадь, а все хранящиеся там вещи распределяют по шкафам или размещают в гардеробной.
При достаточно большой площади, двухкомнатную квартиру с проходными комнатами можно превратить в трехкомнатную. При этом проходная комната используется как гостиная, а дальняя разделяется на две небольшие спальни.

Как из двухкомнатной квартиры сделать трехкомнатную
Раздельная планировка двухкомнатной квартиры — это когда в комнаты можно попасть из коридора. В целом такие квартиры более удобны для семей: есть два изолированных помещения. Довольны обычно и дети и родители.
Для пар или одиночек часто и при таком расположении есть возможность объединить кухню и гостиную и за счет этого сделать квартиру более современной и стильной.

Вариант ремонта двухкомнатной квартиры — объединение гостиной и кухни
Есть еще популярный способ увеличения жилой площади: объединение комнаты с лоджией или балконом. В этом случае необходимо тщательное утепление бывшего балкона и его качественное остекление. При этом убирают оконную и дверную раму, а часть стены оставляют, используя ее как тумбу или прилавок. ее можно убрать, но только ту часть, которая была подоконником, так как она не несет нагрузки. А чтобы оставшийся проем не смотрелся как нечто чужеродное, его можно оформить в виде арки, скруглив углы.
Стили в дизайне двухкомнатной квартиры: один или нет?
Наиболее логичным будет оформление всей квартиры в одном стиле. Это совсем не означает, что должна быть одна цветовая гамма. Вовсе нет. И один стиль — не значит однообразие. В рамках одной стилистики есть очень широкие возможности и море вариаций.
Ремонт квартиры в современном стиле
Например, смотрите на фото дизайн двухкомнатной квартиры в современном стиле. Направление в создании интерьеров — использование графических изображений.

Прихожая и холл в двухкомнатной квартире
Так как прихожая имеет небольшие размеры, вся мебель сосредоточена на одной стене. У противоположной стены, возле двери есть только узкая обувница с мягким сиденьем. Зона прихожей от коридора отделяется фигурным выступом на потолке. Меняется и графика в оформлении стен, хотя цвета остаются теми же.

Вид на холл
Как видите, цветовая гамма в этих помещениях сохраняется. Оно и понятно: между ими нет четкой грани, хоть и форму буквы «Г».

Рабочее место организовано на месте бывшей кладовки
В кухне сохраняются графические мотивы, присутствовавшие в отделке стен прихожей, но цветовое оформление уже совсем другое, хоть стиль неизменен. Смотрится ничуть не скучно, общая идея прослеживается.

Мотивы, которые были на стенах в прихожей есть и на кухне, но они перенесены на шторы и в совсем другом цвете
Помещение кухни и не особо просторное, но удалось вписать кухонный гарнитур в виде буквы «П». Выступающая его часть используется как барная стойка. Такое решение позволяет увеличить рабочую площадь, а также расширяет функциональные возможности: на этом месте можно перекусить, не накрывая на стол.

Стиль остался тот же: современный, но подход другой
Разграничение на кухонную и столовую зоны подчеркивается оформлением стен, организацией потолка и подсветкой. Все они подчеркивают наличие двух зон разного назначения, хотя четких границ нет.
В ванной сохраняется бежево-коричневая гамма цветов, но снова меняется характер интерьера. Обратите внимание на многоступенчатую подсветку и оформление потолка — интересное дизайнерское решение зрительно приподнимает потолок. Также интересны и функциональны выступы по периметру. Это усложняет кладку плитки, но в разы повышает функциональность: нет необходимости в навесных полках: все отлично поместится на выступах.

Ванная в бежевых тонах с коричневыми акцентами
В оформлении спальни появляется розовый цвет и графические изображения птиц на ветках. Стиль все тот же, но никто не скажет, что квартира выглядит монотонной.

Спальня — графика присутствует, но уже в совсем другой интерпретации
Оформление детской комнаты для девочки вообще по цветовому оформлению выбивается из общего ряда, но при этом имеет общие черты.

Детская комната
Как видите, единство стиля — не означает одинаковый дизайн. Во всех помещениях двухкомнатной квартиры есть своя нотка, но и что-то от общей идеи присутствует. Вот и вам, при разработке своего проекта необходимо прежде всего определиться со стилем, в котором вы видите свое жилье. Потом найти идею или некоторые элементы, которые будут объединять все интерьеры в единое целое.
Романтическая двухкомнатная квартира
Это фото ремонта малогабаритной 2 комнатной квартиры. В ней проживает один человек, потому было принято решение снести большую часть стен. Прихожая в квартире очень маленькая: буквально шкаф с одной стороны и небольшая тумба с зеркалом с другой. Стены почти белые, яркое освещение.

Оформление маленькой прихожей
Вход в кухню сразу из прихожей. Чтобы техника не слишком выделялась на фоне светлых стен, она тоже вся сделана белой, как и столешница и стулья. Темные дверки шкафов повторяются в темной столешнице обеденного стола.

Кухня оформлена тоже в романтическом стиле — кухонный фартук с фотопечатью придает намекает о пристрастиях хозяина к путешествиям
Оформление получилось легким и воздушным. В небольшом помещении нет ощущения «давления».

Вид на интерьер кухни с другого ракурса
В этом интерьере обыгрываются нестандартные формы: полукруглая мебель и перегородки. Так в гостиной доминирует большой диван, имеющий форму дуги, возле него — овальный столик, плавные линии присутствуют и на многоуровневом потолке.

Гостиная. Большой полукруглый диван является центром интерьера. Он занимает центр композиции
Непременный атрибут современного интерьера — телевизор — находится в центре композиции напротив дивана.

Телевизор в современной горке
Необычность этого интерьера в том, что спальня практически составляет единое целое с гостиной. Она отделена только полукруглой перегородкой-колонной. Вы можете видеть кровать, которая частично просматривается из с дивана гостиной.

Спальня в этой двухкомнатной квартире почти не изолирована — ее отделяет от гостиной только полукруглая перегородка
Красиво оформлен совмещенный санузел. Нежное сочетание цветов, плавные линии сантехники, достаточное, но не резкое освещение. Все это создает красивый интерьер.

Оформление ванной в бело-розовом цвете
Дизайн этой квартиры уж никак не назовешь однотонным или скучным. Все помещения оформлены в разных стилях. Их объединяет доминирующий белый цвет, а также плавные, округлые линии в интерьере.
Дизайн двухкомнатной квартиры в типовом доме П-44
Эта серия домов строится уже несколько десятилетий. Продолжают их возводить и сейчас, есть причем несколько модификаций. Тем не менее общий принцип построения остается стандартным: все квартиры с раздельной планировкой. От более ранней застройки их отличают большие размеры всех помещений, включая кухню.
Общее описание квартиры

Исходный пан двухкомнатной квартиры в доме серии П-44
Эта 2-х комнатная квартира имеет общую площадь 55 кв. м. К недостаткам можно отнести совмещенный санузел и неудачно расположенную дверь в меньшую комнату: она находится прямо напротив входной что доставляет неудобства.

План переделки двухкомнатной квартиры — убираем ненужные перегородки
В данном случае квартира предназначена для семьи с детьми. Владельцы решили, что их больше устроит совместный санузел. Также решено было убрать перегородку, отделяющую от прихожей детскую и на ее месте поставить вместительный шкаф. Таким образом немного сэкономлено место, а функциональность не пострадала.

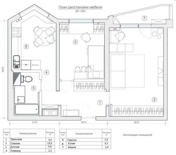
План расстановки мебели
Под большой шкаф занята и часть площади, которая находится справа от двери в спальню, которая будет также использоваться как гостиная.
Фото интерьеров
В прихожей площадью чуть меньше 6 кв. м. установлен шкаф. На второй стене прибита вешалка и под ней тумба. Над вешалкой находится квартирный электрощит, чтобы он не обращал на себя внимание, корпус покрашен краской такого же цвета, как и элементы мебели. Его верхнюю поверхность можно использовать для хранения мелочей.

Фото интерьера прихожей
Гостиная и, по совместительству, спальня родителей оформлена в том же цвете — сером с бирюзовой отделкой. Это не случайно: такой прием позволяет не разграничивать пространство, несмотря на наличие перегородок.

Фото оформления гостиной
В дальнем конце комнаты организовано рабочее место. Оно отделено полкой-стеллажом небольшой высоты, благодаря чему пространство не дробится, но зонирование достаточно явное.

Другой ракурс на спальню-гостиную
Справа от двери установлен большой шкаф под потолок. Частично он имеет открытые полки, частично — закрытые. В этом месте можно сделать узкую гардеробную или встроенный шкаф-купе. Гардеробная будет иметь ограниченный функционал — ширина её, при данной планировке, всего 80 см, чего недостаточно, но все равно её реально обустроить. Пока же было решено поставить корпусную мебель — для экономии средств.
Детская имеет не очень большую площадь, потому было принято решение использовать подоконник как стол. Для более компактного размещения поставлена двухъярусная кровать. Внизу выдвижные ящики, которые можно использовать для хранения игрушек и постельных принадлежностей.

Оформление детской — лаконично и функционально
Кухня-столовая имеет относительно небольшую площадь — чуть больше 9 кв. м. Чтобы визуально смотрелась она просторной, стены выкрашены в белый цвет. Такого же цвета выбрана мебель. Ярким пятном на белом фоне выделяется кухонный фартук — зеленого цвета. Того же зеленого оттенка мягкие чехлы на стулья.

Кухня в двухкомнатной квартире
Обратите внимание, что шторы на кухне рулонные. Ход продуманный. Во-первых окна в этой планировке нелинейные, а под углом. При таком расположении удобно еще использовать римские. Могут быть и классические, но не в данном варианте дизайна: они не подходят по стилю. Зато благодаря тому, что шторы компактные появилась возможность использовать подоконник, а также придать ему интересную форму.
Несмотря на то, что перегородку в санузле убрали, он остается небольшим. Приходится искать место для стиральной машинки, так как в других помещениях ее некуда поставить.

Вид на ванную сверху — видна расстановка предметов
Место для стиральной машинки нашлось под умывальником. Он специально выбран с обширной площадкой. Именно под ней и расположена машинка, а площадка защищает ее от попадания воды.

Фото дизайна совмещенного санузла
Для того чтобы помещение не казалось таким уж маленьким, плитка на стены уложена белая глянцевая. Изюминкой этого интерьера являются панно из плитки в синей гамме — одном из цветов, который присутствует в оформлении других помещений.
Как видите, и этот дизайн двухкомнатной квартиры сделан в одном стиле. В любом помещении прослеживается определенная стилистическая направленность, хотя и по цветовому решению и по создаваемому настроению и ощущению они разные.
stroychik.ru
75 современных идей дизайна 2-х квартиры: фото, видео, советы
Двухкомнатная квартира – один из самых распространенных вариантов жилья. Несмотря на небольшую площадь, она достаточно вместительна и комфорта. Отлично подходит для проживания, как одного человека, так и семьи с детьми. Двухкомнатная квартира позволяет реализовать различные дизайнерские идеи. Она кардинально преобразится и трансформируется в современную и уютную жилплощадь.
Создать современный дизайн 2-х комнатной квартиры несложно. Выбор идей для подобного жилища огромен и разнообразен. Воплотить их в жизнь не составит труда. Особенно если обратиться за помощью к профессионалам.

На столе в кухне можно поставить цветы

На стене в коридоре можно повесить картины

Сочетание белого и шоколадного цвета в интерьере
К выбору дизайн-проекта стоит подходить грамотно и учитывать ряд моментов. Главный из них заключается в геометрии помещения и расположении оконных проемов. Так как изменить это достаточно сложно, а во многих случаях невозможно. Дизайн интерьера 2-х комнатной квартиры должен быть согласован с данными ее особенностями. Это позволит ему получиться лаконичным, красивым и современным.
Не менее важную роль играют в данном процессе пожелания хозяев жилья. От того насколько будет им комфортно зависит атмосфера в помещении. Не стоит интерьер загромождать мебелью и другими деталями. Необходимо продумать все до мелочей. Это позволит организовать функциональное и удобное место для проживания.

Современный стиль в интерьере гостиной с подсветкой стены

На кухне, телевизор можно установить на стену
Дизайн квартиры без перепланировки
Данный вариант планировки квартиры предполагает наличие двух комнат, которые изолированы друг от друга. Они обладают небольшой площадью, но удобны и комфортны. Распределение данного пространства может проходить несколькими вариантами.
Самый распространенный предполагает использование маленькой комнаты, как детской, а большой гостиной. Этот вариант отлично подходит для семей с детьми. Также практикуется еще один способ организации. В данном случае большая комната, которая расположена далеко от входа, выступает спальней. Пространство позволяет оборудовать:
- место для отдыха;
- гардеробную;
- установить детскую кроватку.
Такой дизайн двухкомнатной квартиры является стандартным и часто встречается. При его обустройстве лучше использовать светлые оттенки для стен. Например, бежевый, песочный и другие. Они позволят создать уютную и спокойную атмосферу в небольшом помещении.

Над кроватью можно повесить люстру

На стене можно повесить модульную картину

Приятный шоколадный цвет в интерьере гостиной
Чтобы она не казалась скучной и однообразной, необходимо использовать яркие акценты. Они оживят обстановку и придадут интерьеру двухкомнатной квартиры индивидуальность. Для этого отлично подойдут зеленые и синие цвета. Они должны быть не очень яркими, а приглушенными. Такой интерьер двухкомнатной квартиры является универсальным. При необходимости его можно дополнять, совершенствовать и переоборудовать. Такая комната легко станет детской для только родившегося малыша.
Для потолков лучше использовать оттенки, которые будет контрастировать со стенами. При этом материал должен быть высокого качества, износостойкий и не темный. В противном случае будет не очень комфортная обстановка. Хорошо, если он днем отражает лучи солнца и наполнять комнату светом.
Можно использовать и коврик, который придает помещению домашний уют. Главное к нему требование заключается в размере. Лучше выбирать небольшой коврик светлого оттенка. Таким образом, интерьер двухкомнатной квартиры будет просторным с эффектом бесконечности, что визуально увеличит его объем.
Потолок оформляют в классическом стиле и светлых тонах. Это делает помещение просторным и уютным. Хорошо подойдут небольшие лампы, рассеивающие теплые лучи света. Для такого помещения не стоит использовать подвесные конструкции, так как забирают сантиметры на потолке. В итоге он снизит свою высоту и создаст эффект тесноты.
В качестве декоративных элементов отлично подойдут картины, фотографии и прочее. Они должны быть правильно подобраны к общему интерьеру помещения. Таким образом, будут с ним сочетаться и гармонично смотреться. Располагают их так, чтобы внимание человека во время отдыха рассеивалось по пространству.

Сочетание белого и черного цвета в интерьере гостиной

Современный стиль в интерьере кухни в сером цвете
Квартира-студия: особенности дизайна
Довольно часто подобные квартиры имеют небольшую кухню. Чтобы скрыть этот недостаток, можно использовать современные варианты планировки. В данном случае отличным решением проблемы является дизайн-проект квартиры студии.
Такому варианту интерьера отдают предпочтение в основном творческие люди. Так как в маленьком пространстве они чувствуют себя не комфортно. Увеличение площади достигается за счет применения визуальных эффектов и смены планировки квартиры. Трансформация пространства позволяет создать комфортное и удобное место для проживания, отдыха и творчества.

Красивый потолок в спальне с люстрой

Дизайн светлой спальни в современном стиле

Вместе с натяжным потолком можно сделать подсветку
Главная задача при создании дизайна двухкомнатной квартиры-студии заключается в том, чтобы обеспечить объемность и простор. В этом помогут светлые тона для стен, пола и потолка. Но тут есть одна проблема – помещения выполняет несколько функций. Поэтому необходимо выделить отдельные зоны. Они предназначены для разных целей:
- отдыха;
- приготовления пищи;
- обеда.
Для этого можно использовать, как разные стили, так и оттенки. Это позволит визуально выделить каждую зону. Отлично подойдут нейтральные цвета в сочетании с дополнительными элементами декора. Можно использовать и перегородки мобильного типа. Например, в спальне с зоной, предназначенной для активного отдыха или работы. Такая стена легко передвигается и при необходимости изменить площадь помещения.

Современная гостиная в стиле минимализм

Интерьер спальни выполнен в современном стиле
Перепланировка: варианты
Дизайн двухкомнатной квартиры может воплотить в жизнь самые интересные и оригинальные идеи. Особенно если речь идет о большой площади помещения. Легко и просто можно превратить такую квартиру в трехкомнатную. Дополнительное помещение можно обустроить на любой вкус. Оно станет отличной спальней, детской, кабинетом и прочем. Все зависит от требований и пожеланий хозяев.
Ремонт с перепланировкой имеет не только плюсы, но и минусы.
Достоинства | Недостатки |
Увеличение пространства | Сложный ремонт |
Несложный процесс демонтажа стен. Так как задействованы те, которые не являются несущими | Разделение забирает площадь комнаты |
Новая планировка открывает ряд возможностей для дизайнерского ремонта | Дополнительные финансовые затраты на демонтаж и возведение стен |
Ремонт требует больше времени. Сопровождается повышенной степенью пыли и грязи. |
Для начала потребуется выполнить ремонт. Он предполагает объединение нескольких помещений, а потом разделение пространства в соответствии с определенными пропорциями. Такой вариант дизайна отлично подойдет для большой спальни, коридора и лоджии. Их соединение позволит получить пространство большой площади, с которым уже можно работать на свое усмотрение.
Чтобы отделить одну комнату от другой, используют стены из гипсокартона. Хорошо подойдут и перегородки, оборудованные раздвижными дверями. Таким образом, свет будет проникать в помещение, где нет окна.

Дизайн гостиной выполнен в шоколадном цвете

Сочетание светлых и темных цветов в дизайне гостиной

Отделку стен балкона можно сделать гибким камнем
Для визуального разделения часто используют многоуровневые потолки. Их оборудуют большим количеством ламп, которые регулируются. Чтобы увеличить объем комнаты, можно установить глянцевый потолок. Он скроет снижение его уровня.
Стены могут быть выполненные в различной цветовой гамме. Пространство позволяет использовать несколько оттенков. Главное, чтобы они сочетались и гармонировали. Таким образом, дизайн двухкомнатной квартиры будет лаконичным и красивым.
Перепланировка – это серьезная работа, которая должна согласовываться с соответствующими специалистами. В противном случае такие работы принесут немало хлопот. Хозяину квартиры будет выписан штраф больших размеров. В некоторых случаях его оплатой не обойтись, потребуется вернуть жилью первоначальный вид.

Кухня так же может выглядеть красиво

Диван на кухне будет отлично дополнять интерьер
Решение для семейной пары
Семейная пара часто выбирает в качестве жилья двухкомнатную квартиру. И это неудивительно. Если грамотно подобрать дизайн проект 2 х комнатной квартиры, то можно сделать ее максимально функциональной и современной.
Отличным решением для семейной пары является квартира-студия. Это позволяет эффективно использовать помещение. Устанавливаются перегородки, обладающие способностью раздвигаться, стеллажи и прочее. Хорошо смотрится игра света, она меняет и трансформирует пространство.
Готовый дизайн проект двухкомнатной квартиры можно получить, как у специалистов, так и найти в интернете. Просторы сети предлагают массу вариантов обустройства жилья. Из них каждый сможет подобрать тот вариант, который подойдет ему.
Готовые дизайн проекты 2 комнатных квартир стоят достаточно дорого. Особенно если они выполнены специалистами высокого уровня. В интернете найти его можно и бесплатно. Ответственность за такой дизайн несет сам хозяин.

На потолке можно установить подсветку, выглядит это потрясающе

Дизайн гостиной сделан в современном стиле

Гармония цвета в дизайне гостиной
Интерьер для семьи с ребенком
С появлением в семье детей в доме все меняется. Особенно условия для проживания. Важно обустроить свой уголок ребенку, где он будет отдыхать, играть и заниматься. Для этого хорошо подойдет отдельное помещение. Оно есть в таких вариантах дизайна:
- стандартный;
- перепланировка.

Над камином можно поставить телевизор

Отличный вариант гостиной в небольшой квартире
Если речь идет о стандартном варианте дизайна квартиры, то комнату, обладающею небольшой площадью, оборудуют, как детскую. Подойдет вариант перепланировки в трешку. Дополнительную комнату можно обустроить в качестве детской. При этом лучше использовать пастельные оттенки, чтобы помещение было светлым и уютным.
Дизайн интерьер 2 комнатной квартиры – это большие возможности для реализации любых идей. Выбирая конкретный вариант оформления помещения необходимо руководствоваться предпочтениями тех, кто в нем будет жить. Можно использовать неожиданные решения для создания уютной и современной атмосферы.
Видео: Ремонт и перепланировка 2-х комнатной квартиры
50 фото идей интерьера 2-х комнатной квартиры:
dizainvfoto.ru
100 лучших идей для интерьера и дизайна двухкомнатной квартиры с фото
Содержание:
- Планировка
- Советы дизайнеров
- Лучшие стили интерьера (фото)
Двухкомнатные квартиры, представляют собой самый востребованный сегмент недвижимости, удачно балансируя в стоимости, между малогабаритными «однушками» и дорогостоящими «трешками». Пространство двухкомнатной квартиры позволяет реализовать все основополагающие зоны, предоставляя достаточно площади для планировочных решений.
Не смотря на очевидные преимущества квартиры с квадратурой в 40-60 м.кв., организация удобного, эргономичного и эстетически привлекательного пространства требует обстоятельного подхода на всех этапах создания интерьера.
Квартира-студия
Удачное решение для двухкомнатной квартиры – большое свободное пространство разделяется с помощью функционального зонирования

Квартира-полустудия
Вариант перепланировки, при котором спальня остается изолированной

Студия-сапожок
Для двухкомнатной квартиры с проходными комнатами удобнее избавится от лишних стен, расположив зону отдыха в дальнем углу

Планировка
Архитектурная работа с пространством занимает не меньше внимания, нежели выбор стиля интерьера. Большинство стандартизированных вариантов планировки далеки от современных требований к комфорту.
Основные недостатки двухкомнатных квартир
Двухкомнатные квартиры, представленные на вторичном рынке недвижимости, имеют ряд закономерных недостатков.
Не рациональное использование жилого пространства ограничивает возможности дизайнерского проекта. При стандартных планировках двухкомнатных квартир часто имеется «глухая» площадь, которую невозможно использовать. Двухкомнатные квартиры чаще остальных требуют работы архитектурными и техническими характеристиками с помощью перепланировки.
Основы перепланировки
План перепланировки всегда составляется после детального анализа имеющихся недостатков и достоинств площади, а так же с учетом общих представлений о комфорте и уюте всех жильцов. Анализ проводится в два этапа. Первый этап позволят определить общие требования, и включает в себя ряд обязательных пунктов.

Виды двухкомнатных квартир и варианты перепланировки для них
Многоэтажные дома, возведенные в прошедшем столетии, сегодня представляют все разнообразие вторичного рынка недвижимости и предлагают несколько подвидов, определяющих личные характеристики планировки.
«Сталинками» называют многоквартирные дома, возведенные в 40-50 годах прошлого века. Планировка двухкомнатной «сталинки» отличается крупногабаритными комнатами, высокими потолками и незаурядным расположением комнат. Конструктивно-планировочной особенностью есть отсутствие несущих стен, что открывает возможности для различных проектов перепланировки.
Архитектурная перепланировка. Возможности перепланировки двухкомнатной квартиры с большой квадратурой и без несущих стен, практически не ограничены. Если есть необходимость можно распланировать площадь таким образом, что из двух комнатной получится трех комнатная квартира. Но, перепланировки, как правило, делаются с целью увеличить пространство. Самыми распространенными вариантами перепланировки «сталинки» есть демонтаж перегородок между кухней, смежной комнатой и коридором.
ВАЖНО! Между кухней и комнатой обязательно должна быть установлена раздвижная перегородка. В домах сталинской постройки используются газовые печи, а по техническим требованиям запрещено соединять газифицированную кухню и жилую комнату, оставляя их без перегородки или двери.

Двухкомнатные «хрущевки» полная противоположность «сталинкам». Маленькие комнаты, квадратурой до 19 м.кв., низкие потолки, совмещенный санузел, маленькая кухня. Главным недостатком есть проходные комнаты. Комнату, служащую холлом сложно использовать в виде жилой.
Архитектурная перепланировка. Перепланировка «хрущевки» из двух комнат представляет собой работу над ошибками. В первую очередь необходимо найти несущую стену, неподлежащую демонтажу. На несущей стене переносится дверной проем в самый угол, для более рационального использования имеющегося пространства. Если квартира рассчитана на одного-двух жильцов, то из смежной комнаты и кухни делается студия. Пространство коридора используют для увеличения и разделения санузла.
Для большой семьи необходимо несколько изолированных комнат, поэтому лучший вариант – это отделение части походной комнаты, с помощью стены увеличивается коридор. Если позволяет изначальное расположение санузла, можно раздвинуть стены и установить перегородку.

Условно «брежневки» имеют улучшенные характеристики «хрущевки»: кухня до 7 м. кв., увеличенные комнаты, раздельный санузел. Остальные параметры сохранены такими же, как и в домах хрущевской постройки.
Архитектурная перепланировка. Категоричной особенностью «брежневки» есть основательная нагрузка на несущие стены, из-за которой нельзя не только сносить стену, но и переносить проход и пробивать новый. Перепланировка ограничивается сносом не несущих стен: соединение кухни и смежной комнаты, объединение санузла. Основная работа по обустройству «брежневки» ложится на дизайнеров, визуально разделяющих пространство.

«Новая» планировка
Отличительные особенности «новой» планировки – это крупногабаритные кухни (8-9 м.кв.), а так же увеличенные комнаты, расположенные изолированно друг от друга. В ряду преимуществ раздельный санузел и большой коридор. Не редко в домах с «новой» планировкой квартир есть лоджия, которую можно переконструировать и обустроить как часть комнаты.
Архитектурная перепланировка. Поскольку в доработке такая планировка не нуждается, варианты перепланировки ориентированы исключительно на студийные проекты. Демонтаж стен между кухонным пространством, смежной комнатой и коридором позволяет обустроить гостинную-студию площадью от 34 м.кв. Вторая комната остается изолированной и увеличивается за счет лоджии.

Делать ли перепланировку в новостройке?
Новостройки предлагают уникальные проекты квартир, отличающиеся продуманным расположением комнат и зон. Первичный рынок редко выставляет на продажу малогабаритные квартиры нуждающиеся в доработке. В абсолютном большинстве квартиры в новостройках имеют достаточный запас квадратных метров, более приближенный к характеру студийных квартир.
Перепланировку проводят не только для доработки имеющегося плана квартиры. В первую очередь перепланировка – это обустройство пространства с ссылкой на личные требования к комфорту. При желании видоизменить квартиру в новостройке, можно использовать любые методы перепланировки.

Советы дизайнеров
Любое искусство, в том числе и интерьер, начинает жить исключительно благодаря деталям. Двухкомнатная квартира – отличный холст, для создания индивидуального интерьера, с учетом всех личных предпочтений. Дизайнеры рекомендуют использовать практические наработки, значительно упрощающие выбор стиля, цвета, разделение двухкомнатной квартиры на зоны и оформление интерьера в целом.
Оформить в едином стиле или в разных?
Есть примеры оформления двухкомнатных квартир как в одном стиле, так и в разных, даже контрастирующих и несочетаемых стилях. Выбор общего стиля, позволяет объединить пространство, создать целостность и логичность. В случае если каждая из комнат изолирована и соединяется коридором, а так же в случае если есть проходные комнаты, самым удобным способом оформления будет единый стиль. Важно отметить, что единая стилистика не подразумевает использование одинаковых цветовых гамм и тенденций. Определенный стиль интерьера имеет свою специфику для различных помещений – кухни, гостиной или спальни.
Для двухкомнатных квартир с полустудийной планировкой, при которой кухня, коридор и гостиная объединяются в одно пространство, а спальня остается отдельно, актуально применение двух стилей интерьера. Для студии используются современные интерьеры, подчёркивающие большое и свободное пространство; для спальни выбираются стили мягкие, домашние, создающие уют и комфортную обстановку для отдыха.

Единый стиль для всей квартиры.
Как применяется функциональное зонирование?
Благодаря функциональному зонированию можн
www.remontbp.com
Дизайн проект двухкомнатной квартиры — советы по планировке

Квартиры с двумя спальнями отлично подходят для пар и небольших семей. Они являются одной из самых распространенных планировок. Это связано с тем, что такая недвижимость идеально сочетает доступную цену и комфорт проживания. Она гораздо удобнее, чем дома с одной спальней или студии. В этой статье рассматриваются наиболее интересные планировки в виде 3D проектов.

Эта квартира кажется очень просторной благодаря тому, что каждая спальня окружена обширной гостиной зоной.

В этой планировке свобода и открытость пространства достигаются за счет двух клумб и террас. Такое дополнение интерьера придется по вкусу любителям садоводства.

Невозможно не влюбиться в апартаменты с оригинальным внутренним двориком, представленные на следующих проектах.

Возможно ли в доме с двумя спальнями достигнуть уединения? Да, если воспользоваться подобными идеями дизайнера. Такое расположение комнат гарантирует, что хозяева и гости будут чувствовать себя комфортно в своих помещениях. Каждая спальня оборудована своей ванной.

Когда вы думаете о современном жилье, скорее всего, представляете четкие линии и яркий свет. Эта планировка сочетает яркие цвета с девственно-белыми стенами. Естественный свет занимает все пространство, проникая через окна на всю стену и стеклянные балконные двери.

Цвет – важнейший элемент любого помещения. Успокаивающие зеленые и пурпурные оттенки способны создать уютную атмосферу, идеальную для молодых пар. Утонченным личностям придутся по вкусу темно-серые стены и деревянный пол. Те, кому нравится стиль модерн, по достоинству оценят интерьер в постельных тонах с добавлением ярких акцентов. Теплые бежевые оттенки делают интерьер уютным и обволакивающим.

Просторная открытая планировка с двумя спальнями, расположенными на противоположным сторонах квартиры, может быть идеальной для друзей, проживающих вместе. При этом большая площадь мест общего пользования гарантирует, что они не будут мешаться друг другу.

В этом варианте две спальни только предполагаются. Одна из них в обычное время используется как гостиная. В случае необходимости здесь можно с комфортом разместить гостей. Непринужденного шарма планировке придает отличное освещение.

Такой вариант может быть идеален для молодежи. Здесь имеется две ванные комнаты, вместительный гардероб и современная кухня, совмещенная с гостиной.

Яркий и веселый дизайн делает пространство легким и прозрачным. Несмотря на то, что площадь помещений небольшая, разработчики решили не жертвовать стилем. Кухня хотя и крошечная, но идеально продуманная.

В этом проекте светлые тона сочетаются с яркими акцентами. Благодаря чему дизайн квартиры получился веселым и игривым.

В представленном пространстве все внимание уделяется деталям. Слоистые текстуры в постельных принадлежностях, богатые лиственные породы, роскошная кожаная мебель, превосходный балкон – все это поднимает современный дизайн на совершенно новый уровень.

Простая и лаконичная квартира призвана показать силу контраста. Темное дерево, двери, шкафы шикарно смотрятся на фоне светлых стен.

Такое жилье – идеальный вариант для небольшой семьи. Здесь достаточно места для игр с ребенком. А летом можно наслаждаться теплом, сидя на шикарной веранде.

Когда площадь позволяет, можно побаловать себя роскошными деталями. Просторный гардероб придется по душе не только женщинам. Он очарует своим удобством любого современного мужчину.

В последнее время стали популярны квартиры со свободной планировкой. В таких случаях перед владельцем встает вопрос о том, как грамотно ее спроектировать. Можно воспользоваться идеями дизайнеров. Главное определиться, что для вас наиболее важно.
interiorsroom.ru
План двухкомнатной квартиры с размерами
Всегда ли уместно самую просторную комнату отдавать под гостиную? Почему бы не обустроить в ней место для полноценной жизни самого маленького члена семьи?
На фото:
Удачно обыграв колонну в центре детской, дизайнер «закрутила» весь интерьер вокруг нее.
Сведения о квартире: двухкомнатная квартира площадью 68 кв. м
Владельцы квартиры: мама и сын.
Пожелания клиентов: закамуфлировать недостатки квартиры и выгодно подчеркнуть ее достоинства, выстроить все необходимые зоны в детской, грамотно спланировать общественную зону.

План двухкомнатной квартиры с размерами после перепланировки.
Планировка этой квартиры имеет свои достоинства и недостатки. Плюсов достаточно много — панорамное остекление, высокие потолки, просторная прихожая. Из минусов можно отметить колонну в центре одной из комнат, больших размеров инженерные короба на кухне, маленькую ванную комнату, довольно узкую спальню.
Следуя пожеланиям заказчика, архитектор постаралась, не меняя планировку кардинально, грамотно и эргономично организовать внутреннее пространство квартиры. Самую просторную комнату было решено отвести под детскую, в ней были организованы все необходимые зоны — спальную, зону отдыха, место для игр и занятий. При этом автору проекта удалось визуально обыграть стоящую в центре комнаты колонну. Так как для гостиной в квартире места не нашлось, все функции этой зоны возложили на достаточно просторную кухню-столовую.

В прихожей предусмотрено множество систем хранения: это и встроенный шкаф-купе для сезонной одежды и обуви, и шкафы-полки в нишах.

При входе в квартиру проектом предусмотрено зеркало высотой в стену. Потолок комбинированный — ГКЛ и натяжной по центру. По контуру встроены точечные светильники и светодиодная подсветка.

В кухне, как и во всей квартире, запроектированы многоуровневые потолки и разные системы освещения.

Помимо обеденного стола кухня оборудована и барной стойкой, которая плавно перетекает в кухонную столешницу.

Автором проекта был применен ряд приемов, которые помогли сделать жилое пространство удобным и эргономичным. Например, превратить лоджию в комфортную и просторную гардеробную.

Специально для изголовья кровати в спальне была выстроена ниша. А чтобы оставить пространство для прохода, были подобраны узкие тумбы и консоли.

Даже в узкой спальне нашлось место для компактных систем хранения — удобных и функциональных.

Детская — самое просторное помещение в квартире. Интерьер решен в современном стиле. И самое главное — помещение максимально наполнено воздухом и светом.

Сложная архитектура детской позволила выстроить множество стеллажей и полок. Комната идеально соответствует всем потребностям развивающегося детского организма.

Ванная, как и кухня, оформлена игриво-неформально. Чувствуется женская рука.

Чтобы освободить полезную площадь в ванной, стиральную машину установили в нишу над унитазом. При необходимости ее можно спрятать за складной шторой.
www.4living.ru
Планировка двухкомнатной квартиры в доме серии ПД-4
Планировка двухкомнатных квартир в доме серии ПД-4 предполагает изолированность всех помещений. Хозяев двушки такой вариант устраивал, но хотелось визуально объединить помещения. Что же в итоге получилось?
На фото:
Нежно-салатовые акценты присутствуют во всех помещениях. В спальне это шторы, подушки и детское одеяльце.
Сведения о квартире: двухкомнатная квартира в доме серии ПД-4 в районе Митино, Москва.
Владельцы квартиры: семейная пара с маленьким ребенком.
Пожелания клиентов: светлый и яркий интерьер с изолированными помещениями, но в едином стиле.

План двухкомнатной квартиры.
Планировка ПД-4 считается очень удобной – все помещения в таких квартирах изолированы и удалены друг от друга. Дизайнеры использовали все плюсы планировки ПД-4, окрасили квартиру в яркие цвета и подобрали цветовой акцент, который объединил все помещения.
Ключевой цвет интерьера, который присутствует во всех помещениях, – сочный зеленый. В разных комнатах он сочетается с разными цветами. В спальне это спокойные весенние оттенки: бледно-зелёный текстиль гармонирует с нежно-розовой отделкой дверей и обоями с золотистым отливом.
В гостиной царит жаркое лето, здесь теплый салатовый цвет дополнен глянцевым белым и бежевыми оттенками, а оранжевый угловой диван отлично вписывается в светлую гамму.
Кухонная мебель со снежно-белыми фасадами эффектно дополнена черными и кофейными вставками, а верхние шкафчики фисташкового цвета объединяют кухню с остальными помещениями. Принт с красными апельсинами на кухонном фартуке служит ярким цветовым акцентом и освежает кухню.
Коридор выполнен в спокойных бежевых тонах, только стена, отделяющая прихожую от гостиной, оклеена полосатыми обоями в охряной гамме – это напоминание об осени.

В прихожую, оформленную в нейтральных тонах, для контраста добавили ярко-салатовые тумбы для хранения.

Между прихожей и гостиной установили раздвижные двери, вместе с верткальной полоской на обоях они визуально расширяют пространство.

Система хранения разместилась вдоль одной из стен гостиной. Верхний ряд ящичков имеет виртуальное продолжение в виде полоски на шторах.

У окна расположился нестандартный рабочий уголок. Во время вечеринок его вполне можно использовать как барный столик, разместив на нем всевозможные напитки.

Телевизионную плазму разместили напротив обеденной зоны.

Белые навесные шкафы над рабочей поверхностью практически незаметны, они словно сливаются со стеной.

В «весенней» спальне установили платяной шкаф нежно-зеленого цвета.

Грамотно расставленные цветовые акценты делают интерьер этой ванной очень свежим.

Ванна обшита цветной плиткой — это слегка разбавляет чересчур утилитарный интерьер.

Голубой цвет в интерьере квартиры присутствует только в гостевом санузле.
www.4living.ru





