ОСТРОВ НА КУХНЕ — The wave of decor
Какая хозяйка не мечтает о большой и удобной кухне? Наверное, каждая из нас уже давно мысленно представляет какой она должна быть…
Хотите я опишу свою кухню мечты? Очень светлая, просторная и обязательно с большим островом!
Признавайтесь – мечтаете тоже об острове?
Если есть возможность я всегда стараюсь предложить планировку кухни с ним…
Он как самый настоящий «ОСТРОВ СОКРОВИЩ» притягивает нас своими чудодейственными свойствами… нам кажется, что если у нас будет остров на кухне – то она станет волшебной… и блюда там будут готовиться волшебные… и все все станет волшебным…
Так ли это?
| www.devolkitchens.co.uk |
Давайте поговорим подробно о «сказочном острове».
ЯВНЫЕ ПЛЮСЫ:
- Они очень удобны для работы – так как есть доступ к нему со всех сторон.

- Остров может выполнять абсолютно разные задачи : разделять пространство, быть настоящей рабочей поверхностью с раковиной или варочной поверхностью, быть просто столом и даже рабочим местом, огромным хранилищем и скромными полками.
- Он практически всегда становится центром притяжения кухни, а иногда и всего дома.
- Кухня с островом кажется всегда парадной и величественной.
- Можно вписать в абсолютно любой стиль и дизайн, может быть разных размеров от супер огромного до супер маленького.
- Он на сто процентов становится любимым местом всех домочадцев.
Нельзя говорить о том, что остров можно поставить в абсолютно любом помещении. Скорее всего – нет, чем да… В маленьких кухнях он или просто не поместится или станет помехой, а не любимым помощником.
Так что прежде чем идти и заказывать кухню с островом -необходимо иметь четкое понимание возможностей вашего помещения и основных функций, которые Вы возлагаете на остров.
Прежде чем его “желать” – трезво оцените свое пространство. Вы сможете выдержать эргономически выверенные расстояния, которые мы очень подробно обсуждали ТУТ, в статье о “Принципах планирования современной кухни”? Если точно сможете – значит остров для вас это верное решение. Мечта станет реальностью.
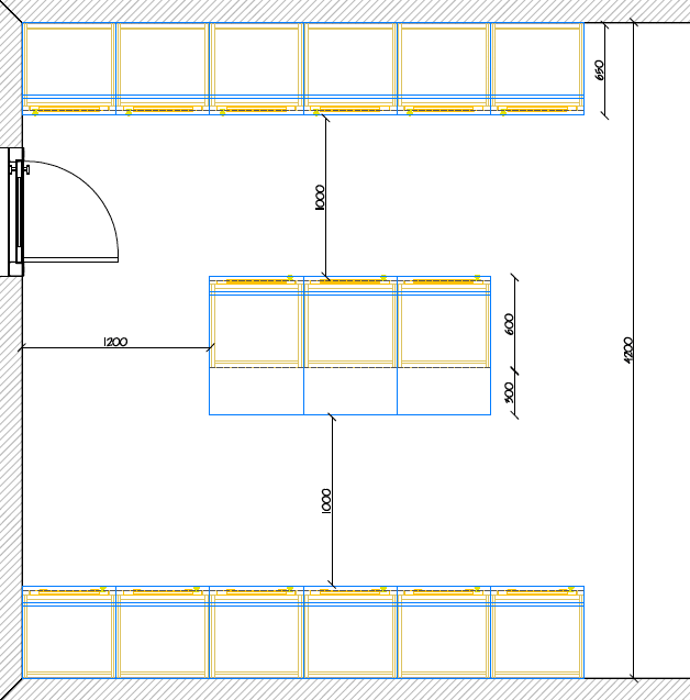
После того как вы определитесь, что острову быть на кухне 100%, необходимо понять его размерный ряд.
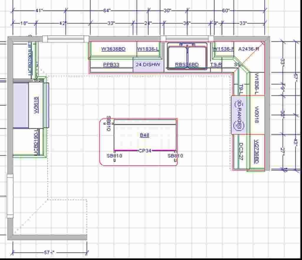
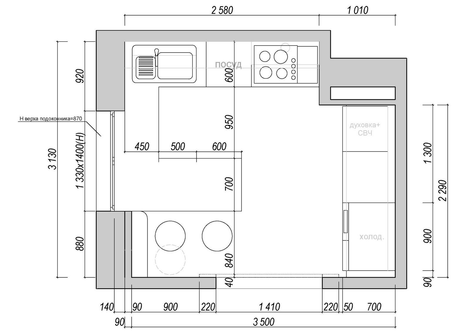
Я из опыта вывела, что самый удобный остров – это 184*90 см. Те три напольных шкафа по 60 см, в которые можно встроить технику такую как морозильник, винный шкаф, систему хранения.
Глубина в 90 см позволяет расположить на острове одну из функциональных зон и оставить места для неформального барного стола.
Но это если такое точно получается.
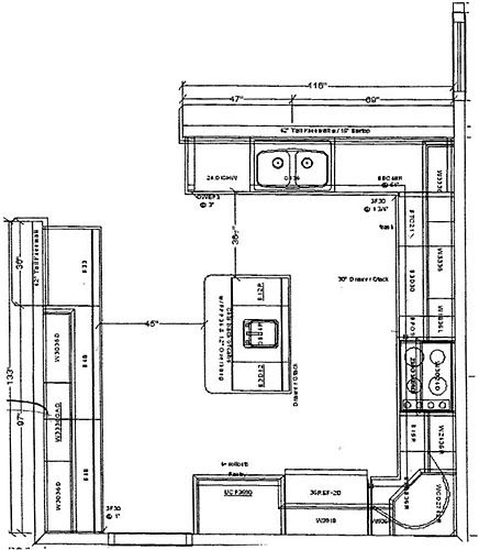
Если нет возможности увеличить остров до 90 см – то оставляю стандартную глубину просто – 60-65 см, как на плане ниже из моего проекта 2016 года, частного дома в Мос. области.
| проект студии “На волне декора” 2016 год |
Размеры острова определят или скорее помогут определить его основную функцию.
Так как на большом острове можно и раковину установить и плиту и стол барный большой сделать , а на маленьком разве что пару полочек для сладостей придумать…
Какую роль может играть остров на Вашей кухне? И какие функции выполнять? Рассмотрим все функции подробно, чтобы окончательно принять правильное решение.
«СТОЛ-ПОМОЩНИК»
| www.devolkitchens.co.uk |
Дополнительная рабочая поверхность никогда не повредит. А если для этого еще и есть место на кухне – то просто замечательно!
Остров-помощник – это просто дополнительная система хранения с полноценной столешницей. Остров может быть выполнен как в общем стиле с основной кухонной мебелью и иметь точно такую же столешницу.
| Crate and Barrel |
А может быть абсолютно иным по дизайну, но органичным по стилю с вашей кухней.
Стол можно дополнить открытыми или закрытыми местами для хранения, различными полками, выдвижными корзинами и ящиками.
Можно сделать доступ к полкам только с одной стороны, можно разделить функционал по всем четырем странам острова и предусмотреть как закрытые шкафы с дверцами, так и открытые полки, для книг, например, или корзин для яблок, лука…
| www.devolkitchens.co.uk |
Мне нравится когда все-таки остров выделяется столешницей. Я, наверное, предпочту сделать для него столешницу из гранита или красивого мрамора, или из красивого дерева натурального (о том как ухаживать за деревянной столешницей читаем ТУТ), чтобы не только функционально было на 100 процентов, но и отвечало моим декораторским вкусам.
Контраст очень хорошо подчеркивает важность и “парадность”, а если кухня большая, и остров не маленький… То очень логично его “подчеркнуть и выделить”.
“ОСТРОВ С ФУНКЦИОНАЛЬНОЙ ЗОНОЙ”
| www.devolkitchens.co.uk |
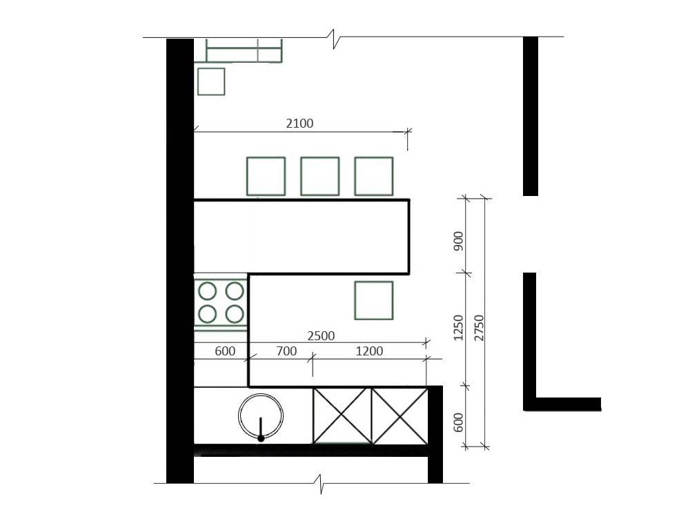
На остров можно вынести варочную панель, гриль, раковину. Встроить микроволновку, духовку, винный шкаф…
Тогда он становится полноценным партнером в работе на кухне.
ГОТОВИМ НА ОСТРОВЕ
Если вы выносите на остров варочную панель – помните о расположении специальной вытяжки.
Если вытяжку будете устанавливать традиционную – над варочной панелью, то они называются «ОСТРОВНЫМИ» и имеют совершенно иные формы, а также крепление! не перепутайте в магазине, и не купите “пристенный вариант”.
Современные производители радуют нас с каждым днем. Знаменитые немцы NOLTE предоставляют возможность встраивать вытяжки (и очень мощные) в стол, рядом с варочной поверхностью. Это очень круто… Тестировала такую вытяжку в салоне – влюбилась безоговорочно.

| Nolte-kitchen |
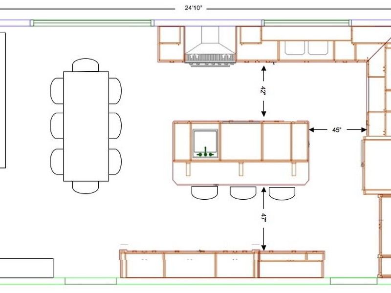
Также варочная панель потребует повышенной безопасности при работе. Не располагайте ее близко к краям острова – это может быть очень опасно для ваших домашних. Старайтесь оставлять свободными не менее 45 см с краю от варочной панели!
Если вы предполагаете разместить на таком острове еще и “неформальный стол” – оставьте достаточное расстояние от края варочной поверхности до края стола, где могу сидеть Ваши домочадцы или гости.
Всегда интересно наблюдать как готовит Шеф! Но быть обрызганным горячим маслом – удовольствие сомнительное. Поэтому расстояние , вытяжка – обязательно! Можно также дополнительный прозрачный экран придумать за варочной, но как правило с ним больше хлопот на практике, чем просто “протереть стол”.
РАКОВИНА НА ОСТРОВЕ
Если Вы предполагаете вынести на остров раковину,
аналогично как и с варочной поверхностью – помните про эргономику и удобство работы.
Оцените трезво возможности острова – встает туда раковина нормальных размеров, о которой вы мечтаете? Остается по бокам достаточно места, чтобы поставить тарелку грязную или чистую? Место для сушилки настольной… Если все вопросы получают удовлетворительные ответы, то мой совет: продумайте тогда и возможность переноса посудомоечной машины. Разместите все эргономично. Продумайте хранения чистой посуды.
Помните про свободное пространство для дверцы посудомоечной машины в открытом положении! Будьте внимательны, и предусмотрите ее открывание с удобной стороны для вас и без посторонних ограничений.
| www.devolkitchens.co.uk |
Не забудьте предусмотреть поблизости место расположения мусорного ведра.
Многие бояться выносить на остров функциональные зоны… Раковина может быть полна грязной посуды… а на плите стоять некрасивая кастрюля… И тем самым лишают себя действительно удобной кухни (при наличии возможности разместить так все у себя).
Самый сильный аргумент, который я привожу – подумайте – сколько времени мы проводим на стоя перед плитой или перед раковиной? Очень много!
Так не лишайте себя возможности быть в кругу семьи во время работы на кухне
Грязную посуду убираем в посудомоечную машину, на плиту ставим красивую кастрюлю. А вот мыть овощи , или чистить яблоки, или помешивать ароматный соус к пасте и при этом болтать с любимой подругой, которая сидит напротив тебя… – разве это не прекрасно?
Если в остров планируете встраивать электрические приборы (крупную технику – предусмотрите выводы из ПОЛА розеток, а также обязательно дополните свой остров РОЗЕТКАМИ на самой столешнице, или боковом фасаде – потом спасибо мне скажете:).
«ОСТРОВ-БАРНАЯ СТОЙКА ИЛИ СТОЛ ДЛЯ ЗАВТРАКОВ»
Раз вам достается остров, то логичнее конечно, использовать его не только утилитарно – салаты резать, но и волшебно. У нас ведь волшебный остров. Красивый завтрак, полдник… легкий ужин или просто перекус на ходу – что может быть лучше чем остров-стол для этих целей?
Не пренебрегайте такой возможностью.
Просто продумайте как станете “сидеть” за островом. Надо чтобы ноги “были под столешницей” или “боком” тоже прекрасно, раз места мало…| by Lake|Flato Architects and interior designer Madeline Stuart/AD |
Функционально и очень комфортно. Вы готовите ужин, ребенок напротив уроки делает, или подруга чай пьет, или муж что-то важное вслух читает.
Часто хотят “отделиться” от кухни более высокой частью острова – барной стойкой. Желание такое возникает в 100% случаях, если гостиная и кухня – это единой целое.
Желание понятное, но несколько устаревшее.
Хотя есть примеры достойные и можно сделать все очень красиво.
http://www. bhg.com |
В этих случаях часто планируют «двойную высоту». Такой остров может играть роль ограждения – скрывать утилитарные функции кухни, и быть замечательным неофициальным столом «как в баре».
Специалисты советуют двухуровневый остров делать со следующими высотами:
h2 = высоте рабочей столешницы – 80-90 см от уровня пола
h3 = стандартной высоте барного стола – 110-115 см от уровня пола.
Так как высота стандартного барного стула равна 75 см.
Но все-таки сегодня гораздо современнее смотрится остров с единой высотой. К тому же есть в продаже удобные ПОЛУБАРНЫЕ СТУЛЬЯ.
| by Shawn Henders |
Ключевые моменты при планировании ОСТРОВА
Размеры острова: специалисты NKBA советуют делать остров не менее 2,4 м в длину и не менее 60 см в глубину.
Но практика показывает , что размеры острова очень индивидуальны, и высчитываются в каждом конкретном случае!
Из своего опыта я повторю , что комфортно работают размеры 180*90 см.
Но и красивый мини-остров – тоже очень полезен и бывает незаменим!
Посмотрите на красивый остров в проекте Екатерины Лашмановой – засмотреться можно!
При любой функции острова, если он расположен стационарно – предусмотрите размещение электрических розеток на нем для малой бытовой техники. Это очень удобно при работе (мы уже об этом упоминали выше).
Края столешницы лучше сделать скругленными. Так вы избежите лишних травм при работе. И сидеть за барным столом с огруглым срезом столешницы тоже приятней.
Продумайте хорошо освещение, особенно если остров будет основной рабочей поверхностью.
Если освещение обычной рабочей поверхности располагают под навесными шкафами , то остров потребует только отдельного света. Читаем статью про освещение на кухне ТУТ.Необходимо тщательно рассчитать количество светильников и высоту размещения.
Если кухня не великих размеров, а иметь остров очень хочется – рассмотрите вариант передвижного стола на колесиках, как у меня из икеа.
Сейчас их в продаже есть огромное количество, самых разных дизайнов и по самым разным ценам.
Верю, что сегодня мы поговорили на очень нужную и полезную тему!
Спасибо за внимание! Оставайтесь со мной и обязательно делитесь с друзьями идеями блога “На волне декора” и ждите новых интересных статей! И….
Блог “На волне декора” – некоммерческий проект и создается только силами автора. Если вы по достоинству оценили статью и она вам понравилась – я буду признательна за небольшую материальную поддержку. Спасибо!
размеры и дизайн кухонных островов
Кухня остров – эргономичное и эффектное решение для рабочей зоны. Конечно, далеко не все могут позволить себе такую прелесть, ведь для размещения островка на кухне нужно немало свободного места. Но если в вашем распоряжении есть хотя бы 8-9 квадратов, стоит присмотреться к такому варианту. Хотя оптимальной для острова на кухне дизайнеры считают площадь в 18-20 м2.
Чем он хорош?
Раньше мы могли видеть кухонные острова лишь в зарубежных фильмах да в ультрасовременных интерьерах наших звезд.
Сегодня многофункциональный модуль у производителей мебели заказывают все чаще. Ведь остров в кухне играет роль рабочей зоны, где можно установить плиту, мойку или использовать поверхность для разделки.
Также в целях экономии пространства с островом на кухне можно совместить обеденную зону. Как правило, она представляет собой всего лишь дополнительную столешницу типа барной стойки, но свои функции выполняет. В тумбе острова для кухни можно разместить необходимую для готовки утварь, встроить духовку или даже сделать в нем своими руками что-то вроде винного шкафа.
Основные достоинства кухонных островов:
- Функциональность – все необходимое для готовки расположено в одном месте. Вам не нужно далеко отходить, и с любыми блюдами вы будете справляться быстрее.
- Удобство – к острову в кухне можно подойти с любой стороны.
- Дополнительные 25% к общей площади рабочей зоны.
- Эстетичный внешний вид и возможность зонирования пространства – именно поэтому кухонный остров часто используется в квартирах-студиях.

Размеры и форма
Для кухни островок в первую очередь выбирают по габаритам. Стандартными считаются модели со столешницей 180х90 либо 120х120 см и высотой в метр, минимально допустимыми – 120х90 и 85 см соответственно. Впрочем, высоту острова в кухне определяет рабочая поверхность основного гарнитура – ориентируйтесь на нее. И только барную столешницу допустимым будет приподнять над островом для кухни.
Глубину тоже можно подобрать под свои требования. Здесь важно, чтобы хозяйка могла легко дотянуться до предметов на противоположной стороне острова для кухни. А вот ширину диктует оставшаяся свободная площадь после расстановки мебели. Для просторных помещений ограничений нет, а в тесной кухне островок должен располагаться не ближе 1-1,5 м от других предметов.
От формы центрального стола зависит, как будет смотреться кухня остров в интерьере. А уж дизайнеры позаботились о том, чтобы у нас был выбор побогаче. Сегодня без труда можно найти или заказать острова на кухню любой формы:
- С барной стойкой.
Если на небольшую кухню островок умещается «со скрипом», есть смысл отказаться от традиционной обеденной зоны и трапезничать непосредственно за ним. Это достаточно распространенное решение для интерьера кухни с островом, которое позволяет сэкономить место. Дополнительная столешница по размеру меньше обычного стола, но за счет рабочей части оказывается довольно вместительной. Впрочем, такие кухонные островки чаще имеют двухуровневую поверхность, которая скрывает основную столешницу от посторонних глаз. - U-образный – наиболее эргономичный вариант кухни с островом, где все необходимое для работы находится на расстоянии вытянутой руки. Такие модели позволяют почти полностью отказаться от стандартного гарнитура, оставив лишь несколько полок на стене. Все прочее, что должно быть на кухне островок прекрасно скроет за своими фасадами.
- Г-образный – позволяет реализовать один из способов совмещения рабочей и обеденной зон. В этом случае островная кухня оказывается позади сидящих за столом – длинная угловая тумба превращается в спинку дивана, а уже перед ним устанавливается традиционный стол.

Кухонный островок на колесиках – оригинальное решение для тех, кто очень хочет, но никак не может разместить полноценный модуль на маленькой площади. Этот предмет тоже весьма функционален, имеет рабочую поверхность, встроенные системы хранения, но при необходимости легко задвигается в любой угол, если нужно освободить центр помещения. Мобильный кухонный островок на колесиках, в отличие от стационарных, чаще встречается в продаже и не требует изготовления под заказ.
Для собственного удобства стоит поселить на кухне островок с большим количеством открытых полок, чтобы вся необходимая утварь всегда была под рукой. Также не забудьте дополнить рабочее место подвесным рейлингом.
Дизайн
На самом деле выбирать дизайн для островка на кухне несложно – он должен гармонировать с основным комплектом и являться его логическим продолжением. При этом даже не имеет значения, какой стиль оформления вы выбрали. Кухонные островки прекрасно смотрятся как в ретро, так и в современном интерьере, если отвечают требованиям выбранного направления.
- Кантри. Здесь нужен максимально простой деревянный кухонный остров, окрашенный светлой краской, покрытый прозрачным лаком или даже с имитацией под старину, выполненной своими руками.
- Модерн. В такой интерьер прекрасно впишется островная кухня с плавными и лаконичными линиями, но без излишнего декора и лучше даже без ручек. Материалы в дизайне используются только натуральные, но вполне современные: стекло, металл.
- Классическая кухня с островом должна выглядеть добротно и даже монументально. Здесь вся без исключения мебель выполняется из массива дерева с резьбой, декоративными фризами и колоннами. Для острова в кухне обязательно выбирайте столешницу, имитирующую камень, а на мойку установите смеситель в ретро-дизайне цвета состаренной бронзы или латуни.
- Хай-тек – в этом стиле важны не столько формы, сколько содержание. На технологичной кухне островок должен быть донельзя нафарширован современной техникой и функциональными системами хранения. Основные материалы в его дизайне: блестящий металл и стекло.

- Минимализм – отличное решение для не слишком просторного помещения. В лаконичной кухне островок должен быть таким же минималистичным в плане декора. А вот с формой и цветом непременно стоит поэкспериментировать, чтобы интерьер смотрелся ярко и оригинально.
Кухня с островом – действительно удачное решение, позволяющее сделать работу хозяйки более комфортной и приятной. Так что если у вас есть в запасе пара-тройка метров свободной площади, обязательно закажите для своей кухни островок подходящего дизайна.
размеры, виды, выбор материалов, примеры дизайна, советы и отзывы
Каждый год дизайнеры придумывают что-то новое, предлагая владельцам квартир и домов интересные вариации обустройства пространства.
Сравнительно недавно появилась тенденция добавлять в помещение кухни новый и удобный элемент – кухонный остров, размер которого напрямую зависит от габаритов помещения.
Что представляет собой кухонный остров
Под этим загадочным названием скрывается большая функциональная зона, вынесенная в центр кухни. При желании, он может быть оснащен всей необходимой техникой, иметь рабочую поверхность, а также служить обеденным столом.
Идея была позаимствована у ресторанов, где повару требуется, не только вкусно, но и быстро приготовить блюдо. Объединение в одном месте разделочного стола, духовки, мойки и отделения для хранения посуды и продуктов очень помогает в этом. В результате маленькая площадь кухни используется рационально, а повару не приходится бегать от одной зоны к другой.
В обычном доме, где кухня имеет маленький размер, кухонный остров призван разрешать основную проблему — делать пространство более эргономичным. Для совсем маленьких помещений подобный вариант не подойдет, целесообразно его использовать тем, в чьем распоряжении есть кухня от 18–20 квадратных метров.
Особое внимание при планировании следует уделять форме и размеру кухонного острова.
Чем он так хорош
Раньше этот элемент кухни мы могли наблюдать лишь в американских фильмах и в ультрасовременных интерьерах селебрити. Острову в кухонной гарнитуре отводится роль рабочей зоны с плитой, мойкой и разделочной поверхностью. А также при скромных габаритах помещения на нем можно оборудовать обеденную зону. Она, как правило, представляет собой дополнительную столешницу в виде барной стойки. В нижней части кухонного острова можно разместить шкафчики для хранения посуды, небольшой винный отдел и встроенную духовку.
Преимущества
В зависимости от размера, у кухонного острова можно выделить следующие преимущества:
- Увеличение рабочей поверхности. В связи с тем, что заполняется центральная часть кухни, которая при стандартной планировке пустует, к рабочей области стола прибавляется около 25 %.
- Функциональность. Конструктивные особенности острова позволяют встроить в него всю необходимую бытовую технику, оборудовать зону для готовки и мойки.
А также при соответствующих размерах кухонный остров с обеденной зоной можно объединить. - Вместительность. При правильном проектировании появляются дополнительные отделения для хранения.
- Эстетичность. Кухня с островом смотрится эффектно и ухоженно, все на своих местах. Кроме того, этот элемент становится основным акцентом интерьера, своеобразной изюминкой.
- Зонирование пространства. В студийных помещениях или если кухня и столовая располагаются вместе, кухонный островок зрительно разграничит функциональные зоны.
- Возможность коллективного приготовления пищи. Благодаря функциональности и правильно подобранной форме, за одним столом одновременно могут готовить несколько человек.
Габариты
Основным параметром при выборе кухонного острова является размер помещения, для которого он подбирается. Стандартный размер со столешницей – 180 х 90 см, высота – 100 см, минимально допустимые значения – 120 х 90 см, высота – 85 см. Параметры высоты считаются изменяемыми, они, как правило, подбираются, под размер рабочей поверхности основного гарнитура.
А вот размер барной стойки с кухонным островом может отличаться, возможен вариант, когда первая несколько выше.
Глубина также является изменяемым параметром. В этом случае важно, чтобы хозяйка могла свободно дотягиваться до предметов, расположенных на противоположной стороне стола. А вот ширина зависит от того, сколько места останется после расстановки основной кухонной мебели.
В больших помещениях не существует каких-либо ограничений, а вот в тесной кухне должно соблюдаться правило – расстояние между островом и другим предметом интерьера не менее полутора метров. Иначе будет сложно передвигаться и неудобно готовить.
Форма
От формы основного стола зависит, насколько гармонично будет смотреться кухонный остров в интерьере. В магазинах представлен большой выбор, к тому же островок может быть изготовлен на заказ по индивидуальным размерам и в нужной форме:
- Многоуровневая система. Если кухня довольно маленькая и островок там умещается с трудом, то есть смысл отказаться от традиционного обеденного стола и кушать прямо за ним.
Это распространенное решение для небольших пространств, таким образом, можно сэкономить место. Если сделать кухонный остров с обеденным столом размером меньше стандартного, то за счет рабочей зоны он все равно будет вместительным. Впрочем, в этом случае чаще всего делают двухуровневую поверхность, скрывающую обеденную часть от посторонних глаз. - U-образная конструкция. Это более эргономичный вариант, в котором все необходимое располагается на расстоянии вытянутой руки. U-образная модель кухонного острова практически полностью заменяет стандартный гарнитур, в дополнение можно лишь повесить несколько полочек на стену. Все остальные необходимые элементы умещаются в одну конструкцию.
- Г-образный элемент. Еще один вариант удачного совмещения кухонного острова с обеденной зоной. В этой конструкции островная кухня остается сзади от сидящих за столом людей – угловая длинная тумба становится спинкой дивана, а перед ним устанавливается стол.
- Передвижной остров. Элемент кухни на колесиках – это оригинальный выход для тех, кто мечтает о кухонном острове, но размеры помещения не позволяют разместить там полноценный модуль.
Это тоже довольно функциональный вариант с рабочей зоной и встроенной системой хранения, но отличается он от предыдущих тем, что при необходимости, может быть, передвинут в угол или в центр кухни. Мобильный кухонный стол-остров гораздо проще найти в мебельном магазине, в то время как стационарный чаще всего изготавливается на заказ.
Дизайн кухонного острова
Выбрать оформление этого элемента не так сложно, как может показаться в самом начале. Основное правило – он должен гармонично сочетаться с гарнитуром и стать его логическим продолжением. А размеры кухонного гарнитура с пеналом и островом рассчитываются исходя только из габаритов кухонного пространства. При этом совершенно неважно, в каком стилистическом направлении оформлено помещение. Кухонный остров отлично смотрится и в ретро стиле, и в ультрасовременном интерьере, если отвечает требованиям выбранного направления.
Обустройство обеденной зоны своими руками
Отличное решение — соединить остров и зону для приема пищи.
Существует два способа, каждый из которых максимально комфортен и сохраняет эстетичный вид:
- Использование многоуровневых поверхностей. Такой способ зонирования очень эффективен. На одной из поверхностей размешается мелкая бытовая техника и оборудуется рабочая зона, вторая используется исключительно для поглощения еды. Высота этих поверхностей не должна сильно отличаться, достаточно всего лишь нескольких сантиметров.
- Кухонный островок с откидной столешницей, которая в случае прихода гостей может сыграть роль полноценного обеденного стола. При выборе такого варианта необходимо заранее позаботиться о достаточном свободном пространстве вокруг мебели и фурнитуре отличного качества, она должна выдерживать вес посуды и еды.
Вариант с барной стойкой
«Красивое, стильное и необычное оформление», — именно так говорят люди, выбирающие для своей кухни вариант островка с барной стойкой. Это отличное решение для тех, кому надоели традиционные посиделки и они без ума от стильных кафешек и беззаботных вечеринок.
В этом варианте предполагается два уровня: один стандартной высоты для приготовления еды, второй – высокий, для сидения на барных стульчиках.
Такой кухонный остров обычно оборудован мойкой и встроенным духовым шкафом, подвесом для посуды и массивной вытяжкой. Островок с барной стойкой идеально подходит для помещений в стиле лофт и тех, где основная идея – минимализм.
Дизайн со встроенной мойкой
Приверженцы практичности предпочитают вариант с мойкой. Это, безусловно, очень удобно – к раковине можно подойти с любой стороны, а продукты мыть, не отходя далеко от зоны для разделывания. Если в кухонный остров встроить еще и плиту, то хозяйка получает полностью оборудованную зону, вынесенную в центр помещения. Но воспроизвести это можно лишь в крупногабаритных кухнях.
Но есть у этого варианта и недостатки, они связаны с технической составляющей. Для оборудования такого островка необходимо переносить мойку, поэтому процесс будет сопровождаться дополнительными работами: подъемом уровня пола, прокладкой труб и обеспечением необходимого наклона сливной трубы, монтажом насоса, обеспечивающего правильную циркуляцию воды.
Все эти действия сопровождаются немалыми денежными тратами.
Помещение, оборудованное кухонным островком, размер которого не так уж и важен, является действительно отличным решением. Это помогает облегчить работу хозяйки и сделать ее более приятной и комфортной. Поэтому если у вас несколько метров свободной площади в запасе, то стоит обязательно рассмотреть такую возможность.
5 главных принципов обустройства — INMYROOM
Кухонный остров – мечта любой хозяйки. Считается, что он прерогатива больших кухонь и чаще всего располагается в центральной части комнаты, выступая дополнительной рабочей поверхностью и местом хранения. Сегодня рассказываем, какие принципы обустройства «острова» важно соблюдать, чтобы сделать кухню более функциональной.
Принцип №1: достаточная площадь кухни
Как показывает
практика, кухня с «островом» будет комфортной только в том случае, если ее
площадь – не менее 20 квадратных метров. Во-первых, достаточный метраж поможет
выдержать рекомендованное минимальное расстояние в 100 см между «островом» и мебелью,
расположенной вдоль стен.
Иначе хозяйке, еще и с посудой, продуктами в руках,
придется вырабатывать дополнительный навык – быстро вписываться в узкие
проходы. Такие сложности мало кому придутся по вкусу.
Во-вторых, стоит учитывать, что минимальная длина «острова» по законам эргономики – 120 см, ширина – 60 см, а высота – 85 см. Эти габариты будут гармонично выглядеть лишь в просторном помещении. Маленькая кухня с крупным «островом» визуально кажется еще теснее, чем без него.
Принцип №2: чем полезнее – тем лучше
Обустраивать на кухне «остров», чтобы использовать
его только в качестве стола или барной стойки – непозволительная роскошь! Более
рациональный шаг – расположить на столешнице несколько функциональных зон,
например:
- мойку и варочную панель с компактной рабочей зоной между ними;
- вместительную двухсекционную мойку или варочную поверхность и зону подготовки продуктов для последующей обработки;
- зону
приема пищи, оснащенную мелкой бытовой техникой: тостером, микроволновой
печью, кофеваркой.

Не упускайте возможность использовать пространство под столешницей. Здесь можно разместить встроенный мини-холодильник, посудомоечную машину, духовой шкаф, полочки для кухонной утвари, продуктов, коллекции кулинарных книг или вина. Более того, функциональным может стать и пространство над «островом». Декоративная полка-менсола, закрепленная на потолке, станет удобным местом для хранения нужных мелочей.
Принцип №3: золотое «правило треугольника»
Составляющие
так называемого рабочего треугольника хозяйки (холодильник, мойка и варочная
поверхность) должны находиться на минимальном расстоянии друг от друга. Удобнее
всего, если расстояние от раковины до холодильника – 120 – 210
см, до мойки – 120–180 см. На пути от одной
вершины треугольника к другой не должно быть препятствий: например, стульев,
столов, декоративных напольных композиций. Наличие «острова» помогает
создать идеальный рабочий треугольник. Как показали исследования, на кухне с
грамотно расположенным «островом» хозяйка проходит в день на 100–150 метров меньше.
Значит, и
меньше устает.
Принцип №4: гармония в единстве
Дизайнеры советуют устанавливать «остров», оформление которого вписывается в стилистику остальных элементов кухонного гарнитура. Использование похожих материалов, фурнитуры позволяет создать гармоничную композицию. «Остров» отделен от гарнитура свободным пространством, поэтому разумнее будет визуально объединить их – общим стилевым решением.
Принцип №5: максимум внимания к техническим вопросам
С технической стороны сложнее всего перенести мойку – проект требует согласования с государственными службами. Придется позаботиться о качественной гидроизоляции пола, а канализационную трубу диаметром 50 мм необходимо устанавливать с уклоном 3 см на каждые 100 см ее длины. В результате уровень пола на кухне может подняться на 10–15 см, соответственно, и полы в других комнатах тоже должны быть выровнены. Это связано с дополнительными расходами, но сэкономить можно, устанавливая «остров» на технический подиум.
Размещение на «острове»
электрической варочной панели, бытовых приборов и даже розеток не представляет
сложности для любого квалифицированного электрика.
Не забудьте и о вытяжке:
оптимальным вариантом для открытой «островной» кухни станет прибор с
производительностью 500–800 м3/ч и выводом воздуха в
вентиляционную шахту.
Кухонный остров и мойки: размеры и формы острова, эргономичность, особенности установки мойки, использование измельчителя
Кухонный остров – это рабочий модуль, независимый от остальной кухонной мебели и обычно располагающийся в центре комнаты. В такой планировке есть множество плюсов: она помогает увеличить полезную площадь кухни, открывает доступ к рабочей зоне со всех сторон, позволяет сразу всем членам семьи заниматься приготовлением вкусных блюд или другими домашними делами. К тому же на кухонном острове можно разместить не только зону приготовления или полки для хранения, что позволяет реализовать практически любые дизайнерские и технические решения. Так как же сделать остров функциональным, какие размеры и форма подойдут именно под ваше помещение и что нужно помнить при установке мойки?
Функциональность
- Для повышения функциональности кухонного острова можно перенести на него рабочую зону.
Как правило, столешница острова шире столешницы гарнитура, а значит, на ней будет удобнее обрабатывать продукты, готовить и сервировать блюда. - Сделать кухонный остров еще более эргономичным можно, интегрировав в него технику. Установите на остров духовой шкаф, варочную панель, посудомоечную машину, мойку. Над ними удачно разместится и вытяжка. Единственный нюанс – заранее продумайте перенесение всех коммуникаций к острову.
- Чтобы оптимизировать пространство в небольшом помещении, часть кухонного острова можно оставить под место для приема пищи. Для обустройства такой зоны понадобятся только дополнительные места для сидения. Чтобы принимать пищу было удобно, столешница должна выпирать за пределы шкафов на несколько сантиметров.
Размеры острова
Конечно, размер кухонного острова подбирается индивидуально под помещение. Наиболее популярные габариты – 180 х 90 сантиметров. 180 сантиметров – это 3 модуля стандартной ширины 60 сантиметров.
Такой длины достаточно для того, чтобы с удобством оборудовать места для техники и хранения посуды. Если вы хотите разместить и варочную поверхность, и посудомойку, и мойку, 180 сантиметров будет недостаточно, поскольку в этом случае может не остаться свободного места для готовки и хранения. Стандартная высота столешницы – 85–90 сантиметров, однако можно выбрать и другой вариант. Главное, чтобы высота кухонного острова была такой же, как и высота столешницы гарнитура.
Форма острова
Сегодня дизайнеры предлагают кухонные острова разных форм. Чтобы остров гармонично вписывался в помещение, обычно его выбирают по форме кухни. Так, в квадратном помещении удачно смотрится квадратный остров, в вытянутом – прямоугольный остров. Это традиционные формы, которые отлично подходят даже для небольших кухонь. В просторное помещение можно вписать и оригинальный полукруглый остров: он очень удобен, хоть и занимает достаточно много пространства. То же самое касается и овальных, треугольных, изогнутых, подковообразных, асимметричных островов.
Особенности установки мойки
Перенесение мойки из ранее закрепленного проектом места нужно согласовать с профильными службами. После того как все требуемые документы подписаны, необходимо организовать качественную гидроизоляцию пола под кухонным островом. Устанавливать канализационную трубу стоит с уклоном 3 сантиметра на каждые 100 сантиметров ее длины. Это может увеличить высоту пола на 10–15 сантиметров. При таком уклоне все загрязнения успешно смываются водой. Чтобы защитить сифон кухонного острова от срыва, можно установить дополнительный вентиляционный отвод трубой. Если же конструкция здания предполагает возможность проложить в полу только одну канализационную трубу, можно использовать воздушный клапан. Минимальная высота стояка с клапаном – 15 сантиметров.
Возможность использования измельчителя
Как и в случае со стандартной мойкой в кухонном гарнитуре, кухонный остров предполагает возможность установки в мойку измельчителя. Для монтажа важно учитывать наличие доступа к канализации и электричеству.
После закрепления диспоузера под мойкой нужно присоединить сливную трубу к измельчителю, а другой конец сливной трубы – к имеющейся канализации. Затем следует просверлить столешницу, установить выключатель вблизи от мойки и изолировать его силиконом. Важно, чтобы розетка была заземлена и защищена от влаги. После этого нужно проверить герметичность и работоспособность системы.
Рекомендуем почитать
размеры и варианты с обеденной зоной, дизайн со столом посередине своими руками, небольшой кухонный стол-остров с мойкой
С середины прошлого века дизайнеры начали задумываться об усовершенствовании рабочей зоны кухни. Однообразная зона приготовления, вытянутая вдоль стены, казалась уже неким пережитком, но и иного варианта размещения не было известно, пока не родилась идея вынести рабочую зону с плитой и мойкой на середину помещения. И в настоящее время идея создания кухни с островом считается одним из главных достижений в дизайне.
Кухонный остров пришел на кухни в квартиры из ресторанов, где повара готовят на столах, стоящих посредине, чтобы имелся подход с двух сторон.
Остров на кухне
Остров— это мебельная конструкция, стоящая отдельно, чаще всего посредине кухни, размер может быть любой.
Он может играть роль как основного, так и дополнительного рабочего пространства. Если он играет дополнительную роль, то устанавливается напротив основной рабочей зоны.
Несомненным достоинством конструкции является то, что её можно использовать по-разному: и в роли рабочей зоны, и в роли обеденной. Остров удобен и тем, что готовить на нем может сразу несколько человек, не мешая друг другу.
Она может играть роль барной стойки. В таком случае это будет двухуровневый остров, второй уровень у которого делают выше первого, он и будет барной стойкой, а более низкий, первый, непосредственно рабочей зоной. Популярен вариант широкого второго яруса, тогда место под ним можно использовать как удобную зону хранения для предметов и посуды, постоянно задействованных при готовке.
А про фурнитуру для барных стоек можно узнать тут.
Остров на кухне смотрится очень стильно и современно
Здесь нет четких требований к конструкции: это может быть длинная рабочая поверхность с многочисленным оборудованием, низкий шкаф со столешницей, мини-стойка и так далее. Остров хорошо вписывается во все стили интерьера.
Недостатков мало:
- могут возникнуть трудности с подводкой воды и водоотводом: придется поднять пол, чтобы обеспечить уклон труб, например, используя подиум для части кухни,
- уместно устанавливать остров только на кухнях больше 10 квадратных метров, на расстоянии более одного метра от остальной мебели, удобно для загородной летней кухни с верандой;
- если мойка находится на острове, то невозможно над ней разместить сушилку для посуды.
Лучше всего остров смотрится на квадратной кухне.
Как оборудовать
Оборудовать кухню остров не совсем сложно, но нужно учитывать особенности такой планировки
Остров может быть любой формы.
Наиболее традиционны прямоугольные и квадратные варианты. Но возможны и круглые, и овальные, и треугольные, и в форме трапеции. Это зависит от назначения острова, размера кухни и идеи дизайна кухни. Любой остров дает много возможностей как для установки оборудования, так и для хранения посуды.
В большом помещении
В большой кухне кухня остров смотрится великолепно
На просторной кухне устанавливают большой остров. Как правило, здесь оборудуют две рабочих поверхности, одна традиционная, вдоль стены, вторая параллельно ей на острове. В первой рабочей зоне остается плита, мойка, рабочая поверхность, на острове оборудуют разделочную и жарочную поверхности, вторую мойку. Обеденный стол может быть как продолжением рабочей зоны острова, так и устанавливаться отдельно. А про регулируемые ножки для кухни можно узнать здесь.
На маленькой кухне
На маленькой кухне остров часто не встретишь
На таких кухнях остров это основное рабочее пространство. Он может быть в нескольких вариантах:
- только рабочая зона, расположенная напротив мойки и плиты;
- рабочая поверхность, совмещенная с обеденной;
- рабочая зона с плитой и возможно с мойкой;
- рабочая зона с плитой, совмещенная с обеденной.

На маленьких кухнях удобны маленькие островки на колесах, которые даже можно при необходимости вывезти из кухни.
На совмещенной
Для совмещенной кухни остро часто служит границей между зонами
Если кухня и гостиная объединены, то остров чаще всего устанавливается на линии разделения двух пространств. При таком объединении форма и размер острова выбирается в соответствии с интерьером гостиной. При этом остров может быть зрительно разделен на две зоны, имеющие разный дизайн: сторона, обращенная к кухне, может выглядеть иначе, чем та, которая обращена к гостиной.Для зрительного разделения кухни и гостиной можно установить полуостров, соединенный с основной рабочей поверхностью.
Сейчас моден вариант совмещенная, называемый квартирой-студией. Такой вариант обычно предпочитает молодежь. В этом случае практически вся кухня может быть размещена на острове. На стене в зоне кухни устанавливаются неширокие стеллажи, на полках которых хранится чайная посуда, бокалы и фужеры, предметы декора, небольшое кухонное оборудование типа кофемашины, тостера и блендера.
На расстоянии от них устанавливают остров с рабочей зоной и всевозможным оборудованием. Сковороды, кастрюли, обеденную посуду убирают в шкафы острова. Интереснее и функциональнее будет совмещение острова с баром. Остров должен быть длинным, так как в таких молодежных квартирах часто бывают гости.
Для кухни подиума остров часто служит своеобразной сценой
С помощью острова можно совместить кухню не только с гостиной, но и с кабинетом, оборудовав остров с одной стороны в кухонном варианте, с другой как рабочий кабинетный стол. В этом случае выступ посередине должен быть достаточно высоким. Пространство под ним разделяется на две части: на стороне кухни используется для необходимых при готовке предметов, со стороны кабинета играет роль конторки.
Остров на кухне делает кухню более рациональной и интересной
Варианты
Кухня остров вариант от дизайнеров, смотрите видеосюжет:
- Остров может быть рабочей или столовой зоной, а может совмещать эти две функции: обеденная поверхность продолжает рабочую;
- устраивается вариант острова тумбы-трансформера.
Столовая
Столовая вместо острова – это привычный вариант, который часто используется в частных домах
Остров от простого обеденного стола отличают многочисленные ящики и шкафы, встроенные в его основание, его столешница сделана из материала, устойчивого к высоким температурам и механическому воздействию. Чаще остров больше и выше обеденного стола, и к нему нужны более высокие стулья или табуреты.
Рабочая зона
Рабочая зона на кухне острове возможна лишь при наличии пространства
Такой вариант острова является классическим, со сложной технологической формой. Чаще всего остров наполняют большим количеством оборудования для приготовления пищи, в этом случае обязательны варочная поверхность и раковина.
В зависимости от желания и возможности здесь могут быть установлены духовой шкаф, барбекю. На большой остров выносят стиральную и посудомоечную машину, оборудуют вторую раковину. Тут может быть разделочная поверхность из стойких к механическому воздействию материалов. Сейчас модно устанавливать еще и жарочную поверхность. Для планирования размещения всех элементов можно использовать проектирование кухни онлайн.
Тумба-трансформер
Тумба трансформер позволит сэкономить место на кухне
Такая конструкция может легко превращаться из рабочего варианта острова в обеденный или в остров-бар. На них устанавливают выдвигающиеся столешницы, которые при необходимости могут закрыть жарочные и разделочные поверхности, скрыть плиту и мойку.
На такой тумбе может подниматься часть поверхности для превращения в барную стойку. Обеденная зона устраивается по бокам от рабочей, и крылья столешницы в таком случае во время готовки опускаются вниз.
Создаем своими руками
Интересный вариант остров – посудный шкаф с ячейками
Размеры острова зависят от размера кухни, а его вид от выбранного стиля.
Поэтапное создание острова:
- сначала выполняется рисунок острова с учетом его формы и в соответствии с типом кухни;
- затем выполняется чертеж с учетом размеров острова;
- потом выбирается необходимый материал, он может быть разным, предположим, что детали будут из ДСП;
- теперь можно приступить к вырезанию частей острова: боковая панель центральной тумбы: 1 штука, боковых: 4 штуки, стенка задняя, 3 дверки, полки, столешница: 2 штуки, панель цоколя;
- две детали столешницы склеиваются в одну, чтобы она была толще, клей равномерно распределяют на одной из заготовок, потом на нее укладывают вторую и стягивают струбцинами, когда клей высохнет, выступившие остатки зачищают крупной шкуркой; но столешницу лучше приобрести в магазине;
- сначала собирается центральная стол-тумба, детали крепятся с использованием угловых стяжек на шурупах и винтах: в первую очередь задние и боковые, потом устанавливаются и плотно фиксируются полки, их делают не съемными, чтобы придать жесткость тумбе в целом;
- теперь к центральной крепятся боковые тумбы, соединяя их стенки, точно устанавливаются боковые стяжки;
- устанавливаются полочки в боковые тумбы;
- когда конструкция благодаря намертво установленным полочкам стала жесткой, устанавливаются панели первого цоколя, их закрепляют в вырезах боковых стенок, используя короткие бруски, шурупами с клеем;
- столешницу прикручивают сквозными шурупами с клеем на боковых стенках всех тумб;
- теперь остается декорировать остров слоистым пластиком или иным материалом;
- последним штрихом станет установка дверей на врезных шарнирных петлях, на каждую дверь крепят магнитные защелки и ручки.

Кухня остров делает кухню более современной
Фасады острова должны быть одинаковыми с фасадами гарнитура, но по цвету на полтона светлее или темнее.
На что обратить внимание
Невероятно красивая кухня остров
Установив остров, надо обратить внимание на следующие нюансы:
- если остров с плитой или жарочной поверхностью, над ним необходима вытяжка;
- важно продумать освещение: это может быть люстра, абажур над обеденной зоной или низко висящие лампы с плафонами над рабочей;
- в остров может быть вмонтировано мусорное ведро;
- кухонный остров можно изготовить как из дорогих сортов древесины, мрамора и гранита, так и из древесной плиты и пластика. А про кухонные раскладные овальные столы можно узнать в этой статье.
Остров может стать интересным акцентом для кухни
Если полки острова оборудованы подсветкой, то фасады должны иметь прозрачные или полупрозрачные дверки.
Оцените нашу фото галерею интерьеров с кухней островом:
Современные стили очень часто используют кухню остров
Хороша такая кухня смотрится в разнообразных этностилях
Остров на кухне может быть самой разной формы не обязательно в виде куба
Остров часто используется на элегантных кухнях в классическом стиле
Свободный стиль лофт с кухней остров смотрится необычно стильно
Делайте выбор: кухня остров это модное и стильное решение для современных кухонь
Остров – мечта любой хозяйки, но эта мечта осуществима из-за обилия вариантов как самого острова, так и способов его размещения. В других наших статьях вы можете ознакомится с выбором кухонного стола для маленькой кухни и как выбрать электрическую плиту для кухни.
форма, размер, стиль, расположение в интерьере кухни (33 фото)
Эргономика пространства на кухне требует, чтобы человек, занятый приготовлением пищи, тратил как можно меньше сил и времени на перемещения по комнате.
Выражение, что все должно быть под рукой, наиболее уместно для этого случая. Мойка, варочная панель, духовка, шкафчики с посудой и продукты питания должны располагаться так, чтобы выполнялось «правило треугольника». То есть ее владельцу, находящемуся в одной зоне и занятому чем-то одним, достаточно было сделать пару шагов, чтобы взять нужную вещь или выполнить какое-либо действие. Для комнат в малогабаритных квартирах расположение элементов кухонного гарнитура по сути дела одинаковое, можно лишь иногда поменять местами зоны, если это требуют обстоятельства. В более просторных помещениях дело обстоит несколько иначе, хозяйке нужно преодолевать несколько большие расстояния, поэтому концепция организации рабочей зоны на таких кухнях должна отличаться.
Кухонный остров становится все более популярной деталью обстановки современной кухни
Особенности дизайна островной кухни
Существует несколько способов, чтобы добиться желаемого результата. Одним из которых является обустройство в большой кухне так называемого «острова».
Это название получил отдельно стоящий большой стол, в который врезаны плита и мойка, и имеется достаточно места для разделочной поверхности.
Открытые полки кухонного острова позволяют держать необходимый кухонный инвентарь всегда под рукой
В идеале, чтобы все это совместить в одном большом элементе кухни, он должен иметь размеры 1200х1200 мм, но не обязательно строго придерживаться этих габаритов. Подобными столами пользовались для приготовления пищи еще в Старом Свете, идея также отлично прижилась и в Америке, где используют все, что позволяет достичь максимального комфорта.
Несмотря на свои маленькие размеры, этот островок отлично справляется с практической функцией
В наши дни возродил подобный дизайн кухонных гарнитуров дизайнер из Германии Отл Айхер. Он отождествил рабочее место на кухне с рабочим верстаком, к которому можно подступиться с любой стороны и выполнить требуемые действия. Этот принцип применяется практически во всех ресторанах, идею его применения в современных жилых помещениях развил и воплотил в жизнь этот талантливый человек в 1988 году.
«Верстак Айхера» стал вершиной «рабочего треугольника», объединившей все основные рабочие зоны, с его помощью был изменен статус этого помещения.
Большой остров на этой просторной кухне дает возможность готовить одновременно несколько сложных блюд
Как красиво вписать остров в интерьер кухни
Современные большие кухни сегодня трудно представить без подобного «острова», если этот большой функциональный стол отсутствует, то создается ощущение, что в комнате чего-то не хватает.
Бежевый остров с серой глянцевой столешницей гармонично вписался в интерьер этой просторной кухни, выполняя декоративную и практическую функции
Однако существует возможность применить эту идею на практике не только в дорогих апартаментах с огромными по нашим меркам кухнями и в загородных домах, но и в стандартных городских квартирах. Правда, это осуществимо только при проведении соответствующих ремонтно-строительных работ, заключающихся не в одной лишь перепланировке жилья.
Также требуется подведение дополнительных коммуникаций.
Чудо-остров от Pedini: готовить на нем легко и просто!
Поскольку в стандартной квартире даже после перепланировки установить «остров» с размерами 1200х1200 мм просто нереально, то от идеи разместить на одной поверхности рядом и мойку и печь придется отказаться. Обычно в таких случаях в столешницу врезают одну лишь варочную поверхность, поэтому необходимость в проведении к месту размещения «островка» воды и канализации отпадает.
Кухонный остров, совмещенный с обеденной зоной, — оригинальный пример эффективного использования пространства
Для обеспечения вентиляции на такой кухне необходимы специальные модели вытяжек. Существует два вида этих аппаратов по очистке воздуха, которые отличаются по способу монтажа. Первые крепятся к потолку и вентиляционные трубы проходят вверху под гипсокартонным или натяжным потолком.
Бытует мнение, что в идеале кухонный остров должен иметь размеры 1200х1200 мм, однако это всего лишь рекомендация, а не строгое требование
Установка второго вида вытяжек требует более сложного способа проведения воздуховода в полу, такие вытяжки крепятся к рабочей поверхности на жесткой высокой подставке, она имеет форму буквы «Г» и обладает очень оригинальным дизайном.
Однако для тех, кого в первую очередь заботит функциональность, предпочтительней подвесные вытяжки, поскольку они не занимают место на столешнице и не создают дополнительные неудобства при приготовлении пищи.
Для функционального кухонного острова важна не только рабочая поверхность, но и организация пространства под ней
Большое распространение в просторных кухнях квартир (обычно это совмещенные с гостиной помещения) получили так называемые «полуострова», которые представляет собой ответвление от основного ряда прямолинейных или L-образных кухонных гарнитуров. Действительно, «полуостров» требует значительно меньше пространства, выполняя те же функции. Также он делит комнату на зоны, что крайне необходимо при выборе подобной концепции дизайна данного помещения.
Кухонный полуостров от Pedini привлекает внимание не только функциональным разнообразием, но и плавностью линий
Производятся подобные кухни на заказ, естественно, стоимость их несколько выше, чем на обычную мебель, но и уровень этой продукции совершенно другой, он по всем показателям существенно выше.
Начиная от дизайна, который должен обеспечить гармонию и удобство, и заканчивая всеми материалами, которые используются для изготовления таких кухонных гарнитуров.
Фото идеи обустройства кухонного острова
Стильный обтекаемый дизайн кухонного острова гармонично вписывается в классический интерьер
В сочетании с барной стойкой кухонный остров становится еще более практичным и удобным
Традиционный и простой дизайн этого кухонного острова позволит ему с достоинством вписаться в интерьеры многих стилей
Массивный кухонный остров из натурального дерева кажется громоздким и неудобным, тем не менее он гармонично вписывается в соответствующий интерьер
«Белый верх, черный низ» — классическая идея оформления контрастного интерьера воплотилась в этом элегантном кухонном острове
Для обеспечения вентиляции на такой кухне необходимы специальные модели вытяжек, которые установлены в самом проблемном месте
Современные большие кухни сегодня трудно представить без подобного «острова», ведь его практичность не подвергается сомнениям
Уютная островная кухня в стиле прованс выигрывает за счет изящных предметов обстановки
Белый цвет в классическом интерьере — оптимальный вариант для ценителей безупречного вкуса и сияющей чистоты
Многоуровневый кухонный остров с барной стойкой выполняет еще и функцию зонирования пространства кухни
Устанавливать в кухонном острове мойку или нет — выбор остается за хозяевами
Стилизованный под старину кухонный остров все же остается современной многофункциональной частью интерьера
Среди множества вариантов оформления острова каждый непременно найдет совй: современная кухня-остров от Pedini
Кухня-остров – идеальное решение для студийного пространства
Для повышения функциональности острова дизайнеры используют разные методы, например, разноуровневую поверхность
Островная кухня в минималистичном духе справится со всеми задачами, несмотря на свою кажущуюся простоту
Для большего декоративного эффекта можно использовать оригинальные способы подсветки столешницы кухонного острова
Самостоятельно обустроив красивый и функциональный кухонный островок с обеденной зоной, есть возможность добиться уникальной планировки, максимально удобной не только для работы, но и для полноценного отдыха.
При помощи островка создается отделенная от стены рабочая зона
Небольшая по размерам кухонная площадь также может быть стильной и удобной, если выбрать оптимальный вариант интерьера и обустройства. Даже в слишком маленькой кухне в домах-хрущевках, конструкция вполне может послужить барной стойкой, зрительно увеличивающей размеры пространства. В последние годы планировка квартир включает в себя достаточно объёмные кухонные пространства, которые можно легко обустроить. С этой целью всё чаще используются современные и красивые кухонные острова с обеденной зоной.
При помощи островка создается отделенная от стены рабочая зона. Достаточно часто в остров включается обеденная зона, что предоставляет общее пространство, легко объединяющее всех домочадцев в одном помещении и придающее кухне оригинальный, необычный внешний вид. Тем не менее, такая непростая конструкция потребует соответствующей грамотной планировки размещения на стадии проведения работ по возведению дома.
Только в этом случае есть реальная возможность сэкономить денежные средства и максимально правильно организовать все необходимые коммуникации.
Маленькие кухонные острова (видео)
Особенности планировки кухонь с островом
Главной функцией проектирования кухни с островом – возможность сделать пространство в помещении максимально удобным и компактным. В понятие «остров» включается большой и отдельно стоящий стол с прямой рабочей поверхностью, мойкой и плитой.
Размеры комнаты
Островная планировка подходит не для любой кухни. Помещение должно быть просторным, но не слишком вытянутым в длину. Традиционные варианты современной конструкции можно максимально рационально размещать в кухонных помещениях, имеющих полезную площадь 15 м2 и более. Размеры устанавливаемой конструкции высчитывают в каждом конкретном случае строго индивидуально. В небольших по площади кухонных помещениях также вполне возможно устанавливать компактные по размерам, но достаточно функциональные конструкции.
Кроме всего перечисленного выше, полноценное, нормальное функционирование такой кухни требует подключения в удобных и подходящих местах воздухоотводных и канализационных труб, водопроводной системы, а также газовой трубы или специального силового электрокабеля для подключения варочной поверхности, что также ориентировано на большие свободные площади.
Достаточно часто в остров включается обеденная зона
Выбор мебели для островной кухни
Кухонная область, оснащенная островом, представляет собой Г-образную или П-образную расстановку гарнитура, который дополняется отдельной, устанавливаемой особняком зоной.
Расстояние между кухней и островом
Стандартное расстояние между островком и кухней составляет 1,2 м, а минимум — один метр. Меньшее пространство в значительной степени осложняет выдвигание ящиков или открывание шкафов, не говоря уже об использовании посудомоечной машины. При этом важно учитывать сами размеры островного гарнитура, длина которого в просторной кухне вполне может превышать пару метров.
Комфортными для человека являются кухонные острова с размерами 1,8х0,9 м, состоящие из трёх модулей со стандартной шириной 0,6 м. Нестандартные модули, как правило, стоят ощутимо дороже.
Стандартное расстояние между островком и кухней составляет 1,2 м, а минимум — один метр
Цветовые решения для кухонного острова с обеденной зоной
Цветовая гамма и декоративное решение устанавливаемого кухонного острова с обеденной зоной может быть совершенно различным:
- стилистическое оформление «Модерн» – отличается простыми прямыми формами;
- стилистическое оформление «Кантри» – дизайн характеризуется разнообразными декоративными плетениями, ситцевыми занавесками, а также выдвижными плетеными ящиками;
- стилистическое решение «Модерн» – особенностью дизайна является наличие в оформлении металла и стекла, а отличительным признаком становятся столешницы обтекаемой формы, стенки с максимально ровной поверхностью;
- стилистическое решение «Минимализм» – отличительным качеством таких моделей служит предпочтение максимальной функциональности, эргономики и простоты.
Все места, используемые для хранения пищевых продуктов, предметов посуды и бытовой техники, не обладают ручками.
Особенно популярен в современном дизайне стиль «Хай-тек», представленный металлическими поверхностями с особым глянцем или патинированием. Несмотря на то, что такие модели обладают общими чертами с классическим дизайном, присутствие округлых форм имеет схожесть с футуризмом.
Стилистическое оформление Модерн отличается простыми прямыми формами
Как выбрать островной обеденный стол для кухни
Остров представлен многофункциональным кухонным столом, имеющим напольные тумбы, и располагающимся на определенном расстоянии от остальной части гарнитура, предоставленной прямой, угловой или П-образной формой, что и делает его максимально удобным. Такая рабочая столешница дополнена местами для удобного хранения. Обеденный стол – центральный элемент интерьера кухни, поэтому он должен быть удобным в эксплуатации и хорошо дополняющим внешний вид всего стиля кухонного оформления.
Галерея: кухонные острова с обеденной зоной (51 фото)
Выбираем гарнитур для островной кухни
Гарнитуры для кухни-острова могут различаться внешним видом, функциональностью, а также основными размерами, поэтому при выборе нужно учитывать множество параметров, включая размеры помещения, стилистику его оформления и количество пользователей.
Угловая кухня-остров
Г-образные или угловые планировки кухонных гарнитуров, как правило, используются для размещения в помещении, выделенном под приготовление пищи. Именно такая компоновка систем хранения, а также тип рабочих поверхностей с установленными бытовыми приборами, позволяет получить достаточное количество свободного места даже в недостаточно просторных помещениях. С целью повышения эргономических показателей целесообразно устанавливать Г-образную модель в виде отдельного мебельного модуля на площади не меньше 9 м2.
Угловая кухня-остров
П-образная кухня с островом
Современная П-образная мебельная планировка с установленной бытовой техникой требует наличия достаточно просторного помещения или установки небольшого центрального модуля. С эргономической целью рекомендуется расположить островную модель с расстоянием не менее 1,2 м от основной конструкции приобретенного мебельного ансамбля. Необходимость такой установки обусловлена желанием получить максимально эффективное кухонное пространство, дополненное безопасным открыванием дверцы и выдвиганием ящичков, используемых в системе хранения.
П-образная кухня с островом
Прямая кухня с островом
Однорядная или прямая планировка кухонных гарнитуров – удобный вариант, позволяющий оставить максимальное количество свободного пространства в помещении. Прямолинейный способ расположения всех элементов, представленных рабочими поверхностями, системами хранения и установки бытовой техники способствует обеспечению мер безопасности, а также соблюдению правил эргономики в сочетании с высокими показателями комфорта и удобства эксплуатации.
Дизайн кухни с островом в частном доме (видео)
Варианты дизайна и оформления кухни с островом
Несмотря на разные варианты оформления кухонного помещения, важно помнить, что островная столешница должна быть представлена:
- мойкой;
- варочной панелью;
- зонированной рабочей частью с минимальной шириной на уровне 30-35 см;
- разделочным участком или зоной для подготовки продуктов;
- варочной поверхностью.
Также обязательно должна быть технологически продумана обеденная зона, где допускается устанавливать всю необходимую малогабаритную бытовую технику в виде кофе-машины, микроволновки и тостера.
При оформлении кухни с островом обязательно должна быть технологически продумана обеденная зона
Дизайн маленькой кухни с островом
В помещении достаточно маленькой кухни островной гарнитур является основным рабочим пространством, которое может быть представлено несколькими вариантами.
Чаще всего пространство имеет вид:
- исключительно рабочего пространства, расположенного напротив мойки и варочной поверхности;
- рабочей поверхности, совмещенной с обеденной зоной;
- рабочей зоны с варочной площадью и/или с мойкой;
- рабочей зоны с варочной площадью, совмещенной с обеденной зоной.
На слишком маленькой кухне максимально удобными являются небольшие по размерам островки, снабженные колесиками. Такие модели, при необходимости, вполне можно вывозить из кухонного помещения. Для экономии небольшого кухонного пространства вполне возможно воспользоваться современной раскладной мебелью.
В помещении достаточно маленькой кухни островной гарнитур является основным рабочим пространством
Кухня-гостиная с островом
В таких помещениях относительно небольшое, но невероятно функциональное пространство, располагающееся непосредственно напротив установленной кухонной рабочей зоны гарнитура, чаще всего в центральной части кухни, включает в себя стол.
Оснащение стола может быть очень разнообразным , но чаще всего такой предмет оснащается всевозможными полочками и ящиками, которые используются для хранения пищевых продуктов.
При необходимости, на обратной стороне вполне может оформляться небольшая по размерам обеденная зона, позволяющая расположиться на барных стульях двум или трём людям. Кухонный островок в столовой позволяет правильно разграничивать полезное пространство в двух помещениях, а с целью повышения эстетичности внешнего вида мойка или плита могут быть замаскированы расположенной рядом более высокой барной стойкой. В качестве дополнения, пространство помещения может разделяться при помощи разнообразной напольной отделки.
В этом случае отлично комбинируются ламинированная доска в столовой с керамической плиткой в помещении кухни. Кроме всего прочего, не следует пренебрегать грамотным освещением, в качестве которого чаще всего рассматриваются небольшие светильники с дополнительным размещением светодиодных источников света для подсвечивания полочек или шкафов.
Кухня-гостиная с островом
Оформление белой кухни с островом
Современные кухни всё чаще в последнее время выполнятся в светлых тонах. Кухня, выдержанная в белом цвете отличается привлекательным внешним видом и позволяет визуально сделать пространство более просторным. Кроме всего прочего, белая мебель, непосредственно остров, умывальник, а также светлые фартуки и фасады выглядят в таком дизайне очень объёмно. Удачным также считается классическое сочетание белой кухни с островом, выполненным в черном или темно-бордовом, а также кофейном цвете. Такое оформление может быть дополнено напольным покрытием в стиле «домино».
Островная кухня в классическом стиле
Классическая стилистика организации характеризуется преобладанием резных фасадов, каменной или мраморной столешницы, а также витражных стекол. Главную часть в таких моделях чаще всего украшают стильные арочные полочки, резные накладные элементы и балясины. Если в кухонном острове уже встроена варочная поверхность, то над этой частью в обязательном порядке устанавливается вытяжка каминного типа.
Современный кухонный остров является интересным и функциональным решением, которое хорошо работает в больших помещениях. Остров создает отделенную от стен рабочую зону, часто он также включает обеденную зону, предоставляя общее пространство для всех домочадцев и придавая кухне оригинальный внешний вид. Тем не менее эта непростая конструкция требует соответствующего планирования ее размещения еще на стадии строительства дома. Это позволит нам сэкономить много расходов, так как в этом случае организовать необходимые коммуникации гораздо проще и дешевле.
Не имеет никакого смысла строить остров в маленькой замкнутой кухне. Это решение сократит и так недостаточное место в маленькой комнате, кроме того, уменьшит декоративные качества всей комнаты.
Кухонные гарнитуры с островом – это решение для большой кухни, открытой для гостиной. Минимальное расстояние между островом и другой кухонной мебелью должно составлять 90 см. Однако, предпочтительно размещать его на расстоянии 110-120 см.
Соблюдать такие расстояния в небольших помещениях не удастся. Поэтому, кухонные острова пригодны только для помещений с площадью не менее 20 м².
Наилучшим образом такое решение проявляет себя в комбинированных помещениях, например, в кухне совмещенной со столовой и гостиной. В этом случае, остров будет визуально отделять зону приготовления пищи от зоны отдыха. Такое зонирование будет положительно влиять на привлекательность интерьера. Помните, однако, что между островом и другими элементами мебели должно быть не менее 80 см для прохода. Благодаря этому, вы сможете свободно перемещаться на кухне.
Размеры кухонного острова
При создании проекта кухонного острова вы должны, прежде всего, подумать об оборудовании и функциональности. Это факторы, которые в наибольшей степени влияют на размер острова. В зависимости от того, какое оборудование мы хотим включить в конструкцию и какие функции ей предоставить, меняется размер. Рассмотрим основные варианты оборудования и соответствующие им размеры.
Меньше всего места занимает остров, который имеет только столешницу, однако, он является наименее практичным. Чтобы разнообразить интерьер вам понадобится небольшой островок с функцией бара, где можно посидеть за чаем или кофе.
Чуть большее пространство займет остров с плитой. Сама плита имеет ширину не менее 60 см, а по ее сторонам должно быть, по крайней мере, 40 см столешницы. Это означает, что минимальная ширина кухонного острова с плитой составляет 140 см, а минимальная ширина кухни для него должна составлять 3 метра, при условии, что возле стены нет мебели.
Многофункциональный остров самый большой и наделен множеством полезных функций. Такая конструкция, конечно, занимает больше всего места.
Он может включать в себя:
- обеденную зону,
- барную стойку,
- плиту,
- раковину.
Мы должны добавить к ширине столешницы ширину раковины или барной стойки, или обеденной зоны. Барная стойка может находиться на некотором возвышении.
Таким образом, этот тип конструкции может поместиться только на кухне, площадь которой больше стандартной, такому сооружению необходимо большое пространство. Устройство такой конструкции на слишком маленькой кухне не отвечает практическим и эстетическим требованиям и будет неудобным и некрасивым.
- специальную мебель со всеми бытовыми приборами,
- монтаж мебели и техники,
- подведение труб и стоков, а также электричества.
Все эти операции могут увеличить бюджет на кухню на 50 %.
Все зависит от предполагаемой полезности сооружения. Простейшие острова, как отмечалось выше, оборудованы только столешницей. Единственным обязательным оборудованием в этом случае является освещение.
Тем не менее в домах, как правило, устраивают многофункциональный остров, оснащенный раковиной, плитой и другой встроенной малой бытовой техникой. В этом случае, необходимо запланировать подводку сантехники, электропроводки, возможную установку газа и систему вентиляции.![]()
Что нужно сделать еще на этапе строительства дома или ремонта квартиры?
На этапе строительства дома вы должны обеспечить подведение всех коммуникаций, которые потребует ваше оборудование.
Особенно важное значение имеют:
- Газопровод . Газопровод должен быть предусмотрен еще в строительном проекте, так как он требует согласования с газовой службой. Помните, что шланги подачи газа не могут быть закрыты. Это означает необходимость прокладки кабелей по потолку, что дает сомнительный декоративный эффект, конечно если только вы не создаете дизайн в стиле лофт, где все трубы и кабели являются украшением и изюминкой интерьера. Также потребуется установка канала вентиляции. Эта установка требует хорошего планирования на этапе разработки проекта. На практике оказывается, что подача газа в такую систему – это довольно дорогое удовольствие, поэтому многие делают выбор в пользу электрической плиты.
- Водопровод и канализация .
Многофункциональный остров может быть оснащен раковиной и посудомоечной машиной. Такой вариант требует установку системы водоснабжения и канализации. На этапе строительства дома необходимо определить точное местоположение сантехники. Это позволит нам провести водопроводные трубы и канализацию в полу. Следует помнить, что сливная труба должна быть выполнена с небольшим уклоном (от 4 до 5%). Иногда выясняется, что проведение труб в полу невозможно, так как он невысокий и не позволяет сделать необходимый уклон. - Вентиляция . Если вы планируете установить кухонную плиту, то вам потребуется хорошая система вентиляции. Стоит подумать об этом на этапе строительства. Над плитой должна быть эффективная вытяжка, с помощью которой загрязненный воздух должен быть поглощен и удален по вентиляционным каналам. Система вентиляции будет проходить по потолку. Тем не менее она не испортит интерьер, так как мы можем легко замаскировать трубы в подвесном потолке.
- Электричество не должно вызывать больших проблем, но мы должны также запланировать его подведение заранее.
Кухонные острова с плитой должны иметь две точки. Первая будет проходить вдоль потолка и поставлять электричество вытяжке, вторая должна проходить под полом в специальном пазу и обеспечивать все электрооборудование. Перед установкой надо определить мощность всех устройств. В некоторых случаях вам потребуется трехфазная проводка, которая обеспечивает достаточную мощность.
Что еще надо иметь в виду?
Каждый кухонный остров может быть элегантным и функциональным элементом интерьера. Тем не менее он должен быть сконструирован также с учетом основных принципов эргономики и индивидуальных потребностей.
В некоторых случаях будет уместен большой, многоцелевой остров с мини-баром. В других – обычный простой остров со столешницей и рабочей зоной. Поэтому, перед тем как принимать окончательное решение следует проанализировать ваши реальные потребности, оценить образ жизни, и выбрать наиболее подходящий вариант.
Стоит учитывать также стиль интерьера квартиры или дома и выбрать соответствующие материалы.
Кухонные островки являются центром кухни, привлекают внимание и оказывают большое влияние на интерьер комнаты. Поэтому стоит выбирать оптимальное решение, которое отвечает как нашим практическим потребностям, так и стилю помещения.
Ниже представлены различные варианты в разных стилях, как можно обустроить кухонный остров с фото.
Остров – это модное и функциональное решение для владельцев большой кухни. Он доступен с любой стороны столешницы и является дополнительным местом для шкафчиков и на открытых пространствах может визуально отделить кухню от жилой площади.
Современные отделочные материалы позволяют сделать конструкцию настоящим украшением гостиной, в этом вам поможет дерево и натуральный камень на столешнице.
Очень удобен остров с обеденной зоной, назначение которого подчеркивают подвесные элегантные светильники.
В большой кухне, которая используется большой семьей, остров является дополнительным, востребованным пространством для шкафов и столешницы.
При планировании вы должны также думать о том, из чего сделать пол вокруг конструкции. Площадь перед рабочим пространством целесообразно отделать керамической плиткой, а перед обеденной зоной – ламинатом или деревянными панелями.
Чтобы кухня хорошо выполняла свои задачи, она должна быть хорошо освещена. Полезными будут как традиционные лампы, так и LED освещение в виде лампочек и светодиодных полосок, которые крепятся на пьедесталах, карнизах или по краям мебели.
Лакированные фасады мебели и разноуровневые полки сделают конструкцию уникальной и очень декоративной.
Хорошим решением будет такая конструкция не только в современном интерьере, но и в классическом.
С середины прошлого века дизайнеры начали задумываться об усовершенствовании рабочей зоны кухни. Однообразная зона приготовления, вытянутая вдоль стены, казалась уже неким пережитком, но и иного варианта размещения не было известно, пока не родилась идея вынести рабочую зону с плитой и мойкой на середину помещения.
И в настоящее время идея создания кухни с островом считается одним из главных достижений в дизайне.
Кухонный остров пришел на кухни в квартиры из ресторанов, где повара готовят на столах, стоящих посредине, чтобы имелся подход с двух сторон.
Остров на кухне
Остров- это мебельная конструкция, стоящая отдельно, чаще всего посредине кухни, размер может быть любой.
Он может играть роль как основного, так и дополнительного рабочего пространства. Если он играет дополнительную роль, то устанавливается напротив основной рабочей зоны.
Несомненным достоинством конструкции является то, что её можно использовать по-разному: и в роли рабочей зоны, и в роли обеденной. Остров удобен и тем, что готовить на нем может сразу несколько человек, не мешая друг другу.
Она может играть роль барной стойки. В таком случае это будет двухуровневый остров, второй уровень у которого делают выше первого, он и будет барной стойкой, а более низкий, первый, непосредственно рабочей зоной.
Популярен вариант широкого второго яруса, тогда место под ним можно использовать как удобную зону хранения для предметов и посуды, постоянно задействованных при готовке. А про фурнитуру для барных стоек можно узнать .
Остров на кухне смотрится очень стильно и современно
Здесь нет четких требований к конструкции: это может быть длинная рабочая поверхность с многочисленным оборудованием, низкий шкаф со столешницей, мини-стойка и так далее. Остров хорошо вписывается во все стили интерьера.
Недостатков мало:
- могут возникнуть трудности с подводкой воды и водоотводом: придется поднять пол, чтобы обеспечить уклон труб, например, используя подиум для части кухни,
- уместно устанавливать остров только на кухнях больше 10 квадратных метров, на расстоянии более одного метра от остальной мебели, удобно для загородной ;
- если мойка находится на острове, то невозможно над ней разместить сушилку для посуды.
Лучше всего остров смотрится на квадратной кухне.
Как оборудовать
Оборудовать кухню остров не совсем сложно, но нужно учитывать особенности такой планировки
Остров может быть любой формы. Наиболее традиционны прямоугольные и квадратные варианты. Но возможны и круглые, и овальные, и треугольные, и в форме трапеции. Это зависит от назначения острова, размера кухни и . Любой остров дает много возможностей как для установки оборудования, так и для хранения посуды.
В большом помещении
В большой кухне кухня остров смотрится великолепно
На просторной кухне устанавливают большой остров. Как правило, здесь оборудуют две рабочих поверхности, одна традиционная, вдоль стены, вторая параллельно ей на острове. В первой рабочей зоне остается плита, мойка, рабочая поверхность, на острове оборудуют разделочную и жарочную поверхности, вторую мойку. Обеденный стол может быть как продолжением рабочей зоны острова, так и устанавливаться отдельно. А про регулируемые ножки для кухни можно узнать .
На маленькой кухне
На маленькой кухне остров часто не встретишь
На таких кухнях остров это основное рабочее пространство.
Он может быть в нескольких вариантах:
- только рабочая зона, расположенная напротив мойки и плиты;
- рабочая поверхность, совмещенная с обеденной;
- рабочая зона с плитой и возможно с мойкой;
- рабочая зона с плитой, совмещенная с обеденной.
На маленьких кухнях удобны маленькие островки на колесах, которые даже можно при необходимости вывезти из кухни.
На совмещенной
Для совмещенной кухни остро часто служит границей между зонами
Если кухня и гостиная объединены, то остров чаще всего устанавливается на линии разделения двух пространств. При таком объединении форма и размер острова выбирается в соответствии с интерьером гостиной. При этом остров может быть зрительно разделен на две зоны, имеющие разный дизайн: сторона, обращенная к кухне, может выглядеть иначе, чем та, которая обращена к гостиной.Для зрительного разделения кухни и гостиной можно установить полуостров, соединенный с основной рабочей поверхностью.
Тумба-трансформер
Тумба трансформер позволит сэкономить место на кухне
Такая конструкция может легко превращаться из рабочего варианта острова в обеденный или в остров-бар. На них устанавливают выдвигающиеся столешницы, которые при необходимости могут закрыть жарочные и разделочные поверхности, скрыть плиту и мойку. На такой тумбе может подниматься часть поверхности для превращения в барную стойку. Обеденная зона устраивается по бокам от рабочей, и крылья столешницы в таком случае во время готовки опускаются вниз.
Создаем своими руками
Интересный вариант остров – посудный шкаф с ячейками
Размеры острова зависят от размера кухни, а его вид от выбранного стиля.
Поэтапное создание острова:
- сначала выполняется рисунок острова с учетом его формы и в соответствии с типом кухни;
- затем выполняется чертеж с учетом размеров острова;
- потом выбирается необходимый материал, он может быть разным, предположим, что детали будут из ДСП;
- теперь можно приступить к вырезанию частей острова: боковая панель центральной тумбы: 1 штука, боковых: 4 штуки, стенка задняя, 3 дверки, полки, столешница: 2 штуки, панель цоколя;
- две детали столешницы склеиваются в одну, чтобы она была толще, клей равномерно распределяют на одной из заготовок, потом на нее укладывают вторую и стягивают струбцинами, когда клей высохнет, выступившие остатки зачищают крупной шкуркой; но столешницу лучше приобрести в магазине;
- сначала собирается центральная , детали крепятся с использованием угловых стяжек на шурупах и винтах: в первую очередь задние и боковые, потом устанавливаются и плотно фиксируются полки, их делают не съемными, чтобы придать жесткость тумбе в целом;
- теперь к центральной крепятся боковые тумбы, соединяя их стенки, точно устанавливаются боковые стяжки;
- устанавливаются полочки в боковые тумбы;
- когда конструкция благодаря намертво установленным полочкам стала жесткой, устанавливаются панели первого цоколя, их закрепляют в вырезах боковых стенок, используя короткие бруски, шурупами с клеем;
- столешницу прикручивают сквозными шурупами с клеем на боковых стенках всех тумб;
- теперь остается декорировать остров слоистым пластиком или иным материалом;
- последним штрихом станет установка дверей на врезных шарнирных петлях, на каждую дверь крепят магнитные защелки и ручки.

Кухня остров делает кухню более современной
Фасады острова должны быть одинаковыми с фасадами гарнитура, но по цвету на полтона светлее или темнее.
На что обратить внимание
Невероятно красивая кухня остров
Установив остров, надо обратить внимание на следующие нюансы:
- если остров с плитой или жарочной поверхностью, над ним необходима вытяжка;
- важно продумать освещение: это может быть люстра, абажур над обеденной зоной или низко висящие лампы с плафонами над рабочей;
- в остров может быть вмонтировано мусорное ведро;
- кухонный остров можно изготовить как из дорогих сортов древесины, мрамора и гранита, так и из древесной плиты и пластика. А про кухонные раскладные овальные столы можно узнать .
Остров может стать интересным акцентом для кухни
Если полки острова оборудованы подсветкой, то фасады должны иметь прозрачные или полупрозрачные дверки.
Современные стили очень часто используют кухню остров
Остров часто используется на элегантных кухнях в классическом стиле
Делайте выбор: кухня остров это модное и стильное решение для современных кухонь
Остров – мечта любой хозяйки, но эта мечта осуществима из-за обилия вариантов как самого острова, так и способов его размещения. В других наших статьях вы можете ознакомится с выбором и .
Рекомендуем также
Рекомендации по размеру кухонного острова — идея дизайна
Здесь мы делимся рекомендациями по размеру кухонного острова, в том числе о том, как определить размеры и выбрать правильный размер острова для вашего дизайна.
Кухонный остров — очень востребованная функция в доме. Он стал неотъемлемой частью кухни, где можно работать или готовить пищу, хранить технику или посуду и выполнять специальные задачи, такие как выпечка. Кроме того, кухонный остров также стал «социальным центром» дома, где семья и друзья могут собираться, общаться и вместе наслаждаться едой.
В то время как с точки зрения дизайна, он часто используется в качестве фокуса кухонного интерьера.Если вы планируете сделать этот многофункциональный встроенный элемент частью своего дома, важно знать и соблюдать необходимые измерения, рекомендуемые размеры и стандартные размеры при его проектировании. Обеспечение того, чтобы ваш кухонный остров соответствовал этим требованиям, помогает не только достичь приятной эстетики, но и хорошо спланировать планировку, которая помогает обеспечить плавный и эффективный рабочий процесс в пространстве.
Ниже мы даем вам полные инструкции по размеру кухонного острова, которые помогут вам спланировать и спроектировать лучший остров для вашего дома.
Как выбрать лучший размер кухонного островка
Несмотря на то, что существует список рекомендаций по стандартным размерам и размерам кухонного острова, существует множество вариантов его формы, размера и планировки.Есть несколько факторов, которые необходимо учитывать при выборе размера кухонного острова, который лучше всего подходит для вашего дома:
Размер вашей кухни
Фактор номер 1, который вы должны учитывать при выборе лучшего размера кухонного острова для вашего дома, — это площадь в квадратных футах — на самом деле, эти два параметра прямо пропорциональны друг другу.
Размер острова в первую очередь определяется расстоянием вокруг него, поэтому очевидно, что в больших комнатах можно разместить большие кухонные острова. Не во всех планировках можно разместить большие кухонные острова с креслами. В некоторых случаях компактный кухонный остров — это все, что вы можете разместить на небольшой кухне.
Масштаб соответствует размеру вашей кухни. Независимо от того, маленькая у вас кухня или большая, вы должны учитывать масштаб. Большой кухонный остров по понятным причинам будет смотреться более сбалансированно, если разместить его на большом пространстве. Даже если вы будете следовать стандартным размерам, если вы поместите крошечный остров в очень просторную кухню, он может выглядеть нелепо и казаться карликом.Напротив, большой остров может загромождать компактную кухню.
Планировка или форма вашей кухни
Размер вашего острова также зависит от планировки вашей кухни. Планировка вашей кухни — будь то U-образная, L-образная, камбуз или одностенная — поможет вам определить, будет ли добавление острова в ваше пространство эффективным или мешающим.
Остров скорее подойдет для кухонь П-образной и Г-образной формы. Однако они сработают и в одностенных планировках, при условии, что окружающее пространство достаточно велико.Камбузные кухни или те, которые состоят из двух рядов шкафов, обращенных друг к другу, образующих внутренний проход между ними, могут не вместить остров.
Также важно учитывать планировку и существующие условия вашей кухни, чтобы гарантировать, что все необходимые зазоры будут работать.
Назначение кухонного островка
Если в вашем доме есть роскошь пространства, еще одним основанием, которое вы можете использовать для размера вашего кухонного острова, является его предполагаемая функция.Как вы планируете использовать свой остров? Вы планируете использовать его как подготовительную станцию? Подготовительный остров может быть таким же простым, как дополнительное пустое пространство на столешнице, где вы можете нарезать овощи и подготовить другие ингредиенты для приготовления пищи.
Вам нужна встроенная раковина на острове для мытья рук и продуктов? Если вы увлекаетесь выпечкой, вы можете использовать ее и для замешивания теста. Вы также можете добавить блок мясника, если хотите.
Планируете ли вы добавить сидячие места? Бар-остров можно использовать для наслаждения простыми блюдами, закусками или даже чашечкой кофе.Если у вас дома нет специального домашнего офиса, кухонный остров с креслами также можно использовать в качестве рабочего места или учебной зоны.
Кухонный остров предлагает множество форм и функций. Если вы планируете использовать его в качестве конечного многофункционального устройства для всех перечисленных выше функций, вам может потребоваться выбрать кухонный остров большего размера для вашего дома.
Рекомендации по размеру кухонного острова Совет по дизайну : Если ширина вашей кухни менее 13 футов, мы не рекомендуем добавлять остров в пространство.Должно быть как минимум 10 футов, 3 метра или 120 дюймов открытого пространства, чтобы разместить остров, не создавая ощущения слишком тесного пространства.
Стандартный размер кухонного островка
● Какой ширины должен быть кухонный остров? Стандартная ширина кухонного острова составляет 2 фута или 24 дюйма или 60 сантиметров. Некоторые острова также имеют ширину 3 фута, но если вам нужно больше места для обеда или приготовления пищи, вы можете выбрать что-то немного больше. Если вы планируете добавить на остров варочную панель и раковину, вам понадобится кухонный остров шириной примерно 7 футов или 84 дюйма или 213 сантиметров.● Насколько глубоким должен быть кухонный остров? Стандартная глубина кухонного острова составляет 2 фута или 24 дюйма или 60 сантиметров.
● Какова стандартная высота кухонного острова? Стандартная высота кухонного острова составляет 91 сантиметр или 36 дюймов. Это рекомендуемая высота, если кухонный остров будет использоваться в основном для приготовления пищи. Если вы собираетесь использовать кухонный остров для обеда, увеличьте высоту до 106,68 см или 42 дюйма.
Как определить размеры кухонного островка
● Сколько места вам нужно между островом и прилавком? Зазоры и расстояния между предметами мебели и встроенными элементами важны при планировании интерьера, поскольку они помогают обеспечить эффективный рабочий процесс в пространстве.
Если вы не оставите достаточно места со всех сторон, вы не сможете легко перемещаться в пространстве.Между основной кухонной рабочей стойкой/шкафами и кухонным островом должно быть расстояние не менее одного метра или 40 дюймов. Это гарантирует, что вы можете легко ходить по острову, и в то же время позволяет как минимум двум людям комфортно использовать пространство одновременно (один человек все еще может идти за другим человеком, стоящим перед островом). Зазор в один метр также гарантирует, что все шкафы можно легко открыть без каких-либо ограничений и препятствий.
При рассмотрении рекомендаций по размеру кухонного острова для ограниченного пространства минимальное расстояние, на которое вы можете рассчитывать, составляет 90 сантиметров или 35 дюймов. Вы можете увеличить его до 80 сантиметров или 31 дюйма, только если вы планируете установить остров минимального размера (1 метр x 1 метр). С другой стороны, существует и такая вещь, как слишком большое расстояние между островом и основной кухонной стойкой.
Например, наличие свободного расстояния в 1,5 метра или 60 дюймов может показаться немного странным в пространстве, а также снизит эффективность рабочего процесса, поскольку вам придется сделать еще несколько шагов, чтобы перейти от одной рабочей станции к другой.
● Какое свободное пространство необходимо вокруг кухонного острова? Что касается требуемого расстояния между островом и основной кухонной стойкой, тот же стандарт применяется к размеру свободного пространства вокруг него (острова). Зазоры помогают с моделями движения, рабочими процессами, рабочими треугольниками и доступностью. Вокруг кухонного острова должно быть свободное пространство не менее одного метра или 40 дюймов, чтобы обеспечить удобную работу и движение транспорта в пространстве.
Если вы не сохраните окружающее пространство вашего острова пропорциональным размерам острова, вы рискуете создать неэффективный рабочий процесс в пространстве.Если зона зазора слишком велика или слишком мала, ее будет трудно передвигать.
Зазоры, превышающие 120 сантиметров, 1,2 метра или 47 дюймов, слишком велики и неудобны для пользователя.
Если ваша кухня имеет ограниченную площадь, наименьшее количество места, которое вы можете выделить, составляет 50 сантиметров или 19,685 дюймов на человека. Этого также достаточно, если сиденья будут использоваться в основном детьми. Все, что меньше 50 сантиметров, будет неудобно в использовании.
● Какой выступ должен быть у кухонного острова для сидения? Выступ — это часть кухонной столешницы, которая закрывает нижние шкафы и ящики.
Это предотвращает падение капель, крошек или других предметов со столешницы и повреждение шкафов под ней.Для кухонных островов свес — это часть столешницы, которая доходит до стороны, где расположены сиденья. Выступ идеально подходит, если вы хотите, чтобы на вашем острове была барная стойка, где вы можете насладиться легкими закусками и простыми блюдами.
Наличие достаточного места для выступа острова важно, потому что это гарантирует, что будет достаточно места для ног сидящего человека, а также гарантирует, что будет достаточно места, чтобы вы могли спрятать под него свои барные стулья.
Стандартный выступ столешницы кухонного острова составляет 30 сантиметров или 12 дюймов.Вы можете выбрать меньшее количество выступов, в зависимости от типа используемых барных стульев. Минимальный выступ для некоторых типов сидений составляет 20 сантиметров или 7,87 дюйма. Если у вас больше места, вы можете отрегулировать его до 45 сантиметров или 18 дюймов, чтобы вам не приходилось выдвигать табуретки далеко в проход, чтобы было больше места для коленей.
Однако наличие большего выступа означает, что вам понадобятся дополнительные опоры для кухонного острова, такие как ножки или L-образные кронштейны.
В дополнение к этим стандартам кухонные острова, изготовленные по индивидуальному заказу, могут иметь различные размеры выступа в зависимости от их толщины.Чем толще столешница, тем больше может быть неподдерживаемый выступ. Столешницы толщиной 12 мм могут иметь не более 20 сантиметров или 7,87 дюймов свободного выступа, в то время как конструкции толщиной 20 мм могут иметь выступ не более 25 сантиметров или 10 дюймов. Более толстые столешницы размером 30 мм могут иметь стандартный 30-сантиметровый или 12-дюймовый выступ без поддержки.
Средний размер кухонного островка
Вот рекомендации по размеру кухонного острова для средних размеров кухонного острова, которые вы можете использовать при проектировании своего дома: ● Средний размер кухонного острова. Средний размер кухонного острова составляет 1 метр x 2 метра (100 см x 200 см или 40 дюймов x 80 дюймов).
Как правило, это будет иметь окружающую зону зазора в 1 метр. На этом кухонном острове достаточно места для подготовительных работ, таких как резка, нарезка, очистка свежих продуктов и замешивание теста для выпечки. Кухонный остров среднего размера также может вместить небольшую 18-дюймовую раковину.
● Рекомендации по стандартным размерам кухонного острова. Несмотря на то, что существует средний размер кухонного острова, они бывают разных типовых размеров. Вот некоторые из его общих размеров:
Подготовительные островки без сидения
– 24 дюйма Ш x 24 дюйма Г x 36 дюймов В (60 см Д x см Г x 90 см В)
– 36 дюймов Ш x 24 дюйма Г x 36 дюймов В (90 см Д x 60 см Г x 90 см В) )
– 48 дюймов Ш x 24 дюйма Г x 36 дюймов В (120 см Д x 60 см Г x 90 см В)
– 60 дюймов Ш x 24 дюйма Г x 36 дюймов В (150 см Д x 60 см Г x 90 см В)
– 72 дюймы Ш x 24 дюйма Г x 36 дюймов В (180 см Г x 60 см Г x 90 см В)
– 84 дюйма Ш x 24 дюйма Г x 36 дюймов В (210 см Г x 60 см Г x 90 см В)
*высота может варьироваться до 42 дюймов (105 сантиметров)
Кухонный остров с барным стулом (включая выступ):
– 48 дюймов Ш x 36 дюймов Г x 36 дюймов В (120 см Д x 90 см Г x 90 см В)
– 72 дюйма Ш x 36 дюймов Г x 36 дюймов В (180 см Г x 90 см Г x 90 см В)
– 96 дюймов Ш x 36 дюймов Г x 36 дюймов В (240 см Г x 90 см Г x 90 см В)
– 120 дюймов Ш x 36 дюймов Г x 36 дюймов В (300 см Г x 90 см Г x 90 см В)
– 144 дюйма Ш x 36 дюймов Г x 36 дюймов В (360 см Г x 90 см Г x 90 см В)
*глубина может варьироваться от 8 дюймов до 18 дюймов (от 20 до 45 см)
*высота может варьироваться до 42 дюймов или 105 сантиметров
Минимальный размер кухонного острова
Несмотря на наличие среднего кухонного острова, вы все же можете найти способ втиснуть компактный остров в маленькую кухню, при условии соблюдения надлежащих зазоров.
Рекомендуемый минимальный размер кухонного острова составляет 1 метр х 1 метр или 40 дюймов х 40 дюймов. Несмотря на небольшой размер, этот кухонный остров по-прежнему обеспечивает практичное пространство для приготовления пищи. У вас также есть возможность интегрировать бытовую технику в макет. Все, что меньше минимального, может быть трудным для работы и менее функциональным.Типичный зазор для кухонного острова минимального размера составляет 80 сантиметров или 31 дюйм, что подходит только для одного пользователя пространства. Это минимально возможное расстояние для компактного кухонного острова, обеспечивающее безопасный и беспрепятственный проход.
Размеры кухонного острова в зависимости от количества посадочных мест
Одной из наиболее распространенных особенностей кухонного острова является место для барного стула. Многие домовладельцы рассматривают свои кухонные острова как социальный центр своего дома, где они могут наслаждаться простой едой вместе всей семьей и развлекать друзей.
Количество посадочных мест, которые вы планируете разместить на кухонном острове, также играет важную роль в определении его (кухонного острова) размера. Кухонный остров не подходит всем.Важно знать различные рекомендуемые размеры кухонного острова, чтобы каждый из пользователей мог свободно перемещаться, не сталкиваясь друг с другом во время обеда.
Как рассчитать размер кухонного острова на основе количества посадочных мест? Ранее в этой статье мы упоминали, что на каждого человека в кухонном острове должно быть отведено не менее 60 сантиметров или 24 дюймов, чтобы было достаточно места для локтей. Однако, используя кухонные острова со скамейками, можно разместить больше посетителей.
Имея в виду это измерение, давайте теперь посчитаем:
● Если вы проектируете и устанавливаете новый кухонный остров: чтобы получить правильную ширину кухонного острова, просто умножьте 60 сантиметров на количество человек, которых вы хотите разместить на кухонном острове.
Например, если вы хотите разместить трех человек, вам следует обратить внимание на ширину острова около 180 сантиметров (60 см x 3 человека = 180 см).
● Если у вас уже есть кухонный остров и вы хотите узнать, сколько посадочных мест вы можете в него поместить: Сначала измерьте существующий кухонный остров и обратите внимание на его ширину, а затем разделите ширину кухонного острова на 60 сантиметров.
Например, если у вас есть кухонный остров шириной 2,4 метра, это означает, что в него можно поставить 4 стула. ( 240 см / 60 см = 4 человека).
Стандартные размеры кухонного острова в зависимости от количества сидячих мест
Рекомендуемая общая глубина кухонного острова с сиденьями составляет 90 сантиметров или 36 дюймов. Проще говоря, это результирующее измерение, которое вы получите, если объединить стандартную глубину (60 см или 24 дюйма) и стандартный выступ (30 см или 12 дюймов).Вот список стандартных размеров кухонного острова в зависимости от количества сидячих мест:
Размер кухонного островка для 2 табуретов
Стандартный размер островка с двумя стульями: 120 см (48 дюймов) в ширину и 90 см в глубину (36 дюймов).
Размер кухонного островка для 3 табуретов
Стандартный размер острова с тремя табуретами: 180 см (72 дюйма) в ширину и 90 см в глубину (36 дюймов).Размер кухонного островка для 4 табуретов
Стандартный размер острова с четырьмя стульями: 240 см (96 дюймов) в ширину и 90 см в глубину (36 дюймов).Размер кухонного островка для 6 табуретов
Стандартный размер острова с шестью стульями: 360 см (144 дюйма) в ширину и 90 см в глубину (36 дюймов).Чтобы узнать больше о похожих дизайнах, посетите нашу страницу о типах кухонных островов.
Размеры, стандартный размер и многое другое
Добавление кухонного острова – отличный способ увеличить рабочую поверхность и место для хранения, придав вашему кухонному пространству приятную атмосферу. Тем не менее, вам нужно установить правильный для вашей кухни, чтобы пространство не выглядело загроможденным и неорганизованным. Вот некоторые рекомендации по размеру кухонного острова, которые вы должны учитывать, прежде чем принять решение о его покупке.
Средний размер кухонного острова составляет 80 x 40 дюймов с зазором от 36 до 42 дюймов по всему периметру. Стандартная высота вашего острова должна составлять 36 дюймов — ее можно увеличить до 42 дюймов, если вы используете остров для приема пищи. Если вы думаете только о барной стойке для завтрака, убедитесь, что барные стулья имеют зазор не менее двух футов.
Конечно, точные размеры зависят от размера и формы вашей кухни. Всегда проверяйте строительные нормы и правила и стандарты дизайна кухни, установленные Национальной ассоциацией кухонь и бань.
Мгновенно оцените стоимость вашего ремонта…
…или не торопитесь, чтобы персонализировать десятки вариантов, чтобы превратить ваш дом в дом вашей мечты.
Остров для небольшой кухни В маленькой кухне огромный остров будет смотреться нелепо.
Будет небезопасно, тесно и неудобно. Минимальный рекомендуемый размер составляет около 40 х 40 дюймов. Такой остров, хотя и небольшой, даст вам достаточно места для вашей встроенной кухонной техники, а также для рабочей поверхности.
Вы можете установить продуманные аксессуары, такие как потолочные подвесные светильники с вытяжкой, что сэкономит много места и улучшит внешний вид вашей кухни.
Обратите внимание: если ширина вашей кухни меньше 13 футов, лучше вообще не иметь встроенного острова! Вместо этого вы можете выбрать полуостров. Здесь вам не нужно иметь дополнительное пространство на четвертой стороне.
А как насчет разделочных блоков, движущихся островов и тележек? Эти альтернативы не только эффектны и недороги, чем стационарный остров, но также предлагают функциональность.Некоторые функции включают дополнительное хранилище, рабочие пространства и мобильность.
Подробнее: Финансирование реконструкции кухни и варианты кредита
Размер кухонного острова для планировки камбуза Многие домовладельцы также выбирают камбузную кухню из-за ее уровня комфорта и простоты использования.
Когда эта конструкция хорошо выполнена, вы можете установить остров таким образом, чтобы у вас был быстрый и легкий доступ ко всем рабочим поверхностям, шкафам и приборам.
Теперь, если зазор превышает 4 фута в глубину, вам, возможно, придется довольно много путешествовать между рабочими местами острова и другими областями.Это, в свою очередь, сделает ваши задачи утомительными и трудными.
Подробнее: Советы по планировке кухни с одной стеной от опытного архитектора
Правый зазор для обеспечения безопасности и функциональностиПри установке острова пространство между двумя рабочими зонами называется зоной зазора. Идеальная ширина этой зоны зазора должна составлять примерно 3 фута. Только тогда вы сможете безопасно и свободно передвигаться по кухне.
Правильный размер зазора также определяет ваш уровень безопасности.Вам нужно проверить, можете ли вы легко открыть все дверцы, ящики и духовки без каких-либо препятствий.
Если места недостаточно и двери открыты, можно споткнуться, упасть и пораниться.
Примечание. Минимальное допустимое расстояние между двумя полностью выдвинутыми ящиками составляет 3 фута.
Размеры кухонного острова и материал столешницыРазмер острова также зависит от материала столешницы. Поскольку большинство домовладельцев предпочитают создавать верхнюю часть острова из одной чистой плиты материала, это может быть ограничением.
Каменные столешницы, такие как столешницы из кварца или гранита, поставляются в виде плит размером от 3 м x 1,4 м до 3,2 м x 1,5 м. Если вы планируете остров больше 3 м, вы должны быть готовы к швам на столешнице. Имейте в виду, что это может испортить внешний вид вашего острова и вашей кухни.
Достаточное расстояние между островком и стойкой Между столешницей/шкафами и полкой должен быть зазор не менее 40 дюймов или один метр. Такое расстояние обеспечивает легкое передвижение по острову.
Более того, он позволяет двум людям комфортно разъезжаться по острову. И самое главное, это гарантирует, что все ящики и шкафы могут легко открываться.
С другой стороны, вам не нужно слишком много места между островом и прилавком. Такая кухня начнет выглядеть несогласованной.
Тоже не практичная планировка кухни, с точки зрения рабочего треугольника и эффективности. Кухня должна иметь прекрасный баланс между островом и прогулочным пространством.
Навес для кухонного островаНависающая столешница на кухонном островке служит импровизированным столом для неформальных приемов пищи и посиделок.Здесь тоже нужны правильные размеры.
Имейте в виду, что минимальный выступ для такого типа сидений составляет 20 см (8 дюймов), а максимальный — 30 см (12 дюймов). Стандартная мера составляет около 25 см или 10 дюймов. Вашему острову потребуются ножки или L-образные кронштейны в качестве опор на случай, если вы выберете глубокий выступ.
Толщина вашей столешницы пропорционально определяет предел свеса. Чем толще столешница, тем больше может быть неподдерживаемый свес.Вот краткое руководство для вас:
- Столешница толщиной 12 мм подходит для выступа 200 мм
- Рабочая поверхность толщиной 20 мм подходит для выступа 250 мм
- Рабочая поверхность толщиной 30 мм подходит для выступа 300 мм Количество мест на человека для сидения за кухонным островом
Если вы хотите рассчитать место для барного стула на кухонном острове, рекомендуется выделить 60 см или 24 дюйма пространства на человека.Это дает достаточно места для локтей, чтобы удобно сидеть. Если ваши дети — единственные люди, которые сидят на острове, вы можете пойти немного меньше на 50 см.
Общая площадь кухонного островаКогда дело доходит до принятия решения об общей площади вашего острова — мантра очень проста: измерьте, задокументируйте и рассчитайте.
Сложите вместе все размеры, которые мы обсуждали до сих пор, и вы получите хорошее представление о том, сколько места вам нужно для размещения острова.Возьмем пример.Предположим, вы оставляете 650 мм для глубины кухонного шкафа, 1000 мм для прохода, 900 мм для острова (шкаф + навес) и 1000 мм для прохода — в сумме получается 3550 мм.
Это означает, что вам нужно 3550 мм свободного пространства для острова с одним рядом шкафов на вашей кухне. Размер увеличивается до 4200 мм примерно для двух рядов шкафов.
Если вы сомневаетесь, проконсультируйтесь с вашим подрядчиком по кухне. И не бойтесь задавать вопросы.
Заключительные мыслиЕсли вы хотите установить кухонный остров, он должен быть хорошо спланирован, чтобы обеспечить максимальную функциональность и комфорт вашему кухонному пространству.Мало того, что остров должен обеспечивать надлежащий транспортный поток, он также должен предлагать подходящее рабочее пространство для обеда, приготовления пищи и хранения.

Незапланированный, неподходящего размера и непропорциональный остров может вызывать разочарование и дискомфорт. Вы должны учитывать приведенные выше рекомендации по размеру кухонного острова и убедиться, что у вас достаточно места для отличной планировки кухни.
Автор Аниша Датта.1 июня 2019 г.
Мастер слов и опытный разработчик контента, Аниша Дутта в настоящее время пишет для Kukun.
Она проявляет живой интерес и знания о последних, будущих тенденциях в области домашнего дизайна и пытается обогатить домовладельцев вдохновляющими советами и рекомендациями по благоустройству дома, разбивая жаргон на простые слова. Заядлый читатель и странник по привычке, она писатель по страсти.Насколько большим он должен быть?
Кухонный остров — прекрасное дополнение к любой кухне, которое обеспечивает стиль, эффективность и дополнительное удобство. Но есть много планирования, которое уходит на поиск правильного размера, чтобы он соответствовал пространству, с которым вы работаете.Мы углубимся во все, что вам нужно знать о размере и имплантации вашего кухонного острова.
Насколько большим должен быть кухонный остров? Стандартный кухонный остров имеет длину около 4 футов и глубину 3 фута.
Это позволяет ему быть прочным и полезным, но уютным для небольшой кухни. Для правильной работы остров должен находиться на расстоянии 30 дюймов от вашего рабочего места. Чтобы определить размер кухонного острова, учитывайте размер кухни, ее основное назначение и общую планировку кухни. Пока вы планируете свою идеальную кухню, определение идеального размера острова может оказаться непростой задачей. Ключевым моментом будет найти идеальную посадку, чтобы она соответствовала вашим потребностям, не занимая при этом всю кухню.
Планирование кухонного острова
Кухни и техника, в которой они размещены, сильно изменились за эти годы. Кухня модернизировалась внутри и снаружи от электроники и техники до встроенных конструкций и общей планировки.
Кухонные острова очень функциональны и эстетически прекрасно дополняют вашу кухню. Фактор доступности сам по себе является привлекательной причиной для того, чтобы иметь остров на вашей кухне.

Наличие рабочей поверхности с четырьмя доступными сторонами является огромным преимуществом, независимо от того, готовите ли вы в одиночку, готовите вместе с группой или готовитесь к обеду по соседству.
Когда вы начнете планировать кухонный остров, вам нужно будет рассмотреть основную причину или причины, по которым вы хотите, чтобы он был там.
вещей, для которых можно использовать кухонный остров
Рассмотрите каждую функцию и то, как вы планируете ее использовать. Все эти мозговые штурмы и воображение помогут вам выбрать правильный размер и стиль острова.
Приготовление пищи:
Если ваш прилавок занят сервировкой блюд или едой, ожидающей приготовления, здорово иметь дополнительное место на острове. Вы также можете рассмотреть возможность установки электрических розеток, чтобы вы могли использовать небольшие приборы на острове, пока счетчик используется в других целях.
Вы также можете приобрести остров со встроенной разделочной доской в дополнение к большой разделочной доске, на которую вы давно присматривались, но для которой не нашлось места.
Кухонные острова — отличный способ иметь дополнительное пространство для всех потребностей в приготовлении пищи.Итак, обсуждая размеры, подумайте о том, сколько места у вас есть на ваших прилавках сейчас и насколько больше было бы полезно для ваших повседневных задач.
Кулинария:
Кухонный остров иногда изображают как небольшую конструкцию, которая предлагает дополнительное рабочее пространство, но не более того.Эти острова могут функционировать как полноценная кухня самостоятельно. Вы можете выбрать встроенную духовку, раковину, мини-холодильник под ним или любой другой прибор, который поместится в пространстве острова.
Если вы планируете использовать остров для дополнительных задач по приготовлению пищи, вам необходимо учитывать размер печи, которую вы хотите установить. Высота будет еще одним соображением, потому что вы также захотите иметь вентиляционное отверстие над плитой.
Уборка после еды:
Иногда приятно держать все отдельно после обильного обеда.
Кухонные острова — отличное место, чтобы спрятать всю грязную посуду перед тем, как сполоснуть ее и загрузить в посудомоечную машину, если ваши столы заняты остатками, ожидающими остывания.Четыре стороны доступа также делают остров идеальным для уборки, так как он будет удобен для вашего мусора, мусоропровода и раковины. Если вы планируете, что это в основном дополнительное пространство для помощи в таких задачах, как эта
Рестораны и развлечения:
№В зависимости от выбранной вами высоты это также может обеспечить дополнительное место для приема пищи.А доступность кухонного острова идеально подходит для обеда или большой встречи. Эти планировки потребуют много места вокруг себя, чтобы гости могли свободно передвигаться и обслуживать себя. В идеале вы хотите, чтобы стойка выходила за пределы острова, чтобы люди могли удобно сидеть.
Для людей, которые любят развлекаться, кухонные острова могут стать огромным преимуществом и повысить ценность вашей кухни.

Кухонный остров разных размеров
После того, как вы решите, какие ключевые функции вы хотите получить от своего кухонного острова, вы сможете лучше спланировать размер.План этажа и квадратные метры являются ключевыми в этих планах.
Если ширина вашей кухни не превышает 12-13 футов, встроенный кухонный остров может не подойти. Будет сложно разместить в этом пространстве подходящую структуру, оставив себе достаточно места для перемещения по ней. В этом случае портативный остров может стать идеальным решением. Чуть позже мы добавим больше портативных островов.
Средний размер кухонного острова составляет около 3 х 6 футов. Это, конечно, может стать больше или меньше в зависимости от пространства, с которым вы работаете.Но этот размер обычно предлагает структурный размер, который вам нужен для вашего острова, и при этом не мешает кухне и ее потоку.
Выход из комнаты между островом и прилавком
Вы хотите, чтобы расстояние между кухонным островом и столешницами или кухонными стенами составляло не менее 30 дюймов.
В идеале это должно быть больше 40 дюймов, но можно и 30. Всегда сверяйтесь с любыми строительными нормами и правилами безопасности в вашем районе, когда делаете какие-либо реконструкции или дополнения такого масштаба.Помните, что вы не просто хотите иметь достаточно места для прогулок по острову. Вы хотите иметь возможность функционировать.
Если на кухне обычно работает более одного повара, вам нужно убедиться, что вы можете легко пройти друг мимо друга и не приближаться к каким-либо горячим приборам, которые могут стоять по обе стороны от вас.
Да, кухонные острова часто считаются привлекательными из-за их эстетической привлекательности, но помните, что это функциональная часть вашей кухни.А размер и то, сколько места вы оставите по краям, либо облегчит, либо усложнит вашу жизнь на кухне.
Огромным недостатком конструкции, который может быть допущен при проектировании и установке кухонного острова, может быть нехватка места для открывания вещей .
Подумайте о дверцах вашего холодильника, посудомоечной машины и любых других бытовых приборов, дверцы которых требуют места для открывания.Последнее, что вы хотите, это установить свой прекрасный новый остров, только чтобы понять, что вы можете открыть свою посудомоечную машину только наполовину.
Один из лучших ответов на вопрос, насколько большим может быть кухонный остров, всегда будет связан с тем, сколько места вы оставляете вокруг него. Технически ваш кухонный остров может быть настолько большим, насколько вы хотите , если вы можете обеспечить минимум 30 дюймов свободного пространства со всех сторон , и вы можете открыть все двери и бытовую технику.
Кухонный остров Высота
Стандартные кухонные острова обычно имеют высоту около 36 дюймов.Если вы планируете использовать остров для обеденных целей, вам следует рассмотреть возможность увеличения его до 42-45 дюймов. И он может быть даже выше, если вы хотите, чтобы он также служил своего рода барной стойкой для завтрака с более высокими табуретами.

Если вы планируете подвесные кухонные светильники, опускающиеся вниз по центру кухни, вам также следует подумать о том, как они будут смотреться с выбранной высотой островка. Это будет исключительно в эстетических целях, но может выглядеть немного не так, если высота слишком непропорциональна.
В целях безопасности, если вы планируете добавить духовку, вам также следует выяснить, какой размер кухонной или вытяжной вытяжки вам понадобится.
Высота кухонного острова и высота стойки
Одна вещь, которую часто упускают из виду, — это гармония кухни. Может показаться, что это не имеет большого значения, но то, что ваш кухонный остров соответствует высоте ваших столешниц, может быть особенно приятным для глаз, а также облегчать перемещение продуктов и расходных материалов от прилавка к прилавку.
Если вы собираетесь использовать остров для обеда, высота может не совпадать, так как вам понадобится более высокая столешница для острова. Но когда вы можете сохранить остров на той же высоте, что и столешницы, это добавляет кухне приятное ощущение единообразия.

В других случаях вы, возможно, ищете что-то яркое. Если вы хотите, чтобы этот остров выделялся как фокус кухни, обычно намеренно делают его выше стойки с островом, чтобы привлечь к нему внимание.
Различные стили кухонных островков
Существует множество различных типов и стилей кухонных островов на выбор.Тип также напрямую повлияет на размер, который вы в конечном итоге выберете. Вот несколько популярных вариантов, которые следует учитывать при покупках и исследованиях.
Кухонный остров со встроенными разделочными досками
Кухонный остров, который можно использовать как станцию для нарезки и нарезки кубиками, отлично подходит для компактной кухни. Если ваша главная цель для острова — помочь с эффективностью, и вы любите нарезать свежие продукты с каждым приемом пищи, это идеальный стиль.
Эти островки, как правило, представляют собой наполовину разделочную доску, наполовину прилавок.Плата будет съемной для очистки, но приятно иметь ее надежно закрепленной и готовой к работе.

Кухонный остров с полным подключением к электричеству и воде
Если вы планируете полностью использовать свой остров и установить на нем дополнительные устройства, вам потребуется много места. Как правило, они должны быть большими, и вокруг них должно быть много места.
Вам также нужно быть готовым к большим счетам за электричество и воду, если вы планируете удвоить количество раковин и/или любых электроприборов на острове.
Для просторной кухни и для домовладельцев, которые любят готовить изысканные блюда, это идеальный вариант. По сути, это вторая кухня для вашей обычной бытовой техники. Благодаря этому варианту вы также получите дополнительное пространство на столешнице, но в основном это будет лучше всего для тех, у кого есть серьезные потребности в приготовлении пищи.
Если вы выберете этот вариант, вам также следует подумать о том, где на острове у вас есть определенные бытовые приборы. Рассмотрите пространство вокруг вашей кухни и место, где уже есть техника, и планируйте исходя из этого.
По словам Боба Вила,«Ваш остров должен быть не менее девяти футов в длину, чтобы на нем можно было удобно разместить как раковину, так и кухонную плиту. Семь футов необходимы либо для варочной панели, либо для раковины. Если у вас достаточно места, вы даже можете установить посудомоечную машину рядом с раковиной, чтобы максимально повысить эффективность уборки».
(Источник: Bobvila.com )
Двухъярусный кухонный островКак упоминалось ранее, вы можете захотеть, чтобы кухонный остров служил еще одной обеденной зоной.Забавный обходной путь для выяснения того, какая высота будет хороша для использования как зоны приготовления пищи, так и обеденной зоны, — это установить двухъярусный кухонный остров.
У вас все еще может быть более короткая рабочая поверхность для всех ваших потребностей в приготовлении пищи, подготовке и уборке, в то время как у вас также есть приподнятый второй ярус для обеда с парой барных стульев, чтобы сопровождать его.

Они не только служат двойной цели; они также выглядят потрясающе . Это красивая центральная часть вашей кухни, которая предложит множество применений.Они отлично подходят для кухонь среднего размера, которым нужны дополнительные функции, но при этом они не занимают слишком много места.
Многие также предусмотрят дополнительные места для хранения или шкафы внизу, что делает его идеальным для кухни с площадью пола, но может потребоваться дополнительная функциональность и место для хранения.
Другим параметром, который следует учитывать при выборе этого стиля, является то, насколько стойка нависает над обеденной зоной.
Минимальный выступ, который вам понадобится для этого типа зоны отдыха, составляет около 8 дюймов.Где-то от 8-10 дюймов кажется стандартным. Вы не хотите нависать более чем на 12 дюймов; в противном случае вам потребуется установить дополнительные опоры.
Шкафы и столешницы
Для небольших кухонь некоторые отличные компактные острова предлагают дополнительные шкафы и места для хранения под ними с простой чистой столешницей.
Они могут поместиться практически на любой кухне, а также предлагают огромную дополнительную ценность пространства.Если у вас не так много места для работы, и вам очень нужно дополнительное место для хранения, эти маленькие островки идеально вам подойдут.
У вас будет хорошее свободное пространство наверху, которое идеально подходит для приготовления пищи, не занимая лишнего лишнего места. Они, как правило, бывают самых разных размеров, которые должны вместить большинство кухонных помещений.
Переносной кухонный остров
Некоторым людям нравится идея и внешний вид кухонного острова, но они могут быть не готовы окунуться в создание встроенной модели. Здесь в игру вступают переносные кухонные острова. Они также, как правило, меньше по размеру, поскольку предназначены для переноски.
Таким образом, маленькие кухни и люди, которые не могут построить постоянный кухонный остров, полюбят прочный маленький переносной остров. Это золотая середина между простой кухонной тележкой и встроенным кухонным островом.
Многие по-прежнему предлагают отличные функции, такие как дополнительные места для хранения, полки, варианты разделочной доски и красивые варианты столешницы.
У некоторых будут колеса, как у тележки, которую вы можете зафиксировать и иметь легкий доступ для перемещения по кухне.Другие будут стоять так, как если бы это был стол в центре кухни, со многими из тех же взглядов и функций, что и кухонный остров, но с дополнительным преимуществом возможности его перемещения.
Веселый совет: Кухни, использующие планировку «рабочий треугольник», всегда будут наиболее эффективными. Это означает, что ваша раковина, холодильник и духовка имеют треугольную форму и их легко перемещать туда-сюда. Вам нужно достаточно места, чтобы он был безопасным и предлагал достаточно места для открывания дверей и места для передвижения.Подумайте об этом, когда будете устанавливать полностью электрический и/или водяной кухонный остров.
Поиск кухонного острова наилучшего размера для вашей кухни
№Чтобы найти кухонный остров наилучшего размера для вашей кухни, вам нужно сделать больше, чем просто измерить.
Подумайте, для чего вы хотите его использовать, какой вид вы хотите получить на своей кухне и, самое главное, сколько места вы используете.Кухонный остров — отличный способ сэкономить место и сделать вашу кухню более функциональной и эффективной, но вокруг него должно быть достаточно места, чтобы вы могли использовать все четыре стороны.
Стандартные размеры кухонного острова с сиденьями (4 схемы)
Каковы стандартные размеры кухонного острова? Это зависит от количества мест. Мы исследовали и собрали индивидуальные иллюстрации, на которых указаны все ключевые параметры размера острова. Проверь их.
Если вы устанавливаете кухонный остров, вам нужно обратить внимание на несколько параметров. Эти размеры включают высоту острова и расстояние со всех сторон.Вы не хотите, чтобы ваши кухонные проходы были слишком узкими.С этой целью мы составили 4 диаграммы размеров кухонного острова, на которых указаны правильные расстояния и высота для островов, рассчитанных на 2, 3, 4 и 6 человек.
Посмотрите на четыре диаграммы ниже.Стандартные размеры:
- Высота острова: 42″
- Глубина острова: 42″ (с раковиной). Островки можно сделать более узкими без раковины.
- Длина. См. ниже. Длина – это основной параметр, который зависит от количества мест.
- Место на табурет: 24″
- Табурет кухонный высота: 30″
- Поверхность кухонного острова до низа надостровного светильника (т. е. низа подвесного светильника): 36″
- Расстояние между подвесными светильниками: 30″
- Высота от сиденья табурета до поверхности кухонного острова: 12″
- Расстояние от торца стула до конца островка: 9″
- Безопасное расстояние со всех сторон острова: минимум 36″. Вам нужно как минимум 30 дюймов от любой точки острова до любой другой точки, такой как шкаф, стена, прибор, чтобы у вас было достаточно места для передвижения.
- Прилавок к верхним шкафам: 18″
- Высота стойки: 36 дюймов (обратите внимание, что высота стандартного кухонного острова выше, чем высота стойки).

Стандартная длина 2-местного острова составляет 6 футов. Стандартная глубина с раковиной 42″.
3-местный остров с раковинойСтандартная длина 3-местного острова составляет 8 футов. Стандартная глубина с раковиной 42″.
4-местный остров с раковинойСтандартная длина 4-местного острова составляет 10 футов.Стандартная глубина с раковиной 42″.
6-местный остров с раковинойСтандартная длина 6-местного острова составляет 14 футов. Глубина 42″.
Домашние подарки Stratosphere…
Примите участие в розыгрыше Мелкая бытовая техника
Лучшие мелкие бытовые приборы включают блендер Vitamix, кастрюлю быстрого приготовления, соковыжималку, кухонный комбайн, настольный миксер и кофеварку Keurig.
Бесплатные раскраски и книги для детей
Бесплатно скачать и распечатать.

Загрузите тысячи пользовательских раскрасок и головоломок для своих детей.
Получите БЕСПЛАТНУЮ программу для 3D-дизайна кухни!
Попробуйте нашу замечательную программу для дизайна кухни, которую вы можете использовать полностью онлайн, а затем загрузите свои творения.
Стандартные размеры кухонного острова (с фотографиями) — Модернизированный дом
Кухонные острова стали более популярными, чем когда-либо, с появлением домов открытой планировки, и их размеры варьируются от дома к дому. Минимальные стандартные размеры кухонного острова составляют 2 фута 4 фута с зазором 36–42 дюйма с каждой стороны, но размеры варьируются в зависимости от стиля и материалов.Между длиной, шириной, высотой и функциями давайте взглянем на стандартные размеры кухонного острова.
Наличие острова, пожалуй, одна из самых желанных особенностей новой кухни. К сожалению, установка острова не всегда возможна, и его установка может сделать вашу кухню гораздо менее функциональной.
Хотя они красивы и практичны, кухонные острова просто не вписываются в каждое пространство.Прежде чем вы решите, что эта функция подходит для вашей кухни, вы должны рассмотреть ряд стандартных размеров кухонного острова.Чтобы остров работал на вашей кухне, вы должны учитывать не только размер острова, но и пространство вокруг него. В частности, ваш встроенный кухонный остров должен иметь минимальный размер четыре фута на два фута, с зазором примерно от 36 до 42 дюймов со всех сторон.
Когда речь заходит о размерах кухонного острова, необходимо следовать нескольким четким рекомендациям. Продолжайте читать, чтобы узнать, как спланировать кухонный остров.
Хотите переделать свою кухню?
Получите бесплатные расценки без обязательств от профессиональных подрядчиков рядом с вами.
НАЙТИ МЕСТНЫХ ПОДРЯДЧИКОВ
Каков стандартный размер кухонного острова?
Кухонные острова бывают разных типов, форм и размеров.
Минимальный размер встроенного кухонного острова составляет 24 дюйма в ширину и 48 дюймов в длину или 2 фута в ширину и 4 фута в длину. Если у вас нет места для размещения минимального размера, вы всегда можете рассмотреть переносной остров или кухонный стол.Вообще говоря, лучше иметь прямоугольный кухонный остров, чем квадратный.Первый более привлекателен визуально и прост в обслуживании, так как трудно добраться до центра прилавка, который значительно шире для уборки.
С учетом сказанного, вот некоторые размеры кухонного острова, которые вы можете использовать в качестве ориентира при планировании кухонного пространства:
1. Ширина
Большинство кухонных островов имеют базовый шкаф глубиной 24 или 30 дюймов. Чтобы расширить остров, два шкафа глубиной 24 дюйма можно поставить спиной к спине.Для большей глубины можно комбинировать шкафы глубиной 24 и 30 дюймов. В общем, идеальная ширина острова составляет примерно пять футов.
Сиденья также увеличивают ширину кухонного острова, о чем мы поговорим позже.

2. Длина
Длина кухонного острова зависит от ряда факторов. Однако самым важным фактором является то, что у вас должно быть достаточно свободного пространства со всех сторон острова (подробнее об этом ниже). Рекомендуется начать в обратном порядке, сначала определив зазоры, а затем вычислив фактическую длину кухонного острова.
Островная столешница также является основным фактором, определяющим общую длину. Плиты столешницы бывают разных размеров в зависимости от материала, который влияет на размеры острова. В то время как для большого острова потребуется несколько плит, тем, кто хочет бесшовную столешницу, придется выбрать остров меньшего размера, чем материал.
Хотя чем больше, тем лучше, вам не нужен остров, переполняющий пространство. Поэтому рекомендуется ограничить длину кухонного острова от 10 до 11 футов.
3. Высота
Когда дело доходит до высоты вашего кухонного острова, нужно учитывать гораздо меньше переменных. Средняя высота столешницы составляет 36 дюймов над полом, что также является наиболее распространенной высотой для кухонных островов.
Тем не менее, место для сидения с приподнятым баром на острове может иметь высоту 42 дюйма, а высота нижнего стола может составлять около 30 дюймов. Если вы хотите, чтобы ваш остров превратился в столовую, подумайте о том, чтобы увеличить его до 42 дюймов.Габаритные размеры кухонного островка
Прежде чем мы углубимся в размеры зазоров вокруг кухонного острова, давайте установим несколько основных правил.Во-первых, столешницы обычно нависают над шкафами примерно на 1–1,5 дюйма, в результате чего край столешницы выходит за дверцу шкафа и ручки шкафа. Размеры просвета относятся к минимальным требованиям от одной стороны до другой, будь то ручка холодильника или край столешницы.
Проходы вокруг вашего кухонного острова должны быть шириной не менее 42 дюймов, в то время как 48 дюймов обычно оптимальны. Проход с посудомоечной машиной должен быть шириной не менее 45 дюймов, чтобы люди могли пройти через него с открытой дверью.Для проходов с холодильником требуется расстояние не менее 36 дюймов от острова до ручки холодильника.

Эти расстояния обеспечивают беспрепятственный проезд транспорта по вашему кухонному острову. Это также позволяет кому-то стоять на острове и при этом иметь достаточно места, чтобы кто-то мог пройти позади него. Наконец, габариты кухонного острова гарантируют, что все шкафы и ящики можно открывать без каких-либо ограничений.
Размеры кухонного острова с сиденьями
Кухонный остров, хотя и не является обязательным, является очень популярным дизайнерским решением, особенно в семьях.Если вы хотите, чтобы на вашем острове было место для сидения, у вас должен быть выступ. Никаких «если», «и» или «но». Минимальная глубина выступа кухонного острова с сидячими местами составляет 12 дюймов. Тем не менее, глубина 15 или 18 дюймов будет наиболее удобным выбором. Свесы более 12 дюймов обычно требуют поддержки столешницы.
Хотя некоторые материалы для столешниц могут работать с большими выступами без необходимости поддержки, лучше проконсультироваться с производителем, прежде чем принимать окончательные решения.
Если столешнице нужна дополнительная опора, это можно сделать с помощью стальных стержней, стенок-пони или декоративных ножек под столешницей.Что касается посадочных мест, вы должны учитывать ширину не менее 24 дюймов на человека. Это обеспечит достаточно места для локтей, чтобы удобно сидеть и не чувствовать, что вы стоите плечом к плечу с человеком рядом с вами. Однако, если у вас есть место, 30-дюймовая ширина на человека создаст гораздо более удобное сидение, особенно если сиденья будут в основном использоваться детьми.
Совет: Если у вас недостаточно места для необходимого количества сидений вдоль задней части кухонного острова, вы можете установить L-образный выступ. Это позволит разместиться с двух сторон острова.
Стандартные размеры кухонного острова в зависимости от количества сидячих мест
Рекомендуемая общая глубина кухонного острова с сидячими местами составляет 36 дюймов. Это измерение основано на сочетании стандартной глубины кухонного острова (24 дюйма) и стандартного выступа (12 дюймов).
.
С учетом сказанного, вот некоторые стандартные рекомендации по размеру кухонного острова, основанные на количестве сидячих мест:Размер кухонного островка для 2 табуретов
Стандартный размер кухонного острова с двумя табуретами составляет 48 дюймов в ширину и 36 дюймов в глубину.
Размер кухонного островка для 3 табуретов
Стандартный размер кухонного острова с тремя табуретами составляет 72 дюйма в ширину и 36 дюймов в глубину.
Размер кухонного островка для 4 табуретов
Стандартный размер кухонного острова, оснащенного четырьмя табуретами, составляет 96 дюймов в ширину и 36 дюймов в глубину.
Размер кухонного островка для 6 табуретов
Стандартный размер кухонного острова с шестью стульями составляет 144 дюйма в ширину и 36 дюймов в глубину.
Особенности кухонного островка
После того, как вы определили высоту и размер кухонного островка, вам нужно подумать о своих конкретных желаниях и потребностях.
Вы любите готовить, хотите иметь дополнительное место для хранения или сидения? Кухонные острова часто могут быть многоцелевыми, все зависит от того, что вы хотите. Вот некоторые факторы, которые следует учитывать при разработке дизайна кухонного острова:1.Организация
Кухонный остров должен дополнять общую функциональность пространства. Поэтому убедитесь, что вы спроектировали его с учетом ваших потребностей в хранении, с полками, ящиками и шкафами для хранения всех предметов, которые вы будете использовать на острове. Из практических соображений рассмотрите возможность установки выдвижного выдвижного ящика для мусора.
Кроме того, важно иметь в виду, что добавление таких приборов, как раковина, микроволновая печь, посудомоечная машина или плита, увеличит функциональность острова, но резко сократит место для хранения.
2. Схема устройства
Планировка «рабочий треугольник», в которой холодильник, раковина и варочная панель располагаются треугольником для обеспечения максимальной эффективности и доступа, очень популярна в дизайне кухни.
Каждая сторона треугольника должна быть примерно от четырех до девяти футов, а все три стороны равны между 13 и 26 футами.Если вы решите разместить варочную панель на своем острове, важно, чтобы расположение холодильника и раковины было тщательно спланировано относительно нее.Кроме того, убедитесь, что у вас достаточно свободного пространства вокруг острова, учитывая размеры варочной панели, раковины и холодильника.
3. Приготовление пищи и варочная панель
Очень желательна газовая или электрическая плита над кухонным островом, а также место рядом с ней для приготовления пищи. Это поможет сделать приготовление пищи проще и веселее для домашних поваров.
Однако размещение варочной панели на кухонном острове — не всегда лучшая идея, особенно если рядом с ней есть места для сидения.Помимо того, что это пожароопасно, смазка может разбрызгиваться на тех, кто сидит рядом. Не говоря уже о том, что вам также нужно будет установить вытяжку над варочной панелью, что может выглядеть неприглядно.

Если вы все же хотите установить варочную панель на своем острове, вы должны предусмотреть рабочее пространство с обеих сторон. В частности, вам понадобится как минимум 15 дюймов свободного пространства с одной стороны и 12 дюймов с другой.
4. Раковины
Очень часто кухонные острова используются в качестве зоны уборки.Раковины обычного размера имеют ширину примерно от 24 до 36 дюймов и требуют прилегающей площадки для посадки, которая составляет примерно 24 дюйма с одной стороны и 18 дюймов с другой. Принимая во внимание, что подготовительные раковины обычно имеют ширину ближе к 18 дюймам и требуют такого же места для посадки.
Независимо от того, какую раковину вы собираетесь установить на кухонном острове, рассмотрите возможность создания рядом с ней 36-дюймовой прозрачной зоны для приготовления пищи.
Хотите переделать свою кухню?
Получите бесплатные расценки без обязательств от профессиональных подрядчиков рядом с вами.

НАЙТИ МЕСТНЫХ ПОДРЯДЧИКОВ
5. Барная стойка
Кухонные острова с барной стойкой отлично подходят для семейного общения и могут особенно пригодиться во время приема гостей. Убедитесь, что высота вашего острова соответствует высоте барных стульев, которые вы будете использовать, независимо от того, стандартного размера они или изготовлены на заказ.
В средней барной стойке для завтрака вы должны с комфортом разместить три стула с расстоянием не менее 24 дюймов между каждым.Кроме того, эти барные стулья должны иметь возможность выдвигаться до удобной степени, поэтому оставьте зазор в два-три фута на этой стороне кухонного острова.
Связанные руководства
Джессика Стоун
Джессика считает себя энтузиастом обустройства дома и дизайна. Она выросла в окружении постоянных проектов по благоустройству дома и обязана большей частью того, что она знает, помощи отцу в ремонте дома ее детства. Будучи жительницей Лос-Анджелеса, Джессика тратит много времени на поиски своего следующего проекта «сделай сам» и делится своей любовью к домашнему дизайну.

Недавно опубликовано
ссылка на список отзыва холодильников Samsung: был ли отозван ваш холодильник? ссылка на Как долго живут заборы? (Винил, Дерево, Железо, Алюминий)Как определить, достаточно ли велика ваша кухня для острова (Руководство по размерам) — сделай сам с Кристин
Совершите покупку по ссылке!*
Оптимальные размеры кухонного островка (минимум необходимого пространства и многое другое!)Острова — это невероятные многоцелевые элементы, которые являются популярным выбором для любой современной кухни.Но они требуют места. Итак, если вы хотите добавить эту культовую функцию в свою новую кухню, сколько места вам нужно, чтобы построить кухонный остров?
Хотя кухонные острова могут быть меньше, минимальный базовый размер составляет 24 дюйма в ширину и 40 дюймов в длину (32 дюйма на 48 дюймов, включая сиденья). Кроме того, между островом и другими шкафами/предметами должен быть зазор не менее 36 дюймов.
Кухонный остров полностью настраиваемый! Так что варианты безграничны.
Это означает, что ваша кухня должна быть не менее 9 футов в ширину и 10 футов в длину, чтобы вместить небольшой, но все же практичный остров.Нет никаких сомнений в том, что острова могут быть отличным дополнением к кухням, но великая трагедия заключается в том, что не каждая кухня достаточно велика для острова.
Без достаточного пространства для передвижения остров может создать ощущение клаустрофобии на вашей кухне, и даже если вы выберете меньший остров, он может оказаться настолько маленьким, что не будет служить той практической цели, для которой он предназначен. Итак, читайте дальше, чтобы узнать, как определить, достаточно ли велика ваша кухня для острова.
Начинаем!
Быстрый переход: Рекомендации по размеру кухонного острова- Сколько места вам нужно для кухонного острова?
- Каков стандартный размер кухонного острова с местами для сидения?
- Как сделать кухонный остров из базовых шкафов
- Варианты, когда ваша кухня слишком мала для острова
- Заключительные мысли
- Статьи по теме кухонного острова
В то время как средний кухонный остров будет занимать только около 40 на 80 дюймов фактической площади пола, вам нужно иметь достаточно места для перемещения по кухне, особенно если в вашем доме живет много людей.

Поскольку кухня является центральным, часто используемым помещением для всех в доме, остров может сделать ваше когда-то уютное пространство очень, очень тесным. Общее эмпирическое правило заключается в том, что ваш кухонный остров должен занимать где-то между десятой и четырнадцатой частью вашей общей площади.
Другими словами, если вы хотите построить остров среднего размера 40 на 80 дюймов, размер вашей кухни должен быть не менее 220 квадратных футов.
Вот некоторые из стандартных размеров вместе с примерами изображений, которые помогут вам спланировать идеальный размер кухонного острова.
Вот пример кухни размером 10 на 10 футов с островом.Стандартные размеры на острове кухни Размеры Минимальный проход вокруг острова 36 дюймов 36 дюймов Минимальная глубина столешницы для сидения (зависания) 8 дюймов Минимальное расстояние Между холодильником и остров 36 дюймов 9 Средняя ширина для кухонного острова 40 дюймов 40 дюймов Средняя кухня Остров на 10 × 10 кухни 36 дюймов в ширину х 40 дюймов длиной Средняя кухня размер острова для кухни 12×12 42 дюйма в ширину и 48 дюймов в длину 
Поскольку стандартная ширина базового шкафа составляет 24 дюйма, минимальная ширина вашего кухонного острова составляет 24 дюйма (и с этой стороны не будет места для сидения, потому что не будет выступа).
Длина вашего острова может быть полностью адаптирована к вашему пространству, поскольку вы можете комбинировать любое количество базовых шкафов различной ширины, чтобы получить идеальную длину для вашего пространства.
Например, наша кухня имеет ширину 12 футов и длину 13 футов, поэтому мы сделали кухонный остров длиной 78 дюймов.(Он состоит из 18-дюймового нижнего шкафа для мусора, 36-дюймового нижнего шкафа, 12-дюймового стандартного нижнего шкафа и 12-дюймового выступа.)
Если бы наша кухня была на фут короче, мы мы бы отказались от 12-дюймового стандартного базового шкафа, чтобы он соответствовал имевшемуся у нас пространству.
Вот пример кухни 12 на 12 футов с островом.Кухонные острова лучше всего подходят для кухонь, открытых с двух сторон.
(На рисунках выше я предполагаю, что левая и нижняя части «открыты» в гостиную и/или столовую.Однако, если на вашей кухне есть шкафы с трех сторон (или стена/препятствие с третьей стороны), установить кухонный остров будет намного сложнее, потому что недостаточно места для хорошей дорожки вокруг острова. .
В кухне размером 10 на 10 футов, закрытой с 3 сторон, недостаточно места для установки острова.Однако, если ваша кухня достаточно велика, вы можете установить остров, который будет длиннее и имеет место для сидения только на одном конце с ножками для его поддержки. У этого типа острова свес намного длиннее (обычно 24 дюйма) и должен поддерживаться ножками.
Чем больше кухня, тем больше у вас вариантов оптимальной конфигурации острова.Хотя этот вариант не является типичным, он просто показывает, что вы можете настроить остров так, как хотите, чтобы он наилучшим образом соответствовал вашей кухне и функциональности.
Теперь поговорим о минимальном пространстве для сидения!
Как покрасить желоба и водосточные трубы x
Для просмотра этого видео включите JavaScript и рассмотрите возможность перехода на веб-браузер, который поддерживает видео HTML5
Статьи по теме кухонного острова
Каков стандартный размер кухонного острова с местами для сидения?Наиболее распространенный размер кухонного острова: длина 80 дюймов, ширина 40 дюймов, стандартная высота 36 дюймов (или 42 дюйма для острова с барной стойкой).

Минимальное рекомендуемое расстояние между островом и другими объектами составляет от 36 до 42 дюймов. Это даст достаточно места для передвижения.
Кроме того, хорошее эмпирическое правило при выборе места для сидения — оставлять 24 дюйма пространства на человека.
Стандартный кухонный остров Размеры Рекомендуемые островные размеры 96 дюймов длиннее 96 дюймов длиннее Размер кухни для трех табуреток 72 дюйма длиннее размер кухонного острова для четырех табуретов длина 94 дюйма размер кухонного острова для двух стульев длина 48 дюймов 3 90 , места для сидения и свободного пространства, то на вашей кухне недостаточно места для острова.
Вот мои настоящие планы на кухонный остров, когда я его проектировал! У нас было место, поэтому мы выбрали 42-дюймовую дорожку со всех сторон.
Как сделать кухонный остров из базовых шкафов Если вы беспокоитесь о том, чтобы выбрать правильный размер кухонного острова, возможно, стандартные размеры острова не соответствуют уникальным особенностям вашей кухни. . И, если вы ремонтируете свою кухню, нет сомнений, что вы ищете все возможные способы сэкономить деньги.
К счастью, я написал отличную статью о том, как сделать простой кухонный остров из базовых шкафов, который сэкономит вам сотни долларов и позволит вам создать остров, размер которого нестандартен для вашей кухни! Ознакомьтесь с моей статьей здесь для полного руководства.
Кухонный остров, пожалуй, самая используемая вещь в доме. Варианты, когда ваша кухня слишком мала для островаПечальная реальность, с которой вы можете столкнуться, заключается в том, что ваша кухня слишком мала для острова, и увеличить размер вашей кухни может быть невозможно.Итак, если вы не можете установить остров на своей кухне, какие еще есть варианты добавить функцию, которая может выполнять те же или аналогичные функции?
Тележка на колесикахТележки на колесиках похожи на кухонные острова, но на колесах.
С точки зрения обеспечения хранения, чтобы увеличить пространство в кухонном шкафу, тележки на колесах оснащены ящиками, полками и местом для подвешивания. Над ними есть твердые поверхности, которые можно использовать как дополнительную кухонную столешницу, как ваш остров.
Небольшой столикЕсли главная причина, по которой вам нужен остров, — это сесть и поесть вкусную домашнюю еду, вы можете получить ту же функциональность от маленького традиционного обеденного стола.
Как бы ни были популярны кухонные острова, кухонные столы и стулья являются гораздо более доступным вариантом, они занимают меньше места и могут перемещаться, чтобы у вас было достаточно места для перемещения по кухне. Не говоря уже о том, что они также дают вам дополнительную поверхность для приготовления еды.
Ничего — острова необязательны!Если ни один из этих вариантов вам не подходит, а ваша кухня и без того слишком тесная, вы также можете просто отказаться от добавления острова на свою кухню.
Жаль, что вы не сможете насладиться этой культовой функцией, но это все же вариант.Существует множество великолепных кухонь без острова. Существующего рабочего пространства и кухонных шкафов может быть достаточно для удовлетворения ваших потребностей и потребностей вашей семьи.
Заключительные мысли о размерах кухонного островкаКухонный остров может полностью изменить ваш образ жизни на кухне, предоставив вам больше места для приготовления пищи, приема пищи или просто для отдыха с чашечкой кофе.
Но иногда островки не продуманы и занимают слишком много места, превращая когда-то комфортное жилое пространство в тесный беспорядок.
Кухонный остров должен занимать не более 10 % и не менее 7 % от общей доступной площади пола с зазором не менее 36 дюймов между островом и столешницами и другими элементами кухни, предоставляя вам и вашей семье более чем достаточно места, чтобы ходить, сидеть и выполнять задания.
Если на вашей кухне недостаточно места для острова, вы можете использовать тележку на колесиках, традиционный стол и стулья или вообще отказаться от любого типа острова.
Удачи вам в разработке дизайна кухонного острова! Дайте волю своему творчеству с этим проектом!
Нравится этот пост? Поделитесь им с другими, чтобы они могли создать идеальный кухонный остров для своего пространства!
Статьи по теме кухонного острова
Как определить, достаточно ли велика ваша кухня для островка означает, что сайты могут зарабатывать рекламные сборы, размещая рекламу и ссылаясь на Amazon.ком.Подробная информация о размерах кухонного острова | Хоумслибро — HOMESLIBRO
Обычно остров представляет собой кухонную столешницу, которая обеспечивает доступ со всех сторон и в основном используется для приготовления пищи и хранения посуды. Таким образом, это элегантное решение для поиска рабочего места, которое можно использовать на типичной домашней кухне с достаточным пространством на кухне.

Вот стандартные размеры кухонного острова, которые дадут вам представление о том, сколько места требуется для кухонного острова на вашей кухне!
КАКОЙ МИНИМАЛЬНЫЙ РАЗМЕР КУХОННОГО ОСТРОВА
Кухонный остров — это дополнительная стойка для многократного использования.Рекомендуется только для кухонь с минимальными размерами 4,50 м в длину и 3,60 м в ширину, с минимальным размером острова 1,20 м в длину и чуть более 0,60 м в ширину.
Поэтому для маленькой кухни остров не подходит. Целесообразно планировать только кухонную стойку на краю кухонной стены, включая нормы кухонного рабочего треугольника.
Для маленькой кухни предпочтение отдается дополнительному съемному острову.Если вашей кухне нужен остров, складной кухонный остров и переносной кухонный остров пригодятся, когда настоящая стойка запуталась. После использования его можно переместить в другое место и использовать в качестве шкафа для хранения в другой комнате.

ВЫСОТА КУХОННОГО ОСТРОВА
Столешницы острова обычно располагаются выше уровня пояса с ящиками для хранения посуды, инструментов для приготовления пищи и т. д. Кухонный остров зависит от назначения.
Как и при обычном использовании, он используется как счетчик, и его высота должна быть равна 0.85 м до 0,90 м (от 2 футов -9 «до 3 футов -0») для кухонной стойки или платформы, чтобы женщина, использующая ее, могла удобно готовить без каких-либо проблем со спиной.
Если он используется в служебных целях, он должен быть на 0,75 м (30 дюймов) выше высоты островного стола, так как удобно замешивать и вынимать атту (муку), чтобы его можно было надавить дальше.
ШИРИНА КУХОННОГО ОСТРОВА
Ширина кухонного острова зависит от области применения.Как минимум, остров должен быть немного больше 1,20 м (4 фута) в длину и 0,60 м (2 фута) в ширину или глубину, а также расстояние, необходимое для передвижения людей и работы вокруг него.

При использовании с барной стойкой, а затем двумя параллельными ширинами, следует учитывать, что одна составляет 0,60 м (2 фута) для стойки и дополнительные 0,30 м (1 фут) для барной стойки. Таким образом, вам необходимо учитывать общую ширину 0,90 метра (3 фута). для двух человек, чтобы стоять бок о бок или удобно пройти через щель.В то же время это пространство должно вместить людей с ограниченными физическими возможностями, которые могут передвигаться на инвалидной коляске или ходунках.
Поэтому стандартная ширина вокруг кухонного острова или любых двух параллельных прилавков или шкафов должна составлять не менее 1,20 м (4 фута) и не менее 0,9 м (3 фута), если имеется один прилавок.
Если вы найдете
Эта информация будет полезной; пожалуйста, поделитесь им.
Спасибо! За чтение статьи.
.


bhg.com
Если на небольшую кухню островок умещается «со скрипом», есть смысл отказаться от традиционной обеденной зоны и трапезничать непосредственно за ним. Это достаточно распространенное решение для интерьера кухни с островом, которое позволяет сэкономить место. Дополнительная столешница по размеру меньше обычного стола, но за счет рабочей части оказывается довольно вместительной. Впрочем, такие кухонные островки чаще имеют двухуровневую поверхность, которая скрывает основную столешницу от посторонних глаз.

А также при соответствующих размерах кухонный остров с обеденной зоной можно объединить.
Это распространенное решение для небольших пространств, таким образом, можно сэкономить место. Если сделать кухонный остров с обеденным столом размером меньше стандартного, то за счет рабочей зоны он все равно будет вместительным. Впрочем, в этом случае чаще всего делают двухуровневую поверхность, скрывающую обеденную часть от посторонних глаз.
Это тоже довольно функциональный вариант с рабочей зоной и встроенной системой хранения, но отличается он от предыдущих тем, что при необходимости, может быть, передвинут в угол или в центр кухни. Мобильный кухонный стол-остров гораздо проще найти в мебельном магазине, в то время как стационарный чаще всего изготавливается на заказ.
Как правило, столешница острова шире столешницы гарнитура, а значит, на ней будет удобнее обрабатывать продукты, готовить и сервировать блюда.

Все места, используемые для хранения пищевых продуктов, предметов посуды и бытовой техники, не обладают ручками.
Многофункциональный остров может быть оснащен раковиной и посудомоечной машиной. Такой вариант требует установку системы водоснабжения и канализации. На этапе строительства дома необходимо определить точное местоположение сантехники. Это позволит нам провести водопроводные трубы и канализацию в полу. Следует помнить, что сливная труба должна быть выполнена с небольшим уклоном (от 4 до 5%). Иногда выясняется, что проведение труб в полу невозможно, так как он невысокий и не позволяет сделать необходимый уклон.
Кухонные острова с плитой должны иметь две точки. Первая будет проходить вдоль потолка и поставлять электричество вытяжке, вторая должна проходить под полом в специальном пазу и обеспечивать все электрооборудование. Перед установкой надо определить мощность всех устройств. В некоторых случаях вам потребуется трехфазная проводка, которая обеспечивает достаточную мощность.

Сложите вместе все размеры, которые мы обсуждали до сих пор, и вы получите хорошее представление о том, сколько места вам нужно для размещения острова.
Она проявляет живой интерес и знания о последних, будущих тенденциях в области домашнего дизайна и пытается обогатить домовладельцев вдохновляющими советами и рекомендациями по благоустройству дома, разбивая жаргон на простые слова. Заядлый читатель и странник по привычке, она писатель по страсти.
Это позволяет ему быть прочным и полезным, но уютным для небольшой кухни. Для правильной работы остров должен находиться на расстоянии 30 дюймов от вашего рабочего места. 
Кухонные острова — отличный способ иметь дополнительное пространство для всех потребностей в приготовлении пищи.
Кухонные острова — отличное место, чтобы спрятать всю грязную посуду перед тем, как сполоснуть ее и загрузить в посудомоечную машину, если ваши столы заняты остатками, ожидающими остывания.
В идеале это должно быть больше 40 дюймов, но можно и 30. Всегда сверяйтесь с любыми строительными нормами и правилами безопасности в вашем районе, когда делаете какие-либо реконструкции или дополнения такого масштаба.
Подумайте о дверцах вашего холодильника, посудомоечной машины и любых других бытовых приборов, дверцы которых требуют места для открывания.


По словам Боба Вила,
Подумайте, для чего вы хотите его использовать, какой вид вы хотите получить на своей кухне и, самое главное, сколько места вы используете.
Посмотрите на четыре диаграммы ниже.

Хотя они красивы и практичны, кухонные острова просто не вписываются в каждое пространство.
Минимальный размер встроенного кухонного острова составляет 24 дюйма в ширину и 48 дюймов в длину или 2 фута в ширину и 4 фута в длину. Если у вас нет места для размещения минимального размера, вы всегда можете рассмотреть переносной остров или кухонный стол.
Тем не менее, место для сидения с приподнятым баром на острове может иметь высоту 42 дюйма, а высота нижнего стола может составлять около 30 дюймов. Если вы хотите, чтобы ваш остров превратился в столовую, подумайте о том, чтобы увеличить его до 42 дюймов.
Если столешнице нужна дополнительная опора, это можно сделать с помощью стальных стержней, стенок-пони или декоративных ножек под столешницей.
С учетом сказанного, вот некоторые стандартные рекомендации по размеру кухонного острова, основанные на количестве сидячих мест:
Вы любите готовить, хотите иметь дополнительное место для хранения или сидения? Кухонные острова часто могут быть многоцелевыми, все зависит от того, что вы хотите. Вот некоторые факторы, которые следует учитывать при разработке дизайна кухонного острова:
Каждая сторона треугольника должна быть примерно от четырех до девяти футов, а все три стороны равны между 13 и 26 футами.


Это означает, что ваша кухня должна быть не менее 9 футов в ширину и 10 футов в длину, чтобы вместить небольшой, но все же практичный остров.

(На рисунках выше я предполагаю, что левая и нижняя части «открыты» в гостиную и/или столовую.
Как сделать кухонный остров из базовых шкафов
С точки зрения обеспечения хранения, чтобы увеличить пространство в кухонном шкафу, тележки на колесах оснащены ящиками, полками и местом для подвешивания.
Жаль, что вы не сможете насладиться этой культовой функцией, но это все же вариант.


