Планировка 1,2,3 и 4 комнатной квартиры сталинки
В газете объявлений о покупке и продаже недвижимости очень часто можно прочитать про квартиры-сталинки. Однако не все люди знают, что же представляет собой такая квартира. В то же время многие из тех, кто знает, очень хотели бы приобрести ее, и единственное что их останавливает – крайне высокая стоимость квартиры в сталинских высотках.
Планировка типовой сталинкиВернуться к оглавлению
Содержание материала
- 1 Как появились сталинки
- 2 Как выглядит сталинка
- 3 Возможна ли перепланировка сталинки
Как появились сталинки
Именно сталинки принято считать первыми массово возводимыми в нашей стране многоквартирными домами. Строить их начали ещё в середине 30-х годов прошлого века и завершили только в середине 50-х. За это время были построены десятки тысяч квартир по территории всего Советского Союза.
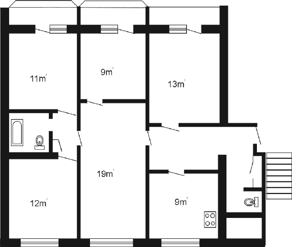
Планировка сталинки зачастую отличалась роскошью: просторные, уютные квартиры, большие окна, высокие потолки – все это заставляло тратить множество ресурсов на строительство, зато люди, получившие такое жилье, были вполне довольны.
Впрочем, стоит разделить сталинки на два типа.
- Довоенные. Недостатка в ресурсах, как и в жилье, не было. Поэтому к каждому дому подходили с максимальным вниманием – архитекторы продумывали особенно утонченные и изящные фасады, зачастую оформленные в стиле ампир. В большинстве случаев дома строились из красного кирпича, что придавало им особую элегантность и привлекательность.
сталинская высотка, построенная в стиле ампир в 30-е годы
- Послевоенные. Тысячи домов по всей стране были разрушены в ходе страшной войны. Многим людям просто некуда было возвращаться с фронта. В результате в строительство внесли серьезные изменения. Стали уделять гораздо меньше внимания внешнему виду и оригинальному оформлению. Строительство стали вести с применением более дешевого и крупного белого кирпича, что позволяло сократить сроки возведения зданий. Нередко план квартиры значительно менялся. Притом что потолки оставались высокими, а комнаты – просторными, обычные квартиры превратились в коммуналки и общежития.

дома, построенные после войны, стали выглядеть гораздо скромнее
Планировка изменялась – всё чаще стали появляться квартиры коридорного типа (с длинным коридором, имеющим ответвления в отдельные комнаты). Теперь, если в квартире было 3 комнаты, туда нередко заселяли целых три семьи. Да, это доставляло определенный дискомфорт обитателям. Зато позволяло обеспечить хоть каким-то жильем большее количество людей. Руководство страны воспринимало это как временный шаг – как только было бы возведено достаточное количество домов, людям планировалось выделить отдельные квартиры.
Вернуться к оглавлению
Как выглядит сталинка
Сталинские дома в большинстве своем довольно невысоки – чаще всего это трех- или четырехэтажные, монументальные и мощные здания.
Конечно, есть и исключения, например, 24 этажный жилой дом на Кудринской площади, построенный в период с 1948 по 1954 год.
Но их настолько мало, что все подобные здания в стране можно пересчитать по пальцам.
Кроме того, квартира в сталинской высотке это настолько престижно, что приобрести себе такое жилье могут очень немногие наши соотечественники. Поэтому о них можно не говорить.
Большая часть квартир в сталинках имеет 2 комнаты или 3. Реже можно встретить 4-комнатные хоромы. И ещё реже – однокомнатные квартиры. Но, независимо от количества комнат, квартиры были построены довольно просторные. Вот примерная площадь таких квартир:
- 1-комнатная – 32-50 квадратных метров;
- 2-комнатная – 44-70 квадратных метров;
- 3-комнатная – 57-85 квадратных метров;
- 4-комнатная – 80-110 квадратных метров.
Высота потолков приятно удивит даже самого придирчивого жильца – от 2,9 до 3,2 метров. Окна – просто огромные, чаще всего от 125х185 до 140х210 сантиметров. Кухни в однокомнатных квартирах сравнительно невелики – всего 7-8 метров. Зато в двух- и трехкомнатных квартирах это весьма просторные помещения – от 8 до 12 метров.
Настоящая мечта любой хозяйки.
Стоит сказать, что иногда можно увидеть и квартиры в сталинских постройках, имеющие больше четырех комнат – пять и даже шесть. Но такая квартира, скорее всего, была построена для использования в качестве общежития; и количество домов с такими квартирами очень невелико. Поэтому и подробно рассказывать о них не стоит.
пример планировки 4-комнатной сталинкиКонечно, имеется и ряд недостатков, но люди, мечтающие жить в просторном жилье, легко мирятся с ними.
Например, в сталинках отсутствуют лифты. Но для 3-4 этажных зданий лифт вовсе не является необходимостью. То же самое можно сказать про мусоропровод.
А на этом видео можно посмотреть, что из себя представляет ванна в «сталинках», и как ее можно отремонтировать.

Год строительства также может отпугнуть неопытных покупателей – многие из сталинок были построены около 80 лет назад. Но специалисты прекрасно знают, что при строительстве на них давалась гарантия от 125 до 150 лет! Поэтому на протяжении многих десятилетий обитателям таких квартир беспокоиться не придется.
И наконец, стоимость сталинок. Это самое больное место. Нередко двухкомнатная квартира в сталинке стоит значительно дороже, чем трехкомнатная в хрущёвке или брежневке. Поэтому позволить себе такую покупку могут лишь очень обеспеченные люди.
Вернуться к оглавлению
Возможна ли перепланировка сталинки
Хотя великолепная планировка и является одним из основных плюсов, какими могут похвастать все без исключения квартиры-сталинки, иногда люди всё же интересуются – возможна ли перепланировка в сталинке? Это может происходить по разным причинам.
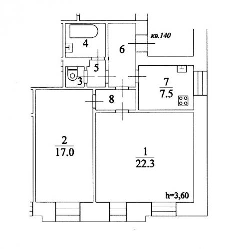
Пример перепланировки квартиры сталинкиОдним из наиболее распространенных видов перепланировки является изменение формы и размера коридора.
Дело в том, что во многих сталинках имеется довольно длинный коридор, который, по мнению владельцев квартиры, стоило бы укоротить. Сэкономленные метры добавляются к площади жилой комнаты.
Конечно, в сталинках размеры комнаты и так довольно велики, но ведь несколько квадратных метров никогда не будут лишними.
В большинстве случаев проблем при этом не возникает. Хотя навестить специалистов все-таки стоит! Ведь даже имея на руках чертеж своего жилья, вы наверняка не сможете провести все расчеты и определить – не навредит ли снос обычной деревянной перегородки всей конструкции здания.
пример перепланировки трехкомнатной квартиры в сталинском домеЗдесь появляется ещё один минус сталинок. Те перегородки, которые изначально были самонесущими, со временем превратились в разгружающие.
Другими словами, теперь они берут на себя часть нагрузок от всей конструкции, хотя изначально это не было запланировано. И если в современных кирпичных и панельных домах деревянные перегородки можно спокойно сносить, то при работе в сталинках процесс перепланировки может значительно усложняться этим.
Впрочем, встречаются и люди, которых планировка однокомнатной сталинки вполне устраивает, но при этом им критически не хватает полезной площади для комфортной жизни. Вообще, в таком случае существует довольно много самых разных способов решения проблемы, прекрасно подходящих как для сталинок, так и для хрущевок.
Однако сталинки имеют один несомненный плюс, благодаря которому проблема недостатка свободной площади легко решается. Речь идет о необычной высоте потолков. Выше уже говорилось, что потолки в сталинках очень высоки – обычно около 3 метров. И некоторые владельцы умело пользуются этим. Они просто создают второй этаж в своей же комнате.
Для этого используются обычные деревянные доски и брус. Получать разрешение и согласовывать такое строительство в соответствующих органах не нужно – основные несущие конструкции здания никоим образом не повреждаются и не изменяются.
Вариант перепланировки двухкомнатной сталинкиПросто люди разделяют часть комнаты на два этажа.
Высота первого обычно получается около 2 метров, а второго – около 1 метра. Да, устроить там полноценный этаж невозможно. Зато поместить кровать, даже двухместную, очень даже можно. Нередко под кроватью, на первом этаже, оборудуется рабочий кабинет. Таким образом вы экономите немалую свободную площадь, получая больший простор в квартире. Решение весьма необычное, но весьма эффективное. Так что если вы решите предпринять что-то подобное, то сожалеть об этом вам точно не придется.
Квартиры традиционной планировки: «сталинка»
«Сталинки» относятся к квартирам традиционной планировки. Просторные и основательные, они олицетворяют целую эпоху жизни страны. Риэлторы утверждают, что спрос на «сталинки» стабилен на протяжении многих лет. Однако и у этого типа жилья есть свои недостатки.
- 1 из 1
На фото:
Существует несколько типов квартир традиционной планировки.
Отдельного внимания среди них заслуживают так называемые сталинки. «Сталинка» – жилье в домах «старого фонда», возводимых в 1950-1963 годах. Это полногабаритная квартира (ПГ) в старом, но добротном кирпичном доме, с большой кухней (до 15 кв.м), высокими потолками (до 3,5 м) и изолированными комнатами. Площадь «однушки» – от 40 кв.м, «трешки» – до 110 кв.м. Рассмотрим плюсы и минусы жилплощади данного типа.
Плюсы
- Планировка. В то время архитекторы обычно не экономили на площади квартир и подъездов. Тогда это казалось очевидным, зато позже уютные квартиры в сталинских домах начали относить к элитному жилью благодаря просторным комнатам и высоким потолкам. Обычно высота потолков в «сталинках» – от 3,2 до 4 метров, а площадь кухонь – не менее 12 кв.м.
На фото: фрагмент интерьера квартиры в сталинском доме, архитектор Анна Варбанская
- Архитектура. Внешний вид сталинских построек довольно привлекателен, особенно если сравнивать с типичными образцами массового строительства времен Хрущева или Брежнева. Для многих домов разрабатывались эксклюзивные архитектурные решения, включающие характерные для ампира колонны, арки, лепнину и т.д.
- Технологии строительства. Сталинские дома отличаются тщательным соблюдением технологии строительства. Особенно это касается наружных и несущих внутренних стен. Они имеют толщину в четыре кирпича, благодаря чему в квартирах зимой очень тепло. Вдобавок это обеспечивает хорошую звукоизоляцию.
- Месторасположение.
Застройка элитного жилья в сталинскую эпоху в первую очередь велась в центральных районах городов, поэтому владельцы квартир в этих домах живут рядом с достопримечательностями, основными административными учреждениями и т.д.
Жилые комнаты тоже очень просторные, в квартирах есть широкие коридоры и внушительные кладовки.
В некоторых домах были спланированы дополнительные комнаты для прислуги, которые тоже можно использовать, например, в качестве гардеробных.Что касается подъездов, то для них характерны высокие парадные. Еще одна важная особенность именно сталинских домов – небольшое количество квартир на лестничной площадке, чаще всего – две, реже – три.
- 1 из 1
На фото:
Минусы
- Устаревшие инженерные коммуникации.
- Старый утеплитель, так называемая «дранка», входящая в конструкцию межкомнатных перегородок. Она может быть источником неприятного запаха. Известны случаи, когда этот утеплитель вызывал аллергическую реакцию у жильцов.
- Водоснабжение. Подача воды производится снизу вверх, и вечером, когда люди в квартирах одновременно открывают краны, на верхних этажа плохой напор. Эта проблема решаема – достаточно поставить специальные насосные водонапорные трубы. Однако придется потратиться и на сами трубы, и на их установку.

- Комментировать в FB
- Комментировать в VK
В разваливающихся квартирах бывшего Советского Союза
Через десять лет после Второй мировой войны в Великобритании возникла новая волна архитектурного дизайна. Благодаря монолитным блокам из необработанного бетона и стали его название аккуратно подытоживает его внешний вид: брутализм.
Брутализм быстро прижился в Европе, но нигде не был воспринят с таким энтузиазмом, как на советском востоке. Там этот стиль, казалось, лучше всего передал амбициозность марксизма космической эры и стал эстетикой для бесчисленных тысяч гражданских зданий и многоэтажных квартир.
Реклама
Сегодня эти здания все чаще презирают как напоминание о советском прошлом и сносят.
В других регионах они продолжают стоять молча и вальяжно.
Фотограф из Мельбурна Алекс Шельчер провел последние два года, путешествуя по бывшему Восточному блоку, от Грузии до Молдовы и от Казахстана до Кыргызстана, фотографируя эти уцелевшие здания и людей, которые их населяют. VICE поговорил с ним, чтобы узнать больше о его текущем проекте «Конкретные граждане».
VICE: Привет, Алекс, как появились Concrete Citizens?
Alex Schoelcher : Я переключился на архитектурную фотографию только в последние несколько лет. Я ассистировал нескольким архитектурным фотографам и до этого особо не обращал на это внимания. Я начал следить за этими аккаунтами в Instagram обо всех этих бруталистских зданиях и старой советской архитектуре и сказал: , вау, это безумие. Это так антиутопично, так угнетающе и страшно, но в то же время очень интересно.
Я заметил, что в зданиях было много содержимого, но ничего, что действительно свидетельствовало бы о том, что в них жили люди, или о том, что люди чувствовали.
В фотографии не было человеческого фактора, и это расстраивало меня, потому что приводило к нездоровому отношению к акту ее оценки. Я чувствую, что это фетишизирует здания и лишает реальности тот факт, что там живут люди.
Реклама
Я полагаю, что вся концепция проекта заключалась в том, чтобы копнуть глубже, получить доступ внутрь и посмотреть, как это выглядит; получить некоторые истории и на самом деле узнать, были ли люди счастливы быть там.
Был ли один пост в Instagram или один момент, который действительно привел все в движение?
Одним из зданий, на которое я начала обращать внимание в этих профилях в Instagram, было Плато Нуцубидзе — это три здания, соединенные мостами. Я просто хотел осмотреть здание, и я был со своим грузинским другом, и он сказал: «Если вам нужен лучший ракурс здания, давайте попробуем войти в другое здание и сфотографировать его оттуда».
Итак, мы вошли в другой многоквартирный дом, и мой друг сказал: «Давайте просто постучим в чью-нибудь дверь и посмотрим, сможем ли мы сделать фото с их балкона».
Я подумал: «Это безумие, никто не позволит нам это сделать», но дверь открыла женщина, и в гостиной сидел мужчина топлесс и хаски. И я подумал: «Черт возьми, это невероятно». Это был такой сумасшедший сценарий.
Я сделал несколько дерьмовых фотографий с их балкона, а потом подумал: , я должен сделать несколько фотографий этого . И это был момент, когда это было похоже на звон : здания интересные, но самое интересное — это то, что внутри них. Я много лет фотографировал людей на улице и никогда не думал, что смогу просто постучать в чью-то дверь и сфотографировать в их доме.
Реклама
Глядя на некоторые фотографии, можно заметить, что они довольно интимные. Как вы дошли до того, что людям было комфортно, когда вы входили в их дома и размещали их в этих позах?
На некоторые из этих фотографий я сейчас смотрю и думаю как, черт возьми, я это получил; как кто-то позволил мне это сделать? Но я думаю, это тот случай, когда вы будете удивлены тем, что люди предоставят вам доступ, потому что это просто то, чем мы не занимаемся изо дня в день.
Большинство людей не подходят к незнакомцу и не говорят: «Можно я тебя сфотографирую». Концепция для них настолько причудлива и непостижима, что на самом деле, когда вы это сделаете, вы поймете, что довольно много людей увлечены этим или открыты для этого.
Не знаю, видели ли вы, но есть фотография довольно крупной дамы, которая просто лежит на диване. Меня очень шокирует, что она позволила мне его взять; на некоторые из них я сейчас оглядываюсь назад и не могу поверить, что это произошло. Как будто меня там не было, а я был просто сосудом, в котором это происходило. в этих зданиях. Каким было общее мнение?
Это был целый спектр. Были люди, которым это нравилось, основываясь на сообществе здания, или на виде, который они имели из своего дома, или на том факте, что эти здания действительно хорошо сделаны. И иногда пожилые люди гордятся этим, потому что у них такие теплые воспоминания о Советском Союзе. И эти здания часто представляют это.
Реклама
Есть люди, которые его абсолютно ненавидят.
Они думают, что это некрасиво. Они в шоке, что мне вообще понравилось это здание, потому что для них это проклятие их существования. И знаете, много бедности: много людей, у которых гостиная была и спальней; много дерьмовых историй и довольно душераздирающих аккаунтов.
Не могли бы вы рассказать мне о некоторых из них?
Пожилые люди много боролись, потому что некоторые лифты в здании ломались, или летом в них было очень жарко. Большинство людей были бедны. Там была дама, которой было за 60, и она была просто в очень цветочном окружении, и у нее была только кошка, и после того, как я сделал фото, она просто начала плакать.
Очень недовольных было много, в основном в Молдавии и Кыргызстане. У большинства было много детей. У одного парня в квартире было восемь детей; невозможно представить, что столько людей живет в крохотной квартирке.
Я знаю, что в некоторых странах эти здания сносят. Знали ли вы или были свидетелями подобных вещей, происходящих в этих регионах?
Да, безусловно.
Это определенно проблема, когда некоторые из них находятся под угрозой исчезновения — или не только это, вокруг них строится много новых зданий, поэтому виды и ландшафт меняются. Эта остроконечная башня в Молдове: район, в котором она находится, довольно быстро облагораживается, и на самом деле вокруг нее есть действительно красивая собственность, которую было довольно странно видеть. У меня была бы эта версия Instagram в моей голове, и почти каждый раз, когда я появлялся бы, мне было бы чего не было ; со мной будет что-то новое, например, здание, или кафе, или дорога.
Реклама
Интервью Джозефа Лью. Подпишитесь на него в Instagram .
Все фото Alex Schoelcher . Прокрутите вниз, чтобы увидеть больше его работ.
особенности сталинских домов, ремонт двухкомнатных и 3-х комнатных квартир
Квартиры сталинских времен занимают свою нишу на рынке недвижимости и до сих пор пользуются спросом благодаря своим многочисленным преимуществам.
Жилищный фонд периода 1930-1950, которую в народе называют просто «сталинкой», имеет свои особенности и черты. Это целый пласт эпохи в строительстве и планировке многоквартирных домов.
Типы и типы
По хронологии строительства сталинские дома можно разделить на два типа: довоенные и послевоенные. Эта градация важна при выборе квартиры, так как время постройки существенно повлияло на планировку и габариты квартир.
Довоенный
Начиная с середины 30-х годов и продолжаясь до войны, строительство не было ограничено в ресурсах и времени, и поэтому жилые дома возводились с особой тщательностью, максимальным вниманием к деталям и заботой о декоре. Здания отличаются изящной фасады, архитектурные изыски, размах и простота планировки. Их строили не только как удобное жилье, но и как внешнее украшение городов. В строительстве чаще всего используется красный кирпич.
Послевоенный
В результате войны и тотального разрушения городов было уже слишком долго думать о хитросплетениях архитектуры.
Тысячи людей остались без крова, стояла задача упростить строительство зданий и в кратчайшие сроки обеспечить население жилплощадью. Строительство домов велось из более дешевого белого кирпича, внешнему виду зданий уделялось меньше внимания, а планировка квартир значительно менялась в рациональную сторону. Стали появляться квартиры коридорного типа – коммунальные и общежития.
Несмотря на все беды того времени, сталинские дома имели свои характерные черты и до, и после войны и делились на «номенклатурные» и обычные дома.
Номенклатурные дома
Номенклатурные дома или небоскребы для высших управленцев советской элиты, построенные по индивидуальным проектам, стали украшением центральных улиц городов и явились воплощением мечты о комфортном жилье. Классические архитектурные формы высотных зданий с антресолью стали характерной чертой номенклатурных домов.
Лифты, железобетонные перекрытия, высокие (более 3 м) потолки, лепной декор, просторные помещения – главные черты номенклатуры «Сталинок». Планировка, как правило, предполагала 3-х и 4-х комнатные квартиры.
Типовые дома
Типовые «сталинки» еще до войны отличались простотой исполнения, более скромной планировкой, отсутствием декора на фасаде зданий. Площади квартир значительно уменьшились. В типовых домах чаще всего однокомнатные и двухкомнатные квартиры, а также здания коридорного типа. Архитектура проста и незамысловата: украшения из лепнины либо стандартны, либо отсутствуют вовсе, лицевой кирпич не оштукатурен. В зданиях нет лифта и часто санузла. В «коридорном» типе домов санузел может быть один на несколько квартир.
Особенности
Сталинские дома по-прежнему пользуются большой популярностью на рынке недвижимости.
Это связано с повышенной надежностью зданий, высокой звуко- и теплоизоляцией стен, широкими просторными квартирами, высокими потолками, которые зачастую превышают 3 м.
По теплоизоляции дома того времени значительно превосходят все последующие постройки советского и постсоветского периода. Толщина стен во многих домах достигает метра, что обеспечивает надежное сохранение тепла и защищает квартиру от уличного шума.
Еще одной выгодной особенностью «Сталинок» было использование внутренних колонн и прогонов (железобетонных перекрытий). Благодаря этим конструкциям большинство стен не являются несущими, что делает возможным практически любую перепланировку внутри помещения.
Достоинства и недостатки
Сталинские квартиры относятся к элитному жилью, прежде всего, благодаря просторным комнатам и высоким потолкам, широким коридорам, просторным кухонным зонам и большим кладовым. Для сталинских домов характерны высокие подъезды, а количество квартир на лестничной клетке, как правило, две-три.
Строительство домов данного типа велось со строгим соблюдением технологии строительства, благодаря чему они сохранились в отличном состоянии до настоящего времени.
К недостаткам «Сталинка» безусловно можно отнести то, что со временем необходимо менять устаревшие инженерные коммуникации. За время строительства системы водоснабжения и электропроводки оказались изрядно изношенными. Водоснабжение в «сталинке» часто производится снизу вверх к подъезду, поэтому часто жители верхних этажей дома страдают от неадекватного напора воды.
Проводка старого образца не выдерживает высокого напряжения от обилия современных электроприборов. И эта проблема не всегда решается заменой системы внутри одной квартиры.
Варианты перепланировки
Как было сказано ранее, сталинские дома имеют широкие возможности для перепланировки за счет минимального количества капитальных стен и этажей.
Функцию несущих конструкций выполняют железобетонные балки – прогоны, которые смотрятся под потолком не очень эстетично, но вполне поддаются отделке.
Несмотря на то, что площадь комнат в «сталинках» значительно превышает в квадратных метрах такое же жилье в других типах домов, жильцы поставили перед собой цель улучшить жилплощадь.
Коридор
Чаще всего перепланировке подвергаются длинные коридоры, пространство которых можно использовать по другому назначению. Например, чтобы еще больше увеличить площадь одной из комнат и изменить вытянутую форму прихожей.
Стоит сказать, что визуально изменить форму коридора вполне возможно без перепланировки. Подобрав правильное освещение, подходящую цветовую гамму и материалы, можно в итоге получить великолепную галерею дизайнерских работ. Картины на стенах, произведения искусства на узких подсвечиваемых постаментах или консолях, отделка потолка, зеркала – все это способно превратить пространство в самостоятельное стильное помещение.
Помещения
Задачу перепланировки помещений можно решить по-разному, в зависимости от целесообразности поставленных целей. Самый распространенный вариант – объединение двух комнат в одну.
Еще один популярный вариант просторных залов-сталинок – разделить гостиную на две зоны, одна из которых может служить детской комнатой. Трехкомнатная квартира станет отличным студийным пространством для приемов и работы, если две комнаты объединить в одну, а третью оставить как спальню.
Проблема нехватки квадратных метров иногда решается необычным способом — строительством антресоли. Антресоль представляет собой надстроенный перекрытие пола в основном помещении. Таким образом, в просторном зале одну половину можно разделить на две части в соотношении 1 метр вверху и 2 метра внизу. На «втором» этаже удобное спальное место, а под ним — рабочий кабинет. Это отличная возможность сэкономить необходимые квадратные метры. Кроме того, такая перепланировка не требует согласования с соответствующими органами, так как никакие конструктивные особенности здания не нарушены.
Кухня
Несмотря на то, что кухни в «сталинках» по размерам больше, чем в других типах домов, квадратура полезной площади никогда не будет лишней. Именно поэтому так популярен вариант совмещения гостиной и кухни.
К этому способу прибегают и тогда, когда стена между кухней и гостиной мешает быстрому доступу из одной комнаты в другую. Стену можно снести полностью или частично, образовав многофункциональную студию. В случае частичного сноса стены делается широкий проход в виде арки, визуально разделяющий зоны пространства.
Санузел
Большой простор для фантазии дает место для санузла. Как правило, в домах сталинской постройки есть отдельный санузел, что не всегда удобно и эстетично. За счет соединения двух комнат в одну образуется довольно просторная ванная комната, которую при желании и фантазии дизайнера можно сделать двухуровневой.
При этом на разных уровнях будут располагаться ванна, джакузи, душ.
Потолки
Высота потолков в «сталинках» позволяет без труда устанавливать многоуровневые современные конструкции и предоставляет большие возможности для установки осветительных приборов.
Железобетонные балки (ригели), что считается одним из минусов этого типа домов, легко оббивается в одном из уровней потолка.
Подоконники
Толщина стен сталинских домов отличается не только отличной теплоизоляцией, но и широкими, глубокими подоконниками. В них достаточно места для устройства миниатюрного зимнего сада или установки мягкого места с подушками для чтения книг.
Широкий подоконник также может быть продолжением рабочего места, если у окна установить письменный стол.
Этот же вариант идеален для откидного рабочего стола, столешница которого убирается к стене под окном, а рабочие принадлежности могут оставаться на подоконнике.
Чердак и цоколь
Дома в сталинском стиле имеют двускатную крышу, что позволяет владельцам верхних этажей устроить просторную мансарду. Конечно, это может вызвать ряд сложностей, но полноценное помещение под крышей никогда не будет лишним.
В проекте двухэтажных «Сталинок» отсутствует подвал, поэтому жильцы первого этажа часто устраивают под полом квартиры мини-погреб, где можно было бы хранить продукты и заготовки. Однако это и недостаток таких зданий – чтобы добраться до коммуникаций в случае аварии, сантехническим службам приходится беспокоить жильцов первого этажа и вскрывать этажи.
Ремонт
При планировании капитального ремонта следует учитывать дороговизну и объем предстоящих работ.
В дополнение к обычным затратам на ремонт могут быть включены:
- Если дом вместо железобетонных перекрытий деревянный, то придется делать капитальную стяжку пола. Необходим для качественного напольного покрытия;
- Большое количество штукатурки, повышенный расход всех строительных материалов;
- Замена водопроводных и канализационных труб. Систему отопления, скорее всего, тоже придется менять;
- Обязательная замена электропроводки в том случае, если она не менялась с советских времен. Электропроводка в домах 30-50-х годов просто не выдерживает напряжения всех современных электроприборов;
- Мусоропровод в сталинках часто имеет выход непосредственно на кухню, что может быть причиной распространения насекомых и грызунов. В большинстве случаев его запечатывают и украшают.
Несмотря на все трудности ремонта, сталинские дома остаются одним из самых элитных типов жилья.


Застройка элитного жилья в сталинскую эпоху в первую очередь велась в центральных районах городов, поэтому владельцы квартир в этих домах живут рядом с достопримечательностями, основными административными учреждениями и т.д. 
Этот же вариант идеален для откидного рабочего стола, столешница которого убирается к стене под окном, а рабочие принадлежности могут оставаться на подоконнике.