проект студии в Раменском — INMYROOM
Место
Московская область, город Раменское
Тип дома
ЖК «Микрорайон»
Высота потолков
2,77 м
Вкратце
Если в маленькой квартире будет жить не семья, а один человек, поиск эргономичных решений и разработка функциональной планировки все равно может стать невыполнимой задачей. Дизайнер Александра Ладанова не испугалась трудностей и превратила малогабаритку в уютную студию со всем необходимым для комфортной жизни.
Подробности
«В этом проекте каждый сантиметр на счету, – говорит Александра. – Чтобы визуально увеличить пространство, мы отказались от отдельной прихожей, убрав перегородку с дверью, разделяющую ее с основным помещением. Вход в санузел оставили в изначальном месте, но немного перенесли вход в него – все ради размещения хотя бы небольших систем хранения. Вместо ванны – душевая кабина, унитаз – поближе к стене».
В жилой зоне все лаконично: пространство у окна отвели под спальное место – здесь его функцию выполняет раскладной диванчик. Большое внимание уделили кухонной зоне: в Г-образном гарнитуре установили и стандартную бытовую технику, и даже стиральную машину – в ванной для этого просто нет места. В центре поставили обеденный стол – можно и гостей пригласить. Не забыла дизайнер и про любимое хобби хозяйки – рабочее место со швейной машинкой оборудовали на утепленной лоджии.
«Одно из пожеланий заказчицы – теплая светлая цветовая палитра. Что пришлось как раз нам на руку: нашли светло-бежевые обои в прихожую и гостиную, а чтобы добавить динамики, использовали яркие декоративные панно. На полу в прихожей и кухне постелили плитку с ненавязчивым полупрозрачным рисунком. В жилой зоне – светлый ламинат, в тон ему подобрали кухонный фартук и столешницу под дерево. Санузел не хотелось перегружать лишними элементами, поэтому здесь мы остановились на однотонной плитке двух оттенков – светло-бежевого и светло-зеленого», – рассказывает Александра.
Основным местом для экспериментов стала лоджия. Фасад дома, в котором располагается квартира, облицован декоративным кирпичом – дизайнер оставила его нетронутым и выкрасила в белый цвет. Что в этом необычного? Швы между кирпичиками выполнили в зеленом цвете – свежо и динамично. Остальные стены тоже с изюминкой – для них использовали такой же керамогранит под дерево, как и на полу. В целом весь интерьер получился гармоничным и очень уютным.
Планировка
Бренды, представленные в проекте
Отделка: плитка в санузле, La Mia Ceramica; плитка на полу в прихожей и кухне, Kerama Marazzi; плитка в лоджии, Oset; ламинат, Quick-Step; обои фоновые, Deco Print NV; панно, краска, Tikkurila
Мебель: обеденный стол, Bla Station Straw; обеденные стулья, Сumberland clover; диван, Mr Floyd; комод, пуф и вешалка в прихожей, ИКЕА; унитаз, Hatria You&Me
Освещение: люстра в гостиной, Three arm; точечные светильники, Delta light
Бытовая техника: Gorenje
Хотите, чтобы ваш проект был опубликован на INMYROOM? Присылайте фотографии / 3D-визуализации на [email protected]
www.inmyroom.ru
Интерьер миниатюрной квартиры 22 квадратных метра
Не каждый из нас может похвастаться просторной и вместительной жилой площадью, когда у каждого члена семьи отдельная комната, а в гостиной или столовой по вечерам собирается все семейство за большим столом, все делятся впечатлениями и событиями минувшего дня. Интерьер квартиры 22 квадратных метра поражает своей функциональностью, использован каждый сантиметр площади и высоты помещения.
Содержание статьи
Интерьер миниатюрной квартиры, 22 квадратных метра
Имея лишь ограниченную площадь, нужно проявить немало смекалки и фантазии, чтобы пространство стало функциональным и удобным. Сегодня речь пойдет о том, как на жилой площади в 22 метра организовать такой интерьер, чтобы квартира при этом выглядела воздушной. 
Функциональная кухня
Начнем наш разговор с кухни, ведь, по сути, именно это помещение считается самым главным в небольшом пространстве квартиры. Там не только готовят завтраки и ужины, разнообразные вкусные блюда, но и частенько собирают гостей. И хотя, в маленькой квартире сделать это непросто, мы подскажем вам потрясающую идею, для того, чтобы на кухне можно было уместить до 5–6 человек за обеденным столом. 
Безусловно, придется чем-то жертвовать, в нашем случае, вместо одного из нижних отсеков кухонной стенки, в центре кухонного гарнитура оставляем свободное пространство в виде полого ящика. При необходимости его можно «замаскировать» дверцей, но нестандартной, а в виде жалюзи (которая будет отодвигаться вверх или вбок).
Останется только купить подходящий по высоте и ширине стол на колесиках, с функцией «раскладывания» и позаботиться о табуретках для членов семьи. В случае прихода гостей, можно использовать стулья из других зон квартиры.
Что касается самого кухонного гарнитура, то это дело вкуса, важно лишь то, чтобы размеры не выходили за пределы кухни, а цветовая палитра контрастировала с зоной гостиной или спальни. При этом стоит учесть и площадь холодильника, который будет также занимать место.
Читайте также: Секреты обустройства кухонного пространства
Детская зона
Расположить удобную детскую зону можно прямо напротив кухни, но сделать это правильно. Отличным вариантом станет кровать – чердак.
Например, со стороны кухни это будет выглядеть как уголок для занятий с простым столом и стулом, и гардеробной зоны. А «вход» на второй этаж обеспечит лестница со стороны гостиной.
В изголовье кровати необходимо вмонтировать небольшой ночник с неярким освещением, а сама кровать должна быть оборудована специальными ограждениями, чтобы ворочаясь, ребёнок не упал. 
При необходимости или если в семье есть второй ребёнок, младшего возраста, организовать спальное место можно будет, например, приобрести кровать-трансформер, и тщательным образом продумать гардеробную зону. Причем используя современные системы хранения вещей, под кроватью – чердаком можно разместить и вещи родителей.
Гостиная
Безусловно, гостиной этот уголок в пространстве назвать довольно сложно, но если установить хороший диван, то проблема решается сама собой. Функцию прикроватной тумбочки может выполнить настенный высокий шкаф с открытыми полочками, в котором найдется место и для стакана воды, очков для чтения и пульта от телевизора.
Над диваном можно подвесить похожие открытые полочки для книг, и стильную люстру на длинном проводе-шнуре. Постельное белье, дополнительные декоративные подушки и пледы займут достойное место для хранения в выдвижных ящиках дивана.
Читайте также: Скандинавский стиль в квартире 21 кв. метр
Ванная комната
Это помещение по традиции отделано плиткой, под умывальником имеется шкаф с полочками, для хранения бытовой химии. Сверху подвешено зеркало с боковыми глубокими полочками, на них можно поставить ежедневно используемые предметы гигиены. Симпатичные стаканы для зубных щеток отлично разбавляют светлую «стерильную» атмосферу. 
Ну а внести немного свежести в интерьер могут декоративные живые или искусственные комнатные растения.
malenkieidei.ru
Дизайн маленькой квартиры-студии площадью 22 кв.м.

Дизайн маленькой квартиры площадью всего 22 квадратных метров в Тайбэе, Тайвань, осуществлена в 2015 году по проекту архитектурной студии A Little Design. Высокие цены на жилье не позволяют молодым людям приобретать солидную недвижимость, поэтому приходится довольствоваться скромным по площади жильем. Однако благодаря оригинальным дизайнерским решениям, более чем скромная студия превратилась в современное комфортное жилье для молодой девушки.

Высокие, до 3.3 метров, потолки позволили оборудовать второй уровень, где разместилась спальная зона. Функциональные зоны размещены по периметру квартиры. Учитывая образ жизни хозяйки, которая часто отсутствует, а квартира ей нужна для отдыха в паузах между отъездами, акцент сделан на спальню и ванную комнату. Душ был заменен на удобную ванну, а стиральную машину переместили в кухню. Компактная, вместе с тем достаточно функциональная кухня выглядит стильно и современно. Диван в гостиной служит в качестве места для отдыха и обеденного стола одновременно.

В квартире много открытых и закрытых шкафов и полок, позволяющих системно разместить предметы домашнего обихода. Центр квартиры девушка использует для спортивных тренировок. Белые окрашенные стены, белый кирпич и легкие дубовые поверхности наполняют пространство свежестью и позитивом.


coolhouses.ru
Дизайн интерьера маленькой студии 22 кв. м.
Смотреть фотогалерею … фото
Небольшая квартира 22 кв. м. имеет всего одну комнату. Дизайнерам из студии «Градиз» необходимо было спроектировать дизайн для молодой женщины, которой хотелось яркости и динамики. В результате получился оригинальный, запоминающийся интерьер, напоминающий французские улочки.
Дизайн интерьера маленькой студии воссоздает атмосферу главного города всех влюбленных — Парижа. Стена комнаты похожа на внешнюю стену жилого дома: на ней есть и окна с “маркизами” над ними, и витрины кафе.

Между жилым пространством и кухней в квартире 22 кв. м. отсутствуют перегородки, и кухня продолжает “уличный” стиль. Фартук рабочей зоны выглядит, как кирпичная стена дома, хотя на самом деле это керамическая плитка, выложенная особым образом. Разделяет кухню и жилую зону барная стойка простой формы.

Основные цвета в дизайне интерьера маленькой студии — белый и черный. Белый — цвет стен, потолка и даже пола. В черном выполнен весь декор: окна на стене, барная стойка, узоры на части стен, “расшивка” декоративной кладки в рабочей зоне, лампа-подвес, стулья и многие другие элементы.

В квартире 22 кв. м. в роли акцентного выступает насыщенный розовый цвет. Его немного, но он создает особенное, романтичное настроение, и придает шарм и элегантность всей обстановке. Он присутствует во входной зоне, на кухне, в основном объеме квартиры. Такая же розовая и приветственная надпись над лавочкой для обувания, ее позитивный настрой отлично сочетается с цветом.

Тщательно продуманный дизайн интерьера маленькой студии позволил создать комфортное и визуальное просторное жилое пространство на очень маленькой площади. Основные приемы, которые помогли добиться такого эффекта: использование белого цвета как основного, зеркального эффекта, а также снос перегородок и объединение функциональных зон.

Ванная комната



Дизайн-студия: «Градиз»
Страна:Россия, Екатеренбург
Площадь:21,9 м2
design-homes.ru
Минималистский интерьер крошечной квартиры 22 м2

Когда вы планируете своё будущее жильё, то стоит подумать не только о красоте и удобстве, но и о главной вашей цели. Ведь кто-то рассматривает свою квартиру в качестве места для еды и ночёвок, чей-то дизайн – один из лучших способов похвастаться перед близкими людьми дорогой и роскошной обстановкой, а некоторые считают интерьер выражением своего творческого потенциала.
Если вы солидарны именно с третьей группой, то вам придутся по душе изысканные элементы французского шика в шведском жилье. Поскольку эта квартира находится в обыкновенном панельном доме в самом центре Стокгольма, то и недостатки имеет соответствующие. Неудобная планировка и маленькая площадь всегда приводили в отчаяние новых жильцов. А тут ещё всего два окна, да ещё одно из них имеет ужасно узкую раму.

Из преимуществ этого жилья можно выделить лишь три встроенных шкафа. Но и это не утешает, если в распоряжении обитателей квартиры только 22 м2, из которых всего 4 отводится на кухонную зону.
Только хозяйка этого неуютного и неудобного поначалу жилья смогла превратить его из маленькой квартиры с кучей недостатков в прекрасное сказочное место, в которое безумно приятно приходить после отпуска или обычного рабочего дня.
В жилой зоне удивительным образом смогли поместиться кровать, небольшая столовая, консоль для ноутбука и один из вышеупомянутых встроенных шкафчиков, который прекрасно заменил владелице целую гардеробную. Для приобретения всех этих необходимых вещей не пришлось раскошеливаться, ведь хозяйка выбирала мебель, руководствуясь чувством заботы о родном доме.

Кухня же является воплощением минимализма, поэтому выполнена стандартно. Не самые модные и современные шкафчики белого цвета, за которыми просто регулярно и бережно ухаживали, выглядят очень аккуратно и опрятно. Если же декорировать их специальными наклейками для фасадов французского стиля, то эту комнатку можно будет смело назвать даже более уютной и приятной, чем гостиную.

interiorsmall.ru
Однокомнатная квартира студия 22 кв.м. (фото)

В данной статье мы поговорим об однокомнатных квартирах-студиях, и рассмотрим на фото интерьер одной из таких квартир площадью 22 квадратных метра.
Что такое однокомнатная квартира-студия?

В последнее время все больше и больше становятся популярными так называемые однокомнатные квартиры-студии. Это бюджетное жилье, как правило, небольшого метража 18 — 35 метров, хотя бывают как меньше по метражу, так и гораздо больше, но это чаще исключение из правил. В этой статье можно посмотреть фотографии дизайна студии 25 кв.м.

В таких квартирах жилая комната и кухня находятся в одном помещении и могут быть визуально отделены друг от друга небольшой перегородкой, ширмой или барной стойкой. Часто дизайнеры в интерьере студии используют контраст цвета. Например, кухонную зону выделяют одним цветом, а жилую — другим.

На фото видно, что в нашей квартире студии дизайнер использовал белый цвет для отделки комнаты, а черный и коричневый цвет выбрал для обустройства помещения мебелью, что достаточно гармонично смотрится на таком небольшом пространстве.
Расположение мебели в студии

Что же касается расположения мебели в однокомнатных квартирах-студиях, то сегодня придумано уже множество интерьерных вариантов, как превратить небольшой метраж в комфортное жилье, с учетом всех потребностей проживающего там человека. Здесь главное учесть основные принципы зонирования пространства, а также воспользоваться небольшими хитростями и новшествами, такими как складывающаяся мебель, выдвижные или подъемные-кровати. Даже самую маленькую квартиру-студию можно превратить в удобное уютное жилое помещение, в котором не будет ничего лишнего, но также найдется место для хранения всех необходимых вещей, достаточно лишь заранее продумать организацию жилого пространства.
Организация рабочего пространства на маленькой площади

Интересная задумка организации рабочего пространства на подоконнике. Обычно эту площадь занимают занавески и шторы, которые визуально уменьшают помещение. В нашем же случае дизайнер решил использовать каждый квадратный метр квартиры-студии максимально функционально.

Причем эта конструкция, где совмещены три в одном: столик, шкафчики для хранения вещей и подоконник. Смотрится гармонично и практична в использовании. Хорошая идея рационального использования площади небольшого помещения.

Спальное место в квартире студии
Интересно оборудовано спальное место в нашей студии. Подъемная кровать, которую используют ночью, с легкость превращается в компактный диванчик, который позволяет свободно перемещаться по комнате в дневные и вечерние часы. Это несомненный плюс в помещении, где каждый квадратный метр на счету.


Также преимуществом такой кровати является ортопедический матрац, который не имеет стыков и крепится к кровати таким образом, что при подъеме никуда не смещается. Постельное белье на кровати можно не складывать, а закрепить специальными резинками, которые обычно идут в комплекте к подобному спальному месту.

Мебель такого рода делают обычно под заказ с учетом пожеланий заказчика. Поэтому можно выбрать цвет и тип материала, размер, разновидность матраца, механизм поднятия – легче поднимается кровать, когда установлены газовые лифты. В общем, любой каприз за ваши деньги.

Есть, конечно, и недостаток у подъемной кровати – это ее высокая цена. Но если учесть, что мы получаем в итоге и кровать, и диван, и экономию пространства в квартире-студии, то за такой комфорт стоит переплатить.
Санузел в однокомнатной студии

Санузел в однокомнатных квартирах студиях, как правило, совмещенный, где умещается компактная душевая кабина, унитаз, умывальник, зеркало и небольшая стиральная машина.

Для отделки помещения обычно используют кафельную плитку — влагостойкий, практичный и относительно недорогой материал для отделки. Чтобы помещение визуально казалось больше, то стоит использовать плитку небольшого размера, например мозаику.

Есть еще более бюджетный и простой вариант отделки санузла. Например, при отделке стен и потолка в ванной комнате можно использовать пластиковые панели, которые монтируются быстрее и менее трудозатратно, чем плитка, но, правда, и смотрятся недорого. Если стоит задача сэкономить и быстро сделать ремонт в санузле, то такой вариант можно так же рассмотреть.
Прихожая в маленькой однокомнатной студии

В маленькой прихожей квартиры-студии обычно можно повесить вешалку для верхней одежды, и разместить небольшую полку или шкафчик для обуви.

Данное помещение выполнено в современном стиле. Использованы высокотехнологичные материалы. Используются контрастные цвета и гладкие линии. Все выглядит функционально и гармонично.

В коридоре нашей студии дизайнер смог уместить даже велосипед. Неплохой вариант для любителей езды на данном виде транспорта, если недостаточно места для размещения подобной техники, в общем, с соседями, холле.
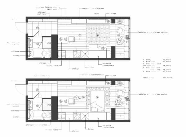
Однокомнатная квартира-студия на плане (кликабельно)

Идеи дизайна однокомнатной квартиры студии (видео)
kvartira-studia.ru
Квартира площадью 22 квадратных метра в Тайбэе . Чёрт побери

Архитекторы A Little Design выполнили перепланировку маленькой студии площадью 22 квадратных метра в Тайбэе, Тайвань. Учитывая рост цен на недвижимость, молодым людям все чаще приходится довольствоваться весьма скромными квартирами.
Хозяйка этой старой студии хотела сделать её более просторной и светлой, благо высокий потолок высотой 3.3 метра позволил организовать спальное место дополнительным уровнем. Архитекторы сделали акцент на открытом пространстве, максимально убрав всю лишнюю мебель и организовав функциональные зоны по периметру квартиры. Они приняли во внимание образ жизни заказчицы, которая много путешествует по работе, а по возвращении домой хочет лишь принять горячую ванну и отправиться спать. Душ заменили на полноценную ванну, а стиральную машину переместили в кухню. Компактная, но функциональная кухня также была озвучена в качестве важного требования, равно как и система закрытая хранения с книжными полками. Диван в гостиной служит в качестве места для отдыха и обеденного стола одновременно, так как хозяйка и её гости не любят есть за полноценным столом. Ну а оставшееся место в центре квартиры девушка использует для домашних тренировок.
Фотографии: Hey! Cheese
















chert-poberi.ru
