Планировка брежневка: серии, года, фото, планы
Планировка брежневка — особенности «брежневской» планировки необходимо учитывать, если вы планируете купить квартиру в таком доме.
В газетных объявлениях и на досках рекламных объявлений об аренде и продаже квартир можно встретить такую характеристику планировки домов, как «брежневка». Так же это определение имеет краткое наименование «бр».
Для того, чтобы не быть случайно введенными в заблуждение, рассмотрим основные характеристики планировки домов типа «брежневка» по внешнему виду, метражу и планировке.
Содержание статьи:
Планировка брежневка: история «брежневских» квартир
«Хрущевки» очень хорошо подходили для быстрого и дешевого расселения граждан СССР в отдельные квартиры, но время шло и требовались более современные решения.
В результате появилась целая серия домов, получивших в народе название — «брежневки».
Название это пошло от имени генсека Л.И. Брежнева, во времена которого происходила крупномасштабная застройка этой планировки домов, хотя некоторые строились еще и при Хрущеве и были названы «ранние брежневки».
Вообще период возведения домов этой планировки занимал с 1964 г. до начала 1980-х годов, хотя это касается Москвы, в регионах строительство некоторых планировок, относящихся к «брежневкам» продолжается до сих пор.
Самый пик строительства домов планировки «брежневка» пришелся на 70 — 80-е гг. прошлого столетия, строились они из панели, кирпича и редко из блоков.
Расположение домов в Хабаровске с планировкой «брежневка»
Дома с планировкой квартир «брежневка» расположены в центре города на ул. Владивостокская, присутствуют вдоль городских прудов, в Южном и Северном микрорайонах. Как правило застройки соседствуют друг с другом, создавая микрорайоны (касается пятиэтажек), есть и точечные отдельно стоящие дома (относится к многоэтажным домам).
Характеристики планировок домов «брежневка»
«Брежневка» уступает новой планировке, но всё же немного лучше, чем «хрущевка». Встречается около сорока видов модификаций планировок домов этого типа. Изначально планировка предусматривала восьми и девятиэтажные дома, но есть и пятиэтажные варианты планировок домов.
Планировка такого дома предусматривала квартиры от 1-комнатных до 5-комнатных.
Большинство «брежневок» строились из панели, но есть и кирпичные варианты. Сделанные из панели «брежневки» отличаются от «хрущевок» наличием чуть большей по площади кухни — 6,8 — 7,4 кв.м. и потолков высотой 2.7 метра(имеются ввиду панельные дома с планировкой серий II-29, II-49, I-1605/9, II- 18/9, I-515/9m, I-515/9ш, 1-Лг-602, 1ЛГ504Д2, 1-Лг-606, 121, 1-Лг-600). В остальном такие планировки имеют те же смежные комнаты и туалет с ванной комнатой, а так же мусоропровод между этажами и лифт.
Кирпичные варианты планировок домов, представлены сериями 1-528КП-41 высотой в 9 этажей и 1-528КП-80 высотой в 14 этажей. «Брежневки», в основной своей массе имеют этажность 9 — 17 этажей, в то время, видимо, все устремления были поближе к космосу, в результате появилось много серий домов в виде одно-двух подъездных «башен».
Крыша у домов этой планировки плоская, водоотвод, обычно, внутренний. Планировка квартир в панельных «брежневках» имеет подоконники шириной до 30 см., а кирпичная до 45см.
Плюсы планировки домов «брежневка»
В планировках домов «брежневок» (сериях I-528КП, I-600, I-528-КП-41, I-504, 121, I-528-КП-80), планировка квартир предусматривала наличие несущей стены, которая примыкала к соседской квартире.
В следствии чего повышалась звукоизоляция дома данной планировки, другими словами планировка «хрущевки» уже намного уступала по этим параметрам.
Хоть и мелочь, но гидроизоляция в санузле и широкие подоконники стали небольшими плюсами «брежневской» планировки. Самыми комфортными по проживанию, бесспорно являются кирпичные планировки домов «брежневка» — из-за своих шумо- и теплоизоляционных характеристик.
К тому же в этих домах зачастую предусмотрены раздельные санузлы и подсобные помещения, комнаты, в основном, раздельные.
Про планировки «брежневок» типа «башни» я уже упоминал — это вообще отдельные проекты того времени, так вот у них есть несколько достоинств — большие по площади кухни — около 10 кв.метров. и большие по площади лоджии.
Так же одним из удобств можно считать наличие двух лифтов — грузового и пассажирского (обычно это планировка серии П-3). Эти дома имели настолько большое количество квартир, что все жители одного дома могли составить население небольшой деревни.
По сравнению с «хрущевками» лестничные клетки стали более широкими, планировка квартир стала более удобной и большей по площади (в 2-комнатных квартира окна стали на обе стороны), с раздельным санузлом (не везде), богатые по конструкции и внешнему виду здания (особенно более поздние серии), сохранился «холодильник» под подоконником на кухне, в наследство от «хрущевки».
Недостатки квартир с планировкой «брежневка»
Так как, в основном, строительный материал домов был панельным — внешние стены домов были тонкие, в следствие чего зимой могло быть холодно, а летом квартиры накалялись от солнца.
Однако, это касается не всех панельных домов, например, серия II-29 (9-тиэтажная) обладает хорошими тепло- и шумоизоляционными характеристиками и имеет толстые внешние стены. В этой же серии планировки дома имеется пять различных планировок 2-комнатных квартир.
Как и «хрущевки», «брежневки» имеют свойство постепенно устаревают, как морально, так и технически.
Покупать квартиру в таком доме надо с мыслью о том, что через какое-то время придется «скидываться» на капитальный ремонт. Кстати, есть два способа приведения жилого дома подобной планировки «в чувство» — санация и капитальный ремонт.
Так вот санация проводится без выселения жильцов и не предусматривает «капитального» ремонта, а следовательно эффект намного ниже и не продолжительнее, чем при проведении капитального ремонта.
Вот теперь вы знаете, что вам предстоит, если вы проживаете или будете проживать в «брежневке», хотя эти мероприятия касаются любого дома в том числе, любой планировки.
В некоторых сериях домов планировки «брежневка» неудобно расположены кухни — между наружной стеной и санузлом.
Мусоропровод, о котором я обещал упомянуть отдельно, ввиду не обученности пользования им, часто бывает забит мусором, и этот факт является источником запаха и крыс в подобных домах.
Так же ввиду многоэтажности дома на лестничных площадках мало кто ходит и нередка картина, когда на лестничных клетках находят место для времяпровождения различные «кампашки» подростков, маргиналов и проч.
Планировка квартир типа «брежневка»
Планировка квартир в «брежневках» многолика и зависит от определенной серии дома, а так как их насчитывается около сорока и достаточно много серий этих домов возведено в Хабаровске, то представим на рассмотрение только общие цифры и часто встречающуюся планировку квартир в «брежневках».
Площадь квартир в «брежневках»:
- 1-комнатная «брежневка» — 22 — 31кв.м
- 2-комнатная «брежневка» — 42 — 45кв.м
- 3-комнатная «брежневка» — 48 — 56кв.м
- 4-комнатная «брежневка» — 68 — 72кв.м
В пятиэтажных квартирах с раздельными санузлами (кроме однокомнатных) минимальная площадь комнат: в зале примерно 15 кв.м., в спальне до 10 кв.м., в детской до 8 кв.м., кухне около 6 кв.м.
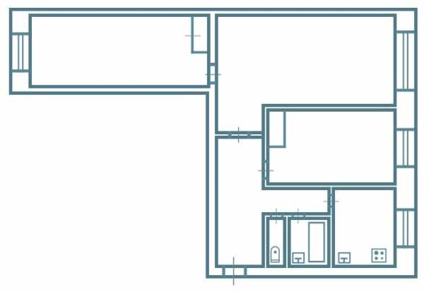
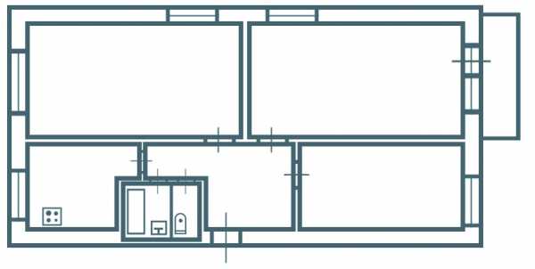
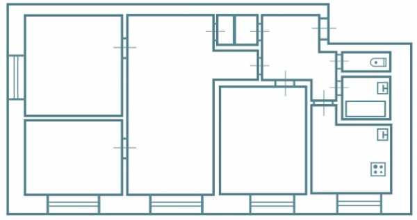
1-комнатная «брежневка» фото:

2-комнатная «брежневка» вагон (версия 1) фото:

2-х комнатная «брежневка» вагон (версия 2) фото:



2-х комнатная «брежневка» угловая фото:



3-комнатная «брежневка» (версия 1) фото:


3-комнатная «брежневка» (версия 2) фото:

3-комнатная «брежневка» (версия Ромашка) фото:

4-х комнатная «брежневка» фото:


Рассмотрим две кирпичные серии домов с планировкой квартир типа «брежневка».
Дом этой серии расположен на пересечении ул. Гамарника — Павловича. Это 9-этажный кирпичный дом. Период строительства домов этой серии в СССР был с 1960 — 80-е гг. Высота потолков — 250 см. Квартиры: 1-2-3-4-комнатные. Механизм лифта вынесен над крышей, что уменьшает слышимость работы лифта.
Этот дом расположен в районе остановки МЖК, точнее их там два — один на пер. Иртышский, второй на ул. Бийская. В этих домах планировка 1-комнатной квартиры предусматривает наличие кухни 7,6 — 8,5 и общей площади не менее 34 кв.м.
Санузел раздельный, с поперечно расположенной ванной, лоджии на всю ширину квартиры, за исключением, пожалуй 1-комнатных квартир — там лоджия расположена со стороны и на ширину кухни. сам дом 14-этажный, в котором расположены 2 лифта — грузовой и пассажирский.
Мусоропровод, как и лестница, максимально удален от квартир. Подъезд в доме этой планировки один.
Мы рассмотрели основные характеристики планировки «брежневских» квартир и домов. Теперь вы имеете примерное представление о домах и квартира в них, строящихся на протяжении длительного периода строек СССР.
Эта планировка в лице многих серии присутствует в любом городе России, квартиры продолжают продаваться и покупаться до сих пор. Возможно, кто-нибудь из прочитавших эту статью, купит квартиру в планировке «брежневка».
Успехов вам!
www.habrealty.ru
Что такое брежневка
В 1973 года была
разработана планировка улучшенных массовых застроек домов. Так и возник такой
вид домов, как «брежневки». 
Отличием такого здания от всех известных строений было то, что они строились с помощью железобетонных панелей. Лестницы стали более свободными, а также уменьшилось количество квартир на лестничной площадке. И еще главным их отличием было то, что они строились в высоту, их примерная высота составляла от 9 до 16 этажей. Но иногда они были и выше. Коридор в квартире остался таким же маленьким, но, не смотря на это, в планах квартир с двумя комнатами, где окнами выходят в разные стороны, размеры коридора все-таки увеличилась. В планировке квартир с одной комнатой возникнул коридор, который используется для отделения кухни от комнаты, так как в хрущевках был вход в кухню сразу через комнату. При этом при всем жилая площадь снизилась до 28 и 15 кв. метров соответственно одно- и двухкомнатные квартиры. В двух- и трехкомнатных квартирах поменяли планировку, в которой отсутствуют проходные комнаты, с отдельным санузлам. Также в это время уже начали, появляется именно четырехкомнатные квартиры. Новая планировка положительно сказалась и на высоте потолков, она увеличилась до 2,7 м.
В этих домах обязательно сооружали лифт и мусоропровод. Секцию из двух квартир прятали в так званый «карман». И даже если сравнивать такие дома с «хрущевками», то они и в правду имели улучшенную планировку, но они даже и в подметку не годились «сталинкам». Кухня в такой квартире размером от семи до девяти квадратных метров, а потолки ниже, чем в таких же «сталинках». Комнат может разное количество от одной до пяти. При этом общая площадь будет равна от 20 до 80 метров квадратных.

Самыми главными отличиями таких построек есть присутствие мусоропровода и лифта, а также немаленькой площадью и этажностью. В домах брежневок есть уже наличие раздельного санузла. Благодаря этим дома появилось разнообразие форм, к примеру, высокие и широкие здания. А также самой главной чертой является наличие чулана под окном на кухне, его называли в народе хрущевским холодильником, так как он еще появился во времена Хрущева.
Брежневки были очень популярны в тех районах, где проводилась массовая застройка в 1960-х – 1970-ых годов. В связи со стремительным развитием промышленности, нужно было создавать новые дома для рабочих, но при этом не тратить много денег. Поэтому в этих годах рождались такие интересные планы новых построек.
Прошло уже немало лет, но при всем при этом, значительное количество населения продолжает жить в тех домах, которые были еще построены в те далекие времена. И даже не смотря на то, что в нашей стране идут постоянные стройки новых зданий, все же эти люди не лишаются надежды на то, что государство сможет помочь им с жильем в будущем. А ведь эти дома очень часто встречаются совсем развалюхи, но есть и такие, которые вполне подходят для жизни.
www.kv-m.ru
Чем отличается типы домов хрущевка от брежневки
При покупке квартиры важно обращать внимание на тип дома, так как различные серии построек обладают своими особенностями планировки и условиями эксплуатации. Вторичный рынок недвижимости предлагает большое количество квартир, возведенных в период Советского Союза: «хрущевки», «брежневки» и «сталинки». Название каждой из построек сопряжено с именем руководителя СССР, в эпоху которых возводились многоквартирные дома. Давайте рассмотрим, чем отличается хрущевка от брежневки и в чем особенность каждого типа домов.

Тип дома хрущевка
Хрущевки являются первым типом массовых застроек в период с 1956 по 1985 год. Первоначально данный тип домов отстраивали из кирпича, но позднее стали использовать железобетонные блоки. По внешним параметрам фасады домов отличаются незначительно — имеют от 4 до 5 этажей.
Квартиры в кирпичных постройках имеют площадь до 22 квадратных метров. Кухни в редких случаях больше 4,5 квадратных метров, а комнаты от 6 до 9 квадратных метров. Санузел в таких квартирах совмещенный.

Слабая звукоизоляция, небольшие размеры комнат, заниженные потолки до 2,6 метров представляют плюс только в виде низкой стоимости квартиры. Срок эксплуатации хрущевок рассчитан на 25 лет, но постройки данного типа используются и в наши дни. Даже при ограниченном бюджете рекомендуется воздержаться от приобретения недвижимости в хрущевках и накопить на более надежное жилье. Если же других вариантов нет, то следует внимательно осмотреть фасад дома, оценить прочность постройки и качество коммуникаций.
Несмотря на все недостатки кирпичных хрущевок они практичнее панельных построек. При аналогичных площадях квартиры возникают серьезные потери тепла в связи с качеством стен. Приобретать подобную недвижимость следует в том случае, если в них производилось дополнительное утепление.
Квартиры в хрущевках отличаются следующими параметрами:
- Смежные или проходные помещения;
- Узкие коридоры и подъезды;
- Отсутствует лифт.

Тип дома брежневка
Брежневкой называются панельные постройки, возведенные в период с 1960 по 1990 год. Дома данного типа представляют собой улучшенную версию панельных хрущевок с 9 или 16 этажами. Также построены пятиэтажные брежневки, но внешне их сложно отличить от хрущевок.

В брежневках появились лифты и мусоропровод, также увеличилась площадь помещений и высота потолков стала достигать 2,8 метров. Площадь кухни от 6 до 9 квадратных метров, санузел раздельный. Стены из бетона и керамзита стали качественнее. Стоит отметить, что есть варианты домов данного типа с маленькими квартирами (гостинками), в которых стены не отличаются от панельных хрущевок.
Как купить квартиру на вторичке
Читайте об особенностях оформления покупки квартиры на вторичном рынке в этой статьеОтличительные черты брежневок:
- Раздельный санузел с гидроизоляцией;
- Широкие лестничные пролеты и площадки;
- Комнаты с изоляцией.
Планировка в брежневках зависит от определенной серии постройки. Их количество превышает более сорока серий. Следует выделить наиболее часто встречающееся планировки в брежневках:
- Однокомнатная — от 23 до 31 квадратных метров;
- Двухкомнатная — от 43 до 45 квадратных метров;
- Трехкомнатная — от 49 до 56 квадратных метров;
- Четырехкомнатная— от 69 до 72 квадратных метров.

Сравнение хрущевок и брежневок
Брежневки предпочтительнее панельных хрущевок. Рекомендуется выбирать кирпичные постройки или заняться поиском более современного жилья.
Различия между брежневками и хрущевками:
- Этажность: в хрущевках меньше этажей, чем в брежневках;
- Площадь: брежневки просторнее хрущевок;
- Удобства в подъездах: в брежневках присутствует лифт и мусоропровод, а в хрущевках нет;
- Высота потолков: в брежневках они выше;
- Рыночная стоимость: хрущевки дешевле.
Если у вас остались сомнения в отличиях брежневки от хрущевки — задавайте вопросы в комментариях.
realtyinfo.online
Брежневка — Lurkmore
Брежневка — многоэтажное обиталище (обычно 9-17 этажей), сооружённое из железобетонных панелей или кирпича, массовое строительство пришлось на 70-е и 80-е годы прошлого века. В отличие от хрущёвки, оборудовано лифтом (или двумя, один из которых часто не работает) и шлюзом в открытый космос мусоропроводом, временами воняющим на весь подъезд так, будто мусор из него не вывозили месяц. Брежневку часто можно распознать по ключевой фразе «Квартира улучшенной планировки».
Ленинградские дома-корабли, по единогласному мнению, к брежневкам не относятся; а вот насчет 14-этажных домов-свечек (серии «Башня Вулыха», «Тишинская башная», ещё «такая-то Башня», да и К-14 пикрелейтед тоже) мнения расходятся.
Вполне себе безымянками-«брежневками» являются дома серии II-68-N, но чистую II-68 (и принимаемую за неё К8-16) за обилие балконов-лоджий таки называют «дом с балконами» или (если 5 квартир на этаж) «свечка с балконами» (с одной из широких сторон дом фасад полностью покрыт лоджиями, причём площадь каждой почти 6 кв. метров). Есть также радикальное мнение, что брежневками следует называть только постхрущевские пятиэтажки, которые при внешнем сходстве с хрущевками существенно отличаются внутренней планировкой, похожей на таковую у многоэтажек.
П-44 и И-155 брежневками не называют.
Ах да, все перечисленные многоэтажки, а также обыкновенные хрущобы называют коммиблок, так как их массово строили в социалистических странах, так что ими, помимо Рашки и прочего СНГ, завалены так же Куба, Восточная Германия, Польша, Северная Корея, отчасти Китай и прочие очаги социализьма. И хотя многоэтажные дома можно встретить и во Франции, и в США, почему-то к жилым многоэтажкам всё равно прилипло название «коммиблок». В этой стране коммиблоки строят до сих пор и не собираются останавливаться.

Челябинский Пентагон

«Китайская стена» aka «Красная шапочка» (облицовка верхнего этажа красной плиткой). Питер.

«Китайская стена» (Номенклатурный дом на Ленина, 1). Самара.
Еще один пример хтонической архитектуры. Москва, ул. Довженко, д. 6.

Железобетонный смайлик в г. Кривой Рог, Украина (ул. Бульвар Вечерний).
648-квартирный червяк в Троицко-Печорске, Южный квартал, 6.

Одесская клюшка (ул. 25-й Чапаевской дивизии, 1)

Тамбовский Пентагон (ул. Чичканова, 131)

И снова Одесса. Изя, и таки шо вы думаете, у меня во дворе ядерный полигон!
Почувствуй разницу.Когда советская власть поняла, что массово строить дома «вширь» невыгодно, дома начали строить «ввысь», то есть старались, используя только один подъезд, выстроить дом на максимально большее количество квартир. И если в хрущёвку приличной длины умещалось примерно 80 квартир, то в высотку при раздельном туалете и ванной (!) помещалось квартир ~81-120. То есть — в одном доме с 12-16 этажами, по сути, жило население целой деревни на подъезд! Отсюда гоп- или говнарь-тусовки в подъездах и полный срач как следствие. А в последнее время — и забвение детьми и родственниками одиноких стариков с шокирующими общественность последствиями: соседи же, в отличие от жителей бараков, полногабаритных малоэтажек 50-х годов и нынешних элиток ХХІ века, друг друга совсем не знают! Также есть комбинированные брежневки, простирающиеся не только вверх, но и вширь (аж до 800 метров на одно здание), известные в народе как «Китайская стена» и способные заселить в себя овер 2000 людей.
Примером апофигея такой гигантомании является монструозный дом, находящийся в суровом городе Че и представляющий собой квадрат 200×200 метров, содержащий в общей сложности 998 квартир. Внутри бетонного 10-этажного периметра находится детский садик, гаражи и дофига прочей народно-хозяйственной хрени. При наступлении локального пиздеца данный дом может быть легко (всего-то закрыть дырки) превращён в отличную крепость со стенами не хуже, чем у Трои. Что характерно, в народе сей дом уже имеет прозвище «Пентагон».
На родине Камаза, в городе Набережные Челны, который, ЧСХ, назывался одно время Брежнев, есть дом длиной в два перегона общественного транспорта, то есть рядом с этим зданием находятся три остановки идущего вдоль него автобуса.
В Днепропетровске решили не отставать и запиздячили файрволл в 821 метр длиной (по средней линии). 36-подъездный «домик» на своей протяженности также имеет три троллейбусные остановки. Илите достались двухэтажные (в каждом подъезде по две квартиры) пентхаусы на последнем этаже.
Алсо, еще «Китайская стена», «Ульяновский бюстгальтер», «Волгоградский вариант» (самый длинный) и т. д.
С точки зрения архитектуры застройка в виде непрерывных замкнутых структур имеет ряд преимуществ: компактность, защита от неблагоприятных воздействий внешней среды, прокладка инженерных коммуникаций при строительстве на многолетнемерзлых грунтах, устройство дорожной сети с учетом направлений господствующих метеленесущих ветров и т. д., но отсутствие приятности для глаз в этом длинном ряде достоинств очень символично и указывает только на отношение идеологов совкового типового строительства к прекрасному.
Проще говоря, пока инженеры с помощью угловых вставок думали о ветрозащите (причем довольно фрагментарно), они забыли об эстетике (чем, правда, страдали и соседи, и враги, чего стоит Сарсель и его сарселит или один только Прюитт-Айгоу). В результате приходится лицезреть закрученные винтом, перекосоебленные, замыкающиеся на себя, распятые воспаленным инженерным моском крупнощелевые архитектурные выкидыши.
Другой стороной этой медали является обстоятельство, не очевидное для не проживающих в таких домах: как, блджад, обслуживать такое огромное, злоебучее хозяйство, чтобы оно не текло, не забивалось, не искрило и не горело при нашем-то сервисе? Особенно ответ на этот вопрос волнует жителей таких невъебенно распиздяченных во все стороны домов в свете последних решений партии об общедомовых нуждах в многоквартирных домах.
Алсо, один ленточноинтерфейсный дом может содержать в себе несколько корпусов и именоваться, например, 5/1, 5/2 и т. д. (до бесконечности) или с добавлением литер, а может считаться одним зданием. Тут уж как повезет… или не повезет.
[править] Особенности брежневок
[править] Лифты как средство передвижения и размножения
Тёплый ламповый советский лифт

Замкни контакты — получишь результат…

Каноническая панель с кнопками в лифте

Панель для продвинутых лифтоводов
Шахта лифта зохаваит тебя
Особого внимания по приношению лулзов жильцам заслуживают лифты, состояние которых оставляет желать лучшего. Поскольку дома строились давно, лифты сильно износились и имеют привычку застревать в самое ненужное время, а вот в нужное в них ни за что не застрянешь, да и о трепетном и нежном отношении к ним электромехаников забывать не стоит. Особенно неприятно застрять в жаркий засушливый летний день в маленьком (не более 4-х человек) лифте со старенькими бабушками, имеющими проблемы с кишечником… Однако иногда застревание в лифте даёт и профит, например, застрять в лифте с красивой девушкой, конечно, если у самого нет проблем с кишечником. ИЧСХ, новые зелёные лифты застревают от малейшего чиха, а старые, советские, хуй остановишь, даже просунув в створки дверей урановый лом.
Зачастую в лифтах гадят посторонние люди, гости подъездов, а иногда, бывает, и сами жильцы: где живём, там и срём. Поэтому, заходя в лифт, нужно быть внимательным: весьма высока вероятность наступить во что-нибудь, не очень приятное на запах, вид и вкус.
Интересно также почитать различные надписи внутри лифта, которые обычно пишет школота и прочие малолетние долбоёбы. Истории известен случай переписок в лифтах между жильцами и хулиганьём, например, вот такой. В некоторых домах, еще с 90-х, сохранилось огромное количество наклеек: POWER, Трансформеры, Бич Гелз, Покемоны и просто голые бабы — немногое хорошее, что вызывает скупую слезу ностальгии. Вот если бы эти негодяи еще не лепили жеваную жвачку от этих ваших наклеек на кнопки, было бы вообще пиздатенько, а то собачка, вбежавшая в кабину лифта поперед хозяина, может ВНЕЗАПНО уехать, а хозяину может оторвать поводком полпальца, палец или даже яйца, или наоборот. Бывает даже такое. Бригадир лифтёров гарантирует и предупреждает.
Доставляет также и работа лифтёров. Не лифтобабок, дежурящих в лифтёрной и зачастую выполняющих роль фильтраторов подъездов, а механиков-лифтовиков, которые вытаскивают нас из застрявших лифтов. Например. Причём жильцы, застряв, иногда сами пытаются открыть дверь, добавляя этим самым лифтёрам работы. При этом нередко становятся героями, добавляя работы ещё и городским санитарам или местным алкашам, которые за бутыль шмурдяка достанут тушку из шахты. У лифтёров есть свои радиочастоты, что радует сканеристов-слушальщиков.
С недавнего времени лифтовики — новый вид транспортных фанатов.
[править] Дефекация во все поля


«Я так воспитан, хуле!»
В связи с возрастом дома, а также хроническим равнодушием работников коммунальной сферы, мусоропровод является не только средством для распространения няшных крыс, мышей, тараканов, но и источником феерического, неповторимого аромата, благодаря которому брежневка легко опознается даже с завязанными глазами. Букет его составляют подгнивающие объедки, говно и строительная пыль — и это еще не полный список. Также мусоропровод регулярно ласкает уши жильцов дома теплым ламповым звуком падающего содержимого: прекрасные, звенящие классические сонаты в три часа ночи в исполнении как минимум ящика падающих бутылок от водки и тяжелый нойз-индастриал, ежели вниз полетят пивные или яга-банки. Традиционно хуевая шумо- и виброизоляция брежневок гарантирует это. Впрочем, хорошо, что хоть туда, иногда всё это летит в окно.
В первых сериях брежневок доблестные советские проектировщики и не помышляли о том, что через 30-40 лет при входе в подъезд и выходе из квартиры надо будет надевать противогаз, и размещали мусороприемники на виду, прямо на лестничных клетках между этажами. Впоследствии баг был выпилен, и люки мусопроводов начали размещать в закутках за лифтовой шахтой. Быдло смекнуло и начало использовать эти укромные уголки для справления естественных нужд или еще чего похлеще[1].
[править] Консьержки
Несмотря на тот факт, что данная особенность присуща в основном современным новостройкам, своего рода КПП все чаще запиливается силами жилищных кооперативов и самих жильцов, которых банально заебали храпящие на лестнице бомжи, вездессущие гопники и всякие разносчики-расклейщики рекламы конпруктерной помощи и рыгаловок, типа ололопицца, бигфиш и прочих тошниловок. В особых случаях закуток для К. строится из кирпичей и притыкается к подъезду. В некоторых сериях домов (К8-16 и II-68, например) место под консьержную будку таки есть, но оно требует перенавешивания почтовых ящиков.
Сферическая в вакууме консьержная оборудована телефоном, креслом, столиком, телевизором, кнопкой от домофона, списком жильцов и бабулькой из числа все тех же жильцов. В наиболее продвинутых имеются даже санузлы, кушетки для сна и (самопальные) системы видеонаблюдения (без записи). Именно благодаря консьержкам твои друзья не могут свободно пройти в подъезд, чтобы помочь тебе вынести старый диван, именно консьержки докладывают твоим родителям, что пока их не было дома, малолетние и не очень злодеи устроили трэш и угар у тебя на хате, а твоя жена всегда знает, какой длины юбка у новой молоденькой ассистентки. В этом смысле они являются достойной заменой бабкам, мониторящим в окно и с балкона твои перемещения в отсутствие жены/родителей и составляющим по итогам отчет в двух экземплярах с резолюцией «на подпись».
Но нет худа без добра: выйдя из квартиры, ты не спотыкаешься о заблеванное тело на лестничной площадке, вынося мусор, ты не боишься наступить на спидозный шприц, свежих надписей в лифте в разы меньше, а ссаниной в подъезде практически не пахнет.
Есть способ обойти вахтёршу: для этого всего лишь нужно заиметь универсальный ключ от домофонов (такой ключ открывает все домофоны определённого производителя). Если ты сам открыл домофон подъезда, вахтёрша думает, что ты новенький жилец/друг семьи кого-либо, и пропускает. Но может и высунуться — спросить номер квартиры. Если подъезд не оборудован второй дверью, можно просто, открыв дверь, переть вперёд, не обращая внимания на вахтёршу — если открыл сам, они обычно не лезут. Случаются, конечно, и казусы, когда вахтерша может усомниться в твоих дресс-коде/морде и, заслоняя своей тушей коридор/лифт/лестницу, стоять насмерть, не пропуская тебя ни в какую.
[править] Подъезд
Состояние проводки (это всего лишь кабельное)
Вместо этого котэ могла быть любопытная личинка человека
В отличие от подъездов простых пятиэтажных домов, оные у многоэтажек славятся своей засранностью. А дело всё в том, что если в хрущёвке на весь подъезд приходится 10-30 квартир (обычно 20 на подъезд), то в брежневке, особенно в «домах-свечках», узких и высоких, на один подъезд приходится довольно большое количество квартир (до 180), от чего в подъезде ежедневно бывает большое количество людей совершенно различного возраста и социальных слоёв. Жильцы домой добираются, как правило, не по лестнице через все лестничные клетки, а на лифте, поэтому зависающих на площадках персонажей и отходов их жизнедеятельности не видят. Вследствие перечисленного, в подъездах брежневок обычно творится срач. Там может быть нассано, насрано, наблёвано, пролито пиво, дешёвое, воняющее, а ещё туда выходят покурить жильцы дома, разбавляя воздушный ансамбль запахом Беломора и пердежа. Краска на стенах уже давно облупилась, а ремонт если и будет, то только на деньги жильцов (а у них жаба), и вообще удивительно, как там ещё мутанты не завелись…
Отдельно доставляет состояние проводки в подъездах, причём иногда провисают не только гирлянды кабелей кабельного ТВ, интернет-провайдеров, радиоточки, телефона и домофона, но даже и проводов под высоким напряжением — от 220 вольт до over 9000. Всё это просто болтается на весу, рваное (на скрутках и изоленте, медь на алюминий, всем похуй) и ждущее своего часа быть замкнутым… А если и замкнёт, свет продолжит гореть, ибо электрики давно поставили «жучки», и всё сгорит к ебеням. Иногда нараспашку открыты вводно-распределительные устройства (электрощитовые), находящиеся внутри или снаружи подъезда, внутри оных можно обнаружить, например, поджаренного котэ, превратившегося в мумию 5 или 25 лет назад.
[править] Лесенки
Все дома оснащены лестницами, но есть особенные дома, у которых лестницы и квартиры находятся раздельно. Простые жильцы путешествуют по подъезду исключительно на лифтах, лестницы же по идее нужны на тот случай, если оба лифта внезапно сломаются или случится пожар/землетрясение/ядерная война/ещё какая НЁХ, и нужно будет срочно эвакуироваться. Однако в повседневной жизни лестницы заняты школотою, гопотою, реже нефорой и прочими говнарями. Выключатель освещения лестниц давно выдран с корнями, из стенки торчат лишь два провода, если их замкнуть — свет зажжётся. Только голыми руками не лезь — есть шанс получить живительные 220 В. Посреди лестниц может валяться дверь, когда-то закрывавшая балкон, арматура, чей-нибудь диван, давно разбитый телевизор, бомж… Лучших мест для натурных съемок Ридли Скотт вряд ли нашёл бы.
На стенах красуются наклейки и надписи вроде: «Школа 70 — лучшая в Мире!» или «Сейчас 1998 год, и тут были Вася и Саня, курили, пили, на пол ссали, ну а вы, жильцы, убрали», «Гоп-ца три-ца тратата, мы ебали верблюда́», отрывки из песен и сказок Сектора газа и Красной плесени, говнограффити, тысячи их, и оставшиеся ещё с 90-х годов «RAVE», «RAP калл», «Scooter cool», «Metallica», «Спартак чемпион», «Петя мудак» и т. п., нагоняющие ностальгические воспоминания на поколение Пепси. Также, примерно 10 лет назад, начали появляться номера мобильников, асек, вконтактов. В углу когда-то что-то горело. Есть версия, что пукан или сентябрь.
А ещё в домах с отделёнными от квартир лестницами выход на крышу дома находится именно на этой лестнице[2] в помощь руферам, которые ломают замки крыш, не опасаясь, что мимо пройдёт бабка и сдаст их сами знаете куда.
[править] Подвалы
Подвалы в брежневках отличаются от подвалов хрущевок, как правило, отсутствием сараев. Отсутствуют они там потому, что быдла сверху в 2-10 раз больше (а подвал по площади такой же или меньше, чем в хрущевке) и трубы лежат повсеместно (в отличие от хрущёвок, где они обычно идут ближе к периметру фундамента), просто не позволяя сделать подвал «улицей сараев». В кирпичных 5-этажных версиях брежневок (известных как 86-я серия) подвалы изначально могут быть заложены так феерически, что залезать в них можно только ползком через маленький люк, а скорее всего, и перемещаться там придётся так же, ползком — отчего залезать туда могут лишь сантехники да связисты.
Подвалы многоэтажек знамениты в основном тем, что с конца 1980-х и примерно по начало 2000-х были излюбленным местом тусовок молодёжи, как неформальной, так и простой, потому что тусоваться там было непалевно (в хрущевках же тусы разгонялись жильцами, приходившими за картошкой). В связи этим там можно и поныне встретить много надписей вроде: «Анархия — мать порядка», «Цой не умер, он просто вышел покурить», «SATANA 666» и остатки наклеенных на стены постеров. Выход из моды подвальных тусовок и похуизм управляющих компаний, возросший до неприличных степеней, привели к тому, что подвалы из мест тусовок превратились в источник баттхерта жителей (в основном первых этажей) — подвалы постоянно затапливает, и там начинают размножаться комары, крысы и блохи. Причиной затоплений являются проржавевшие трубы всех коммуникаций, а также большое количество молодых/неразумных маманечек, на полном серьёзе считающих канализацию хрущёвки мусоропроводом и смывающих туда прокладки и памперсы (к слову, когда дефицит на листовую нержавейку прошёл, поздние брежневки стали такое выдерживать). Канализация не выдерживает подобных издевательств, и одуревшие от всплывающего у них в ванной (и бьющего фонтаном в туалете) говна жители первого этажа идут в подвал и выбивают заглушки стояков, превращая подвал в канализационное болото. Это явление встречается чуть менее, чем во всех многоэтажках бывшего USSR, и понятно, что в таких условиях ни сараям, ни подвальным тусовкам там не бывать. Хотя в ДС ДЭЗы любят обустраивать там общежития для своих дворников-гастарбайтеров, вследствие чего трубы иногда латаются. А бывает и так.
[править] Балконы
Некоторые многоэтажки оборудованы подъездными балконами, то есть выйти на балкон можно прямо из подъезда, дабы покурить и на улице, и в то же время в подъезде дома. Находятся такие балконы, как правило, между этажами прямо на лестничной клетке, в 9-этажных домах (и выше) проход к такому балкону идёт через лифтовую площадку. В других сериях (например, в 137-й) балкон ещё и соединяет между собой лифтовую площадку и чёрную лестницу. Как и в случае предыдущих пунктов, так же являются местом тусовок «школотронов» и им сочувствующим. Особенно если в махровые советские годы добросовестные жильцы прилегающих площадок, таки впендюрили туда рамы с остеклением, и места парковки пятой точки. Ну а некоторые духовно богатые школьники и девы любят шагнуть оттуда, дабы узнать, правда ли есть свет в конце туннеля, но во избежание этого между балконом и миром плотским поставлена решётка, чаще всего — художественной ковки.
[править] Чердаки и крыши
Крыши были и до сих пор являются местом для того, чтобы выпить с какой-нибудь дурой портвейн «777» и потом смотреть с ней на звёзды. Любят крыши и местные самоубийцы. В ДС и ДС2 ходы на чердаки и крыши практически всегда наглухо закрыты ещё с конца 90-х (в связи с известными событиями взрывов домов), так что облом. В Мухосрансках замки если и были когда-то, то обычно очень давно вырваны вместе с петлями, и всем на это похуй.
Чердаки в таких домах будет правильнее называть техэтажами — чердак там, где покатая крыша и лестница к люкам, а тут обычно ступеньки и двери. Тусоваться там, в отличие от подвалов, было не очень удобно — как правило, низковато (метр-полтора, обычно не больше), а 95% площади составляет стекловата, мягкая в самом начале, но жутко чесучая потом. Да и жители последних этажей очень любили вызывать милицию при наличии нештатных акустических эффектов сверху. Впрочем, почти сразу чердаки стали запираться на замок, а в эпоху развитого бомжтыризма ещё одну решётку с ещё одним замком стали устанавливать на площадке крайнего этажа, дабы охотники за цветметом так просто не добрались до оголовка лифта и его тягового электродвигателя. Под санкции попали и антеннщики, но это уже совсем другая история.
[править] Детство в каменных джунглях
Спальный район Орла, на 99,9% состоящий из девятиэтажных брежневок «Владимирская серия»Такие многоэтажки особенно горячо любимы школотой и гопниками — ещё бы, не нужно стоять в душном вонючем подъезде, а можно спокойно курить, бухать и/или упарывать, стоя на балконе, созерцая каменные джунгли, ёба! Особенно доставляет в холодное время года: вышел на балкон, замёрз, зашёл в падик — погрелся. Красота!
Если дом оборудован одновременно подъездными балконами и двумя или более лифтами и лесенками, школота начнёт устраивать там игры, например «галю» или «сифу».
[править] Парковка. Битва за место под солнцем
Отдельный, беспробудный, непробиваемый здравым смыслом пиздец представляют собой парковки перед одноподъездными брежневками. Будучи разработанными еще при Ленине, градостроительные нормы совка никак не предусматривали того, что каждый пролетарий-жилец дома будет иметь свою личную шаху, а то и бэху, БЧД, а в особо тяжелых случаях еще и все вместе. В итоге по всему совку было настроено 100500 домов с чисто символическими парковками (по сути — подъездными дорожками для служебных машин). С наступлением 00-х жильцы самостоятельно начали искать места для стоянки на газонах, игровых площадках и местах подъезда мусоровозов.
Стесненные городские условия регулярно провоцируют у жильцов и гостей столицы желание принять участие в турнире-дезматче с призом. Мое место парковки!!111 TEH DRAMA, холивор и сотни крови уже included! Проблема, конечно, элементарно бы решалась покупкой гаража, но стоят они подчас на порядок дороже машины, что не по карману водятлам-нищебродам. Да и нежный народ они, водятлы, — пройти метров сто до гаража пузо не позволяет.
Алсо, некоторые жители первых этажей иногда сами уничтожают участок бордюра: засыпают дохлый газон гравием, рубят деревья, а то и вовсе осушают заболоченную опушку леса, примыкающего к дому.
[править] Гостинки и малосемейки
Во второй половине 80-х начали строиться дома с квартирами-малосемейками, то есть однокомнатными квартирами, рассчитанными на семью из двух человек. Различают три типа таких суперэконом-квартир: «гостинка», «кухня-прихожая» и «малосемейка с кухней».
Гостинка — это совковый вариант квартиры-студии и полукоммуналка одновременно. Помещений в такой квартире только два: комната и сральник с душем. Площадь — от 8 до 15 квадратов. Кухни нет, в общем коридоре может иметься коммунальная кухня со всеми её прелестями в виде соседского сраного белья на верёвках и очереди к плите. Особо одарённые зажигают примусы, как в 1930-е, граждане поумнее держат дома электроплитку и готовят на ней. В некоторых гостинках может иметься редкий перк — безлимитное электричество, ввиду отсутствия как самих счётчиков, так и технической возможности для их установки.
Кухня-прихожая — это малосемейка без отдельной кухни. В ней, как ясно из названия, внутриквартирный коридор совмещён с кухней: заходишь в квартиру и оказываешься в тёмной кухне без окон. Санузел может быть как совмещённым, так и раздельным, вместо душа — ванна, как минимум сидячая. Счётчики электричества есть, а вот водяных — хрен, и ушлые ЖЭКи рисуют жильцам потребление воды по принципу «от фонаря». Сейчас, когда обязывают вкрячивать эти счетчики всюду, вкрячивают — но может получиться смешно, например, холодный счетчик в туалете, а горячий в ванной. Площадь комнаты — от 8 до 15 квадратов, но если в гостинке это площадь всей «квартиры», то здесь уже только её жилой части. В общем, уже жить можно, особенно в одиночку или вдвоём.
Наконец, малосемейка с кухней — нормальная квартира, только малого метража, очень похожая на хрущевку. Всё, что нужно, есть. Может иметься и балкон/лоджия, и даже вторая комната, такая же крохотная, как и первая.
Типа домов два: à la хрущёвка (пять этажей, панели или кирпич, три подъезда, лифтов нет, мусоропровода нет, населена роботами) и à la брежневка (от пяти до двенадцати этажей, подъезд единственный, мусоропровод есть всегда, лифт есть, если этажей больше пяти).
В некоторых малосемейных домах до сих пор присутствует характерная для общежитий и прочих офисов нумерация квартир — три цифры, где: первая — номер этажа, остальные — номер квартиры на этаже.
С одной стороны, милипиздрические размеры квартир сближали их с хрущёвками, с другой же стороны количество квартир на дом ещё более выросло, а подъезд в таких домах, как правило, один на весь дом, с длинным подъездным коридором, совсем как в этих ваших америках. Данные меры вывели количество и качество приподъездных тусовок на принципиально новый уровень. Ситуация усугублялась тем, что часто такие дома выполняли роль общежитий и с исчезновением вахтёра быстро превращались в настоящие быдлятники, создавая центр притяжения для школоты, гопоты или говнарей со всего района. К счастью, понастроить их много не успели, и мема отдельного они не заслужили.
[править] Примечательные серии домов
- 111-90. Тут все факты. Сферическая брежневка в вакууме.
- 97. Эта расовая сибирская брежневка дотянулась даже до Сахалина, даже до Казахстана.
- 125. Но интересна не столько основная серия, сколько интерпретация из Братска — такие заполонили всю Сибирь и Дальний Восток.
- II-49. А вот это уже сферическая для москвичей.
- Поздняя брежневка П-44. Жива и поныне как П-44Т.
- К-4. В разрезе — свастика свастикой. Сделана не ради лулзов, а исключительно из соображений как строить дом ввысь, чтобы стояло на одной только арматуре. Не пошла в тираж хотя бы по очевиднейшей причине: жильцы четырёх комнат имеют «утопленные» окна и потому видят ТОЛЬКО стену.
- 121-60-25. Гибрид «свастики» и кристаллов поваренной соли. Активно ставилась в Припяти. Запиливалась ради экономии на арматуре.
- II-18-9, при Брежневе гордо называлась «Башня». Одноподъездная чуть менее, чем всегда, ибо точечная застройка. Де-юре для однолифтового сего красавца нормой было девять этажей роста, де-факто ставили почти всегда сразу двенадцать.
- 124-124-4: дом-трилистник, распространённый в Замкадье, но просочившийся даже в Москву (правда, в единственном экземпляре).
- 114-86: общесоюзная серия за авторством ЦНИИЭП жилища. Была воспроизведена в кирпиче и прочих местных стройматериалах в сотнях мухосрансков и райцентров, в разнообразных комбинациях этажей планировок и колличестве секций.
- II-68 (без приписок «-2» или «-3»). Тот самый «Дом с Балконами» интересен заточенностью под евроремонт (балконы закрывают собой разом окно комнаты и кухни, можно вставлять стеклопакет и экономить тепло, заодно рассыпая на балконе игрушки)
- К7/16 и К8/16: монстробашни на основе II-68, на единственный подъезд коих приходится или 135 квартир и жирный ПСН в К7/16, или же ажно 141 квартира в варианте К8/16. Лифтов всего 2, причём изначально грузовой лифт нельзя вызвать кнопкой, и потому он «возвращается на базу» на первый этаж. Дали толчок к созданию особо гибкой, но всё ещё «совковой на вид» серии КМС-101.
[править] Отражение в искусстве
У отечественной рок-группы DDT существует песня «Дом» с альбома 1985 года «Время», записанная и написанная, кстати, в квартире одной из таких брежневок:
В новом районе, бывшем загоне, Вырос огромный цементный кокон. Серая пыль, затвердев в бетоне, Схватила и держит тысячи окон, Тысячи стенок, балконов, дверей, Тысячи вечнозеленых людей, Тысячи разнокалиберных глаз, Тридцать тысяч зубов, и пять тысяч фраз. Штампованный внук Корбюзье с Ван дер Рое: Небо — два с половиной метра, Очередной рывок домостроя — Девять квадратов на человека! Пищеводы подъездов, давясь, пропускают Тысячи тонн живой биомассы. «Нам лучше не надо» — это считают Передовые рабочие классы. Тысячи кухонь каждое утро Жарят на нервах куриные яйца. В тысячах спален каждое утро, Нежно сопя, расплетаются пальцы. Здесь ежедневно кого-то хоронят, Через неделю — горланят свадьбы. Не стой под балконом — горшочек уронят. Легче родной, не провалилась кровать бы! Одиночество здесь — царица досуга, Среди соседей — ни врага, ни друга, Тем не менее все про всех все знают, Вечерами стены почти исчезают. Вон, бабка сидит и грустит у окна, Нет ни овец, ни козы, ни коровы, Ей на балконе завести бы быка, А то на кой хрен такие хоромы? Я тоже живу здесь в квартире сто три, И у меня двенадцать замков на дверях. Я закаляюсь летом без горячей воды, И размножаюсь зимой при электро-свечах. Я замурован в этом каменном веке, Я опечатан в этом чертовом блоке, Я наблюдаю, как в сжатые сроки Сосед убивает в себе человека. Миллионы мечтают об этой крыше, Нет им покоя под залатанным небом, Тысячи глоток.. граждане, тише! Ведь я помню, когда мы делились хлебом, Делились солью, посудой, дровами, Ходили к соседкам за утюгами, Слушали хором футбол и хоккей, Короче были, были… Заколдованный мир в эту темную ночь. Твои окна — звезды галактик, но я лечу прочь. Каменеющий мир, окольцованный быть, Быть может только любовь сможет всем нам помочь Остаться людьми, остаться людьми, остаться людьми, Остаться людьми, остаться людьми… |
[править] Настенная живопись
Типичная подъездная живопись
Спам. Теперь он и в твоём подъезде!
И ее суровая правда
- ↑ Впрочем жители некоторых сталинок таки смотрят на мусоропроводы в подъездах с уважением. Ибо при усатом курильщике их зачастую монтировали прям на кухне. Про «амбре» и дикую живность объяснять излишне.
- ↑ Не всегда, например одесские кирпичные брежневки в 14 этажей. Хотя именно в них, с помощью товарища, можно с лестницы легко и просто залезть на ржавую вентиляционную трубу, а через проём в стене — на техэтаж.
| Брежневка — неотъемлемая часть Советского Союза. | |
|---|---|
lurkmore.to
Чем отличается хрущевка от брежневки: выясняем особенности
Жилищная проблема в нашем государстве всегда являлась актуальной. Для каждого из руководителей страны в советское время важно было решить ее как можно быстрее и без больших затрат.
Индивидуальное строительство государственная казна бы не осилила, жилье трудящиеся получали бесплатно. Поэтому в большом количестве возводились типовые дома: «сталинки», «хрущевки», «брежневки». Данный материал поможет разобраться, чем отличается хрущевка от брежневки.
Типы домов в России
Наиболее распространенные типы домов в России. Фото № 1
В домах, которые построены в советский период, и сегодня продолжает проживать большое количество россиян. Подобные здания можно встретить в любом из российских городов. Их отличает особый внешний вид, определенное количество этажей и различная планировка.
Возведенным сооружениям народ присваивал фамилии руководителей страны, при которых объекты были возведены. Ниже мы поговорим о некоторых из них и выясним, чем отличается хрущевка от брежневки.
Общие сведения о «хрущевках»
В послевоенные годы насущным вопросом явилось расселение граждан из жилья барачного и коммунального типа. Задача жилищной программы в тот период состояла в оперативном обеспечении отдельной жилплощадью тех, кто в этом остро нуждался.
Конец 40-х – начало 50-х годов стал периодом, когда началось проведение экспериментальных проектов по возведению экономного жилья панельного типа. Именно тогда страна узнала о готовых панельных блоках, которые шли на строительство жилого дома.
Происходил процесс практически на глазах. Это было начало массового возведения типового пятиэтажного жилья, прозванного в народе «хрущевками». Причем, их сооружение считалось временным, только чтобы переселить жителей из непригодного жилья, потому эксплуатировать такие здания предполагали порядка 25-50 лет.
Планировка в «хрущевках»
Что такое «хрущевка»? Фото № 2
Параметрами квартир в таких домах являются:
- количество комнат: от одной до четырех;
- маленькая площадь комнат;
- маленькая площадь кухни;
- потолок высотой до 2,5 метров;
- наличие смежных или проходных комнат;
- наличие узких коридоров и лестничных клеток;
- лифт отсутствует.
Отличия данных домов состоят и в типе жилплощади. Так, если на лестничной площадке находятся четыре квартиры, то санузел у них будет совмещенным. Если квартиры на площадке три, то он раздельный. Квартиры различаются по площади: ее диапазон колеблется от 18 кв.м до 50 кв.м.
Изначальная планировка предполагала наличие совмещенного санузла. Если количество комнат превышало одну, то они обычно оказывались смежными. Таким образом, одна из них становилась проходной. С началом работ по улучшению планировки «хрущевок», был разделен санузел и немного увеличена площадь комнат.
Еще один интересный факт: так как процесс накопления денег на покупку электрического холодильника у граждан был небыстрым, достаточно удобным оказывалось наличие встроенного в кухню таких квартир так называемого зимнего холодильника. Довольно таки просторной кладовке, размещенной в прихожей, радовались все новоселы.
Как бы то ни было, со своей задачей данным домам удалось справиться: благодаря им заветные квадратные метры получила значительная часть жителей СССР.
Планировка в «брежневках»
Что такое «брежневка»? Фото № 3
Но население неуклонно росло, запросы к жилью становились выше, при этом происходило постепенное расширение городских границ. Данные причины легли в основу принятия решения о строительстве домов большей этажности. И начиная с 60-х годов, стали возводить дома в 8-9 этажей с постепенным увеличением до 12-16 этажей.
Подобные здания стали именовать «брежневками», так как пик их массового строительства происходил во время правления Брежнева. Есть мнение, что «брежневки» равнозначны «хрущевкам», отличает же первые улучшенная планировка: количество квартир на этаже составляет две-три; наличие широких лестничных пролетов; наличие изолированных комнат; использование при их строительстве другого материала стен (железобетона) и др.
Санузел в «брежневках» раздельный (проведена гидроизоляция). На девятиметровой кухне можно разместиться большой семье. Площадь таких квартир достигает 80 кв.м. Их преимуществами являются наличие неплохой планировки, ровных стен и потолка, «юный возраст» самих зданий.
Отрицательные стороны «брежневок»: ограниченные возможности при их перепланировке, так как большинство стен являются несущими. Также нельзя не упомянуть о плохой звукоизоляции, холодных помещениях. Последнее связано с тем, что батареи размещены в стенах, требуется установка дополнительных радиаторов.
Чем отличаются эти типы домов и какой лучше выбрать?
Их существенные отличия заключаются в следующих параметрах:
- Этажности (у «брежневок» этажей больше).
- Такие блага цивилизации, как лифт, мусоропровод, чердак у «хрущевок» отсутствовали. «Брежневки» же ими уже оборудовали.
- Из-за использования готовых блоков «хрущевки» не могли похвастаться просторными площадями. На их кухнях и вовсе сложно было разойтись. Площадь же «брежневок» увеличилась, планировка стала улучшенной, увеличилась высота потолка.
Несмотря на перечисленное выше, мнение многих специалистов однозначно: «брежневки» ничуть ни лучше своих предшественниц – «хрущёвок», а даже хуже. С недочётами при их проектировании и строительстве справились частично, а достоинств не стало больше.
Что касается стоимости, то у «брежневок» она выше. Причина в более поздних сроках их строительства, а также ряде еще некоторых преимуществ. Поэтому, ознакомившись с тем, чем отличается «хрущевка» от «брежневки», каждый выберет для себя приемлемый вариант.
О том как отличить дома, которые были построены в советские времена, вы можете узнать, посмотрев видео:
Заметили ошибку? Выделите ее и нажмите Ctrl+Enter, чтобы сообщить нам.
Смотрите также Телефоны для консультации
01 Дек 2017 kasjanenko 69pravozhil.com
Чем отличается брежневка от хрущевки? Плюсы и минусы брежневок и хрущевок.
Не нашли ответа на свой вопрос?
Узнайте, как решить именно Вашу проблему — позвоните прямо сейчас:
+7 (499) 350-80-69 (Москва)
+7 (812) 309-75-13 (Санкт-Петербург)
Это быстро и бесплатно !
Жилищный вопрос остро стоял в конце 40 начале 50-х годов, поэтому нужно было решить проблему, применяя дешёвые строительные технологии. Чтобы обеспечить всех нуждающихся в жилье, была создана специальная программа, согласно которой строились дома по упрощённой «панельной схеме».
Благодаря специальной технологии производства огромных панельных блоков, дом можно было построить намного быстрее, чем кирпичный. Таким образом создавались целые районы из пятиэтажных домов, которые потом люди прозвали «хрущевками».
Квартиры в них были небольших размеров и предлагались для нуждающихся только как временное решение, чтобы переселить людей из бараков. Срок эксплуатации таких домов рассчитывался на период от 25 до 50 лет.

Программа свою цель выполнила и дала жилье многим. Но постепенно количество людей в городах увеличивалось, границы города расширялись и уровень комфорта возрастал. Нужно было улучшить программу выдачи жилья нуждающимся и впоследствии разработали другой проект, согласно которому жилье решили строить не в ширь, в высоту.
Таким образом, количество зданий с этажностью 8-9 этажей стремительно увеличивалось.
Народ прозвал дома «брежневками», потому что возведение подобных строений пришлось именно на период правления Л. И. Брежнева. Некоторые проекты были доработаны и строились дома с 12 и 16 этажами, это позволяло немного расширить планировку самих квартир и улучшить здание в целом.
Некоторые люди сходятся в мнении, что «брежневки» это те же «хрущевки», только имеют улучшенную планировку: шире лестничная площадка, изолированные комнаты, железобетонные стены, количество квартир на этаже. Разберём отличия брежневки от хрущевки.
В чем разница между брежневками и хрущевками?
Проект брежневских построек улучшался на протяжении 20 лет и помог создать более 40 разных серий построек, которые отличаются между собой рядок технических характеристик.
Основные отличия между брежневками и хрущевками:
- Этажность. В основном все хрущевки – это пятиэтажные дома, которые разработаны с малогабаритными квартирами. А вот брежневки строили от 8-ми до 16-ти этажей с улучшенной планировкой комнат.
- Поскольку условия проживания в хрущевках были минимальны, то там отсутствовал мусоропровод, лифты, чердаки. При строительстве брежневок это учли.
- Улучшенная планировка квартир в брежневках позволила увеличить высоту потолков с 2.5 м до 2.7м, расширить общую жилую площадь.
- За счет использования более качественных материалов, брежневки стоят немного дороже, чем малогабаритные хрущевки.
Достоинства брежневских построек

Основным преимуществом данных построек является увеличенная жилая площадь и более комфортная для проживания планировка. Отсутствие «проходящих» комнат, потому что все они изолированы друг от друга.
При строительстве брежневских домов использовались панельные материалы, потому пол в большинстве случаев идеально ровный.
Специалисты спроектировали множество 8 и 16-этажных домов, которые помогли обустроить жизнь множеству трудолюбивых граждан по всей стране. Благодаря хорошей планировке можно комфортно расположится в квартире без лишних неудобств.
Поскольку при строительстве использовались материалы повышенной износостойкости, то срок эксплуатации таких построек намного выше, чем «хрущевок». Это основные моменты, чем отличается хрущевка от брежневки.
Недостатки брежневок
При всех преимуществах хорошей планировки, есть и несколько недостатков, из-за которых нужно будет хорошо подумать прежде чем покупать квартиру на вторичном рынке жилья.
Самым главным минусом являются бетонные стены. Этот такой материал, который плохо держит тепло и зимой в квартире будет холодно. Особенно это касается угловых квартир, владельцам которым приходится дополнительно тратиться на утепление.
В проекте не учли такой важный фактор как звукоизоляция, поэтому слышимость будет высокая. Перед покупкой квартиры в таком здании обязательно следует проверить, насколько хорошо сделан ремонт и использовались ли шумоизоляционные материалы.
На рынке вторичной недвижимости цены поднимаются с каждым годом. Если есть выбор между хрущевкой и брежневкой, то рекомендуется сравнить все достоинства и недостатки обеих построек. Только потом принимать свое решение, ведь жить в этой квартире придется не один год.
О плюсах и минусах хрущевок

Планировка может сыграть решающую роль. Поэтому нужно знать, что обычно площадь кухни в хрущевках может варьироваться от 4 до 6 квадратных метров.
Это очень маленькое пространство, в которое будет очень сложно вместить функциональную кухонную мебель. В зависимости от проекта, санузел может быть либо совмещенные узлы, либо раздельные.
Также есть несколько вариантов построек, которые различаются между собой количество квартир, которые расположены на одной лестничной площадке.
Хрущевки строились специально для того, чтобы помочь решить проблему для нуждающихся людей, поэтому жилплощадь может составлять от 18 до 50 квадратных метров в зависимости от количества комнат.
Преимущества хрущевок
- Помогают решить проблему наличия жилья, потому что имеют сравнительно невысокую цену.
- Достаточно хорошая тепло- и звукоизоляция
Семейные пары на первое время ищут именно такие варианты, пока не насобирают денег на квартиру с большей площадью.
Недостатки
- Очень маленькая площадь. Особенно это касается кухни и ванной. В некоторых зданий, метраж кухни может составлять всего 3 кв. метра.
- Наличие «проходимых» комнат. Мало кто захочет жить в комнате, которая может выступать гостиной.
- Совмещенный санузел.
И в заключение ещё раз о ключевых различиях:
- Хрущевки строились с этажностью от 3 до 5 этажей, в то время, когда брежневки проектировались с 8 или 16 этажами.
- По количеству общей жилой площади хрущевки заметно уступают.
- Наличие дополнительного общего имущества (лифт, мусоропровод) в брежневках.
- При их строительстве учли недостатки хрущевок и подняли высоту потолка до 2.7 метров.
- Исходя из рыночной стоимости, приобрести хрущевку будет намного выгоднее.
Оцените материал
Не нашли ответа на свой вопрос?
Узнайте, как решить именно Вашу проблему — позвоните прямо сейчас:
+7 (499) 350-80-69 (Москва)
+7 (812) 309-75-13 (Санкт-Петербург)
Это быстро и бесплатно !
metrtop.ru
Сталинки, брежневки, хрущевки — отличия планировок жилых домов
Рынок жилья предлагает большое количество новостроек из различных строительных материалов, дома с улучшенной планировкой. Но на вторичном рынке недвижимости продаются квартиры, построенные во времена Советского Союза: «сталинки», «хрущевки», «брежневки». Жилые массивы появлялись в эпоху каждого руководителя советов.
Дорогие читатели! Наши статьи рассказывают о типовых способах решения юридических вопросов, но каждый случай носит уникальный характер.Если вы хотите узнать, как решить именно Вашу проблему — обращайтесь в форму онлайн-консультанта справа. Это быстро и бесплатно!
Типы домов в России
В домах советского периода проживают миллионы граждан России. Здания встречаются в любом городе страны.
Выделяются три архитектурных пласта, жилые сооружения с особенным внешним видом, определенным количеством этажей и с различной планировкой:
- «Сталинка»;
- «Хрущевка»;
- «Брежневка».
Построенные дома в народе называли по фамилиям руководителей страны, во времена, когда возводились объекты.
Планировка квартир в сталинских домах
Квартирам сталинского типа подходит определение апартаменты или хоромы. Планировка квартир «сталинка» может подразделяться на несколько комнат, кабинет, библиотеку. Черты «сталинки»:
- Просторная площадь;
- Кухня от 7 до 15 м2;
- Раздельный санузел с большой ванной;
- Высота потолков от 3 до 3,2 м;
- Широкий балкон.

Есть два типа «сталинок»: на лестничной клетке — три двухкомнатные и трехкомнатные квартиры; и другая планировка — две жилплощади с четырьмя комнатами.
Квартира-студия: плюсы и минусы жилья.
Сколько квадратных метров положено на человека по закону? Читайте здесь.
Площадь жилья от 50 до 110 м2. Дома с отличной звуко- и теплоизоляцией, так как построены из кирпича. Сооружения считаются дорогим и престижным жильем.
Из недостатков отмечаются:
- Высокий процент износа зданий и коммуникации;
- Отсутствие инфраструктуры — автостоянки и подземные гаражи;
- Высокая цена.

Планировка квартир в «хрущевках»
Сооружение «хрущевок» началось в 1959 году и закончилось в восьмидесятых. Сначала кирпичные, а после 1963 года панельные пятиэтажки возводились по принципу «хоть и маленькая площадь, но своя». Квартиры в «хрущевках» отличаются параметрами:
- От 1 до 4 маленьких помещений;
- Небольшая высота потолка — до 2,5 м;
- Маленькая кухня;
- Смежные или проходные комнаты;
- Узкие коридоры и лестничные клетки;
- Отсутствие лифта.

«Хрущевки» различаются по типу жилплощади на лестничной площадке. В домах с четырьмя квартирами на этаже совмещенный санузел, а с тремя — раздельный. Площадь составляет от 18 до 50 м2. К минусам хрущевок относятся:
- Недостаточная теплоизоляция — холодно зимой и жарко летом, особенно на последних этажах;
- Слабая звукоизоляция.
Из явных достоинств квартиры в «хрущевке» — приемлемая цена.

Планировка квартир в «брежневках»
Дома начались строиться в 70-х годах из железобетонных панелей. Упор делался на высоту, здания возводились от 9 до 16 этажей с лифтами и мусоропроводом. «Брежневки» — прототипы новостроек, и отличаются улучшенной планировкой квартир «хрущевки»:
- Разделенный санузел с проведенной гидроизоляцией;
- Расширенные лестничные пролеты и площадки;
- Довольно просторная кухня — до 9 м2;
- Изолированные комнаты;
- Потолок — до 2,8 м.

Общая площадь — от 20 до 80 м2. Из преимуществ домов этого типа отмечается неплохая планировка, ровные стены и потолок, и «молодость» здания.
К отрицательным сторонам относятся:
- Ограниченность перепланировки квартиры — большая часть стен несущие;
- Плохая звукоизоляция;
- Холодные помещения — батареи находятся в стенах, приходится устанавливать дополнительные радиаторы.

Во времена Брежнева строились и дома гостиничного типа: здания в 9 этажей с площадью комнат от 12 до 18 м2. Квартиры выделялись под временное жилье, но зачастую они оставались как постоянное местожительство.

Чем отличается планировка элитных квартир?
В постсоветский период, при Ельцине, началось строительство элитных домов. Жилые здания различаются по типу и практически не имеют общих характеристик:
- Кухня — от 9 до 20 м2, в некоторых квартирах есть кухни-столовые.
- Раздельный один или несколько санузлов.
- Высокие потолки.
- Количество комнат — от одной до семи большой площади.
Жилые дома ельцинского периода — многоэтажные здания с двух- или трехкомнатными квартирами. Площадь достигает до 150 м2. Можно встретить двухуровневые «элитки». Редко встречаются квартиры с тремя уровнями.
Преимущества зданий перед советскими постройками: хорошая звуко- и теплоизоляция и небольшой износ объектов, что позволяет им быть востребованными на рынке вторичного жилья.
Дорогие читатели! Если у вас остались вопросы по теме «Сталинки, брежневки, хрущевки — отличия планировок жилых домов» или возникли другие вопросы, задайте их прямо сейчас — обращайтесь в форму онлайн-консультанта.
Это быстро и бесплатно!
o-nedvizhke.ru
