Домик на дереве своими руками
Если в семье есть ребенок, должно быть и отдельное место для детских игр. На дачном или загородном участке очень легко обустроить безопасную и удобную детскую площадку. А интересным и очень желанным дополнением к площадке может стать небольшой домик или шалаш, расположенный прямо на дереве. Сделать домик на дереве своими руками не так и сложно, если выбрать простой проект и удобные в работе материалы.

Домик на дереве своими руками

Домик на дереве своими руками

Как построить домик на дереве
Содержание статьи
Составление чертежа и выбор дерева
Сначала нужно продумать все детали и составить чертеж. Основными параметрами являются высота и площадь домика, а также способы его крепления. Обычно основание домика представляет собой прямоугольный щит с отверстиями под ветки, опираемый по углам на прочные столбы. Стенки и крыша сооружения могут иметь произвольную форму и выполняться из любых подручных материалов.

Чтобы попасть в домик, необходима лестница
Чтобы попасть в домик, необходима лестница. Она должна быть максимально надежной, иметь прочное крепление и при этом не портить вид сооружения. Прибивать лестницу к стволу нельзя – это губительно для дерева, к тому же из-за его роста конструкция будет все сильнее деформироваться. Веревочная лестница является самым дешевым вариантом, но использовать ее можно на небольшой высоте и только в том случае, если ребенок умеет с ней обращаться. Все это нужно учесть при составлении проекта и расчетах материала.

Схема домика

Схема домика

Домик на дереве
Очень важно правильно выбрать дерево, ведь от этого зависит прочность и надежность домика, а также безопасность ребенка. Нельзя выбирать старые деревья с большими дуплами и пустотами внутри, с большим количеством сухих веток, с открытыми корнями. Слишком молодые и неокрепшие деревья также не подходят для подобных целей.

Домик на дереве
Не рекомендуется строить домик на ветвях ивы, тополя или березы. Самый оптимальный вариант – это яблоня, клен или ясень с диаметром ствола не меньше 30 см, с крепкой корневой системой, здоровой корой и отсутствием паразитов. Желательно выбирать дерево с прямым стволом, так будет легче смонтировать и закрепить основание.

Дерево для домика
Подготовительные работы
Выбрав дерево, нужно правильно его подготовить. Мелкую густую поросль на нижних ветках и стволе можно спокойно удалить секатором, а вот ветки среднего размера следует обрезать с умом. Неграмотная обрезка может губительно сказаться на дереве, и оно засохнет. Чтобы этого не случилось, можно оставить все большие ветки и смонтировать основание для домика вокруг них.
Для строительства понадобятся инструменты:
- ножовка или дисковая пила;
- молоток;
- рубанок;
- дрель;
- шуруповерт;
- рулетка;
- строительный уровень;
- наждачная бумага.
Также будут необходимы материалы:
- обрезная доска сечением 5х25 и 2,5х15 см;
- брус 150х150 см;
- опорные балки диаметром 20 см;
- оцинкованные саморезы;
- гвозди;
- металлические крепежные пластины;
- антисептическая пропитка для дерева;
- солидол или масляная отработка.
Перед началом работ доски и брус обязательно обрабатывают пропиткой и просушивают на солнце. Это продлит эксплуатацию домика, защитит деревянные поверхности от сырости и гниения. Длина опорных балок должна быть на 1-1,5 м больше, чем расстояние от земли до основания домика. Балки необходимо вкапывать в землю, поэтому после обработки антисептиком нижнюю часть каждой балки покрывают плотным слоем солидола, битумной мастики или пропитывают масляной отработкой.
Технология возведения домика

Как построить дом на дереве

Как построить дом на дереве
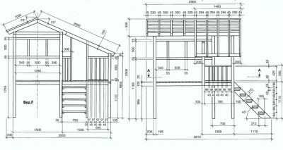
План сооружения домика (вид сверху)

План сооружения домика (вид сбоку)
Этап первый – установка опор
Тщательно вымеряют расстояние между основными ветками и определяют расположение платформы для дома. Проецируют углы основания вниз и отмечают эти точки маячками. С помощью бура готовят отверстия под несущие балки; глубина отверстий не менее 1,2 м, диаметр равняется 25-30 см. На дно насыпают песок слоем 10 см, затем такой же слой щебня. Опускают балки в ямы, выставляют по уровню и временно укрепляют шлакоблоком или распорками из бруса.

Сооружение опор

Сооружение опор (обязательна проверка уровнем)

Стойки располагаются в ямках

А сами ямки цементируются
Все балки должны иметь одинаковую высоту и стоять строго вертикально. При этом ствол дерева может находиться между опорными столбами или выступать в качестве одной из несущих опор. Замешивают цементный раствор, заливают его между стенками ямы и столбом, оставляют сохнуть. Когда основание достаточно упрочнится, распорки убирают.
Этап второй – монтаж платформы

Когда цемент застынет, можно изготовить платформу
Для каркаса платформы берут брус, обрезают его до нужной длины. Если платформа будет опираться всеми углами на столбы, окружая ствол дерева, несущие брусья каркаса крепят по периметру основания. Для этого каждый брус поднимают до уровня пола, выравнивают по горизонтали и прикручивают оба конца к внутренней поверхности столбов. Получившуюся обвязку укрепляют по углам металлическими пластинами.

Монтаж платформы
Далее внутри каркаса набивают дополнительные брусья, располагая их параллельно друг другу на расстоянии 20-30 см. Там, где проходит ствол дерева, оставляют отверстие соответствующего размера. Снизу каркас подбивают двумя поперечными досками, расположив их по обе стороны ствола. Все соединения внутри каркаса укрепляют металлическими пластинами с болтами.

Крепление каркаса домика

Крепление платформы

Крепление каркаса домика
Если одной из опор служит дерево, платформу монтируют по-другому. Брус поднимают до уровня основания домика и прикручивают двумя концами к столбам, а посередине прибивают к стволу дерева. Затем точно так же крепят брус с другой стороны. Оба бруса должны располагаться строго по горизонтали. После этого сверху набивают другие брусья, перпендикулярно нижним, с шагом от 0,5 м. Разумеется, все элементы платформы соединяются болтами с помощью стальных пластин.

Платформа
Третий вариант монтажа – крепление без несущих опор. Если платформа крепится исключительно на дереве, 2 бруса прибивают к стволу на 30 см ниже уровня пола с обеих сторон. Затем сверху перпендикулярно укладывают остальные брусья с шагом 50-70 см и соединяют их с торцов толстыми досками. Должна получиться прямоугольная конструкция, лежащая в горизонтальной плоскости. Теперь устанавливают дополнительные распорки: берут брусья того же сечения и крепят их под углом к платформе, упирая одним концом в крайние брусья каркаса, а нижние концы соединяя на стволе дерева.
Этап третий – укладка пола

Укладка пола
Для пола берут обрезную шлифованную доску высокого качества. Тщательно проверяют древесину на отсутствие шероховатостей и сучков, при необходимости проводят дополнительную шлифовку. Нарезают доски по размеру пола и раскладывают на земле для разметки. Это необходимо для того, чтобы точно вырезать отверстия под ветки и ствол дерева, ведь наверху аккуратно сделать вырезы не получится.

Укладка пола
Итак, доски выкладывают в прямоугольник, оставляя зазоры 1-2 см, замеряют окружность ствола и размечают границы выреза на будущем полу домика. С помощью электролобзика вырезают отверстия нужного диаметра и примеряют к дереву. Пол не должен вплотную примыкать к коре, иначе с ростом дерева конструкция домика будет деформироваться. Если заготовки соответствуют чертежу, можно крепить пол на платформу.

Крепление домика на ветвях
Доски укладывают на каркас так же, как на земле, с промежутками в пару сантиметров. Эти зазоры предназначены для стока дождевой воды. Крепят пол с помощью саморезов или гвоздей. Готовый настил должен лежать строго в горизонтальной плоскости, не скрипеть, не шататься при нагрузках.
Этап четвертый – монтаж стен домика

Монтаж стен домика

Монтаж стен домика
Сначала по периметру платформы нужно установить прочный каркас из бруса. Здесь можно взять пиломатериал меньшего сечения, например, 50х50 мм. Брус обрезают по высоте стен и устанавливают на каждом углу основания, прикручивая к выступающим опорным балкам анкерными болтами. Промежуточные стойки монтируют на расстоянии 40-50 см от угловых и фиксируют их с внешней стороны основания каркаса. Нельзя крепить стойки прямо к полу, такое соединение не будет надежным.

Монтаж стен домика

Монтаж стен домика

Монтаж стен домика
Угловые и промежуточные стойки укрепляют распорками, а затем обшивают досками. Стенки могут быть сплошными или решетчатыми, все зависит от предпочтений мастера. Количество и форма окон, а также их расположение также выбирается по желанию. Главное, чтобы проемы были надежно защищены и ребенок не мог выпасть из домика.

Каркас домика. Окна

Обшивка стен домика

Обшивка стен домика
Этап пятый – монтаж крыши

Крыша домика

Крыша домика
Крышу лучше всего делать в виде навеса. На высоте 1,5-2 м над стенами нужно найти две прочные ветки, расположенные по обе стороны домика. К веткам прикручивают металлические крючки и натягивают между ними толстый шнур или надежную веревку. Через веревку перекидывают кусок брезента и закрепляют его концы по углам домика.

Крыша домика
Если же сделать навес мешают ветки, можно смонтировать крышу по-другому. По верхнему краю угловых стоек крепят обвязку из бруса. Далее собирают 2 стропильные фермы и устанавливают их над противоположными стенами. Между собой фермы соединяют двумя широкими досками, которые набивают по верхнему краю стропил. Дополнительных креплений для такой маленькой крыши не требуется, а закрыть конструкцию нужно каким-нибудь легким материалом – листами поликарбоната, профнастилом или ондулином.

Крыша домика

Крыша домика

Кровля
В крыше, как и в полу, прорезают отверстия для крупных веток, если иначе установить конструкцию не получается. Опять же, крепить кровельное покрытие вплотную к дереву нельзя, обязательно следует оставить небольшое пространство вокруг выреза.
Этап шестой – установка лестницы
Лестница к домику может быть веревочной, прямой деревянной, легкой решетчатой, длинной или короткой, пологой и крутой. Вариантов очень много, и подобрать подходящий совсем не сложно. Один из таких вариантов – лестница в виде щита с прорезями. Для начала берут брус 50х50 мм длиной от 2,5 м и приставляют его к основанию домика под углом 75-80 градусов, то есть, почти вертикально. Отмечают карандашом линии отреза и отпиливают лишнее. Точно так же обрезают второй брус.
Уложив брусья на ровную площадку, сверху набивают доски толщиной от 2 см. Ширина досок равняется 15 см, длина 50-70 см. В каждой заготовке прорезают овальное отверстие на ширину стопы и обрабатывают срезы наждачной бумагой. Вырез должен располагаться с одной стороны, на расстоянии 5 см от торца доски. При обшивке щита заготовки прибивают так, чтобы вырезы чередовались: первая доска с вырезом справа, вторая – с вырезом слева, и так до конца.

Лестница домика
Доски крепятся к брусьям сплошным полотном, без зазоров. Готовую лестницу приставляют к домику, закрепляют с внешней стороны платформы с помощью пластин и болтов. Обязательно следует проверить надежность крепления, ведь падение с лестницы может обернуться серьезной травмой. Прочно зафиксированную конструкцию обрабатывают грунтовкой с антисептическими свойствами, а затем красят или покрывают лаком для дерева.

Вариант лестницы для домика
Завершающий этап – отделка
Домик готов, теперь осталось его украсить и сделать уютным. Для защиты древесины от атмосферного воздействия все наружные поверхности рекомендуется покрасить. Желательно выбирать одинаковые тона для стен и лестницы, так домик будет смотреться более гармонично. Внутри красить доски совсем необязательно, главное, чтобы они были максимально гладкими. Для удобства можно закрепить внутри легкие полочки, поставить корзину для игрушек или детский столик. Пол застилают мягким ковриком, укладывают детские удобные подушки. Все остальное зависит только от маленьких хозяев домика, поэтому дальнейшее обустройство нужно поручить им.

Домик на дереве

Домик на дереве
Видео — Домик на дереве своими руками
stroyday.ru
как построить домик на дереве своими руками
Дом на дереве не только детская мечта, но и место для романтического свидания, уединения с книгой, нестандартного ужина небольшой компании. Беседка, парящая над землёй, создана для долгих чаепитий тёплыми летними вечерами.
Можно проявить творческие способности, придумать нестандартную концепцию домика на дереве или соорудить простой шалаш – результат работы удивит и детей, и взрослых.

Начало строительства дома на деревьях
Строительство начинается с идеи. Пиратский корабль, избушка, открытая площадка или палатка требуют разного подхода. Затем – вид опоры и габариты. По сложности замысла выбирается проект, материалы.
Можно выбрать готовый чертёж и адаптировать под свои условия или нарисовать схематичный план – главное, чтобы результат работы был крепким. Материалы для строительства выбирают лёгкие, но прочные, такие как дерево, металлический профилированный лист, древесно-стружечные плиты. Бетон и кирпич не применяются.
Выбор конструктивного решения
Существует три варианта крепления домика:
- подвесной. Системой тросов, канатов или цепей сооружение подвешивается к ветвям с достаточной несущей способностью. Самый простое, но спорное по надёжности крепление;
- платформенный. Площадка основания домика крепится к ветвям или развилке, при необходимости фиксируется косыми опорными балками к стволу;
- на опорах. Конструкция сооружения, как у обычного дома, только в миниатюре. Постройка опирается на фундамент – сваи. Крепления не травмируют дерево.
Домик на сваях прочный и надёжный. Стены и кровля не закреплены к дереву, не деформируются от роста ствола. Листья кроны расположены над крышей, защищают во время дождя, дают чистый воздух.
Выбор места постройки
Опорой для строения будет здоровое крепкое дерево с зелёной кроной, способное выдержать вес домика и посетителей.Необходимо провести осмотр дерева на заболевания, насекомых, проследить, чтобы рядом не было муравейника.
При выборе места учитываются следующие факторы:
- покрытие земли. В идеале – газон, цветник, перекопанная земля. Из зоны расположения домика исключают бетон, камни, бордюры, мощёные дорожки. Случайное падение не должно привести к серьёзной травме;
- проекция домика располагается полностью на территории участка, не выходит за границы, не отбрасывает тень на соседские кусты, грядки;
- для детского домика высоту платформы принимают 1 – 1,5 м от земли, если помещение предназначено для отдыха взрослых, то 2 – 2,5 м.
Рациональное использование площади участка под домиком – устройство полок для хранения инвентаря, размещение детской песочницы, гамака.
Этапы строительства домика на дереве
Каркас домика на опорах выполняют из деревянного бруса. Понадобится брус для опор, обвязки и угловых стоек. Между собой конструкции крепятся металлическими уголками, пластинами.
Установка опор
Монтаж домика начинается с разметки опорных точек. Разметив, необходимо проверить правильность прямоугольника – при точном построении диагонали равны.
Минимальное сечение опор – 100 х 100 мм. Перед установкой опорные столбы тщательно обрабатываются антисептиком. Далее с помощью бура или штыковой лопаты выкапывают ямы под опоры. Средняя величина заглубления ям 1,2 м.
На дне устраивается песчаная подушка толщиной 10 см, песок уплотняется. Затем идёт слой щебня. Столбы вставляются в ямы, проверяются на вертикальность и связываются между собой временными распорками, удерживающим опоры в заданном положении. После этого ямы заливаются цементно-песчаным раствором, выдерживаются до набора прочности.

По отвердению распорки снимают (обычно 2 — 3 дня). Переходят к монтажу пола домика, платформы.
Важно!100%-ую прочность залитый раствор достигает через 28 суток. Но нагружать его можно уже через 7 — 10 суток.
Монтаж платформы и каркаса
К опорам металлическими пластинами крепится брус того же сечения – это будущие углы домика, его каркас. Столбы опор и каркаса обвязываются брусом на нужной высоте. Делается обвязка снизу — на уровне пола, и сверху — на уровне потолка. Поперечные лаги крепятся металлическими уголками в торец обвязки.
Доски устанавливаются с равномерным шагом, зависящим от размера платформы, но не превышающим 50 см. Сверху укладываются шпунтованные доски пола. Рекомендованная толщина доски 36 – 50 мм. Нижняя часть лаг подшивается влагостойкой фанерой, вагонкой.
Следующий этап – сборка каркаса домика из бруса согласно выбранному проекту. Устанавливаются поперечины, брусом обвязываются дверные, оконные проёмы, если они предусмотрены. Стены обшиваются вагонкой или выбранным материалом с двух сторон. Между обшивками при желании размещают утеплитель, ветрозащитную плёнку. Монтируются оконные и дверные блоки.
Обратите вниманиеЕсли домик закрытый, для естественного освещения предусматривают не менее двух окон.
Монтаж крыши
Устройство двускатной крыши начинается с подготовки стропильных ног.Необходимо отмерить середину стены домика, на которой будет расположен фронтон. К отметке вертикально прибивается рейка, конец которой обрезается в точке конька.
По диагональному расстоянию от точки конька до обвязки отмеряется длина с прибавкой в 30 см.
По этому размеру изготавливается шаблон стропильной ноги с запилом в месте опирания конструкции на верхнюю обвязку.
По шаблону готовятся остальные заготовки. Для получения зеркальной стропильной ноги шаблон переворачивается. Детали собираются на металлические уголки, поднимаются в проектное положение, тщательно прикручиваются к верхней обвязке. Поверх стропильных ног делается обрешётка в зависимости от материала кровли.
Установка лестницы
Угол установки лестницы не должен превышать 45 градусов. Боковые несущие детали лестницы называются тетивами. Тетивы крепятся одной стороной к платформе, другой к забетонированным опорам металлическими уголками.
Между ними прикручиваются ступени. Высота ступени принимается до 20 см, глубина ступени от 25 см. Другие параметры неудобны, небезопасны. К тетиве крепят балясины – стойки ограждения. Поверх балясин прикручивается поручень.
Наружная и внутренняя отделка
Материалы для внутренней и наружной отделки самые разнообразные. Наружная отделка должна гармонировать с эстетической концепцией двора, быть непродуваемой, стойкой к атмосферным осадкам.
Для наружной отделки используются:
- вагонка, имитация бруса, блок-хаус;
- влагостойкая фанера, древесно-стружечные плиты;
- виниловый, металлический сайдинг, пластиковые панели;
- металлические профилированные, гладкие листы.
Внутренняя отделка тоже может быть различной, от оклейки обоев до обшивки тканью. Наиболее удачный, экологически чистый материал – это дерево.Несложная в монтаже, обладающая тонким хвойным запахом, сосновая вагонка станет идеальным выбором, если домик предназначен для детских игр.
Природные смолы очищают воздух, благотворно влияют на здоровье, иммунитет человека. Обработка защитным маслом, выпускаемым специально для древесины, позволит вагонке дышать, сохранит микроклимат.
Техника безопасности на дереве
Безопасность строения – превыше всего. Основной мерой будет надёжное крепление между собой всех конструктивных элементов. Все вертикальные и горизонтальные конструкции должны находиться в строго зафиксированном при возведении положении.
При проверке после возведения не допускается:
- шаткость, колебание элементов;
- прогиб платформы при ходьбе;
- скрип и движение резьбовых соединений.
Лестница и пол не должны вызывать сомнений в прочности и способности выдерживать вес посетителей.
К дополнительным мерам безопасности относят тщательную шлифовку деревянных деталей, достаточное освещение помещения. Проверяют места соединений гвоздями, саморезами. В норме шляпки метизов утоплены в поверхность, острые концы не выступают.
Если ствол или ветки дерева проходят сквозь конструкции, расстояние между ними и элементами домика должно иметь зазор для естественного роста. Трещины, сколы стеклянных элементов не допускаются. Острые кромки металлических элементов обработаны. После строительства участок обследуют, убирая остатки крепежа, обрезки досок, пильных дисков.

Для детей дополнительно на лестничной площадке устраивают калитку на дверных петлях, приучают закрывать после подъёма на шпингалет или деревянную щеколду.
Домик на дереве станет украшением участка, любимым местом игр детей и отдыха взрослых. А всё, что сделано своими руками, приносит удовлетворение и даёт повод гордиться собой.
Полезные видео
Домик на дереве своими руками, смотрим:
На видео ниже — подборка самых красивых и необычных домиков на дереве:
В этом видео — вся технология строительства дома на дереве — куда какие балки, как вязать узлы, как поднимать бревна и прочее, смотрим:
Есть интересные идеи? Комментируйте!
domavlad.ru
как построить для детей, как сделать для ребенка, схема, видео
Как построить дом на дереве, отличную игровую площадку для детей младшего и среднего школьного возраста? Сложного ничего нет. Нужно только построить правильно. Так, чтобы максимально обезопасить его будущих «жильцов».
Как построить дом на дереве, отличную игровую площадку для детей младшего и среднего школьного возраста? Сложного ничего нетСодержание материала
Выбор места и строительство
Задумываясь о том, как построить домик на дереве, многие люди не знают, как это сделать. Принять решение и воплотить его в жизнь поможет изложенный ниже материал и фото, которые здесь предоставлены.
Например, вы можете построить его вокруг ствола.
Можно сделать дополнительные подпорки из бревен. На фото видны счастливые мальчишки, которые с удовольствием играют на такой необычной игровой площадке.
Мы же рассмотрим наиболее простой вариант – сооружение дома между деревьями. Один из вариантов вы можете увидеть на фото.
Также рекомендуем прочитать:
В одиночку построить такое жилище вряд ли удастся, поэтому в первую очередь нужно найти человека, который будет вам помогать. Еще понадобятся две устойчивые стремянки, молоток, гвозди, скобы и строительный материал (доски, рейки и брус, кровля). Когда все готово, можно приступать к строительству.
В одиночку построить такое жилище вряд ли удастся, поэтому в первую очередь нужно найти человека, который будет вам помогатьСначала выберите деревья, на которых будет располагаться дом. Это может быть одно большое раскидистое дерево или 2, 3 дерева, растущие рядом. Последние найти гораздо легче.
Разберем этапы строительства такого домика на трех деревьях, находящихся на небольшом расстоянии друг от друга. Не следует сооружать дом слишком высоко. Стволы в том месте, где он будет располагаться, должны быть достаточно толстые и прочные.
Сначала сооружается основание, на котором будет покоиться дом. Как и фундамент на земле, основание под такой дом на высоте тоже должно быть прочным. Строится оно из толстого бруса, который крепится к деревьям при помощи скоб. Можно делать основание и из досок, но из бруса оно будет прочнее.
Затем на брус крепятся более тонкие бруски квадратного или прямоугольного сечения, установленные вертикально. Они «очертят» стену. Должно получиться что-то, напоминающее коробку. Схема достаточно проста – на брус основания опираются более тонкие бруски, которые связываются между собой.
Потом настилается пол. Доски должны быть достаточно прочными, чтобы полностью исключить их излом. Если пол в доме на дереве сломается, это чревато серьезными травмами. После того как пол будет готов, монтируются стропила для крыши. Ставить их будет уже легче, ведь стремянку можно поставить на пол.

Для того чтобы сделать покрытие крыши, выберите легкий материал. Например, можно закрыть крышу водостойкой фанерой, на которую потом положить мягкую черепицу. Есть вариант просто покрыть крышу рубероидом, а сверху соорудить декоративное покрытие из соломы.
После монтажа кровли можно приступать к возведению стен. Это достаточно просто. Набивайте доски на установленные вертикально бруски. Набивать можно как с наружной стороны домика, так и с внутренней. Так как строение это летнее, то никакой теплоизоляции не требуется.
Дом на дереве для детей (видео)
Внутреннее убранство домика на дереве
Если вы построили дом для детей, тогда посоветуйтесь с ними, каким они хотят видеть дом изнутри. Можете установить там стол и табуретки, небольшую кровать. А можете оформить, как каюту корабля. Тут уж все зависит от фантазии детей и от ваших способностей.
Только нужно соблюдать одно важное условие – в доме не должно быть таких предметов, от которых он может загореться. Полностью исключите свечи и ароматические палочки с пирамидками. Проводя в такую деревянную постройку электричество, доверьте это профессионалам и установите качественный автомат, который отключит электроэнергию в случае короткого замыкания.
Для того чтобы сделать покрытие крыши, выберите легкий материалГалерея: дом на дереве (25 фото)
Оборудуем лестницу
Как построить домик с безопасным входом? Ведь придется подниматься на несколько метров над землей. Уделите достаточно внимания сооружению качественной лестницы. На ней обязательно должны быть перила. Но построенный для детей дом можно оборудовать веревочной лестницей. И детям интересно, и вам работы меньше. Если же вы хотите сделать обычную лестницу, то легче всего будет взять большую и качественную приставную лестницу, хорошо закрепить ее и сделать ступени более широкими. Не забудьте про перила, за которые будет держаться человек при подъеме и спуске.

Дополнительные меры безопасности
Если в доме, построенном на дереве, будут играть дети, не будет лишним позаботиться и о дополнительных мерах безопасности. Отличным решением будет натягивание сетки между домом и землей. При ее наличии ребенок не получит травм, даже если упадет с лестницы, из окна или выпадет из дверного проема.
Если в доме, построенном на дереве, будут играть дети, не будет лишним позаботиться и о дополнительных мерах безопасностиДетские дома на деревьях своими руками сделанные набирают все большую популярность. Многие люди строят их на дачном участке или во дворе частного дома. Тем более что впоследствии можно найти такому сооружению другое применение. Дома на деревьях своими руками построенные принесут вам много радости, ведь всегда приятно созерцать свою работу. Чтобы набраться опыта, достаточно построить один раз и потом вы будете строить дома на деревьях без особого труда. Например, при смене места жительства или при покупке нового дачного участка. Можно быстро сооружать такие постройки для разных нужд. Например, это может быть отличным местом для уединения, если вы занимаетесь медитацией.
Дом на дереве своими руками (видео)
Другие варианты использования такого строения
Была рассмотрена постройка такого сооружения для детей. Теперь вы знаете, как сделать домик на дереве и приобрели в этом некоторый опыт. Никаких особых навыков не требуется и такая работа под силу любому мужчине. Вам уже не кажется, что сделать домик на дереве своими руками сложно. Но такое сооружение может выполнять не только игровую функцию. Когда дети вырастут, вы можете использовать уже готовую постройку и для других целей. Например, сделать там охотничий домик, место для отдыха и даже бильярдную, если пол достаточно ровный. Внешний дизайн дома вы тоже можете сделать другой, например, обшить фасад вагонкой. Можно пристроить и более удобную лестницу. Дома на деревьях, своими руками построенные, станут вашей гордостью. Ведь фантазия здесь ничем не ограничена, и вы сможете дать ей волю. Это будет своеобразное творчество, которое к тому же и полезно. Очень надеемся, что в изложенном материале вы нашли исчерпывающую информацию. И обязательно попробуете построить такой дом.
Внимание, только СЕГОДНЯ!
lovely-dom.ru
Дом на дереве — как построить проект своей мечты
Летом приятно и полезно проводить время на свежем воздухе, особенно в уединенном, красивом и тихом месте. Чтобы организовать уголок для отдыха и любимых занятий на природе, можно своими руками возвести настоящий дом на дереве. Но такое необычное жилище должно быть устойчивым и прочным, поэтому нужно выяснить этапы и важные нюансы строительства.
зеркальный фасад домика на дереве в Швеции
Содержание статьи
Как построить дом на дереве
Строительство дома на дереве – непростая задача. Постройка должна быть надежной, устойчивой и безопасной, ведь в ней наверняка будут проводить время дети. Начните с выбора подходящего места. Определив его, разработайте план, чтобы не упустить ничего важного. Подберите подходящие материалы, обладающие прочностью и выдерживающие негативные воздействия факторов окружающей среды. Только потом можно приступать к поэтапному возведению домика. Все шаги подробно рассматриваются ниже.
Выбираем место
Сначала нужно подобрать подходящее место, которое станет своеобразным фундаментом, основой дома. Дерево должно быть взрослым, иметь толстый ствол. Опорами для постройки послужат крепкие ветви: три или четыре, направленных в разные стороны. Но опорные элементы могут входить в конструкцию, поэтому наличие разветвлений необязательно, но желательно. Оптимальная высота расположения домика – 1,5-2 метра, но строение, предназначенное для маленьких детей, должно быть ниже, чтобы малыши легко забирались внутрь.
оригинальный домик на дереве в форме НЛО
Для строительства дома подойдут не все деревья. Если корневая система слабая и плохо развитая, растение не выдержит нагрузку и упадет вместе с постройкой. Важное требование – прочная плотная древесина. Выберите дуб, пихту, ясень или клен. Не подойдут деревья с ненадежными корнями: ива, тополь, каштан, липа. Кроме того, эти растения обильно цветут, что может доставлять дискомфорт людям, находящимся внутри строения.
Поиски осуществляйте в местности с плотными суглинистыми или глинистыми почвами. Песчаный рыхлый грунт – ненадежная опора: тяжелая постройка повысит нагрузку на землю, в итоге даже крупное растение может упасть. Выбрав подходящий вариант, проведите осмотр. Ствол и ветви должны быть крепкими, здоровыми. Следы присутствия насекомых-вредителей и гниения (поврежденная кора, пятна, опадающая листва) должны насторожить.
Продумываем план
Продуманный план – половина залога успеха. Разрабатывая проект, можно просмотреть фото готовых домов, чтобы найти среди них понравившийся и подходящий, размещенный на дереве, которое по строению и форме похоже на найденное вами. Оцените строение растения, чтобы определить наилучшую конструкцию постройки с учетом расположения ветвей и ствола. Можно сфотографировать природный объект со всех сторон: это поможет понять, где и как лучше расположить дом. Измерьте растение для определения оптимальных габаритов будущей постройки.
Разработка проекта включает несколько важных моментов:
- Высота расположения. Большинство построек такого плана располагается на 1,5-2 метра выше уровня земли. Но если домик предназначен для детей, можно расположить его ниже.
- Выбор подходящих опор. Без них строение не будет устойчивым и рухнет при первом сильном порыве ветра. Роль опорных элементов могут играть ветви, если они толстые, направлены в разные стороны и присутствуют в количестве не менее трех. Если разветвлений на дереве нет, можно предусмотреть распорки, идущие от ствола к дну постройки. Надежный вариант – сваи, зафиксированные в грунте на достаточной глубине.
- Способ подъема. В высокий дом нужно забираться, и в этих целях может использоваться полноценная лестница, вмонтированные в ствол ступеньки или канатная лесенка.
- Планировка дома: форма, наличие перегородок, веранда, оконные проемы. Простой вариант – единое пространство и одно или два окна.
Совет! Если строительными навыками вы не обладаете, не разрабатывайте сложный проект. Простой план понятнее, его проще реализовать.

Выбираем материал
Материалы можно приобрести в строительном магазине: ассортимент широк и включает качественные и недорогие варианты. Но можно использовать то, что осталось после возведения жилого дома или иной капитальной постройки.
Каркас лучше возводить из дерева, и это могут быть старые, но прочные, не рассохшиеся и не прогнившие доски достаточной толщины. Стены делайте из плит ДСП, обладающих достаточной прочностью и устойчивостью к внешним негативным воздействиям. Тонкие перегородки и другие элементы можно изготавливать из листов фанеры. Для внутренней отделки подойдут панели МДФ, вагонка. Снаружи постройку можно оформить сайдингом, который актуален в 2017-2018 годах.
Для строительства потребуется немало инструментов и дополнительных приспособлений: молоток, дрель, ножовка или электрический лобзик, прочная лестница, рубанок, уровень, разводной ключ, торцовочная пила (или фрезер), рулетка, шлифовальная машина или наждачная бумага, а также крепежные элементы и фурнитура (саморезы, дюбели, гвозди, шурупы, уголки, петли).
Этапы строительства
Дом возводится в несколько этапов:
- Подготовка дерева. Все тонкие, сухие, старые и мешающие ветви нужно спилить, не задев здоровые и используемые в качестве опор.
- Создание опор. Если вы выбрали свайный способ, то потребуется два достаточно крупных бревна с сечением не меньше 10х10 сантиметров. Отмерьте с двух сторон от ствола примерно по трети длины будущей постройки. Выкопайте лунки глубиной не меньше 0,5 м, поместите в них деревянные сваи и забетонируйте их для повышения надежности. После отвердения цемента приступайте к строительству. Для обустройства распорок установите доски под углом 45 градусов по отношению к платформе и зафиксируйте их на стволе крепежными элементами.
- Соберите платформу, зафиксируйте ее на сваях или подпорках. Крепление должно быть максимально надежным, иначе конструкция не получится устойчивой. Проверяйте все стыки.
- На платформу укладывайте ребром заранее нарезанные и обработанные доски для обустройств лаг. Зафиксируйте их.
- На лаги укладывайте выбранное напольное покрытие: тонкие широкие доски, плиты ДСП или листы фанеры.
- На основании возводите стены, которые могут состоять из ДСП. Закрепляйте части на платформе.
- Возводите крышу, закрепляя ее на стенах конструкции.
- Обустройте подъемный механизм: ступени, каркасную или канатную лестницу.
- Щели заделайте герметиком с добавлением смолы для предупреждения продувания дома и попадания внутрь воды во время дождя.
- Переходите к внутренней отделке. Стены можно оформить вагонкой, панелями. Но выбирайте отделочный материал, выдерживающий перепады температур и повышенную влажность, ведь постройка находится на улице. Таким же способом можно отделать потолок. Пол может быть дощатым.
- Завершайте возведение внешним оформлением, используя сайдинг или другие материалы.
- Дом готов, можно опробовать его. Но первыми внутрь идут взрослые для оценки надежности и устойчивости конструкции.
1. Установка балок основания

2. Сборка платформы



3. Собираем настил


4. Сборка рамы сендвич панелей стен из бруса, минеральной ваты и OSB

5. Установка стен

6. Крепим стропила крыши

7. Застилаем кровлю листами OSB, а сверху укладываем мягкую черепицу
8. Монтируем входные двери, люк и лестницу

9. Последние штрихи. Установка перил на террасе

Фото проектов домов на дереве для детей
Возвести дом на дереве своими силами вполне реально. Определитесь с местом нахождения постройки, подберите подходящие прочные материалы и начинайте поэтапное строительство.
Не забывайте учитывать важные моменты и следовать советам.






roomwiki.ru
выбор дерева, разновидности конструкций и правила их строительства

Немало можно соорудить на загородном участке всякого разного, что позволит провести досуг приятно и интересно.
Отличная идея — построить дом на дереве: здесь и дети будут с удовольствием играть, и взрослый будет рад пристроиться с книжицей в часы послеобеденного отдыха.
Как делается такая постройка — об этом сейчас поговорим.
Виды домов на дереве
Внешне построенные на дереве дома могут очень сильно отличаться: строят как простые хижины, так и подобие замков и даже космических кораблей. Но по конструкции все они делятся всего на три вида:

- Дома, установленные на ветви и ствол. Дерево должно быть здоровым и прочным, ветви — достаточно толстыми. Такой дом сложен в строительстве: для крепления основания дерево приходится сверлить, снизу часто требуется установка подкосов. Но зато он устойчив и надежен.
- Дом на подвесах. Нагрузка от веса сооружения также приходится на ветви, но оно подвешивается на цепях или тросах. Строить такой дом проще, но пользоваться им следует с большой осторожностью. Если его предполагается использовать как место для детских игр, то лучше отдать предпочтение менее травмоопасному первому варианту.
- Дом на сваях. Строится так, что ствол и ветви его пронизывают, но при этом вся нагрузка приходится на врытые в землю сваи.
Для третьего варианта подойдет дерево любого возраста и прочности.
Каким должен быть домик на дереве?
Конструкцию строения разрабатывают так, чтобы ей были присущи такие черты:

- Малый вес. Дерево — не каменный фундамент, тем более что помимо домика ему придется держать еще и вес «жильцов». Поэтому постройку сооружают по каркасной технологии: делают конструкцию из ребер и затем обшивают ее легким листовым материалом. Самый доступный материал для каркаса — деревянные бруски и доски. Алюминиевая конструкция стоит дороже, но зато она прочнее, долговечнее и эффектно смотрится.
- Отсутствие элементов, блокирующих рост дерева. Между домом и деревом следует по возможности оставлять зазоры, позволяющие растению правильно развиваться. В местах изгиба ветвей или ствола конструкцию дома также искривляют.
- Округлость формы. Она нужна для уменьшения парусности. Конечно, круглый дом сложен в исполнении и не каждый возьмется за его строительство. Тогда необходимо учитывать преобладающее направление ветра и строить домик так, чтобы он был обращен к воздушному потоку узкой стороной.
- Если домик строится для детей, вместо гвоздей используют более безопасный крепеж — болты с гайками. Изнутри головки болтов утапливают.
Кирпичи, бетон, штукатурный раствор для строительства домика на дереве применять нельзя.
Дом на дереве не предназначен для защиты от холода и непогоды, поэтому его можно вообще оставить без стен. Но каким-то ограждением его оснастить нужно, иначе пользователь по неосторожности может сорваться вниз.

Современный домик на дереве
Подниматься в дом можно по веревочной лестнице — она наиболее проста в изготовлении. Но если здесь будут играть дети, лучше потрудиться и изготовить более надежную деревянную или металлическую лестницу: вероятность падения в этом случае будет намного ниже.
Помните, что в земле находятся корни, которым необходимо дышать. Здесь не должно быть асфальта или плитки — только мягкий грунт, который раз в год нужно рыхлить.
Строят домик на дереве на высоте от 1,5 до 2,5 м.
Какое дерево подходит для постройки?
Для строительства дома, если только это не свайный тип, выбирают дерево с прочной древесиной и крепкой корневой системой. Таковыми являются:

- дуб;
- бук;
- клен;
- ясень;
- береза;
- ель;
- туя;
- пихта.
Предпочтение отдают лиственным породам, как более прочным. Если порода хвойная, лучше строить на двух деревьях.
Нельзя строить на каштане, иве и тополе: корни у этих деревьев слабые, так что под весом домика они могут рухнуть. На липе строить можно, но у нее вязкая древесина и из-за этого возникают сложности с креплением элементов.
Особенно легкий домик, в который будут забираться только дети, можно построить на яблоне.
Требования к дереву предъявляются такие:

- Оно должно быть здоровым. Все ветви живые, покрыты листьями. Кора — без дефектов, с ровным и соответствующим породе цветом. Трещины и гниль отсутствуют. Сухие ветки нужно спилить: в ветреную погоду они могут упасть и повредить домик.
- Ствол в точке приложения нагрузки от дома должен иметь диаметр не менее 30 см. Этот параметр проще определять по длине окружности: ее минимальное значение составляет 94 см.
- Приемлемый возраст. Старое дерево теряет в прочности, потому его ветви под домиком могут обломиться.
- Грунт, на котором дерево произрастает, должен быть прочным — песчаный не годится.
- Желательно, чтобы ствол был разветвленным. На таких деревьях много горизонтальных ветвей, соответственно, у домика будет много опор.
При опирании на несколько деревьев либо дерево и опору минимально допустимым считается диаметр в 22 – 23 см, чему соответствует окружность длиной в 70 см.
Инструменты и материалы
Для строительства самого простого деревянного домика понадобится следующее:

- ножовка по дереву;
- рубанок;
- фрезер;
- пузырьковый и водяной уровни;
- дрель;
- шуруповерт;
- молоток;
- рулетка;
- гаечные ключи;
- угольник;
- крупная и мелкая наждачная бумага;
- лестница.
Материалы применяются такие:

- Доска сечением 5х25 см и длиной 4 м: 2 шт.
- Доска сечением 5х15 см и длиной 3 м: 6 шт.
- Доска сечением 5х15 см и длиной 4 м: 3 шт.
- Фанера для обшивки стен и изготовления перил.
- Трос стальной диаметром 6 мм.
- Крепежные перфорированные пластины: 8 шт.
- Крепежные детали: нержавеющие либо снабженные антикоррозионным покрытием (цинкование, оксидирование, фосфатирование) саморезы, гвозди, болты с гайками, скобы и крюки.
- Брезент.
Пиломатериалы подвергаются двукратной обработке биозащитным составом.
Строительство дома на дереве
Можно предложить следующий порядок действий:

- Доска самого малого сечения (это пока только примерка) прихватывается гвоздем к ветке, расположенной на 30 см ниже проектной отметки пола.
- Второй конец доски укладывают на другую ветку так, чтобы она приняла горизонтальное положение (контролируем пузырьковым уровнем). Найдя верную позицию, второй конец также прибивают.
- По другую сторону от ствола таким же образом выставляют и прибивают еще одну доску, при этом она должна лежать в одной горизонтальной плоскости с первой. Это удобно контролировать водяным уровнем.
- Далее, вынув гвозди и сняв доски, замеряют расстояние А между отверстиями из-под гвоздей.
- Вычисляем размер: В = (4 – А)/2, где размер А взят в метрах. Отступив от конца досок сечением 5х25 см размер В, в каждой из них просверливают отверстие диаметром 15 мм. Далее от центра отверстия откладывают размер А и просверливают в доске еще одно отверстие с тем же диаметром.
- Между отверстиями ножовкой или лобзиком выполняют пазы для установки распорок. Местоположение пазов выбирается так, чтобы распорки отстояли от ствола и ветвей на некотором расстоянии — тогда оно сможет беспрепятственно расти.
- Отверстия в ветвях рассверливают до диаметра в 15 мм и устанавливают на дереве доски сечением 5х25 см, прикрутив их болтами с гайками.
- Нарезают заготовки для устройства пола. Используется доска сечением 5х15 см. Всего понадобится 6 досок: 2 с длиной, равной длине настила, и 4 на 10 см короче.
- К одной из длинных заготовок перпендикулярно прикручивают короткие, используя саморезы. Далее эту часть настила помещают на закрепленные на дереве балки и привязывают к ним.
- Устанавливают на место вторую длинную заготовку, после чего настил скрепляют крепежными пластинами.
- При необходимости основание домика укрепляют упорами, изготовленными из досок сечением 5х10 см.
- На каркас основания настилают пол из досок. Последние укладываются с зазором в 1 см, необходимым для стекания воды. Доски предварительно нужно подрезать так, чтобы получились отверстия для ветвей и ствола. Между краями отверстий и деревом оставляют зазор в 3 см, благодаря которому оно получит возможность свободно расти и избежит повреждений досками при сильном ветре.
- Оставшиеся пиломатериалы используются для изготовления лестницы и перил. Просвет между перилами и полом лучше обшить фанерой — такое ограждение будет более безопасным.
- Над серединой платформы в 2-х м от нее натягивается трос. Можно закрепить его на ветках, подложив бруски (чтобы не царапал кору), а можно ввернуть в ветви крюки с резьбой и зацепить трос за них.
- На тросу развешивают брезент, который будет играть роль крыши. Углы полотнища натягивают и привязывают к перилам деревянной платформы.

Схема для сооружения детского домика на дереве
Все работы по возможности выполняйте поодаль от дерева, чтобы случайно не травмировать его и не вытаптывать землю под ним.
Вот и все, домик на дереве в самом простом исполнении готов. На усмотрение владельца можно покрасить его и украсить разнообразным декором. Снизу детям на потеху можно прикрепить качели или горку.
Строительство свайного домика
Процесс строительства свайного домика также доступен обывателю, сваебойная техника не потребуется. Используются так называемые буронабивные сваи, которые отливаются прямо на месте. Вот каким образом нужно действовать:

- Производят разметку участка под деревом, отмечая положение свай. Они устанавливаются в углах строения, а если оно имеет большие размеры, то еще и посредине стен. Важно проверить длину диагоналей размеченного прямоугольника: если они равны, значит этой действительно прямоугольник, а не ромб.
- В отмеченных местах садовым буром проделывают отверстия на глубину промерзания грунта. Глубина промерзания меняется с широтой: чем севернее расположен регион строительства, тем глубже промерзает почва. Данный параметр для каждого региона прописан в СНиП «Строительная климатология». При недостаточной глубине сила морозного пучения постепенно выдавит сваи.
- В каждое отверстие засыпают увлажненный песок слоем в 10 см толщиной, трамбуют его и сверху насыпают слой щебня той же толщины. Засыпка тщательно трамбуется.
- Далее в каждое отверстие устанавливают пластиковую или сшитую из рубероида трубу. Она послужит гидроизоляцией для бетона, который позже будет залит в отверстие.
- Из арматуры делают каркас в виде трехгранного параллелепипеда. Его ребра из арматуры диаметром 8 – 10 мм фиксируются поперечинами из арматуры диаметром 6 мм. Размеры каркаса подбираются так, чтобы после установки его в отверстие ребра оказались в 2-х см от гидроизолирующей трубы. Использовать сварку нельзя, поскольку арматура в местах провара становится хрупкой. Все элементы связывают отожженной проволокой. К каркасу нужно привязать шпильку, так чтобы она выступала из центра сваи.
- Установив каркасы в отверстия, туда же заливают бетон. Чтобы избавиться от воздушных пузырей в растворе, профессионалы применяют специальный инструмент — виброукладчик. Если его в наличии нет, раствор часто протыкают арматурным стержнем.
Накрыв сваи полиэтиленом и периодически их поливая водой, дожидаются отвердения бетона, на что требуется 28 суток. Далее собирают домик по каркасной технологии:

- а сваи поверх подкладки из рубероида (гидроизоляция) укладывают бруски нижней обвязки с просверленными под шпильки отверстиями;
- настилают пол, не забыв проделать в нем достаточно широкое отверстие для ствола дерева;
- на обвязку устанавливают вертикальные стойки;
- сверху стойки скрепляют верхней обвязкой;
- на верхней обвязке устанавливают висячие стропила, на которые затем набивается обрешетка;
- устанавливают обрамление дверей и окон;
- домик обшивают фанерой, сверху на стропильную систему укладывается профнастил или иной кровельный материал.
Стойки проще устанавливать так:
- на земле собирают П-образную конструкцию, состоящую из двух стоек и одного бруса верхней обвязки;
- собранные рамы устанавливают на нижнюю обвязку и крепят к ней.
Рамы скрепляют двумя оставшимися брусками верхней обвязки.
Фото

Домик в виде избушки

Детский домик и площадка

Домик на дереве своими руками

Необычный круглый домик
masterlandshafta.ru
Строительство домов на деревьях, инструкция по стоительству
Для мастеров на все руки предлагаем ознакомиться с инструкцией по строительство самого простого домика.
1. Выберите дерево, придерживаясь инструкций выше. Для этого типа домика необходимо две ветки в форме латинской «V».

2. Далее на каждой V-ветке сделайте по 2 отверстия с разных сторон, глубиной в 9 см. Используйте уровень, иначе домик получится перекошенным. Вместо отверстий мы рекомендуем использовать альтернативные и экологичные методы крепления, хомута, обжимы и другие которые не вредят деревьям. Звоните нам мы подберем вам метод крепления.

3. Измерьте расстояние между отверстиями с каждой стороны. У вас должно получиться 2 замера, слева и права.

4. Вам необходимо от длинны доски отнять длину замера, и получившийся остаток поделить на два. Пример у нас размер слева был 2,5 метра, мы отнимаем это расстояние с 3 метров, получаем 50 сантиметров, делим на 2, получаем 25 сантиметров. Отмеряем это расстояние с краев доски и отмечаем, перепроверяем по центру расстояние между отметками должно быть в 2,5 метра. Так мы добиваемся пропорциональной распределения нагрузки. Повторяем со второй доской.

5. Далее нам необходимо сделать пазы в местах отметок, ширина паза 10 см, по 5 см в стороны от отметки. Это необходимо проделать, что бы уменьшить влияние раскачивание дерева на платформу, демпфер.

6. Закрепляем две основные поддерживающие планки на дереве. Вам необходимо плотно закрепить две планки пазами к дереву с помощью дюбелей, между доской и болтом не забудьте шайбы.

7. Перпендикулярно основным перекрытиям разместите на равном расстоянии балки. Для большей надежности в этих балках так же можно сделать пазы. Закрепите их шурупами.

8. Прикрепите к концам установленных балок еще по одной балке, должен получиться прямоугольник.

9. Закрепите платформу к основным балкам с помощью уголков.

10. Боковые планки так же необходимо закрепить с помощью креплений рамочных закрепов для балок.

11. Усилить платформу с помощью опор. Варианты опор мы рассматривали выше. В этом варианте мы закрепим 4 опоры к дереву. Необходимо срезать концы балок под углам 45 градусов, для плотного крепления к платформе и дереву.

12. Стелим пол на платформу.

13. С помощью балок делаем направляющие для перил нашего домика на дереве.

14. Крепим перила к направляющим.

15. Далее делаем стены для дома, в упрошенном варианте используется фанера, в ней вырезаются двери и окна. Фанера крепится между перилами и платформой.

16. Добавляем лестницу, о вариантах входа и выхода мы писали выше.

17. Делаем крышу, ее можно сделать из той же фанеры или брезента.

18. Красим наш домик на дереве.

Будьте осторожны и не относитесь халатно к строительству домика на дереве ведь эго качество это безопасность детей! Если вы решились строить самостоятельно, рекомендуем проконсультироваться вначале с нашими специалистами!
rope-park.com
как построить, чертежи, фото, видео
Наверное, не найдется ни одного ребенка в мире, который бы не хотел иметь свой собственный домик, расположенный на ветвях деревьев. Это не просто место для игр – это маленький мирок со своими законами, правилами, традициями. Если на дачном участке есть несколько высоких крепких деревьев, можно придумать незатейливый проект и воплотить его в жизнь, на радость детям, да и взрослым тоже. Осталось выяснить, как построить домик на дереве своими руками.
Вариантов строительства домиков на деревьях великое множество. Сооружают их как для увлекательных детских игр, так и для уединения с книжкой под раскидистой кроной в летний зной.
В стилистике и назначении нет абсолютно никаких ограничений. Это может быть недоступный терем красавицы, замаскированный форпост, замок людоеда или космический корабль.
В архитектурном отношении все намного скромнее. Есть три популярных, проверенных практикой вида сооружения, это:
- Конструкция на платформе. В качестве несущего элемента выступают мощные ветви или непосредственно ствол, на котором самонарезающими анкерами фиксируют детали нижнего перекрытия. При необходимости платформу укрепляют косыми балками, упирающимися в дерево.
- Каркасный дом на сваях. По сути, это самостоятельная постройка, пол и крыша которого только пересекается одним или несколькими стволами. Само сооружение не опирается на дерево, следовательно, не мешает жить и расти. Подобный дом устанавливается на сваи, размер которых определяется в зависимости от предстоящей нагрузки.
- Подвесная площадка. Подвешивается на способные выдержать ветки с помощью канатов, тросов или цепей. Самый простой, но не слишком надежный и безопасный метод организации, особенно, если речь идет об игровой зоне для детей.
Первый и третий архитектурный тип напрямую зависят от несущей способности ствола, размера его ответвлений и корневой системы. Ведь дереву предстоит выполнять функцию фундамента: стойко держать нагрузку не только самой конструкции, но и посетителей. Считается, что с этой нелегкой работой сможет справиться ствол, толщиной минимум 30 см в диаметре, лучше более.
Оптимальной породой для строительства домика по праву признан дуб. Следом за ним в рейтинге подходящих деревьев следуют бук, клен и крупные ели. Перед тем как проектировать сооружение и планировать действия нужно тщательно осмотреть подлежащий использованию объект на предмет наличия паразитов и заболеваний. При выявлении негативных признаков от идеи придется отказаться.

Три основных конструктивных варианта домиков на дереве используют в качестве основы для разработки собственного проекта сооружения
Для строительства второй конструктивной разновидности, использующей только крону для маскировки или декора, несущие способности дерева абсолютно неважны. Подойдет совершенно молодой представитель мира фауны, который со временем скроет штаб разведчиков или корабль инопланетян в своей буйной зелени. Пригодны практически все лиственные, хвойные и даже садовые породы.
Признаем, что подходящим для строительства домика деревом обладают далеко не все отечественные усадьбы. Однако предположим, что именно ваших родителей обошла стороной любовь к огородничеству. Что беззаветная и неразделенная в наших широтах страсть к возделыванию каждого сантиметра не заставила их выкорчевать столь бесподобный объект.
Перед тем как заняться проектированием и выбором способа, как лучше сделать домик на растущем в пределах участка дереве, следует оценить реальную обстановку. Нужно выяснить, нет ли каких-либо местных постановлений, запрещающих возведение подобных сооружений. В ряде ситуаций для подобных построек приходится получать разрешения.
Если дерево расположено рядом с соседским участком, надо обязательно поговорить с его владельцами. Не исключено, что конструкция будет затенять их любимый цветник, испортит вид из окошка или резвящаяся детвора станет доставлять излишнее беспокойство пожилым людям. В любом случае следует обсудить предстоящую стройку с соседями, чтобы сберечь дружеские отношения.

При проектировании домика на дереве следует учесть, что на высоте больше 2,5 м располагать его небезопасно (1). Если ствол или ветви способны стать надежной опорой (2), их можно использовать в качестве основания для сооружения домика первого типа. У дерева должна быть достаточно мощная корневая система (3)
Допустим, что для устройства домика на дереве у нас нет никаких препятствий. Значит, можем смело заняться самостоятельным проектированием, для которого надо:
- Выбрать наиболее безопасную высоту нижнего перекрытия. Считается, что для детских игр домик на дереве не стоит располагать выше 1,5 м. Если планируется устройство беседки, то высотный предел можно передвинуть на 2 – 2,5 м. Если конструкции предстоит опираться на разветвленную зону ствола, то высоту положения определяют по ней.
- Рассчитать оптимальную площадь нижнего перекрытия или платформы, учитывая, что проекция от расположенной на дереве постройки должна полностью находиться на вашем участке.
- Определиться с конструкцией домика. Решить, будет ли это площадка с ограждениями по периметру и навесом, сооружение типа шалаша или небольшой каркасный дом.
- Предусмотреть вероятность случайного падения. Желательно, чтобы земля вокруг сооружения не была утрамбованной. Напрочь исключаются забетонированные площадки, не рекомендовано близкое расположение вымощенных дорожек.
- Продумать максимально удобный и безопасный вид лестницы для перемещения посетителей домика вверх/вниз.
При желании и наличии конструктивных предпосылок хорошо бы продумать варианты эксплуатации зоны под сооружением. Не помешает устроить там сарайчик для хранения утвари и предметов, которые надо будет убрать от дождя.

При проектировании сооружения необходимо продумать критерии безопасности, предусмотреть оптимальный способ перемещения и возможность использования пространства под домиком
В качестве подсказки домашним мастерам разберем два наиболее востребованных метода возведения домика на дереве. Их можно полностью или частично скопировать, а можно на основании приведенных примеров разработать собственный способ сооружения.
Каркасная конструкция на опорах
Это самый гуманный вид сооружения, который в принципе можно построить просто рядом с деревом или вовсе без него. Представляет собой небольшую каркасную конструкцию, установленную на сваи. Крышу формируют стропильные фермы висячего типа, скрепленные в вершине металлическими пластинами. Передвижение обеспечивает установленная под углом 45º зафиксированная лестница.

Представленный вариант домика не опирается на ствол и ветви. Для того чтобы они пересекали пол и крышу нужно просто сделать отверстия в перекрытиях (+)
Для выполнения каркаса использован брус 105×105 мм. Для устройства свайного основания размер материала не лишним было бы несколько увеличить, на стойки стенок допустимо слегка уменьшить. Для обшивки стенок лучше приобрести вагонку, но подойдет и фанера, на пол рекомендовано купить шпунтованную доску 150×50 мм, на стропила доску обрезную 100×25 мм.
Из остатков обрезной доски можно построить домик для белки. Об этом читайте: https://diz-cafe.com/postroiki/domik-dlya-belki-svoimi-rukami.html
Если нет навыков в плотницком деле, то для соединения деталей каркаса лучше купить металлические уголки и пластины. Аналогично поступить с коробками в дверной и оконный проем, хотя при желании их можно сделать собственноручно.

В строительстве домика проще воспользоваться опробованным вариантом и просчитанными размерами. Можно на основании примера разработать собственный проект (+)
Кровля в примере выполнена гибкой черепицей, под которую устраивают сплошную обрешетку из фанеры или уложенной с зазором 3 мм доски. Еще потребуется цемент или готовый цементный раствор со специализирующегося на его изготовлении завода, анкера и подпятники для крепления свай.

Детали каркасов проще соединять металлическими уголками. В качестве альтернативы применяется врубка «в полдерева». При выборе второго варианта его следует учесть в расчетах длины элементов (+)

В примере асимметричная стропильная система висячего типа. Стропильные ноги в вершине упираются друг в друга, соединяются с помощью зубчатой металлической пластины. Нижний узел соединения с обвязкой каркаса формируется врубкой, дополнительно фиксируется гвоздями (+)
Этапы устройства основания под домик:
- Выполняем разметку площадки согласно размерам домика. Отмечаем колышками углы строения, соединяем их бечевкой. Измеряем диагонали размеченного абриса, они должны быть равны.
- В местах установки свай формируем шурфы глубиной примерно 50 — 60 см. Длина сторон шурфов по 30 – 40 см. Чем меньше его площадь, тем меньше уйдет раствора, но чем больше – тем надежней будет основа под сваю. Выемки для заливки раствора можно сделать с помощью садового бура.
- Дно шурфов утрамбовываем, предварительно увлажнив маловлажный песок для повышения плотности. Если дно сложено суглинком, или влажным песком увлажнять не надо.
- Создаем подушку под свайный фундамент. На дно каждого шурфа насыпаем 10 см щебня и 10 см песка. Снова трамбуем.
- Заливаем в один из шурфов цементный раствор приблизительно до половины оставшегося после засыпки подушки пространства.
- Устанавливаем поверх заливки куски металлической кладочной сетки с ячейкой до 25×25×2 мм. Крепим ее штырями или проволокой прямо в грунтовую стенку шурфа. Главное, чтобы сетка не переместилась ко дну, а осталось приблизительно в середине устраиваемой опоры.
- Заполняем раствором остальное пространство в шурфе.
- Аналогичным образом устраиваем бетонные основы под все сваи.
Во время заливки второй части раствора устанавливаем дюбель для подпятника под сваю. Если его не поставить сразу, то потом придется бурить отверстие в бетонном камне. Учтем, что между заполнением первой и второй половины шурфа должно пройти не больше 45 мин., иначе опора не будет монолитной.
Сразу после заливки строительным уровнем проверяем, чтобы поверхность залитых опор находилась на одной высоте. В обратном случае необходимо будет выравнивать подпятники, а под них подкладывать щепу или обрезки доски.
Для того чтобы опоры затвердели, необходимо время. По правилам заливки фундаментов под жилые постройки к следующим работам следует приступать спустя 28 суток. На этот период их следует закрыть полиэтиленом, который периодически надо снимать для проветривания опор.
Далее производится сооружение каркаса:
- С помощью подпятников устанавливаем сваи, верхняя часть которых играет роль несущих стоек каркаса.
- Сооружаем нижнюю и верхнюю обвязку домика. Детали обвязки соединяем со стойками с помощью металлических уголков.
- Ставим оконные и дверные рамы, если они есть в проекте.
- Отмечаем середину торца домика для того чтобы провести примерку стропилин крыши. Строго вертикально прибиваем в этом месте рейку.
- Прикладываем к левой и правой стороне торца условной крыши по одной доске, отмечаем на них линию верхнего спила и абрис нижней врубки, применяемой для установки на обвязку.
- По этим шаблонам заготавливаем необходимое количество длинных и коротких стропильных ног.
- Соединяем стропилины металлической пластиной на земле и в готовом виде транспортируем наверх. Нижний узел в районе врубки усиливаем гвоздями или уголками.
Теперь готовый каркас надо обшить так, как запланировано: настелить пол, обшить стены, уложить обрешетку и кровельное покрытие. Во время обшивки выбираем отверстия для ствола дерева там, где он проходит через пол и крышу. Отверстие формируем с зазором по периметру ствола 7 – 10 см на свободное движение во время роста и на случай раскачивания сильным ветром.
Принцип устройства ограждений, оконной рамы и ставня изображен на схемах с размерами (+)

Фиксированная в 4 точках лестница для детского домика — наиболее безопасный вариант. Однако для устройства такой конструкции необходима заливка бетонных опор для опирания нижних точек (+)
Снизу вокруг отверстия прибиваем обрезки доски, чтобы усилить пол и предотвратить отрывание материала. В завершении в оконную и дверную коробку устанавливаем соответствующие полотна, сооружаем и фиксируем лестницу.

В нижнем перекрытии домика и крыше для ствола дерева формируются отверстия так, чтобы между деревом и конструкцией оставался зазор (+)
Устройство площадки на ветках
Если у ствола есть V-образное разветвление, оно вполне может стать опорной основой для нижнего перекрытия домика. Правда, дерево придется сверлить, что не слишком ему приятно. К тому же крепежные точки необходимо выполнять так, чтобы при изменении размеров дерева и при раскачивании от ветра, оно не смогло повредить строение.
Перед тем как начать строить такую конструкцию домика на дереве необходимо провести примерку. Она нужна, чтобы выбрать оптимальное положение балок перекрытия. Это лучше сделать с обрезком доски, длина которого будет больше расстояния между ветками примерно на 50 см. Для выполнения примерки и разметки под описываемый вариант потребуется надежная лестница и аналогичный помощник.
Расположив доску строго горизонтально, нужно отметить точки крепления на ветвях и на доске. Чтобы их найти, к одной из веток доску надо шарнирно прикрепить гвоздем. Поворачивая доску, слегка смещая ее второй край вверх/вниз, следует найти горизонтальное положение. Контроль горизонтальности следует проводить строительным уровнем, установив его на ребро примеряемой доски.
Этап примерки крайне важен, т.к. в дальнейшем для исправления перекосов нужно будет бурить новое отверстие в древесине, из-за чего ослабнет как ствол, так и место крепления.

Как и в предыдущем случае необходимо заранее продумать аспекты безопасности и выбрать оптимальный вид лестницы для передвижения
Обрезок доски станет шаблоном для нанесения расстояния между ветвями на брус 100×150 мм, который предстоит крепить к дереву. Отверстия, естественно размечают в центре заготовки на широкой стороне. Так формируется направляющая балка перекрытия. Расстояние с противоположной стороны следует определить таким же методом и ровно так же нужно будет сделать вторую балку.
Отверстия для крепления балок к дереву должны быть продольным и четко выровненными в горизонт. Для этого от отмеченной на материале точки откладывают по 5 см в правую и левую стороны. Затем сверлом 12 мм по краям выбираются начальные отверстия, а излишек между ними удаляется лобзиком. Продольное отверстие позволит веткам смещаться без разрушения установленной на них конструкции.

Отверстия для крепления балок к стволу должны быть выполнены в виде удлиненной прорези, чтобы при раскачивании от ветра дерево не повредило конструкцию
Далее приступаем к строительству домика согласно следующему алгоритму:
- Крепим направляющие балки к ветвям через сформированные отверстия, установив примерно в их середину шурупы по дереву Ø 12 мм. Длина крепежа 200 мм. Между балкой и шурупом должна быть установлена шайба.
- Проверяем горизонтальность закрепленных балок.
- Монтируем поверх них в поперечном направлении балки нижнего перекрытия из бруса 50×100 мм. Устанавливаем сначала две крайние, затем промежуточные. Расстоянием между промежуточными балками должно быть равным. Фиксируем к направляющим шурупами 80 мм.
- С торца установленных поперечных балок крепим брус такого же размера.
- Узловые соединения усиливаем металлическими уголками и пластинами.
- Усиливаем положение платформы двумя косыми балками 50×100 мм, верхний край которых упирается в сформированную площадку, нижний прибит к дереву. К площадке крепление проводится уголками, к дереву шурупами 100 мм.
- Настилаем пол доской 50×150 мм. Шпунтованную доску сплачиваем и прибиваем через 4 – 5 штук к балкам перекрытия. Нешпунтованную доску допустимо укладывать с зазорами 2 – 3 мм, крепить двумя шурупами или гвоздями нужно каждый элемент.
- По периметру платформы сооружаем ограждение из установленной вертикально доски или бруска с расстоянием между элементами примерно 10 см. В углах площадки бруски смежных сторон устанавливаются вплотную друг к дружке. Длина элементов ограждения не менее 90 см, чтобы полная высота с перилами вышла около 80 см.
- На ограждение сверху укладываем брусок, который сформирует перила. Брусок крепится уголками к этим своеобразным балясинам.
Площадка готова. Для того чтобы забраться туда потребуется лестница, тип которой подбирают исходя из соображений безопасности. Если хозяйничать в домике будут дети, лучше соорудить прочный вариант на косоурах или тетивах с хотя бы односторонними перилами. Если использоваться будет приставная лестница, снизу ее балки следует заострить и заглубить в грунт, чтобы зафиксировать положение.
Оформление верха площадки может быть разнообразным. Подойдет складная или стационарная конструкция в виде шалаша или двускатной крыши. Строительство домика на дереве можно продолжить по каркасной технологии или разместить там тент, натянутый на расположенные по углам стойки.
Бюджетный метод строительства летней базы на дереве:
Опыт американских строителей в сооружении домиков на деревьях:
Предложенные нами варианты строительства домика на дереве чаще всего применяются самостоятельными мастерами. С сооружением по описанным схемам не будет малейших проблем. Зато результат по достоинству оценят взрослые домочадцы и подрастающее поколение.
diz-cafe.com
