классная двушка в «брежневке» — INMYROOM
Место
Москва, беляево
Тип дома
Панельный дом
Дизайн
Наталья широкорад
Вкратце
Делать перепланировку — дорого и долго. А иногда просто невозможно — внутренние несущие стены не позволяют действовать радикально. В этой квартире дизайнер Наталья Широкорад сделала ставку на нейтральную палитру, продуманную расстановку мебели и вместительные шкафы — получился удобный и не тесный интерьер.
Дизайн: Наталья Широкард
Подробности
Ремонт в этой двухкомнатной квартире делали достаточно давно: фиолетовая спальня и розовая детская уже не устраивали заказчицу. Дизайнер Наталья Широкорад решила быть бескомпромиссной и полностью обновила устаревший интерьер.
Площадь квартиры небольшая, а внутренние стены все несущие, поэтому о радикальной перепланировке не было речи. Изменили только санузел — объединили его с ванной.
«Отделочные материалы в этом проекте довольно бюджетные. Плитка на полу в кухне и прихожей — Kerama Marazzi, на полу в остальных помещениях — ламинат Quick-Step», — рассказывает дизайнер.
Заказчице нравится стиль лофт: конечно, можно было бы использовать красный или коричневый кирпич, но он сделал бы небольшие комнаты темнее. Сюда больше подошла белая плитка под кирпич White Hills. В ванной плитку «Гамма» положили елочкой, чтобы она не казалась слишком простой и скучной.
Что касается систем хранения, от идеи отдельной гардеробной отказались сразу — она съедает много пространства. А вот компактные, отдельно стоящие шкафы и комоды в комнатах — отличный вариант для тех, кто не прочь через некоторое время сделать перестановку.
На кухне сделали антресольные шкафы — в них удобно хранить посуду, которой редко пользуются. Чтобы не загромождать ванную, в прихожей спроектировали нишу, где разместили стиральную машину. Простое и очень функциональное решение, продумать которое стоит еще до начала всех ремонтных работ.
«Простоту отделочных материалов мы компенсировали хорошей мебелью. Например, кухня выполнена из натурального шпона со столешницей из искусственного камня. Прикроватную тумбу и комод в спальню тоже сделали на заказ — это копии предметов итальянской фабрики», — рассказывает автор проекта.
В декоре важное место заняла тема «Алисы в Стране чудес»: дизайнер использовала именно этот сюжет в картине на кухне и постере в ванной. Текстиль добавил уюта и помог создать нужное настроение: например, в спальне заказчицы светлые шторы уравновесили насыщенный цвет стен, а в комнате дочери — яркие оттенки сделали интерьер девичьим.
Дизайн: Наталья Широкард
Дизайн: Наталья Широкард
Дизайн: Наталья Широкорад
Планировка
План с расстановкй мебели
Бренды, представленные в проекте
Прихожая
Отделка: краска, Oikos
Напольное покрытие: плитка, Kerama Marazzi
Освещение: светильники, Arte Lamp
Ванная
Напольное покрытие: плитка, Kerama Marazzi
Освещение: Globo
Сантехника: Roca
Кухня
Отделка: краска, Oikos; плитка, White Hills
Напольное покрытие: плитка, Kerama Marazzi
Освещение: Luminex
Мебель: столешница, moonzana.ru
Гостин
www.inmyroom.ru
реальные фото примеры, особенности дизайна
Основная проблема, возникающая при обустройстве интерьера кухонь в квартирах-брежневках — это небольшие размеры помещений, не позволяющие воплотить в жизнь смелые дизайнерские планы.
Площадь кухни в таких жилищах составляет всего 7 км. метров, что очень мало для создания действительно комфортных условий. Однако отчаиваться не стоит, так как достойное решение проблемы все же существует.
Если постараться, то даже самая компактная кухня превратится в идеальное место для ежедневных приемов пищи и посиделок в кругу родных.
Смелые решения уместны и на небольшой кухне.Особенности дизайна кухни в брежневке
Чтобы интерьер такой кухни выглядел максимально гармонично, а само помещение действительно было комфортным и удобным для всех домочадцев, следует придерживаться некоторых правил.
Очень важно рационально использовать пространство в помещении.Потолки в таких кухнях высокие, поэтому есть возможность сделать двухуровневые потолки, используя для этого гипсокартон. Такой метод стоит использовать, чтобы зонировать помещение и обустроить в нем точечное освещение, с помощью которого можно визуально увеличить пространство.
Натяжная часть потолка придает глубины и добавляет света.Сделать кухню более просторной и светлой поможет натяжной зеркальный (глянцевый) потолок. С его помощью можно надежно скрыть любые недостатки основы. Он смотрится очень дорого и стильно.
Возможны варианты цветового оформления потолка.Очень важно использовать правильную цветовую гамму при создании интерьера кухни в брежневке. Лучшее решение — максимально светлые оттенки при отделке потолка, стен и даже пола. Мебель в таком помещении также лучше установить светлую.
Светлые тона мебели и стен всегда можно дополнить яркими элементами.Для отделки потолков можно использовать и такой экономный вариант, как ПВХ-панели. Они тоже должны быть светлыми.
ПВХ-панели также могут быть разных расцветок, но белый цвет универсален и смотрится аккуратно.Для отделки стен можно использовать моющиеся обои — лучше, чтобы они были светлыми и однотонными. Крупный яркий орнамент визуально приближает предметы, поэтому такой вариант отделки стен в данном случае не подходит. При желании, стены кухни можно просто покрасить, используя краску светлых тонов — бежевую, белую, светло-серую, пастельную и так далее.
При оформлении стен также можно использовать обои под покраску.Для обустройства такой кухни следует выбирать Г-образную или линейную планировку интерьера.
Г-образная планировка позволяет эффективно задействовать угол помещения.Рекомендуется подобрать стол овальной или круглой формы.
Круглый стол на одной ножке позволит сэкономить место.Также подойдет прямоугольный стол, который можно установить в углу, или поставить вплотную к стене.
Интересный вариант углового стола.Весь текстиль должен быть полупрозрачным, легким и светлым — в первую очередь это касается штор или занавесок.
Чем больше света в помещении, тем объемнее оно смотрится.Хаотично расположенные на стенах декоративные элементы будут отвлекать внимание от несовершенных габаритов кухни, они сделают помещение более уютным и интересным.
Можно повесить часы, небольшие картины, полочки с декоративными элементамиГлянцевые или зеркальные вставки на фасадах мебели также визуально увеличат помещение и наполнят его светом.
Глянцевые элементы хорошо отражают свет.Крупные аксессуары, огромные вазы и букеты в кухне-брежневке использовать не стоит.
Крупные горшки для цветов также лучше не использовать, т.к. они закроют свет из окна.Если в помещении установлена хорошая вытяжка, рекомендуется полностью убрать двери, заменив их на просторную арку.
Для арки можно подобрать оригинальный наличник.Можно также заменить обычную дверь на раздвижную конструкцию «купе».
Раздвижные двери также бывают стеклянными.Где расположить холодильник на кухне-брежневке
Ни одна кухня не может обойтись без холодильника, который является одним из основных бытовых устройств на ней. Если помещение очень маленькое, можно отказаться от кухонного комбайна, микроволновой печки, мультиварки, но холодильник, в котором хранятся скоропортящиеся продукты, должен быть на ней обязательно.
Так как этот агрегат очень громоздкий и занимает довольно много места, следует хорошо подумать о том, куда его лучше всего установить, чтобы он не нарушал гармонию интерьера. Вариантов может быть несколько.
Важно помнить, что производители не рекомендуют устанавливать холодильник рядом с плитой.Угол — дизайнеры советуют все массивные предметы ставить к стене, по возможности, в угол. Именно это место будет идеальным для холодильника. Чтобы сэкономить драгоценные квадратные метры, следует выбирать самую высокую и узкую модель холодильника.
Прямо над ним можно расположить несколько полок для хранения разной кухонной утвари. Таким образом, угол будет использован максимально рационально.
Если кухонный гарнитур будет сделан на заказ, то можно без проблем спроектировать дополнительный шкаф над холодильником.У двери — это место тоже довольно популярно. Оба варианта отлично подходят для установки холодильника. Чтобы между ним и гарнитуром не было зазоров, рекомендуется заказывать мебель для кухни-брежневки, выполненную по индивидуальным параметрам. Тогда все предметы отлично впишутся в интерьер, и даже самое небольшое помещение станет удобным и комфортным.
Такая планировка гарнитура позволяет максимально задействовать имеющееся пространство для хранения.Под рабочей поверхностью — если семья небольшая, продуктов нужно не особо много, то лучше всего приобрести небольшой холодильник, который свободно поместится под барной стойкой, обеденным или рабочим столом. Как правило, высота такого агрегата равна примерно 50 см. скорее всего, морозильная камера в нем будет отсутствовать, либо она будет слишком маленькой.
Морозильную камеру можно поставить отдельно в другом помещении квартиры.За пределами кухни — если в самом помещении места для холодильника не нашлось, следует решить эту проблему кардинально. Установить агрегат можно в коридоре, или на балконе (если он крытый). Подойдет также прихожая и кладовка — главное, выбрать место, где холодильник точно не будет никому мешать.
На балконе лучше поставить холодильник в том месте, куда меньше попадают солнечные лучи.Где установить газовую колонку на кухне-брежневке
Если кухня небольшая, то мест для хранения в ней катастрофически не хватает. Газовая колонка — необходимое устройство, отказаться от которого невозможно. Однако существует несколько разных способов надежно его спрятать и сделать свою кухню более просторной.
Помимо громоздкости, колонка еще и имеет не слишком эстетичный вид, поэтому уместно будет спрятать ее за фасадами гарнитура.Перенос в коридор — такая мера может быть использована лишь в том случае, когда кухня действительно очень маленькая, а свободное место в ней необходимо для размещения других важных предметов.
Важно понимать, что перенос колонки за пределы кухни возможно исключительно при соблюдении некоторых условий:
- коридор должен быть просторным, расстояние между двумя его противоположными стенами должно составлять не менее одного метра;
- общий объем помещения, в которое выносится газовая колонка, должен быть не меньше 7,5 кв. метров, а высота потолка — не менее 2,35 метров;
- газовая колонка может устанавливаться только на капитальную стену;
- в помещении должен быть оборудован вентиляционный канал.
Можно подобрать размеры шкафов под размер колонки, и тогда все вместе будет смотреться довольно гармонично.Перенос газовой колонки в пределах кухни — спорное решение, однако осуществить такую задачу можно. Установить агрегат можно в углу, где он будет менее всего заметен, и не будет мешать.
Однако следует понимать, что перенос колонки на большое расстояние, даже в пределах кухни — это уже замена бытового устройства, требующая прокладки новых газовых коммуникаций. Придется узаконивать данный процесс, потратив на это немало времени.
Угол, в котором находится колонка, также лучше прикрыть фасадом.Встройка колонки в шкаф, самый оптимальный способ маскировки газовой колонки. Однако он не всегда законный, так как в некоторых городах запрещено прятать газовую колонку за посторонними конструкциями.
Прежде чем приступать к данному процессу, следует проконсультироваться у специалистов. Если такой агрегат имеет отрытую газовую камеру, то лучше замаскировать его фальш-шкафом, у которого отсутствуют верх и низ. Если газовая камера закрыта, то шкаф может быть настоящим. Газовую колонку следует устанавливать на одном уровне с навесными тумбами.
Так возможно расположить только колонку без открытой газовой камеры.Оформление кухни-гостиной в брежневке
Объединение кухни с гостиной в небольшой брежневке — хорошее решение, однако отнестись к подобному заданию следует со всей серьезностью. Чтобы получить органичный интерьер и комфортную атмосферу, необходимо использовать некоторые дизайнерские приемы.
В случае совмещения кухни и гостиной необходимо установить очень мощную вытяжку.Зонирование пространства — сделать это можно несколькими способами. Одно из решений — установка барной стойки, которая разделит рабочую и гостиную зоны кухни. Кроме того, она может полностью заменить собой обеденный стол, служить столешницей для расположения кухонной утвари, быть просто местом отдыха и служить по своему прямому назначению.
Такой элемент дизайна также станет настоящим украшением интерьера кухни-гостиной. Внизу под барной стойкой можно расположить бытовую технику, или оборудовать шкафчик для хранения посуды.
К барной стойке нужно будет подобрать подходящие по высоте и удобству стулья.Организация освещения — лучше всего использовать для этого точечные светильники, расположенные по периметру помещения, а также под шкафами, полками и тумбами рабочей зоны. Чтобы особо выделить зону гостиной, рекомендуется установить в ее центре, прямо над обеденным столом, красивую люстру.
Точечные светильники можно спрятать в карнизах по периметру кухни.Оформление поверхностей — для отделки разных зон кухни-гостиной в брежневке следует использовать разные материалы. К примеру, в качестве напольного покрытия для зоны гостиной можно подобрать ламинат, а пол в рабочей зоне обустроить с помощью плитки или керамогранита.
Будет лучше, если решение пола в кухне и гостиной будут перекликаться между собой по цвету.То же самое касается и стен — в обеих зонах они могут отличаться и по цвету, и по фактуре. Важно, чтобы выбранные отделочные материалы гармонировали между собой, создавая единый ансамбль интерьера.
Линию перехода от одного материала к другому на полу необязательно делать по прямой, можно и по диагонали, как в данном случае.Остров — такое сооружение станет отличным разделителем рабочей и гостиной зон в кухне-гостиной. Его можно выполнить в виде широкой барной стойки, или в виде большой рабочей поверхности. Таким разделителем вполне может стать и обычный обеденный стол.
Проектируя кухонный остров, важно учитывать общие габариты кухни.Мебель — разделить помещение на зоны можно с помощью мебели, расставленной в определенном порядке. Чаще всего для этой цели используют диван. Вместо него можно установить высокий шкаф, открытые стеллажи, шкаф-купе.
Лучше, если диван будет выполнен из материалов, плохо впитывающих запахи.Объединение малогабаритной кухни и гостиной видео
Какие приемы помогут сделать кухню-брежневку более просторной
Чтобы визуально увеличить кухню-брежневку, важно грамотно использовать линии, цвета, свет. Существуют и другие хитрости, которые помогут добиться поставленной цели.
Обилие света всегда положительно сказывается на восприятии размеров помещения.Не стоит перегружать небольшое помещение различным декором: витиеватыми фасадами, лепниной, сложными узорами. Лучше всего придерживаться принципов лаконичности и строгости.
Такую кухню легче содержать в чистоте.На такой кухне нет места большим картинам в массивных рамах, тяжелым напольным вазам и цветочным горшкам, многочисленным семейным фотографиям на стенах. Слишком перегруженная подобными вещами кухня будет похожа на лавку старьевщика.
Декор уместен, но в небольших количествах.Чтобы помещение не выглядело слишком холодным и неприветливым, часть посуды разрешается оставить на виду, красиво расположив ее на открытых полках.
Здесь также важно не переусердствовать: посуда должна гармонировать с другими элементами.Значительно сэкономить пространство помогут рейлинги и высокие шкафы с множеством отделений для хранения кухонной утвари.
На рынке сейчас представлены всевозможные конструкции, позволяющие сэкономить место на небольшой кухне.Кухня-брежневка реальные фото
















dizainkyhni.com
дизайн, фото интерьеров, планировка, ремонт

Кухня в брежневке представляет собой небольшое помещение в 6 кв. м (фото см. ниже). С одной стороны к кухне примыкает туалет, с другой – комната, входная дверь находится напротив окна. Подобная планировка не позволяет в полной мере реализовать все творческие замыслы, но сделать помещение уютным и функциональным вполне реально. Советы специалистов и дизайнеров помогут самостоятельно обустроить интерьер кухни в брежневке максимально комфортно и красиво.

Взвешенный подход к дизайну позволит создать уютную кухню и избежать превращения помещения в кладовую, заставленную техникой и мебелью
Способы увеличения площади кухни
Брежневка – это один из видов квартир в 8-, 9-, 12- и 16-этажных домах, построенных в 70-х годах прошлого века. К их существенным плюсам относятся изолированные комнаты и относительно высокие потолки (2,5–2,7 м). Что касается кухни, то она является малогабаритной, но компактной. Значительно увеличить пространство достаточно проблематично. Это связано с тем, что стена, примыкающая к кухне, является несущей, а балкон есть не во всех домах. Единственный возможный вариант – это создание арочного проема между кухней и гостиной. Для этого понадобится разрешение на строительство, полученное в вышестоящих инстанциях. Этот процесс довольно длительный и затратный, однако он позволит добавить недостающие метры к кухне.
Помните, что самовольная перепланировка грозит крупным денежным штрафом и в первую очередь несет угрозу для жизни домочадцев и соседей.
Если вы решились сделать арочный проем, то стену придется усилить, чтобы не снизилась ее несущая способность. При этом важно не переусердствовать и соблюдать баланс, чтобы нагрузка не превышала допустимые нормы на нижние конструкции. Подобная кухня-студия станет отличным местом для приготовления пищи и приема гостей. Помещение также можно увеличить за счет кладовок, объединив ванную и туалет в один санузел.

При достаточной ширине арки в ней можно разместить барную стойку

Иногда дизайн хотят усовершенствовать при помощи переноса мойки. В кухне она расположена в дальнем углу стены по той стороне, где находится входная дверь. В квартире один общий стояк на ванную и кухню и самотечная система, поэтому перенос коммуникаций усложняется. При перестановке не всегда удается обеспечить нужный угол наклона, и это приводит к частым засорам. Справиться с проблемой поможет станция принудительной канализации. Это компактный насос, который способен качать стоки, делая таким образом систему напорной, а не самотечной. Оборудование позволяет установить мойку практически в любой точке кухни и занимает совсем мало места, помещаясь в шкафчик под раковиной.

Оборудование для принудительной канализации занимает совсем немного места
Размещение мебели и гарнитура
Ремонт кухни в брежневке начинается с разработки дизайн-проекта, который позволит увидеть интерьер будущего помещения. Для этого можно воспользоваться компьютерной программой либо вооружиться ручкой и листом бумаги. Если в квартире не планируется капитальный ремонт и перепланировка, то варианты размещения мебели могут быть следующие.
- Угловые кухни для брежневки – лучший способ рационально использовать пространство. Гарнитур располагается вдоль двух перпендикулярных стен с захватом угла. Такая планировка позволяет соблюдать так называемый принцип треугольника, т.е. визуальное объединение холодильника, плиты и мойки. При подобном размещении на кухне очень удобно готовить, поскольку не надо тратить время и энергию на лишние маневры.
- При линейной планировке мебель и бытовая техника ставятся в один ряд вдоль глухой стены. Основной акцент делается на обеденную зону, где можно поставить уголок, обеденный стол и стулья. Такой вариант больше подойдет людям, которые мало времени проводят у плиты.

Типичный «брежневский» треугольник можно изменить, поменяв местами плиту с мойкой

Для кухни-брежневки площадью в 6 метров очень важно рационально использовать каждый сантиметр пространства, поэтому при разработке дизайн-проекта следует подумать о том, какая техника необходима, а без какой можно и вовсе обойтись или заменить на более компактную. Например, взрослому человеку, предпочитающему есть вне дома, больше подойдет вариант мини-холодильника, который легко прячется в шкафчик. Духовой шкаф с функцией СВЧ позволит не приобретать отдельно микроволновку. Что касается плиты, то 4-конфорочную поверхность можно заменить на 2 конфорки. Установленные вертикально, они отлично сэкономят пространство.
Чтобы задействовать зону у окна, можно оборудовать столешницу. Она может служить местом для быстрого перекуса или чаепития и станет стильным украшением интерьера. Обратите внимание на складные стулья и трансформирующуюся мебель, которая не занимает много пространства. Вместо массивного обеденного стола лучше установить выдвижной или раскладной стол, который монтируется в стену или в кухонный гарнитур. В сложенном виде такая конструкция служит полкой.

Широкий подоконник прекрасно превращается в рабочую зону
Не стоит экономить на мебели, если вы хотите сделать кухню максимально удобной и функциональной. Гарнитур, изготовленный под заказ с учетом индивидуальных параметров, обеспечит необходимым пространством для хранения посуды и продуктов. Также приобретайте высокие пеналы, достигающие потолка, навесные шкафы и полки. Во-первых, они зрительно увеличивают кухню в брежневке (фото см. ниже), а во-вторых, на антресоли можно сложить вещи, которые реже всего нужны в быту.

Секреты оформления
Дизайн кухни в брежневке должен быть лаконичным, без пафоса и вычурности. В интерьере будут неуместны резьба на фасадах, лепнина, массивная мебель, делающая пространство тесным и громоздким.
Для того чтобы визуально расширить помещение, сделать кухню просторной и нарядной, придерживайтесь следующих правил.
- При выборе цвета отдавайте предпочтение пастельным оттенкам. Это также могут быть бежевый, салатовый, песочный, светло-коричневый, белый. Избегайте ярких пестрых узоров и крупных принтов.
- Лучшие способы отделки стен: моющиеся обои под покраску, декоративная штукатурка, панели. Если есть одна свободная стена, можно сделать на нее акцент при помощи фотообоев.
- Высота потолков позволяет установить гипсокартонную подвесную конструкцию или натяжной потолок. Еще один (более бюджетный) вариант – панели ПВХ. Что касается напольного покрытия, отдавайте предпочтение влагостойкому ламинату или напольной плитке с мелким рисунком либо просто однотонной. Класть ее необходимо диагонально, чтобы зрительно увеличить помещение.
- Обратите внимание на освещение кухни: комната должна быть светлой в любое время суток. Для малогабаритной кухни подойдут настенные бра, точечная подсветка по периметру гарнитура и в полках, встроенные лампочки в зоне фартука.
- В случае перепланировки в кухне брежневке дизайн должен сочетаться со стилем гостиной. Обратите внимание, что в интерьере не должно присутствовать более трех разных цветов, иначе помещение будет выглядеть безвкусно. Сочетайте классический стиль с модерном, а прованс – с рококо. При желании можно оформить всю комнату в одном из стилей и приобрести мебель из одной коллекции.

Наилучшим вариантом оформления кухни будет выдерживание интерьера помещения в единой цветовой гамме

Всё просто, лаконично и без пафоса
Оформляя кухню в брежневке (фото см. на сайте), вы получаете возможность проявить творческий потенциал, самостоятельно обустроить помещение по своему вкусу и с учетом пожеланий домочадцев. Подойдя к процессу с любовью и ответственностью, можно получить результат, который превзойдет все ваши ожидания.
Фото живых интерьеров
Лучшие фотографии реальных интерьеров позволят вам выбрать своё дизайнерское решение «брежневской» кухни.
Видео по теме. Перепланировка кухни в брежневке.
prokuhni.info
Капитальный ремонт в «брежневке»: 7 особенностей
Наверх Перепланировки- Каталог домов
- Квартира
- Спальня
- Кухня
- Столовая
- Гостиная
- Ванная комната, санузел
- Прихожая
- Детская
- Мансарда
- Маленькие комнаты
- Рабочее место
- Гардеробная
- Библиотека
- Декорирование
- Мебель
- Аксессуары
- Загородный дом
- Ландшафт
- Системы хранения
- Коридор
- Уборка
- Фундамент
- Кровля
- Стены
- Окна
- Двери и перегородки
Потолок- Балконы и лоджии
- Внутренние конструкции
- Пол
- Водоснабжение и канализация
- Отопление
- Вентиляция и кондиционирование
- Газо- и энергоснабжение
- Освещение
- Сантехническое оборудование
- Безопасность и домашняя автоматика
- Бани, сауны, бассейны
- Строительные материалы
- Отделочные материалы
- Инструменты
- Техника
- Законы и финансы
www.ivd.ru
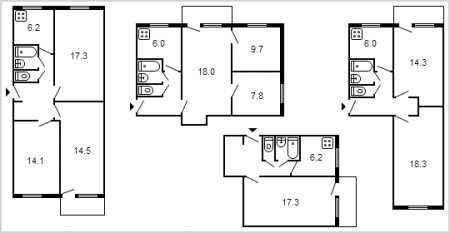
Планировка 1,2,3 и 4 комнатной квартиры брежневки
Квартиры-брежневки широко известны в нашей стране. Практически в каждом крупном городе есть хотя бы несколько десятков домов, построенных по стандартам времени, выпадающего на время правления известного политика. Всего же по Советскому Союзу были построены тысячи домов – тщательно выверенный и утвержденный чертёж применялся инженерами от Владивостока до Калининграда и от Мурманска до Ташкента.
План типовой квартиры брежневкиВернуться к оглавлениюСодержание материала
Немного истории
Великая Отечественная Война разрушила многие города, поэтому сразу в послевоенный период главной задачей было обеспечить людям хоть какое-то жилье. Люди были согласны даже на общежития и бараки. Проходит несколько лет, и каждому рабочему человеку хочется получить уже собственное, отдельное жилье. Так появились стандартные пятиэтажные хрущёвки – довольно тесные и не всегда удачно спланированные квартиры, зато свои. Изначально планировалось построить их на сравнительно небольшой срок – 20-30 лет, исключительно для того, чтобы временно разместить людей, прежде чем удастся построить для каждого из них просторную и светлую квартиру. Увы, этому не суждено было сбыться.
Но спустя ещё несколько лет людям захотелось получить не только свои, но ещё и более просторные квартиры. К тому же усилился приток людей из деревень, где условия жизни были значительно хуже, чем в городах. Поэтому от строительства пятиэтажных зданий сразу перешли к возведению 8-9 и даже 12-16 этажных домов.

Именно они и получили название «брежневки», так как начали строиться с середины 60-х годов прошлого века.
Официально брежневками называют только квартиры в домах, построенных во время правления Леонида Ильича. Но на самом деле план строительства, иногда чуть измененный, а иногда и неизменный, широко использовался до середины 90-х. И даже сегодня инженеры не забывают об этих наработках, нередко используя их при строительстве.
Особенности планировки
Если хрущёвки в большинстве случаев имели крайне небольшой размер, то планировка брежневки была продумана значительно лучше.
Появились не только 1,2 и 3 – комнатные квартиры, но и 4-х комнатные, предназначенные для больших семей.
пример планировки четырехкомнатной брежневкиЗначительно увеличилась площадь жилья. Стандартными стали следующие размеры:
- 1 комнатная квартира – 22-31 кв. м;
- 2 комнатная квартира – 42-45 кв. м;
- 3 комнатная квартира – 48-56 кв. м;
- 4 комнатная квартира – 58-70 кв. м.
Изменился и вид самих зданий. Как уже говорилось выше, они подросли с 5 этажей до 9 и даже до 16 – это позволило с минимальными затратами заселить большое количество людей.

Высокие здания были оборудованы мусоропроводами и лифтами, что сделало жизнь обитателей куда более приятной и удобной.
Совмещенные санузлы частично ушли в прошлое. На лестничных площадках можно было увидеть как четыре, так и три квартиры. В первом случае использовались совмещенные санузлы, а во втором – раздельные, благодаря чему комфортность проживания в квартирах существенно возросла.
Если в хрущёвках высота потолков редко превышала 2,4 метра, то для брежневки стандартом считалась высота от 2.5 до 2.7 метра.

Площадь конкретных помещений также возросла – в одних случаях (кухни и коридоры) несущественно, а вот в других (жилые комнаты) весьма заметно. Например, если кухня имела почти такую же площадь, как в хрущёвках (6-7 метров), то площадь гостиной составляла более 17 метров, а спален и детских – более 8 метров.
Разумеется, такие перемены были с удовольствием встречены новыми владельцами квартир. Например, двухкомнатная брежневка имела примерно такую же площадь, как и трехкомнатная хрущёвка.
пример планировки двухкомнатной брежневкиСерьезным плюсом можно назвать и такую особенность планировки, как наличие большого количества изолированных комнат. То есть комнат, не предусматривающих возможность сквозного прохода.
Поэтому можно с уверенностью заявить, что брежневки определенно были улучшенным вариантом хрущёвок.
Можно ли улучшить брежневку
Несмотря на все плюсы брежневки, многих людей утомляют те минусы, которые не были искоренены. И в первую очередь это малая площадь кухни. Всё-таки 6-7 квадратных метров это не тот показатель, о котором мечтают многие домохозяйки.
Поэтому нередко даже люди, в чьем распоряжении находится роскошная четырехкомнатная брежневка, всерьёз задаются вопросом – можно ли сделать её ещё лучше?
Лучше можно сделать практически всегда. Но для этого следует быть максимально осторожными и внимательными. Вообще, лучше всего доверить работу специалистам. Да, придется заплатить за их услуги. И заплатить немало. Зато они легко смогут достать план вашего дома, чтобы изучить его и составить оптимальный план работ, который гарантированно не навредит несущим конструкциям и не поставит вашу жизнь и жизнь ваших соседей под угрозу.
простые небольшие варианты перепланировки кухни в брежневке, которые можно сделать самостоятельноДело в том, что в панельных брежневках почти все стены являются несущими. Поэтому затрагивать их при ремонте не желательно, а если всё же приходится, то делать это следует максимально осторожно. Тем более что в некоторых случаях можно обойтись без этого. Итак, какие же варианты существуют?
- Встроенный шкаф. Нередко между кухней и соседней жилой комнатой находится встроенный шкаф. Его площадь довольно велика – от 1 до 1.5 квадратных метров. Проведя простейшую перепланировку (удалив шкаф, стенки которого изготовлены из дерева), вы можете увеличить свою кухню.
Пример переделки встроенного шкафаКонечно, 1 квадратный метр это не слишком много, но для кухни площадью в 6 квадратных метров подобная прибавка весьма ощутима. К тому же уберутся дополнительные перегородки и углы, что позволит выиграть ещё немного свободного места, которое можно использовать куда более рационально.
- Балкон. Нередко в брежневках выход на балкон расположен именно на кухне. Проведя определенные работы по перепланировке, можно присоединить балкон к кухне. Конечно, придется выложить немалую сумму за комплекс выполняемых работ: снос стенки, укрепление проёма, остекление, утепление и отопление балкона. Зато в результате вы получите дополнительно 2-3 квадратных метра для кухни. Получается, что её площадь увеличится почти в полтора раза! Весьма неплохо.
пример дизайна интерьера кухни, совмещенной с балкономЕсли вам хочется визуально увеличить площадь кухни, но шкафов и балкона на кухне нет, а ваша однокомнатная квартира не позволяет выкроить несколько лишних метров, чтобы присоединить их к кухне, можно сделать проём в стене, отделяющей кухню от комнаты.

Это весьма удобно функционально и в то же время позволяет сделать площадь обоих помещений визуально больше.
Иногда оправданным будет полный снос стены между кухней и комнатой. В результате вы получаете квартиру-студию. Освобождается довольно много места.
Остается только качественно зонировать комнату и кухню, разделяя их цветом или используемыми отделочными материалами.
Кухня остается кухней, жилая комната – жилой комнатой, а на их границе можно расположить столовую – владельцы 1 комнатной квартиры в большинстве случаев могут только мечтать о такой роскоши.
Кстати, ещё один случай, который может доставить дискомфорт обитателям брежневки, это крайне малый размер санузла. Да, санузел в большинстве брежневок раздельный. Но даже в 2-3 комнатных квартирах его площадь крайне мала. Иногда даже невозможно установить стиральную машину, что, конечно, не нравится обитателям.Единственный способ исправить это, который позволит планировка 2 комнатной брежневки, это объединение санузла. Разумеется, это может доставить определенные сложности, особенно если в квартире живет 3-4 человека. Зато в результате вы получаете достаточно свободного места, чтобы установить нужную технику, экономя место на кухне и в то же время делая жизнь более комфортной.
Пример объединенного санузлаИногда после объединения санузла оправданным является его полная перепланировка – унитаз и ванная меняются местами или разворачиваются, чтобы с максимальной пользой использовать имеющуюся площадь.
Вообще, критически подходя к дизайну квартиры, почти всегда можно сделать его оптимальным и подходящим именно для вас. Иногда оправданным является снос или перемещение встроенных шкафов, снос перегородок. Тогда из любой 3-комнатной квартиры можно создать настоящее произведение искусства.
proekt-sam.ru
Типовые брежневкие дома и планировка в брежневках
На смену пятиэтажкам – хрущевкам пришли «Брежневки». Изначально восьми-девятиэтажные дома серий к середине 70-х подросли до 12 и 16 этажей. В брежневских домах появились лифты и мусоропроводы. Была значительно улучшена тепло- и шумоизоляция. Планировка в брежневках стала значительно более удобной. Брежневки, строительство которых началось в 1970ых во многом являются прототипами современных типовых новостроек.
| Серия | Материал стен | Этажность | Годы строит-ва |
| II-29 | кирпич | 8-10 | 1965-1970е гг. |
| II-66 | кирпич | 9-12 | 1973-1983 гг. |
| Вулыха башня | кирпич | 12,14,15,18 | 1967-2003 гг. |
| Тишинская башня | кирпич | 12 | 1977-1984 гг. |
| Смирновская башня | кирпич | 12-13 | 1969-1981 гг. |
| Москворец. башня | кирпич | 12,14 | 1980-1991 гг. |
| 1-515/9м | панели | 9 | 1966-1980 гг. |
| 1-515/9ш | панели | 5,9 | 1966-1984 гг. |
| И-700 | панели | 22 | 1977-1994 гг. |
| 1605/9 | панели | 9 | 1965-1972 гг. |
| 1605/12 | панели | 12 | 1969-1985 гг. |
| II-49 | панели | 9 | 1965-1985 гг. |
| II-57 | панели | 9-12 | 1963-1970 гг. |
| П-3 | панели | 4-17 | 1970-1998 гг. |
| П-44 | панели | 5-17 | 1978-2001 гг. |
| П-30 | панели | 5-14 | 1971-2005 гг. |
| П-4 | панели | 22 | 1972-1987 гг. |
| П-42 | панели | 16 | 1972-1979 гг. |
| П-43 | панели | 16 | 1972-1985 гг. |
| П-46 | панели | 12-14 | 1971-1998 гг. |
| П-55 | панели | 9-14 | 1978-2002 гг. |
| И-521а | панели | 25 | 1974-1994 гг. |
| И-760а | панели | 9 | 1960-1983 гг. |
| ПП-70 и ПП-83 | панели | 10,14 | 1980е-1990е гг. |
| «Лебедь» | панели | 16,20 | 1966-2003 гг. |
| II-68 | блоки | 16 | 1969-1989 гг. |
| II-68-02 | блоки | 12 | 1968-1984 гг. |
| II-68-03 | блоки | 12 | 1968-1981 гг. |
| II-68-04 | блоки | 12 | 1970-1975 гг. |
| И-209а | блоки | 14 | 1970-1980 гг. |
| И-491а | блоки | 7,9,11,16 | 1974-1983 гг. |
| И-522а | блоки | 9,14,16 | 1977-1993 гг. |
| II-18/9 | блоки | 8,9 | 1958-1968 гг. |
| II-18/12 | блоки | 12 | 1966-1973 гг. |
| 1-мг-600 | панели | 9 | 1965-1975 гг. |
| 1-мг-601 | панели | 16-19 | 1965-1975 гг. |
| И-III-3 | панели | 9-16 | 1979-1993 гг. |
Все, что нужно для согласования перепланировки в брежневках описано в статье на нашем сайте.
Оцените статью: Поделитесь с друзьями!Не нашли то, что искали? Вернитесь к поиску планировок квартир по параметрам типового проекта. Поддержите проект, расскажите о tipdoma.com в социальных сетях:
tipdoma.com
Что такое сталинки, хрущевки, брежневки (8 фотографий)
Строительство домов во времена существования Советского Союза до сих пор напоминает нам о себе, ведь большинство построек того периода стоят на улицах различных городов России, в них проживают миллионы российских граждан.Что же такое «сталинки», «хрущевки», «брежневки» и откуда берут начало эти названия квартир.

Сталинские дома отличаются тем, что в них расположены просторные квартиры с большими комнатами, высокими потолками, широким балконом, иногда даже с двумя раздельными санузлами, кухней от 7 до 15 квадратных метров. 
Обычно строят два типа домов «сталинской» планировки: по одному типу на лестничной площадке расположены три двухкомнатные и трехкомнатные квартиры, а по другому типу – две четырехкомнатные квартиры. Обычная площадь квартир в «сталинских» домах бывает от 50 до 110 квадратных метров. Отличительной особенностью домов – «сталинок» является то, что они очень прочны, имеют красивый внешний вид, высоту этажей от четырех до семи, и до сих пор украшают собой многие улицы городов бывшего Советского Союза.

Строительство домов — «хрущевок» было начато в 1959 году, а закончено в восьмидесятых. Обычно в квартирах таких домов находится от одной до четырех комнат, которым больше подошло бы название «клеток».

Самая маленькая клетка – это кухня, ее величина обычно не превышает в «хрущевках» шести квадратных метров, санузел имеет еще меньшую величину. Дома – «хрущевки» также различаются между собой по количеству квартир расположенных на лестничной площадке. В домах, где на одном этаже четыре квартиры имеют совмещенные санузлы, а в домах, где на площадке всего три квартиры – имеют раздельные санузлы. Обычная площадь квартир в «хрущевках» бывает от 18 до 50 метров.

Дома – «брежневки» появились в Советском Союзе в семидесятых годах. Обычно их строили не в ширину, а в высоту. Обычная высота «брежневки» была от девяти до 16 этажей. Бывало, что даже возводились и более высокие дома. 
Дома – «брежневки» в обязательном порядке оборудовали лифтом и мусоропроводом. Квартиры располагали в так называемых «карманах», в каждом таком «кармане» обычно было две квартиры. Первоначальное название «брежневок» было «квартиры улучшенной планировки». Конечно, по сравнению с «хрущевками» такие квартиры на самом деле имели улучшенную планировку, но если сравнить их с со «сталинками», то было вернее назвать их «ухудшенным вариантом». Размер кухни в таких квартира от семи до девяти квадратных метров, потолки гораздо ниже «сталинских», количество комнат может быть от одной до пяти. Общая площадь квартиры от 20 до 80 метров квадратных.

Также со времен правления Брежнева остался еще один тип жилых домов, с квартирами так называемого «гостиничного» типа. В основном такие дома строились в девять этажей, площадь квартир в них составляла 12 или 18 квадратных метров. Тогда такие квартиры выделялись гражданам в качестве временного жилья, но как это обычно у нас в стране бывает, остались как постоянное.

Когда во главе власти в 90-х годах прошлого века стал Ельцин, то в России и других некоторых странах постсоветского пространства началось строительство «элитных» домов. Квартиры в таких домах в народе называют «элитками». Существует множество различных типов подобных жилых домов, но они практически не имеют между собой никаких общих характеристик.
Когда во главе власти в 90-х годах прошлого века стал Ельцин, то в России и других некоторых странах постсоветского пространства началось строительство «элитных» домов. Квартиры в таких домах в народе называют «элитками». Существует множество различных типов подобных жилых домов, но они практически не имеют между собой никаких общих характеристик.
Величина кухни в таких ельцинских домах бывает от девяти до двадцати метров, иногда даже больше, их называют кухни-столовые. Санузлы в таких домах всегда раздельные, иногда их бывает несколько в одной квартире.
Потолки в квартирах таких элитных домов высокие, комната может быть одна, но более 50 квадратных метров, или их даже может быть семь и все они размера больше среднего. Существуют в природе даже двухуровневые «элитки», а есть даже и такое чудо, как трехуровневые, с внутренним лифтом. Но это уж совсем редко бывает. В основном элитные квартиры бывают двух и трехкомнатные, при этом у них бывают огромные кухни и широкие коридоры. Бывает, что общая площадь такой квартиры может иметь быть более 150 квадратных метров.
Несмотря на многочисленные стройки во всех уголках России, большинство граждан так и продолжают жить в домах построенных еще в советские времена. Эти дома могут быть разные, как совсем развалюхи, так и вполне приличные. Но живет у людей в душе надежда, что когда-нибудь в нашей стране решат проблему с жильем.
—
Источник
www.webpark.ru

Пример переделки встроенного шкафа