Фотоотчет о строительстве дома в Германии (115 фото) » Триникси
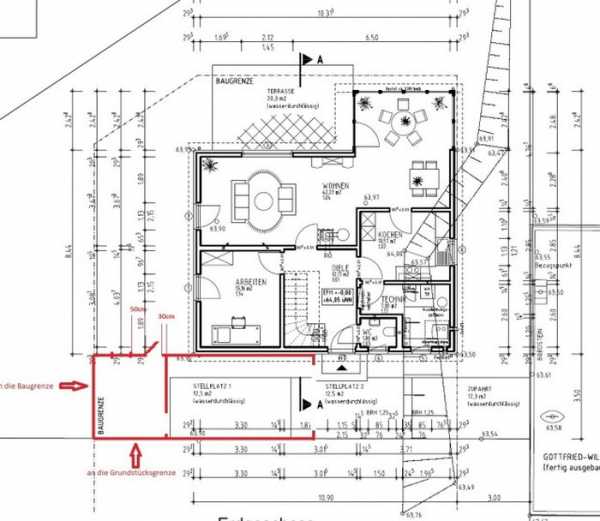
Далее вас ждет фотоотчет о строительстве дома, который по заказу клиента возводился одной немецкой фирмой. По меркам Германии все вышло довольно бюджетно, хотя всего было потрачено 180 тысяч евро.Первый этаж нарисовали так. Красным обозначен гараж.

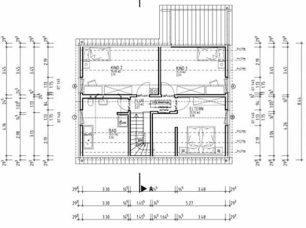
Второй этаж. всего около 160 кв.м.


Фундамент.


Стены приезжают готовые, уже с розетками, окнами и отделанные внутри гипсокартоном.




Зимний сад тоже в сборе.

Участок 6 соток.


Установка стен.






Довольно быстро дом начинает обретать формы.






Дошли и до второго этажа.





Зимний сад.


Прихожая изнутри.






Столовая изнутри.

Каминная труба.

Гостиная.


Вот уже как выглядит дом снаружи.



Здесь будет ванная.



Тут детская.

Спальня.



Чердак.




Все это заняло 2 дня, далее начались отделочные работы.










Снаружи покрыли штукатуркой.


Это система отопления.




Дом спустя месяц.





Здесь будет гараж.





Полы клали самостоятельно.




Шлифовка стен и потолков.








Начали заниматься террасой и газоном.







Получился такой газон.




Гараж изнутри.










Терраса.

trinixy.ru
Современный кирпичный дом в Германии: фото внутри и снаружи
Европейцы все больше предпочитают приобретать жилье подальше от шумных улиц мегаполисов, но при этом недалеко от «цивилизации». Двухэтажные капитальные строения из кирпича – отличные вариант для средней по размерам семьи. Как правило, такие строения имеют строгие формы и симметричные параметры. Двухскатные крыши, на которых впоследствии будут размещены солнечные батареи для экономии энергии, покрыты яркой черепицей. Достаточно большие окна выполняются из энергосберегающих стеклопакетов и оформляются под цвет дерева или в черном, темно-сером тоне.


Важным аспектом обустройства придомовой территории и оформления фасада здания, считается обеспечение достаточного уровня освещенности в темное время суток. Как правило, для организации функционального или утилитарного освещения используют настенные светильники для расположения на стенах дома, особенно у крыльца и подъезда к гаражу. Двусторонние уличные, настенные светильники рассеивают свет вверх и вниз по отношению к зданию, обеспечивая достаточны уровень освещенности фасада домовладения. Для освещения дорожек и придомовой территории применяется неяркий свет садовых светильников, работающих от аккумуляторов, заряжаемых солнечной энергией.


На забетонированной или выложенной каменной плиткой площадке можно обустроить патио или обеденную зону для трапез на свежем воздухе, расположить зону для барбекю или сегмент для отдыха с удобной садовой мебелью.


Но давайте заглянем внутрь этого кирпичного дома и рассмотрим внимательнее его интерьер.

Начнем нашу экскурсию с просторной гостиной, оформленной в современном стиле, стремящемся обеспечить высокий уровень комфорта и практичности помещения с минимальным декорированием и страсти к украшательству. Светлая палитра отделки пространства зрительно расширяет его, а природные оттенки, использованные в меблировке, текстиле и декоре – создают поистине теплую, комфортную атмосферу. Вместительный угловой диван со светлой обивкой и лаконичный журнальный столик из дерева, составили зону отдыха гостиной. В TV-зоне помимо телевизора была размещена система хранения в светлых тонах. В гостиной используется несколько уровней освещения – встроенная система подсветки на потолке, напольный торшер для возможности чтения на диване и настольные светильники для локального освещения зоны с телевизором.

В кухонном пространстве также прослеживается современная стилистика с элементами стиля хай-тек. Высокотехнологичная кухня снабжена глянцевыми фасадами кухонных шкафов в светлых тонах и темными столешницами. Разноуровневая подсветка обеспечивает необходимый уровень яркости освещения рабочих поверхностей и функциональных сегментов кухонного пространства. Вместительный кухонный остров стал не только системой хранения с интегрированной варочной панелью, но и местом для завтраков, благодаря выступающей столешнице. Разместиться для короткой трапезы можно на оригинальных барных стульях из металлопластика.

Для более длительных семейных трапез или устроения приему гостей с угощением, оборудована просторная столовая. На фоне белоснежной отделки помещения, залитого естественным освещением, особенно выигрышно смотрится внушительных размеров деревянный обеденный стол. Стулья с высокими спинками, облаченные в белоснежные съемные чехлы, составили компанию столу в организации обеденной группы. Завершает образ привлекательной столовой роскошная люстра с множеством стеклянных декоративных элементов.

Для того, чтобы попасть на второй этаж, необходимо выйти в белоснежный холл и подняться по металлической лестнице с деревянными ступенями.

Переходим в личные комнаты и рассмотрим подробнее спальню, оформленную также в теплых природных тонах. И в комнате для сна и отдыха мы видим аналогичный дизайнерский прием в отделке – светлые потолок и стены встречаются с более яркой акцентной стеной. А вот напольное покрытие в спальне отличается всех ранее увиденных нами комнат – мягкий ковролин с длинным ворсом расположен по всей площади комнаты. Еще одной отличительной особенностью спальни от оформления других помещений стал декор окна – шторы на люверсах вместо римских, как это было в гостиной и столовой.

Рядом со спальней расположилась вместительная белоснежная гардеробная. Системы хранения в этом помещении выполнены в виде распашных шкафов, гардеробный остров составлен из выдвижных ящиков. Для создания удобной и комфортной атмосферы при подборе образа и примерке, для напольного покрытия был применен все тот же мягкий ковролин.

Также недалеко от спальни находится ванная комната с контрастным интерьером. Грамотное применением белого, черного и серого оттенков в оформлении ванной комнаты позволило создать динамичный, интересный образ комнаты для водных процедур. Использование комбинаторики различных отделочных материалов также внесло свою лепту в формирование интерьера – керамическая плитка, мозаика, стеновые панели и покраска в рамках одного помещения смотрятся гармонично и сбалансировано.

Использование мозаичной плитки в спектре цветов от черного до белого, не только разнообразило внешний вид ванной комнаты, но и обеспечило надежное, влагостойкое и долговечное покрытие самых нагруженных стен.
www.remontbp.com
Фото самого маленького дома в Германии покоряют Интернет. Загляни внутрь — ты просто обалдеешь!
Архитекторы — люди не от мира сего. Они ухитряются строить суперкомпактные дома из ничего на крохотных клочках земли. А уж разнообразие дизайнов просто взрывает мозг! Одна только вилла в скале чего стоит!
Герои нашей истории — талантливые чудаки, которые тоже кое-что смыслят в архитектуре. Своими силами они соорудили самый крохотный дом в Германии площадью всего 14 кв. м.
55-летний архитектор Ахим Шолленбергер и его 57-летняя супруга Симона Штифель проживают в немецком городке Оберурзель. Глава семейства долгие годы вынашивал идею компактного жилья. Однажды коммунальная служба предложила ему старый трансформатор 1920-х годов.

Мужчина взялся за реставрацию, и спустя 4 года семья переехала в собственный 3-этажный дом. Свою обитель чета нежно называет «Вилла Стирштадт».

Гостиная: Симона Штифель сидит на столиком рядом с ванной. «Нам провели электричество несколько лет назад, до этого мы использовали 12-вольтовую систему освещения»

«Я всегда мечтал превратить такую крохотную коробку в полноценное жилое здание», — рассказывает господин Шолленбергер.
Супруги завтракают на первом этаже

Здесь есть всё необходимое: на первом этаже расположена кухня со столовой (6,1 кв. м), наверху — гостиная (4,5 кв. м), душевая и туалет (1,4 кв. м), а на чердаке — спальня (2 кв. м).

Спальня: под крышей находится двуспальная кровать. «Когда просыпаешься, отсюда открывается прекрасный вид на всю округу»

Кроме того, в доме есть кондиционер, полы с подогревом, Интернет, спутниковая антенна, 2 телевизора, сейф, солнечные панели, винтовая лестница и звуконепроницаемые окна. В двух шагах от башни находится железнодорожная станция.
В доме есть сейф, а в нём — Библия

В дизайне фасада использованы мотивы Старой оперы Франкфурта

С начала августа 2018 года домик станет частью маршрута индустриальной культуры Рейн-Майн, и его можно будет посетить по предварительной записи. Госпожа Штифель поясняет: «Здесь за раз поместятся только 6 человек».
А как ты находишь такое необычное жилье? Не слишком ли оно тесное даже для двух людей? Поделись с нами в комментариях и расскажи друзьям!
ofigenno.com
Загородный дом в немецком стиле [Фото] Лучшие проекты (2019)

Дома в стиле фахверк имеют очень давнюю историю
Современные жители мегаполиса все чаще желают убежать от городской суеты, хотя бы на выходные погрузиться в единение с природой, чистым воздухом и пением птиц. В связи с этим все чаще появляются люди, желающие иметь загородный домик – уютный, комфортный и в то же время современный. Жители Германии считаются самыми практичными и бережливыми, что ярко отображается в их архитектуре. Строения жилых домов немцев внушают доверие и вызывают ощущение надежности и особого теплого уюта. Вот почему небольшой дом в немецком стиле станет лучшим вариантом постройки вдали от мегаполиса!
Содержание:

Большой коттедж на берегу реки
К основным качествам, которыми обладает такое жилье, можно отнести:
- использование исключительно натуральных и экологически чистых материалов;
- правильные формы;
- сдержанная цветовая гамма;
- окна умеренного размера;
- отсутствие чердака;
- фасадный декор, состоящий из простых линий.

Гармоничное сочетание фасада и ландшафта
Архитектура дома
Классический немецкий дом зачастую бывает одно-, двух- или трехэтажным. Его формы просты – здание может быть прямоугольным или квадратным. Современные строительные компании предлагают добавлять некоторые пристройки, мансарды, эркеры или цокольный этаж, таким образом увеличивая жилую территорию. Но и в таком случае соблюдается четкость и правильность форм.
- Крыльцо при входе зачастую делают низкое и небольшое. Очень редко встречаются террасы. Но если таковые и есть, они тоже обладают скромными размерами.
- Практически в каждом немецком доме выше одного этажа присутствует балкон правильной геометрической формы. При традиционной постройке он будет открытым, но в последнее время заказчики все чаще предпочитают панорамные закрытые балконы.
- Кровля в основном черепичная с широкими, ярко выраженными свесами, конфигурация не усложненная.

Строительство каркасных зданий проходит в короткие сроки

Каркасный дом с панорамными окнами
Глаза и сердце дома
Входные двери чаще всего прямоугольные. Верхняя их часть застеклена. В оформлении главного входа принято использовать только контрастный цвет.
Важно! Окна также имеют правильную прямоугольную форму. Стекло делится перпендикулярными перемычками небольшой ширины. Иногда используются ставни, но лишь как элемент фасадного декора.
Используемые материалы
Как уже говорилось раньше, немцы предпочитают использовать только натуральные материалы. Для постройки традиционного жилья зачастую используют красный кирпич, шлакоблок, керамогранит или натуральный камень.
Для каркасных построек возможны разные виды древесины, клееный брус, ЦСП и т. д. Частым явлением стало монтирование первого этажа немецкого дома из прочного материала (камня, кирпича), а все последующие – из дерева. Классическими способами отделки являются покраска и штукатурка.
Важно! Цокольный этаж облицовывают натуральным камнем. Для крыши используют черепицу. В случае бюджетного варианта возможен профнастил.
Какой цвет выбрать?
Как и во всем другом, в архитектуре дома немцы предпочитают спокойные цветовые гаммы. Зачастую в оформлении стен используют более сдержанные пастельные тона, а деревянный декор в свою очередь обретает насыщенный черный или темный коричневый цвет. Таким образом, появляется особый контраст строения. Двери, ставни и окна окрашивают в синий, зеленый или красный. Крыша же имеет более сдержанную гамму – от серого до бордово-коричневого.

Контрастный фасад немецкого дома

Желтые стены смотрятся оригинально

Красивая усадьба в стиле фахверк
Готика и фахверк
Архитектура немецкого жилого помещения имеет несколько направлений. Самыми популярными среди них выступают фахверк и готика. Многие относят готический стиль к замкам. Но очень часто по всей Германии встречаются небольшие домики с острыми крышами и узкими треугольными козырьками. Таким строениям присущи вытянутые окна. А при входе в первую очередь бросаются в глаза колонны из натурального камня или красного кирпича.
На заметку! Цокольный этаж строится высоким, облицовывается грубым камнем, часто слегка отесанным. Этот способ декорирования делает дом визуально выше и, соответственно, более презентабельным.
Самым популярным в архитектуре дома данного типа считается фахверк. Именно его часто называют олицетворением стиля построек в Германии. Узнать его очень просто – балки разделяют фасад на небольшие правильные формы. Так же, как и в любом немецком строении, углы будут или ровными, или диагональными. Имея даже самую простую отделку, дома фахверк всегда выглядят добротно и надежно.
Еще немного о фахверковых домах
Данный тип архитектуры причисляется к каркасным постройкам. Считается, что это самая современная технология возведения строений. Костяком конструкции станут прочные деревянные столбы, горизонтальные балки и диагональные раскосы. Промежутки же зашиваются теплоемким материалом.

Заполнение кирпичом пространства между перекладинами

Применение современных технологий в немецком стиле
В былые времена фахверковые дома возводились на деревянных столбах переменного сечения. Пустота заполнялась субстанцией из соломы и глины. Спустя некоторое время немцы стали использовать более прочный материал – обожженный красный кирпич или натуральный камень. Реже постройка создавалась из досок.
Важно! Благодаря современным технологиям монтаж фахверкового дома стал более доступным и менее трудоемким. Каркас помещения собирается из клееного бруса хвойных пород, а пустота в нем заполняется пенобетоном, ЦСП, сэндвич-панелями и другими видами утеплителей.

Интерьер мансардного этажа каркасного дома

Черно-белый фасад загородного дома
Плюсы фахверка заключаются в следующем:
- технология крепления и установки сводит к минимуму возможность перекоса дома;
- благодаря любой длине бруса заказчик может сам определить объем комнаты;
- деревянный каркас имеет небольшой вес и не осуществляет дополнительного давления на основание;
- возможность возводить конструкции на невысоком фундаменте;
- благодаря каркасной конструкции повышается возможность скрыть от посторонних глаз все коммуникации в помещении.

Стеклянные стены – очень смелое решение

Каркасные дома снова становятся популярными
Облицовка фасада
Фахверковый стиль выглядит особенно эффектно на фоне остальных. В этом стиле чем грубее балка, тем впечатлительнее вся конструкция. При отделке фасада подбирают доски, которые имеют определенные размеры. В них должно быть минимальное количество сучков и любых других дефектов.
На заметку! В современном мире великолепной альтернативой дереву стали полиуретановые доски. Используя их, вам не стоит заботиться о вредном влиянии осадков, микроорганизмов или жучков. Любую облицовку можно делать по кирпичу, утеплителю или штукатурке.

Грубая балка на белом фоне смотрится очень эффектно
На сегодняшний день постройка любого из видов загородного дома в немецком стиле становится не заоблачной мечтой, а реальной возможностью убежать от суеты. Здесь вы обретете вдохновение, новые силы и единение с природой. Благодаря простоте и современности такое стилистическое решение являете одним из самых доступных и быстро создаваемых. После того как вы войдете в свой собственный немецкий домик, вам вряд ли захочется возвращаться в квартиру даже в центре мегаполиса!

Красивый дом в стиле современный фахверк
happymodern.ru
Проекты домов в немецком стиле, фото и цены
Требования к проекту дома в немецком стиле
До начала всех работ вы должны определиться с типом эскиза для будущего жилья:
- Готовый проект.
- Дать заказ на индивидуальный вариант эскиза.
Есть пару особенных требований к этому направлению в оформлении, отделки: декоративная облицовка, которая будет подчеркивать вкус владельца, его желания.
- Фасад. Строгость в геометрии деталей сочетается с контрастным сочетанием цветов. В его оформлении придерживаемся традиций, он добротно сделанный и прекрасный в своей простоте.
- Окна. Они сделаны в виде арки или в прямоугольной форме.
- Крыша. Кровля имеет много скатов и уровней, а чердак можно переделать на полноценное жилое помещение.
- Этажи. Строение состоит из одного или двух этажей, а также есть мансарда.
- Внутренняя отделка. Везде царит рациональность, практичность даже в расположении предметов мебели по их предназначению в доме.
Строения в немецком направлении стали во многих странах Европы, а также России очень популярны. Они отвечают всем требованиям, стандартам качества, безопасности в эксплуатации, потому что выполняются по высоким немецким технологиям.
Итог. Будет лучше, если до начала строительства вы просмотрите информацию обо всех стилях домов. Советуем обратиться за рекомендациями к профессионалам, узнать их мнение, и уже после этого избрать вид постройки, проекта и необходимый стройматериал.
Бесплатные проекты:
Бесплатно взять эскиз вы сможете при условии проведения акций, подробности, о сроках которых найдете тут.
Менеджер компании подробно расскажет обо всех типах строений, а также помогут с планировкой, чертежами. Только после того как вы больше узнаете о проектах, то сможете определиться с вариантом постройки, оформления, а мы вам постараемся помочь.
home-zagorod.ru
Современный частный дом в Германии

Эта потрясающая резиденция расположена в живописной сельской местности, которая и подарила вдохновение дизайнерам студии Wannenmacher + Möller.
Со стороны улицы благодаря фасаду из камня дом выглядит, как типичная ферма, но уже со стороны внутреннего двора становится ясно, что это современная стильная вилла для всей семьи.
В интерьере нет ничего лишнего: вся мебель идеально вписывается в интерьер, при том ее не много и не мало. Вы всегда найдете где почитать книгу, где просто посидеть, а где полюбоваться закатом или просто пригреть на коленках любимого кота.

coolhouses.ru
Как выглядит немецкая деревня — Пора валить? Все об эмиграции.
С чем ассоциируется жизнь в деревне у человека с постсоветского пространства известно всем. Сегодня я предлагаю своим читателям совершить небольшую прогулку по типичной немецкой деревушке на юго-западе страны. Таких деревушек в Баден-Вюрттемберге и Баварии тысячи и все они мало отличаются между собой, так что все что вы прочитаете и увидите тут, можно смело применить к каждой из них. Что ж, давайте посмотрим как и чем живет немецкая деревня.В моей деревне живет 3000 жителей и вместе с двумя соседними деревнями она образует общину Hohberg, суммарной численностью около 8 000 жителей. Община примечательна тем, что находится у подножия гористой местности — Шварцвальда, а также тем, что это один из самых солнечных регионов Германии.
01. Со стороны деревушка выглядит так. Главная доминанта деревни — церковь в стиле барокко, построенная в 1754-1756 году. Вообще деревушка, как это часто бывает в Германии, имеет богатую историю: первые упоминания о ней датированы 777 годом.
02. Меня трудно удивить чистотой и порядком в Германии, но в деревне эти показатели доведены просто до абсолюта. За всю мою прогулку я не заметил ни одной бумажки на улицах, они стерильно чистые, но это вы и так видите по фотографиям.
03. В этом регионе сохранилось много старых фахверковых домиков — на фото отель, расположенный практически в самом центре деревни.
04. В основном же улицы выглядят так: современные безликие дома с треугольными крышами, асфальт и плиточка. Грунтовых дорог в деревне нет совсем.
05. Также тут нет заброшенных или хотя бы потрепанных домиков, весь жилищный фонд в идеальном состоянии, что говорит о высоком достатке местных жителей.
06.
07.
08. В немецкой деревне традиционно сильны позиции религии. Часто встречаются такие вот украшения фасадов с религиозными мотивами. Также в деревне действуют два церковных хора и несколько церковных ферайнов.
09. Одни из самых красивых домов на центральной деревенской улице.
10. Розовое здание слева — городская ратуша. При прописке я оценил первое преимущество жизни в деревне — никаких очередей. Я был, наверное, единственным посетителем в то утро и прописка заняла 10 минут, отсчитывая с того момента, как я вошел во входную дверь. Чиновница была очень милой и улыбчивой. При прописке спросили религию, наверное для статистики. Сказал, что не религиозен.
11. Автобусная остановка возле ратуши. Оцените фантазию создателей, в центре остановки установили мельничный жернов, прослуживший по назначению 122 года и приводимый в движение лошадью, о чем сообщает прибитая тут же табличка.
12. Написано от руки, а не напечатано на принтере. Мило не так ли?
13. Идем дальше и подходим к главной достопримечательности деревни — церквушке. Хотел зайти внутрь, но она была закрыта. Странно, воскресенье ведь.
14. Порадовали фонари, сохранившиеся еще с того времени, когда освещение было газовыми лампами, о чем свидетельствует вытяжка на колпаке.
15. Скульптура с Иисусом в церковном дворике.
16.
17. Главная улица деревушки, так и называется Hauptstraße.
18. Пару слов о жизни в деревне. В немецкой деревне живут, как правило, люди далеко не бедные. Большинство местных жителей — крепкий средний класс. Практически все деревенские жители собственники жилья, а не арендаторы. Типичный двухэтажный дом в этой местности стоит от 200 000 до 400 000 евро. Так что судите сами о доходах людей проживающих тут. Несмотря на это люди очень простые и ездят на самых обычных автомобилях, массово припаркованных на обочинах улицах и во дворах деревушки.
19. Еще один существенный плюс жизни в Деревне — парковка. Она разрешена везде, я еще не разу не встретил тут знака запрещающего парковку. Телегу можно бросить где попало, главное чтобы проезд не перекрывала.
20. Люди в деревне совершенно не отличаются от городских. Это и не удивительно, ведь средний уровень жизни в деревне гораздо выше городского. А уровень образования в деревенских школах южной Германии выше уровня школ в мегаполисах, таких как Франкфурт, Берлин, Гамбург.
21. О том, что ты находишься в деревне, напоминают такие вот постройки с припаркованным внутри трактором и прочей сельскохозяйственной техникой. Сельским хозяйством занимаются немногие, наверное процентов десять деревенского населения. Остальные ведут обычный образ жизни, не отличающийся от городского.
22. Пока гулял по деревне заценил местных цыпочек 🙂
23. А цыпочки не сводили глаз с фраера с фотиком в руках — невиданный в этих краях тип прохожего.
24. Однообразность местного пейзажа разбавляет небольшой ручеек, протекающий через всю деревню. Вдоль него идет прогулочная тропинка, но не скажу что она хоть сколько-то живописна.
25. Сперва я подумал, что здание принадлежит деревенской пожарной части. Но оказалось, что это частный дом. Хозяин скорей всего просто любитель старой техники и прикупил себе списанную пожарную машину, поставив ее во дворе для украшения.
26. Как и везде в Германии, насколько бы не был дорогим и шикарным особняк, заборы тут имеют лишь декоративную функцию, а зачастую просто отсутствуют. Высокий забор в этой стране считается проявлением жлобства и скрытности хозяина.
27.
28. Велосипедистов тут не меньше, чем в городах. Это не удивительно, ведь инфраструктура для этого вида транспорта тут просто идеальная. Если задержусь в этих местах надолго, приобрету велик и себе.
29. Больше в деревне смотреть нечего, поэтому пройдемся взглянем на прилегающую к деревне территорию.
30. Дальше и без комментариев все понятно.
31.
32.
33.
34.
35.
36.
37.
38.
39.
40.
41.
42. Деревенское кладбище. Это новое кладбище, самые ранние захоронения датированы 90-ми годами прошлого века. Я обошел всё кладбище, обращая внимание на даты на надгробиях. Все люди, похороненные тут, жили от 70 до 90 лет, что отлично иллюстрирует уровень жизни в этих краях.
43. На улице лето и вся деревня утопает в зелени. С горки видно лишь колокольню церквушки да несколько крыш — все остальное скрыто густой листвой.
44. Возвращаюсь домой. Это улица, где я живу. Она очень маленькая — всего с десяток двухэтажных домиков.
45. А это мой дом. Принадлежит он местному жителю, который живет на первом этаже, а четыре комнаты на втором этаже сдает квартирантам. Маркус — кузнец, он изготавливает из золота и серебра различные украшения и свадебные кольца и продает их. Этим и зарабатывает на жизнь, ну и сдача комнат тоже приносит ему неплохой доход. Он очень милый и доброжелательный, мы все с ним на «ты», вообще атмосфера в доме царит очень домашняя и уютная. Три комнаты из четырех имеют выход на один общий балкон, который тянется вдоль всего этажа. Мое окно — центральное.
46. Зайдем внутрь. Это второй этаж — территория квартиросъемщиков. За стеклянной дверью прямо живет парень из Берлина, он получает рабочую профессию на том же предприятии, где я пишу дипломную работу. Из комнаты своей он почти не выходит, на кухне не готовит и вижу я его редко. Слева от плаката с Бобом Марли вход в комнату другого моего соседа. Он закончил универ по экономической информатике и пока временно работает при универе. Из комнаты выходит редко, тоже не готовит никогда. На выходных к нему приезжает девушка и они вместе сидят все выходные в комнате и жарят барбекю на балконе. Оба парня приветливы, но к какому-то контакту дальше стандартной вежливости не стремятся. Слева от винтовой лестницы на чердак вход в мою комнату и напротив него в комнату соседки. С соседкой мне повезло, очень коммуникабельная и общительная девушка, которая когда слышит, что я готовлю на кухне, всегда выходит посидеть рядом и рассказать как прошел ее день. Она очень открыта, как для немки, так что мы обычно болтаем обо всем на свете. Натали студентка, училась два с половиной года на юриста, потом поняла, что ошиблась специальностью и с этого семестра перевелась на логистику. Несмотря на то, что ее родители обеспеченные люди и папа ездит на «Ягуаре», от них она получает лишь 150 евро в месяц, которых ей не хватает даже на оплату аренды комнаты, поэтому она вынуждена работать, параллельно учебе.
47. Так выглядит кухня, скромно но уютно. Правда готовим мы, то есть готовлю я (за две недели не видел, чтобы кто-то еще готовил что-то, кроме пиццы в микроволновке) внизу на кухне у Маркуса, потому что на втором этаже нет электроплиты и также нет раковины для мытья посуды.
48. Ну и святая святых — моя уютная берлога 🙂 Тут есть все, что нужно человеку для полноценной жизни. Отопление работает даже летом, проверено. Быстрый W-LAN, выход на балкон. Есть даже кожаное кресло с подставкой для ног, для полного релакса на балконе. Правда, за почти две недели, что я тут живу, я им еще ни разу не воспользовался .
49. Благодаря большой площади остекления, комната очень светлая, а ночью можно закрыть плотные шторы и она становится очень уютной. Все это мне обходится 250 евро в месяц, включая свет, отопление, воду и интернет, но с сентября цена повышается до 270.
50. Ну и напоследок балкон. Он у нас один на троих. Отличное место для релакса, но по будням я прихожу домой под вечер, а по выходным дома меня не бывает, так что балкон — опция приятная, но в моей ситуации бесполезная.
51. Вот так и живем мы в этой небольшой, но удобной для жизни деревушке.
Плюсы жизни в деревне я уже перечислил: это отсутствие очередей, проблем с парковкой, красивая природа в ста метрах от дома. Дорога до работы без пробок среди живописных пейзажей. Но есть, конечно, и минусы. Например, сегодня мне нужно было отправить письмо, а почтовое отделение работает всего три часа в день с 9 до 12, а в некоторые дни дополнительно с 13 до 16. То есть рабочему человеку отправить письмо проблематично. Пришлось ехать в соседний город Лар, чтобы купить там почтовую марку в автомате. Тут всего два магазина: «Edeka», в которой просто космические цены и «Penny», находящийся за деревней возле федеральной трассы. Опять же за покупками нужно ехать в соседние города. Все врачи, гос.органы тоже в городах. Благо до них всего 10-15 минут езды на машине. Это меньше, чем ехать с любого района на окраине Дрездена в центр.
При наличии машины все эти проблемы перестают существовать, но жизнь без личного автомобиля тут будет немножко усложнена, так как автобус до города ходит раз в час, а по выходным и того реже.
Вот в принципе и все, что я хотел рассказать о немецкой деревне. Если у вас есть вопросы, не стесняйтесь, пишите в комментариях. Постараюсь удовлетворить ваше любопытство.
pora-valit.livejournal.com
