60 фото в интерьере, подвесные, детские качели



Виды конструкций
Любые качели состоят из сиденья и системы подвеса, закрепленной на подходящей опоре. Опора бывает либо внешней, либо является частью конструкции. Простейший вариант для квартиры – доска, уложенная на канаты, закрепленные к потолку. Рассмотрим самые часто встречающиеся варианты конструкции качелей.
Подвесные качели в интерьере
Сиденье делается из различных материалов (резина, пластик, дерево), имеет разные формы. Подвешивается сиденье на потолок или на стены с помощью специальных креплений.


Напольные
Сиденье и система подвеса объединены в единое целое. Плюс такой конструкции – возможность перемещения из комнаты в комнату, к тому же их не придется монтировать, что довольно сложно и дорого. Минус – большие размеры, для установки в малогабаритных квартирах они не подходят.

На фото детская спальня в светлых тонах, белые качели из ротанга дополняют интерьер.

Совет: При выборе качели главное внимание обращайте на ее безопасность, особенно, если пользоваться качелями будут дети. Все элементы должны быть надежными, прочными, а материалы – безопасными в экологическом отношении. У сиденья не должно быть острых углов, о которые легко можно получить травму.
Фото в интерьере, место установки
В современной квартире не так много мест, куда можно повесить предмет, который должен раскачиваться. Помимо того, что нужно обеспечить его надежное крепление, следует также оставить достаточно места для свободного качания взад-вперед, а также оставить «коридор» для бокового движения. Рассмотрим несколько вариантов размещения подвесных качелей.
Детская
Когда в доме есть ребенок, вопрос размещения подобных устройств решается сам собой. В детской подвесные качели вешают там, где имеется свободное пространство, это может быть центр комнаты или место возле окна. Сиденье на то время, когда ребенок не качается, можно поднимать к потолку или отводить в сторону и закреплять стационарно, чтобы оно не занимало место и мешало другим занятиям.

На фото вариант установки качелей в квартире, подвесное кресло размещено в детской для мальчика.



Гостиная
Качели в интерьере квартиры с успехом заменят привычное кресло в гостиной. Расположить их нужно так, чтобы, мерно покачиваясь, смотреть телевизор или наблюдать за горением огня в камине. Это будет способствовать глубокому расслаблению и отдыху.




Спальня
Если в вашей спальне есть уголок отдыха, его можно оборудовать подвесными качелями.




Лоджия
Балкон или лоджию в квартире можно превратить в зону для отдыха, для этого разместите на ней оригинальное кресло-качель или гамак.

Дверной проем
Это одно из наиболее удачных мест для подвешивания детских качелей в интерьере квартиры. Разумеется, они должны легко сниматься с креплений и убираться на то время, когда не используются, иначе проход из комнаты в комнату будет затруднен. Плюс в том, что обычно возле дверного проема нет громоздкой мебели, и места для раскачивания достаточно. Минус – конструкцию придется часто вешать и снимать.


Совет: Взрослым людям достаточно легких покачиваний с небольшой амплитудой для того, чтобы получить удовольствие от расслабления, поэтому качели для взрослых требуют меньше места для установки, чем детские. В квартире их можно установить в углу спальни, чтобы перед сном с комфортом почитать книжку.



На фото подвесное кресло-качель в интерьере спальни.
Выбор качелей в детскую для ребенка
При выборе модели для детей на родителей ложится особая ответственность: сами по себе качели весьма травмоопасны. Дети могут упасть с них и получить травму при падении, или удар, в том числе по голове, раскачивающимся сиденьем. Есть и другие возможности нечаянно причинить себе вред, особенно в том случае, если качели используются и как спортивный тренажер. Поэтому основное внимание нужно уделить безопасности.
- Материал. Все элементы конструкции должны быть изготовлены из легких и прочных материалов, не выделяющих вредных веществ. Чем легче сиденье – тем меньше вероятность, что ребенок пострадает при падении. Для малышей предпочтительны качели с пластмассовыми сиденьями.
- Устройство. Самых маленьких закрепляют в сиденье с помощью ремней безопасности. Могут быть предусмотрены также другие способы удерживания ребенка на месте, предупреждающие случайное падение.
- Крепление. Монтаж подвесных качелей в квартире лучше доверить специалистам. При самостоятельном креплении нужно учитывать, что в большинстве домов потолки сделаны из пустотелых плит, и для подвесных устройств, несущих серьезную нагрузку, они не подходят.


На фото подвесное кресло в интерьере небольшой детской комнаты.

Качель для квартиры, которую планируют установить в детской, выбирают в соответствии с возрастом детей и теми задачами, которые стоят перед родителями. Условно можно разделить все модели на три вида:
- для самых маленьких,
- для физического развития,
- для релаксации.


Качели первого вида напоминают колыбель, часто оборудованы динамиками для проигрывания спокойной музыки или звуков природы. В таких устройствах дети спокойно лежат между кормлениями и хорошо засыпают.
Второй вид предназначен для детей в возрасте от трех лет и старше. Привязанная к канату автомобильная покрышка – одновременно и устройство для раскачивания, и отличный тренажер для вестибулярного аппарата, заодно позволяющий увеличить силу мышц и развить координацию.
Качели третьего вида подходят не только для детей, но и для взрослых, можно установить в любой комнате в квартире.



Варианты дизайна
Дизайнеры создали огромное количество разнообразных моделей качающихся предметов, которые способны подарить комфорт, расслабление и создать особое настроение в квартире.
Гамак
Простейшие и древнейшие качели. Универсальный вариант – можно повесить и дома, и на улице, например, в палисаднике или на даче. Места много не занимает, и заодно может выполнять роль декоративного акцента в интерьере этно-стиля. В плюс гамаку также легкость и простота крепления, однако это не значит, что оно может быть менее надежным!


Стул
Если можно подвесить к потолку кресло – почему бы не подвесить стул? В конце концов, он легче! Так подумали дизайнеры, и на свет появились стулья-качели, табуреты-качели, пуфики-качели. Дизайнеры из Дании подвесили свою модель стула, пользующуюся особой популярностью, к потолку в квартире – и не прогадали! Во всем мире эти качели пользуются спросом.


Кресло
Подвесить кресло и раскачиваться в нем – идея не новая. Кресло в форме яйца первым подвесил дизайнер Ээро Аарнио в шестидесятых годах прошлого столетия, с тех пор вариаций кресла-яйца (кресла-кокона или кресла-пузыря) появилось огромное количество. Подвесные кресла для квартиры выполняют из ротанга, пластика, канатов, выглядят они по-разному, общее одно – форма похожа на яйцо. Большой плюс подобных конструкций в том, что для их установки не потребуется много места, амплитуда покачиваний не превышает полуметра.


Диван
Диван-качели – одна из самых популярных моделей для сада, но и в квартире им найдется место. Эта конструкция с успехом заменит обычный диван в интерьере гостиной, а удовольствия от сидения на ней – масса! Можно покачаться в одиночестве, а можно – целой компанией!

Некоторые дизайнеры предлагают подвешивать к потолку на цепях обеденные столы и даже целые обеденные группы! Экзотическое решение, но, возможно, кому-то оно придется по нраву. В любом случае качели в квартире доставят удовольствие и внесут в интерьер особое настроение.


Качели своими руками (видео инструкции)
Фото галерея
С помощью качелей можно экспериментировать с дизайном и оригинально оформить интерьер квартиры. Ниже представлены фото примеры использования качелей в комнатах различного функционального назначения.
design-homes.ru
140 фото качелей для дачи своими руками

Меню статьи
Наверно нет никого, кто бы равнодушно относился к качелям, а уж о детях и говорить нечего. У всех иногда возникает желание побыть в подвешенном состоянии, поэтому качели, это не только обязательный атрибут детской площадки, их можно сделать во дворе, в саду, на веранде, даже дома. Здесь представлено несколько фотографий — выбор за вами.
Садовые качели своими руками
Вот, например вариант обычных садовых качелей, которые подойдут и детворе и взрослым любителям покачаться Незатейливая конструкция, которую сможет воплотить в жизнь, даже человек, далекий от плотницкого дела.
Качели на дереве
Делаем классические качели на дереве
А это классический вариант качелей из дощечки, подвешенной на двух тросах на ветке дерева. Самый-самый простой вариант!!! Подсмотрено на сайте wikihow.com
1 фото — нарисован самый безопасный узел. Используем нейлоновую веревку, что бы дерево меньше перетиралось.
2,3 и 4 фото — отпиливаем, шлифуем и сверлим симметричные отверстия.
Пошаговые фото
Советы:
- — Дуб — лучший вариант.
- — Осмотрите ветвь, на которую будете вешать качели на наличие трещин и признаков болезни.
- — Если используете цепи, то рекомендуем их обернуть в пластиковые трубы, для предотвращения попадания в них пальцев.
- — Проверяйте надежность ветви каждую неделю, т.к. использование качели может постепенно разрушать древесину.
- — Перед использованием качели детьми испытайте качели на самом крупном члене семьи.
Источник фото: wikihow.com
Качели для детей
Если делать детские качели, то можно добавить немного декора, в этом случае боковины сделали в виде машинок. Впрочем, не важно, можно хоть динозавров, главное, чтобы было ярко и весело. Карабины и перекладину тоже желательно подобрать понадежней, дети все-таки. Вряд ли они будут тихо качаться, и любоваться природой.
Детские комнатные качели для годовалого ребёнка

А-образные садовые деревянные качели своими руками. Чертеж. Схема. Пошаговые фото
Очень подробный проект деревянных качелей для сада.
Такие качели будут под силу даже самому неопытному мастеру.
Данные качели крепятся к земле, устанавливаясь в бетонные основания при заливке (см. фото 5). Проект скамейки для этих качелей смотрите на странице ниже.
Источник фото: www.howtospecialist.com
Делаем скамейку для качелей
Ниже приведены пошаговые фото, чертежи для изготовления деревянной скамейки для садовой качели, которую мы описали выше.
Данная скамья является универсальной и поэтому такую конструкцию можно подвесить не только на а-образных качелях, но и на других видах качелей, например, можно подвесить балке потолка в беседке.
Источник фото: www.howtospecialist.com
Варианты крепления верхней перекладины качелей
Подробное описание одного такого варианта крепления



Кресло качеля
Если захочется побыть в одиночестве и поразмышлять на природе о чем-то вечном, покачиваясь в уютном кресле, соорудите себе такое кресло-качель. Согласитесь, есть в нем что-то винтажное, а бахрома с кистями настраивает на поэтический лад.

Качели диван на веранду
Впрочем, зачем лишать себя удовольствия дома. Если у вас большая веранда с крепким перекрытием, можно сделать качели и там, например, в виде подвешенного дивана. Наверно приятно подремать на свежем воздухе на мягких подушках
Чертеж схема качелей с навесом
Что бы увеличить картинку кликните по ней
На иллюстрации подробно изображены все детали для изготовления таких качелей. Есть даже шаблоны для вырезания боковых стоек скамейки. К сожалению, нам не удалось найти изображение более высокого качества, и мы не смогли установить источник картинки.
Источник изображения установить не удалось.
Использовать качели диван можно и в такой беседке парголе. Сегодня они очень модные, хотя и не очень практичные. Если пойдет дождик, подушки придется спасать, но зато это так по европейски. На таком диванчике можно представить, что находишься на берегу Эгейского моря.
Чертеж скамейки качелей для беседки или крыльца
Такие качели можно повесить в не только в беседке, но и в любом помещении, главное что бы опорная балка была прочной. Ниже на пошаговых фото приведены подробные схемы создания. На одной иллюстрации имеется шаблон для выпиливания боковой стенки от каркаса скамейки.
Источник фото: www.howtospecialist.com
Как сделать скамью для качелей
Пошаговые фото


Кликните по фото для увеличения
Источник фото: buildeazy.com

Качели с навесом
Но для наших условий лучше делать качели с крышей. Вот такую скамеечку под небольшим накрытием сделать совсем не сложно Просто и со вкусом.
Качели в стиле пергола
Интересный вариант качелей мы нашли на сайте diynetwork.com. Ниже в галерее вы можете посмотреть пошаговые фото создания не только опор качелей, но и сиденки. Кстати, конструкция очень простая и симпатичная. Особую элегантность создают параллельнее бруски на крыше качелей, придающие конструкциям вид перголы.
Источник фото: diynetwork.com
Схема-чертеж качелей перголы своими руками
Посмотрите пошаговые фото постройки качелей пергола. На 3-ем фото изображен способ крепления опорных балок с бетонными основаниями. По причине множества деталей рекомендуется все промежутки между древесиной перголы заполнить специальным наполнителем. Чертеж скамейки смотрите ниже.
Источник фото: www.howtospecialist.com
Чертеж скамейки для качелей пергола
Здесь вы можете ознакомиться с пошаговыми фото инструкциями по созданию скамейки для перголы модели описанной выше в статье. Это довольно простая конструкция, справиться даже новичок.
Источник фото: www.howtospecialist.com
Из бревен…

Или такой дачный вариант. Надежная конструкция из бревен с небольшой крышей хорошо впишется в суровый быт российской глубинки.
Качели из бревен с двойными ножками. Пошаговые фото
Автор фото утверждает, что эти сказочные качели он сделал на 3 дня!!! Давайте разберем некоторые фото.
1 фото: мы имеем сосновые бревна от 2-3 метра, диаметром 10-15 см.
4 фото: изображен способ крепления. Это резьбовая спица диаметром 10 мм. Скрестив необходимые бревна в нужных местах, мы просверливаем отверстие и, вставив туда спицу, обрезаем её болгаркой. Накручиваем с обеих сторон гайки с шайбами на спицу и стягиваем. Неправда ли просто.
6 фото: мы видим что боковые стойки должны получиться симметричными
7 фото: скрепляем боковые стойки. Для этого кладем на верх бревно и прикручиваем его спицами.
9 фото: для придания прочности конструкции добавляем два наклонных упора.
11 фото: скамья с размерами. Каркас: бруса 5х7, доски — сороковка
Предпоследнее фото — покрашенные качели. На мой взгляд неудачный цвет. Не забудьте при покраске использовать специальные средства для обработки, что бы древесина служила дольше.
Последнее фото: к качелям прикрепили ещё одну скамью для ребенка. Зачёт!!!
Насчет фундамента. То в местах соприкосновения качели с землей заливаем цемент, в которые заодно вставляем металлические основания, к которым мы потом сможем прикрепить наши ножки.
Эти пошаговые фото мы нашли на сайте jawura.com.pl, автор которого является автором ниже приведенных фото.
А вот ещё одна фото конструкция качелей из бревен с навесом
На фото ниже Вы можете рассмотреть все детали креплений. Используются цепи, карабины, анкера. Угол между спинкой и сиденьем скамьи 100 градусов. Все бревна крепим тем же способом, что и в модели выше. Удивляет простота крепления навеса. Автор фото неизвестен

Необычные качели на двоих
Если тянет на что-то креативное, бывают и такие оригинальные качели на двоих. Конструкция, конечно, сложная, но, как говорится, было бы желание. Зато, как маленькая беседка, очень удобно разговаривать с глазу на глаз, слегка покачиваясь.
Чуть незаслуженно не забыли про старые покрышки. Каких только видов качелей из них не делают. А вот до такого кресла не каждый додумается.
Качели из покрышки своими руками. Пошаговые фото
Для создания такой качели нам понадобятся три U-образные болта, один карабин, три цепи и нейлоновый трос. Нейлоновый трос нам нужен, что бы не перетиралась кора дерева от цепи. На фото прекрасно видно как это все крепиться, комментарии излишни.




Источник фото: todayscreativelife.com, автор: Michele
Красивые качели с ковкой
Такие качели в ажурной беседке, конечно, роскошь, но зато как красиво. Правда, не всем по карману.
Металлические качели
А если вашим бюджетом расходы на качели не предусмотрены, то достаточно найти старый деревянный стеллаж и пару крепких цепей. Пожалуйста, бюджетный вариант качелей готовый.
Качели кровать из поддонов (пошаговые фото)
Вот один из самых распространенных вариантов изготовления качелей из паллет, который представлен в интернете почти на каждом сайте. Поэтому и мы не обойдём его стороной. Ниже вы можете посмотреть два фото блока с пошаговыми инструкциями по созданию. А ещё ниже вы можете ознакомиться с фотогалереей готовых качелей. Думаю ничего сложного
Соединяем два поддона брусками
Сверлим отверстия для канатов
Что бы увеличить фото нажмите на них
Источник фото: http://themerrythought.com
Качели из евро паллет
Просто отпиливаем половину от евро паллет. Заполняем пустые пространства между досками, что бы было удобнее сидеть. Подвязываем полученную скамейку за тросы указанным на фото способом. Качели готовы.
Для Вас мы подобрали уникальную подборку идей самых интересных фото качелей для вашего приусадебного участка. Материалы собраны со всего интернета, нашего и забугорного. Авторство многих фото установить, к сожалению, не удалось. Источники же определенных фото указаны в подвале статьи.
Деревянные качели. 30 фото
novamett.ru
Детские качели своими руками — инструкция как сделать своими руками (80 фото-идей)
Уже много лет детские качели не теряют свою популярность. В современном мире, при появлении различных гаджетов, дети все больше времени проводят дома. Поэтому если двор или дача обустроены современными аттракционами, качелями — это лишний повод провести время на свежем воздухе.
Детские качели выполняют ряд важных функций, направленных на развития ребенка:
- скрашивают свободное время;
- закаляют вестибулярный аппарат;
- вырабатывают координацию движений тела;
- дарят положительные эмоции за счет выброса адреналина;
- снижают стресс в период плавных покачиваний.

Если нет возможности приобрести качели в магазине или есть переживания о безопасности малыша, то можно их смастерить самостоятельно. Это позволит сэкономить средства и придумать индивидуальную конструкцию. По фото и чертежам детских качелей, советам мастеров в интернете, можно сделать крепкую и надежную конструкцию.

Некоторые родители, желая сделать качели для своего ребенка используют подручные материалы — шины автомобилей, пластиковые трубы, веревки и прочее.

Однако, чтобы изготовить их правильно, для начала необходимо:
- выбрать тип конструкции;
- выполнить чертеж;
- закупить материалы;
- подготовить необходимые инструменты.
Краткое содержимое статьи:
Качели из металлических труб
Если появилась задумка сделать подвесные детские качели, сначала необходимо выкопать неглубокие ямки для несущих опор. Для этой работы можно использовать лопату или ручной бур. Если каркас для качелей металлический, то перед тем как поставить столб в яму, его низ нужно смазать веществами, которые препятствуют образованию коррозии металла.

На дно ямы насыпать щебень и песок и закопать опорные столбы, а поверх залить бетоном. После монтажа опорных столбов, сверху к ним необходимо приварить поперечную перекладину, к которой будет крепиться сидение. В центре ее нужно закрепить подшипники.

Сидение можно прикрепить приварив металлические трубы, подвесить на цепи или закрепить на канате. Сиденье — деревянные доски, старые стулья и прочие приспособления.

Качели из автомобильной покрышки
Конструируя качели на дачном участке необходимо проявить фантазию, особенно если участок засажен деревьями. Ведь именно толстый крепкий сук дерева можно использовать вместо конструкции из п-образной рамы. К нему на цепи или канате можно закрепить сиденье в виде автомобильной покрышки.

Чтобы ее закрепить, нужно сначала подготовить шину. Для этого наносим на нее разметку в виде прямоугольника, вырезаем этот кусок резины, выворачиваем покрышку протектором внутрь и крепим к ней цепь или веревку.

Автомобильная шина дает огромный простор творчеству, из нее можно вырезать ребенку лошадку, байк или же закрепить ее как тарзанку. Таким образом можно получить самую простую модель детских качелей для дачи, не требующую особых усилий.
Качели в помещении — как правильно закрепить
Подвесные качели имеют огромный спрос, нежели обыкновенные напольные, так как сделать их намного легче. Для того чтобы смастерить качели в помещении, понадобится следующее: крепкий канат, крючки, вкручивающиеся в стенку, сидение и подручные инструменты.

Важно понимать, что устанавливая качели в помещении, не каждая конструкция подойдет. И немаловажно, что вес, который они смогут выдержать ограничен, особенно если детские качели для дома будут закреплены в районе дверного проема.

Крючки присверливаем к верху проема, веревками закрепляем сидение и надеваем на крючки.

Качели-балансир — технология возведения
Кроме подвесных, среди уличных качелей на участке очень популярны наземные. Которые так же несложно сделать самостоятельно. Рассмотрим типичную схему для установки балансира, которые проще всего выполнить их из дерева.

Приспособления используют следующие: деревянный брус, бревно, доски, средства для обработки дерева и краска или лак. Сначала конструируют нижнюю раму длиной около одного метра. Затем к ней с помощью саморезов прикрепляют опорные стойки под углом или подкосы.

После этого по всей длине доски-балансира, длиной 2-3 м устанавливаются параллельно два бруса, а между ними закрепляются брусья поменьше — около одного метра.
Монтируется эта конструкция при помощи шурупов или клея для столярных работ. По краям балансира делаются сидения и ручки. А посередине сверлится отверстие для крепления ее к основанию.

Качели для самых маленьких
На площадке для игр детей должны присутствовать приспособления, которые соответствовали бы различному возрасту детей. Качели-маятник пользуются спросом у малышей. Смастерить пружинные качели для детской площадки самостоятельно просто. Вам необходимы будут автомобильные рессоры.

Основанием можно выбрать арматурную крестовину, к которой с помощью сварки крепится металлический анкер. Сначала так же выкапывается яма, подготавливается основание для установки металлической конструкции. Затем так же как и в предыдущих вариантах, все это заливается бетоном.

К пружине прикрепляется сидение, которое можно сделать, опираясь на фантазию мастера. Для девочки из досок можно смастерить лошадку, для мальчика — мотоцикл или машину.

Оптимальный выбор детской горки
Начиная конструировать горку, важно учитывать, что высота горки должна быть в два раза меньше ее длины. А на съезде с вертикального участка, необходимо обустроить ровную площадку торможения.

Так же важно сделать перила и ограждение. Это позволит уберечь ребенка от возможного падения и способствует подъему на саму горку.

А из чего будет выполнен вертикальный съезд — металл или пластмасса, выбирать мастеру. Если материалом детской горки для частного дома выбрано дерево, то понадобится несколько деревянных брусьев и досок.
Комплексное обустройство детской площадки
Для его создания понадобятся те же навыки, что и при создании горки. Только лишь стоит продумать как по отношению друг к другу будут расположены основные его элементы — турник, горка, канаты и прочее. Сначала стоит смонтировать горку, затем к ней постепенно пристраиваем остальные части.

Подготавливаем опоры, устанавливаем и бетонируем их. Затем при помощи саморезов монтируем к ним остальные поперечные и продольные несущие балки. И к ним уже крепим качели, ограждения, перила и прочее.

Важно не забыть учесть, чтобы детский игровой комплекс вписался в границы отводимого участка. Поэтому желательно сначала выполнить чертежи.

Можно создать этот комплекс на определенную тематику, в зависимости от фантазии. Смастерить сказочный домик или корабль со спуском вниз в виде горки и канатов.

Фото детских качелей своими руками



























landshaftdizajn.ru
КАЧЕЛИ для дачи — 20 СПОСОБОВ сделать своими руками.
Добрый день. Сегодня мы будем делать качели для дачного участка. Я решила сразу В ОДНОЙ СТАТЬЕ собрать все разнообразие качелей для дачи (от простых до сложных). Чтобы вы могли выбрать ту модель качелей – которая вам больше понравится.
Я НЕ ТОЛЬКО покажу идеи – мы также РАССМОТРИМ ПОДБРОБНО каждую модель…
И еще – я расскажу вам КАК прикрепить качели к опорной балке – все 4 способа.
Я начну от самых ПРОСТЫХ идей качелей для дачи – до идей ПОСЛОЖНЕЕ И ПОИНТЕРЕСНЕЕ.
А самые оригинальные идеи качелей для детей — с горками, веревочными лазалками и встроенными вигвамами — я вынесла в отдельную статью «Садовые КАЧЕЛИ — 15 СПОСОБОВ сделать своими руками.»
Итак, давайте начнем…
ПРОСТАЯ идея — как сделать качели из палеты.
Если у вас на участке (после привоза кирпичей или др. строительного материала) осталась грузовая деревянная палета (поддон) – то ее можно использовать в качестве основы для дачных качелей.

Нужен деревянный поддон (паллетник) – крепкая веревка – и то, к чему будем подвешивать. Либо это будет ствол дерева. Либо можно сделать опору на двух крепких столбах. Мы потом — чуть позже в этой же статье — будем рассматривать варианты опоры для качелей (и тогда я подробнее на этом остановлюсь).

Но… если развивать эту идею качелей из деревянной палеты дальше… то можно сделать все гораздо уютнее… Вот так…

А если у вас не одна – а целых 2 палеты обнаружились в хозяйсттве… то тогда из двух поддонов-палет можно сделать уютные качели со спинкой… покрасить… положить диванные поролоновые подушечки… И вуа-ля 2 облезлые палеты – превратились в роскошные качели для дачи.
Конечно палеты надо предварительно очистить, ошкурить наждачной бумагой (чтобы заноз не было) и покрасить (морилочкой или краской) и даже покрыть лаком (но желательно влагостойким).

Как крепить такие качели – я расскажу в самом конце статьи…
А сейчас мы пока побежим дальше по моделькам качелей на дачу.
Качалки-досточки – САМАЯ ПРОСТАЯ ИДЕЯ качелей на дачи.
Вот так выглядят эти дачные качели.

Обратите внимание – НЕ ПРОСТО доски с дыркой для веревки– а седушки , которые продублированы внизу еще двумя дощечками. Чтобы веревочное крепление держалось крепче и не было сильного трения на веревку при раскачивании.

Я думаю тут не надо долго объяснять как сделать такие качели самим.
ЕЩЕ ОДНА МОДЕЛЬ – качели с веревкой для дачи.
А вот еще показано КАК можно закрепить веревку на качелях. То есть суть очень проста:
Делаем 4 выпила (пазики выпиливаем) – 2 пазика в торце досточки – и 2 пазика по краям ближе к углам доски. (необязательно делать край доски таким же полукруглым как на фото – тот же принцпи сработает и на прямоугольном отрезе доски).
И потом когда 4 пазика выпилены – мы располагаем веревку – в них – таким образом, как показано на фото.

Несмотря на то, что пазы остаются открытыми – веревка из них не выскакивает. Под силой натяжения она только плотнее прилегает к пазам – и обеспечивается вполне надежное крепление веревки к сиденью качелей.
Качели для дачи – из сноуборда.
Или вот еще идея для дачи… Доски для катания на снегу делают из очень прочных материалов. Такая доска хоть и выглядит тонкой – на самом деле очень износостойкая (ее крайне сложно сломать). И поэтому ее тоже можно использовать как сидушку для качелей на даче.

Качели для дачи – своими руками из двух бревнышек.
А вот еще вариация качелей- сидушек – из двух бревнышек.

Вот на фото выше видно как просто сделать эти качели из двух отрезков оцилиндрованных брусьев. Очень простая модель. Два отрезка оцилиндрованного бревна оборачиваем веревкой и крепим каким-нибудь хитрым морским узлом.
Качели из доски – с раскатом в продольную сторону.
А вот модель качелей – когда раскат ( вектор движения) направлен в продольную сторону. Такую доску-качалку можно сделать подлиннее – чтобы качаться на ней дружной соседско-детской кампанией.

ИДЕМ ДАЛЕЕ…
И УСЛОЖНИМ ЗАДАЧУ… сейчас будут качели посерьезнее…
Дачные качели – из оцилиндрованных брусьев.
Как вам этот уютный дачный уголок?
Мило, правда?

Давайте рассмотрим подробнее как самим сделать такие качели.
ОПОРА – две А-образная конструкции из оцилиндрованных брусьев – (собирается из брусьев две буквы А- как мы видим на фото) – ставим их на ножки и на них укладываем поперечный брус.
И чтобы этот брус лежал надежнее на наших А-образных стойках – мы еще (видите там сзади) его укрепляем дополнительными короткими брусьями.
КАЧАЛКА … вот тут качалка интересная.
Сидение – Г-образная скамья из брусьев и обрешетки досточками + подлокотники из брусьев.
Держалка для сидушки – тоже прикольная – это не цепь и не веревка.
Это тот же оцилиндрованный брус – который нижним концом намертво крепится к сидушке (в зоне ее нижнего сидушечного бруса и в зоне бруса-подлокотника).
А верхний конец держалки-бруса имеет подвижное крепление в виде металлического кольца. И это кольцо крепится с крепежным карабином самой подвесной опоры.

Подробный чертеж именно ЭТИХ качелей из бруса -(с размерами и крупными фотографиями со всех сторон) — я разместила в отдельной статье «Скамейки-качели — 12 СПОСОБОВ сделать своими руками»… В этой статье вы все и найдете по качелям скамеечного типа.
Идем далее…
А вот почти ТА ЖЕ МОДЕЛЬ опорной стойки – но немножко в другой вариации. И тут еще нарядная обрешеточка добавлена в боковой части опорных растопырок.

Качели для дачи – делаем из неоцилиндрованного бруса.
Вот такая моделька..
Она может быть выполненная с сидушкой –скамейкой.

С двумя сидушками-досточками — получаются качели на два отдельных места.
Причем, заметьте, что их мы подвешиваем к тем же анкерам, на которых до этого висели качели-скамя. Таким образом к одной и той же качельной опоре можно вешать разные сиденья-качалки.

Или вот еще одна комбинация к той же опоре под качели. Комбинированные качели с сидушкой-стулом и сидушкой-досточкой.

Крепежные элементы стандартные для качелей – цепи и карабины из металлических колец и крюков.
Вот так выглядит две цепи от спинки и сидушки кресла – встречаются в одном кольце и потом уже идут к карабину крепежа балки.
А вот так –крепежный анкер с карабином для крепления веревки (или цепи)

Но это я забежала вперед…
Подробнее (ниже в этой же статье) я покажу 6 способов крепеления качелей к опорной балке… там мы подробнее на карабинах и остановимся…
А пока продолжаем смотрить какие еще бывают модели..
Почти ТА же модель — но с продолжением под еще одни качели.
Вот вариация этой модели – где поперечный брус выходит за боковые границы брусьев опоры и к нему подвешивается легонькая качалка-досточка.

Качели деревянные с навесом.
А вот модель качелей дополненная крышей-навесиком – на случай дождливого лета на даче.
И обратите внимание – тут уже ВЕРЕВОЧНАЯ ДЕРЖАЛКА – другая система карабинчиков.

Вот такие А-образные качели (с опорами в виде буков А) мы пошагово сделаем в отдельной статье «Качели для дачи – ШАГ за ШАГОМ делаем сами.»
Там все будет просто и понятно — вот в таких картинках.

А еще возможно у вас возникнет вопрос…
А что делать – если я хочу построить качели,
но у меня нет брусьев – только доски?
Вот ответ – сдвоенная доска спокойно заменяет брус по выносливости и нагрузке.

Ну а теперь давайте поговорим о способах крепления качелей к опоре.
КАК КРЕПИТЬ КАЧЕЛИ – К БРУСУ ОПОРЫ.
(6 СПОСОБОВ)
Крепление качелей – карабином (с обхватом бруса)
Вот тут мы видим фотографии крепежных систем для качелей – которые крепятся либо на брус прямоугльного сечения(квадратный обхват карабина) – либо на оцилиндрованный брус (круглый обхват карабина).

Крепление сквозное – карабином (со сверлением бруса)
Или специальные анкерные приспособления для сквозного крепления на брусе. Большинство качелей с наших фотографий в статье — как раз именно на эти анкера и крепятся.

В моей статье «Садовые качели — 15 СПОСОБОВ сделать своими руками» Есть отличные фотографии того, как установлены эти сквозные анкера. Да и вообще — в ту статью вошло много всего, чего я не смогла уместить в эту.
Крепление для качелей
с подвесом за 4 точки (как у качелей со скамейкой).
А теперь давайте разберемся — как крепить качели – у которых 4 точки выхода крепежных веревок (или цепей)… Вот такие…

Когда качели подвешиваются за 4 точки (2 на спинке и 2 на сиденье) – то мы…
Либо сводим веревки (цепи) в общеий соединительный карабин(кольцо)… и потом ведем уже одну цепь(веревку) к своему карабину (как я уже показывала вот на этом фото).
Либо – устанавливаем крепежную систему – которая предполагает 4 карабина – каждый из которых крепит свою веревку, идущую от седушки или спинки качелей.


Вот российская компания, которая как раз занимается продажей необходимой фурнитуры для качелей и аксессуаров для украшения и дополнения детских игровых построек любого назначения.

ОРИГИНАЛЬНЫЕ СИСТЕМЫ КРЕПЛЕНИЯ — для дачных качелей-скамеек.
Вот нашла фотографию очень простой модели качелей. Тут такая низенькая опорная стойка. И цепное крепление держится на 4 крюках, вбитых в боковые стенки опорных стоек.

Качели – со сквозным веревочным механизмом.
А вот еще одна ВЕРЕВОЧНАЯ конструкция для переносных качелей на даче.
Тут в деревянных балках сидушки – высверлены отверстия – в них вставлены металлические люверсы (железные кольца) – по ним веревка скользит – огибая сиденье снизу – в передней и задней части сидушки… и проходит через подлокотники вверх… к карабинам-держателям.

Видно, как веревка проходит через подлокотники и под седушкой. Отличная идея для крепление качелей на веревке.
КАЧЕЛИ для дачи – с рейками-держателями.
А вот качели вообще без веревок и цепей…. Да-да бывают такие. Тут в роли держателей выступают прочные рейки… они крепятся на оцилиндрованный брус… и….
Либо брус насажен на штырь – который проворачивается вместе с брусом (как круглый брус в колодце, на который наматывается цепь)
Либо – рейки накладываются на некий скользящий по брусу (туда сюда) металлический каркас.

А теперь давайте подумаем – куда еще можно прикрепить качели…
КУДА – вешать и крепить качели
Дачные качели — на металлической садовой перголе.
А вот здесь – тоже оригинальна находка – Качели крепятся к обычной садовой арочной перголе из гнутой металлической трубы.
Очень удобная в воплощении — идея для качелей. Купил и установил готовую перголу – а потом сколотил из досточек скамейку и повесил за веревки.
Совместил приятное с приятным. Тут тебе и пергола увитая зеленью и качели. Райская картинка.

Качели для дачи — под деревянной перголой .
Как строить самим быстро и просто такие перголы – я уже рассказывала. А как сделать такую сидушку-скамейку для качелей тоже понятно
Делаем скамью (обычную только без ножек) – седенье-основание + спинка + боковинки. Главное не жалеть крепежной фурнитуры – чтобы прочно было и вес выдерживала.
Перголу для дачных качелей можно построить побольше – вот как на фото ниже.

Или поменьше…


Пергола строится очень быстро … и потом качели можно снять… а под перголой сделать уютную зону отдыха на даче.
но это ЕЩЕ НЕ ВСЕ…
Я нашла еще НЕСКОЛЬКО СПОСОБОВ сделать садовые качели для дачи
- статья «Садовые качели — 15 СПОСОБОВ сделать своими руками.
- статья » Скамейки-качели — 12 СПОСОБОВ сделать своими руками.»
- статья «Качели уличные — ШАГ ЗА ШАГОМ сделать самому.»
- статья «Беседка-КАЧЕЛИ четырехместная — 4 СПОСОБА сделать своими руками.»
Поэтому не уходите далеко… будет еще много интересного… Закачаемся ))
Ольга Клишевская, специально для сайта «Семейная Кучка»
Читайте НОВЫЕ статьи на нашем сайте:
на Ваш сайт.
semeynaya-kuchka.ru
80 фото выбора лучшего варианта для украшения сада
Качели остаются на всю жизнь одним из ярких детских воспоминаний, именно они дарили прекрасное ощущение полета. Посмотрите на фото садовых качелей и возьмите на заметку, какую модель установить себе на придомовую территорию или в сад, чтобы сделать свой отдых на свежем воздухе более полноценным и запоминающимся.
Атрибуты могут разными: на цепях, с крышей-тентом, защищающим от солнца, и в виде гамака.

Краткое содержимое статьи:
Разновидности моделей
Садовые качели своими руками – это бюджетный вариант обустройства дачного участка и облагораживания отдыха. Кроме того, можно купить готовые изделия в магазине, где реализуется садовая мебель.

Установить сделанные собственноручно или купленные качели домашний мастер сможет самостоятельно, на это не понадобится много времени.
Конструкции отличаются по дизайну, габаритам и сложности исполнения, к популярным типам относятся следующие:
- Модели с А-образными опорами
- Переносные модели на цепях
- Модели со скамейкой на раме с П-образной формой

Модели в виде шезлонга
Качели для дачи с А-образными опорами изготавливаются из прочных материалов: они выдержат не только детей, но и взрослых. На гамаке могут одновременно поместиться два взрослых человека, эту переносную модель можно устанавливать в любой части участка.

Что касается семейного отдыха, то оптимальный вариант – конструкция на П-образной раме, которая является и надежной, и удобной.

Если у вас большая семья или вы любите отдыхать в большой компании, то вам понадобится создать фундаментальное изделие. Массивное сооружение должно быть достаточно устойчивым, необходимо, чтобы на скамье одновременно помещались 2 или 3 человека.

Широкий тент для садовых качелей защитит от испепеляющих солнечных лучей летом, а если сделать москитное укрытие, то можно качаться до позднего вечера, не опасаясь укусов назойливых насекомых.

У шезлонга предусмотрена только одна точка крепления, сама конструкция выглядит легкой и воздушной, но на самом деле модель выдерживает двух взрослых людей с малышом вместе. С наступлением холодов конструкцию можно занести в дом, чтобы продолжать пользоваться удобным изделием.

Из каких материалов делают качели
Все модели также разделяются в зависимости от материалов, использованных при их изготовлении. Садовые качели из металла – это востребованные изделия, благодаря их неоспоримым преимуществам: прочности, легкости и долговечности. Металлической конструкции не требуется особый уход, и она удобна в эксплуатации, поэтому многие дачники выбирают именно ее.
У пластиковых конструкций привлекательная цена, и их просто монтировать, но подходят такие качели только для детей-дошкольников: материал не рассчитан на высокие нагрузки. Такой вариант можно использовать, если в семье есть малыши, им катание на пластмассовых качелях принесет только радость и положительные эмоции.

Деревянная модель – это классика, вписывающаяся в любой ландшафтный дизайн дачного участка. Эти качели могут быть как из бюджетной ценовой категории, так и из премиум-класса, за сложные конструкции из дорогостоящей древесины придется отдать немало денег.

Возведение качелей своими руками
Если не удалось купить уличные качели для загородных домов на распродаже, то их можно смастерить из подручных материалов самостоятельно. Остается только разобраться, какие понадобятся инструменты, и определиться с последовательностью действий.

Процесс создания садовых качелей условно разделяется на 3 стадии:
- Выбор модели и места на даче
- Приобретение всех необходимых составляющих
- Поэтапное возведение качелей

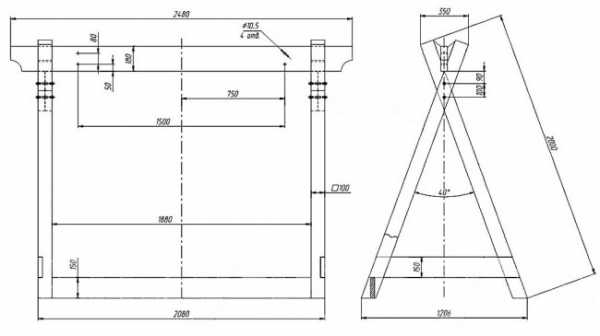
Давайте рассмотрим процесс сооружения качелей на примере изготовления и установки модели со скамейкой на А-образной раме.

Как правильно выбрать модель качелей
Процесс монтажа напрямую зависит от типа конструкции, поэтому, прежде всего, необходимо определиться с выбором подходящего варианта.

Не спешите покупать изделие в магазине, прочитайте отзывы пользователей о различных моделях, найдите чертежи, посмотрите, как выглядят конструкции в собранном виде, в общем, ваша задача – правильно оценить силы.
Выбрав модель, продумайте, где лучше ее разместить: в саду или на придомовой территории. Место для качелей нужно подготовить, освободив его от колючих кустарников, а вот если на этом участке растут цветы, то их следует оставить.

Какие составляющие потребуется купить
Домашний мастер до начала работы должен приготовить следующее:
- Трехметровый брус (с d от10 до15 см)в количестве 4 штук
- Брусья с d 8 см и d 4-5 см
- Сосновые и березовые доски 10х2,5х250 см (около 15 штук)
- Доска 15х5х300 см
- 100 саморезов 80х4,5
- Саморезы 51х3,5 (200 штук)
- Рым-болты (4 штуки)
- Сварные цепи с толщиной 0,5 см, длина которых соответствует высоте качелей (2 штуки)
- Винты оцинкованные 12х100 с кольцами (2 штуки)
- Лакокрасочные материалы
- Пила
- Электродрель
- Шуруповерт/отвертка
- Ручной бур/лопата
- Кисти
- Рулетка
- Строительный уровень

Пошаговое возведение сооружения
Сделайте заготовки для будущей конструкции: от деревянных досок (10х2,5х250 см) отпилите планки с длиной 1,5 м для скамейки. Если ширина сидения 50 см, то для него понадобится 5 или 6 досок, а для спинки будет достаточно 4 или 5 досок.

Самую широкую доску распилите на 6 одинаковых частей, они используются в качестве перекладин, чтобы скреплять вместе доски сидения и спинки. Соединяют поперечные доски с помощью саморезов под углом 120 градусов, после этого на основу прикрепляют доски скамьи. Если под саморезы отметить места и предварительно просверлить отверстия, то удастся не повредить древесину.

Подлокотники устанавливаются последними, для их изготовления используйте брус (d=4-5 см) или оставшиеся обрезки от досок.

Оптимальные размеры для скамьи: ширина – 50 см, длина 150 см, эти показатели могут быть изменены, однако при этом важно рассчитать нагрузку правильно.

Теперь можно приступать к установке рамы, ее ширина в соответствии с нормами строительства должна быть больше ширины скамейки на 50 см. Ямы под брусья с глубиной 1 м выкапывают на расстоянии 1 м друг от друга, углубление на 30% заполняют щебнем.

Брусья устанавливают и соединяют под углом, между парами брусьев монтируют перекладину, закрепляют конструкцию с помощью уголков. Необходимо сделать стяжку досками, отступив от верха рамы 25 см и от низа 30 см.

Чтобы отрегулировать А-образную раму, используйте строительный уровень, установите скамью, закрепив цепь рым-болтами в раме и основании подлокотника.

На отрезки цепи должны быть предварительно надеты кольца, используя оцинкованные винты, выполните крепление конструкции к перекладине.
Убедитесь в надежности соединений и принимайтесь за декоративное оформление, кроме покраски можно соорудить тент на верху рамы. Сшейте чехол для садовых качелей, и надевайте его на конструкцию, когда вы ею не пользуетесь. Благодаря этому вам удастся сохранить первоначальный внешний вид в течение долгого времени.

Не забудьте защитить древесину от негативных воздействий извне, обработайте ее специальными составами, предотвращающих появление в дереве насекомых-вредителей, и используйте лакокрасочные материалы, предназначенные для наружных работ.

Фото садовых качелей





























landshaftdizajn.ru
Качели для дома
В традиционном представлении, качели – это уличный атрибут, встречается в дачный садах, на детских площадках, парках. В квартире же качели встретишь не часто, а жаль, ведь это не только необычно, но и практично! Как приятно отвлечься после дневной городской суеты и погрузиться в атмосферу детства, раскачиваясь и расслабляясь. Существует несколько вариантов, давайте посмотрим, какие же бывают домашние качели.
Качели-диван
Просмотр фильма или непринужденная беседа, а может быть даже послеобеденный субботний сон? Качели-диван могут быть как подвесные, так и на основе-опоре, в первом случае будет очень легко убираться, а во втором – качели для дома можно легко перемещать по квартире и даже вынести на балкон.
Качели для домаКачели-кровать
Это, безусловно, очень романтичный вариант для спальни, способный погрузить вас в атмосферу отдыха в тропической стране. Можно поддержать эту идею во всем интерьере спальни, а можно сделать качели-кровать в современном стиле, тогда они будут выглядеть ещё более эксцентрично и игриво.
Качели для домаКресло-качели
На сегодняшний день на рынке огромное разнообразие вариантом таких качелей: это может быть и удобное кресло, и пластиковый прозрачный шар, который выглядит как огромный мыльный пузырь, и даже просто стул, подвешенный к потолку! Такие качели для дома не займут много места в комнате, но, несомненно, станут её изюминкой.
домашние качели Теги: качелиiqinterior.ru
60 супер-идей, чертежи и яркие фото

Чем больше участок, тем проще можно выбирать (или делать самому) качели
Качели – одно из самых ярких и незабываемых воспоминаний из детства, дарившие ощущение неудержимого полета. Может быть поэтому, повзрослев качели садовые (фото приведены ниже) становятся непременным атрибутом загородного дома или дачи, как попытка хоть немного, но вернуть то ощущение свободы, парения и радости. Это могут быть как элегантные качели, имеющие тент для защиты от солнца, или качели «гамачного» типа, подвешиваемые на цепях. Очень популярны деревянные качели – они полностью отвечают общей концепции загородного дома и единства с природой.
Содержание

Деревянные качели для сада, сделанные своими руками

Оригинальные подвесные раскачивающиеся кресла треугольной формы

Гамак на одну персону, подвешенный на достаточно прочном ригеле
Разновидности садовых качелей
Один из способов разнообразить и облагородить отдых на дачном участке – садовые качели, изготовленные собственноручно или купленные в магазине садовой мебели. Установить качели своими руками также несложно даже для человека с незначительным опытом в возведении объектов.
В зависимости от того, для кого и с какой целью устанавливаются качели на участке, их внешний вид, размеры и сложность конструкции будут меняться. Наиболее распространенными типами конструкций являются:
- Качели на А-образных опорах
- Переносные качели-гамак на цепях
- Качели на П-образной раме со скамьей
- Качели-шезлонг
Качели на А-образных опорах с разными типами сидений (от простой планки до прочного кресла) идеально подходят для летнего отдыха детей и взрослых. Переносные качели-гамак могут выдерживать пару взрослых и устанавливаться в разных частях участка. Если же речь идет о семейном отдыхе, во время которого и взрослым и детям будет приятно покачаться на удобных качелях, вариант со скамьей на П-образной раме наиболее оптимален за счет прочности и удобства.

Садовые качели в тихом уголке, обвитые ароматной розой: здесь можно расслабиться и подумать о чем-то приятном

Комплект качелей и садовый столик, подходящих друг другу по исполнению

Простое и практичное качающееся кресло из металлических прутьев на веранде

Подвесная мягкая конструкция, безопасная для всех членов семьи
Современные садовые качели – это достаточно фундаментальное изделие, особенно когда речь идет о семейном варианте. Это достаточно массивное и устойчивое сооружение, имеющее широкую удобную скамью, на которой может разместиться 2-3 человека. Обширный тент закрывает качели от жаркого солнца, зачастую в комплект входит и москитное укрытие. Оно убережет он назойливых насекомых вечером, и сохранит сон малютки днем на свежем воздухе.

Солидная покупная модель
Качели шезлонг, несмотря на визуальную хрупкость (имеют всего одну точку крепления), создающие ощущение воздушности, на самом деле могут запросто выдержать двух взрослых и малыша. При желании, зимой их можно без проблем разместить внутри дома.

Каркас из пластика и проволоки у покупной модели

Классические садовые виды в беседках с колоннами выглядят и представительно, и ностальгично

Самый удачный вариант по соотношению цены и удобства пользования: переносная металлическая конструкция с выдвижной спинкой
Отдельно стоит отметить разделение конструкций еще и по материалу их изготовления. Все большую популярность набирают садовые качели из металла, так как при относительной легкости качели, долговечность ее службы обеспечивается прочностью материала. Помимо этого, металл не требует особого ухода.

Детский развлекательный комплекс на участке, по безопасности рассчитанный на разные возрасты
Встречаются также конструкции из пластика. Их преимуществом является низкая цена и простота монтажа. Однако такой вариант можно купить только для обеспечения отдыха детей дошкольного возраста, так как предел прочности пластика достаточно низок.

Фабричное изготовление предполагает и вот такие симпатичные тентованные модели ля бассейнов

Качель из дерева в центре сада, для приятного времяпровождения
Классическим же вариантом являются садовые качели, изготовленные из дерева. Дерево прекрасно вписывается в обстановку любого садового участка. В зависимости от сложности конструкции и дороговизны породы, качели могут быть как самыми простыми, так и премиум-класса.

Изделия из дерева необходимо тщательно и регулярно обрабатывать защитными растворами
Особенности самостоятельного возведения качелей
Если владельцу дачного участка, при посещении магазина садовой мебели не попалась распродажа на качели, скорее всего, без скидки и возможности купить данную конструкцию недорого, у него появится желание соорудить ее самостоятельно. Для таких ситуаций важно знать алгоритм действий и список необходимых инструментов.
Грубо говоря, весь процесс сооружения садовой качели на участке можно поделить на три основных стадии. К ним относятся:
- Подбор модели и места на участке
- Закупка составляющих
- Пошаговое возведение качели своими руками

Деревянные качели так же необходимо защищать от различных насекомых и атмосферных явлений. На фото — не самая долговечная, но очень симпатичная модель подвесного кресла на одного человека

Раскачивающийся лежак на цепях, с популярным стационарным навесом пергольного типа
Рассмотрим подробно перечисленные стадии на примере процесса сооружения качели-скамейки на А-образной раме для всей семьи.
Подбор модели качелей и места на участке
От выбора той или иной разновидности садовой качели процесс установки будет меняться. Поэтому, прежде, чем приступать к следующим этапам, стоит прочесть отзывы о разных моделях и типах конструкции, а также изучить фото и чертежи в сети, чтобы иметь возможность оценить свои силы.
После того, как выбор модели осуществлен, важно заранее продумать и подготовить место, на котором будет размещаться конструкция. Желательно, чтобы это был участок, расположенный в зоне отдыха, если таковая имеется. Тень деревьев, открытая площадка, освобожденная от колючих кустарников, и наличие цветов будут только кстати.

Один из самых негабаритных видов, сплетенный из прочных капроновых веревочек

Полностью металлическая модель на одного человека, но не тоскливого традиционного вида на А-образных стойках, а захватывающего дух модернового дизайна

Светлый тент у готовой покупной модели. Очень удачный бюджетный выбор для маленького дачного или городского участка
Закупка составляющих
Для возведения деревянной качели-скамейки на садовом участке, понадобится обширный перечень инструментов. Как правило, когда владелец участка принимает решение о самостоятельной работе по монтажу конструкции, большая часть инструментов у него есть. Общий перечень необходимых покупок будет иметь вид:
- Брусья диаметром 10-15 см и длиной до 3 м – 4 шт.
- Брус диаметром 8 см.
- Брус диаметром 4-5 см.
- Десять-пятнадцать досок (сосна, береза или проч.) 10 см х 2,5 см х 250 см.
- Одна доска той же породы 15 см х 5 см х 300 см.
- Сто саморезов 80 х 4,5.
- Пачка (200 штук) саморезов 51х3,5.
- Четыре рым-болта.
- Две сварных цепи толщиной 0,5 см и длиной по высоте конструкции.
- Два оцинкованных винта с кольцами 12х100.
- Лак или краска.
- Пила.
- Дрель.
- Отвертка или шуруповерт.
- Лопата или ручной бур.
- Кисти.
- Рулетка, уровень.

Яркая бирюзовая качель на два-три человека на небольшой закрытой террасе

Традиционный вид хорош для традиционной-таки архитектуры на участке

А-образные стойки

Шестиугольная открытая беседка с подвесными скамьями, на которых с полным комфортом разместятся и десять человек
Качели садовые: пошаговое возведение своими руками
Когда место размещения садовой качели выбрано и расчищено, а все необходимые инструменты и материалы закуплены, можно приступать к непосредственному возведению. В первую очередь производится заготовка нужного количества деталей. Так, от досок с параметрами 10 см х 2,5 см х 250 см отпиливаются планки по полтора метра длиной для будущей скамейки. Для сидения шириной в полметра будет достаточно 5-6 досок, для спинки 4-5.
Широкая доска 15 см х 5 см х 300 см распиливается на 6 равных частей, которые послужат перекладинами для скрепления досок спинки (3 отрезка) и сидения (3 отрезка) скамьи. Поперечные доски соединяются между собой саморезами под углом, который должен быть у скамьи (120°). Затем, на полученную основу прикрепляются доски самой скамьи. Чтобы не повредить древесину, отверстия для саморезов лучше предварительно просверлить дрелью.

Одна перекладина для разных видов качелей на разные возрасты

Чертежи простейших деревянных качелей для взрослых
В последнюю очередь устанавливаются подлокотники, которые изготавливаются из бруса диаметром 4-5 см и обрезков от доски.

Черная круглая качель, подвешенная на дереве, идеально вписывается в интерьер сада и дополняет невероятный вид из панорамного окна ванной, хоть участок и глухо закрытый
Ширина планируемой скамьи 50 см., а длина – 150 см. При желании, эти показатели можно менять в любую сторону, главное, правильно рассчитать нагрузку.
После изготовления скамьи устанавливается рама для качели, ширина которой, по нормам строительства, должна превышать ширину скамьи на полметра, минимум. Поэтому, на расстоянии метра друг от друга, выкапываются или бурятся углубления под брусья опор с каждой из сторон. Глубина ям должна составлять не менее метра, где 30% пространства займет щебневое основание, а остальные 70% — брусья рамы.

Белая скамья с мини-беседкой
В углубления устанавливаются брусья и соединяются под углом на середине участка. Между парами брусьев устанавливается перекладина. Для закрепления прочности конструкции, в углах соединения перекладины с опорами устанавливаются уголки, а на расстоянии 25 см от верха и 30 см от низа А-образной рамы осуществляется стяжка досками.
Как только рама установлена и отрегулирована при помощи строительного уровня, можно приступать к установке скамьи. Для этого в основании подлокотника и рамы скамейки с обеих сторон закрепляется цепь при помощи рым-болтов.
Перед закреплением к скамье, отрезки цепи продеваются в кольца. Затем, вся конструкция крепится к перекладине оцинкованными винтами.

Вместительная необычная металлическая качель, в которой можно позволить себе отдыхать и лежа
Завершающим этапом установки садовых качелей на дачном участке является проверка прочности всех соединений и декоративное оформление. При желании, на верхушке рамы можно соорудить тент, который будет защищать отдыхающих и от палящего летнего солнца, и от атмосферных осадков.

Если вы рассчитываете, что будет кататься сразу несколько человек, то и вместительность качели, и устойчивость должны быть соответствующими
Также стоит уделить внимание защите древесины от воздействия внешних факторов. Поэтому всю конструкцию нужно обработать пропиткой против насекомых вредителей, а после покрыть лаком или краской, предназначенными для внешних работ.
Правильно установленные садовые качели прослужат долгие годы. А их самостоятельное их возведение поможет сэкономить значительную сумму денег.
happymodern.ru

Качели для детей




