С чего начать ремонт на кухне: секреты, рекомендации, идеи
Из этой статьи вы узнаете:
- Как правильно составить дизайн-проект кухни
- Какие этапы ремонта кухни нужно знать и в чём их особенности
- С чего начинать капитальный ремонт кухни
- Какие нюансы нужно учитывать, начиная ремонт кухни в хрущевке
- Как избежать ошибок во время ремонта на кухне
Что вы представляете, когда слышите словосочетание «уютная кухня»? Наверняка первое, о чем вы подумаете, будет дымящаяся кружка кофе и аромат горячего свежеиспеченного пирога. Комфортабельная кухонная зона — место, где собирается вся ваша семья. Именно поэтому так важно, чтобы эта часть квартиры была по-настоящему удобной, с красивым и современным интерьером. Если вы задаетесь вопросом, с чего начать ремонт на кухне в Москве, то вам стоит изучить эту статью. Вы сможете выполнить отделку быстро, качественно и без ошибок.
Ремонт кухни с самого начала
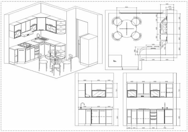
Для того чтобы представить будущий вид кухни, который она приобретет после ремонта, необходимо создать объемный чертеж, отражающий расстановку мебели и кухонной техники. На каждом изображенном предмете укажите его точные размеры.

Прежде всего производим замеры кухонной мебели, плиты, раковины (отметив месторасположение трубопровода, вентиляции, батареи, подоконника и розеток). Затем измеряем холодильник, микроволновую печь, посудомойку, телевизор и иную бытовую технику.
Кухонную технику (например, микроволновку или холодильник) замеряем в положении с открытыми дверцами.
Следующий шаг — определиться, где будут расположены измеренные предметы. Так, если вы собираетесь купить другой кухонный гарнитур, чертеж должен отражать то, как новая вещь будет располагаться относительно плиты, мойки или иной встраиваемой техники. Указываем размеры кухонного фартука, число и размер ящиков, также отмечаем, как расположены на них ручки. На чертеже следует изобразить и планируемую подсветку, открытые ниши, карнизы, стеклянные дверцы.

Не забывайте о разметке мест для монтажа розеток, чтобы подключение кухонной техники было максимально удобным.
Рекомендуемые статьи по данной теме:
Ремонт кухни своими руками: с чего начинать и какие этапы учитывать
Этап 1. Итак, с чего начать ремонт на кухне? Ранее мы уже отмечали, что отделка кухни должна начинаться с разработки дизайн-проекта. Можно выполнить его своими силами или же обратиться за помощью к дизайнеру. Дело в том, что функциональность кухонной зоны подчиняется специфическим законам. Поэтому, если вы самостоятельно разрабатываете дизайн-проект, то должны хорошо разбираться в тонкостях разделения кухонного помещения на эти самые зоны. В противном случае вам придется изучать нюансы непосредственно во время составления дизайн-проекта, что может негативно отразиться на его качестве.

Этап 2. Подсчет материалов, которые потребуются для ремонта.

- Стены. Отделку стен можно выполнить из керамической плитки. Также для кухни подходят виниловые или же пробковые обои. Оклеивать стены необходимо с применением клея со специальным составом, чтобы не допустить появление плесени. Хотите нанести на стены краску? Тогда предварительно обработайте поверхность пропиткой, она предотвратит образование на стенах грибка. В эксплуатации на кухне отлично показала себя водоэмульсионная краска, которую для большей прочности стоит наносить в два слоя.

- Пол. Чистовое напольное покрытие, изготовленное из пробки, обладает высокими звукоизоляционными характеристиками и износоустойчивостью. Можно также использовать керамическую плитку. Шикарно смотрится паркет, но процесс чистки покрытия не вызовет у вас восторга.

- Рабочая поверхность. Обычно она изготавливается из слоистого пластика. Если ваш бюджет не ограничен, выбирайте рабочую поверхность из искусственного камня или неглазурованной плитки. Такие материалы, как натуральный мрамор, гранит, сланец или дерево, визуально выглядят отменно, но уход за такой рабочей поверхностью — нелегкая задача. Повышенное внимание стоит уделить выбору материала для поверхности у раковины, ведь на нее будет постоянно попадать вода. Рекомендуется подбирать раковину с ушками из стали, чтобы процесс мытья посуды был удобнее.

Этап 3. Начинаем отделку кухни.
- Поверхность потолка.
Отделку потолка можно провести с помощью гипсокартона, потолочных панелей, плит или же выбрать натяжной вариант. Экономичный и быстрый способ — нанести на поверхность потолка водоотталкивающую краску на водной основе.

Кухонные стены должны быть влагоустойчивыми, особенно рабочая поверхность. Фартук может быть изготовлен из кафельной плитки, пластиковых или стеклянных панелей.

Материал для пола должен быть устойчив к попаданию влаги. В качестве напольного покрытия широко используется линолеум, плитка или пробка.

Старайтесь придерживаться плана отделочных работ. В противном случае, если вы решите красить потолок в последнюю очередь, последствия будут печальными. Только что уложенное напольное покрытие покроется брызгами потолочной краски.

Итак, вы решили сделать ремонт кухни. С чего начать? Последовательность работ может быть такой:
- Убираем из комнаты лишнюю мебель, ковры, предметы интерьера. Подготовка пространства к ремонту начинается с его освобождения.
- Удаляем старую краску или обои со стен и потолка. Только после этого можно приступить к демонтажу напольного покрытия.
Собираем и выносим собравшийся строительный мусор и отходы.- Если это необходимо, проводим монтаж новой электропроводки. Выводим там, где это необходимо, розетки и выключатели.
- Производим монтаж проводов для осветительных приборов.
- Устанавливаем новую сантехнику.
- Делаем отделку потолка.
- Выравниваем стены, выполняем косметический ремонт.
- Завершающий этап — укладываем линолеум, ламинат или напольную плитку.

Капитальный ремонт кухни: с чего начать и что нужно знать
Предположим, что вы решились на капитальный ремонт и реконструкцию помещения. Обычно под этими терминами понимают демонтаж и перенос перегородок, увеличение пространства через использование балкона или лоджии и прочее. С чего начать ремонт на кухне своими руками в таком случае? Прежде всего, подготовьте план отделочных работ. В дополнение к нему разрабатывается проект перепланировки, которую затем необходимо узаконить.

Прежде чем определиться, с чего начать ремонт кухни, проанализируйте масштаб предстоящих работ. Определите, в каком состоянии находятся система коммуникаций, несущие части помещения, сантехника, оконные и дверные проемы. Если есть подозрения, что водопровод, система канализации или электропроводка неисправны, следует обратиться за помощью к профессионалам. Они смогут оценить объем предстоящего ремонта. Отмечайте в плане перечень необходимых действий по отделке и замене частей систем водоснабжения и отопления. Затем познакомьтесь с представленными на рынке предложениями от нескольких компаний. Используйте новейшие технологии и разработки, чтобы сделать ремонт кухни в сжатые сроки.
Важно еще до того, как вы приступите к ремонту кухни, понимать, с чего начать поэтапно демонтажные работы:
Во-первых, удалите все плинтусы и наличники.
Во-вторых, уберите навесные полки и встроенные стеллажи.
В-третьих, демонтируйте отделку потолка, в качестве которой может выступать побелка или покраска.
В-четвертых, демонтируйте старые дверные коробки и оконные блоки. Вместо них установите новые стеклопакеты и дверные конструкции.
В-пятых, удалите отделку с поверхности стен: обдерите старые обои, краску или побелку. Если стена была облицована кафельной плиткой, производится ее демонтаж вместе с цементной основой.
В-шестых, удалите старое напольное покрытие вместе с подложкой.
По завершении демонтажных работ следует убрать из кухни строительные отходы. После этого важно сделать сухую и влажную уборку помещения. Это позволит вам устранить частички пыли и грязи, которые могут помешать выполнению качественного ремонта.

Прежде чем вы приступить к черновой отделке, стоит провести монтаж требуемых инженерных коммуникаций:
- Электропроводка. Как уже говорилось ранее, распределите местонахождение кухонной техники заранее, чтобы понимать, куда выводить электроточки. Неплохо будет провести усиленные кабеля (с выводом на щиток) для мощной техники: например, для духовки или микроволновой печи. Продумайте, каким будет освещение кухни: центральная люстра или же множество точечных светильников.

- Система вентиляции.
Если потребуется, обратитесь за помощью к печнику, который исследует исправность тяги в вентиляционной шахте. Если обнаружится какой-либо мусор или жировой налет, устраните загрязнения.
- Отопительная система. Пригласите профессионалов, которые имеют разрешение на выполнение таких работ, как замена радиатора и подводов к нему.

- Система водопровода. При необходимости замените канализацию, трубопровод.

- Система газопровода. Установка газового счетчика, замена шланга подачи газа к плите и прочие работы должны выполняться строго сотрудниками газовой службы.

С чего начать ремонт кухни в хрущевке
Обладатели жилья в хрущевках не понаслышке знают, насколько такие квартиры миниатюрные. Обычно размеры кухонь в них — всего 5-7 квадратных метров. Очевидно, что владельцы таких квартир стремятся только к одному: максимально эффективно использовать имеющуюся площадь. С чего начать ремонт на кухне в хрущевке? С выбора цветового решения для отделки, а также мебели. Это позволит вам создать комфортную обстановку, выглядящую при этом эффектно.

Подбираем цветовую палитру, а также материалы для отделки
Чтобы визуально расширить небольшую кухню, наделив пространство «воздушностью», выбирайте светлые оттенки. Отделка кухонных стен может быть выполнена с использованием следующих материалов:
- Обои. Такой вид отделки является наиболее бюджетным. На рынке представлен широкий ассортимент обоев, можно подобрать моющиеся.

- Декоративная штукатурка. Более дорогостоящий вариант, однако и более долговечный. Кроме того, декоративную штукатурку можно мыть.

- Пластиковые стеновые панели. Главный плюс такой отделки (помимо скорости исполнения) заключается в том, что вам не потребуется выравнивать стены. Пластиковые панели позволяют получить в итоге идеально ровную поверхность стен.

- Покраска стен. Используйте водоэмульсионную краску на акриловой или силиконовой основе. Такое покрытие можно мыть. Нанесение краски возможно даже на неподготовленную поверхность — красящий состав заполняет микротрещины на поверхности стен.

Для отделки потолка также стоит использовать светлые цвета. Натяжной полуглянцевый или глянцевый потолок будет отражать свет, таким образом, границы между потолочным пространством и стенами будет размыты. Если вы хотите сделать кухню более объемной, то выбирайте потолок из гипсокартона с подсветкой.

Практически каждая кухня в хрущевке максимально заставлена мебелью, так как площадь помещения ограничена. Поэтому рекомендуется использовать для отделки пола белые тона, чтобы визуально разгрузить пространство.

Подбор мебели
Расположение кухонного гарнитура в хрущевках стандартное: его ставят либо линейно вдоль одной стены, либо вдоль двух прилегающих стен (угловой вариант). Визуально облегчить мебель можно, выбирая светлые оттенки фасадов, которые могут быть также двухцветными.

Далее на фото — пример кухонного гарнитура со стеклянными дверцами, который органично смотрится в маленькой комнате. Неважно, какой вариант вы выберете: с металлическим обрамлением или без него — в итоге вы получите визуальный эффект легкости. Стекло устанавливается только в верхние дверцы, однако и этого будет достаточно.

Повысить эргономику рабочего пространства на кухне в хрущевке — задача не из простых и под силу только настоящему профессионалу-дизайнеру. На одной или двух маленьких стенках должны помещаться плита, мойка, холодильник. Понятно, что рабочая поверхность получается в итоге слишком маленькой. Поэтому очень часто используются разноуровневые столешницы.

Еще один выход — приобрести выдвижные столешницы. Если они не нужны, вы просто задвигаете их под основную рабочую зону. Когда вам понадобится больше рабочего пространства —выдвигаете их обратно.

Секреты, как избежать ошибок во время ремонта на кухне
К любым ремонтным работам следует подходить с полной ответственностью. Проявите терпение, чтобы конечный результат вас порадовал.

Подытоживая нашу статью, приведем перечень, с чего начать ремонт кухни, чтобы свести к минимуму вероятность появления ошибок:
- Начинать ремонтные работы можно только после того, как был разработан план с четкой последовательностью действий.
- Применять материалы для ремонта и отделки только с соблюдением инструкции, которую можно найти на упаковке.
- Отделку следует выполнять из материалов с высокими эксплуатационными характеристиками. Хорошие материалы должны быть устойчивы к агрессивному или химическому воздействию, быть влагоустойчивыми, не реагировать на физическое и механическое воздействие.
- Работать, не нарушая строительную технологию.
- Покупать отделочные и строительные материалы стоит только в специализированных магазинах.
- Монтируя электропроводку, нужно знать количество электрических точек, так как любые допущенные ошибки будет практически невозможно исправить.
- Компактная мебель лучше всего впишется в небольшую кухню, расширив пространство.
- Достаточное количество ящиков, отделений для хранения в кухонном гарнитуре сделает процесс готовки наиболее удобным для вас.
- Обращайтесь за помощью только к профессионалам, у которых есть допуск к работе и специальные разрешения (например, для работы с газовым оборудованием).
Сотрудничать с Компанией «Мой ремонт» – это надежно и престижно. Специалисты, работающие здесь, – это профессионалы высочайшего уровня. Компания «Мой Ремонт» работает по всей Москве и Московской области.
myremontnow.ru
С чего начать ремонт кухни 20 ошибок при ремонте кухни
Для каждой женщины кухня является главным местом в доме, поэтому ее обустройство очень важно для нее, ведь кухня — это место не только для приготовления пищи, но и для принятия ее. Кухня — это место, где собирается за завтраком, обедом и ужином вся семья, поэтому именно в кухне должно быть уютно и комфортабельно всем.
С чего начать ремонт кухни
Это очень многофункциональное место в доме. Как обычно площадь кухни небольшая, поэтому очень важно:
- Расположить всю бытовую технику и мебель наиболее удобно и рационально.
- Еще нужно учесть, что при готовке на кухне всегда влажно, разбрызгивается жир, пар, подобрав удачную расцветку мебели.
- Все загрязнения лучше отмываются с влагостойких поверхностей, поэтому материалы и мебель для этой комнаты должны быть влагостойкими и хорошо моющимися.
Конечно без профессионалов справится очень даже не просто. Так с чего же начать ремонт кухни?
- Сначала нужно составить чертеж или рисунок вашей будущей кухни. Так вы быстрее поймете, где и как разместить мебель, в какой цветовой гамме будет ваша кухня и какие аксессуары понадобятся для ее интерьера.
- После эскиза или проекта надо произвести расчет материалов необходимых для ремонта. Здесь лучше обратиться к специалистам. Они помогут сделать расчет, продумать размещение водопровода, канализации, замену розеток и электропроводки.
- Затем начинается демонтаж полов, потолка, старых коммуникаций, организация правильной вентиляции.
- Если необходимо, проводят замену оконной системы.
- Далее проводят все коммуникации, возводят новые перегородки, выравнивают стены, потолок и пол.
- При отделке потолка можно применить различные подвесные потолки из гипсокартона, панели или плиты, а также натяжные потолки. Но проще всего – это водоотталкивающая краска на водной основе. Здесь выбирать вам, что для вас лучше и дешевле обойдется.
- Для напольного покрытия нужно использовать только водостойкие материалы — натуральный камень, плитку или линолеум.
- Стены на кухне тоже должны быть стойкими к воздействию влаги, поэтому используют либо моющиеся обои, либо плитку, но для рабочей поверхности лучше кафель. Хотя, для фартука можно использовать и ламинат.
- Установка бытовой техники и мебели производится после того, как все покрытия закрепились и хорошо высохли.
- Очень важным моментом при ремонте этой комнаты является правильное освещение помещения. Чтобы хозяйке было удобнее работать над рабочей поверхностью нужно установить люминесцентные лампы, расположенные на подвесных шкафчиках, а над обеденным столом повесить светильник. Но если у вас на кухне высокий потолок, то очень эффектно будет смотреться многоуровневое освещение.
- Затем следует этап установки разных аксессуаров, которые сделают вашу кухню самой комфортной, уютной и такой неповторимой.
При планировке любой кухни нужно помнить о том, что основа помещения – это рабочий треугольник:
- плита;
- холодильник;
- мойка.
Эти три предмета должны находиться на ближайшем расстоянии друг от друга. Поэтому обязательно нужно учитывать этот момент. Теперь план работ более-менее стал понятен и знаете с чего начать ремонт кухни. А остальное зависит только от вашей фантазии и размера кошелька.
Более подробно читайте в разделе дизайна и ремонта всех частей комнаты на сайте ремонт квартиры своими руками.
Теперь поговорим о частых ошибках.
Расставить мебель согласно рабочему треугольнику в зависимости от вида планировки кухни
Видео: Правило рабочего треугольника — Дизайн кухни
20 самых распространенных ошибок при ремонте кухни
Даже малейшая ошибка, допущенная при планировании кухни, может принести впоследствии множество неудобств. Так какие же недочеты следует устранять на самой ранней стадии ремонта или перепланировки, с чего начать?
- Излишне длинная рабочая поверхность – типичная ошибка владельцев больших кухонь, которые стараются поместить всю мебель вдоль одной стены. Такая расстановка сделает неудобным процесс готовки, потому что вам придется бегать из одного конца кухни в другой. Если позволяет планировка и размеры помещения, то лучше соорудить П-образную конструкцию или «остров». Общая площадь рабочей поверхности не изменится, но и бегать по всей кухне уже не придется. Вершины такого «рабочего треугольника» (холодильник, плита и мойка) должны располагаться как можно ближе друг к другу.
- Выступающие ручки — уменьшают угол открывания дверцы расположенного в углу шкафчика. При этом перестает выдвигаться ящик.
- Узкие «лабиринты» — мешают свободно передвигаться по кухни. Между фасадами кухни с «островом» или П образной кухни должно быть расстояние не менее чем 120 см. Только при этом условии ящики будут полностью выдвигаться и хозяевам останется достаточно место для прохода.
- Полы и рабочие поверхности из натурального мрамора – сложны в уходе. Мрамор обладает пористой структурой, что позволяет грязи проникать довольно глубоко и делает невозможным ее удаление. Поэтому лучше выбрать столешницу из гранита или искусственного камня – они легче поддаются чистке.
- «Неуязвимый» кориан – многие ошибочно считают данный материал самым долговечным и прочным. Со временем столешница даже из камня тоже покрывается царапинами или пятнами. Единственное преимущество этого материала состоит в том, что он легко поддается реставрации. Но данную процедуру можно доверить только специалистам.
- Облицовка кухонных фасадов мозаикой — такую отделку не следует использовать для ящиков и дверец, так как она сильно утяжелит конструкцию, а основа из гипсокартона «съест» полезную площадь.
- Массивные воздуховоды — такие конструкции совсем не обязательны даже если плита и вентиляционное отверстие располагаются далеко друг от друга. Лучше приобрести вытяжку с угольным фильтром. Для нее не требуется воздуховод, нужно лишь периодически менять фильтр.
- Глянцевые фасады — смотрятся эффектно, но быстро «пачкаются» следами от пальцев. Такие поверхности необходимо протирать каждый день.
- Деревянные полы — крайне неудачный вариант для кухни. Они быстро загрязняются и теряют «товарный вид».
- Из 20 ошибок при ремонте кухни мы уже приблизились к половине. Стеклянные столешницы для обеденных столов — приобрели большую популярность, благодаря тому, что не делают пространство визуально загроможденным. Но для кухни такие модели абсолютно не подходят. Даже самое прочное стекло со временем появляется царапинами. За таким столом не получится позавтракать, не перебудив мирно спящих домочадцев. Как ни старайся осторожно поставить чашку или тарелку на стол, всё равно раздастся довольно громкий стук.
- Излишне широкие ящики – вместительнее не значит лучше. Мебельные магазины с радостью предлагают нам ящики шириной до 120 см, которые легко выдвигаются и якобы удобны в использовании. Но следует читывать тот факт, что в магазине они девственно пусты и, соответственно, очень легкие. Если вы плотно забьете такой ящик, например, банками с соленьями или посудой, то вам придется приложить немало усилий, чтобы выдвинуть его.
- Полка вместо ящика – довольно распространенная ошибка. Преимущество ящика в том, что его содержимое легко окинуть взглядом и нужная вещь отыскивается очень быстро. В случае с полками вам придется убирать часть содержимого, чтобы найти что-то или просто «добраться до цели».
- Много швов – плохое решение. Если вы решили оклеить весь кухонный «фартук» обоями, то не забудьте защитить их стеклом. Для этой цели лучше использовать одно большое стеклянное полотно, нежели несколько маленьких, соединенных встык.
- Раковина имеющая «неправильную» форму – деталь кухни, которая может не только радовать глаз, но и годами раздражать ее хозяина. Поэтому не стоит экспериментировать с необычными формами. Лучше всего придерживать классических привычных форм. Вот с чего нужно начать, ведь за раковиной проводится тоже немало времени.
- Не предусмотрено место для всевозможной мелкой бытовой техники. На кухне не обойтись одной только встроенной техникой. Поэтому нужно сразу предусмотреть место и розетки для отдельно стоящих бытовых приборов.
- Тяжелые шкафы, развешанные на легких стенах. Систему хранения можно вешать только на капитальную стену. Перегородка из гипсокартона может не выдержать такого веса. В этом случае на стене нужно закрепить специальную опору, на которую крепятся верхние шкафы.
- Неправильно развешенная техника. Встроенные духовки, кофемашины и пароварки нельзя располагать как слишком низко, так и слишком высоко. Идеальным решением здесь считается расположение на уровне пояса.
- Мало светильников. Для кухни требуется несколько уровней подсветки: лампа, расположенная над обеденным столом; светильники, встроенные под верхними шкафчиками и освещающий рабочую зону, верхний свет. Также необходимо грамотно разместить выключатели.
- Отсутствие свободных участков на столешнице. Между такими элементами как плита, раковина и холодильник обязательно должны находиться участки рабочей поверхности, на которые можно будет положить, например, извлеченные из холодильника продукты.
- Слишком высокий цоколь — стандартная высота равна 10 – 15 см, но сегодня большинство встраиваемой бытовой техники почему-то рассчитано на цоколь не выше 10 см.
Если вы хотите избежать самых распространенных ошибок при ремонте кухни своими руками, мы рекомендуем обратиться к профессионалам. Заказать ремонт квартиры по весьма привлекательным ценам здесь.
Вот мы и рассмотрели 20 ошибок при ремонте кухни своими руками или с помощью профессионалов. Теперь вы знаете с чего начать лучше и какие нюансы необходимо учесть. Еще больше советов по устройству кухни на сайте.
Также смотрите видеоролики на данную тему:
sdelalremont.ru
Как сделать ремонт на кухне самостоятельно и в правильном порядке
Красивый ремонт на кухне – это мечта многих людей, особенно живущих в старых советских интерьерах. На кухне мы проводим больше всего времени в сравнении с другими комнатами, поэтому очень важно сделать ее комфортной, эстетически привлекательной, максимально функциональной. При этом важно не забывать о простоте в поддержании чистоты и об износостойкости всех покрытий. Рассмотрим этапы ремонта кухни, допускаемые ошибки и материалы, наиболее подходящие для каждой части помещения.

Этапы работы и организационные моменты
Свои действия следует разделить поэтапно, соблюдая определенный порядок ремонта. Надо определиться для начала, что хочется и можно изменить – просто обновить стены, пол, потолок, либо сделать полную перепланировку, сменить стиль и заменить мебель.
Начинать обязательно с проекта будущей кухни – надо четко себе представлять, какая должна быть будущая кухня, где будет располагаться мебель, кухонное оборудование.
Учитывать нужно размер помещения, количество людей, проводящих время на кухне, активность ее использования, а также имеющиеся в распоряжении финансы. Можно сделать легкий косметический ремонт, это не заберет много времени и усилий, но лучше затеять основательный, со снесением верхних покрытий стен, пола и потолка, чтобы наверняка обновить кухню и гарантировать качество на будущее.
План будущей кухни можно нарисовать на бумаге либо посредством компьютерных программ – самостоятельно или обратиться к специалистам. Также можно сделать эскиз более осязаемым, если взять картонную коробку (аналог кухонного помещения), и в соответствии с масштабом вырезать из пенопласта маленькие модельки будущей мебели и оборудования. Такие модельки можно перемещать по коробке, комбинировать и оценивать результат, пока он не устроит всех.

Создание проекта кухни
Обязательно измеряем мебель, которая уже есть и будет дальше стоять на кухне, и приборы, в том числе и с открытыми дверцами. Либо ориентируемся на замеры из каталога, если покупаем новый гарнитур. Следует учитывать размещение труб, вентиляции, подоконника, батареи. Придумываем, где все будет располагаться и как сочетаться друг с другом. Обязательно заранее продумать подсветку и расположение розеток для бытовых приборов, чтобы не пришлось их позже дополнительно монтировать, что довольно проблематично.
Порядок ремонта кухни всегда именно такой:
- Сначала ремонтируем потолок.
- Потом занимаемся стенами.
- В конце приводим в порядок пол.
Пошаговый план отделки помещения можно представить так:
- Выносим из кухни всю мебель, технику, даже встроенную.
- Снимаем старое покрытие с поверхностей. Собираем и выносим образовавшийся мусор.
- Разводим электрическую проводку, определяем и устанавливаем розетки и выключатели, выводим провода.
- Дорабатываем коммуникации, вентиляцию.
- Устанавливаем новые сантехнические приборы.
- Занимаемся отделкой потолка.
- Выравниваем и декорируем стены.
- Меняем напольное покрытие.
- Монтируем оборудование и расставляем мебель.
Подбор необходимых материалов и расчистка места
Для начала определяемся со стилем и цветовой гаммой будущей кухни. Благо, выбор на сегодняшний день существует широкий, на любой вкус и цвет. После этого можно составить список нужных материалов. Понадобятся для ремонтных работ и краска, и шпатлевка, и грунтовка, и клей, и разные облицовочные материалы, в зависимости от выбора хозяев. Знакомимся с ценами и составляем смету, чтобы ориентироваться в предстоящих расходах. Затем покупаем все необходимые материалы и следуем плану, обращая внимание на советы профильных специалистов.

После этого производим демонтаж старых покрытий на потолке, на стенах, потом с пола. Обдирка осуществляется с предварительным размачиванием покрытия. Окрашенные поверхности обдирают с помощи специальной смывки, работая в защитной одежде и очках. Размоченное покрытие снимают с помощью шпателя или абразивной сетки. После обдирки стены, пол и потолок следует вымыть разведенным моющим средством, чтобы потом краска и штукатурка хорошо держались. В заключение производим обработку поверхностей с помощью грунтовки глубокого проникновения, нанося ее слоями дважды с перерывом через день.
Особенности ремонта в кухне и популярные ошибки
В отличии от других комнат, кухня обладает своими особенностями, которые следует учитывать при начале отделочных работ.
Это высокая влажность и температура в помещении, агрессивная атмосфера и колебания всех этих факторов, что оказывает свое влияние на мебель и отделку. Кухня особенно нуждается в поддержании гигиены во избежание скоплений вредных микроорганизмов в укромных уголках. Ее большая популярность и одновременно небольшая площадь также заслуживает внимания при выборе материалов и проекта ремонта.

Часто хозяева кухонь допускают одни и те же ошибки, которые достаточно распространены, и о них можно упомянуть:
- Не составляется проект будущей кухни, нет четкого видения, что и за чем нужно сделать.
- Материалы рассчитаны неверно, вследствие чего их может не хватить.
- Порядок ремонта элементов помещения неверный, что создает лишнюю работу позже.
- Нежелание делать все тщательно, спешка и лень.
- Некорректная планировка мебели, несоответствие размерам кухни.
- Приобретение бытовых приборов до, а не после ремонта, из-за чего бывают несоответствия в размещении мебели с техникой.
- Слишком мало розеток – их лучше сделать побольше, как показывает практика.
- Слишком маленькая мощность вытяжки, что может испортить мебель и покрытие стен.
И это не все ошибки, допускаемые в процессе ремонта. В таком важном деле лучше продумать все возможные мелочи наперед, чем потом выдумывать, как ликвидировать последствия непродуманных решений, особенно если сделать это совсем нелегко и тянет дополнительные ресурсы, что не было запланировано изначально.
Проводка нужных коммуникаций
Работу по проводке коммуникаций нужно начинать с электрики. Как говорилось выше, необходимо заранее просчитать, где будет стоять мебель и как будет удобно подключать приборы. Розетки понадобятся в районе рабочей зоны, для холодильника, плиты, микроволновки, вытяжки, возможно и для местного освещения. Прокладкой проводки можно заняться самостоятельно, но лучше пригласить квалифицированного электрика.

Потом занимаемся монтажом вентиляции. Старые вентиляционные трубы лучше заменить. На расстоянии 60-70 см над плитой предусматриваем вытяжку. Нужно знать о том, что нельзя заводить в один вентиляционный ход выхлопы вытяжки и газового котла – это может быть опасно для жизни!
Работу с газовым оборудованием лучше всего поручить газовщикам, это не место для личных экспериментов.
При реконструкции водопровода и канализации нужно сначала продумать расположение труб и оборудования, к которому они будут идти. В соответствии с этим рассчитать необходимый их метраж и количество соединительных элементов. При необходимости делают демонтаж старых труб и установку новых – их лучше всего выбирать из металлопластика или полипропилена. После всего этого следует подключить краны, поставить раковину и подвести газовые шланги.
Обновление потолка, стен, пола и других элементов кухни
Мы помним, в какой последовательности нужно делать ревизию поверхностей кухни. Правильно начинать отделку с потолка. Его можно покрасить, сделать навесным из гипсокартона или натяжным, оклеить пенопластом, но для кухни эти варианты подходят меньше всего. Лучшим вариантом будет пластиковая вагонка, водостойкий гипсокартон, ламинат или вагонка МДФ с пропиткой с изнаночной стороны водной эмульсией ПВА.
Затем определяемся, как лучше организовать отделку стен. Их можно покрасить, покрыть кафельной плиткой или поклеить хорошие моющиеся обои – другие здесь не подойдут. Хорошим выбором будут пенопленовые обои. Плиткой можно вымостить только кухонный фартук, а можно и одну из стен. Этот вид покрытия довольно экологичен и прост в уходе, но особое внимание придется уделять швам между плитками.

Грунтовка стен на кухне
Если есть желание покрасить стены, то предварительно их нужно выровнять – перед этим зашпаклевать имеющиеся неровности и трещины и прогрунтовать. После выравнивания снова покрываем стены слоем грунтовки – лучше брать с глубоким проникновением. После высыхания стен их необходимо зашпаклевать финишной мелкозернистой шпаклевкой и снова высушить. Поверхность зашкурить, снова прогрунтовать, и после высыхания можно приступать к декоративной отделке стен.
На краске для потолка и стен лучше не экономить, так как будет ощущаться разница в качестве. По консистенции ее лучше выбирать бархатную, матовую, что поможет скрыть имеющиеся неровности.
В конце можно приступить к выравниванию и настилу пола. Выровнять пол можно с помощью самовыравнивающейся смеси, либо же делаем сами цементно-песчаную смесь и заливаем ею стяжку. Наиболее подходящее покрытие для кухонного пола – это кафельная плитка, линолеум или мармолеум (натуральный линолеум). У каждого из них свои плюсы и минусы, сделать выбор можно исходя из своих предпочтений, вкусов, удобства в использовании и выделенной на материалы денежной суммы.

Теперь можно закрепить плинтуса – напольные и кухонные, лучше всего подойдут из пластика или металла. Логичным продолжением всеобщего обновления будет заменить дверь, особенно на раздвижную, что позволит еще и сэкономить место. Можно еще купить новую люстру, карниз, декорировать старую мебель, если ее оставили, с помощью самоклеящейся пленки либо декоративных рисунков.
Заодно, если позволяют средства, можно заменить старые окна на новые, металлопластиковые, или же реставрировать старые.
Установка и расположение кухонного оборудования
Теперь можно приступать к расстановке мебели и оборудования, без которого на современной кухне никак не обойтись. Если предыдущие расчеты были произведены правильно, то мы все разместим без проблем и по правилам соседства.
Газовые приборы должны располагаться не ближе чем 80 см друг к другу. То есть газовую плиту и котел нельзя устанавливать рядом. Холодильник также не должен соседствовать с плитой – он может нагреваться, что грозит его неправильной работой и возможной скорой поломкой. Его следует отодвинуть как минимум на 60 см, как вариант – установить на балконе, если это, конечно, не южная сторона в теплых краях. Хотя последний вариант не будет удобным для хозяйки, которая много времени проводит за приготовлением пищи. Микроволновку лучше всего повесить на стену под шкафом, это позволить сэкономить драгоценное место.
Для удобства соблюдаем правило кухонного треугольника – плита, раковина и холодильник должны находиться именно в таком расположении друг к другу.

План расстановки мебели на кухне
Различные варианты обустройства кухни
Как лучше обустроить кухню в целом, каждый решает, исходя из дома, в котором проживает, размера кухонного помещения и собственных вкусов.
В панельном доме целесообразно заранее утеплить стену снаружи, заменить старые окна на металлопластиковые. Расширить пространство позволит перепланировка помещения, объединение кухни с гостиной – на это нужно будет специальное разрешение. То же понадобится сделать и в хрущёвке, дополнительно можно заменить старую сантехнику.
Для маленькой кухни подойдет Г-образная, П-образная, однорядная планировка. Визуально раздвинуть стены и добавить больше света позволит выбор светлых цветов в интерьере, использование зеркальных поверхностей. Также сэкономит место встроенная техника, функциональная мебель, сделанная на заказ, раскладная обеденная группа, ролеты на окнах.
Итак, уже можно получить представление, как делать ремонт на кухне. При наличии опыта, навыков и необходимых материалов можно сделать его быстро, а также есть возможность научиться новому, используя эти знания в дальнейшем. Комфортная современная кухня будет наградой за старания.
Видео о ремонте на кухне
otlichnyjremont.ru
Этапы ремонта кухни | Строительный блог Вити Петрова
Содержание статьи
Кухня сегодня почти в каждой квартире выполняет множество функций. Тут готовят еду, обедают и ужинают, собираются всей семьей, приглашают гостей. Следовательно, даже самая небольшая кухня должна быть комфортной, уютной и удобной, а это зависит от качества ремонтных работ, выбора отделочных материалов, расположения мебели техники. Многие из нас сегодня предпочитают делать ремонтные работы на кухне, по крайней мере, большую их часть, своими руками, и тогда становится вопрос: какие основные этапы ремонта кухни, и в какой последовательности необходимо выполнять все работы.
Проведение необходимых измерений
Чтобы создать дизайн-проект кухни, рассчитать количество необходимых материалов, сначала нужно с большой точностью знать все параметры помещения. В первую очередь измеряется ширина, длина и высота помещения, потом размеры оконного и дверного проемов, а также расстояние от них до пола и потолка, соседних стен. Также необходимо провести измерения антресоли, если таковая есть.
Кроме того, проводят измерения расположения всех существующих розеточных групп, подвода водопровода и отвода канализации, вентиляционной отдушины. Если в кухне есть какие-то выступы плит перекрытия, то это также необходимо учесть и провести соответствующие измерения. Если хочется провести перепланировку, снести какие-то перегородки, то измерять нужно и соседнее помещение, с которым будет объединена кухня.
Точность измерений должна быть максимально высокой, а погрешность составлять не более 0,5 см. В противном случае в итоге можно получить незакрывающуюся дверь, слишком неудобный проход между рабочей зоной и обеденным столом, особенно, если дело касается небольшой кухни, где каждый сантиметр на учете.
Создание дизайн-проекта
Данный этап многие пропускают, считая, что и так способны все детали удержать в голове. Частыми результатами подобной оплошности становится невозможность поместить какой-то элемент мебели или техники в кухню, негармоничность сочетания цветов, неудобное расположение светильников, розеток и т.д. Именно поэтому все детали нужно продумать заранее, и они должны найти отражение в дизайн-проекте кухни.
Предварительно стоит определиться с основными требованиями к дизайну и стилю кухни, с расположением функциональных зон, с перечнем необходимой техники. Если нет уверенности в том, что создать проект самостоятельно будет легко, то лучше на данном этапе прибегнуть к помощи дизайнера. Проект кухни должен учитывать расположение мебели, коммуникаций и оборудования. Ко всем этим элементам проекта выдвигаются свои требования.
Расположение мебели
Когда готов план помещения, где отмечено расположение окон, дверей и всех коммуникаций, можно приступать к подбору мебели. Параллельно также важно продумать, какие предметы техники должны обязательно присутствовать на кухне: холодильник, плита, вытяжка, микроволновка, посудомоечная машина, стиральная машина, котел и т.д. Определиться нужно и с типом размещения мебели на кухне: линейный, угловой, в две линии, островной, П-образный.
Если кухня маленькая, то в один ряд вся мебель с техникой может не поместиться. В этом случае лучше использовать угловой тип размещения мебели. При этом важно учитывать, что длина всех сторон рабочего пространства должна быть от 3 до 6 метров – это оптимальные значения, чтобы и места было достаточно, и много движений не пришлось бы делать, занимаясь приготовлением еды. Также специалисты советуют, что расстояние между сторонами кухонного треугольника (мойка, плита, холодильник) должно быть примерно равным, и не более 1,85 м.
Расположение всех шкафчиков на плане стоит отметить заранее. Если вы планируете заказывать определенный кухонный гарнитур, то заранее лучше измерить все его параметры и прикинуть, насколько он вписывается в кухню. Воспользоваться для составления дизайн-проекта можно простыми программами и даже мобильными приложениями, в которых все действия максимально упрощены: нужно ввести лишь параметры помещения и параметры желаемой мебели.
Есть и оригинальный способ продумать расположение всех предметов мебели. Из картона создают коробку, которая будет моделью кухни. Естественно, необходимо придерживаться масштаба. Из пенопласта также в масштабе делают фигурки мебели и техники, а потом все эти детали размещают в коробке до тех пор, пока не будет найден идеальный вариант. Каким бы ни был способ, в результате вы должны получить четкое визуальное представление того, как должна выглядеть будущая кухня.

На данном этапе также не мешает продумать цветовую схему кухни, используемые аксессуары, отделочные материалы и прочие детали. Если кухня маленькая, то не мешает подобрать способы ее визуального увеличения. Если планируется создавать перегородки, арки, прочие конструкции, то их расположение обязательно отмечается в проекте.
Расположение коммуникаций
При создании проекта также нужно четко предусмотреть, где будут расположены все коммуникации. Прежде всего, необходимо продумать, где должны быть розетки: обязательно они должны быть около обеденного стола, а также в рабочей зоне, где будет подключаться масса предметов техники, которые постоянно присутствуют на кухне (холодильник, микроволновка, вытяжка и т.д.), а также мелкая бытовая техника, вроде блендера, миксера, соковыжималки. Продумать заранее нужно и освещение кухни, ведь ко всем светильникам нужно будет подвести электропроводку, и организовать для них выключатели.
Если хочется полностью поменять расположение газовой плиты и мойки, то нужно учесть несколько правил. Так, гибкие газовые шланги не должны быть более 4 метров в длину, а водопроводные и канализационные – не более 1,5 метров. Все эти трубы должны быть доступны для осмотра, чтобы упростить ремонтные работы и не провоцировать конфликты со специальными службами. Отличный выход – прятать трубы за кухонными шкафами без задних стенок: так и коммуникации замаскированы, не портят внешний вид, и получить доступ к ним можно быстро и легко.
Расположение техники
Если проект предусматривает наличие кухонной вытяжки, и при этом у вас установлен газовой котел, то выводить их в один вентиляционный ход нельзя – это опасно для жизни. В зависимости от собственных предпочтений и особенностей кухни можно выбрать проточную или циркуляционную вытяжку. Последнюю ненужно подсоединять к вентиляционному выходу.
Если на кухне будет расположено несколько газовых приборов, например, плита и котел, то расстояние между ними должно быть не менее 80 см. Холодильник необходимо располагать на расстоянии не менее 60 см от плиты. В противном случае существенно возрастет расход электричества, да и вероятность поломки холодильника становится намного выше.
Что же касается холодильника, то многие специалисты советуют располагать его за пределами кухни, в более прохладных помещениях: на лоджии, если она смежная с кухней, или в прихожей. Таким образом, можно значительно экономить на потребляемом электричестве: летом холодильник будет использовать в 1,5-2 раза меньше энергии, а зимой – в 6 раз меньше. Но подобное расположение холодильника не очень удачно, а бегать постоянно с продуктами с кухни к нему не очень удобно.
Остальные предметы техники располагают по собственному усмотрению. Так, если вам необходима микроволновка, то ее лучше подвесить или установить на полку над рабочей поверхностью, чтобы не занимать полезное пространство.
Расчет необходимых строительных материалов
Чтобы не столкнуться проблемой нехватки или чрезмерного излишка строительных материалов, нужно заранее как можно точно просчитать их необходимое количество. После того, как готов дизайн-проект, выбраны способы отделки, необходимо просчитать, сколько и каких материалов понадобится для проведения подготовительных работ, черновой и чистовой отделки. Если возникают сложности, то на этом этапе можно обратиться к специалистам.
В смету заносят необходимые облицовочные материалы, грунтовку, шпаклевку, возможно, новые розетки, провода и прочее. Не мешает заранее продумать не только количество необходимого, но и цену всех материалов. Это поможет правильно распланировать свой бюджет и сможет указать на необходимость сэкономить.
Подготовительные работы
Под подготовкой кухни к проведению ремонта подразумевают ее очистку и освобождение от старой отделки, предметов мебели и техники. Начинается все с выноса техники и мебели из кухни, потом демонтируем керамическую плитку, снимаем плинтуса, напольное покрытие.
Побелку с потолка не так просто снять, поэтому придется потратить немало усилий на отмывание поверхности. То же касается и окрашенных стен: в этом случае лучшим образом помогает специальный растворитель для краски. С ним нужно работать предельно осторожно, в респираторе, защитной одежде и очках. Старые обои снять можно с помощью шпателя, предварительно их можно немного намочить прохладной водой.
На данном этапе также сносят лишние перегородки, если эти действия не противоречат нормам, а вообще, любую перепланировку заранее необходимо согласовывать. Если в план входит замена двери, то ее лучше убрать на данном этапе. После того, как вся старая отделка демонтирована, поверхности лучше всего протереть раствором моющего средства, а потом простой водой. Таким образом удаляют все остатки пыли и накопленного жира.
Очищенные поверхности нужно тщательно осмотреть, отметить их общее состояние, наличие трещин, дефектов, неровностей. На данном этапе можно внести коррективы в сметы, если окажется, что нужно проводить какие-то дополнительные работы.
Разводка коммуникаций
Монтаж электропроводки выполняют с учетом всех точек потребления электроэнергии, также обустраивают и переделывают, если это нужно, систему водопровода и канализации. Начинают именно с электропроводки, для обустройства которой необходимы трехпроводные кабеля в двойной изоляции с диаметром 2 мм. Штробятся стены в необходимых местах, чтобы туда потом уложить кабель, потом сам провод фиксируется малярным скотчем и гипсом. Кабеля прокладываются только под прямым углом. На этом этапе необходимо четко знать схему освещения кухни и расположения розеток.
Систему водопровода и канализации необходимо выполнять металлопластиковыми или полипропиленовыми трубами: они простые в монтаже, прочные, не боятся перепадов температуры. После этого можно подводить газовые шланги.
Установка окон
После монтажа всех коммуникаций выполняют замену окон, если это необходимо. После установки нового окна его от возможных загрязнений во время проведения дальнейших ремонтных работ прячут с помощью пластиковой пленки и малярного скотча. В принципе, окно можно установить до проведения всех коммуникаций – это не столь принципиально.
Черновая отделка
На данном этапе выравнивают все поверхности и готовят их к последующей чистовой отделке. Потолок необходимо зашпаклевать, зачистить и прогрунтовать. Если же его поверхность такая неровная, что для приведения ее в порядок, понадобится масса времени и усилий, лучше задуматься о системе подвесных или натяжных потолков. В этом случае нужно просто ликвидировать самые большие дефекты, типа сыплющейся штукатурки.
Те же работы проводят и со стенами, причем они могут быть в большей степени неровными, чем потолки, и это касается тех участков, где была плитка. После ее демонтажа могут остаться ямки и впадины, поэтому выравнивать стены лучше штукатурной смесью, причем желательно, влагостойкой. В данном случае также можно использовать листы влагостойкого гипсокартона: работы будут проведены значительно быстрее, но при этом вы украдете у кухни несколько сантиметров полезного пространства, что обязательно необходимо учитывать в дизайн-проекте. На подобные меры, не задумываясь, можно пойти, если речь идет о просторной столовой, но для маленькой кухни такое решение недопустимо. Стены на кухне должны быть идеально ровными, особенно, если планируется использовать керамическую плитку. Подготовленную поверхность стен и потолка в завершение необходимо прогрунтовать для лучшего сцепления с отделочным материалом.
Если пол имеет значительные неровности, но стяжка при этом не была демонтирована, можно воспользоваться системой наливных полов. Если же старая стяжка была полностью убрана, то придется делать цементно-песчаную стяжку. Отделочный материал для пола на кухне нужно выбирать такой, чтобы он хорошо переносил влажность, был прост в уходе, гигиеничный и нескользкий. Для некоторых типов покрытий неплохо предусмотреть систему теплых полов. Их монтируют как раз на данном этапе ремонта кухни. Стоит отметить, что теплый пол не стоит обустраивать под предметами мебели и техники, поэтому так важно заранее продумать интерьер кухни.
Отделочные работы
Когда все коммуникации установлены, можно переходить к выполнению отделочных работ. Начинать лучше с потолка, чтобы потом не запачкать во время его отделки стены и пол. Для облицовки потолка можно выбрать покраску, систему натяжных или подвесных потолков с использованием гипсокартона или реек. Использовать побелку крайне нежелательно, ведь она очень быстро пожелтеет. Натяжные потолки – исключение, их монтаж проводят уже после отделки стен, так как это быстрый и совершенно негрязный процесс.
Для отделки стен на кухне подходит масса различных материалов. Самый популярный из них – керамическая плитка, которой нередко облицовывают не только рабочую зону, но и все стены кухни. В рабочей зоне также можно использовать декоративный камень или стеклянные скинали, которые смотрятся достаточно эффектно. Вариант для самых смелых – металлический фартук. Стены в обеденной зоне можно отделать моющейся краской – самый простой, дешевый и одновременно стильный вариант. Можно также использовать обои, но подойдут далеко не все, а только флизелиновые, виниловые, стеклообои, а также жидкие обои. Также в отделке стен кухни можно использовать декоративную штукатурку, камень, деревянную вагонку и пластиковые панели.
Что же касается напольного покрытия, которое укладывается последним, то тут выбор также широкий. Можно комбинировать разные материалы, разбивая кухню на функциональные зоны. Конечно же, лучший и проверенный вид напольного покрытия для кухни – кафельная плитка, но под нее, как и под мозаику, бетонный и керамогранитный пол в идеале уложить систему теплых полов. Часто на кухнях используют линолеум и ламинат, реже – дерево и пробковое покрытие. Отличный современный вариант – наливной пол: он долговечный, практичный и красивый, а с его помощью легко создать трехмерное изображение.
Установка плинтусов
Плинтус на кухне выполняет и декоративную, и практическую функцию. Для пола лучше выбрать пластиковый плинтус, поскольку деревянный намного хуже ведет себя в условиях повышенный влажности на кухне. Еще один вариант – алюминиевый плинтус, который также неплох для кухни. Рассчитать, сколько необходимо плинтусов, просто: к периметру кухни прибавить метр и разделить на длину одного плинтуса (стандартная длина – 2,5 м). Также докупить нужно будет уголки.
Устанавливают также потолочный плинтус, именуемый багетом. Сегодня также появился специальный кухонный плинтус, который устанавливают между стеной и столешницей, и в итоге брызги и крошки не попадают в щель.
Монтаж двери и освещения
Если теперь в кухне все по-новому и будет стоять новая мебель, то без новой двери также не обойтись, если она вообще предусмотрена проектом. Дверь может быть деревянной, стеклянной, со стеклянными вставками, можно остановит свой выбор и на складных дверях. Если вы много готовите и не хотите, чтобы запахи проникали в остальные комнаты квартиры, то лучше установить обычную распашную дверь, причем такие материалы, как пластик и стекло более предпочтительны, ведь не впитывают запахи.
На данном этапе также устанавливают светильники, причем необходимо предусмотреть несколько типов освещения: общее, рабочее, в обеденной зоне, а можно также и декоративное.
Установка мебели, техники и раковины
Вот теперь наконец можно устанавливать выбранный комплект мебели, а потом смонтировать мойку. Лучший вариант кухонной мойки – это нержавейка, хотя сегодня также высоким спросом пользуются мойки из композитных материалов. Следующий шаг – установка холодильника, посудомоечной машины и прочих предметов техники.
Остается только выбрать подходящие аксессуары для кухни. Скатерть и шторы можно выбрать из одного материала, на стенах повесить фотографии, картины, грифельную доску, расставить на полках симпатичные сувениры, баночки со специями, цветочные горшки или что-то иное на свое усмотрение.
В завершение
Чтобы выполнить ремонт кухни в намеченные сроки, вложиться в отведенный бюджет и в итоге получить стильное, комфортное и гармоничное пространство, очень важно создать дизайн-проект кухни, четко определиться с каждой мелочью в этой комнате и следовать намеченному плану. Некоторые работы все же стоит поручить профессионалам, даже если ремонт решено проводить своими руками. Четкое планирование в итоге поможет сэкономить время и создать безупречную кухню.
remstroiblog.ru
С чего начать ремонт на кухне: основные этапы работы
Кухня – главное место в любом доме. Здесь чаще всего собираются все члены семьи за трапезой. Поэтому так важно создать атмосферу уюта, которая располагает к спокойному неспешному приему пищи за приятным общением. С чего правильно начинать ремонт на кухне? К ее обустройству следует подойти с предельной ответственностью. Особенно если решено не привлекать к ремонту специалистов, а производить работы своими руками.

Этапы ремонта кухни
Начальные этапы ремонта можно подразделить следующим образом:
- Выносить идею ремонта, продумать каждую мелочь, для чего нужно четко понимать, что хочется получить в результате.
- Принять решение воплотить свою идею.
- Приступить к выполнению задачи, начать делать ремонт. Первый шаг – главный.

Процесс выполнения ремонта самостоятельно не так страшен, как кажется поначалу. Сложности возникнут обязательно, но решить можно все. К тому же какое будет удовлетворение от проделанной работы своими руками, когда получится задуманный шедевр! Теперь от лирики — к процессу ремонта.
Подготовительные работы
Кухня выполняет много функций. Как правило, площадь этого пространства ограниченная. Поэтому очень важно грамотно расположить все предметы мебели и бытовой техники, чтобы пользоваться ею было удобно. С чего начать ремонт кухни правильно, что следует учесть в первую очередь?
При готовке пищи на кухне всегда будет влажно. Поэтому материал для отделки поверхностей и мебель необходимо выбирать влагостойкие, которые легко моются. Сделать правильный выбор без профессионалов затруднительно.
- Для начала требуется составить схему будущей кухни. Эскиз позволит определиться с цветовым решением помещения, правильным расположением мебели и прочих предметов. Это поможет в выборе аксессуаров.

- Расчет необходимых материалов. Этот этап стоит доверить специалистам. Нужно грамотно продумать водопроводную и канализационную системы, расположение электрической проводки, размещение розеток, систему вентиляции.

Основные этапы работы
Далее начинаются основные работы по проведению ремонта на кухне. Производятся работы по демонтажу старых поверхностей потолка, стен, полов, коммуникаций. В это время создается вентиляция. Демонтаж легко можно сделать своими руками.

Если требуются замены дверных и оконных проемов, начинают именно с демонтажа и замены окон. В случае необходимости создают новые перегородки. Стены, пол и потолок выравниваются.

Потолок можно сделать натяжной, навесной из гипсокартона, оформить его панелями. Но проще и дешевле обойдется оформление потолка водоотталкивающей краской.
Половое покрытие можно выбрать следующее: керамическая плитка, линолеум или натуральный камень. Последний материал обойдется гораздо дороже.

Стены, как правило, оформляются моющими обоями или плиткой. Зона рабочей поверхности отделывается кафелем.

После того как все работы произведены, поверхности отделаны и тщательно высушены, можно заниматься установкой бытовой техники и мебели.

Важно! Особое внимание следует уделить правильному освещению. Высокий потолок можно оформить многоуровневыми световыми приборами. Если потолок низкий, подойдет точечное освещение.

Отдельно необходимо создать освещение над рабочей зоной. В идеале – установить подсветку на нижнюю часть подвесных шкафчиков. Обеденная зона также требует дополнительного освещения. Здесь можно остановиться на настенном светильнике.
Последним этапом станет расстановка акцентов, для чего используются различные аксессуары, которые призваны сделать кухню индивидуальной и уютной.
При планировке помещения не следует забывать о том, что основной «костяк» кухни составляют три предмета: плита для приготовления пищи, раковина и холодильник. Они должны быть в любой кухне. Причем от их расположения зависит удобство пользования помещением. Эти предметы должны располагаться рядом.
Советы и рекомендации по этапам ремонта
Людям, которые решили наконец-то прекратить проживать в однообразных старых стенах, приходит на ум сделать капитальную переделку всего помещения кухни. Здесь их подстерегают некоторые опасности. Чтобы не совершить распространенных ошибок, следует разобраться, с чего начинается ремонт, чему уделить внимание в первую очередь? Основные этапы его проведения подробнее.
- Начало ремонта всегда очень долгое и трудоемкое. Не слишком интересно своими руками выкорчевывать старые полы, сдирать почерневшие от старости обои, поднимать половое покрытие. Главное в это время – набраться терпения и вынести весь мусор. Далее последуют более приятные работы по созданию нового пространства.
- В первую очередь создается электрическая проводка. Делается разметка расположения розеток и выключателей. Если не сделать это сразу, потом будет сложно добавить еще один элемент в нужное место.

Основные места, где потребуются розетки:
- электрическая плита;
- вытяжка;
- стена около рабочей зоны;
- место под телевизор;
- места расположения микроволновки, посудомоечной машинки;
- холодильник.
- Отделка производится всегда сверху вниз, от потолка к полу. Прежде чем начинать чистовую отделку потолка, нужно определиться с видом вытяжки и ее расположением.
Здесь может быть два варианта:
- установка конвектора;
- устройство вентиляционного канала.
Второй вариант отлично подходит при создании двухуровневых потолков, которые позволяют скрыть вентиляционную трубу. Лучший вариант для создания потолка – гипсокартон. Он удобен в работе, позволяет реализовать любую форму.

- Отделка стен требует грунтовки всех старых поверхностей. Углы рекомендуется оформить перфорированными уголками. Они монтируются на штукатурку. Обязательно следует заштукатурить впадины, трещины.
Качественная шпатлевка и грунтовка поверхностей составляет основу хорошего ремонта кухни.
- Разметка рабочей зоны. Отделать ее можно плиткой или повесить готовый рабочий фартук. При оформлении стены плиткой очень важно выдержать следующие параметры:
- горизонтальный уровень стены должен быть идеальным;
- углы должны составлять ровно 90 градусов;
- правильно выбрать высоту оформления рабочей зоны. Ориентироваться следует на высоту плиты.

Совет! В местах, где планируется повесить навесные шкафы на кухне, можно немного сэкономить на материале.
- Подготовка стен. Она включает работы по шпатлевке. Все зависит от выбранного материала оформления. Под обои не требуется слишком большого слоя. А если выбор пал на декоративную штукатурку, то работы следует производить наиболее тщательно. Поверхность затем шлифуется.
- Следующим этапом делается покрытие на пол. Идеальный материал для этого – керамическая плитка. Ее можно уложить своими руками, процесс должен протекать неспешно, аккуратно. Здесь также следует выдержать горизонтальный уровень. Это весьма важно, иначе потом мебель не встанет ровно.

Все грязные работы проделаны, можно начинать финишную отделку.
Распространенные ошибки при ремонте кухни
Начиная ремонт на кухне своими руками, многие допускают одни и те же ошибки. Они впоследствии оборачиваются неудобствами эксплуатации кухонного пространства. Чтобы этого избежать и сделать все правильно, следует ознакомиться с некоторыми нюансами.
- При определении рабочей поверхности и полов, стоит выбирать непористые материалы. Иначе будут возникать трудности с уборкой. Гладкая плитка гораздо лучше поддается чистке. Тем более не стоит делать деревянные полы.
- Не стоит создавать громоздкие воздуховоды. Они смотрятся не эстетично и занимают полезное пространство. Если плита расположена далеко от вентиляционного отверстия, лучше выбрать вытяжку, которая не нуждается в воздуховоде.
- Неважное решение – много швов на рабочем фартуке. При оклейке этой стены обоями, следует подумать о защите, для чего выбирать материал нужно целостный. Например, большое стекло.
- В большой кухне не стоит делать рабочую поверхность вдоль одной стены. Это создает дополнительное неудобство при готовке. Лучше создать П-образную зону, где все необходимые приборы располагаются в шаговой доступности.
- Узкие проходы между мебелью. Это препятствует свободному передвижению по кухне и открыванию ящиков и шкафов. Следует выдержать расстояние не менее 1,2 метра. Мебель стоит выбирать с несильно выступающими ручками, особенно в угловых шкафах.
- Замена навесных ящиков открытыми полками. Это придает пространству воздушности, легкости. Но вместе с этим, доставляет массу проблем по уборке и постоянному поддержанию порядка. Напольные элементы мебели удобнее с ящиками, чем с полками.
- Глянцевый фасад – это красиво и изящно, но совершенно непрактично. Уборка потребуется ежедневная.
- Недостаточно места для мелкой бытовой техники может стать большой проблемой. Стоит учесть, что хозяйка пользуется множеством небольших приборов. Они требуют свободного расположения и доступа к электричеству.
- Тяжелые навесные шкафы можно вешать только на капитальную стену. Гипсокартонные перегородки их просто не выдержат.
- Идеальное расположение бытовых приборов – на уровне пояса человека.
- Недостаток освещения – главная проблема кухни. Освещение должно быть многоуровневое. Стоит удобно разместить выключатели, чтобы не пришлось идти к ним через темное помещение.
Ремонт своими руками – дело несложное. Учитывая все нюансы, можно быстро получить хороший результат, который будет радовать хозяйку и всю семью долгое время!
mr-build.ru
Ремонт кухни: последовательность, правила, советы
Ремонт кухни – это достаточно сложная и трудоемкая работа. Объясняется утверждение тем, что к кухонному пространству предъявляется очень много требований. Помимо эстетичности, оно должно быть функциональным, эргономичным и практичным. Все, что находится в помещении: мебель, отделка, предметы декора, должно отличаться надежностью и долговечностью.
Варианты ремонта на кухне
Чтобы ремонт на кухне не превратился в настоящую катастрофу, необходимо изначально определить, как он будет проводиться. Есть два варианта: можно обратиться к профессиональным мастерам, имеющим все необходимые навыки и многолетний опыт, а можно выполнить ремонтные работы на кухне своими руками.
Если говорить о том, какой из методов будет наиболее результативным, то оценивать нужно каждую ситуацию по отдельности. Здесь решающую роль играет несколько важных факторов:
- требования к конечному результату;
- наличие навыков в проведении ремонтных работ;
- финансовые возможности.
В большинстве случаев бюджет все-таки ограничен, поэтому приходится думать над тем, как выполнить ремонт кухни своими руками. На самом деле, все достаточно просто и доступно.
Первое, что потребуется сделать – создать дизайн-проект. Безусловно, это работа для профессионалов своего дела, которые знают специфику оформления помещений, владеют специальными программами. Но, вам достаточно просто зайти на сайт, который специализируется на ремонте кухонь, просмотреть фото вариантов дизайна. Даже если в точности воспроизвести увиденное вам не удастся, здесь вы можете почерпнуть несколько интересных идей, которые будут взяты за основу в дальнейшей работе. Уже можно будет определить цветовую гамму кухни, выбрать материалы для ремонта кухонного пространства, представить, какой должна быть кухонная мебель. Следующий шаг – закупка всего, что потребуется в труде.
Приступаем к работе
Каждого, кто берется за решение задачи самостоятельно, волнует вопрос – с чего начать ремонт на кухне. На самом деле здесь нет ничего сложного. Последовательность действий выглядит следующим образом:
- освобождение пространства от старой кухонной мебели;
- демонтаж отделки потолка и стен, а также напольного покрытия;
- обновление или замена сантехники, электропроводки;
- установка новых окон, если имеется такая необходимость;
- очистка помещения от грязи и пыли;
- обработка поверхностей антисептическими противогрибковыми растворами;
- отделка потолка;
- отделка стен;
- монтаж нового напольного покрытия;
- уборка после грязной работы;
- установка мебели;
- расстановка предметов декора.
Важно! Главное запомнить одно правило ремонтных работ в кухне – сначала выполняется вся грязная работа, затем отделка и обустройство пространства.
Что касается обновления электропроводки и сантехники, то прежде, чем приступать к этой работе, нужно точно определить, где и как будет установлена раковина, кухонная мебель, а также бытовая техника. Это поможет сделать пространство функциональным и эргономичным, наделив его высокими показателями эстетичности.
Если говорить про ремонт потолка на кухне, производимый своими руками, то здесь важно правильно выбрать способ отделки. Раньше в большинстве случаев преимущество отдавали штукатурке и побелке, реже – покраске. Но, сегодня чаще всего используют подвесные потолки. Они хорошо зарекомендовали себя на практике, потому как позволяют исключить необходимость в выравнивании стен, отличаются доступной ценой, характеризуются устойчивостью к перепадам температур и повышенной влажности. Такие потолки очень просты в уходе, легко моются, не впитывают неприятные запахи. Подвесной потолок на кухне очень просто обустроить даже своими руками – это еще одно весомое преимущество.
Последовательность ремонта
В отделке стен могут возникнуть определенные сложности, потому что тут выбор материалов намного больше. Рабочая поверхность, безусловно, в большинстве случаев отделывается кафелем. Но, сегодня широко применяют пластик, а также закаленное ударопрочное стекло. Все материалы отличаются долговечностью и практичностью, поэтому выбирать следует, основываясь на личных предпочтениях и финансовых возможностях. Как выглядит тот или иной вариант отделки, можно увидеть на фото дизайна кухни для ее ремонта.
Остальное пространство может быть выполнено отделкой обоями, декоративной штукатуркой, покраской, а также керамической плиткой. Здесь все зависит от индивидуальных предпочтений. Если выбирать обои, то обязательно – моющиеся, в противном случае через некоторое время придется провести косметический ремонт на кухне, обновив стены, чтобы освежить интерьер.
К выбору напольного покрытия нужно подходить не менее ответственно. Чтобы выбирать было легче, можно перед началом ремонта просмотреть фото нескольких вариантов ремонта на кухне, сравнив, как выглядит помещение в той или иной отделке. Наиболее широкую популярность, как надежное и эстетичное напольное покрытие, получил линолеум и керамическая плитка. Но, имеют место и другие варианты, например, отделка пола камнем.
После того, как все отделочные работы завершены, можно приступать к установке мебели.
Как выбирать мебель для кухни
Выбор мебели на кухню
Для того чтобы кухонная мебель могла отличиться функциональностью и долговечностью, выбирать ее нужно очень ответственно. Не стоит экономить на данном этапе, потому как в таком случае уже через несколько месяцев эксплуатации гарнитура от него начнет отслаиваться декоративная пленка, которая к тому же подвержена деформации.
Выбирая кухонную мебель, обязательно следует обращать внимание на следующие моменты:
- материал, используемый для изготовления фасада – преимущественно это ДСП и МДФ. Но, натуральная древесина будет более качественной и долговечной;
- фурнитура – выбирая ее, обязательно нужно обращать внимание на производителя. Самая качественная фурнитура – немецкая. Можно купить польский товар, китайский будет самым доступным по цене;
- столешница – ее прочности следует уделить особое внимание. Лучше, если изделие будет выполнено из искусственного или натурального камня. Тогда оно сможет отличаться особой долговечностью и надежностью.
Как выглядит та или иная мебель, можно увидеть на фото дизайнов кухни, предложенных сайтами, специализирующимися на ремонте квартир.
Одноклассники
Google+
20-09-2015, 16:12
dizainkuhni.com
С чего начать ремонт на кухне?
— С чего начать ремонт на кухне? — как-то спросил меня мой приятель. Тема это очень обширная и интересная, и сегодня я хотел бы поделиться с Вами собственным опытом. Рано или поздно мы понимаем, что с существующей кухней дальше жить нельзя и пора обзаводиться новой. Сегодня на рынке представлено бесчисленное множество различных вариантов кухонной мебели. Глаза разбегаются. Хочется, чтобы и красиво было, и функционально, и выглядело побогаче.
С чего начать ремонт на кухне? Конечно с планирования
Наступает момент, когда мы с помощью рулетки вдоль и поперек измеряем нашу старенькую кухню, записываем размеры на клочке бумаги и, взяв ноги в руки, начинаем свое путешествие по мебельным магазинам в поисках своей мечты. Множество фирм с радостью предлагают нам всевозможные варианты. Один за другим нам рисуют планы будущей кухни. «Вот здесь будет холодильник, а вот здесь — посудомоечная машина, ой.., а теперь нет места для микроволновки, и плита расположена неудобно…». Кто не помнит эти рассуждения во время ремонта? И вот опять мы все снова перекраиваем, переставляем, перелопачиваем, прикидываем, отказываемся, соглашаемся. Чего только мы не делаем…
Но вот, нашим мучениям приходит конец. 1053 вариант планировки из всех ранее предложенных нас наконец-то устроил. Ура! Можно заказывать!
Но, не торопитесь сразу же вносить предоплату! Возьмите с собой эскиз будущей планировки со всеми размерами и еще раз вернитесь домой, и все в последний раз посмотрите.
1. Где будет находиться раковина в новой кухне?
Если в новой кухне раковина смещена относительно ее старого положения или вообще переехала в другое место, то Вам нужно будет учесть дополнительные ремонтные работы по прокладке труб к новому месту раковины. Скорее всего Вы захотите установить сразу водяной фильтр для очистки воды. При этом важно понимать, как пойдут трубы! Ведь если раковина уехала в другое место, то труба должна пройти по всей длине вдоль стены. Тут есть 2 варианта: либо Вы пропиливаете будущую кухню в месте прохождения труб, либо прокладываете трубы в стене. В последнем случае есть вероятность, что мастер, который приедет к Вам собирать кухню не будет этого делать. Ведь прокладка труб в стене — это большая тяжелая работа за отдельную плату. А пропиливание кухонной мебели может сократить ее полезный объем. Так что есть над чем подумать.
2. Где будет находиться плита, и как к ней будет подключен газ?
Тема с газом похожа на тему с водой. Только тут попроще. Газ в квартиру обычно приходит через металлическую трубу. Раньше многие плиты жестко были присоединены к этой трубе и их было не передвинуть. В современных условиях используется специальный гибкий газовый шланг, присоединенный к газовой металлической трубе. Поэтому, плиту, в принципе можно передвигать. Единственное, помните, что по правилам гибкий газовый шланг подключать к трубе должна газовая служба, имеющая соответствующую лицензию. Лучше сами этого не делайте, а подгадайте к приезду мастера по сборке мебели вызов мастера по подключению газа. Это не очень сложно сделать, т. к. обычно кухня собирается больше, чем за 1 день.
3. Очень серьезный вопрос с электрикой!
Продолжаем отвечать на вопрос, с чего начать ремонт на кухне. Пожалуй, самый серьезный момент касается электричества. Давайте рассмотрим случай домов из прошлого с планировкой типа «хрущевка», «брежневка». Вспомните, какими электроустановками мы раньше пользовались: холодильник, чайник, плита, кофеварка, ну и еще какая-нибудь мелочь. У меня помню на старой кухне было всего 2 розетки: одна под холодильник, вторая — под все остальное (на разных стенах). И сверху лампа с выключателем. Все!
А посмотрите, что делается сейчас.
Холодильник, посудомоечная машина, микроволновая печь, вытяжка, электроплита (варка газовая, но духовка у многих электрическая), чайник, кофеварка, кухонный комбайн, мясорубка, тостер, у некоторых теплый пол (под кафелем), отдельная подсветка на кухонной мебели, телевизор и желательно еще иметь подключенный пилот, чтобы туда воткнуть то, что еще не подключено!
Делая ремонт, давайте на все это посмотрим, что называется, с высока:

Все, что Вы видите на картинке, требует электричества. Причем свободных розеток желательно иметь побольше для удобства в быту. В предлагаемом варианте их должно быть минимум 2, а желательно все 4 или больше. А теперь подумайте, если в Вашей старенькой кухне раньше был только холодильник и чайник, и на стене висела только одна старенькая розетка, разве этой розетке весь этот наворот потянуть? Конечно нет.
Получается, что ко всем этим агрегатам требуется подвести питание. Но как? Тут у Вас целых 2 проблемы:
- Проводка должна быть скрыта в стенах. Ну в самом деле, не будут же у Вас по всей кухне раскиданы провода. Значит, в процессе ремонта, предстоит серьезная работа по прокладке проводов.
- Вся представленная бытовая техника имеет определенную мощность. Если Вы к своей старенькой розетке все это подключите, у Вас просто перегорят провода. Получается, что нужно делать отдельную разводку электричества на кухне, заходите и читайте
Но и это еще не все!
Все эти агрегаты при совместном включении могут образовать такую мощность, которая будет сопоставима с мощностью, выделяемой на Вашу квартиру. Т. е., возможно нужно будет ставить отдельный автомат в электрощитке, тянуть провода по всей квартире к кухне и понимать, чтобы эта мощность не перекрывала мощность, выделяемую на Вашу квартиру.
А теперь представьте, что Вы, например, уже сделали ремонт в комнатах и коридоре. Как Вы будете прятать провод, идущий через всю квартиру и обеспечивающий питание для Вашей кухни?
Пока тут больше вопросов, чем ответов.
Вот и выходит,что вопрос с электричеством очень серьезный!
4. Каково состояние стен на кухне, к которым должна крепиться кухонная мебель?
Современная кухонная мебель — это не просто несколько тумбочек и полочек. Это целая огромная конструкция, которая будет идти практически вдоль всех Ваших стен и не просто идти, а крепиться к ним! Вот и представьте, если стены у Вас, например, совсем кривые и заваленные! Понятно, что в этом случае кухню в одну линию будет не закрепить.
| Читая мой блог, Вы наверняка делаете ремонт. Добавьте к себе в закладки вот эту страницу. Здесь находятся все полезные магазины по благоустройству дома. |
Быстро оценить состояние стен можно, если вынести старую мебель, ободрать обои и по отвесу проверить завал стен. (О том, как пользоваться отвесом можно прочитать в статье: Отвес и строительный уровень).
Если стены кривые, то и здесь перед Вами встанет нелегкий выбор ремонта стен: гипсокартон или штукатурка.
Между прочим, если стали думать о кухонной мебели, не забудьте отдельно разобраться с холодильником! Вы точно знаете, где он будет размещаться? Если есть сомнения, то возможно здесь Вы найдете решение.
5. Каково состояние пола?
Если Вы собираетесь делать теплый пол, то понятно, что до покупки кухни Вам еще рано.
Сначала нужно сделать пол, а потом уже покупать мебель.
6. Вы не забыли про окно?
Стеклопакет тоже желательно установить до того, как Вам будут монтировать кухню.
7. Потолок — смотря какой?
Если Вы решили просто побелить потолок, то до сборки кухни его нужно полностью подготовить, см. рубрику: Работа с потолком. Т. е. нужно выполнить практически все работы по ремонту, кроме окончательной грунтовки и побелки. После того как Вам смонтируют кухню, ее нужно всю накрыть пленкой и после чего загрунтовать и побелить потолок. Почему его сразу же было не побелить? Да просто при монтаже возможно много пыли, особенно если Вы собираетесь делать кафельный фартук.
Подвесной потолок в виде пластиковых панелей монтируйте когда хотите. Если даже и будет строительная пыль, то Вы ее легко протрете влажной тряпкой.
А вот монтаж натяжного потолка нужно делать только после монтажа кухни, иначе есть большая вероятность, что Вы его испортите.
Кстати, задумываясь о потолке, сразу прикиньте для себя высоту подвешивания верхних тумб.
И обязательно обозначьте, как у Вас пойдет труба от вентиляционного отверстия к вытяжке.
8. Да, кстати, еще есть батарея центрального отопления
Ее будет очень не удобно монтировать после установки новой мебели, поверьте на слово! У меня, когда возникла подобная задача, пришлось разбирать часть кухни.
Итоги
Еще раз возьмите в руки эскиз, который Вам сделала фирма, перечитайте эту статью и осознайте все работы, которые нужно будет проделать.
Очень не хочется Вас огорчать, но возможно, ответом на вопрос: с чего начать ремонт на кухне, будет не покупка новой кухонной мебели, а выравнивание стен с полной прокладки электрики.
Обычно заказанную на заводе кухонную мебель Вы сможете получить от 30 до 60 дней (это в среднем). Поэтому Вы должны очень четко понимать, успеете Вы сделать все необходимые работы за этот интервал времени или нет.
На сегодня все. Сегодня мы с Вами узнали, с чего начать ремонт на кухне.
rykinekruki.ru









