Жильё моё: перепланировка своими руками
Конкурс «Жильё моё» продолжается. Сегодняшняя история несколько отличается от предыдущих. Ее автор, житель города Гомеля, затеял не только ремонт своей новой квартиры, но и перепланировку. Причем многие работы выполнял собственноручно, то и дело прибегая к помощи интернет-форумов. В результате вместо 1-комнатной квартиры площадью 50 кв. м вышла 2-комнатная. Предлагаем оценить результат.
Я навсегда запомнил те ощущения, когда впервые переступил порог своей новенькой квартиры: однотонные, серые стены, пол и потолок, стойкий запах еще сырого бетона и волнующее радостное чувство, что теперь ты обладатель Своей квартиры. И пусть ты еще какое-то время будешь возвращать кредит банку, долги родственникам, но это уже по-настоящему твое жилище и только тебе решать, каким оно будет через пару месяцев предстоящего ремонта.
Что мы имеем: 1-комнатная квартира общей площадью 50,6 кв. м на 18-м этаже новенькой монолитки. Признаюсь честно, мне повезло с этажом. Вышло, как и хотел, — на самом верху. Ну, не очень комфортно я себя ощущаю, когда над головой еще есть соседи. Да и вид на город с высоты 50 метров — то, что надо!
На момент начала строительства стоимость квадратного метра в эквиваленте составляла $950, с учетом того, что это не Минск, а Гомель. Да, дорого, но взвесив все за и против, мы решили, что оно того стоит. На сегодняшний день эта сумма сократилась в четыре раза, что не может не радовать.
Так выглядела изначальная планировка квартиры.
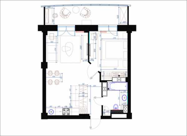
Учитывая, что человек я семейный, да еще и с ребенком, естественно, встал вопрос, как бы покомфортнее спланировать свою весьма скромную жилплощадь.
Перебрав кучу вариантов, накропав с десяток эскизов на компьютере, остановились на таком решении.
Немного поясню: наверное, очень даже неплохо, что проектировщики предусмотрели в 1-комнатной квартире кухню в 12 «квадратов», но я посчитал, что для такой площади найду более полезное применение.
Знаю семьи, где «центром» жилища является именно кухня. Там проходит основная часть семейной жизни, посиделки с друзьями и т. п. Но это не мой случай. Для меня кухня — это оснащенная современной техникой зона приготовления пищи и не более того. Плюс ко всему — хоть сейчас это многие принимают за моветон — мы с женой очень хотели иметь в квартире барную стойку. В итоге, обсудив с супругой все за и против, решили кухню переделать под детскую комнату, а саму кухню устроить в торце гостиной, разделив при этом зоны барной стойкой. Ах да, самое главное — ремонт решил делать своими силами: во-первых, безумно интересно (ну так мне казалось поначалу), а во-вторых, свободных финансов оставалась весьма скромная сумма.
Вот так угрюмо выглядело жилище в самом начале.
Итак, ремонт начался. Сначала купил и установил с отцом металлическую дверь. Теперь было надежнее оставлять в квартире инструмент и стройматериалы. Заранее прошу прощения за качество фотографий, большинство снималось на мобильный телефон, исключительно для себя. И в мыслях не было, что эти фотографии попадут однажды в сеть.
Дальнейшим шагом была разводка дополнительных розеток, выключателей и опускание их на нужную высоту. Эх, зря не послушался умных людей и не решился на прокладку проводки по всей квартире с нуля, а стоило бы. Хоть дом и новый, но проводка в нем была вся алюминиевая. Теперь этот «жучок» грызет меня изнутри.
Следующим этапом стал перенос кухни и сооружение барной стойки. Основу последней сложил из перегородочных силикатных блоков и оштукатурил.
Гофру для вытяжки пришлось прятать в подвесном потолке, а так как вентиляционная шахта находилась в коридоре, то и потолок в нем принял тоже причудливую форму и опустился по периметру на 15 см.
Электропроводку для плиты пустил в стяжке, там же проложил и металлопласт Wavin для воды, а вот с канализацией возник вопрос. Штроба в стяжке не позволяла уложить 50-миллиметровую трубу так, чтобы она обеспечивала естественный уклон. Пробороздив просторы интернета и «покурив» строительные форумы, нашел решение своей проблемы — автономная канализационная установка Sololift от датской фирмы Grundfos. На финише ремонта, после монтажа кухни, пришлось отказаться от этой идеи, так как слив, к моему удивлению, и так превосходно справлялся со своей задачей.
Итак, вода на кухне есть, канализация есть, вентиляция есть, с электричеством тоже порядок, на этом работы здесь я приостановил. Решил взяться за пол.
Стяжка, оставленная строителями, представляла собой жалкое зрелище — множественные трещины и перепады, доходившие до 3 см на 2 м длины. Пришлось заливать стяжку сверху, предварительно выставив маяки. На все полы ушло примерно 30 мешков смеси (ох, как я был рад работающему лифту).
Санузел. Пожалуй, самый трудоемкий объект во всем ремонте. За весьма нескромное денежное вознаграждение сантехник перепаял полипропиленовые трубы и спрятал их в стену, развернул на боковую стену полотенцесушитель. Знакомый «зодчий» под маячки идеально отштукатурил стены, за все остальное пришлось браться самому. Залил стяжку на полу, через пару недель прошел гидроизоляцией на цементной основе (Сeresit CR-65). Кстати, ей же обработал и всю кухонную зону.
Коробами из влагостойкого гипсокартона пришлось закрыть стояк, примыкающую к ванной стену (выпирал 5-сантиметровый угол колонны, спасибо строителям) и сделать экран под ванну. После гипсокартон обработал бетонконтактом для последующей укладки плитки.
Плитку выбрал нашу, кераминовскую, коллекция «Пальмира». Очень понравился ее однотонный песочный цвет и крупный размер 60х30 см. Дизайн укладки нарисовал в программе ViSoft Premium (да простят меня правообладатели). Клей использовал Lux Plus и Сeresit СМ16 для гипсокартона. Плитку укладывал после работы по вечерам и в выходные. Это первый мой опыт по работе с плиткой, поэтому возился целую неделю. Что получилось, судить вам, но я и мое семейство остались довольны.
Ванну и унитаз оставил те, что установили при строительстве квартиры, благо ванна чугунная, да и кераминовский унитаз тоже оказался неплохим.
Дабы окончательно «завязать» с плиточными работами, оставалось положить фартук на кухне. Для фартука выбрал 5 белых керамогранитных полированных плиток испанской фирмы Roca. Керамогранит ректифицированный, поэтому положил его без швов, торцы отделал декоративным алюминиевым профилем.
Потолок. Здесь мне сказать особо и нечего, так как работа ответственная, а опыта у меня ноль. Пришлось снова обратиться к знакомому мастеру. Потолок был оштукатурен ротбандом, зашпатлеван и зачищен. Грунтовал и красил уже сам.
Пол. Укладка ламината пришлась по душе. Во-первых, помещение сразу преображается, от чего получаешь огромное моральное удовлетворение, а во-вторых, ремонтные работы переходят на новый уровень, когда грязную обувь надо оставлять за дверью, а по квартире перемещаешься исключительно в носках. Действительно, после укладки ламината строительной пыли стало гораздо меньше.
Ламинат выбрали узкий (12 см) с 4-сторонней фаской, немецкий Kronoflooring Kronostep Narrow, цвет «Дуб Маранелло». Подложка — листы из полистирола 4 мм толщиной. Учитывая небольшую площадь квартиры, ламинат уложил без разрывов, на работу понадобилось два выходных дня.
Через месяц прибыли заказанные двери. Выбор пал на отечественного производителя шпонированных дверей — витебский «Древпром». Двери выбрал серии «К», шпон венге, с белым матовым стеклом. Две двери обошлись примерно в $600, еще сотню потянула фурнитура.
Стены в прихожей изначально планировали отделать покрытием из натуральной пробки, но в целях экономии и ввиду наличия в доме кошки от этой идеи пришлось отказаться. В итоге за пару часов прихожая была просто окрашена моющейся водоэмульсионной краской в цвет оникс.
На этом этапе с наиболее трудоемкими работами было покончено, можно было немного передохнуть. Дальше предстояло собрать шкаф-купе и приобрести кухню. Шкаф решил сделать сам, благо в Гомеле хватает фирм, занимающихся распилом ДСП и продажей сопутствующей фурнитуры.
В итоге шкаф шириной 1,4 м с двумя зеркальными дверями обошелся мне в $300 и один выходной день на сборку. Так как к этому моменту у меня появились и сверло Форстнера, и сверло для конфирматов, решил рискнуть и собрать кухню своими руками. Чертежи сделал в программе «Базис-мебельщик» (да простят меня снова правообладатели), заказал распил ДСП, купил столешницу. На фасадах и фурнитуре решил не экономить, ведь для любимой жены старался. Фасады заказал из акрила, а фурнитуру — австрийского производителя Blum. Через месяц кухня была собрана и установлена на свое место. С обустройством барной стойки и без учета бытовой техники затраты на изготовление кухни составили $1000. К слову, вытяжка, индукционная варочная панель, духовой шкаф и холодильник потянули еще на $1500.
Оставалась мелочь — поклеить обои, прикрутить плинтусы и повесить люстры. Обои выбрали светлых тонов, флизелиновые, немецкого производителя. Работы по оклейке заняли два дня. Для гостиной-кухни использовал обои пастельных тонов с неброским цветочным декором, детская получилась полосатой.
В детскую комнату временно пришлось поставить старую мебель, поэтому она не совсем вписывается в интерьер. Но так как опыт работы с корпусной мебелью уже появился — это дело поправимое 😉
Итак, уже можно подвести черту и подсчитать, сколько средств ушло на ремонт:
- сухие смеси (штукатурка, шпатлевка, стяжка) — 420 у. е.
- плитка и клей — 800 у. е.
- гипсокартон и металлический профиль — 170 у. е.
- электрика и освещение — 315 у. е.
- сантехника и канализация — 200 у. е.
- грунтовки и краски — 165 у. е.
- напольное покрытие и плинтус — 700 у. е.
- двери — 920 у. е.
- обои и клей — 260 у. е.
- кухня с барной стойкой (без техники) — 1000 у. е.
- шкаф-купе — 300 у. е.
- инструмент, расходный материал — 500 у. е.
- оплата услуг профессиональных строителей — 1200 у. е.
В итоге затраты составили 6950 у. е., округлим до 7000. Может я что и пропустил, но на общую картину это несильно повлияет. Возможно, вы скажете, что где-то перебор и можно было сэкономить, а где-то, наоборот, можно было выбрать решение подороже, но как есть, так есть.
Пока это все, что успел сделать. На ближайшую перспективу намечено приобретение штор в комнаты и жалюзи на лоджию, установка натяжного потолка в ванной, декорация барной стойки. Но это уже мелочи. Отдельная тема — утепление и обустройство лоджии, это я оставлю на десерт.
Наша семья уже переехала в новое жилище. Какое все же удовольствие жить в собственной квартире, осознавая, что все окружение сделано твоими руками и для твоей семьи.
realt.onliner.by
Делаем из «однушки» полноценную «двушку» — Дом. Ремонт. Дизайн
Студии довелось поработать с очень интересным проектом. Исходным материалом была однокомнатная квартира в новостройке площадью 57 м. кв. Интерьер создавался для одного человека, который иногда будет жить в этой квартире. Изначально в квартире была жилая комната, кухня, кладовка, санузел, лоджия и коридор. Стояла задача организовать полноценное спальное место, кухню, небольшое рабочее место и зону для гостей и отдыха.
Изначальная планировка большой «однушки».
— Исходя из того, что площадь однокомнатной квартиры вполне себе большая, было решено сделать кардинальную перепланировку и превратить «однушку» в полноценную двухкомнатную квартиру, — рассказывает ведущий художник-дизайнер студии дизайна интерьера «ДиКинг» Оксана Масленникова. — Кухня была перенесена на место кладовки и коридора. Больших трудностей это не вызвало, поскольку в доме спроектированы электрические плиты. Санузел был немного увеличен за счет коридора, благодаря этому появилось место для встроенного шкафа со стиральной машиной. Учитывая то, что кухня после перепланировки находится в дальнем углу квартиры без своего окна, было решено увеличить балконный проем в гостиной. Вместо окна с дверью установили французские окна, это позволило большему количеству естественного света проникать в помещение. Рабочее место спроектировано на балконе. А чтобы работать и отдыхать на нем было комфортно в любое время года, стены были обшиты утеплителем, а окна заменены на «теплые».
После перепланировки квартира стала «двушкой».В квартире учтено все для полноценного проживания одного-двух человек. Кухня оснащена необходимой бытовой техникой, обеденная группа без труда разместит четырех человек. В гостиной расположился диван-трансформер, что дает дополнительное спальное место, если к хозяйке придут гости.





В прихожей спроектирован большой шкаф-купе с открытой вешалкой, консолью и пуфом.



Заказчица хотела уютный светлый интерьер с яркими акцентами. Поскольку скандинавский стиль призван создавать уютный и светлый интерьер, на нем и остановился наш выбор. А чтобы светлая гамма стала более динамичной и контрастной, были добавлены черные элементы мебели, светильники, картины и постеры. Яркими акцентами стали желтые вставки на мебели и в текстиле.
На месте кухни организовали спальню с большой кроватью, туалетным столиком, шкафом и прикроватными тумбочками. Помещение не очень большое, поэтому цветовая гамма выбрана также светлая с контрастной черной люстрой и желтым текстилем.


Серые обои с фактурой льна «работают» идеальным фоном для белой мебели. По стилю спальня немного отличается от предыдущего пространства. Здесь появились классические элементы в виде осветительных приборов, карниза и розетки под люстру.


Просторный балкон получился многофункциональным. На нем разместилось рабочее место, шкаф и комод для хранения и место отдыха в виде двух кресел и сервировочного столика. Стены обшиты евровагонкой и выкрашены в светло-серый цвет. Как и в спальне, серый фон хорошо гармонирует с черным, белым и коралловым цветами.



В санузле использовалась белая плитка и керамогранит под деревянные доски. Освежает это сочетание яркая зелень.



В целом, получился очень уютный и функциональный интерьер. На все работы, черновые и чистовые материалы и мебель было потрачено около $ 16 тыс. Большая часть мебели — готовая, среднего ценового сегмента, отделочные материалы подбирались недорогие, польских и белорусских производителей.
Читать полностью: https://realty.tut.by/news/new-settler/527465.html
Не уходите! Еще статьи по теме:
trustload.com
Как из однокомнатной сделать двушку
Не так давно был пост про ремонт в комнате 33кв.м. А этот пост про квартиру с
общим размером 33кв.м. Нас трое, и главная задача сделать отдельную комнату для ребенка (7лет.). Благо что дом «монолит» и перепланеровка не запрещена. Поэтому было решено поделить комнату пополам. и заодно вынести балкон на кухне.
Ремонт сделал сам, в стиле «эконом-вариант» из- за финансовых соображений.
Вообщем смотрим что получилось.
Сносим стену: https://youtu.be/FshjzYQKEZU
Фото после демонтажа части стены (вид со стороны входной двери)

Фото после демонтажа части стены (вид из комнаты)

Начинаем с санузла (он по проекту совмещенный)

Ванны 1.4м х 1.4м отлично подходит для сна (приходилось работать по ночам и не всегда хотелось ехать домой)

Теперь можно жить (коммуникации уже подключены).

Стекла в двери экономят электричество, т.к. днем света хватает чтоб не включать лампочку

А если там кто то есть то это выглядит так.

Делаю перегородку между комнатами

Конструкции для потолка (тут будет ниша для скрытой подсветки)

Крепим к потолку

Перегородка делит зону входной двери от остальной части хола (второй комнаты — спальни для взрослых)

Перегородка но общем фоне

Перегородка между комнатами (проема для двери в детскую еще нет т.к. нелзя дальше ломать стену до кухни, по ТБ. газовщики могут не подключить газ, ждемс.. )

Детская

Вид из детской (дверь будет в углу комнаты под углом 45 градусов)

А вот и дверь (проем дорезал т.к. газ уже подали )

Вид из кухни

Вид на кухню (дверь под 45 градусов чтоб было больше света в холе-спальне )

Пол в детской

Пол в спальне

Детская готова

Глянцевый потолок

Кухня уже без балкона

Оконный проем кухни

Балкон начинался на уровне газовой трубы, а теперь размер кухни 3 х 4.5м

Декорирую «колону» несущую часть стены (пилон)

Декорирую вторую колону, за ней каналы вентиляции для вытяжки воздуха и от газового котла

Котел двухконтурный «BOSCH» (входит в стоимость квартиры)

После покраски стен

fishki.net
Перепланировка, из однушки в двушку.Возможно ли??Помогите подскажите. — однушку в двушку — запись пользователя Марина-же (id1777157) в сообществе Дизайн интерьера в категории Вопросы и ответы
перепланировка однушки в двушкуДевочки спасибо вам огромное!!!!если бы не ВЫ!!! так бы и сидели мы на попе ровно думая что все возможно!!через скандал(ну так.. немного не допоняли друг друга) с мужем, который (в итоге признал! что я права )))))посоветовавшись с сотрудником БТИ), после кучи звонков!!принято решение брать в этом же доме однушку но 52 кв., трудности пока только в ипотеки которую надо пере одобрить...но кредитный менеджер вроде обещал что все будет окееее
в агенстве сказали что документы будут готовиться в течении месяца...так что через месяц я точно скажу получилось или нет))мало ли какие обстоятельства..ну а пока Простите что отняла ваше время!!Вы нам очень помогли!!приду к Вам еще не один раз за советом)))
План квартиры пока только такой, видели ее в реальности, она сразу кажется намного больше первой..
Кухню скорее всего перенесем, в коридор где шкаф...а там видно будет..вообще в БТИ сказали что это вполне реально узаконить..главное крепкие нервы,круглую сумму денег, и время пол года....
В общем держим кулачки девочки))
охохо настроение на 0...вначале все казалось так радужно...а теперь..в общем решили брать квартиру в ипотеку, с родителям живем 7 лет вместе, копили копили, и конечно не успеваем за рынком никак, в итоге имеем половину суммы...муж уперся что квартиру нужно здесь,Редактирую: т.к здесь инфраструктура хорошая, до работы доехать реально,дом уже готов)))(я бы наверно уехала и за 50 км...но мужа тоже жалко , путь до работы будет долгим.)и т.д. и т.п.....ладно как итог "имеем"(срок сдачи конец 15, дом уже построен идет отделка) квартира однушка общей площадью 44 кв. жилая 40. Теперь надо придумать как из однушки сделать двушку....пока есть три варианта итак вот что имеем по метражу(красной ручкой обведено.
Под срезом наши варианты.
итак первый вариант и любимый вариант мужа это.. перенести кухню в жилую комнату, я против, переживаю что кто-нибудь пойдет и пожалуется что им мешает шум воды-вытяжки. Плюс такую перепланировку точно не узаконить. Муж говорит что сделаем, шумо-гидро изоляцию, все будет оке. Что миллионы людей так делают, и потом спокойно продают такие квартиры. Вариант на самом деле то самый оптимальный и кухонька нормальная получается, и комната для нас нормальная останется, и для ребенка пока 8 кв. нормально(здесь хочу уточнить что сейчас мы трое живем в 9 кв. метрах.) Но не дает мне покоя этот незаконный перенос кухни.
Вариант номер два кухня остается на своем месте мы делим большую комнату на две части, ребенку комната с окном, нам темная. Муж этого варианта вообще не одобряет, а я сомневаюсь только в одном моменте, ненавижу духоту!!Обожаю спать с открытыми окнами и что бы только нос из под одеяла торчал. Ладно Летом-Весна этот вопрос может решить кондиционер, а зимой...мне кажется никакая вентиляция не справится с этим вопросом. С другой стороны плюс что кухня останется полноценной и можно будет использовать ее как и гостиную))
ну и третий вариант...который мне так нравился в голове.. а потом разонравился...это кухня остается на своем месте но отгородить стенной по всей ширине квартиры, получится закуток кухонный, + обеденная зона , куда даже встанет диван и шкаф. но комнатушки получаться клетушки...по 8 метров,и кухонный уголок макс.4 кв.
![]()
Буду очень ждать от вас девушки советов!!может свежая голова и взгляд подскажет идею хорошую))
www.babyblog.ru
Однушка в двушку, перепланировка — фото примеров
Дизайн квартиры малых размеров – тема и сегодня весьма актуальная. Малогабаритки для нас – явление привычное, что заставляет искать возможность эффективного и эффектного обустройства скудного метража. Один из способов красиво выйти из положения – из однушки сделать двушку.
Но как проделать это так, чтобы и после перепланировки в доме осталась уютная атмосфера, и в нем хотелось бы принимать гостей?
Вы не поверите, но благоустроить квартиру путем перепланировки однушки в двушку не настолько сложно, как может казаться изначально. Тут главное тщательно проработанный проект, четко определяющий задачи, и выделение места для реализации всех прописанных в нем деталей.
Документы для превращения однушки в двушку
Если речь заходит о сносе или переносе стен в квартире, то нахрапом подобные дела не делаются. И загвоздка тут будет не в составлении сметного проекта, не в вопросе поиска и закупки материалов, а в правомерности готовящихся к реализации действий. Чтобы сделать из однушки уютную двушку, нужно будет получить разрешение в государственных органах. Нужно знать, что в многоквартирных домах запрещено проведение определенных видов работ. В частности закон запрещает:
1. Разборку несущих стен.
2. Расширение санузла с задействованием площадей жилого пространства.
3. Демонтаж вентиляционных систем в газифицированных кухнях.
4. Перемещение стояков подачи газа.
5. Вынос на балкон радиаторов централизованного отопления.
6. Установку в жилых комнатах отопительных котлов.
7. Изменение нагрузки на несущие элементы (речь идет о бесконтрольном ее увеличении).
8. Перепланировку однушки в двушку в аварийных домах априори.
Для перепланировки из однушки в двушку необходимо получить разрешение
Совмещать комнатно-балконное пространство, делать в несущих стенах проходы – допустимо, но все предполагаемые действия должны быть задокументированы и согласованы с разрешительными органами.
Обязательно делайте проект и решайте вопрос, можно ли таким образом из однушки седлать двушку, до начала ремонтных работ. Это избавит от лишних расходов. Дело в том, что в поданном вами виде проект может быть не утвержден и потребует коррекции, а ремонт уже начат и средства вложены. Несколько дней ничего не решат, так что дождитесь положительного результата.
До начала ремонтных работ сделайте дизайн-проект
Однушку в двушку: популярные варианты перепланировки
«Затевать перепланировку однушки в двушку можно и нужно, если общая площадь квартиры насчитывает хотя бы 40 квадратов»
Перекроить однокомнатную квартиру, передвинуть в ней стены, адекватно отделать – даже при наличии утвержденного плана – будет делом нелегким. Малогабаритное жилье в прямом смысле не дает развернуться. Затевать перепланировку однушки в двушку допустимо и нужно, если общая площадь квартиры насчитывает хотя бы 40 квадратов. В меньших пространствах сделать из однушки действительно уютную двушку будет архисложно.
Идей по изменению внутреннего пространства жилья предлагается много, но в основном они отличаются дизайнерским решением. В основу перепланировки заложены стандартные решения. Какое из них будет выбрано – зависит от исходных параметров видоизменяемого жилья.
Вариант 1
Наиболее популярным видом трансформации однушки в двушку является создание квартиры-студии. Особенно нравится подобный подход молодежи, симпатизирующей современным направлениям оформления интерьеров.
Объединение пространства кухни и гостиной
Планировка такого жилья предполагает выделение в отдельную комнату спальни и объединение в единое пространство площадей гостиной и кухни. Разделение последней, при перепланировке однушки в двушку, чисто символическое. Без использования раздвижных перегородок и штор. Зоны принято разграничивать: разной фактуры отделкой, игрой цветов, архитектурными элементами. Например, в кухонной части может быть приподнят пол и на входе в нее образована ступенька.
Организация спального места
Создавая из однушки уютную двушку-студию, важно использовать только модерновую отделку. В интерьере должна появляться исключительно современная мебель, желательно привлекающая нестандартностью своей конструкции или дизайна.
В такой квартире должен царить абсолютный порядок. Обилие декора и просто бардак лишит интерьер свежести, украдет пространство и вообще сведет его эффектность на нет.
Не перегружайте пространство большим количеством декора
Нужно учитывать, что используя этот вариант преобразования однушки в двушку, жильцам придется терпеть определенные неудобства, а именно – разносящиеся по гостиной запахи кухни. Но если никого из квартирантов это не смущает, то в остальном – решение вполне комфортно.
Вариант 2
Он предлагает из однушки сделать двушку посредством передела комнаты гипсокартонной стеной, с последующим переносом межкомнатных дверей. Об использовании кирпичной кладки речь в квартирах обычно не ведется. Такая стена будет тяжела и усилит нагрузку на межэтажное перекрытие.
Деление комнаты гипсокартонной перегородкой
Эта идея перепланировки онушки в двушку может и должна быть взята за основу, если комната крупногабаритна и в ней предусмотрено два окна. В этом случае есть шанс получить два полноценных, возможно даже изолированных пространства, площадь которых можно задействовать по своему усмотрению.
В малогабаритных комнатах также можно поставить перегородку, но не гипсокартонную, а преобразовать однушку в двушку при помощи стекла. За стеной из стеклоблоков можно обустроить кабинет или миленькую спальню.
Вместо стационарного перестенка можно установить раздвижные панели из стекла. Удачным дизайнерским ходом будет использование витража.
Зонирование пространства раздвижными стеклянными панелями
Наиболее сложна перепланировка квадратной однушки в двушку. Единственное окно и пропорциональные стены очень ограничивают варианты дизайна и организации пространства.
Вариант 3
Менее популярный, но все же пользующийся спросом способ преобразования однушки в двушку – задействование штор. Используя данный прием, можно получить две комнаты без крушения стен и кучи согласований. За плотной тканевой перегородкой можно организовать уютный спальный уголок или комфортную рабочую зону. Текстильная ширма не крадет пространство, зато высоко функциональна и при необходимости может быть убрана одним движением руки.
Тканевая перегородка отделяет спальню от гостиной
Вариант 4
К делу получения из однушки уютной двушки привлекается мебель. Роль разграничителей пространства берут на себя высокие стеллажи, шкаф и прочие предметы обстановки. Главное, чтобы они не были громоздкими, и их присутствие было оправдано потребностью дизайна интерьера.
Стеллаж в роли разделителя пространства
В общем, из однушки сделать двушку вполне реально. Главное иметь желание, не бояться подключать фантазию и использовать качественные отделочные материалы. Оригинальный план и его грамотное воплощение позволит обжить даже столь скромную квартиру с максимальным комфортом.
Несколько интересных идей перепланировки однушки в двушку
Почему возникает вопрос перепланировки жилья? Побудительные причины самые разные. Одним две комнаты необходимы, чтобы поддерживать комфорт в отношениях, другим – хочется избежать давления малогабаритного пространства на психику. Третьи и вовсе руководствуются исключительно эстетическими мотивами и желают провести перепланировку однушки в двушку, чтобы представить свою квартиру не как каморку папы Карло, с привычными углами и ожидаемой формы проемами, а как шедевр архитектуры, при входе в который захватывает дух.
Да мало ли поводов можно найти, чтобы вдохновится, и сотворить из однушки уютную двушку? Помочь с выбором варианта может следующая подборка дизайнерских наработок, позволяющая втиснуть в 30-40 квадратов кроме гостиной, спальню и при этом сохранить полноценность кухни.
Кровать в пенале
Эта идея поможет заполучить отдельную спальню в самой крошечной однушке. Кровать рекомендуется спрятать за тончайшими зеркальными перегородками, создав нечто, наподобие шкафа. Использование зеркал в преображении однушки в двушку позволит сохранить ощущение просторности помещения, наполнит его воздухом и светом, при этом появится вполне приватный, закрытый от мира со всех сторон уголок, где можно будет с комфортом отдохнуть.
Спальной место можно выделить даже в самой маленькой квартире
Следуйте за стилем
Если в ваших владениях оказалась квартира нестандартной планировки с несущими стенами из кирпича, длинным коридором и большим окном в комнате – поддержите идею и оформите пространство в стиле лофт.
Зонирование стеклянными перегородками в стиле лофт
Перепланировка однушки в двушку в этом случае будет вестись стеклянными перегородками. Их появление позволит деликатно зонировать пространство, не ограничивая распространения естественного света. Отлично будут смотреться конструкции комбинированных перегородок, где стекло находится в обрамлении рам черного дерева. Появление переплетов поможет расставить четкие графические акценты.
Ювелирный способ из однушки сделать двушку
Уютное гнездышко вызовет восторг у молодоженов. В проекте предлагается минимизировать площади санузла и прихожей, перенести ко входу кухню и на высвободившихся квадратах обустроить удобную спальню. В гостиной части у окна останется место для зоны отдыха, с возможностью меблировать ее диваном и тумбой. При таком преобразовании однушки в двушку найдется место даже мини гардеробной.
Перенос кухни к входу освободит дополнительное пространства
Светящейся и объемной квартира предстанет благодаря превалированию белого цвета в отделке. Маленькие помещения будут поражать элегантностью и шиком своей обстановки.
Белый цвет сделает квартиру светящейся и объемной
Шкатулка с секретом
Интерьер для молодой леди, склонной к эпатажу. Цель перепланировки однушки в двушку – получение просторной спальни, в которую можно было бы вписать сразу два вместительных шкафа под одежду. В этом аспекте под комнату отдыха отведется львиная доля пространства. Гостиная же с кухней будет разбита на сохранившейся узкой полоске площади, вытянувшейся вдоль двух окон.
Увеличить размер спальни можно за счет площади гостиной
Хоть интерьер не производит впечатление просторного, так как теснота переделанной однушки в двушку будет сквозить со всех щелей, тем не менее, он вызовет неподдельный восторг благодаря изысканности отделки, в которой задействованы броские краски и оригинальные орнаменты.
Из однушки уютная двушка?
Реально ли на 35 квадратах оборудовать просторную гардеробную, кухню с островным решением интерьера, да еще все это дополнить полноценной спальней? Вполне, если все эти зоны будут организовываться с привлечением передовых технологий.
Выдвижная кровать в подиуме
Обустройте гардеробную на подиуме, внутри которого можно будет спрятать удобную широкую кровать. Нужно не забывать делать из однушки уютную двушку и в остальном. Так в кухонный стол может быть встроена гладильная доска, а диван трансформироваться в место для посиделок со столом и полированными лавочками. В итоге получится многофункциональное, повышенной комфортности пространство, не захламленное вещами.
Гладильная доска, встроенная в кухню
Цимус в окошке
Можно ли выполнять перепланировку однушки в двушку, если в помещении имеется лишь одно окно? Да, но это нужно будет правильно обыграть.
Большое влияние на планировку окажет вид из окна. Если это роскошный природный пейзаж, то окно останется в спальне. Спрятанная за надежной перегородкой, она будет отделана в эко-стиле. Природная цветовая гамма и растительные орнаменты будут присутствовать и в отделке кухни-столовой, оставшейся при попытке из однушки сделать двушку без естественного освещения. Его альтернативой в помещении станет многоярусная, разной яркости подсветка.
Многоуровневая подсветка компенсирует недостаток освещения
Вариант оригинальный, подходящий для перепланирования однокомнатных квартир типа удлиненных студий-вагончиков.
Спальня на антресолях
Есть идея реорганизации однушки в двухэтажную двушку. Реализовать ее можно только в крупногабаритном, с высокими потолками (от 3-х метров) жилье. Если у вас именно такой проект – смело делите пространство по горизонтали. Прямо под потолком может получиться чудесная спальня. Под импровизированным вторым этажом разместится гостиная со столовой.
Спальное место под потолком
Подняться наверх, в переделанной таким образом однушке в двушку, можно будет по удобной винтовой или прямой лестнице. Тут уж как душа попросит. Альтернативным решением стационарной лестнице может стать раскладная, выдвигающаяся по случаю. Смотреться подобный интерьер будет не менее интересно, чем с фигурной лестницей.
Перенос спального места под потолок, освободит много полезного пространства
При перепланировке однушки в двушку с образованием второго этажа удастся сохранить полную функциональность кухни и даже расширить ее площадь за счет территории поднятого на второй этаж санузла. Это не является обязательным условием перепланировки, а просто служит удачным приемом образования из однушки уютной двушки.
Проект без стен
Большую однокомнатную квартиру вообще можно лишить стационарных перегородок, оставив за естественными стенами, лишь площадь санузла. По периметру спальни расставляются стеллажи, а делить пространство помогают скользящие по рельсам зеркальные двери.
Объединение комнат в единое пространство
Как представить интерьер: из однушки сделать двушку или оставить пространство открытым – решают сами жильцы.
Арт-интерьер
При делении комнаты кровать предлагается поставить в необычную нишу, созданную стенными шкафами. Ярко подсвеченная объемная спальня будет смотреться в окружении белых стен, словно 3D картинка.
Кровать в нише, образованной стенными шкафами
Использование в перепланировке однушки в двушку такого приема, позволяет получить помимо уютного уголка отдыха еще и вместительную гардеробную. Для пущей эффектности зону кухни и зала стоит объединить извилистым холлом.
Оазис релакса
Эмоционально тяжелее всех в одной комнате выживать молодой семье, где есть маленький ребенок. Тут, трансформируя однушку в двушку, надо сосредоточиться на планировании удобной спальни, в которую бы можно было вписать детскую кроватку. Ее лучше отгородить стационарно, стеновыми панелями и обустроить вход в помещение полупрозрачными раздвижными дверями.
Детский уголок в однокомнатной квартире
При тщательной проработке проекта на площади можно будет выделить участок и для небольшого кабинета, не лишив квартиру гостиной и кухни.
На площади однокомнатной квартиры можно выделить рабочий участок
Делаем из однушки уютную двушку
Дизайн квартиры для холостяка
Чтобы мужчине было комфортно в маленькой квартире, нужно расширить территорию санкомнаты и выкроить место под вместительную гардеробную. Этот вопрос может быть решен переносом входа в спальню. Попадать в нее можно будет из кухни-гостиной. Теперь, после перепланировки однушки в двушку, в коридоре появилось достаточно места для установки шкафов и организации гардеробной для одного человека.
Перепланировка однушки в двушку для холостяка
За счет коридорной площади откорректированы и размеры санузла. Тут появился уголок для душевой кабинки, место для стирки и мебели.
В обстановке кухни мебель сместилась ко входу, а для отделения зоны TV использовали барную стойку.
Задействовали в преобразовании однушки в двушку и пространство лоджии. Сюда вынесли уголок отдыха, меблировав его диваном-малюткой и уютным креслом.
Вынос зоны отдыха на балкон
С точки зрения реализации проект не сложен, и с его согласованием не должно возникнуть проблем при наличии технического заключения компетентной экспертной организации.
Дизайн однушки для молодоженов
Для того чтобы из однушки сделать двушку, пригодную для проживания молодой семьи, кроме с комфортным ложе спальни в планировке должно появиться больше систем хранения. То есть, обязательно обустраивается гардеробная, добавляются шкафы в пространство ванной. Отдельно организуется постирочная зона, которая дополняется открытыми полками под чистящие и моющие средства.
Небольшая гардеробная для однушки
В дизайне кухне-гостиной, при создании из однушки уютной двушки, используется угловая мебель. Это позволит добавить в обстановку скромных размеров обеденный уголок, в комплектации которого будет раскладывающийся стол (на случай прихода гостей) и угловой диванчик. Добавив небольшой телевизор на стену, можно получить полноценную гостиную зону.
Функциональная угловая обеденная группа
Лоджию по желанию супругов можно отдать под домашний офис.
Поскольку в преобразовании однушки в двушку будет затрагиваться вопрос разборки подоконной части лоджии, с согласованием перепланировки могут возникнуть сложности. Запаситесь техническим заключением, которое может дать автор проекта или имеющая допуск СРО проектная организация.
Домашний офис на балконе
Дизайн однушки для семьи с ребенком
Помимо всех стандартных помещений, в плане перепланировки однушки в двушку придется изыскивать, где организовать личный уголок ребенка. Это будет одновременно местом учебы и уединения, поэтому важно будет продумать его обстановку и дизайн.
Получить комфортные условия для отдыха можно за счет максимального увеличения жилого пространства. К комнате придется присоединить площадь коридора и перенести вход в нее.
Выделите под детскую часть гостиной
Проще всего из однушки сделать двушку с двумя раздельными спальнями – поставить стационарную перегородку. Ребенок при этом останется в проходной комнате, из которой будет выход на кухню.
Пространство лоджии при преобразовании однушки в двушку также обживается. Здесь обустраивается рабочая зона со стеллажами и полками для учебников и документов.
Детская обустроена на балконе
В этом проекте подоконный блок можно не демонтировать, а использовать, как письменный стол тогда риск нарваться на сопротивление разрешителей сведется к нулю.
Подоконный блок используйте в качестве письменного стола
Как согласовать перепланировку однушки в двушку
«Если просьба удовлетворена, то произвести изменения и из однушки сделать двушку нужно успеть за один год»
Что же делать дальше, когда план преобразования из однушки уютной двушки уже на руках? Собрать пакет бумаг для предоставления в специфический орган самоуправления.
Что должно в него входить:
1. Утвержденной формы заявление на разрешение перепланировочных работ.
2. Перепланироваочный проект (2 экземпляра).
3. Договор авторского надзора, если таковой планируется (подается также в 2-х экземплярах).
На рассмотрение документов отводится 35 дней, по истечении которых заявителю должен быть дан письменный ответ. Если просьба удовлетворена, то произвести изменения и из однушки сделать двушку нужно успеть за один год.
Если все выполнено в срок – обновляется кадастровый паспорт. В этом документе должны быть отображены все изменения планировки. Кадастровый паспорт оформляется на основании акта о произошедшей перепланировке.
Гораздо хуже все выглядит с перепланировкой однушки в двушку в новостройках. Пакет документов тут существенно расширяется. Затягивается время на их сбор. Но если овчинка стоит выделки, то в волокиту ввязываться можно.
Заключение
Интерьер малогабаритной квартиры малой площади просто обязан подаваться как эргономичный и высокофункциональный, так что перепланировка однушки в двушку просто идеальный вариант достижения цели.
Фотогалерея – перепланировка однушки в двушку
Видео
Автор: Михаил Бонд
openfile.ru
Как сделать двушку из однушки: перепланировка, зонирование
Чтобы квартирный вопрос не испортил отношений между домочадцами, каждому из них следует определить собственное пространство. К сожалению, сделать это крайне трудно в малогабаритных площадях – однокомнатных квартирах. Тем не менее выход есть – двушку из однушки делают разными способами. И об этом речь и пойдет.

Альтернативные решения создания пространства
Нетрудно догадаться, что вопрос превращения однушки в двушку заключается в переделывании площади. Этому есть несколько путей.

Перепланировка
Наиболее частое решение, если площадь однокомнатной квартиры позволяет это сделать. Требуется не менее 40 м² для отделения одного помещения от другого. Кроме того, существуют нюансы правовой сферы – увеличивать нагрузку на потолок нижней соседней квартиры не допускается. Это грозит потерей жесткости плит перекрытия. Разрешенные варианты:
- Устройство глухих гипсокартонных стен с дверными проемами или сплошными. Вариант годен для комнаты с достаточной длиной и широким окном или удача! – с двумя. Достоинства в разнообразии вариантов, возможности утеплить или звукоизолировать стену, сделать перегородку нестандартной по конструкции. Кроме этого, работа легко устраивается своими силами, без привлечения дорогостоящих специалистов. Недостаток – стены все-таки требуют места для установки. Тонкие же обладают минусами – звукопроницаемостью, непрочностью.
- Сооружение деревянных каркасов. Они могут быть обшитыми или представлять собой сквозные сооружения, собранные из резных плит. Их приобретают готовыми или мастерят самостоятельно – еще один вариант применить собственную фантазию и видение интерьера.
- Стеклянные разделительные перегородки. Минус таких конструкций в отсутствие возможности уединения, но проблема решается тонировкой или использованием матовых стекол. Самостоятельно установить конструкции можно, если приобретать сборные единицы. В противном случае работой занимаются мастера.
- Передвижные или складные конструкции. Очень удобны на время сна или для выделения рабочего места, когда важно остаться в неотвлекающей обстановке. Выполняются из различных материалов – дерева, стекла, пластика. Вариант бюджетен и популярен.
До того как выбрать решение важно оценить собственные силы, а также удобство и безопасность возводимых перегородок для каждого домочадца.


Зонирование
В том случае, когда площадь квартиры критично мала – до 40 м² и перегородки только ухудшат ситуацию, рекомендовано рассмотреть зонирование – разделение пространства на участки. Это может оказаться достойным выходом из положения. Например:
- Квартира-студия. Границы между спальней, кухней и гостиной радикально не стираются. Назначение зоны выделяется многими дизайнерскими вариантами: арками, подиумами, ступеньками. Например, кровати стоят на возвышениях, кухня оформлена порталом, гостиная, она же столовая примыкает интерьером к окну, превращая обеденную зону в подобие дорогого столика в ресторане.
- Нетрадиционное зонирование. В этом случае места для отдыха, приема пищи или активного времяпрепровождения разграничиваются цветом, текстилем, фактурой стен и прочими отличительными приемами. Важно, чтобы между собой эти сочетания не диссонировали.
- Установка мебели конкретного назначения, разграничивающей пространство. Угол, занятый кроватью, естественно, превращается в спальню. Обеденный стол у кухни автоматически создаст из нее столовую. Несколько стеллажей или полок и кресло под ними создает подобие кабинета и так далее и тому подобное. Громоздкой мебели, по причине ее габаритов не приветствуется.
- Функциональные предметы интерьера. Популярность завоевывают предметы нескольких назначений. Так, кровать в стеновой нише на дневное время становится книжным шкафом или платформой для телевизора. Складные столы принимают габаритный вид лишь на время присутствия гостей – в обычном состоянии они не больше журнальных.
До принятия решения, хорошим подспорьем в вопросе зонирования станут специальные компьютерные программы, создающие дизайн-проекты в 3D графике. С ними, возможно, заранее увидеть результат.


Двухуровневая двушка из однушки
Преимуществом однокомнатных квартир с высотой потолков от 3 м становится пустое верхнее пространство. В самом деле, почему бы его не использовать с толком? Этот прием хорошо известен архитекторам и называется – двойной свет. Особенности квартиры:
- В качестве естественного освещения подойдет широкое окно гостиной.
- В противоположном углу под потолком устраивается спальня или детская с местами для отдыха. Непосредственно над кроватью устраивают бра, а для гостиной осветительные приборы спускают на длинных шнурах.
- На «второй этаж» ведет лестница. Она может быть винтовой, прямой, двухмаршевой. Если габариты комнаты не позволяют установить стационарную модель, устраивают складную – выглядит она достойно.
Второй этаж будет оценен молодыми парами и детьми. Для жильцов преклонного возраста идея не подходит – безопасность подъема соблюдается, прежде всего.


Визуальное увеличение пространства
После того как решение о способе превращения однушки в двушку принято, важно позаботиться о созданном интерьере, дабы не превратить квартиру в мрачные клетушки. Визуально увеличить получившиеся зоны, возможно, при помощи следующих приемов:
- Цвет. Светлые пастельные тона помогут несколько расширить пространства. Мебель и стены – бежевые, желтые, серые. Оттеняющими островками становятся несколько ковров, постеленных у каждой зоны.
- Зеркала. Высокие – от потолка до пола – максимально увеличат пространство в длину. Их располагают на шкафах-купе, перегородках, стеновых панелях. Несколько штук на противоположных стенах сделают то же самое и в ширину. Подвесной потолок, собранный из зеркальных реек, поднимет комнату в высоту.
Итак, время творить с пользой. Примеры превращения однушки в двушку черпают из сети или дизайнерских телевизионных передач. Иногда, собственное решение становится эксклюзивом, важно лишь соблюсти правила, описанные выше.



home-ideas.ru
Как практически сделать однушки полноценную двушку

Сегодня мы рассмотрим, как из простой «однушки» можно сделать просторную «двушку» для девушки, на примере работы дизайнера Ирины Лаврентьевой.

При выборе стиля Ирина отталкивалась от яркого комода зелёного цвета.
Заказчик и пожелания
Хозяйка квартиры – незамужняя девушка, которая следует моде и новым трендам, соответственно, чувствует цветовые сочетания.
Обязательное условие переделки – отдельная спальня и много места для одежды. Ещё одно пожелание клиентки – раскладной диван.
Перепланировка
Изначально маленькая кухня и комната наполовину разделялись перегородкой. Так как перегородки не несущие, их сломали и сделали просторную спальню и кухню, совмещённую с гостиной.

Свет и цвет
Освещение решили сделать стандартным. Потолочные светильники для спальни и гостиной приобретены в интернет-магазине Westwing. Для барной стойки выбрали Pressed Glass Tube – дизайн Тома Диксона. Настольные светильники – Zara Home.
Девушка обожает яркие цвета, и это помогло выделить её квартиру из монохромных интерьеров, которые часто встречаются в России.
Так как комод зелёный, взяли жёлтый диван. На него поместили подушки цвета фуксии. Такого же цвета поставили пуф в прихожую. Занавески выбрали чёрно-белого цветов.

Мебель
Основная мебель, шкаф, диван и прикроватная тумба, была куплена в IKEA. Однако чехол на диван сшили на заказ в мастерской.
Придиванные тумбы и барная стойка – также плод трудов частного мастера. Кровать в спальне – Dream Land. Пуф в прихожей из магазина «Этажерка».

Декор и текстиль
Декор в ванной был приобретён в интернет-магазине Westwing, для прихожей – в IKEA. Там же купили ковёр. Зеркала в гостиной куплены в магазине «Этажерка», покрывало на кровать – Zara Home. Оконный текстиль сделан на заказ вместе с чехлом на диван.
Стиль
Стиль получился яркий, творческий, неординарный. Техника, барная стойка, стулья, кубы, кухня с фартуком «кабанчик», яркая кровать – всё современное. Но, в то же время, присутствует классический диван и графичные орнаменты в виде ромбов на комоде, шторах и ковре. В спальне яркие обои и растительный рисунок.

Сложности
Сложность заключалась в выборе одного макета из 9 разработанных вариантов.
При разработке планировки необходимо учитывать всё до мельчайших подробностей: получится ли пронести в коридоре мебель, не заденет ли межкомнатная дверь за кровать, не будут ли упираться в неё створки шкафа. Всё это очень важно, поэтому стены выстраивались строго до сантиметра.
Сроки
Проект был разработан за месяц, стройка продолжалась около двух месяцев, обстановка интерьера – 8 месяцев.

interiorsmall.ru


Под срезом наши варианты. 

