Туалет для дачи — 110 фото современных вариантов постройки и установки
Туалет – помещение первой необходимости в любом месте, где есть люди. На даче, где нет проложенной канализации, он имеет специфический вид и конструкцию. Но это не значит, что современный дачный туалет не может быть удобной и функциональной постройкой, не вызывающей внутреннего содрогания у посетителя.

Имея минимальный опыт и соблюдая ряд санитарно-гигиенических требований, туалет можно соорудить самостоятельно. Давайте разберемся, как это сделать?

Оглавление статьи:
Выбор расположения
Как сделать туалет на даче? Первый и один из важнейших этапов строительства – грамотный выбор места. Помимо удобства пользования, оно должно соответствовать санитарным требованиям.

В случае использования конструкции с выгребной ямой учитывайте следующие моменты:
- Расстояние между туалетом и подвалом – 12 м;
- От бани – не менее 8 м;
- Минимум 25 м от ближайшего водоема (например, колодца). Грунтовые воды должны пролегать не выше 2,5 м под землей;
- От забора – метр;
- От деревьев – 4 м и от кустарников – метр.
Заметное влияние на окончательное решение оказывает роза ветров: выбирайте место так, чтобы неприятные запахи не доставляли неудобств в будущем. Все эти пункты необходимо соблюсти по отношению не только к вашему участку, но и к соседским.

Другие конструкции допускают более свободное расположение: основывайтесь только на собственное удобство.

Виды
Туалет с выгребной ямой не нуждается в дополнительных представлениях и знаком всем с детства. Глубина ямы составляет 1,5-2 метра. Попадающие в нее нечистоты скапливаются и разлагаются естественным образом.

Проблема переполненности раньше решалась переносом туалетного домика в другое место, сегодня для ее очистки используются ассенизаторские машины. Ее следует выполнять по заполнению ямы на 2/3.
Выгребная яма люфт-клозета герметична и вычищается ассенизаторской машиной. Такой туалет, соединенный с ямой трубой, может размещаться дома.

В пудр-клозете выгребную яму заменяет емкость меньшего объема, установленная под стульчаком. Она требует регулярной очистки, а ее содержимое может впоследствии использоваться как удобрение.

В остальное время избавиться от неприятных запахов помогает торф или опилки: после использования туалета нужно посыпать ими нечистоты. Эта разновидность туалета подойдет, если по санитарным соображениям невозможно выкопать выгребную яму.

В доме поставьте усовершенствованный пудр-клозет, он же торфяной туалет: для смыва нечистот в нем используется не вода, а сухой торф. Также не забудьте вывести на улицу вентиляцию.
Более привычный городскому жителю биотуалет не требует дополнительных усилий при установке, так как можно без проблем приобрести готовый вариант. Нечистоты в нем расщепляются специальными микроорганизмами.

Химический туалет схож с предыдущим принципом работы за одним исключением: вместо микроорганизмов используются химические реагенты. Внимание: переработанные таким образом фекалии не могут использоваться в качестве удобрения.

Строительство
Рассмотрим строительство классического варианта с выгребной ямой.

Примерные габариты ямы – 1,5х1,5х2 метра. Стены укрепляются кирпичом, бетонными кольцами или обработанными антисептиком досками. Выгребная яма люфт-клозета должна быть герметична, для чего выполняется стяжка или засыпка дна щебнем.
Сверху заливается бетонное перекрытие. Оно должно быть достаточно крепким, чтобы выдержать вес всего, что будет на нем размещаться. Оставьте отверстия для унитаза, вентиляции и откачки содержимого – последний пункт можно опустить, если перспектива время от времени возводить новый туалет вас не пугает.

Домик можно построить самостоятельно, но проще купить готовый вариант.

Решившись на изготовление своими руками, начните с постройки чертежа туалета или воспользуйтесь готовыми. Изучите фото туалетов для дачи, чтобы лучше понимать, как следует действовать.
Наиболее распространены деревянные конструкции, но ничто не мешает сделать надежный домик из кирпича. Учтите, что в этом случае необходимо позаботиться о надежном фундаменте вокруг ямы. Обычно используется ленточный или столбчатый. Между фундаментом и грунтом прокладывается слой гидроизоляции – рубероида.

Под деревянный каркас достаточно выложенных по периметру кирпичей. Дополнительно укрепят конструкцию столбы-опоры из бруса и бревен.

Стены обшейте вагонкой, шифером или металлопрофилем. Дополнительно утеплить их можно ватой или пенопластом.

Не обойтись без вентиляции. Труба диаметром 10 см должна на 15-20 см заходить в выгребную яму и возвышаться над крышей примерно на столько же.

Естественным источником света станет небольшое окошко под крышей. По желанию устанавливаются настенные светильники, подключенные к аккумулятору.

Крыша кроется профнастилом или металлочерепицей, также в ней предусматривается отверстие под вентиляционную трубу.

Дверь навешивается на петли и снабжается шпингалетом, крючком или другим механизмом.

Строительство пудр-клозета имеет нюанс: в задней части домика необходимо предусмотреть дверку, через которую можно вынимать емкость с нечистотами.

Надеемся, наша инструкция помогла вам разобраться, как построить туалет своими руками.

Фото туалета для дачи

































landshaftadvice.ru
Как сделать туалет на даче своими руками: чертежи, размеры » SanDizain.ru
Нередко первое, о чем задумывается человек после покупки участка: как сделать простой уличный туалет на даче своими руками и готовые чертежи здесь придутся кстати, как впрочем и подробное описание всех этапов строительства, советы и нюансы.
Одной из самых главных и жизненно необходимых построек на дачном или садовом участке является именно туалет. Потребность в нехитром сооружении возникает уже через несколько часов после приезда. И даже если у владельцев уже имеется санузел в уютном домике, уличные удобства никогда не будут лишними.
Туалет на дачном участке легко построить своими руками
Простота конструкции позволяет даже человеку без особого строительного опыта обустроить туалет для дачи своими руками. А если подключить фантазию, то домик для размышлений о
тлично впишется в дизайн участка и, возможно, даже станет его украшением.
Какой туалет построить: виды и особенности
Собственно здесь есть всего два варианта: с выгребной ямой или без нее.
- Туалет с выгребной ямой – простое, проверенное опытом и временем сооружение, которое состоит из оборудованной выгребной ямы и туалетного домика над ней. По мере заполнения нечистотами яму вычищают вручную или заказывают ассенизаторскую машину.
А бывает, просто переносят домик на другое место. Старую яму закапывают, а через лет 6-7 ее содержимое окончательно перегниет и можно снова ставить туалет обратно.
- Люфт-клозет – разновидность уличного туалета с ямой для нечистот, но с той разницей, что она должна быть герметична. Такой туалет приходится строить, если он расположен близко к дому, источнику воды или когда грунтовые воды залегают высоко.

Схема: как устроен люфт-клозет
- Туалет без выгребной ямы или пудр-клозет обустраивают, если грунтовые воды залегают очень высоко или если туалетом мало пользуются. В данном случае емкостью для сбора нечистот может быть все что угодно, кроме ямы (ведро, бочка, пластиковый бак). Нужный объем определяет интенсивность пользования санузлом.
После каждого похода в такой туалет нечистоты присыпают сухим торфом, иногда используют опилки или золу, поэтому в домике должен быть предусмотрен ящик для «маскирующей пудры». После заполнения, емкость извлекают вручную, а содержимое эвакуируют в компостную яму. Если нечистоты были пересыпаны торфом, то через время они становятся чудным удобрением.

Туалет без выгребной ямы (пудр-клозет)
Важно! Если грунтовые воды залегают ниже 2,5 метров, строить можно любой тип туалета, но если они расположены выше, то от выгребной ямы придется отказаться.
Где построить туалет
Для туалетов с выгребной ямой существует ряд санитарно-гигиенических норм и ограничений, от которых зависит их месторасположение на участке.
Минимальные расстояния от туалета до других объектов:
- До источников воды (колодцев, скважин, озер, рек) – 25 м;
- До домов, погребов – 12 м;
- До летнего душа или бани – 8 м;
- До ближайшего дерева – 4 м, а до кустарников – 1 м;
- До заборов – не менее 1 м.

Схема: правильное расположение туалета относительно других построек на дачном участке
Важно! Выбирая место строительства, стоит учитывать не только объекты, расположенные на собственном участке, а и те, которые находятся на соседнем.
Чтобы летние вечера на террасе не были испорчены амбре, место выбирают с учетом розы ветров. Если участок расположен под уклоном, туалет лучше ставить в самой низкой точке.
Строительство выгребной ямы
После выбора и подготовки участка, начинают выкапывать выгребную яму. Как правило, она квадратной формы, глубиной не менее 2 метров.
Выгребная яма бывает двух типов:
- Герметичная. Дно такой ямы бетонируют, перед заливкой армируют, а чтобы арматура не утонула в бетоне, ее кладут на колышки. Стенки также герметизируют, шпаклюют раствором или замазывают швы битумом.

Герметичная выгребная яма для туалета
- Поглощающая.Такую яму лучше копать до песка, тогда жидкая фракция нечистот будет быстрее уходить в грунт. Дно укрывают слоем крупного щебня или гальки.

Конструкция поглощающей выгребной ямы
Укрепить стены выгребной ямы можно несколькими способами:
- Кирпичная кладка;
- Бетонная конструкция;
- Готовые железобетонные кольца;
- Пластиковый бак.
Сверху яму накрывают, брусьями, шифером или бетонируют, оставляя открытым только участок под стульчаком, и приступают к сборке туалетного домика.
Строительство туалетного домика
Оптимальные размеры дачного туалета 1×1,5 м, высота – 2,2-2,5 м. В противном случае он будет просто неудобен, особенно для людей с крупными формами. Самостоятельно делать чертежи туалета необязательно, если нет особых требований и идей можно воспользоваться уже готовыми.
В первую очередь, схема удобна тем, что позволяет правильно рассчитать количество стройматериалов и предварительную стоимость дворового санузла.

Возведение туалета над выгребной ямой (схема правильного размещения)
Основа каркаса
Туалетный домик, рекомендуют выдвигать на 2/3 вперед над выгребной ямой, обеспечивая, таким образом, к ней доступ для чистки за задней стенкой сооружения.
Стойкость постройки может обеспечить неглубокий фундамент. Между ним и каркасом укладывают гидроизоляцию, 1-2 слоя рубероида. Но для легкой постройки из дерева он вовсе не обязателен. Основу достаточно установить на бетонные блоки.
Также можно поставить четыре опорных столба. Для этого, по углам будущей конструкции вырывают четыре ямы глубиной около 60 см, в мягких грунтах можно до 1 метра, и опускают в них асбестовые трубы. Яму на треть заполняют цементным раствором. После этого в трубу устанавливают опорную балку, а яму до конца заполняют бетоном.

Установка основания туалета на бетонные блоки
Сборка каркаса
Для сооружения каркаса достаточно будет брусьев сечением 50×50 или 80×80 мм, более габаритный материал брать нецелесообразно.
- Сначала собирают прямоугольную опору с перемычкой, от которой будет подниматься передняя стенка стульчака, и прикручивают ее к фундаменту или опорным стойкам. Поверх настилают доску. Толщина напольной доски должна быть не менее 3 см.

Возведение деревянного каркаса для туалета
- Из бруса собирают каркас передней, задней и боковых стенок. При этом передняя стенка должна быть выше задней не менее чем на 10 см, это обеспечит необходимый уклон крыши.
- Для большей прочности конструкции на боковых и задней стенках рекомендуют сделать диагональные укосины.
- На передней стенке обязательно делают укрепление для двери, соответствующего размера и оформляют отверстие под окно.
- Каркасы стенок закрепляют на основании металлическими уголками, сверху и на уровне стульчака делают обвязку.

Укрепление каркаса туалета металлическими уголками
- Следующим этапом будет сборка каркаса стульчака и его обшивка, если не предусмотрены альтернативные варианты, например, напольный унитаз.
Обшивка каркаса
Обшивают каркас деревянными досками. Вертикальное расположение позволяет значительно сэкономить материал, а горизонтальное имитирует сруб и смотрится интересней. Доски плотно подгоняют друг к другу и крепят к основе. Вместо дерева также используют листы профнастила, шифер или любой другой материал, соответствующий бюджету строительства.

Обшивка каркаса туалета
Совет! Все деревянные элементы конструкции желательно обработать специальной антибактериальной пропиткой, которая защитит материал от влаги и вредителей, а после покрывают лаком или краской
Крыша
Крыша не должна выступать за пределы стен более чем на 30 см. Монтаж начинают с закрепления параллельных досок на небольшом расстоянии. После этого снизу зашивают козырек, прикрепляют доски снаружи по периметру. На подготовленное основание укладывают слой гидроизоляции, обычно, это рубероид, после чего покрывают конструкцию любым кровельным материалом (шифер, металлопрофиль, битумная черепица).

Для туалета достаточно возведения простой плоской крыши
Дачники, которых стандартная схема домика не устраивает, могут подыскать чертежи более интересных вариантов, сделать его самостоятельно или приобрести готовые туалетные домики, они собираются по типу конструктора, а для удобства к ним обязательно прилагается инструкция и все сопутствующие чертежи.
Вытяжная вентиляция
Вытяжная вентиляция в дачном туалете – представляет собой трубу, которая отводит запахи из выгребной ямы. Нижний ее край заводят в яму, а верхний должен подниматься над крышей не менее чем на 20 см.

Обустройство вентиляции дачного туалета
Для обустройства вентиляции подойдет пластиковая труба диаметром 100 миллиметров. Ее притягивают к задней стенке с внутренней или наружной стороны строения и фиксируют железными хомутами. Чтобы усилить тягу на оголовок устанавливают насадку-дефлектор.
Установка двери для туалета
Двери устанавливают обычные деревянные, готовые пластиковые или самодельные, из того материала, которым обшивался каркас. Навешивают дверь на 2 петли. Способ закрытия в принципе может быть любой, традиционно это защелка, шпингалет или крючок, снаружи и внутри. От более хитрых замочных систем, например, с защелками, лучше отказаться, поскольку их механизм будет подвергаться влиянию влаги и быстро поржавеет.

Для установки двери достаточно двух петель
Освещение
Для более комфортной эксплуатации удобств лучше заблаговременно позаботиться об их освещении. Это может быть настенный фонарик, который работает от аккумулятора. Как вариант можно подвести электропроводку и подключить небольшой осветительный прибор.

Варианты освещения дачного туалета
А днем освещать внутреннее пространство будет небольшое окошко. Вырезают его, обычно, над дверьми или в верхней части двери, но вариантов на самом деле больше, от фигурных окон на стенах и до прозрачной крыши.
Совет! Выгребная яма прослужит дольше, если в нее не бросать туалетную бумагу и другие гигиенические или бытовые принадлежности, поэтому обязательно в туалете должно быть ведро. Если позволяют размеры, удобно здесь установить обычный умывальник с подвесным носиком, тем более, что вы гребная яма уже готова.
Пудр-клозет: особенности сооружения
Отсутствие выгребной ямы является основным отличием в строительстве. Но есть и некоторые различия в конструкции домика. Придется подумать о способе извлечения емкости, в которой собираются нечистоты.

Схема: устройство пудр-клозета
Дверцей, обычно, оборудуют заднюю стенку домика или переднюю стенку стульчака. Внутри кабинки устанавливают специальный ящик под торф (золу, опилки). Без вентиляции здесь так же не обойтись, только труба опускается не в яму, а непосредственно под стульчак.
Строительство туалета на даче: видео
Как построить дачный туалет своими руками: фото


sandizain.ru
100 фото, чертежи, схемы, инструкции
туалет для дачиХорошая идея. Без туалета на даче не обойтись. Если есть водопровод и канализация, почему бы не сделать нормальные удобства вместо тех самых, пресловутых, которые всегда «во дворе»? Это уже зависит исключительно от решения хозяев. Не обязательно прибегать к услугам профессиональных строителей, можно обойтись всего лишь советами специалистов.
Подвести воду и организовать канализацию, конечно, нужно уметь, но сделать это на даче всё-таки вполне возможно. Придется потратиться на коммуникации, да и процесс достаточно трудоёмкий, но результат того стоит. Строение, как видим, очень аккуратное внутри и снаружи, есть умывальник, зеркало, полотенце – комфорт и удобство прежде всего.
Классический дачный туалет своими руками
Конечно, отлично, если на вашей даче есть канализация, но чаще всего, это редкость, поэтому обычно строят деревянный классический дачный туалет с выгребной ямой. В общем, все зависит от условий и возможностей, но одно абсолютно ясно, без этой интересной постройки никуда. А так как туалет малая архитектурная форма, можете его сделать украшением своего участка. Все зависит от фантазии, но если таковая отсутствует, то построить мини-домик из брусков и досок над выгребной ямой сможет каждый, а дизайн, это уже вопрос второстепенный.
На этих пошаговых фото показано, как сделать классический дачный туалет. На картинках указаны все размеры, так что количество материала можно рассчитать. Кроме этого понадобятся шурупы для крепления фурнитуры и прочих деталей, пила, ножовка, стамеска – в общем, берите весь столярный набор. Постройку будку осуществляете, как показано на фото, в начале основание, каркас, затем обшивка, установка крыши и дверей.
Самое проблемная часть, выгребная яма, это дело не то, чтобы сложное, но трудоемкое. Ее глубина должна зависеть от того, как часто будут пользоваться заведением, но как минимум полтора метра, шириной метр на метр. На этой схеме показано, как это должно выглядеть.
Возможны и другие варианты, это зависит от многих факторов, начиная от плотности грунта и заканчивая местоположением вашего участка. Например, если есть возможность откачивать содержимое выгребной ямы ассенизаторской машиной, тогда днище и стенки делают герметичными и такого размера, чтобы достал шланг для откачки. Правда, зимой могут возникнуть проблемы, так что придется подумать про обогрев не только помещения, но и содержимого ямы.
Виды и конструкции туалетов и выгребных ям могут быть разные – пудр-клозеты, торфяные, биотуалеты, а если есть канализация, то все проще. Биотулеты, конечно, дорогое удовольствие, но вы можете сделать торфяной туалет, такая своеобразная альтернатива био варианту.
Такую штуку легко сделать своими руками, это обычный ящик из фанеры и досок. На пошаговых фото можете посмотреть, как его изготовить. Делается короб, в него ставят ведро с торфом, и по мере наполнения удаляете содержимое в компостную кучу. Вот такая нехитрая схема круговорота веществ в природе.
Туалет на даче из подручных материалов своими руками
Основная задача этого необходимого помещения, скрыть от посторонних глаз, эстетика, это дело второе, поэтому для постройки подойдут любые материалы. Этот туалет на даче сделан из подручных материалов, и выглядит, как видите неплохо. Пригодился старый кирпич, несколько уголков, шифер и вагонка. Порядок работы хорошо отображен в пошаговых фотографиях. Несколько деталей, здесь использована обычная старая дверь, просто обшита листом профнастила, седушка сделана из бетона, ну и на пол нужно будет немного керамической плитки.
Источник: www.da4a.info
Схемы оборудования дачных туалетов
Здесь представлены схемы и чертежи, возможно, пригодятся, если возникнет потребность в постройки соответствующего помещения.
Место для туалета
Важно выбрать правильное место для туалета, ведь всегда есть вероятность, что нечистоты попадут в грунтовые воды, что, как сами понимаете, чревато неприятностями не только вам, но и соседям. Если грунтовые воды залегают выше, чем 2,5 метра, то вообще запрещено обустраивать обычную выгребную яму, только биотуалет или другой вид туалета, где содержимое ямы не соприкасается с напрямую с грунтом. Плюс, следует учитывать и преимущественное направление потоков воздуха, по понятным причинам. На этой схеме показаны некоторые правила размещения, которые желательно соблюдать.
Дачные туалеты 50 фото
Какой вы выбираете дизайн домика, зависит от вашей фантазии. Туалет хоть и стараются спрятать на задней части участка, но все равно это часть архитектурного ансамбля, так что к оформлению можно подойти креативно. Хотя бы вот так. Настоящая средневековая карета, и не просто какой-то дилижанс, а со всеми королевскими атрибутами. В середине все тоже сделано добросовестно.
Источник фотографий godzilla.org.ua
Всегда можно придумать что-то оригинальное. Туалет, это не беседка, куда вы можете никогда и не заглянуть, сюда придете обязательно, поэтому стоить подумать и о комфорте и о внешнем оформлении. Если у вас еще нет своей идеи, посмотрите в этой галерее, может, выберите что-то интересное и для своей дачи.
novamett.ru
Дизайн туалета | Домфронт
Это помещение в народе как только не называют: и комнатой для размышлений, и уголком для медитаций, и тронным залом. Пусть это всего лишь санитарно-бытовой «закуток», однако он тоже должен быть красивым, стильным и уютным. Предаваться размышлениям в таком помещении будет куда приятнее. Однако самое главное требование к туалету — это не уют и красота, а удобство и комфортность. Как отделать, оформить и обустроить туалет в квартире? Что включает в себя грамотный дизайн туалета? Рассмотрим эти вопросы детально.
Дизайн туалета: подбор материалов
Лучшим материалом для отделки туалета была и остается керамическая плитка. Она идеальна и для стен, и для полов, и даже для облицовки конструкций, под которыми прячут коммуникации. Плитка не боится влаги и легко моется, а в туалете это очень важно.
Отделка стен туалета материалами, чувствительными к воздействию влаги, противоречит всем санитарно-гигиеническим требованиям. Оставьте обои для комнат, а для туалета приобретите те материалы, которые будут легко мыться, в том числе с применением дезинфицирующих средств. На крайний случай можно использовать влагостойкую краску. Однако керамика предпочтительнее.
Керамическая плитка хороша не только устойчивостью к влаге. Она еще и очень эстетична. Большой выбор плитки и декоров к ней дает множество вариантов для комбинации цветов, фактур и ритма. Можно сказать, что для пола в туалете иных вариантов, кроме плитки, нет. Для стен же возможны и другие решения.

Помимо плитки, для отделки туалета могут быть применены и пластиковые панели. Это гораздо более дешевый вариант. Панели тоже легко моются, но агрессивная чистка с применением различных моющих средств может негативно сказаться на их внешнем виде. Если есть цель отделать туалет с минимумом затрат, вариант с панелями может быть взят на вооружение.
Панели из МДФ или дерева могут быть использованы в дизайне туалета в классическом или кантри стиле, однако уборку придется проводить с большой осторожностью, поскольку материал чувствителен к влаге и моющим средствам. Данный вид отделки может быть рекомендован лишь для весьма просторных туалетов. Ведь чем меньше туалет — тем сильнее и быстрее загрязняются стены.

Вместо дерева или МДФ практичнее будет предпочесть плитку в соответствующем дизайне, то есть имитирующую фактуру дерева.
Другие варианты для стен туалета: облицовочный камень, «лицевой» кирпич, мозаика, галька на сетке, закаленное стекло.


Облицовочные камень и кирпич могут стать не самым удачным решением, поскольку их поверхность зачастую пористая, недостаточно гладкая. А это создает проблемы с мытьем. Сделав выбор в пользу такой облицовки, стоит подыскать материал с максимально ровной и гладкой поверхностью. После облицовки его нужно покрыть лаком.
Мозаику применяют обычно фрагментарно, для выделения зон. Галька — материал тоже акцентный. Его используют для декора поверхностей. Закаленное стекло применяют для создания своего рода «фартука», аналогичного тому, который присутствует в кухонных рабочих зонах. Стены в этом случае могут быть окрашены или оклеены обоями. Поверх отделки крепится стекло. Так оформляются стены до половины высоты — то есть стекло защищает те участки, которые подвергаются максимальному загрязнению.
Как видите, не плиткой единой формируется дизайн туалета.
Что касается потолка, то его тоже лучше сделать водостойким — это позволит периодически мыть его. Туалет — место влажное, а в таких зонах загрязнения с трудом поддаются сухой чистке. В туалете требуется влажная уборка! Такая возможность будет обеспечена, если отделать потолок пластиковыми панелями, алюминиевыми подвесными конструкциями или натяжным полотном ПВХ.
Дизайн туалета: цвет
Туалет в квартире отличается, как правило, компактностью. Поэтому здесь стоит руководствоваться старым добрым правилом, гласящим, что темные цвета визуально уменьшают помещение, а светлые — «распахивают». Таким образом, неразумно будет использовать для маленького туалета темные цвета в большом количестве. А в малом — можно. Если, например, вы хотите сделать туалет черно-белым, возьмите побольше белой плитки, а черную используйте в качестве акцентных фрагментов и вкраплений.


Точно так же и другие темные тона следует разбавлять светлыми. Так, коричневую плитку в туалете стоит скомбинировать с бежевой, темно-синюю — с белой, кремовой или голубой, темно-фиолетовую — со светло-сиреневой, бежевой, бледно-желтой или белой.

Уютным туалет сделают «жизнерадостные» оттенки спектральных цветов: оранжевый, желтый, светло-зеленый, голубой, бирюзовый, сиреневый и т.п.
Нежелательно отделывать туалет плиткой только одного цвета. Маленькое помещение с однообразной отделкой выглядит совершенно неуютно, плоско и безжизненно. И то, какой цвет был использован, роли не играет.

Интересно и уютно? Вряд ли
Чем меньше помещение — тем более важным является комбинирование цветов в его отделке.
Если туалет в квартире выглядит как узкий и длинный «туннель», хорошим решением станет деление стен по горизонтали. Примерно на одну треть или на половину высоты стена облицовывается плиткой одного цвета, а выше — другого.



Еще один вариант с аналогичным эффектом визуального снижения высоты и увеличения ширины: стены облицовываются плиткой одного цвета, но на некоторой высоте от пола вводится контрастная плитка или плиточный декор. Получается цветная полоса по периметру помещения. При этом полос-вставок может быть несколько — располагать их следует на разной высоте.


Такие полосы могут быть и вертикальными — это, наоборот, способно визуально приподнять потолок туалета.
Часто второй цвет вводят путем создания акцентного участка. Более сдержанной пастельной плиткой облицовываются почти все поверхности, но часть стены за унитазом или за раковиной отделывается плиткой более яркого цвета. Акцентный участок может быть выделен не только другим цветом, но и иным материалом: например, мозаикой или плиткой малого размера (а-ля кабанчик).

Цвета комбинируют и посредством использования разной отделки для пола и стен. Если туалет очень маленький, нежелательно, чтобы пол и стены полностью сливались — это сделает помещение не слишком уютным.
Дизайн туалета: расположение элементов, эргономика
В старых квартирках туалет с трудом вмещал даже унитаз, не говоря уже о чем-то другом. В квартирах улучшенной планировки туалеты попросторнее, а в новостройках — достаточно большие для того, чтобы разместить умывальник, биде и даже стиральную машину. Конечно, наличие некоторых элементов делает туалет удобнее. Например, возможность помыть руки, не выходя из туалета — это большой плюс. Далеко не всегда туалеты проектируются с раковиной, но ее можно монтировать самостоятельно.

Иногда для размещения раковины приходится передвинуть унитаз. Не стоит этого бояться. Унитаз почти всегда установлен у дальней стены ровно посередине. По бокам от него — два пустующих участка, которые толком не задействованы. Если унитаз сместить в сторону или даже расположить по диагонали — можно освободить достаточно места для монтажа раковины.

Раковина, расположенная прямо возле унитаза, может быть укомплектована гигиеническим душем, что тоже значительно повышает комфортность туалета. Сама раковина может быть совсем не большой — ведь этот элемент используется в основном лишь для мытья рук.

Кто-то переставляет унитаз перпендикулярно входу, считая этот вариант более удобным для себя. Кто-то сдвигает унитаз в угол, чтобы установить стиральную машину. Переставить унитаз — это не такая уж сложная задача. Поэтому, занимаясь дизайном туалета, не нужно зажимать себя в рамки привычной планировки. Если мыслить нелинейно и быть чуть смелее — можно найти оптимальное решение, которое позволит удачно оптимизировать пространство.
Если не хватает места для раковины, можно монтировать гигиенический душ и без нее. Подробнее о гигиеническом душе и способах его монтажа читайте в нашей статье.
В большом туалете можно поставить биде. Однако не все считают этот элемент таким уж необходимым. Стоит хорошо подумать и решить, целесообразна ли покупка биде, ведь гигиенический душ, по сути, полноценно его заменяет.
Эргономика. Согласно результатам исследований, оптимальное расстояние от унитаза до стены перед ним — 75 см. Минимальное — 50 см. Если расстояние меньше, пользоваться туалетом банально неудобно, особенно полным людям. От унитаза до боковых стенок должно быть не меньше 35 см. Слишком большое расстояние до ближайшей стены — это тоже неудобно (сложно дотянуться до держателя с туалетной бумагой).

Держатель для бумаги, согласно правилам эргономики, располагается примерно на 20-30 см впереди от края унитаза. Высота, на которую нужно монтировать держатель, должна составлять примерно 60-70 см от пола.

Дизайн туалета: секреты маскировки
В наше время принято скрывать от глаз всевозможные трубы, шланги и прочие коммуникации. Они явно не украшают интерьер ни кухни, ни ванной, ни туалета. В туалете трубы обычно «зашивают», создавая короб из гипсокартона или пластика. Необходимо оставлять доступ к содержимому короба. Для этого монтируют дверцу или люк. Эту деталь можно замаскировать, отделав ее тем же материалом, которым облицованы стены, или, наоборот, оставить заметной, если она не портит общую картину.




«Облагородить» этот технический люк позволит оформление его в виде фальш-окна, декоративных ставен или стенного панно.

Коммуникации и инсталляция для подвесного унитаза могут быть скрыты в конструкции, подобной предмету мебели, то есть небольшому шкафчику.


Над коробом, в который прячутся коммуникации, может образоваться пустое пространство. Полностью закрывать этот участок гипсокартоном жалко, ведь в этом случае немало ценных сантиметров уйдет в никуда. Поэтому здесь часто монтируют полочки. Они могут быть закрытыми или открытыми, подвесными или «стационарными», представляющими собой ниши.


Впрочем, это место может быть и чисто декоративным.

Дизайн туалета в квартире: добавляем удобства и красоты
Нужна ли мебель в туалете? Если позволяет пространство, почему бы и нет. Например, вместо маленькой раковины можно установить мойдодыр, то есть тумбу со встроенной или накладной раковиной. Это сделает туалет уютнее и удобнее. В нем появится дополнительное место хранения.
Можно сделать на заказ стеллаж или шкаф и поставить его за унитазом. Это выглядит так, словно унитаз встроен в предмет мебели. Удобно, если в квартире маловато места для хранения различных бытовых предметов.


Помимо прочего, в большом туалете можно поставить дополнительную тумбу или повесить шкафчик.

Конечно, дизайн мебели должен соответствовать общему стилю: в классический туалет подойдет деревянная мебель, в современный — пластиковая, стеклянная, металлическая.
В соответствующем дизайне должны быть исполнены и аксессуары для туалета. Например, сиденье для унитаза уже само по себе может задавать стиль. Деревянное — для туалета в классическом, ретро и кантри стиле. Акцентное (например, ярко-красное) или креативное — для современного интерьера туалета.


Держатели для бумаги, ершика и освежителя, мини-контейнер для мусора, рейлинг или крючок для полотенца — все это украшает туалет. Однако, помимо традиционных для туалета аксессуаров, можно использовать для декора и «домашние» элементы. Например, повесить на стену постер в красивой раме. Для любителей почитать в туалете можно поставить стильную газетницу с журналами. Полочки в туалете стоит украсить цветами, ароматическими диффузорами, свечами.

Визуально расширить туалет поможет настенное зеркало. Его можно просто повесить над раковиной или превратить в отделочный элемент, «встроив» в плиточную отделку.
Смотрите ещё:
Стеклоблоки в интерьере
Дизайн белой ванной комнаты
Керамическая плитка или керамогранит: что лучше
Дизайн коридора
Эргономика ванной комнаты и туалета
www.domfront.ru
Как сделать туалет для дачи своими руками: чертежи, фото, пошаговая инструкция
Чтобы обеспечить комфортное пребывание на загородном участке, нужно в первую очередь построить туалет, для возможности справлять естественные потребности. Поскольку система канализации, это редкость на наших дачных массивах, то туалет придётся делать с выгребной ямой. Поэтому, очень важно правильно выбрать расположение туалета, чтобы избежать неприятного запаха и проблем с соседями. Кроме этого, из-за суровой зимы, желательно сделать дачный туалет утеплённым.
Где расположить туалет? Как правильно сделать выгребную яму? Какие материалы использовать при строительстве? И наконец, как построить туалеты разных типов? Всё это вы сможете узнать, прочитав нашу статью.
Расположение туалета на участке
В первую очередь нужно узнать, – насколько близко к поверхности вашего участка находятся грунтовые воды. Если грунтовые воды находятся ближе чем 2,5 метра к поверхности, то по санитарным нормам, выгребную яму делать нельзя. Спасти положение в такой ситуации, поможет пластиковая ёмкость для нечистот, расположенная на небольшой глубине.
Во вторых не располагайте туалет в низинах, это может привести к быстрому заполнению выгребной ямы во время сильного дождя, или в период таяния снега.
В третьих учитывайте фактор запаха, как бы хорошо не был изолирован туалет, неприятные испарения всё равно будут просачиваться из выгребной ямы и портить воздух в округе. По этой причине, лучше всего расположить туалет вдали от жилья и мест отдыха.
В четвёртых выгребная яма любого туалета нуждается в очистке, поэтому при выборе места для туалета, продумайте возможность беспрепятственного подъезда к нему ассенизаторской техники.
Ассенизаторская машина
Изготовление выгребной ямы
Выгребные ямы могут изготавливаться из монолитного бетона, кирпича, пластиковых ёмкостей и бетонных колец. Использование для постройки выгребной ямы баков из металла, не рекомендуется, поскольку со временем, стенки железного бака подвергнутся коррозии и нечистоты начнут загрязнять почву.
Выгребная яма из монолитного бетона
Для изготовления вам понадобятся:
- Цемент.
- Песок.
- Мелкий щебень.
- Арматура.
- Жидкое стекло.
- Проволока для вязки арматуры.
- Опалубка.
- Бетономешалка или емкость для изготовления раствора и лопаты.
Выгребная яма из монолитного бетона
Правильный порядок работ для изготовления выгребной ямы из бетона, заключается в следующих действиях:
- Выройте котлован.
- Утрамбуйте дно котлована и засыпьте его песком.
- Установите прутья арматуры на дно и свяжите их проволокой.
- Изготовьте цементный раствор и залейте им дно котлована слоем 15-20 сантиметров.
- После высыхания цементного раствора, установите на стенки котлована, предварительно изготовленную арматурную решётку.
- После связывания арматуры, установите по периметру стенок котлована – опалубку. Устанавливая опалубку, учитывайте тот факт, что бетонные стенки ямы должны быть выше уровня грунта 10-20 сантиметров, это позволит избежать попадания дождевой или талой воды в яму.
- Залейте опалубку цементным раствором.
- Когда раствор полностью высохнет, снимите опалубку.
- Для дополнительной герметизации ямы, обработайте стенки и дно, жидким стеклом или битумной мастикой.
Выгребная яма из кирпича
Для ямы из кирпича понадобятся:
- Качественный кирпич.
- Цемент.
- Песок.
- Арматура.
- Битумная мастика.
Выгребная яма из кирпича
Чтобы изготовить выгребную яму из кирпича:
- Выройте котлован.
- Также как и в варианте с монолитным бетоном, произведите заливку и армирование дна ямы.
- Произведите кладку кирпича по периметру стенок ямы.
- После высыхания цементного раствора в кладке, произведите штукатурку стен ямы.
- Обработайте стены битумной мастикой.
Выгребная яма из бетонных колец
Выбрав вариант выгребной ямы из железобетонных колец, учтите, что для их перемещения вам понадобится специальная техника. Яма делается следующим образом:
- Выройте котлован круглой формы, размер котлована должен позволять свободно помещать в него бетонные кольца.
- С помощью крана установите в котлован кольца. Следите за тем, чтобы бетонные кольца вставали ровно, без перекосов и щелей.
- Заделайте зазоры между кольцами цементным раствором.
- Засыпьте грунтом пространство между стенками котлована и кольцами.
- Залейте дно котлована цементным раствором, для повышения прочности дна, можете предварительно провести армирование.
- Обработайте швы между кольцами жидким стеклом или битумной мастикой.
Выгребная яма из бетонных колецВыгребная яма из пластиковой емкости
Данный вариант выгребной ямы самый лёгкий в производстве, но требующий затрат на приобретение вместительной пластиковой ёмкости. Форма ёмкости должна позволять свободно откачивать из неё нечистоты.
Для установки пластикового бака вырывается яма. После помещения емкости в котлован пространство между стенками бака и котлована засыпается грунтом.
Выгребная яма из пластиковой ёмкости
Следует отметить, что все перечисленные варианты выгребных ям, можно делать без герметичного дна, только с фильтрующим слоем из щебня или песка. Этот способ устройства выгребной ямы позволяет снизить скорость накопления нечистот, за счёт ухода жидкости непосредственно в почву. Но не герметичные выгребные ямы, запрещены санитарными нормами.
Также при строительстве выгребной ямы не забывайте об отдушине для выхода горючих газов, образующихся при разложении органических веществ и при их значительном скоплении, создающих условия для возгорания.
Варианты туалета для дачи
Туалет из кирпича
Кирпичный туалет гораздо тяжелее по весу, чем деревянный, поэтому его лучше всего строить над выгребной ямой из монолитного бетона и использовать стенки ямы в качестве фундамента.
Туалет из красного кирпича
Этап первый – заливка основания
- Изготовьте опалубку с основным отверстием для поступления нечистот, расположенным по центру и дополнительным для отвода газов, расположенным за стенами туалета.
- Установите опалубку в выгребную яму и закрепите её на нескольких прутьях арматуры.
- Сделайте решётку из прутьев арматуры связанных проволокой и установите её на опалубку.
- Залейте опалубку цементным раствором, толщина слоя должна быть не менее 15 сантиметров.
Основание для кирпичного туалетаЭтап второй – кладка стен
- Произведите кладку первых рядов кирпичей. Во избежание перекосов и неровной кладки используйте уровень и отвес.
- Постепенно увеличивайте число кирпичных рядов, постоянно сверяясь с отвесом и уровнем, особенно это замечание касается, дверного проёма.
- Дойдя до конца дверного проёма, установите перемычку из железных уголков.
- Для устройства односкатной крыши, фронтальную стенку туалета следует делать выше задней на 20-30 сантиметров. Боковые стены делают с косым переходом – от фронтальной к задней стенке.
Кирпичная кладкаЭтап третий – изготовление крыши и установка двери
- Установите на стены продольные балки из брусков сечением 150х50 миллиметров.
- Набейте на балки поперечные рейки сечением 50х20 миллиметров.
- Прибейте к получившейся обрешётке лист шифера, металлочерепицы или профнастила.
- Установите дверную коробку, закрепив её на анкерные болты.
- Повесьте дверное полотно на навесы и установите ручки с замком.
Этап четвёртый – отделка стен, пола и потолка
Отделывать стены и потолок в туалете можно разными материалами. Вешние стены лучше всего отделать материалом, который использовался для отделки других строений на даче. Это позволит сохранить общий стиль участка. Для внутренней отделки, можно использовать панели ПВХ, штукатурку или деревянные рейки. Используя варианты с ПВХ панелями и рейками, у вас появится возможность дополнительного утепления стен и потолка туалета минеральной ватой или пенопластовыми панелями. Для отделки пола в туалете укладывают плитку или просто настилают линолеум.
Обшивка рейкамиЭтап пятый – обустройство туалета
Для более удобного пользования туалетом, на центральное отверстие устанавливают специальные унитазы, у которых отсутствует канализационное «колено». Чтобы не испытывать затруднений в зимний период, желательно провести в туалет отопление. Для полного комфорта, проведите в туалет электричество и сделайте освещение как внутри, так и снаружи.
Унитаз без “колена”
Инструкция в фотографиях по строительству кирпичного туалета, также доступна в ролике:
Деревянный туалет
Преимущество деревянного туалета перед кирпичным в том, что его можно изготовить отдельно от выгребной ямы. Также благодаря лёгкому весу, деревянный туалет можно устанавливать над любым видом выгребной ямы.
Туалет – «скворечник»
Это самый бюджетный вариант деревянного туалета. Туалет «скворечник» позволяет сэкономить финансовые затраты на своё строительство, но это сильно сказывается на его комфорте. Поэтому, данный тип туалета в основном используется как временное решение и при последующем обустройстве участка, заменяется на более основательные конструкции.
Ниже приведены чертежи, по которым вы сможете построить туалет своими руками:

Порядок выполнения работ при изготовлении туалета:
- Сверяясь с чертежом, изготовьте каркас.
- Нарежьте рейки для обшивки каркаса (размеры указаны в таблице).
- Обшейте каркас пол и крышу рейками.
- Изготовьте дверь и повесьте её на петли.
- Закройте крышу рубероидом или другим кровельным материалом.
- Установите туалет на выгребную яму.
- Обработайте каркас и рейки олифой, после этого, покрасьте туалет краской.
Туалет “скворечник”
Подробную инструкцию по изготовлению туалета – «скворечник», в можете посмотреть в ролике:
Туалет – «домик»
«Домик» – более комфортный и прочный вариант деревянного туалета, по сравнению со «скворечником». Для постройки туалета – «домик», требуется больше времени и затрат на стройматериалы, но это себя оправдывает более комфортной эксплуатацией. Ознакомьтесь с чертежами туалета:


Порядок выполнения работ почти такой же, как и при изготовлении туалета «скворечник», главное сверяйтесь чаще с чертежами.
Туалет “домик”
Туалет с душем
Объединение двух бытовых построек в одну, позволяет сэкономить место на дачном участке и сократить расходы на их строительство. Правда такое соседство будет иметь и свой минус, выраженный в виде неприятного запаха во время приёма душа. Поэтому душевую кабинку следует делать более изолированной, без щелей и зазоров.
Данный тип постройки состоит из двух кабин, объединённых под одной крышей и имеющих общую стену. Кабина – предназначенная под туалет, должна быть над выгребной ямой, а кабина для душа, должна иметь слив для воды. Ниже представлены примерные параметры туалета с душем:
Туалет с душем, можно изготовить из: кирпича, шлакоблоков, деревянных реек или досок.
Давайте рассмотрим вариант строительства из дерева. Для работы нам потребуются:
- Четыре бруса длиной по 2,75 метра и четыре бруса по 2 метра, сечением 10х10 сантиметров.
- Брусья сечением 5х10 сантиметров и длиной по 2 метра в количестве 24 штуки.
- Деревянные доски для обрешётки, сечением 1х10 сантиметров.
- Брусья сечением 5х10 сантиметров, длиной по 2 метра, в количестве 12 шт.
- Для пола в туалете, доски сечением 4х15 сантиметров в количестве 20 штук.
- Пластиковые трубы и слив.
- Цементный раствор в количестве полутора куба.
- Фанерные листы для опалубки.
- Песок и гравий, или щебень.
- Металлочерепица или другой кровельный материал.
Каркас туалета с душем
Как изготовить выгребную яму, написано выше, поэтому перейдем сразу к изготовлению каркаса:
- Сделайте нижнюю обвязку, используя бруски сечением 10х10 сантиметров.
- Для возведения каркасных стен, установите по углам брусья сечением 5х10 сантиметров. Для соединения их с нижней обвязкой используйте металлические пластины и уголки. Проверьте правильность положения брусьев с помощью уровня.
- Установите два бруска в каркасе для крепления будущей двери.
- Сделайте верхнюю обвязку, соединив с вертикальными опорами бруски сечением 10х10 сантиметров.
- На верхней обвязке установите три стойки с коньковой доской.
- Сделайте стропила для двускатной крыши с шагом 60 сантиметров, используя доски сечением 1х4 сантиметра.
- Изготовьте обрешётку из обрезных досок.
- Накройте крышу металлочерепицей.
- Перейдите к установке пола кабинке для туалета. Изготовьте каркас для постамента и обшейте его и пол доской толщиной 2 сантиметра.
- Обшейте стены туалета досками.
- Установите пенопластовые панели в каркас и заполните щели монтажной пеной.
- Произведите обшивку внутренних стен.
- Сделайте пол в душе из цементного раствора. Заливая пол, делайте уклон для слива воды.
- Поверх бетонного пола установите чистовой пол из досок.
- Обшейте стены досками и установите пенопластовые панели также как и в туалете.
- Установите двери в проёмы.
- Подведите трубу с водой и установите душ. Если на даче нет водопровода, то установите на крыше кабинки душа бак для нагрева воды на солнце.
- Проведите к кабинкам электричество и сделайте освещение.
Туалет с душем
Как изготовить туалет с душем на трубчатом фундаменте в можете узнать посмотрев видео:
Необычные варианты дачных туалетов
Туалет для дачи можно изготовить практически из любого материала и придать ему самый необычный дизайн. Ниже мы приведём вам фотографии необычных дачных туалетов:
- Туалет из брёвен. Изготовлен по старой технологии, способом укладки брёвен с подходящим диаметром, друг на друга.
Плюсы: красивый дизайн, прочность, долговечность.
Минусы: большой вес, слабая пожарная безопасность, насекомые-вредители. - Туалет из профилированного листа. Бюджетный вариант дачного туалета.
Плюсы: низкая стоимость.
Минусы: ужасный дизайн, ужасная жара внутри летом и сильный холод зимой. - Туалет – карета. Самый необычный дачный туалет на сегодняшний день.
Плюсы: красивый дизайн, оригинальность.
Минусы: сложность изготовления, отсутствие выгребной ямы (исправимо). - Туалет – мельница. Туалет из досок стилизованный под мельницу.
Плюсы: недорогая цена, необычный дизайн.
Минусы: дешёвый вид, слабая пожарная безопасность. - Каменный туалет. Оригинальный туалет из камня.
Плюсы: красивый дизайн, прочность, долговечность, пожарная безопасность.
Минусы: высокая цена, трудность изготовления. - Туалет из соломы. Очень оригинальное использование соломы.
Плюсы: красивый дизайн, экологическая безопасность.
Минусы: недолговечность, очень слабая пожарная безопасность.






Изготовление дачного туалета – непростое дело, требующее хотя бы минимальных навыков в строительстве, поэтому если вы не уверены что справитесь, обратитесь лучше к специалистам. Если же вы считайте, что сможете сделать туалет своими руками, то смело приступайте к работе!
remboo.ru
Туалет для дачи без запаха и откачки

Каждый дачник желает обеспечить на своем участке максимально комфортные условия пребывания. Одним из главных условий является наличие туалета. Поэтому это сооружение можно считать главным и его, как правило, строят самым первым на пустом садовом участке.
Самый простой вариант – это обычная яма с установленной сверху кабинкой, но такой типичный деревянный туалет обладает двумя существенными недостатками: сильный запах и необходимость периодической чистки туалета.
Поэтому сегодня мы попробуем обсудить, как сделать туалет для дачи без запаха и откачки нечистот.
Уличный туалет для дачи
Обычный клозет

Типичный дачный туалет с выгребной ямой
Стандартный деревенский туалет с выгребной ямой не может исключить неприятные запахи и требует периодической очистки, либо перестановки в новое место. Но при правильном обустройстве можно свести эти негативные факторы к минимуму.
- Во-первых, желательно сделать яму побольше. Многие копают яму глубиной до 2 метров и даже больше. 🙂 Это заметно оттягивает момент, когда необходима очистка ямы. Некоторые туалеты с большой ямой при сезонном проживании на даче и тем более при наездах только по выходным без большого количества людей работают аж до 20 лет! А чтобы яма не обсыпалась, некоторые дачники ставят туда бетонные кольца.
- Во-вторых, яма должна располагаться как бы сзади туалета. То есть кабинку ставят не прямо по центру ямы, а как бы перед ней с небольшим заходом. Сиденье с отверстием при этом расположено в задней части туалетной кабинки.
- И в-третьих, обязательно нужно делать хорошую вытяжку из ямы. При наличии постоянной тяги в трубе вытяжки, запаха в кабинке не будет за счет правильной вентиляции туалета. Труба вытяжки расположена за кабинкой и идет от верхней части ямы до уровня выше кабинки примерно на полметра. Воздух вытягивается через вытяжку, а поступает в яму через отверстие в туалете. При этом в кабинке все время чистый приточный воздух с улицы, и запаха почти нет.
Сейчас часто продают готовые туалеты для дачи — деревянные кабинки. Которые нужно только установить на яму и туалет готов к эксплуатации. Сама установка туалета не требует особых знаний и умений. Главное поставить кабинку ровно и надежно ее закрепить.
Пудр-клозет

Самодельный пудр-клозет для дачи
Это уличный туалет на даче без выгребной ямы.Работает по аналогии с торфяным биотуалетом.
Под сидушкой располагают емкость для отходов (обычно ведро), а после испражнения посыпают отходы опилками, золой, торфом или тырсой из специального контейнера с помощью совка.
Саму емкость с отходами периодически выносят и используют как удобрение.
Пластиковый таулет для дачи

Стандартный переносной пластиковый туалет
Такой вариант часто используется в различных уличных кафе и на разных мероприятиях с массовым скоплением людей на открытом воздухе. Представляет собой пластиковую кабину с емкость для отходов, куда залита специальная емкость с химреагентами для переработки и обеззараживания нечистот.
Требует периодической чистки. Существуют фирмы, которые занимаются заменой таких кабинок.
Этот вариант имеет право на жизнь в пределах дачного участка, но не пользуется большой популярностью.
Туалет внутри дома
Ведро-туалет

Пластиковое ведро-туалет
Пожалуй – это самый простой вариант туалета на даче. Отличается от обычного детского горшка наличием полноценной сидушки с крышкой.
Внутрь желательно ставить одноразовый пакет, который нужно потом выбрасывать. Но многие этого не делают и просто моют ведро-туалет. Пакет должен быть прочным и не протекать.
Такое ведро часто применяется как ночной туалет. Днем используется уличный клозет, а ночью выходить на улицу лень и холодно, и в дом заносится такое ведро. Пользуется популярностью у старшего поколения дачников.
Биотуалет на основе микроорганизмов

Биотуалет-ведро
Это ведро-туалет 2.0 :), то есть более совершенный агрегат, который не издает неприятного запаха. Также может использоваться внутри помещения. Периодически требует засыпки специальной биомассы с бактериями, которые перерабатывают отходы. А специальная съемная емкость позволяет выливать уже переработанные отходы в огород в качестве удобрения.
Торфяной биотуалет

Торфяной туалет для дачи
Одна из разновидностей биотуалета, где отходы посыпаются торфом из специального бака. Поэтому запаха почти нет. Эту разновидность туалета по-другому называют еще финский туалет.
К туалету желательно подключить вентиляцию.
Принцип работы торфяного туалета такой: отходы посыпаются торфом, затем жидкие отходы сливаются в специальную емкость, либо в сливную яму, а твердые отходы с торфом периодически нужно выносить и использовать как удобрение.Финские торфяные туалеты в последнее время пользуются большой популярностью у дачников. Самые популярные модели: Экоматик (Ekomatic), Питеко (Piteco), Биолан (Biolan).
Переносной туалет на основе химреагентов

Переносной туалет
Еще один вариант ведра-туалета. Но в этом случае отходы перерабатывает специальная смесь химических реагентов, которая засыпается внутрь. Также как и биотуалет с бактериями не имеет плохого запаха, но в отличии от него в данном случае нельзя выливать переработанные отходы на грядки, так как они не безвредны.
Электрический биотуалет

Электрический биотуалет
Внешне похож на переносной биотуалет, но в отличии от него не мобилен и требует подключения к инженерным системам.Принцип работы заключается в том, что твердые отходы отделяются от жидких, высушиваются и перемещаются в спецконтейнер.
Жидкая компонента сливается в канализацию (достаточно подземной сливной ямы без полноценного септика).
Кроме того требуется подключение вентиляции для устранения запаха.
По своей сути является почти обычным унитазом, но используется в тех случаях, когда нет возможности обустройства полноценной канализации.
Полноценный санузел

Дачный санузел в доме
Пожалуй, это самый лучший вариант для дачного дома, но и самый дорогой.Он требует отдельного помещения в доме и инженерных коммуникаций. В санузле ставится унитаз, к которому подводится водоснабжение. Слив с унитаза делается либо в сливную яму, либо в септик.
- Сливная яма будет требовать периодической откачки отходов с помощью ассенизаторской машины.
- Септик не требует откачки, либо требует ее намного реже, так как в нем отходы перерабатываются в нескольких емкостях.
Кроме сложности обустройства отдельного санузла следует еще помнить, что дом с санузлом требует отопления в зимний период, иначе при минусовой температуре можно разморозить водоснабжение и унитаз.
В крайнем случае возможен слив всей системы на зиму и заполнение унитаза незамерзающей жидкостью.
Но все сложности компенсируются удобством использования, поэтому этот вариант все чаще стал встречаться на дачах даже в небольших домиках.
Теплый туалет на даче
Многие дачники все чаще и чаще ездят на дачу зимой. Это обусловлено тем, что дачные дороги стали чаще чистить зимой, и доступность участка улучшилась. Не малую роль в этом принадлежит тем, кто выбрал для себя круглогодичное проживание на даче. Не редко можно видеть на даче полноценные жилые дома.

Уличный туалет с подогревом
Зимой холодно, и встает вопрос, как обустроить теплый туалет на даче.
Если туалет внутри дома, то вопрос решен сам собой — в санузле будет тепло.
А как быть с уличным туалетом? Но этот вопрос тоже решаемый.
- Во-первых, зимний туалет на даче можно утеплить. Например используйте экструдированный пенополистирол (пеноплекс). Он недорогой, хорошо держит тепло и не боится влаги. В утепленном туалете температура всегда выше, чем на улице. Да и элементарная защита от ветра уже создаст более комфортные условия в уличном туалете зимой.
- Во-вторых, можно подогревать туалет. Да-да, не смейтесь. Многие так и делают. В уличном туалете ставится любой источник тепла. Это может быть и электрический обогреватель и обогреватель на каком-либо топливе. В результате в кабинке становится тепло и уютно долгими зимними вечерами. 🙂
Какой вариант выбрать?
Что следует учитывать при выборе того или иного варианта? Следует учитывать следующие факторы:
Объем отходов
Попробуйте прикинуть, как часто вы будете пользоваться туалетом? Сколько человек будет посещать уборную? От этого очень сильно зависит объем отходов, а соответственно и способ их утилизации. Это, пожалуй, главный фактор влияющий на выбор туалета.
Глубина залегания грунтовых вод
При высоком уровне грунтовых вод туалеты с выгребной ямой, а в некоторых случаях и септики исключены.
Проверяйте уровень грунтовых вод весной.
Финансы
Какую сумму вы готовы потратить на обустройство туалета? Есть варианты от самых дешевых до супердорогих септиков. Все зависит от вашего кошелька и пожеланий.
Утилизация отходов
Любые туалеты требуют утилизации отходов рано или поздно. Продумайте все это заранее, выбирая тот или иной вариант туалета. Вы должны понимать как очистить ваш вариант туалета, насколько это сложно и дорого.
Коммуникации
Оцените есть ли необходимость и возможность подвести к туалету коммуникации. От этого тоже зависит выбор. В некоторых случаях подведение коммуникаций просто исключено, что сразу отбрасывает многие варианты.
ogurzov.ru
Дачный туалет своими руками. Как сделать туалет на даче — инструкция

Даже если дача представляет собой просто голый участок земли без единой постройки, все равно не обойтись без главного – туалета. Потребность в этой незамысловатой постройке возникает уже спустя несколько часов пребывания на дачном участке. Не смотря на то, что мы все представляем, как должен выглядеть туалет и что необходимо делать, все же не стоит торопиться. В первую очередь следует изучить участок, чтобы понять, какой вид дачного туалета можно построить в конкретном случае, ведь их существует несколько. Затем необходимо определиться, где именно можно поставить туалет, соблюдая при этом санитарные правила и нормы. И только после этого можно приступать к непосредственно строительству. В том, чтобы сделать дачный туалет своими руками, нет ничего сложного. Тем не менее, изготавливать коробку туалета не обязательно самостоятельно. Современный рынок может предложить готовые туалетные домики на любой вкус. В данной статье мы разберем инструкцию, как сделать туалет своими руками, начиная с выбора вида туалета и заканчивая изготовлением домика.
- Какой туалет на даче можно обустроить – виды и особенности
- Где можно разместить дачный туалет – правила и рекомендации
- Туалет на даче своими руками – инструкция строительства пудр-клозета
- Как построить туалет на даче с выгребной ямой
- Дачный туалет люфт-клозет и его особенности
Какой туалет на даче можно обустроить – виды и особенности
На обустроенной даче, где есть дом и фактически можно жить, желательно иметь два туалета – один в доме, а второй на улице. Туалет в доме удобно использовать ночью или в непогоду, когда идет дождь. Все же в доме и теплее и комфортнее. Уличный туалет для дачи необходим для того, чтобы использовать его днем после огородно-садовых работ на участке и не нести грязь с улицы в дом.
Всего существует несколько видов туалетов, которые можно использовать на даче:
- Уличный туалет с выгребной ямой.
- Пудр-клозет.
- Люфт-клозет.
- Биотуалет.
- Химический туалет.
- Торфяной туалет для дачи.
На выбор туалета влияет такой показатель, как уровень залегания грунтовых вод. Если вода находится далеко (глубже 2,5 м) и никогда не поднимается выше этой отметки даже в сезон дождей или весенних паводков, то можно использовать любой из предложенных вариантов туалета. Если же уровень грунтовых вод высокий, вода находится близко от поверхности, то обустраивать туалет с выгребной ямой нельзя.

Уличный туалет с выгребной ямой – старая добрая проверенная временем конструкция. Она представляет собой выгребную яму глубиной до 1,5 м, сверху которой стоит туалетный домик. Нечистоты в яме накапливаются и постепенно разлагаются. Если интенсивность использования такого туалета велика, то заполнение ямы происходит стремительно, нечистоты не успевают ферментироваться. Раньше такую проблему решали просто – снимали туалетный домик, закапывали старую яму, а в другом месте выкапывали новую и ставили сверху туалет. Сейчас же предпочитают чистить выгребные ямы либо с помощью ассенизаторской машины, либо вручную.

Пудр-клозет – вариант туалета для местности, где близко находится вода. В его конструкции вовсе нет выгребной ямы. Вместо нее используется емкость (ведро, бочка, ящик), которая устанавливается сразу под стульчаком. Чтобы нечистоты не слишком напоминали о себе неприятным запахом, после каждого похода в туалет их посыпают сухим торфом, опилками или золой. Сам процесс напоминает припудривание, от чего и произошло название данного вида туалетов «пудр-клозет». После заполнения емкость достается и опорожняется в компостную яму, кучу или другое место. Со временем нечистоты, пересыпанные торфом, превратятся в чудное удобрение.

Люфт-клозет – туалет с герметичной выгребной ямой, которую очищают с помощью ассенизаторской машины. Обычно люфт-клозеты обустраивают непосредственно в доме рядом с наружной стеной дома. Выгребная яма находится снаружи, нечистоты в нее поступают по трубе. Сама яма имеет уклон в сторону от дома для удобства очистки.
Биотуалет – привычная для городских жителей кабинка с емкостью, в которую заливают активные микроорганизмы для переработки нечистот. Наверное, самый простой способ обустройства туалета на даче, так как строить ничего не нужно – можно купить готовый биотуалет любых размеров, как уличный, так и домашний.
Химический туалет отличается от биотуалета только средством переработки нечистот. Здесь используются химические реагенты, поэтому содержимое контейнера после переработки нельзя использовать в качестве удобрения на огороде, в отличие от биотуалета.

Торфяной туалет – это домашний вариант пудр-клозета. По сути пудр-клозет тоже является торфяным туалетом, ведь в нем торф используется для припудривания фекалий. Домашний торфяной туалет – модернизированное достижение цивилизации. Он очень похож на обычный унитаз, только в бачке для воды вместо воды – сухой торф, а вместо труб канализации емкость для нечистот.

Такой туалет можно смело устанавливать внутри дома. Для устранения неприятного запаха в его конструкции предусмотрена вентиляция, которую необходимо вывести на улицу.
Выбор туалета для дачи полностью зависит от ваших личных предпочтений и от условий, которые диктуют правила СанПина.
Где можно разместить дачный туалет – правила и рекомендации
На размещение уличного туалета существуют определенные ограничения. В первую очередь они касаются тех туалетов, в которых нечистоты могут контактировать с грунтом и грунтовыми водами.
- От туалета до источника воды должно быть не менее 25 м. Будь то колодец, скважина, озеро, ручей или другой водный объект. Если дачный участок располагается под некоторым уклоном, то туалет необходимо устанавливать ниже источника забора воды. Это исключит попадание стоков в питьевую воду.
Важно! Обратите внимание, что учитывать следует не только свой источник воды, но и ближайших соседей.
- От туалета до дома и погреба или подвала должно быть минимум 12 м.
- От летнего душа или бани, сауны не менее 8 м.
- Расстояние от постройки для содержания животных до туалета должно быть 4 м.
- От стволов деревьев – 4 м, от кустарников – 1 м.
- От забора до туалета должно быть не менее 1 м.
- Также обязательно учитывается роза ветров при выборе места и расположения уличного туалета, чтобы не досаждать ни себе, ни соседям неприятным амбре.
- Дверь в туалет не должна открываться в сторону соседей.
- Если грунтовые воды ниже 2,5 м, то можно обустраивать любой уличный туалет. Если выше 2,5 м, то туалет с выгребной ямой делать нельзя, только пудр-клозет или люфт-клозет, а также можно ставить биотуалеты. Такие конструкции безопасны в том плане, что нечистоты не могут попасть в грунтовые воды и загрязнить их.
Учтите, что при выборе места для туалета необходимо ориентироваться на объекты не только на своем участке, но и на соседском. Это касается и деревьев, и сараев, и дома, и всего остального. Для туалетов типа пудр-клозет и люфт-клозет перечисленные выше ограничения не действуют, так как в них нечистоты не контактируют с грунтом. Единственное, что придется учесть при их размещении, это розу ветров и удобство использования.
Туалет на даче своими руками – инструкция строительства пудр-клозета
Обустроить дачный туалет собственноручно не так уж и сложно, достаточно обладать начальными плотницкими навыками, инженерным мышлением и запастись помощью друга. Рассмотрим пример строительства туалета на даче по типу пудр-клозет. Как мы уже писали, его особенность в том, что под туалетом нет выгребной ямы. И это значительно облегчает задачу. Во-первых, такой туалет можно располагать рядом с жилым домом. Во-вторых, сама технология строительства несколько легче, не придется рыть котлован. В-третьих, исключено загрязнение грунтовых вод.
Чертеж дачного туалета
Строительство туалета необходимо начать с чертежа, чтобы все элементы и детали имели соответствующие размеры, а не на глазок. В связи с тем, что в пудр-клозете нет выгребной ямы, на чертеже будет представлена только конструкция туалетного домика.
Схематично пудр-клозет можно представить так:

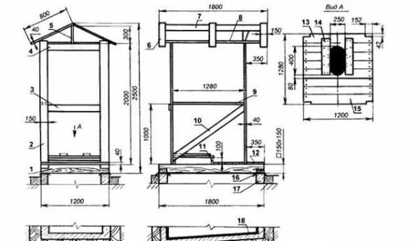
Размеры туалета подбираются так, чтобы им было удобно пользоваться. Например, самый распространенный размер: ширина 1,5 м, глубина 1 м, высота 2,2 м. Размеры могут быть увеличены, если того требуют габариты хозяев. Материал изготовления туалета может быть разным: самые распространенные деревянные туалеты, но можно обшивать стены металлопрофилем, шифером или другим материалом, а также возводить стены из кирпича.
Туалет дачный деревянный – чертеж в разрезе.
Пример 1.


Пример 2.

Вы можете воспользоваться готовым чертежом, а можете составить свой. Главное – соблюдение размеров при строительстве.
Фундамент и опора для туалета

Дачный туалет – это строение, которое не требует тяжелого фундамента. В некоторых источниках Вы можете встретить предложение заливать под туалет ленточный фундамент. На самом деле это лишнее, особенно, если туалет деревянный. Опору для туалетного домика можно сделать двумя способами: первый – закопать столбы-опоры, второй выложить по периметру кирпичи или бетонные блоки.
В качестве столбов-опор можно использовать как деревянный брус или бревно, так и бетонные столбики. Последние более устойчивы к агрессивной среде и прослужат дольше.
- Первым делом размечаем участок. Крайне важно точно определить углы строения.
- Берем 4 асбестоцементные трубы диаметром от 150 мм и обмазываем их снаружи битумной мастикой.
- В углах туалетного домика выкапывает скважины и заглубляем трубы на глубину 50 – 70 см. Глубина заложения труб может быть и больше, это зависит от структуры грунта. Можно сделать 90 см или 1 м.
- На высоту 1/3 трубы их необходимо залить бетонным раствором. Старательно уплотняем бетон, чтобы удалить пузырьки воздуха.
- Внутрь труб вставляем деревянные или бетонные столбы-опоры. Чтобы закрепить их, добавляем бетонный раствор.
Столбы-опоры в данном случае могут выступать и вертикальной частью каркаса, т.е. их необходимо выгнать на высоту 2,3 м от земли. Также необходимо постоянно проверять, чтобы расположение столбов было ровным относительно углов.
Бывают случаи, когда в качестве опоры достаточно закрепить бетонные блоки или кирпичи, на которые затем будет установлен каркас. В таком случае необходимо снять верхний слой грунта на глубину 20 – 30 см и плотно утрамбовать основание. Для большей надежности на дно можно засыпать слой песка. Сверху устанавливаются бетонные блоки, кирпичи или бетонные бордюры.
Изготавливаем каркас уличного туалета

Каркас дачного туалета можно изготовить из деревянного бруса 50х50 мм или 80х80 мм. Более толстый и массивный брус 100х100 мм и больше брать не обязательно. Также можно использовать металлические уголки.

Каркас должен представлять собой конструкцию:
- 4-е несущие вертикальные опоры.
- Обвязка крыши туалета. Продольные брусья для крыши должна выступать за пределы корпуса туалета на 30 – 40 см. Спереди навес будет служить козырьком, а сзади – для отвода дождевой воды подальше от туалета.
- Обвязка или стяжка на уровне будущего стульчака. Обычно брусья обвязки стульчака крепятся в распор к несущим вертикальным опорам. Высота расположения стульчака должна быть удобной – 40 см от пола туалета.
- Диагональные укосины для прочности конструкции на задней и боковых стенках туалета.
- Каркас для крепления двери. Две вертикальные опоры на высоту до 1,9 м и горизонтальная перемычка сверху на этой же высоте.
Обязательно высчитайте высоту стульчака, так как слишком высокое сидение будет неудобным, особенно если среди хозяев есть низкорослые люди. Обозначьте, на каком уровне будет чистовой пол в туалете, и отложите от него 38 – 40 см вверх. Учтите, что сверху обвязки будет еще обшивка толщиной 20 – 25 мм.
Обшиваем корпус туалета, делаем крышу
Дальнейшее строительство дачного туалета заключается в том, чтобы обшить каркас. Так как деревянные туалеты пользуются неизменной популярностью за счет своей самобытной красоты, удобства и комфорта, то стены дачного туалета можно обшить деревянными досками.

Деревянные доски толщиной 15 – 25 мм прибивают к каркасу, плотно подгоняя их друг к другу. Располагать доски необходимо вертикально. Так как крыша будет располагаться с уклоном к задней стенке, то верхнюю часть досок обшивки придется аккуратно срезать под углом.
Вместо дерева можно использовать листы профнастила, шифера или другого материала. С ними намного легче работать, так как потребуется всего три листа для задней и двух боковых стенок. Но в таком туалете значительно менее комфортно находиться, чем в деревянном. А все потому, что не происходит естественный влажностный и воздушный обмен через стены.
На задней стенке туалета необходимо сделать дверцу, через которую можно будет вынимать емкость с нечистотами. Обычно ее делают на всю ширину задней стенки на высоту 40 см (до высоты стульчака). Закрепляется такая дверца на петлях. Выполнить ее можно из тех же деревянных досок.
Крышу дачного туалета обычно кроют тем же материалом, что и все постройки на участке, чтобы строения не выбивались из композиции. Можно использовать листы профнастила или металлочерепицу. В крыше необходимо выполнить отверстие для вентиляционной трубы, которое затем следует тщательно герметизировать.
Если Вы хотите сделать крышу туалета деревянной, то ее обязательно следует покрыть рубероидом или другим рулонным материалом, чтобы дерево не намокало.
Навешиваем дверь
Дверь для дачного туалета обычно делают деревянной. Дверь навешиваем на петлях. Количество петель 2 или 3 зависит от тяжести и массивности двери. Чем тяжелее дверь, тем больше должно быть петель. Механизм закрывания двери в туалет каждый делает, как ему больше нравится: защелка, крючок, шпингалет или деревянная задвижка. Внутри туалета также необходимо установить защелку.
Над дверью следует сделать окошко, через которое сможет проникать естественное освещение. Обычно его делают как можно ближе к крыше, чтобы внутрь не попадала вода во время дождя. Окошко можно застеклить, тогда будет не страшен ни дождь, ни насекомые, которые часто залетают через такие оконца. Как выглядит дачный деревянный туалет, можно увидеть на фото.
Дачный туалет: фото – примеры



Обустраиваем стульчак в туалете
Сиденье или стульчак в дачном туалете выполняют из деревянных досок, вагонки или влагостойкой фанеры. Лучше использовать чистое дерево без добавок, поэтому фанеру исключаем. Каркас будущего стульчака был сделан еще на этапе обустройства каркаса, поэтому сейчас достаточно аккуратно обшить его деревянными досками и окрасить. Посередине вырезаем отверстие, через которое будем справлять нужду. Обязательно проверьте, на какой глубине от начала стульчака следует сделать отверстие, чтобы им было удобно пользоваться.

Под стульчак устанавливаем емкость для нечистот объемом от 20 до 40 л. Кстати, крышку стульчака можно сделать откидывающуюся на петлях, а можно стационарную.
На стене в удобном месте навешиваем емкость для торфа. Внизу ставим ведро для туалетной бумаги. Внутри туалета можно установить умывальник, если это позволяют габариты строения. Тогда под умывальником устанавливаем ведро для помоев.
Как построить туалет на даче с выгребной ямой

Строительство туалета с выгребной ямой несколько сложнее, так как придется обустроить яму для отходов. Туалетный домик для данного вида туалетов ничем не отличается, поэтому мы его затрагивать не будем. Обозначим только, как сделать коммуникации. На схеме представлено, как должна располагаться выгребная яма относительно туалетного домика. Исходя из этого, выполняем разметку участка и приступаем к земляным работам.

- Копаем выгребную яму с уклоном в сторону задней стенки туалета глубиной 1,5 м.
- Дно и стены ямы утрамбовываем глиной слоем 15 – 25 см. Некоторые вместо глины делают стены ямы из дерева, кирпича или бетона. Если грунтовые воды находятся на достаточной глубине, то делать стены выгребной ямы полностью герметичными не обязательно. Достаточно глиняного замка.
- Основание под туалет сбиваем из деревянного бруса 100х100 мм. Также можно использовать тротуарный бордюр или бетонные блоки, уложив их на землю. Если использовать деревянный брус, то его необходимо обработать антисептиком.
- Над выгребной ямой обустраиваем настил из досок. Сначала сбиваем каркас из брусьев. Делаем между ними такое расстояние, чтобы было удобно очищать яму. Учтите, что настил делается за пределами туалетного домика, под домиком остается свободное пространство достаточного размера, чтобы нечистоты попадали в яму.
- Настил необходимо обить снизу рубероидом или другим рулонным материалом.
- За туалетом устанавливаем люк, представляющий собой откидную крышку на петлях. Люк будет использоваться при очистке ямы. Деревянный люк обрабатываем антисептиком.
- Прокладываем вентиляционную трубу из ямы. Устанавливаем ее рядом с задней стенкой туалета, выводим на 70 – 100 см выше крыши туалета. Для этих целей можно использовать обычную канализационную трубу. Сверху на трубу закрепляем козырек, чтобы внутрь не попадала вода и мусор. Закрепляем трубу к задней стенке хомутами. Нижний край вентиляционной трубы должен располагаться на 15 – 20 см ниже уровня пола туалета.
- Сверху устанавливается туалетный домик.
- Вокруг туалета с выгребной ямой необходимо обязательно делать отмостку и отведение дождевой воды, чтобы она не затопила яму с нечистотами.
Если в дальнейшем планируется очищать выгребную яму с помощью ассенизаторской машины, то туалет необходимо так располагать на участке, чтобы машина могла подъехать на достаточное расстояние. Помните, рукав такой машины всего 7 м.
Дачный туалет люфт-клозет и его особенности

Чаще всего дачный туалет типа люфт-клозет устанавливается рядом с жилым домом или внутри дома. Сточная яма располагается снаружи строения, за его стенами. Туалет такого типа можно строить только там, где есть возможность обогревать сточную яму в зимний период. Если же пользоваться туалетом зимой не будут, то перед концом сезона выгребную яму необходимо полностью очистить.
Основное отличие люфт-клозета от других видов туалетов в том, что выгребная яма в нем выполняется полностью герметичной и регулярно очищается с помощью ассенизаторской машины. Вот несколько отличий в строительстве люфт-клозета:
- Герметичная яма, чтобы нечистоты не впитывались в грунт. Можно заливать яму из бетона, выполнять ее из кирпича и оштукатуривать, а можно использовать готовые пластиковые емкости – кессоны.
- Из выгребной ямы обязательно должна идти вентиляционная труба. Проводить ее необходимо через дымоход печи или камина. В свою очередь из дымохода должна идти труба в яму, через которую будет поступать теплый воздух. Это необходимо, чтобы яма не замерзала. Материал вытяжной трубы – асбестоцементная или керамическая.
- Если в доме нет обычной печи или камина, а только газовое отопление, то обогрев выгребной ямы необходимо осуществить с помощью маломощного электронагревателя.
- Над ямой делается крышка/люк. Чтобы крышка не промерзала, ее делают двойной: верхняя – металлическая или чугунная, а нижняя – деревянная. Между крышками укладываем теплоизоляционный материал.
- Уклон ямы должен быть в сторону от дома для удобства ее очистки.
В последнее время все большей популярностью пользуются торфяные туалеты для дачи. Их удобство в том, что их можно смело располагать в доме в любом помещении. Торфяные туалеты легко чистятся, практически не издают запаха, с ними может совладать даже хрупкая женщина или пожилой человек. Также подобные туалеты можно делать на улице, тот же пудр-клозет – всего лишь предшественник современного торфяного туалета.
strport.ru


Туалет на даче из подручных материалов своими руками