Сталинки. Описание и типовые планировки
Первые многоквартирные дома, построенные по типовым проектам. Квартиры в сталинских кирпичных домах имеют большие площади помещений, поэтому их можно отнести к жилью повышенной комфортности…
«Сталинки» — общее название домов, сооружавшихся в СССР с конца 1930-х до конца 1950-х годов, особенно во время правления И. В. Сталина.
Первые многоквартирные дома, построенные по типовым проектам. Квартиры в сталинских кирпичных домах имеют большие площади помещений, поэтому их можно отнести к жилью повышенной комфортности. Действуют СНиП 1954 года.
Как правило, сталинская квартира имеет значительное число комнат — обычно три-четыре, реже две или больше четырех. Однокомнатные сталинки строились ограниченно. Комнаты могут быть как раздельными, так и совмещенными (в трехкомнатных сталинках обычно совмещены две комнаты).
По конструкции зданий и планировке квартир сталинки делятся на два типа: «номенклатурные» и «рядовые» сталинские дома.
| типовые характеристики квартир | ||||
|
общая площадь: |
помещения: |
|||
Серии и планировки |
||||
| СЕРИЯ 1-255 | ||||
| 2-, 3-этажные кирпичные дома | 1955-1960 г.г. | |||
на площадке 3 квартиры |
общая характеристика квартир |
|||
| площадь кухни: 6 — 9 кв.м санитарный узел: раздельный высота потолков: 3 м дополнительно: балконы, встроенные шкафы |
||||
| 1-комнатные | ||||
| 2-комнатные | ![]() |
|||
| 3-комнатные | ![]() |
|||
| СЕРИЯ 1-411 | ||||
| 4-, 5-этажные кирпичные дома | 1955-1960 г.г. | |||
| на площадке 4 квартиры |
общая характеристика квартир |
|||
| площадь кухни: 7 — 8 кв.м санитарный узел: раздельный и совмещенный высота потолков: 3 м дополнительно: балконы, встроенные шкафы |
||||
| 1-комнатные | ||||
| 2-комнатные | ||||
| 3-комнатные | ![]() |
|||
| СЕРИЯ 1-433 | ||||
| 4-этажные кирпичные дома | 1954-1961 г.г. | |||
на площадке 2 или 3 квартиры |
общая характеристика квартир |
|||
| площадь кухни: 8.3-11.5 кв.м санитарный узел: раздельный и совмещенный высота потолков: 3 м дополнительно : балконы, встроенные шкафы, кладовые |
||||
| 1-комнатные | ||||
| 2-комнатные | ![]() |
|||
| 3-комнатные | ![]() |
|||
вернуться к таблице типовых планировок квартир
Дизайн квартиры в сталинке | Фото красивых интерьеров

Дизайн интерьера в этой квартире-«сталинке» может стать прототипом к изменениям в таких типичных домах. Дизайнеры Марина Пенние и Роман Воронов из бюро Marina Pennie design&art стали разработчиками данного проекта и превратили бывшую коммуналку в уютное семейное гнездышко. Большим плюсом стало то, что один из дизайнеров, Роман Воронов, разрабатывает мебель по индивидуальным проектам.
Необходимо заметить, что до ремонта квартира была в плачевном состоянии. В ней требовало замены буквально все, от пола до потолка, включая коммуникации. Новые хозяева знали, какой результат работы дизайнерской бригады они ожидают: 3 комнаты оборудованные шкафами для хранения одежды и рабочими уголками для взрослых и детей.
Кухню решено было объединить с гостиной – это значительно увеличило площадь и дало возможность проявить творческий потенциал. Хозяева не хотели терять ни одного квадратного метра и потребовали от профессионалов грамотной организации пространства.
За основу оформления были взяты спокойные цвета с яркими вкраплениями. Так стены и пол выполнены в классической палитре, а вот мебель стала акцентным пятном в дизайне интерьера. Одна стена сделана из кирпича, что само по себе является оригинальным украшением.
Отдельные гардеробные были обустроены в детской и взрослой спальнях. Рабочий уголок для взрослых удачно замаскировали под шкаф в гостиной, а в детской комнате он занял место подоконника.
Мебель ярких цветов задает нужное настроение, настраивает на позитив. Фиолетовые стулья на кухне, мягкий диван цвета морской волны в гостиной, и лимонное кресло в детской комнате являются теми самыми сочными, колоритными пятнами, которые задают нужный тон современному дизайну интерьера.
Несмотря на озорные вкрапления, в целом дизайн интерьера квартиры достаточно сдержанный. Все предметы интерьера подобраны таким образом, чтобы уравновешивать обстановку. Биокамин стал прекрасным функциональным предметом интерьера, который дает особую строгую ноту в дизайн интерьера гостиной комнаты.
Аксессуары в спальне, светильники и зеркало, стали основными необычными предметами. Они акцентируют на себе внимание в этой комнате.
Ванная комната оформлена в традиционной цветовой гамме – белом и синем. Морская тематика – это классика для санпомещения, она отлично подходит для ванной комнаты.
В результате проведенной работы получился нескучный дизайн интерьера, с необычными элементами, подчеркивающими индивидуальность вкуса хозяев квартиры.










© interiorizm.com — при копировании
материалов активная ссылка на сайт обязательна!
♦ Рубрика: Дизайнерские интерьеры, Квартиры.♥ Метки: дизайн квартиры > интерьер квартиры

interiorizm.com
Ремонт квартиры в «сталинском» доме от А до Я. Часть1: Техзадание и демонтаж | Фото дизайнов интерьера 2017
Часть 1 | Часть 2 | Часть 3 | Часть 4
Поскольку на форуме и в социальных сетях нас все чаще спрашивают о дизайн-проектах и том, как делается перепланировка в типовых домах, мы открываем новую серию статей, посвященных этой интереснейшей и непростой теме.
А начнем мы с истории преображения квартиры, в которой процессом ремонта руководила сама Ольга Кондратова.
Трехкомнатная квартира с видом на Москву-реку
10 января 2013 г. наши заказчики получили ключи от трехкомнатной квартиры площадью 93 кв. м. Вид из окон открывается замечательный: на Москву-реку и шесть сталинских высоток. Если приглядеться, можно рассмотреть Шуховскую башню, колокольню Ивана Великого и даже Кремль. Это прекрасно не только с точки зрения эстетики: расположение дома у водоема крайне важно, ведь с точки зрения Фэн-шуй вода несет в себе позитивную энергетику.

На фото: Вид из окна, безусловно, одно из преимуществ квартиры на Гончарной
Сам дом и квартира, расположенная в нем, достаточно сложны для перепланировки и ремонта, ввиду своего возраста и различных обстоятельств, поэтому предстояло провести ряд преобразований и улучшений. В квартире вытянутый большой коридор, 3 комнаты, кухня с газовой колонкой, ванная комната и санузел, два балкона.


Плюсы планировки: отсутствие несущих стен, потолки под 3,5 м, западная-юго-западная сторона, в плане прямоугольник с расположенными в один ряд окнами (кроме выхода на второй балкон), присутствие пяти окон (важно при создании нескольких спален).
Техническое задание
В квартире будут жить постоянно двое взрослых, девочка 12 лет, и годовалый малыш. Периодически приезжают в гости. Соответственно, в квартире должны расположиться кухня-гостиная, хозяйская спальня с санузлом, две детских, ванная комната и просторные гардеробные, чем больше — тем лучше.
Если Вы посмотрите на планировку и фотографии купленной квартиры, сразу можно сказать, что необходимых помещений в ней не хватает и квартира требует капитального ремонта ввиду своей изношенности. Т.к. квартира находится в высотном доме 1938 года, начали с обследования профессионалами.

Демонтаж и экспертиза помещения
Ремонт был начат с основ: обследовали деревянные конструкции перекрытий снизу и сверху. Особое внимание уделили местам прохождения коммуникаций, влажным помещениям и опорам балок на стены. Проверка включала пробы на грибок, визуальную целостность и величину прогиба перекрытия. Сделали исполнительную схему расположения и сечения балок.
Пока проходило обследование и согласование, произвели демонтаж перегородок и существующих покрытий пола. Данные работы заняли 20 дней.



На фото: Демонтаж и экспертиза жилой площади необходима для того, чтобы оценить состояние помещения и понять, как действовать дальше
Когда снесли практически все перегородки, открылось много неприятных подробностей:
- Короб с вентиляционными шахтами закрыт полуразвалившимися стенками. В итоге решили демонтировать развалившиеся стенки и поставить металлические (пластиковые) трубы с шумоизоляцией.
- Газовая вентиляция и потолок бывшей кухни занижен на 30 см от ригеля.
- В санузле под потолком открылись канализационные трубы соседей сверху.


На фото: Демонтаж пола — трудоемкое занятие перед выбором конструкции и расчетами
Со стен сняли старую штукатурку, которой было по 3-5 см. Т.к. дом старый, долго решали, как сделать конструкцию пола, которая выдержит нагрузку и будет держать перегородки. Когда получили от конструктора расчеты экспертизы и расчеты прогиба балок, утвердили вариант будущего покрытия. Кладем на бетон керамзит, затем пенопласт, потом армируем (засверливаемся в стены и крепимся к металлическому ригелю), заливаем стяжку, кладем фанеру и паркет.
Предстоит сделать еще очень многое! Будем вместе следить за работой дизайнера Ольги Кондратовой.
Часть 1 | Часть 2 | Часть 3 | Часть 4
www.ok-interiordesign.ru
Планировка квартир сталинского дома — ✪ Капитальный Ремонт Сталинки ✪ Интерьер
Строить сталинские дома начали с 1935 года и примерно до 1960 г. За эти года было застроено ок 60 млн.м.кв жилья из которого ок 1млн.м.кв приходилось на «сталинки». Темпы строительства были ниже чем в Царской России в 2 раза (скачать отчет-1, отчет-2, отчет-3). Тем не менее, строили качественно (при отсутствии домостроительной промышленности, которая набрала обороты лишь при Хрущеве). В среднем на человека приходилось 6м.кв жилплощади, а в военное время 4м.кв. Это и стало причиной постройки домов улучшенной «сталинской» планировки. По датам возведения сталинские дома разделяют на до- и послевоенные. Реально серийные дома строились в 1950-1960х годах изначально 2-уровня комфорта — элитные (для партработников) и обычные (для пролетариата).
Довоенные сталинки строились амнистированными заключенными и наемными строителями, послевоенные — часто военнопленными немцами. Отсутствие специальной техники во многом решило архитектурный облик зданий и планировку сталинских домов. Ранние сталинки — обычно 2, 3х этажные (часто с полуподвалом, без балкона, вход с улицы, окна частично ниже земли). Основные материалы — дерево, кирпич (изредка ракушечник), камень, цементный состав с глиной, штукатурка — песчано-известняковая смесь. Перекрытия довоенных сталинок — деревянные, чердак, стропила также деревянные, кровля железная (или шифер). Цокольного этажа не имели, часто без подвала — дом стоял на земле с ленточным фундаментом. Лаги и ригеля перекрытий массивные, но не позволяли строить многоэтажные здания. Именно поэтому первые сталинские дома спланированы на пару-тройку подъездов по 2-3 квартиры на этаже. Количество соседей в сталинках небольшое, что делает их привлекательными в нынешнее время. Строительство сталинок этого периода трудно назвать серийным. Планировка квартир для пролетариата не предусматривала ванной комнаты и горячей воды (дома не газифицированы в то время), обогревались сталинки дровяными печками и каминами. Но имелся небольшой сарайчик на улице для разного хлама. В планировку домов не входил мусоропровод и лифт из-за низкой этажности, уборная в коммуналках была одна на несколько квартир. Сталинские дома были спланированы хорошо только в одном — квартир в доме немного, они просторные и большие. 1-комнатные квартиры использовались в планировке дома редко. Преобладали сталинки планировкой 2-х, 3-х комнатные с небольшими кухнями и просторными комнатами, нередко смежными, потолки выше 3м. Фасады довоенных сталинских домов получили изысканные барельефы и пышную лепнину в стиле ар-деко. Эти сталинки рассчитаны на срок службы 125 лет, которая закончится примерно в 2050-2070 г.
В середине 1930-х в архитектуре произошёл плавный переход от конструктивизма к новому типу. После войны, СССР начал восстанавливать разрушенные города (в 4ю пятилетку). Эту массовую застройку можно считать первым серийным строительством сталинских домов с типовыми планировками. Не смотря на коммунистический подход, сталинские дома делились на элитные (номенклатурные) и рядовые. Был также отдельный вид сталинок т.н.«немецкие» двухэтажные с более качественной «сборкой». При застройке сталинками планировались зоны отдыха, транспортная развязка, сеть магазинов, сервисов в социалистическом понимании. В сталинских домах появляются планировки 3- и 4-х комнатных квартир, а в послевоенное время «коридорные» общежития. Площадь рядовых квартир меньше, чем в номенклатурных сталинках (но больше пришедших позже хрущёвок), планировка предусматривала смежные комнаты. Строительные материалы расширились железобетоном, шлакоблоком, появились технические средства для реализации сталинских многоэтажек новых планировок — 4-х,5-ти и реже 6 этажных зданий, приняты строительные нормы для сталинок — СНиП 1954 г (скачать). На этаже планировалось 3-4 квартиры, лестничные клетки стали просторными, марши — широкими, бельэтаж помпезным. По прежнему в планировке сталинки преобладали просторные помещения с большими окнами и широкими массивными дверями которые сохранились и до сегодняшних дней.
Некоторые примеры (неноменклатурных, послевоенных) типовых планировок серийных сталинских домов и квартир (картинки кликабельны)
|
серия 1-255 2-х, 3-х этажный кирпичный
|
1-комнатная
|
|||
|
2-комнатная
|
2-комнатная
|
2-комнатная
|
2-комнатная
|
|
|
3-комнатная
|
3-комнатная
|
3-комнатная
|
||
|
серия 1-411 4-х, 5-ти этажный кирпичный
|
1-комнатная
|
1-комнатная
|
||
|
2-комнатная
|
2-комнатная
|
2-комнатная
|
2-комнатная
|
|
|
3-комнатная
|
3-комнатная
|
3-комнатная
|
||
|
серия 1-433 4-х этажный кирпичный
|
1-комнатная
|
1-комнатная
|
||
|
2-комнатная
|
2-комнатная
|
2-комнатная
|
||
|
3-комнатная
|
3-комнатная
|
3-комнатная
|
||
Планировка сталинок становилась «тиражированной», но достаточно практичной — площадь квартир уменьшалась, стандартной комплектацией сталинок стали раздельные санузлы и ванная комната. Обычные «сталинки» получали рабочие (в коммунальное заселение) поскромнее. Эти сталинки строились в городах недалеко от заводов. Проекты сталинских домов копировались, и появлялись однотипные жилые массивы серийных планировок. Номенклатурные сталинские дома для начальства значимо отличались квартирами улучшенных планировок — крупногабаритные, 3-х,4-х комнатные с богатой внутренней отделкой и изящным лепным декором фасадов. Коммуникации номенклатурных сталинок также были высшего класса — центральное отопление, газовые плиты, горячая вода, канализация, холодильник, мусоропровод, охрана, элитные соседи в центре. Такие дома имели крупные подвалы — бомбоубежища, на первых этажах могли размещаться магазины. Перекрытия — ригеля из очень прочного (и по нынешним меркам) армированного бетона, полы — деревянный паркет (иногда комбинированные), межкомнатные перегородки — шлакоблоки. Реже номенклатурные сталинки планировались с лоджиями или балконами с колоннами, высота потолков превышала 3м. Элитные сталинки имеют большой запас износоустойчивости и рассчитаны на срок службы 150 лет, которая истечет в 2090-2110 г.
Строительство сталинских домов очевидно пошло на спад после 1956 г, когда промышленность обрела силы на новый рывок — индустриальную серийную стройку доступного жилья со планировкой квартир поскромнее. Последние сталинки достраивались до средины 1960-х, с более скромным декором фасадов и применением дешевых материалов, но со сталинской шикарной планировкой и площадью. Эпоха сталинского ампира закончилась постановлением ЦК КПСС в 1955 г. «Об устранении излишеств в проектировании и строительстве» (скачать).
Стиль сталинских домов и построек соединил в себе элементы барокко, наполеоновского ампира, позднего классицизма и ар-деко; сочетает роскошь, величественность и монументализм. Квартиры пользуются спросом на рынке недвижимости из-за достаточно высокого уровня комфорта, большей площади, удобной планировки и удачного расположения сталинских домов в инфраструктуре города.
xn--80aaxidnyi.com.ua
Дизайнеры сделали из сталинки «квартиру путешественника» и рассказали о нюансах ремонта
Дизайнерская студия Sweet home — семейный проект Елены и Ильи Ерашевич. Работают они с разными квартирами. Сталинки попадаются нечасто, но запоминаются своей атмосферой, спецификой работы. «Помню, снял штукатурку со стены — и каждый кирпичик перебрал руками: что-то выковыривал, что-то замазывал раствором, чтобы все выглядело аккуратно и в то же время брутально. Очень кропотливая работа!» — вспоминает Илья свою работу в квартире, которую они с Еленой переделывали для весьма интересного клиента.
Как это было и с какими трудностями сталкиваются дизайнеры, когда делают ремонты в «сталинках», — читайте в материале REALTY.TUT.BY.
Фото: Егор Пясковский / obstanovka.byСамое дорогое в сталинке — демонтаж и подготовка к ремонту
Работа в студии Sweet Home распределена так: Елена работает над дизайном, создает атмосферу и комфорт, а Илья занимается ремонтно-отделочными работами. В тандеме они работали и над сталинкой в районе площади Победы.
Заказчик — человек, увлеченный путешествиями, живописью, фотографией, хотел жилье в стиле лофт.
— Чтобы понять, какой именно дизайн нужен конкретному человеку, нужно с ним много общаться, — уверена Елена. — У меня нет цели делать интерьер для глянца, ради публикации в журнале, важнее, чтобы человек чувствовал себя самим собой в своей квартире. Красота и комфорт ведь живут в деталях. Итогом наших разговоров с заказчиком стало дизайнерское решение, где соединились несколько стилей.
Ремонт начинали с того, что все ломали.
— Согласитесь, мало кто захочет жить в типовой квартире с длинным коридором, маленькой кухней и крошечным санузлом, — рассказывает Илья. — Так что пришлось делать перепланировку, после чего на всю квартиру остались только две колонны, которые держат плиты (перекрытия тут железобетонные). Зато получилось 70 «квадратов» студии, где, по сути, отталкиваясь от архитектурных норм, могли строить, что хотим.
Чтобы так оптимистично заниматься перепланировкой, сначала нужно было заказать архитектурный проект, пройти согласование, которое зачастую растягивается на месяцы.
— Уже проверено: как только начинаешь делать ремонт в старом секторе, на пороге появляются ходоки из разных инстанций, — говорит Илья. — И когда на руках есть все документы, можно работать уверенно.
Фото: Егор Пясковский / obstanovka.byИлья находит в этой «сталинке» много плюсов: во дворе тишина, с парковками нет вопросов, в подъезде мало квартир, а в жилье много света за счет больших окон и высоких потолков.
— Про атмосферу вообще отдельный разговор, — улыбается Илья. — Через неделю ремонта со всеми в подъезде перезнакомишься, узнаешь истории жизни каждого — по-другому там нельзя. Что касается качества строительства, то сталинка сталинке — рознь. На проспекте Независимости и Карла Маркса встречались сталинки с деревянными перекрытиями, где все кривое и старое. Их строили еще пленные немцы, и там такие нюансы были, что казалось, делали они это назло. (Смеется.) При этом не угадаешь, какое перекрытие тебе попадется: в одном доме будет деревянное, а в соседнем — уже бетонное. Однозначно можно сказать, что с бетонным перекрытием, как в квартире нашего заказчика, ремонт делать легче.
Один из самых дорогих этапов в ремонте сталинки, по словам дизайнеров, — демонтаж. Прибавляем сюда возведение новых стен, стяжку пола, коммуникации — электрику и сантехнику — и понимаем, что еще до начала ремонта надо хорошее финансовое вливание.
— А поскольку найти сталинку с капремонтом сложно, нужно не только у владельца квартиры, но и у соседей сверху и снизу заменить старые канализационные трубы, — рассказывает о нюансах Илья. — А то будет обидно, если из-за прорыва гнилой трубы пострадает ремонт.
Пол тоже «съедает» много денег.
— Когда подняли старый пол, под ним было приблизительно 30 см вглубь пустых ячеек между балками, которые нужно заполнить керамзитом, чтобы сверху налить стяжку, — рассказывает Илья. — Вот и считайте, сколько денег нужно было просто в пол залить.
В «квартире путешественника» в качестве напольного покрытия дизайнеры использовали широкую паркетную доску.
Фото: Егор Пясковский / obstanovka.by— В тот момент, когда работали над интерьером, эта тенденция к нам еще только приближалась, — рассказала Елена. — Производителя нашли на выставке. Качество паркетной доски было потрясающее! При этом ребята из компании приезжали в сталинку, давали рекомендации по укладке.
Подготовительный этап в этой сталинке занял немало времени. Дальше шли отделка и дизайн. Стены в «квартире путешественника» оштукатурили, придавая им фактуру, и покрасили.
Всем кажется, что самое дешевое и простое — это оголить существующую кирпичную кладку.
— Сюда вложено много ручного труда, — объясняет Илья. — После снятия штукатурки кирпич начинал откалываться и сыпаться в разных местах. Приходилось что-то вручную выковыривать, что-то замазывать раствором, чтобы все выглядело аккуратно и в то же время брутально, — кропотливая работа.
Гостиная — с авторскими стеллажами, спальня — с винтажной люстрой
После перепланировки квартира стала более функциональной: гостиную объединили с кухней, а санузел за счет кладовой и коридора увеличился почти до 10 квадратных метров.
В отделке старались по возможности использовать отечественные материалы. Паркетная доска, двери, мебель. Плитка, правда, итальянская, сантехника тоже неместная.
Фото: Егор Пясковский / obstanovka.byВ окна установили деревянные стеклопакеты со звукоизоляцией, теплые.
— Улицы практически не слышно, — говорит Елена. — А добротные деревянные откосы и подоконник позволили оставить окно без оформления шторами, поскольку оно само уже смотрится полноценным и завершенным. К тому же это характерно для стилей лофт и скандинавский, которые близки хозяину квартиры.
Свет — отдельная тема. По периметру гостиной — шинно-трековые светильники, чтобы сделать акцент на декор стен и подчеркнуть пространство. В спальне повесили винтажную люстру годов 70-х, перекрашенную автоэмалью. С люстры были сняты стеклянные плафоны и вставлены декоративные ретролампы.
— Бра, которое висит на стене в гостиной, мы приобрели на барахолке, — рассказывает Елена. — А потом такие же видели во дворце профсоюзов — так что в эпоху точно попали.
Чтобы вписать в интерьер совершенно классическую белую дверь, дизайнеры обыграли ее росписью, которая перешла и на стену. Там художник изобразил карту и обозначил самые любимые уголки мира, где успел побывать хозяин квартиры.
Фото: Егор Пясковский / obstanovka.byМебель в квартиру дизайнеры подбирали сами. Здесь не обошлось без сложностей.
— Многие наши соотечественники возят мебель из Литвы, — говорит Елена. — Мы тоже прошли этот путь в «квартире для путешественника». Например, оба стола были из «Икеи». С диванчиком, что стоит в гостиной, вышла история: процесс его ввоза в Беларусь затянулся на несколько месяцев. Поэтому, на мой взгляд, если человеку дорого его время, лучше обращаться в мебельные салоны, чем везти что-либо самостоятельно из Европы.
Фото: Егор Пясковский / obstanovka.byСтеллажи и изголовье кровати по проекту дизайнеров изготовила та же компания — производитель паркета.
К слову, кровать вышла бюджетной, хотя диапазон был широк и в цене, и в производителях.
— Кровать выбирали долго, — говорит Елена. — Хозяин квартиры много путешествует. Хотелось, чтобы дома он мог хорошо отдохнуть. Сначала рассматривали вариант итальянских кроватей, но не устроили сроки поставки и тот факт, что их нельзя увидеть вживую и потрогать. Решилось все просто: купили основание кровати, матрас, а изголовье заказали отдельно. В комплект заказали и гардероб — абсолютно обычный, но в качестве заполнения дверей применили OSB-плиты.
Кухня — белорусская, санузел — импортный
Кухня в «квартире путешественника» белорусского производства.
Фото: Егор Пясковский / obstanovka.by— Она очень технологичная, с фасадами без ручек, удобная и функциональная внутри, — рассказывает Илья. — Там есть встроенный холодильник, посудомоечная машина, газовая панель, выдвижная сушка для посуды, измельчитель бытовых отходов, мощная вытяжка, чтобы запахи кухни не распространялись по большой гостиной.
Фото: Егор Пясковский / obstanovka.byДеревянную полку и стеллаж под винные бутылки и бокалы сделал местный мастер по работе с деревом в особом, авторском стиле.
— По материалам ванная комната получилась у нас самой иностранной, — рассказывают Илья и Елена. — Она задумывалась для релаксации и имеет все — и душ, и ванную. Также в ванной комнате поместились стиральная машина и бойлер на случай отключения горячей воды.
Сохранили дизайнеры и окно между ванной и кухней. Только сделали его немного больше.
Фото: Егор Пясковский / obstanovka.byРассказывая о прихожей, Елена и Илья обращают внимание на авторское зеркало ручной работы, украшенное по периметру мозаикой. Зеркало выполнено на заказ художником Алексеем Литвиным из Витебска. Металлические рога-вешалку советских времен купили на барахолке.
Фото: Егор Пясковский / obstanovka.by— В этой квартире было много моментов для творчества, — говорят Елена и Илья. — Наверное потому, что сам заказчик — творческая личность.
realty.tut.by
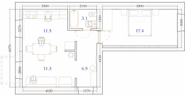
Дизайн-проект 2х комнатной сталинки — ✪ Капитальный Ремонт Сталинки ✪ Интерьер
Простой и ненавязчивый дизайн-проект интерьера сталинки в светлых тонах. Была сделана перепланировка двухкомнатной сталинки с целью объединения кухни и одной из комнат в просторную студию. Также был совмещен санузел для увеличения кухни. 2-х комнатная квартира куплена с целью проживания молодой семьи из двух человек, проводящих основное время вне дома. Из окон открывается великолепный вид на реку и ухоженный внутренний дворик. Так как и капитальныей ремонт, дизайн-проект делался своими руками и для себя: планы и схемы сделаны в Autodesk-приложении, а рендеринг и 3D-модель в Rhino+V-Ray.
Характеристики сталинки:
|


Так выгладит планировка двухкомнатной сталинки после демонтажа перегородки между кухней и комнатой а также после сноса стен отдельно стоящего туалета. Санузел был совмещен — довольно компактно и аккуратно все вместилось: ванная 1500мм длиной, унитаз, умывальник. При высоте потолков 3м в сталинке пространство не кажется маленьким или зажатым. Также добавляет естественного освещения окно над ванной.

После перепланировки 2-х комнатной сталинки получилась большая студия с зоной отдыха, обеденной и приготовления пищи на кухне. Стало гораздо больше света и пространства. Батареи отопления были перенесены, трубы скрыты в стены. Замена окон на новые с тонкостенным профилем еще больше усилила поступление естественного освещения в студию. Для зонирования студии сталинки установлена фальш-балка потолка а стены украшены гипсовой плиткой мозаичного типа с мелкими кубиками.

Кухня сталинки выполнена в темно-светлых тонах, за основу всей мебели взят EGGER Гасиенда белый. Черная вставка фартука разделяет пространство. Мебель и техника лаконично скомпонованы: вместились холодильник, духовка, микроволновка, бойлер, посудомойка, стиральная машинка, вытяжка и газ.поверхность. Все счетчики и разводка труб спрятаны за легко снимаемую зашивку. Также организован доступ для снятия показаний счетчика и вентилей отключения газа, воды.

Напольное покрытие — ламинат Woodstock фирмы TARKETT в комбинации с керамогранитной плиткой у входа и на кухне. Такая же плитка уложена на открытом балконе. Подсвечники на стенах и ковка на дверях, люстрах создает единое пространство. Люстры (и точечные светильники) серого матового цвета. Гостиная сталинки получилась довольно просторной с двумя огромными окнами.

Столовая группа в сталинке студии — также комбинация темных стульев в цвет паркета и белого букового стола с просвещающейся фактурой дерева. Стол небольшой, но удобный для размещения 4х персон. Стулья с высокой спинкой также очень удобны при долгих беседах за столом.

Вешалка Венеция и банкетка также подобраны в стиль кованных декоративных элементов для объединения пространства прихожей и гостиной сталинки. Во всех комнатах сделана подсветка потолка светодиодным рассеянным светом, что совместно с точечными светильниками, подвесными лампами и люстрой дает достаточное и уютное освещение.

В прихожей сталинки разместилась у входа кованная банкетка на двух человек с полками для хранения обуви, большое зеркало в полный рост и устойчивая вешалка. Зона у входа отделена керамической не скользкой плиткой. Прихожая очень проста и не загроможденная предметами мебели и быта.

Стены в комнатах сталинки окрашены в тона серо-сиреневого цвета. В зависимости от естественного освещения, подбирались разные полутона интерьерной краски: в более освещенных комнатах стены окрашены в темные оттенки а менее освещенных — в более светлые оттенки одного и того же цвета. Так при естественном освещении создается иллюзия однородного освещения. Интерьерная краска фирмы Colorit, цветовая гамма от Tikurilla.




Шторы в сталинке выполнены в темном цвете — одном из оттенков совпадающим с паркетом. Гардины, дверные ручки, смесители сделаны из натуральной латуни и имеют натуральный лакированный цвет.

В спальной сталинки установлена большая двухместная кровать 1,8х2м, две прикроватных тумбочки и большой шкаф-купе для одежды и постельного белья. В стене напротив устроены ниши для большого ЖК телевизора, псевдо-камина со свечами и полочками для интерьерных элементов — ваз, фигурок.

Стена у изголовья окрашена в самый темный оттенок и вскоре здесь появятся огромные одуванчики, нанесенные с помощью белой краски и трафарета. Остальные стены спальной сталинки — светлые.

Ванна совмещена с компактом и умывальником и выполнена в светло-бежевом цвете крупной настенной плиткой Cesar фирмы Golden Tile. Зеркало оформлено в таком же багете, как и зеркало в прихожей. Все смесители латунного цвета. Как видите все необходимые сантехприборы разместились очень аккуратно в небольшой ванной сталинки.
















xn--80aaxidnyi.com.ua
Сталинский ампир в дизайне интерьера квартир | Фото дизайнов интерьера 2017
Текст: С.К.
Наверное, вы много раз видели такие вот «бабушкины» квартиры, которые обычно находятся в домах 30-50-х годов XX века. В них всегда уютно, комфортно и чувствуется дух времени. Даже сами часы в таких квартирах проходят медленнее, в них все спокойно и уравновешенно. Секрет обаяния подобных интерьеров из прошлого связан с тем, что всем им присущи черты сталинского стиля. Что делает это стилевое направление таким привлекательным? Почему, даже много лет спустя, сталинский ампир не теряет своей актуальности? Чем может быть полезен этот стиль при создании интерьера квартиры?
Основные черты сталинского стиля

На фото: Дизайн кухни в стиле сталинский ампир
Сталинский стиль изначально присущ квартирам в домах, построенных во времена Сталина. Такому типу жилья свойственны определенные месторасположение и планировки. Классическая квартира 30-50-х годов имеет 4-5 отдельных комнат, маленькую кухню, высокие потолки (3-4 метра), окна на одну или две стороны, холл и большую гостиную. Как правило, жилье в сталинских домах обладает высокими окнами и даже эркерами. Квартира такого типа, конечно же, располагается в центре города и имеет соответствующие панорамы из окон. Что касается дизайна апартаментов в сталинском стиле, то в них обязательно присутствуют лепнина, широкие потолочные карнизы, розетки под люстры, полы с раскладкой «елочка». Полы, кстати, укладываются не единые на всю квартиру, а отдельные в каждой комнате. При этом, разделяются они все теми же, положенными как бордюр, досками для «елочки».
В квартирах в сталинском стиле, как правило, присутствуют:
- хрустальные люстры и бра;
- высокие белые межкомнатные двери с резными наличниками в классическом стиле, с полным или частичным остеклением;
- раскладки стекла квадратом или ромбом;
- на контрасте со светлыми дверьми и стенами — темная, отдельно стоящая мебель под темный орех или дуб, горки, серванты, книжные шкафы и буфеты с резными «коронами» и стеклянными дверцами, высокие напольные часы, большой круглый обеденный стол, кресла, диваны и стулья, туалетные и журнальные столики на резных «лапах»;
- белые скатерти, красивая посуда, хрустальные вазы, кувшины и салатницы, столовое серебро, шторы на подхватах;
- «профессорский» кабинет-библиотека с кожаным диваном и лампой с зеленым абажуром;
- большое количество книг и картин;
- красные ковры.

На фото: Интерьер гостиной в стиле сталинский ампир
Сталинская квартира всегда уютна, в ней много текстиля и декора. Часто встречающиеся фарфоровые статуэтки, подсвечники, вазы, черно-белые фотографии, картины и даже красиво расставленная посуда в буфете — все это черты, присущие, именно, сталинскому стилю. Атрибуты этого стилевого направления — это все, что на данный момент является антиквариатом. Здесь есть что-то от классики, что-то от ампира и барокко, такой интерьер легко дополнить. Интерьер в сталинском стиле никогда не выйдет из моды, не потеряет своей актуальности потому, что читающиеся во всех его деталях комфорт, уют и преемственность всегда привлекают внимание. Сталинская квартира служит настоящим домом для ее обитателей, в нее приятно возвращаться каждый вечер.
Как обустроить свою квартиру, используя сталинский стиль или его элементы?
На фото: Интерьер спальни с элементами сталинского ампира
Сталинский стиль может быть использован не только в тех квартирах, которые находятся в домах, построенных во времена правления Сталина. Не обязательно полностью копировать обстановку квартир бабушек, пытаясь создать абсолютно идентичный интерьер. Однако частичное использование сталинского стиля придаст интерьеру атмосферности, глубины, качества и уюта.
Элементы сталинского ампира хороши в качестве базы. Вы можете совмещать в своей квартире самые различные стилевые направления. При этом, именно спокойный светлый фон, характерный для сталинского стиля, и все та же лепнина, паркет «елочкой», люстры из хрусталя и высокие остекленные белые двери станут хорошей основой для экспериментов по смешению элементов различных стилей.
Антикварная мебель

На фото: В интерьерах в сталинском стиле достаточно часто используется антикварная мебель
Антикварная мебель отлично смотрится в любом интерьере. А мебель сталинской эпохи почти универсальна. Старинный буфет из темного дерева хорошо дополнит дизайн светлой кухни-гостиной, выполненной даже в современном стиле. Книжный шкаф времен Сталина добавит изюминку кабинету. Интерьер, в котором присутствует антикварная мебель, смотрится интересным и запоминающимся. Антиквариат делает пространство более индивидуальным. Но будьте осторожны, наполняя интерьер антикварной мебелью. Ведь, перестаравшись со старинными предметами, вы можете просто захламить пространство. Такое может случиться, если вы используете слишком много мелких элементов меблировки. Приобретя новый антикварный столик, замените им современную полочку у кровати. Мебель может «переезжать» по квартире, менять свое назначение. Не бойтесь переставлять мебель, так вы с легкостью сможете изменить интерьер. Расстановку крупных антикварных предметов, таких, как сервант, буфет или книжный шкаф, планируйте заранее. В советский период «профессорские» квартиры обставляли дореволюционными мебельными гарнитурами, которые плавно перешли в стилистику того времени.
Кабинет и библиотека
На иллюстрации: Дизайн кабинета в стиле сталинский ампир
Уже сам факт наличия в квартире кабинета или библиотеки отсылает нас к сталинскому времени. Сходство с эпохой Сталина еще более очевидно в меблированных антикварной мебелью комнатах для работы. Кабинет или библиотека могут находиться в отдельной комнате. Впрочем, если площадь квартиры не позволяет выделить изолированное помещение для работы, то это не проблема. Небольшой кабинет или библиотеку можно расположить в кухне-гостиной или спальне. Главное в этом вопросе — правильно поделить пространство на зоны. Для создания в квартире кабинета или библиотеки вам потребуются большое количество книг и массивный стол с резными ножками из темного дерева. Кабинетная или библиотечная зоны облагораживают любой интерьер.
Спальни и детские

На фото: Дизайн интерьера спальни с элементами сталинского ампира
В сталинские времена стены в спальнях обычно декорировали обоями, которые далеко не всегда были светлыми. Чаще всего предпочтения отдавались обоям коричневого, бордового или кофейного цветов. Рисунок мог содержать полоску или другой не очень яркий орнамент. Если вы хотите сохранить у себя дома стилистику 30-50-х годов, используйте именно такие обои. Мебельный набор в спальнях обычно был стандартным и включал: кровать, пару прикроватных тумб с лампами для чтения, трельяж, игравший роль туалетного стола, платяной шкаф (именно шкаф, а не гардеробная), комод. Книжные шкафы в выполненных в стилистике сталинский ампир комнатах для сна обычно не использовались. Книги могли храниться в гостиной, кабинете, библиотеке, детской, но не в спальне.
В квартирах сталинского периода часто можно было встретить кладовки, встроенные шкафы, предбанники, проходные комнаты, даже личные входы в ванную из спальни, но не гардеробные. Мебель обычно была из одного гарнитура. А вот убранству детских такого пристального внимания, как декору спален, не придавалось. Мебель в детских в сталинские времена была современного, отечественного производства. Сами комнаты для детей были маленькими, и, при этом, не очень хорошо обставленными. Небольшой рабочий столик, узкие кровати, маленькие шкафы — вот типичный комплект для детской того времени. За последние годы отношение к детским изменилось в лучшую сторону. Поэтому в квартирах в стиле сталинский ампир комнаты для детей сейчас стараются обставить с не меньшей заботой, чем спальни.
Декор

На рисунке: Гипсовая розетка и старинная роскошная люстра являются неизменными элементами декора квартир в сталинском стиле
В интерьерах в стиле сталинский ампир используются такие декоративные элементы, как: знаменитый сталинский фарфор, часы, гипсовые и медные статуэтки, подсвечники, картины с классическими советскими сюжетами, текстиль (скатерти и салфетки), светильники, тумбочки или сундуки, столовое серебро и посуда, вазы. Декор в сталинском стиле хорошо сочетается с классическим, современными и эклектичными интерьерами.
www.ok-interiordesign.ru



































