планировка интерьера квартиры студии с реальными фото от Mr.Doors
- Дизайн маленькой квартиры-студии
- Планировка маленькой квартиры-студии
- Отделка стен маленькой студии
- Отделка пола однокомнатной квартиры
- Отделка потолка небольшой студии
- Мебель для квартиры-студии
- Текстиль и аксессуары в дизайне однокомнатной квартиры-студии
Дизайн маленькой квартиры-студии
Подобрать комфортное и в то же время доступное жилье непросто. Прекрасный выход – квартира-студия. Этот тип планировки позволяет неплохо сэкономить, а также дать волю фантазии при создании интерьера. Дизайн однокомнатной квартиры-студии может быть любым. Все ограничивается исключительно вашим видением и финансовыми возможностями.

Дизайн интерьера кухни для квартиры-студии
Планировка маленькой квартиры-студии
Студия – квартира, отличающаяся от привычных вариантов тем, что в ней практически полностью отсутствуют межкомнатные перегородки. Стены отделяют только санузел, расположение которого обусловлено местом прохождения коммуникаций. Остальное пространство квартиры-студии остается свободным.
Несмотря на маленькую площадь в дизайне однокомнатной квартиры-студии принято выделять несколько отдельных зон:
Данная градация условна и может варьироваться в зависимости от ваших пожеланий.
Дизайн интерьера маленькой квартиры-студии площадью от 25 до 30 кв м потребует особенно тщательной проработки еще на первоначальных этапах. Например, ниши для встроенной мебели необходимо возвести заранее. Для того, чтобы окончательный дизайн вашей маленькой студии вас не разочаровал, заранее обратитесь в ателье мебели. Грамотные специалисты сориентируют вас по наличию нужных декоров, расскажут о размерных ограничениях и помогут уточнить конструкцию предполагаемой мебели.
А перед этим рассмотрите фото интерьеров и планировок квартир-студий в качестве примеров: это поможет вам понять, каким вы хотите видеть свое жилое пространство. Так вы узнаете, на чем сделать акцент и от чего можно отказаться в угоду комфорту и простору.

Дизайн гостиной в маленькой квартире-студии
При создании дизайна однокомнатной квартиры-студии обратите особое внимание на место расположения электрических приборов. Стоит учитывать все, начиная с компьютера и телевизора и заканчивая чайником и тостером. Такой подсчет необходим для правильного размещения розеток в вашем доме.
Отделка стен маленькой студии.

Интерьер маленькой квартиры: гостиная
Основной минус квартиры-студии – маленькая площадь помещения. Для того, чтобы визуально увеличить ее размеры, нужно учесть множество разных мелочей. Использовать дробный рисунок в декоре стен маленькой квартиры не рекомендуется. Для отделки студии лучше подойдут светлые тона. Стены могут быть окрашены водостойкой краской, оклеены моющимися обоями или декорированы венецианской штукатуркой.
Для создания яркого акцента в маленькой квартире одну из стен можно отделать дизайнерскими фотообоями, деревянными или гипсовыми 3D панелями. Дополнительную изюминку в дизайн однокомнатной квартиры-студии помогут внести декоративные зеркала. Они зрительно увеличат пространство и сделают его более структурированным.

Интерьер гостиной в однокомнатной маленькой квартире
Если ваша маленькая квартира-студия не отличается большой высотой потолка на помощь придут обои с вертикальной полоской. Они визуально вытянут помещение вверх. Однако, стоит отдать предпочтение широкой полосе. Слишком узкий и частый рисунок будет концентрировать на себе внимание и зрительно уменьшать площадь помещения.
Отделка пола однокомнатной квартиры.
Для покрытия пола квартиры-студии отлично подойдет паркет или ламинат. Входную и кухонную зону можно обыграть плиткой. Эти материалы имеют хорошие показатели износостойкости. За ними легко ухаживать, поэтому они прослужат вам не один десяток лет.
Цветовую гамму также лучше выбрать светлую. Исключите плитку с рисунком. На маленькой площади его будет сложно рассмотреть, что неминуемо приведет к зрительному уменьшению пространства.

Дизайн маленькой квартиры-студии
Сочетание нескольких видов отделки пола может способствовать визуальному отделению различных зон друг от друга. В то время как один материал подчеркнет единство пространства.
Отделка потолка небольшой студии
Для небольшого помещения лучше использовать гладкие потолки. Дизайн однокомнатной квартиры-студии не подразумевает сложных гипсокартонных конструкций и обилие лепнины. Это слишком активные элементы интерьера, которые будут скрадывать и без того жестко ограниченное пространство.
Освещение в маленькой квартире
Освещение играет огромную роль в интерьере студии. Поскольку зачастую в них располагается всего одно окно – солнечного света бывает недостаточно даже днем. Грамотная комбинация естественного и искусственного освещения позволит дополнительно расширить пространство, а потолок сделать выше.

Интерьер небольшой квартиры-студии
Для освещения однокомнатной квартиры лучше выбрать нейтральный белый свет. Потолочная люстра как основной источник света может уступить место небольшим спотам, расположенным по периметру комнаты. Комбинации различных типов светильников отлично подойдут для зонирования пространства, а замысловатые бра и торшеры могут придать интерьеру пикантную изюминку.
Мебель для квартиры-студии
Качественная и функциональная мебель – необходимый атрибут маленькой квартиры. Несмотря на небольшое пространство здесь необходимо разместить достаточно большое количество необходимых вещей. Сэкономить место поможет встроенная мебель, изготовленная на заказ. Такой вариант будет учитывать все нюансы стиля и формы помещения, а значит использовать его максимально рационально.

Интерьер прихожей в маленькой квартире
Несмотря на то, что дизайн квартиры-студии подразумевает единое пространство, при меблировке стоит учитывать функционал каждой отдельной зоны. В мини-прихожую идеально впишутся открытая вешалка и небольшая обувница. Чтобы оглядеть себя перед выходом разместите в прихожей зеркало в полный рост. Оно может расположиться на стене, стать фасадом небольшого встроенного шкафа или украсить собой оборотную сторону входной двери.
Поддерживать порядок в общей комнате поможет вместительный шкаф-купе. Доверьте создание внутреннего наполнения специалистам. Опытный дизайнер спроектирует функциональное пространство, позволяющее вместить как можно больше нужных вещей. Двери шкафа-купе не должны быть чересчур активным. Для них лучше выбрать отделку, близкую к декору стен, или беспроигрышные зеркала. Если вам нравится фотопечать, стоит отдать предпочтение светлым рисункам.

Дизайн небольшой прихожей в квартире студии
Дизайн кухни в маленькой квартире должен быть максимально прост и рационален. Для фасадов отлично подойдут гладкие глянцевые панели. Они хорошо отражают свет, расширяя пространство. Пастельные тона освежат помещение. В небольшой кухне лучше отказаться от классических мебельных ручек. Отдайте предпочтение врезным вариантам, утопленным в плоскость фасадов, или системе нажал-открыл.

Кухонная зона в небольшой квартире-студии
В дизайн кухни однокомнатной квартиры отлично впишется встроенная техника, которая позволит минимизировать дробление фасадов. Для фартука подойдут варианты из мелкой мозаики или гладких панелей (это может быть МДФ, стекло, искусственный или натуральный камень). От крупной плитки и ярких картинок лучше отказаться.
Не стоит перегружать кухню маленькой квартиры большим количеством мелких деталей. Подберите необходимые аксессуары в тон основной отделке. Это придаст кухне более стильный вид.

Зона кухни в маленькой квартире-студии
Обеденный стол в маленькой квартире может служить своеобразным зонирующим элементом, ограничивающим пространство кухни. Стеклянная столешница придаст ему легкости. Дополнительно выделить своеобразную «столовую» помогут интересные светильники. Еще одним элементом, отделяющим кухонную зону, может стать барная стойка. Традиционно она изготавливается из того же материала, что и столешница.
Для спального места в небольшом помещении лучше выбрать раскладной диван с качественным ортопедическим матрасом. Такой вариант позволит вам отлично отдохнуть ночью и не займет много места днем.
Текстиль и аксессуары в дизайне однокомнатной квартиры-студии
Дизайн квартиры-студии будет выглядеть сухо и шаблонно без уютного текстиля. Если квартира выходит окнами на солнечную сторону – декорируйте их плотными портьер
www.mebel.ru
Оригинальный дизайн небольшой узкой студии

Не всем по карману дорогое, просторное жильё, и зачастую владельцы небольших квартир задаются вопросом, как максимально комфортно и рационально обустроить свою жилплощадь. О том, как оформить маленькое помещение, расскажет сегодня наш сайт.
Дизайнеры постарались на славу смогли создать и из студии создать и из студии двухкомнатную квартиру!
Для того чтобы расширить коридор и организовать две комнаты, было решено перенести внутренние перегородки.

Узкое помещение крохотной студии разделили практически пополам, и в результате получилась двухкомнатная квартира. В комнате для сна осталось окно, а холл стал значительно шире: здесь разместился современный шкаф-купе и комната для гардероба.

Недалеко от входа находится санузел. Рядом – дверь в кухню, которая является одновременно зоной для приёма гостей. Этот вариант – демонстрация рационального использования полезного пространства квартиры площадью 36 кв. м.

Зона отдыха обозначена комфортным диваном и двумя креслами. Напротив неё – красивый угловой гарнитур для маленькой кухни с барной стойкой, которая выполняет функцию стола.

Оригинальное решение – вместо плотной перегородки установить раздвигающиеся стеклянные двери. Они пропускают достаточно света и создают ощущение простора и уюта.

Для оформления квартиры дизайнеры использовали светлые тона: молочно-бежевый, кофейный и зелёный. Благодаря им, все предметы интерьера и декора смотрятся гармонично и слажено.

interiorsmall.ru
Дизайн маленькой квартиры студии – популярный сегмент рынка

Когда мы думаем о красивых домах, мы представляем себе размашистые особняки и недостижимые поместья. Но истина в том, что красивый дом – это то, что вы можете вылепить из своего обжитого угла. Зачем пытаться впихнуть в маленькие апартаменты большие вещи?
Не лучше ли, используя простой дизайн и нейтральные цвета, со множеством стеллажей и ящиков, превратить крохотную квартиру-студию в свой персональный замок. Три дома от Curly Studio показывают, что не обязательно иметь много площади, чтобы сделать дом красивым и пригодным для жилья.
Пример 1
Первый дом, который мы представляем, занимает 32 кв. м. Красивая деревянная кровать-платформа отделена от главной комнаты дома изготовленными на заказ плавающими полками. Хотя такие открытые полки производят красивый эффект, каждый живущий здесь должен будет обзавестись стремянкой и хорошей тряпкой.


Узкая кухня также снабжена красивым открытыми полками.


В прихожей стоит встроенный шкаф, в коробках и выдвижных ящиках которого можно спрятать бельё.

Маленькая душевая кабинка и плавающая раковина в облицованной плиткой ванной комнате составляют финальный штрих к уюту и практичности.


Пример 2
Второй представляемый нами дизайн, размещается на 40 кв. м. Вместо стеллажей в этом доме используются раздвижные стеклянные двери, чтобы разделить спальню от гостиной.


Умный журнальный столик в гостиной удваивает свою площадь за счет полочек под столешницей.

Кровать-платформа и простой письменный стол дополняют это комфортное, многоцелевое место. Благодаря различным элементам, от широкой кровати до многоярусных стеллажей и письменного уголка, спальня выглядит больше чем одной комнатой, и создаётся иллюзия большего пространства.


Стильный письменный стул соответствующей высоты убирается под бюро, когда на нем никто не сидит.

Маленькая кухня, или обеденная зона, с обилием солнечного света и белыми кирпичными стенами выглядит просторной. Открытые стеллажи оставляют достаточно места для двоих.


В гардеробной и шкафу используются зеркала, чтобы заставить узкий проход казаться шире, а также служат отличным хранилищем для одежды и обуви.

Геометрические фотообои в ванной реально оживляют интерьер. А световой люк идеален для утреннего душа.



Пример 3
Последнее жилище в этой статье всего 45 кв. м. Традиционные стеллажи достигают потолка, используя каждый сантиметр и создавая иллюзию большей высоты. В этом проекте диванный столик разделяет жилое пространство от столовой. Последняя располагает достаточным местом для компании из четырёх человек.


В квартире вместо обычного телевизора установлены проектор и экран. Такое оборудование занимает меньше места и может быть легко спрятано, когда оно не используется.


Деревянные панели, которыми выложена стена позади кровати, создают иллюзию изголовья. А сочетание кирпича с темно-серым одеялом просто бесподобно.


Правильно организованная кухня достаточно просторная для приготовления пищи, а матовые стеклянные двери легко закроются, если нужно будет скрыть беспорядок за ними.

Невзирая на маленькую площадь, дизайнер нашел место для полноразмерной ванны.



Вы ютитесь на скупых квадратных метрах городской жилплощади? Закажите дизайнерский проект для квартиры-студии!
interiorsmall.ru
Минималистский дизайн маленькой квартиры-студии, Москва

Вряд ли у вас получится переоценить преимущества этой студии в стиле минимализм: тут и контрастные цвета, и классический для скандинавского жилья белый фон, и достаточно оригинальные идеи для декора, и светлый кухонный гарнитур из сосны. Всё это превращает лаконичное жилище в индивидуальную квартиру.
Всем известно, планировка в панельных домах Москвы стандартная, так что выбрать её нет возможности. Но и стокгольмский спальный район не предоставит большого ассортимента. Так и в этой квартире. Здесь можно развернуться только в квадратной комнате. Небольшая ванная расположена в углу, кухня же совмещена с гостиной, так как отдельно архитекторами она не была предусмотрена.
Однако в студиях всегда находятся оригинальные решения. Так было и в этот раз. Владелица квартиры смогла создать стильный, модернизированный и захватывающий интерьер, который вселяет в каждого увидевшего его чувство сказки.

Кто-то может не поверить, но 19 м2 на самом деле смогли уместить полноценную меблировку: хорошая кухня, глубокие гардеробные шкафы и комоды, диван в гостевой зоне и барная стойка. Кстати, спальная зона, как и полагается, вынесена отдельно. Кровать и принадлежности для сна можно найти на импровизированной мансарде.
Эта квартира-студия не может похвастаться только письменным столом. Но хозяйка всем довольна, ведь ей не требуется рабочее место. Она привыкла пользоваться ноутбуком прямо на кровати.

Эта студия имеет свой оригинальный акцент. Чтобы освежить молочную белизну стен, бежево-жёлтую сосновую мебель и полы светло-рыжего оттенка, владелица добавила небольшие элементы фиолетового цвета. Очень гармонично вписались цветы в вазе, шторы на окнах, свечи и посуда, а также картина с яркими тонами над диваном.

interiorsmall.ru
12 лучших современных интерьеров квартир-студий

Небольшая по площади стандартная квартира может превратиться в очень уютную квартиру-студию, дизайн которой позволит учесть все потребности проживающей в ней семьи. Привычная планировка, разделяющая жилую площадь на несколько комнат и кухню, как правило, небольшую, уже не может обеспечить современный комфорт, тем более это актуально для тех квартир, которые имеют маленькую площадь, и при этом служат жильем для двух и более человек. Ниже рассмотрим несколько вариантов дизайна квартир-студий разной площади.
Вашему вниманию представлено 12 лучших современных интерьеров квартир-студий, которые имеют разную площадь.
Дизайн квартир-студий
№1. Дизайн интерьера маленькой квартиры-студии 14 кв. м.
Крохотная квартира-студия, на 14 «квадратах» которой нужно было уместить и кухню, и жилую комнату – яркий пример грамотного использования студийной планировки. В интерьере прихожей рядом с дверью в ванную разместили мини-гардеробную, напротив нее расположилась кухонная мебель с рабочей столешницей и встроенной техникой. Холодильник поставили на границе с гостиной – он служит разделяющим элементом. Кроме того, между кухонно-входной и жилой зонами повесили занавес, позволяющий сделать комнату интимнее.

В интерьере гостиной нашлось место не только для дивана-кровати, но и для отдельного уголка отдыха, который заодно выполняет роль обеденной зоны. Пришлось отказаться от стандартной мебели — это позволило сэкономить драгоценные сантиметры пространства. Всю мебель изготавливали «по месту» и наделяли сразу несколькими функциями.

Обеденный стол переворачивается и опускается вниз, занимая место между мягкими креслами – и вся конструкция превращается в удобную кушетку – дополнительное место отдыха либо гостевое спальное место. Под креслами помещаются коробки для хранения домашних вещей, кроме того, предусмотрен большой ящик под диваном и шкаф-гардероб, отделанный узкими зеркальными полосами – они зрительно увеличивают небольшую площадь комнаты.

Серый и белый – основные цвета в дизайне студии, позволяющие сделать пространство больше и светлее. Их гармонично дополняют деревянные детали цвета натуральной древесины. Бирюзовый и лимонный цвета в текстильных деталях придают интерьеру яркости и выразительности.

№2. Дизайн-проект маленькой квартиры-студии (площадь 20 кв. м.)
За основу оформления интерьера студии взят стиль минимализм. Сразу от входа начинается объемная система хранения, переходящая в спальне-гостиной в два отдельных яруса полок сверху и снизу, между которыми встроены ТВ-зона и столешница рабочего стола домашнего кабинета. За ванной комнатной располагается кухня, отделенная от прихожей собственной системой хранения со встроенной рабочей поверхностью.

В дизайне квартиры-студии Г-образное расположение кухонной мебели позволяет выделить место для небольшой барной стойки, служащей заодно обеденной зоной.

Возле окна расположилась гостиная, превращающаяся в ночное время в спальню – большой диван раскладывается, образуя удобное спальное место для двоих.

Основная идея проекта – зеркальная сдвижная перегородка, разделяющая кухню и гостиную. Каждая из трех частей этой перегородки двигается независимо от других, таким образом комнату и кухню можно разделить частично или полностью. Зеркальная поверхность зрительно почти вдвое увеличивает пространство и усложняет его за счет игры отражений, что вносит в интерьер глубину и объем.
№3. Дизайн квартиры-студии в оранжево-белых тонах (площадь 22 кв. м.)
Главной идеей проекта стала «стена», разделяющая прихожую и кухню. Со стороны входной части квартиры-студии это шкаф-гардероб для одежды, устроенный по принципу «купе» и снабженный зеркальными дверями, чтобы не уменьшать пространство. Торцевая часть «стены» обращена к дивану в гостиной, поэтому здесь нашла свое место ТВ-панель, обеспечивающая просмотр фильмов и телепередач.

Диван на ночь раскладывается, получается комфортное место для сна. Подоконник в гостиной заменен столешницей, которая служит и обеденной зоной, и рабочим столом домашнего офиса.

С другой стороны «стены», обращенной к окну, в нее встроена кухня – собственно рабочая поверхность и шкафы ниже и выше нее. Там разместили всю необходимую технику, включая посудомойку и стиральную машину.

Из «кухни» — выход на балкон, превращенный в лаунж-зону. Белый цвет в дизайне мебели и стен визуально увеличивает объем помещения, а сочный желтый в роли акцентного создает радостное, солнечное настроение.

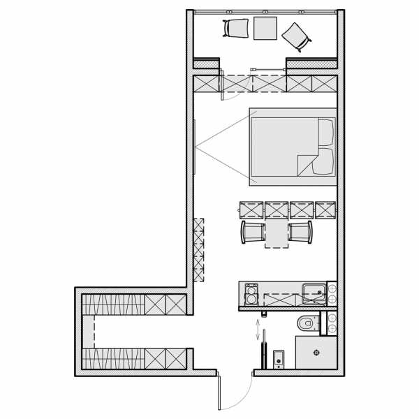
№4. Дизайн прямоугольной квартиры-студии с одним окном (площадь 29 кв. м.)
Планировка студии небольшой площади – 29 кв. м. – изначально была очень неудобной: узкое помещение, вытянутое в длину, имело одно окно в торцевой стене, что исключало разделение на две отдельные комнаты. Однако в отведенном пространстве необходимо было разместить как жилую комнату, так и зону приготовления пищи.

Прихожую спланировали традиционно – ванная комната расположена напротив вместительного шкафа-гардеробной. За входной частью квартиры-студии располагается кухня – шкаф-гардероб продолжается кухонной системой хранения со встроенной бытовой техникой, напротив которого располагается угловая рабочая поверхность с рядом шкафов под ней и закрытыми навесными полками поверх. Заканчивается кухня небольшой барной стойкой – она находится точно на границе с гостиной.

Гостиная небольшая – удобный диван и ТВ-панель на стене напротив него. Однако ее наличие – большой плюс, так как позволяет просматривать телевизор, не мешая тому, кто уже лег отдохнуть. Возле единственного окна располагается спальня, она включает в себя двуспальную кровать и небольшой столик-консоль, выполняющий роль туалетного. Рядом с ним – удобный пуфик.
Главная идея проекта – перегородка, разделяющая гостиную и спальню. В ней сделаны круглые отверстия, пропускающие дневной свет во внутреннюю часть комнаты. Помимо повышения освещенности, эти отверстия добавляют в интерьер интересные световые пятна, создающие эффект движения и смягчающие строгий черно-белый минималистичный дизайн.

№5. Дизайн студии в скандинавском стиле (площадь 28 кв. м.)
Главная идея дизайна квартиры-студии – использование белого цвета в сочетании с натуральным цветом и фактурой дерева.

Неудачную Г-образную планировку зрительно уравновесили с помощью столба-колонны на границе кухонной и жилой зон, а недостаток естественного освещения в кухне компенсировали внутренней подсветкой шкафов.

Сочетание белого цвета стен, потолка, мебели с теплым деревом пола, столешницы, откидного столика и барных стульев обеденной мини-зоны, расположенной в гостиной, создает светлый, просторный интерьер, в котором в то же время очень уютно.

Красок в интерьер добавляют яркие сиреневые текстильные элементы – диванные подушки и ковер под журнальным столиком.

№6. Интерьер однокомнатной квартиры-студии 30 кв. м. в доме хрущевкой постройки
Однокомнатная «хрущевка» в результате сноса стен получила дополнительную площадь. Большим плюсом квартиры были два окна – это позволило создать светлое, современное жилое пространство.

Белый и светлые серые оттенки – вот основные тона интерьера, которые органично дополняются светлой фактурой дерева. В качестве ярких цветовых акцентов на стене разместили два постера в красных и желтых тонах.

В квартире-студии имеются четыре зоны – входная, гостиная-спальня, рабочий кабинет и кухня. Они разделены визуально с помощью разных оттенков пола и стен.

Одна из основных идей дизайна квартиры-студии – создание уютного интерьера, где можно с комфортом и отдыхать, и работать, и при этом достаточно места для хранения домашних вещей. Для этого в гостиной разместили большой шкаф системы «купе», цветом сливающийся со стенами и практически незаметный для глаза. Над рабочим столом повесили полки для книг, а кухню снабдили двумя ярусами закрытых полок.

Вещи «с историей» — старый письменный стол, чугунный утюг в качестве подпорки для книг и старинное зеркало – вносят в интерьер особое настроение, связанное с семейными воспоминаниями, а дизайнерские стулья у обеденного стола придают интерьеру современное звучание.

№7. Квартира-студия в современном стиле, 32 кв. м.
Окно в этой небольшой студии нестандартного размера – оно меньше по высоте, чем обычные окна. Чтобы исправить этот недостаток, дизайнеры использовали два приема: само окно закрыли вертикальными шторами-жалюзи «в пол», что позволило скрыть его реальные размеры.
Света добавили с помощью потолочной подсветки и обилия отражающих поверхностей в дизайне и интерьере – это и глянцевая плитка на полу, и прозрачные пластиковые стулья у барной стойки, и глянцевая отделка мебельных фасадов. В сочетании с обилием источников света такой прием позволил добиться эффектного восприятия интерьера.

Неудобный выступ в помещении дизайнеры превратили в визуально выделенный рабочий кабинет.

Спальня в дизайне квартиры-студии отделена от остальных зон «стеной», которая со стороны прихожей является вместительной системой хранения, в гостиной представляет собой глубокие книжные полки, а со стороны спальни – открытые ниши, нижняя из которых выполняет роль прикроватной тумбы.


№8. Квартира студийной планировки 33 кв. м.
Выдержанная в традиционном стиле, эта квартира-студия учитывает все потребности небольшой семьи. Для двоих она очень комфортна, невзирая на компактные размеры. Бежево-коричневая гамма отделки сообщает интерьеру теплоту и уют.

Стен, разгораживающих комнаты, тут нет, но спальное место в интерьере спрятано от глаз в нише, образованной вместительной системой хранения со стороны прихожей. Вход в нишу закрыт светлым, но плотным занавесом, обеспечивающим интимную обстановку.


Места хватило и для обеденной зоны – круглый стол на границе гостиной и кухни позволит с комфортом разместиться троим.

№9. Лаконичный дизайн квартиры-студии с отдельной спальней (площадь 34 кв. м.)
Дизайн квартиры-студии выдержан в белом цвете, что делает мебель незаметной на фоне стен. Грубоватый деревянный журнальный стол и табуреты из толстых сучьев рядом с ним подчеркивают скандинавский стиль интерьера. Национальные узоры на диванных подушках добавляют колорита.

Сочетание белых поверхностей с натуральным деревом и естественными, природными цветами делает этот интерьер по-настоящему стильным.

Главная идея проекта – спальня, выделенная с помощью стеклянных перегородок, дополненных плотными занавесями. Это дает возможность создать интимность главной зоны в комнате, и при этом не создать впечатления загроможденности пространства.

№10. Дизайн-проект квартиры-студии 40 кв. м.
В этом проекте функциональные зоны разделяются не только визуально, за счет различия в отделочных материалах. Дополнительно они разнесены в пространстве на разные уровни, что усложняет восприятие интерьера и делает его более интересным. Каждая из зон также имеет собственное освещение.

Нейтральные тона интерьера позволяют сохранить ощущение открытого пространства и большого объема.

Спальня в дизайне студии приподнята на подиум и отделена перегородкой из стеклянных панелей от гостиной – таким способом декоративное панно на стене спальни визуально включается в общее пространство. На подиуме, помимо кровати, выстроен большой шкаф для одежды и различных домашних вещей.

Вплотную к спальне примыкает спинкой диван гостиной. В интерьере гостиной расположились два удобных рабочих места, над которыми предусмотрены полки для книг.

№11. Квартира-студия с барной стойкой, 40.3 кв. м.
Планировка студии довольно традиционна, здесь имеются все стандартные зоны: входная, гостиная, спальня, кухня.

Поскольку квартира-студия принадлежит молодой семье, дизайнеры решились на эксперимент, и применили нестандартные ходы в дизайне и отделке. Так, деревянный пол «поднимается» на стену в гостиной.


Кухню и гостиную в дизайне студии разделяет высокая барная стойка, за которой удобно принимать гостей.

Традиционное кресло заменили на мягкое кресло-пуф, а в светлый интерьер смело добавили графичные черные акценты: это и занавес, отделяющий кровать от остального помещения, и светильники, и мебель, и черные пересекающиеся линии на внешней стене санузла, выходящие и в гостиную, и в прихожую, и в кухню.

Дизайн кухни в квартире-студии заслуживает отдельного рассмотрения. Она компактная, но вместительна. От жилого пространства квартиры-студии визуально она отделяется стойкой бара и напольным покрытием – тут оно керамогранитное, в отличие от деревянного в гостиной части.
Навесные шкафы в интерьере занимают лишь одну из стен, другая оставлена свободной – на ней закреплена лишь вытяжка круглой формы, располагающаяся над варочной поверхностью. Рабочая столешница светлого дерева и такая же барная стойка гармонируют с деревянными фасадами верхнего ряда шкафов. В дизайне студии светильники-подвесы черного цвета над барной стойкой подчеркивают зонирование.

№12. Дизайн в стиле лофт (площадь квартиры-студии 42 кв. м.)
Лофт – стиль, позволяющий даже небольшое пространство оформить достаточно интересно и необычно, без потери функционала.

Очищенную до кирпичной кладки внешнюю стену сделали главным декоративным элементом интерьера и выкрасили в белый цвет, слегка притемнив швы и дефекты кладки. Визуальное зонирование реализовано через контрастное покрытие пола, а также построением возвышением уровня спальни.

Кухня и гостиная в дизайне квартиры-студии объединены и имеют выход в лаунж-зону, устроенную на балконе. Одна из стен гостиной окрашена в темно-серый цвет, что придает помещению глубину, и в сочетании с белыми потолками и светлым деревом пола выглядит очень эффектно, в то же время не затемняя помещение.

Спальня в интерьере выделена – она поднята на подиум и отделена раздвигающимися дверями. В спальне имеются небольшая гардеробная и шкаф для хранения различных вещей. Стена в изголовье постели оклеена обоями с узорами в скандинавском стиле, в том же стиле выдержано напольное покрытие в дизайне прихожей.

Читайте также: 12 лучших современных интерьеров маленьких квартир.
Не пропустите интересные новости в фотографиях:
12millionov.com
Дизайн интерьера маленькой однокомнатной квартиры с фото
Вы живёте в тесной малогабаритке и, закопавшись в груды вещей и мебели, мечтаете о переезде в просторный дом? Уверены, что ваша «однушка» совсем не годится для комфортного проживания? Не торопитесь с выводами.
Маленькая однокомнатная квартира, дизайн интерьера которой выполнен с капелькой фантазии и горсткой креатива, может стать предметом гордости любой хозяйки.
Ну что, уже настроились на приятные метаморфозы? Тогда закатайте рукава и поехали!
С чего начать?
А начинать нужно с вдохновения.
Прямо сейчас окиньте глазом свою квартиру и постарайтесь раз и навсегда выбросить из головы убеждение: «маленькая — значит неудобная».















Сосредоточьтесь на явных преимуществах малогабариток:
- Во-первых: Небольшая квартира намного доступнее в цене. И сумма ежемесячных платежей «за коммуналку» значительно ниже, чем в просторных апартаментах.
- Во-вторых: Оптимизированная функциональность пространства — это очень модно и современно.
- В-третьих: Правильно обставленные квартиры с маленькой, но «полезной» площадью очень уютны.
Правильно обставленные квартиры с маленькой, но «полезной» площадью очень уютны.
«А что же дальше?» — спросите вы.
А дальше выбрасываем из квартиры весь накопившийся хлам и решаем, какими способами будем совершенствовать своё жилище.
Существует два пути:
- Делаем перепланировку (горизонтальную, вертикальную)
- Визуально увеличиваем пространство (зонирование, косметическая отделка)
Перепланировка малогабаритной однокомнатной квартиры
Чтобы сделать дизайн небольшой однокомнатной квартиры максимально функциональным, можно снести разделяющие стенки. Это превратит тесную «однушку» в стильную студию.
Конечно же, есть одно «но». Просто так рушить перегородки нельзя, так как есть опасность развалить и несущую стену. Придется получить согласие коммунальных служб на перестройку и занести новый план квартиры в реестр.
Если вам повезло с высокими потолками, есть ещё один прекрасный вариант — вертикальная перепланировка. Проще говоря, обычная квартира превращается в двухуровневую.
Чаще всего второй этаж используют как спальню. Это даёт возможность разграничить зоны в маленькой квартире и создать эффект наличия двух комнат в «однушке».
Дизайн интерьера малогабаритной однокомнатной квартиры: зонирование, отделка
Чтобы визуально увеличить пространство маленькой квартиры, особое внимание уделите косметической отделке. Цветовая гамма может быть любой, единственное условие — используйте светлые тона.
Контрастность и цветовые акценты — дело необходимое, но помните, что тёмные оттенки и громоздкая мебель будут «утяжелять» пространство.
Хорошенько поработайте над освещением. В маленькой квартире должно быть много света! Задействуйте приём точечной иллюминации, высветлив «тяжёлые» зоны помещения.













Читайте также: Дизайн однокомнатной квартиры для семьи с ребёнком — 40 фото
Зонирование маленькой однокомнатной квартиры
- Функциональная мебельКак превратить несколько квадратных метров в многофункциональное пространство? Используйте новомодную мебель в свою пользу! Кресло реклайнер, стол-трансформер и встроенная техника дадут возможность с лёгкостью превращать гостиную в столовую, а столовую в кабинет, и наоборот.
- Задействуйте каждый квадратный метрСкрытые ниши, диван с выдвижными ящиками и шкафы-купе могут сослужить замечательную службу. Уберите все громоздкие вещи от глаз посторонних — это избавит квартиру от визуального эффекта захламленности.
- ПодиумОтделите зону кухни от гостиной подиумом. Используйте цветовые акценты в отделке и приём точечного освещения.
- Визуальное расширениеЗеркала и глянцевые поверхности в отделке дадут ощущение расширения пространства.












Как видите, нет ничего невозможного для человека с фантазией. Грамотный дизайн интерьера маленькой однокомнатной квартиры творит чудеса! Так что перестаньте сетовать на то, что ваша квартира слишком мала. Лучше соберите всю свою творческую энергию в кулак и вперёд — навстречу свежим дизайнерским решениям!
Удачи!
dekorin.me
Функциональный дизайн маленькой квартиры-студии

Небольшая квартира-студия, представленная в сегодняшнем репортаже, была спроектирована дизайнерами Jordan Parnass Digital Architecture (JPDA) и показывает, как можно максимально эффективно использовать небольшое пространство.

Расположенная в Нью-Йорке, в районе East Village, она имеет комфортную, стильную и практичную планировку. Здесь человек не чувствует себя стеснённым в удобствах, даже учитывая факт проживания в городских условиях. Каждый сантиметр площади этих небольших апартаментов настолько эффективно использован, что вдохновляет на дальнейшие подвиги в дизайне интерьеров! Здесь, среди прочих уловок, были применены встроенные ящики под лестничными ступенями, которые ведут к спальному месту. Этот ход позволил сэкономить внушительное количество свободного места!












На последнем фото можно увидеть отделанную в красном цвете мебель. Она демонстрирует все интегрированные системы хранения, которые есть в квартире. Благодаря им пользование помещением становится удобным и необременительным.
interiorsmall.ru
