особенности дизайна квартир в этом стиле, фото с примерами светлых интерьеров спален, кухонь и гостиных, какой цвет дерева и кирпича выбрать для отделки
Данная статья понравится тем людям, которые любят белый цвет в интерьере, хотят жить в квартире, наполненной светом и чувством свободы. Стиль лофт как раз про это: простор для творчества и свобода в самовыражении. Посмотрим и вдохновимся светлыми жилищами в этом индустриальном дизайне и узнаем, что он собой представляет.
Содержание статьи [скрытьпоказать]
Особенности стиля
Этот цвет определенно добавляет дополнительную ценность к этому стилю. Выделим несколько ключевых особенностей белого лофта:
- Если помещение большое само по себе, белый цвет расширит его ещё сильней и вы получите по-настоящему море простора и свободы.
- Помните, что без достаточного освещения белые комнаты будут плохо смотреться.
- Белый цвет – основа минимализма и визуального расширения пространства, так что он хорошо подходит для маленьких помещений.
- В первую очередь белыми будут стены и потолок.
Для полноты картины, коротко напомним и о главных чертах стиля вне зависимости от его цвета:
- Индустриальность (балки и неотделанные стены).
- Стремление к простору.
- Хорошее освещение.
- Основные материалы для мебели: стекло, дерево, металл.
- Высокие потолки.
- Минимум украшений.
Читайте также в нашей отдельной статье с большим количеством иллюстраций о главных чертах интерьера в стиле лофт для квартир.
Белый кирпич
Лофт, в основном, у всех ассоциируется с красными кирпичными стенами, и желательно с кусками цемента, словно ремонт решили не доделывать и жить прямо так. Но белый цвет для кирпича также естественен, как и красный. Он не так выделяется и привлекает меньше внимания, но, при этом, менее аутентичен и не сохраняет атмосферу фабричных помещений. Возможен и совмещенный вариант — оставить одну из стен по канонам стиля.
Белый кирпич для фартука, а стены из красного
Не обязательно использовать настоящий кирпич. Можно купить в магазине «кирпичные» заготовки или специальный валик, для создания соответствующей текстуры. Это хороший вариант, если вы делаете чисто косметический ремонт и не хотите «разбирать» стену.
Красиво будет смотреться полностью белая спальная комната: стена отделанная под белый кирпич, белоснежный потолок, прикроватные тумбочки, комод, рабочий стол и светло-бежевая кровать. Полы можно покрыть натуральным деревом надлежащих пород. Дополнительно интерьер украсят чёрно-белые картины и какие-нибудь необычные светильники.
Белый кирпич в спальне
Смотрите также варианты лофта с белой кирпичной стеной на видео:
Чем хороша светлая гостиная?
Белый интерьер создаёт простор (особенно в сочетании с хорошим освещением), что очень полезно в небольших помещениях, а также полностью соответствует канонам стиля лофт. Это нейтральный цвет и с ним хорошо сочетается любой другой, он не раздражает и не привлекает излишнего внимания, в такой гостиной приятно находиться.
Мы также подготовили большой материал по гостиным в этом стиле, возможно вам будет интересно.
Белая гостиная расширяет пространство
Фото интерьеров
Для вдохновения мы подобрали для вас ещё несколько интересных светлых вариантов в лучших традициях стиля.
Кухня
И снова белый прекрасно подойдёт, так как на кухне человек проводит очень много времени и цвета этого помещения должны быть максимально нейтральными. Белыми обычно делают стены, шкафчики и фартук
. Кухню в лофте часто совмещают с гостиной, и ремонт в этом стиле можно сделать, даже если у вас небольшая площадь или даже хрущевка.Стол
Стол белого цвета в стиле лофт – это стол не из пластика; без закруглений; лишённый каких-либо изящных украшений; на прямых ножках. В гостиной он может быть прямоугольным стеклянным в металлическом «обрамлении» или обрамлении из белого дерева. Таким же может быть квадратный прикроватный столик.
Белые деревянные столы
На кухне стол может быть как стеклянным, так и чисто из белого дерева (эггер дуба или сосны). Хорошо, если будет видна древесная текстура.
Стол из светлых пород дерева
Плитка «кабанчик» в ванной и на кухне
«Кабанчик» — это плитка, выглядящая как кирпич, и, положенная таким образом, что две плитки соприкасаются там, где у другой плитки в соседнем ряду середина. На кухне из «кабанчика» можно сделать фартук (её легко мыть).
Cubes Если хотите большего сходства с кирпичной кладкой, советуем использовать матовый белый цвет.
Ванную можно отделать такой плиткой почти полностью, либо, «разделив» стену на две части и отделав «кабанчиком» только нижнюю часть. В таком случае для верхней лучше взять крупную квадратную плитку.
Плитка белый кабанчик в ванной
Какую люстру лучше выбрать?
Белому лофту — белую люстру. Тут стиль позволяет фантазии разгуляться. Хорошая люстра – это люстра с индустриальным, необычным видом. Подвесная «закрытая» лампа, окружённая геометричной металлической конструкцией или необычное сооружение из «открытых» ламп без плафонов, которые, кстати, характерны для этого направления. Но не забывайте о главном – она должна хорошо освещать
.Дерево
Если вы приобретаете мебель из дерева, на ней ясно должна быть видна древесная текстура. Хорошо подойдут для стиля древесина дуба (эггер) и сосны, так как она довольно светлая. Из неё можно сделать стол, шкафы на кухню или декоративные полочки. Можно использовать также крашенную в белый декоративную древесину.
Белая мебель и стены, деревянный пол
Дуб и сосна хороши также тем, что их древесина крепкая и долговечная.
Мебель из дуба отличается прочностью и долговечностью
Итак, мы рассказали об особенностях стиля и показали вам много интерьеров квартир с белым лофтом. Надеемся, это поможет вам вдохновиться и создать интерьер своей мечты. Посмотрите ещё раз на фотографии перед принятием решения, возможно стоит сохранить некоторые. Смотрите также другие наши статьи на тему лофта. Удачного ремонта!
215+ (Фото) Смелых Интерьеров Со Вкусом

Нравится стиль лофт в интерьере? Фото дизайнерских лофтов вызывают восторг? Тогда решайтесь и создавайте уютное пространство.
Актуальный индустриальный дизайн в интерьерах лофтов возник относительно недавно. Он встречается в переделанных офисных или жилых помещениях. Изначально они строились как промышленные объекты (склады, ангары, гаражи и т.д.).
Содержание этой статьи:
Нередко в урбанистическом стиле отделывают пентхаусы элитных многоэтажных домов с выходом на крышу. Также для этого подходят заброшенные здания с потолками от 4-х метров, большими окнами и просторной планировкой без перегородок.

Loft в интерьере
Дизайнеры превращали неуютные постройки в комфортные студии. Где можно принимать гостей, проводить перфоменсы, обустраивать удобные уголки для творчества и отдыха.
В истоки появления
Первые loft apartment появились в 50 годах в США, во время кризиса. Все начиналось в период, когда многие предприниматели вынуждены были переносить свое производство за город из-за высокой арендной платы. Необжитые, покинутые чердаки, типографии и цеха производственной зоны стали снимать люди творческих профессий. Большие площади с шестиметровыми потолками подходили для организации выставочных залов или мастерских.

Первые loft apartment появились в 50 годах в США
Художники, архитекторы и другие владельцы таких «апартаментов» не обращали внимания на интерьер. Им просто нужно было место для работы, проведения выставок и эвентов. Поэтому при обустройстве они часто оставляли стены, пол, а также потолки без отделки.
Внутри расставляли лишь необходимую мебель. Отсутствие декора восполнялось авторскими произведениями искусства. Серые бетонные, кирпичные или обшитые досками стены служили основой (выставочным стендом), на которой хорошо смотрелись арт-объекты. А большие окна вместе с высокими потолками делали помещение достаточно светлым и просторным.

Актуальный индустриальный дизайн в интерьере
Со временем эти студии стали использовать как жилые квартиры. Для этого их оборудовали:
- санузлом. Единственная зона, которая закрывалась перегородками или стенами;
- зоной для приготовления еды. Кухня часто умещалась в одном из углов помещения. Она состояла из небольшого углового гарнитура, барной стойки поэтому занимала минимум места;
- местом для отдыха.
Лофты пользовались спросом у богемы, а также молодых людей, которые ценят минимализм в интерьере.

Для этого стиля подходят здания с потолками от 4-х метров, большими окнами и просторной планировкой без перегородок
вернуться к меню ↑Чем отличается?
С английского loft переводится дословно как: «голубятня», «чердак». Сейчас так называют просторные помещения без перегородок с минималистичным дизайном в стиле industrial. Хоть такой интерьер и напоминает верхний этаж промышленного здания, но все же привлекает оригинальностью идей и комфортностью.

Помещение без перегородок с минималистичным дизайном в стиле industrial
Сейчас Лофты узнают благодаря таким признакам как:
- открытость пространства;
- высокие потолки с балками;
- панорамные или просто большие окна;
- кирпичные или бетонные стены без штукатурки;
- цементный или деревянный пол;
- незакрытые вентиляционные или водопроводные трубы;
- преобладание белого цвета в отделке;
- дизайнерская функциональная мебель.
Но все же главной особенностью modern loft является оригинальность идеи, ведь Арт – одна из главных составляющих таких интерьеров. С этой ролью справляются:
- художественные полотна;
- авторские скульптуры из разных материалов;
- постеры в стиле Пин-ап;
- винтажная мебель.
А также другие предметы классического или восходящего к модернизму искусства должны присутствовать в интерьере.
вернуться к меню ↑Какой должна быть гостиная?
Если вам повезло, и вы владеете апартаментами с высокими потолками и открытой планировкой, то легко можете создать комфортный лофт. Для этого нужно потратить немного усилий и времени. А все потому, что основа под интерьер у вас уже практически готова, и ее необходимо лишь дополнить мебелью и декором. Гостиная должна:
- Объединять разные архитектурные решения. В интерьере должны соединяться элементы старины и инновационные решения. Старая антикварная мебель и современная техника. Изысканный декор и отсутствие отделки на поверхностях и т.д.
- Быть выполнена преимущественно в светлых оттенках.
- Иметь смешанное освещение. Отсутствие занавесок на больших окнах и много разных видов освещение делают гостиную достаточно светлой.
- Потолки высотой до 6 метров позволяют создавать двухуровневые конструкции с лестницами. На втором этаже в гостиной можно устроить зону отдыха или спальное место.
- Иметь удобную большую мебель с модерновым или классическим дизайном.
Стены и потолки гостиной должны казаться грубыми и необработанными. Если собираетесь их красить, то берите светлые оттенки.
Многие совершают ошибку и перед началом покраски выравнивают стены, а после накладывают фактурные штукатурки и другие материалы. Это делает их неровными. Если стены кирпичные или бетонные, то их можно просто покрыть белой или серой краской.
Пол в гостиной может иметь любое покрытие. Деревянный паркет или выложенный из досок, ламинат, наливной или бетонный.
Пол с ковролиновым покрытием будет неуместен. Также в лофтах не используют большие напольные ковры. Их лучше заменить натуральной овчиной или шкурами. вернуться к меню ↑Мебель
Простой дизайн и гигантские размеры – вот отличительные признаки мебели в стиле лофт. Одним из центральных предметов в гостиной служит диван. Он в отличие от другой мебели выступает в роли яркого акцента. Кожаная или текстильная обивка должна быть однотонной и насыщенной. Черный, красный, белый или серый цвет – неплохо смотрится в интерьере лофта.

Мебель выступает в роли яркого акцента
Нельзя представить зону гостиной и без аудио и видеотехники. Большой телевизор стоит установить или монтировать к стене напротив дивана. Для этого используют тумбу или кронштейны.
В гостиной, которая объединяется с обеденной зоной, размещают большой стол. Дизайн и размеры модели подбирайте в соответствии с габаритами комнаты и другими предметами. Массивная столешница может быть разных форм. Это может быть спил толстого ствола дерева или несколько сбитых досок, которые прикреплены к металлическим опорам.
В гостиной встречаются открытые стеллажи из дерева и металла, громоздкие тумбы, комоды, кресла и навесные полки.

Интересный дизайн с использованием качели
Деревянная мебель может отличаться красивым дизайном или наоборот иметь грубую слегка небрежную отделку. Встречаются также авторские предметы, изготовленные из подручных материалов. Более привычно смотрятся модели из дерева, кожи, текстиля, металла, реже используется пластик, стекло и др.
вернуться к меню ↑Декор
Нельзя забывать о декоре. Арт-объекты незаменимая часть дизайна гостиной в стиле Лофт. Выбирайте оригинальные предметы, изготовленные из подручных материалов или авторские работы. Декором послужат:
- большие часы на стене;
- вазы;
- светильники разных форм;
- гипсовые или металлические статуэтки;
- картины;
- плакаты.

Арт-объекты — незаменимая часть дизайна гостиной в стиле Лофт
Если хотите создать уникальный интерьер, то дополняйте его дизайнерскими или авторскими украшениями в стиле Лофт. Их можно изготовить или купить на блошиных рынках почти даром.
вернуться к меню ↑Интерьер спальни
Спальня считается самым уютным местом в доме и зона отдыха в просторных Лофтах не исключение. Ее можно оградить раздвижными перегородками, а если высота потолков разрешает, то просто перенести на второй этаж. В таком случае закажите или построите сами удобную лестницу из дерева, металла, камня или бетона.
Стены в спальне с интерьером modern loft должны быть неровные и покрытые белой краской. Это визуально расширит пространство и сделает ее светлее.

Спальня — это самое уютное место в доме
Из мебели в спальне устанавливают:
- Большую комфортную кровать. Модель выбирайте в зависимости от размеров помещения. Часто устанавливают высокие функциональные кровати с вместительными нишами под спальным местом. Это экономит пространство и делает интерьер эргономичным. Кровать может быть изготовлена из подручных материалов или иметь изысканный дизайн.
- Открытые стеллажи. Такие системы хранения ставят вместо громоздких шкафов. Они хорошо вписываются в интерьер и позволяют разложить на полках декор, одежду, обувь, косметику. Одновременно с этим стеллажи используются и как предметы для зонирования помещения. Их устанавливают возле стены или в другом удобном месте.
- Навесные полки встречаются разных размеров, формы и из разных материалов. На полках легко выложить и хранить домашнюю библиотеку, декоративные статуэтки, вазы, рамки с фото.
- Тумбы. Такие предметы имеют очень необычную форму и лаконичный дизайн. В качестве прикроватных тумб используются сундуки, раритетные чемоданы, конструкции из дерева или металла в форме буквы «П» и другие.
- Кресла. Если места много, то установите в спальне комфортное и оригинальное кресло. Модель может быть изготовлена из разных материалов.

Выбирайте большую комфортную кровать
Чтобы интерьер смотрелся завершенным, позаботьтесь об освещении и текстиле. Создать комфортную интимную обстановку можно с помощью роллет, занавесок или римских штор из однотонной грубой ткани. А чтобы в спальне было светло и уютно стоит монтировать люстры, светильники и подсветки.
вернуться к меню ↑Камин
Камин наполнит спальню теплом, и она станет более. Такое решение понравиться всем кто не любит свободную планировку. Причем не обязательно использовать настоящий камин. Вы можете установить фальш камин или соорудить его имитацию. Главное чтобы он хорошо вписывался в интерьер по форме, цвету и размеру.
Камины также неплохо смотрятся в зоне отдыха или гостиной.
вернуться к меню ↑Ванная и санузел без излишеств
Хоть лофты и не принято делить на отдельные комнаты, но такое «правило» не распространяется на санузлы и ванные комнаты. Часто эти помещения закрывают перегородками из разных материалов. Удобнее всего расположить ванную и туалет возле спальни или зоны отдыха.

Смелое решение для ванной
Если помещение имеет высокие потолки, то в санузлах стоит монтировать панели и сделать потолок более низким. Это стоит сделать, чтобы помещение по форме не напоминало колодезь. Серый бетон или неоштукатуренный кирпич будут смотреться органично. Для пола стоит использовать керамическую плитку дизайн, которой напоминает мозаику, камень или доски.
Совет Если в помещении есть окна, то завесьте их шторами или роллетами. А чтобы было светло используйте не меньше двух светильников или люстр.
Серый бетон или неоштукатуренный кирпич будут смотреться органично
Чтобы сделать стилистику помещения более выразительной и яркой стены стоит оставить неровными. Но для этого используйте фактурную керамическую плитку, которая имитирует кладку из кирпича или бетонную стену.
вернуться к меню ↑Мобильная мебель
Чтобы интерьер не казался пустым, в ванную комнату установите оригинальную мебель. Например:
- деревянную скамейку;
- невысокую раритетную тумбу;
- стеллаж, навесной шкафчик.

Оригинальная столешница для раковины
Такая деревянная мебель делает обстановку в ванною обжитой и комфортной.
вернуться к меню ↑Сантехника
В ванной и туалете лофтов используется в сантехника в стиле хай-тек. Часто также встречаются раритетные модели с необычным дизайном.

Нестандартный вариант
СоветВ качестве декора неуместно в санузлах и ванной использовать безделушки. Исключением служат арт-объекты.
вернуться к меню ↑Кухня в стиле Лофт
Кухня Loft-style отличается грубой отделкой стен, эргономичной мебелью, техникой, и планировкой. Нередко это не отдельная комната, а одна из объединенных функциональных зон в квартире-студии. Для разграничения этой зоны используются:
- предметы мебели;
- подсветка;
- разные виды отделки стен;
- многоуровневый пол.

Кухня Loft-style отличается грубой отделкой стен
Кухня не занимает много места, но она удобная и эргономичная в пользовании. Такая планировка подходит для активных людей. Эргономичный интерьер кухни отлично отражает такой настрой и уклад жизни.
Отличием такой зоны служит лаконичный дизайн, самая новая техника и эргономичное пространство. Для отделки стен комнаты и изготовления мебели используются разные натуральные материалы. Это снижает траты на ремонт и создает уютную обстановку.

Обычно такую кухню объединяют с другими помещениями
вернуться к меню ↑Освещение
В кухне должно быть несколько источников освещения. Помимо дневного света там должны быть:
- точечные врезные светильники;
- светодиодные подсветки;
- люстры;
- подвесные или потолочные светильники;
- бра или споты.
Чтобы пространство было открытым и светлым, позаботьтесь, чтобы в комнату попадал свет с окна. Его не завешивают шторами или гардинами, иногда закрывают роллетами или жалюзи. Для сохранения приватности используйте римские шторы.
вернуться к меню ↑Текстиль
Текстиль на кухнях с интерьером modern loft редко используется. Столы не покрываются скатертью, но если для вас это некомфортно, то лучше выбирайте модели из натуральной ткани с грубыми волокнами. Это может быть:
- мешковина;
- домотканое полотно;
- лен;
- рогожка и др.
Материал должен хорошо сочетаться по цвету с другими предметами.
вернуться к меню ↑Кухонный фартук
Стена возле плиты, мойки и рабочего стола всегда быстро пачкается, а ее поверхность приходиться часто мыть. Чтобы процесс был легким стоит использовать для отделки подходящие материалы. Кухонный фартук может быть в виде:
- кирпичной кладки;
- бетона;
- деревянных досок.

Чтобы процесс был легким, стоит использовать для отделки подходящие материалы
В таком случае стену защищают панелью из прозрачного каленого стекла. Она убережет фартук от загрязнений и ее легко мыть. Но практичнее использовать для отделки керамическую плитку, выполненную под бетон, кирпич или доски.
вернуться к меню ↑Гарнитур и другая мебель
Гарнитуры для кухни выбирайте угловые и функциональные. Они должны быть добротными, стильными и эргономичными. Нередко устанавливают барную стойку, которая также используется и для зонирования. К ней подбираются стулья и подвесные светильники. Эти предметы изготавливают из дерева, металла и камня.
В других вариантах стойка может заменяться островными тумбами, которые используются и как обеденный стол и как место для хранения посуды.
Такие модели из массива хорошо сочетаются с другими предметами мебели, а именно:
- со шкафчиками;
- табуретами или стульями;
- полками.
Декор
Для оформления кухни многие дизайнеры выбирают картины или скульптуры современных авторов, создают граффити на одной из стен или крепят плакаты, выполненные в стиле pin up. Уместно смотрятся авторские скульптуры из металла или дерева, рамки с фотографиями или изделия с блошиного рынка.
Технику стоит подбирать выполненную в металлическом корпусе или умело прятать ее за металлическими, а также деревянными панелями. Холодильник, посудомойку и другую технику умело маскируют грифельной самоклейкой.
вернуться к меню ↑Зона прихожей
Обустраивая Лофт, особое внимание уделите зоне прихожей. Поскольку она не обозначена стенами, то позаботьтесь о проведении границ функциональной мебелью, многоуровневым полом отделкой стен или другими стилистическими элементами.

Особое внимание уделите зоне прихожей
Прихожая должна быть выполнена в светлых оттенках. Стены комнаты не выравнивают, а оставляют фактурными. Их можно покрасить, если поверхность выложена из кирпича или облицевать плиткой, выполненной под кладку или бетон. Пол в прихожей может быть деревянным, наливным или покрытым ламинатом.
вернуться к меню ↑Мебель
Присущая лофтам открытость не позволяет в прихожей установить громоздкие шкафы и комоды для хранения одежды и обуви. Наиболее уместно здесь установить открытые вешалки и полки для хранения. Хорошо в прихожей смотрятся открытые стеллажи.
В качестве исключения в просторных помещениях, устанавливают встроенные шкафы-купе с зеркальными дверками.
Чтобы разложить вещи, в прихожей сверху монтируют открытые полки, которые напоминают полки в вагонах поезда. А уже на них размещают вместительные чемоданы, ящики или корзины для хранения.

Прихожая должна быть выполнена в светлых оттенках
Внизу открытые полки используйте для хранения сезонной обуви. Их монтируют под открытыми вешалками для одежды. Такие же модели подойдут для хранения аксессуаров и средств для ухода за одеждой и обувью.
Полки изготавливают из деревянных досок и металлических профилей, а также из металлической густой сетки с хромированной или покрытой краской поверхностью. В прихожей обязательно должно быть большое зеркало. Форма и размеры рамы должны вписываться в интерьер.

Не устанавливайте в прихожей громоздкую мебель
вернуться к меню ↑Мансарда в стиле лофт
Индустриальная эстетика особенно уместна в отделке мансарды. Помещение под крышей многоэтажного здания выполненное под лофт, понравится молодежи и творческим натурам.
В отделке мансарды используются те же стилистические приемы, что и для студий или малогабаритных квартир. Но стоит учитывать особенность помещения, а именно скошенный потолок. Чтобы правильно использовать пространство в этой зоне расположите там кровать или мебель для хранения вещей.
Наличие большого окна позволяет организовать светлую гостиную. Поскольку помещение должно быть светлым, то шторы не вешают. На подоконниках или стеллажах около окна расставьте много живых растений. Зелень вазонов и красивые горшки оживляют интерьер и послужат ярким акцентом.
В зоне гостиной мансарды стоит установить большой угловой диван, а напротив организовать видео-зону с современной аппаратурой.
Кухню лучше установить в углу. Для этого там устанавливают угловой гарнитур, современную технику и дополняют ее барной стойкой или островной тумбой. Если место позволяет, то рядом стоит установить обеденный стол.
вернуться к меню ↑Люстры в индустриальном стиле
Люстры для Лофтов имеют авторский дизайн и выполняются из таких материалов:
- металл;
- дерево;
- стекло;
- керамика;
- пластик;
- бетон и т.д
Дизайн моделей удивляет необычными формами. Они бывают квадратными, круглыми, зигзагообразными или напоминают неправильную геометрическую фигуру.
Также встречаются люстры из водопроводных труб, вешалок, стеклянных банок и т.д. В комнатах используют несколько видов освещения, чтобы сделать их более светлыми. Подбирайте люстры так, чтобы они хорошо смотрелись вместе.

Дизайн моделей удивляет необычными формами
Подвесные люстры на металлических цепочках с регулируемой высотой используются как один из основных источников света. Их можно крепить к потолку или балкам и регулировать высоту.
СоветВыбирайте дизайнерские модели оригинальной формы.
вернуться к меню ↑Шторы
Просторные и светлые интерьеры насыщенные духом творчества и свободы могут обходиться без штор и занавесок. Но в спальне или зоне отдыха встречаются классические занавески.
Если есть необходимость завесить окна шторами, то используйте шторы, из однотонной ткани с натуральными волокнами. Это могут быть льняные, хлопковые или сшитые из мешковины модели без рисунков и узоров. Что касается цветов, то они должны быть светлыми и хорошо сочетаться со стилистикой.
Наиболее практичными будут шторы серого, белого или бежевого оттенков.
вернуться к меню ↑Декор и предметы интерьера своими руками
В лофтах не используют лишних предметов. Каждая деталь подбирается с учетом ее функциональности. Это правило относится и к декору. Часто интерьеры украшают авторскими работами. Такие арт-объекты изготавливаются из подручных материалов.

В лофтах не используют лишних предметов
Стиль должен демонстрировать свободу и отсутствие, каких либо рамок. Поэтому в интерьере могут быть предметы с необычным и дерзким дизайном. Поэтому в качестве декора используют вещи, созданные своими руками.
вернуться к меню ↑Мебель из паллет
Деревянные поддоны используют для изготовления мебели. Из них можно изготовить:
1Роскошный каркас для кровати в спальню
Чтобы его изготовить понадобиться несколько деревянных панелей. Если кровать будет невысокой, то их стоит разместить на полу в один слой и скрепить между собой. Если вам нужна высокая кровать, то выкладывайте поверх нижнего слоя еще один и соедините их. Сверху на каркас необходимо положить готовый ортопедический матрас, подушки, постель и покрывало или плед.

Кровать их паллет
2Угловой диван для гостиной
Конструкция из паллет в форме буквы «Г» и мягкие подушки — основа дивана для зоны гостиной. Для изготовления вы потратите несколько деревянных паллет, 4 метра ткани, рулон поролона и 3-4 часа времени. Поддоны легко крепить с помощью саморезов, а чтобы каркас смотрелся привлекательно его необходимо покрыть краской светлых оттенков.

Угловой диван из паллет
3Невысокий журнальный стол в зону отдыха
Для изготовления будет достаточно одного поддона. К нему стоит прикрепить поворотные колесики опоры, а сверху монтировать стеклянную столешницу. Стекло стоит выбирать каленное и ударостойкие.

Мобильный журнальный столик
вернуться к меню ↑Изготавливаем светильники сами
Изготовить своими руками светильники смогут не все, а вот с абажурами справится каждый, кто хоть немного занимается творчеством. Для этого можно использовать подручные материалы:
- водопроводные трубы;
- вешалки;
- стеклянные банки;
- деревянные или металлические предметы;
- текстиль.

Светильник, который можно сделать своими руками
вернуться к меню ↑Оригинальный декор
Украшением в лофтах выступают совсем непривычные для интерьеров предметы. Это:
- велосипеды, которые хранятся в помещении на подвесах стены или потолка;
- открытые вешалки для одежды, изготовленные из водопроводных труб;
- напольные вешалки для одежды из срубленных молодых деревьев, без коры. Где каждая ветка – это крючок.
- напольные торшеры из металла;
- интересные фотографии или коллажи с деревянными рамками;
- коряги;
- авторская мебель;
- шкуры животных;
- подставки из металлического профиля для вазонов;
- покрывала, пледы ручной работы.
Такие авторские вещи с необычным дизайном сделают жилье очень привлекательным и неповторимым
Если лофт создавался в жилом доме, а площадь его при этом большая, то стоимость такого жилья достаточно высокая.
8 Общий Балл
Стиль лофт — это неординарный стиль, который вызывает разные эмоции. Для кого-то — это море ярких эмоций, для других — это полная свобода. Еще кому-то этот стиль напоминает что-то свое, полный отказ от норм, которые допустимы. А как Вы относитесь к этому стилю? Вся самая актуальная и востребованная информация у нас. Ознакомившись, пожалуйста, оставьте в комментариях свои оценки с аргументацией. Они будут полезными для других читателей. Нам очень важно Ваше мнение. Благодарим за Ваше участие. Мы ценим каждый Ваш отзыв и потраченное время.
Актуальность информации
8.5
Доступность применения
7.5
Раскрытие темы
9
Достоверность информации
7.5
Плюсы
- Доступность. Помещения, которые переделывались под жилую комнату на основе покинутых цехов, типографий и других промышленных объектов, продаются относительно недорого.
- Свободная планировка. Отсутствие стен и перегородок в квартире или студии делает ее очень светлой, просторной, что является плюсом. Ведь можно использовать все свободное пространство.
- Лофты можно использовать для разных целей. Это могут быть комфортные квартиры с удобным интерьером, просторные и светлые офисы, студии для занятий танцами или другим искусством, а также даже выставочные залы.
Минусы
- Минималистичные интерьеры не всем по вкусу. Многим там будет неуютно из-за отсутствия текстиля, перегородок и декора. Такой стиль не понравится людям, которые любят роскошный дизайн.
- Семьям с детьми в таких помещениях трудно: создать уютный уголок для каждого, обеспечить интимность.
- Высокие просторные помещения требуют много отделочных материалов на звуко- и теплоизоляцию. Поэтому они непрактичны и дорогие. Отапливать в холодный сезон такие просторные апартаменты очень не выгодно
modernplace.ru
Просторный белый интерьер лофта | Фото красивых интерьеров

Красивый лофт в округе Колумбия оформлен в традиционных фермерских традициях. В дизайне интерьера лидируют простые геометрические линии. Высокие потолки наполняют комнаты простором, светом и воздухом. Архитектор Пит Бун и дизайнер Дженнифер Шмидт оживили обстановку в большом доме, сделали ее современной и комфортной.
Стены выкрашенные в белый цвет, светлый пол, белая мягкая мебель делают обстановку легкой и воздушной. Обилие дерева и текстиля вносят свою лепту в домашний уют. Комнаты просторные, переходящие из одной зоны в другую.
Рабочая зона эффектная. Небольшой столик на металлических ножках дополнен удобным стулом и интересным пнем из прессованного дерева. Настольная лампа и торшер обеспечивают качественное искусственное освещение. Шкура на полу – красивый и эффектный аксессуар.
Зона отдыха выделена при помощи пушистого белого ковра. Невысокий столик из фактурного дерева дополнен диваном, тахтой и креслом. Чтобы светлые тона не смотрелись слишком холодными и унылыми, его разбавили ярким вкраплением зеленых веток.

Обеденный стол находится в шикарном окружении декора. Круглое зеркало на стене, красивая золотистая люстра, небольшой шкаф с расположившимся на нем декором хорошо оттеняют обеденный стол с красивыми и удобными стульями. Живая зелень освежает спокойный интерьер.

На консольном столике стоит светильник, аксессуары и цветок в белоснежном горшке. На стене повесили пару воздушных панно. В шести параллельных нишах поставили вазочки. Оригинальный пуф с мехом дикой козы украшает помещение.


Кухня соседствует с зоной отдыха. Кухонная мебельная стенка занимает пространство от пола до потолка. Рабочий остров дополнен высокими стульями. Все выдержано в белом цвете. Кухонная техника встроена в стену.


Спальня просторная, светлая. Главное место в центре комнаты занимает большая кровать. Две прикроватные тумбочки из темного дерева контрастируют на светлом фоне стены.

Оттоманка в виде мягкой лавки дополняет кровать. Возле высокого окна стоит красивая тахта. Небольшой столик создает дополнительный комфорт, а торшер создает мягкое освещение в темное время суток.

Ванная комната поддерживает общую тенденцию, она просторная и светлая. Мраморный пол подчеркивает дороговизну дизайна интерьера. Золотистый высокий кран установлен возле овальной чаши ванны.

© interiorizm.com — при копировании материалов активная ссылка на сайт обязательна!
♦ Рубрика: Белый цвет, Квартиры.♥ Метки: дизайн интерьера дома > интерьер лофта

interiorizm.com
Серо-белый интерьер квартиры в стиле лофт
Оформление квартиры в стиле лофт — это всегда много света, ощущение простора, и в то же время максимальный комфорт. Студия дизайна из Чехии ОООХ оформила в этом стиле мансарду старого пражского дома. Те, кто любит простые, разумные решения, и при этом ценит комфорт и современные достижения технической мысли, наверняка оценят этот интерьер.

Дизайн чердачного помещения выполнен в одном тоне, но получившийся серо-белый интерьер никак не назовешь скучным или неинтересным. Как раз наоборот: он создает настроение, позволяет расслабиться и погрузиться в свой внутренний мир.
Разные оттенки одного цвета — серого — покрывают стены и полы, потолок и даже мебель. Осветительные приборы, аксессуары и даже элементы декора в своей основе имеют серый цвет.

Чем же привлекательны серо-белые интерьеры для дизайнеров? Серый дает возможность создавать различное настроение, используя разные оттенки. Например, серебряные тона могут превратить простой интерьер в очень дорогой и солидный. Этот цвет сочетается абсолютно со всеми другими цветами спектра, давая возможность изменить обстановку в любой момент, меняя элементы декора добавлением цветовых акцентов.

Квартира в стиле лофт получила визуально отделенную от остального пространства гостиную зону. Она располагается непосредственно под окном в крыше. Благодаря наклону, оно направлено к небу и принимает больше дневного света, чем обычное окно в стене. Разумеется, подобные окна должны подбираться с учетом повышенных механических нагрузок, ведь в зимнее время на крыше может скапливаться снег.

В серо-белом интерьере кухни можно насчитать не менее пяти оттенков одного цвета, и это лучшее доказательство того факта, что серый может быть очень интересным при правильном его обыгрывании. Грамотно использованные металлические и глянцевые поверхности отражают свет, проникающий из большого, в пол, окна, игрой бликов расширяя пространство и делая его более светлым и радостным.


В спальне царствует минимализм, что не мешает ей быть уютной и спокойной. Также здесь имеются элементы из металла, подчеркивая общий стиль интерьера.



Квартира в стиле лофт может выглядеть изысканно и элегантно за счет правильного подбора цвета и сочетания различных фактур. Именно так выглядит ванная комната: большое количество стекла и зеркал, металлические элементы декора, отражая световые лучи, расширяют помещение, а матовые поверхности придают уюта и тепла.

Освещение — лампы, свисающие с потолка — обычно используются в подсобных подвальных помещениях. Идея дизайнеров — соединить “небо и землю”, превратить одно из помещений квартиры в “подземное”, чтобы расширить для жильцов их жилое пространство не только “по горизонтали”, но и “по вертикали”.

design-homes.ru
фото реальных интерьеров и особенности дизайна всех помещений, отделка стен и оформление мебелью и декором, белый кирпич и молодежные варианты
Лофт сегодня используют повсеместно: для кафе и баров, в студиях и офисах, в ванных комнатах и даже детских. Чем отличаются такие помещения, что главное в их декорировании, чего стоит опасаться. Поговорим о проекте комнаты в стиле лофт, но обо всём по порядку.
Содержание статьи [скрытьпоказать]
Особенности дизайна интерьера
- Помещение, выдержанное в модном индустриальном стиле, многим приходится по вкусу. Подразумевает минимальную отделку стен (часто кирпичная кладка), потолка и пола, или иллюзию отсутствия ремонта.
- Присутствуют следы коммуникаций дома – различных труб, вентиляции, балок, кранов – создаётся ощущение, что эти элементы никто не стал скрывать, и они выполняют свою прямую фунцию, хотя на деле могут являться муляжом.
- Мебель и предметы интерьера контрастируют с небогатой отделкой комнаты. Контраст может строиться на роскоши классического исполнения или на яркости и необычности авангарда. Также часто используются в совокупности стиль модерн.
- Широко применяется зонирование отдельных зон: зона для сна, диванная зона, кухонная, студия. Минимум перегородок и интересная планировка площади.
- Характерная черта лофта – высокие потолки, незакрытые шторами больше окна (допустимы деревянные жалюзи и ставни).
- Вся мебель относится к одной теме, дополняет друг друга.
- Если помещение большое – мебель объёмная. Если помещение маленькое, мебель подбирается в соответствии с принципом не утяжелить пространство (стеллажи с открытыми полками, использование стеклянных элементов, миниатюрные ручки, отсутствие балясин и мебельных карнизов).
- На стенах присутствуют предметы искусства, рамы, зеркала. Все они направлены на то, чтобы выявить контраст отделки.
- На потолке располагаются балки, перекрытия, роскошные люстры или студийные лампы (снова принцип контраста).
Фото
Лучше один раз увидеть, поэтому вот ещё несколько фотографий типичного ремонта в стиле лофт (если слово «типичный» вообще имеет право стоять с лофтом в одном предложении). Далее мы разберём подробнее каждую комнату и ее оформление.
Мебель, стены и оформление декором
Loft – это чердак в переводе с английского. Стиль пришёл из 40-50-ых годов, образовался в послевоенном Нью-Йорке, на Манхеттене. В связи с изменением цен на недвижимость, владельцы фабрик и мастерских стали сдавать опустевшие здания всем желающим.
Арендаторами выступили, в основном, прогрессивные художники того времени. Их привлекало большое пространство чердачных помещений, хороший свет для работы и низкая цена будущих студий. Стены и потолки часто оставались нетронутыми. Они могли нести в себе отпечатки бывших владельцев – индустриальные вывески, оборудование для цехов, столы из контор, жалюзи и ставни.
Так как помещением для жизни становился чердак – новые хозяева получали вместе с ним и все коммуникации дома, трубы, балки, провода, медные вентили.
Инсталляции и вывески от бывших владельцев
Стены – кирпичные или бетонные, пол — дощатый, деревянный. Мебель новых владельцев, если она была, сильно контрастировала с отсутствием ремонта; собиралась по блошиным рынкам в соответствии со вкусами богемы тех лет, привозилась с собой (хозяином мог быть обедневший аристократ) или покупалась (чаще из новомодных материалов: цветной пластик, стекло), а иногда и вовсе сколачивалась из подручных средств – досок или ящиков кока-колы.
Asterisk Сегодня мы всеми силами стараемся добиться ощущения настоящего лофта. Стены, пол, потолки, декоративные элементы, мебель подбирается с идеей восстановить интерьер прошлого.
Кстати, мы ещё писали в отдельной статье о том, что такое дизайн в стиле лофт. В ней рассматриваются особенности этого направления, а здесь же мы пойдём по комнатам нашей квартиры и посмотрим что с ними можно сделать.
Гостиная
Главная точка интерьера – диванная зона. Она приковывает к себе взгляды, задаёт направление стиля, занимает большое количество места, определяет ключевые позиции.
Главное правило, чтобы мебель контрастировала со стенами, потолком, полом, именно поэтому выбирайте яркие, интересные модели. Пусть это будет классическое решение, либо современный низкий диван, выдержанный с нотами минимализма или разноцветный представитель авангарда – главное предназначение мебели – выделяться.
Второй принцип, которого стоит придерживаться – необходимость создать простор. Не захламляйте помещение кушетками, тумбочками и пуфиками – оно должно дышать. Пусть диванный комплекс, словно островок, стоит посреди помещения, и вокруг не будет ничего.
Чаще всего гостиная в лофте – всего лишь зона посреди огромного пространства. И в таком случае к ней плавно примыкает кровать с тумбочками (спальная зона), кухня, рабочая студия. Стиль всех предметов интерьера выдерживается в одном решении, не противоречит друг другу.
Самые сложные вопросы появляются в связи с совмещенной кухней. Но не стоит пугаться, на деле подобрать кухонный гарнитур сегодня легко! Необходимо помнить в таком случае о принципе минимализма (не завешивайте рабочие поверхности лопатками, соусниками, дуршлагами). И напротив, кухня в лофте хотя бы внешне должна выглядеть не столь рабочей, сколько местом творчества – украшать ее стоит плакатами, инсталляциями или дизайнерской посудой.
Если объединение этих комнат вам интересно, то ознакомьтесь с нашим отдельным материалом для кухни-гостиной в стиле лофт.
А кому этой информации оказалось мало, то добро пожаловать в нашу большую статью о гостиных в стиле лофт. Там больше примеров и информация подробнее.
Кухня
Часто вдохновением для такой кухни служат кафетерии послевоенных годов Нью-Йорка. Представители богемы тащили в дом всё, что считали ярким и «говорящим». Так рядом с кирпичными стенами чердака вполне могла появиться горящая вывеска какого-нибудь кафе-мороженого или закрывшегося ночного бара. К тому же отделка фабрики и отделка гастрономического заведения того времени имели общие черты.
Кухня, переделанная из бывшего кафе
Классическое наполнение в лофте подразумевает собой – строгий интерьер, мебельные карнизы, балясины. Если именно это направление выбрано владельцем, в таком стиле должны быть и стулья, и посуда, и даже холодильник (его можно также закрыть мебельным фасадом).
Лофт с элементами классики
Когда в доме царит модерн или авангард, его стоит придерживаться вплоть до выбора тарелок. В первом случае удачным решением станут пластиковые разноцветные стулья, во втором минималистичные стальные.
Читайте в нашей отдельной статье подробнее о кухне в стиле заброшенного завода.
Спальня
Все предметы интерьера должны составлять одну общую цепочку стиля. В зависимости от того, какое направление выбрано владельцем, подбираются кровать и тумбочки в спальной зоне.
Интерьер спальни в едином стиле
Классике в лофте. Сегодня в магазинах представлен огромный выбор кроватей этого стиля. Часто они обладают богатым изголовьем, рельефом на дереве или кожаной обивкой. Прикроватные тумбочки также уместно выбрать с лёгким рельефом.
В классическом стиле
Низкие кровати, минимализм, современные инсталляции, лампы от модных дизайнеров, стеклянные, а иногда даже зеркальные тумбочки – всё это отлично впишется, если выбор пал на модерн.
Thumbs Up Авангард в интерьере – выбор творческих людей. Пластиковые предметы мебели, яркие цветовые решения, вещи с явным уклоном в поп-арт. Хотите кровать в виде губ или сколоченную из лодки – здесь возможно практически всё.
Проект детской
Достаточно необычное решение для детской комнаты, но вполне осуществимое. Главное условие – обеспечить санитарную составляющую стенам и потолку. Все поверхности должны легко поддаваться мойке и очистке, не создавать опасности для детей.
Безопасность — главное условие оформления детской комнаты
Самым большим плюсом для детской в индустриальном стиле является возможность постройки второго этажа или второго уровня. Вспомните, что любят дети, пофантазируйте. С имеющимися данными подобного помещения, ребёнку можно создать иллюзию города в комнате, с кирпичными стенами, фонарями, уютным спальным местом на втором этаже, а, может быть, даже подобием домика. Вот тут как раз к месту придутся часто встречаемые в лофте ставни.
Кстати, вы можете найти больше информации на нашей странице о детских комнатах в этом стиле.
Дети будут рады импровизированному второму этажу
Для молодого человека
Молодежные предпочтения выдерживаются в соответствии со всеми составляющими стиля. Мальчишкам это точно понравится. Кирпичная кладка так здорово смотрится рядом с любимой гитарой, а цвет стен оттеняет любимый синий плед.
Любимые гитара и телескоп
По статистике, лофт чаще всего выбирают неженатые мужчины. И как раз создать индустриальный стиль для подрастающего художника будет легко. Здесь уместны и тёмная клетка, и двуярусные кровати, и небольшие яркие диванчики, и плакаты – всё то, что часто можно увидеть в комнате обычного мальчишки.
Мы также подготовили дополнительные материалы, если вам интересно посмотреть больше решений комнат для мальчиков.
Приятные мужскому глазу детали
Для девочки
Нежность и лофт – понятия почти полностью противоположные. Но решение есть. Белый лофт способен справится с задачей создания светлого и девчачьего интерьера. Смело играйте со всеми пастельными тонами – светлыми розовым, жёлтым, сиреневым. Используйте неокрашенное дерево, дополняйте цветами и тканями с цветочными принтами.
Цветы и розовые тона порадуют женский глаз
В таком случае лофт будет идти рука об руку с прованским или кантри стилем. Постройте дополнительные ниши, чтобы скрыть высокие потолки (они не добавят уюта комнате), на окна установите белые ставни.
Возможно, вам будет любопытно ознакомиться на отдельной странице с вариантами женского лофта.
Элементы стиля прованс добавят элегантности интерьеру
Отделка ванной
Учитывая многообразие современных материалов и их расцветок, даже это капризное помещение можно оформить в выбранном стиле.
Яркая ванная с зеркалами
Традиционно индустриальный стиль ассоциируется с кирпичной, бетонной, деревянной стенами, штукатуркой. Существует огромное множество вариантов искусственной замены кирпича, в конце концов, поверхность можно покрыть подходящей для влажного воздуха ванной, латексной краской. Бетон заменить на микробетон, дерево обработать сохраняющими составами. Отлично в качестве перегородок подойдёт стекло.
Смотрите также на нашем сайте больше примеров и советов по оформлению ванной в лофте. Действительно, много примеров найдёте там.
Деревянные ящики и много лампочек без плафонов
Маленькая площадь и белый кирпич
Изначально стиль лофт подразумевал собой огромные площади. Но идея Энди Уорхалла стала настолько близка людям, что часто начали переделывать под лофт и типовые маленькие квартиры. Использование зеркал – уместно как нигде – увеличит зрительно помещение и поможет выдержать стиль.
Выбирайте более светлые оттенки серого и светлые оттенки дерева для отделочных материалов. Также вы можно прибегнуть к кардинальным мерам — использовать цветовые решения для расширения пространства – например, чёрный или тёмный потолок с правильным освещением, который добавит глубины. Или хотя бы одну стену сделайте белой.
Конечно, это не все способы, больше вы можете посмотреть у нас в отдельном гиде по стилю лофт для маленьких комнат.
Заключение
Лофт прочно вошёл в жизнь городских квартир. Сегодня его успешно применяют в самых разных помещениях. Материалы с каждым годом становятся всё удобнее в использовании и применении. В наши дни для усиления эффекта уже необязательно крошить стену и открывать всем на обозрение кирпичную кладку. Достаточно купить материал для имитации камня, который, к слову, нередко обладает защитными и антибактерицидными свойствами.
relend.ru
Черно-белый лофт — фото дизайн интерьера.
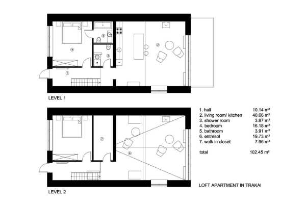
Молодая пара из города Тракай, Литва обратилась в студию дизайна и архетектуры Rimantus и заказала проект своей новой квартиры. Большое внимание дизайнеры уделили созданию функциональных зон и сохранению архитектурно контекста. В результате работы получился черно-белый лофт.
После того, как была произведена планировка квартиры, добавился второй уровень и мансардные окна. На первом уровне расположились пустая и просторная гостиная с кухней и барной зоной, холл с лестницей, душевая, спальня и ванная комната. На втором антресоль с зоной отдыха и гардеробной.

Дизайнеры попытались создать уютную, романтическую атмосферу, с акцентами лофт дизайна. Было решено использовать сочетание нескольких цветов — белого, черного и натурального дерева.
Стены окрашены в белый, чтобы придать аутентичный вид. Кухонный фартук было решено покрасить в черный цвет, также как и антресольную металлическую конструкцию и лестницу, это придает большей контрастности лофту. Лампы, розетки, выключатели и другие мелкие элементы декора выбраны также в черном цвете.


Простые светильники в стиле лофт с теплым светом создают приятное и уютное освещение.
Дизайнеры оставили много свободного места для самореализации и будущих потребностей молодых людей.
Черно-белый лофт:
Студия дизайна: Rimantus
Расположение: Тракай, Литва
Площадь: 102 м2
Проектный год: 2017
Фото: Андрюс Степанкевичюс
советуем посмотреть:
8loft.ru
Стиль лофт в интерьере: 80 фото дизайна комнат
Истоки этого стилевого направления ведут к 40-м годам, когда такой необычный дизайн жилища можно было увидеть у творческой богемы США. Открытые трубы, дух мастерской, заводские элементы и высокие потолки – это главные концепции стиля лофт в интерьере. Здания старых фабрик и подобных мануфактур превращались в элитные квартиры для встреч художников, писателей, музыкантов, дизайнеров.
Особенности стиля лофт
Каждый дизайн интерьера является сочетанием особых архитектурных и эстетических решений. Лофт – это гармоничный тандем старого и нового. Существуют также основные характеристики, по которым можно легко узнать данный стиль. К ним стоит отнести такие элементы:
1. Открытая планировка. Отсутствие перегородок, тяжелых штор и ширм – это 50% успеха в оформлении жилья в стиле лофт.
2. Большие окна. Изобилие света и пространства – основа лофта.
3. Практичная мебель. Она должна полностью соответствовать своим функциональным требованиям, а также выделять отдельные зоны помещения.
4. Деревянные лестницы. Такое простое индустриальное дополнение будет придавать комнате особого шарма и уюта.
5. Состаренная отделка. Ею может стать потертый пол, кирпичные стены, металлические детали, неприкрытые трубы. Аккуратная небрежность играет большую роль в дизайне лофт.
6. Высокие потолки. Визуально они сделают помещение еще более просторным и свободным.
7. Креативный декор. Черно-белые рисунки, абстрактные узоры, музыкальные пластинки, стеклянные вазы, необычные кашпо идеально впишутся в общую картину.
8. Холодные оттенки. Лучшие варианты – это серый, голубой, белый, коричневый.
9. Камины. Это еще одна рациональная возможность креативно дополнить дизайн лофт.
10. Сочетание старых и новых деталей. Например, современной техники и состаренных зеркал, модернизированных картин и «бабушкиного» плетеного кресла.

Мебель в стиле лофт
Одно из главных достоинств стилевого направления лофт заключается в том, что можно дать волю своей фантазии. Конечно же, учитывая особенности правильных сочетаний. Даже старый деревянный стол или ненужная металлическая вешалка за считанные секунды превратятся в урбанистические детали креативного помещения. Мебель в таком неординарном дизайне выполняет одновременно функциональную и эстетическую роль. Специалисты рекомендуют не останавливать свой выбор на чем-то одном, а комбинировать старое с новым. Идеально будут смотреться антикварные деревянные полки, состаренные шкафы, металлические журнальные столики вместе с хромированными современными стеллажами (которые смогут выступить прекрасным фоном для зонирования большой комнаты) и мягкими пуфами. Для гостиной подойдет софа-аккордеон, для спальни – классическая кровать с необычным изголовьем, для кухни – диван-книжка. Лучше всего обращать внимание на мебель прямоугольной формы, а также элементы ручной работы. Не стоит отдавать предпочтение слишком ярким оттенкам, чтобы не нарушить спокойную атмосферу помещения.

Текстиль, декор и освещение
Лофт – именно тот дизайн интерьера, который доказывает, что «стиль можно найти в отдельных деталях». Прекрасным и неординарным декором могут стать стеклянные фигурки, резьба по дереву, черно-белые фотографии, каменные сувениры, шкатулки ручной работы. Более минималистичный, но не менее интересный вариант – это пейзажные картины и навесные полочки с цветами.
Если вы решили выбирать текстиль, то стоит обращать внимание исключительно на светлые рулонные занавески, невесомые шторы ручной работы, а также геометрические узоры на диванных подушках. Можно выбрать кислотные цвета (в случае излишней однотонности отделки и мебели).
Лофт – это своеобразная бунтарская атмосфера. Освещение также должно быть не банальным, а оригинальным и разнообразным. Кроме основного источника света (люстры, светильники), прекрасно будут смотреться вмонтированные прожекторы под потолком, точечные подвесные или напольные светильники, а также металлические подсвечники.

Отделка и материалы
Правильный выбор напольного и настенного покрытия для стиля лофт – это ответственная задача. Нужно выбирать материалы сразу по нескольким критериям: высокое качество, гармоничное сочетание, функциональность.
Пол
Оптимальные варианты напольной поверхности для лофта – необработанные натуральные материалы (дерево, камень), ламинат или имитация кирпича. Эти виды отделки подчеркнут минимализм, эстетику и станут изюминкой комнаты.

Стены
В данном интерьерном направлении позволительно не декорировать обычную кирпичную кладку и оштукатуренные поверхности. Также можно оформить стены с помощью однотонной краски (чаще всего подходят бежевые, серые, голубые и кофейные оттенки), обоев с геометрическими узорами или пластиковых панелей, которые имитируют кирпич или дерево.

Потолок
Поддержать чердачные мотивы творческого хаоса поможет очищенная от штукатурки поверхность. Ее можно оставить свободной от декорирования, а можно покрасить эмульсионной краской нейтральных светлых оттенков.

Интерьеры в стиле лофт — фото
Данный стиль универсален для любой комнаты. Он создаст максимальный комфорт и спокойствие в спальне, придаст экстравагантности гостиной, наполнит бунтарским духом детскую, внесет изюминку в прихожую.
Дизайн спальни в стиле лофт
Основное правило при создании комфортного спального места в дизайне лофт – не загромождать пространство лишними деталями. Помещение должно быть просторным, свободным и светлым. Классическая кровать с металлическим или деревянным изголовьем, навесные книжные шкафчики, каркасные конструкции и основная изюминка в виде камина, каменной мозаики или настенной фотогалереи (если площадь комнаты позволяет).

Дизайн гостиной в стиле лофт
Этому месту в доме отведена важная роль – создание уюта не только для хозяев дома, но и для гостей. Большую гостиную в стиле лофт можно зонировать на 2 нужные зоны (например, кабинет и пространство для отдыха) с помощью книжных стеллажей или мягких кресел. Маленькую комнату стоит дополнить деревянным обеденным столом с коваными ножками, креслом-качалкой и антикварным декором на подвесных полках.

Дизайн кухни в стиле лофт
Диван-книжка, небольшой металлический стол, настенное панно и подвесные светильники над обеденной зоной станут отличным решением для кухни в стиле лофт. Главное – помнить о гармоничном сочетании цветов мебели, отделки и текстиля. Они могут быть одного оттенка, а могут контрастировать между собой.

Дизайн детской комнаты в стиле лофт
Лофт чудесно подходит для детской/подростковой творческой натуры. Современная кровать-подиум будет хорошо гармонизировать с деревянным состаренным мольбертом, большими пуфами, настенной имитацией балок, а также с декором в виде афиш музыкальных групп, рисунков и эксклюзивных игрушек ручной работы.

Дизайн прихожей в стиле лофт
Это помещение должно обойтись без громоздкой мебели и декора. Лучше использовать деревянные стеллажи, грубоватую отделку и состаренные зеркала. Так общая необыкновенная атмосфера будет дополнена, но не перегружена.

Видео: Стиль лофт в дизайне интерьеров
trizio.ru


