Удачная перепланировка квартиры в П44-Т — INMYROOM
Место
Москва, Рабочая улица
Тип дома
панельный дом серии П44-Т
Метраж
82,2 квадратного метра
Высота потолков
2,65 метра
Питомцы
кошка Гугля
Жильцы
молодая пара с маленькой дочкой и хорошим чувством юмора
Типовая трехкомнатная квартира в стандартном панельном доме не предполагает кардинальной перепланировки, однако архитектору удалось переосмыслить существующее решение. Точкой притяжения нового планировочного решения стала проходная гостиная, которую увеличили за счет присоединенной лоджии.
Новый проем между кухней и гостиной удалось согласовать, и в типовой малометражной квартире появилась отдельная прачечная. У нее есть и другое название – комната кошки. К удобству питомца подошли с вниманием – в межкомнатной двери проделали отдельную дверцу для самого маленького члена семьи.
Неудобство прихожей было связано не только с ее теснотой, но и с расположением входной двери в углу, что обычно для отечественного домостроения. Архитектор решила использовать пространство максимально эффективно и сконструировала набор многофункциональной мебели, чтобы сэкономить драгоценные сантиметры.
Несмотря на узкий простенок у входной двери, вписанная в габариты тумба служит и лавкой для переобувания, и галошницей. Зеркальная поверхность вместительного трехсекционного шкафа стирает ощущение его истинных габаритов. Двери-невидимки уменьшают концентрацию деталей в узком коридоре, что придает прихожей большую свободу и воздушность.
Отделочные материалы подбирались по принципу «гармония контрастов». Такие брутальные элементы, как бетонная поверхность, брашированная иженерная доска, графитовая черная стена, индустриальные раздвижные двери сочетаются со спокойными синими и глянцевыми белыми поверхностями, обилием зеркал и текстиля.
В угловой кухне было недостаточно света, кроме того, в ее окна глядели окна соседей. Чтобы добавить света и простора, архитектор использовала в этом помещении минималистичные формы и глянцевые, отражающие свет поверхности. Окно стало главным акцентом: вдоль него вытянулась широкая рабочая поверхность, переходящая в подоконник. Штора-плиссе позволяет в любой момент скрыться от соседских глаз.
«Владельцы сперва очень удивились тому, что им предстоит заказать окно с черной рамой на кухню, – вспоминает Мила Титова, – но пришли в полный восторг, когда была смонтирована темная столешница. Создалось полное ощущение перехода одного элемента в другой». Кухонные шкафы до потолка позволили задействовать площадь стандартной кухни максимально эффективно, нашлось место даже для дополнительного морозильника.
Для гостиной Мила придумала систему хранения, выполняющую сразу несколько задач. «На первой же встрече владельцы объяснили, что им необходимо рабочее пространство, но при этом не могли решить, какое удобнее – с барными стульями или обычными, – делится архитектор. – Я разработала мебельную конструкцию, в которой сочетается и то, и другое». Для дочки любимым местом в гостиной стал уголок творчества – черная графитовая стена для рисования мелом и теплый пол, который легко мыть.
В небольшую по размеру спальню архитектору удалось вписать будуарную зону для хозяйки. Она состоит из вместительной гардеробной с зеркалом во всю стену и туалетного столика слева от телевизора. Консольная тумба, нависающая на фоне вертикального зеркала, помогла решить задачу. Встроенная подсветка, обрамляющая зеркальное полотно, создает эффект гримерного зеркала и визуально поднимает потолок.
В детской главным акцентом стало яркое фотопанно с рисунком из карандашей, оно задает помещению вертикальный ритм, увеличивающий объем. Оптический эффект усиливает зеркало во встроенном шкафу. Напольное покрытие из пробки идеально подходит для детской комнаты, так как пробка всегда имеет теплую поверхность и обладает хорошими звукоизоляционными свойствами.
Архитектор Мила Титова
Планировка
Бренды, представленные в проекте
Кухня
Напольное покрытие: керамогранит «под бетон» Evolution Night, Polis
Мебель: кухня, Hanak; стол, Tulip; стулья, Eames
Освещение: подвесы, Regenbogen
Спальня
Отделка: керамогранит у изголовья, Kauri Awanui Tech Lap. Ret
Освещение: бра и настольная лампа, Arne Jacobsen
Детская
Напольное покрытие: пробка, Wicanders Identity Moonlight I 901
Мебель: ИКЕА
Хотите, чтобы ваш проект был опубликован на InMyRoom? Присылайте фотографии / 3D-визуализации на [email protected]
Создайте интерьер с товарами из магазина InMyRoom:
www.inmyroom.ru
10 удачных вариантов перепланировки двушки
Самые востребованные и реальные для согласования варианты перепланировок двухкомнатной квартиры в новостройках популярной серии п44т.
Перепланировка п44т
Новостройки серии П-44т — одни из самых распространенных в крупных городах России. Не смотря на неплохие исходные квартиры, можно сделать жилье еще более комфортным и продуманным с помощью перепланировки.
Большинство стен в квартирах домов серии П-44т — несущие. С 2007 года стали строить дома с нишами в несущих стенах в квартирах выше шестого этажа, в тех местах, которые оказались самыми востребованными при перепланировках. Эти ниши можно переоборудовать в дверной проем без дополнительного усиления металлоконструкциями. В домах до 2007 года согласовать такой проем все равно реально. ГУП МНИИТЭП, автор этой серии жилых домов, запрещает делать проемы в несущих стенах в не предусмотренных местах и срезать подоконные блоки в домах, построенных после 2007 года.
Сегодня мы рассмотрим варианты перепланировок двухкомнатной квартиры площадью 60,3 м². Мы взяли их на порталах Идеи Вашего дома, Жилэкспертиза и МВК сервис, чтобы проанализировать удачные и не очень решения.
Исходная планировка
Планировка подразумевает две изолированные комнаты, кухню, просторный коридор и раздельный санузел. На кухне есть эркер, в комнатах балкон и лоджия. Одна из вариаций исходных планировок имеет эркер еще и в спальне.

Вариант 1

Что поменялось:
- Объединение и расширение санузла. Увеличенное место позволит разместить в ванной шкаф и стиральную машинку. Принять взвешенное решение: «Совмещенный санузел: за и против».
- Достроена перегородка в спальне, которая позволяет удачнее расположить вход в комнату и сделать нишу для небольшой гардеробной или шкафа-купе с доступом из комнаты.
Согласование: несущие перегородки не затронуты, мокрая зона не перенесена — согласовать не составит проблем.
Модификация этого же решения, только без возведения стен в спальне. Демонстрирует возможное расположение мебели при такой перепланировке.
Вариант 2

Что поменялось:
- Объединение санузла. Без расширения, как в прошлом варианте, но стало просторнее.
- Перегородку между коридором и кухней демонтировали и перенесли, сделав в кухне дополнительную нишу: несомненный плюс для небольшой кухни.
- Кусочек коридора отгородили для создания кладовой: удобное место для хранения.
- Организовали дверной проем между кухней и гостиной. Это необходимая мера для создания кладовой, но теперь гостиная стала проходной: гостям или родственникам в ней будет не комфортно, в детскую или спальню эту комнату также не переоборудовать.
- В спальне появилась раздвижная перегородка, позволяющая разделить ее на две зоны. Например, спальню и детскую или спальню и кабинет.
Согласование: демонтаж ненесущих перегородок и установку новых согласовать не сложно. Организация дверного проема в несущей стене может вызвать сложности согласования в квартирах, где в этом месте не предусмотрены ниши, но согласовать изменение все же можно.
Это решение очень похоже, только вместо увеличения пространства кухни выбрано увеличение ванной комнаты, а кладовка меньше:

Вариант 3

Что поменялось:
- Санузел объединили и расширили за счет коридора. Мы не уверены, что такой большой санузел будет функциональным: прошлый вариант с кладовой нравится нам больше.
- Создание дверного проема между кухней и гостиной, как в прошлом варианте.
- В спальне воздвигли две перегородки, чтобы сделать более удобный вход и создать нишу для шкафа или кровати. Это логичное решение, не требующее особых затрат.
Согласование: санузел занимает часть коридора, что значит перемещение мокрой зоны: ее необходимо гидроизолировать, тогда согласование перепланировки возможно. Дверной проем аналогично прошлому варианту. Возведение перегородок в спальне не вызывает проблем.
Вариант 4

Что поменялось:
- Демонтаж перегородок между ванной и туалетом для расширения ванной. Туалет организован с помощью возведения перегородки в коридоре. Хороший вариант, если вам нужна просторная ванная, но при этом вам больше подходит отдельный туалет.
- Возведение раздвижной перегородки в спальне аналогично варианту 2.
- Дверной проем между кухней и гостиной, аналогично вариантам 2 и 3.
Согласование: опять мокрая зона перемещается в коридор, а в данном случае еще и появляется необходимость протягивать сантехнические коммуникации. Это сложность как для реализации, так и для согласования, но решить ее реально.
Вариант 5

Что поменялось:
- Простое объединение санузла.
- Возведение гипсокартонных перегородок под гардеробы.
Здесь дополнительно снесена перегородка между коридором и кухней и показано возможное расположение мебели:
Согласование: только демонтаж не несущих перегородок. При соблюдении гидроизоляции санузла, согласование будет легким.
Вариант 6

Что поменялось:
- Расширение ванной за счет коридора.
- Создания запасного туалета со входом из кухни. На наш взгляд — это не слишком практичное решение.
Согласование: необходимо согласовать перенос мокрой зоны в коридор и сделать гидроизоляцию, планировка согласуема.
Вариант 7
Эта квартира из базовой модификации, домов серии П-44. У П-44 и П-44т похожая планировка двухкомнатных квартир, только уменьшен метраж и нет эркера на кухне и балкона. Мы рассматриваем ее из-за интересной перепланировки, которую частично можно воплотить и в домах П-44т.

Что поменялось:
- Перенос кухни в коридор — интересное решение. Зона столовой в данном случае организована на месте гостиной, которая располагается в комнате, которую в прошлых вариантах отводили под спальню.
- Перемещение спальни здесь возможно, потому что вместо кухни расположена большая ванная с зоной отдыха и окном: рай для любителей водных процедур. Она получается личной ванной, примыкающей к спальне и проходом только из нее, прорубленным в стене.
- В коридоре предусмотрен гостевой санузел.
Двери в спальню и гостиную смещаются, чтобы не делать пространство у кухни очень тесным.
Согласование: здесь много сложный решений, таких как перенос кухни в коридор и ванной в кухню. Для серии П-44т будет сложным и согласование переноса большого количества дверных проемов. Согласовать такую перепланировку возможно далеко не во всех случаях.
Фотографии: mvk-service.com, ivd.ru, zhilex.ru
перепланировка, планировка, новостройкаkvartblog.ru
Дизайн трехкомнатной квартиры п44т. Проект трешки п44т
Дома типа п44т активно начали возводить в конце 90-ых. Такое жилье отличалось улучшенной планировкой, поэтому многие семьи поспешили перебраться в новые квартиры.
И самой удобной до настоящего времени считается именно трехкомнатная квартира в таком доме, ведь на площади, которая обычно составляет более 80 квадратных метров, можно обустроить настоящее семейное гнездо.
Сейчас стало модным обращаться к дизайнерам, чтобы оформлением интерьера занимался специалист, но дизайн трехкомнатной квартиры п44т можно разработать и самостоятельно.

Несмотря на большую площадь, часто для того, чтобы сделать место проживания более удобным, требуется перепланировка. Но чтобы разобраться в том, какие изменения можно провести, следует сначала выявить особенности помещения.

Плюсы трехкомнатной квартиры
Так как предполагалось, что в трех комнатах будет жить семья, то все помещения изолированы друг от друга. Это огромный плюс, потому что можно по-разному оформлять интерьер в каждой комнате.

Еще один плюс домов серии п44т – большая кухня. Несколько метров свободной площади появилось благодаря тому, что проектировщики изначально решили выносить вентиляционные короба в коридор.

К тому же короб имеет форму прямоугольника, поэтому не составляет труда подобрать подходящую мебель и материалы для того, чтобы скрыть короб.

Наличие больших лоджий также позволяет экспериментировать. Иногда в таких квартирах есть сразу два балкона и два санузла – это также очень удобно.

Варианты перепланировки
Обычно в трехкомнатной квартире много несущих стен, что служит препятствием для проведения кардинальной перепланировки. Но все же есть несколько способов, как можно высвободить несколько метров полезной площади и разработать оригинальный дизайн 3 комнатной квартиры п44т:
- Самый распространенный прием – объединение кухни и гостиной. Этот способ перепланировки квартиры позволяет всей семье вечером собираться в одном помещении. Если стена несущая, то обычно просто прорубается дверной проем или арка, чтобы удобно было проходить из зала в кухню.

- «Расширить» кухню также можно, если соединить ее с лоджией. Получившееся дополнительное пространство можно занять обеденным столом, барной стойкой или шкафами для хранения посуды.

- Лоджию можно использовать как небольшую комнату. Для этого закрывается оконный проем и меняется дверь. Также придется утеплить получившееся помещение или постелить полы с подогревом.

- Избавляться в квартире можно от незадействованного пространства в коридорах. Коридор можно присоединить к ванной и получить место для стиральной машинки или сушилки для белья. Кроме этого, часть узких проходов можно присоединить к площадям комнат и установить там шкафы купе.

- В некоторых домах есть эркер, и с этой деталью также можно экспериментировать – например, в этом пространстве можно организовать место для отдыха или небольшую библиотеку.

Разработка интерьера в трехкомнатной квартире
Интерьер трехкомнатной квартиры может оформляться по-разному. Все зависит от проведенной перепланировки и количества членов семьи.

Нужно не забывать, что, несмотря на большую площадь и наличие нескольких окон, в домах такого типа довольно темно. Именно поэтому при разработке дизайна трехкомнатной квартиры п44т следует хорошо продумать, как будет освещаться жилое помещение.

Все комнаты могут оформляться как в одном стиле, так и в разных. К примеру, можно обустроить кухню, коридоры и холл в одном стиле, гостиную – в другом, а спальни – в третьем. Но в любом случае должно сохраняться ощущение гармонии.

Дизайнеры рекомендуют не использовать везде классику. Колонны, лепнина, тяжелая мебель и кованые детали могут сделать квартиру неуютной и холодной, напоминающей музей. Лучше отдать предпочтение современным стилям и необычной отделке поверхностей.

Интерьер гостиной
Дизайнеры советуют оформить гостиную в светлых оттенках. А если проведена перепланировка и в зале есть обеденная зона, то лучше выбрать бежевую цветовую гамму или любые пастельные тона.

Так как гостиная станет местом, где будут проводить свободное время все члены семьи сразу, то ее лучше разделить на несколько зон. В комнате кроме дивана, может быть уголок с креслом, где можно будет читать, а также рабочий столик, где можно установить компьютер или ноутбук. Если зал объединен с балконом, можно поставить барную стойку и оформить дизайн помещения, как в кафе.

Очень интересно будет смотреться гостиная, оформленная в скандинавском стиле, сочетание белого цвета и натуральных материалов всегда актуально. Если хочется поставить камин и большой диван, то можно выбрать американский стиль. Любителям экзотики можно посоветовать выбрать африканский стиль.

Стиль, выбранный для гостиной также можно использовать для оформления всех коридоров и прихожей.
Оформление спальни
Если в трехкомнатной квартире, например, живут две пары, то придется сделать две спальни, они могут быть оформлены в зависимости от предпочтений хозяев. Но даже если в доме будет только одна спальня, желательно, чтобы интерьер этого помещения отличался от основного стиля.

В последнее время дизайнеры часто оформляют спальню в арабском стиле. В этом случае можно использовать недорогие материалы для отделки, главное – текстиль. Такая спальня может стать самой необычной комнатой в доме.
Так как в спальне не нужно устанавливать бытовую технику, то можно выбрать для оформления стиль эко. Деревянная кровать, бамбуковая мебель и постельное белье из натуральной ткани позволят каждый вечер хорошо расслабиться и забыть о городской суете.

Если интерьер спальни разрабатывается для молодой девушки, можно выбрать французский стиль и стиль шебби шик.
Дизайн детской
Если в семье есть ребенок, то одна комната, как правило, автоматически становится его собственностью. Поэтому выбирать стиль лучше исходя из характера ребенка и его возраста.

Подростки обычно очень привередливы, но наверняка, оценят необычные вещи такие стили, как лофт, поп арт или минимализм.

Так как детской становится обычно самая маленькая комната, то нужно подобрать практичную и многофункциональную мебель. Можно установить кровать на подиуме, внутрь которого можно будет прятать все вещи ребенка или спальное место прямо над рабочим столом.

Необычное использование третьей комнаты
Когда в квартире проживает только семейная пара, то обычно третья комната пустует. Ее можно сделать помещением, где будут останавливаться гости, но дизайнеры предлагают новые способы использования этой площади.
Так можно не загромождать другие помещения большими шкафами, а устроить в этой комнате гардеробную. Можно поставить открытые стеллажи, большое зеркало или заклеить зеркальной панелью дверь.

Кроме этого, небольшое помещение отлично подходит для того, чтобы там обустроить домашний спортзал. Многие семьи покупают беговую дорожку или велотренажер, но не знают, куда поставить эти тренажеры.
А если в квартире проживают творческие люди, то третья комната может стать местом для уединения и творчества: библиотекой, кабинетом или мастерской.

Дизайн кухни
Особенно в тех помещениях, где проведена перепланировка, хозяевам сложно выбрать стиль интерьера для кухни. Если в стене есть дверной проем или арка, то нужно постараться сохранить гармонию.

Часто дизайнеры используют похожие стили, но одно цветовое решение. Можно увидеть сочетание современного стиля и стиля хай тек, французского и прованского стилей, а также голландского и скандинавского.

Приглашаем авторов, дизайнеров и магазины к сотрудничеству. Читайте об этом в соответствующем разделе
dekodiz.ru
Перепланировка П44Т


Панельные дома серии П44Т — одни из самых распространенных ныне возводимых типовых многоэтажек. Они массово строятся сейчас в Москве и ее окрестностях. Довольно много таких домов используется для расселения сносимых хрущевок. Автором данной серии, а также ее предшественницы П44, является институт ГУП МНИИТЭП.
Интересной особенностью перепланировки квартир в П44Т являются т.н. проектные ниши (стены-трансформеры). С 2007 года дома данной и некоторых других МНИИТЭП`овских серий строятся с защитой от «прогрессирующего обрушения». То есть несущие стены особым образом армируются, и в них нельзя делать проемы — за исключением специально предусмотренных ниш под устройство проема (начиная с шестого этажа). Любопытно, что когда вы согласовываете демонтаж проектной ниши в П44Т или другой серии, то усиления проема не требуется.
В трехкомнатных квартирах, а также двушках распашонках данной серии домов часто возникает вопрос относительно стены, которая разделяет большие комнаты. Во многих случаях собственники, решившие сделать перепланировку такой квартиры П-44Т, хотят частично «укоротить» эту стену, чтобы, например, организовать тамбур между комнатами. Делать это, конечно же, запрещено. Эта стена является несущей, и отрезать от нее кусок с торца, даже с последующим усилением металлоконструкциями — нельзя. Ни автор серии П44Т, ГУП МНИИТЭП, ни Мосжилинспекция не согласуют перепланировку с затрагиванием торца данной стены.
В торцовых трешках и двушках серии П 44т гостиная с эркером имеет балку посередине комнаты. Срезать ее нельзя, это несущая конструкция
Эта стена в прихожей также является несущей. Арочный проем сделан на домостроительном комбинате. Делать такие проемы в несущих стенах самостоятельно не допускается.
Проекты перепланировки квартир П-44Т
Перепланировка трехкомнатной квартиры в П44Т площадью 75 кв.м с объединением кухни и комнаты через проектную нишу в несущей стене без усиления металлоконструкциями. Также данным проектом предусматривалось объединение и расширение ванной и санузла на коридор, ведущий в кухню.
Перепланировка другой 3 комнатной п44т, также с демонтажом предусмотренной проектной ниши в панели-трансформере
Еще один пример перепланировки трешки П44Т
Перепланировка однокомнатной квартиры П-44Т
Стандартная однушка площадью около 38 кв.м. Сдвижная перегородка, установленная посередине жилой комнаты, позволяет при необходимости превратить данную 1 комнатную квартиру в 2 комнатную. Дом был построен до 2007 года, так что кухню и комнату соединили через проем в несущей стене, усиленный металлоконструкциями. Это позволило заложить проектный проем между прихожей и жилой зоной. Также был осуществлен перенос ванной и санузла (в пределах коридора, как видно на схеме). В результате получился более просторный коридор.
apb1.ru
Дизайн трехкомнатной квартиры П-44Т, перепланировка и декорирование
Дизайн трёхкомнатной квартиры для семейной пары в доме серии П-44Т в Московской области. В проекте не так важна была экономия пространства, как удобство и эстетичность интерьера в целом, который был исполнен в стиле современной классики.
Одной из основных задач перед дизайнером было увеличение ванной комнаты для размещения в ней сауны, такой любимой главой семейства.
Немаловажным для пары было получить классический стиль интерьера, но чтобы при этом квартира не выглядела традиционным образом. Признавая именно классический стиль как основной, пара, тем не менее, не боялась его современных интерпретаций. Нашей задачей было создать просторный светлый интерьер, который бы подошел одновременно как для встреч с друзьями, так и для уютного уединения.
Помимо разработки дизайн-проекта, наша студия должна была вести авторский надзор за ремонтными работами, избавив таким образом заказчиков от лишних хлопот организационного характера.
Перепланировка квартиры
Главным моментом в перепланировке квартиры было увеличение площади ванной комнаты за счет использования площади коридора. Тем самым мы получили просторное помещение в 8 кв.м., в которое смогли поместить двойной душевой бокс с функциями душа и сауны, а также ванну, широкую раковину и унитаз. Благодаря оптимальной расстановке оборудования, ванная комната осталась достаточно просторной.
Поскольку коридор мы заняли помещением ванной, вход на кухню был организован через проходную гостиную. Отличительной чертой кухни является большая столешница вместо подоконника, благодаря чему можно завтракать, наслаждаясь видом из окна. П-образная расстановка кухонной мебели позволила скрыть зону приготовления пищи посредством барной стойки, не используя двери между помещениями гостиной и кухни.
В гостиной мы убрали окно и балконную дверь на лоджию, а также снесли подоконную часть, получив дополнительное пространство для гостиной, в которое благополучно поместился круглый стол для ужинов как вдвоем, так и в компании друзей.
В результате перепланировки мы получили просторную гостиную, кухню с нестандартным расположением мебели, хозяйскую и гостевую спальни и просторную ванную комнату.
Дизайн интерьера квартиры
Как уже было сказано выше, дизайн интерьера для этой квартиры должен был получиться в классическом стиле, со спокойной выдержанной цветовой гаммой.
Поскольку между прихожей, гостиной и кухней нет дверей, эти помещения нужно было сделать в едином стиле, с повторяющимися объединяющими их мотивами и элементами. Темная плитка с контрастными белыми вставками повторяется во всей квартире: в прихожей, гостиной, на лоджии и на кухне. Рисунку плитки вторит и столешница на кухне, выполненная из искусственного темного камня, ровно как и темные декоративные вставки из обоев в обрамлении молдингом за телевизором, подобное обрамление проема на лоджию, а также подушки, скульптуры и другие элементы декора.
Спальню семейная пара хотела получить очень светлой и нежной. Пропорции комнаты не позволили нам сделать что-то интересное с расположением мебели, но мы заострили внимание на отделочных материалах и мебели. Комната получилась настоящим местом для отдыха – светлая мебель, отсутствие громоздких элементов, мягкий свет, отдельное место для хозяйки с туалетным столиком и пуфом, обои со стеклянным напылением в виде птичек – все это создало романтический, легкий образ.
www.kv-design.ru
п44т двушка распашонка
Самая востребованная квартира панельного дома серии П44Т которую активно покупают молодые семьи, принадлежит большой двушке распашонке А полюбить её есть за что. Метраж составляет 62 — 64кв.м Окна выходят на разные стороны, два больших балкона, кухня с большим и просторным эркером. Ну как не влюбиться в такую квартиру. Мечта каждой семьи. Давайте ознакомимся с этой квартирой поподробнее. И начинаем наш обзор с прихожей.
Прихожая – размер прихожей 9,6 кв.м поделённый на две зоны холл и коридора. Как видно из фото ниже, глубокие шкафы в холле поставить не получится. Иначе они будут закрывать дверной проём. Расстояние с лева от стены до входной двери составляет в районе 36 см. А по правую стенку 26 см. Еще слева на стене «догадались» щитовой шкаф повесить. Напрашивается разместить в этой части прихожей узкий ящик для обуви, банкетку, зеркало и вешалку для одежды.
Пример такого ящика для обуви от ИКЕА
А здесь разместились банкетка и вешалка
Но можно конечно и здесь встроить шкаф купе.
или установить целый гардеробный комплекс.
Встаём затылком к входной двери, и глазами упираемся в две межкомнатные двери. В комнаты пока заходить не будем, а прогуляемся по коридору ведущего на кухню и ванну с туалетом.
А вот и коридор. С одной стороны коридора двери в ванну и туалет, а с другой имеется очень хороший уголок. Куда можно поставить большой встроенный шкаф.
Шкаф в углу коридора с раздвижными дверями.
Кухня
вот уж и правда, что хорошо получилось, так это кухня. Общий метраж кухни составил 12.9 кв.м. Форма помещения квадратное, плюс на кухне есть большой и просторный эркер. Воля для фантазии дизайна и интерьера будет достаточно. Круглый стол в середине кухни встанет на свою коронную позицию, а длинные стелящиеся по полу шторы, создадут неповторимую атмосферу в интерьере кухни.
Диван теряется на кухне, куда бы вы его не поставили.
Некоторые жильцы задаются вопросом, для чего нужно небольшое углубление в стене на кухне за холодильником. Оказывается всё просто. Это место для технологического проёма. Если вы решите на кухне сделать перепланировку и вход на кухню со стороны комнаты, вы можете сломать этот проём.
Вот пример такой перепланировки, как сделали вход на кухню с маленькой комнаты.
Покидаем кухню и следующим помещением в которое мы зайдём — это санузел.
Ванна и туалет
расположен не совсем подходяще, прямо за кухонной стеной. Особенно если у вас вечеринка и на кухне собралось много друзей, не лучшее решение иметь такое по близости. Хорошо если на кухне установлена дверь.
Ванна комната имеет размер площади почти 4 кв.м.
Многие стараются соединить ванну с туалетом, а вместо ванны устанавливают душевые кабинки.
Пусть туалет с ванной будут совместные, зато полезная площадь увеличивается.
Маленькая комната
размер помещения в маленькой комнате, 14,9 кв.м. что очень даже хорошо. Комната получилась квадратная. Имеется выход на большой просторный балкон — среди жильцов прозванный утюг, так как очень похож на форму утюга. Многие жильцы, во время ремонта стараются объединить балкон утюжок с комнатой, при этом утеплив его. Это разумно и выигрышно по площади. Зачем раскидываться лишними метрами и использовать балкон только для хранения ненужных вещей.
Вот так выглядит балкон утюжок, от застройщика ДСК-1
Из комнаты получается просторная спальня, где будет стоять большая роскошная кровать.
Огромная гардеробная.
или детская комната как для одного, так и для двоих подростков.
Двухъярусная кровать чердак, сэкономит ещё больше места в детской комнате.
А на балконе организовываем рабочую зону.
Большая комната – размер площади составляет 19 кв.м. Обычная стандартная комната прямоугольного вида, как и во многих других домах. По длине стены получается 5 метров 55см и ширине 3 метра 43 см. Входная дверь в большую комнату расположена в углу, что не дает возможности во всю правую стену вытянуть шкаф, в отличии от двушки линейки. Самый главный косяк комнаты — со стороны стенки наличник просто не влез. И смотрите на фото какой получается некрасивый вид на дверь. Что бы такого не произошло и у вас, во время ремонта нужно удалить часть бетонной стены, увеличив дверной проём. И тогда места для наличника хватит. Если вы будете нанимать бригаду для ремонта, обратите на это пристальное внимание.
Так же в комнате имеется выход на балкон – получивший название «Сапожок» из-за своей формы который напоминает вид сапога.
Как всегда, в конце хочется подвести итог квартиры большой двушки распашонки панельного дома П-44Т Квартира получилась очень интересная и по праву пользующаяся спросом среди покупателей. Семье из двух детей и родителей места хватит. Благодаря большой кухне, все ваши гости свободно могут на ней поместится и не нужно будет переносить стол в комнату для вечеринки. Площадь балконов при перепланировке можно использовать для продолжения комнат.
люди интересуются
Впускной механизм бачка с нижней подводкой, странное поведение
ответов 1
Какие размеры окон на балконе однушки п-44т
ответов 1
Стеклянный стол на кухне фото в интерьере
Шторы и тюль на кухне фото в интерьере
Двушка распашонка П44ТОбзор двухкомнатной квартиры распашонки 60 — 64 кв. метра Панельного дома П-44Т
П-44т планировка с размерами 3-х комнатная квартираОбзор планировки трёхкомнатной квартиры панельного дома серии П-44Т
domsoseda.ru
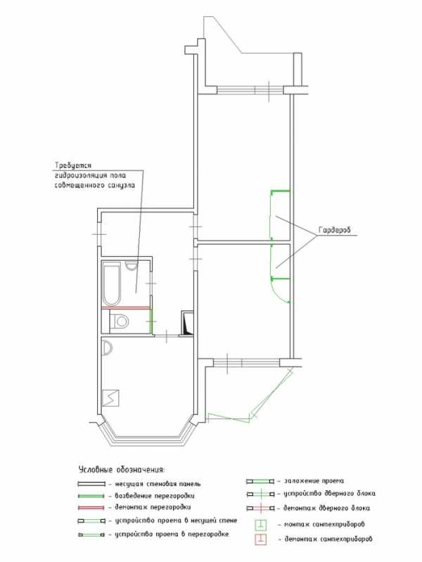
Перепланировка 3 х комнатной квартиры в П 44Т
Квартира расположена в 17-этажном панельном доме, построенном в 2013 году по типовому проекту серии П44-Т.
При проведении ремонтно-строительных работ кардинальному переустройству подвергли туалет (6) и ванную (5) – их объединили в единое помещение.


При устройстве совмещенного санузла (5) в рамках перепланировки 3 х комнатной квартиры в П 44Т, не изменяя габаритов сантехнической шахты и проектного положения магистральных стояков, расположенных в ней, демонтировали сантехкабину и сантехнические приборы.
В существующей перегородке провели демонаж/установку дверного проема с дверным блоком. Новую ненесущую перегородку между санузлом и прилегающим коридором (8) возвели несколько иначе и таким образом, что к санузлу добавилась часть площади этого коридора.

Согласно соблюдению норм СП 71.13330.2017 «Изоляционные и отделочные покрытия», в устроенном совмещенном санузле выполнили гидроизоляцию пола с составлением акта на скрытые работы.
В завершении переустройства санузла в помещении установили новые сантехнические приборы с изменением их проектного положения.


Далее перепланировка 3 х комнатной квартиры в П 44Т была продолжена. В соседней с санузлом кухне (4) провели перестановку электрической плиты и мойки, а также устроили декоративную конструкцию из ГКЛ высотой 1220 мм.
Комнату (1), служащую гостиной, увеличили за счет площади коридора (7) путем демонтажа ненесущей перегородки с дверным проемом.
А в еще одной комнате (3) в процессе перепланировки 3 х комнатной квартиры в П 44Т устроили перемычку между двумя несущими простенками.
gsps.ru
