6 идей дизайна квартиры-студии 30 кв.м. с фото. Красивые интерьеры и дизайн
Однокомнатная квартира площадью 30 кв.м. Достаточно ли этого для нормальной жизни? Кто-то даст на этот вопрос отрицательный ответ, мы же говорим: даже в самом маленьком помещении может быть достаточно пространства для всего необходимого, если правильно его оборудовать. Немного фантазии и хитрости, и вы без труда создадите проект самой удобной планировки однокомнатной квартиры. Мы подобрали для вас шесть дизайн-проектов квартир в 30 кв.м.
Дизайн однокомнатной квартиры-студии 30 кв м от Елены Потемкиной

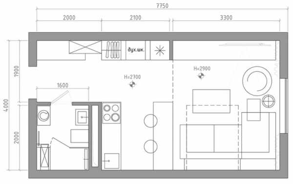
Жилая площадь первого варианта составляет 29 кв.м., на которых в стороне которых располагается кухня, а в центре — угловой диван с настенными полками светящегося светло-серого цвета. Кухонная мебель и тумба под телевизор выполнены в сером антраците.
Интерьер квартиры-студии 30 кв. м.

Стеновое и потолочное оформление разделяет помещение на две функциональные зоны: кухню и гостиную-спальню. В кухонной зоне потолок и стены традиционно окрашены белой штукатуркой. Спальную зону дизайнеры оформили в индустриальном стиле, оставив голые бетонные стены. Рядом с телевизором поставили полуабстрактную картину, поддерживающую общую цветовую гамму и настроение помещения. Связующим звеном между двумя зонами являются светильники: черные, как и вся кухня, они украшены неким подобием абажуров в виде пирамид, относящих нас к индустриальному оформлению спальни.
Красивый ремонт в однокомнатной квартире 30 кв. м. в хрущевке

Индустриальный интерьер в оттенках серого

За кухонной зоной находится ванная комната в современном стиле, оформленная натуральным камнем темно-серого цвета и темным деревом. Душ отгорожен стеклянной стеной.
Маленькая функциональная ванная комната в антраците и темном дереве

Встроенный шкаф с глянцевой поверхностью

Однокомнатная квартира-студия в индустриальном стиле

Дизайн-проект квартиры в 29 кв.м.

ЧИТАЙТЕ ТАКЖЕ: Уютный интерьер квартиры-студии, 4 дизайн-проекта
Дизайн однокомнатной квартиры от Екатерины Ремизовой

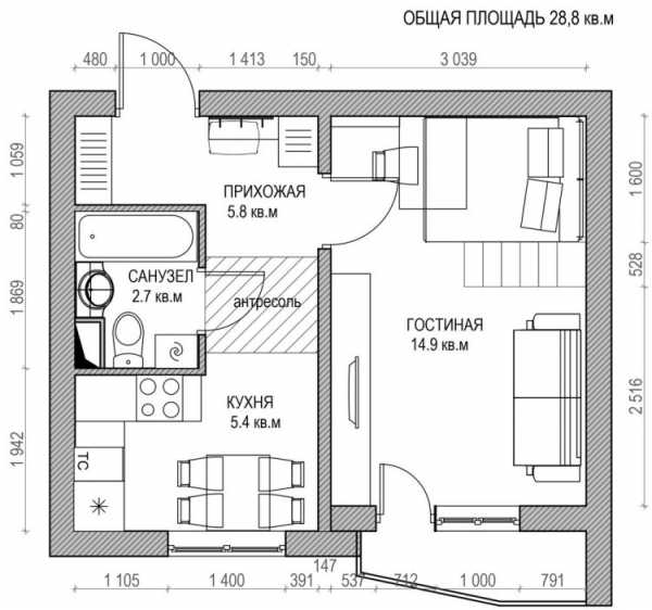
Жилая площадь второго варианта составляет всего 20 кв.м., однако все это пространство наполнено элегантностью и девичьим шармом. Мерцающие элементы и блекло-розовые акценты придают интерьеру романтический флер. Дизайнер активно использовала зеркала. Благодаря квартира стала более светлой и зрительно увеличилась.
Светлая однокомнатная квартира-студия — воплощение женственности

Маленькая функциональная кухня оборудована небольшой барной стойкой, за которой уместятся два человека. Раздвижной диван легко превращается в двуспальную кровать. Напротив располагается небольшое рабочее место. Чтобы интерьер выглядел более живым, добавлены рифмующиеся элементы: узор «зебра» на подушках и ковре и привлекающий взгляд шпон из орехового дерева на мебели.
Небольшая встроенная кухня с глянцевыми фасадами

Экзотические материалы — шпон орехового дерева и ковер-«зебра»

Визуализация: с перегородкой между кухней и жилой зоной и без нее

Небольшая рабочая зона

Мягкое непрямое освещение создает вечером приятную атмосферу. Различные источники света и подсветка заботятся об уюте в квартире.
Непрямое освещение создает уютную атмосферу

Раскладной диван становится двуспальной кроватью

Складная кровать — идеальное решение для однокомнатной квартиры

Вид сверху. В центре — раздвижная зеркальная перегородка

Ванная комната с овальной мебелью

Вид сверху — визуализация всей квартиры площадью 20 кв.м.

План дизайна квартиры в 20 кв.м.

Дизайн-проект квартиры в 28 кв.м. от дизайнера Станислава Айнулова

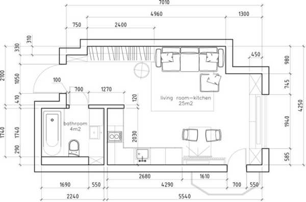
Интерьер однокомнатной квартиры в 28 кв.м. выполнен в скандинавском стиле и привлекает своей простотой. Глаз цепляется за несколько умело подобранных акцентов — яркий пиксельный ковер и стеклянные разноцветные лампы с выделяющимся черным кабелем.
Маленькая однокомнатная квартира-студии в скандинавском стиле

Пол и потолок, выложенные одинаковыми белыми панелями, придают интерьеру ощущение однородности. На смену белому приходит светлое дерево; это же цветовое сочетание выходит за пределы жилой зоны на балкон и в ванную комнату, что смотрится очень едино и гармонично.
Цветные акценты в белом интерьере — стеклянные абажуры

Внешняя стена как будто выложена крашеным кирпичом, и это ощущение поддерживается и на балконе. Пространство балкона расширяет жилое пространство квартиры: небольшая зона отдыха располагается с одной стороны, рабочая зона — с другой.
Стена под крашеный кирпич в качестве акцента как внутри комнаты, так и за ее пределами

Оптимальное использование балконного пространства

Современная ванная комната с угловой душевой кабиной

Необычное решение — угловой туалет

План маленькой однокомнатной квартиры-студии в 28 кв.м.
Дизайн-проект однокомнатной квартиры в 21 кв.м. от Евгения Хана

Следующая квартира имеет площадь всего 21 кв.м., при этом рассчитана на семью из трех человек. Функциональная складная мебель помогает оптимально организовать пространство так, что места хватает на всех жителей небольшой квартиры.
Стол-трансформер превращается из журнального столика в обеденный стол

Прямоугольный журнальный столик раскладывается до внушительного обеденного стола. Диван легко становится двуспальной кроватью. А за стеной из ламелей находится детская кроватка.
Зеркальная стена зрительно расширяет помещение

Одна из стен, посередине которой располагается подставка под телевизор, полностью обита зеркалами. Встроенные шкафы-купе создают место для хранения и позволяют использовать все пространство.
Зеркальная стена как акцент

За белой перегородкой из ламелей — детское спальное место

Мебель-трансформер позволяет оптимально использовать пространство
Складной стол справа от дивана
Раскладная двуспальная кровать в стене
Встроенная мини-кухня с минималистичным дизайном и ярким фартуком

Грамотное использование пространства прихожей — встроенный шкаф

Удобные полки для обуви и антресоли создают дополнительное место для хранения

Дизайн однокомнатной квартиры-студии от Ольги Чекмаревой

Нейтральная цветовая гамма и четкое зонирование придают маленьким помещениям очень приятный, гостеприимный вид. Согласно этому принципу и оформлена следующая квартира: белый цвет, много дерева и четкие линии.
Зонирование помещение с помощью различных материалов

С одной стороны помещения находится светлая кухня, напротив — большой модульный диван. Зона «столовой» зрительно отделена декоративным стенным оформлением из тонких деревянных панелей. Центром комнаты смотрится окно, где располагается уютный уголок для чтения.
Маленькая квартира, оформленная в белом цвете и дереве

Декоративные стеновые панели выделяют зону «столовой»

Большой модульный диван кремово-белого цвета

Зеленые растения придают свежесть интерьеру

Стены и мебель выдержаны в единой цветовой гамме

Деревянный пол и белая сантехника в ванной

Зеркальная стена в небольшой ванной комнате

План расстановки мебели в квартире-студии
Дизайн-проект маленькой квартиры-студии от Юлии Барановой

Непрямое освещение может кардинально преобразить помещение, и примером тому служит следующий дизайн-проект однокомнатной квартиры-студии. Нейтральные светлые оттенки, соответствующее освещение, в основном локализованное на потолке, свежие акценты — все эти элементы, умело скомбинированные, придают интерьеру индивидуальность и уют.
Непрямое освещение и свежие мятные акценты

Спальная зона существенно поднята над уровнем пола и отделена перегородкой. Небольшая ниша рядом с дверью оборудована в качестве функционального рабочего места. Кухня в современном стиле с глянцевыми фасадами находится в отдельном помещении.
Приподнятая и отделенная перегородкой спальная зона

Рабочее место в нише

Маленькая двухцветная кухня

Планировка однокомнатной квартиры-студии 29 кв.м.

homebuilding.ru
Планировка квартиры студии (маленькой комнаты), особенности разработки проекта 25-30 кв.м.
Выбор в пользу квартиры-студии является очень распространенным среди молодежи. Помещение без перегородок и стен можно сделать в новаторском индивидуальном стиле. Оно является одновременно рабочим кабинетом, местом для спокойного уединенного отдыха или бурного веселья в компании друзей. Рассмотрим, какой может быть планировка квартиры студии.
Преимущества и недостатки
Квартира-студия 20 кв. м прекрасно подходит для молодой пары. Она доступна по цене и позволяет вместить современную мебель и оборудование. Такое пространство требует оформления в светлых цветах. Если в студии 40 кв. м, идей для планировки и дизайна становится еще больше.

Преимуществами планировки студии являются:
- Отсутствие перегородок внутри помещения, благодаря чему оно становится уютным и светлым;
- Увеличение площади, которая является полезной;
- Простая перепланировка с разнообразием вариантов и возможность самостоятельного изменения зонирования;
- Доступность каждой зоны;
- Возможность выделения зонирования с помощью применения разнообразных стилей, цветовой палитры и отделочных материалов.
Недостатки:
- Если в квартире живут несколько человек, могут возникнуть конфликты по причине отсутствия личного пространства;
- Не всегда простую квартиру разрешается переделывать в студию. Такие кардинальные перемены должны проходить с согласия БТИ;
- Важно обращать особое внимание на установку вентиляции и отопительных приборов;
- Потребность в установлении сильной вытяжки на кухне;
- Необходимость в поддержании идеального порядка.
Зонирование помещения
Для удобства проживания требуется разделение на зоны (гостиную, кухню, спальню, прихожую). В простой квартире они разделяются перегородками, а для студии имеется множество вариантов для выделения границ.

Планировка маленькой квартиры-студии требует разделения на следующие функциональные зоны:
- Кухня. Эта зона необходима в каждой квартире. Из места готовки постоянно идут различные запахи и пар, поэтому оно нуждается в изолировании стеклянными или пластиковыми перегородками и установке мощной вытяжки. Перегородки ставить необязательно, если на кухне будет обеденная часть. В таком случае обеденную зону можно сделать как переход от кухни к гостиной;
- Гостиная. Зона располагается в центре помещения, что обеспечивает доступ из любой его части. В ней члены семьи принимают гостей и проводят совместный досуг;
- Рабочий кабинет. Его можно себе позволить, если речь идет о планировании квартиры более 30 кв. м. Для кабинета требуются перегородки, которые позволят работать в спокойной обстановке без отвлекающих факторов. Если площади недостаточно, место для него следует выделить в гостиной, на кухне или в спальне;
- Спальня. Обособленная зона для сна нужна в каждой квартире, но не всегда есть возможность ее создания. Иногда приходится объединять спальню с гостиной и ставить в ней кровать-трансформер или раскладной диван. Если площадь довольно большая, следует отгородить спальную зону перегородкой. Подиум тоже выступает хорошим вариантом для зонирования. Он может стать основой для кровати и местом для хранения;
- Ванная комната. Предполагается ее совмещение с санузлом, чтобы было место для стиральной машины и маленьких шкафов;
- Прихожая. Находится у входа. Ее можно совместить с гостиной и кухней. Для зрительного увеличения пространства и большей освещенности следует установить шкаф-купе с зеркальными панелями.
Подбор мебели
При планировке квартиры студии средней площадью 30 кв. м. нужно выбирать многофункциональную мебель, которую можно без труда переоборудовать. К примеру, письменный стол сделать обеденным при необходимости. Для кухни и столовой лучше отдать предпочтение модульным конструкциям, которые можно без труда переместить. Подвесные конструкции и стеллажи нередко ставят в гостиную и применяют для книг.

Диван может служить для отдыха днем, а ночью раскладываться в кровать. Нередко на такой мебели имеются ящики и полки для хранения вещей. В столовой лучше использовать гарнитур, который имеет подвесной шкаф и ящики для хранения. Остальную технику следует спрятать в дополнительных нишах или купить встроенные модели. Если на этой зоне сделан акцент, стоит приобрести стол с круглыми краями – он сэкономит пространство в квартире. Гардеробные и встроенные шкафы могут служить перегородкой в спальной зоне.
В квартирах-студиях уделяют повышенное внимание освещению. Самый оптимальный вариант – яркий свет в зоне общего пользования и приглушенное освещение в остальных областях. На кухню следует купить точечные светильники, которые группируются возле плиты, раковины и стола. В спальне стоит сделать рассеянный, мягкий свет.
Основные виды планировки
Самыми распространенными вариантами планировки в небольшой квартире-студии, являются прямоугольник и квадрат. Также она может быть нестандартной.
Прямоугольная планировка придает помещению интересный вид. Она очень популярна в экономклассе. Квартира будет вытянутой формы, а входная дверь находится напротив окна (единственного в доме). Ее общий план: при входе в помещение человек попадает в прихожую, в стороне располагается ванная комната с санузлом, дальше идет кухня, после гостиная, которая выходит на балкон. Площадь этих квартир – 18-30 кв. м.
Квартира при квадратной планировке будет более просторной, так как ее длина и ширина практически равна. Она очень удобна для формирования уютного интерьера. Но такие варианты встречаются довольно редко. Средняя площадь – 20-40 кв. м, но бывает и больше.

Нестандартная планировка появляется из-за необычной формы дома. Эти квартиры обычно считаются элитными, и их площадь может превышать 60 кв. м.
Интересные моменты
Планировка в маленькой современной квартире не обходится без выбора подходящей цветовой гаммы. Лучше всего выбирать один цвет для студии. Это не будет смотреться скучно, особенно если тона будут плавно переходить друг в друга. Палитру нужно подбирать на свой вкус.
Теплые цвета в интерьере придадут квартире уютности и приветливости (от светло-бежевого до оттенка молочного шоколада). Оптимизм хозяина продемонстрируют оранжевые и желтые штрихи.
Холодные цвета подойдут для визуального расширения пространства (от жемчужно-серого до мягкого лавандового). Эти оттенки придадут интерьеру загадочности. Цвет аксессуаров в этом случае лучше выбирать белый или черный.
В современных проектах чаще всего употребляют скандинавский или японский стиль, а также Лофт и Прованс.
Скандинавский стиль подходит для творческих личностей. Белый цвет зрительно увеличивает пространство. Для этого стиля является характерным минимальное количество мебели. Лофт — прекрасный выбор для молодой пары. Стены из кирпича, наличие барной стойки подчеркивает смелость и дух свободы хозяев.
Для японского стиля характерны элементы декора этой страны, легкие оттенки красного. Прованс подходит для романтичных юных девушек. Интерьер основан на старинных элементах декора и лавандовых оттенках.
Отделка квартиры-студии должна показывать характер хозяина и подчеркивать его индивидуальность. Не стоит слишком загромождать помещение вещами, лучше подобрать определенный стиль и придерживаться его даже в мелочах. При желании маленькую квартиру можно сделать функциональной и очень уютной.
skedraft.ru
Как создать дизайн маленькой квартиры-студии, практичные решения, видео

Создать дизайн маленькой квартиры-студии – задача не из легких, ведь в довольно ограниченное пространство в этом случае нужно вписать множество функционально важных зон: спальное место, кухню, рабочий стол, гостиную и иногда детский уголок.
Решение о перепланировке квартиры в студию принимается по веским причинам – владельцам малогабариток хочется расширить пространство, увеличить полезную площадь. Особенно мала бывает кухня, недостаточно и гостиной зоны, а создание единой комнаты позволяет и гостей принимать, и передвигаться с большей легкостью.
На заметку! Маленькая квартира-студия – форма планировки, дизайн интерьера которой стал впервые активно развиваться в Америке, откуда благополучно перекочевал в Японию.
Вариант дизайна квартиры-студииСо временем мода на студии появилась и в России, тогда переделывать стали не только малогабаритное жилье, но и достаточные по площади квартиры, не всегда нуждавшиеся в таких действиях. Но именно в случаях с малой площадью дизайнерам труднее всего учесть все функциональные потребности заказчиков и их эстетические пожелания.
Стильное решение для небольшой квартиры-студииЗонирование небольших студий
Разделение пространства на зоны – одна из главных целей дизайнера, создающего проект небольшой студии. Проще всего добиться правильного зонирования можно в квартирах со свободной планировкой: в таких полностью отсутствуют межкомнатные стены, и есть больше свободы для творческого проектирования.
Разделение пространства на зоны – одна из главных целей дизайнера, создающего проект небольшой студииДизайн маленькой квартиры-студии (30-40 кв.м. – обычная ее площадь) должен быть нацелен на максимально экономичное распределение пространства. Каждый метр должен служить какой-то цели – если не использоваться для работы или сна, то для хранения вещей (небольшой беспорядок в малогабаритной квартире грозит стать катастрофой, а в большой будет практически незаметным).
В качестве перегородок, разделяющих комнату на зоны, можно использовать полки, стеллажи и небольшие стойки с местами для хранения, диваныВот несколько идей оптимизации дизайна маленькой жилой студии:
- В качестве перегородок, разделяющих комнату на зоны, можно использовать полки, стеллажи и небольшие стойки с местами для хранения, диваны. Визуально они не будут загромождать пространство, но зрительно разделят студию на части и вместят в себя лишние вещи.
- Легкими перегородками могут стать занавеси или жалюзи. Их главное преимущество – мобильность. Так, штору, ограждающую спальное место, можно отодвигать днем и закрывать ночью.
- Двери стоит сделать раздвижными, а не распашными, тогда не надо будет оставлять места для их открывания, а нужно его в малогабаритной квартире немало.
Цветовая гамма в дизайне маленькой квартиры-студии должна быть лаконичной и простой- Дизайн маленькой кухни в квартире-студии необходимо тщательно обдумать – над плитой нужно установить мощную вытяжку (испарения от готовки могут разлететься по всей квартире), вместо сломанной межкомнатной перегородки — барную стойку (фото вариантов множество). Столешница зрительно отделит кухню от основной части помещения, но не будет мешать общению с гостями и уменьшать площадь комнаты.
Дизайн маленькой кухни в квартире-студии необходимо тщательно обдумать- Цветовая гамма в дизайне маленькой квартиры-студии должна быть лаконичной и простой, светлой, чтобы зрительно расширять пространство, а не сужать его. Цветастые яркие принты могут добавить интерьеру хаотичности, сбивать с толку, хотя и будут радовать глаз. То же правило относится и к фактурам, которые могут серьезно повлиять на восприятие пространства вокруг.
Если высота потолков позволяет, для увеличения полезной площади можно использовать и ярусную мебельЕсли высота потолков позволяет, для увеличения полезной площади можно использовать и ярусную мебель – подиумы, двухэтажные кровати, кровати, совмещенные с рабочим местом, располагающемся внизу.
Использование мебели – популярный способ зонирования пространстваМебель в планировке комнаты
Использование мебели – популярный способ зонирования пространства. Зону приема гостей обычно разграничивают при помощи квадрата – дивана, двух кресел и тумбы с телевизором. Это позволяет почувствовать себя отделенными от остальных функциональных зон и сохранить единое пространство студии.
Небольшие полки и шкафчики в маленькой квартире-студии часто сооружают из гипсокартонаЗанавеси и жалюзи чаще применяют, чтобы отделить спальню от остального пространства. Звукоизоляции добиться так будет трудно, зато визуально уединиться можно точно. Воплотить в жизнь эту задумку вовсе не сложно – занавески крепятся очень быстро.
Необычное решение для небольшой квартиры-студииНа заметку! Планируя дизайн интерьера небольшой студии, можно использовать традиционный для России вариант – раздвижные диваны-трансформеры, тогда зона гостиной легко сможет превратиться в комнату для гостей или спальню хозяев.
Небольшие полки и шкафчики в маленькой квартире-студии часто сооружают из гипсокартона, дизайн интерьера от этого только выигрывает, ведь такие детали могут принять любую интересную форму (фото вариантов такого решения планировки часто становятся примерами креативного подхода к проектированию).
Создавая дизайн маленькой квартиры-студии (25-30 кв.м), не стоит пренебрегать свойством разнообразных рисунков и тонов визуально изменять пространствоПринты и цветовая гамма для небольших пространств
Создавая дизайн маленькой квартиры-студии (25-30 кв.м), не стоит пренебрегать свойством разнообразных рисунков и тонов визуально изменять пространство. Так, светлые шторы увеличат оконный проем, а темные уменьшат, сделают слишком четким и навязчивым.
Светлые шторы зрительно увеличат пространствоПохожим эффектом может обладать практически любая крупная деталь интерьера, поэтому нужно быть аккуратным в выборе цвета любого элемента. Длинные и объемные портьеры использовать не стоит – маленькие квартиры-студии хорошо дополнить рулонными шторами или жалюзи (дизайн в 24 м площади будет в этом случае более лаконичным).
В качестве базового стиля лучше предпочесть другим минимализм или скандинавский стиль.В качестве базового стиля лучше предпочесть другим минимализм или скандинавский стиль. Обилие белого, простота и практичность мебели и минимум деталей идеально подойдут небольшим студиям.
Идея дизайна интерьера в маленькой квартире-студииЗонировать комнату можно, выделяя нужные части стен отличным от основного цветом. Важно не делать их слишком темными или яркими, правильно расставляя акценты. Идеально, чтобы оттенок лишь немного отличался от базового.
Текстиль (ковры) часто используют для разделения комнат на зоныТекстиль (ковры) часто используют для разделения комнат на зоны. Но разграничить маленькую студию при помощи ковров практически невозможно: такие крупные элементы затеряются в тесном пространстве, но для квартир побольше этот способ очень актуален. В них продуманный дизайн пола (и потолка) будет разделять площадь на функциональные части.
Дизайн маленькой квартиры-студии подразумевает использование точечного освещенияЗонирование при помощи освещения
Дизайн маленькой квартиры-студии подразумевает использование точечного освещения: несмотря на то, что квартира небольшая, комната получается разорванной на разные зоны, порой разделенные мебелью или шторами, поэтому люстра в середине комнаты не способна осветить все пространство.
Идеально использовать небольшие светильники, вмонтировав их в потолок, и бра для стен. Подсветку для кухни стоит традиционно расположить на кухонных шкафчиках, а для спальной зоны помимо точечных элементов подобрать уютный ночник.
Идеально использовать небольшие светильники, вмонтировав их в потолок, и бра для стенНе стоит забывать и про естественные источники света – окна. Их нужно оберегать от излишнего декорирования и использовать максимально полезно.
Аксессуары для мини-студий
Маленькие квартиры-студии, дизайн которых нужно тщательно планировать, нельзя украшать обилием декора, слишком мелкими и сомнительными элементами (маленькими фото-рамками, статуэтками и сувенирами). Аксессуаров должно быть совсем немного, пусть они будут точно подходящими обстановке, памятными и достаточно крупными, но не слишком яркими (чтобы не перетягивать внимание на себя). Как бы не хотелось заполнить все открытые полки книгами и безделушками, оставьте их преимущественно пустыми – так возникнет ощущение простора и свободы.
Аксессуаров должно быть совсем немногоЗеркальные поверхности расширяют и углубляют пространство, поэтому не нужно забывать их, создавая дизайн маленьких квартир-студий (20-25 кв.м. площадью). Зеркальные дверцы шкафов и зеркала в качестве аксессуаров способны улучшить восприятие небольших комнат. Применять такой эффективный, но очень активный, способ зрительно увеличить квартиру нужно с осторожностью – слишком много зеркал в маленькой комнате сделают интерьер невыносимым.
Совет! Пара зеркальных элементов, правильно расположенных, будут идеально дополнять и улучшать обстановку компактного помещения.
Дизайн маленькой квартиры-студии может быть стильным, практичным и современнымДизайн маленькой квартиры-студии может быть стильным, практичным и современным, ведь такая планировка – идеал для творческих личностей. Стоит разумно расставить мебель, избавиться от ненужного хлама и аккуратно разместить правильно подобранные аксессуары, и интерьер станет очень уютным и функциональным. Для владельцев малогабариток подобный способ обставить квартиру – единственный шанс высвободить немного свободного пространства и распределить его части. Так пусть небольшой интерьер будет оформлен оригинально!
koffkindom.ru
19 отличных планировок для маленьких квартир / Домоседы
Всегда ли небольшая площадь квартиры означает скованность в перепланировке и отсутствие альтернативного решения? Давайт попросим опытного архитектора прокомментировать 19 планировок маленьких квартир и указать их плюсы и минусы. Наглядно.
Одним из любимых видов проектной деятельности для нашего эксперта является планировка и перепланировка самых разных объектов, но в большей степени — частного жилья. Стоит также заметить, что планировка — это не только линии на плоскости, грамотное решение требует объёмного мышления: это позволяет увидеть как нюансы и особенности задачи, так и новые, оригинальные варианты её решения.За комментариями и советами обратимся к архитектору Игорю Бокову.
Игорь Боков, архитектор
Окончил архитектурный факультет ЮУрГУ в 2010 году, в 2015-м защитил магистерскую диссертацию в МАрхИ. С 2010 года занимается архитектурным проектированием, начиная от мобильного жилья и выставочных стендов и заканчивая проектами коммерческих зданий, коттеджей и решениями для городских квартир. Работая с перепланировками, убедился в том, что «чем меньше площадь проектируемой квартиры, тем сложнее, но при этом интереснее становятся планировочные задачи. А изящное решение — награда и для автора, и для заказчика».
Планировка этой крохотной квартиры-студии осложняется расположением входной двери и балконной двери-купе вплотную к продольной стене, что затрудняет расстановку мебели вдоль этой стены. И если со стороны входа этот недостаток компенсируется проходной гардеробной, то с противоположной стороны приходится буквально «спать на кухне». Кровать даже пришлось придвинуть вплотную к окну, чтобы хватило места для обеденного стола, ведь размещение кухни возле противоположной стены зафиксировано сантехническим подключением.

Самым спорным в этой квартире, безусловно, является размещение открытой спальни прямо возле входа, к тому же — без естественного освещения. Это, однако, позволило организовать отдельную зону дневного пребывания. Субъективно прямая стена во всю квартиру удлиняет коридор, сформированный стеной санузла напротив, а входная дверь в конце делает пространство немного неуютным.

Главным преимуществом здесь являются просторные боковые ниши-альковы слева и справа от входа, но ещё больше облегчило перепланировку наличие окна в одной из ниш, а также раздельные сантехнические стояки для кухни и санузла. И если при отсутствии окна достаточно было бы убрать короткую стенку между кухней и гостиной, то протягивать коммуникации к общему стояку уже намного сложнее.
Г-образная гардеробная оригинальна. На этом её достоинства заканчиваются. Появляется перерасход площади и при этом теснота при пользовании полками. Длинный шкаф-купе дверями в сторону прихожей и короткий на прежнем месте, возле санузла — решение более тривиальное, но практичное.

Предложение о раздельных шкафах из предыдущего примера нашло воплощение в этой планировке, но остальная мебель расставлена немного странно: во-первых, это обеденный стол прямо на проходе, а во-вторых, открытая кровать вместо отдельной спальни, да ещё и близко от кухни, которую приходится обходить, заодно с диваном, через гостиную. Эти недочёты можно было бы списать на малый метраж, но широкие проходы и свободные пространства говорят об обратном…

Сдвижка остеклённого объёма в торце квартиры как бы намекает, что существовавшая ранее лоджия была утеплена и объединена с гостиной. Снос остальных стен почти до самого санузла обусловлен необходимостью естественного освещения, а образованные выступом две неглубокие ниши очень логично сформировали кухню и не очень логично— гостиную: учитывая отсутствие шкафов, можно было бы поставить диван спинкой в нишу, а тумбой с телевизором отгородить зону спальни, заодно освободив панорамное окно.

Сила этой простой и удачной планировки — в пропорциях помещений. Одноместную же кровать легко заменить двуспальной, отзеркалив её местоположение с рабочим столиком. Небольшим недочётом является место за обеденным столом спиной ко входной двери, однако и это можно исправить, всего лишь развернув диван и телевизионную тумбу на 90 градусов — в этом случае пространство между ними позволит развернуть и обеденный стол.

Набор классических для маленьких квартир приёмов позволил создать гармоничную и логичную планировку. При желании возможно даже отгородить спальную зону стеной до середины комнаты. Просторное и пустое пространство за спинкой дивана, однако, показывает, что можно было бы расставить мебель немного более компактно и рационально: в квартире как раз не хватает места для полноценного обеденного стола, ведь обедать за барной стойкой со встроенной раковиной, лицом в замкнутую кухню, не очень комфортно.

Зонирование этой квартиры практически индентично предыдущему примеру, даже дверь в санузел находится в таком же углублении. Однако спальная зона уже визуально отделена от зоны гостиной, причём плазменная панель может поворачиваться на обе стороны. Можно легко освободить место для обеденного стола, отзеркалив кухонный «полуостров» ко входной двери.

Хорошая освещённость, простор, воздушность — первое впечатление при входе в эту квартиру. Однако присмотревшись к планировке, можно отметить некоторый перерасход площади на подсобные помещения — так, из-за отдельного помещения возле входа не хватило места для размещения мойки в едином кухонном фронте, который вполне можно было бы скомпоновать Г-образно. Ещё, пожалуй, маленькое замечание — плазменная панель, закрывающая половину высокого окна.

В этой вытянутой квартире вход в центре делает зоны помещений по краям более пропорциональными, но при этом лестничный марш сильно сужает центральную часть, что вызывает недостаток естественного освещения, а обеденную зону и даже спальню приходится располагать прямо на проходе. Сразу бросается в глаза место для одежды в самом углу, которое можно было бы сделать более удобным, перекомпоновав вешалки, ванну, кровать и тумбу с телевизором — все четыре элемента в комплексе.

Идея компоновки этой квартиры максимально проста: всё расположено последовательно, одно за другим вдоль стен, от входа к окну. Из-за крошечной общей площади пришлось оставить лишь самый необходимый минимум зон и мебели в них: проходная кухня совмещена с прихожей, а единственное помещение включает в себя функции сразу и гардеробной, и кабинета, и спальни, и гостиной.

Но вот пример ещё более узкой квартиры, больше напоминающей переделанный под жильё 40-футовый контейнер. Если приглядеться, можно увидеть, что отказаться пришлось не только от ванны, но даже от двух конфорок варочной панели, а места для хранения вещей представлены лишь полками над кроватью и одним высоким шкафом возле холодильника. Одинокий стул за крошечным обеденным столом привносит в интерьер этой квартиры нотку грусти.

В этой квартире хорошо заметен контраст группы мелких помещений со стороны входа и огромного единого пространства, завершающегося окном во всю стену. Такие площади позволили бы легко разграничить отдельные зоны, но восприятие пространства единым, цельным явно было задумано изначально. И даже открытое спальное место здесь не бросается в глаза просто из-за своей удалённости на достаточное расстояние и расположения в углу, в самом конце помещения. Внимание на себя отвлекает отдельно стоящий диван и стеклянный обеденный стол.

Здесь планировочное решение явно начиналось с просторной ниши, где разместилась не только угловая кухня, но даже душевая кабина. Спальня, отгороженная шкафом для одежды, комфортна благодаря отдельному окну. Немного неуютным воспринимается белый кафельный пол на всю квартиру сразу, особенно в спальне без двери и порога.

А вот пример почти аналогичного расположения помещений, но в прямоугольном объёме, без выступов и ниш. Двусторонняя ориентация окон в таких малогабаритных квартирах наиболее характерна в случае их торцевого и углового расположения в доме.
При желании спальню с отдельным окном можно легко отделить перегородкой с дверью, что не ухудшит ни восприятия, ни удобства пользования квартирой.

Броское решение при расположении венткороба по центру квартиры: нетрудно догадаться, что в центральном объёме находится санузел, а расстояние между ним и дальней стеной говорит о наличии в нём встроенных шкафов с доступом из спальни. Вопрос о назначении закутка за кухонным гарнитуром остаётся открытым, но судя по оборудованию кухни, именно там будет располагаться холодильник. Гораздо больший вопрос вызывает звуко- и светоизоляция спальни, так как центральный объём не доходит до потолка. Конечно, в однокомнатной двухместной квартире это не так актуально, тем более что сама спальня даже не имеет дверей.

Ширина квартиры позволила вполне свободно провести зонирование; мест для хранения вещей на первый взгляд достаточно, однако из-за той же ширины помещения расстояние от дивана до телевизора в гостиной уже немного великовато.

Разделение кухни на две части здесь, безусловно, имеет смысл в целях компактности сантехнических коммуникаций, а Г-образная столешница «соединяет» процесс готовки, приближая конфигурацию к П-образной. Ещё одним оригинальным решением является отдельное размещение раковины, что позволяет получить практически раздельный санузел. Вопрос возникает только по зоне прихожей — зачем городить столько перегородок, чтобы организовать небольшую вешалку и место под полочки или шкаф. Намного проще поставить обычный шкаф-купе.

В этой квартире — полный набор приёмов для минимально возможной площади: проходная кухня с двухконфорочной плитой, кресло вместо дивана, плазменная панель, закреплённая на стене… Санузел размером с кухню выглядит здесь даже просторным, однако впечатление обманчиво: размеры ванны выдают реальный масштаб.

Здесь мы снова видим разделение кухни на две зоны, когда «мокрая» зона размещается вплотную к санузлу. При такой компоновке целесообразно сделать стену между кухней и гостиной невысокой, для проникновения естественного света, не забыв прикрыть обратную сторону холодильника и проведя венткороб к вытяжке. Для хранения вещей вряд ли хватит одного небольшого шкафа, а обеденная зона здесь вообще не предусмотрена. Единственное помещение, которому отведено достаточно места — это санузел.
domosedy.com
Дизайн маленькой вытянутой квартиры-студии с одним окном
Планировка вытянутой студии
Чтобы разместить все нужные функциональные зоны, их пришлось располагать вдоль длинной стены. Гостиная находится ближе всего к окну, далее за ней друг напротив друга — спальная и кухонная зоны, а ближе всего к двери – санузел и прихожая.


Стиль и цветовое решение студии
Небольшие помещения, как правило, стараются оформлять в стиле минимализм, чтобы сохранить максимально возможное свободное пространство. В этом проекте минимализму придали скандинавские черты, чем избежали монотонности оформления.
Фоновый светлый цвет стен дополняется натуральными цветами мебели и тканей и великолепно сочетается с яркими декоративными элементами. Использование акцентных цветов в текстиле позволяет менять интерьер по настроению, сделать это легко: достаточно заменить, к примеру, подушки на диване.

Прихожая и кухня
Вытянутая студия начинается с небольшой прихожей, переходящей в кухню – какие-либо перегородки отсутствуют. Такое решение вынуждает прятать внутрь мебели не только кухонную технику, но и одежду с обувью.

Во входной зоне, помимо закрытого одежного шкафа, есть также обувные тумбы, которые можно использовать и как столики для сумок, ключей, перчаток и других мелочей. Таким образом прихожая и кухня визуально образуют единое пространство, выделенное узорчатой напольной плиткой и графичными черными линиями портала.

Гостиная
Это самое светлое помещение в дизайне квартиры-студии с одним окном. Оно невелико по площади, однако достаточно для того, чтобы поставить вместительный диван. Предусмотрены и системы хранения: в зоне ТВ напротив дивана это две подвесные закрытые полки практически во всю длину стены, а между гостиной и спальней – шкаф-купе с зеркальными дверями.


Дизайн-проект студии насыщен зеркальными поверхностями – это помогает визуально увеличить небольшую квартиру. В качестве декоративных элементов используются настенные постеры и фото в рамках, а также комнатные растения. Они, а также натуральные ткани придают интерьеру черты эко-стиля.


Спальня
Эта часть в студии выделена из общего пространства с помощью сдвижных стеклянных дверей. Это позволяет не уменьшать и без того небольшую площадь комнаты, визуально оставляя ее изначальные размеры без изменений, и в то же время придать спальне необходимую интимность.


Кровать снабжена выдвигающимися ящиками – здесь удобно хранить постельное белье или сезонные вещи. Прикроватные тумбы заменило изголовье с системой хранения. Принудительная вентиляция поддержит воздухообмен в небольшом замкнутом пространстве. Кроме того, в спальне разместили проектор – можно смотреть кино, лежа на постели.


Балкон
К гостиной в квартире-студии с одним окном примыкает балкон. Присоединять к комнате его не стали, чтобы еще больше не увеличивать ее длину. Вместо этого на балконе оборудовали зону отдыха. С одной стороны она имеет небольшой диванчик-топчан, с другой – высокий шкаф для хранения спортивных принадлежностей.

В центре поместили откидной стол, а возле него – удобный складной стул. Тут можно выпить утренний кофе, любуясь просыпающимся городом, или почитать вечером книжку. Отделана получившаяся лоджия вагонкой, выкрашенной различными оттенками серого цвета: смотрится стильно и необычно.

Санузел
Рисунок напольного покрытия в санузле повторяет рисунок пола прихожей, но в других цветах.

По одной стене располагается столешница со встроенной раковиной, над ней – зеркало во всю стену. Под столешницу встроена стиральная машина, а также имеется небольшая система хранения. Там же «прячется» бельевая корзина.


Напротив – душевая кабина и унитаз. Стеклянная дверь кабины окаймлена черным металлом, что добавляет интерьеру графичности. «Полосатую» тему продолжает деревянный реечный поддон в душе.

Таким образом, на площади 35 кв. м. в вытянутой квартире-студии с одним окном уместились полноценная прихожая, кухня с барным столом, изолированная спальня, уютная гостиная, достаточное количество мест для хранения, а также пространство для отдыха и оснащенный всем необходимым санузел с душевой кабиной.
design-homes.ru
Проекты студии квартиры, план, несколько интересных идей
Любая идея или планирование студийной квартиры требует к себе применения особых и рациональных приемов для того, чтобы визуально подкорректировать пространство. Поэтому перед отделкой и оформлением студии квартиры, план и четкий проект просто необходимы. Особенно это касается помещений не стандартной планировки (узкой, вытянутой и другой не правильной формы).

Как правильно спроектировать студийную квартиру
Содержание статьи
Несколько советов от опытных дизайнеров о правильной планировке и зонированию
На самом деле, обустроить на маленьком пространстве несколько функциональных зон, совсем не просто. Нужен четкий план квартиры студии, с размерами и распределением зон.

Как зонировать квартиру
Необходимо выполнить элементарные вещи, к примеру:
- отделить гостиную от места для сна;
- или переместить кухню в гостиную;
- отделить зону для ребенка.
Список с вариантами можно долго продолжать, важно, во время зонирования не превратить квартиру в банальный лабиринт.
Рассмотрим некоторые варианты по зонированию, возможно, какой-то совет придется по вкусу.
Рекомендуемый материал по теме: Идеи для квартиры студии, варианты для обустройства.
Отделяем спальное место
За исключением того, когда помещение используется для временного пользования или в квартире проживает один человек, спальная зона предусматривает один спальный уголок.
Рекомендуемая статья по теме: Проект перепланировки однокомнатной квартиры студии — советы по обустройству.
Уединение можно организовать различными методами, не обязательно возводить стены, можно зонировать при помощи цветовой гаммы или небольшой перегородки в виде стеллажа, ширмы или простой занавески. Это психологически настроит на отдых.
Фото обзор поможет вам выбрать оптимальный вариант для отдыха:

Зона для отдыха, сделанная при помощи перегородки

Решение вопроса при помощи шторы

Декорирование раздвижными дверьми

Потолочное и напольное покрытие

Игра цветами
Рекомендуемый материал: Как сделать из хрущевки проект квартиры студии.
Всевозможные варианты для зонирования
Если в вашей малогабаритке высокие потолки, то можно выполнить шикарный план студии квартиры, к примеру, добавить 2-й ярус и значительно сэкономить квадратные метры.
Рекомендуемый материал по теме: Как выполняется планировка квартиры студии.
Для помещения с малой квадратурой, подойдет использование всех методов:
- Ниши.
- Любые закутки в квартире.
- Широкие углы.
Все вышеперечисленные варианты идеально подойдут для хранения вещей, установки бытовой техники, даже обустройства мини-кабинета.
Рассмотрим несколько примеров, как можно интересно спланировать студию с дополнительными возможностями:

Перевоплощение малогабаритки в 2 яруса

Используем ниши для декорирования

Широкие углы тоже пригодятся

Небольшой закуток пригодился для работы за компьютером
Выдерживаем пропорции
Когда выполняется план квартиры студии не стоит отталкиваться от спального места. Такую ошибку очень часто допускают неопытные пользователи.
В такой планировке, спальная зона не должна занимать центральное место. Одновременно, следует проследить за тем, чтобы кровать не попала в проход или к входной двери.

Примерно так можно организовать пространство в маленькой комнате
Такой момент очень важен особенно для квартир-студий и хрущевок. Для сна выделяется укромный уголок в уединенной части. Основная часть должна принадлежать гостиной и кухне-столовой. Соблюдая такие пропорции, вы получите милый интерьер.
Рекомендуемый материал по теме: Как сделать дизайн-проект квартиры студии.
Планируя дизайн квартиры студии, не перезагружайте интерьер
Во время планирования студии квартиры, качественное зонирование – это незаменимый помощник для создания уникального интерьера.

Легкая декоративная перегородка решила массу проблем
Для полной гармонии стоит использовать легкие инструменты:
- Легкие шторы.
- Ширмы.
- Небольшие стеллажи легкого типа.
- Различные перегородки из реек или легкие арки.
Если планируется загородить спальную зону при помощи раздвижных дверей, рекомендуется использовать матовое стекло.
Правильное освещение – залог успеха!
При помощи осветительных приборов также можно решить массу проблем с зонированием. Высота, направленность или расположение смогут подчеркнуть функциональные зоны.

Зонирование при помощи потолочных конструкций и осветительных приборов
Если помимо основного источника, продумать интересный сценарий для каждой зоны, то можно будет спокойно отдохнуть или нормально почитать книгу на диване.
Примеры: план и планировка небольших студий
Рассмотрим план студии квартиры на примере небольших помещений в черно-белом исполнении. Такой ахроматичный вариант завоевал сердца многих современных пользователей.
Маленькая квартира (22 квадрата) с уютным оформлением
Вытянутая конфигурация продиктовала свои собственные условия. Пришлось зонировать и при этом сохранять определенную последовательность:

На такой крохотной площади дизайнеру удалось все уместить
- Первой идет кухонная зона.
- Затем идет небольшая «столовая» с обеденным столом.
- Далее (2 в 1) гостиная со спальней.
- И плавный переход в ванную.

Гостиная плюс рабочий кабинет

Оформление кухонной зоны

Квартира студия, план сверху
Видео обзор наглядно покажет, как можно удачно разместить все нужные зоны на маленькой площади.
Пример создания черно-белого интерьера на 25 квадратах
Следующий пример – это идеальный квадрат 5х5 метров. У дизайнера на этот проект несколько другой взгляд, чем на предыдущий. Все зоны размещены по периметру помещения и сходятся в одном месте, но не по центру. На финише получились по две зоны на каждой из сторон.

Плавный переход (гостиная-кухня)

Прихожая-гостиная

Так выглядит ванная

Идеальное решение студии квартиры, план
Видео по созданию квадратной планировки:
Несколько рекомендаций от опытных дизайнеров
В первую очередь рекомендуется акцентировать свое внимание на две основные зоны: кухня и гостиная. Важен не просто изящный интерьер, но и функциональность.

Что советую дизайнеры?
Какие можно принять во внимание рекомендации чтобы выполнить правильное планирование:
- Для оформления используйте единую цветовую палитру с плавными переходами из зоны в зону.
- Для того чтобы сэкономить полезную квадратуру, лучше использовать встроенную бытовую технику.
- Используйте хорошую вытяжку.
- Обратите внимание на все ниши, кладовки, подоконники и все остальное, что можно использовать для экономии пространства. К приме, подоконник можно определить под кухонный стол.
- Желательно ограничиться яркими и пестрыми оттенками, а также не перезагружать интерьер аксессуарами.
- Перед тем, как начать проработку в студии квартире план, необходимо серьезно отнестись к качеству освещения.
По большей части постарайтесь использовать светлую палитру, тогда интерьер будет легким и лаконичным. Мебель рекомендуется использовать раскладную и на колесиках. В остальном, посмотрите видео и вам станет проще справится со своей идеей.
Для нас важно ваше мнение:
Загрузка … Загрузка … Загрузка …Был ли полезен для вас материал?
kvartirka-studia.ru
Маленькие однокомнатные квартиры: планировка, дизайн и стиль
Собственное жилье, даже крохотное лучше шикарного, но чужого дома. Это неудивительно, все-таки это личное пространство, а значит здесь только ваши законы. Этакое маленькое государство, где вы правите, как хотите в плане организации пространства. Правда, у любого правителя есть не только права, но и еще огромная ответственность, ведь от вас зависит атмосфера этого государства.
Планировка малогабаритной однокомнатной квартиры
Планировка малогабаритной однокомнатной квартиры и ее обустройство – задача не из легких. Небольшая квартирка должна вместить в себя элементарную мебель, какие-то вещи и многое другое. Бывает необходимо на мизерной площади, в рамках одной комнаты, организовать различные зоны: для ребенка, для отдыха, для работы, для гардероба. Тут важен грамотный подход, который в таких условиях сродни искусству. В обустройстве такого жилья основной тон задает идея объединения, ведь все зоны связаны между собой, обеспечивая визуальный, объем помещения. Вообще, планировка маленькой однокомнатной квартиры, может иметь много возможных вариантов, рассмотрим некоторые из них:
Вариант №1

К примеру, если планировка 1 комнатной квартиры позволяет, то кухню можно объединить с гостиной, а спальную зону отделить декоративной перегородкой или ширмой и создать иллюзию двухкомнатного помещения. В образовавшемся пространстве, так называемой, спальни можно поместить полноценную двуспальную кровать и платяной шкаф. В гостиной хорошо бы поставить диван, который может вполне выполнять функцию просторного ложа, если его разложить. Прихожую неплохо бы оборудовать вместительным шкафом-купе, в который можно убрать всю верхнюю одежду, зонты, головные уборы, обувь. Гостиная и кухня объединяются в столовую группу. Если это планировка 1 комнатной хрущевки или квартиры, где туалет, да ванная комната – это одно помещение, то тут свои плюсы. Совмещенный санузел позволяет установить вместительный шкаф для банных принадлежностей.
Вариант №2

Если есть маленький ребенок, а может и не один, то любую планировку, даже самой маленькой 1 комнатной квартиры можно усовершенствовать, разделив на две основные зоны: взрослую и детскую. К примеру, при наличии лоджии можно обустроить балкон под зону творчества. А там, где в первом варианте была спальная зона, можно оборудовать под детскую, взрослая зона может быть там, где в первом варианте была гостиная. Достаточно к раскладному дивану добавить зону ТВ, письменный стол, а еще платяной шкаф. Кухня в этом варианте представлена отдельной самодостаточной зоной, чтобы кулинарные запахи поменьше мешали другим делам. Взрослую зону от детской неплохо было бы отделить установкой двухстороннего стеллажа, где можно хранить книги, письменные или канцелярские принадлежности и какие-нибудь важные мелочи. Любая планировка малогабаритной однокомнатной квартиры может стать площадкой для развития ваших дизайнерских способностей.
Вариант №3

Для живущих в гордом одиночестве интеллигентов, всякая планировка малогабаритной однокомнатной квартиры придется по вкусу, если ее правильно зонировать. Неплохим решением будет разделение помещения на рабочую зону – кабинет и зону отдыха или гостиную, совмещенную с кухней. Двухсторонние стеллажи помогут в зонировании помещения.
Планировки хрущевок 1 комнатных квартир
Порой, однокомнатная квартира 30 кв. м., планировка, которой типа хрущевки действуют угнетающе. Может ли, вообще, хрущевка вызывать гордость у владельцев и быть комфортной, функциональной и уютной? При грамотном подходе к планировке малогабаритной однокомнатной квартире и оформлению интерьера может. Современные дизайнеры и архитекторы из хрущевок делают такие фантастические студии, что просто диву даешься, как на микроскопическом пространстве может так «разгуляться» фантазия художников.
Планировка и дизайн однокомнатной квартиры не может обойтись без четкого расчета и маленьких хитростей. Максимальное использование каждого квадратного метра в сочетании с ощущением открытого пространства сделает помещение сказочным.
Дизайнерские хитрости:
- Если квартира расположена на последнем этаже, то можно убрать некоторые конструкции, предварительно согласовав с коммунальными службами. Это расширит пространство.
- Чтобы интерьер казался легким, не используйте массивную громоздкую мебель.
- Глянцевый разноуровневый потолок и игра освещения зрительно увеличит пространство по вертикали.
- Гладкие стены, а также светлые цвета «расширят» пространство.
- Кухонную зону сделайте максимально глянцевой, а еще светлой. Это тоже увеличит помещение. Зеркальные вставки или подсветки придадут особый шик и сыграют добрую службу.
- Стеклянные двери добавят ощущения невесомости, легкой прозрачности всему помещению.
Планировка 1 комнатной квартиры
Московская планировка 1 комнатной квартиры мало чем отличается от хрущевки. Правда, все комнаты изолированы, и то не всегда, а санузел раздельный. Планировка маленькой однокомнатной квартиры, практически такая же, поэтому советы по оптимизации пространства подойдут те же самые, что и для хрущевки.
Планировка однокомнатной квартиры 20 кв. м.

Это своеобразный вызов для дизайнеров. Необходимо на маленькой площади уместить все необходимое для комфорта и удобства. Какая бы ни была планировка однокомнатной квартиры 20 кв. м., а метраж говорит сам за себя. Тут ценен каждый сантиметр, поэтому лучше избавиться от стен. Далее, необходимо зонировать помещение. В качестве перегородок в таком маленьком помещении было бы неплохо использовать зеркальные полотна, которые при необходимости можно выдвигать или задвигать. Усовершенствованная планировка однокомнатной квартиры 20 кв. м. и зеркальные полотна могут умножить в разы визуальное пространство, и подарить ощущение полета. При этом минимализм нужно взять за основу и не загромождать пространство лишними в функциональном смысле вещами.
Однокомнатная квартира 25 кв. м. планировка

Как на такой площади жить паре молодоженов? Однокомнатная квартира 25 кв. м., планировка которой не всегда позволяет проводить романтические вечера, принимать гостей, а еще работать и отдыхать. Да и молодожены же. Значит, нужна большая кровать. Однокомнатная квартира в 25 кв. м., конечно же, случай особый и планировка требует определенного подхода, но существует метод трансформации интерьера. Для этого часть пола необходимо приподнять, сделав подиум, на котором разместилась столовая зона с кухней. Часть пространства может быть представлена в виде зеркальной стены с прилегающим к ней туалетным столиком. Остальная часть пространства может выполнять различные функции, заключая в себе потенциал гостиной и спальни. Для реализации этой задачи нужен большой диван, который раскладываясь, смог бы заменить кровать.
Однокомнатная квартира 30 кв. м., планировка которой оставляет желать лучшего, станет уютнее и просторней, если воспользоваться следующими дизайнерскими приемами:
- Соединить с прихожей или же кухней, если позволяют стены. Помним, что несущие конструкции демонтировать запрещено.
- Выбросить весь ненужный хлам, а также максимально расчистить пространство.
- Центральные стены оклеить более светлыми обоями, нежели боковые.
Планировка однокомнатной квартиры 31 кв. м.
Планировка однокомнатной квартиры 31 кв. м. может быть абсолютно разной, рассмотрим один из вариантов. Представим, что после избавления от лишних стен, планировка однокомнатной квартиры 31 кв. м. приобрела квадратную форму и открытое пространство. Далее нужен грамотный дизайн. К примеру, цветовое решение в бело-синих тонах придаст квартире морское звучание. Тёмный ламинат при этом внесет особую красочку и своеобразие в атмосферу помещения. Многослойный потолок с желтыми плафонами придадут очарование интерьеру. Для однокомнатной квартиры в тридцать один квадратный метр, это интересное решение – освежающее и немного дерзкое.
Для усиления эффекта можно добавить какой-нибудь элемент декора в морском стиле. К примеру, часы или зеркало, стилизованное под штурвал.
Планировка однокомнатной квартиры 32 кв. м.
Рассмотрим такой вариант: планировка однокомнатной квартиры 32 кв. м. с двумя окнами. Два окна позволяют разделить пространство помещения на две зоны: общественную и приватную. Отгородить зоны друг от друга можно огромным шкафом, это улучшит планировку и придаст однокомнатной квартире 32 кв. м. нужную структуру. Цветовыми акцентами можно обозначить мебель и детали интерьера. Оранжевый диван в гостиной, бирюзовые шторы в спальне и красно-серая шахматная клетка на полу в ванной или кухне сделают интерьер более живым, ярким, а также креативным.
Планировка однокомнатной квартиры 33 кв. м.
Отказавшись от лишних стен, планировка однокомнатной квартиры 33 кв. м., как и в предыдущих вариантах изменится в лучшую сторону, выйдя на квартиру-студию и открытое пространство. При этом все-таки хочется, чтобы кухня была, гостиная, спальня. Зонирование в помощь. Как при этом каждую зону сделать интересной, необычной и функциональной? Универсального рецепта нет, планировка однокомнатной квартиры 33 кв. м. может быть различной. Каждый проект индивидуален и неповторим. Выделим лишь несколько беспроигрышных способов:
- С помощью мебели. Это простой, но довольно эффективный вариант. Грамотно расставленная мебель вполне может заменять стены.
- Цвет. Цветовое зонирование. Тут все непросто. Обозначить спальню желтым, кухню голубым, а гостиную красным чисто гипотетически можно, но цветовая дисгармония будет вызывать дискомфорт. Тут главное выбрать один-два цвета основных, в общем стиле, а один – акцентный. Правильное сочетание позволит обозначить каждую зону, но сохранит единство стиля.
- Разный уровень пола.
- Различные материалы.
Планировка однокомнатной квартиры 34 кв. м.

Как бы ни было популярно, сегодня, открытое пространство, но владельцы однокомнатных квартир-студий все чаще стремятся обозначить зоны перегородками или нишами. Любая планировка однокомнатной квартиры 34 кв. м. вполне располагает для такого решения. К примеру, перегородка, в виде двухсторонних стеллажей, которая разделяет прихожую и кухню, становится функциональной для обеих зон.
Планировка однокомнатной квартиры 35 кв. м.
При отсутствии острой необходимости в отдельной комнате, к примеру, если вы живете в одиночестве, имеет смысл объединить кухню с комнатой. В итоге, измененная планировка однокомнатной квартиры 35 кв. м., приобретает ряд преимуществ:
- Пропадает ощущение лабиринта;
- Появляется больше света, за счет отсутствия стен, отгораживающих окна;
- Современный вид помещения.
К недостаткам можно отнести отсутствие возможности уединиться, хотя если вы проживаете в уединении, то этот факт вас не особо опечалит.
Грамотная планировка и дизайн однокомнатной квартиры 35 кв. м. способны изменить кардинальным образом не только помещение, но даже качество вашей жизни.
Планировка санузла маленькой однокомнатной квартиры 36 кв. м.
В маленькой квартире, как правило, санузел тоже не отличается гигантскими размерами и простором. Планировка маленькой однокомнатной квартиры 36 кв. м. может иметь два варианта санузла: раздельный или совмещенный.
- При раздельном санузле, ванная комната отделена от туалета стеной. Это два самостоятельных помещения, преимуществом которых является их доступность по отдельности, то есть если занят туалет, то ванная может быть свободна, и наоборот. Правда, при обустройстве этих помещений возникают неудобства по той причине, что в них сложнее что-то организовать из-за маленькой площади и расположения. Как правило, стена, разделяющая помещения, расположена не слишком удачно.
- При совмещенном санузле, сложности могут возникнуть в процессе пользования помещения, хотя не факт. Зато можно, как правило, поставить вместительный шкаф для бытовых принадлежностей или даже стиральную машину. То есть, в плане организации пространства, этот вариант более удачный.
Так что, имея откровенно маленький туалет и ванную комнату, стоит задуматься о том, чтобы совместить эти помещения.
Планировка однокомнатной квартиры 37 кв. м.
Естественно, что имея однокомнатную квартиру, площадью в 37 кв. м., ощущается недостаток простора. Планировка однокомнатной квартиры 37 кв. м., как правило, не имеет технических помещений, поэтому за их счет это сделать не получится. Зато можно пожертвовать коридором. Это изменит, но не испортит планировку однокомнатной квартиры 37 кв. м. Прихожую от гостиной можно перегородить шкафом. Камерную обстановку помогут создать серовато-коричневые тона стен. Натуральные материалы мебели: дерево, кожа придадут особый уют.
Планировка небольшой однокомнатной квартиры 38 кв. м.
В отличие от однокомнатных хрущевок, всякая планировка однокомнатной квартиры 38 кв. м. дает больше возможности для воплощения дизайнерских идей. Как и в предыдущих вариантах, вначале лучше убрать лишние стены, а потом разделить полученное пространство на функциональные зоны. Причем перед тем как зонировать помещение, нужно определиться со следующими вопросами:
- Какие будут зоны?
- Все ли зоны будут равнозначными?
- Какая зона будет доминировать?
Определившись и расставив приоритеты, к примеру, для тех, кто работает дома, необходимо наличие кабинета, а для кого-то его и вовсе может не быть. Для тех, кто любит принимать гостей, доминировать, наверняка, будет зона гостиной и так далее. В рамках заданного метража, любая планировка однокомнатной квартиры 38 кв. м., может превратиться в стильное помещение, если использовать прием разделения зон, стеклянными перегородками. Это позволит, с одной стороны, выделить или как-то обозначить некую зону, а с другой стороны, сохранит объем пространства и целостность помещения.
Планировка однокомнатной квартиры 39 кв. м.
Однокомнатную квартиру с такой площадью нельзя назвать совсем маленькой. Это вполне себе нормальный кусок пространства с приличными возможностями. Это не то, что планировка однокомнатной квартиры в варианте хрущевка. Тут идеи планировки однокомнатной квартиры могут быть более разнообразными. Как правило, планировка однокомнатной квартиры 39 кв. м. подразумевает раздельный санузел, а еще довольно просторную кухню. Любая планировка однокомнатной квартиры 39 кв. м. может выдержать цветовую гамму, варьирующую от светло-серого сдержанного минимализма до броского и яркого ретро или, к примеру, поп-арта.
Планировка маленькой однокомнатной квартиры
Вместе с тем современный человек, обычно, проводит не так уж и много времени в собственной квартире. Главное, чтобы она смогла обеспечить возможность расслабиться после тяжелых будней, дать смыть с себя проведённый день. Правильная планировка маленькой однокомнатной квартиры позволит установить как душевую кабину, так и вместительную ванну. Стиральная машинка же, может прекрасно вписаться в пространство кухни.
Сегодня невероятно популярны идеи по изменению конфигурации помещения, особенно однокомнатных помещений. Однако каждый конкретный проект требует к себе индивидуального подхода.
Каждое стилистическое направление имеет собственное очертание и свое очарование. Выбор каждый делает сам. Кому что ближе. Ориентироваться нужно на собственные эмоции, предпочтения, чувства, характер.
Кстати, не стоит подчиняться моде, ведь она временна и преходяща. В то же время, стоит помнить, что даже не особо удачная планировка маленькой однокомнатной квартиры будет радовать при грамотном стилистическом подходе.
vashblok.ru






