Дизайн квартиры-студии. Как уместить всё на 23 квадратных метрах

В какой-то момент я запуталась. Я вроде бы знала, чего я хочу, более того, я даже знала, что мне нужно делать, ведь в National Design Academy нас научили пошаговому процессу работы над дизайном интерьера.
Но в одиночку мне сложно было начать работу над моим проектом.
Я чувствовала себя погребённой под виртуальным ворохом картинок красивых интерьеров из Pinterest, разрывающейся между «Хочу себе всё вот точно так же!» и «Да что я себе возомнила? На моих 23 квадратных метрах ничего не поместится».
Тогда я поняла — пора просить помощи.
Я обратилась к сервису Legko.com. Идея сервиса в том, чтобы дать возможность создать современный дизайн интерьера, даже если у вас не загородный дом и нет большого бюджета. Работа проходит онлайн без личных встреч, а чёткий алгоритм работы позволяет упростить процесс работы над дизайном и сделать его вполне доступным.
Сама по себе идея классная, но у меня, конечно же, были опасения, что онлайн-общение будет недостаточно глубоким, а чёткие алгоритмы приведут к штампованности.
Именно поэтому я не обратилась в Legko раньше. Однако когда обнаружила себя в состоянии «Вот в голове я себе всё представляю, но за что хвататься понятия не имею», я всё-таки зашла на сайт и запустила процесс работы с дизайнером.
Сразу скажу, что опасения мои были напрасны, но обо всём по порядку.
Я выбрала минимальный тариф «Лёгкий». Он включает в себя разработку идеи, зонирование, визуализацию. Там нет подробных чертежей и 3D визуализации как в других тарифах, но для моих задач они были мне не очень нужны.
Первый шаг — пройти тест на определение стиля и предпочтений в дизайне. Это такой приятный ввод в тему, который создаёт мечтательный настрой о будущем интерьере. Тест, кстати, можно пройти бесплатно.
В опроснике на сайте я описала, какая именно стоит передо мной задача и все свои пожелания по интерьеру. После этого мне пришла на телефон смска, что дизайнером моего проекта будет Ася.

Вся переписка с дизайнером проходит в личном кабинете на сайте. Я настроила в браузере уведомления, плюс мне приходили смски о новых сообщениях, так что ничего не терялось. Интерфейс приятный, хотя не всегда очевидно было, куда нажимать и что кликать. Это, пожалуй, главный минус сервиса, но, думаю, исправление этих моментов — дело времени.
Работа над проектом разделена на несколько этапов: идея – зонирование – концепт – визуализация – шоплист. На прохождение всего процесса закладывается две недели. Мы начали работу и пошли по процессу. Люблю, когда всё чётко и понятно, что будет дальше.
Этап 1. Разработка идеи
После того как я выслала бриф, прошла тест, ответив на вопросы по тем стилям, которые мне нравятся, Ася прислала мне две идеи, оформленные в виде мудбордов. Моя задача была их оценить и дать комментарии.
Идея #1. Светлый интерьер в скандинавском стиле

Комментарий дизайнера: «Первый вариант светлый и нейтральный, вы сможете с легкостью его декорировать и создавать разную атмосферу, что является для вас очень важным моментом. Так же хочется отметить, что этот вариант будет визуально увеличивать пространство, за счет большого количества белого цвета и светлой мебели, а это необходимо в вашем случае».

Идея #2. Тёмно-бирюзовый интерьер

Комментарий дизайнера: «Второй вариант более смелый, я использовала бирюзовый цвет, что бы интерьер выглядел интереснее. Но в нем по прежнему превалируют светлые оттенки, что бы помещение не было мрачным и не теряло легкость. Еще в интерьер были добавлены яркие желтые детали, для того что бы разбавить прохладную гамму и сделать комнату уютнее».

Я послала Асе свои комментарии и несколько фотографий тех интерьеров, которые мне нравятся.

Тот вариант, который прислала Ася в ответ был прекрасным и я была очень рада тому, что мы так поняли друг друга. А ещё я очень обрадовалась гибкости, с которой Ася подошла к проекту. Я переживала, что у меня будет только два варианта, выбирать придётся из них и изменений вносить не получится.
Финальный вариант идеи. Светлый бирюзовый с золотым

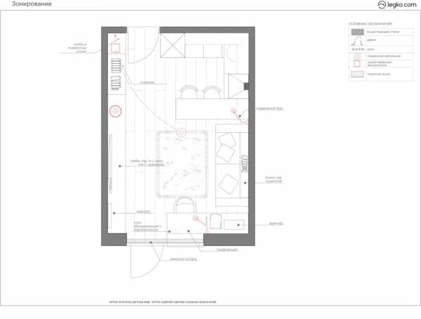
Этап 2. Зонирование
Зонирование оказалось самым простым этапом и я это во многом связываю с тем, что я уже работала с дизайнером над планированием пространства.
К моменту работы в Legko.com я решила вопрос с кухней и вынесла хранение вещей на лоджию. Оставалось разместить рабочий стол, спальное место и зону отдыха. Я амбициозно решила, что хочу всё это вместить на маленькой площади квартиры-студии.

Этот вариант мне не подошёл, потому что у меня уже была установлена кухня с барной стойкой и менять это я не планировала.
Изначально я хотела разместить стеллаж и телевизор у стены рядом с кухонной зоной, а раскладной диван напротив.
Ася подготовила два варианта зонирования и сразу предложила созвониться. За 30 минут я задала возникшие у меня вопросы, она прокомментировала все решения и в итоге я согласовала один из вариантов без каких-либо изменений.
Дизайнер убедила меня, что в таком случае, если кровать будет разобрана, то я по сути перегорожу всю комнату спальным местом и барной стойкой. Упс, кажется, я чуть не ошиблась. Она же предложила не делать стеллаж с полками вокруг телевизора, чтобы не загромоздить пространство.

Второй вариант зонирования, который я согласовала после того, как дизайнер прокомментировала мне несколько моментов, о которых у меня возникли вопросы.
Этап 3. Концепт
На этом этапе Ася подготовила для меня два коллажа, где использовались реальные предметы. Любой из них можно купить в России. У всех предметов, кстати, была цена, так что можно было выбрать подороже и подешевле.
Вот, что было указано в комментариях дизайнера: «В одном концепте я придерживалась указанного бюджета, в другом — решила сделать небольшую опцию с увеличением бюджета, чтобы вы могли сравнить общий вид интерьера с теми или иными позициями».
Вариант концепта #1

Вариант концепта #2

Я выбрала микс. Вот то, что получилось.

Какие-то предметы из первого коллажа, а какие-то из второго. А зеркало и бра, например, я попросила заменить на другие.
Именно на этапе концепции появилась идея акцентной бирюзовой стены. Забегая вперёд, могу сказать, что стену я уже покрасила и очень довольна результатом. Вот за такие нестандартные идеи я и ценю работу с дизайнером, не уверена, что придумала бы такой ход сама.
Этап 4. Визуализация
Поскольку все согласования были уже сделаны, то на этом этапе я просто ждала визуализации проекта, чтобы лучше представлять, как в итоге та мебель, которую я выбрала, будет смотреться в интерьере.
Этот этап занял больше всего времени со стороны дизайнера, но итог — меня очень порадовал.


С одной стороны — здорово, что можно посмотреть и представить себе, как же в итоге всё будет выглядеть в пространстве. Очень практично. С другой стороны, визуализация поддерживает морально, когда вокруг тебя только коробки и строительный мусор. Посмотришь на картинку и сразу понятно, к чему стремиться.
В более дорогом тарифе дизайнеры делают 3D визуализацию, но мне было достаточно обычной.
Обратите внимание, что в визуализации прорисована кухня. Меня очень растрогала такая внимательность к деталям, ведь сам дизайн кухни не входил в дизайн-проект.
Этап 5. Шоплист
Последняя часть проекта — лист покупок. Не зря же в проекте использовались реальные предметы, которые можно купить в магазинах, а не просто рассматривать на картинках в Pinterest.
В личном кабинете сайта у меня появилось что-то вроде собственного интернет-магазина со всеми предметами декора и мебелью. У каждого товара указана стоимость, производитель и сайт, где можно его заказать.

Насколько я поняла, сотрудники Legko могут помочь с заказом всего, но я решила, что хочу заниматься покупками самостоятельно: что-то посмотреть в шоу-румах, что-то купить напрямую в магазинах. Шоплист можно удобно скачать в виде PDF документа. Было невероятно удобно заказать в ИКЕА только необходимую мебель и не распыляться на все красивости и срочно-нужности.
В итоге работа над проектом заняла три недели. Чуть дольше чем изначально планировалось из-за паузы на этапе визуализации, но мне это было не критично.
Я очень довольна сотрудничеством с Legko.com. Для меня это ещё одно доказательство, что важно просить о помощи, даже тогда, когда кажется, что всё можешь сделать сам. Профессионалы сделают это быстрее и качественнее, а я буду меньше стрессовать и получу больше удовольствия от процесса.
Работа над воплощением дизайна в реальность идёт полным ходом. Я буду продолжать делиться процессом (больше всего я делюсь новостями в Инстаграм сториз) и, надеюсь, скоро-скоро отпраздную новоселье.
Буду рада поболтать с вами в комментариях о вашем опыте использования услуг профессионального дизайнера. Работали ли вы с дизайнером и был ли это позитивный опыт? А если нет, то хотели бы помощи профи или сознательно всё делаете самостоятельно?
hometocome.com
Дизайн студии 23 кв. м

Когда человек приобретает однокомнатную малометражную квартиру, он задумывается: как благоустроить ее так, чтобы поместилась кухня, спальня, гостиная, ванная? Этот вопрос встает особенно остро, если квартирка крохотная – всего 23-25 м. кв. Такое помещение подойдет семейной паре без детей, студента, для временного проживания матери с детьми.
Планируя дизайн студии 23 кв. м, нужно позаботиться о его функциональности, практичности, эстетичном внешнем виде. Апартаменты должны быть удобны для нормальной жизни. Квартира-студия – помещение почти без перегородок, стеной отделяют лишь ванную с туалетом. О лучших дизайнерских проектах «однушки», площадью двадцать с небольшим метров, подробно в тексте статьи.
Разрабатываем дизайн проект
При наличии некоторых навыков, понимания, что именно хочется сделать, проект интерьера 23-х метровой студии можно разработать самостоятельно, но лучше обратиться к профессиональным дизайнерам. На жилую зону в такой квартире выделяется 13-18 метров, остальное – санузел, прихожая, место готовки еды.
Несомненные плюсы маленькой квартиры:
- на организацию полноценного ремонта понадобится намного меньше времени, сил, строительных материалов, чем на благоустройство более просторного помещения;
- расходы на «лишние» вещи, предметы, аксессуары значительно снизятся – их попросту негде будет складировать;
- оплата за коммунальные услуги будет также относительно невелика.

Чтобы визуально расширить пространство, используют большое настенное зеркало, минимум мебели, светлые обои. Очень хорошо, если квартира имеет утепленный балкон, лоджию. При объединении с основным помещением они дадут дополнительные два-четыре метра, которые используются для организации места отдыха, рабочего мини-кабинета. Для расширения кухни «забирают» кусочек прихожей, гостиная совмещается со спальней, отделяясь от кухни узким откидным столиком, барной стойкой.
Если семье, проживающей в малометражной квартире, принадлежит гараж или дополнительное небольшое помещение в подвале, то все лишнее хранят там – стол-книжку, на случай масштабного приема гостей, велосипед, чемодан на колесиках и др.

Стилистическое направление
Стили оформления маленькой квартирки существуют те же, что и большой:
- классика – интерьер оформляется серыми, коричневыми, бронзовыми, бежевыми тонами, роскошными драпировками;

- минимализм – самый минимум предметов. Цвета используются яркие или светлые, контрастные, матовые. Декор почти отсутствует, мебель максимально функциональная, внутри которой скрыто все лишнее;

- скандинавский – много естественного света, белый и пастельные оттенки, природные материалы;

- хай-тек – обилие хромированного метала, стекла, блестящие поверхности, встроенная бытовая техника. На окнах – блестящие жалюзи, на стенах – черно-белые фото в рамках;

- лофт – отлично подойдет для мансардного этажа. Стены с кирпичной кладкой или ее имитацией, нарочито подчеркнутые трубы водопровода, радиаторы отопления, открытые потолочные балки;

- прованс — деревянные полы, льняные покрывала, плетеная мебель, панно из природных материалов на стенах, циновка на полу. Очень «в тему» придутся цветочные принты;
Читайте также: Дизайн квартиры с высокими потолками +50 фото примеров интерьера

- фьюжн – смешение множества стилей. Его следует использовать с осторожностью, в меру, чтобы не захламлять пространство.

Стиль барокко для тесной студии не подойдет – он предполагает чрезмерно объемную мебель, аксессуары.
Самостоятельно сносить и переделывать несущие стены не рекомендуется – это грозит обрушением всей конструкции.
Цветовые решения
Чем более светлые цвета используются в оформлении, тем просторнее кажется маленькая квартира. Спальную зону оформляют пастельными тонами – здесь должна быть спокойная атмосфера, благоприятствующая засыпанию. Также следует ориентироваться по собственным ощущениям – одного «усыпляет» черно-коричневый цвет, другого фиолетовый, третьего – древесный. Яркие оттенки позволительны лишь как элементы декора.

Ковры в любой части студии предпочтительны однотонные – так они не «скрадывают» пространство. Можно застелить всю квартиру однотонным ламинатом, а середину гостиной, спальню, прихожую выделить ковриками различных цветов.
Если мало окон, положение спасут 3D наклейки с их изображением – многие фирмы производят их величиной с настоящее окно, реалистичными картинками-пейзажами за таким окошком.

Зонирование пространства
Квартиру ограниченной площади зонировать не так сложно, как кажется. Кухня может совмещаться с гостиной, которая на ночь становится спальней, а плоскость для сна удобно размещать над рабочим столом, где расположен ноутбук.
Разбивка на зоны производится:
- складными ширмами;
- сквозными стеллажами;
- японскими шторами;
- декоративными решетками;
- высотой потолка, пола;
- шкафом, столом;
- с помощью света;
- стеклянными, гипсокартонными перегородками;
- разными цветами, фактурами.

Квадратная или прямоугольная студия наиболее проста для планировки. Удобно П-образное зонирование с помощью разной высоты пола. В этом случае с одной стороны на подиуме расположится кухня, с противоположной – спальное место, между ними – небольшая столовая зона, санузел – ближе к выходу. В помещении асимметричной конфигурации можно применить множество нестандартных решений – спальня или рабочий кабинет в эркере, детская на лоджии или в нише, кухонный рабочий стол, являющийся продолжением широкого подоконника.
Вариант планировки студии для проживания одного человека: прямоугольное помещение, справа от входа – совмещенный санузел, слева вешалка. Вдоль правой стены кухонный гарнитур с барной стойкой, холодильник, газовая плита, стиральная машина. Слева – складной диван, угловой шкаф. Окошко впереди оформлено широким подоконником. Над окном и диваном – подвесные шкафчики.

Кухня-гостиная
Кухонная зона займет почти всю одну стену – мойка, духовка, варочная панель, стиральная машина, вытяжка, холодильник. Вся техника приобретается узкая, малогабаритная, встраиваемая. Пространство для готовки и принятия пищи разделяют барной стойкой. Кухонную утварь, посудные принадлежности хранят в высоком шкафу-пенале, мини-диванчике, со встроенными секциями. Важно установить на кухне мощную вытяжку, чтобы запахи не распространялись. Столовую зону легко разместить на лоджии или утепленном балконе – тогда столешница монтируется туда, где было балконное окно с дверью.
Телевизор располагают на стене гостиной, акустическую систему, другие подобные атрибуты – на полках, под или над ним. В углах ставят высокие шкафчики. Одежным шкафом отделяют спальню от гостиной, но чаще его заменяют напольной вешалкой необходимого размера, комодом для белья.
Читайте также: Дизайн квартиры студии 26 кв. м +75 фото интерьера

Площадь подоконников следует использовать по максимуму — если окно расположено в кухонной зоне, то на него ставят микроволновку, электрочайник, тостер. На окошке в гостиной разместятся книги, диски с фильмами, ручная швейная машинка, домик для домашней кошки.

Спальня
Место для сна выделяют подиумом, ширмой или даже балдахином. Там ставят кровать или складной диван. Если в квартире предполагается проживание двух человек, то для них вполне подойдет двухъярусная кровать. Для семейной пары такой вариант не приемлем. В случае, когда высота потолка составляет не менее чем три метра, рассматривают вариант двухуровневого пространства – внизу высокий встроенный шкаф, рабочий стол, наверху – спальное место двух-трех человек. Для подъема на второй «этаж» используют складную или приставную лестницу. Спальня отлично обустраивается на лоджии или в нише.

Для организации спальни-детской выбирается самый светлый, теплый угол. Комната отделяется ширмой, для ребенка постарше делается кроватка на «втором этаже» — над его рабочим или игровым местом. Спать родители в этих случаях могут на раскладном диване в гостиной, совмещаемой с кухней.

Коридор
От прихожей желательно отказаться почти полностью, выделив только место, где можно разуться, повесить верхнюю одежду. Коридор от основного помещения отделяют шкафом, который повернут «спинкой» к двери, на этой плоскости крепят вешалки для одежды, небольшие полочки для обуви. Встроенный шкаф также устанавливают в коридорной нише, если таковая имеется. Оригинально смотрится зонирование прихожей с помощью напольного покрытия – контрастного по цвету ковра, ламината, плитки. По возможности, миниатюрную прихожую отделяют раздвижной дверью. Это весьма полезно, когда квартира не очень теплая – дверь послужит дополнительной защитой от холода с улицы. Текстильные занавески, матовое стекло, витражи, металлические перегородки с плазменной перфорацией – отличное решение. Освещение коридора должно быть достаточным не только для того, чтобы снять ботинки и пальто, но и нормального причесывания, нанесения макияжа. Положение спасет специальное гримировочное зеркало с яркой подсветкой по периметру. На коридор выделяется не более 1,5-2 м. кв.

Санузел
Ванную и туалет практичнее всего объединить, выделив для них не более 3,5 кв. м. В другом варианте под туалет выделяют до 1,5 м. кв. закрытого пространства, а вместо ванной ставят душевую кабинку. Угловая кабинка значительно экономит пространство, как и миниатюрная ванна – треугольная или укороченная. Специфика санузла в том, что расположить его можно только в определенном месте квартиры – около «стояка». Умывальник здесь также предпочтителен угловой, миниатюрный, при наличии ванны от него можно совсем отказаться. Устройство теплого пола в ванной комнате послужит дополнительным отоплением квартиры – для объемных батарей здесь слишком мало места.
Читайте также: Современный дизайн однокомнатной квартиры — фото примеры

Грамотная расстановка мебели
Зонировать пространство ограниченного метража можно с помощью мебели – она предпочитается узкая. Относительно низкими предметами разделяют помещение, высокие — расставляют вдоль стен. Все возможные предметы мебели делаются складными или откидными. Никаких громоздких столов, массивных кресел – они только «крадут» и без того ограниченное пространство.

Шкаф-кровать – замечательное приобретение. На время сна он является кроватью, а днем спальная плоскость поднимается, не занимая лишнего места. Диван-кровать ночью послужит спальней, будучи днем компактным местом для отдыха. Угловой раскладной диванчик отлично впишется в малометражную студию, украсив ее. Мебель с колесиками весьма удобна – кровать днем складывается, на ночь «выезжает» в центр комнаты. В закрытых стеллажах размещают практически все вещи, чтобы не загромождать пространство. Хорошее решение – стеллажи со встроенными зеркалами. Зеркало само по себе визуально создает простор, высокие стеллажи являются вместительным местом для хранения.
Желательно всю меблировку или большую ее часть, подбирать одного цвета, похожей по форме и стилю. Высокая мебель зрительно экономит пространство – вместительные шкафы до потолка, барная стойка с высокими стульчиками, «чердачная» кровать.

Освещение
При недостатке натурального освещения, об искусственном следует позаботиться вдвойне — обилие света зрительно расширит помещение. Подсветку выбирают локальную – для каждой зоны свою, а также общую, регулируемой яркости. В «сонной» зоне делают тусклый рассеянный свет – потолочные светильники, специальные плафоны, бра. Для кухни подойдет контурная подсветка, сочетающаяся с общим потолочным освещением. Плотные занавески зрительно уменьшают пространство, потому их заменяют на жалюзи или рольшторы, располагаемые близко к стеклу. Это позволит эффективно использовать площадь подоконников.

Рабочая зона должна быть хорошо освещена – достаточно для того, чтобы полноценно читать, писать, заниматься работой за ноутбуком. При наличии детской, в ней должно быть очень светло днем, а перед сном включается ночник с датчиком освещенности.

Заключение
При разработке дизайна студии, размером в 23 «квадрата», учитывается, кто в ней будет проживать и как долго. Идеально такое помещение подойдет для одиночек, временно и менее комфортно здесь разместятся даже два-три человека. Такой интерьер сочетает компактность с комфортом, оригинальность с многофункциональностью, это принципиально новый формат жилья. Проблема тесноты решается грамотно подобранной меблировкой, зонированием, минимизированием количества декоративной отделки.
thewalls.ru
Интерьер маленькой квартиры-студии на 23 кв м

Даже небольшая квартира может быть уютной и привлекательной. В этой маленькой квартире-студии разработкой дизайна интерьера занималась Александра Ладанова. Общая площадь составляет всего 23 кв. м. и перед специалистом стояла задача сделать обстановку не только красивой, но и максимально функциональной. В результате получилась комфортная квартирка, с практичными зонами.
Для визуального расширения пространства в дизайне интерьера присутствует только светлый цвет и пастельная цветовая гамма. Акцентным пятном стали аксессуары и предметы декора зеленого цвета разных оттенков.
Кухня небольшая. Рабочая зона разместилась вдоль стен. Столовое место составляет круглый стол и четыре удобных кресла. Две полосы обоев в флористический рисунок отделяют зону столовой от прихожей и зоны отдыха.
В дизайне интерьера небольшой квартиры использовано несколько приемов по зрительному увеличению пространства. В первую очередь это белый цвет с молочным оттенком – он не такой категоричный, как холодный синеватый оттенок, который зачастую применяется в малогабаритных помещениях. Он более мягкий и домашний.
Ламинат выложен наискосок – это так же является несложным, но эффективным приемом.
Решение искусственного освещения помогает поднять потолки. В основном в квартире используются точечные светильники, а в зоне гостиной под потолком раскинулась невысокая люстра.


От полноценного спального места пришлось отказаться в пользу мягкого удобного дивана. Напротив него расположилась модульная система, состоящая из шкафа и тумбы с телевизором.


Небольшая прихожая состоит из закрытой тумбы для обуви, вешалки и мягкой скамьи с обивкой выразительного зеленого цвета. Стену украшает пастель. В целях гигиены и для удобства уборки пол в зоне прихожей выложили кафелем с ненавязчивым геометрическим узором.

Ванная комната полностью функциональная и состоит из санузла, умывальника, встроенного в тумбу и душевой кабины со стеклянными дверцами.

Чтобы обстановка не казалась скучной, дизайнер сыграла на сочетании крупного и мозаичного кафеля, таким образом разнообразив интерьер ванной комнаты и зрительно расширив стены. Большое зеркало на стене возле умывальника добавляет комфорт, и так же визуально отодвигает горизонты помещения.

Дизайн интерьера балкона напоминает прованс. Здесь вдоль балконного окна поставили живые цветы, а в углу разместилась старая швейная машинка «Зингер». С другой стороны балкона оборудовали большой встроенный шкаф, который помогает организовывать хранение вещей.


© interiorizm.com — при копировании материалов активная ссылка на сайт обязательна!
♦ Рубрика: Дизайнерские интерьеры, Квартиры.♥ Метки: дизайн интерьера квартиры > квартира-студия > однокомнатная квартира

interiorizm.com
Дизайн квартиры студии 23-24 кв м с фото и советами
Квартира-студия — это самый популярный вариант недвижимости, среди всех предложений в городе Харькове. Даже при относительно небольшой площади, например, 23-25 м2, студия обладает гораздо большей практичностью, чем обычная квартира. Секрет кроется в планировке такого жилья, в едином жилищном пространстве!
Планировка студии в ЖК «Воробьевы горы»
В жилом квартале «Воробьевы горы» Вы можете купить квартиры-студии, площадью 23.3 м2. Этого вполне достаточно для комфортного проживания и для того, чтобы такой вариант недвижимости можно было считать полноценным аналогом полнометражных 1-комнатных квартир.

Планировка наших студий подразумевает общее внутреннее пространство квартиры. Отделенной зоной является лишь санузел. Прихожая, кухня, комната отдыха гармонично распределены, без использования внутренних перегородок. Таким образом, сохраняется целостность помещения, его просторность и вместимость. Расположение санузла, кстати, может быть левосторонним и правосторонним, зависит от Ваших предпочтений.
Читайте также: Советы по дизайну квартиры-студии 18 кв. м.Общие советы по оформлению квартиры-студии 24 кв м
Чтобы дизайн квартиры-студии 23-24 м2 получился «со вкусом», обязательно необходимо придерживаться рекомендаций, которыми с нами поделились профессиональные дизайнеры интерьера. Их советы помогают сделать жилье гораздо комфортнее и визуально привлекательнее:
- Разработайте дизайн-проект своей смарт-квартиры. Это значит, что в первую очередь придется потрудиться в графических программах и продумать каждую мелочь – в каких цветовых оттенках будет выполнена отделка, какой будет мебель, и как ее расположить в квартире, элементы декора, освещение и прочее. Получив полную визуализацию своей студии (с соблюдением масштабов), Вы поймете, какой «фронт работ» предстоит дальше.

- При разработке дизайна квартиры-студии, используйте все преимущества конкретно Вашего жилья. Например, если малогабаритка имеет прямоугольную планировку, жилищные зоны можно расположить так, чтобы они сменяли друг друга. Но, тщательно продумайте, как правильно сделать так, чтобы естественный дневной свет проникал абсолютно во все зоны квартиры, даже в самые отдаленные углы!

- В ходе создания интерьера в квартире, реализации своего дизайн-проекта, обязательно соблюдайте последовательность проведения ремонтных работ! Так Вы сэкономите время и деньги, так как не придется переделывать все по несколько раз.

- Поскольку студия 23.3 м2 относится к разряду компактных квартир, рекомендуем использовать приемы по визуальному увеличению внутреннего пространства! К ним относятся: использование панорамных зеркал, светлых и ярких оттенков облицовочных материалов, компактной мебели (раскладные диваны и столы-трансформеры, узкие и высокие шкафы с зеркальными фасадами), и т.д.

- Учитывайте свои жизненные интересы. Каждый м2 метр в Вашей гостинке обязательно должен нести функциональную пользу. Поэтому задействуйте, в том числе, и углы квартиры, и зону подоконника, оборудуя их под ниши и системы хранения.

Зонирование студии 23 квадратных метра
В примере зонирования мы рассматриваем студию, где ванна представляет собой отдельной помещение, а кухня, комната отдыха и развлечений, а также прихожая – совмещены в едином пространстве. Как грамотно распределить роли для каждой части Вашей квартиры?
Зона отдыха в мини-квартире
На плане, который мы представили в самом начале статьи, зона отдыха находится прямо возле окна. Но, Вы можете расположить ее, например, в середине Вашей квартиры, между прихожей и кухней (мини-кухня в квартире-студии, в данном случае, располагается возле окна).

Если Вы все-таки выбрали первый вариант — расположение у окна, рекомендуем поместить диван к боковой стене, а не задней частью к окну. Диван лучше выбрать раскладной. Так Вы получите удобное спальное место, и не займете много свободного пространства. А еще, советуем выбирать среди тех моделей, которые имеют встроенные ящики для хранения, например, постельного белья!

Напротив дивана можно расположить телевизор. С целью максимального сохранения свободного места, плазму лучше повесить на стену. Возле нее расположите предметы декора, например, торшер, или же используйте дополнительную мебель — журнальный столик, комод или модульную систему хранения, которую можно оформить вокруг телевизора!
Мини-кухня в студии
Кухня в квартире-студии, действительно, должна быть небольшой! 2-4 м2 вполне достаточно будет для того, чтобы оформить функциональную и удобную зону приготовления.

Да, в нашем случае кухня используется лишь для готовки, а вот обеденная зона может быть вынесена, как отдельная часть квартиры или же использоваться в качестве перехода от кухонной зоны к комнате отдыха, посредством поперечно установленной барной стойки или стола.
Кухню также лучше оформить в ярких и светлых цветовых оттенках.

Поднимая вопрос кухонной техники, Ваш варианта – это встраиваемая мини-духовка и варочная поверхность. Холодильник тоже лучше выбрать небольшой, а вот на вытяжке лучше не скупиться! Модель нужна мощная, чтобы мгновенно удалять за пределы квартиры все запахи и не давать и распространяться на другие зоны Вашего жилья.
Туалет и ванная комната
В квартире-студии 23 метра, которая расположена в новом ЖК «Воробьевы горы», площадь санузла составляет 3.8 м2.
Главный вопрос в данном случае — что лучше установить в санузле, душевую кабину или ванну? Второй вариант, возможно, Вам покажется более удобным и дешевым! С другой стороны, выбрав гидробокс, Вы получите дополнительное место для установки стиральной машины. Хотя, ее можно расположить и под умывальником, если Вы все-таки сделаете выбор в пользу ванной.

Для Вашего же удобства, в санузле квартиры-студии рекомендуем повесить большое панорамное зеркало. Что касается цветовой гаммы ванной комнаты, она также должна быть теплой, яркой, поскольку все темные цветовые оттенки безжалостно скрадывают пространство, по крайне мере, в визуальном восприятии.

Прихожая
Планируя дизайн интерьера квартиры-студии, не обходите вниманием зону прихожей. Ведь именно с нее и будет начинаться представление о Вашей квартире у людей, которые пожалуют в Ваши апартаменты!

Поскольку в прихожей у нас присутствует вход в санузел, логично расположить шкаф для хранения вещей у противоположной от него стены. Модель шкафа, обязательно, должна быть узкой и высокой, под самый потолок. Шкафы-купе со стандартной глубиной в 60 см в данном случае могут занять слишком много пространства.
Читайте также Как создать чудо в 40 кв м или дизайн евродвушки на примере ЖК «Воробьевы горы»А для того, чтобы прихожая не казалась тесной, фасад шкафчика лучше заказывать с панорамными зеркалами. Так Вы приумножите пространство этой зоны Вашей квартиры, по крайней мере, визуально!
Предлагаем Вам взглянуть на фото подборку дизайна квартир студий в самом популярном жилом квартале города Харькова — «Воробьевы горы». Мы представили квартиры, оформленные в разных стилистических направлениях, но с четким соблюдением всех упомянутых рекомендаций. А если хотите увидеть эти и другие студии вживую, стать владельцем одной из них, записывайтесь на просмотр в нашем отделе продаж: 096-016-17-17!
Популярные запросы:
гостинки со своим санузлом, Гостинки возле метро, гостинки на Салтовке, квартиры-студии в Харькове, двухуровневые гостинки, малогабаритки.
Следующий пост Предыдущий пост
www.vorobievy-gory.kharkov.ua
Белая квартира-студия 23 кв. м.
Приступая к оформлению белой квартиры-студии 23 кв. м., дизайнеры старались не просто “выжать” из крохотной площади каждый доступный сантиметр, но и максимально расширить функциональность каждого предмета, чтобы не загромождать и без того не слишком-то просторное жилье.

Белый стал основным цветом проекта, и стены, и мебель, и обивка дивана — все здесь ослепительно белое. Отличие только в фактуре: фасад и ламинат на полу — глянцевые, стены и обивка дивана — матовые.

В кухне есть все необходимое — и объемная мойка на две чаши, и холодильник, и современная плита с духовкой и вытяжкой.

Бирюзового цвета фартук над рабочей поверхностью, выложенный из керамической плитки, служит ярким декоративным акцентом, а деревянные поверхности столешниц смягчают жесткость и холодность белого и добавляют уюта в атмосферу белой квартиры-студии 23 кв. м.

В целях экономии места плиту, духовку и обеденный стол объединили в единое целое, создав остров, разделяющий квартиру на функциональные зоны. Поскольку остров довольно высокий, в роли обеденных стульев выступают барные.


Зона гостиной имеет удобный диван, возле которого нашлось место для журнального столика, и, конечно же, телевизор.

Диван в белой квартире-студии служит для отдыха, а для ночного сна предусмотрена кровать — она расположена в нише и визуально выделена обоями со спокойным темным рисунком. Основание кровати поднято — туда дизайнеры поместили дополнительную систему хранения.

Также шкафы для одежды и разных бытовых предметов имеются в гостиной зоне и в зоне прихожей, а рядом с постелью на стене — несколько открытых полок, куда можно поставить книги или любимые сувениры.

Белый цвет кафеля в небольшом пространстве ванной комнаты смягчается текстильными элементами цвета молочного шоколада. Собственно, ванны в студии 23 кв. м. как таковой нет, небольшое пространство позволило разместить лишь раковину, компактный унитаз и открытый душ.

Источник http://kvartirastudio.ru/
design-homes.ru
Квартира студия 23 кв. м дизайн и обустройство
Когда небольшая квартирка имеет только одну, очень маленькую комнату, достаточно сложно на таких метражах расположить все необходимые для удобного проживания зоны. Владельцы подобных помещений обычно задаются вопросом, как обустроить квартиру студию 20 метров.
Обустройство такой компактной квартиры обычно основывается на максимальном использовании имеющегося пространства.
Содержание статьи
Роль зонирования
В студиях единственным отдельным помещением является небольшой санузел:

Фото аккуратно оформленной небольшой квартиры студии
- Ванны обычно нет, в компактном пространстве размещается раковина, унитаз и душ.
- Остальное единое помещение — это комната, которая делится на определенные логические зоны.
- На малом метраже необходимо выделить место под прихожую с закутком для хранения одежды и прочих вещей.

Профессиональное зонирование
В основной комнате находятся жилые зоны:
- Кухня.
- Столовая.
- Спальня.
Так выглядит классическая квартира студия 20 кв. м. Планировка ее может различаться и иметь другие зоны.
Они могут располагаться по периметру и не разделяться между собой. Зонировать пространство можно разными способами:
- Использовать различное половое покрытие (материал, цвет), ограничивая разные зоны.
- Применять разную отделку стен (материал, цвет).
- Устанавливать декоративные перегородки.
- Отделять место предметами мебели.
В маленьком пространстве всегда важно разместить выдержанные в едином стиле системы хранения, которые обычно выполняются на заказ по конкретным размерам.
Цель дизайна

Цель оправдывает средства
На небольшой площади должна поместиться полноценная квартира, в которой можно комфортно жить и даже принимать гостей.
- Как добиться, чтобы появилось ощущение просторного помещения: Визуально необходимо сделать квартиру большой.
- Чтобы ничто не давило и улучшало восприятие пространства, рекомендуется все основные элементы выполнять в светлых тонах.
- В ней довольно удобно проживать студенту либо молодой паре.
- Совершенно не подходит для размещения полноценной семьи квартира студия 21 кв м. Дизайн должен решить свою основную задачу, создать просторное и функциональное помещение, где все имеет определенный смысл.
Обратите внимание. Универсальных методов оформления маленьких квартир и достижения таких целей не существует. Для решения проблем часто пользуются правильным применением цвета.
Обычно используют светлые пастельные оттенки, чтобы расчленить имеющееся пространство на зоны:
- Прихожую.
- Кухонную.
- Столовую либо гостевую.
- Спальную.
Применяемые методы

Несколько дизайнерских хитростей
Чтобы достичь желаемого результата, выполняя оформление своими руками, рекомендуется следовать двум правилам:
- основное – это стараться, чтобы дизайн не «съедал» полезное пространство;
- нельзя переборщить с дизайном.
Существует ряд способов, как можно обмануть пространство, и заставить его казаться больше. Дизайн квартиры студии 20 кв. м имеет свои особенности.
| Обратить внимание | Рекомендации |
| Единственное окно. | Обрамляется светлыми длинными шторами до пола, которые визуально делают комнату выше. |
| Верх квартиры. | Не рекомендуется нагружать полками или шкафами, чтобы создавалось ощущение бесконечность потолка. |
| Пол, фасады мебели. | Желательно использовать глянцевые поверхности, которые отражают много искусственного света, и квартира студия 24 кв м выглядит больше. |
| Зеркала (в полный рост, в необычных рамках, повторяющихся геометрических фигур). | Расширяют помещение. |
Нужно предварительно определиться с общим стилем, чтобы не создавать слишком пестрый дизайн. Квартира студия 22 кв. м может иметь яркое оформление. Гармоничную атмосферу создают смысловые акценты. Их необходимо использовать не более одного (двух). Роль акцентов могут играть, например:
- Фотообои.
- Необычная люстра.
- Одна какая-либо яркая деталь мебели.
Функциональное пространство

В маленьких помещениях очень просто уничтожить уют нагромождением лишних вещей
Чтобы создать проект квартиры студии 23 кв, необходимо все продумать до мелочей. Тогда его реализация и отделка помещения будет проводиться достаточно легко и без затруднений.
Обратите внимание. Необходимо уделить внимание качественной планировке квартиры, а также размещению эргономичных систем хранения.
Итак:
- Гардеробные, места для хозяйственных вещей, антресоли помогают поддерживать порядок в квартире.
- Ключевое значение имеет размещение кухни (помочь может инструкция).
- Надо грамотно разделить рабочую зону с местом для отдыха.
В небольших квартирах необходимо продуманно использовать:
- Декоративные перегородки.
- Различное освещение.
- Различное напольное покрытие.
Так можно создать яркий дизайн, где на едином пространстве появятся эргономичные уголки. Когда заканчивается ремонт в квартире студии 20 кв м, появляется место для формирования нового интерьера. Для создания атмосферы необходимо пространство.
Размещение мебели

Как правильно расставить мебель по своим местам
Маленький метраж затрудняет выбор мебели, поэтому чаще вся обстановка выполняется на заказ по заданным размерам (цена на нее значительно выше, чем на стандартную):
- На имеющемся пространстве необходимо разместить и спальное место, и диван в зоне отдыха.
- Хорошо оградить спальню и закрыть ее от посторонних глаз, одновременно создавая уют и ощущение уединенного места. Для этих целей может использоваться платяной шкаф или полка для бытовых предметов.
- Для образования дополнительной системы хранения часто основание кровати поднимается, и внизу располагаются вместительные ящики. Интерьер квартиры студии 20 кв. м должен быть продуман.
В помещении должна быть оборудована кухня. Чтобы сэкономить место часто объединяют плиту с духовкой и обеденным столом, создав островок, разделяющий две функциональные зоны.

Эргономично устанавливать полностью встроенную кухню
Когда верх гарнитура поднят под потолок, то появляется много места для хранения кухонных принадлежностей. Смотрится стильно, если выделено несколько ярких акцентов.
На кухне необходимо предусмотреть рабочее пространство, достаточное для готовки, а также организовать небольшую столовую на 2-3 персоны. Потому что помещение небольшое – это квартира студия 22 метра-25 метров.
Дизайн может предусматривать гостиную со спальней, размещенных в одном, не разделенном пространстве. В ней можно расположить удобный диван для отдыха, журнальный столик и телевизор.
Освещение

При малых площадях освещение играет важную роль
Поэтому желательно продумать 3 вида освещения (см. Как правильно выполнить освещение):
- Контурная галогенная подсветка.
- Основное освещение.
- Набор небольших светильников.
Если это студия квартира 24 кв м, то так можно обеспечить атмосферу под любое состояние:
- Встреча гостей.
- Романтический ужин.
- Рабочий вечер дома.
Дополнительно к изяществу и красоте получается экономия электроэнергии с сохранением зрения:
- Помещению придают особое настроение различные небольшие яркие детали и предметы интерьера.
- Они создают не скучную и яркую атмосферу.
- Акценты должны быть правильно расставлены.
Могут реализоваться интересные цветовые решения, если это квартира студия 23 кв м. Дизайн должен быть стильным, функциональным и превратить скромные метры в комфортное жилье (см.Дизайн квартиры 28 квадратов). А в завершении рекомендуем посмотреть видео в этой статье.
Для нас важно ваше мнение:
Загрузка … Загрузка … Загрузка …Был ли полезен для вас материал?
kvartirka-studia.ru
Интерьер квартиры-студии + фото
Как правильно подобрать интерьер квартиры студии? Этот вопрос актуален для многих собственников недвижимости, поскольку в настоящее врем студии 30 кв. м востребованы на современном рынке недвижимости.

Правила рациональной организации пространства в квартире-студии
На 23-30 квадратных метрах невозможно уместить значительное количество предметов мебели, поэтому важно продумать такой проект интерьера студии, в котором мебель будет обладать несколькими функциональными возможностями.

Для визуального расширения пространства в квартире студии 25 кв.м можно использовать перепланировку. С помощью зонирования в интерьере квартиры студии 25 кв. м можно выделить кухонную зону, гостиную, пространство для полноценного отдыха и работы.Отсутствие перегородок является преимуществом квартиры студии, активно используется в работе профессиональными дизайнерами.

Совет! Дизайн интерьера квартиры студии предполагает использование в качестве разделителя зоны приема пищи и зоны отдыха мобильной перегородки с матовыми зеркальными поверхностями либо современной барной стойки.
В таком случае можно будет следить за действиями ребенка, не отвлекаясь от разговора с подругой.

На фото представлены интересные варианты зонирования пространства в квартире студии, площадь которой не превышает 30 кв. метров.Зону кухни профессионалы рекомендуют оформлять в сходном с залом дизайне, для разделения использовать освещение, а также различный вариант напольного покрытия.

В квартире студии с площадью 23 кв. метра важно правильно организовать рабочий уголок. Например, в качестве зоны для работы можно использовать пространство подоконника.

Совет! Если в квартире есть лоджия либо балкон, можно взять это пространство для создания полноценного комфортабельного рабочего места, проведя предварительные работы по утеплению балкона либо лоджии.
Если заменить стандартный подоконник более длинным вариантом, он станет отличным столом для размещения персонального компьютера.

Зона для отдыха
При грамотной реализации дизайнерского проекта, вполне можно выделить пространство в квартире студии 23-20 кв. м отдельную спальню. Отличным решением проблемы является приобретение мобильной перегородки или декоративной ширмы. Если в комнате высокие потолки, зону для сна можно оформить на втором ярусе, разместив под ней рабочий стол.

Для однокомнатных квартир с низкими потолками, профессиональные стилисты предлагают отделять кровать перегородкой, оставляя в гостиной зоне небольшой мягкий диванчик.
Для экономии свободного пространства можно подобрать оригинальные идеи с фото проектов, выкладываемых стилистами на сайтах, публикуемых в модных интерьерных журналах.

Оригинальные идеи для интерьера квартиры студии
Например, интерьер квартиры студии 40 кв. м допускает выделение подиума. На нем устанавливается кровать, которая является центральным элементом создаваемого интерьера. В подиуме можно сделать выдвижные ящики для хранения личных вещей, отказавшись от громоздких шкафов. Помимо рабочего кабинета, пространство лоджии можно использовать в качестве полноценной гостиной или игровой комнаты для малышей.

Внимание! Прежде чем приступать к использованию балконного пространства, важно провести его качественное утепление современными теплоизоляционными материалами.
Дизайн квартиры студии с площадью не больше 30 квадратных метров предполагает организацию специальной системы для размещения личных вещей. Современные производители мебели предлагают множество интересных вариантов систем хранения, поэтому свой выбор смогут сделать даже самые избалованные покупатели.

Совет! Если вы не подберете готовый вариант системы хранения под размеры своей квартиры-студии, можно оформить индивидуальный заказ, вызвав для проведения предварительного замера специалиста.
Для зонирования пространства в однокомнатных квартирах можно воспользоваться перегородками-шкафами, имеющими открытые полки.Помимо того, что такой вариант уместен во многих современных стилях, с его помощью можно добиться существенной экономии пространства, разместив в комнате предметы, напоминающие о важных событиях в жизни.

Перегородки станут отдельным декоративным и одновременно функциональным элементом, к тому же их можно использовать также в качестве рабочего стола.

Этапы работы
До того как приступать к непосредственной перепланировке, важно выбрать приоритеты в отдельных функциональных зонах. Например, трудно представить себе городскую квартиру без полноценной спальной и кухонной зон. При продумывании размеров каждого отдельного сегмента студии, необходимо учитывать несколько определенных критериев:
- общую площадь квартиры;
- число и расположение дверных проемов, оконных блоков;
- линии коммуникации: водопровод, газовые трубы, отопительные радиаторы;
- наличие лоджии либо балкона;
- число человек, проживающих в студии
Классическим вариантом оформления интерьера квартиры-студии является использование открытой планировки. Благодаря размещению различных функциональных зон без дополнительных ограничений перегородками, у жильцов квартиры будет возникать ощущение простора даже на 23 кв. метрах.

Строители современных многоквартирных домов изначально не используют в студиях перегородок, что существенно упрощает задачу дизайнеров. Владельцам вторичного малогабаритного жилья придется сначала получить специальное разрешение от официальных властей на проведение демонтажа перегородок, и только после этого приступать к воплощению в реальность своих творческих мыслей.
Внимание! В небольшой студии для создания гармоничного и удобного интерьера, важно продумать полноценное естественное освещение.

Для того чтобы решить эту проблему в старых домах, необходимо расширить оконные проемы, предварительно согласовав свои действия с органами власти.
В качестве интересного дизайнерского приема, позволяющего добиться визуального расширения пространства, также можно использовать зеркальные и глянцевые поверхности. При желании можно подобрать оригинальные композиции из стекла и зеркальных панно, которые не только будут гармонично вписываться в создаваемый в студии образ, но и будут выполнять определенные функции.

Заключение
Для того чтобы на небольшом пространстве квартиры-студии была создана гармоничная и комфортная обстановка, дизайнеры используют множество хитростей. Помимо открытой планировки, максимального освещения пространства, применения зеркального потолка и стеклянных панно, интересным решением является использование мобильных перегородок со стеклянными либо зеркальными поверхностями.
Такая раздвижная конструкция в ночное время станет ограничителем между гостиной и спальней, а в дневное время будет надежно спрятана от любопытных глаз.

В кухонном пространстве уместна керамическая плитка, а у кровати можно расстелить мягкий и пушистый коврик.
При правильном подборе оригинальных приемов и интересных дизайнерских идей, определении подходящего стилевого оформления интерьера, вполне можно создать комфортные условия для проживания семейной пары в малогабаритной квартире-студии, площадь которой не превышает 23 квадратных метров
bouw.ru

