Нельзя и можно — The Village
Перепланировку жилых помещений регулируют СНиПы, СанПиНы, технические регламенты, постановления правительства, несколько федеральных законов и региональные нормы. The Village совместно с порталом об обустройстве дома Houzz.ru разобрался, что можно и что нельзя делать во время ремонта на кухне.
Убирать несущие стены запрещено в любом случае, независимо от того, какие помещения они разделяют. В несущей стене разрешается сделать проем с укреплением — стальным каркасом или дополнительными колоннами. Однако «разрешается» еще не означает, что в БТИ подобную перепланировку согласуют. Все будет зависеть от типа дома, толщины стен и даже этажа (на первые этажи нагрузка выше).
Чтобы объединить кухню и гостиную в квартире с газом, его можно отрезать. По заявке газовщики заварят вам колено магистрали.
Оставить газ и объединить кухню с комнатой можно, если сделать мобильную перегородку — например, сдвижные панели по типу шкафа-купе или складные двери. Для согласования такого проекта гостиную лучше обозначить как нежилую комнату и установить датчик газа.
По действующим нормам кухню и ванную комнату (так называемые мокрые зоны) запрещено размещать над жилыми помещениями в многоквартирном доме. То есть если ваша квартира расположена на первом этаже или над нежилыми помещениями, то перенести кухню в гостиную можно.
Второй вариант: в объединенной кухне-гостиной плиту и мойку оставить на нежилой площади кухни, а мебель и холодильник вынести в комнату — визуально кухня расширится, но технически останется на своем месте.
Нельзя менять местами кухню и ванную, расширять кухню за счет санузла, делать вход в единственный санузел из кухни. Запрещено также устраивать единственный вход на газифицированную кухню из комнаты.
Допускается присоединение к кухне коридора, прихожей или кладовки. Если кухня не газифицирована, можно даже полностью перенести ее в коридор — такая планировка называется кухней-нишей. Освободившуюся площадь кухни можно использовать как комнату, но в плане лучше назвать ее нежилым помещением, например гардеробной или кладовой.
Размещать кухню на территории санузла, как и наоборот, запрещено, потому что формально вы ухудшаете свои условия. Такую перепланировку могут одобрить в том случае, если вы предоставите нотариально заверенное согласие на добровольное ухудшение своих жилищных условий с обязательством сообщить об этом покупателям при продаже квартиры. То же касается и расширения комнаты за счет кухни.
Не разрешается выносить мойку за пределы мокрой зоны. Двигать мойку по стене можно вообще без всякого согласования, а вот остальные перемещения —например, на остров — потребуют проекта. Если установке раковины у окна мешает батарея отопления, ее можно сдвинуть с разрешения управляющей компании.
Газовую плиту разрешено переносить только с одобренным проектом перепланировки. При этом устанавливать плиту у стены из горючих материалов, использовать гибкие шланги длиной более 1,5 метра и затрагивать магистральные газовые стояки нельзя.
Запрещается делать штробы для прокладки труб и проводов в несущих стенах, поскольку есть риск повредить арматуру. Нельзя убирать газовые трубы в короба и закрывать доступ к кранам и вентилям.
Присоединение лоджии к кухне возможно, если вы не будете трогать несущие стены, оставите на месте подоконный блок, который удерживает плиту, и обозначите в плане перегородку между лоджией и кухней. Зачастую окно и дверь убирают, а подоконный блок маскируют под столик или стойку. Если блок не несет несущей функции, его можно убрать, а в качестве перегородки сделать складные стеклянные или раздвижные двери. Присоединенную лоджию придется утеплить. Переносить батареи отопления из квартиры на лоджии нельзя.
Вентиляционная шахта является общедомовой собственностью, поэтому любые вмешательства в ее конструкцию недопустимы. Запрещается также подсоединять вытяжку к вентканалу в ванной: даже из кухни-ниши в коридоре придется тянуть трубу на старую кухню.
В квартирах нельзя делать водяные теплые полы, которые подключаются к общедомовой системе отопления и водоснабжения. Монтировать можно только электрические полы — кабельные и пленочные.
Фотографии: обложка, 1 – Photographee.eu — stock.adobe.com, 2 – jannoon028 — stock.adobe.com
www.the-village.ru
Проходная кухня: фото-обзор лучших дизайнерских решений
Место, что особенно приятно для отдыха и расслабляющей обстановки – это кухня.

Поэтому так важно правильно организовать это пространство, сделать его максимально комфортным и уютным для использования.
Благодаря правильному плану, эскизу дизайна и общих рекомендаций, вы сможете сделать идеальную проходную кухню.

Содержимое статьи:
Функции
В целостности дизайн проходной кухни должен выполнять несколько базовых функций:
- максимально рациональное использование пространства;
- комфортные, удобные условия использования;
- зонирование. То есть оптимальный вариант – это четкие границы отдельных зон. Такой подход обезопасит общий интерьер от перегруженности;
- дизайн кухни должен соответствовать стилистическому направлению во всем помещении.
Зонирование
Перед началом самого процесса стоит рассмотреть основные идеи проходной кухни. Для их воплощения в жизнь часто используют следующие приемы.

Если у вас проходная кухня в частном доме, то есть большая, просторная, тогда вы сможете разделить на зоны пространство с помощью следующих элементов:
- подойдет для таких целей большой, обеденный стол;
- барная стойка;
- часто используют столешницу.

Поставьте какой-то из выше перечисленных предметов по центру, уделив основное внимание именно такому акценту. Таким образом, вы разделите рабочую зону, а также другие четким разделением линий. Но, этот вариант идеально подойдет только большим помещениям, для маленьких он будет плохим вариантом.

Если у вас маленькая проходная кухня, тогда особенно актуально разделение на зоны. Достаточно удобно это делать с помощью правильного размещения.

Например, рабочий уголок разместите в угловой части комнаты, чтобы никто не мешал работе. Стол, где будет размещаться вся семья за приемом еды, можно поставить в другой угловой части комнаты.

Таким образом, вы максимально отдалите две важные зоны друг от друга, не нарушая комфортные условия использования.

Если у вас проходная кухня в квартире, и ее размер оставляет желать лучшего, тогда вы можете столкнуться с некоторыми проблемами. Так, например, достаточно сложно маленькое пространство разделить на какие-то отдельные участки.

Но, можно использовать несколько хитростей:
- дизайнеры советуют увеличить пространство за счет объединения с комнатой – соседом. Не всегда этот вариант возможен, но имеет право на жизнь;
- организация обеденного стола, и соответственной зоны в другой комнате, особенно удобно, если комната находится поблизости;
- временная обеденная зона. Это означает, что не обязательно устанавливать большой стол, альтернативой такого стандартного, привычного выбора стает раскладной стол. Его легко поставить, а после процесса, или торжества убрать.

Также стоит помнить, что с помощью правильно оформленного интерьера проходной кухни, можно создать действительно невероятную обстановку, визуально расширить пространство.

Такого положительного эффекта можно добиться с помощью использования разных цветов отделки. Этот вариант можно прекрасно увидеть на фото проходной кухни, где рабочая зона отделанная в светлых тонах, а обеденная – в темных цветах. Также помогут в этом процессе яркие акценты.

Обратите внимание! Если вы используете разделение на зоны для выделения разных уровней, тогда этот вариант вам не подойдет. Если разместить рабочую зону в нише, или на возвышении, это в дальнейшем может привести к риску получить травму. Также этот вариант не безопасен для маленьких детей.

Свет
Дизайнеры давно огласили секрет визуального расширения пространства – это яркое, хорошее освещение, что зрительно приподнимает потолки и делает комнату более просторной.
Если у вас проходная кухня с окном, тогда это уже проще. Но, не забывайте о главном правиле – освещение должно попадать не на какую-то отдельную зону, а должен освещать всю кухню.

Рабочая зона должна быть максимально освещенной для комфортных условий работы. То же самое касается обеденного стола и соответственной зоны.

Не забывайте о проходной части – ее стоит также обеспечить качественным освещением с помощью нескольких светильников.

Выводы
Правильное оформление, планировка обеспечит вам комфортные условия использования кухни и разделенных в ней зон. С помощью простых советов – это стает действительностью.

Фото дизайна проходной кухни


































Видео:
Вконтакте
Google+
Одноклассники
dizajngid.ru
Объединение кухни с гостиной или комнатой. Разбор.
5. Согласованные варианты объединения кухни.1. Объединение кухни и комнаты при электрической плите.
Для такого типа перепланировки не существует каких-либо запрещающих норм, так что она легко может быть осуществлена либо за счет устройства проёма в стене между двумя этими помещениями, либо за счет её полного демонтажа.
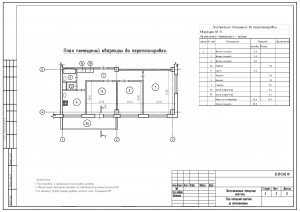
Ниже приведен согласованный план одной из таких перепланировок:
Объединение кухни и гостиной
При этом территорию кухни в прежних габаритах на плане, чаще всего, выделяют условной границей в виде пунктирной линии.
Жилищные инспекции некоторых административных округов запретили объединять кухню с жилой комнатой, мотивируя это тем, что данное помещение целиком становится кухней, что запрещено 47-ым Постановлением Правительства РФ.
Комментарий к видео:
Изменен пункт: объединять газифицированную кухню с жилой комнатой теперь нельзя согласно п. 10.16 и п.10.17 Постановления Правительства Москвы №508 после выхода ППМ № 1104 от 29.12.2017 и ППМ № 1572 от 17.12.2018.
Расширять кухню за счет мокрых помещений теперь запрещено даже при предоставлении нотариально заверенного письма о добровольном ухудшении своих жилищных условий.
2. Объединение кухни с газовой плитой с комнатой.
Объединение комнаты и кухни, оборудованной газовой плитой, запрещено пунктом 10.17 Приложения 1 508-ого постановления. Более того, согласно пункту 10.16 того же приложения, запрещено устраивать даже простой проём в перегородке, разделяющей эти помещения, без установки двери. Чаще всего этот пункт является основным препятствием, когда затевается перепланировка хрущевки, так как в них очень маленькие кухни.Таким образом, при демонтаже перегородки между газифицированной кухней и комнатой вместо неё необходимо установить раздвижные перегородки или рольставни.
При этом отметим, что данная норма относится только к объединению кухни именно с жилой комнатой, то есть наличие перегородки между газифицированной кухней и коридором не обязательно. Ниже мы приводим типичный пример такой перепланировки.
2.1. Перепланировка кухни в кухню-гостиную при газовой плите.

до перепланировки

после перепланировки
2.2. Замена газовой плиты на электрическую.
Разрешение на замену газовой плиты электрической (пункт 1.11)
Таким образом, для осуществления возможности «чистого» объединения комнаты и кухни многие стремятся произвести замену газовой плиты на электрическую. Легче всего заменить её на электрическую двухкомфорочную малой мощности. Это не потребует сложных дополнительных согласований. Для замены же газовой плиты на полноценную четырёхкомфорочную электрическую придётся пройти несколько кругов ада: получить техусловия в Мосэнергосбыте, выполнить в специализированной организации проект электроснабжения квартиры, выкупить дополнительные мощности, провести отдельный провод в квартиру от электрощитовой, согласовать прокладку этого провода и так далее… Так что легче пойти первым путём и указать в документах именно двухкомфорочную плиту, а уже по факту установить четырёхкомфорочную. Затем на приёмке договориться с комиссией, чтобы они не акцентировали на этом свое внимание, а само обозначение двухкомфорочной плиты на поэтажных планах БТИ практически не отличается от обозначения четырехкомфорочной. Правда, при такой перепланировке не следует забывать, что в старых домах на квартиру выделяется очень мало мощности, так что одновременное использование полноценной четырехкомфорочной электрической плиты совместно с другими электроприборами может привести к элементарному вышибанию квартирных пробок, что делает её эксплуатацию в таких условиях ужасно не комфортной, а иногда и вовсе невозможной. Для таких случаев, зачастую, лучше ограничиться использованием именно двухкомфорочной электрической плиты.
3. Расширять кухню за счет жилых помещений запрещено.
Как мы уже говорили, просто демонтировать перегородку между комнатой и кухней возможно, а вот передвинуть её в сторону комнаты уже нельзя. Такую перепланировку запрещает осуществлять пункт 24 Постановления Правительства Российской Федерации №47, в котором говорится о недопустимости размещения кухни над жилыми комнатами соседей снизу.
Получить разрешение на такую перепланировку возможно только в том случае, если под Вами не находятся другие жилые квартиры, то есть Ваша собственная квартира расположена на первом или втором этаже, а под ней размещены подвал или другие нежилые помещения (магазины, офисы, парикмахерская и т.д.).
4. Стена между комнатой и кухней может быть несущей.
Полностью демонтировать стену между комнатой и кухней возможно только в том случае, если она является не несущей и её ликвидация не нанесёт вред несущей способности здания в целом. Наиболее актуальна данная проблема для панельных домов, где описываемая стена является несущей в 90% случаев.
В том случае, если стена все-таки оказалось несущей, демонтировать её целиком, конечно, нельзя. Однако, в ней можно выполнить проём с соответствующим усилением в виде металлической рамы, тем самым осуществив частичное объединение кухни с комнатой. Допустимые размеры проёма и его месторасположение определяются в каждом конкретном случае отдельно и зависят от многих факторов, таких как этаж расположения квартиры, общая этажность здания, материал стен и так далее.
Некоторые особенности осуществления такого проёма для разных типов домов:
- В монолитных домах выполнить такой проём можно почти всегда;
- В панельных зданиях после 2007-ого года постройки, автором проекта дома которого является МНИИТЭП или Моспроект, выполнение таких проёмов запрещено. Подробнее об этом запрете мы писали здесь. Для остальных типов панельных домов выполнение такого проёма с соответствующим усилением и согласованием допустимо;
- В кирпичных домах выполнение проёма в несущей стене между кухней и комнатой практически всегда возможно. Однако, иногда бывает, что внутри этих стен проходят вентиляционные каналы кухонь нижних квартир. Причем для каждого этажа с кровли в стене идёт свой вентканал, так что множество таких каналов расположено друг рядом с другом. Так как перерезать вентиляционные каналы запрещено, то сделать проём в стене в этом месте не получится. Если вентиляционная решётка Вашей кухни расположена именно на этой стене, то с очень большой вероятностью внутри неё проходят вентиляционные каналы и других нижележащих квартир.
О том, как определить является ли Ваша стена между комнатой и кухней несущей мы подробно писали здесь. В целом, для точного определения назначения стены и возможности осуществления в ней проёма, а также определения его допустимых габаритов и месторасположения, мы советуем обращаться к специалистам. Все-таки, затрагивание несущих стен без соответствующей квалифицированной консультации очень опасно.
Далее мы приводим согласованные варианты объединения кухни и гостиной, кухни и зала, и так далее. Также рекомендуем Вам ознакомиться с нашей статьёй о перепланировке ванной комнаты. Надеемся, она также будет Вам интересна.
5. Согласованные варианты объединения кухни.
5.1. Объединение кухни и гостиной.
Данная перепланировка осуществлена в новостройке. В ней была произведена перепланировка кухни-гостиной, тем самым получено единое большое пространство, где удобно проводить совместные праздники или заниматься чем-нибудь одновременно с приготовлением пищи. При этом сам обеденный стол располагался на территории уже жилой комнаты, в отличии от кухонного оборудования (раковина и плита).
5.2. Объединение кухни и зала.
В данном случае был осуществлен фактически перенос кухни в гостиную в однокомнатной квартире. Точнее, физически кухонное оборудование перенесли на место кладовой, но при этом объединили с гостиной, получив тем самым одно единое пространство.
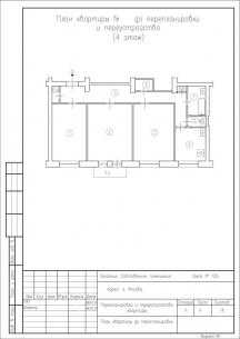
5.3. Объединение кухни с гостиной в панельном доме.

В данном примере приведена согласованная классическая перепланировка для панельного дома: бывший проём из коридора на кухню был заложен, за счет самого коридора, ранее ведущего в кухню, произведено расширение объединенного санузла и устройство уборной, а новый проход в кухню осуществлён из комнаты путём устройства проёма в несущей стене с усилением металлической рамой. Такой тип перепланировки в панельных домах встречается очень часто и в большинстве случаев может быть успешно реализован. Только настоятельно не рекомендуем выполнять проём в несущей стене без получения на это предварительного соответствующего разрешения.
С этой статьёй читают
resog.ru
Объединение газифицированной кухни и комнаты
Для начала проведем небольшой экскурс в историю:
Большое количество домов в Москве представлено «старым фондом». Причем временные рамки этого понятия четко не определены. Кто-то считает, что старый фонд — это брежневки, кто-то, что хрущевки, а кто-то относит к старому фонду довоенные дома.
И истины здесь нет, так как нет установленных стандартов. Для опытного согласователя и дом начала века, это еще не старый фонд.
Для согласования скорее важен не год постройки, а тип его перекрытий (железобетонные, смешанные, деревянные).
Но будем оперировать средними стандартами и условно отнесем к старому фонду дома советского времени — с начала века до 70-80-х годов.
Как это понятие связано объединением газифицированных кухонь и жилых комнат. Очень просто — в большинстве «старых» домов установлены газовые плиты.
Наличие в квартире газовой плиты серьезно осложняет перепланировку с объединением кухни и смежной комнаты, так как в 508-ПП содержиться запрет на данное мероприятие.
Перепланировка с соединением газифицированной кухни и жилой комнаты, видео:
Если вы понимаете под объединением данных помещений демонтаж разделяющей их стены (при условии, что она ненесущая), то такое мероприятие согласовать не удастся.
Почему?
Жилищное законодательство содержит прямой запрет на объединение газифицированной кухни и жилой комнаты. Данная формулировка приводится в п. 11.18 Приложения 1 ППМ 508 в редакции 840.
Также это прописано в пункте 3.25 ЖНМ-2004/03 «Газопроводы и газовое оборудование жилых зданий». Формулировки несколько более размыты » ….а жилые помещения отделены от коридора плотными перегородками с дверью», но тем не менее, это дает понимание что жилые комнаты с газифицированными кухнями объединять запрещено.
Что же делать?
Опять же повторимся, при условии, что стена между кухней и комнатой не несущая (как узнать об этом?), вы можете поступить следующим образом:
В проекте перепланировки указывается, что перегородка демонтируется, а вместо нее ставятся распашные или раздвижные двери.
Также существует теоретический вариант сделать дверь-гармошку. Прокомментируем что это не самый однозначный вариант для согласования и не в каждом случае разрешение будет получено. Прямого запрета на подобные двери нет, но по практике собственнику не удастся получить на нее разрешение.
При подобной гармошке представленной ниже, один из собственников пришедшел к нам на консультацию с отказом, он также представлен ниже.
И в целом с отказом сложно не согласиться, так как и в проектной документации от наших коллег-проктировщиков и по факту была именно подобная пластиковая «болтающаяся из стороны в сторону» гармошка.
Пример установки раздвижной двери-гармошки между комнатой и газифицированной кухней по которому скорее всего будет отказ, фото:
Пример установки раздвижной двери-гармошки между комнатой и газифицированной кухней по которому скорее всего будет разрешение, фото:
При подобных «гармошках» скорее всего разрешение будет получено. Так как по факту, это настоящие деревянные двери, просто состоящие из нескольких секций. А так как в законе прописано, что между кухней и комнатой должна быть плотная перегородка с дверь, то поводов для отказа нет, так как такие двери прямо подходят под данную формулировку и считаются не дверьми-гармошками, а плотными дверьми из нескольких секций. Но и при данном решении можно получить отказ с требованием добавить в проект конструктив данный двери, если его изначально не будет в проекте.
Что бы его не было, необходимо особенное внимание уделить проектной документации сдаваемой на согласование. Главное что бы в ней было однозначно, максимально понятно (с графической точки зрения), какое решение по дверным конструкциям принимается.
(То есть показывать двери не просто «кривой линией, а предоставлять полностью понятные графические чертежи дверей)
Еще один вариант установки дверей между кухней и комнатой, фото:
В данной ситуации дверь заезжает внутрь полых стен.
Один из самых лучших вариантов для согласования. Соблюдаются все нормы. Данное решение всегда с успехом проходит согласование.
В данном примере мы покажем самый лучший вариант перегородки между газифицированной кухней и жилой комнатой какой мы видели:
В начале мы покажем планы «до» и «после» перепланировки, что бы было понимание того, что собственник заказывавшей у нас проектную документацию планировал согласовать.
План до перепланировки План после перепланировки


И ниже представлены фото удивительнейшие по красоте, конструктивному исполнению перегородки, которая отделяет газифицированную кухню от жилой комнаты.
Возможно человеку который читает данную статью не понять, но мы как согласователи перепланировок (которые видят постоянно те жалкие подобия дверей, то есть то что пытаются «выдать» за перегородки), испытали полнейший экстаз при виде этого чуда инженерной мысли.


Вариант установки дверей между кухней и комнатой, фото:

Здесь же дверь навешивается на стену.
Также хороший вариант установки двери между кухней и комнатой. Не самый лучший, так как не всегда обеспечивает требуемой герметичности кухни от жилой комнаты, но в целом вполне проходной.
Есть еще один способ объединения комнаты с кухней, где стоит газовая плита. Он касается в первую очередь панельных домов, в большинство внутренних стен являются несущими.
Известно, что сносить их нельзя. Поэтому кухню и комнату здесь соединяют проемом.
Как правило, он имеет ширину 90 см и соответствующее усиление. Но неэто главное. Основное требование к проему в несущей стене между газифицированнойкухней и комнатой — наличие на нем «плотнозакрывающейся» двери. Оно содержится в п. 11.17 Приложения 1 ППМ 508.
Более подробно об устройстве такого дверного блока читайте в разделе «Наши работы»
Объединение комнаты с кухней, фото:



Данная перепланировка проводилась в кирпичном пятиэтажном доме 1955 года постройки. Расширение санузла и ванной потребовало сделать вход в кухню из смежной комнаты, поскольку, коридор, ведущий в кухню был перекрыт ванной комнатой. Чтобы объединить кухню и комнату, в ненесущей перегородке между ними был сделан дверной проем.
Еще раз прокомментируем — чем регламентирован запрет на объединение газифицированной кухни и жилой комнаты — 508-ПП и 3.25 ЖНМ-2004/03
Стоит отметить, что реализованная в квартире перепланировка должна полностью соответствовать разработанному проекту. Некоторые собственники считают, что строго следовать проектной документации не обязательно и по ходу перепланировки вносят свои коррективы самовольно.
К примеру, не устанавливают раздвижную перегородку с плотным притвором, оперируя тем, что по документам всё согласуемо. Но инспектору приемной комиссии важен именно факт соответствия проведённой перепланировки с проектной документацией, и вот что в этих случаях бывает:

По факту проведения приемки квартиры после перепланировки было выявлено, что дверь с плотным притвором между комнатой и газифицированной кухней отсутствует, что является нарушением, как результат отказ в оформлении акта о завершенной перепланировке.
Еще описать чуть проще, что было — собственник сделал ремонт, вызвал инспектора для проверки выполненного ремонта. Но при проверке оказалось что двери отсутствуют. Возможно собственник комментировал что «двери вот-вот приедут из Италии» и просто не успели поставить.
Однако получил вот такую бумагу, которая в переводе с юридического на человеческий язык означает «вот когда поставите, тогда еще раз и вызовите».
Наша фирма имеет опыт в согласовании подобных перепланировок и может оказать помощь как в разработке проекта, так и в процессе согласования. Стоимость наших услуг приятно вас удивит своей лояльностью.
www.pereplanirovkamos.ru
Возможно ли из кухни сделать спальню в однокомнатной комнате (фото)
Фото
На первый взгляд, идея, связанная с тем, как сделать из кухни спальню, не так сложна, как бы это казалось, просто надо захотеть, и все получится. Кто когда-либо проживал в однокомнатной квартире, знает, с чем это может быть связано. Первое, что может прийти в голову для перепланировки однокомнатной — это убрать все стены.

Однокомнатную квартиру можно увеличить за счет соединения кухни, коридора и самой комнаты.
Российский жилищный фонд связан с минимальным количеством однокомнатного жилья, имеющего удобную планировку. Потому нередко приходится настойчиво проявлять находчивость, где хотелось бы видеть больше удобства. Российские граждане без посторонней помощи стали осуществлять перепланировку интерьера квартир, подыскивая более удачные варианты, чтобы как-то расширить пространство однокомнатной квартиры с целью максимально полезного использования квадратных метров.
Часто встречающийся вариант перепланировки связан с совмещением гостиной и кухни в однокомнатной квартире, а обустройство спальной комнаты на кухне представляется для обыденного сознания как экзотичный симбиоз. Плюсов и минусов у данного варианта имеется достаточно, осталось разобраться, каких моментов больше: положительных или отрицательных. Как раз пришло время разобраться в этом вопросе.
Какие недочеты и достоинства может иметь перепланировка однокомнатной квартиры

Квартиры-студии очень популярны в последнее время, однако они не подходят для семей с детьми.
В результате совмещения спальни и кухни, однокомнатные квартиры нередко бывают похожими на обычный склад вещей, которые рано или поздно могут понадобиться в хозяйстве. Выбросив все избыточное, в том числе и старую мебель, можно получить место, которым можно правильно распорядиться и где можно достаточно комфортно расположиться и на небольшой жилой площади. Недочетом является и то, что какую-либо мебель нельзя будет поставить в помещении.
Если приложить определенные старания, то даже кухня со спальной полностью могут вместе «ужиться» в одной комнате. Например, днем место помещения будет использоваться по хозяйственному предназначению, к вечеру оно нередко будет освобождаться, чтобы кухня могла стать местом для уединения и отдыха, почему бы не воспользоваться такой возможностью? При этом хозяин однокомнатной квартиры получает просторное помещение, заменяющее два небольших, в которых нельзя даже развернуться. Правильный выбор мебели и удобное ее размещение позволит не только комфортно проживать в комнате, но и принимать гостей, удобно рассаживая их, чтобы провести домашнее застолье на праздник, а позже предложить переночевать, кому это будет необходимо.
В России многие мебельные фирмы предлагают купить недорогую уютную мебель, в том числе и на заказ по конкретным размерам. Этот вариант открывает большие возможности, помогая сберегать, обустраивать пространство помещения по собственному желанию, тщательно планировать использование каждого жилого метра в квартире. Выбирая один вариант совмещения в квартире кухни и спальни, следует приготовиться ко всем непременно возникающим неудобствам.
Во-первых, человек будет спать около бытовых приборов, то есть холодильника и кухонной плиты, а с этим нужно будет мириться. Для сведения к минимуму возможных недочетов и неудобств с особенной тщательно: кухню нужно будет обустроить так, чтобы производимый техникой шум являлся минимальным. Поэтому ее размещают на кухне подальше от места для сна.

Кухонный уголок трансформирующийся в кровать освободит пространство в основной комнате.
В комплект мягкого кухонного уголка должны входить стулья, стол и диван, который по мере надобности трансформируют в кровать. Так в кухне можно обустроить и спальное место. Чтобы придать дополнительный комфорт, на стенку рядом с мягким кухонным диваном можно привесить бра, поставить небольшую тумбу, которая будет играть роль прикроватной мебели. На тумбе можно расположить, к примеру, цветы или сувениры, в ней можно хранить нужные вещи (книжку, будильник и прочие вещи).
Другой метод, позволяющий преобразовать кухню, может быть связан с определенными трудностями. В данном случае возможно придется заняться фактически созданием кухни заново. Здесь необходимо пользоваться, если не услугами специалиста, то советами мастера.
Полезные советы по проведению перепланировки
Если принято решение без помощи других заняться перепланировкой в квартире, то можно взять на заметку несколько советов. При перепланировке кухни в спальню можно столкнуться с рядом трудностей и проблем, которые зависят от конкретной ситуации. Облегчению творческого процесса будет способствовать соблюдение следующих правил.

При совмещении кухни нужно удостоверится, что стена, которую нужно снести не является несущей.
При стандартной перепланировке квартир с одной комнатой в панельных домах, которые были построены в 1990-2000-х гг. Как бы уже довольно и жилой площади, но про разделение полезного пространства речь еще не идет. Данный вариант предполагает сделать спальню в кухне, оборудовав ее вытяжкой, протянутой по потолку через полквартиры.
В большинстве случаев, чтобы сделать две комнаты, обладателям приходится жертвовать кухней. В большинстве европейских государств совмещение кухни и гостиной уже издавна обычное дело. Это не только лишь экономия места, но и повышенный уровень комфорта. Если для увеличения жилого пространства использовать балконное помещение, уложив там теплый пол, то это будет плюсом.
Способ создания двухкомнатной квартиры из однокомнатной. Можно уменьшить кухню, объединив спальную комнату вместе с балконом. Это один из наиболее смелых вариантов. При этом между комнатами сносится перегородка. Если задействовать квадратные метры в коридоре, то можно сделать кухню больше. Непременно необходимо позаботиться о высококачественном утеплении помещения балкона, который обязательно следует застеклить, одновременно установив гипсокартонную перегородку между комнатой и кухней.
При нестандартной перепланировке все располагают под углом. Это легкий и удачный способ превратить однокомнатную в двухкомнатную. Чтоб воплотить его, нужно снести одну часть стенки в ванной, затронув стенку на кухне. Получается настоящий коридор и маленькая зона, позволяющая установить угловой шкаф. За счет полученного углового пространства кухня будет закрыта от спальни угловым шкафом.

Балкон можно использовать для расширения квартиры. Из него можно сделать открытую лоджию.
Способ создания спальной комнаты не только из кухни, но и из балкона. Например, можно переделать помещение, где находилась кухня, совместив его с балконным помещением. Получается спальная комната.
Способ использования свободной планировки. Современные застройщики продают недвижимость, имеющую свободную планировку. С одной стороны, это преимущество для жильцов, а с другой — возникает необходимость создания перегородок, если планировка не устраивает, что связано с немалыми расходами, в том числе и на услуги дизайнера.
Можно рассмотреть каждый из вариантов с очень неплохой начальной планировкой, когда можно сделать замечательный дизайн и при всем этом сохранить полезную площадь квадратных метров квартиры.
Квартира со свободной планировкой
Статистика показывает, что однокомнатные квартиры пользуются большим спросом, так как их проще реализовать, сдать и приобрести.
Потому что обладатель однокомнатной квартиры — оживленный экономный человек, умеющий извлекать из всего наивысшую пользу.

Типичные планировки хрущевок.
Перед перепланировкой обязательно необходимо адекватно оценить ситуацию, связанную с общим количеством квадратных метров. Обычно однокомнатные квартиры имеют два окна, одно относится к кухне, а другое к спальной комнате. Количество квадратных метров однокомнатной квартиры может колебаться в пределах 32-60 квадратных метров.
Однокомнатные квартиры с максимальной площадью имеют усовершенствованную планировку, поэтому они тянут на двухкомнатную квартиру. При таком количестве квадратных метров различных трудностей можно спокойно избежать, получив из одной две комнаты. Кухня обычно переносится в более темную часть комнаты, а гостиная или спальня ближе к окну.
Если однокомнатная является фактически квадратной, то переделать ее не так трудно, да и фантазии есть где разгуляться. Перепланировку можно осуществлять с наименьшим переносом стенок — это недорого, поэтому данный вариант является наиболее подходящим. Можно предусмотреть угловую стенку с дверью, ведущей в спальню, чтобы не потерять драгоценные квадратные метры. Если в дальнейшем полезных квадратных метров в помещении будет мало, то можно утеплить остекленный балкон, а из стенки сделать проход из арки. Можно организовать маленькое рабочее место на балконе.

Перегородка может послужить разделителем между спальным местом и кухней.
Если квартира имеет 45-60 квадратных метров, два окна, утепленную лоджию, то из нее можно создать двухкомнатную при наличии прихожей и просторного санузла. Спальню можно отделить от кухни-гостиной с помощью шкафа-купе, получив отдельно спальную комнату. Этот вариант подразумевается с 2-мя спальными местами, и полностью подходит для семьи с одним ребенком.
Можно пойти дальше, сделав на площади однокомнатной квартиры три спальных места, как бы разместив две жилые комнаты у окна. Одну комнату с наибольшей площадью разбивают на две части, а смежную объединяют с прихожей или коридором. Такой дизайн в гостиной, в далекой части этого помещения, полностью подойдет для ночевки гостей, все другие зоны, то есть прихожая, кухня, спальная будут переходить одна в другую. Так из просторной кухни сделать спальню очень просто. При отсутствии окна в зоне кухни-гостиной можно воспользоваться искусственным освещением, поскольку в одной из созданных трех комнат не будет окна.
Применение дизайнерских приемов при перепланировке однокомнатной

Кресло-кровать поможет сэкономить полезное пространство.
К примеру, в перегородке, разделяющей комнату большой площади на гостиную и спальню, поближе к потолку можно установить витражи, имитирующие обычное окно, либо использовать стеклоблоки. Такая стенка будет служить препятствием к проникновению шума. При этом естественный дневной свет будет проходить в оба отгороженных помещения. Общую площадь иногда делят открытыми или закрытыми стеллажами, которые определяют степень изолированности двух созданных комнат одна от другой.
В спальную комнату можно будет поставить отдельное кресло-кровать или диван, кресла, компьютер, журнальный стол. В прихожую можно поставить шкаф, укрепить этажерки под цветы или стеллаж под книги. Предусмотреть место для хранения детских игрушек.
В качестве декоративной перегородки можно использовать гипсокартон, фанеру или ДСП, что позволит превратить однокомнатную в двухкомнатную. Потребуется сделать каркас из железных направляющих, который затем обшивается подходящим материалом, а между плит гипсокартона изнутри прокладывают слой шумоизоляции, устанавливая дверь либо систему с раздвижными перегородками из гипсокартона. В ней, к примеру, наверху можно сделать маленькое узкое окно по всей ширине комнаты у потолка. Возможно устройство двухсторонних ниш для хранения книг, позволяющих экономить место. Установка узкой полосы стеклоблоков будет являться интересным дизайнерским решением, позволяющим заменить естественный свет на искусственный.
Чтобы сделать более комфортабельными бессчетные квартиры старенького фонда, конструкторам и дизайнерам приходится ухищряться и выдумывать, как, вытянув из планировки наилучшее, очень хорошо организовать место, чтоб была возможность для отдельно взятой семьи комфортабельно проживать пусть на маленькой, зато раздельной площади.
Выводы по перепланировке квартиры
К огорчению, многие семьи обязаны жить в очень маленьких однокомнатных квартирах. Предложенные рекомендации позволили бы взглянуть на проблему с другой стороны.
- Идеальнее всего использовать для создания спальни не только кухню, но и балкон.
- Не обязательно следует бояться разделять отдельные помещения, чтобы можно было сделать две небольшие, но настоящие комнаты.
- Скооперировать спальню и кухню — это верный способ, соответствующий принятым европейским стандартам.
При осуществлении перепланировки необходимо помнить, что данный вопрос регулируется законодательством. По закону не положено снесение стены, отгораживающей кухню от остального пространства жилого помещения, если в ней установлена газовая плита. Перед тем как начать делать спальную из кухни методом перепланировки, а не дизайнерским способом, следует внимательно изучить все законодательство по этому вопросу либо проконсультироваться со специалистом.
Не каждая перепланировка допускается на законодательном уровне, основными причинами, которые могут стать препятствием к осуществлению задуманного, являются следующие:
- Результат, связанный с нарушением прочности и разрушением здания, то есть его несущих стен, снижением качества внешнего вида здания, порчей противопожарных устройств.
- Ухудшение условий эксплуатации, препятствующих нормальному проживанию граждан, являющихся жильцами данного дома либо однокомнатной квартиры в нем.
- Осуществление различных работ, которые связаны с перепланировкой без согласования со всеми жильцами, имеющими совершеннолетний возраст и теми, кто является собственниками данной квартиры.
- Если планируют сделать перепланировку помещения, которое числится за штабом ГОиЧС.
Нельзя допускать перепланировку домов и квартир, которые подлежат сносу. Сделать перепланировку при этом нельзя без возвращения дому прежнего вида.
dekormyhome.ru
как сделать своими руками, инструкция, фото и видео-уроки
Площадь кухни в большинстве типовых квартир оставляет желать лучшего. Вот почему многие хозяева, затеяв ремонт, начинают планировать перенос кухни в зал – так и планировка квартиры улучшается, и готовить можно будет с комфортом.
Однако, в отличие от совмещения кухни с залом путем удаления межкомнатных перегородок (тоже, к слову, довольно непростая задача), перенос кухни сопряжен со значительным количеством трудностей. Потому браться за это нужно только в том случае, если вы точно знаете, что вам это действительно необходимо!

Схема кухни, совмещенной с залом
Технические аспекты переноса кухни
Юридическое согласование
Первое, о чем необходимо задуматься, планируя «переезд» кухни в зал или гостиную – можно ли перенести кухню в зал вообще?
Основная загвоздка состоит в том, что нормативные документы в некоторых ситуациях прямо запрещают перенос кухни, а в ряде других случаев содержат весьма существенные ограничения:
- СНиП 31-03-2003 и СаНПиН 2.1.2.2645-10 не допускают перенос кухни, при котором кухня располагается под ванной или туалетом квартиры, размещенной этажом выше – это считается ухудшением жилищных условий, поскольку кухня оказывается в так называемой «мокрой зоне».
Обратите внимание! Ранее такой перенос был возможен при условии, что собственник квартиры подписывал заявление о сознательном ухудшении жилищных условий. На сегодняшний день даже такое заявление не будет достаточным основанием для разрешения.
- Постановление Правительства РФ №47 от 26.01.2006 (пункт 22) запрещает переносить кухню таким способом, при котором она будет расположена над жилым помещением. Учитывая это, кухню придется переносить так, чтобы она размещалась над кладовой или другой нежилой зоной – или же комната соседей будет признана нежилой.

План кухни-зала
- Объединение кухни с жилым помещением возможно только в том случае, если на кухне установлена электрическая плита. Установка любых газовых приборов в жилых помещениях не допускается.
- Вентиляционный короб кухни, соединенной с залом или перенесенной в зал, необходимо соединить с тем же вытяжным отверстием вентиляции, к которому он был присоединен ранее. Присоединять вентиляционные короба кухни к другим вентиляционным отверстиям запрещает СНиП 31-03-2003 (пункт 9.7), поскольку в этом случае загрязненный воздух может попасть в жилые помещения других квартир.
Как видите, сложностей даже на первом этапе возникает довольно много. Именно поэтому перенос кухни своими руками весьма затруднен – ведь учесть все нюансы сможет лишь профессиональный архитектор.
Но если все же вас не пугают трудности, связанные с перемещением кухни, и у вас на руках есть утвержденный план с разрешением на перенос – можно переходить к прокладке коммуникаций.
Читайте также статью “Дизайн гостиной-кухни в частном доме: идеи для вашего интерьера”.
Коммуникации для новой кухни
Перенос кухни в жилое помещение – даже если он узаконен – представляет собой довольно масштабную задачу. Поэтому реализовать его можно только вместе с капитальным ремонтом – ведь для размещения кухни в новом месте нужно будет прокладывать новые коммуникации.
Ниже приводится пошаговая инструкция, следуя которой вы сможете спланировать все работы по прокладке коммуникаций при переносе кухни в жилую комнату:

Прокладка проводки в штробах
- Первое, что необходимо сделать – это протянуть электрическую сеть к месту, где будет размещен кухонный гарнитур. Поскольку все кухонные приборы потребляют большое количество электроэнергии даже в фоновом режиме, проводка должна быть с запасом по мощности. Старой проводки, которая обеспечивала электроснабжение зала, скорее всего, не хватит.
- Проводку для кухни прокладываем в штробах, проделанных в стене. Дополнительно защитить провода можно пластиковыми кожухами из гофрированной трубы.
Совет! Ветку проводки, обеспечивающую питание новой кухни, необходимо подключать к распределительному щитку через УЗО – автоматическое устройство защитного отключения.
- Следующий этап – организация водоснабжения. Трубы горячей и холодной воды проще всего подвести от стояка, скрыв их в стяжке пола. Оптимальный выбор материала – металлопластик: эти трубы обладают достаточной гибкостью и прочностью, и потому обеспечивают высокий уровень надежности.

Прокладка труб водоснабжения
- Наиболее сложной задачей является прокладка канализации от стояка до нового места слива. Если использовать безнапорную канализацию, то скрыть канализационные трубы в стяжке не получится, поскольку для эффективного удаления стоков трубы нужно прокладывать с уклоном, и перепад высот будет составлять около 200 мм.
- Для оптимального решения этой задачи специалисты предлагают установку канализационных насосов, которые под давлением удаляют сточные воды. При этом канализационную трубу можно проложить горизонтально и замаскировать стяжкой пола.

Укладка канализации
- Вытяжной короб необходимо прокладывать через всю старую кухню. Если вы хотите скрыть его, то проще всего это сделать, установив подвесной или натяжной потолок. Однако этот вариант можно реализовать только в достаточно высоком помещении.
- Альтернативой вытяжному коробу может быть выведение вентиляции прямо на улицу – при этом необходимо разместить вытяжную трубу таким образом, чтобы она не создавала неудобств соседям сверху.
Как видите, объем работ предстоит достаточно серьезный. Но при правильном подходе, а также – при использовании современных инструментов и строительных материалов (к примеру, самовыравнивающихся стяжек для пола) подготовку к переезду кухни можно завершить достаточно быстро.
Совет! Если вы не планируете нанимать мастеров, а будете делать все эти работы самостоятельно – советуем вам изучить видео инструкции, наглядно демонстрирующие нюансы каждого этапа.
Когда коммуникации подведены, и отделка помещения завершена, можно приступать к созданию интерьера в новом помещении.
Дизайн кухни объединенной с гостиной – смотрите здесь.
Интерьер кухни в зале
Особенности кухни в зале
Рассказывая о том, можно ли кухню перенести в зал, мы уже упоминали некоторые ограничения, с которыми придется считаться. Так какие же требования выдвигаются к кухне, совмещенной с жилым помещением?

Мощная вытяжка – обязательный атрибут!
- Первое требование – это отсутствие газового оборудования. В кухне, перенесенной в зал, необходимо устанавливать либо электрическую, либо индукционную плиту. И здесь дело не столько в законодательных ограничениях, сколько в вашей личной безопасности!
- Следующее, без чего невозможна такая кухня – это качественная вытяжка. Если в отдельной кухне можно было просто закрыть дверь, то в кухне, совмещенной с залом, необходимо удалять воздух со всеми кухонными ароматами непосредственно в процессе готовки – иначе через несколько недель ваша мягкая мебель будет пахнуть смесью перегоревшего масла, жареной рыбы и т.д.
- Для кухни в зале очень важно качественное освещение – как искусственное, так и естественное. Поэтому, если у вас есть возможность расширить оконные проемы или объединить их между собой – воспользуйтесь ею! Это не только пойдет на пользу внешнему виду помещения, но и облегчит вам работу на кухне.

Большие окна в зале – гарантия хорошего освещения
Совет! Чем больше оконный проем, тем больше теплопотери в зимний период. Поэтому при расширении окон необходимо установить качественное энергосберегающее остекление.
Разделение пространства на функциональные зоны
Чтобы кухня в зале не просто выполняла свои обязанности, но и полноценно «вписалась» в интерьер, ее нужно визуально отделить от основной части помещения.
Такое отделение дизайнеры называют «зонированием», при этом большая комната условно разделяется на две зоны – зону отдыха и зону приготовления пищи.
Способов отделения зон друг от друга существует несколько:
- Самый простой способ – установить подвижные ширмы, которые при необходимости надежно скроют кухню от посторонних взглядов. Это решение является еще и наиболее экономичным, поскольку никаких ремонтных работ проводить не придется.
- Следующий способ – установка на границе между жилой зоной и кухней стола, барной стойки или кухонного острова. В этом случае мы превращаем кухню еще и в импровизированную столовую, ведь за барной стойкой или достаточно большим столом сможет собраться вся семья.

Стол на границе кухни и зала
Совет! Если в качестве разделителя вы планируете кухонный остров – т.е. столешницу, опирающуюся на кухонные шкафчики – лучше не устанавливать на ней мойку или варочную поверхность.
- Хорошим способом зонирования будет установка подиума, т.е. подъем высоты пола в зоне кухни на 10-15 см. Кроме всего прочего под подиумом будет легче скрыть коммуникации так что, возможно, при переносе кухни не придется вскрывать стяжку.
- Также существуют чисто дизайнерские способы разграничения пространства с использованием различной отделки пода, потолка и стен, а также – с применением разного освещения.

Подвесной потолок над кухней
В любом случае, какой способ зонирования кухни вы бы ни выбрали, необходимо помнить о стилистическом единстве всего помещения: кухня и жилая часть зала должны отличаться друг от друга визуально, но в тоже время быть выдержаны в одном дизайне.
Читайте также статью “Дизайн кухни-гостиной-столовой в готовом проекте”.
Плюсы и минусы кухни, совмещенной с залом
Резюмируя все вышесказанное, хотелось бы отметить, что у переноса кухни зал есть как положительные, так и отрицательные стороны.
- Главный плюс – это, конечно же, увеличение свободного пространства на кухне, что можно увидеть на фото в данной статье. Вместо тесной комнатки мы получаем достаточно обширную площадь, поэтому при готовке даже вдвоем или втроем тесниться не придется.
- Кроме того, помещение, в котором кухня располагалась ранее, также можно переоборудовать. Согласно нормативам, жилым это помещение сделать нельзя – но кто запретит нам назвать его в документации, к примеру, кабинетом?

Просторная кухня, совмещенная с залом – мечта любой хозяйки
Что же касается минусов такого конструктивного решения, то их несколько:
- Во-первых, процесс переноса сам по себе довольно сложен, а цена всех необходимых для этого материалов способна пробить серьезную брешь в бюджете.
- Во-вторых, сложности представляет юридическое оформление.
- В-третьих, кухня в зале должна поддерживаться в идеальной чистоте – иначе грязь и неприятные запахи быстро распространятся на всю большую комнату.
Вывод
Но если сложности переоборудования вас не пугают, а уборке вы готовы уделять должное внимание – то перемещение кухни можно начинать. Во всяком случае, как перенести кухню в зал правильно, вы уже знаете!
Дизайн кухни-столовой в частном доме – смотрите здесь.
Отличная статья 0
Статьи по теме
Все материалы по темеjkuhnya.ru
Объединение кухни с комнатой — кухня-гостиная (+ фото, планировка)
Жильцы квартир с маленькой площадью всегда страдают от тесноты в помещениях. На крошечной кухне неудобно готовить, невозможно расположиться за столом большой компанией, принимая гостей. Перепланировка квартиры становится реальным шансом изменить условия жизни к лучшему. Объединение кухни с комнатой расширяет свободное пространство, а индивидуальный подход к дизайну сделает студию интересной и функциональной.
Что необходимо учесть при перепланировке
План перепланировки в хрущевкеЛюбой демонтаж стен требует согласования и разрешения. Если она не является частью каркаса здания, то получить его несложно. Выполнив проект изменений, согласовав его во всех структурах, вы получаете разрешение на выполнение работ, а затем сдаете готовую комнату комиссии. Чаще всего вопрос, можно ли объединить комнаты, волнует жителей малогабаритных хрущевок. В таком здании встречаются перегородки обоих типов, если повезет и в квартире окажется ненесущая стена, то новая планировка реальна. В панельных домах такой вариант невозможен – стена, разделяющая комнату и кухню, является несущей. Ее можно убрать частично, оформив декоративный проем с поддерживающими опорами.
Нужно заменить плиту на электрическуюЗапрещено соединение комнат, если кухня с газовой плитой. По нормам безопасности она должна отделяться от жилого помещения. Если вы серьезно настроены распрощаться в маленькой кухней, то придется заменить плиту на электрическую. Процедура потребует разрешения газовой службы и монтажа достаточной мощности электрического кабеля.
Совмещение без смены газовой плиты
С легкой перегородкойПолноценное объединение кухни и комнаты при наличии газовой плиты не разрешается законодательством, но есть вариант, который позволяет изменить дизайн помещения и соблюсти все нормы.
Правила требуют наличия между кухней и комнатой стационарной или сдвижной перегородки или двери. Как выход из положения владельцы квартиры частично разбирают ненесущую стену, а в образовавшемся проеме монтируют сдвижную перегородку. Эта конструкция в сложенном виде не разделяет пространство двух помещений, а при необходимости сдвигается с плотным притвором. Часто устанавливается легкая пластиковая перегородка, которая после посещения контролирующих органов и выписанного разрешения на перепланировку, демонтируется и убирается на балкон или в кладовку. Если вы планируете оставить конструкцию, то стоит подобрать красивый и функциональный вариант.
Интересным решением является реализация второго варианта разделения комнат – установка двери. Конечно, в проем такого размера устанавливается не распашная, а сдвижная конструкция. В открытом состоянии ее створки располагаются вдоль стен, при необходимости они закрываются. Этот дверной блок изготавливается по аналогии со шкафом купе. Материал такой перегородки подбирается по решению владельцев. Нет строгих правил, которые его регламентируют. Если использовать стеклянную конструкцию, то даже в закрытом состоянии она делает пространство легким и светлым.
Преимущества гостиной-студии
Зонирование- Появляется возможность функционально зонировать пространство и переместить обеденную зону из кухни на более просторное место.
- Образовавшемуся просторному помещению можно придать любимый стиль и выполнить индивидуальный дизайн.
- Новая комната получит большую освещенность и визуальное расширение границ.
Недостатки планировки
Если подходить к этой процедуре со всей ответственностью, то необходимо оценить не только плюсы, но и минусы объединения комнат:
- Запах готовящейся пищи будет распространяться по всей комнате, мощная вытяжка поможет избавиться от него, но не полностью.
- Свободное пространство лишает жильцов места для уединения. Особенно это актуально для семьи из нескольких человек.
- Из-за специфической обстановки на кухне придется чаще прибирать всю комнату.
Перечисленные недостатки обсуждаются всеми членами семьи, и совместное решение изменить планировку, обычно, остается неизменным.
Варианты дизайна кухни-гостиной
Несмотря на желание объединить два помещения, место приготовления пищи должно иметь пространственное отделение. Его выполняют несколькими способами:
- визуальное зонирование;
- архитектурное обособление;
- логическое разделение.
Можно использовать барную стойкуПосле перепланировки кухня становится не обособленной комнатой, а функциональной зоной в новом помещении. Ее отделение в хрущевке имеет свои особенности – здесь низкие потолки, поэтому лучше отказаться от зонирования посредством подъема части пола или установки многоярусного подвесного потолка. Вариант архитектурного зонирования предусматривает установку стационарных конструкций. Их не выполняют цельными и высокими, иначе теряется смысл разделения. Подойдет монтаж узкой барной стойки, не занимающей много места и придающей особый стиль помещению. Ее роль может выполнить оставшаяся часть стены, если она убиралась не полностью.
Частичная гипсокартонная перегородкаПерегородки выполняются в этническом стиле, в виде полочек или стеллажей. Популярным материалом для работы стал гипсокартон. Он доступен по цене, легко обрабатывается, с его помощью создаются любые формы и композиции. Стеклянная перегородка тоже привлекательный вариант, не уменьшающий пространство новой комнаты.
Один из способов оптимизировать полученное пространство – заложить проход из коридора в кухню. Вход в помещение будет через жилую комнату. После отделки в этом месте удобно расположится холодильник или шкаф. Рядом оборудуется функциональная рабочая зона – плита, мойка, шкафчики, стол. Обязательным условием является установка мощной вытяжки.
Способы визуального обособления зон
Разное напольное покрытиеЗона для приготовления пищи занимает минимальную площадь, основная же часть комнаты приходится на гостиную и столовую. Зрительно размежевать пространство позволяет использование различного напольного покрытия. Для кухни подойдет практичная керамическая плитка, которая не боится пролитой воды и механических повреждений. В основной части помещения стелют ламинат. Этот материал представлен в огромном количестве расцветок, не требует сложного ухода, доступен по цене. Для гостиной также подойдет ковролин и классический паркет. Чтобы разделение было более выраженным, используются контрастные цвета.
Многоуровневый натяжной потолок с комбинацией матовых и глянцевых участков, тоже позволяет размежевать зоны. Подбирая цвета, фактуры или фотопечать на полотне, вы интересно обыграете разделение пространства.
Обеденный столОсвещение играет важную роль в процессе зонирования. Различные осветительные приборы, размещенные на потолке, стенах или мебели выделяют или скрадывают в тени отдельные участки. Для рабочего уголка на кухне устанавливают точечные светильники, в месте размежевания, над столом или барной стойкой уместно смотрятся подвесные лампы с оригинальными абажурами. В зоне отдыха подвешивается люстра, отдельные укромные участки освещаются бра и торшером.
Логическое деление
Любая мебель может определить разделение комнаты. Это может быть диван, поставленный спинкой к кухне или большой аквариум. Используется книжный стеллаж, габаритная мебель, даже обеденного стола, поставленного на границе кухни, достаточно для размежевания помещения. Этот способ самый доступный, с его помощью комната делится быстро и без дополнительных вложений в материалы и работу.
Правила декорирования
Используйте светлые тонаПрофессионалы в оформлении помещений делятся своими наработками по дизайну гостиной-кухни. Перед тем как объединить комнаты и выбрать материалы для отделки, познакомьтесь с несколькими нюансами декорирования.
- Чтобы добиться ощущения простора, используйте светлые обои и краску. Это особенно актуально для помещения с недостаточным естественным освещением. Натяжные потолки с зеркальным эффектом способны зрительно расширить комнату.
- В отделке рабочей зоны и гостиной должны частично присутствовать аналогичные материалы или цветовые решения.
- Добиваясь единого стиля комнаты, сложно подобрать гармоничные цвета, поэтому можно воспользоваться оттенками одного цвета. Прием единых поверхностей, матовых или глянцевых, визуально объединяет интерьер гостиной-кухни.
- Если вы хотите добавить динамики в дизайн комнаты, сделайте это за счет мебели с яркими фасадами.
Обратите внимание! При оформлении комнаты, получившейся после объединения кухни и гостиной, необходимо соблюдать единство в стиле отделки, и грамотно выполнить зонирование пространства, чтобы оно обозначалось размытой границей.
Видео
Что включает комплекс работ по объединению кухни с комнатой, вы можете увидеть в следующем видеоматериале:
Допустимый способ объединения комнаты и кухни с газовой плитой:
Фото
Раздвижная перегородка
С островной барной стойкой
Интересный дизайн барной стойки
Достаточно расположить правильно мебель
Аквариум
Удачная перепланировка в угловой хрущевкеstroysvoimirukami.ru
