Дизайн хрущевки 55 фото
Квартиры-хрущевки стали объектом многих анекдотов и проблемой большинства современных жителей. Такие квартиры с одной стороны, отличаются доступностью, ведь в свое время строилось их большое количество, а с другой – массой проблем. |

Владельцы хрущевки сталкиваются сразу с несколькими проблемами – тесными комнатами с низкими потолками, совмещенным санузлом, громоздкими кладовыми и плохой звукоизоляцией.
Благо область дизайна и архитектуры пошла вперед и теперь можно из маленькой квартиры сделать удобное, комфортное и привлекательное жилище. Как создать дизайн хрущевки? Давайте посмотрим.
Секреты перепланировки
Главная задача владельца хрущевки – постараться эффективно использовать каждый метр полезной площади. Здесь важно уточнить – не захламлять, а функционально задействовать.

Снести перегородки – первое, что приходит в голову каждому жильцу. Такой способ прибавит вам площади и увеличит полезное пространство. Ознакомиться в таком случае нужно с планом квартиры, выяснить, какая стена является несущей (чтобы ненароком ее не снести) и разработать детальный план перепланировки.

Для однокомнатных квартир решением может стать создание квартиры-студии – когда сносят все перегородки и объединяют комнату с кухней и прихожей. Последнюю чаще всего отделяют от гостиной мебелью или условным декором. Чтобы выделить кухню и отделить ее от жилой зоны, можно приподнять пол или использовать отличительное от комнаты напольное покрытие.

Вариант квартиры-студии подойдет творческой личности или свободным людям, а вот семьям с маленькими детьми лучше оставить стены, чтобы пространство было разделено на зоны.

Если вы не поклонник кардинальных сносов стен, замените перегородки на арки или перенесите дверные проемы. Тогда вы получите и раздельные комнаты, и более удобную квартиру.

Совмещенный санузел, можно соединить с частью коридора – в итоге вы получите большое пространство, где поместится стиральная машина или бойлер Оставшееся место в коридоре можно использовать для шкафа-купе. В таком случае вы освободите место в комнате и вам будет где хранить сезонные вещи.


Используйте мобильную и многофункциональную мебель. Особенно, если у вас однокомнатная хрущевка, такая мебель станет незаменимой. Присмотритесь к компактным комодам, складывающимся в стену кроватям и шкафчикам.

Если у вас имеется шкаф-кладовка, его можно смело сносить или присоединить к соседней площади – коридору, комнате. Владельцам двухкомнатной хрущевки, где одна комната не имеет своего входа, можно добавить новую перегородку. Жилого помещения станет меньше, зато у вас появится еще одно личное пространство.

Сэкономить место на кухне помогут высокие до самого потолка шкафы. Главное – не делайте их слишком глубокими.

Независимо от того, сколько комнат в вашей квартире, старайтесь сделать их максимально светлыми. Чем светлее стены и потолок, тем шире кажется пространство. Идеальное решение – использовать оттенки одного цвета для всех комнат. В таком случае, независимо от стиля, вы сможете создать уютную атмосферу.

Также избегайте насыщенных и ярких цветов в отделке, лучше добавить ярких акцентов в виде картины, декора, подушек и сувениров, чем окрашивать или оклеивать хрущевку в красные или зеленые цвета.

У каждой комнаты свой секрет
Итак, как вы уже поняли, хрущевку не стоит захламлять и заставлять ненужными вещами. Лучше использовать раскладные столики и откидные поверхности. С цветовой гаммой также все ясно – небольшая площадь любит светлые и теплые тона, например: молочные, белые, светло-серые, бледно-розовые и кремовые.

Дизайн гостиной в хрущевке.
Чтобы визуально увеличить эту комнату, цвет потолка должен быть светлее оттенка стен. Также подойдет глянцевый натяжной потолок, который создаст эффект зеркального отражения. Большая и громоздкая люстра в маленькой гостиной будет некстати, лучше использовать несколько встроенных точечных светильников и разместить побольше лампочек на стенах.


Спальни в хрущевке.
Если квартира у вас двухкомнатная, спальню лучше всего выделять как отдельную комнату и не соединять ее с коридором. Здесь также стоит использовать светлые оттенки отделки, а самые смелые жильцы могут попробовать использовать зеркальный потолок, который визуально расширит площадь.

Что касается света в спальне, ему нужно отдать особое место – светильников может быть несколько. Их можно расположить на тумбочке у кровати, на боковых стенах, нас стене у кровати или на полу.

Дизайн прихожей.
Самая маленькая комната в хрущевке – это прихожая. Увеличить ее площадь, возможно сделав шире дверные проемы в соседние комнаты или реконструировать их в арки. Вы получите не только зрительное, но и практическое увеличение площади – за счет того, что естественного света будет поступать больше, маленькая комната обретет второе дыхание.

Если же прихожая узкая по ширине и длинная, можно разделить ее на две зоны – в первой будет стандартна прихожая с линолеумом, а вторая станет переходом в комнату. Что касается мебели, здесь отлично станет шкаф-купе или неглубокие горизонтальные полки во всю стену.


Дизайн кухни в хрущевке
Лучше всего подойдут кухонные комплекты популярной L-планировки. В таком случае одна сторона комплекта упрется в окно или стену, а другая – закончится холодильником. На стыке двух сторон логично будет разместить раковину.

Отличным вариантом для маленькой кухни станет раскладной стол и откидные рабочие поверхности. Если вы решите соединять кухню с гостиной или другим помещением, ее стоит выделить другим цветом отделки и подобрать другой материал в декоре. В вопросах цветового решения лучше всего выбирать теплые тона – молочные, белые, небесно-голубые.

И еще одна деталь – выбирайте мебель и оборудование, которое соответствует вашему росту.

Старайтесь заранее продумать дизайн хрущевки, нарисуйте на бумаге идеальный вариант того, что вы хотите увидеть. Если в квартире у вас есть лоджия, используйте ее как дополнительное помещение – протяните туда кабель, поставьте стол, компьютер – и у вас готов рабочий кабинет.

Смотрите также
Чтобы в вашем кабинете всегда было уютно и тепло, лоджию можно утеплить. И помните – вы можете подключать свою фантазию в любых вопросах декора. Единственное, чего нельзя делать – это менять расположение санузла (особенно, если под ним находится жилое помещение соседей) и нарушать систему вентиляции.




























sam.mirtesen.ru
Дизайн хрущевки 90 фотографий — варианты перепланировки и дизайна
Времена, когда квартиры раздавали бесплатно, безвозвратно прошли. А не так уж и давно, когда страна стала восстанавливаться после войны, в эпоху крупнопанельного домостроения, начиная с 1955 года, жильем старались обеспечить если не всех, то многих. Конечно, эти квартиры, которые в простонародии небрежно называют «хрущевками», далеки от совершенства: слишком уж тонкие и неровные стены, низкие потолки, неудобная планировка, звуко- и теплоизоляция не на должном уровне. Но зато строили быстро, и свою задачу хрущевки выполнили сполна.
Всего за 9 лет четверть населения страны была обеспечена жильем. И до сих пор хрущевки составляют значительную часть жилого фонда. Уступают место новым домам они лишь в центральных районах столицы и других крупных городах, в провинции же хрущевки будут стоять еще долго. Их ресурс, ранее составляющий 50 лет, был пересмотрен и увеличен до 150 лет, при условии капитальных ремонтов. Так что смысл продумывать дизайн хрущевки и делать в ней капитальный ремонт, безусловно, есть.
Вот такой красивый интерьер хрущевки с перепланировкой можно реализовать
Да, в советское время и таким квартирам были рады: пусть это жилье, где всего 1 комната, да и та небольшая, но зато своя. Нормы жилплощади рассчитывались не из соображений комфорта, а с учетом лишь необходимого минимума для физиологии человека. Сейчас же, когда потребности изменились, владельцам хрущевок хочется как-то трансформировать свое жилье, чтобы добиться комфортабельности и функциональности.
Вариантов дизайна хрущевки на самом деле не так уж и мало, особенно если они предусматривают перепланировку, например, разделение одного неудобного помещения на 2 комнаты, выполняющих разные задачи, или расширение узких и маленьких помещений за счет проходных зон. Какие-то варианты более удачные, какие-то менее, но одно верно точно, даже квартира такой небольшой площади с невысокими потолками может стать современным жильем.
Перепланировка
Пожалуй, интересный дизайн в хрущевке можно создать только при условии выполнения грамотной перепланировки. Квартиры не отличаются большой площадью, но их существенный недостаток еще и в том, что комнаты часто узкие, неудобные, с проходной зоной, нефункциональными коридорами. Искоренить эту проблему можно только прибегнув к перепланировке.
Хрущевки строили по проектам нескольких типовых серий. Они довольно незначительно отличаются между собой, но объединяет их одно – небольшая площадь:
- Однокомнатные квартиры – 29–33 м2,
- Двухкомнатные квартиры – 30–46 м2,
- Трехкомнатные квартиры – 55–58 м2.
Составляя проект перепланировки, надо будет решить ряд задач. Одна из проблем будет связана с узакониванием перепланировки, так как не каждый дизайнерский «полет фантазии» можно реализовать на законных основаниях. Для начала надо получить разрешение на перепланировку.
Демонтаж стен придется узаконить
Первая сложность может возникнуть с определением несущих стен. К счастью, практически во всех хрущевках внутриквартирные перегородки не выполняют несущую функцию, а только лишь делят пространство квартиры на комнаты, поэтому их можно беспрепятственно сносить, делая капитальный ремонт. Однако есть и исключения, в панельных хрущевках можно встретить и несущие стены внутри квартиры. На всякий случай надо сказать о том, как определить несущую стену в квартире:
- По плану квартиры. Получить такого рода документ можно в БТИ. Вам предоставят типовой план квартиры с обозначением несущих стен и перегородок.
- Визуально:
- Несущая стена будет толще, чем перегородка. В хрущевках толщина несущей стены составит не менее 12 см без отделки.
- Межэтажные перекрытия всегда будут опираться на несущие стены.
Если стена все-таки несущая, то проем необходимо будет укрепить с помощью металлических или деревянных опор. Перепланировку, предусматривающую частичный демонтаж несущей стены, можно осуществлять только с разрешения жилинспекции, строго соблюдая утвержденный проект.
Проем в несущей стене необходимо качественно укрепить, например, с помощью швеллера
Даже если несущие стены в перепланировке не будут задействованы, может возникнуть еще ряд проблем. Например, если перепланировка связана с расширением «мокрой зоны». Согласно закону, ванную и туалет можно расширять только за счет нежилых помещений, т.е. коридора, кухни или кладовой. Исключение только для жильцов первых этажей, там эти ограничения не действуют.
В хрущевках часто присутствует небольшой мало функциональный коридорчик, соединяющий прихожую и кухню, за счет которого удобно было бы расширить санузел. Вот он на схеме:

Фактически, это коридор, но на планах этот участок обозначен как жилая зона, поэтому остается либо мириться с этим, либо действовать в два этапа: сначала отделять этот участок перегородкой и оформлять перепланировку жилого пространства в коридор, затем уже получать разрешение на другую перепланировку – расширение ванной комнаты и оформлять по всем правилам документы заново. Т.е. придется сначала оформлять перепланировку такого вида:
Это предварительная перепланировка, с целью узаконить нежилой статус прохода в кухню
Кстати говоря, увеличение ванной комнаты за счет прохода потребует осуществления дополнительной гидроизоляции.
Если намечается объединение кухни и гостиной, чтобы создать просторную зону гостиной- столовой, то здесь можно столкнуться с другим ограничением: объединение жилого пространства с кухней при наличии газовой плиты не разрешено. Выхода два: менять плиту на электрическую, либо ставить легкую сдвижную перегородку (после прихода комиссии ее можно демонтировать).
Стоит задуматься и о решении ряда других вопросов, о которых ниже.
Утепление. Так как утепление в хрущевках недостаточное – летом в них жарко, зимой холодно, стены в угловых квартирах часто промерзают – следует усилить теплоизоляцию стен. Причем внутреннее утепление в хрущевках неприменимо, так как реализация такого способа приводит к смещению точки росы внутрь стен. Стены в результате начинают разрушаться, в особенности кирпичные. Доступно утепление с помощью обшивки внешних стен плитами полистирола или с помощью обрешетки и минеральной ваты на первых этажах здания.
Замена остекления. Старые деревянные окна целесообразно заменить на новые пластиковые. Здесь придется столкнуться с некоторыми трудностями. Во-первых, в некоторых хрущевках (панельных) отсутствуют подоконники, во-вторых, оконный проем, скорее всего, окажется неровным. Если обратиться в компанию со стажем, то проблем с установкой окна не возникнет, так как опыт по замене окон в хрущевках наработан. Кое о чем придется подумать тщательно:
- какой ширины будет подоконник,
- как сделать утепление окна.
Обычно стараются сделать подоконник пошире, чтобы было место для комнатных растений. В хрущевках, где изначально не было подоконников, этого следует избегать. С одной стороны, площадь опоры для широкого подоконника недостаточна, а это значит, что конструкция будет весьма неустойчивой, с другой стороны, широкий подоконник станет причиной нарушения теплообмена. Кстати, штукатурные откосы надо демонтировать полностью.
Идеи перепланировки
Итак, основные проблемы перепланировки и ремонта в хрущевке обозначены. Теперь о конкретных идеях перепланировки.
Однокомнатные хрущевки
Казалось бы, что можно придумать, имея в качестве исходных данных однокомнатную хрущевку? Оказывается, можно и санузел увеличить и сделать отдельную спальню, по крайней мере, сделать перепланировку более удобной вполне возможно.
Типовая планировка однокомнатной хрущевки
Типовая планировка однокомнатной квартиры в хрущевке – это коридор, ведущий к кухне и «арка» в гостиную. В некоторых сериях «арка» застраивалась, а проход в комнату располагался прямо напротив входной двери. Иногда проект предусматривал наличие кладовки. В угловых квартирах на длинной стене гостиной располагалось еще одно окно.
| Вариант перепланировки | Описание перепланировки |
![]() |
Это вариант перепланировки, где «арка» застраивается и превращается в обычный дверной проем, функциональность гостиной в этом случае возрастает, так как вдоль увеличившейся в длину стены можно поставить, например, диван. Переносится и дверь в туалет, за счет скругления пространства прихожая становится просторнее. Теперь здесь может удобно разместиться угловой шкаф. Кухня остается без изменений.
|
![]() |
Здесь можно увидеть, что полностью сносятся все межкомнатные перегородки, в том числе перегородки санузла. Пространство полностью перестраивается. Санузел расширяется за счет коридорчика, теперь здесь достаточно места, чтобы установить стиральную машину. Раковина, кстати, переносится на противоположную стену, что потребует подвода канализации. Перегородка между гостиной и кухней демонтируется, стена между ванной и кухней удлиняется за счет застраивания старого дверного проема: можно разместить полноценный кухонный гарнитур. Недостаток перепланировки в том, что уменьшается площадь прихожей, но зато в гостиной теперь удобно расположить шкаф-купе, тем более, что место для вешалки и полки под обувь в прихожей найдется.
|
![]() |
Еще один вариант трансформации пространства за счет прохода. В этом случае меняется ориентация ванной комнаты – она немного увеличивается по площади, но основной упор сделан на увеличение площади кухни. Она частично объединяется с гостиной за счет широкого проема, в котором можно установить раздвижные перегородки.
|
![]() |
Здесь много внимания уделено местам хранения, причем находится место и для двухспальной кровати, она никак не отделяется от зоны гостиной, но находится в уютном закутке. Кухня объединяется с гостиной, устраивается отдельная ниша для холодильника. Обыграть кухонную, гостиную и спальную зоны можно с помощью дизайна. Обратите внимание на санузел. Вход в него переносится из прихожей в проход, благодаря чему убирается дверь из узкой прихожей. Замена ванны на душевую кабину позволяет разгрузить пространство и установить стиральную машину.
|
![]() |
В этом варианте за счет переноса дверного проема в кухню расширен санузел, а точнее область ванны, часть стены скошена, благодаря чему получился полноценный дверной проем в гостиную. Пространство кухни существенно не оптимизировано.
|
![]() |
Здесь снесена перегородка между прихожей и гостиной. На этом месте стоит шкаф. Частично отсутствует перегородка между гостиной и кухней. Роль разделителя пространства выполняет барная стойка. Благодаря смещению столовой зоны из кухни в гостиную, кухня стала значительно просторнее. Кухонный гарнитур в этом варианте расположен буквой «Г» и занимает не только длинную стену, но и стену с окном. Пожалуй, надо отметить недостаток мест хранения и маленький санузел, который не перестраивается, но вместо ванны устанавливаются душевая кабина и стиральная машинка.
|
![]() |
Даже такую маленькую квартиру как однокомнатная хрущевка можно сделать двухкомнатной при необходимости. Например, на этом плане можно увидеть, что в дальнем углу гостиной поставили кровать и прикроватную тумбу. Зона спальни отделена частичной перегородкой, чтобы оставить доступ для естественного освещения, так как спальня без окна. Кухонная и обеденная зона объединены единой столешницей. Проведено зонирование при помощи напольного покрытия. Есть места для хранения как в прихожей, так и в гостиной.
|
![]() |
В угловых хрущевках, где в комнате два окна, вариантов перепланировки больше, точнее из одной комнаты можно сделать две полноценных светлых комнаты с естественным освещением. На этом плане видно, что перегородка между кухней и гостиной снесена, но возведена новая перегородка, которая теперь делит комнату на две части. В результате получилась отличная квартира с раздельными комнатами: гостиной-столовой и спальней. Зону санузла перепланировка не затрагивает.
|
![]() |
Этот вариант перепланировки похож на предыдущий, но вход в спальню – из гостиной. Зато в спальню можно заказать большой шкаф-купе, который решит проблему с местом для хранения.
|
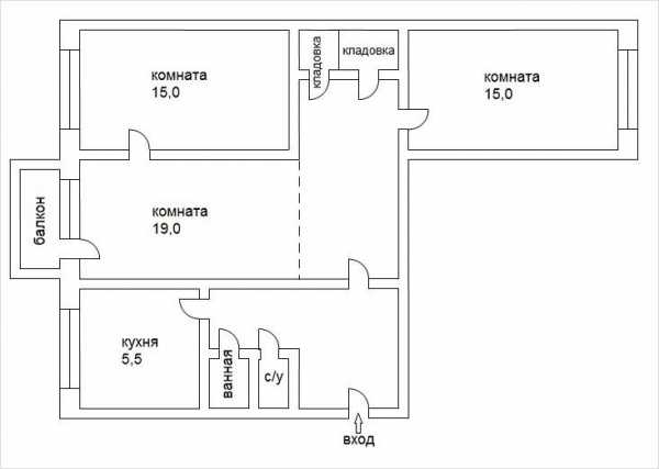
Двухкомнатные хрущевки
Типовая планировка двухкомнатной хрущевки дает больше возможностей для дизайна, особенно если все стены в квартире не являются несущими.
В типовой двухкомнатной хрущевке можно существенно расширить санузел за счет прохода, организовать просторную столовую-гостиную. Кроме того, из двухкомнатной квартиры фактически можно сделать «трешку». Есть три распространенных типовых планировки двушек в хрущевках, которые получили в народе любовные названия: «книжка», «трамвайчик», «миниулучшенка».

Трамвай

| Вариант перепланировки | Описание перепланировки |
![]() |
Перегородка между комнатой и гостиной просто сносится. Пространство бывшего прохода теперь поделено между тремя помещениями: прихожей, санузлом и кухней. В прихожей – гардероб, в ванной комнате – стиральная машинка, на кухне – ниша под холодильник. Дверной проем в кладовую застроен. Она превратилась в гардеробную с входом из спальни. Кухня объединена с гостиной.
|
![]() |
Похожий вариант. Различие в том, что в прихожей нет ниши под шкаф, а в гостиной, напротив входной двери, размещено рабочее место. Вход в гардероб не из спальни, а из гостиной, рядом с рабочим местом.
|
![]() |
Здесь перепланировка главным образом коснулась кухни и гостиной. Стена между гостиной и кухней снесена, а вместо нее размещена островная кухонная мойка. Обеденная зона теперь в гостиной: обеденный стол примыкает к дивану. За раздвижной перегородкой находится двухспальная кровать, которую удалось вписать благодаря наращиванию стены между прихожей и гостиной. Из зоны спальни можно зайти в просторную гардеробную, спрятанную за раздвижной дверью. Спальня стала детской для двух детей.
|
![]() |
Недостаток этой перепланировки виден сразу – это слишком длинный и узкий коридор, но, тем не менее, и этот вариант имеет право на существование. Ведь он позволяет сделать отдельные комнаты, расширить санузел за счет коридора, выделить зону хранения. И спальня, и гостиная-столовая разделены частичными перегородками, которые выполняют функцию зонирования пространства, выделяют зону отдыха.
|
![]() |
В этом варианте на месте прохода сделана ниша под холодильник, гардероб. Перегородка между кухней и гостиной убирается лишь частично, только для того, чтобы сделать новый вход. Гостиная получилась темная, свет поступает лишь благодаря прозрачным вставкам в перегородках. Зато новая спальня получилась очень светлая и с балконом.
|
![]() |
Возможен и такой вариант перепланировки. Часть кладовой и спальни становятся общим пространством с гостиной, перегородка между гостиной и прихожей сдвигается глубже внутрь комнаты, демонтируется кухонная перегородка. Получается очень просторная гостиная-столовая, маленькая спальня и полноценная гардеробная комната.
|
![]() |
Кухня и гостиная здесь не объединяются, как в большинстве предыдущих вариантов, но санузел также расширяется за счет прохода. Перегородка в спальне делит комнату на две спальни – одну с окном, другую без него. Стена сделана зигзагообразно, чтобы оставить место и в той и в другой комнате под глубокие встроенные шкафы.
|
![]() |
Этот вариант похож на предыдущий. Спальня здесь также перестраивается таким образом, что из нее получаются две отдельные комнаты, но санузел не перестраивается, в проходе теперь расположена гардеробная комната и место для встроенного шкафа в прихожей. Перегородка между гостиной и прихожей переносится дальше – организуется удобное рабочее место.
|
![]() |
Интересный вариант – диагональная перепланировка, как, например, видно на этом плане. Благодаря этому подходу в ванную комнату удалось вместить угловую ванну, объединить под общей столешницей умывальник и стиральную машинку. Кухня не расширяется, но ее дизайн существенно меняется. Во-первых, сносится перегородка. Стол заменяется барной стойкой. Во-вторых, мойка переносится на сторону стены с окном. Перегородка между спальней и гостиной переносится, чтобы установить встроенную мебель. Изюминка проекта – гардеробная комната, по сторонам которой можно разместить угловые шкафы-пеналы. |
![]() |
Здесь тоже диагональная прихожая. Но спальня значительно расширена за счет гостиной. Фактически получается трехкомнатная квартира, но гостиная маленькая и отделена от кухни невысокой перегородкой. |
![]() |
Похожий проект, но прихожая чуть больше. Есть ниша под шкаф. Санузел увеличен. |
![]() |
Двухкомнатная хрущевка на две стороны. Комнаты здесь смежные. И главная задача сделать их раздельными. Из узкой прихожей переносится дверь в санузел, а за счет уменьшения площади гостиной удается выделить место для кладовки или гардеробной. Спальня разделяется сквозным стеллажом, благодаря ему не уменьшается существенно освещенность, но пространство зонируется на спальню и гостиную. Вместо бывшей гостиной теперь детская комната. |
Трехкомнатная квартира
В трехкомнатной хрущевке задачи перепланировки также сводятся к решению проблемы смежных комнат и их небольшой площади.
Типовая планировка трехкомнатной квартиры предполагает небольшую кухню и проходную гостиную, из которой осуществляется вход в спальню, одна спальня отдельная. Это может быть планировка типа книжка:
Трехкомнатная
Или планировка «трамвай»:

| Варианты перепланировки | Описание перепланировки |
![]() |
На этом плане видно, что вход в санузел перенесен и сделан на стыке стен, перегородки кухни и прихожей демонтированы. Кладовая преобразована в гардеробную и немного расширена за счет прохода.
|
![]() |
В этом варианте отсутствует перегородка между гостиной и гостиной. Санузел совмещается. Частично убирается перегородка между гостиной и кухней, но сохраняется напротив санузла. Входы в одну из спален и гардероб располагаются в виде полукруга.
|
![]() |
Здесь сделана большая и удобная гардеробная, вход в которую осуществляется из спальни. В гостиной –специальная округлая ниша для телевизора, которая стала центральным элементом. В гостиной располагается и столовая зона.
|
Фото перепланировок
Здесь видно кухонную зону в квартире, переоборудованной в студию. На стене размещены семейные фотографии.
Вид из гостиной. Квартира интересна дизайном — обыгрывается круг. Можно наблюдать проекцию круга на полу и потолке.
Процесс объединения кухни и гостиной. На потолке еще видны следы старой стены.
Столовая зона в объединенной с кухней гостиной
Спальня без окон. Так может выглядеть спальня в однокомнатной хрущевке
Видео: перепланировка санузла в хрущевке
Видео: объединение кухни и гостиной
Дизайн прихожей
Прихожая в хрущевке имеет несколько недостатков:
- миниатюрность;
- длинный и узкий коридор;
- неудобная планировка в виде буквы «Г».
Чтобы избежать недостатка пространства, прихожую можно расширить за счет ванной или гостиной, хотя бы для того, чтобы установить шкаф-купе. Дело в том, что даже узкий шкаф в такой прихожей будет неуместен, потому что зачастую положение усугубляется открывающейся в прихожую дверью санузла. Если же увеличивать помещение не планируется, то придется пойти на различные дизайнерские ухищрения, чтобы не допустить ощущения загроможденности прихожей.
Дизайнерские приемы, которые позволят максимально разгрузить интерьер:
- Минималистичность мебели. Это касается не только дизайна мебели, но и ее количества. В прихожей должно быть только самое необходимое. Таковыми являются, например, места под обувь и одежду. Причем стоит избегать открытых вешалок, так как даже пару комплектов зимней одежды на ней создадут эффект беспорядка. Все же надо постараться выделить место под шкаф. Это может быть небольшой угловой шкаф с зеркальной дверцей. Рядом можно повесить небольшую полочку для мелочей, которые должны быть под рукой. Вообще угловые конструкции и зеркала стоит использовать в прихожей хрущевки. Вот только напротив двери вешать зеркало не рекомендуется по фен шуй.
- Расширить пространство поможет грамотный подбор цвета интерьера. Известно, что светлые цвета зрительно делают интерьер просторнее. Это справедливо и для прихожей. Однако если вы последуете этому совету, выбирайте материалы, которые можно мыть. Например, для стен это может быть краска, для пола кафельная или керамическая плитка. Избегайте материалов с пористой фактурой, в тесной прихожей их легко запачкать, а вот вернуть прежний вид уже будет затруднительно. От тесноты прихожей отвлекут цветовые акценты, но не переусердствуйте – их не должно быть много. Что касается потолков, то они непременно должны быть светлыми, никаких экспериментов с темными оттенками на потолке, иначе появится ощущение очень низкого потолка.
- Освещение. Конечно, дизайн коридора должен предусматривать тщательно продуманное освещение. В прихожей, которая априори лишена естественного источника света, это чрезвычайно важно. Наилучшим вариантом будет натяжной глянцевый потолок с точечными светильниками. Их количество должно быть достаточным. Например, часто светильники располагают вдоль всего потолка по центральной линии или по периметру у стен в два ряда. Можно предусмотреть дополнительные настенные светильники. Выключатель необходимо расположить так, чтобы до него можно было дотянуться с порога. Совсем неудобно, когда он расположен в центре прихожей. Приходится пересекать часть прихожей в темноте в грязной обуви, приходя с улицы, только для того, чтобы включить свет. Кстати, если коридор длинный, то целесообразно установить проходной выключатель, с помощью которого можно управлять освещением из разных концов коридора.
- Зонирование. В миниатюрной прихожей зонирование, пожалуй, будет неуместным, чего не скажешь о длинном коридоре. Некоторые дизайнеры советуют разбить пространство такого коридора на две, максимум три зоны с помощью арок, можно использовать и цветовые решения.
Фото интерьеров прихожей
Иногда может выручить и обычная открытая вешалка. Большое зеркало на боковой стене расширит пространство узкого коридора
В крайнем случае выручат узкие шкафчики для одежды
Если позволяет ширина прихожей, можно поставить шкаф-купе вдоль стены
Согласитесь, очень интересно выглядит шкаф-купе в конце коридора с фотопечатью. Словно его продолжение.
Угловой встроенный шкаф с раздвижными дверцами удобен, если нет места для установки обычного прямого шкафа-купе
Дизайн гостиной
При разработке дизайна гостиной придется столкнуться с такими же проблемами, что и в прихожей: низкие потолки, мало света. Кроме того, гостиная часто является проходной, из-за чего значительная ее часть не может полноценно использоваться. Часть проблем решается с помощью перепланировки, о чем было сказано выше, часть можно решить, задействовав грамотные дизайнерские идеи.
На эту стену часто вешают телевизор
Решения:
- лаконичный дизайн, отсутствие выступающих декоративных элементов;
- минимальное количество мебели,
- нейтральные цвета, возможно использование контрастных цветов для трансформации восприятия пространства, но требуется профессиональный подход.
Скорее всего, придется заказывать мебель по своим размерам, так как подобрать что-то из готового будет сложновато.
Большое значение имеет подходящая по размерам мебель
Самым правильным ходом будет замена тяжелых штор на легкие занавески, которые будут максимально пропускать естественный свет в помещение. В вечернее время должно быть организовано хорошее искусственное освещение. Это могут быть все те же точечные светильники в сочетании с глянцевым светлым натяжным потолком, гипсокартонный потолок с нишами, которые хорошо освещены по периметру, или так называемый парящий потолок, реализуемый с применением светодиодной подсветки.
Конечно, можно сделать и отдельную спальню в хрущевке, но если не хочется жертвовать свободным пространством, ради размещения двухспальной кровати, которая будет стоять «мертвым грузом», можно в качестве решения выбрать мебель-трансформер. Сейчас в продаже есть не только кровать, которая трансформируется в маленький диван, можно приобрести угловые диваны в комплексе с гостиными, которые превратятся в полноценные кровати ночью.
Кровать-трансформер — решение для хрущевки
Что касается стиля, то при умелом подходе можно оформить гостиную практически в любом из стилевых направлений, по крайней мере можно использовать отдельные стилевые элементы. Вот, например, гостиные в стиле шебби шик и хай тек:
Гостиная в стиле шебби-шик
Гостиная в стиле хай тек
Дизайн спальни в хрущевке
Спальни в таких планировках как «книжка» и «трамвай» узкие и длинные. По площади они вроде бы не такие уж и маленькие, но функциональности это им не прибавляет. Если в спальне не осуществляется перепланировка, то надо стремиться приблизить форму спальни к квадрату с помощью мебели. Это легко сделать, если планировка «книжка». Можно сделать просторную гардеробную комнату или вместительный шкаф-купе. С «трамваем» сложнее, но выход тоже есть. Как можно было увидеть выше, с помощью перепланировки можно совместить в одной комнате гостиную и спальню.
Зона спальни в гостиной
Что касается освещения, выбора мебели и цветов, то для спальни применимы все рекомендации, которые были даны для гостиной и прихожей. Отдельно стоит сказать о том, что в дизайне спальне лучше избегать использования холодных насыщенных оттенков в большом количестве, впрочем, и яркие контрастные оттенки в большом количестве здесь тоже неуместны. Спальня должна располагать к отдыху и покою. Используйте в спальне отделочные материалы и текстиль преимущественно пастельных светлых оттенков, комбинируя цвета. Можно выбрать основным даже белый цвет, сотворив что-то в скандинавском стиле.
Спальня в скандинавском стиле
Есть специально разработанные цветовые схемы для дизайна интерьеров, которые можно с успехом использовать, выбирая цвет мебели, отделки и аксессуаров.
Спальня пастельного зеленого оттенка
Изюминку интерьеру придадут контрастные вкрапления
Не используйте сложные декоративные элементы с вычурными изогнутыми линиями. Если места совсем мало, ограничьтесь одной кроватью. Функциональным в спальне будет зеркало, особенно если найдется место для небольшого туалетного столика и рядом расположится гардеробная. В спальне часто вешают люстру. Лучше все-таки отказаться от нее и ограничиться точечным освещением, но если очень хочется, то выбирайте плоские модели.
Кухня в хрущевке
На кухне в хрущевке уж слишком мало места, буквально не развернуться. Надо либо делать перепланировку, либо стараться преобразовать пространство так, чтобы оно стало функциональным и удобным.
Основной ход – мебель под заказ. Незначительный момент, но два-три сантиметра то тут то там, порой, решают «исход сражения». Тщательно продумав размещение кухонного гарнитура, а точнее всех секций, ящичков и бытовой техники можно в буквальном смысле реализовать евроремонт на кухне хрущевки. Хорошую службу сослужит встроенная техника: микроволновка, духовой шкаф, варочная панель, посудомоечная машина, которая может быть малогабаритной. Даже холодильники теперь можно приобрести встраиваемые под столешницу: показалось – шкафчик; но нет, откроешь – холодильник.
Модно сейчас стало переносить кухонную мойку к окну, благодаря чему в углу можно расположить высокий холодильник. Придется повозиться с канализацией, но решение стоящее.
Кухонная мойка у окна позволит спланировать пространство более удобным образом
Можно и не переносить мойку, если вы не видите в этом необходимости, а просто использовать подоконник в качестве столешницы. Некоторые соединяют единой столешницей рабочую зону и барную стойку, что делает интерьер более цельным.
Что касается текстиля, то подбирайте в кухню короткие легкие шторы, а лучше и вовсе горизонтальные жалюзи, располагающиеся прямо на створках пластиковых окон – очень удобно.
Не совсем удобно расположены в хрущевках на кухне канализационные и газовые трубы. Газовые трубы при желании можно перенести, обратившись в соответствующие инстанции. А можно замаскировать их мебелью или пластиковым коробом, или собрать короб из гипсокартона.
Надеемся, что наши советы помогут вам самостоятельно разработать перепланировку и дизайн вашей любимой и родной хрущевки. А напоследок предлагаем посмотреть еще подборку фотографий дизайна хрущевок.
Дизайн хрущевок фото


































kakpravilnosdelat.ru
Типовые серии хрущевок — фото планировок.
С 1957 года, после принятия закона, который предусматривал устранение излишеств в проектировании домов, в СССР стали возводиться здания нового типа. В народе такие дома получили название «хрущевки» (производное от фамилии генерального секретаря ЦК КПСС Н.С. Хрущева). Такие дома получили второе название – хрущебы, в основном, из-за неудобной и непропорциональной планировки комнат, узких коридоров и пролетов площадок, тонких стен и как результат – ужасной шумоизоляции. В этой статье мы расскажем о том, что такое типовые серии хрущевок, постараемся выделить основные плюсы и минусы этих зданий. Особенности планировки предоставим в виде описаний и фото.
Типовые серии хрущевок: основные плюсы и минусы домов
Давайте рассмотрим основные характеристики квартир и определим особенности каждой серии хрущевок, которые возводились на протяжении 27 лет. Стоит заметить, что изначально хрущевки предполагалось использовать, как временное жилье и эксплуатационный срок здания составлял от 25 до 50 лет. Но, как известно, в таких домах проживают люди и в наше время. К минусам хрущевок можно отнести плохую шумоизоляцию и теплоизоляцию (зимой прохладно, а летом слишком жарко в квартире), не всегда удачную планировку квартиры и подъезда: узкие коридоры, маленькую кухню, отсутствие мусоропровода и очень часто лифта. К основным плюсам таких домов можно отнести невысокую стоимость.
К основным плюсам таких домов можно отнести невысокую стоимость жилья и развитую инфраструктуру вокруг здания. Как правило, недалеко от хрущевок есть садики, школы, магазины и отличная транспортная развязка. Если денежных средств на покупку квартиры мало, то хрущевка – не самый плохой вариант. Тем более, такие здания в Москве и других городах России, подлежат сносу, в этом случае владельцы получают новенькое жилье, или реконструкции и перепланировке.
Серия 1-464 (1960 – 1967 гг.)
Общий чертеж:
Одной из самых популярных в СССР серий хрущевок стала 1-464 (1960 – 1967 гг.). Это панельный дом с 5 этажами, редко можно встретить 3 и 4 этажные здания. Во всех квартирах есть балконы (также дополнительные кладовки), а вот лифты не предусмотрены и жителям здания приходиться подниматься и спускаться по ступенькам, что достаточно тяжело пожилым людям, семьям с маленькими детьми. Санузлы в квартирах совмещенные, в подъезде нет общего мусоропровода, а количество квартир на площадке составляет 4. Высота потолков в квартирах – 2,5 м2, кухни менее 6 м2, если быть точнее – 5,8 м2. Квартиры 1, 2 и 3-х комнатные.
Картинка – чертеж:
1 комнатная:
2 комнатная:
3 комнатная:
Серия 1-335 (1963 – 1967 гг.)
С 1963 по 1967 гг. территория застраивалась домами серии 1-335. Это тоже панельные здания, с высотой потолков 2,54 м., балконами в каждой квартире, совмещенными санузлами, отсутствием лифта и мусоропровода. Площадь кухни немного больше, чем в предыдущей серии – 6,2 м2, площадь потолков – 2,5 м. На площадке располагается четыре квартиры – от 1 до 3-х комнатной. Помимо балконов в квартирах есть дополнительные кладовки и встроенные шкафы.
1 комнатная:
2 комнатная:
Серия 1-434 (1958 – 1964 гг.)
Эта серия строилась с 1958 года по 1964 год, в различные года застройки немного видоизменялись планировки квартир. Так, например, в зданиях 1958 года в однокомнатных квартирах площадь жилой комнаты составляла 18,6 м2, а в 1959 году она уменьшилась до 18,2 м2, в 1969 г. – площадь комнаты составляла 17,7 м2. И так во всех типах квартир площадь жилых помещений варьировалась в сторону уменьшения и увеличения. А вот площадь кухни осталась неизменной – 5,8 м2, как и высота потолков – 2,5 м. Дома – кирпичные, совмещенные санузлы, а в каждой квартире есть балкон, кладовая и встроенные шкафы.
Картинки – чертеж (по годам)
1 комнатная 1958 год
1 комнатная 1959 год
1 комнатная 1960 год
1 комнатная 1961 год
1 комнатная 1964 год
2 комнатная 1958 год
2 комнатная 1959 год
2 комнатная 1960 год
2 комнатная 1964 год
3 комнатная 1958 год
3 комнатная 1959 год
3 комнатная 1960 год
3 комнатная 1961 год
3 комнатная 1964 год
Серия 1-467 (1959 – 1969 гг.)
Последняя серия, которую мы рассмотрим, строилась с 1959 по 1969 год. Это блочные дома, высота потолков, как и в предыдущих сериях – 2,5 м, площадь кухни – от 6,6 м2 до 7,7 м2. Во всех квартирах (1, 2 и 3-х комнатных) есть балконы кроме 1 этажа. Санузлы в ранних версиях зданий — раздельные, а в поздних – совмещенные, отсутствует мусоропровод. К достоинствам квартир этой серии относят возможность их перепланировки, к недостаткам – смежные комнаты во многих квартирах. Картинка – чертеж:

Видео хрущёвок
Читайте далее:
comments powered by HyperCommentsbogiremonta.ru
Дизайн маленькой квартиры хрущевки: 28 идей + фото

Скажите, кто не мечтал сделать дизайн маленькой квартиры хрущевки более просторным и светлым, где все находиться на своем месте и при этом можно свободно передвигаться без риска что-нибудь зацепить или подвинуть?
Ремонт и дизайн 1-комнатной хрущевки: никакой магии
Маленькие квартиры часто становятся головной болью для семейных пар: все свободное пространство заставлено, нет места для верхней одежды, а каждый угол так и норовит превратиться в остров домашних сокровищ.
В этой статье вы не найдете волшебного решения, которое раздвинет стены. Давайте смотреть на вещи реальными глазами! Все, что можно сделать в ситуации с небольшой квартирой, это избавиться от всего ненужного, что редко используется, купить многофункциональную мебель и упорядочить и организовать сам интерьер.
GD-Home подготовил 28 идей по реорганизации и визуальному расширению пространства, которые стоит выполнять шаг за шагом. Вы готовы освежить свою квартиру? Тогда выделите на выполнение пунктов несколько недель или даже месяцев (если вы решите провести ремонт), обязательно включайте приятную музыку или кино, и приступайте к делу 🙂

Дизайн маленькой квартиры хрущевки с перепланировкой. Дизайнер Анастасия Шевелева.

Интерьер дело рук студии Dröm Living
Дизайн маленькой квартиры 30 кв. м в хрущевке
1. Очистите проходы
Пространство между комнатами должно быть свободно. Не стоит блокировать коридоры, места должно хватать для свободного перемещения и проникновения света.
2. Избавьтесь от мебели
Оговорка – от лишней мебели. Союзник маленьких квартир в хрущевках – это простор. Уменьшите количество предметов мебели, которые используются редко, или замените их на более многофункциональные конструкции.

3. Увеличьте количество света
Чем больше естественного солнечного света, тем большей будет казаться комната. Белый цвет отражает больше света, чем темные цвета, поэтому именно молочную палитру так часто применяют при оформлении небольших комнат. Используйте глянцевые поверхности, картины в застекленных рамах в темных участках комнаты (они также отражают свет).

Пространство в хрущевках должно использоваться по максимуму.

4. Делайте ставки на многофункциональную мебель
Если вы как раз выбираете новую мебель, присматривайтесь к модульным конструкциям, которые могут выполнять несколько функций. Например, для спальни можно подобрать кровать с секциями для хранения, пуфик с подъемной крышкой, где можно хранить косметику, и раскладной столик.
Для кухни также отлично подойдет маленький стол, который при необходимости можно опустить к стене. Если вы принимаете гостей в зале, тогда обратите внимание на раскладной стол, который одновременно может служить для работы за ноутбуком.

Дизайн квартиры хрущевки с перепланировкой
5. Светлый пол
Светлый ламинат или линолиум будет отражать больше света, тем самым визуально увеличит помещения.

Дизайнер Вера Тарловская
6. Добавьте красочного текстиля
Если ваша маленькая квартира хрущевка оформлена в светлых нейтральных тонах, добавить уюта поможет красочный текстиль. Не обязательно выбирать яркие ткани. Важно подобрать шторы, покрывала, ролеты, которые будут гармонировать с общим дизайном. Например, украшением интерьера в молочно-кофейных тонах могут стать шторы желтого или винного оттенка, в комбинацию к которым можно подобрать абажуры для светильников или мебель. Текстиль легко заменить, поэтому с его помощью можно быстро и более бюджетно (по сравнению с ремонтом или покупкой новой мебели) обновить интерьер.

7. Используйте коридор
Если есть возможность разместите шкаф размером XXL в коридоре (вдоль одной из стен). Он может иметь открытые и закрытые секции. По возможности разгружайте пространство комнат.

8. Спрячьте сливной бачок
Его можно вмонтировать в стену, что подарит дополнительные 15 – 20 см.

Дизайн маленьких комнат в квартире
9. Спальня ребенка
В однокомнатной квартире для ребенка можно оформить уголок с кроватью на втором уровне, а на первом оборудовать зону для игр с небольшим столиком, меловой доской на стене, и книжными полочками у одной из сторон конструкции.

10. Используйте малогабаритную мебель
Громоздкая мебель в однокомнатной квартире хрущевке будет выглядеть нелепо, в результате интерьер будет казаться непропорциональным. Для маленькой гостиной отлично подойдет диван L-образной формы. Причем будет неплохо, если меньшую часть можно будет передвигать и размещать там, где требуется.


11. Вертикальное хранение – то, что доктор прописал
Дабы максимально эксплуатировать площадь в хрущевке, заказывайте шкаф и стеллажи под самый потолок. Зачем оставлять пространство для накопления пыли, если там можно что-то хранить? Если вы не планируете покупку новой мебели, возьмите на заметку обычные корзины, которые легко достаются. Они могут быть с крышками или без них.

12. Раздвижная дверь
Для распахивания обычной двери необходимо около 1 кв. м. Раздвижная дверь, которая оборудована колесиками и прячется в стену, позволит использовать помещение более рационально.


13. Стекло — это союзник
мобильные перегородки. Они являются хорошим решением для разделения помещения, при этом свет проникает всюду. С ними дизайн будет выглядеть более легким и просторным.
дверцы в душе. Обычные занавески делят маленькую ванную на две части, а стеклянная перегородка практически незаметна. Если вы переживаете за потеки воды на стекле, можете выбрать перегородку из матового стекла или с узором.
полочки и дверцы. Стеклянные полочки и дверцы в стеллажах и нишах способны сделать тяжеловесную конструкцию более легкой. Их обычно размещают на кухне или в гостиной для хранения посуды. Добавив подсветку, вы сделаете конструкцию еще более интересной.

Дизайнеры Наталья Маслова и Юлия Харитонова

14. Не бойтесь использовать зеркала
Поместите их в конце коридора, на одной из стен в гостиной или кухне. Это даст большую глубину и увеличит количество естественного света. Если вы как раз заказываете шкаф-купе, обратите внимание на модели с зеркальными дверцами.

Дизайн создавала Джо Симмонс
15. “Встроенные” стеллажи
Если у вас есть много книг или других вещей, возьмите гипсокартон для создания шкафа, который затем стоит выкрасить в цвет стен. При необходимости прикрыть основание на полу и потолке помогут плинтуса.


Интерьер от студии Geometrium
Идеи дизайна маленькой кухни в хрущевке
16. Место у окна
- Можно эксплуатировать сам подоконник. Например, на кухне вместо него можно оформить широкую барную стойку с удобными высокими стульями. Здесь будет удобно кушать, а гостей можно разместить в гостиной за раскладным столом, который основное время будет проводить в сложенном состоянии где-нибудь в шкафу.
- Как правило, под окном расположены радиаторы, поэтому вариантов оформления этой зоны не так уж и много. Там можно разместить специально изготовленный небольшой шкаф с дверцами, где хранить вещи, которые не боятся тепла. Или же заказать столешницу вместо подоконника, которая будет выходить за его пределы на 60 см. Здесь можно оформить рабочее пространство (если дело касается гостиной).


17. Скройте технику
Большое количество электронных устройств в комнате “съедает” площадь, за счет чего интерьер маленькой квартиры хрущевки кажется менее гармоничным. Кухонную технику, включая холодильник, лучше всего спрятать за фасадами гарнитура.

18. Выдвижные секции
Как правило, они полезны на кухне для хранения специй, круп, кастрюль или химических средств. Они помогают здорово использовать труднодоступные места и держать кухню в чистоте и порядке.

Автор проекта Solo Interior Desing
19. Используйте крючки и магнитные полосы
На кухне магнитная полоса пригодиться для вертикального хранения ножей. Это очень удобно. Крючки пригодятся для хранения мелкой утвари и полотенец. Их можно разместить между подвесными шкафчиками и столешницей или за дверцей.

Работа студии INT2 architecture

Как оформить дизайн гостиной в хрущевке
20. Используйте балкон или лоджию
Можно расширить комнату за счет дополнительных квадратных метров, но если вы не планируете рушить стены, тогда наведите порядок на балконе. Обустройте там уютный уголок со столиком и мягкими пуфиками.

21. Сделайте шкафы менее заметными
Для этого они должны сливаться со стенами, поэтому встроенные модели являются отличным решением. Также лучше отказаться от привычных ручек и воспользоваться системой Push up. Конечно, этот пункт осуществим только в том случае, если вы как раз обновляете мебель в квартире и ищите пути визуального увеличения пространства.


22. Дополнительные полки
Над рабочим столом можно оформить дополнительные зоны для хранения. Полки и подвесные ящики помогут лучше организовать рабочее место. Их можно повесить и над детским столиком.

Проект дизайн-студии Уютная квартира
23. Добавьте света
Одного подвесного светильника в комнате, как правило, недостаточно. На кухне можно дополнительно монтировать встраиваемые точечные светильники и светодиодную ленту у рабочего стола. В гостиной-спальне можно добавить бра на стены или поставить напольный светильник у дивана.

Как оформить дизайн спальни в хрущевке
24. Детская для двоих детей
Если в 1-комнатной квартире хрущевке нужно оформить детскую для двоих детей, двухэтажная кровать будет спасением. За счет этого у малышей останется больше места для игр. Если квартиры имеет две комнаты, тогда есть дополнительный вариант с расстановкой двух одноэтажных кроватей, однако убедитесь, что остается достаточно пространства для игр и рабочего столика.


Дизайнер проекта Евгения Островская
25. Мебель на колесиках
Стеллажи, пуфы или кресла на колесах идеально подходят для маленьких квартир. Их можно легко перемещать из стороны в сторону, освобождая пространство при необходимости.

26. Подвесьте телевизор
Тонкий телевизор на кронштейне позволит сохранить несколько квадратов, учитывая, что вы сможете избавиться и от тумбы под него.

Автор — студия Geometrium

27. Замените изголовье кровати
Вместо мягкого изголовья можно обустроить дополнительное место для хранения.

Дизайн от Натали Моралес
28. Правило симметрии
Это правило заставляет пространство казаться более гармоничным и целостным. Активно применяйте его при оформлении интерьера, в котором каждый квадратный метр на счету.
Пусть ваш интерьер станет более уютным и теплым!
www.gd-home.com
Современный дизайн интерьера хрущевки. 35 фото дизайнерских идей
Термин «хрущевка» вызывает у соотечественников аналогию с малюсеньким пространством, где приходиться ютиться целым семьям. В принципе, верный образ, однако у такого жилища куча плюсов. Как правило, эти квартиры ну очень тёплые! Не требуют большого количества мебели, ибо, на неё просто не будет места. И, наконец, миниатюрную квартирку с лёгкостью можно сделать уютной. Современный дизайн интерьера хрущевки. 35 фото дизайнерских идей.


Самая слабая сторона хрущевок – их кухни. Крохотные кухоньки, на которых и развернуться-то негде, докучают отсутствием обширного, или хотя бы нормального, метража. Поэтому многие, желающие добавить в свой быт удобств и красоты, задумываются: как преобразовать кухонную зону, расширить её, сделать практичным дизайн интерьера хрущевки.
Наиболее популярным решением становится снос стены и установка барной стойки, которая будет символически, но очень симпатично разделять зал и кухню. Этакая перегородка будет не только сердцем вечеринки, но и служить в качестве обеденного стола. Дизайн интерьера хрущевки фото:


Нередко почти все кухонные поверхности задействованы под склад. Склад для кастрюль, кружек и прочих вещей. Таким образом, все эти кастрюли и сковородки захламляют столь ценное пространство. Поэтому габаритные столовые принадлежности лучше держать в отдельных больших ящиках, которые могут быть встроенными или навесными. Дизайн интерьера квартиры в хрущевке, иногда шкафы для таких целей устанавливаются прямо под потолком, что может не очень удобно для субтильной домохозяйки, зато освобождает остальное место от засилья старой утвари.
Смотрите видео: Современный дизайн интерьера хрущевки
Идеи дизайна интерьера хрущевки
Маленькая кухня – «маленькая» мебель. Маленькая, но функциональная. Не всегда хозяева нуждаются в огромной поверхности для готовки. Она нужна только во время приготовления пищи, а остальное время хочется передвигаться беспрепятственно. Здесь отлично впишется раздвижной стол, который легко превращается из «подставки» под кофе ранним утром в большое поле действий во время готовки. Сидения, или табуреты, тоже должны иметь небольшой размер. Фото дизайна интерьера квартиры в хрущевке:


Вернёмся к сносу стены. Устранив преграду, можно заполучить до двух лишних метров, которые в случае с хрущевской комнаткой станут на вес золота! Этот метод подарит практическое расширение пространства. Однако не каждый готов пойти на кардинальные меры. Есть другой вариант – декоративная визуализация. Здесь понадобится опытный дизайнер, который поработает абсолютно весь потенциал пространства и сделает дизайн интерьера хрущевки под ваши предпочтения.
Очень важно, чтобы каждый шкафчик, каждая антресоль и кухонный стол, были многофункциональными. Встроенная посудомойка, спрятанное под мойкой мусорное ведро, соседствующее с бытовой химией, висящей на стальной перекладине. Обеденный стол тоже может появляться прямо из гарнитура. А складные стулья поместятся в один из шкафов, оставив место миниатюрному, но практичному «уголку». Идеи дизайна интерьера хрущевки — не забываем о местечке над вытяжкой, его тоже можно использовать в качестве ящичка, скажем, для бокалов, или другой торжественной посуды.
Смотрите видео: Идеи дизайна интерьера хрущевки
Дизайн интерьера хрущевки
Сегодня, благодаря развёрнутой школе дизайна интерьера квартиры в хрущевке, можно получить ответ на все вопросы. Например, что делать, когда хозяину квартиры не подходит вариант ни со сносом стены, ни с, требующим много сил и времени, тщательным прорабатыванием элементов практичного кухонного декора? Ответ прост, зрительно увеличить метраж поможет акцент на оконный проём. Ведь когда солнечные лучи проникают в квартиру, заглядывая в красивое окно со сплошным стеклом, то даже самая маленькая комнатка становится чуть просторнее. Дизайн интерьера хрущевки фото:


Волшебство в деталях. Про малогабаритную кухонную мебель (диваны и прочее) многое известно. Они экономят немало места. Для кухни в хрущевке, лучше сделать мебель на заказ, таким образом, есть больше шансов добиться желаемого результата. Что же касается электротехники, то лучше ей быть встроенной, особенно если дело касается кухонь с прямоугольной ориентировкой. Это, несомненно, увеличит комфортабельность помещения.
Все знают, на что способен светлый цвет. В случае с кухней, это могут быть «вкусные» оттенки:
- Молоко-мёд.
- Молочный шоколад.
- Кофе разбавленный всё тем же молоком.
- Белый.

Подбор подобной цветовой гаммы расширит кухню, добавив воздуха, ощущения просторности. Ну а шторы… в войне за квадраты, подойдут прозрачные материалы, можно и вообще без них. Идеалом в этом вопросе будет установка части шторного ансамбля — ламбрекена, с изящными фалдами, висящими на полутораметровой высоте. Фото дизайна интерьера квартиры в хрущевке:


Световые приборы – одни из важнейших жителей кухни. Испускаемый свет, однозначно, должен быть ярким, но мягким и тёплым. «Холодное» свечение способно давить на глаза. Самые изобретательные используют вместо классической кухонной лампы посреди потолка, галогенные светильники, либо пускают световое зарево по периметру напольного плинтуса.
Прямо как в салуне… Отдавая душу созданию вестернской атмосферы, охота, чтобы картинка была завершена. А что завершает любую авторскую картину? Последний штрих. Так и в дизайне помещений, последний штрих – это дверь. Некоторые вместо обычной двери, крепят ворота-ставни, а-ля Клинт Иствуд, которые скорее, служат декоративным элементом, нежели практичным. Можно не будоражить кровь тематическим направленностями и обойтись скромной аркой без двери, либо установить раздвижную «ширму». Как видно, стилевых решений море, идеи дизайна интерьера хрущевки.
Дизайнерские решения для хрущевок
Избавляемся от лишнего, скрепя сердце. Чтобы выиграть пространство у маленькой кухни желательно избавиться от духовки и использовать лишь варочную поверхность. Однако среди обилия разношерстных примочек, можно и от варочной части плиты добиться того же результата, что от духового шкафа. Тем более, нынче на рынке бытовой техники можно приобрести недорогой духовой шкафчик по размерам напоминающий СВЧ. Дизайн интерьера хрущевки фото:


Как вариант, для маленькой кухни подойдёт горизонтально-ориентированный холодильник. Он располагается под рабочей поверхностью гарнитура. Небольшой холодильной камерой, либо баром, можно занять «летний шкафчик», который имеется под окном каждой хрущевской кухни. Не забыть бы о подоконнике. Поскольку у нас всё отвечает практицизму, то бесполезные украшения с окна лучше убрать, и, расширив поддонник, прикрепив раздвижную столешницу, можно создать дополнительную рабочую зону, либо место для трапезы.
Идеи дизайна интерьера хрущевки – общепринятый размер «кухни от Н. Хрущева» – 5, 5 метров. Особо не разгуляешься… при первом взгляде. Но если есть неравнодушный хозяин, то он станет церемониться с данностью. Добиться эффекта просторной комнаты возможно. Это делается путём вышеупомянутых решений и предложений, остальное – дело фантазии! Фото дизайна интерьера квартиры в хрущевке:









designadvice.ru
Дизайн маленькой квартиры в хрущевке: 28 фото лучших вариантов
Хрущевки — это небольшие квартиры, построенные в прошлом столетии. Несмотря на их размеры, хочется сделать дизайн маленькой квартиры в хрущевке максимально функциональным и привлекательным. Так, небольшую кухню, комнату и санузел можно превратить в квартиру вашей мечты, стоит лишь правильно подобрать интерьер. Оформление хрущевки действительно может стать проблемой. Однако Dekorin предлагает ее решение и фото реальных квартир для вашего вдохновения.
Дизайн маленькой квартиры 30 кв. м. в хрущевке
Однокомнатную квартиру может спасти перепланировка, т. е. соединение комнаты с кухней. Таким образом вы сделаете из хрущевки размером 30 кв. м. настоящую квартиру-студию. Кроме того, можно соединить комнату с прихожей, и тогда площадь увеличится еще больше.


Не стоит беспокоиться, что пространство «сольется», ведь можно зонировать помещение с помощью арок либо разных элементов отделки пола и стен. Хорошо будет включить в дизайн маленьких квартир хрущевок шкаф или диван, раскладывающийся в кровать, ведь тогда вам не придется выделять отдельное место для спальной зоны.

Давайте посмотрим, как лучше всего оформлять дизайн маленьких комнат в квартире хрущевке. Разберем все интерьеры поочередно и приведем наглядные фото. Идеи для современного дизайна санузла вы можете получить в нашей статье Маленький совмещенный санузел — 25 фото ванных комнат.
Дизайн маленьких комнат в квартире: прихожая в хрущевке
Дизайн маленькой квартиры в хрущевке рекомендуется начинать именно с коридора, ведь если вы не будете сносить стены, то стоит хотя бы расширить двери в прихожую. Тогда это помещение станет более просторным и светлым.

В том случае, если прихожая длинная и узкая, разумно будет создать две зоны. Одна из них будет выполнять прямую роль прихожей, в то время как вторая будет входом в зал. Именно в последней зоне следует сделать более «богатый» дизайн с красивой аркой (здесь ни в коем случае не рекомендуется ставить дверь, ведь она украдет свободное пространство и визуально уменьшит территорию).

Что касается мебели, то в интерьере квартиры хрущевки ее необходимо использовать по минимуму: достаточно зеркального шкафа-купе либо обычной вешалки с обувницей, чтобы разместить регулярно используемые вещи.

Также читайте: Как выбрать вместительный шкаф в прихожую (фото моделей)
В любом случае, важно, чтобы в прихожей было зеркало во весь рост, ведь оно не только позволит вам любоваться своим отражением, но и визуально увеличит пространство маленькой комнаты.

Идеи дизайна маленькой кухни в хрущевке
Дизайн маленькой квартиры в хрущевке не обойдется без оформления кухонной зоны. Площадь кухни в хрущевке обычно не превышает 6 кв. м., а значит следует сделать её максимально функциональной. Главным предназначением небольшой кухни является именно приготовление пищи, и с помощью правильного интерьера можно сделать этот процесс удобным и свободным.


Также читайте: Дизайн малогабаритных кухонь от 6 до 10 кв. м.
Если кухня слишком маленькая, обеденный стол со стульями можно поставить в другую комнату, и оставить только технику и рабочие поверхности. Если же вы все-таки оставите столовую зоны на кухне, то позаботьтесь о том, чтобы он был круглой или овальной формы, т. е. без острых краев.

Чтобы сделать маленькую комнату в квартире более просторной, можно установить раздвижные двери на кухню либо же убрать их совсем, если у вас есть мощная вытяжка. Хорошо, если шторы на кухне будут светлыми и пропускающими лучи солнца: таким образом на кухне всегда будет светло и вы визуально увеличите пространство. Потолок также должен быть в светлых тонах, а люстру лучше повесить одну, но большую. Стены и мебель не должны быть темными, ведь в противном случае кухня будет казаться маленькой. Очень хорошо дополнит интерьер небольшой кухни фартук из стекла, ведь он будет не только украшать комнату, но и визуально расширять пространство.


Как оформить дизайн гостиной в хрущевке (с фото)
Конечно, говоря про дизайн маленьких комнат в квартире, следует особое внимание уделить оформлению зала. Еще до начала ремонта, следует учесть предпочтения всех жильцов квартиры, ведь в гостиной должна быть уютная обстановка для теплых семейных встреч после работы и учебы. Обдумайте также, как часто вы принимаете гостей: возможно понадобятся дополнительные спальные места. Или же вы любите уединение и тишину? В таком случае можно обойтись минимумом мебели, не загромождая пространство.


Также читайте: Дизайн однокомнатной квартиры для семьи с ребенком
Что касается цветовой гаммы, то для зала в хрущевке лучше использовать светлые оттенки: так помещение кажется шире и светлее. Однако, необходимы и яркие цветовые акценты, чтобы комната не выглядела слишком однообразно. Стены лучше сделать однотонными или с мелким рисунком, а также, при желании, одну из стен можно украсить масштабным изображением.


Мебель в маленькой гостиной в квартире должна быть компактной и функциональной. В дизайне маленьких квартир хрущевок 30 кв. м. зал также выполняет функцию спальни, поэтому вам потребуется использовать либо раскладную мебель-трансформер, либо занавески и перегородки для отделения спального места. Важно найти золотую середину в оформлении дизайна маленькой комнаты в квартире и придерживаться ее во всем.


Выбирая освещение для небольшой комнаты в хрущевке, откажитесь от объемных нависающих конструкций в пользу лаконичных моделей. Обратите внимание также и на точечное освещение и тогда, возможно, люстра не понадобится совсем. Хорошо в зонах для письма и чтения установить настольные лампы или бра, а также позаботиться о достаточном освещении комнаты в дневное время.


dekorin.me
Хрущевки: описание, типовые планировки с фото
29 сентября, 2014. Прочитано 109545 раз(а)
Введение
Сегодня существует множество многоярусных домов различной планировки, годов постройки и размера жилой площади. В данной статей Мы более подробно рассмотрим основные планировки популярных многоэтажных «Хрущовок», которые можно встретить в каждой стране бывшего СССР. Как правило, это 4-х или 5-ти этажные многоквартирные дома, которые возводились во времена руководства Хрущева Никиты Сергеевича.
«Хрущевки» возводились в период с 1958 до 1985 года, при этом стройка была современного на то время типа, и тысячи семей смогли получить комфортабельные квартиры с проходными комнатами. С 1958 года действует собственный СНиП.
Общие сведенья о хрущевках
Первое поколение 4-х или 5-ти этажных «хрущевок» отличалось небольшой жилой площадью, проходными комнатами. В таких апартаментах высота потолков достигала всего 2,48 метра, в домах блочного типа высота потолка могла достигать 2,7 метра. В «хрущевках» была достаточно слабая звукоизоляция помещений, совмещенный санузел и отсутствовали лифты.
Стоит отметить, что некоторые «хрущевки» относились к временному жилью, которые рассчитывали на эксплуатацию до 25 лет. Однако большая часть, все еще используется гражданами бывших стран СССР. К «хрущевкам» не сносимой серии применялись другие эксплуатационные нормы до 50 лет. В последствие эксперты заявили, что эксплуатационный период можно продлить до 150 лет (в случае капитальных ремонтов согласно нормам). На сегодняшний день «хрущевки» в Москве и Питере подлежат сносу. Однако в Минске, «хрущевкам» выполнили кап. ремонт и утеплили наружные стены.
Основные характеристики «хрущевок»:
- 3-комнатные с общей площадью 55-58 м²;
- 2-комнатные с общей площадью 30-46 м²;
- 1-комнатные с общей площадью 31-33 м².
Жилая площадь комнат:
- Гостиные комнаты – от 14 м²;
- Спальные комнаты – от 8 м²;
- Детские комнаты – от 6 м²;
- Кухни – от 4,5 м².
Виды типовых планировок, серии, фото, описания и годы постройки хрущевок
СЕРИЯ 1-464 – (год постройки 1960-1967)

Хрущевки — серия 1-464
Пяти ярусные дома панельного типа с четырьмя квартирами на одной площадке.
Особенности:
Высота помещений – 2,5 м;
Санузел совмещенный;
Кухня – 5,8 м²;
Особенности: кладовка, шкафы встроенного типа, балкон.
Площадь гостиной в 1-но комнатных «хрущевках» этого типа составляет 19 м², в 2-х и 3-х комнатных 17,3 м²; 19 м² и 20,4 м² в зависимости от планировки. Кладовая размещается в конце спальни или между 1 и 2 спальней. Выход на балкон из гостиной. Санузел совмещенный рядом с кухней.
СЕРИЯ 1-335 – (год постройки 1963-1967)

Хрущевки — серия 1-335
Панельные пяти ярусные дома с четырьмя квартирами на одной площадке.
Особенности:
Высота помещений – 2,5 м;
Санузел совмещенный;
Кухня – 6,2 м²;
Особенности: кладовка, шкафы встроенного типа, балкон.
Площадь гостиной в 1-но комнатных «хрущевках» этого типа составляет 18 м², в 2-х и 3-х комнатных 17,1 м²; 18,2 м² и 19,1 м² в зависимости от планировки. Кладовая размещается в конце гостиной или между 1 и 2 спальней. Выход на балкон из гостиной. Санузел совмещенный рядом с кухней.
СЕРИЯ 1-434 – (год постройки 1958-1964)

Хрущевки — серия 1-434 (1 комната)
o-builder.ru


























