Дома серии П-44Т: планировки, фото, характеристики
Описание
Одним из наиболее востребованных проектов жилья на рынке столичных новостроек и в Московской области стала серия П-44Т. Домами такого типа активно застраивали как новые районы (Люблино, Северное Бутово, Новокосино, Марьинский парк), так и места сноса ветхого жилфонда в районах старой застройки (Медведково, Лефортово, Щукино, Южное Чертаново и т.п.). Всего возведено около шестисот домов этой серии в Москве, и около двухсот – в Московской области.
Дома П-44Т выгодно отличаются от строений базовой версии П-44 (возводились до 1999 года) остеклением лоджий, наличием полуэркеров и эркеров, улучшенной теплоизоляцией наружных панелей и усовершенствованной системой водоснабжения, размещением вентиляционного отверстия в прихожей.
В целом дома данной серии считаются весьма успешным инженерно-архитектурным проектом, отвечают международным стандартам по пожаробезопасности и по капитальности (1-е классы), а поэтому продолжают активно строиться в настоящее время.
Наружная отделка и конструктивные особенности серии
Серию многосекционных домов П-44Т легко узнать по эстетичной отделке фасадов «под кирпич», которая облагораживает внешний вид бетонной конструкции. Наружная отделка дома обычно выполняется в темно-оранжевых или светло-песочных тонах, а отделка нижних этажей, эркеров и полуэркеров в серо-белой цветовой гамме.
Неоспоримыми достоинствами многоэтажек серии П-44Т являются: высокий уровень шумоизоляции у наружных панелей, наличие у отопительных приборов индивидуальных регуляторов, современные противопожарные системы, устройства для оповещения о пожарах, затоплениях, реагирования на открытие дверей техэтажа, подвала, электрощитовой, шахты лифта).
Однако отдельные отзывы свидетельствуют о том, что в новых домах при усадке образуются трещины на стыках панелей и иногда происходит разгерметизация «швов». Поэтому при покупке квартиры необходимо обратить внимание на качество монтажа панелей.
Особенности планировок квартир
Как и в большинстве современных новостроек, в домах П-44Т комнаты изолированные. Кроме того, в некоторых домах, возведенных по этому проекту, квартиры размещаются и на мансардном этаже, привлекательном для многих потенциальных покупателей недвижимости.
Шаг поперечных стен увеличен до 4,2 м, а толщина внутренних стен — 14 см и 18 см, обеспечивает хорошую звукоизоляцию между комнатами. Квартиры имеют раздельные санузлы (за исключением совмещенных санузлов в однокомнатных квартирах).
Доступны для покупки квартиры с готовой муниципальной отделкой.
Недостатком П-44Т, как прочих панельных домов, остается наличие большого числа несущих стен внутри квартир, что не позволяет делать перепланировки по желанию собственников жилья. Категорически запрещается срезать подоконные блоки либо делать проемы в несущих стенах в домах данной серии.
Технические характеристики
|
Параметр |
Значение |
|---|---|
|
Альтернативное наименование: |
П-44Т |
|
Регионы строительства: |
Москва и Московская область
(Коптево, Свиблово, Медведково, Измайлово, Новое Кожухово, Некрасовка Красногорск, Лобня, Балашиха, Железнодорожный, Люберцы, Химки, Московский, Одинцово, Солнечногорск, в пос. Медвежьи Озёра, дер. |
|
Технология строительства: |
Панельный |
| По периоду строительства: |
Современные |
| Годы строительства: |
С 1997 г. по настоящее время |
| Перспектива сноса: |
Снос не предусмотрен даже в дальней перспективе |
| Количество секций/подъездов: |
От 1 до 8 (возможны комбинации подъездов разных серий – П-44Т, П-44К, П-44ТМ/25 в одном доме) |
| Количество этажей: |
9-25 (наиболее распространенные варианты – 14, 17) |
|
Высота потолков: |
2. 70-2.75 м |
|
Балконы/лоджии: |
Выше 2-го – 3-го этажа имеются застекленные лоджии во всех квартирах. В 2- и 3-комнатных квартирах предусмотрены эркеры и полуэркеры. |
|
Санузлы: |
Совмещенные — в однокомнатных квартирах, раздельные — в 2- и 3-комнатных. |
|
Лестницы: |
Незадымляемые |
|
Мусоропровод: |
Мусоропровод, оснащенный загрузочным клапаном на каждом этаже |
|
Лифты: |
2 лифта: пассажирский (400 кг) и грузопассажирский (630 кг).
В 20-25-этажных подъездах – 2 грузопассажирских и пассажирский. |
|
Количество квартир на этаже: |
4 |
|
Общая/жилая/кухня 1-комнатная квартира 37-39/19/7-9 2-комнатная квартира 51-61/30-34/8-13 3-комнатная квартира 70-84/44-54/10-13 |
|
|
Вентиляция: |
Естественная вытяжная с коробом в прихожей |
|
Стены и облицовка: |
Наружные стены — трехслойные ЖБ-панели (бетон — полистирол — бетон) толщиной до 30 см повышенной теплоизоляции Межквартирные и межкомнатные несущие – Ж/б-панели толщиной 16 и 18 см. Крупноразмерные перекрытия толщиной 14 см по ширине комнат Облицовка наружных стен «под кирпич», основные цвета — темно-оранжевый, светло-песочный |
|
Тип кровли: |
Плоско-скатная или черепично-скатная кровля коричневого либо зеленого цвета (производства BRAAS ДСК-1). |
|
Производитель: |
ДСК-1 |
|
Проектировщики: |
МНИИТЭП (Московский НИИ типологии и экспериментального проектирования) |
|
Достоинства: |
Улучшенная шумоизоляция наружных панелей и «швов», регуляторы на отопительных приборах, медная электропроводка, использование технологии закрытого стыка, соответствие международным стандартам по капитальности и пожаробезопасности, современные системы безопасности. |
|
Недостатки: |
Неудовлетворительное качество монтажа наружных стен в отдельных секциях. |
Игорь Василенко
Тип дома п 44т планировка с размерами.
Типовая серия дома П44Т с планировками квартир. Наружная отделка и конструктивные особенности серииСтроиться она началась еще с 1997г. и по настоящее время. Имеет собственную модификацию, которая отличается от нее лишь количеством этажей — это серия П-44Т/17.
Дом П-44Т панельный, состоит из угловых и рядовых секций по четыре квартиры, где 1-комнатная квартира имеет размер жилого помещения — 19м 2 , кухня — 7-9м 2 , санузлы совмещенные; 2-комнатная квартира — 30-34 м 2 , кухня — 8-13 м 2 , санузлы раздельные; 3-комнатная квартира — 44-54 м 2 , кухня — 10-13м 2 , санузел также раздельный. Все комнаты в квартирах домов серии П-44Т изолированные. Во всех квартирах, предусмотрены эркеры и просторные лоджии. Внутренние стены состоят из сборных железобетонных панелей толщиной 16 см и 18 см. Наружные стеновые трехслойные навесные панели с утеплителем из пенополистирола и с теплоотражающей металлизированной пленкой внутри утеплителя, общая толщина 30 см; с фасадной стороны облицованы плиткой «под кирпич», начиная со второго этажа.
Серия жилых домов П-44Т обладает различными недостатками, такими как, узкая комната в двухкомнатных линейных квартирах (с окнами на 1 сторону), швы между панелями требуют дополнительной промазки (иначе будет холодно). Возможности перепланировки в доме данного типа очень серьезно ограничены. Почти все стены являются несущими. Однако сохраняются следующие возможности допустимой перепланировки без пагубного влияния на несущие конструкции:
- В трехкомнатных квартирах перегородка между большой комнатой и коридором является ненесущей.
- Сантехблок выполнен из гипса и может быть демонтирован и/или видоизменен.
- В домах после 2007 года постройки в несущих панелях между кухней и комнатой в части квартир предусмотрена специальная ниша для выполнения дверного проёма («вафля»), которую можно демонтировать.

Все же данная серия обладает и рядом преимуществ: к планировкам были добавлены эркеры, медная электропроводка, вентиляция естественная вытяжная, горячее водоснабжение с верхним разливом, внешний вид приобрел особый цвет — красный с песочным, эркеры и лоджии покрасили в белый. Для проживания в домах серии П-44Т бывает, доступен мансардный этаж. Появилась современная система безопасности, которая реагирует на открытие служебных помещений, затоплении или угрозы возникновения пожара.
В каждом подъезде установлен один пассажирский и один грузопассажирский лифт, в 20-25-этажных секциях (подъездах) — 2 грузопассажирских и пассажирский. Количество подъездов от 1 до 8. Лестницы незадымляемые, противопожарный балкон отсутствует. Мусоропровод расположен на лестнице, с загрузочным клапаном на площадке.
Срок службы дома серии П-44Т около 100 лет, поэтому не стоит, надеяться на снос, в ближайшем времени.
- Производитель: ДСК-1
- Проектировщики: МНИИТЭП (Московский НИИ типологии и экспериментального проектирования)
Дома серии П44Т отличаются улучшенными планировками квартир, более эффективной тепло- и шумоизоляцией наружных стеновых панелей, а также наличием современных инженерных систем и систем безопасности (отопительные приборы с регуляторами температуры, медная электропроводка, технология закрытого стыка (шва), мировые стандарты по капитальности и огнестойкости (1-е классы), современная система безопасности (реагирование на открытие дверей подвала, электрощитовой, чердака, шахты лифта; система оповещения о затоплении и пожаре).Серия п44т состоит из 14-17-этажных прямых и угловых блок-секций с различными вариантами крыш: с мансардным завершением, с плоской крышей, с «наклонными» фризами, что позволяет компоновать различные по конфигурации и силуэту здания. Могут иметь высоту 9-25 этажей. Новым в решении фасадов серии стало сочетание панелей, облицованных матовой керамической плиткой «под кирпич» (ярко-оранжевой, реже песочного цвета), с окрашенными поверхностями эркеров, лоджий, карнизов и других архитектурных деталей.
в торцах секций запроектированы треугольные эркеры. проектом предусмотрено несколько вариантов остекления балконов и лоджий на северном фасаде. Серия п44т стала одной из самых массовых для строительства муниципального жилья в москве с объемом строительства более 1 млн. кв. м. в год.
Усовершенствованы системы отопления, водоснабжения и вентиляции домов по сравнению с серией П44. Стояк вентшахты, который в П44 находился на кухне, у П44Т перенесен в коридор (рядом с ванной и туалетом).
Дом П44Т состоит из угловых и рядовых секций по четыре квартиры, аналогично базовой серии П44. В отличие от нее, на кухнях двух- и трехкомнатных квартир П-44Т имеются большие эркеры трапециевидной формы. В то же время кухни односторонних двушек, а также гостиные торцевых распашонок (2х и 3х комнатных) имеют треугольные полуэркеры. Площадь квартир также увеличена.
Надо понимать, что П-44Т это, по сути, группа серий — существуют и применяются проекты домов П-44ТМ или ТМ-25, а также П-44К , которые имеют ряд отличий в планировках квартир, а также компоновке типовых этажей.
Более того, иногда возводятся жилые дома, скомпонованные из нескольких вариантов секций, например две секции П-44Т и четыре секции П-44К. Встречаются и другие конфигурации сочетания секций.
Типовые планировки квартир домов этой серии представлены ниже.
Чаще всего, первый этаж является жилым. Высота потолков в доме — 2,70 м. Лифты в доме: пассажирский имеет грузоподъёмность 400 килограмм, а грузовой — 630 кг. В доме на 20 и 25 этажей имеются один пассажирский и два грузовых лифта (модификация называется П-44Т/25).
Застекленные лоджии начинаются со второго или третьего этажа. В двух или трёхкомнатной квартире также имеются экеры и полуэкеры. На одном этаже расположены четыре квартиры.
Строительство таких домов началось с 1997 года, и успешно строятся сегодня.
Дома вида П-44Т строятся, как и в новых Московских районах большой застройки, таких как: Некрасовка, Новое Кожухово, Жулебино, Новокосино, Митино, Люблино, Марьинский Парк, Южное и Северное Бутово, Ходынка и пос.
Северный. Также постройки идут и в старых Московских районах, где сносят пятиэтажки и ветхие дома, это: Южное Чертаново, Нагатино, Перово, Зюзино, Очаково, Солнцево, Кунцево, Черёмушки, Фили, Ховрино, Бескудниково, Коптево, Дегунино, Медведково, Свиблово, Юрлово, Измайлово, Алексеево, Лефортово, Зеленоград, Щукино, ул. Нижегородская, ул. 1905 года, ул. Борисовксие Пруды. Дома вида П-44Т строятся и в других районах Москвы (в том числе и в ЦАО).
Новостройки П-44Т строятся не только в Москве, но и в городах Московской обл. например: Балашиха, Железнодорожный, Люберцы, Лобня, Красногорск, Реутов, Московский, Котельники, Щербинка, Одинцово, Химки, в п. Медвежьи Озёра и п. Голубое, также и в дерев. Пыхтино и дер. Брёхово, и ещё в ЖК «Бутово-Парк».
В Москве построено порядка 600 таких домов, а в Московской обл. – около 200 (учитывая строящиеся). Как сообщает производитель, срок эсплуатации такого дома — 100 лет.
Однокомнатная квартира: жилая площадь может достигать до 19 кв.
м, площадь кухни до 8.4 кв. м. но не менее 7,4 (в доме на 25 этажей кухня примерно 9 кв. м), общая площадь может достигать 40 кв. м. но не меньше 37 кв. м.
Двухкомнатной квартира: жилая площадь может достигать до 34 кв. м. но не менее 19, площадь кухни до 13.2 кв. м. но не менее 8.3 кв. м. (в доме на 25 этажей кухня от 12.8 до 13.8 кв. м), общая площадь достигает до 64 кв. м. но не менее 52 кв. м.
Трёхкомнатная квартира: жилая площадь может достигать до 54 кв. м. но не менее 44 кв. м., площадь кухни до 13.2 кв. м. но не менее 10 кв. м., общая площадь достигает до 84 кв. м. но не менее 70 кв. м.
Комнаты в домах серии П – 44Т, все изолированные. Раздельные санузлы делаются только в двух и трёхкомнатных квартирах, в однокомнатной квартире санузел совмещённый. Ванны размером 1,7 м. (стандартные).
Незадымляемые лестницы, в домах на 20 и 25 этажей (вид П-44Т/25) имеются общие балконы. Мусоропровод с загрузочным клапаном имеется на всех этажах.
Электрическая кухонная плита.
Естественная вытяжная вентиляция и вентблоки в коридоре и санузле.
Наружные стены: трёхслойные, 30 см толщиной, панели из железобетона (теплоизоляция таких стен равна кирпичной 90 см толщиной, как утверждает производитель). Межкомнатные и межквартирные несущие – панели из железобетона 16 — 18см толщиной. Перегородки из гипсокартонна 8 см толщиной. Крупноразмерные перекрытия на комнату, плиты из железобетона 14 см толщиной.
Продольные межквартирные несущие стены (в торцевых квартирах, ещё и межкомнатные). К поперечным несущим относятся все стены (межбалконные, межквартирные и межкомнатные).
Типы секций: рядовые (рядные, П-44-1), торцевые и угловые (поворотные). В подъезде с электрощитовой есть два входа.
Шагов в подъезде: семь, ширина одного шага (шаг — это расстояние между двумя несущими стенами), равна 300 сантиметрам (в трёх центральных пролётах секции), и 360 сантиметров в остальных секциях.
Вариантами цвета внешних стен, могут быть такие: песочный, темно-оранжевый и рыжий.
Первые этажи могут быть: белого цвета или серые с выделкой «под камень».
Кровля из BRAAS ДСК1 плоскоскатной черепицы. Над верхним (последним) жилым этажом находится технический этаж.
Отличительной особенностью дома вида П-44Т от более устаревшего вида П-44 (которые строились с 1979 по 2000 гг.) отличается: более высокой теплоизоляцией, более увеличенной кухней, за счёт выноса короба вентиляции в коридор, отделкой наружных стен под кирпич и эркерами.
Также к достоинствам относится: медная проводка, приборы отопления с температурной регулировкой, первые классы мировых стандартов по капитальности и огнестойкости, снабжение горячей воды с верхним разливом, быстрое строительство (этаж за три дня).
Но также есть и недостатки домов такой серии: качество монтажа некоторых элементов наружных стен в отдельных корпусах, в двухкомнатных квартирах (линейках, с окнами в одну сторону), узкая маленькая комната.
В некоторых домах вида П-44Т, можно купить квартиру с муниципальной отделкой.
На ул. Маршала Василевского в 1997г., был возведён первый дом из вида П-44Т. На набережной Яузы Рубцовского р-на, был построен один из самых видных, разноэтажных домов Москвы, из блоков секций П-44Т и П-44М . На типовой базе вида П-44Т в 2005 году был созданы типовые блоки – секций из вида П-44К , где на один шаг меньше в каждой секции (6 шагов в место семи), конечно только в однокомнатных и двухкомнатных квартирах. На сегодняшний день более активно такие виды строятся на МКАД.
Ниже — больше фото и планировок квартир этой серии (нажимайте на фото для увеличения и доп. информации).
В сегодняшнем городском домостроительстве наиболее распространенной является планировка П44Т, которая имеет ряд безусловных достоинств. Еще в семидесятые годы было начато строительство новых домов серии П44 согласно типовым проектам. По сути, это был первый шаг к дальнейшему развитию и внедрению более современной технологии строительства и планирования жилого пространства.
Особенности планировки П44Т
П44T — планировка с размерами, отвечающими требованиям настоящего времени, предлагает около десяти решений.
Разработаны варианты жилых секций для обычных и угловых квартир. Эта модель планирования применяется для жилых многоэтажных домов высотой от 9 до 25 этажей. Для комфортного подъема жильцов и мебели на нужный этаж предусмотрено как минимум два лифта: пассажирский и грузовой.
Современные идеи планирования
Основная идея планировки П44Т — это максимальное использование пространства. В этом контексте можно привести пример удачного инженерного решения, которое позволило увеличить площадь кухни. Такие важные для каждой хозяйки квадратные метры кухни были освобождены за счет размещения короба вентиляции в коридоре. П44Т — планировка с размерами, предполагающими высоту помещений 2,7 м, что обеспечивает комфорт и хороший доступ дневного света в квартиры. Современные идеи планирования дали возможность использования чердачных помещений. На планировка квартиры П44Т с размерами шага поперечных стен, увеличенных до 4,2 м, дает возможность прекрасного благоустройства помещений. Часто их совмещают с обычным этажом, в результате чего получается двухэтажная квартира.
Преимущества П44Т
Дом П44Т планировки с размерами внутренних перекрытий 0,14 м и 0,18 м надежен и имеет длительный срок эксплуатации. Износостойкость и устойчивость наружных стен перед внешними воздействиями обеспечивается отделкой керамической плиткой толщиной 0,30 м, имитирующей кирпич, которая надежно закрепляется на фасаде. Использование качественных стеклопакетов гарантирует хорошую теплоизоляцию, защиту от шума и создает уют. Оснащение различными современными системами контроля дает гарантию безопасности в случае пожара и при угрозе затопления. Также в такого типа устанавливаются датчики открытия дверей технических помещений и электрических счетчиков. П44Т — планировка с размерами, соответствующими типовым нормам данных проектов, предполагает прокладку проводов электричества внутри панелей. Это увеличивает безопасность эксплуатации и защиту самих проводов во время каких-либо ремонтных или строительных работ.
Очень важными преимуществами дома с планировкой П44Т являются короткие сроки возведения и длительный период эксплуатации.
Гарантированный специалистами срок службы составляет более ста лет.
Планировка П44Т с размерами стен гораздо больше, чем в зданиях, строящихся в предыдущие годы, обеспечивает дополнительную надежность конструкции, лучшую звукоизоляцию квартир и хорошую теплоизоляцию помещений. При строительстве используют высококачественный тяжелый бетон, который отвечает за повышенную износостойкость.
Недостатки П44Т
Наряду с целым рядом преимуществ, можно назвать некоторые недостатки, встречающиеся в домах такого типа. Один из них — это неровность стен и полов. Устранить такой недостаток несложно, выполнив выравнивание и обеспечив дополнительную звукоизоляцию.
Технологические отличия планировки П44Т 25
Планировка П44Т 25 с размерами, описанными ниже, — это современная и усовершенствованная разновидность планировки, применяемая для жилых зданий высотой в 25 этажей с увеличением площадей квартир. В этом ширина шага стен в поперечном сечении больше, а трехкомнатные квартиры оснащены дополнительным санузлом.
Технологические отличия П44Т 25 состоят в повышенной этажности с увеличенным до трех количеством лифтов с грузоподъемностью двух из них по 630 кг и одного — 400 кг. Увеличена площадь кухни до 9 кв. м в однокомнатных; до 15,9 кв. м в двухкомнатных линейных; до 13,8 кв. м — в трехкомнатных и больших Общие площади 1-/2-/3-комнатных квартир составляют 37,4-38,8/51,7-63,4 /77-84,6 кв. м соответственно.
Эркеры в домах П44Т
П44Т — планировка с размерами, указанными выше, все чаще предусматривает использование эркеров, делая квартиры не только эстетически более привлекательными, но и увеличивая площадь помещения. Часть оконного пространства выносится на внешний фасад в виде выступа трапециевидной или другой формы, таким образом увеличивая объем помещения. Наиболее часто такой метод используется в кухнях. Благодаря эркерам помещение получает дополнительную освещенность, увеличенное пространство, а фасад дома выглядит более привлекательным. Выступы могут быть различной формы: прямоугольной, треугольной, многоугольной или округлой.
Возможно использование и оформление эркера как отдельной зоны, тогда ее отделяют от основного помещения барной стойкой или визуальной перегородкой, например, ширмой. Заслуженной популярностью также пользуется усеченный вариант — полуэркер.
Дизайнерские решения для кухонь или комнат с эркером могут быть намного интереснее обычных.
П44Т — планировка с размерами, которые прекрасно подходят для комфортной жизни, на сегодняшний день является самой распространенной в многоэтажных жилых домах. Архитекторы и проектировщики, работавшие над решением задач максимального удобства квартир, не только реализовали их в проекте, но и сделали планировку интересной и оригинальной.
Эти размеры были сняты личной мной в моей квартире на стадии окончания монтажа дома. По поводу размеров стоит отметить, что чем выше этаж, тем больше площадь квартиры так, как стены на верхних этажах более темные. В моем случае площадь квартиры больше на 0.5 квадратных метров от площади указанной в предварительном договоре купли-продажи квартиры и это более приятно, чем получить минус в площади квартиры расположенной на одном из нижних этаже.
Теперь перейдем непосредственно к планировке квартиры и сравним ее с другим предложением трехкомнатной квартиры в доме серии 111-М от компании ГВСУ. Обмеры трехкомнатной квартиры представлены на следующем рисунке:
Сравнение 3-х комнатных квартир серии П-44Т и 111-М
Площадь у этих квартир практически одинаковая — кому что больше нравиться. Это дело вкуса и потребностей, но мне больше понравилась планировка П-44Т. Почему?
1. Расположение Санузла.
В П44-Т санузел расположен в коридоре около прихожей, а в 111-м между двумя комнатами. Во втором варианте в комнатах около санузла всегда будет слышно шум воды, открывающихся и закрывающихся дверей, что будет нарушать тишину в этих комнатах.
2. Кухня.
В П44-т и 111-М кухни имеют похожие площади, но в первом варианте кухня с эркером. Благодаря эркеру на кухне будет всегда светло, кухня будет иметь более красивый вид.
3. Коридор.
В П-44т коридор более широкий и короткий, что позволит установить в нем хороший шкаф для не сезонной одежды и других вещей, а в 111-м коридор узкий и длинный, что не позволяет воспользоваться его площадью с пользой.
4. Комнаты
В П-44Т мне понравилось то, что комнаты более широкие, что позволяет более полноценно использовать их площади, а в 111-М комнаты довольно узкие, что не позволит расставлять мебель по обе стороны комнат. Так же в П-44Т все комнаты разных размеров, благодаря этому у Вас будет больше «маневров» в выборе назначений каждой из трех комнат.
5. Балконы
В П-44Т два довольно просторных балконов, а в 111-м он один. Стоит обратить внимание, что стоимость квадратного метра холодных помещений, как правило, наполовину ниже жилого, а это значит, что за балконы Вы платите в два раза меньше и при этом получаете больше квадратных метров.
6. Вентиляц ионные короба
Расположение вентиляционных коробов и в том и другом варианте довольно удачное, но обратите внимание на то, что в П-44т короб расположен в коридоре и если дом выше 17 этажей, то плюс превращается в минус, так как появляется второй короб рядом с первым и коридор напротив санузла становиться узким^
Если у Вас возникли вопросы, то задавайте их в комментариях — я обязательно на них отвечу!
П-44Т планировка с размерами
Планировки квартир в П44Т с вариантами перепланировки
Планировки двухкомнатных квартир серии П 44т
Двушка распашонка
Обычно имеет площадь порядка 60-64 кв.
м. Кухня имеет большой эркер, а каждая из комнат по просторному балкону. По сути, это та же трешка только с «откусанной» одиннадцатиметровой комнатой и примыкающим к ней участком коридора.
Линейная двушка П-44Т
Площадь односторонних двухкомнатных квартир колеблется в районе 52 кв.м (51-53 кв.м). В них маленькие коридоры и балконы.
Однокомнатная квартира П-44 Т
Площадь однушек в П-44Т составляет порядка 36-38 кв.м. В них маленький балкон и совмещенный санузел.
Трехкомнатные квартиры П-44Т
По площадям и конфигурациям трехкомнатных квартир в серии П-44Т наблюдается наибольший разброс (примерно от 73 до 86 метров). Планировочных решений также существует очень много. Кухни в трешках угловых секций не имеют эркеров, а их площадь обычно не превышает 10 метров. В то же время 3 комнатные квартиры в рядовых и торцовых секциях П-44Т могут похвастаться кухнями с эркером и общей площадью от 12 до 14 кв.м.
Трешка с эркером в комнате (торцевая квартира п44т)
планировка с размерами.
Эркеры в домах П44ТМатериал стен: панель с облицовкой «под кирпич»
Количество секций (подъездов): от 1. Иногда несколько подъездов в одном корпусе – это блок-секции серии П-44Т, а другие (центральные и/или угловые) – из блок-секций других серий: П-44К, П-44ТМ/25 (ТМ-25)
Количество этажей: 9-25, наиболее распространенные варианты – 14, 17. Первый этаж чаще всего жилой
Высота потолков: 2.70 м.
Лифты: пассажирский 400 кг и грузопассажирский 630 кг, в 20-25-этажных секциях (подъездах) – 2 грузопассажирских и пассажирский (модификация получила название П-44Т/25)
Балконы: во всех квартирах, начиная со 2-го – 3-го этажа застекленные лоджии, в 2- и 3-комнатных квартирах также эркеры и полуэркеры
Количество квартир на этаже: 4
Годы строительства: с 1997 по наст. время
Панельные дома типовой серии П-44Т в Москве строились как в новых районах массовой застройки: Марьинский Парк, Люблино, Северное и Южное Бутово, Митино, Новокосино, Новое Кожухово, Жулебино, Некрасовка, пос.
Северный, Ходынка, так и в старых районах, где осуществлялся и осуществляется массовый снос пятиэтажек, и ветхих зданий: Ховрино, Коптево, Бескудниково, Дегунино, Свиблово, Медведково, Юрлово, Алексеево, Измайлово, Лефортово, Перово, Нагатино, Южное Чертаново, Зюзино, Черёмушки, Солнцево, Очаково, Кунцево, Фили, Щукино, Зеленоград, ул. 1905 года, ул. Борисовсие Пруды, Нижегородская ул. Также в ряде др. районов (в т. ч. в ЦАО) дома серии П-44 построены точечно
В Московской области новостройки серии П-44Т построены и строятся в городах Железнодорожный, Балашиха (мкр. 1 Мая, мкр. 22 «Балашиха-Парк» и др.), Лобня, Красногорск, Люберцы, Московский, Котельники, Реутов (в т. ч. мкр. Новокосино-2), Одинцово (в т. ч. Немчиновка), Химки, Щербинка, а также в пос. Медвежьи Озёра (Щёлковский район), пос. Голубое и дер. Брёхово (Солнечногорский район), дер. Пыхтино и ЖК «Бутово-Парк» (Ленинский район)
Количество построенных корпусов в Москве: около 600, в Московской области – около 200 (с учетом строящихся).
Серия П-44Т – самая распространенная в Москве среди всех современных типовых серий домов. Количество муниципальных домов, построенных для переселенцев из сносимого фонда, для молодых семей и т. п. – около 50%
Нормативный срок эксплуатации дома (по информации производителя) – 100 лет
Площади 1-комнатных квартир: общая: 37-40 кв. м., жилая: 19 кв. м., кухня: 7.4-8.4 кв. м. (в 25-этажной модификации – 9 кв. м)
Площади 2-комнатных квартир: общая: 52-64 кв. м., жилая: 32-34 кв. м., кухня: 8.3-13.2 кв. м. (в 25-этажной модификации – 12.8-13.8 кв. м)
Площади 3-комнатных квартир: общая: 70-84 кв. м., жилая: 44-54 кв. м., кухня: 10-13.2 кв. м.
Все комнаты в квартирах домов серии П-44Т изолированные
Санузлы: в 1-комнатных квартирах – совмещенные, в 2- и 3-комнатных квартирах – раздельные, ванны: стандартные, длиной 170 см.
Лестницы: незадымляемые, в 20-25-этажных секциях (П-44Т/25) оснащены общими балконами. Мусоропровод: с загрузочным клапаном на каждом этаже
Тип кухонной плиты: электрическая.
Вентиляция: естественная вытяжная, вентблоки в санузле и в коридоре
Стены: наружные железобетонные трехслойные панели (бетон – утеплитель полистирол – бетон) общей толщиной 30 см (теплоизоляция которых, по данным производителя, эквивалентна кирпичной стене толщиной 90 см.) Межквартирные и межкомнатные несущие – железобетонные панели толщиной 16 и 18 см. Перегородки – гипсокартонные толщиной 8 см. Перекрытия – крупноразмерные («на комнату») железобетонные плиты толщиной 14 см.
Несущие стены: продольные межквартирные (а также межкомнатные в торцевых квартирах–«распашонках») и поперечные все (межквартирные, межкомнатные и межбалконные)
Тип секций: торцевые, рядные (рядовые, П-44-1) и поворотные (угловые). Подъезд, где расположена электрощитовая, имеет вход с 2-х сторон
Количество шагов в секции (подъезде): 7, ширина шага (расстояние между двумя соседними несущими стенами): 300 см (в 3-х центральных пролетах каждой секции), 360 см (в остальных)
Варианты цветов внешних стен: темно-оранжевый, светло-рыжий, песочный, нижние этажи – серый с отделкой под камень, эркеры и полуэркеры – белый
Тип кровли: плоско-скатная с черепицей BRAAS ДСК1.
Технический этаж: над верхним жилым этажом
Отличительные особенности: серия домов П-44Т отличается от предшественницы – серии П-44 (которая строилась в 1979-2000 гг.) повышенной теплоизоляцией стен, увеличенными площадями кухонь за счет выноса вентиляционного короба в коридор, эркерами, а также узнаваемой наружной отделкой под кирпич
Иные достоинства: отопительные приборы с регуляторами температуры, медная электропроводка, горячее водоснабжение с верхним разливом, мировые стандарты по капитальности и огнестойкости (1-е классы), быстрые темпы строительства (1 этаж за 3 дня): эксперты www.сайт не выявили ни одного случая долгостроя домов этой серии
Недостатки: качество монтажа отдельных элементов наружных стен в некоторых корпусах, узкая меньшая комната в 2-комнатных квартирах–«линейках» (с окнами на 1 сторону)
Производитель: Московский домостроительный комбинат №1 (ДСК-1)
Проектировщик: МНИИТЭП (Московский научно-исследовательский и проектный институт типологии и экспериментального проектирования)
Конструктивные характеристики и внешний вид домов типовой серии П-44Т во многом схожи с домами серий, П-44ТМ, П-44К
Квартиры в новостройках серии П-44Т можно приобрести также с муниципальной отделкой
Первый дом серии П-44Т построен в 1997 г.
на ул. Маршала Василевского (Щукино). Один из самых узнаваемых в Москве разноэтажный жилой комплекс со шпилями на Рубцовской набережной Яузы (проект И-1774) построен из блок-секций серий П-44Т и П-44М
В 2005 г. на базе типовой серии П-44Т был разработан проект типовых блок-секций серии П-44К, где в каждой секции на 1 шаг меньше – 6 шагов («6-модульник»), и, соответственно, только 1- и 2-комнатные квартиры. В настоящее время в черте МКАД эта серия строится более активно
Также был разработан 5-модульник (5-шаговая версия П-44Т), где 1-комнатные квартиры и вовсе представляют собой так называемые студии общей площадью 23-28 кв. м. В массовое производство 5-модульник (эксперты www.сайт приняли для него условное название П-44-5М) пока не пошел
Рейтинг сайт типовой серии П-44Т: 8.2 (по 10-балльной шкале)
Фото: www..dsk1.ru, www.morton.ru
Серия П-44Т
Годы строительства: с 1997 по наст. время
Материал стен: панель с облицовкой «под кирпич»
Количество секций (подъездов): 1-8
Количество этажей: 9-25, наиболее распространенные варианты — 14, 17
Высота потолков: 2.
70-2.75 м.
Лифты: пассажирский и грузопассажирский, в 20-25-этажных секциях (подъездах) — 2 грузопассажирских и пассажирский
Балконы: застекленные лоджии в 1-комнатных квартирах. Застекленные лоджии и эркеры в 2- и 3-комнатных квартирах (в торцевых и угловых 2- и 3-комнатных квартирах также полуэркеры)
Количество квартир на этаже : 4
Панельные дома типовой серии П-44Т в Москве строились как в новых районах массовой застройки: Марьинский Парк, Северное и Южное Бутово, Солнцево, Митино, пос. Северный, Новокосино, Новое Кожухово, Некрасовка, Жулебино, Люблино, так и в старых районах, где производился/производится массовый снос пятиэтажек, ветхого и некомфортного жилья: Щукино, Зеленоград, Ховрино, Бескудниково, Коптево, Свиблово, Медведково, Измайлово, Лефортово, Перово, Нагатино, Южное Чертаново, Зюзино, Черёмушки, Кунцево и многих других. Также дома серии П-44Т во многих районах строились точечно.
В Московской области новостройки серии П-44Т построены/строятся в городах Балашиха, Железнодорожный, Лобня, Красногорск, Люберцы, Московский, Котельники, Реутов, Одинцово, Химки, Щербинка, а также в пос.
Медвежьи Озёра, пос. Голубое, дер. Брёхово, дер. Пыхтино.
Количество построенных домов в Москве: около 600, в Московской области — около 200. На рынке новостроек Москвы и Подмосковья эта серия одна из самых распространенных. В то же время доля социальных домов — около 50%.
Нормативный срок эксплуатации дома (по данным производителя — ДСК-1) — 100 лет
Площади 1-комнатных квартир (4 типоразмера): общая: 37-39 кв. м., жилая: 19 кв. м., кухня: 7-8.4 кв. м.
Площади 2-комнатных квартир (4 типоразмера): общая: 51-61 кв. м., жилая: 30-34 кв. м., кухня: 8.3-13.2 кв. м.
Площади 3-комнатных квартир (6 типоразмеров): общая: 70-84 кв. м., жилая: 44-54 кв. м., кухня: 10-13 кв. м.
Все комнаты в квартирах домов серии П-44Т изолированные
Санузлы : в 1-комнатных квартирах — совмещенные, в 2- и 3-комнатных квартирах — раздельные, ванны: стандартные, длиной 170 см.
Лестницы: незадымляемые. Мусоропровод: с загрузочным клапаном на каждом этаже
Тип кухонной плиты: электрическая
Стены: наружные железобетонные трехслойные панели (бетон — утеплитель полистирол — бетон) общей толщиной 30 см (теплоизоляция которых равна кирпичной стене толщиной 90 см.
) Межквартирные и межкомнатные несущие — железобетонные панели толщиной 16 и 18 см. Перегородки — гипсокартонные толщиной 8 см. Перекрытия — крупноразмерные («на комнату») железобетонные плиты толщиной 14 см.
Несущие стены: продольные межквартирные и поперечные все (межквартирные и межкомнатные)
Тип секций: торцевые, рядные и поворотные (угловые). Подъезд, где расположена электрощитовая, имеет вход с 2-х сторон
Количество шагов в секции (подъезде) : 7, ширина шага (расстояние между двумя соседними несущими стенами): 300 см (в 3-х центральных пролетах каждой секции), 360 см (в остальных)
Облицовка, штукатурка наружных стен: облицовка «под кирпич», нижние этажи — облицовка «под камень»
Варианты цветов внешних стен: темно-оранжевый, светло-рыжий, нижние этажи — серый, эркеры и полуэркеры — белый
Тип кровли: плоско-скатная или скатная черепичная производства BRAAS ДСК-1, цвета: зеленый, коричневый
Отличительные особенности: серия домов П-44Т отличается от предшественницы — серии П-44 (которая строилась в 1979-1999 гг.
) повышенной теплоизоляцией стен, вентиляционным коробом в прихожей (а не на кухне), остеклением лоджий, эркерами и полуэркерами, а также узнаваемой наружной отделкой под кирпич
Иные достоинства: повышенная звукоизоляция, отопительные приборы с регуляторами температуры, медная электропроводка, технология «закрытого стыка (шва)», мировые стандарты по капитальности и огнестойкости (1-е классы), современная система безопасности (реагирование на открытие дверей подвала, электрощитовой, чердака, шахты лифта; система оповещения о затоплении, пожаре). Быстрые темпы строительства (1 этаж за 3 дня): специалисты www .1 Dom . ru не выявили ни одного случая долгостроя домов этой серии.
Недостатки : качество монтажа наружных стен в отдельных корпусах
Производитель : ДСК-1 (крупнейшее предприятие строительной индустрии России)
Проектировщик : МНИИТЭП (Московский НИИ типологии и экспериментального проектирования)
Конструктивные характеристики и внешний вид домов типовой серии П-44Т во многом схожи с домами серий П-44М,
Первый дом серии П-44Т построен в 1997 г.
на ул. Маршала Василевского (Щукино). Один из самых узнаваемых в Москве разноэтажный ступенчатый жилой комплекс со шпилями на Рубцовской набережной, по форме напоминающий замок, построен из блок-секций серии П-44Т
Дома серии П-44Т строить начали с 1997 года и строят по сей день так как их срок эксплуатации достигает до 100 лет. Эти многоэтажные дома от 9 до 25 этажей строят в Москве и московской области. Обычно на одной лестничной площадке располагаются одна однокомнатная квартира, две двухкомнатных квартиры и одна трёхкомнатная квартира.
Дома П44Т планировки квартир
Ещё бываю угловые секции на которых на одной лестничной площадке располагаются две трёхкомнатные квартиры и две однокомнатные квартиры.
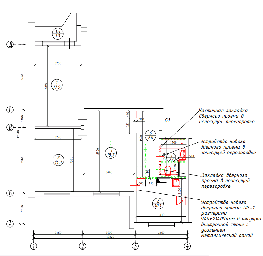
Осуществить перепланировку квартир в типовых домах можно по типовому проекту
Так как дома серии П-44Т имеют разную этажность то и площадь однокомнатных, двухкомнатных и трёхкомнатных квартир в разных домах тоже разная. Так в однокомнатных общая площадь может быть от 37 до 39 кв.
м, в двухкомнатных от 51 до 61 кв.м, а в трёхкомнатных от 70 до 84 кв.м. Соответственно и площадь кухни и жилая площадь в разных домах будут отличаться. Высота от пола до потолка в квартирах от 2.70 до 2.75 метров. Туалет и ванная комната в трёхкомнатных и двухкомнатных квартирах раздельные, а в однокомнатных квартирах совмещённые. Ванная в ванной комнате установлена стандартной длины 170 см. Вентиляционные каналы естественной вентиляции проходят на кухне и в туалете. В этих домах стены делают из железобетонных панелей которые вместе с утеплителем имеют толщину 30 см и межквартирные и межкомнатные стены тоже делают из железобетонных панелей толщиной 16 или 18 см, а перегородки делают из гипсокартона толщиной 8 см. Плиты перекрытия делают на всю комнату толщиной 14 см. В квартирах этих домов очень хорошая звукоизоляция, а система отопления снабжена регуляторами температуры. Ниже представлены некоторые типовые варианты перепланировки П44Т.
Однокомнатных квартир
Стандартная планировка однокомнатной квартиры состоит из прихожей, небольшого коридора, большой комнаты, кухни и совмещённого туалета с ванной.
Дом серия П 44Т планировка однокомнатной квартиры
Перепланировка панельной квартиры возможна по одному из типовых проектов которые приведены ниже.
Перепланировка однокомнатной квартиры П 44
В этом варианте заделывается коридор по которому можно было пройти на кухню и вместо коридора делается небольшая кладовка. В прихожей делается встроенный шкаф. Вход в ванную переносится из коридора в прихожую, а вход на кухню делается прямо из комнаты.
Перепланировка П 44 однокомнатная квартира
В этом варианте заделывается коридор по которому можно было пройти на кухню и вместо него делается туалет. Прихожую увеличиваем за счёт уменьшения ванной комнаты. В прихожей делается встроенный шкаф и небольшая кладовка. Вход в ванную и в туалет будет осуществляться прямо из прихожей, а вход на кухню будет осуществляться через комнату.
В домах П 44Т перепланировка однокомнатных квартир
В этом варианте коридор по которому можно было пройти на кухню совмещается с ванной комнатой.
В прихожей делается небольшая кладовка. Вход на кухню будет осуществляться через комнату.
Двухкомнатных квартир
Стандартная планировка двухкомнатной квартиры состоит из небольшой узкой прихожей, широкого коридора из которого можно попасть в обе комнаты, на кухню и в туалет с ванной комнатой.
Планировка квартир П 44Т
Ниже представлены некоторые типовые перепланировки квартир.
В доме серии П44Т перепланировка двухкомнатной квартиры
В этом варианте ванную комнату расширили за счёт коридора по которому можно было попасть на кухню и в нём же установили дополнительный туалет, а вход в старый туалет сделали из кухни. Одну комнату сделали проходной чтобы через неё можно было попасть на кухню. Вторую комнату уменьшили на ширину созданной кладовки и небольшого коридора по которому можно попасть в кладовку и во вторую комнату.
Перепланировка квартир П 44 с объединением туалета и ванны
В этом варианте произвели перепланировку ванной и туалета увеличив их площадь за счёт коридора по которому можно было попасть на кухню.
Одну из комнат сделали проходной чтобы через неё попадать на кухню, а вторую комнату оставили без изменений.
Перепланировка квартир П 44Т при установке джакузи
В этом варианте также как и предыдущем совместили туалет с ванной комнатой и увеличили её площадь за счёт коридора. Но из ванной убрали стандартную ванну и поставили джакузи. Вход на кухню сделали через комнату сделав её проходной.
Трёхкомнатных квартир
Стандартная планировка трёхкомнатной квартиры состоит из трёх отдельных комнат, большой кухни, отдельных туалета и ванной комнаты, прихожей и коридора из которого можно попасть во все помещения.
Планировка квартир П44Т
Перепланировка трехкомнатной квартиры п 44 может быть сделана по одному из типовых проектов которые приведены ниже.
Один из вариантов перепланировки трехкомнатной квартиры П44Т
В этом варианте одну из комнат увеличиваем за счёт части коридора но эта комната будет проходной так как только через неё можно будет пройти в другие две комнаты и на кухню.
За счёт другой части коридора увеличится площадь ванной комнаты и в ней можно установить вместо ванны джакузи. У входа останется небольшая прихожая из которой можно будет попасть в ванную комнату, туалет и проходную комнату.
Перепланировка 3 комнатной квартиры П44Т в четырёхкомнатную
В этом варианте одну из комнат увеличиваем за счёт части коридора но эта комната будет проходной так как только через неё можно будет пройти в другие две комнаты и на кухню. За счёт другой части коридора увеличится площадь ванной комнаты. В одной из отдельных комнат устанавливается перегородка с дверью и в итоге получится дополнительная небольшая комната которую можно использовать под кабинет. Из прихожей можно будет пройти в ванную комнату, туалет и проходную комнату.
Перепланировка П 44 трехкомнатная
В этом варианте увеличивается площадь ванной комнаты за счёт части коридора по которому можно было попасть на кухню и делается дополнительно туалет. Вход на кухню будет проходить через небольшую смежную с ней комнату.
Можно поэкспериментировать с дверями в две отдельные комнаты.
Эти размеры были сняты личной мной в моей квартире на стадии окончания монтажа дома. По поводу размеров стоит отметить, что чем выше этаж, тем больше площадь квартиры так, как стены на верхних этажах более темные. В моем случае площадь квартиры больше на 0.5 квадратных метров от площади указанной в предварительном договоре купли-продажи квартиры и это более приятно, чем получить минус в площади квартиры расположенной на одном из нижних этаже.
Теперь перейдем непосредственно к планировке квартиры и сравним ее с другим предложением трехкомнатной квартиры в доме серии 111-М от компании ГВСУ. Обмеры трехкомнатной квартиры представлены на следующем рисунке:
Сравнение 3-х комнатных квартир серии П-44Т и 111-М
Площадь у этих квартир практически одинаковая — кому что больше нравиться. Это дело вкуса и потребностей, но мне больше понравилась планировка П-44Т. Почему?
1. Расположение Санузла.
В П44-Т санузел расположен в коридоре около прихожей, а в 111-м между двумя комнатами. Во втором варианте в комнатах около санузла всегда будет слышно шум воды, открывающихся и закрывающихся дверей, что будет нарушать тишину в этих комнатах.
2. Кухня.
В П44-т и 111-М кухни имеют похожие площади, но в первом варианте кухня с эркером. Благодаря эркеру на кухне будет всегда светло, кухня будет иметь более красивый вид.
3. Коридор.
В П-44т коридор более широкий и короткий, что позволит установить в нем хороший шкаф для не сезонной одежды и других вещей, а в 111-м коридор узкий и длинный, что не позволяет воспользоваться его площадью с пользой.
4. Комнаты
В П-44Т мне понравилось то, что комнаты более широкие, что позволяет более полноценно использовать их площади, а в 111-М комнаты довольно узкие, что не позволит расставлять мебель по обе стороны комнат. Так же в П-44Т все комнаты разных размеров, благодаря этому у Вас будет больше «маневров» в выборе назначений каждой из трех комнат.
Если у Вас возникли вопросы, то задавайте их в комментариях — я обязательно на них отвечу!
В сегодняшнем городском домостроительстве наиболее распространенной является планировка П44Т, которая имеет ряд безусловных достоинств. Еще в семидесятые годы было начато строительство новых домов серии П44 согласно типовым проектам. По сути, это был первый шаг к дальнейшему развитию и внедрению более современной технологии строительства и планирования жилого пространства.
Особенности планировки П44Т
П44T — планировка с размерами, отвечающими требованиям настоящего времени, предлагает около десяти решений. Разработаны варианты жилых секций для обычных и угловых квартир. Эта модель планирования применяется для жилых многоэтажных домов высотой от 9 до 25 этажей. Для комфортного подъема жильцов и мебели на нужный этаж предусмотрено как минимум два лифта: пассажирский и грузовой.
Современные идеи планирования
Основная идея планировки П44Т — это максимальное использование пространства.
В этом контексте можно привести пример удачного инженерного решения, которое позволило увеличить площадь кухни. Такие важные для каждой хозяйки квадратные метры кухни были освобождены за счет размещения короба вентиляции в коридоре. П44Т — планировка с размерами, предполагающими высоту помещений 2,7 м, что обеспечивает комфорт и хороший доступ дневного света в квартиры. Современные идеи планирования дали возможность использования чердачных помещений. На планировка квартиры П44Т с размерами шага поперечных стен, увеличенных до 4,2 м, дает возможность прекрасного благоустройства помещений. Часто их совмещают с обычным этажом, в результате чего получается двухэтажная квартира.
Преимущества П44Т
Дом П44Т планировки с размерами внутренних перекрытий 0,14 м и 0,18 м надежен и имеет длительный срок эксплуатации. Износостойкость и устойчивость наружных стен перед внешними воздействиями обеспечивается отделкой керамической плиткой толщиной 0,30 м, имитирующей кирпич, которая надежно закрепляется на фасаде.
Использование качественных стеклопакетов гарантирует хорошую теплоизоляцию, защиту от шума и создает уют. Оснащение различными современными системами контроля дает гарантию безопасности в случае пожара и при угрозе затопления. Также в такого типа устанавливаются датчики открытия дверей технических помещений и электрических счетчиков. П44Т — планировка с размерами, соответствующими типовым нормам данных проектов, предполагает прокладку проводов электричества внутри панелей. Это увеличивает безопасность эксплуатации и защиту самих проводов во время каких-либо ремонтных или строительных работ.
Очень важными преимуществами дома с планировкой П44Т являются короткие сроки возведения и длительный период эксплуатации. Гарантированный специалистами срок службы составляет более ста лет.
Планировка П44Т с размерами стен гораздо больше, чем в зданиях, строящихся в предыдущие годы, обеспечивает дополнительную надежность конструкции, лучшую звукоизоляцию квартир и хорошую теплоизоляцию помещений.
При строительстве используют высококачественный тяжелый бетон, который отвечает за повышенную износостойкость.
Недостатки П44Т
Наряду с целым рядом преимуществ, можно назвать некоторые недостатки, встречающиеся в домах такого типа. Один из них — это неровность стен и полов. Устранить такой недостаток несложно, выполнив выравнивание и обеспечив дополнительную звукоизоляцию.
Технологические отличия планировки П44Т 25
Планировка П44Т 25 с размерами, описанными ниже, — это современная и усовершенствованная разновидность планировки, применяемая для жилых зданий высотой в 25 этажей с увеличением площадей квартир. В этом ширина шага стен в поперечном сечении больше, а трехкомнатные квартиры оснащены дополнительным санузлом. Технологические отличия П44Т 25 состоят в повышенной этажности с увеличенным до трех количеством лифтов с грузоподъемностью двух из них по 630 кг и одного — 400 кг. Увеличена площадь кухни до 9 кв. м в однокомнатных; до 15,9 кв. м в двухкомнатных линейных; до 13,8 кв.
м — в трехкомнатных и больших Общие площади 1-/2-/3-комнатных квартир составляют 37,4-38,8/51,7-63,4 /77-84,6 кв. м соответственно.
Эркеры в домах П44Т
П44Т — планировка с размерами, указанными выше, все чаще предусматривает использование эркеров, делая квартиры не только эстетически более привлекательными, но и увеличивая площадь помещения. Часть оконного пространства выносится на внешний фасад в виде выступа трапециевидной или другой формы, таким образом увеличивая объем помещения. Наиболее часто такой метод используется в кухнях. Благодаря эркерам помещение получает дополнительную освещенность, увеличенное пространство, а фасад дома выглядит более привлекательным. Выступы могут быть различной формы: прямоугольной, треугольной, многоугольной или округлой. Возможно использование и оформление эркера как отдельной зоны, тогда ее отделяют от основного помещения барной стойкой или визуальной перегородкой, например, ширмой. Заслуженной популярностью также пользуется усеченный вариант — полуэркер.
Дизайнерские решения для кухонь или комнат с эркером могут быть намного интереснее обычных.
П44Т — планировка с размерами, которые прекрасно подходят для комфортной жизни, на сегодняшний день является самой распространенной в многоэтажных жилых домах. Архитекторы и проектировщики, работавшие над решением задач максимального удобства квартир, не только реализовали их в проекте, но и сделали планировку интересной и оригинальной.
Однокомнатная квартира в панельном доме П-44Т
Самые востребованное жильё на рынке недвижимости, это однокомнатные квартиры. Но даже на такую квартиру в Москве и ближайшем Подмосковье копить нужно очень долго. Для большинства молодых семей, однокомнатная квартира это первое жильё. И от выбора удачной планировки квартиры, будет зависеть ваше комфортное проживание. Однушки в панельных домах серии П44т имеют один вариант планировки.
Прихожая — для однокомнатной я бы сказал в полне приличная прихожая.
В которой можно поиграться с расстановкой мебели. Размер прихожей составляет 7.8 метра Коридор широкий.
При входе в квартиру, в прихожей с двух сторон имеются зоны. Которые можно эффективно использовать по назначению. Как видно из фото, в малой зоне отлично впишется вполне просторный шкаф купэ с размерами длина 1.40 см и глубиной возьмём 50см.
Или разместить половину шкафа, а на другой половинке повесить вешалки.
Неплохо получится, если на этом месте сделать гардеробную
По другой стороне входной двери в прихожей, можно установить угловой шкаф
Кому темные шкафы не нравятся, вот так будет смотреться светлый шкаф.
А если нужно больше пространства на кухне, рядом с гардеробной можно разместить холодильник
Очень много людей, живут в однокомнатной квартире семьями, двое родителей, один или два ребёнка. По этому нужно постараться все шкафы вынести в прихожую. Ведь комната у нас всего одна, и каждому нужно дать свой угол.
Коридор — двигаемся дальше, и после прихожей нас встречает коридор, который очень сильно напоминает планировку из двухкомнатной квартиры распашонки. Посмотрите на левый угол. Точь в точь, и вытяжка расположена на том же месте только в углу меньше места по комнатной стене.
Можно поставить маленький комодик в угол.
Для более рационального использования места, ставим в угол коридора шкафчик.
А иногда получается поставить и холодильник в угол.
В коридоре нас встречает совместная ванная комната с туалетом.
Санузел – в однокомнатной квартире П44Т совмещенный с ванной комнатой. И все вместе составляет 3.7 кв метра
С левой стороны установлен унитаз и стиральная машинка.
По правую сторону санузла, разместились ванная и умывальник с зеркалом.
Кто не любит нежиться в ванной, заменяем на душевую кабинку. Над стиральной машинкой можно повесить навесной шкафчик.
Комната – в однокомнатной квартире панельного дома П44Т имеет размер 19.
8 кв метра. Дверной проем в комнату 90 см. И выход на небольшой балкон в простонародье получивший название лодочка. Проектировщики дома молодцы, не поставили дверь в комнату с угла, а разделили комнату на две зоны. На фото ниже видно. Если войти в комнату у нас будет две зоны. Небольшая зона слева и основная часть справа. Благодаря такой удачной планировки, можно создать интересные решения в интерьере.
Балкон маленький, но все же хватает места сделать на нём небольшой, но довольно вместительный шкафчик.
Кухня в однокомнатной квартире П44Т с натяжкой справляется для небольшой молодой семьи и маленьким ребёнком. Размер кухни 7.34 кв.м. Что бы сэкономить на кухне больше места, можно холодильник разместить в прихожей. Благо прихожая с этим справится.
В заключении делаем вывод: квартира отлично подойдет как для оного человека, так и для небольшой молодой семьи с маленьким ребёнком. Но когда ребенок будет подрастать, лучше конечно рассмотреть варианты о покупке двухкомнатной квартиры линейки
Смотреть фото дизайнов и интерьеров в панельном доме П-44Т
Реальные фото красивых ремонтов и дизайнов
люди интересуются
Впускной механизм бачка с нижней подводкой, странное поведение
ответов 1
Какие размеры окон на балконе однушки п-44т
ответов 1
Стеклянный стол на кухне фото в интерьере
Шторы и тюль на кухне фото в интерьере
Двушка распашонка П44ТОбзор двухкомнатной квартиры распашонки 60 — 64 кв.
метра Панельного дома П-44Т
П-44т планировка с размерами 3-х комнатная квартираОбзор планировки трёхкомнатной квартиры панельного дома серии П-44Т
Дом П44Т: планировка с размерами
В сегодняшнем городском домостроительстве наиболее распространенной является планировка П44Т, которая имеет ряд безусловных достоинств. Еще в семидесятые годы было начато строительство новых домов серии П44 согласно типовым проектам. По сути, это был первый шаг к дальнейшему развитию и внедрению более современной технологии строительства и планирования жилого пространства.
Особенности планировки П44Т
П44T — планировка с размерами, отвечающими требованиям настоящего времени, предлагает около десяти решений. Разработаны варианты жилых секций для обычных и угловых квартир. Эта модель планирования применяется для жилых многоэтажных домов высотой от 9 до 25 этажей.
Для комфортного подъема жильцов и мебели на нужный этаж предусмотрено как минимум два лифта: пассажирский и грузовой.
Современные идеи планирования
Основная идея планировки П44Т – это максимальное использование пространства. В этом контексте можно привести пример удачного инженерного решения, которое позволило увеличить площадь кухни. Такие важные для каждой хозяйки квадратные метры кухни были освобождены за счет размещения короба вентиляции в коридоре. П44Т — планировка с размерами, предполагающими высоту помещений 2,7 м, что обеспечивает комфорт и хороший доступ дневного света в квартиры. Современные идеи планирования дали возможность использования чердачных помещений. На мансардных этажах планировка квартиры П44Т с размерами шага поперечных стен, увеличенных до 4,2 м, дает возможность прекрасного благоустройства помещений. Часто их совмещают с обычным этажом, в результате чего получается двухэтажная квартира.
Преимущества П44Т
Дом П44Т планировки с размерами внутренних перекрытий 0,14 м и 0,18 м надежен и имеет длительный срок эксплуатации.
Износостойкость и устойчивость наружных стен перед внешними воздействиями обеспечивается отделкой керамической плиткой толщиной 0,30 м, имитирующей кирпич, которая надежно закрепляется на фасаде. Использование качественных стеклопакетов гарантирует хорошую теплоизоляцию, защиту от шума и создает уют. Оснащение различными современными системами контроля дает гарантию безопасности в случае пожара и при угрозе затопления. Также в многоэтажных домах такого типа устанавливаются датчики открытия дверей технических помещений и электрических счетчиков. П44Т — планировка с размерами, соответствующими типовым нормам данных проектов, предполагает прокладку проводов электричества внутри панелей. Это увеличивает безопасность эксплуатации и защиту самих проводов во время каких-либо ремонтных или строительных работ.
Очень важными преимуществами дома с планировкой П44Т являются короткие сроки возведения и длительный период эксплуатации. Гарантированный специалистами срок службы составляет более ста лет.
Планировка П44Т с размерами стен гораздо больше, чем в зданиях, строящихся в предыдущие годы, обеспечивает дополнительную надежность конструкции, лучшую звукоизоляцию квартир и хорошую теплоизоляцию помещений. При строительстве используют высококачественный тяжелый бетон, который отвечает за повышенную износостойкость.
Недостатки П44Т
Наряду с целым рядом преимуществ, можно назвать некоторые недостатки, встречающиеся в домах такого типа. Один из них – это неровность стен и полов. Устранить такой недостаток несложно, выполнив выравнивание и обеспечив дополнительную звукоизоляцию.
Технологические отличия планировки П44Т 25
Планировка П44Т 25 с размерами, описанными ниже, – это современная и усовершенствованная разновидность планировки, применяемая для жилых зданий высотой в 25 этажей с увеличением площадей квартир. В этом типе домов ширина шага стен в поперечном сечении больше, а трехкомнатные квартиры оснащены дополнительным санузлом. Технологические отличия П44Т 25 состоят в повышенной этажности с увеличенным до трех количеством лифтов с грузоподъемностью двух из них по 630 кг и одного — 400 кг.
Увеличена площадь кухни до 9 кв. м в однокомнатных; до 15,9 кв. м в двухкомнатных линейных; до 13,8 кв. м – в трехкомнатных и больших двухкомнатных квартирах. Общие площади 1-/2-/3-комнатных квартир составляют 37,4–38,8/51,7–63,4 /77–84,6 кв. м соответственно.
Эркеры в домах П44Т
П44Т — планировка с размерами, указанными выше, все чаще предусматривает использование эркеров, делая квартиры не только эстетически более привлекательными, но и увеличивая площадь помещения. Часть оконного пространства выносится на внешний фасад в виде выступа трапециевидной или другой формы, таким образом увеличивая объем помещения. Наиболее часто такой метод используется в кухнях. Благодаря эркерам помещение получает дополнительную освещенность, увеличенное пространство, а фасад дома выглядит более привлекательным. Выступы могут быть различной формы: прямоугольной, треугольной, многоугольной или округлой. Возможно использование и оформление эркера как отдельной зоны, тогда ее отделяют от основного помещения барной стойкой или визуальной перегородкой, например, ширмой.
Заслуженной популярностью также пользуется усеченный вариант – полуэркер.
Дизайнерские решения для кухонь или комнат с эркером могут быть намного интереснее обычных.
П44Т — планировка с размерами, которые прекрасно подходят для комфортной жизни, на сегодняшний день является самой распространенной в многоэтажных жилых домах. Архитекторы и проектировщики, работавшие над решением задач максимального удобства квартир, не только реализовали их в проекте, но и сделали планировку интересной и оригинальной.
планировка с размерами. Эркеры в домах П44Т
В сегодняшнем городском домостроительстве наиболее распространенной является планировка П44Т, которая имеет ряд безусловных достоинств. Еще в семидесятые годы было начато строительство новых домов серии П44 согласно типовым проектам. По сути, это был первый шаг к дальнейшему развитию и внедрению более современной технологии строительства и планирования жилого пространства.
Особенности планировки П44Т
П44T — планировка с размерами, отвечающими требованиям настоящего времени, предлагает около десяти решений.
Разработаны варианты жилых секций для обычных и угловых квартир. Эта модель планирования применяется для жилых многоэтажных домов высотой от 9 до 25 этажей. Для комфортного подъема жильцов и мебели на нужный этаж предусмотрено как минимум два лифта: пассажирский и грузовой.
Современные идеи планирования
Основная идея планировки П44Т — это максимальное использование пространства. В этом контексте можно привести пример удачного инженерного решения, которое позволило увеличить площадь кухни. Такие важные для каждой хозяйки квадратные метры кухни были освобождены за счет размещения короба вентиляции в коридоре. П44Т — планировка с размерами, предполагающими высоту помещений 2,7 м, что обеспечивает комфорт и хороший доступ дневного света в квартиры. Современные идеи планирования дали возможность использования чердачных помещений. На планировка квартиры П44Т с размерами шага поперечных стен, увеличенных до 4,2 м, дает возможность прекрасного благоустройства помещений. Часто их совмещают с обычным этажом, в результате чего получается двухэтажная квартира.![]()
Преимущества П44Т
Дом П44Т планировки с размерами внутренних перекрытий 0,14 м и 0,18 м надежен и имеет длительный срок эксплуатации. Износостойкость и устойчивость наружных стен перед внешними воздействиями обеспечивается отделкой керамической плиткой толщиной 0,30 м, имитирующей кирпич, которая надежно закрепляется на фасаде. Использование качественных стеклопакетов гарантирует хорошую теплоизоляцию, защиту от шума и создает уют. Оснащение различными современными системами контроля дает гарантию безопасности в случае пожара и при угрозе затопления. Также в такого типа устанавливаются датчики открытия дверей технических помещений и электрических счетчиков. П44Т — планировка с размерами, соответствующими типовым нормам данных проектов, предполагает прокладку проводов электричества внутри панелей. Это увеличивает безопасность эксплуатации и защиту самих проводов во время каких-либо ремонтных или строительных работ.
Очень важными преимуществами дома с планировкой П44Т являются короткие сроки возведения и длительный период эксплуатации.
Гарантированный специалистами срок службы составляет более ста лет.
Планировка П44Т с размерами стен гораздо больше, чем в зданиях, строящихся в предыдущие годы, обеспечивает дополнительную надежность конструкции, лучшую звукоизоляцию квартир и хорошую теплоизоляцию помещений. При строительстве используют высококачественный тяжелый бетон, который отвечает за повышенную износостойкость.
Недостатки П44Т
Наряду с целым рядом преимуществ, можно назвать некоторые недостатки, встречающиеся в домах такого типа. Один из них — это неровность стен и полов. Устранить такой недостаток несложно, выполнив выравнивание и обеспечив дополнительную звукоизоляцию.
Технологические отличия планировки П44Т 25
Планировка П44Т 25 с размерами, описанными ниже, — это современная и усовершенствованная разновидность планировки, применяемая для жилых зданий высотой в 25 этажей с увеличением площадей квартир. В этом ширина шага стен в поперечном сечении больше, а трехкомнатные квартиры оснащены дополнительным санузлом.
Технологические отличия П44Т 25 состоят в повышенной этажности с увеличенным до трех количеством лифтов с грузоподъемностью двух из них по 630 кг и одного — 400 кг. Увеличена площадь кухни до 9 кв. м в однокомнатных; до 15,9 кв. м в двухкомнатных линейных; до 13,8 кв. м — в трехкомнатных и больших Общие площади 1-/2-/3-комнатных квартир составляют 37,4-38,8/51,7-63,4 /77-84,6 кв. м соответственно.
Эркеры в домах П44Т
П44Т — планировка с размерами, указанными выше, все чаще предусматривает использование эркеров, делая квартиры не только эстетически более привлекательными, но и увеличивая площадь помещения. Часть оконного пространства выносится на внешний фасад в виде выступа трапециевидной или другой формы, таким образом увеличивая объем помещения. Наиболее часто такой метод используется в кухнях. Благодаря эркерам помещение получает дополнительную освещенность, увеличенное пространство, а фасад дома выглядит более привлекательным. Выступы могут быть различной формы: прямоугольной, треугольной, многоугольной или округлой.
Возможно использование и оформление эркера как отдельной зоны, тогда ее отделяют от основного помещения барной стойкой или визуальной перегородкой, например, ширмой. Заслуженной популярностью также пользуется усеченный вариант — полуэркер.
Дизайнерские решения для кухонь или комнат с эркером могут быть намного интереснее обычных.
П44Т — планировка с размерами, которые прекрасно подходят для комфортной жизни, на сегодняшний день является самой распространенной в многоэтажных жилых домах. Архитекторы и проектировщики, работавшие над решением задач максимального удобства квартир, не только реализовали их в проекте, но и сделали планировку интересной и оригинальной.
Дома серии П-44Т строить начали с 1997 года и строят по сей день так как их срок эксплуатации достигает до 100 лет. Эти многоэтажные дома от 9 до 25 этажей строят в Москве и московской области. Обычно на одной лестничной площадке располагаются одна однокомнатная квартира, две двухкомнатных квартиры и одна трёхкомнатная квартира.
Дома П44Т планировки квартир
Ещё бываю угловые секции на которых на одной лестничной площадке располагаются две трёхкомнатные квартиры и две однокомнатные квартиры.
Осуществить перепланировку квартир в типовых домах можно по типовому проекту
Так как дома серии П-44Т имеют разную этажность то и площадь однокомнатных, двухкомнатных и трёхкомнатных квартир в разных домах тоже разная. Так в однокомнатных общая площадь может быть от 37 до 39 кв.м, в двухкомнатных от 51 до 61 кв.м, а в трёхкомнатных от 70 до 84 кв.м. Соответственно и площадь кухни и жилая площадь в разных домах будут отличаться. Высота от пола до потолка в квартирах от 2.70 до 2.75 метров. Туалет и ванная комната в трёхкомнатных и двухкомнатных квартирах раздельные, а в однокомнатных квартирах совмещённые. Ванная в ванной комнате установлена стандартной длины 170 см. Вентиляционные каналы естественной вентиляции проходят на кухне и в туалете. В этих домах стены делают из железобетонных панелей которые вместе с утеплителем имеют толщину 30 см и межквартирные и межкомнатные стены тоже делают из железобетонных панелей толщиной 16 или 18 см, а перегородки делают из гипсокартона толщиной 8 см.
Плиты перекрытия делают на всю комнату толщиной 14 см. В квартирах этих домов очень хорошая звукоизоляция, а система отопления снабжена регуляторами температуры. Ниже представлены некоторые типовые варианты перепланировки П44Т.
Однокомнатных квартир
Стандартная планировка однокомнатной квартиры состоит из прихожей, небольшого коридора, большой комнаты, кухни и совмещённого туалета с ванной.
Дом серия П 44Т планировка однокомнатной квартиры
Перепланировка панельной квартиры возможна по одному из типовых проектов которые приведены ниже.
Перепланировка однокомнатной квартиры П 44
В этом варианте заделывается коридор по которому можно было пройти на кухню и вместо коридора делается небольшая кладовка. В прихожей делается встроенный шкаф. Вход в ванную переносится из коридора в прихожую, а вход на кухню делается прямо из комнаты.
Перепланировка П 44 однокомнатная квартира
В этом варианте заделывается коридор по которому можно было пройти на кухню и вместо него делается туалет.
Прихожую увеличиваем за счёт уменьшения ванной комнаты. В прихожей делается встроенный шкаф и небольшая кладовка. Вход в ванную и в туалет будет осуществляться прямо из прихожей, а вход на кухню будет осуществляться через комнату.
В домах П 44Т перепланировка однокомнатных квартир
В этом варианте коридор по которому можно было пройти на кухню совмещается с ванной комнатой. В прихожей делается небольшая кладовка. Вход на кухню будет осуществляться через комнату.
Двухкомнатных квартир
Стандартная планировка двухкомнатной квартиры состоит из небольшой узкой прихожей, широкого коридора из которого можно попасть в обе комнаты, на кухню и в туалет с ванной комнатой.
Планировка квартир П 44Т
Ниже представлены некоторые типовые перепланировки квартир.
В доме серии П44Т перепланировка двухкомнатной квартиры
В этом варианте ванную комнату расширили за счёт коридора по которому можно было попасть на кухню и в нём же установили дополнительный туалет, а вход в старый туалет сделали из кухни.
Одну комнату сделали проходной чтобы через неё можно было попасть на кухню. Вторую комнату уменьшили на ширину созданной кладовки и небольшого коридора по которому можно попасть в кладовку и во вторую комнату.
Перепланировка квартир П 44 с объединением туалета и ванны
В этом варианте произвели перепланировку ванной и туалета увеличив их площадь за счёт коридора по которому можно было попасть на кухню. Одну из комнат сделали проходной чтобы через неё попадать на кухню, а вторую комнату оставили без изменений.
Перепланировка квартир П 44Т при установке джакузи
В этом варианте также как и предыдущем совместили туалет с ванной комнатой и увеличили её площадь за счёт коридора. Но из ванной убрали стандартную ванну и поставили джакузи. Вход на кухню сделали через комнату сделав её проходной.
Трёхкомнатных квартир
Стандартная планировка трёхкомнатной квартиры состоит из трёх отдельных комнат, большой кухни, отдельных туалета и ванной комнаты, прихожей и коридора из которого можно попасть во все помещения.
Планировка квартир П44Т
Перепланировка трехкомнатной квартиры п 44 может быть сделана по одному из типовых проектов которые приведены ниже.
Один из вариантов перепланировки трехкомнатной квартиры П44Т
В этом варианте одну из комнат увеличиваем за счёт части коридора но эта комната будет проходной так как только через неё можно будет пройти в другие две комнаты и на кухню. За счёт другой части коридора увеличится площадь ванной комнаты и в ней можно установить вместо ванны джакузи. У входа останется небольшая прихожая из которой можно будет попасть в ванную комнату, туалет и проходную комнату.
Перепланировка 3 комнатной квартиры П44Т в четырёхкомнатную
В этом варианте одну из комнат увеличиваем за счёт части коридора но эта комната будет проходной так как только через неё можно будет пройти в другие две комнаты и на кухню. За счёт другой части коридора увеличится площадь ванной комнаты. В одной из отдельных комнат устанавливается перегородка с дверью и в итоге получится дополнительная небольшая комната которую можно использовать под кабинет.
Из прихожей можно будет пройти в ванную комнату, туалет и проходную комнату.
Перепланировка П 44 трехкомнатная
В этом варианте увеличивается площадь ванной комнаты за счёт части коридора по которому можно было попасть на кухню и делается дополнительно туалет. Вход на кухню будет проходить через небольшую смежную с ней комнату. Можно поэкспериментировать с дверями в две отдельные комнаты.
Эти размеры были сняты личной мной в моей квартире на стадии окончания монтажа дома. По поводу размеров стоит отметить, что чем выше этаж, тем больше площадь квартиры так, как стены на верхних этажах более темные. В моем случае площадь квартиры больше на 0.5 квадратных метров от площади указанной в предварительном договоре купли-продажи квартиры и это более приятно, чем получить минус в площади квартиры расположенной на одном из нижних этаже.
Теперь перейдем непосредственно к планировке квартиры и сравним ее с другим предложением трехкомнатной квартиры в доме серии 111-М от компании ГВСУ.
Обмеры трехкомнатной квартиры представлены на следующем рисунке:
Сравнение 3-х комнатных квартир серии П-44Т и 111-М
Площадь у этих квартир практически одинаковая — кому что больше нравиться. Это дело вкуса и потребностей, но мне больше понравилась планировка П-44Т. Почему?
1. Расположение Санузла.
В П44-Т санузел расположен в коридоре около прихожей, а в 111-м между двумя комнатами. Во втором варианте в комнатах около санузла всегда будет слышно шум воды, открывающихся и закрывающихся дверей, что будет нарушать тишину в этих комнатах.
2. Кухня.
В П44-т и 111-М кухни имеют похожие площади, но в первом варианте кухня с эркером. Благодаря эркеру на кухне будет всегда светло, кухня будет иметь более красивый вид.
3. Коридор.
В П-44т коридор более широкий и короткий, что позволит установить в нем хороший шкаф для не сезонной одежды и других вещей, а в 111-м коридор узкий и длинный, что не позволяет воспользоваться его площадью с пользой.
4. Комнаты
В П-44Т мне понравилось то, что комнаты более широкие, что позволяет более полноценно использовать их площади, а в 111-М комнаты довольно узкие, что не позволит расставлять мебель по обе стороны комнат. Так же в П-44Т все комнаты разных размеров, благодаря этому у Вас будет больше «маневров» в выборе назначений каждой из трех комнат.
5. Балконы
В П-44Т два довольно просторных балконов, а в 111-м он один. Стоит обратить внимание, что стоимость квадратного метра холодных помещений, как правило, наполовину ниже жилого, а это значит, что за балконы Вы платите в два раза меньше и при этом получаете больше квадратных метров.
6. Вентиляц ионные короба
Расположение вентиляционных коробов и в том и другом варианте довольно удачное, но обратите внимание на то, что в П-44т короб расположен в коридоре и если дом выше 17 этажей, то плюс превращается в минус, так как появляется второй короб рядом с первым и коридор напротив санузла становиться узким^
Если у Вас возникли вопросы, то задавайте их в комментариях — я обязательно на них отвечу!
Строиться она началась еще с 1997г.
и по настоящее время. Имеет собственную модификацию, которая отличается от нее лишь количеством этажей — это серия П-44Т/17.
Дом П-44Т панельный, состоит из угловых и рядовых секций по четыре квартиры, где 1-комнатная квартира имеет размер жилого помещения — 19м 2 , кухня — 7-9м 2 , санузлы совмещенные; 2-комнатная квартира — 30-34 м 2 , кухня — 8-13 м 2 , санузлы раздельные; 3-комнатная квартира — 44-54 м 2 , кухня — 10-13м 2 , санузел также раздельный. Все комнаты в квартирах домов серии П-44Т изолированные. Во всех квартирах, предусмотрены эркеры и просторные лоджии. Внутренние стены состоят из сборных железобетонных панелей толщиной 16 см и 18 см. Наружные стеновые трехслойные навесные панели с утеплителем из пенополистирола и с теплоотражающей металлизированной пленкой внутри утеплителя, общая толщина 30 см; с фасадной стороны облицованы плиткой «под кирпич», начиная со второго этажа. Перегородки из многих материалов: пазогребневые или пенобетонные блоки, гипсокартонные листы по металлокаркасу, гипсобетонные прокатные панели, но чаще всего гипсобетонные, все они одной толщины — 8 см.
Перекрытия — железобетонные плиты толщиной 14 см.
Серия жилых домов П-44Т обладает различными недостатками, такими как, узкая комната в двухкомнатных линейных квартирах (с окнами на 1 сторону), швы между панелями требуют дополнительной промазки (иначе будет холодно). Возможности перепланировки в доме данного типа очень серьезно ограничены. Почти все стены являются несущими. Однако сохраняются следующие возможности допустимой перепланировки без пагубного влияния на несущие конструкции:
- В трехкомнатных квартирах перегородка между большой комнатой и коридором является ненесущей.
- Сантехблок выполнен из гипса и может быть демонтирован и/или видоизменен.
- В домах после 2007 года постройки в несущих панелях между кухней и комнатой в части квартир предусмотрена специальная ниша для выполнения дверного проёма («вафля»), которую можно демонтировать.
Все же данная серия обладает и рядом преимуществ: к планировкам были добавлены эркеры, медная электропроводка, вентиляция естественная вытяжная, горячее водоснабжение с верхним разливом, внешний вид приобрел особый цвет — красный с песочным, эркеры и лоджии покрасили в белый.
Для проживания в домах серии П-44Т бывает, доступен мансардный этаж. Появилась современная система безопасности, которая реагирует на открытие служебных помещений, затоплении или угрозы возникновения пожара.
В каждом подъезде установлен один пассажирский и один грузопассажирский лифт, в 20-25-этажных секциях (подъездах) — 2 грузопассажирских и пассажирский. Количество подъездов от 1 до 8. Лестницы незадымляемые, противопожарный балкон отсутствует. Мусоропровод расположен на лестнице, с загрузочным клапаном на площадке.
Срок службы дома серии П-44Т около 100 лет, поэтому не стоит, надеяться на снос, в ближайшем времени.
Серия П-44Т
Годы строительства: с 1997 по наст. время
Материал стен: панель с облицовкой «под кирпич»
Количество секций (подъездов): 1-8
Количество этажей: 9-25, наиболее распространенные варианты — 14, 17
Высота потолков: 2.70-2.75 м.
Лифты: пассажирский и грузопассажирский, в 20-25-этажных секциях (подъездах) — 2 грузопассажирских и пассажирский
Балконы: застекленные лоджии в 1-комнатных квартирах.
Застекленные лоджии и эркеры в 2- и 3-комнатных квартирах (в торцевых и угловых 2- и 3-комнатных квартирах также полуэркеры)
Количество квартир на этаже : 4
Панельные дома типовой серии П-44Т в Москве строились как в новых районах массовой застройки: Марьинский Парк, Северное и Южное Бутово, Солнцево, Митино, пос. Северный, Новокосино, Новое Кожухово, Некрасовка, Жулебино, Люблино, так и в старых районах, где производился/производится массовый снос пятиэтажек, ветхого и некомфортного жилья: Щукино, Зеленоград, Ховрино, Бескудниково, Коптево, Свиблово, Медведково, Измайлово, Лефортово, Перово, Нагатино, Южное Чертаново, Зюзино, Черёмушки, Кунцево и многих других. Также дома серии П-44Т во многих районах строились точечно.
В Московской области новостройки серии П-44Т построены/строятся в городах Балашиха, Железнодорожный, Лобня, Красногорск, Люберцы, Московский, Котельники, Реутов, Одинцово, Химки, Щербинка, а также в пос. Медвежьи Озёра, пос. Голубое, дер. Брёхово, дер.
Пыхтино.
Количество построенных домов в Москве: около 600, в Московской области — около 200. На рынке новостроек Москвы и Подмосковья эта серия одна из самых распространенных. В то же время доля социальных домов — около 50%.
Нормативный срок эксплуатации дома (по данным производителя — ДСК-1) — 100 лет
Площади 1-комнатных квартир (4 типоразмера): общая: 37-39 кв. м., жилая: 19 кв. м., кухня: 7-8.4 кв. м.
Площади 2-комнатных квартир (4 типоразмера): общая: 51-61 кв. м., жилая: 30-34 кв. м., кухня: 8.3-13.2 кв. м.
Площади 3-комнатных квартир (6 типоразмеров): общая: 70-84 кв. м., жилая: 44-54 кв. м., кухня: 10-13 кв. м.
Все комнаты в квартирах домов серии П-44Т изолированные
Санузлы : в 1-комнатных квартирах — совмещенные, в 2- и 3-комнатных квартирах — раздельные, ванны: стандартные, длиной 170 см.
Лестницы: незадымляемые. Мусоропровод: с загрузочным клапаном на каждом этаже
Тип кухонной плиты: электрическая
Стены: наружные железобетонные трехслойные панели (бетон — утеплитель полистирол — бетон) общей толщиной 30 см (теплоизоляция которых равна кирпичной стене толщиной 90 см.
) Межквартирные и межкомнатные несущие — железобетонные панели толщиной 16 и 18 см. Перегородки — гипсокартонные толщиной 8 см. Перекрытия — крупноразмерные («на комнату») железобетонные плиты толщиной 14 см.
Несущие стены: продольные межквартирные и поперечные все (межквартирные и межкомнатные)
Тип секций: торцевые, рядные и поворотные (угловые). Подъезд, где расположена электрощитовая, имеет вход с 2-х сторон
Количество шагов в секции (подъезде) : 7, ширина шага (расстояние между двумя соседними несущими стенами): 300 см (в 3-х центральных пролетах каждой секции), 360 см (в остальных)
Облицовка, штукатурка наружных стен: облицовка «под кирпич», нижние этажи — облицовка «под камень»
Варианты цветов внешних стен: темно-оранжевый, светло-рыжий, нижние этажи — серый, эркеры и полуэркеры — белый
Тип кровли: плоско-скатная или скатная черепичная производства BRAAS ДСК-1, цвета: зеленый, коричневый
Отличительные особенности: серия домов П-44Т отличается от предшественницы — серии П-44 (которая строилась в 1979-1999 гг.
) повышенной теплоизоляцией стен, вентиляционным коробом в прихожей (а не на кухне), остеклением лоджий, эркерами и полуэркерами, а также узнаваемой наружной отделкой под кирпич
Иные достоинства: повышенная звукоизоляция, отопительные приборы с регуляторами температуры, медная электропроводка, технология «закрытого стыка (шва)», мировые стандарты по капитальности и огнестойкости (1-е классы), современная система безопасности (реагирование на открытие дверей подвала, электрощитовой, чердака, шахты лифта; система оповещения о затоплении, пожаре). Быстрые темпы строительства (1 этаж за 3 дня): специалисты www .1 Dom . ru не выявили ни одного случая долгостроя домов этой серии.
Недостатки : качество монтажа наружных стен в отдельных корпусах
Производитель : ДСК-1 (крупнейшее предприятие строительной индустрии России)
Проектировщик : МНИИТЭП (Московский НИИ типологии и экспериментального проектирования)
Конструктивные характеристики и внешний вид домов типовой серии П-44Т во многом схожи с домами серий П-44М,
Первый дом серии П-44Т построен в 1997 г.
на ул. Маршала Василевского (Щукино). Один из самых узнаваемых в Москве разноэтажный ступенчатый жилой комплекс со шпилями на Рубцовской набережной, по форме напоминающий замок, построен из блок-секций серии П-44Т
Квартиры серии п 44т. Дома серии п44т, планировки квартир с размерами
П-44Т планировка с размерами
Планировки квартир в П44Т с вариантами перепланировки
Планировки двухкомнатных квартир серии П 44т
Двушка распашонка
Обычно имеет площадь порядка 60-64 кв.м. Кухня имеет большой эркер, а каждая из комнат по просторному балкону. По сути, это та же трешка только с «откусанной» одиннадцатиметровой комнатой и примыкающим к ней участком коридора.
Линейная двушка П-44Т
Площадь односторонних двухкомнатных квартир колеблется в районе 52 кв.м (51-53 кв.м). В них маленькие коридоры и балконы.
Однокомнатная квартира П-44 Т
Площадь однушек в П-44Т составляет порядка 36-38 кв.
м. В них маленький балкон и совмещенный санузел.
Трехкомнатные квартиры П-44Т
По площадям и конфигурациям трехкомнатных квартир в серии П-44Т наблюдается наибольший разброс (примерно от 73 до 86 метров). Планировочных решений также существует очень много. Кухни в трешках угловых секций не имеют эркеров, а их площадь обычно не превышает 10 метров. В то же время 3 комнатные квартиры в рядовых и торцовых секциях П-44Т могут похвастаться кухнями с эркером и общей площадью от 12 до 14 кв.м.
Трешка с эркером в комнате (торцевая квартира п44т)
Одним из наиболее востребованных проектов жилья на рынке столичных новостроек и в Московской области стала серия П-44Т. Домами такого типа активно застраивали как новые районы (Люблино, Северное Бутово, Новокосино, Марьинский парк), так и места сноса ветхого жилфонда в районах старой застройки (Медведково, Лефортово, Щукино, Южное Чертаново и т.п.). Всего возведено около шестисот домов этой серии в Москве, и около двухсот – в Московской области.
Дома П-44Т выгодно отличаются от строений базовой версии П-44 (возводились до 1999 года) остеклением лоджий, наличием полуэркеров и эркеров, улучшенной теплоизоляцией наружных панелей и усовершенствованной системой водоснабжения, размещением вентиляционного отверстия в прихожей.
В целом дома данной серии считаются весьма успешным инженерно-архитектурным проектом, отвечают международным стандартам по пожаробезопасности и по капитальности (1-е классы), а поэтому продолжают активно строиться в настоящее время. О прочности конструкции домов свидетельствует и тот факт, что застройщик указывает «100 лет» как расчетный срок эксплуатации дома. Привлекательным является сочетание относительно невысокой стоимости квадратных метров и достаточно высокого уровня комфортности, а также с высокой скоростью строительства квартир серии П-44Т.
Наружная отделка и конструктивные особенности серии
Серию многосекционных домов П-44Т легко узнать по эстетичной отделке фасадов «под кирпич», которая облагораживает внешний вид бетонной конструкции.
Наружная отделка дома обычно выполняется в темно-оранжевых или светло-песочных тонах, а отделка нижних этажей, эркеров и полуэркеров в серо-белой цветовой гамме.
Неоспоримыми достоинствами многоэтажек серии П-44Т являются: высокий уровень шумоизоляции у наружных панелей, наличие у отопительных приборов индивидуальных регуляторов, современные противопожарные системы, устройства для оповещения о пожарах, затоплениях, реагирования на открытие дверей техэтажа, подвала, электрощитовой, шахты лифта). Благодаря тому, что бетонные панели имеют максимально ровные поверхности в сравнении с панелями в других многоэтажках, значительно сокращаются затраты на внутреннюю отделку квартир.
Однако отдельные отзывы свидетельствуют о том, что в новых домах при усадке образуются трещины на стыках панелей и иногда происходит разгерметизация «швов». Поэтому при покупке квартиры необходимо обратить внимание на качество монтажа панелей.
Особенности планировок квартир
Как и в большинстве современных новостроек, в домах П-44Т комнаты изолированные.
Кроме того, в некоторых домах, возведенных по этому проекту, квартиры размещаются и на мансардном этаже, привлекательном для многих потенциальных покупателей недвижимости.
Шаг поперечных стен увеличен до 4,2 м, а толщина внутренних стен — 14 см и 18 см, обеспечивает хорошую звукоизоляцию между комнатами. Квартиры имеют раздельные санузлы (за исключением совмещенных санузлов в однокомнатных квартирах). Доступны для покупки квартиры с готовой муниципальной отделкой.
Недостатком П-44Т, как прочих панельных домов, остается наличие большого числа несущих стен внутри квартир, что не позволяет делать перепланировки по желанию собственников жилья. Категорически запрещается срезать подоконные блоки либо делать проемы в несущих стенах в домах данной серии.
Технические характеристики
Параметр | Значение |
|---|---|
| Альтернативное наименование: | П-44Т |
| Регионы строительства: | Москва и Московская область (Коптево, Свиблово, Медведково, Измайлово, Новое Кожухово, Некрасовка Красногорск, Лобня, Балашиха, Железнодорожный, Люберцы, Химки, Московский, Одинцово, Солнечногорск, в пос. |
| Технология строительства: | Панельный |
| По периоду строительства: | Современные |
| Годы строительства: | С 1997 г. по настоящее время |
| Перспектива сноса: | Снос не предусмотрен даже в дальней перспективе |
| Количество секций/подъездов: | От 1 до 8 (возможны комбинации подъездов разных серий – П-44Т, П-44К, П-44ТМ/25 в одном доме) |
| Количество этажей: | 9-25 (наиболее распространенные варианты – 14, 17) |
| Высота потолков: | 2.70-2.75 м |
| Балконы/лоджии: | Выше 2-го – 3-го этажа имеются застекленные лоджии во всех квартирах. В 2- и 3-комнатных квартирах предусмотрены эркеры и полуэркеры. |
| Санузлы: | Совмещенные — в однокомнатных квартирах, раздельные — в 2- и 3-комнатных. |
| Лестницы: | Незадымляемые |
| Мусоропровод: | Мусоропровод, оснащенный загрузочным клапаном на каждом этаже |
| Лифты: | 2 лифта: пассажирский (400 кг) и грузопассажирский (630 кг). В 20-25-этажных подъездах – 2 грузопассажирских и пассажирский. |
| Количество квартир на этаже: | 4 |
| Площади квартир: | Общая/жилая/кухня 1-комнатная квартира 37-39/19/7-9 2-комнатная квартира 51-61/30-34/8-13 3-комнатная квартира 70-84/44-54/10-13 |
| Вентиляция: | Естественная вытяжная с коробом в прихожей |
| Стены и облицовка: | Наружные стены — трехслойные ЖБ-панели (бетон — полистирол — бетон) толщиной до 30 см повышенной теплоизоляции Межквартирные и межкомнатные несущие – Ж/б-панели толщиной 16 и 18 см. Крупноразмерные перекрытия толщиной 14 см по ширине комнатОблицовка наружных стен «под кирпич», основные цвета — темно-оранжевый, светло-песочный |
| Тип кровли: | Плоско-скатная или черепично-скатная кровля коричневого либо зеленого цвета (производства BRAAS ДСК-1). |
| Производитель: | ДСК-1 |
| Проектировщики: | МНИИТЭП (Московский НИИ типологии и экспериментального проектирования) |
| Достоинства: | Улучшенная шумоизоляция наружных панелей и «швов», регуляторы на отопительных приборах, медная электропроводка, использование технологии закрытого стыка, соответствие международным стандартам по капитальности и пожаробезопасности, современные системы безопасности. |
| Недостатки: | Неудовлетворительное качество монтажа наружных стен в отдельных секциях. |
Игорь Василенко
Дома серии П-44Т строить начали с 1997 года и строят по сей день так как их срок эксплуатации достигает до 100 лет. Эти многоэтажные дома от 9 до 25 этажей строят в Москве и московской области. Обычно на одной лестничной площадке располагаются одна однокомнатная квартира, две двухкомнатных квартиры и одна трёхкомнатная квартира.
Дома П44Т планировки квартир
Ещё бываю угловые секции на которых на одной лестничной площадке располагаются две трёхкомнатные квартиры и две однокомнатные квартиры.
Осуществить перепланировку квартир в типовых домах можно по типовому проекту
Так как дома серии П-44Т имеют разную этажность то и площадь однокомнатных, двухкомнатных и трёхкомнатных квартир в разных домах тоже разная. Так в однокомнатных общая площадь может быть от 37 до 39 кв.м, в двухкомнатных от 51 до 61 кв.м, а в трёхкомнатных от 70 до 84 кв.м. Соответственно и площадь кухни и жилая площадь в разных домах будут отличаться.
Высота от пола до потолка в квартирах от 2.70 до 2.75 метров. Туалет и ванная комната в трёхкомнатных и двухкомнатных квартирах раздельные, а в однокомнатных квартирах совмещённые. Ванная в ванной комнате установлена стандартной длины 170 см. Вентиляционные каналы естественной вентиляции проходят на кухне и в туалете. В этих домах стены делают из железобетонных панелей которые вместе с утеплителем имеют толщину 30 см и межквартирные и межкомнатные стены тоже делают из железобетонных панелей толщиной 16 или 18 см, а перегородки делают из гипсокартона толщиной 8 см. Плиты перекрытия делают на всю комнату толщиной 14 см. В квартирах этих домов очень хорошая звукоизоляция, а система отопления снабжена регуляторами температуры. Ниже представлены некоторые типовые варианты перепланировки П44Т.
Однокомнатных квартир
Стандартная планировка однокомнатной квартиры состоит из прихожей, небольшого коридора, большой комнаты, кухни и совмещённого туалета с ванной.
Дом серия П 44Т планировка однокомнатной квартиры
Перепланировка панельной квартиры возможна по одному из типовых проектов которые приведены ниже.
Перепланировка однокомнатной квартиры П 44
В этом варианте заделывается коридор по которому можно было пройти на кухню и вместо коридора делается небольшая кладовка. В прихожей делается встроенный шкаф. Вход в ванную переносится из коридора в прихожую, а вход на кухню делается прямо из комнаты.
Перепланировка П 44 однокомнатная квартира
В этом варианте заделывается коридор по которому можно было пройти на кухню и вместо него делается туалет. Прихожую увеличиваем за счёт уменьшения ванной комнаты. В прихожей делается встроенный шкаф и небольшая кладовка. Вход в ванную и в туалет будет осуществляться прямо из прихожей, а вход на кухню будет осуществляться через комнату.
В домах П 44Т перепланировка однокомнатных квартир
В этом варианте коридор по которому можно было пройти на кухню совмещается с ванной комнатой. В прихожей делается небольшая кладовка. Вход на кухню будет осуществляться через комнату.
Двухкомнатных квартир
Стандартная планировка двухкомнатной квартиры состоит из небольшой узкой прихожей, широкого коридора из которого можно попасть в обе комнаты, на кухню и в туалет с ванной комнатой.
Планировка квартир П 44Т
Ниже представлены некоторые типовые перепланировки квартир.
В доме серии П44Т перепланировка двухкомнатной квартиры
В этом варианте ванную комнату расширили за счёт коридора по которому можно было попасть на кухню и в нём же установили дополнительный туалет, а вход в старый туалет сделали из кухни. Одну комнату сделали проходной чтобы через неё можно было попасть на кухню. Вторую комнату уменьшили на ширину созданной кладовки и небольшого коридора по которому можно попасть в кладовку и во вторую комнату.
Перепланировка квартир П 44 с объединением туалета и ванны
В этом варианте произвели перепланировку ванной и туалета увеличив их площадь за счёт коридора по которому можно было попасть на кухню. Одну из комнат сделали проходной чтобы через неё попадать на кухню, а вторую комнату оставили без изменений.
Перепланировка квартир П 44Т при установке джакузи
В этом варианте также как и предыдущем совместили туалет с ванной комнатой и увеличили её площадь за счёт коридора.
Но из ванной убрали стандартную ванну и поставили джакузи. Вход на кухню сделали через комнату сделав её проходной.
Трёхкомнатных квартир
Стандартная планировка трёхкомнатной квартиры состоит из трёх отдельных комнат, большой кухни, отдельных туалета и ванной комнаты, прихожей и коридора из которого можно попасть во все помещения.
Планировка квартир П44Т
Перепланировка трехкомнатной квартиры п 44 может быть сделана по одному из типовых проектов которые приведены ниже.
Один из вариантов перепланировки трехкомнатной квартиры П44Т
В этом варианте одну из комнат увеличиваем за счёт части коридора но эта комната будет проходной так как только через неё можно будет пройти в другие две комнаты и на кухню. За счёт другой части коридора увеличится площадь ванной комнаты и в ней можно установить вместо ванны джакузи. У входа останется небольшая прихожая из которой можно будет попасть в ванную комнату, туалет и проходную комнату.
Перепланировка 3 комнатной квартиры П44Т в четырёхкомнатную
В этом варианте одну из комнат увеличиваем за счёт части коридора но эта комната будет проходной так как только через неё можно будет пройти в другие две комнаты и на кухню.
За счёт другой части коридора увеличится площадь ванной комнаты. В одной из отдельных комнат устанавливается перегородка с дверью и в итоге получится дополнительная небольшая комната которую можно использовать под кабинет. Из прихожей можно будет пройти в ванную комнату, туалет и проходную комнату.
Перепланировка П 44 трехкомнатная
В этом варианте увеличивается площадь ванной комнаты за счёт части коридора по которому можно было попасть на кухню и делается дополнительно туалет. Вход на кухню будет проходить через небольшую смежную с ней комнату. Можно поэкспериментировать с дверями в две отдельные комнаты.
Серия П-44Т
Годы строительства: с 1997 по наст. время
Материал стен: панель с облицовкой «под кирпич»
Количество секций (подъездов): 1-8
Количество этажей: 9-25, наиболее распространенные варианты — 14, 17
Высота потолков: 2.70-2.75 м.
Лифты: пассажирский и грузопассажирский, в 20-25-этажных секциях (подъездах) — 2 грузопассажирских и пассажирский
Балконы: застекленные лоджии в 1-комнатных квартирах.
Застекленные лоджии и эркеры в 2- и 3-комнатных квартирах (в торцевых и угловых 2- и 3-комнатных квартирах также полуэркеры)
Количество квартир на этаже : 4
Панельные дома типовой серии П-44Т в Москве строились как в новых районах массовой застройки: Марьинский Парк, Северное и Южное Бутово, Солнцево, Митино, пос. Северный, Новокосино, Новое Кожухово, Некрасовка, Жулебино, Люблино, так и в старых районах, где производился/производится массовый снос пятиэтажек, ветхого и некомфортного жилья: Щукино, Зеленоград, Ховрино, Бескудниково, Коптево, Свиблово, Медведково, Измайлово, Лефортово, Перово, Нагатино, Южное Чертаново, Зюзино, Черёмушки, Кунцево и многих других. Также дома серии П-44Т во многих районах строились точечно.
В Московской области новостройки серии П-44Т построены/строятся в городах Балашиха, Железнодорожный, Лобня, Красногорск, Люберцы, Московский, Котельники, Реутов, Одинцово, Химки, Щербинка, а также в пос. Медвежьи Озёра, пос. Голубое, дер. Брёхово, дер.
Пыхтино.
Количество построенных домов в Москве: около 600, в Московской области — около 200. На рынке новостроек Москвы и Подмосковья эта серия одна из самых распространенных. В то же время доля социальных домов — около 50%.
Нормативный срок эксплуатации дома (по данным производителя — ДСК-1) — 100 лет
Площади 1-комнатных квартир (4 типоразмера): общая: 37-39 кв. м., жилая: 19 кв. м., кухня: 7-8.4 кв. м.
Площади 2-комнатных квартир (4 типоразмера): общая: 51-61 кв. м., жилая: 30-34 кв. м., кухня: 8.3-13.2 кв. м.
Площади 3-комнатных квартир (6 типоразмеров): общая: 70-84 кв. м., жилая: 44-54 кв. м., кухня: 10-13 кв. м.
Все комнаты в квартирах домов серии П-44Т изолированные
Санузлы : в 1-комнатных квартирах — совмещенные, в 2- и 3-комнатных квартирах — раздельные, ванны: стандартные, длиной 170 см.
Лестницы: незадымляемые. Мусоропровод: с загрузочным клапаном на каждом этаже
Тип кухонной плиты: электрическая
Стены: наружные железобетонные трехслойные панели (бетон — утеплитель полистирол — бетон) общей толщиной 30 см (теплоизоляция которых равна кирпичной стене толщиной 90 см.
) Межквартирные и межкомнатные несущие — железобетонные панели толщиной 16 и 18 см. Перегородки — гипсокартонные толщиной 8 см. Перекрытия — крупноразмерные («на комнату») железобетонные плиты толщиной 14 см.
Несущие стены: продольные межквартирные и поперечные все (межквартирные и межкомнатные)
Тип секций: торцевые, рядные и поворотные (угловые). Подъезд, где расположена электрощитовая, имеет вход с 2-х сторон
Количество шагов в секции (подъезде) : 7, ширина шага (расстояние между двумя соседними несущими стенами): 300 см (в 3-х центральных пролетах каждой секции), 360 см (в остальных)
Облицовка, штукатурка наружных стен: облицовка «под кирпич», нижние этажи — облицовка «под камень»
Варианты цветов внешних стен: темно-оранжевый, светло-рыжий, нижние этажи — серый, эркеры и полуэркеры — белый
Тип кровли: плоско-скатная или скатная черепичная производства BRAAS ДСК-1, цвета: зеленый, коричневый
Отличительные особенности: серия домов П-44Т отличается от предшественницы — серии П-44 (которая строилась в 1979-1999 гг.
) повышенной теплоизоляцией стен, вентиляционным коробом в прихожей (а не на кухне), остеклением лоджий, эркерами и полуэркерами, а также узнаваемой наружной отделкой под кирпич
Иные достоинства: повышенная звукоизоляция, отопительные приборы с регуляторами температуры, медная электропроводка, технология «закрытого стыка (шва)», мировые стандарты по капитальности и огнестойкости (1-е классы), современная система безопасности (реагирование на открытие дверей подвала, электрощитовой, чердака, шахты лифта; система оповещения о затоплении, пожаре). Быстрые темпы строительства (1 этаж за 3 дня): специалисты www .1 Dom . ru не выявили ни одного случая долгостроя домов этой серии.
Недостатки : качество монтажа наружных стен в отдельных корпусах
Производитель : ДСК-1 (крупнейшее предприятие строительной индустрии России)
Проектировщик : МНИИТЭП (Московский НИИ типологии и экспериментального проектирования)
Конструктивные характеристики и внешний вид домов типовой серии П-44Т во многом схожи с домами серий П-44М,
Первый дом серии П-44Т построен в 1997 г.
на ул. Маршала Василевского (Щукино). Один из самых узнаваемых в Москве разноэтажный ступенчатый жилой комплекс со шпилями на Рубцовской набережной, по форме напоминающий замок, построен из блок-секций серии П-44Т
Строиться она началась еще с 1997г. и по настоящее время. Имеет собственную модификацию, которая отличается от нее лишь количеством этажей — это серия П-44Т/17.
Дом П-44Т панельный, состоит из угловых и рядовых секций по четыре квартиры, где 1-комнатная квартира имеет размер жилого помещения — 19м 2 , кухня — 7-9м 2 , санузлы совмещенные; 2-комнатная квартира — 30-34 м 2 , кухня — 8-13 м 2 , санузлы раздельные; 3-комнатная квартира — 44-54 м 2 , кухня — 10-13м 2 , санузел также раздельный. Все комнаты в квартирах домов серии П-44Т изолированные. Во всех квартирах, предусмотрены эркеры и просторные лоджии. Внутренние стены состоят из сборных железобетонных панелей толщиной 16 см и 18 см. Наружные стеновые трехслойные навесные панели с утеплителем из пенополистирола и с теплоотражающей металлизированной пленкой внутри утеплителя, общая толщина 30 см; с фасадной стороны облицованы плиткой «под кирпич», начиная со второго этажа.
Перегородки из многих материалов: пазогребневые или пенобетонные блоки, гипсокартонные листы по металлокаркасу, гипсобетонные прокатные панели, но чаще всего гипсобетонные, все они одной толщины — 8 см. Перекрытия — железобетонные плиты толщиной 14 см.
Серия жилых домов П-44Т обладает различными недостатками, такими как, узкая комната в двухкомнатных линейных квартирах (с окнами на 1 сторону), швы между панелями требуют дополнительной промазки (иначе будет холодно). Возможности перепланировки в доме данного типа очень серьезно ограничены. Почти все стены являются несущими. Однако сохраняются следующие возможности допустимой перепланировки без пагубного влияния на несущие конструкции:
- В трехкомнатных квартирах перегородка между большой комнатой и коридором является ненесущей.
- Сантехблок выполнен из гипса и может быть демонтирован и/или видоизменен.
- В домах после 2007 года постройки в несущих панелях между кухней и комнатой в части квартир предусмотрена специальная ниша для выполнения дверного проёма («вафля»), которую можно демонтировать.

Все же данная серия обладает и рядом преимуществ: к планировкам были добавлены эркеры, медная электропроводка, вентиляция естественная вытяжная, горячее водоснабжение с верхним разливом, внешний вид приобрел особый цвет — красный с песочным, эркеры и лоджии покрасили в белый. Для проживания в домах серии П-44Т бывает, доступен мансардный этаж. Появилась современная система безопасности, которая реагирует на открытие служебных помещений, затоплении или угрозы возникновения пожара.
В каждом подъезде установлен один пассажирский и один грузопассажирский лифт, в 20-25-этажных секциях (подъездах) — 2 грузопассажирских и пассажирский. Количество подъездов от 1 до 8. Лестницы незадымляемые, противопожарный балкон отсутствует. Мусоропровод расположен на лестнице, с загрузочным клапаном на площадке.
Срок службы дома серии П-44Т около 100 лет, поэтому не стоит, надеяться на снос, в ближайшем времени.
Поделитесь статьей с друзьями:
Похожие статьи
Дома серии П44Т, планировка квартир с размерами.
Типовые перепланировки квартир в домах П44Т планировка П 44Т размерамиОдним из самых востребованных проектов жилья на рынке столичных новостроек и в Подмосковье стала серия П-44Т. Дома этого типа активно застраивались как новыми районами (Люблин, Северное Бутово, Новокосино, Марьинский парк), так и местами сноса ветхого жилого фонда в районах старой застройки (Медведково, Лефортово, Щукино, Южное Чертаново и др.).). Всего шестьсот домов этой серии в Москве и около двухсот — в Подмосковье.
ДомаП-44Т выгодно отличаются от корпусов базового варианта П-44 (постройки до 1999 г.) остеклением лоджий, наличием полуэркеров и эркеров, улучшенной теплоизоляцией наружных панелей и усовершенствованной системой водоснабжения , размещение вентиляционного отверстия в холле.
В целом дома этой серии считаются очень удачным инженерно-архитектурным проектом, соответствуют международным стандартам по пожарной безопасности и по капиталоемкости (1-й класс), поэтому продолжают активно строиться и в настоящее время.
На прочность конструкции дома указывает тот факт, что застройщик указывает «100 лет» как расчетный действующий дом. Привлекательным является сочетание относительно невысокой стоимости квадратных метров и достаточно высокого уровня комфорта, а также с высокой скоростью строительства квартир серии П-44Т.
Наружная отделка и конструктивные особенности серии
В серии многосекционных домов П-44Т легко узнать об эстетической отделке фасадов «под кирпич», облагораживающей внешний вид бетонной постройки.Наружная отделка дома обычно выполняется в темно-оранжевых или светло-песочных тонах, а отделка нижних этажей, эркеров и полуметров — в серо-белых тонах.
Неоспоримыми преимуществами высотных зданий серии П-44Т являются: высокий уровень шумоизоляции в наружных панелях, наличие отопительных приборов индивидуальных регуляторов, современных противопожарных систем, устройств оповещения о пожарах, затоплениях, реагирования на открытие дверей техники, подвала, электрики, шахты лифта).
Благодаря тому, что бетонные панели имеют самые гладкие поверхности по сравнению с панелями в других многоэтажных домах, затраты на внутреннюю отделку квартир.
Однако отдельные отзывы свидетельствуют о наличии трещин на стыках панелей при усадке при усадке и иногда о разгерметизации «швов». Поэтому при покупке квартиры необходимо обращать внимание на качество монтажа панелей.
Особенности планировки квартир
Как и в большинстве современных новостроек, в домах П-44т комнаты изолированные.Кроме того, в некоторых домах квартиры размещены по этому проекту. мансардный этажПривлекателен для многих потенциальных покупателей недвижимости.
Шаг поперечных стен увеличен до 4,2 м, а толщина внутренних стен 14 см и 18 см, обеспечивает хорошую звукоизоляцию между помещениями. Квартиры имеют раздельные санузлы (за исключением совмещенных санузлов в однокомнатных квартирах). Возможна покупка квартиры с готовой муниципальной отделкой.
Недостатком П-44Т, как и других панельных домов, остается наличие большого количества несущих стен внутри квартир, что не позволяет производить перепланировку по желанию собственников жилья.
В домах этой серии категорически запрещается резать оконные блоки или делать проемы в несущих стенах.
Технические характеристики
Параметр | Значение |
|---|---|
| Альтернативное название: | П-44Т. |
| Районы застройки: | Москва и Московская область (Коптево, Свиблово, Медведково, Измайлово, Новое Кожуково, Некрасовка, Красногорск, Лобня, Балашиха, Железнодорожный, Люберцы, Химки, Москва, Одинцово, Солнечногорск, в пос.Медвежьи озера, дер. Брихово, пос. Синий) |
| Строительная техника: | Панель |
| В стадии строительства: | Модерн |
| Год постройки: | С 1997 г. по настоящее время |
| Перспектива движения: | Снос не предусмотрен даже в долгосрочной перспективе |
| Количество секций/подъездов: | От 1 до 8 (возможны комбинации подъездов разных серий — П-44Т, П-44К, П-44ТМ/25 в одном доме) |
| Этажность: | 9-25 (наиболее распространенные варианты — 14, 17) |
| Высота потолка: | 2. 70-2,75 м. |
| Балконы/лоджии: | Выше 2-3 этажа во всех квартирах застекленные лоджии. В 2-х и 3-х комнатных квартирах есть эркеры и полуэркеры. |
| Ванные комнаты: | Совмещенные — в однокомнатных квартирах, раздельные — в 2-х и 3-х комнатных. |
| Лестницы: | Неясно |
| Мусоропровод: | Мусоропровод с загрузочным клапаном на каждом этаже |
| Лифты: | 2 лифта: пассажирский (400 кг) и грузопассажирский (630 кг). В 20-25-этажных подъездах — 2 грузопассажирских и пассажирский. |
| Количество квартир на этаже: | 4 |
| Площадь квартиры: | Общая / жилая / кухня 1-комнатная квартира 37-39/19/7-9 2-комнатная квартира 51-61/30-34/8-13 3-комнатная квартира 70-84/44-54/10 -13 |
| Вентиляция: | Естественная вытяжка с коробом в коридоре |
| Стены и облицовка: | Наружные стены — ЖБ панели трехслойные (бетон — полистирол — бетон) толщиной до 30 см повышенной теплоизоляции Аварийные и межкомнатные несущие — Р/б-панели толщиной 16 и 18 см. Крупногабаритные перекрытия толщиной 14 см по ширине помещений Облицовка Наружные стены «Под кирпич», Базовые цвета — Темно-оранжевый, Светло-песочный |
| Тип крыши: | Плоская или черепичная кровля коричневого или зеленого цвета (производство Braas DSK-1). |
| Производитель: | ДСК-1 |
| Дизайнеры: | МНИИТП (Московский научно-исследовательский институт тиологии и экспериментального проектирования) |
| Преимущества: | Улучшенная шумоизоляция вызывных панелей и «швов», регуляторы на отопительных приборах, медная проводка, применение технологии закрытых соединений, соответствие международным стандартам капитализации и пожарной безопасности, современные системы безопасности. |
| Недостатки: | Неудовлетворительное качество монтажа наружных стен на отдельных участках. |
Игорь Василенко
Макет П-44Т с размерами
Планировка квартиры в п44т с вариантами перепланировки
Планировка трехкомнатной квартиры серии П 44Т
Циферблат дозатора
Обычно это площадь около 60-64 кв.м. На кухне большой эркер, а в каждой из комнат по просторному балкону. По сути, это та же трешка, только с «герметизирующей» одиннадцатипрямой комнатой и примыкающим к участку коридором.
Линейный циферблат П-44Т
Площадь односторонних двухкомнатных квартир колеблется в районе 52 кв.м (51-53 кв.м). Это небольшие коридоры и балконы.
Двухкомнатная квартира П-44 Т
Площадь Одера в П-44Т около 36-38 кв.м. В них балкончик И совмещенный санузел.
Квартиры с тремя спальнями П-44Т
По площадям и конфигурациям трехкомнатных квартир в серии П-44Т наблюдается наибольший разброс (примерно от 73 до 86 метров).
Планировочных решений тоже много. Кухни в угловых секциях трешек не имеют эркеров, а их площадь обычно не превышает 10 метров. При этом 3-х комнатные квартиры в рядовой и торцевой секциях П-44Т могут похвастаться кухнями с эркерами и общей площадью от 12 до 14 кв.м.
ТРИКА С ЭРКЕРОМ В КОМНАТЕ (ЛИЦО P44T ФАКТ)
Дома серии П-44Т и П-44К — достаточно популярные строения, которые строятся на месте снесенных пятиэтажек. Этажность в них от 17 до 25, количество подъездов 2-8. Привлекательность и популярность этого жилья еще и в том, что в нем есть лоджии. При разумном подходе есть возможность превратить их в продолжение жилища или оборудовать отдельное функциональное пространство.По этой причине не стоит начинать ремонт без предварительной разработки известного дизайн-проекта.
Важным моментом, определяющим дизайн трехкомнатной квартиры в доме серии П44Т, являются ограничения по перепланировке, так как практически все стены квартиры являются несущими. Их нарушение представляет опасность не только для владельцев, но и для жильцов других квартир.
Однако, несмотря на все ограничения, обустроить уютное и комфортное жилье вполне реально.
Дизайн трехкомнатной квартиры довольно прост, ведь готовое разделение комнат уже имеется. Не нужно изобретать «велосипед» с зонированием. Важно учитывать, сколько человек в семье и какие функциональные помещения необходимы. Как уже говорилось, не нужно делать скидку и на лоджию. В домах этой серии есть 2 варианта «двойников»: «Спашинг» и линейный.
Линейный
Квартира названа «линейкой», потому что все ее окна выходят на одну сторону.Приход прямоугольной формы, и от него веером вытянуты помещения. Справа большая вытянутая комната, вторая прямая. Слева ванная, чуть дальше — кухонная комната. К преимуществам этого варианта относится хорошая освещенность. К недостаткам — плохая естественная циркуляция воздуха и меньшая площадь по сравнению с угловыми циферблатами. Разница в молитве почти 10 «квадратов». При этом линейная квартира дешевле «распылителей».
Приобретая жилье такого типа в доме П44, вы вкладываете деньги в хорошую, к тому же ликвидную, недвижимость.Все упирается именно в относительно невысокую цену.
Тип качания
Есть 2 распространенных варианта. С торца дома расположены двухкомнатные квартиры с эркерами в гостиной. Их меньшинство. Есть варианты и без Эркера. Особенностью планировки является то, что прихожая или холл располагаются во внутреннем углу. В отличие от линейных квартир тем, что комнаты несколько просторнее. В связи с тем, что большинство стен являются несущими, кардинальной перепланировки доменного интерьера не получится.Сделать помещения более удобными для их функционального наполнения. В конечном итоге возможны эксперименты с зонированием мебели и (или) мобильными перегородками.
Смотрите также: Дизайн однокомнатной хрущевки — Фото интерьера
Первый вариант исполнения
Это решение для молодой бездетной пары.
Возможно, кто-то работает вне дома, удаленно. При этом традиционное функциональное назначение комнаты сохраняется. Маленький квартал.Комната отведена под спальню, большую гостиную. Здесь владельцы смогут устраивать посиделки с друзьями. В зале холится большой угловой диван из декоративных подушек. Коридор от гостиной отделен глухой барной стойкой. Домашний офис удобно разместить на застекленной лоджии.
Второй вариант исполнения
Вариант уютного дома для семейной пары С 2 детьми. Бывает, что нет возможности приобрести более просторное жилье, поэтому приходится исходить из того, что есть.В этом случае детскую удобно разместить в большей комнате. Маленькая по площади комната будет служить родителям спальней. В детской комнате 2 кровати, шкаф и место для занятий будут свободны. Вторым рабочим столом целесообразно сделать теплую лоджию.
Если один ребенок намного старше, желательно купить для него раскладной диван.
В этом случае вы сэкономите место, а функциональность и удобство спальных мест не пострадают. Санузел лучше не совмещать, чтобы не было очереди в туалет и ванную.
Третий вариант исполнения
Самый популярный дизайнерский ремонт Для семьи из 3-х человек, где ребенок учится в школе или другом учебном заведении. Ему необходимо личное пространство со спальным и рабочим местами, а также шкаф для вещей. В этом случае в квартире получается две изолированные спальни. Место для семейных посиделок – кухня. Ванную лучше не совмещать. В ванной для экономии места можно использовать не ванну, а кабину с душевой кабиной.
Вы совмещаете ванную комнату и ванную комнату?
В домах серии П-44Т санузел раздельный. Исключение составляет только однокомнатная квартира. Это создает определенные трудности при разработке дизайна, так как помещения совсем крохотные. Даже при объединении площадь комнаты не более 4,5 «квадратов».
Кроме того, вентиляционный бокс «съедает» часть полезного пространства в туалете. Максимальный размер Ванны в длину получается 1.6 м, поэтому некоторые семьи предпочитают вовсе отказаться от него, установив душевую кабину. По мнению дизайнеров, оба варианта: объединить две комнаты или оставить все как положено. Все зависит только от пожеланий владельцев жилья. Рассмотрим возможные варианты решения пространства.
Использование раздвижной двери
Роль перегородки играет раздвижная дверь. Таким незамысловатым способом Вы получаете «трансформирующийся» интерьер. Конечно, это совмещенный санузел с большой площадью, чем изначально, при необходимости его можно превратить в раздельный.Места для большой ванны явно недостаточно, поэтому имеет смысл заменить ее душевой. Если перегородка и дверь кабины выполнены в едином стиле, то помещение кажется более просторным.
Смотрите также: Дизайн двухуровневой квартиры +50 Фото идей
Идея для совмещенного санузла
Расположение гигиенический душ С поддоном рядом с туалетом, сэкономит место.
По сравнению с душевой кабиной, монтировать поддон намного проще. Есть модели из разных материалов.Поддон оснащен витыми ножками, поэтому нет необходимости идеально выравнивать поверхность. Важно правильно определить место для сливного отверстия.
Отдельная ванная комната
Не всегда можно объединить две комнаты. В этом случае, чтобы выиграть пространство, кабину с душем или ванной желательно поставить параллельно двери. Сантехническая проводка скрыта за декоративным экраном. Поскольку помещения просторными не назовешь, целесообразно использовать подвесные конструкции Раковины и унитазы.
Интерьер с бойлером или бойлером
Это еще один вариант, когда не нужно ничего менять в исходной раскладке. Котел спрятан внутри фальшкода, расположенного в туалете. При этом блок скрыт и установка унитаза. Электрический котел можно заменить на газовую водяную колонку.
Полная перепланировка санузла
Если монтировать душ на место унитаза, освобождается значительная часть пространства в противоположном углу.
Здесь есть угловая столешница и встроенная раковина. Под ней найдется место для малогабаритной стиральной машины. Туалет переносится на соседнюю стену.
Устройство Эркера
Прежде чем говорить о дизайне Эркера в гостиной, необходимо определить, какую функциональную нагрузку он должен нести:
- Самый распространенный вариант – обустроить зону отдыха. Такое решение подойдет тем, кто любит после работы отдохнуть на диване, с книгой или перед телевизором.Вопрос с мебелью решается элементарно: достаточно дивана (иногда его заменяют двумя креслами) и небольшого журнального столика.
- Erker идеально подходит под рабочее место. Для семей с детьми это актуально, поскольку невозможно выделить под домашний офис отдельную комнату.
- Выступающая часть комнаты — отличное место для размещения электрокамина. Он полностью безопасен и соответствует специфике Erker.
- Необычное решение: оборудовать игровую зону для ребенка.Это особенно удобно для семей, где у подростка своя комната, а малыш располагается с родителями в холле.

- Эркер — идеальное место для размещения декоративных предметов: уличной вазы или небольшой оригинальной скульптуры.
Так же надо подумать «одежка» для окон. Цель конструкции лучника – обеспечение хорошего освещения в помещении. Поэтому глухие тяжелые портьеры вряд ли подойдут. Конкретный вариант шторки зависит от сценария использования эркера.Рулонные шторы или жалюзи подойдут для домашнего ботанического сада или рабочего кабинета. Обеденную зону или место для отдыха желательно украсить шторами из легкого текстиля. Соответствует использованию профиля, круглого или струнного. Если вам нравится все нестандартное и уникальное, стоит задуматься о витражном остеклении.
Посетим сегодня 3 комнатную квартиру, панельный дом Серия П-44Т от застройщика ДСК-1
Квартира получилась хорошая и просторная, но дизайнеры не стали мудрить с дизайном и планировка получилась похожей на другие подобные трехкомнатные квартиры панельных домов.Комнаты все изолированы друг от друга.
На кухне добавлен большой эркер, а в комнате угловой квартиры есть треугольный эркер. В двух комнатах есть балконы.
Рассмотрим планировку трехкомнатной квартиры со следующими размерами:
Комната с балконом 17,8 кв.м. (в Схеме №1)
Комната без балкона 14,1 кв.м. (в Схеме №2)
Комната с балконом Утюг 11 кв.м. (в Схеме №3)
Кухня с большим байкером 12.9 кв.м. (в схеме №4)
Коридор с прихожей 14,6 кв.м. (на схеме №7)
Жилая площадь 42,9 кв.м
Общий вид квартиры без балкона 70,4 кВ, м
планировочная схема трехкомнатной квартиры П-44Т с размерами
Открыть входную дверь И попасть в предбаннер. Есть стена с находкой, в которой первоначально была сделана небольшая арка. Прямо за дверью небольшое пространство, где может поместиться небольшая гардеробная или кушетка для обуви.
В этом варианте мы видим пример такой обувной трубки.
Также на этом месте можно разместить красивое большое зеркало В полный рост.
Проходим вперед и попадаем в самый центр коридора. Встречаем три двери. Левая большая двустворчатая дверь ведет нас в комнату площадью 11 кв.м. и обувь для балкона. И две соседние двери являются комнатами. Что правильно, чем большая комната 17,8 кв.м. с багажником балкона, а та что слева маленькая комната 14 кв.м. без балкона.
Несколько интересных идей в дизайне прихожей трехкомнатной квартиры. На фото видно, что в ближний номер вышла дверь купе.
Еще один интересный вариант прихожей. Освещение было установлено в арке.
А здесь, в правой части синего коридора, колонны с примененной в оформлении подсветкой.
Расстановка мебели в прихожей
Если места в комнатах больше и не захламляют шкафы комнаты, для этих целей подойдет прихожая.
На длинной стене будет установлен большой шкаф.
Кто не полностью перешел на электронные книги, но собирает домашнюю домашнюю библиотеку, интересное решение будет, если в прихожей разместить полки для книг.
В углу подойдут угловые полки.
Комната с балконом утюг
С прихожей заходим в комнату с большим дверным проемом. Обычно это помещение используют под гостиную или комнату.Комната не очень большая, но квадратная.
А если убрать окно Рамы. и демонтировать часть подоконника, можно расширить комнату и соединить вместе с балконом.
Не всегда хватает жильцам трех комнат. Часто на балконах организуют работу кабинетов. Получается, что они в такой ситуации, когда дорог каждый квадратный метр.
Разворачиваемся спиной к балкону и видим две межкомнатные двери, в типовой планировке чистовой ремонт от застройщика ДСК-1
Можно немного обыграть дверной проем.Делаем небольшую арку и меняем обычные двери на раздвижные.
Две двери занимают много места. А если сделать одностворчатую дверь, можно поставить угловой шкаф в угол комнаты.
А иногда и всю стену разбирать.
И получается вместо комнаты просторная комната, соединяющаяся в одно целое с прихожей.
Большая комната с балконным башмаком
Стандартный большой номер с балконом. Размер по длинной стене 5.56 кв.м и короче 3,22 кв.м. Его можно оформить как для родительской, так и для детской комнаты.
Если балкон утеплен, стены можно оклеить обоями. Выведите розетку на балкон и повесьте светильники для освещения.
Стены, которые мы помним с советских времен, становятся все менее популярными. Вместо этого в дизайне и интерьере квартиры часто появляются длинные дресоны.
Но цветы были как в моде, так до сих пор украшают наши квартиры.
Комната без балкона
В третьей комнате нет балкона. Большое и широкое окно. Размер на одну стену 4,34 кв.м. и на стене с окном 3,22 кв.м.
Хорошая спальня. Плотные темные шторы помогают выгореть от утреннего солнца и выспаться на мягкой постели в выходной день.
Большие картины на стене оригинально смотрятся на кровати.
Шкаф не будет лишним предметом в комнате.
Ванна и туалет в 3-х комнатной квартире
Выходим из комнаты и идем на кухню. По пути в коридор попадаем на ушко двери в ванную и туалет, а правый коридор пуст, но очень удобное место для гардероба.
Приобретение собственного жилья – значимое событие в жизни любого человека. После получения долгожданных ключей сразу хочется заняться ремонтом.
Разработка индивидуального дизайнерского проекта Направлена, прежде всего, на создание помещения, соответствующего темпераменту и интересам его владельцев, количеству членов семьи и другим индивидуальным потребностям.
На стену можно повесить модульную картину
В спальне можно повесить телевизор
В гостиной можно организовать рабочее место
Но услуги дизайнера не востребованы, и работа занимает 1-2 месяца. Для экономии времени и средств существуют универсальные варианты типовых проектов 2-комнатной квартиры в домах серии П-44Т.
Прежде чем приступить к выбору проекта и зонированию квартиры, стоит внимательно ознакомиться с ее общими техническими характеристиками.Они показаны в таблице ниже.
Подсветка потолка в интерьере спальни красиво смотрится
На стол в гостиной можно поставить вазу с цветами
К сожалению, вероятность серьезной перепрошивки в этих домах незначительна. Почти все стены являются несущими. Единственное, что можно поменять, это ванную комнату, т.к. перекрытия там сделаны из гипсокартона. Относительно допустимости присоединения лоджии к комнате однозначного решения нет, до сих пор ведутся споры.
В домах постройки после 2007 года в несущих перекрытиях между кухней и комнатой в некоторых квартирах есть специальные ниши, которые при желании можно убрать. Проекты трехкомнатных квартир П44Т представлены двумя типами планировок:
Дизайн спальни выполнен в современном стиле Цвет шоколада
Угловой диван на кухню прекрасно дополняет интерьер
Дизайн спальни в современном стиле
Двухкомнатный номер, 60-64 кв.
м., есть кухня с большой эркером. В каждом номере есть довольно широкий балкон. Площадь линейных двуспальных 51-53 кв.м. В них нет таких просторных коридоров и маленьких балконов.
Итак, в данной статье представлены фото самых распространенных проектов, которые встречаются в двухкомнатных квартирах, а также фото дизайна квартир, выполненных в разных стилях.
Пол в гостиной из темного дерева
В потолке гостиной можно установить светильники.
Этот вариант подойдет одиноким людям, или семьям из двух человек без детей, так как в проекте всего одна спальня. Вторая комната Б. в данном случае играет роль гостиной. В ней с помощью зонирования, показанного на фото, можно обустроить столовую. Тогда будет вполне целесообразно сделать дверной проем или арку между комнатой и кухней (если конечно позволяют технические характеристики Вашей квартиры).
Если обеденную зону не хочется выносить за пределы кухни, то гостиную, в рамках того же проекта, можно переоборудовать под кабинет, библиотеку или творческую мастерскую.
Все зависит от интересов и требований владельцев.
Абсолютно вся кухня выполнена в белом цвете
На кухне можно сделать барную стойку
Дизайн номера выполнен в современном стиле.
Вариант проекта №2: спальня (гостиная), детская, кухня (столовая).
Этот проект подойдет семьям с детьми. Предусмотрена детская, которая будет для маленьких членов семьи и спальней, и игровой, и кабинетом (если дети достигли школьного возраста).Для полноценного развития ребенка нельзя пренебрегать ни одним из этих пунктов. На фото примеры зонирования детской для мальчика и для девочки.
Вторая комната предназначена служить не только местом принятия гостей, но и спальней родителей. В таких случаях при создании дизайнерского проекта акцент делается на гостиную, а роль спальни выполняет разборный диван или кровать, спрятанная во встроенной мебели.
Современная гостиная в стиле минимализма
Отделка стен балкона может быть выполнена декоративным камнем
Вариант проекта №3: Санузел совмещенный.

Технические характеристики 2-х комнатной квартиры П44Т позволяют совместить ванную и туалет. Такая конструкция дает возможность не только увеличить площадь санузла, но и, разместив коммуникации, выделить место под кладовку, например.
Конечно, на такую серьезную перепланировку потребуется разрешение. ЖКХНо оно того стоит.
Во-первых, совмещая санузел, появляется больше вариантов расстановки мебели, размещения бытовой техники или шкафов.Фотографии наглядно демонстрируют все преимущества данного проекта.
Во-вторых, возможность соорудить дополнительное место для хранения в виде отдельной кладовой или гардеробной — бесценно.
Дизайн гостиной выполнен в шоколадном цвете
Подсветка натяжных потолков Становится все популярнее
Из дерева можно сделать эту стену
Помимо функционального распределения помещений, при создании проекта особое внимание уделяется выбору стиля, в котором будет выполнен дизайн интерьера.
Наиболее распространенными и модными сегодня являются: Авангард, Хай-Тек, Лофт, Модерн, Поп-Арт и даже Кантри. Вот фото квартир, оформленных в разных стилистических направлениях.
Дизайн интерьера в стиле модерн
На самом деле, говоря о проекте в современном духе, каждый подразумевает свое направление. Но самый смысловой образ, который не предполагает излишней помпезности, раздевания или стилизации под старину. Дизайн интерьера квартиры, выполненный в современном стиле, отличается функциональностью, многоступенчатым освещением и модными предметами декора.Сейчас доступно множество фото готовых проектов, позволяющих сориентироваться в многообразии стилистических решений и выбрать наиболее подходящее направление.
Дизайн гостиной в кремовых тонах и ярких шторах
Дизайн спальни выполнен в сером цвете
Цветовая отделка
По площади 2-х комнатные квартиры проекта П44Т относительно небольшие. Поэтому вопрос выбора цвета отделки так важен.
Он не только создает атмосферу и настроение, но и помогает визуально скорректировать пространство, как на фото, подчеркнув индивидуальность проекта.
Человек, приходя домой, должен отдыхать душой. Многие считают, что яркие цвета в интерьере быстро надоедают, а со временем начинают раздражать. Дизайнеры интерьеров в корне не согласны с этим мнением. Представленные фотографии, доказывают обратное. Если знать несколько секретов и придерживаться некоторых принципов, с помощью ярких насыщенных оттенков можно визуально расширить пространство квартиры, сделать ее теплой и уютной.
Главное правило при сочетании нескольких оттенков яркой палитры – обязательно использовать «цветовой круг».
Сочетание белого и черного в интерьере гостиной
На стены можно установить светильники, а на потолок сделать подсветку
Отделка стен в туалете из плитки
Стиль лофт
Этот стиль еще называют индустриальным. На фото квартира выполнена в таком дизайнерском решении.
Внешне они напоминают заброшенные производственные цеха.
Одной из особенностей этого проекта является свободное место и минимальное количество разделов.В однокомнатной квартире П44Т с планировкой «Распределитель» предусмотрена возможность соединения смежных комнат и кухонь. Целиком, конечно, убрать несущие перекрытия не получится, но можно сделать арочный дверной проем.
Современная гостиная с небольшим камином
Зеленая мебель в интерьере серой кухни
Стены квартиры покрыты штукатуркой, и это достаточно черновая отделка. А затем раскрасить в темно-серые или коричневые оттенки.Также для стен частично используют кирпичную кладку. Для пола в духе Лофт характерны натуральные материалы: камень или дерево.
Минимальное количество мебели:
Все это признаки дизайн-проекта квартиры в стиле Лофт.
Видео: Обзор 2-х комнатной квартиры
Дом П44Т: планировка с размерами
В современном городском хозяйстве наиболее распространенной является компоновка П44Т, обладающая рядом безусловных преимуществ.
В семидесятые годы началось строительство новых домов серии П44 по типовым проектам.По сути, это был первый шаг к дальнейшему развитию и внедрению более современной технологии строительства и планировки жилых помещений.
Особенности компоновки П44Т
П44Т — компоновка с габаритами, соответствующими требованиям настоящего времени, предлагает около десяти решений. Разработаны варианты жилых секций для обычных и угловых квартир. Данная планировочная модель применяется для жилых высотных зданий высотой от 9 до 25 этажей.Для комфортного подъема жильцов и мебели на нужный этаж предусмотрено как минимум два лифта: пассажирский и грузовой.
Современные идеи планировки
Основная идея планировки P44T – максимальное использование пространства. В этом контексте можно привести пример удачного инженерного решения, позволившего увеличить площадь кухни. Такие важные для каждой хозяйки квадратные метры кухни высвободились за счет размещения вентиляционного канала в коридоре.
П44Т – планировка с размерами, предполагающими высоту 2.7 м, что обеспечивает комфорт и хороший доступ дневного света в квартиры. Современные планировочные идеи позволили использовать чердачные помещения. На мансардных этажах планировка квартиры П44Т с увеличенными до 4,2 м размерами шага поперечных стен дает возможность идеальной благоустройства помещений. Часто их объединяют с обычным полом, в результате чего получается двухэтажная квартира.
Преимущества P44T
Планировка дома P44T с размером внутреннего перекрытия 0.14 м и 0,18 м отличается надежностью и долгим сроком службы. Прочность и устойчивость наружных стен перед внешними воздействиями обеспечивается отделкой керамической плиткой толщиной 0,30 м, имитирующей кирпич, надежно закрепленной на фасаде. Использование качественных стеклопакетов гарантирует хорошую теплоизоляцию, защиту от шума и создает уют. Оснащение различными современными системами управления дает гарантию безопасности при пожаре и при угрозе затопления.
Также в многоэтажных домах этого типа устанавливаются датчики открытия дверей технических помещений и электросчетчики.П44Т — планировка с размерами, соответствующими типовым нормам данных проектов, предполагает прокладку проводов электричества в панелях. Это повышает безопасность эксплуатации и защиту самих проводов при любых ремонтных или строительных работах.
Очень важными преимуществами дома планировки П44Т являются короткие сроки строительства и длительный период эксплуатации. Срок службы специалистов составляет более ста лет.
Планировка П44Т с размерами стен значительно больше, чем в домах, построенных в предыдущие годы, обеспечивает дополнительную надежность конструкции, лучшую звукоизоляцию квартир и хорошую теплоизоляцию помещений.В конструкции используется качественный тяжелый бетон, отвечающий за повышенную износостойкость.
Недостатки П44Т
Наряду с рядом достоинств можно назвать и некоторые недостатки, встречающиеся в домах данного типа. Одним из них является неровность стен и полов.
Убрать такой недостаток несложно, выполнив выравнивание и обеспечив дополнительную шумоизоляцию.
Технологические отличия компоновки П44Т 25
Компоновка П44Т 25 с описанными ниже размерами, Является современным и усовершенствованным вариантом компоновки, применяется для жилых домов высотой 25 этажей с увеличением площади квартиры.В домах такого типа ширина ступени стены больше в сечении, а трехкомнатные квартиры оборудованы дополнительным санузлом. Технологические отличия П44Т 25 заключаются в увеличенной этажности с увеличенным до трех количеством лифтов с грузоподъемностью двух из них по 630 кг и одного — 400 кг. Площадь кухни увеличена до 9 квадратных метров. м в однокомнатной; до 15,9 кв. м в двухкомнатной линейной; до 13,8 кв. м – в трехкомнатных и больших двухкомнатных квартирах.Общая площадь 1-/2-/3-комнатных квартир составляет 37,4-38,8/51,7-63,4/77-84,6 кв. м соответственно.
Эккерс в домах П44Т
П44Т — планировка с размерами, указанными выше, чаще предполагает использование эркеров, делающих квартиры не только эстетически более привлекательными, но и увеличивающих площадь помещений.
Часть оконного пространства выносят на внешний фасад в виде трапециевидного или другого выступа, увеличивая таким образом объем помещения.Чаще всего этот способ используют на кухнях. Благодаря эркерам помещение получает дополнительное освещение, увеличивается площадь, а фасад дома выглядит более привлекательно. Выступы могут быть разной формы: прямоугольной, треугольной, многоугольной или круглой. Эркер можно использовать и оформлять как отдельную зону, тогда он отделяется от основного помещения барной стойкой или визуальной перегородкой, например, ширмой. Особой популярностью пользуется и усеченный вариант — полуэркер.
Дизайнерские решения кухни или комнаты с эркером могут быть намного интереснее, чем обычно.
П44Т – планировка с размерами, идеально подходящими для комфортной жизни, на сегодняшний день наиболее распространена в многоэтажных жилых домах. Архитекторы и дизайнеры, работавшие над решением задач максимального удобства квартир, не только реализовали их в проекте, но и сделали планировку интересной и оригинальной.
Тип дома р 44т Планировка с размерами.Типовая серия дома П44Т с поэтажными планами. Внешняя отделка и конструктивные особенности серии
Начал строиться еще в 1997г. и по настоящее время. У него есть своя модификация, которая отличается от него только этажностью — это серия Р-44Т/17.
Дом П-44Т панельный, состоит из угловой и рядовой секций по четыре квартиры, где 1-комнатная жилая площадь 19м 2 , кухня 7-9м 2 , санузлы совмещенные; 2-комнатная квартира — 30-34 м 2 , кухня — 8-13 м 2 , санузлы раздельные; 3-х комнатная квартира — 44-54 м 2 , кухня — 10-13м 2 , санузел тоже раздельный.Все комнаты в квартирах домов серии П-44Т изолированные. Все квартиры имеют эркеры и просторные лоджии. Внутренние стены состоят из сборных железобетонных панелей толщиной 16 см и 18 см. Наружные стеновые трехслойные навесные панели с утеплителем из пенополистирола и с теплоотражающей металлизированной пленкой внутри утеплителя, общая толщина 30 см; с лицевой стороны облицованы плиткой под кирпич, начиная со второго этажа.
Перегородки из многих материалов: пазогребневые или пенобетонные блоки, гипсокартонные листы по металлическому каркасу, гипсобетонные прокатные панели, но чаще всего гипсобетонные, все они одной толщины — 8 см.Перекрытия — железобетонные плиты толщиной 14 см.
Серия жилых домов П-44Т имеет различные недостатки, такие как узкое помещение в двухкомнатных линейных квартирах (с окнами на одну сторону), швы между панелями требуют дополнительной брашировки (иначе будет холодно) . Возможности перепланировки в этом типе дома очень серьезно ограничены. Почти все стены несущие. Однако сохраняются следующие возможности допустимой перепланировки без ущерба для несущих конструкций:
- В трехкомнатных квартирах перегородка между большой комнатой и коридором ненесущая.
- Сантехнический узел изготовлен из гипса и может быть демонтирован и/или модифицирован.
- В домах постройки после 2007 года в несущих панелях между кухней и комнатой часть квартир имеет специальную нишу для изготовления дверного проема («вафли»), которую можно демонтировать.

Тем не менее, у этой серии есть ряд преимуществ: в планировки добавились эркеры, медная электропроводка, естественная вытяжная вентиляция, горячее водоснабжение с переливным разливом, внешний вид приобрел особую окраску – красный с песком, эркеры и лоджии окрашены в белый цвет.Для проживания в домах серии П-44Т бывает предусмотрен мансардный этаж. Появилась современная система безопасности, реагирующая на открытие офисных помещений, затопление или угрозу пожара.
В каждом подъезде имеется один пассажирский и один грузопассажирский лифт, в 20-25-этажных секциях (подъездах) — по 2 пассажирских и пассажирский. Количество подъездов от 1 до 8. Лестница бездымная, пожарного балкона нет. Мусоропровод находится на лестнице, с загрузочным клапаном на площадке.
Срок службы дома серии П-44Т около 100 лет, поэтому на снос в ближайшее время надеяться не стоит.
- Изготовитель: ДСК-1
- Разработчики: МНИИТЭП
Дома серии П44Т отличаются улучшенными планировками квартир, более эффективной тепло- и шумоизоляцией наружных стеновых панелей, а также наличием современных инженерных систем и систем безопасности (отопительные приборы с регуляторами температуры, медная проводка, технология закрытых стыков ( шов), международные стандарты капитальности и огнестойкости (1-й класс), современная система безопасности (реагирование на открытие дверей подвала, электрощита, чердака, шахты лифта; система оповещения о затоплении и пожаре). Серия п44т состоит из 14-17-этажных прямых и угловых блочных секций с различными вариантами кровли: с мансардой, с плоской крышей, с «покатыми» фризами, что позволяет собирать здания различной конфигурации и силуэта. Они могут иметь высоту 9-25 этажей. Новым решением фасадов серии стало сочетание панелей, облицованных матовой керамической плиткой под кирпич (ярко-оранжевой, реже песочной), с окрашенными поверхностями эркеров, лоджий, карнизов и других архитектурных деталей.
на торцах секций запроектированы треугольные эркеры. В проекте предусмотрено несколько вариантов остекления балконов и лоджий на северном фасаде. Серия п44т стала одной из самых популярных для строительства муниципального жилья в Москве с объемом строительства более 1 млн кв. м в год.
Усовершенствованы системы отопления, водоснабжения и вентиляции жилых домов по сравнению с серией Р44. Стояк Вентшахта, находившийся на кухне в Р44, перенесли в коридор возле Р44Т (рядом с ванной и туалетом).
Дом П44Т состоит из угловой и рядовой секций по четыре квартиры, аналогично базовой серии П44. Напротив, в кухнях двух- и трехкомнатных квартир П-44Т большие трапециевидные эркеры. При этом кухни односторонних двухкомнатных квартир, а также жилые комнаты парадных тельняшек (2-х и 3-х комнатные) имеют треугольные полуокна. Также увеличена площадь квартир.
Следует понимать, что П-44Т это, по сути, серия серий — есть проекты домов П-44ТМ или ТМ-25, а также П-44К, которые имеют ряд отличий в компоновке квартир, а также планировку типовых этажей.
Причем иногда строят жилые дома, состоящие из нескольких секций, например, две секции П-44Т и четыре секции П-44К. Возможны и другие комбинации конфигураций секций.
Типовые планировки квартир домов этой серии представлены ниже.
Чаще всего первый этаж жилой. Высота потолков в доме 2,70 м. Лифты в доме: пассажирский имеет грузоподъемность 400 кг, грузовой 630 кг.В доме на 20 и 25 этажах имеется один пассажирский и два грузовых лифта (модификация называется П-44Т/25).
Застекленные лоджии начинаются со второго или третьего этажа. В двух-трехкомнатной квартире также есть экеры и полуокна. На одном этаже расположены четыре квартиры.
Строительство таких домов началось в 1997 году, и успешно возводится сегодня.
Дома типа П-44Т строятся, как и в новых московских районах крупной застройки, таких как: Некрасовка, Новое Кожухово, Жулебино, Новокосино, Митино, Люблино, Марьинский парк, Южное и Северное Бутово, Ходынка и р-н поселок.Северный. Также ведется строительство в старых районах Москвы, где сносят пятиэтажки и ветхие дома: Южное Чертаново, Нагатино, Перово, Зюзино, Очаково, Солнцево, Кунцево, Черемушки, Фили, Ховрино, Бескудниково, Коптево, Дегунино, Медведково, Свиблово, Юрлово , Измайлово, Алексеево, Лефортово, Зеленоград, Щукино, ул.
Нижний Новгород, ул. 1905 г., ул. Борисовские пруды. Дома типа П-44Т строятся и в других районах Москвы (в том числе в ЦАО).
Новостройки П-44Т строятся не только в Москве, но и в городах Московской области. например: Балашиха, Железнодорожный, Люберцы, Лобня, Красногорск, Реутов, Москва, Котельники, Щербинка, Одинцово, Химки, в д. Медвежьи Озера и д. Голубое, также в ел. Пихтино и д. Брехово, а также в жилом комплексе «Бутово-Парк».
Около 600 таких домов построено в Москве и Московской области. — около 200 (включая строящиеся).По заявлению производителя срок эксплуатации такого дома составляет 100 лет.
Однокомнатная квартира: жилая площадь может достигать 19 квадратных метров. м, площадь кухни до 8,4 кв. м. но не менее 7,4 (в доме 25 этажей кухня около 9 кв.м), общая площадь может достигать 40 кв.м. м. но не менее 37 кв. м
Двухкомнатная квартира: жилая площадь может достигать 34 квадратных метров. м. но не менее 19, площадь кухни до 13.2 квадратных метра.
м. но не менее 8,3 кв. м. (в доме 25 этажей, кухня от 12,8 до 13,8 кв.м), общая площадь доходит до 64 кв.м. м. но не менее 52 кв. м
Трехкомнатная квартира: жилая площадь может достигать 54 кв. м. но не менее 44 кв. м., площадь кухни до 13,2 кв. м. но не менее 10 кв. м., общая площадь достигает 84 кв. м. но не менее 70 кв. м
Комнаты в домах серии П-44Т все изолированные.Раздельные санузлы делаются только в двух- и трехкомнатных квартирах, в однокомнатной квартире санузел совмещен. Ванны размером 1,7 м (стандарт).
Лестницы ровные, в домах на 20 и 25 этажах (тип П-44Т/25) балконы общие. На всех этажах имеется мусоропровод с загрузочным клапаном.
Электрическая плита. Естественная вытяжная вентиляция и вентиляционные установки в коридоре и санузле.
Наружные стены: трехслойные, толщиной 30 см, панели железобетонные (теплоизоляция таких стен равна кирпичу толщиной 90 см, как заявляет производитель).Межкомнатные и межкомнатные несущие — железобетонные панели толщиной 16 — 18см.
Перегородки из гипсокартона толщиной 8 см. Потолки в помещении крупногабаритные, плиты железобетонные толщиной 14 см.
Продольные межквартирные несущие стены (в крайних квартирах, в том числе внутренние). Все стены (межбалконные, межквартирные и межквартирные) относятся к поперечным несущим.
Типы секций: рядовые (рядные, П-44-1), торцевые и угловые (поворотные). В подъезде два входа от электрощита.
В подъезде семь ступеней: ширина одной ступени (шаг — расстояние между двумя несущими стенами) 300 сантиметров (на трех центральных пролетах секции), на остальных секциях — 360 сантиметров.
Варианты цвета наружных стен могут быть: песочный, темно-оранжевый и красный. Первые этажи могут быть: белыми или серыми с каменной отделкой.
Кровля из плоской черепицы BRAAS DSC1. Над верхним (последним) жилым этажом находится технический этаж.
Отличительной особенностью дома типа П-44Т от более устаревшего типа П-44 (которые строились с 1979 по 2000 год) является другое: более высокая теплоизоляция, большая кухня, за счет выноса вентиляционного канала в коридор, и отделка наружных стен кирпичом и эркерами.
Также к преимуществам можно отнести: медную проводку, терморегулируемые отопительные приборы, первые классы мировых стандартов по капитальности и огнестойкости, подачу горячей воды с переливным разливом, быстрое строительство (этаж за три дня).
Но есть и недостатки домов этой серии: качество монтажа некоторых элементов наружных стен в отдельных домах, в двухкомнатных квартирах (линейки, с окнами в одну сторону), узкая маленькая комната.
В некоторых домах типа П-44Т можно купить квартиру с муниципальной отделкой.
По улице Маршала Василевского в 1997 году был построен первый жилой дом типа П-44Т. На набережной Яузы Рубцовского района построен один из самых видных, многоэтажных домов Москвы из блоков секций П-44Т и П-44М .На стандартной базе типа П-44Т в 2005 году были созданы типовые блоки — секции из типа П-44К , где на одну ступень меньше в каждой секции (6 ступеней вместо семи), естественно только в однокомнатных и двухкомнатные квартиры.
На сегодняшний день эти виды более активно строятся на МКАД.
Ниже — больше фото и планировок квартир этой серии (нажмите на фото для увеличения и дополнительной информации).
В современном городском строительстве наиболее распространенной является компоновка П44Т, обладающая рядом безусловных преимуществ.Еще в семидесятые годы началось строительство новых домов серии П44 по типовым проектам. По сути, это был первый шаг к дальнейшему развитию и внедрению более современных технологий строительства и планировки жилого пространства.
Особенности компоновки П44Т
П44Т — компоновка с габаритами, отвечающими требованиям современности, предлагает около десяти решений. Разработаны варианты жилых секций для обычных и угловых квартир.Данная планировочная модель применяется для жилых многоэтажных домов высотой от 9 до 25 этажей. Для комфортного подъема жильцов и мебели на нужный этаж предусмотрено как минимум два лифта: пассажирский и грузовой.
Современные идеи планировки
Основная идея планировки P44T – максимальное использование пространства.
В данном контексте можно привести пример удачного инженерного решения, позволившего увеличить площадь кухни. Столь важные квадратные метры кухни для каждой хозяйки освободились за счет размещения вентиляционного канала в коридоре.P44T представляет собой планировку с размерами, предполагающими высоту помещения 2,7 м, что обеспечивает комфорт и хороший доступ дневного света в квартиры. Современные планировочные идеи позволили использовать чердачные помещения. На планировке квартиры П44Т шаг поперечных стен увеличен до 4,2 м, что позволяет отлично благоустроить помещение. Часто их объединяют с обычным этажом, в результате чего получается двухэтажная квартира.
Преимущества П44Т
Планировка дома П44Т с размерами внутренних перекрытий 0.14 м и 0,18 м отличается надежностью и долгим сроком службы. Износостойкость и устойчивость наружных стен к внешним воздействиям обеспечивается отделкой керамической плиткой толщиной 0,30 м, имитирующей кирпич, которая прочно крепится к фасаду.
Использование качественных стеклопакетов гарантирует хорошую теплоизоляцию, защиту от шума и создает комфорт. Оснащение различными современными системами управления дает гарантию безопасности при пожаре и при угрозе затопления. Также в этом типе устанавливаются датчики открытия дверей технических помещений и электросчетчики.П44Т – планировка с размерами, соответствующими типовым нормам этих проектов, предполагает прокладку электрических проводов внутри панелей. Это повышает безопасность эксплуатации и защиту самих проводов при любых ремонтных или строительных работах.
Очень важными преимуществами дома планировки П44Т являются короткие сроки строительства и длительный период эксплуатации. Срок службы, гарантированный специалистами, составляет более ста лет.
Планировка П44Т с размерами стен значительно больше, чем в строящихся домах прошлых лет, обеспечивает дополнительную надежность конструкции, лучшую звукоизоляцию квартир и хорошую теплоизоляцию помещений.При строительстве используется качественный тяжелый бетон, отвечающий за повышенную износостойкость.
Недостатки П44Т
Наряду с рядом достоинств можно назвать некоторые недостатки, встречающиеся в домах данного типа. Одним из них является неровность стен и полов. Устранить такой недостаток несложно, выполнив выравнивание и обеспечив дополнительную шумоизоляцию.
Технологические отличия планировки П44Т 25
Компоновка П44Т 25 с размерами, описанными ниже, является современным и усовершенствованным вариантом планировки, применяемой для жилых домов высотой 25 этажей с увеличением площади квартир .При этом ширина шага стен в сечении больше, а трехкомнатные квартиры оборудованы дополнительным санузлом. Технологические отличия П44Т 25 заключаются в повышенной этажности с увеличенным до трех количеством лифтов грузоподъемностью двух из них 630 кг и одного — 400 кг. Площадь кухни увеличена до 9 кв. м в однокомнатной; до 15,9 кв. м в двухкомнатной линейной; до 13,8 кв. м – в трехкомнатных и больших комнатах.Общая площадь 1-/2-/3-комнатных квартир составляет 37,4-38,8/51,7-63,4/77-84,6 кв.
м соответственно.
Эркеры в домах П44Т
П44Т — планировка с размерами, указанными выше, все чаще предусматривает использование эркеров, делающих квартиры не только эстетически более привлекательными, но и увеличивающих площадь помещения. Часть оконного пространства выносят на внешний фасад в виде выступа трапециевидной или другой формы, увеличивая тем самым объем помещения.Чаще всего этот способ используют на кухнях. Благодаря эркерам помещение получает дополнительное освещение, увеличивается площадь, а фасад дома выглядит более привлекательно. Выступы могут быть различной формы: прямоугольной, треугольной, многоугольной или округлой. Эркер можно использовать и оформлять как отдельную зону, тогда он отделяется от основного помещения барной стойкой или визуальной перегородкой, например, ширмой. Заслуженной популярностью также пользуется укороченный вариант, полуокно.
Дизайнерские решения для кухни или комнаты с эркером могут быть намного интереснее, чем обычно.
П44Т – планировка с размерами, идеально подходящими для комфортной жизни, на сегодняшний день наиболее распространена в многоэтажных жилых домах. Архитекторы и дизайнеры, работавшие над решением задач максимального удобства квартир, не только реализовали их в проекте, но и сделали планировку интересной и оригинальной.
Данные размеры были сняты лично мной в моей квартире на этапе завершения монтажа дома.Относительно размеров стоит отметить, что чем выше этаж, тем больше площадь квартиры, так как стены на верхних этажах темнее. В моем случае площадь квартиры составляет более 0,5 квадратных метров от площади, указанной в предварительном договоре купли-продажи квартиры и это приятнее, чем получить минус в площади расположенной квартиры на одном из нижних этажей.
Теперь приступим непосредственно к планировке квартиры и сравним ее с другим предложением трехкомнатной квартиры в доме серии 111-М от компании ГВСУ.Замеры трехкомнатной квартиры представлены на следующем рисунке:
Сравнение 3-х комнатных квартир серий П-44Т и 111-М
Площадь этих квартир практически одинакова — кому что больше нравится.
Это дело вкуса и потребностей, но компоновка Р-44Т мне понравилась. Почему?
1. Расположение ванной комнаты.
В П44-Т санузел находится в коридоре возле прихожей, а в 111-м между двумя комнатами.Во втором варианте в комнатах возле ванной всегда будет слышен шум воды, открывающихся и закрывающихся дверей, что будет нарушать тишину в этих комнатах.
2. Кухня.
В П44-т и 111-М кухни имеют схожие площади, но в первом варианте кухня имеет эркер. Благодаря эркеру на кухне всегда будет светло, кухня будет иметь более красивый вид.
3. Коридор.
В Р-44т коридор шире и короче, что позволит установить в нем хороший шкаф для несезонной одежды и прочего, а в 111-м коридор узкий и длинный, что не позволяет принимать преимущество своей площади.
4 комнаты
В П-44Т понравилось то, что комнаты шире, что позволяет полнее использовать их площади, а в 111-М комнаты довольно узкие, что не позволит разместить мебель на обоих стороны комнат.
Если есть вопросы, то задавайте их в комментариях — отвечу!
Макет П-44Т с размерами
Планировки квартир в П44Т с вариантами перепланировки
Планировки двухкомнатных квартир серии П 44т
Жилет из двух частей
Обычно имеет площадь около 60-64 кв.м. На кухне большой эркер, а в каждой из комнат есть просторный балкон. По сути, это та же трешка только с «укушенной» одиннадцатиметровой комнатой и примыкающим к ней участком коридора.
Линейный спаренный П-44Т
Площадь односторонних двухкомнатных квартир колеблется в районе 52 кв.м (51-53 кв.м). В них есть небольшие коридоры и балконы.
Однокомнатная квартира П-44 Т
Площадь однушки в Р-44Т около 36-38 кв.м. Они имеют небольшой балкон и совмещенный санузел.
Квартиры трехкомнатные П-44Т
Наибольший разброс наблюдается по площадям и конфигурациям трехкомнатных квартир серии П-44Т (примерно от 73 до 86 метров).
Планировочных решений тоже много. Кухни в угловых секциях не имеют эркеров, а их площадь обычно не превышает 10 метров. При этом 3-х комнатные квартиры в рядовой и торцевой секциях П-44Т могут похвастаться кухнями с эркером и общей площадью от 12 до 14 кв.м.
Трешка с эркером в комнате (конец квартиры п44т)
Дизайн кухни в домах серии П44Т с помощью Erker. Кухонные проекты с Erker
Любители нестандартных решений и оригинальных интерьеров наверняка будут рады помешать такому элементу в своей квартире, как эркер.
Кухня с эркером
Так называют архитектурное решение, при котором создается выступ на здании.Он интересно смотрится снаружи, образуя приятные взгляду выпуклости и сложные формы, а внутри добавляет хотя бы минимум дополнительного пространства. Размеры и форма эркеров могут быть разными: они могут быть очень просторными или очень маленькими; полукруглой, треугольной, прямоугольной или более сложной формы, и нужно уметь обыграть этот нестандартный ход в интерьере.
Необычно смотрятся эркеры в просторных гостиных, в спальнях, в детских, но чаще всего в нашей стране планируют дизайн кухни с ковшом, объединяя ее с гостиной или столовой или просто добавляя полезное пространство самой маленькой кухни.
Основными функциями эркера в помещении является проникновение максимума света и создание дополнительного пространства, а также, естественно, играет декоративная составляющая.
Выбор какой будет кухня с эркером зависит от размеров помещения и самого эркера. Так, можно рассмотреть разделение обшивочной части и основной части помещения с помощью арок, неполных перегородок или светопрозрачной ширмы, чтобы не препятствовать проникновению света, или вариант со слиянием эркера с остальная кухня.Первый вариант подойдет для эркеров большой площади, где можно создать самостоятельную уютную зону отдыха или рабочий кабинет, правда, при этом уменьшив пространство самой кухни, а второй вариант – для небольших выступов, которые полностью вовлечены в создание единого интерьера.
Особенности дизайна кухни с помощью Erker
Основные принципы, которыми руководствуются при создании дизайна кухни с помощью Erker, следующие:
— пространство у окон, независимо от их размера (во всю высоту стены или стандартные варианты), не нужны, иначе мешает проникновению света в комнату и зрительно уменьшает пространство,
— Дизайн кухни с Erker обеспечивает пастельные оттенки, светлые тона, которые дополнительно наполнят помещение воздухом и светом.
Эти принципы не означают, что кухня с Erker не может быть яркой. Вполне уместно использовать в интерьере яркие детали и аксессуары, благо на кухне таких деталей может быть масса: подушки на стулья, скатерть, лента, посуда и т. д. Кстати, для придания яркости можно подобрать интересные шторы на кухню с эркером, например, яркие однотонные или с цветочным рисунком. Главное, чтобы они гармонировали со всем остальным интерьером и подчеркивали красоту нестандартной планировки, находясь при этом в непосредственном взаимодействии с обшивочной частью пространства.
Варианты планировки
Имея нестандартное планировочное пространство, с Erker можно создать совершенно другой дизайн кухни. Выбирать подходящий вариант необходимо, исходя из потребностей владельцев жилого помещения. Кого-то постоянно устраивают вечеринки, поэтому нулевую гостиную желательно увеличить, установить барную стойку или мягкую зону для гостей. Еще недостаток места, где можно посидеть в тишине и поработать, так это все лишнее пространство на кухне.Некоторые хозяева хотят готовить и видеть за окном красивый пейзаж, для чего рабочая зона кухни располагается в непосредственной близости от Эркера или непосредственно в нем. Рассмотрим основные варианты использования Erker на кухне подробнее.
Рабочая зона
Основным вариантом при оформлении кухни с эркером является расположение в сервировочной части рабочей зоны. Правда, такая опция предусмотрена только для Erker, в которых окна стандартной высоты.Стоит сразу отметить, что стандартные кухонные гарнитуры в дизайне кухни с эркером не впишутся, поэтому кухню придется делать на заказ.
Сюда можно установить одинарную столешницу, переходящую в подоконник. Самый популярный вариант такой планировки – размещение мойки напротив окна. Плиту здесь устанавливать нецелесообразно, потому что окно будет постоянно выгорать, а установить вытяжку будет крайне проблематично.
Еще один вопрос, который необходимо решить при планировании, это установка аккумулятора. Под окном в самолете практически всегда устанавливается батарея, но многие решают ее демонтировать, мотивируя это тем, что сама кухня – самая теплая в доме. Это не всегда правильно, ведь через большие окна и потери тепла могут быть значительными. Если есть возможность установить мебель так, чтобы не снимать батарею, лучше ее оставить. Если такой возможности нет, необходимо позаботиться о рассмотрении других вариантов обогрева помещения.
Обеденная зона
Другим вариантом, подходящим для довольно просторных кухонь, является размещение в обшивочной части столовой или гостиной.
Чаще всего стол и сиденья устанавливаются непосредственно в него. Причем можно создать своеобразный романтический уголок с двумя стульями возле стола, а также вариант с большим столом на 6-8 человек. Еще один способ обустроить эту зону – прямо на подоконнике по периметру эркера ставится лавочка или кушетка с мягкими подушками, рядом ставится стол и стулья.Такая кухня с Эркером подразумевает максимум гостевых мест, а также мягкую зону отдыха для самих хозяев. Чтобы использовать пространство с пользой, в кулцид можно встроить ящики или полки для хранения.
Здесь основным моментом является выбор обеденного стола. Он должен по возможности повторять форму эркера, например, для полукруглого эркера подбирается овальный или круглый стол, для треугольного или прямоугольного выступа — квадратный или прямоугольный стол. Потолок над обеденной зоной также лучше выделить по контуру стола, что позволит зонировать комнату без использования дополнительных средств.
Укромный уголок
Для относительно большой площади Эркера можно придумать вариант с проживанием здесь и просто уединенной зоной отдыха.
Конечно, гореть проще всего с ее шторами, но выбирая шторы на кухню с эркером, стоит помнить о необходимости проникновения естественного света во все остальное. Для гашения обшивочной части можно поставить небольшие полочки, равные высоте стандартного подоконника, даже если окна в эркере сделаны во всю высоту стены.На таких полках, с одной стороны, можно хранить посуду или какие-то кухонные мелочи, а с другой – диски, книги, бумагу и другие вещи для работы.
Подиум или сцена
Если кухня совмещена с гостиной, как это часто бывает в квартирах-студиях, можно установить самолетный небольшой подиум. Обычно это используется в квартирах, где эркеры круглые. Так вот, на этой своеобразной сцене на вечеринках можно плести идеи, проводить детские конкурсы, на Новый год здесь можно легко поставить елку, а в остальное время использовать это пространство под зеленую зону или самодельную оранжерею.
Если кухня с эркером настолько велика, что допустимо лишить ее дополнительной площади, то некоторые варианты использования обшивочной части эркерной части различных идей балконов и лоджий таковы: поставить кресло-качалку , сделать зимний сад, сделать детский уголок и т.
д. Даже не важно, что эркер расположить на кухне, а просто сделать отдельную комнату. При этом необходимо продумать вариант подсветки на самой кухне, ведь зачастую эркер здесь является главным проводником естественного света.
Кухня Ercoal Decor
Особых декоративных элементов и аксессуаров в самом поваре быть не должно, т.к. здесь декоративные функции выполняют непосредственно предметы быта: прихватки, кухонный фартук, фасады мебели, магниты или надписи на холодильнике и т.п. Объединяя кухню со столовой или гостиной, нужно декорировать, в основном, непосредственно зону гостиной.
Темные шторы на кухню с эркером фото
Еще один вариант – использование тюля или других полупрозрачных штор.Для некоторых интерьеров лучше выбирать длину штор до середины окна. Так, составляя своеобразную сцену, лучше использовать французские шторы или эффектные портьеры, подчеркивающие торжественность обстановки.
Вы также можете выбрать жалюзи или римские шторы на кухню с эркером, они легко защищают от палящего солнца и удобны в использовании.
Они обычно закрывают отдельно каждую часть окна в эркере.
В принципе можно оставить окно в эркере без шторки, т.к. чаще всего его внешний вид назначает выставляться на всеобщее обозрение.Проявив фантазию и чувство стиля, можно удачно обыграть обшивку на кухне.
Тренируйте свой дом!
Дома серии П44Т отличает наличие эркеров различной формы. Как использовать эту дополнительную площадь, чтобы быть удобной, красивой и стильной?
Формы Эркерс
Серия Р44 с литерами Т, К, М, П выделяет на кухне достаточно просторную площадь – 13 м2. При этом форма эркера зависит от места нахождения в квартире.
Найдено следующие опции:
- закругленный;
- многогранный;
- прямоугольный;
- треугольный;
- трапециевидный.
В зависимости от формы наружной стены подбирается подходящая конструкция с удобным расположением мебели.
Как я могу использовать Erker
Дизайнеры всегда ценят дополнительную площадь, какой бы крошечной она ни была.
В зависимости от стиля жизни заказчиков и стиля проекта разрабатывается несколько основных вариантов использования Erker на кухне.
- Столовая.
- Зимний сад.
- Исследование.
- Зона отдыха.
- Рабочая зона для приготовления пищи.
- Сочетание различных функций благодаря грамотно подобранным элементам.
При этом разделение функциональных зон может быть полным, частичным или условным. В качестве разделителя, ширмы, кисе, барной стойки и т.п. Условное различие получается за счет цветовых акцентов и применения разных материалов. Многоуровневые потолки и комбинированное напольное покрытие также помогают выделить обеденную зону и сделать ее максимально комфортной.
Кухонная рабочая поверхность у окна
Красивый вид из окна поможет компенсировать нежелание мыть посуду. Кухня в городе Эркер имеет ряд нюансов, требующих грамотного подхода.
- Навесные шкафы можно располагать только на глухой стене.
Поэтому приходится использовать настольную сушилку для посуды. При этом верхний ярус вполне можно перенести в обеденную зону или вовсе от него избавиться, установив вдоль глухих стен высокие шкафы-колонны. - Ролики не прикручены. Опять же, занимает дополнительное место в ящиках для хранения часто используемых вещей. Впрочем, для любителей минимализма это не имеет значения.
- Настенная вытяжка не подходит, т.к. она не слепая. Придется искать модель потолка в подходящем стиле. Есть повод задуматься об организации кухонного полуострова. Это значит, что хозяйка во время работы может быть обращена к гостям.
- Нельзя использовать легкие длинные шторы, края которых могут загореться.Ролсторы, модели в стиле кафе и кантри, жалюзи – далеко не полный перечень возможных вариантов. Если вам хочется романтики, используйте подхваты для любимых штор, и они будут под полным контролем.
- Остается открытым вопрос дополнительного освещения рабочей поверхности.
Решить ее можно с помощью встроенных в карниз спотов, а также светильников, размещенных в общем или вырезаемых из потолка на длинных держателях.
- Радиаторы. Их нельзя полностью закрывать, чтобы не нарушать циркуляцию теплого воздуха внутри помещения.Выйти из положения можно по-разному.
- Уменьшите глубину шкафов на 5 см, чтобы воздух мог подниматься по стене к столешнице, где есть ряд решеток, по которым тепло поднимается к окну.
- Вместо шкафов установить стеллаж с полками и столешницей. Фасады замените текстильными шторами. Такой вариант отлично подходит для кантри и прованса. Если шторы убрать, а стойки сделать из хромированных труб, то получится подобие стимпанка.
- Защитить окно от жирных и грязных брызг можно с помощью выдвижной сетки, которую после работы опускают через столешницу за шкафчики или подоконник. Достаточно барьера в 20 см. И окно будет гораздо дольше сохранять свежий вид.
Столовая
В зависимости от доступной площади и формы эркера обеденная зона может принимать различные очертания.
Мягкий диван и широкий стол хороши в трапециевидных, треугольных, прямоугольных и многоугольных эркерах.Диван заполняет нишу и одновременно служит дополнительным спальным местом для гостей.
При сложной форме Эркера этот вариант иногда оказывается единственно приемлемым. Да, мягкую мебель придется делать на заказ. Зато никаких нестыковок и неудобных щелей между диваном и стенами точно не будет.
Иногда роль дивана выполняет небольшой подиум, повторяющий форму комнаты. Это самое удобное решение, т.к. внутри подиума можно хранить крупногабаритные предметы и запасы овощей.Медленно мягкие подушки, и подиум превратится в удобный диванчик, на котором можно хорошо отдохнуть, понежиться и даже вздремнуть.
Компактная обеденная группа хороша в тех случаях, когда места достаточно. Округлая и прямоугольная форма стены задает тон. Поэтому выбирайте столешницу, повторяющую форму эркера.
Традиционные мягкие уголки для столовых вмещают в себя дополнительные спальные места, ящики для хранения кухонной утвари и продуктов.
В некоторых наборах угловые элементы содержат скрытую планку.
Барная стойка может выступать в сольном варианте или в дуэте с обеденной группой. В некоторых случаях удобно перенести на окно в виде широкого подоконника. Этот вариант хорош для тех, у кого красивый пейзаж из окна.
Исследование
Обилие естественного света способствует выполнению домашних заданий. Если вы любите иголочки, то как раз то место, где ваши глаза будут меньше уставать.
Рабочий стол Место возле окна.Широкая длинная столешница позволит с комфортом выполнять любую работу. А в тумбочках найдется место для многочисленных аксессуаров.
Единственный минус – высокие шкафы придется перенести в глухую стену, заняв немного площади на кухне. Выйти из положения можно с помощью стоек, которые одновременно будут служить элементом зонирования.
В вечернее время важно организовать качественное освещение. Для этого используйте светильники, настольные лампы и потолочные люстры на длинных держателях.
Erker – это огромное море дизайнерских возможностей. К сожалению, все возможности его использования невозможно описать в одной статье. Как обустроить Зимний сад в Эркере, вы узнаете из наших следующих статей. Подпишитесь на обновления, и будьте в курсе всех новинок.
Получите эффектный интерьер Только грамотно обыграть эту архитектурную сестру можно. Рассмотрим подробнее, как создать эффектный дизайн кухни с ведром.
Правила проектирования
Эркер — часть комнаты, выступающая за плоскость стен. Он может быть застеклен по всему периметру, иметь одно или несколько окон.
Чаще всего встречаются прямоугольные, треугольные и полукруглые эркеры, но иногда, особенно в частном индивидуальном строительстве, можно встретить достаточно нестандартные очертания.
Вы можете использовать пространство Эркера по-разному:
В последнем случае обязательно потребуется зонирование.Будут реализованы декоративные перегородки, в том числе на основе текстиля.
Чтобы ваша идея порадовала стильным и эффектным результатом, воспользуйтесь следующими рекомендациями дизайнеров:
- окна, находящиеся в этой зоне, не должны загораживать, закрывать мебель или другие предметы интерьера;
- для открывания проемов используйте легкие портьеры или тюль, дополнив их жалюзи, римскими или рулонными шторами;
- для оформления используйте нежные пастельные оттенки, способные сделать комнату светлее и просторнее;
- уделяют достойное внимание созданию эффектного светового оформления;
- использовать одно стилистическое направление с обустройством основной части кухни и эркера;
- для визуального зонирования можно использовать разные цвета и оттенки в оформлении стен, потолка, текстиля.
Обеденная зона
Лучник в Эркере. обеденная зона – это самое простое и бюджетное решение, позволяющее улучшить функциональность и эстетику помещения. В этом случае материальные затраты будут минимальными, ведь нет необходимости переносить коммуникации.
Прекрасное это решение Получается для тех, кто предлагает красивый вид. Согласитесь, приятно пить по утрам кофе, глядя на озеро, лес или другую природную красоту.
Стол обеденный лучше выбирать такой, который оснащен механизмом трансформации. Так что при необходимости можно значительно увеличить количество посадочных мест. На время приема гостей можно будет не выносить из комнаты, а просто развернуть.
Можно дополнить стол мягким смягчителем. Хотите улучшить функциональность кухни, выберите для себя мягкий уголок, оборудованный дополнительными ящиками для хранения, размещенными под сиденьями.Особенно это актуально для небольших комнат.
Обратите внимание: форма стола и дивана должна повторять геометрию самого эркера. Аналогичные требования предъявляются и к оформлению потолка в этой зоне. Так вы легко и просто создадите эффектное зонирование.
Не забудьте на этапе ремонтных работ утеплить пол и окна Erker, обеспечив им максимальный комфорт и комфорт в холодное время года.
Современное теплое остекление на основе алюминиевых профилей – одно из самых эффективных решений.
Продумайте, чтобы оборудовать самую теплую систему. Особенно это касается частных домов.
Рабочая зона
Площадь вашей кухни не позволяет создать в эркере просторную и удобную обеденную зону? Хотите максимально использовать каждый сантиметр свободной площади? Оптимальное решение Для вас будет устроена в районе операционной эркер.
Этот вариант имеет свои преимущества и недостатки. Самая главная проблема – потребность в коммуникациях.То есть потребуются профессионалы и солидные материальные вложения.
Обратите внимание: передача сообщений возможна только после получения разрешений в соответствующих государственных учреждениях.
К преимуществам такого решения следует отнести повышенную естественную освещенность рабочей зоны, что минимизирует затраты на электроэнергию, а также нетривиальный дизайн, способный превратить обычную городскую квартиру в подобие загородного коттеджа.
Кухонный гарнитур нужно будет сделать под заказ, так как стандартное решение для такой необычной планировки найти будет сложно.
Не обязательно располагать мойку и кухонную плиту в непосредственной близости от окна, ведь в этом случае не избежать запотевания и загрязнения стекол.
Еще одна проблема — нижние шкафы кухонного гарнитура Батареи закроются, препятствуя оптимальной циркуляции воздуха, что не только снизит температуру воздуха в помещении, но и может повлечь за собой появление плесени.
Решить такую проблему поможет установка перфорированных фальшпанелей.Также можно встроить в столешницу или подоконник специальную решетку.
Арчер обустройство рабочей зоны в районе Эркер влечет за собой ряд проблем и дополнительных материальных затрат, но в результате вы получаете эффектное интерьерное решение, наделенное высокой эстетикой и функциональностью.
В частном доме
Кухня с Эркером в загородном доме – это не только эстетическое, но и практичное решение.
Неважно, идет ли речь о небольшом коттедже или роскошной вилле, ведь эффектные решения можно найти абсолютно для каждой комнаты.
Дизайн следует продумывать, ориентируясь на площадь и конфигурацию помещения, потребность и количество жильцов.
В отличие от макетов, подсвечивающих планировки, в собственном доме Вы сможете реализовать любые индивидуальные идеи, получив кухню своей мечты.
Если в вашем доме нет застекленной веранды, Эркер вполне способен ее заменить. Обустройте в нем обеденную зону и любуйтесь восходящим солнцем за завтраком или ярким огненным закатом по вечерам за чашечкой ароматного травяного чая.
Проделав в этой зоне рабочую зону, Вы сможете заняться созданием кулинарных шедевров и смотреть на жизнь-попрошайничество за окном. Особенно актуален такой вариант будет для семей с маленькими детьми. Мама сможет разрешить своим детям гулять в саду, пока она будет готовить обед или ужин.
В частном доме система теплый пол будет незаменима.
На кухне и в зоне Эркера, в частности, можно отказаться от настенных радиаторов отопления, избавив от проблем с запотеванием окон и появлением плесени.
Если площадь кухни позволяет устроить небольшой зимний сад. Сделайте широкий подоконник, на который поставьте цветочные горшки. Оригинальное невысокое ограждение поможет создать клумбы.
Крупные цветы можно поставить прямо на пол по обеим сторонам мягкого уголка, дополняя оригинальный дизайн. Живая растительность в интерьере придает обстановке естественность и натуральность.
Регистрация окон erker
Будет ли дизайн кухни с эркером стильным, эффектным и неординарным, во многом зависит от того, насколько правильно будет оформлен оконный проем.
Корнис
Изначально следует правильно подобрать карниз. Обратите внимание на профильные системы, способные изгибаться под любым радиусом.
Сегодня доступны обе декоративные модели в комплекте со специальными адаптерами для петель.
С их помощью можно создать абсолютно любую конфигурацию карниза.
Способ крепления может быть как потолочным, так и настенным. Обратите внимание на модели, позволяющие крючкам для штор свободно двигаться по всей длине штанги.
Шторы
Шторы для Erker мало чем отличаются от тех, что используются на обычной кухне. К ним же предъявляют такие требования, как практичность, износостойкость и простота в уходе. Ключевое отличие заключается в форме.
Важно выбрать этот вариант, который был бы продолжением самого Эркера, не перекрывая доступ солнечного света. Можно сшить шторы на каждое окно или сделать одну большую цельную штору.
Для современных интерьерных решений смело используйте римские или рулонные шторы.Они чудесно вписываются и в классические модели, только в этом случае они будут лучше сочетаться с обычными портерами или тюлем.
Листайте вышеприведенные фото, экспериментируйте, используйте свое воображение и фантазию по максимуму, ведь конечный результат того стоит.
В недалеком прошлом нестандартные помещения встречались преимущественно в частном секторе. За последние три десятилетия введено в эксплуатацию большое количество многоэтажных новостроек с удобным выступом в районе окна.Оригинальная планировка с Erker будет связана с творческими элементами, давая возможность отойти от традиционных интерьеров на кухне. Поклонникам классического стиля современные дизайнерские идеи также позволяют существенно расширить возможности настройки.
Интерьер кухни с эркером в квартире серии П-44Т
Чаще всего в современных многоэтажных домах серии П-44Т эркер располагается на кухне. Впереди оконная зона образует выступ, использование которого дает возможность владельцу создавать индивидуальный дизайн Кухни с различными вариациями дополнительной площади.На кухне в квартире серии П-44Т преобладает трапециевидная эркер, реже встречаются треугольные, многоугольные, прямоугольные, круглые и овальные формы. Современные дизайнерские идеи отталкиваются от формы Erker и предоставленной площади, кухня расположена на 13 м кв.
Помимо интересного фасада А возможность организовать оригинальный интерьер Эркера способствует значительному увеличению освещенности. Все варианты дизайна кухни делятся на две основные группы:
- выступ эксплуатируется как дополнительная площадь, и от него отталкиваются все идеи дизайна, подчеркивая интерьер на нестандартной планировке — максимально популярное решение;
- эркер размещается по принципу балкона в отдельной зоне, присыпая от основного пространства барной стойкой, перегородкой или шторами – встречается нечасто.
Есть несколько современных идей зонирования Erker:
- на участке есть обеденная зона;
- эркер предназначен для размещения рабочего места с мойкой, столешницей и местом для хранения;
- в качестве места для отдыха: чтения литературы или рукоделия, а также работы за компьютером;
- Зимний сад оборудован.
В зависимости от назначения эркера планируется остальной интерьер кухни.
Особенности планировки обеденной зоны
Наиболее популярной идеей современного дизайна зоны обшивки является установка мебели обеденной группы.
Такое решение оправдано как с позиции функциональности, так и с точки зрения декоративного оформления, экономии финансовых средств. Смета ремонта кухни не увеличивает стоимость затрат на перенос коммуникаций, к тому же места достаточно для гарнитура, небольшого дивана и барной стойки. Остановив выбор на подобной планировке, учитывайте следующие нюансы:
- Идея выдвижного стола способствует увеличению функциональности мебели.Развернув дизайн вдоль кухни, большая компания вас не удивит.
- Формированию гармоничного интерьера способствует форма стола, примерно повторяющая геометрию выступа.
- Оформление потолка с учетом линий Эркера удачно подчеркнет зонирование пространства на кухне.
- Идея утепления пола и окон на зиму Обеспечить комфортное времяпрепровождение на кухне в любую погоду.
Совет! С треугольным выступом лучше отойти от правил и подобрать стол круглой формы, позволяющий визуально сгладить нестандартную планировку кухни.
Трапеция Erker, преобладающая в квартирах серии П-44Т, оптимально подходит для размещения дивана, полностью повторяя изгибы выступа.
Оставшееся пространство позволяет приобрести современный вместительный гарнитур, применив в дизайне угловую или П-образную мебель.
Удачно смотрится идея дизайна со стандартным набором столов и стульев. В этом случае ориентируйтесь на линейное или М-образное расположение гарнитура, а удобный современный диван небольших размеров размещайте у противоположной стены кухни. Если нет необходимости в мягкой части мебели, для гарнитура можно использовать двухрядную планировку. Не забудьте подчеркнуть обеденную зону на кухне современным двухуровневым потолком из гипсокартона с линиями, примерно копирующими форму эркера.
Треугольный выступ для приема пищи можно обставить традиционным набором столов небольших размеров и стульев. На просторной площади кухни идеи современного дизайна предлагают место для приема пищи сформировать возле одной стороны угла, а вторую использовать для установки небольшого дивана, компьютерного стола или зимнего сада. Повысить функциональность мебели позволит дополнительное место для хранения.
посуда, оборудованная под более мягкими сиденьями. Существуют современные варианты зонирования с использованием барных стоек, отделяющих угловую часть кухни от остального пространства.
Арктика в рабочей площади Harker
Ситуация, когда из окна открывается не совсем привлекательный пейзаж или кухня с эркером расположена на первых этажах, рационально разместить место для обустройства под рабочую зону. Такой современный интерьер имеет свои преимущества и определенные недостатки. Перечислим преимущества такой идеи современного дизайна:
- улучшенная подсветка столешницы в дневное время;
- пытливые образы открытого пространства для наблюдения во время домашних хлопот;
- индивидуальный интерьер выгодно отличается от стандартных планировок квартир.
Наряду с некоторыми преимуществами оформления рабочей зоны кухни в городе Эркер, параллельно растут и значительные сложности, о которых следует подумать заранее:
- перенос коммуникаций на кухне значительно увеличить смету расходов;
- проектная документация подлежит обязательному согласованию;
- высота потолков на кухне уменьшена за счет поднятия уровня пола;
- заказ мебели по индивидуальному проекту отличается от стандартных идей финансовыми затратами;
- раковина и плита, расположенные в г.
Эркер вплотную к окнам, провоцируют их частое запотевание и загрязнение; - особого подхода требует установка потолочной вытяжки;
- центральное отопление на кухне не дает перенести батарею, при закрывании головы нарушается циркуляция воздуха, появляется риск появления плесени.
Совет! Избежать подобных неприятностей на кухне поможет идея с отверстиями в подоконнике, играющими роль столешницы. В нижней части гарнитура на задней стенке также образованы прорези для вентиляции.
Значительно уменьшить трудности размещения рабочих поверхностей в зоне Эркера позволит их смещение в сторону. Еще одна альтернативная идея современного дизайна – устроить сплошную столешницу для рабочей зоны и эркера, позволяя гостям любоваться видом из кухонного окна, пока вы готовите для них угощение.
Идеи оригинального уголка для отдыха или работы
Идеи современного дизайна кухни с Erker предлагают несколько альтернативных решений, когда выступ предназначен для обустройства зоны отдыха, рабочего уголка или теплицы.
Очерчивать границы пространства желательно невысокими предметами в виде барной стойки или полочек для хранения мелочей. Применять для этих целей шторы или высокие стеллажи нецелесообразно, уровень естественного освещения основной кухонной зоны заметно снизится.В зависимости от предпочтений хозяев квартиры в эрке есть уголок для рукоделия, чтения или работы за компьютером. Изысканно выглядит современная идея Небольшой журнальный столик и удобные места с мягкими подушками. Любимые любители Климат в зоне кухонного контура идеально подходит для организации оригинального зимнего сада.
Молодому поколению, предпочитающему шумные вечеринки, понравится своеобразная сцена для выступлений в караоке или практичный уголок для детского творчества.
Ключевые принципы дизайна в зоне Erker
Независимо от выбранной планировки современный дизайн Кухня с Erker придерживается определенных принципов:
- Нестандартный интерьер предпочтительнее выполнить в пастельных тонах, подчеркивающих обилие света;
- для визуального разделения зон применяются современные виды отделки и различные цвета;
- тщательно спланированная система освещения, которая не оставляет без внимания ни один уголок кухни с Erker;
- за счет применения идеи разделения выступа оформление двух зон не должно кардинально отличаться по стилям.

В зависимости от назначения эркера и его размеров окна украшались по-разному. Рабочую зону практично разместить жалюзи или оставить совсем без текстиля, если позволяет окружающая обстановка. Рулонные и римские шторы лучше подбирать из материалов, легко поддающихся чистке и стирке с высокими защитными свойствами.
Современный дизайн обеденной зоны или уголка отдыха предлагает различные идеи декора, включая тюль с портьерами, английские шторы или римские шторы.Главное не затмить эркером естественный свет кухни и сохранить оригинальность интерьера.
Эркер — часть комнаты, многогранный выступ с тремя (реже — больше) окнами. Его часто используют для придания второстепенным комнатам дополнительной полезной площади. Иногда это предусмотрено изначальной планировкой дома, иногда в эркере делают балкон или лоджию.
На кухне есть ведро? Обыграть может быть очень интересно! Кухня с Эркером не только удобна и функциональна, но и очень красива.
Такая планировка комнаты выглядит очень эффектно. Кроме того, в Эркере можно оборудовать отдельную обеденную зону – зачастую сделать это очень сложно.
Варианты планировки и зонирования
Наличие на кухне Erker – отличная возможность придать помещению нестандартный вид, обеспечив при этом комфорт и удобство. Существует несколько типовых вариантов планировки кухни с ведром.
Самый популярный вариант – использование выступающей зоны в качестве столовой.
Столовая на площади Эркера — традиционный и очень удобный ход.
Если разрешить обустройство коммуникаций, можно превратить эркер в рабочую зону. Однако есть нюансы – не всегда есть возможность реально провести водопровод и канализацию. Если вы хотите установить газовую плиту, продумать перепланировку труб практически невозможно.
Если удастся согласовать перепланировку, получится очень удобная рабочая зона.
Эркер многие используют как зону отдыха с диванами, книжными полками и так далее.
Это удобно и практично, особенно если в квартире нет места для гостиной.
Зона отдыха на кухне? Почему нет!
Малопопулярный в России, но очень эффектный прием – использование эркера под зимним садом.
Добавьте природы на свою кухню.
При этом зонирование может отличаться не только по функциональному назначению, но и по типу. Кухню с четким разделительным эркером обычно дополнительно комплектуют ширмой, занавеской, откидной перегородкой.Иногда таким образом в эркере оформляют помещение, не относящееся к кухонной тематике – например, небольшой кабинет или детскую игровую зону.
Вариантов планировки кухни с эркером существует множество.
Однако гораздо чаще зонирование оформляется условно – чтобы эркер был полноценной частью кухни.
В частном доме в Эркере может разместиться довольно большая столовая.
Идеи для кухни с эркером
Как видите, вариантов оформления кухни с эркером множество.Предлагаем рассмотреть наиболее интересные и функциональные идеи более подробно.
Однако помните, что ваша фантазия ограничена размером и формой пристройки. Кроме того, некоторые элементы планирования должны быть согласованы в HSEK.
Такую перепланировку придется долго согласовывать, но результат того стоит.
Для того, чтобы перевести рабочую зону в Эркер, нужно провести туда все коммуникации. Некоторым дома получить разрешение очень сложно.
Однако если вы сможете утвердить план изменений, то результат вас порадует :
- Такая кухня выглядит очень стильно и необычно;
- Рабочая поверхность дополнительно освещена естественным светом;
- Непосредственно в помещении можно сделать полноценную обеденную зону.
Однако есть и минусы. Такая перепланировка обойдется вам в немалую сумму. Кроме того, учтите, что повесить навесные шкафы Над столешницей не удастся, а потому от них придется отказаться или подумать, как разместить их на стенах.Кроме того, этот вариант не подходит для мелких эркеров.
Для маленькой кухни с эркером лучше выбрать другой вариант.
Например, обеденная зона.Важно: Гарнитуры скорее всего придется делать на заказ и нестандартной формы, что значительно увеличит бюджет на ремонт.
Более популярное решение – обустроить обеденную зону в Эркере. Дневной свет, визуальный выход из рабочего пространства… Удобно, красиво.Можно установить стандартный кухонный уголок или поставить диван. В последнем случае эркер может стать прекрасным местом для отдыха.
Обеденная зона с диваном в виде эркера.
Иногда эркер совсем маленький. Говорить в данном случае о столовой или рабочей зоне в пристройке бессмысленно: они там просто не помещаются. В этом случае можно использовать его для небольшой зоны отдыха. Например, с и.
Не хотите барную стойку? Просто поставьте дополнительный шкаф в эркер.
Иногда подоконник переделывают под барную стойку. Это удобно, функционально, стильно и недорого. Кроме того, в нише подоконника можно разместить кухонный инвентарь и запасы.
Хорошее решение для маленькой кухни с Erker.
Erker – отличное функциональное дополнение для кухни.
Необычный прием для кухни в американском стиле – сделать член кухонного острова. Выглядит очень неожиданно. Однако следите за тем, чтобы размеры эркера позволяли доступ к острову со всех сторон – иначе вы рискуете столкнуться с определенными неудобствами при работе.
Станьте комбинацией эркера и кухонного острова.
Если вы хотите стрелять из лука для необычных целей, подумайте о его изоляции. Зимний сад хорошо смотрится за раздвижными дверями, а кабинет лучше усугубить непрозрачными перегородками.
Возможность скрыть Эркера иногда очень удобна.
Хорошо продумайте дизайн-проект комнаты: вам нужен Эркер, чтобы предотвратить работу на кухне.
Декор: Декорирование эркера
Какое бы решение вы не приняли, вам придется позаботиться об украшении вашего эркера.
Не забудьте подобрать подходящий декор.
Здесь действуют общие правила:
- Не перегружайте пристройку большим количеством декоративных элементов.
Часто эркеры делают не слишком просторными, поэтому массивный декор их просто испортит. - Главное преимущество любой эркеры – большие окна, дающие дополнительный свет. Поэтому откажитесь от плотных штор с многослойными конструкциями и . На ваш выбор – либо жалюзи с полупрозрачными, либо деревянными ламелями.
- Если вы хотите визуально отделить эркер от остального помещения, но не планируете делать полное зонирование, подумайте о гипсокартоне. Они подчеркивают разделение зон. Кроме того, такие арки можно заказать любого размера и формы, поэтому их легко вписать в любой стиль оформления интерьера.
- Кстати, о стиле. Можно как выдержать общую атмосферу на кухне, так и обыграть ее разными сочетаниями.
- Эркер с контрастной основной комнатой с обоями смотрится очень эффектно. В этом случае потолок и пол лучше делать однофотонными.
- Очень часто эркер приподнят над общим уровнем пола. Это стильно и удобно, однако учтите, что вы занимаете до 30 сантиметров высоты стен.
Для невысоких кухонь этот прием не подходит.
Что касается остальных украшений, то здесь вы вольны выбирать. Картины, цветы, декоративные люстры – все это может украсить вашу эркер, если речь идет о стиле комнаты.
Элементы декора придадут эркеру завершенность.
Однако проявите чувство меры: Как мы уже писали, не стоит перегружать Эркер обилием декора.
Выбрать стиль
Изначально эркеры проектировались… как оборонительные сооружения в крепостях. Однако сейчас они служат полноценной частью городских квартир и частных домов. И рисуют их совершенно по-разному: в зависимости от дизайна и стилистики кухни.
Не бойтесь экспериментировать с дизайном Erker.
Посмотрим, как смотрятся эркеры в разных стилях интерьера.
Заказы можно оформить разными способами.
Для кухни с эркером характерны светлые тона и натуральные материалы. Выбирайте легкие, воздушные завесы и элегантные фактуры. С назначением эркера лучше не экспериментировать – прекрасно впишется красивая обеденная зона.
Для кухни Б. в классическом стиле Лучше остановиться на обеденной зоне.
А вот на кухне в стиле прованс эркер чаще переодевают под рабочую зону с плитой и мойкой.Такой подход полностью соответствует традициям стиля: как можно больше света и пространства.
Цвет и материалы, характерные для Прованса в Эркере.
На кухне в американском стиле Erker можно обыграть, чтобы удачно разместить кухонный остров. Попробуйте поэкспериментировать. Например, выбрать нестандартное расположение. Поставьте таблицу симметрично рабочих поверхностей, переданную Эркеру. Кроме того, его можно превратить в бар. Это пример максимально эффективного использования помещения.
Стоит поиграть с расположением острова.
Важный нюанс: Убедитесь, что размеры кухни позволяют использовать аналогичный подход. Если площадь меньше 14 квадратных метров, лучше поискать другие варианты.
Для кухни в стиле характерны нестандартные приемы эркеров. Нам нравится такой вариант: темная рабочая зона отделяет светлую территорию Erker. За счет контраста цветов и фактур помещение выглядит очень стильно.
Модерн позволяет экспериментировать.
Однако для кухни в стиле модерн можно найти много интересных решений.
Как на счет такого уголка в эркере?
Кухня в стиле неоклассика также дает большой простор для фантазии. Используйте современные материалы. Экспериментируйте с сочетанием фактур. В эркере рекомендуем оформить лаунж-зону – в таком стиле она выглядит безупречно.
Lounge Zone для кухни с Erker.
Внимание! Если вы не хотите перегружать комнату большим количеством шкафов, используйте скрытые запасы мебели.Например, заказать диван с навесными выдвижными шкафами.
Вы стильно оформляете кухню с небольшим эркером? Пришло время превратить подоконник обшивки окон в барную стойку. Он идеально соответствует духу лофта.
В Лофте Эркером можно играть по-разному.
Плюсы и минусы
Как видите, дизайнерские возможности оформления кухни с помощью Erker практически безграничны. Однако любят их не только за это: такая планировка имеет множество преимуществ.Впрочем, и без недостатков не обошлось.
Даже маленький Эркер украсит кухню.
К преимуществам таких помещений можно отнести:
- Возможность обустроить любое, даже самое нестандартное расположение мебели и бытовой техники.
- Увеличение полезной площади.
- Дополнительный дневной свет В результате — экономия на световых счетах.
- Перепланировка кухни с эркером, особенно если вы хотите перенести в нее рабочую зону, обойдется достаточно дорого.
- Так как в комнате много окон, то за отопление придется платить больше.
- На самом деле грамотно организовать пространство на такой кухне не так уж и просто. Скорее всего, вам придется прибегнуть к услугам дизайнера.
Не бойтесь искать интересные решения.
Как видите, основные недостатки кухни с Эркером связаны с необходимостью привлечения специалистов и дополнительными затратами. Однако, на наш взгляд, преимущества несоизмеримы.Поэтому смело рекомендуем оформлять кухню таким образом!
Левинская Екатерина
Дизайнер, опыт работы 5 лет. Специализируется на дизайне кухни.
Квартиры 44т сериина плане этажа. Дома серии П44Т, планировка квартир с размерами. Эркеры в домах P44T
Дома серии П-44Т начали строить с 1997 года и строят по сей день, так как срок их службы достигает до 100 лет. Эти многоэтажные дома от 9 до 25 этажей строятся в Москве и Московской области.Обычно одна квартира-студия располагается на одном подъезде, двухкомнатные и одна трехкомнатная.
Дома п44т Планировка квартир
Имеются также угловые секции, на которых на одной лестничной площадке расположены две трехкомнатные квартиры и две однокомнатные.
Провести перепланировку квартир в типовых домах Вы можете по типовому проекту
Так как дома серии П-44Т имеют разную штриховку, площади однокомнатных, двухкомнатных и трехкомнатных квартир в разных домах Также разные.Так в однокомнатной общая площадь может быть от 37 до 39 кв.м, в двухкомнатной от 51 до 61 кв.м, а в трехкомнатной от 70 до 84 кв.м. Соответственно, площадь кухни и жилого помещения в разных домах будет разной. Высота от пола до потолка в квартирах от 2,70 до 2,75 метра. Туалет и ванная в трехкомнатных и двухкомнатных квартирах, а в однокомнатных совмещены. Санузел в ванной установлен стандартной длины 170 см. Вентиляционные каналы естественной вентиляции проходят на кухне и в туалете.В этих домах стены выполнены из железобетонных панелей, которые вместе с утеплителем имеют толщину 30 см, а межкомнатные и межквартирные стены также выполнены из железобетонных панелей толщиной 16 или 18 см, а перегородки выполнены из гипсокартона толщиной 8 см. Плиты перекрытия делаются на всю комнату толщиной 14 см. В квартирах этих домов очень хорошая звукоизоляция, а система отопления оборудована регуляторами температуры. Ниже приведены некоторые стандартные варианты перепланировки P44T.
Квартиры с одной спальней
Стандартная планировка однокомнатной квартиры состоит из прихожей, небольшого коридора, большой комнаты, кухни и совмещенного санузла с ванной.
Дом серии П 44Т планировка однокомнатной квартиры
Перепланировка панельной квартиры возможна по одному из типовых проектов, представленных ниже.
Перепланировка однокомнатной квартиры п 44
В данном варианте коридор рядом с которым можно было пройти на кухню и вместо коридора сделали небольшую кладовку.В прихожей есть встроенный шкаф. Вход в санузел переносится из коридора в прихожую, а вход на кухню делается прямо из комнаты.
Перепланировка 44 однокомнатной квартиры
В данном варианте вплотную примыкает коридор из которого можно было выйти на кухню а вместо него сделан туалет. Повышение интеллекта за счет уменьшения ванной комнаты. В прихожей есть встроенный шкаф и небольшая кладовая. Вход в ванную и в туалет будет осуществляться прямо из прихожей, а вход на кухню — через комнату.
В домах п 44т перепланировка однокомнатной квартиры
В данном варианте коридор в котором можно было выйти на кухню совмещен с санузлом. В коридоре небольшая кладовка. Вход на кухню будет осуществляться через комнату.
Двухкомнатные квартиры
Стандартная планировка двухкомнатной квартиры состоит из небольшой узкой прихожей, широкого коридора, из которого можно попасть в обе комнаты, на кухню и в туалет с ванной.
Планировка квартир п 44т
Ниже представлены некоторые типовые перепланировки квартир.
В доме серии П44Т перепланировка трехкомнатной квартиры
В данном варианте расширили санузел за счет коридора, по которому можно было попасть на кухню и установили в нем дополнительный санузел, и вход к старому туалету сделали из кухни. Одну комнату сделали проходной, чтобы через нее можно было попасть на кухню.Вторую комнату уменьшили до ширины созданной кладовки и небольшого коридора, по которому можно попасть в кладовку и во вторую комнату.
Перепланировка квартиры п 44 с туалетом и ванной
В данном варианте перепланировка под ванную и туалет. Масштабируя их за счет коридора, по которому можно было попасть на кухню. Одну из комнат сделали проходом, через нее попадающим в кухню, а вторую комнату оставили без изменений.
Перепланировка квартир П 44т при установке джакузи
В этом варианте, как и в предыдущем, туалет с ванной совмещен и увеличена его площадь за счет коридора. А вот в ванной убрали стандартную ванну и поставили джакузи. Вход на кухню сделали через комнату, сделав ее проходной.
Трехкомнатные квартиры
Стандартная планировка трехкомнатной квартиры состоит из трех отдельных комнат, большой кухни, раздельного туалета и ванной комнаты, прихожей и коридора, из которого можно попасть во все комнаты.
Планировка квартиры П44Т.
Перепланировка трехкомнатной квартиры П4 может быть выполнена по одному из типовых проектов, которые представлены ниже.
Один из вариантов перепланировки трехкомнатной квартиры П44Т
В данном варианте одна из комнат увеличится на часть коридора, но эта комната будет проходной, так что сразу можно будет пройти в две другие комнаты и на кухне. За счет другой части коридора увеличится площадь санузла и его можно установить в нем вместо ванны-джакузи.Вход останется небольшой прихожей, из которой можно будет попасть в ванную, туалет и проходную комнату.
Перепланировка 3-х комнатной квартиры П44Т в четырехкомнатную
В данном варианте одна из комнат увеличит часть коридора, но эта комната будет проходной, так что сразу можно будет пройти в две другие комнаты и в гостиную. кухня. За счет другой части коридора увеличится площадь санузла. В одной из отдельных комнат устанавливается перегородка с дверью и в итоге получится дополнительная маленькая комната, которую можно использовать под кабинет.Из прихожей можно будет пройти в ванную, туалет и проходную комнату.
Перепланировка п 44 трехкомнатная
В данном варианте увеличивается площадь санузла за счет части коридора в которой можно было попасть на кухню и делается дополнительный санузел. Вход на кухню будет проходить через небольшую крытую комнату. Можно поэкспериментировать с дверями в двух отдельных комнатах.
Его начали строить еще с 1997 года. И по настоящее время.Имеет свою модификацию, которая отличается от нее только этажностью – это серия П-44Т/17.
Дом П-44Т панельный, состоит из угловой и рядовой секций по четыре квартиры, где 1-комнатная квартира имеет жилую площадь — 19м 2 , кухня — 7-9м 2 , санузлы совмещены; 2-комнатная квартира — 30-34 м 2 , кухня — 8-13 м 2 , санузлы раздельные; 3 комнатная квартира — 44-54 м 2 , кухня — 10-13м 2 , санузел тоже раздельный. Все комнаты в квартирах домов серии П-44Т изолированные.Во всех квартирах предусмотрены эркеры и просторные лоджии. Внутренние стены состоят из сборных железобетонных панелей толщиной 16 см и 18 см. Наружные стеновые трехслойные навесные панели с утеплителем из пенополистирола и с теплоотражающей металлизированной пленкой внутри, общей толщиной 30 см; Со стороны фасада облицован плиткой «под кирпич», начиная со второго этажа. Перегородки из многих материалов: блоки-пазлы или пенобетонные блоки, гипсокартонные листы для металлического каркаса, гипсобетонные бруски, но чаще всего железобетонные, все одной толщины — 8 см.Перекрытие — железобетонные плиты толщиной 14 см.
Дома жилые серии П-44Т. Имеет различные недостатки, такие как узкое помещение в двухкомнатных линейных квартирах (с окнами на первую сторону), швы между панелями требуют дополнительной прокладки (иначе будет холодно). Возможности дома такого типа очень серьезно ограничены. Почти все стены являются несущими. Однако при допустимой перепланировке без вредного воздействия на несущие конструкции сохраняются следующие возможности:
- В трехкомнатных квартирах перегородка между большой комнатой и коридором нецелесообразна.
- Сантехблок изготовлен из гипса и может быть демонтирован и/или модифицирован.
- В домах после 2007 года в конструкции несущих панелей между кухней и комнатой в квартирах предусмотрена специальная ниша для выполнения дверного проема («вафля»), которую можно демонтировать.
Тем не менее, у этой серии есть ряд преимуществ: В планировки добавлены эркеры, медная проводка, вентиляция, вентиляция естественной вытяжки, ГВС с верхним разливом, внешний вид приобрел особый цвет — красный с песочным , эркеры и лоджии окрашены в белый цвет.Для проживания в домах серии П-44Т предоставляется мансардный этаж. Появилась современная система безопасности, реагирующая на открытие офисных помещений, затопление или угрозы возникновения пожара.
В каждом подъезде установлено по одному пассажирскому и одному грузопассажирскому лифту, в 20-25-этажных секциях (подъездах) — по 2 грузопассажирских и пассажирский. Количество подъездов от 1 до 8. Лестницы не нужны, пожарного балкона нет. Мусорная решетка расположена на лестнице, с загрузочным клапаном на площадке.
Срок службы серии Р-44Т около 100 лет, так что надеяться на снос, в ближайшее время, не стоит.
Одним из самых востребованных проектов жилья на рынке столичных новостроек и в Подмосковье стала серия П-44Т. Дома этого типа активно застраивались как новыми районами (Люблин, Северное Бутово, Новокосино, Марьинский парк), так и местами сноса ветхого жилого фонда в районах старой застройки (Медведково, Лефортово, Щукино, Южное Чертаново и др.).). Всего шестьсот домов этой серии в Москве и около двухсот — в Подмосковье.
Дома П-44Т выгодно отличаются от домов базового варианта П-44 (постройки до 1999 г.) остеклением лоджий, наличием полукоромыслов и эркеров, улучшенной теплоизоляцией наружных панелей и улучшенным водоснабжением. система, размещение вентиляционного отверстия в коридоре.
В целом дома этой серии считаются очень удачным инженерно-архитектурным проектом, соответствуют международным стандартам по пожарной безопасности и по капиталоемкости (1-й класс), поэтому продолжают активно строиться и в настоящее время.О прочности конструкции домов свидетельствует и тот факт, что застройщик указывает в качестве расчетного срока службы дома «100 лет». Привлекательным является сочетание относительно невысокой стоимости квадратных метров и достаточно высокого уровня комфорта, а также с высокой скоростью строительства квартир серии П-44Т.
Наружная отделка и конструктивные особенности серии
Серия многосекционных домов П-44Т Легко узнаваемая эстетическая отделка Фасады «под кирпич», которая имеет вид бетонной конструкции.Внешняя отделка дома обычно выполняется в темно-оранжевых или светло-песочных тонах, а отделка нижних этажей, эркеров и полуэретеров в серо-белой цветовой гамме.
Неоспоримыми преимуществами высотных зданий серии П-44Т являются: высокий уровень шумоизоляции в наружных панелях, наличие индивидуальных регуляторов в отопительных приборах, современные системы пожаротушения, устройства оповещения о пожаре, затоплении, реагирования на открытие дверей техники, подвала, электротельфера, шахты лифта).В связи с тем, что бетонные панели имеют наиболее гладкие поверхности по сравнению с панелями в других многоэтажных домах, затраты на внутреннюю отделку квартир.
Однако отдельные отзывы свидетельствуют о наличии трещин на стыках панелей при усадке при усадке и иногда о разгерметизации «швов». Поэтому при покупке квартиры необходимо обращать внимание на качество монтажа панелей.
Особенности планировки квартир
Как и в большинстве современных новостроек, в домах П-44т комнаты изолированные.Кроме того, в некоторых домах квартиры расположены на привлекательном этаже, привлекательном для многих потенциальных покупателей недвижимости.
Шаг поперечных стен увеличен до 4,2 м, а толщина внутренних стен — 14 см и 18 см, что обеспечивает хорошую звукоизоляцию между помещениями. Квартиры имеют раздельные санузлы (за исключением совмещенных санузлов в однокомнатных квартирах). Возможна покупка квартиры с готовой муниципальной отделкой.
Недостатком П-44Т, как и других панельных домов, остается большое количество несущих стен внутри квартир, что не позволяет производить перепланировку по желанию собственников жилья.В домах этой серии категорически запрещается резать оконные блоки или делать проемы в несущих стенах.
Технические характеристики
Параметр | Значение |
|---|---|
| Альтернативное название: | П-44Т. |
| Районы застройки: | Москва и Московская область (Коптево, Свиблово, Медведково, Измайлово, Новое Кожуково, Некрасовка, Красногорск, Лобня, Балашиха, Железнодорожный, Люберцы, Химки, Москва, Одинцово, Солнечногорск, в пос.Медвежьи озера, дер. Брихово, пос. Синий) |
| Строительная техника: | Панель |
| В стадии строительства: | Модерн |
| Год постройки: | С 1997 г. по настоящее время |
| Перспектива движения: | Снос не предусмотрен даже в долгосрочной перспективе |
| Количество секций/подъездов: | От 1 до 8 (возможны комбинации подъездов разных серий — П-44Т, П-44К, П-44ТМ/25 в одном доме) |
| Этажность: | 9-25 (наиболее распространенные варианты — 14, 17) |
| Высота потолка: | 2.70-2,75 м. |
| Балконы/лоджии: | Выше 2-3 этажа во всех квартирах застекленные лоджии. В 2-х и 3-х комнатных квартирах есть эркеры и полуэркеры. |
| Ванные комнаты: | Совмещенные — в однокомнатных квартирах, раздельные — в 2-х и 3-х комнатных. |
| Лестницы: | Неясно |
| Мусоропровод: | Мусоропровод с загрузочным клапаном на каждом этаже |
| Лифты: | 2 лифта: пассажирский (400 кг) и грузопассажирский (630 кг). В 20-25-этажных подъездах — 2 грузопассажирских и пассажирский. |
| Количество квартир на этаже: | 4 |
| Площадь квартиры: | Общая / жилая / кухня 1-комнатная квартира 37-39/19/7-9 2-комнатная квартира 51-61/30-34/8-13 3-комнатная квартира 70-84/44-54/10 -13 |
| Вентиляция: | Естественная вытяжка с коробом в коридоре |
| Стены и облицовка: | Наружные стены — ЖБ панели трехслойные (бетон — полистирол — бетон) толщиной до 30 см повышенной теплоизоляции Аварийные и межкомнатные несущие — Р/б-панели толщиной 16 и 18 см.Крупногабаритные перекрытия толщиной 14 см по ширине помещений Облицовка Наружные стены «Под кирпич», Базовые цвета — Темно-оранжевый, Светло-песочный |
| Тип крыши: | Плоская или черепичная кровля коричневого или зеленого цвета (производство Braas DSK-1). |
| Производитель: | ДСК-1 |
| Дизайнеры: | МНИИТП (Московский научно-исследовательский институт тиологии и экспериментального проектирования) |
| Преимущества: | Улучшенная шумоизоляция вызывных панелей и «швов», регуляторы на отопительных приборах, медная проводка, применение технологии закрытого стыка, соответствие международным стандартам капитализации и пожарной безопасности, современные системы безопасности. |
| Недостатки: | Неудовлетворительное качество монтажа наружных стен на отдельных участках. |
Игорь Василенко
Серия панельных домов П-44Т — новое поколение популярной московской серии домов. Он самый обычный современный типичный сериал в Москве. В планировки добавлены эркеры, качественно улучшена внешняя отделка здания, добавлен мансардный этаж. Серия была разработана в середине 1990-х годов.Год постройки: с 1997 года по настоящее время. Всего было построено около 800 домов. Нормативный срок службы дома 100 лет.
В Москве дома типовой серии П-44Т в основном строятся в районах массовой застройки: Измайлово, Лефортово, Перово, Нагатино, Южное Чертаново, Зюзино, Черремушки, Ховрино, Коптево, Бескордниково, Дегунино, Свиблово, Медведково, Юрлово, Алексеев, Солнцево, Очаково, Кунцево, Филсе, Щукино, Зеленоград, а также на ул. 1905 г., ул. Борисовские пруды и г. Нижний Новгород ул.
В Московской области Дома серии П-44Т построены в городах: Железнодорожный, Балашиха, Лобня, Красногорск, Люберцы, Москва, Котельники, Реутов, Одинцово, Химки, Щербинка, а также в пос. Медвежьи озера (Щелковский р-н), пос. Синий и дер. Брат (Солнечногорский р-н), дер. Пыхино и ЖК «Бутово Парк» (Ленинский район).
Все комнаты в квартирах домов серии П-44Т изолированные. Во всех квартирах предусмотрены эркеры и просторные лоджии.В каждой лестничной клетке имеется один пассажирский и один грузопассажирский лифт. В однокомнатных квартирах санузлы совмещены, в остальных раздельные. Лестницы нечеткие, пожарного балкона нет.
Кухонная плита — Электрическая, Вентиляция Естественная вытяжка, блоки на кухне и в ванной. Мусор на лестнице, с загрузочным клапаном на участке.
Серия домов П-44Т отличается от предшественника (серии) повышенной теплоизоляцией стен, вентиляционным коробом в прихожей, застекленными лоджиями, эркерами и полукрестами, а также узнаваемой наружной отделкой Под кирпич для проживания в домах серии П-44Т предусмотрен доступный этаж.
П-44Т, как и все остальные серии семейства, разрабатывался специально для. Первый дом серии П-44Т построен в 1997 году по ул. Маршал Василевский (Щукино). «Визитная карточка» — иной жилой комплекс на Рубцовской набережной Яузы (проект И-1774) построен из блок-секций серии П-44Т и.
Конструктивные характеристики и внешний вид домов серии П-44 Время во многом схожи с домами серии ,,.
В 2005 году на базе серии С-П-44Т был разработан проект типовых блочных секций серии, где в каждой секции на одну ступень меньше (6 ступеней), а квартиры только одно- и двухкомнатные. В настоящее время в пределах МКАД эта серия более активна.
Подробные характеристики серии
| Проходы | с 1. |
| Этажность | с 9 по 25, самые распространенные варианты — 14, 17. |
| Высота потолка | 2.70 м. |
| Лифты | Один пассажирский (400кг.) и один грузопассажирский (630кг.). |
| Балконы | Застекленные лоджии во всех квартирах кроме первого этажа. Эркеры и полуфабрикаты во всех двухкомнатных и трехкомнатных квартирах. |
| Квартиры на этаже | 4 |
| Годы постройки | с 1997 по настоящее время |
| Построенные дома | Москва: около 600, Московская область: около 200 (включая строящиеся). |
| Площадь квартир | 1-комнатная квартира Общая: 37-40 м², жилая: 19 м², кухня: 7,4-8,4 м² 2-комнатная квартира Общая: 52-64 м², жилая: 32-34 м², кухня : 8,3-13,2 м² 3-комнатная квартира Общая: 70-84 м², жилая: 44-54 м², кухня: 10-13,2 м² |
| Санузлы | В однокомнатных квартирах совмещенные, в двух- и трехкомнатных — раздельные. Ванны: Стандарт |
| Лестница | Без люка, с выходом на пожарный балкон. |
| Мусоропровод | С загрузочным клапаном на каждом этаже. |
| Вентиляция | Естественная и принудительная вытяжка, на кухне и в ванной. |
| Стены и перекрытия | Наружные стены — железобетонные трехслойные панели толщиной 30 см. Внутренние межкомнатные и межкомнатные — железобетонные панели толщиной 16 и 18 см. Перегородка гипсовая 8см. Перекрытие — железобетонные плиты.толщина 14 см |
| Несущие стены | Продольные межкомнатные (а также межкомнатные в торцевых квартирах) и поперечные (межкомнатные, межкомнатные и междомовые). |
| Цвета и облицовка | Красный с песочным, эркеры и лоджии — белый Облицовка «под кирпич», нижних этажей — облицовка «под камень» |
| Тип крыши | Односкатная с черепицей. Технический этаж: над последним жилым этажом.Возможность обустройства мансардной квартиры. |
| Достоинство | Отопительные приборы с регуляторами температуры, медная разводка, горячее водоснабжение с верхним водосливом, быстрые темпы строительства (1 этаж за 3 дня). |
| недостатки | Качество монтажа отдельных элементов наружных стен в некоторых жилых домах, узкое помещение в двухкомнатных линейных квартирах (с окнами на первую сторону) |
| Производитель | Московский Домостроительный Комбинат №1 (ДСК-1) |
| Конструктор | МНИИТЭП |
Посетим сегодня 3 комнатную квартиру, панельный дом Серия П-44Т от застройщика ДСК-1
Квартира получилась хорошая и просторная, но дизайнеры не стали мудрить с дизайном и планировка получилась похожей к другим аналогичным трехкомнатным квартирам панельных домов.Комнаты все изолированы друг от друга. В кухню добавлен большой паром, а в комнате угловых квартир присутствует треугольный эркер. В двух комнатах есть балконы.
Планировку трехкомнатной квартиры рассмотрим со следующими размерами:
Комната с балконом 17,8 кв.м. (в Схеме №1)
Комната без балкона 14,1 кв.м. (в Схеме №2)
Комната с балконом Утюг 11 кв.м. (в Схеме №3)
Кухня с большим байкером 12.9 кв.м. (в схеме №4)
Коридор с прихожей 14,6 кв.м. (на схеме №7)
Жилая площадь 42,9 кв.м
Общий вид квартиры без балкона 70,4 кВ, м
планировочная схема трехкомнатной квартиры П-44Т с размерами
Открыть входную дверь И попасть в предбаннер. Есть стена с находкой, в которой первоначально была сделана небольшая арка. Справа за дверью есть небольшое пространство, куда может поместиться небольшая гардеробная или сумка для обуви.
В этом варианте мы видим пример такой обувной трубки.
Также это место может занять красивое большое зеркало в полный рост.
Проходим вперед и попадаем в самый центр коридора. Встречаем три двери. Левая большая двустворчатая дверь ведет нас в комнату площадью 11 кв.м. и обувь для балкона. И две соседние двери являются комнатами. Что справа самая большая комната 17,8 кв.м. с багажником балкона, а та что слева маленькая комната 14 кв.м. без балкона.
Несколько интересных идей в дизайне прихожей трехкомнатной квартиры. На фото видно, что в ближний номер вышла дверь купе.
Еще один интересный вариант прихожей. Освещение было установлено в арке.
А вот в правой части Синего коридора в оформлении применены колонны с подсветкой.
Расстановка мебели в прихожей
Если места в комнатах больше и не захламляют шкафы комнаты, для этих целей подойдет прихожая.
На длинной стене будет установлен большой шкаф.
Кто не совсем перешел на электронные книги, а собирает дома домашнюю библиотеку, интересное решение будет, если в прихожей разместить полки для книг.
В углу подойдут угловые полки.
Комната с балконом утюг
С прихожей заходим в комнату с большим дверным проемом. Обычно это помещение используют под гостиную или холл.Комната не очень большая, но квадратная.
А если убрать оконную раму и демонтировать часть подоконника, то можно расширить комнату и соединить вместе с балконом.
Не всегда хватает жильцам трех комнат. Часто на балконах организуют работу кабинетов. Получается, что они в такой ситуации, когда дорог каждый квадратный метр.
Разворачиваемся спиной к балкону и видим две межкомнатные двери, в типовой планировке чистовой ремонт от застройщика ДСК-1
Можно немного обыграть дверной проем.Делаем небольшую арку и меняем обычные двери на раздвижные.
Две двери занимают много места. А если сделать одностворчатую дверь, можно поставить угловой шкаф в угол комнаты.
А иногда и всю стену разбирать. И получается вместо комнаты просторная комната, соединяющаяся в одно целое с прихожей.
Большая комната с балконным башмаком
Стандартный большой номер с балконом. Размер по длинной стене 5.56 кв.м и короче 3,22 кв.м. Его можно оформить как для родительской, так и для детской комнаты.
Если балкон утеплен, стены можно оклеить обоями. Выведите розетку на балкон и повесьте светильники для освещения.
Стены, которые мы помним с советских времен, становятся все менее популярными. Вместо этого в дизайне и интерьере квартиры часто появляются длинные дресоны.
Но цветы были как в моде, так до сих пор украшают наши квартиры.
Комната без балкона
В третьей комнате нет балкона. Большое I. широкое окно. Размер на одну стену 4,34 кв.м. и на стене с окном 3,22 кв.м.
Хорошая спальня. Плотные темные шторы, помогают утреннему солнцу и спят на мягкой кровати в выходной день.
Большие картины на стене оригинально смотрятся на кровати.
Шкаф не будет лишним в комнате.
Ванна и туалет в 3-х комнатной квартире
Выходим из комнаты и идем на кухню. По пути в коридоре попадаем на ушко двери в ванную и туалет, а правый коридор пустой, но очень удобный шкафчик.
Кухонный интерьер в P44T Erker. Дизайн кухни и интерьеры с Erker P44T. Варианты планировки, зонирование
Дизайн кухни с эркером серии П-44Т можно считать скорее исключением из правил, чем обычным.Как правило, эркер проектируется в домах индивидуальной планировки и редко используется в массовой застройке.
Для начала разберемся, что такое Эркер. Это архитектурное решение, при котором в фасаде есть площадь фасадов. Подобный нетривиальный проект в доме требует особого отношения к дизайну интерьера, дает дополнительные возможности в оформлении мебели, оформлении оконного проема.
Плюсы и минусы плит
Достоинства и недостатки есть у любого архитектурного решения.Независимо от размера и формы эркеры однородны по своим свойствам.
Среди преимуществ стоит отметить:
- увеличение площади, т.к. выход на фасад делает площадь немного больше, соответственно увеличиваются возможности для создания интересного и функционального интерьера;
- необычность, эффект полуметра и эркера, индивидуальность, отличные от типовых проектов;
- возможность наслаждаться видом из окна, оформить обеденную зону с треугольным размещением;
Возможность совмещения эркера с соседними комнатами, например, перепланировка в однокомнатную студию или в двухкомнатную квартиру в зависимости от необходимой степени приватности.
- если объединение не подходит по какой-либо из причин, есть возможность зонирования этого помещения, включая в него самый разный функционал – от обеденного до рабочего или декоративного;
- большое окно предполагает достаточное количество естественного света, соответственно помещение будет светлее и просторнее за счет панорамного остекления;
- помимо структуры конструкции у панорамы есть еще один ощутимый плюс – существенно экономит электроэнергию;
- если в эркере нет батарей, можно спроектировать и установить диван вплотную к окнам.
Среди недостатков данного архитектурного проекта следует обратить внимание на следующие:
- значительные теплопотери из-за большого количества стекол не способны удерживать тепло так же хорошо, как стены, а значит придется продумать отопление и тратиться на услуги тепловых компаний, монтаж систем отопления по современным образцам, повышение теплоизоляции;
- так как оконных проемов довольно много, может присутствовать впечатление аквариума, пропадет некоторая доля ощущения закрытой комнаты, что скажется на комфорте, однако эту проблему можно полностью устранить шторами из плотных тканей или опыления зеркальный вид снаружи окон;
- для грамотного проектирования мало знать размеры, нужно знать хотя бы изюминки дизайнерских решений в помещениях нестандартной формы;
- придется учитывать все нюансы, связанные с интерьером помещений с наличием немалого количества стекол, захламлять пространство эркера нельзя.
Планирование функций
Поскольку форма кухонной ракушки нестандартна, не соответствует строгим геометрическим канонам, она потребует от хозяев изрядной доли фантазии и усилий.
Эркеры Макеты могут быть разной формы:
- полукруглая;
- полигональные;
- по типу трапеции;
- треугольный;
- по типу прямоугольника;
- с полурынком.
Есть много особенностей, которые необходимо учитывать при проектировании подобной кухни. Планировку можно продумать с точки зрения двух основных функциональных моментов – размещение в эркере рабочего или обеденного пространства.
Зона для работы в эркет пространстве — очень необычное дизайнерское решение, справиться с которым можно, только заказав кухонный гарнитур по индивидуальному плану. Зонирование в таком ключе позволит организовать рабочую зону прямо у окна, при естественном освещении, что внесет некоторый комфорт в процесс приготовления пищи.Можно разместить нижний шкафчик с вентиляционным коробом, который создаст небольшой дополнительный холодильник. С выводом воздуховода проблем не будет.
В этом варианте оставшаяся площадь кухни будет выделена под столовую, что также дает много интересных вариантов для воплощения ваших интерьерных фантазий.
Панорамное оформление Обеденная зона – самый популярный выбор.Неудивительно, ведь расположение стола для обеда в г. Эркер позволяет наслаждаться видом за окном, уместно будет рассмотреть возможность установки панорамных оконных проемов.
Идеальное решение — выберите стол, который соответствует форме выступа, если он округлый. Если приходится оснащать эркер треугольным или трапециевидным выступом, необходимо избегать острых форм, например, для размещения в нем круглого стола.
Отличное решение — лучник в качестве зоны отдыха.Это нетривиальный способ украсить кухню, позволяющий разместить в ней кресло или диван, журнальный столик. Если квартира позволяет, такой дизайн позволит совершенно по-другому взглянуть на вашу квартиру, выделить любимый уголок для чтения или хобби.
Другой способ применения зон Erker в качестве кабинета. Там можно разместить рабочий стол, компьютер, стул и место для хранения канцелярии. Особенно этот вариант понравится творческим личностям и тем, кто работает дома за компьютером.Ведь вид из окна – отличный источник вдохновения.
Любителям домашней флоры стоит задуматься об использовании эрки в качестве зимнего сада. Разделите свой собственный мини-сад роскошными цветами, тропическими растениями, а невероятно украшенный интерьер покажется заманчивым многим любителям домашних растений. Тем более что большое количество естественного освещения придется по вкусу зеленым насаждениям.
Не забывайте, что зимой окно потребует качественного утепления.Это позволит сохранить тепло в помещении и не пересушить цветы.
Необычным решением можно считать отделку эркера в стиле кухни, но без функционального назначения. Можно вообще не вставлять в него мебель, а использовать под место для новогодней елки, а можно примерить хаотичные подушки, да и просто провести там время с книгой.
Выбор стиля
При этом плюс и минус кухни с Эркером в его необычности.Плюс – в некоторых вариантах оформления интерьера архитектурный выступ создаст еще одну шикарную изюминку. В то же время круг выбора среди стилей существенно ограничит круг выбора среди стилей, потому что Эркер не будет гармонично вписываться в каждый из них.
Неважно, какой формы и какого размера Эркер присутствует на вашей кухне, всегда продумывайте дизайн, чтобы все пространство было гармоничным и единым. Не рискуйте и сочетайте детали разных направлений, хай-тек и барокко, лофт и прованс.
Классический
Вечный и актуальный классический стиль подразумевает лаконичность, цветовую сдержанность, формы, линии, аксессуары. Стоит избегать подходящих линий, неуместных актерских деталей. Благородство и нейтральность, аристократическая скромность должны присутствовать в каждом предмете. Если говорить об отличительных чертах, то это натуральность материалов, например, массив дерева.
В кухню этого стиля Erker впишется почти идеально.Попробуйте разместить в ней гарнитур из натурального светлого дерева, а оставшуюся комнату оформить как классическую столовую с большим столом. Прозрачные шторы помогут визуально высвободить конструкцию эркера.
Современный
Частая ошибка совершается теми, кто считает модерн одним из стилевых направлений авангарда. На самом деле модерн отличает изящная мебель, изящные детали, плавная, непрофессиональная линия. Возможности по использованию материалов Огромное количество, отлично впишется и дерево и металл и стекло.Тем более, что они прекрасно сочетаются друг с другом.
Erker – это особое дизайнерское решение, которое представляет собой часть помещения, выступающую из здания. Он создан не только для увеличения пространства и украшения внешней отделки, но и для того, чтобы в комнату входило больше света. Кухня П44Т с Эркером из-за нестандартного планировочного решения в домах этой серии требует такого же творческого подхода к оформлению интерьера.
Особенности планировки кухни с Erker
Одной из главных проблем Erker является ее нестандартная форма, которая может быть абсолютно любой.
Эркер на кухню может быть:
- треугольный;
- трапециевидный;
- полукруглый.
Эркер треугольной формы имеет наименьшие габариты, поэтому в нем сложно разместить полноценную обеденную зону. Здесь идеально будет уютный диванчик или стеллажи. В трапециевидной и овальной эркрах уже можно создать красивую кухню-столовую.
Даже если кухня в обшивочном доме расположена в северной или западной части квартиры, недостатка в естественном освещении не будет.Просторное окно, как правило, хорошего качества позволит не использовать множество дополнительных источников искусственного света, а также подобрать практически любой дизайн кухни серии П 44Т.
Преимущества Erker в квартирах серии П44Т
Архитектурное дополнение помещения имеет ряд преимуществ.
Erker имеет ряд преимуществ:
- увеличение полезной площади квартиры;
- комната, благодаря такой планировке, становится намного светлее за счет больших плит;
- Внешний вид Становится более эстетичным.
Увеличение площади до 13 кв. М – одно из самых очевидных преимуществ. Кухня становится больше, а значит, появляется возможность разработать интересный индивидуальный дизайн интерьера, который, несомненно, понравится тем, кто стремится выделиться из толпы типовых проектов.
Возможность объединения Эркера со смежным помещением. Результатом такого решения станет кухня-гостиная. Этот вариант подойдет обладателям двухкомнатных квартир или домов с большим количеством комнат, ведь при объединении теряется некоторая приватность.Это также необходимо учитывать при планировании ремонта. В отличие от объединения, зонирование обшивки кухни можно противопоставить. Поэтому маленькое помещение, используя дизайнерские приемы, будет приобретать различную функциональную нагрузку.
Также для оптимального использования пространства лучше всего разместить вдоль стен угловой или линейный кухонный гарнитур, а обеденную зону в самой эркере. Обеденный стол в этом месте выглядит оптимально и выигрышно.
Другой вариант — разместить в эркере стеллажи и полки для декоративных предметов интерьера или посуды, а стол поставить посредине кухни.
Большое количество солнечного света означает визуальное увеличение пространства. Это связано с панорамным остеклением, присущим арочным постройкам. Актуальны кухни с окнами от потолка до пола. Конечно, такой дизайн потребует немало изобретательности, но сделает интерьер ультрасовременным, модным, неповторимым. Этот пункт напрямую связан с предыдущим. Он заключается в значительной экономии электроэнергии, так как большое количество застекленных площадей гарантирует хорошее проникновение естественного света.Это свойство характерно даже для «северных» квартир.
недостатки
Обилие стекол физически пропускает большое количество тепла, поэтому требует дополнительных затрат на коммунальные услуги. Есть необходимость в ремонте кухни, целью которого будет повышение теплоизоляции, установка современных систем отопления.
Большое количество окон может создать эффект аквариума. Так будет утрачена некоторая приватность частных помещений, а значит, пострадает общий комфорт обитателей.Плотные шторы помогут решить эту проблему. Современное решение. Будет установлено с внешней стороны окна зеркальное напыление. От Erker требуется высокий уровень владения эргономикой пространства, знание основ оформления интерьеров необычных геометрических форм. Необходимо учитывать детали оформления помещения, имеющего большое количество окон.
Варианты расположения
Нестандартная геометрическая форма эркера может создать массу хлопот владельцам квартиры серии П44Т.Однако кухня 13 кв. м станет интересным архитектурным решением, способным подчеркнуть интерьер функциональностью и оригинальностью.
Рабочая
Рабочая зона выходит на окно — мечта каждой хозяйки. Идея хорошая, но нужно быть готовым к необходимости переноса связи.
Такие преобразования кухни потребуют поднятия уровня пола, что само собой уменьшит высоту помещения. Кроме того, придется заказывать гарнитур сложной формы, который бы не закрывал снизу радиаторы отопления, иначе будет нарушена циркуляция воздуха.
Для оформления рабочей зоны Не только хорошее чутье и чувство пространства у конструктора, но и дополнительные расходы, связанные с покупкой или заказом мебели нестандартных форм и бытовой техники. Поэтому важно тщательно продумать расположение каждого элемента.
Оптимальное решение — размещение в эчере столешницы и мелкой бытовой техники.
При достаточной высоте подоконника в эркере — не менее 1.3 м, а также широкий для удобного расположения необходимой посуды и техники, то смело устанавливайте туда столешницу. Это может быть как отдельная рабочая поверхность с моющей и разделочной доской, так и монолитная, закрывающая сразу две стены, перетекающая плавным изгибом от сплошной стены к самолету.
Столовая
Вариантов обустройства панорамного помещения великое множество. Все-таки наибольшую популярность завоевали кухни с размещением обеденной или обеденной зоны.Подберите стол одной формы с эркером.
Если кухня в доме обшивки достаточно просторная и позволяет поставить удобный диван и стол, то карниз лучше использовать как обеденную зону.
При желании можно дополнительно зонировать эркер, отделив его занавеской, занавеской, ширмой, или использовать точечное освещение на потолке.
Выбирая диван, откажитесь от моделей с подлокотниками. Этот конструктивный элемент не особенно удобен в обеденной зоне и занимает много места, загораживая проход.
В зависимости от стиля кухни диван можно заменить скамьей с мягкими подушками, роль спинки в этом случае будет выполнять стена. Не забывайте, что диван и лавку можно использовать как дополнительное место для хранения вещей.
Зона отдыха
Необычным дизайнерским решением станет размещение в оборудованной зоне удобного дивана для отдыха и журнального столика. Такое новшество позволит по-новому взглянуть на весь интерьер кухни P44T, подарит владельцам еще одно место для комфортного отдыха, хобби или просто уютного проживания за чашечкой кофе.
Если дополнительных квадратных метров меньше, то полноценная зона отдыха станет отличным вариантом для дизайна кухни в восточном стиле: Просто разместите там низкий удобный диванчик, оттоманку и несколько доков, над проемом повесьте тюль в несколько рядов для создания пышного и объемного эффекта.
На тахте расстелите много подушек из яркой ткани — зона отдыха на кухне готова. При желании можно использовать откидной столик, если нужно передать чай с восточными сладостями.
Выбор стиля и декора
Выбор цвета, а также мебели, техники и аксессуаров для кухни с выступающей частью достаточно велик. Большинство современных дизайнеров сходятся во мнении, что такая планировка представляет больше возможностей для создания интерьера в современном стиле, а не в классическом ключе.
Традиционные формы со строго выветрившейся геометрией бывает сложно вписать в нестандартную планировку, особенно если размеры кухни скромные.С другой стороны, современные тенденции в дизайне давно дали хороший задаток от общепринятых канонов в оформлении помещений, теперь можно использовать сразу несколько элементов из разных стилей.
Классика
Кухня в классическом стиле должна быть выполнена в сдержанных тонах. Строгость линий, продуманность каждого аксессуара, благородная скромность – вот основные черты этого вида дизайна. Натуральные материалы, такие как массив дерева, покажут высокую выделенность хозяев, вызовут восхищение.В зоне Эркель кухни серии П44Т в классическом стиле можно разместить искусно выполненный деревянный гарнитур светлых тонов. Это позволит оставшееся пространство разместить гостей за большим обеденным столом.
Модерн
Такие кухни отличаются плавностью линий, изяществом, изяществом. Асимметричные узоры должны стать основой дизайна зоны самолета в квартире серии П44Т. Модерн дает самые разнообразные материалы – от металла до стекла.
Интересно, что на эркер выведены гарнитуры контрастных цветов с рабочей зоной. Ультрасовременная раковина и смеситель прямо напротив окон превратят рутинное мытье посуды в развлечение.
Прованс
Прованс — стиль французской провинциальной одежды. Ему присущи нежные, пастельные тона, плавность линий, растительные мотивы, старинные аксессуары, наличие легкой небрежности. В эркер оливкового стиля можно поставить обеденный стол с едва заметными поломками, трещинами.На окнах висят шторы с растительным орнаментом, повторяющимся в других текстильных аксессуарах.
Хай-тек
Для стиля характерна четкость граней и строгость переходов. Эта комната наполнена стеклом, металлом и пластиком. Подходит людям, которые не боятся экспериментировать. Эркерная зона в стиле хай-тек может быть выполнена в футуристическом дизайне.
Характеристики диванов с кухней
Диван Эркор можно приобрести в магазине.Однако, учитывая, что размеры Эркера разные, лучше сделать его на заказ. Тем более в этом случае удастся учесть все пожелания заказчика.
Наличие дополнительных функций
Диваны Эркеш – это мебель, обладающая дополнительными функциями. Он может занимать достаточную площадь комнаты, но практически во всех моделях есть выдвижные ящики и другие ниши для хранения различных вещей, что лишний раз подтверждает его практичность.
В связи с тем, что чаще всего кухонный уголок в Эркере устанавливается впритык к стене, он редко содержит полки для размещения мелких предметов интерьера.
Отличное спальное место При раскладывании вся мебель эркерного типа складывается. Особенно это касается гостеприимных хозяев, которым часто приходится ночевать у друзей и родственников.
На что обратить внимание при выборе
Перед покупкой или заказом авиационного дивана необходимо продумать все детали: от размера до фурнитуры.
Что касается самого дизайна, то за него отвечает производитель. Однако если кухонный уголок оформляется на заказ, то можно выбрать материал для каркаса, что невозможно при покупке готового предмета мебели в магазине.
Чтобы предмет гордости прослужил долгие годы, желательно обратить внимание на характеристики:
- наличие аксессуаров — чтобы все в комнате смотрелось гармонично, такие предметы, как стулья, подушки на диван или баффы лучше заказать с аналогичной обивкой;
- не последнее значение имеет качество наполнителя – чтобы кухонный диван был удобным и комфортным, лучше, если в качестве наполнителя используется полиуретановый наполнитель;
- дизайн должен соответствовать вашему вкусу;
- объем изделия перед заказом необходимо рассчитать размеры дивана с помощью рулетки, рассчитать глубину и ширину будущей конструкции, а также обратить внимание на изнаночную сторону спинки, чтобы она не оказаться выше подоконника;
- Внутреннее устройство дивана заключается в расчете расположения ящиков для хранения одежды и спальных помещений.
Приобретая квартиру с Эркером серии П44Т, подумайте, удастся ли грамотно обустроить столь необычное пространство. Стоит следить за модными тенденциями в дизайне интерьера, обращаться к опытным дизайнерам и прислушиваться к вашим идеям.
Видео о диване
На видео ниже показан один из вариантов обшивки дивана на кухню П44т.
Вас также может заинтересовать
На кухне сделать ее светлее, увеличить комнату, придать ей особый, нетривиальный вид.Но в то же время, при всех своих неоспоримых достоинствах, кухню с эркером достаточно сложно украсить зоной, которая при недостатке внимания может превратиться из изюма помещения в архитектурные несветильники, захламленную угловую мебель.
Дизайн кухни с Erker: подходы и варианты
Эркер – выразительный архитектурный элемент, выступ в стене, который изнутри соединен с основным помещением. Если смотреть упрощенно, то Эркер — это своего рода лоджия, соединенная с кухней, только значительно лучше утепленная.Остекление эркера зависит от архитектурных особенностей дома – это может быть полностью стеклянный «фонарик», а может иметь частичное (чаще всего – до половины, по размеру стандартного окна).
Рассматривая идеи дизайна интерьера кухни с эркером, в первую очередь стоит определиться в главном – какой именно эркер будет назначен:
- эркер — как самостоятельная отдельная зона, которую можно отделить от кухни перегородкой, ширмой, большой шторой, барной стойкой и т.п.При этом дизайн эркера будет напрямую и полностью зависеть от функционального назначения – это может быть и зимний сад, и рабочее место, и зона отдыха (чил-аут), все зависит от пожеланий хозяев. Такой вариант оправдан для однокомнатной квартиры – в этом случае, погасив эркер, собственники квартиры могут фактически получить еще одну «изолированную» комнату;
- эркер — как продолжение и часть кухни. В этом случае многое будет определять как площадь Эркера, так и индивидуальный подход владельцев.Важно, чтобы дизайн стилиста Эркера гармонировал с общим интерьерным решением кухни.
Совет! Чаще всего для создания там рабочей зоны используется небольшой эркер. Такой подход позволяет полностью освободить одну из стен на кухне, чтобы сделать полноценную обеденную зону.
Рассмотрим некоторые особенности такой раскладки:
- В зоне обшивки разместить столешницу, которая плавно переходит в подоконник – хозяйка получает в свое распоряжение очень большую рабочую зону.Благодаря такому расположению большую часть дня рабочая зона не требует искусственного освещения, пища готовится при естественном освещении, не искажающем естественный цвет продуктов;
- нестандартный подход — Установить в стиральной машине Erker. Основная проблема будет с подводом коммуникаций (вода, канализация), но она может облачиться в унылый и монотонный процесс мытья посуды. Отличаться будет наблюдением за происходящим за окном;
- верхние модули, размещенные по бокам иллюминатора самолета, визуально углубляют сам Эркер, делая его зрительно просторным.Этот прием особенно эффектен для кухни с небольшим окном-стрелкой;
- не ставьте варочную панель в эркер. Во-первых, сразу встанет вопрос об установке экстрасектора, который будет весьма проблематично разместить и надежно закрепить, а во-вторых – рабочая варочная поверхность будет вызывать постоянное запотевание стекол.
В достаточно просторной зоне эркера можно разместить обеденную зону, соблюдая следующие принципы:
- чем дальше от эркера будет находиться мойка и варочная поверхность — тем лучше
В эркере можно разместить мягкую кухню Уголок, по форме повторяющий геометрию эркера и установки кухонного стола.Как вариант — в качестве сидений можно использовать широкие подоконники, положив на них мягкие декоративные подушки
- Форма кухонного стола Должна сочетаться с геометрическими схемами стрельчатой части — для прямоугольной эркерки нужен прямоугольный обеденный стол, для полукруглой эркерки — соответственно овальный
- Чтобы освободить дополнительную площадь, некоторые дизайнеры демонтируют радиатор, установленный в Erker. Такое решение достаточно спорное, ведь наружная стена не отапливается, а если учесть еще и большую площадь остекления, то должны быть предусмотрены варианты дополнительного обогрева.
В качестве альтернативы можно рассмотреть возможность монтажа «теплых полов» (электрических или водяных), которые обеспечат равномерный прогрев всего объема эркера за счет поднимающегося вверх теплого воздуха. Кроме того, при установке такой системы уровень пола в самолете поднимается, что позволит четко выразить обеденную зону в виде подиума. В загородном доме, с большими светлыми кухнями и эркерами большой площади, проблему отопления можно решить, установив внутриполевые конвекторы, теплообменник которых установлен вдоль наружной стены эркера.Поступающий через небольшие щели в полу теплый воздух будет нагреваться и размещаться, а также большими стеклянными окнами.
Текстиль – важнейший элемент дизайна Erker. Окна не должны жить своей, автономной «жизнью» в общем замысле. И здесь подходит универсальное правило. Эркеру подойдут прямые шторы в светлых тонах. Здесь будет к месту изогнутый современный карниз, с помощью которого можно будет свободно передвигать шторы, чтобы получить нужный эффект – сделать кухню более четкой или полностью перекрыть свет.Для небольшой эркеры с небольшими оконными проемами подходят исключительно римские шторы – они не перемалывают пространство, при этом полностью выполняя свое функциональное назначение.
Выбор цветового решения Для Erker стоит помнить, что оно должно сочетаться с общим дизайном помещения. Но все же, подобрав цветовую гамму, стоит воспользоваться преимуществами Эркера в плане добавления подсветки — и отказаться от насыщенных и темных цветов в пользу светлых.
Об искусственном освещении.Если в зоне сервировки расположена обеденная группа – подойдет подвесной светильник, для рабочей зоны – установите симметрично бра на кронштейне. А для зоны отдыха подойдет бра с норным, мягким светом или лампа.
Кухня с Эркером имеет два привлекательных качества — увеличенную площадь остекления и дополнительную площадь. Эркер – это специально организованная выступающая часть здания, которая с помощью специальных конструкций вынесена за пределы стен. Этим достигается увеличение площади кухни.Но дизайн кухни с Erker — не такая уж простая задача. Необходимо столько разместить мебели и организовать пространство, чтобы подчеркнуть и в полной мере использовать преимущества этого элемента интерьера.
Формы и размеры
Эркеры бывают шести форм — полукруглые, квадратные, трапециевидные (с разными углами и количеством граней), треугольные.
В частных домах эти декоративные элементы обычно делаются полукруглыми или многогранными, но форма очень близка к полукруглой.Размеры выбираются произвольно — по желанию владельцев. А вот кухни с эркером в частном доме делают нечасто. Это архитектурное «излишество» обычно приберегают для гостиной, реже — для спальни, еще реже — для кабинета. Просто гостиная позволяет проводить время, глядя в окно. Ведь именно большое окно – одно из главных достоинств этого декоративного элемента.
Если говорить о многоэтажках, то кухня с эркером реализована в домах серии П-44Т.
Ссылка. Дом П-44Т является дальнейшим развитием предшественника серии П-44. Отличается высокими теплоизоляционными наружными навесными панелями, более высокими потолками внутри квартир (2,7-2,75 м против 2,64 м), эркерами и полукаркасами на фасаде. Благодаря дешевизне производства и монтажа, и в то же время достаточно удобной для панельных домов размерами квартир, серия получила очень большое распространение и также строится.
Самые маленькие кухни-качалки в Домах серии П-44Т — для однокомнатных квартир — имеют площадь до 13-14 кв.Неплохо и есть где развернуться. Для квартир с двумя и более комнатами — площадь 16 кв.м и более. Такие помещения позволяют придумывать и реализовывать интересные проекты.
Свободный доступ
Самое простое решение — оставить кухонный шкафчик свободным. Здесь можно поставить пару удобных кресел и небольшой журнальный столик. Повесив на окна полупрозрачные шторы или установив рулонные или жалюзи, мы добиваемся того вида и функциональности, которые вам кажутся более приемлемыми.
Нельзя загромождать пространство… если позволяет площадь
Минус такого решения очевиден — нерациональное использование помещения. Если для вас это не критично, само решение неплохое: можно любоваться видом на вид. В остальных случаях дизайн кухни с эркером стараются разработать так, чтобы он был не только красивым, но и функциональным.
Кухонная зона в Эркере
Один из самых рациональных способов обустроить кухню с помощью эркера – сделать рабочую зону.На уступ устанавливаются рабочие столы без навесных шкафов, здесь нельзя устанавливать газовые плиты или другое газовое оборудование. Электрические приборы можно установить, но вряд ли оно того стоит – вытяжка здесь не висит, по-другому организовать отвод загрязненного воздуха сложно и дорого. Так что это хорошая идея, но сложная в реализации.
Если позволяет планировка, можно сделать стол с мойкой, но обычно приходится тянуть трубы водопровода и канализации — стояки далеко.В итоге получается довольно длинная дорожка, что тоже дорого в устройстве и не слишком удобно в эксплуатации: — Не самая простая и приятная работа.
Так вот в выступе на кухне напольные шкафы со столешницей. Работать, глядя в окно, приятно. Без проблем в этой зоне можно поставить мини-холодильник или морозильник до метра высотой. При такой высоте они подходят под столешницу. Холодильного оборудования такого размера хватит на одного-двух человек.Такой вариант можно увидеть в квартирах-однушках. Развернуться негде и это, пожалуй, лучшая Дизайн Кухни с еркером для такого случая.
Недостаток организации в эркере рабочей кухонной зоны два. Первое — доступ к окнам закрыт. Главное преимущество Эркера — более широкий обзор. Когда рабочая зона расположена на кухонном столе, то наслаждаться видом можно только во время работы. Сидя в другом конце комнаты мало что вижу. Тоже не плохо, но…
Второй недостаток — сложность реализации большинства идей, а это дополнительные затраты. Даже если вы просто поставите мебель, ее придется делать на заказ. Не получится – планировка нестандартная, нужны угловые шкафы с нестандартными углами и наполнением. Так что только под заказ, а это большие деньги.
Обеденная зона
Еще одна возможность сделать дизайн кухни с эркером функциональным – устроить здесь обеденную зону.Если поставить стол так, чтобы половина пространства оставалась свободной, будет удобно и красиво. Стол не обязательно ставить окно вплотную к окну, но если есть необходимость — то можно и это сделать.
Обеденная зона — хороший вариант: и функционально, и с выходом на окна
Плюсы — свободный доступ к окнам, возможность сделать зонирование, простота реализации. С размерами и формой стола нужно будет определиться дальше, но можно найти и готовый обеденный стол.Вы можете искать раскладные / раскладные столы. В этом случае можно будет увеличить функциональность.
Барная стойка
Для молодежи скучно сидеть за обеденным столом — можно сделать барную стойку вдоль обшивки окон. Вид из окон не загораживает, и выглядит современно, и функционал нормальный. Это, конечно, если вы любите сидеть на высоких стульчиках и пытаться втиснуться в небольшое пространство.
Для тех, кто планирует периодически сидеть за столом, а не только за барной стойкой, есть.В сложенном виде они занимают совсем немного. Есть столы в удобной форме, есть даже очень похожие на картину или зеркало в раме. В общем, простор для фантазии имеется, и размеры приличные.
Кстати можно комбинировать — сделать стеллаж на одну половину эркера, на другую стол. Нужно будет выбрать уровни, подумать о ширине/глубине, не забыть о безопасности (чтобы не биться о край планки).
Диван: удобно или нет?
Если вам очень нужна дополнительная кровать, то можно подумать об установке дивана в эркер.На первый взгляд эта идея кажется очень привлекательной – любоваться видом из окна можно сидя на диване. Это плюс к тому, что есть дополнительная кровать. Если диван раскладной, спальных мест может быть два и три.
Этот вариант только кажется удобным…
Но есть и минусы: на практике оказывается, что это не так удобно — к окнам не подходить, да и большая часть панорамы закрыта сзади. А если добавить к этому высокую стоимость дивана на заказ и довольно малую вероятность продать его из-за ограниченного спроса, то получается не такая уж и радужная картина.
Поэтому, даже если вам нужно спальное место, попробуйте дизайн кухни с эркером сделать так, чтобы хотя бы половина окон была свободна. Потому что диван все закрывает, просто съедает место и неудобен.
Дизайнерские окна на кухне erker
Разрабатывая дизайн кухни с Erker, вы обязательно столкнетесь с проблемой оформления окна. Но зависит от выбранного способа использования зоны самолета:
В любом варианте желательно выбирать ткани хорошо стирающиеся.А вот подбор цветов, оттенков, фактур – это сугубо индивидуально и зависит от выбранной стилистики кухни.
Фото интересных вариантов
Для самостоятельной разработки дизайна кухни с ведром, источником идей может быть любое фото. Чтобы идей было больше, в этом разделе мы собрали самые интересные варианты.
Классическая кухонная мебель с необычными шторами …
Планирование кухни с Эркером — Отдельный разговор
Сделать подсветку в эркере встроенными потолочными светильниками — хорошая, а главное — функциональная идея
В стиле минимализма — функционально и удобно
Если Эркер маленький, то в него поместится только стол со стиркой
Повесить горизонтальные жалюзи На окна Erker в кухне — удобно и функционально
Римские шторы разной плотности…
Дизайн кухни с Erker в доме P44T — фото идеи
Кухни с Erker В основном встречается в типовых домах, где размеры помещения колеблются от 10 до 13 квадратных метров. метров , а также в частных индивидуальных постройках. При разработке конструкции — Проект кухни с эркером в П 44т внешний выступ любой геометрической формы и размера можно сыграть в вашу пользу, начиная с размещения на нем барного комплекса, столовой, обеденной или рабочей зоны и заканчивая благоустройством этой части.
Профессиональные дизайнеры мебельной компании Народная кухня от Лорето помогут вам создать красивый и функциональный дизайн кухонного гарнитура п44т с использованием передовых технологий и современных идей. Примеры и варианты наших работ можно найти в каталоге с фото . Если вы хотите, чтобы все выглядело по-человечески, кухонная мебель в таком нестандартном помещении должна быть изготовлена только на заказ. Самое главное, чтобы было уютно и комфортно всем членам семьи.
Планировка кухни с Erker P44T: 10, 12, 13 кв. М.
Грамотная Планировка и отделка Дизайн интерьера кухни с эркером В доме п44т Площадь 12 — 13 кв. м, позволяет сделать эту комнату более привлекательной, предоставив семь драгоценных пространств для путешествий.
Есть протики эркер. различной формы:
- Закругленный;
- Прямоугольный;
- Многогранный;
- Для серий п44т , п44м, п44к и других типовых домов Характеристика кухня с треугольным эркером , угловым полукруглым эркером и трапециевидным выступом.
Самые распространенные Планировка кухни с Erker в разных вариантах По площади квартиры: 10, 12 и 13 кв. метров Представлено ниже.
Треугольный ландшафтный дизайн erker. Имеет более ограниченные возможности ввиду того, что его площадь меньше панорамной. Кроме того, присущая ему геометрия существенно усложняет оформление дополнительного пространства.
Идеи обустройства кухни с панорамной полкой
Особенностью кухни с панорамным эркером является расположение смежных стен под углом 135 градусов и наличие двух труб отопления на самой необходимой рабочей стене — это главный недостаток в проекте дома серии п44т . Потребитель должен подобрать кухонную мебель с общей длиной этих вертикальных сдвоенных труб отопления примерно 2500 — 2550 мм. Еще нужно учесть сломанные под 135 градусов отводы от этих труб по эркеру. . Почему-то приходится всячески вписываться в стандартные мебельные шкафы. кухонный гарнитур, но, как правило, образуются не нужные зазоры и зазоры, а это не совсем красиво и не эстетично.
В нашем случае при сугубо индивидуальном изготовлении нестандартной кухонной мебели для кухни с Erker в П44Т На заказ проблем не возникает. Мы будем производить гарнитуры на полный размер стен — это примерно L1=3000-3100 на L2=1800-1860 мм, а все трубы с кухонными модулями скрыть.
Купить кухни недорого для дома п44т в Москве
Предлагаем Вам возможность заказать и недорого купить кухню для Erker P44T По цене производителя в Москве. Вам гарантировано достойное качество мебели и профессиональное обслуживание. Информацию о нашей работе можно найти на странице сайта.
Как разработать идеальный дизайн кухни с эркером п44т
Как разработать идеальный дизайн кухни с эркером п44т
В последние десятилетия эркер перестал быть признаком исключительно частного дома.Ярким примером тому является серия 17-этажных новостроек П-44Т, которые начали вводиться в эксплуатацию в 1979 году. Их отличает удобная планировка, а эркер часто располагается на кухне. Таким образом, получается помещение, площадь окна которого вынесена вперед, образуя трапециевидный выступ. Эти драгоценные квадратные метры необходимо использовать на все 100%, именно поэтому нужно тщательно продумать, каким должен быть дизайн кухни с эркером п44т.
В чем преимущества эркера:
- расширяет полезную жилую площадь;
- увеличивает освещенность за счет дополнительных окон;
- делает фасад дома интересным;
- позволяет придумать оригинальный интерьер кухни с эркером п44т.
В этих многоэтажках кухня имеет площадь около 13 квадратных метров, а площадь эркера обычной трапециевидной формы, хотя форма этого выступа может быть любой: прямоугольной, треугольной, овальной , круглый, многоугольный. В любом случае при разработке дизайна кухни планировки п44т нужно учитывать форму выступа и решать, как будет использоваться эркер.
Существует два варианта оформления:
- эркер, как отдельная зона, выполнен в виде балкона и отделен от основного помещения ширмой, перегородкой, барной стойкой и т.д.;
- эркер как часть кухни. В этом случае эркер является смысловым центром помещения, а интерьер кухни п44т развивается уже не «от печки», а от окна.
- рабочая зона для приготовления пищи. Нижняя часть кухонного гарнитура полностью заполняет стену с эркером. Обычно раковину устанавливают перед окном;
- Обеденная зона. Самый распространенный вариант. Расположение кухонного гарнитура в данном случае линейное, двухрядное, Г-образное, на свободном пространстве рядом с окном размещается обеденная группа, а окно красиво украшается шторами.Форма стола должна соответствовать геометрической форме эркера;
- зона отдыха. В этом случае интерьер кухни с эркером п44т обогащается диваном или парой кресел с журнальным столиком. Очень красиво смотрится эркерный диван-шезлонг, который точно вписывается в эркер. Если к нему придвинуть вплотную стеклянный журнальный столик, то получится идеальное «место для чашки чая/кофе» с утра;
- Рабочее место или уголок для рукоделия. Ничто не мешает пристроить в эркер откидной столик и поставить туда ноутбук;
- Зимний сад.Повышенная температура, влажность и уровень освещенности просто напрашивается создать здесь небольшой летний уголок. Многоуровневые конструкции (стеллажи или жардиньерки) позволят разместить все комнатные растения на своих местах;
- иногда зону эркера ничем не заполняют, а лишь красиво украшают шторами. При желании здесь можно поставить елку.
Также дизайн кухни с эркером п44т зависит от того кухня у вас-столовая или кухня-гостиная.В первом случае разделить зоны можно барной стойкой, неглубоким стеллажом или самой обеденной группой. Чтобы не лишать остальное пространство естественного света, делайте перегородки высотой не более 1,5 м. Во втором случае необходимо всю мебель на кухню подбирать под интерьер гостиной.
Несколько советов, как разработать правильный дизайн кухни с эркером п44т:
1. Для этого помещения подойдет любая цветовая гамма, ведь оно достаточно просторное и очень светлое за счет дополнительных окон.Дизайнеры часто останавливаются на 2-х вариантах: сделать интерьер кухни с эркером п44т в светлых нейтральных тонах или сыграть на контрастах, используя в качестве акцентов смелые оттенки, узоры или фактуру материалов.
2. Такие необычные оконные проемы необходимо тщательно декорировать. Разнообразие штор для кухни позволяет каждой хозяйке выбрать свой вариант: практичные римские, рулонные шторы или жалюзи; романтичный австриец или француженка; озорные шторы-кафе или шторы в клетку в стиле кантри; классические шторы в пол и др.При желании можно комбинировать два вида штор, например, длинные портьеры с римскими или жалюзи. Просто используйте полупрозрачную ткань, чтобы не затемнить кухню. Сейчас продают очень удобные, которые можно огибать по периметру эркера. Все зависит от того, что будет располагаться в эркере. Например, если там кухонный гарнитур, то лучше повесить короткие римские или рулонные шторы. Обратите внимание, что возле варочной панели не должно быть легко воспламеняющихся штор.
3. Интерьер кухни с эркером п44т предполагает единый стиль и оттенок мебели для всего помещения (за исключением отдельного эркера-балкона). На месте эркера можно разместить что угодно: кухонный гарнитур, стол, диван, кресла, только предусмотреть свободный доступ к окну для проветривания. Современные дизайнеры даже советуют покупать не наборы мебели, а по отдельности, чтобы придать своей квартире нотки элегантности и «длинной родословной».
4. Каждая функциональная зона на кухне должна быть хорошо освещена. Эркерное окно не является исключением. Если там обеденная группа, используйте красивый подвесной светильник, если рабочее место – бра на кронштейне, если зона отдыха – торшер или бра с мягким светом.

Брёхово, пос. Голубое)
70-2.75 м

Медвежьи Озёра, дер. Брёхово, пос. Голубое)
Крупноразмерные перекрытия толщиной 14 см по ширине комнат

70-2,75 м.
Крупногабаритные перекрытия толщиной 14 см по ширине помещений

Поэтому приходится использовать настольную сушилку для посуды. При этом верхний ярус вполне можно перенести в обеденную зону или вовсе от него избавиться, установив вдоль глухих стен высокие шкафы-колонны.
Эркер вплотную к окнам, провоцируют их частое запотевание и загрязнение;
Часто эркеры делают не слишком просторными, поэтому массивный декор их просто испортит.
Для невысоких кухонь этот прием не подходит.