Грамотная планировка двухкомнатной квартиры: 3 варианта — INMYROOM
В качестве основы для перепланировки арт-директору «Студии 3.14» Ирине Леготкиной досталась экономичная и скромная по площади двушка с эргономичной планировкой, небольшим холлом и просторными изолированными комнатами, которые выходят на две стороны света.
Но главное достоинство этой квартиры – без малого 18-метровая гостиная с большим полукруглым окном. К тому же все стены ненесущие, а потому можно трансформировать пространство по своему усмотрению. Три варианта планировки подойдут как для холостяка, так и для семейной пары или семьи с ребенком.
Краткая информация
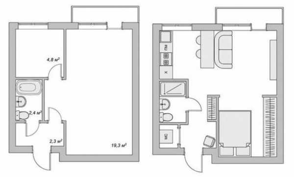
В масштабной перепланировке эта квартира в ЖК «Символ» площадью 57 кв. м не нуждается: все комнаты и так на своем месте, в каждой достаточно естественного освещения. Потребуется лишь создать ниши для встроенных шкафов и кухонного гарнитура. Кроме того, можно объединить гостиную и кухню, а также совместить раздельный санузел.
Квартал «Символ» – это современное жилье бизнес-класса с комфортной окружающей средой. Его разработали британские архитектурные бюро LDA Design и UHA London для ведущего застройщика Москвы – компании ДОНСТРОЙ. Они продумали социальную, спортивную и культурную инфраструктуру. А собственный парк «Зеленая река» протяженностью 2 км в центре Москвы и вовсе приятно удивляет, ведь квартал расположен всего в 5 минутах ходьбы от метро «Площадь Ильича».
Вариант 1: для семьи с ребенком
Главное достоинство гостиной – два окна, одно из которых большое, полукруглой формы. Оставляем их открытыми, чтобы можно было любоваться живописными видами. В простенке между ними расположим тумбу с телевизором, а напротив – большой раскладывающийся угловой диван и кресло. В этом пространстве будет приятно принимать гостей и собирать друзей.
Ниши позволяют встроить шкаф для верхней одежды в холле и небольшой угловой гарнитур на кухне. Еще одна ниша идеально подходит для установки тумбы с телевизором на кухне и большого углового дивана в гостиной.
Поскольку гостиная выполняет роль спальни, предусмотрим платяной шкаф для родителей. В детской появится шкаф для одежды и стеллаж для учебников и книг школьника возле рабочего стола. Потолки высотой 3 метра позволяют дополнительно установить антресоль над кроватью для редко используемых вещей.
Идеи для интерьера: мебель и декор
Вариант 2: для холостяка
Для бизнесмена и ценителя комфорта четко разделим общественное и приватное пространство. Объединим кухню и гостиную: для этого заложим дверной проем из холла и снесем вторую стену – вместо нее появится усиленная конструкция с раздвижными перегородками, благодаря чему можно закрыть зону готовки от посторонних глаз.
Но даже если перегородки открыты, сидящие на огромном диване гости увидят лишь стильные высокие шкафы под потолок. Рабочую зону с раковиной и варочной поверхностью «спрячем» вдоль боковой стены, а напротив гостиной появятся колонны со встроенным холодильником, духовкой и другой необходимой бытовой техникой. Обеденный стол можно дополнительно разложить для большой компании.
В изолированной спальне предусмотрим большую двуспальную кровать и пару узких шкафов по обе стороны от нее, которые объединим антресолью под потолком. Напротив – комод и телевизор. Вместительный шкаф для верхней и сезонной одежды установим в холле, рядом – мини-диван. Ванную выберем угловую – она больше и комфортнее, чем обычная.
Идеи для интерьера: мебель и декор
Вариант 3: для супружеской пары
Чтобы создать открытое пространство, объединим гостиную и кухню без использования каких-либо перегородок. Это потребует согласования, но получившийся результат того стоит! Угловой гарнитур достаточно вместительный, с большой рабочей поверхностью. Классический раздвижной овальный обеденный стол объединяет оба пространства, благодаря чему сидящие за ним гости могут общаться и с тем, кто готовит на кухне, и с теми, кто отдыхает в гостиной. Здесь места хватит для углового дивана и кресла, тумбы под телевизор, журнального столика и торшера. При этом окна с живописным видом остаются открытыми, но пространство возле них задействовано.
Спальню увеличим за счет переноса стены между ней и гостиной. Это позволит найти место не только для полноразмерной двуспальной кровати и пары тумбочек, но и для платяного шкафа, совмещенного с туалетным столиком.
В холле установим два шкафа для верхней одежды по обе стороны от кушетки. А высокие потолки позволяют объединить их общей антресолью для редко используемых вещей. Поскольку предполагается, что в квартире будет жить только семейная пара, санузел можно объединить. Это позволит установить всю необходимую сантехнику и систему хранения для косметики, бытовой химии и банных принадлежностей.
Идеи для интерьера: мебель и декор
На обложке: дизайн-проект «Студии 3.14».
www.inmyroom.ru
Планировка двухкомнатной квартиры — готовые схемы и планы с размерами
Немалая часть домов были построены ещё в советское время, поэтому на сегодняшний день не слишком рациональная планировка двухкомнатных квартир является достаточно острой проблемой. Конечно, в современных зданиях планировка создаётся более функциональной, но ситуации, когда застройщики между собственной выгодой и удобством будущих жильцов выбирают первый вариант, по-прежнему, не редки.
Большая часть квартир в домах бизнес- и элит-класса идут без перегородок, то есть обладают так называемой «свободной» планировкой. В домах типовых серий, как правило, на продажу выставляются квартиры с готовой планировкой, а в некоторых случаях – с готовой отделкой.
Двухкомнатная квартира со свободной планировкой Для получения свидетельства о собственности, в соответствии с российским законодательством, в БТИ необходимо предоставить план (планировка, которая была задана непосредственно самим застройщиком).
Пример свободной планировки двухкомнатной квартирыВ большинстве случаев на полу в виде кирпичной дорожки выкладывают план квартиры, который утверждается БТИ. Покупатель, на своё усмотрение, может придерживаться этого плана или изменить планировку (что, естественно, должно быть узаконено в БТИ). Как правило, основная часть людей отдают предпочтение второму варианту, а иногда даже делают перепланировку двухкомнатной квартиры в трёхкомнатную, что вызвано рядом определённых причин.
Вернуться к оглавлениюСодержание материала
Особенности планировки двухкомнатной квартиры в панельном доме
Основные проблемы, которые связаны с планировкой двухкомнатных квартир, возникают из-за окон. Нередко в процессе проектирования красивых зданий из-за некоторых архитектурных излишеств могут образоваться так называемые «глубокие» или «слепые» квартиры. Из-за отсутствия окон в них крайне трудно обустроить нужное количество спален, гостиных и других помещений, которым требуется освещение. Эта проблема возникает, в основном, исключительно по вине застройщика, желающего получить квартиры с большим метражом, но практически нефункциональные.
Такие ситуации, к сожалению, не редко встречаются даже в домах элитного класса. Встречаются такие варианты, когда площадь квартиры составляет порядка 100-200 кв. м, количеством около от 1 до 3, а также такой планировкой, которая не поддаётся практически никаким изменениям.
Кроме этого, довольно-таки неудачным вариантом можно считать планировку коридорного типа, при которой длинные узкие проходы ведут из одного помещения в другое. Также в планировках квартир в панельных домах часто встречаются комнаты-пеналы вытянутой формы, которые не слишком-то удобны в своей эксплуатации.
Планировка небольшой двухкомнатной брежневкиДругой не менее распространённой ошибкой является недостаточное внимание к дополнительным помещениям в квартире. На практике, наличие прихожей и просторной кухни для удобного проживания куда более важно, чем несколько «пустых» лишних квадратных метров. При этом число балконов и лоджий должно соответствовать количеству комнат. Иной раз бывают такие ситуации, когда трёхкомнатные квартиры, расположенные на первом этаже, идут без балконов, а однокомнатные, в свою очередь, располагающиеся выше, обладают сразу несколькими балконами или лоджиями.
Типовая планировка двухкомнатной квартирыВернуться к оглавлениюНедостатки современных планировок двухкомнатных квартир
Пожалуй, одним из самых важных критериев комфортности дома можно считать число квартир на лестничной площадке. Наиболее удобный и распространённый вариант – 4 квартиры на одной площадке. Не самый удобный вариант – малосемейки, в которых количество квартир на одной площадке доходит до 10. Иногда такое расположение можно встретить и в современных домах высокой стоимости. Как не трудно догадаться, основная причина такой планировки – игнорирование застройщиками жилья требований будущих жильцов относительно мест общего пользования.
План небольшой 2-комнатной квартиры малосемейкиОдна из самых грубых ошибок, которая встречается в строительстве домов – расположение грузовой шахты лифта, граничащей со стеной самой большой по площади квартиры. Также к наиболее неприятным ошибкам относится расположение санузлов друг напротив друга, неудачное соотношение площадей, кухонные помещения без окон.
Вернуться к оглавлениюДостоинства современных планировок квартир
Многие застройщики, понимая нынешние условия конкуренции, стараются делать планировку квартир более удобной и функциональной для своих потенциальных покупателей. Поэтому современные квартиры часто обладают просторными кухнями, вентиляцией, вынесенной за пределы кухни, большим количеством санузлов и подсобных помещений, а также просторным балконом или лоджией.
Пример современной планировки 2-комнатной квартирыКроме этого, всё более популярным становится наличие прачечных и гардеробных не только в элитных домах, но и в домах бизнес-класса. Многие застройщики предлагают своим клиентам несколько дизайн-проектов квартиры, что позволяет сразу же сменить внутреннее пространство, после чего получить первичные документы на жильё с новой планировкой.
Вернуться к оглавлениюОптимальная планировка двухкомнатной квартиры
Планировка двухкомнатной квартиры 70 кв. м- Площадь квартиры (как правило, порядка 70 кв. м) должна быть соразмерна числу комнат.
- Площадь коридоров, холлов, чуланов и других подсобных помещений не должна превышать 20% от общей площади квартиры.
- Площадь кухни должна составлять порядка 10-12 кв. м;
- Прямые углы должны быть максимально приближены к квадрату;
- Наличие в комнате или кухне есть эркер;
- Высота потолков должна составлять около 2,8 метров;
- В квартире обязательно должны присутствовать подсобные помещения;
- Окна помещений должны выходить на несколько сторон;
- Обязательно должны быть предусмотрены балконы и лоджии средних размеров;
- Количество санузлов должно соответствовать количеству спален.
Варианты перепланировки двухкомнатной квартиры
В большинстве случаев перепланировка подразумевает разделение одной большой комнаты на две поменьше. Однако в процессе перепланировки следует помнить, что, к примеру, площадь детской комнаты должна быть не менее 9 кв. м. Кроме этого, новые полученные помещения не должны оставаться без естественного освещения.
Пример оборудования небольшого кабинета для работы после перепланировки 2-комнатной квартиры Другим вариантом перепланировки, который позволяет выиграть несколько дополнительных квадратных метров, является объединение санузла. При проведении этих работ помните о том, что любое действие, сопровождающееся переносом туалета и ванной, должно сопровождаться нанесением гидроизоляционных покрытий, что будет задерживать распространение влажного воздуха и влаги за пределы квартиры. Третьим вариантом перепланировки двухкомнатной квартиры является включение в жилое пространство лоджии, что сопровождается выполнением серьёзных работ по сносу стены, разделяющей лоджию и комнату.proekt-sam.ru
Лучшая планировка двухкомнатной квартиры (фото, проекты)
Немаловажную роль при покупке квартиры играет ее планировка. От нее зависит комфорт дальнейшего проживания в ней, поэтому, в первую очередь, берутся во внимание расположение комнат, площадь, количество и размещение окон относительно сторон света. Чаще всего именно эти факторы влияют на выбор квартиры. За последние годы 
В наше время очень часто случается, когда строятся дома с большими по площади квартирами, но с плохо продуманной непропорциональной планировкой. Например, при том, что жилые комнаты достаточно просторные, на кухне с ванной нет, где развернуться.
Критерии наиболее выгодной планировки двухкомнатных квартир
Учитывая все нюансы двухкомнатной квартиры, можно выделить несколько критериев ее удачной планировки. Основным критерием удобства квартиры считается большая просторная кухня. Понятие просторной кухни каждый человек понимает по-своему. Но оптимальным вариантом для двухкомнатной квартиры будет площадь около 13 метров квадратных. Что касается кухни, то стоит отметить, что при внутренней планировке, вентиляция должна выходить за ее пределы.

Очень хорошим показателем планировки является наличие подсобных помещений и кладовых в квартире, которые значительно упростят задачу хранения хозяйственных принадлежностей и других вещей.
В идеале планировка двухкомнатной квартиры не должна иметь нефункциональные зоны, высота потолков в квартире должна быть не менее 2,8 метра, квартира должна неплохо освещаться естественным дневным светом, что зависит от расположения и размера окон, а также балкон и лоджия не должны быть тесными.
Виды планировок двухкомнатных квартир
Двухкомнатные квартиры пользуются большим спросом, как на первичном, так и на вторичном рынке недвижимости. Самые популярные квартиры – это квартиры в панельных домах, планировка жилья в которых носит достаточно типичный характер.
Планировка двухкомнатных квартир в многоэтажных домах
Планировка стандартной двухкомнатной квартиры отличается увеличением общей площади за счет исключения из планировки всех подсобных помещений и кладовых, а также сокращения площади лоджий, коридоров, кухонной зоны и ванной. Это приводит к частым перепланировкам стандартных квартир независимо от типа дома, монолитный он или панельный.
Перепланировка двухкомнатной квартиры в пятиэтажке
Застройщик в целях собственной выгоды за счет многих лишений, значительно снижает функциональность квартиры в целом, что доставляет значительных неудобств и дискомфорта во время проживания в такой квартире.
Среди стандартных двухкомнатных квартир наибольшей популярностью среди покупателей пользуются квартиры в домах П-44, площадь которых составляет от 50 до 58 метров квадратных. В планировке такого типа квартир есть только две жилые комнаты и кухня средних размеров (от 8 до 10 метров квадратных).
КОПЭ-М двухкомнатная квартира
В более новых домах серий И-155 и КОПЭ-М внутренняя планировка квартир выполнена немного удачнее. Для кухонной зоны в таких квартирах отведено 10-12 квадратных метров общей площади, которая в зависимости от расположения квартиры в доме колеблется в районе от 50 до 75 метров квадратных.

КОПЭ-М двухкомнатная квартира
В домах, так называемого бизнес-класса, внутренние планировки самые разнообразные. Причиной этому является использование новейших строительных технологий и специальных проектов при возведении кирпично-монолитных домов. Это обстоятельство позволяет делать перепланировку на свое усмотрение, тем более, что изначальная планировка дает возможность воссоединить кухню с комнатой или просто увеличить кухонное пространство. Дома бизнес-класса отличаются оптимальной пропорциональностью внутренних планировок квартир, что делает помещение более функциональным и комфортным. Учитывая тот факт, что такие дома рассчитаны на состоятельных людей, то упор в строительстве делается именно на качество квартир, на удобство планировки и комфорт.

КОПЭ-М двухкомнатная квартира
Основной особенностью возведения монолитных домов элит-класса является тот факт, что в проекте внутренней планировки квартир изначально должны отсутствовать какие-либо перегородки. Это так называемая свободная планировка, которая позволяет осуществить планирование в зависимости предпочтений хозяев жилья.
Двухкомнатная квартира в панельном доме
В квартирах домов более дешевой ценовой категории отсутствует возможность кардинальных изменений внутренней планировки, поскольку на стены возложена основная нагрузка, и они являются несущими. Поэтому внутренняя планировка таких квартир проектируется еще до начала строительства. Да и свободное планирование двухкомнатных квартир в элитных домах считается формальным, поскольку план жилья должен быть документально утвержден в БТИ, как и любое изменение планировки в будущем.

Планировка квартир в многоэтажных домах
Планировка квартир в многоэтажных домах
Как правило, планировка двухкомнатной квартиры в пятиэтажке мало чем отличается от планировки в девятиэтажке. Планирование квартир в многоэтажных домах, как правило, осуществляется по одному принципу. Планировка двухкомнатной квартиры в девятиэтажке может отличаться от пятиэтажки только тем, что в первом случае возможна общая стена с лифтом, что не очень хорошо. В пятиэтажках лифты не предусмотрены и все квартиры в таких домах равноправны, в то время когда в девятиэтажном здании некоторые квартиры будут менее удачны, поскольку одна их стена будет выходить к лифту.

Планировка двухкомнатной квартиры в пятиэтажке (хрущевка)
Несмотря на то, что большинство квартир в многоэтажных домах сделаны в одинаковом стиле, планировку можно сменить на свое усмотрение, учитывая особенности конкретного дома. Для изменения внутренней планировки, которая изначально заложена в проекте застройщиком, необходимо получить документальное разрешение Бюро технической инвентаризации, поскольку самопроизвольное изменение плана квартиры может привести к разрушению общего здания. Основная масса покупателей квартир в многоэтажных домах недовольна изначальной планировкой своей двухкомнатной квартиры, поэтому 90% из всех приобретенных квартир подвергаются кардинальным перепланировкам.

Планировка квартир в многоэтажных домах
Большой ошибкой застройщиков в проектировании квартир является недостаточно уделенное внимание проекту, желание ускорить процесс возведения дома и преследование целей экономичной выгоды. Из-за таких упущений довольно часто случается, что планировка дома очень неплохая, но все портит наличие «слепых» комнат в квартире, отсутствие окон в которых делает их угрюмыми и некомфортными для проживания в них.

Планировка квартир в многоэтажных домах
Очень часто в наше время случается, что в погоне за выгодой, застройщики упускают очень важный момент в планировании квартир, пытаясь использовать площадь по максимуму, что в итоге приводит к тому, что в квартире огромной площади насчитывается всего два – три окна. Это делает квартиру темной, что можно исправить только правильно подобранной системой искусственного освещения.
Понятие лучшей планировки квартиры для каждого человека имеет разное значение. Но при выборе жилья все равно учитывается функциональность, адекватная пропорциональность комнат и хорошее естественное освещение.
rumpus.ru
Планировка мелкой 2 комнатной квартиры: дизайнерские подсказки
Обустройство даже небольшой жилплощади позволяет сделать ее максимально комфортной для жизни. Грамотная расстановка акцентов и мебели, выбор материала для отделки позволяют визуально перекроить геометрию помещения, сделать его уютным и комфортным для проживания. Планировка маленькой 2 комнатной квартиры выполняется с учетом параметров жилплощади, геометрии и расположением помещений.
Планировка 2 х комнатных квартир для молодой пары

Часто за свадьбой следует выбор подходящей для жизни жилплощади. Чтобы сэкономить деньги, молодые выбирают небольшое пространство для жизни. Далее его придется перекраивать. В новостройках, да и в старых домах часто предложена двухкомнатная квартира 40 кв. м – планировка такого помещения должна учитывать такие особенности:
- Идеальное решение – это объединение одной комнаты с поваренной зоной и разделение ее только перегородками, можно и переносными. В новостройках можно найти евродвушки, в которых не придется даже сносить стены. Планировки 2 х комнатных квартир в этом случае выполняются в стиле лофт. Визуально создается ощущение большого пространства и свободы.
- Расчет функциональных зон – часто такая планировка 2 комнатной квартиры улучшенной планировки выполняется в новостройках. Старые дома также можно разделить на отдельные зоны, выделив отдельно обеденную, рабочую, семейную, общую и индивидуальную. Это оптимальный вариант для 2–3 человек.
Если выбраны стандартные планировки 2 х комнатных квартир, следует сразу обозначить места для обеденной и общей зоны, спальни для пары и детской комнаты.
Особенности планировки 2х комнатных квартир на 45 кв. м для семьи с маленьким ребенком

Планировка двухкомнатной квартиры 45 кв. м для семьи с ребенком или той, которая скоро пополнится малышом предполагает:
- Выделить зону для гардеробной. Это помещение становится оптимальным для хранения вещей и разгрузки общего пространства. Оптимальный вариант вынести шкафы и тумбы, комоды за пределы детской и спальни родителей, чтобы не загромождать и без того небольшое пространство. Отделить гардеробную можно дверью-гармошкой, плотной текстильной занавеской, зеркальной раздвижной конструкцией на направляющих.
- Подобрать место для детской кроватки. Планировка двухкомнатной квартиры 45 кв. м позволяет выделить для этого отдельную комнату или определить место для жизни вместе с родителями. Первый вариант предпочтительнее, особенно если планируется устанавливать пеленальный столик, шкаф для принадлежностей и вещичек.
Планировка 2х комнатной маленькой квартиры позволяет сделать кухонную зону многофункциональной. Планировка двухкомнатной квартиры 45 кв. м часто не предусматривает большой поваренной зоны, а потому лучшим вариантом станет:
- линейный кухонный гарнитур,
- место для отдыха и поваренная зона, расположенная напротив мебельного комплекта.
Не всегда позволяет разгуляться двухкомнатная квартира 40 кв. м – планировка часто урезает именно место для приготовления пищи. В этом случае идеально подойдет уголок, который позволяет задействовать пассивную часть помещения – угол.
Особенности планировки 2 комнатной квартиры для семьи с 2-мя детьми

Часто внимания заслуживает более просторная 2 комнатная квартира 50 кв. м – планировка нередко должна предусмотреть место для проживания одного или двух детей. В этом случае следует действовать по правилам:
- Найти место при входе для «грязной зоны». Важно, чтобы в таком помещении было общее место, где все члены семьи смогу в комфортных условиях раздеваться и одеваться. Вполне позволяет найти уголок и 2 комнатная квартира 50 кв. м – планировка позволяет установить или зашить в стену небольшой шкаф и найти место для банкетки. Чтобы упростить уборку, следует позаботиться о напольном покрытии. Темная плитка для этого вполне подходит.
- Отдать детям самую большую комнату. Нередко в таком жилье есть большая и малая комнаты. Чтобы была правильно разделена 2 комнатная квартира 50 кв. м, планировка должна предусматривать проживание в просторном помещении детей. Планировка маленькой 2 комнатной квартиры позволяет найти место для игр, учебы, отдыха. Взрослым часто столько пространства не нужно.
- Выделить две санитарные комнаты. Современная планировка 2 комнатной квартиры с 2 детьми вполне позволяет отделить санузлы для детей и взрослых. В одной ванной комнате можно установить душевую кабину, в другой – ванну. Есть и другой вариант – установить ванну, но дополнить ее маленькой раковиной. В другом санузле может разместиться стиральная машинка.
Планировка 2 комнатной квартиры с 2 детьми в случае использования двух санузлов позволяет установить ящик для сбора грязного белья прямо в ванной. Важно, чтобы санузлы располагались недалеко от входа. В этом случае после прогулок нет надобности пересекать все помещения, чтобы отнести испачканные вещи в стирку.
Квартира 2 комнатная Брежневка: какая планировка подходит?

Отличительную черту имеет квартира Брежневка – планировка 2 комнатная, где есть место для достаточно вместительной кухни. Часто ее квадратура достигает 7–8 квадратных метров. Потолки в такой жилплощади довольно высокие, что удобно при планировании гардеробной – больше полезного места. Остается пока что распространенной квартира Брежневка – планировка 2 комнатная предполагает:
- Большое количество несущих стен. Их трогать нельзя.
- Объединение санузла. Здесь нет несущей конструкции, а потому можно выкроить немного места для стиральной машинки и ящика для белья над нею.
- Урезание коридора для организации гардеробной.
Грамотная планировка маленькой 2 комнатной квартиры обязательно предусматривает место для хранения вещей. Длинный коридор особо никому не нужен. В урезанном состоянии он позволит нормально раздеться и одеться, поместить зеркало с банкеткой недалеко от входа.
Интересные идеи планировки двухкомнатной квартиры предполагают возможность выкраивания места для хранения вещей. Здесь можно установить направляющие и сделать полочки, выдвижные ящички для верхней и другой одежды. Планировка 2 комнатной квартиры предполагает, что место используется до самого потолка, чтобы экономить драгоценное пространство.
Варианты планировок малогабаритной двухкомнатной квартиры на 45 кв. м

Планировка 2 комнатной квартиры 45 кв. м предполагает обязательное зонирование пространства. Особенно это важно, если здесь проживает небольшая семья. Процесс разделения предполагает дробление помещения на небольшие части – каждая будет выполнять определенную роль. Планировка 2 комнатной квартиры 45 кв. м позволяет сделать:
- Гостиную-спальню. Одна комната будет выполнять роль спальни и места для сбора всей семьи. Часто здесь устанавливают раскладной диван. Можно разделить помещение перегородками в виде прозрачных шкафов со сквозными отверстиями. Это позволит устанавливать книги и разграничить пространство. В спальной зоне вполне может поместиться неширокая кровать, что гораздо удобнее для сна. Планировка 2 комнатной квартиры 45 кв. м предполагает, что в помещении найдется место для модульной мебели, ширмы, перегородок – все на усмотрение хозяина.
- Гостиная-кабинет. Планировка маленькой 2 комнатной квартиры позволяет обустроить в самой большой комнату отдельный кабинет для отдыха, чтения, работы, творчества, учебы. Необязательно отделять помещение строго по центру, можно отдать под нужды домочадцев широкий угол. Такие типы планировок двухкомнатных квартир позволяют устанавливать стеллажи и перегородки или просто использовать разный тип отделочных материалов, установить ступеньки, разграничить пространство ширмой.
- Спальня-кабинет. Используя интересные идеи планировки двухкомнатной квартиры, не стоит забывать, что зона для сна должна оставаться приватной. Именно потому можно выделить место для кабинета, но не забить отгородить его ширмой, шкафом-купе или полками вдоль стены.
- Спальня-игровая. Планировки небольших 2х комнатных квартир предполагают, что в детской можно установить уголок для занятий спортом, игр, рисования и хобби. Здесь ребенок сначала может заниматься любимым делом. При необходимости такая зона легко перестраивается в учебную.
- Спальня-гардеробная. Такой же успех имеет и гостиная-гардероб. При выборе такой планировки 2х комнатных квартир следует отделять пространство не просто шторой, но дверцами, лучше потайными или зеркальными. В первом случае не будет даже заметно отдельного помещения, во втором – можно зрительно увеличить пространство и найти место для примерок.
Подсказки
Все указанные варианты могут быть использованы для новостроек и старых домов, где предусмотрены стандартные планировки 2х комнатных квартир. В «хрущовке» дополнительно можно объединять комнату и кухню, если сносить не нужно несущую стену. Часто можно также демонтировать межкомнатные перегородки, чтобы получить большое пространство для жизни, творчества, работы. Расширять одно помещение за счет другого позволяет и чешская планировка двухкомнатной квартиры. Здесь достаточно часто просторные и длинные коридоры. Чешская стандартная планировка двухкомнатной квартиры позволяет выделить место для гардеробной.
2х комнатная квартира на 50 кв. м: особенности планировки

Планировка 2 комнатной квартиры на 50 квадратов часто рассматривается в разрезе каждой комнаты. Это идеальный вариант, если рассматривается планировка 2 комнатной квартиры улучшенной планировки. Вариантов для оформления пространства достаточно.
Гостиная
Различные типы планировок двухкомнатных квартир часто предполагают, что смежная с кухней стена несущая. Это исключает возможность объединить помещения. Однако комнаты с правильными формами и прямыми стенами могут быть красиво оформлены. Следует правильно расставить цветовые акценты, разделить пространство мебелью, выделив место для развлечений и отдыха. В уголке можно найти место для журнального столика, торшера, мягкого кресла.
Спальня
Планировка небольшой 2 комнатной квартиры площадью в 50–60 квадратных метров требует выделения маленькой комнаты для сна. В комнате в 12 квадратных метров поместится кровать, трюмо, прикроватные тумбочки, кресло с торшером и столиком. Чешская планировка небольшой двухкомнатной квартиры позволяет встроить шкаф в стену или отвести для гардероба часть спальни.
Кухня
Планировка 2 комнатной квартиры часто включает поваренное помещение в гостиную. Это квартиры-студии или еврожилье. Важно, чтобы дизайн в первом случае перекликался со стилистикой всего помещения. Если кухня соединена с гостиной, идеально сделать ее в пастельных тонах, чтобы не концентрировать внимания.
Планировка маленькой 2 комнатной квартиры позволяет найти место для отдыха и сна, работы и учебы. Если грамотно распорядиться квадратными метрами, можно определить персональное пространство для каждого члена семьи. И сделать все, что пользоваться общими помещениями было комфортно.
vashblok.ru
Планировка двухкомнатной квартиры: уют без тесноты
Двухкомнатные квартиры долгое время остаются самыми востребованными на рынке новостроек и вторичного жилья, что обусловлено соотношением цена — качество и потребностям покупателей. Планировка двухкомнатной квартиры должна независимо от площади удовлетворять потребности семьи из 2-4 человек, обеспечивая каждому личное пространство.

Двухкомнатные квартиры рынка вторичной недвижимости
Рассмотрим варианты планировки двухкомнатной квартиры разных периодов строительства. К категории вторичного жилья относятся квартиры «с историей» в обжитых районах, так называемые:
- Сталинки;
- Хрущевки;
- Брежневки;
- Периода с 1991 г.
Сталинки
Сталинки строились по разным, чаще индивидуальным проектам для различных категорий граждан, поэтому среди них встречаются как элитное полногабаритное жилье, так и малогабаритное. Дома в этот период строили из кирпича с несущими стенами, что может создавать сложности при перепланировке. Общим для сталинок является высокий потолок и наличие гипсовой лепнины на нем. В домах, построенных до 1941 года перекрытия часто делали по деревянным балкам, а штукатурку стен и потолка — по дранке.
Планировка 2 комнатной квартиры 54 кв. м. в сталинском доме предусматривала с большую кухню, набор подсобных помещений, просторные комнаты с балконом. К недостаткам можно отнести недостаточную освещенность помещений из-за окон малой площади.
Варианты планировки двухкомнатной квартиры небольшой площади отличаются маленькой кухней, тесным коридором и комнатами-пеналами, которые при ширине в 2,2…2,5 м и длине 5…6 м в высоту были около 4 м.
Так как дома сталинской эпохи относят теперь к памятникам архитектуры, это создает дополнительные трудности при ремонте и переустройстве: необходимо согласование проекта в нескольких организациях.
Хрущевки
Первое массовое типовое жилье, построенное во времена борьбы с излишеством в архитектуре, отличается невысоким потребительским качеством: отсутствие подсобных помещений, маленькие кухни, проходная комната, смежный санузел, низкие потолки, — вот характерная квартира распашонка 2 комнатная планировка. Поскольку правительство Москвы проводит массовый снос хрущевок, покупка квартир в этих домах теряет актуальность.
Брежневки
За период нахождения у власти Л.И. Брежнева (1966–1984) и примерно до 1991г. постепенно менялось представление о комфорте жилья. Если первоначально речь шла только о небольшом улучшении планировок в хрущевках за счет разделения санузла на туалет и ванную комнату, и изолированности комнат, то с развитием крупнопанельного домостроения происходило увеличение общей площади квартир и подсобных помещений в них. Было создано множество типовых проектов жилья в панельных домах, многие из двушек имеют отличное планировочное решение.
Варианты планировки двухкомнатной квартиры предусматривали кухню от 7 до 15 м2, комнаты площадью 10–20 м2, прихожую и широкий коридор с кладовой. Как правило, в такой двушке был балкон и лоджия. Недостаток — несущие панельные стены, требующие усиления при перепланировке, низкие потолки — от 2,4 до 2,8 м.
Варианты планировки двухкомнатной квартиры постройки после 1991г.
После развала СССР, когда были сведены к минимуму программы строительства бесплатного жилья, началось коммерческое строительство без ограничения площади помещений. Сейчас на вторичном рынке можно увидеть двушки, построенные в это время, и по брежневским нормам порядка 54 м2 в панельных домах, и большие, свободной планировки пространства более 70 м2 в каркасно-монолитных постройках.
Двухкомнатные квартиры в новостройках
Идеальная планировка двухкомнатной квартиры в новостройке предполагает отсутствие перегородок: помещение сдается без чистовой отделки, без сантехники, только с подводкой коммуникаций. Размещение комнат каждый жилец выстраивает под себя или потребности своей семьи. Такой подход позволяет создать функциональное пространство в любом стиле, однако чаще всего предполагается квартира-студия без перегородок, зонирование выполняется расстановкой мебели и освещением.
Евро двухкомнатная квартира планировка
Последнее время набирает обороты строительство по евро стандарту. Снижение уровня доходов по стране и постоянный рост стоимости жилищно-коммунальных услуг снижает популярность жилья большой площади, заставляя экономить. На первый план выходят двухкомнатное жилье небольшой площади.
Евро двухкомнатная квартира планировка имеет отличительные особенности:
- Небольшая площадь;
- Совмещение функций кухни-столовой-гостиной в одном просторном помещении;
- Небольшая спальня.
Небольшая площадь (двухкомнатная порядка 40м2) пришлась по душе молодым семьям без детей или с одним маленьким ребенком. Так как финансовые возможности у молодой семьи, как правило, не позволяют строить жилье большой площади, варианты евро двухкомнатных квартир планировки, при общем снижении доходов, пользуется большим спросом.
Евро двухкомнатная квартира планировка — выгодный вариант для молодежи, покупающей свое первое жилье, или пожилой пары, чьи дети разъехались и обзавелись собственными семьями.
Представленная на рисунке евро двухкомнатная квартира планировка площадью 40 кв. м. демонстрирует все приметы стиля – кухня без естественного света, совмещенный санузел, небольшая спальня и обширное пространство общей зоны. По площади такая двушка соответствует однокомнатной брежневке.
Рассмотрим примеры планировки двухкомнатной квартиры всех типов и времени постройки более детально, оценивая функциональность и возможности перепланировки.
Планировка 2 комнатной квартиры 54 кв. м.
Квартира распашонка планировка 2 комнатная площадью 54 кв. м. имеет маленькую кухню от 6 м2, совмещенный санузел, прихожую с встроенным шкафом и комнаты площадью 12 и 18 м2.
Расположение кухни и санитарного блока позволяет выполнить перепланировку, превратив ее в 2 комнатную квартиру-студию с выделенной перегородками спальней.
Квартира распашонка планировка 2 комнатная площадью 54 кв. м. приобрела после перепланировки просторное помещение, объединившее кухню, гостиную и коридор. Недостаток такой перепланировки – маленькая прихожая, где не разойдется два человека и значительное расстояние от приватной зоны – спальни до ванной комнаты, которая, к тому же, совмещена с туалетом.
Второй вариант планировки 2 комнатной квартиры 54 кв. м. в доме брежневских времен отличается от первого наличием раздельного санузла, более просторной кухней площадью почти 9 м2.
Панельная стена между жилыми комнатами и железобетонная санитарная кабина не позволит кардинально перестроить двушку, однако демонтировав перегородку между кухней и меньшей по площади комнатой, получим вариант европланировки с просторной общей зоной и отдельной спальней.
С точки зрения многофункциональной перепланировки интересна планировка 2 комнатной квартиры 54 кв. м., которую можно превратить переносом перегородки между кухней и комнатой в жилье с двумя спальнями и кухней-столовой-гостиной, что может быть актуально для семьи с одним ребенком или двумя однополыми детьми. Правда, такая перепланировка потребует согласования.
Планировка 2 комнатной квартиры 56 кв. м.
Компактная планировка 2 комнатной квартиры площадью 56 кв. м. характерна для домов сталинской постройки: кирпичные стены и перегородки, большая кухня, просторный коридор, где легко можно разместить шкафы и места хранения, высокие потолки.
После небольшого ремонта планировка 2 комнатной квартиры 56 кв. м. превратится в студию с обособленной спальней и приватным санузлом для хозяев, для гостей отдельный туалет.
Планировка 2 комнатной квартиры 60 кв. м.
Планировка 2 комнатной квартиры 60 кв. м. в панельном доме мало пригодна для перепланировки, однако дает широкие возможности для изменения дизайна. Реальная возможность ее осовременить – поменять местами кухню и спальню, но такое решение потребует проекта и официального согласования.
Планировка этой 2 комнатной квартиры площадью 60 кв. м. осталась практически без изменений, хозяева пошли на увеличение мест хранения за счет гостевого туалета.
Планировка 2 комнатной квартиры 62 кв. м.
Планировка 2 комнатной квартиры 62 кв. м. практически повторяет планировочное решение двушки 60 кв. м. в сталинке и требует к себе аналогичного подхода: создание приватной хозяйской зоны с совмещенным санузлом переносом перегородки в продолжение стены коридора, создание общей зоны кухня-гостиная-столовая сносом перегородок в правой части квартиры, с гостевым санузлом.
Планировка 2 комнатной квартиры 62 кв. м. также предоставляет возможность устройства спальни родителей в общей зоне за трансформируемой перегородкой, и комнаты ребенка — подростка напротив кухни.
Планировка 2 комнатной квартиры 64 кв. м.
Планировка 2 комнатной квартиры 64 кв. м. с лоджией, которую утепляют и используют как кабинет – частое решение, когда дома требуется рабочее место. Площадь лоджии позволяет разместить там компьютерный стол и места хранения, а современные теплоизоляционные материалы снижают до минимума дополнительные затраты тепла.
В данном решении на утепленной лоджии создана зона отдыха. При перепланировке квартиры надо помнить, что нынешние строительные нормы запрещают демонтаж оконно-балконного блока и присоединение лоджии к жилому помещению или кухне.
Планировка 2 комнатной квартиры 64 кв. м. во втором варианте дает больше возможностей для переустройства: сдерживающим фактором здесь является только несущая колонна на стыке перегородок. Наличие в нынешней гостиной двух окон позволит в будущем легко превратить 2 комнаты в 3 без потери комфорта.
Планировка 2 комнатной квартиры 64 кв. м. заинтересует семьи, планирующие долгое время жить на облюбованной жилплощади.
Планировки двухкомнатных квартир в новостройках
Планировки двухкомнатных квартир в новостройках практически повторяют лучшие решения архитекторов брежневских времен по площади и функциональным связям помещений. Частая новация — перенос кухни в центр напротив входа, что дает возможность лучшего функционального зонирования на приватную и гостевую часть жилья.
Сейчас, когда предложение начинает опережать спрос на коммерческое жилье, на первый уровень запросов выходит небольшая площадь, а планировочное решение и экономичность. Планировки двухкомнатных квартир в новостройках стремятся к сокращению площадей подсобных помещений, а то и вовсе их не предусматривают.
Интересная планировка двухкомнатной квартиры предполагает некоторую излишнюю площадь, в то время, как покупатели и застройщики стремятся к оптимизации и сокращению затрат. Дизайн планировки двухкомнатных квартир в новостройках в этих условиях приближается к планировкам брежневских времен.
Однако интересную планировку двухкомнатной квартиры можно встретить в домах бизнес класса.
В качестве примера приведена двушка с центральным расположением кухни и угловым эркером в гостиной. Как вариант возможна замена стационарной перегородки между кухней и столовой на трансформирующуюся, с возможностью объединения кухни и столовой в единое пространство на время приема гостей.
Планировка большой двухкомнатной квартиры
Планировка большой двухкомнатной квартиры предполагает просторные комнаты большой площади, два санузла, гардеробную, четкое разделение на хозяйскую и гостевую зону. Однако большая площадь – еще не гарант комфортной жизни, а, с учетом стоимости услуг ЖКХ, квартиры большой площади разорительны.
В данном решении не логичен гостевой совмещенный санузел большой площади с ванной при отсутствии гостевой спальни, а спальня площадью 34 м2 выглядит как съемочная площадка кино, а не уютное приватное помещение.
Идеальная планировка двухкомнатной квартиры
Идеальная планировка двухкомнатной квартиры – то, что подходит именно вашей семье, зависит идеал от количества и возраста членов семьи, расположения дома, инсоляции и многих других факторов.
Удобная планировочное решение, наличие личного пространства для всех жильцов и общей территории, где собирается вся семья для разговоров, игры, просмотра телевизионных программ — идеальной станет планировка двухкомнатной квартиры, в которой царит уют и покой.
Дизайн двухкомнатных квартир
Планировки двухкомнатных квартир в новостройках дизайн чаще всего решаются в актуальных стилях техно, лофт или скандинавский, которые объединяет чистота линий, светлые тона, сочетание стекла, дерева, металла и неоштукатуренного кирпича.
Стиль техно предполагает насыщение пространства различными гаджетами, комфортной и простой по форме мебелью, особенно он подходит для молодежи.
Для переустройства в стиле лофт больше подойдут сталинки: высокие потолки дают возможность зонирования пространства не только в плане, но и по вертикали. Высота позволит выстроить антресоль, расположив там кабинет, библиотеку или зону отдыха. Сочетание черного металла, состаренного дерева и стекла как нельзя лучше характеризует базис стиля лофт.
Скандинавский стиль стал классикой квартирного дизайна: сочетание простоты, функциональности и комфорта придется по душе любому горожанину.
Заключение
Планировка большой двухкомнатной квартиры может оказаться не столь удобной и уютной, как квартира маленькая или средней площади. Комфорт – это правильная расстановка мебели, умело подобранный дизайн, текстиль и аксессуары.
vashblok.ru
Планировка 2-х комнатных квартир: фото, схема
Двухкомнатные квартиры – самое востребование жилое помещение. Как правило, их размеры и цена наиболее приемлемы. Здесь запросто разместится семья из четырех человек. Однако, как показывает практика, планировка 2-х комнатных квартир несовершенна, и для обретения максимального уюта и комфорта все равно приходится что-то менять, особенно это касается старых построек.
В советские времена дома чаще всего строились без учета потребностей жильцов, поэтому о рациональности распределения жилой площади можно было только мечтать. Как правило, это крохотные кухни, узкий, но длинный коридор, совмещенные санузлы или раздельные, но маленькие, проходные комнаты и многое другое.
Современные дома, как показывает схема планировки 2-х комнатной квартиры, более комфортабельные, однако и в них, к сожалению, находятся недостатки. Чаще всего в основе их находится фактор индивидуальности, поэтому многие прибегают к перепланировке. Однако для того, чтобы впоследствии не возникли проблемы с переносом межкомнатных перегородок, понадобится узаконить данные действия в соответствующей организации (БТИ). А также стоит обратить внимание еще на один очень важный нюанс: ни в коем случае нельзя проводить какие-либо манипуляции с несущими стенами, так как это может привести к разрушению всего здания.

Недостатки планировки двухкомнатных квартир
Для того чтобы жилое помещение было максимально комфортным и рациональным, необходимо еще на начальных этапах постараться по возможности нейтрализовать все минусы. Надо заметить, что некоторые из них видны сразу, а другие (скрытые) выплывают только после окончания работ.
Итак, давайте попробуем разобраться с недостатками двухкомнатных квартир:
- Санузел. Рассматривая фото планировок 2-х комнатных квартир, можно заметить некоторую тенденцию. Изначально такие помещения имеют разделенные туалет и ванную. Однако некоторое жилье так называемого вторичного рынка чаще попадается с совмещенной планировкой. Удобно ли это? И да, и нет. Например, для большой семьи однозначно нет, а вот для двух проживающих вполне приемлемо.
- Кухня. Особенно остро размеры данной комнаты ощущаются в хрущевках. Чаще всего в старых постройках площадь кухни варьируется от 4 до 6 кв. м, что значительно осложняет задачу по рациональному размещению необходимой мебели и бытовой техники. Визуальные эффекты в этом случае мало чем могут помочь. Тут надо действовать кардинально. Например, можно объединить кухню с гостиной или прихожей.

- Коридор. Недостатки планировки этой комнаты встречаются достаточно часто. В основном он или длинный, но узкий, или практически полностью отсутствует. Конечно же, расставить в нем какую-либо мебель становится непосильной задачей. Для того чтобы постараться видоизменить коридор, необходимо отталкиваться от возможностей, которые дает первоначальная планировка 2-х комнатных квартир. Например, расположение санузла, кухни, гостиной, а также их размеров.
- Нарушение геометрических пропорций. С комнатами прямоугольной или квадратной формы все предельно ясно. Однако иногда встречаются помещения с полукруглым расположением стен, с несколькими кладовками и внутренними углами. В таких квартирах общий интерьер будет всецело зависеть от используемых дизайнерских приемов. Прежде всего это зонирование, дополнительное освещение, ниши и прочее.
- Высота потолков. Исправить кардинально данный параметр совершенно невозможно. Рекомендуется воспользоваться визуальными эффектами, которые способны повлиять на зрительное восприятие.
- Небольшие размеры. Когда двухкомнатная квартира достаточно маленькая, то увеличить площадь какого-то определенного помещения за счет других не получится. Здесь можно воспользоваться достаточно распространенным приемом – снести все межкомнатные перегородки. В этом случае получится просторная квартира-студия. Однако такие работы нужно обязательно согласовывать с профессионалами и узаконивать в соответствующих структурах.
С чего начинается перепланировка?
Стандартная планировка 2-х комнатной квартиры указывается в документах на данное жилье. Там есть информация о точных размерах, расположении коммуникаций и др. Естественно, перед началом работ необходимо полностью изучить и проанализировать все эти параметры. Также стоит учесть пожелания всех проживающих здесь людей. Надежный вариант – доверить составление проекта квалифицированным профессионалам. Это поможет полностью избежать типичных ошибок.

Ниже рассмотрим четыре вида самых распространенных планировок двухкомнатных квартир.
Сталинка
Дома, которые строились в 40-50-х гг., носят название «сталинки». Их планировке можно позавидовать: высокие потолки, большие размеры комнат, удобное расположение. Как правило, несущие стены только наружные, а это открывает большие возможности при выборе дизайна. Часто планировка 2-х комнатных квартир в таких домах позволяет без особого ущерба видоизменять помещение, например разделить одну большую спальню на две поменьше. Такое решение даст возможность обустроить детскую или кабинет.

Брежневка
Дома, построенные за годы правления Л. Брежнева, в сравнении со сталинскими временами несколько уменьшились в размерах. Однако это не самый худший вариант старых построек. Комнаты не гигантские, но вполне просторные, санузел раздельный, кухня 7-8 кв. м. Такая планировка 2-х комнатной квартиры достаточно приемлема. При необходимости можно перенести некоторые перегородки, однако стоит учесть, что в этих домах несущие стены могут проходить внутри квартиры. Поэтому рекомендуется перед проведением работ проконсультироваться в проектной организации.

Хрущевка
Интересен то факт, что хрущевки возводились как временное жилье, однако на сегодняшний момент такой вид домов — один из самых распространенных. Они считаются наиболее неудобными и проблематичными. Это критически маленькая кухня, совмещенный санузел небольших размеров, узкий коридор, проходные комнаты и пр. Перечислять можно до бесконечности, так как планировка 2-х комнатной квартиры в хрущевке имеет больше недостатков, чем достоинств. Однако не стоит расстраиваться раньше времени. Современные дизайнеры предлагают много удачных проектов, которые помогут кардинально преобразить интерьер такой квартиры. Основные моменты этих работ:
- Пространство коридора частично присоединить к жилой комнате.
- Кухню объединить с соседней комнатой.
- За счет холла увеличить или даже разделить санузел.

Новостройка
Планировка 2-х комнатных квартир в новостройках уже максимально рациональная, особенно в сравнении с хрущевками. Здесь все комнаты изолированные, раздельный санузел достаточных размеров, вместительная и удобная прихожая, большая кухня 8-10 кв. м. Однако если такое расположение чем-то не устраивает, то можно, например, организовать квартиру-студию или присоединить площадь лоджии к смежной комнате.
fb.ru
Дизайн двухкомнатной квартиры — 114 фото идей интерьера
Самым популярным объектом в сфере недвижимости являются двухкомнатные квартиры, цена которых считается средней между маленькими однокомнатными и дорогими трёхкомнатными квартирами.
Планировка двухкомнатной квартиры удачна для внедрения различных дизайнерских идей, позволяет сделать в квартире все необходимые для комфортной жизни зоны.
Квартира 40-60 квадратных метров просто идеальна для планировки пространства, однако эти действия стоит выполнять продуманно и с умом. Рассмотрим наиболее популярные и правильные варианты планировки двухкомнатной квартиры.
Планировка двухкомнатной квартиры
При планировке квартиры большое внимание нужно уделить не только стилевому оформлению, но и самому архитектурному проекту. Это делается для того, чтобы увеличить комфортные условия вашего жилья, потому что в стандартно застроенных квартирах имеются некоторые недостатки. К ним относятся слишком длинный и узкий коридор, совместный туалет с ванной, маленькая кухонная зона, низкий потолок, маленькая квадратура квартиры.

Пространство жилья нужно использовать экономно и рационально. В стандартных квартирах есть некоторые особые сложные участки, которые тоже нужно применять в проекте. Этому поспособствует перепланировка, план которой нужно составить, предварительно проанализировав все плюсы и минусы жилплощади, а также предпочтения проживающих. Обычно осуществляются два этапа анализа, первый из которых способствует выделению некоторых требований.

Каждый проживающий в квартире должен иметь своё собственное пространство. Если места для этого не хватает, то нужно предусмотреть вариант выделения такого места с помощью предметов мебели или штор. Выходя из количественного состава жителей квартиры выводятся особые требования к туалету, гостевой комнате, кухне.


Перед тем, как начать ремонт, нужно определиться со стилем, чтобы включить все пожелания в будущий проект. Лучше выбрать стили посовременнее – они предусматривают больше функциональных способностей и меньших затрат на декорирование.

Просмотрев документ с планом квартиры, можно выделить существенные минусы жилья и в дальнейшем работать над их корректировкой.

Пока вы не приступили к планированию проекта, хорошо изучите все технические характеристики жилья: когда построено, где находится несущая стенка, нахождение дверей и окон. Эти детали имеют важное значение для будущей перепланировки квартиры.

Многоэтажки, которые строились ещё век назад, различаются по своей планировке квартир. Среди них выделяют сталинки, хрущёвки, брежневки и новые планировки.

Сталинки отличаются большими размерами комнат, высокими потолками. Кстати, здесь отсутствуют несущие стены, что является отличным фактом для перепланировки.

Хрущёвки полностью противоположны сталинкам. Здесь комнаты малогабаритные, потолки низкие, кухня тоже маленькая, а туалет совмещён с ванной комнатой. Также минусом является проходимость комнат.

Брежневка по своей сути является улучшенным вариантом хрущёвки. Здесь имеется раздельный санузел, кухня побольше и потолки повыше.

Для квартир новой планировки характерны особо крупные кухни, изолированные большие комнаты, огромный коридор и раздельный санузел. Также здесь присутствует лоджия. Её тоже можно в будущем перепланировать в полноценную часть комнаты.

Для квартиры новой планировки перепланировка особо не нужна. В основном из данных квартир делают студии.
Полезные советы дизайнеров
Квартира из двух комнат является самой удачной для внедрения различных дизайнерских идей согласно вашему вкусу. Приведём несколько самых полезных советов по перепланировке.

Сколько стилей можно использовать?
Двушки можно делать и в одном, и в нескольких, даже контрастных стилях. Однако если у вас в квартире комнаты проходные или соединены с помощью коридора, то лучше выбрать один конкретный стиль. Это не означает, что вы должны все комнаты сделать в одном цвете. У каждого стиля есть сои специфические характеристики, которые мы рассмотрим ниже.

Как правильно делить квартиру на функциональные зоны?
Чтобы зоны были действительно функциональными, стоит логично расположить определённые зоны на одном пространстве.

Самой популярной идеей является гостиная-кухня. Здесь воедино располагаются гостевая зона и кухня, а в центр обычно помещают зону доя обеда. Также свободный угол можно сделать личным кабинетом.

Личный кабинет-гостиная комната. Если гостиная не будет соединена со столовой, её можно дополнить рабочим кабинетом. Между данных зон идеально впишется разделительная ширмочка.

Рабочий кабинет-спальная комната. Если приобрести кровать-трансформер, которая будет легко складываться во встроенный шкаф, можно соединить спальню с рабочей зоной. Если же у вас стоит обычная кровать, которая занимает почти всю комнату, вы можете сделать маленькое рабочее место и разделить пространство той же ширмой.

Гостиная или спальная комната с гардеробом отлично дополнит ваш интерьер. Вы можете сделать гардероб с помощью шкафа, который может находится как в конце комнаты, так и являться средством разделения комнаты на зоны.

Какую цветовую гамму выбрать?
Цветовую палитру для оформления квартиры вы должны выбрать согласно своему вкусу и выбранному стилю. Если комнаты маленькие, то с помощью цвета вам нужно их визуально увеличить за счёт светлых оттенков. Если у вас студия, то можно выбирать и тёмную цветовую гамму.


Выбираем стиль интерьера двухкомнатной квартиры
Минимализм
Для минимализма характерно жилое пространство без излишеств. Здесь во всём должна чувствоваться гармония: как в цвете, так и в функциональных возможностях.

Для этого стиля рекомендуются чёрный, белый, серый и красный цвета. Белый будет фоном, а серый и чёрный контрастно будут его дополнять. Для подчёркивания деталей используется красный или же синий. Играть с цветами здесь не рекомендуется, только чёткость форм и линий.

Поверхности облицовывать можно любыми средствами: их можно поштукатурить, окрасить или использовать специальные панели, а так же жидкие обои. Потолок можно обшить гипсокартонном или применить натяжные потолки. Потолок лучше не окрашивать. На пол настилают ковролин или паркет. Паркет при этом можно брать любого цвета, а вот ковролин лучше покупать однотонный, мелковорсовый. Главное при всём этом – придерживаться выбранного сюжета.

Мебель стоит выбирать в сочетании с выбранной палитрой оттенков. Она должна отличаться простотой линий и форм. Декорировать комнату в стиле минимализм не стоит. Здесь важна гармонизация оттенков. Можно применить предметы освещения. Если вы хотите поставить в комнате вазу, она должна быть стеклянной. Живые цветы придадут интерьеру уюта.

Хай-тек
Комната в стиле хай-тек по максимуму должна быть функциональной, включать в себя железные и стеклянные принадлежности. Стенки в такой комнате должны быть однотонными. Создать это помогут жидкие обои или покраска. Потолки должны быть натяжными, выполненными в глянце. Пол тоже рекомендуется делать глянцевым. Паркет и ковры не кладутся. Можно постелить линолеум из синтетических материалов.

Отдаётся предпочтение светло-серой чёрно-белой цветовой гамме, а так же приветствуется металлические цвета с использованием ярких тонов.

Мебель выбирают стеклянную или железную со строгими формами. Например, стеклянные столешницы, полки. Ножки на столах и стульях – металлические. Обивка на сиденьях – однотонная.

Используется много светильников для придания помещению отличного освещения из белого спектра. Декорирование должно быть максимально сдержанным. Вы можете повесить на стенках фотографии в рамках из металла. Приветствуется большое количество предметов техники. Например, большой телевизор, компьютер, домашний кинотеатр.

Такой стиль является идеальным решением для подростков.

Арт-деко
Арт-деко идеально соединяет в себе классику и современность. Здесь экспериментировать можно вдоволь. Цвета для фона выбирают красные, изумрудные, оттенки сапфира. Как дополнение подойдут золотой, синий, чёрный.

Арт-деко отличается изобилием декорирующих элементов. Это могут быть дорогие эксклюзивные предметы из крокодильей или змеиной кожи, элитного дерева. Для декора интерьера применяют предметы из дорогостоящего фарфора, зеркала, декорированные подушечки, скульптуры, предметы этнического дизайна.

Композиция в данном стиле может выглядеть до конца не оконченной, однако в этом и есть скрытый смысл арт-деко.

Техно
Техно – не так давно появившийся стиль. Для него характерно применение новейших современных технологий.

Здесь преобладают тёмные цвета (серый, хаки, бордо, кирпичный). Фон делают с помощью холодных тонов, дополняя его тёплыми цветами.

Мебель и бытовые предметы делают из металла и стекла. Потолки красят или делают натяжные. Также предусмотрено соединение натяжного и гипсокартонного потолков для того, чтобы сделать осветительные зоны.

Стенки штукатурят или красят. Можно выделить одну стену и обложить её дикими камнями или кирпичами. Пол можно выложить ламинатом, паркетом или сделать его наливным.

Цвета подойдут натуральные. Мебель подбирают в соответствии с общим видом комнаты. Она должна быть сделана из дорогого дерева, железа или стекла. Основным декором техно являются новейшие предметы бытовой техники и освещения. Предметы освещения должны быть тоже металлическими или стеклянными. Они обязательно должны быть установлены по всей комнате по периметру. Для освещения рабочего уголка используют точечные светильники. Элементы декора можно осветить светодиодной лентой.

Лофт
Данный стиль предлагает нам отказаться от стандартных перегородок и открыть всё пространство квартиры. Популярные цвета для данного стиля – белый, серый, металлик. Дополнить гамму можно красным, коричневым или же чёрным оттенками. Мебель в данном стиле является главной составляющей, поскольку именно с помощью неё и делится пространство на зоны.

Стенки визуально могут быть похожи на отделку, которая была сделана много лет назад. Для этого можно обложить их кирпичом. Можно использовать штукатурку, обои в стиле винтаж. Потолок лучше покрасить, наложить на него балки из дерева или металла. Пол лучше услать паркетом.

Как уже говорилось ранее, с помощью мебели здесь нужно пространство делить на зоны. Стиль в мебели может быть как классическим, так и современным – всё зависит от ваших желаний. Классика создаст атмосферу шика, а современные предметы мебели сделают жильё эстетичней. Также эти стили можно соединить.

Декорирование интерьера может быть самым разнообразным, поскольку здесь должны быть видны увлечения и интересы хозяина квартиры. Можно использовать картины, комнатные растения, книги, скульптуры, предметы в стиле винтаж. Кстати, книги можно положить на подоконник или прямо на пол.

Освещение должно быть холодным. Периметр комнаты лучше украсить массивными люстрами и светильниками – это создаст великолепную композицию пространства. Светильники, которые крепятся на стену, применять не рекомендуется. Лучше используйте вместо них торшеры. Освещение должно быть наполнено нотками современности.

Прованс
Прованс пришёл к нам из Франции. Этот стиль превосходно смотрится в декоре маленьких комнат. Цвета здесь приветствуются насыщенные, однако не яркие. Рекомендуется использовать оттенки молочного, оливкового, бежевого, морского, пастельные тона. Данные цвета должны смотреться как бы немного выцветшими от солнечных лучей. Помещение должно получиться живым, естественным, светлым. Стены для достижения этого эффекта окрашивают, очень редко применяют обои.

Мебель должна быть уже поношенной, устаревшей. Если таковой нет, то нужно сделать такой эффект искусственно. Должно казаться, как будто бы данные предметы мебели находятся в эксплуатации уже много лет. Этому поспособствуют эффекты слезшей краски, всевозможные сколы и вмятины.

Очень ценны в данном стиле антикварные старинные вещи. Это может быть прабабушкин сундук или старинный комод, который будет находиться в центре внимания.

Для пола лучше взять керамику или дерево. Шторки должны быть очень лёгкими. Подвесные потолки ни в коем случае не использовать – только красить.

Предметов декора должно быть много. Подойдут фигурки из керамики, картины в старинных рамках, живые растения, горшочки с пряностями.

Скандинавский
Скандинавский стиль отличается своей лёгкостью, изящностью, простотой, сдержанностью. Этот стиль подходит как для шикарного особняка, так и для маленькой квартирки. Здесь всё органично, комфортно и удобно. Пространственное решение является открытым, негромоздким. Присутствует большое количество освещения.

Очень популярным в скандинавском стиле является соединение между собой зон, в которых владельцы квартиры бывают наиболее часто, а именно столовой и гостиной зоны.

Из цветов здесь преобладают пастельные оттенки, наполненные своей нежностью и мягкостью, отличающиеся светлостью и воздушностью. Такие цвета способны подчеркнуть тёплые тона дополнительных аксессуарных принадлежностей и предметов декора.

Очень часто сочетают в этом стиле белые стенки, мебель в натуральных цветах и красивое декорирование. Для отделки применяют натуральные средства, а именно древесину в сочетании с кирпичами, дикими камнями, керамикой, железом. Мебель должна присутствовать только для выполнения определённых функциональных обязанностей. Она должна лаконично вписываться в полученное стилевое решение. Рекомендуется применять закрытые системы для хранения.

Скандинавский стиль также отличается изобилием текстильных материалов, коврового покрытия, шкур, пледов и других аксессуарных принадлежностей, которые помогут создать в доме особый комфорт.

Английский
Английский стиль предусматривает создание в квартире особой элегантности, которая будет объединять в себе черты аристократизма и утончённой сдержанности. Этот стиль очень легко создать в любой двухкомнатной квартире. Этот стиль особенно уважают и ценят личности, которым не чужда любовь к атмосфере умиротворения и спокойствия. Английский стиль по своей сути очень изысканный и благородный.

Главным средством создания данного стиля обязательно является наличие камина с креслом и шкафа для книг, который будет занимать всю стенку. Для облицовки выбирайте коричневые, белые, оливковые или серые оттенки. Стены делайте однотонными. Допускается применение обоев в полосу, с мелкими узорчиками. Мебель здесь должна быть качественной, выполненной из дорогого дерева.

Как говорилось ранее, двухкомнатные квартиры отличаются своей популярностью в сфере купли-продажи жилья. Этот факт предусматривает то, что цены на такой вид жилья довольно-таки приемлемые, удачно балансируют.

Двушка всегда является идеальной площадкой для воплощения самых разнообразных дизайнерских идей. Из такого жилья можно создать поистине уютный и комфортный уголок, который будет отличаться особой привлекательностью и презентабельным внешним видом. Также такая квартира очень функциональна.

Дизайнерский проект двушки может воплотить в жизнь любое решение, создать абсолютно все, необходимые для жизни, функциональные зоны. Площадь такой квартиры позволяет вдоволь экспериментировать над перепланировкой и дизайном жилья.

Воспользуйтесь данными советами по перепланировке двухкомнатной квартиры и воплотите в жизнь свои самые заветные мечты по оформлению вашего жилья.

114 фото дизайна двухкомнатной квартиры
remontnichok.ru


