Детская горка своими руками: рекомендации по созданию конструкций
ПОДЕЛИТЕСЬ
В СОЦСЕТЯХ
Обязательный элемент любого приусадебного участка, если у вас есть дети, – детская площадка. На ней может быть установлено любое количество сооружений различного типа: песочница, бассейн, качели – выбор зависит от вашего желания и финансовых возможностей. Большинство предметов для детской площадки можно изготовить самостоятельно. Например, детская горка своими руками сооружается довольно просто, долгие годы служа источником детской радости.

Главным требованием к детской горке является безопасность ее эксплуатации
Требования к детской горке
Детская горка может быть установлена как внутри помещения, так и на открытом воздухе. Стоит понимать, что горка для ребенка (для дома она построена или для улицы в данном случае не имеет значения) должна соответствовать определенным требованиям:
- для постройки нужно использовать только экологически чистые и безопасные для здоровья ребенка материалы. Неважно, сооружаете ли вы горку из дерева, металла или пластика, материал не должен содержать вредные элементы. То же самое касается лакокрасочных материалов, которыми вы будете вскрывать конструкцию. Еще один важный момент как для детской пластиковой горки для дома, так и для деревянной конструкции – это устойчивость к возгоранию;

Самые популярные материалы для строительства горки – дерево и металл
- обязательно используйте такие элементы конструкции, как перила и ограждения. Они не только помогут ребенку удержать равновесие во время подъема на горку, но и уберегут его от падения во время игр. Перила на горке для ребенка на даче нужно устанавливать вне зависимости от возраста вашего чада;
- лучше всего использовать для постройки конструкции древесину. Детские деревянные горки для дома более приятны в ходе эксплуатации благодаря природному происхождению материала. В уличных условиях горки из дерева нагреваются не так быстро, как металлические, поэтому их можно устанавливать в любом удобном для вас месте, а не только на затененной части участка. О раскаленный металл ребенок легко может обжечься, дерево же не нагревается до опасной температуры;

Металлическая горка с волнообразным скатом покрыта акриловой краской
- пластиковая детская горка для улицы легче, чем деревянная или металлическая. Ее легко можно передвигать с места на место, при необходимости транспортировать, но сам материал менее прочен – легко может дать трещину;
- горка должна быть расположена вдали от деревьев, фонарей, хозяйственных построек и других сооружений. Это делается для того, чтобы при спуске с горки малыш не поранился. Поверхность вокруг горки можно засеять газонной травой или использовать специальное резиновое покрытие. Помните, что главное – это здоровье ребенка, поэтому любая уличная детская горка для дачи должна быть, в первую очередь, безопасной;

Горка должна быть установлена на открытом участке, что поможет минимизировать возможные травмы
- основание следует укрепить при помощи металлической опоры или забетонировать. Не стоит полагаться на то, что ребенок все равно не сдвинет конструкцию с места – даже самая прочная горка может опрокинуться в результате детских игр;
- важный момент – это высота сооружаемой детской горки для дачи своими руками. Она должна соответствовать возрасту ребенка, например, высота горки, предназначенной для детей младшего школьного возраста, не должна превышать 3,5 м.

Деревянная горка с двумя спусками, домиком и качелями, построенная во дворе частного дома
Полезный совет! В конструкции горки должны отсутствовать щели и проемы, иначе ребенок может застрять или серьезно травмироваться в процессе игры.
Возведение горки своими руками: необходимые материалы и инструменты
Как сделать горку на даче своими руками без особого труда? Если речь идет о деревянной конструкции, вам понадобится несколько деревянных брусьев, струганные доски, рейки, вагонка и ДВП. Соединять элементы между собой можно при помощи гвоздей, анкерных болтов и шурупов.

Процесс строительства детской горки из древесины
Перечень инструментов, необходимых для постройки, очень простой:
- пила по дереву ручная или электрическая;
- молоток;
- ручная или электрическая дрель;
- рубанок;
- рулетка и уровень;
- сверла.

Скат для горки можно приобрести фабричного производства или же изготовить его самостоятельно
К слову, не обязательно использовать деревянный скат – на нем могут возникнуть трещины или отколоться щепки, которые могут поранить ребенка. Вы можете купить пластиковые скаты для горки и установить их на деревянную конструкцию.
В случае с металлической конструкцией все немного сложнее. Здесь уже понадобится сварочный аппарат и болгарка по металлу. Все швы и места стыков в деревянной и металлической конструкции следует тщательно зашлифовать, чтобы ребенок случайно не поранился во время игры. Металлические скаты для детской горки следует красить специальной краской, которая будет поглощать солнечные лучи и не давать металлу нагреваться до высокой температуры.

Схема устройства деревянной горки для малышей
Как сделать детскую горку своими руками: последовательность монтажа
Если вы решили создать горку для ребенка своими силами, вам стоит придерживаться определенной последовательности действий:
- в первую очередь нужно подготовить план-схему конструкции. Можно взять готовый макет из интернета или же начертить собственный. Готовые чертежи детской горки из дерева своими руками хороши тем, что на них указаны точные пропорции элементов и размеры отдельных деталей;
- сверяясь со схемой, необходимо распилить доски, рейки и брусья. Кроме того, их обязательно нужно ошкурить, чтобы под кожу ребенка не могли попасть занозы. При помощи рубанка снимаются скошенные края углов деталей, что еще более повысит безопасность конструкции;

Конструкции из дерева экологичны и достаточно просты в монтаже
- на выделенном участке проводят разметку. Выделять участок стоит с запасом, если вы собираетесь сооружать вместе с горкой детский спортивный комплекс для дачи. Оптимальный размер для конструкции без дополнительных пристроек – 2 на 2 м;
- под опоры выкапываются углубления примерно на 60 см. В них вставляются деревянные брусья, концы которых следует покрыть специальной гидроизоляционной мастикой. Это делается для того, чтобы продлить срок службы опор. В стойках вырезаются пазы, в которые вставляются соединяющие деревянные доски. Элементы полученной рамы соединяются между собой при помощи болтов или саморезов;

Схема деревянной горки для детской площадки в саду
- далее монтируется пол. При постройке горки своими руками для детей помните: важно, чтобы пол был как можно более прочным, поэтому для него подбираются толстые доски, которые соединяются между собой саморезами и прикручиваются к раме при помощи металлических уголков. Если вы не хотите, чтобы на полу горки скапливалась вода, между досками следует оставить небольшие промежутки, но недостаточные для того, чтобы ребенок засунул в них палец;

Перила и ограждения – обязательные элементы конструкции детской горки
- изготавливается скат для детских горок. Его ширина не должна превышать 80 см. Поверхность ската покрывается линолеумом, оцинкованным листом или пластиком. Линолеум является самым дешевым вариантом, но легко деформируется и отрывается. Металлическое покрытие ощутимо нагревается на солнце и тоже может согнуться. Самый надежный вариант – пластиковые скаты для детских горок. Пластик не перегревается, не ржавеет и не изгибается, но стоит дороже, чем покрытие из линолеума или металла;

Схема устройства ската горки для детского спортивного комплекса
- монтируется лестница. Оптимальный размер досок для ее изготовления составляет 20 мм. После монтажа основной части устанавливается боковая. Для этого спиленная под углом 45° доска при помощи шурупов прикрепляется к стойкам. Затем к доске прикручиваются бруски, на которые монтируются ступени. Фото детских горок своими руками из дерева в интернете ясно показывают, как именно нужно крепить элементы лестницы. После монтажа ступеней устанавливаются балясины, на которые крепятся перила;

Песочница может быть устроена как в основании горки, так и в конце спуска
Полезный совет! Перила нужно делать в любом случае вне зависимости от высоты горки или угла наклона лестницы. Они служат не только для безопасности, но и для того, чтобы ребенку было удобнее держать равновесие при подъеме.
- в боковой части стоек вырезаются пазы, в которые устанавливаются боковые стенки из фанеры или ДВП. Стенки также могут быть выполнены из небольших досок или иметь какой-либо оригинальный вид;
- убираются все выступающие углы, шляпки гвоздей и шурупов, все поверхности тщательно шлифуются и покрываются краской или специальным защитным лаком.

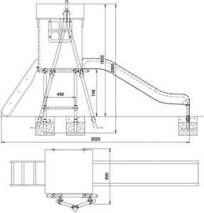
Чертеж детской горки для дачи. Габаритные размеры: длина — 3020 мм; ширина — 890 мм; высота — 1800 мм. Максимальный вес пользователя — 100 кг, минимальный возраст ребенка — 3 года
Интересной модификацией конструкции может стать горка — песочница для детей. При этом песочница организуется либо в основании горки, либо можно соорудить резервуар с песком в конце спуска.
Особенности использования разных материалов для постройки горки
Если вы сомневаетесь из какого материала построить домик с горкой для детей или другую подобную конструкцию на приусадебном участке, следует детально ознакомиться с особенностями построек из двух самых популярных материалов – дерева и металла.

Выполненный из дерева детский спортивный комплекс для дачи с горкой
Плюсы и минусы горки из дерева
Деревянные конструкции для детских площадок хорошо зарекомендовали себя еще несколько столетий назад. Все детские горки своими руками из дерева строятся по классическому макету, который включает в себя лестницу и скат, основание, верхнюю площадку и защитную часть. Кроме этого, часто к типовому проекту добавляют дополнительные элементы, например, внутренний лабиринт, песочницу, дополнительные спуски и многое другое. Так как изготовить такую конструкцию можно достаточно просто, здесь все зависит исключительно от вашей фантазии.

Установка пластикового спуска – оптимальный вариант при возведении горки, предназначенной для маленьких детей
Одно из существенных преимуществ создания деревянной горки для детей на даче своими руками – это дешевизна изготовления. Сам материал стоит относительно недорого, для его обработки тоже не нужны специализированные инструменты. Кроме того, строительство конструкции из досок и бруса не требует от вас особых строительных навыков и умений – иногда достаточно просто четко придерживаться найденной в интернете схемы.
Статья по теме:
Детские уличные качели для дачи и особенности их конструкций. Виды качелей. Преимущества и недостатки конструкций из различных материалов. Правила создания детских качелей на загородном участке.
Еще один плюс такой конструкции – это ее экологическая безопасность. Дерево не вызывает аллергии, не выделяет вредные вещества при нагревании. Единственный спорный момент здесь – лакокрасочное покрытие сооружения, поэтому обязательно читайте инструкцию при покупке лака или краски для покрытия горки.

Простая конструкция детской горки, изготовленной из древесных стволов
Полезный совет! Древесина для горки должна быть высокого качества, сухая и хорошо отшлифованная. Выбирайте самые прочные породы дерева, а для увеличения устойчивости к влажности или перепадам температур доски необходимо покрыть специальным составом.
Элемент, которому следует уделить особое внимание при монтаже постройки из дерева, – это спуск. Лучше всего не рисковать, используя собственноручно оструганные доски, а приобрести материал для ската фабричного производства. Это может быть линолеум, лист нержавеющего металла или пластик. Последний вариант самый дорогой, но и самый надежный и долговечный.

Детский игровой домик из дерева с пластиковой горкой
Преимущества и недостатки конструкции из металла
Металлические горки для детей раньше стояли в каждом дворе и при должном уходе могли прослужить не один десяток лет. Фото детских горок своими руками из металла показывают, что по виду они мало чем отличаются от деревянного аналога.
Существенное преимущество сооружения из металла – его прочность. Железная конструкция не требует специальной обработки и ухода, стойко переносит перепады температур, повышенную влажность, большие механические нагрузки. Единственное, что нужно периодически делать с металлической горкой – это обновлять краску и следить за тем, чтобы лакокрасочное покрытие не отшелушилось в результате коррозии.

Прочность и долговечность – главные преимущества сооружения из металла
Как сделать горку для детей своими руками из металла? Для этого вам понадобятся готовые элементы, болгарка и сварочный аппарат. Особое внимание стоит уделить швам, так как они являются потенциально опасными для ребенка. Качество сварки также имеет принципиальное значение: чем оно выше, тем прочнее будет конструкция.
Недостаток железной горки – быстрое прогревание на солнце. Если установить такую конструкцию там, где на нее будут постоянно падать солнечные лучи, ваше чадо легко может обжечься. Поэтому, если вы все-таки решились на сооружение постройки из металлических элементов, место под нее стоит подбирать в тени или же делать специальный навес.

Горка из металла с пластиковым скатом, установленная у детского бассейна
При строительстве горки своими руками для детей не обязательно использовать только деревянные или металлические элементы. Эти материалы можно комбинировать в разных пропорциях, получая таким образом оригинальную, надежную и долговечную конструкцию.
Конечно, всегда можно задаться вопросом по поводу того, где купить детскую горку на дачу. Сделать это можно в любом специализированном магазине или через интернет. Но помните, что только сделанная собственноручно конструкция будет удовлетворять всем вашим требованиям и позволит реализовать дизайнерские фантазии.

Даже горку фабричного производства можно дополнить самостоятельно созданными элементами
Детская горка своими руками: полезные советы
Есть ряд моментов, которые стоит учесть, чтобы конструкция была надежной и безопасной:
- для дополнительной устойчивости балясин лестницу деревянной конструкции следует дополнительно усилить при помощи планок;
- чертежи, видео, фото детских горок на даче своими руками показывают, что пазы и вставленные в них рейки при стяжке болтами образуют легкую, но прочную и устойчивую конструкцию;

При строительстве детской горки на даче следует тщательно рассчитать высоту конструкции
- отличный вариант для покраски сооружения – акриловая краска. Она безопасна для здоровья ребенка, хорошо защищает дерево от разного рода негативных воздействий и привлекательно выглядит. Также акрил славится своей долговечностью и не теряет насыщенность цвета даже при длительном воздействии прямых солнечных лучей;
- удобный тип покрытия для использования под горкой – искусственная трава или резина. Такое покрытие не требует специального ухода, не меняет свои свойства в зависимости от времени года или погоды, создает под горкой безопасную поверхность, которая убережет ребенка от травм в случае падения с горки.

Покрытие площадки вокруг горки для детей должно быть как можно менее травмоопасным
Пластмассовая горка для детей, приобретенная в магазине или на строительном рынке, далеко не всегда является лучшим вариантом. Да, вы экономите время и силы за счет постройки, но деревянная или металлическая конструкция может не только обойтись в меньшее количество денег, но и позволит создать для ребенка полноценный спортивный комплекс, состоящий из большого количества элементов. К слову, даже пластиковую горку для детей для дачи можно дополнить самодельными элементами и превратить в сложную и увлекательную конструкцию для игр.
Качественная и надежная горка – это не только хороший способ занять вашего ребенка во время пребывания в загородном доме, но и возможность развить его физически. По мере взросления чада горку можно достраивать, улучшать и все больше стимулировать ребенка к здоровому образу жизни.
ОЦЕНИТЕМАТЕРИАЛ Загрузка… ПОДЕЛИТЕСЬ
В СОЦСЕТЯХ
СМОТРИТЕ ТАКЖЕ
REMOO В ВАШЕЙ ПОЧТЕremoo.ru
75 фото идей и схем
Детская горка – вещь нужная для активного развития и здоровья малыша. Занятия физической культурой важны для ребенка, только так он может выплеснуть всю нерастраченную энергию.
Большинство детских горок при строительстве или установке укрепляется вертикальным столбом для большей устойчивости. Самостоятельно собирая и устанавливая спортивный элемент, стоит помнить, что, прежде всего, он должен быть надежным и безопасным.
Яркая детская горка
Детская горка
Яркая детская горкаВиды горок
Когда детская горка укреплена вертикальным столбом, конструкция становится значительно устойчивее. Существует несколько важных критериев, по которым нужно выбирать модель.
- Спортивный элемент может быть уличным, либо размещаться дома. На улице это сделать просто: горку необходимо установить на твердой поверхности, чтобы опоры прочно уходили в землю, а внизу уклона расположить песочницу, либо мягкие элементы покрытия.
- В детской комнате этот предмет не обязательно должен занимать много места и создавать дискомфорт. Горка может прикрепляться к кровати, либо быть частью спортивного комплекса. Это очень удобно, так как добавляет спортивному снаряду функциональности.
Яркая детская горка
Детская горка
Детская горкаМатериалы для детских горок
Материалами изготовления традиционно являются пластик, металл и древесина. Рассмотрим характеристики каждого.
- Пластик
Материал довольно хрупок, поэтому при использовании может сломаться. Однако он абсолютно безопасен для ребенка, не имеет выпирающих гвоздей и болтов, что исключает возможность зацепиться или пораниться, поверхности везде ровные и гладкие. Родителям будет удобно брать такую горку с собой в путешествия, ведь изготовленная из пластика, она имеет очень маленький вес и легко разбирается. Пластиковую горку не рекомендуется устанавливать на улице, ввиду ненадежности материала. Поэтому такие модели подходят только для детских комнат.
Яркая детская горка
Яркая детская горка - Металл
Такая горка намного прочнее и надежнее пластиковой. Она прослужит гораздо дольше, ее можно много раз перекрашивать в другой цвет. Часто металлические горки устанавливают на улице, но в этом варианте есть недостатки. Летом материал быстро нагревается на солнце. Поэтому прокатиться у ребенка не получится, в противном случае он может получить ожог или другие травмы. Существенным минусом является и тот факт, что поверхность горки достаточно жесткая и, ударившись об нее, малышу не избежать синяков. Со временем материал подвергается коррозии.
Детская горка
Яркая детская горка - Древесина
Деревянные горки – хороший вариант и безопасности. Главное – правильно обработать древесину и покрыть ее несколькими слоями лака, чтобы исключить возможность зацепок и заусенцев у маленьких непосед.
Детская горка
Яркая детская горкаСтроительство горки
Решив самостоятельно построить горку для своего малыша, первое, что необходимо сделать – определиться с материалом. Пластик необходимо исключить сразу, такие конструкции сложны в изготовлении и производятся только на специальных предприятиях.
Лучше и проще всего построить горку из дерева.
Детская горка
Яркая детская горкаЧто для этого нужно?
- Столбики 10х10 см, высотой 2-2,5 метра. Они вбиваются в землю на 40-50 см — 4 штуки.
- Брусок 4х10х80 см – 4 шт.
- Брусок 4х10х300 см – 4 шт.
- Брусок 4х2х160 см – 25 шт.
- Брусок 4х2х80 см – 4 шт.
- Брусок 4х2х300 см – 4 шт.
- Лист фанеры 75х75 см с толщиной 2-3 см. Важно, чтобы предварительно материал был обработан от влаги.
- Шпон 75х300 см с толщиной 2-3 см. Поверхность также должна быть обработана от влаги.
- Шурупы для кровли 6 см – 20 шт.
- Гвозди обычные 5 см – 20-50 шт.
- Цемент в растворе
- Щебень или галька измельченные
- Лак для покрытия материала
- Инструмент для полировки древесины, либо наждачная бумага.
Детская горка
Яркая детская горкаПошаговая инструкция строительства
В первую очередь необходимо начертить план строения и выбрать место его расположения. Успешно справившись с первой задачей, можно приступать к следующим этапам.
- Разметка мест, куда позже будут вкопаны вертикальные столбы. Они должны образовывать собой квадрат и быть равноудалены друг от друга. При дополнительном укреплении горки вертикальным столбом посередине его расположение тоже важно отметить.
- Важным параметром для строительства является рост ребенка. От этого зависит расположение ступеней и высота самой горки. Маленьким детям будет некомфортно забираться наверх по широким и большим ступенькам. Для малышей лестница устанавливается обязательно под углом, а для ребенка старшего возраста она может быть полностью вертикальной.
- Габариты горки рассчитываются с учетом требований безопасности. Ширина ската не должна быть слишком большой. Стандартный ее размер – 40-50 см. Ограждающие бортики лучше сделать повыше, чтобы ребенок не мог упасть или самостоятельно перелезть через них во время скатывания.
- В первую очередь нужно вкопать столбы, засыпать их основания галькой и укрепить цементным раствором.
Детская горка
Яркая детская горка - Для изготовления платформы необходим шпон 75х75 см, гвозди, бруски. Этот элемент располагается параллельно земле на необходимой высоте.
- Фанера делится на две части. Первая служит для изготовления ската, из второй делаются ступеньки для подъема. Оптимальное расстояние для ступенек – 20 см друг от друга. Важно проследить, чтобы они тоже были расположены параллельно земле.
- Весь спуск укрепляется рейками из бруса, при помощи шурупов.
- Последний этап – изготовление поручней для подъема и бортиков. Для этого необходимы бруски 4х2х80см.
После завершения работ нужно сразу обработать конструкцию от вредителей, затем тщательно отшлифовать все поверхности, покрыть горку несколькими слоями лака и оставить до полного высыхания.
Детская горка
Яркая детская горкаПреимущества и недостатки деревянной горки
Несмотря на простоту изготовления, такая конструкция при правильном уходе может прослужить до 20 лет! К ее преимуществам стоит отнести долговечность, изящный внешний вид, безопасность (при качественной шлифовке изделия).
Говоря о недостатках, не стоит забывать, что деревянное покрытие легко воспламеняется и может быть атаковано мелкими вредителями, поэтому горку важно обрабатывать раз в несколько месяцев. Важной задачей является защита от плесени, которая легко может образоваться на деревянной поверхности, поэтому лак необходимо выбирать влагостойкий.
Детская горка
Яркая детская горка
Детская горкаТрадиционная металлическая горка
Своими руками можно изготовить и металлическую горку, но такой вариант будет более затратным и потребует наличия специального оборудования. Хозяин должен иметь сварочный аппарат, лом, молоток и шлифовальную машинку. В остальном принцип изготовления похож на создание деревянной горки, только бруски заменяются металлическими трубками и уголками.
Яркая детская горка
Детская горкаК преимуществам металлической горки стоит отнести устойчивость к образованию грибков и плесени, ее не повредят насекомые. Такую конструкцию не понадобится по нескольку раз в год покрывать различными средствами обработки
Лучше всего для изготовления выбрать нержавеющий металл. Тогда горка прослужит долгие годы.
Видео: Детская горка за 1 день
50 фото идей детской горки:
weller.ru
Детская горка для дачи: фото, видео, чертежи
Горка для детей своими руками
Детская горка для дачи:изделие о котором мы поговорим в этой статье на сайте jmsi.ru. Чртежи фото и видео инструкция помогут вам построить детскую горку своими руками. Детская горка наверное один из обязательнх элементов любого дачного участка, если у вас есть дети. На детской площадке может быть установлено любое количество сооружений различного типа: песочница, детский бассейн, качели – выбор зависит от вашего желания и финансовых возможностей. Большинство предметов для детской площадки можно изготовить самостоятельно. Например, детская горка сооружается довольно просто, и долгие годы служа источником детской радости.
Главным требованием к детской горке на даче является безопасность
к содержанию ↑Обязательные условия для детской горки на даче
Детская горка на даче может быть установлена как внутри помещения, так и на открытом воздухе. Стоит понимать, что горка для ребенка (для дома она построена или для улицы в данном случае не имеет значения) должна соответствовать определенным требованиям:
- для постройки нужно использовать только экологически чистые и безопасные для здоровья ребенка материалы. Неважно, сооружаете ли вы горку из дерева, металла или пластика, материал не должен содержать вредные элементы. То же самое касается лакокрасочных материалов, которыми вы будете вскрывать конструкцию. Еще один важный момент как для детской пластиковой горки для дома, так и для деревянной конструкции – это устойчивость к возгоранию;
Самые популярные материалы для строительства горки – дерево и металл
- обязательно используйте такие элементы конструкции, как перила и ограждения. Они не только помогут ребенку удержать равновесие во время подъема на горку, но и уберегут его от падения во время игр. Перила на горке для ребенка на даче нужно устанавливать вне зависимости от возраста вашего чада;
- лучше всего использовать для постройки конструкции древесину. Детские деревянные горки для дома более приятны в ходе эксплуатации благодаря природному происхождению материала. В уличных условиях горки из дерева нагреваются не так быстро, как металлические, поэтому их можно устанавливать в любом удобном для вас месте, а не только на затененной части участка. О раскаленный металл ребенок легко может обжечься, дерево же не нагревается до опасной температуры;
Металлическая горка с волнообразным скатом покрыта акриловой краской
- пластиковая детская горка для улицы легче, чем деревянная или металлическая. Ее легко можно передвигать с места на место, при необходимости транспортировать, но сам материал менее прочен – легко может дать трещину;
- горка должна быть расположена вдали от деревьев, фонарей, хозяйственных построек и других сооружений. Это делается для того, чтобы при спуске с горки малыш не поранился. Поверхность вокруг горки можно засеять газонной травой или использовать специальное резиновое покрытие. Помните, что главное – это здоровье ребенка, поэтому любая уличная детская горка для дачи должна быть, безопасной;
Горка должна быть установлена на открытом участке, что поможет минимизировать возможные травмы
- основание следует укрепить при помощи металлической опоры или забетонировать. Не стоит полагаться на то, что ребенок все равно не сдвинет конструкцию с места – даже самая прочная горка может опрокинуться в результате детских игр;
- важный момент – это высота сооружаемой детской горки для дачи своими руками. Она должна соответствовать возрасту ребенка, например, высота горки, предназначенной для детей младшего школьного возраста, не должна превышать 3,5 м.
Деревянная горка с двумя спусками, домиком и качелями, построенная во дворе частного дома
к содержанию ↑Полезный совет! В конструкции горки должны отсутствовать щели и проемы, иначе ребенок может застрять или серьезно травмироваться в процессе игры.
Строительство горки своими руками: материалы и инструменты
Как построить горку на даче своими руками без особого труда? Если речь идет о деревянной конструкции, вам понадобится несколько деревянных брусьев, струганные доски, рейки, вагонка и ДВП. Соединять элементы между собой можно при помощи гвоздей, анкерных болтов и шурупов.

Процесс строительства детской горки из древесины
Перечень инструментов, необходимых для постройки, очень простой:
- пила по дереву ручная или электрическая;
- молоток;
- ручная или электрическая дрель;
- рубанок;
- рулетка и уровень;
- сверла.

Скат для горки можно приобрести фабричного производства или же изготовить его самостоятельно
К слову, не обязательно использовать деревянный скат – на нем могут возникнуть трещины или отколоться щепки, которые могут поранить ребенка. Вы можете купить пластиковые скаты для горки и установить их на деревянную конструкцию.
В случае с металлической конструкцией все немного сложнее. Здесь уже понадобится сварочный аппарат и болгарка. Все швы и места стыков в деревянной и металлической конструкции следует тщательно зашлифовать, чтобы ребенок случайно не поранился во время игры. Металлические скаты для детской горки следует красить специальной краской, которая будет поглощать солнечные лучи и не давать металлу нагреваться до высокой температуры.

Чертеж устройства деревянной горки для малышей
к содержанию ↑Как построить детскую горку на даче своими руками
Если вы решили построить горку для ребенка своими силами, вам стоит придерживаться определенной последовательности действий:
- в первую очередь нужно подготовить план-чертеж конструкции. Можно взять готовый из интернета или же начертить собственный. Готовые чертежи детской горки из дерева своими руками хороши тем, что на них указаны точные пропорции элементов и размеры отдельных деталей;
- сверяясь со схемой, необходимо распилить доски, рейки и брусья. Кроме того, их обязательно нужно ошкурить, чтобы под кожу ребенка не могли попасть занозы. При помощи рубанка снимаются скошенные края углов деталей, что еще более повысит безопасность конструкции;
Конструкции из дерева экологичны и достаточно просты в монтаже
- на выделенном участке проводят разметку. Выделять участок стоит с запасом, если вы собираетесь сооружать вместе с горкой детский спортивный комплекс для дачи. Оптимальный размер для конструкции без дополнительных пристроек – 2 на 2 м;
- под опоры выкапываются углубления примерно на 60 см. В них вставляются деревянные брусья, концы которых следует покрыть специальной гидроизоляционной мастикой. Это делается для того, чтобы продлить срок службы опор. В стойках вырезаются пазы, в которые вставляются соединяющие деревянные доски. Элементы полученной рамы соединяются между собой при помощи болтов или саморезов;

Чертеж деревянной горки для детской площадки в саду
- далее монтируется пол. При строительстве горки на даче своими руками помните: важно, чтобы пол был как можно более прочным, поэтому для него подбираются толстые доски, которые соединяются между собой саморезами и прикручиваются к раме при помощи металлических уголков. Если не хотите, чтобы на полу горки скапливалась вода, между досками следует оставить небольшие промежутки, но недостаточные для того, чтобы ребенок засунул в них палец;

Перила и ограждения – обязательные элементы конструкции детской горки
- изготавливается скат для детских горок. Его ширина не должна превышать 80 см. Поверхность ската покрывается линолеумом, оцинкованным листом или пластиком. Линолеум является самым дешевым вариантом, но легко деформируется и отрывается. Металлическое покрытие ощутимо нагревается на солнце и тоже может согнуться. Самый надежный вариант – пластиковые скаты для детских горок. Пластик не перегревается, не ржавеет и не изгибается, но стоит дороже, чем покрытие из линолеума или металла;

Чертеж устройства ската горки для детского спортивного комплекса
- монтируется лестница. Оптимальный размер досок для ее изготовления составляет 20 мм. После монтажа основной части устанавливается боковая. Для этого спиленная под углом 45° доска при помощи шурупов прикрепляется к стойкам. Затем к доске прикручиваются бруски, на которые монтируются ступени. Фото детских горок своими руками из дерева в интернете ясно показывают, как именно нужно крепить элементы лестницы. После монтажа ступеней устанавливаются балясины, на которые крепятся перила;
Фото: песочница может быть устроена как в основании горки, так и в конце спуска
Полезный совет! Перила нужно делать в любом случае вне зависимости от высоты горки или угла наклона лестницы. Они служат не только для безопасности, но и для того, чтобы ребенку было удобнее держать равновесие при подъеме.
- в боковой части стоек вырезаются пазы, в которые устанавливаются боковые стенки из фанеры или ДВП. Стенки также могут быть выполнены из небольших досок или иметь какой-либо оригинальный вид;
- убираются все выступающие углы, шляпки гвоздей и шурупов, все поверхности тщательно шлифуются и покрываются краской или специальным защитным лаком.

Чертеж детской горки для дачи. Габаритные размеры: длина — 3020 мм; ширина — 890 мм; высота — 1800 мм. Максимальный вес пользователя — 100 кг, минимальный возраст ребенка — 3 года
Интересной модификацией конструкции может стать горка — песочница для детей. При этом песочница организуется либо в основании горки, либо можно соорудить резервуар с песком в конце спуска.
к содержанию ↑Материалы для строительства детской горки
Если вы сомневаетесь из какого материала построить домик с горкой для детей или другую подобную конструкцию на приусадебном участке, следует детально ознакомиться с особенностями построек из двух самых популярных материалов – дерева и металла.

Выполненный из дерева детский спортивный комплекс для дачи с горкой
к содержанию ↑Особенности горки из дерева
Деревянные конструкции для детских площадок хорошо зарекомендовали себя еще несколько столетий назад. Все детские горки своими руками из дерева строятся по классическому макету, который включает в себя лестницу и скат, основание, верхнюю площадку и защитную часть. Кроме этого, часто к типовому проекту добавляют дополнительные элементы, например, внутренний лабиринт, песочницу, дополнительные спуски и многое другое. Так как изготовить такую конструкцию можно достаточно просто, здесь все зависит исключительно от вашей фантазии.

Фото: установка пластикового спуска – оптимальный вариант при возведении горки, предназначенной для маленьких детей
Одно из существенных преимуществ создания деревянной горки для детей на даче своими руками – это дешевизна изготовления. Сам материал стоит относительно недорого, для его обработки тоже не нужны специализированные инструменты. Кроме того, строительство конструкции из досок и бруса не требует от вас особых строительных навыков и умений – иногда достаточно просто четко придерживаться найденной в интернете схемы.
Еще один плюс такой конструкции – это ее экологическая безопасность. Дерево не вызывает аллергии, не выделяет вредные вещества при нагревании. Единственный спорный момент здесь – лакокрасочное покрытие сооружения, поэтому обязательно читайте инструкцию при покупке лака или краски для покрытия горки.

Фото: простая конструкция детской горки, изготовленной из древесных стволов
Полезный совет! Древесина для горки должна быть высокого качества, сухая и хорошо отшлифованная. Выбирайте самые прочные породы дерева, а для увеличения устойчивости к влажности или перепадам температур доски необходимо покрыть специальным составом.
Элемент, которому следует уделить особое внимание при монтаже постройки из дерева, – это спуск. Лучше всего не рисковать, используя собственноручно оструганные доски, а приобрести материал для ската фабричного производства. Это может быть линолеум, лист нержавеющего металла или пластик.

Фото: детский игровой домик из дерева с пластиковой горкой
к содержанию ↑Особенности детской горки из металла
Металлические горки для детей раньше стояли в каждом дворе и при должном уходе могли прослужить не один десяток лет. Фото детских горок своими руками из металла показывают, что по виду они мало чем отличаются от деревянного аналога.
Существенное преимущество сооружения из металла – его прочность. Железная конструкция не требует специальной обработки и ухода, стойко переносит перепады температур, повышенную влажность, большие механические нагрузки. Единственное, что нужно периодически делать с металлической горкой – это обновлять краску и следить за тем, чтобы лакокрасочное покрытие не отшелушилось в результате коррозии.
Прочность и долговечность – главные преимущества сооружения из металла
Как сделать горку для детей своими руками из металла? Для этого понадобятся готовые элементы, болгарка и сварочный аппарат. Особое внимание стоит уделить швам, так как они являются потенциально опасными для ребенка. Качество сварки также имеет принципиальное значение: чем оно выше, тем прочнее будет конструкция.
Недостаток железной горки – быстрое прогревание на солнце. Если установить такую конструкцию там, где на нее будут постоянно падать солнечные лучи, ваше чадо легко может обжечься. Поэтому, если вы все-таки решились на сооружение постройки из металлических элементов, место под нее стоит подбирать в тени или делать специальный навес.
Фото: горка из металла с пластиковым скатом, установленная у бассейна
При строительстве горки своими руками не обязательно использовать только деревянные или металлические элементы. Эти материалы можно комбинировать в разных пропорциях, получая таким образом оригинальную, надежную конструкцию.
Конечно, всегда можно задаться вопросом по поводу того, где купить детскую горку на дачу. Сделать это можно в любом специализированном магазине или через интернет. Но помните, что только сделанная собственноручно конструкция будет удовлетворять всем вашим требованиям и позволит реализовать дизайнерские фантазии.
Даже горку фабричного производства можно дополнить самостоятельно созданными элементами
к содержанию ↑Советы по строительству детской горки
Есть ряд моментов, которые стоит учесть, чтобы конструкция была надежной и безопасной:
- для дополнительной устойчивости балясин лестницу деревянной конструкции следует дополнительно усилить при помощи планок;
- чертежи, видео, фото детских горок на даче своими руками показывают, что пазы и вставленные в них рейки при стяжке болтами образуют легкую, но прочную и устойчивую конструкцию;
При строительстве детской горки на даче следует тщательно рассчитать высоту конструкции
- отличный вариант для покраски сооружения – акриловая краска. Она безопасна для здоровья ребенка, хорошо защищает дерево от разного рода негативных воздействий и привлекательно выглядит. Также акрил славится своей долговечностью и не теряет насыщенность цвета даже при длительном воздействии прямых солнечных лучей;
- удобный тип покрытия для использования под горкой – искусственная трава или резина. Такое покрытие для детских площадок не требует специального ухода, не меняет свои свойства в зависимости от времени года или погоды, создает под горкой безопасную поверхность, которая убережет ребенка от травм в случае падения с горки.

Покрытие площадки вокруг горки для детей должно быть как можно менее травмоопасным
Пластмассовая горка для детей, приобретенная в магазине или на строительном рынке, далеко не всегда является лучшим вариантом. Да, вы экономите время и силы за счет постройки, но деревянная или металлическая конструкция может не только обойтись в меньшее количество денег, но и позволит создать для ребенка полноценный спортивный комплекс, состоящий из большого количества элементов. К слову, даже пластиковую горку для детей можно дополнить самодельными элементами и превратить в сложную и увлекательную конструкцию для игр.
Качественная и надежная горка – это не только хороший способ занять вашего ребенка во время пребывания в загородном доме, но и возможность развить его физически.
jmsi.ru
Детская площадка на даче — 30 фото для вдохновения
Как организовать детскую площадку на даче? Об этом известно не много. Нет специальной литературы, сборников чертежей и пошаговых инструкций. В интернете же много фото площадок с космическими бюджетами и трудозатратами. Когда выглядит красиво, но выполнить сложно — мотивация падает. Мы собрали эти фото из собственных коллекций и блогов родителей-дачников, которые вы легко можете применить у себя на даче. Бюджет от 0 до 20000р. Вдохновляйтесь идеями и применяйте!
Спортивный комплекс для дачи — пожалуй самый важный элемент дачной площадки. Этакий «гвоздь программы». Он тренирует силу и координацию, развивает способность оценивать риск и приводит друзей. С него и начнём!
Как завести друзей на даче?
Заведите детскую площадку — друзья появятся сами!

Детская площадка на даче собирает друзей
Раньше мы не знали наших соседей. Стоило организовать детскую площадку, как узнали всех 🙂
Татьяна. (г.Барнаул)
Детский спортивный комплекс и песочница привлекают детей больше всего. Лучше, чтобы на площадке было и то и другое.

Детская площадка на даче работает с ранней весны
Выглянуло солнышко, и мы сразу же поставили наш любимый дачный спорткомплекс.
Марина (Новосибирск)
На этих двух фото очень популярная модель последних лет. Несмотря на удобные металлические качели, по правилам безопасности лучше использовать верёвочные. Подробнее об этом в частых вопросах о дачных комплексах. Поэтому рекомендуем похожую модель дачного спортивного комплекса с верёвочными качелями (вы можете посмотреть её, кликнув по картинкам выше).
Детская площадка на даче для здоровья и развития

За летний сезон можно укрепить мышцы и ум, если есть детская спортивная площадка на даче
Бабушка была против дачного спортивного комплекса для двухлетнего малыша. Но мы, родители, настояли на своём и не пожалели. В спортивном комплексе пригодилось всё, даже опорная перекладина А-образных стоек. К концу лета 2-х летний малыш уже самостоятельно взбирался на качели, карабкался по шведской стенке и даже держал уголок!
Наталья (Новосибирск)
Домашний спортивный комплекс не сравнится с дачным. Если на обычных Г-образных и Т-образных комплексах движения ограничены плоскостью шведской стенки (вверх-вниз), то здесь есть где развернуться. Разнообразные движения в 3-х мерном пространстве развивают не только мышцы, но и мозг.
Освоить такой комплекс сложнее, чем домашний. В нём набор элементов и снарядов, которые не разместишь на 0,5м2 площади в квартире. Он учит разумно оценивать риск и не лезть туда, где не пока по силам.
Известный педагог Б.П. Никитин считал такую 3-х мерную конструкцию абсолютно необходимой для каждого ребёнка. Не рекомендовал заботливым мамам и бабушкам мчаться как «скорая помощь» при малейшем затруднении.
Однако, о безопасности забывать не стоит:
- Бетонируйте спортивный комплекс, а не просто вкапывайте в землю
- Избегайте качелей на жесткой подвеске
- Проверяйте надёжность креплений время от времени
Качели-Гнездо
Дачная площадка дарит ощущения, которые не получишь в четырёх стенах. Качели, пожалуй, один из самых любимых детских снарядов. Качели-гнездо (или качели паутинка) сейчас очень популярны. Они очень прочные и подходят для нескольких детей и даже взрослых.

Качели-Гнездо на даче
Гамаки
Что может быть лучше для чтения и размышлений о смысле жизни?

Как организовать горку на даче
Горки часто входят в состав детских спортивных комплексов. В этом случае они крепятся к конструкции комплекса.

Горка входит в состав детского комплекса
Если же вы решили сделать дачную площадку своими руками, скат горки нужно будет закрепить по-другому.

Детская площадка с горкой в частном доме
Или так

При сооружении горки иногда приходится проявить изобретательность. Вот как можно использовать высокий пень

Однажды и нам пришлось проявить изобретательность с этой «горкой-домиком Карусель».

Как мы установили Горку-домик Карусель
Эта горка с домиком не является самостоятельным сооружением, а всего лишь пристройка к какому-либо из дачных спортивных комплексов «Карусель». Цена была привлекательна и наш клиент захотел установить её отдельно, хотя там всего 2 ноги с одной стороны. Немного поразмыслив, наш Александр согласился взяться за эту сборку. На сборку он взял 2 дополнительных трубы из совершенно другого спортивного комплекса. Они подошли идеально, заменив недостающую пару ног. Вот так появился этот милый домик-горка, и даже незаметно, что он собран из двух разных комплексов.
Полоса препятствий
Планируя детскую площадку, постарайтесь выйти из стандартных рамок. Если у вас есть газон — на нём так здорово побегать и порезвиться (а не только повисеть на снарядах и покопаться в песке). Вот как это можно организовать:

Как организовать дачную площадку, на которой можно побегать
Различные дорожки, холмы, ступеньки и полосы препятствий — это тренировка равновесия, координации и сердечно-сосудистой системы.
Еще Глен Доман заметил, что дети обожают такие упражнения на равновесие:

Учитывая, что тренировка происходит босиком — это еще и массаж стоп и тренировка чувств.
Спортивное бревно для баланса может быть началом дорожки. Выбирайте сложность и заковыристость в зависимости от желания и наличия пространства.

Полоса препятствий из брёвен для баланса

Полоса препятствий из природных материалов
А можно еще попробовать себя настоящим канатоходцем — занятие захватывающее как для детей, так и для взрослых.

Лента для канатоходца
Координационная дорожка
Как применить автомобильные покрышки
Если вы решили организовать детскую площадку на даче своими руками, запаситесь старыми автомобильными покрышками. Качели, скалодром, ступеньки, шведские стенки, песочницы и клумбы — вот что можно из них сделать.



Скалодром на даче из автомобильных покрышек
А из половинки покрышки, деревянной скамейки и руля от старого велосипеда получается отличная самодельная качалка.

Как обыграть дерево
Дерево — это спортивно-игровая площадка, созданная самой природой. Его можно дополнить небольшой площадкой домиком. Получится уютное место для игры в жаркий день.

Игровая площадка с участием дерева


Хорошая сосна даже может заменить спортивный комплекс для дачи, если повесить на неё кольца и верёвочную лестницу, как это сделали мы:

Спортивный комплекс на дереве
Домики и шалаши
Строить домики и шалаши — за это с удовольствием возьмется каждый ребёнок. Вот несколько простых идей.

Шалаш из лент и тряпочек
detkinadache.ru
Детская горка, качели, песочница для дачи. Деревянное ДЕТСТВО — своими руками.
Вспомнил… Мое маленькое чудо начало подрастать и к его подрастанию я решил запастись тяжелой артиллерией в виде детской площадки со всевозможными горками, лестницами, канатами, качелями.
Вот и начался долгий процесс создания хвойной конструкции.

Остальные фото
Неделю своего отпуска я посвятил выравниванию участка,
так я закопал в яму под детскую площадку четыре куба песка.
Делать конечно этого совсем не обязательно и да же не стоило,
ну или хотя бы только под горкой.
где предпологается песочница.

Ребенок конечно был заранее предупрежден о планах папы, но не мог понять, что этот самый папа всю неделю рылся посреди участка выкапывая землю и раскидывая ее по всему огороду, но когда приехал «камаз» с песком, вся семья во главе мамы (все кроме папы) бегала радостно вокруг горы подаренной грузовиком. Папа тем временем тяжело вдыхал.

Пока папа копал — можно было поиграть в царя горы.
Первый эскиз (схема детской площадки) был таким

Еще схема с размерами детской площадки



Ей придали блеска

Оказалось что на горку не возможно попасть, нет ни лифта не да же лестницы. Начал делать лестницу, вроде не пил, видимо пить мне не обязательно, что бы получить пьяную лестницу.

и


С одного бока мы не стали закрывать домик досками, хотели наблюдать из дачного окна, чем ребенок занят.
Но со временем стену мы зашили.



Прикрутив кольцо для баскетбола, не сразу понял что оно вверх ногами.
Домик на горки заселили мебелью для уюта.
Кольцо перевернули.
После того как появилась песочница, тут же в нее свалилась гора игрушек.

Ну и как же обойтись без стола, ведь на свежем воздухе и покушать, порисовать — милое дело.

После перекуса можно и немного напрячь извилины и поиграть в шахматы или для начала в шашки на свежем воздухе.

Зимой оказалось что можно скатываться с крыши, если появлялись большие сугробы внизу.


Теперь можно хоть и зимой кататься. Бери ледянку и бигом на верх.


Осталось только провести свет, вуаля, теперь можно звать друзей на званный ужин, а после любоваться на звезды.

Из бортов песочницы выпилили кусочек, что бы удобней было зализать в нее.Этот кусочек нам пригодился, из него мы сделали подоконник.

Бокоde. обшивку которая у нас была лесенкой пришлось выровнить, после того,как сам неоднократно бился об нее головой. Красота конечно требует жертв, но не на детской площадке)



На солнце горка выцвела, на этот год мы ее уже покрасили не пропиткой, масляной краской.

После того как мы вставили разноцветные оргстекла.
Наши окна приобрили цвет: синий, желтый, ораньжевый — теперь рядом с горкой трава развеселилась.И смотря в такие окна весь мир становиться веселей.

Сейчас не хватает только лазелки, Что бы можно было забираться поближе к звездам,наблюдать за ними.

Нужно срочно делать лестницу на крышу

Прошло пять лет, дети подросли и мы решили обновить наш детский комплекс, увеличить пространство домика над песочницей.
Прошлось укоротить высоту качелей, что бы перепад пола пристройки не сильно отличался высоты пола домика.

Из-за того, что укоротили высоту качелей, амплитуда их то же уменьшилась (для тетей не страшно, а для взрослых ощутимо), жалко конечно, но чем то нужно было пожертвовать (качелям может в будущем найдем другое место).и уже в своей основе содержит лак.

Настилаем пол в нашей пристройке, потом поверх досок настелем фанеру,что бы песок не сыпался на головы тем кто качается на качелях.


Выпиливаем пазы под стекла. Одно стекло будет стоять на месте, а второе отодвигаться,что бы в окно можно было вылезать на крышу.


Осталось сделать ручку с обеих сторон отодвигающегося стекла, что бы можно было его открывать с обеих сторон


Сбоку прикручиваем опору под балкон она же балка для крепления колец и каната.
Для этого мы запаслись двумя колесиками, карабином и 20-ти метровым тросом.

Для тех кому хочется сделать детскую площадку самому,
http://l-dacha.ru/catalog/detskie_igrovye_ploshchadki/detskie_gorodki_jungle_castle_swingmodule_xtra_rockmodule/ или
Так же можно дополнительно сделать ящики для игрушек, подвесной столик,
баскетбольное кольцо, веревочную лестницу, кольца.
Все сделано из экологичного леса, отшкуренного и покрашенного пропиткой в три слоя, покрытого лаком.
Размеры сего чуда: домик 1500мм на 1500мм, высотой 3500мм, горка длинной 3000мм, высота качелей 2000мм.
Если нужен совет или есть чем поделиться пишите на почту [email protected]
sannto.livejournal.com
Горка для детей своими руками » Подборки приколов, дтп, фото и историй © YAUSTAL.com
Решил с пользой отпуск летом провести, и горку детям запилить.
Была у тестя эта куча досок.

Четыре бревна взял у соседа, он на работе ими стяжки делает на вагонах поезда, на халяву домой возит. Взял за пивасик разумеется. Ошкурил. Основание битумом обработал и в цемент залил.

Определился с высотой площадки
Поставил лестницу
Перила и балясины попросил у друга, у него своё производство погонажных изделий . Денег не взял, сказал для детей подарок)
Старший мой убирает косяки за батей
Есть общий вид. Горку покрыл линолеумом, оцинковку не делают такого размера

Пропитали и покрасили
Первый пошел. Затраты: Бутылка пива соседу) Дети довольны… это главное. Всем добра

yaustal.com
Детская горка — Про ремонт
Детские игровые горки
Проживание в собственном частном доме накладывает на родителей «почетную обязанность» по организации досуга детей как внутри дома, так и во дворе.
Наилучшим вариантом будет обустройство на участке детской игровой площадки.
Основными, и наиболее востребованными ее «составляющими» есть песочница, горка, качели и игровой домик.
Этого, как показывает практика, такого набора будет вполне достаточно. По мере взросления ребенка вы сможете дополнить детскую игровую площадку шведской стенкой, различными лестницами и перекладинами, простыми спортивными снарядами.
Детская горка — второй по популярности, после качелей, «объект» игровой площадки.
Она может быть изготовленной промышленным способом из пластика, дерева или металла или сделанной своими руками.
Самодельные горки чаще всего деревянные, иногда, с металлическим или пластиковым скатом.
Попробуем разобраться какую же детскую горку лучше установить на собственном подворье.
Какая конструкция и из каких материалов будет недорогой, красивой и, главное, безопасной для ваших детей.
Детская горка: — фотогалерея

Горка для детской площадки
Важно, чтобы устанавливаемая вами горка соответствовала всем нормам безопасности и была смонтирована с соблюдениями основных правил.
Размеры горки могут варьироваться в зависимости от возраста вашего малыша.
Место установки вы, естественно, тоже выберете сами.
Но, есть несколько общих, основных правил:
- Горка должна быть хорошо закреплена металлическими опорами или забетонирована.
- По нормам безопасности высота игровой горки для дошкольников и детей младшего школьного возраста не должна превышать трех с половиной метров.
- Лестница обязательно оборудуется перилами или поручнями.
- Все детали деревянной горки должны быть качественно отполированы и отшлифованы.
- Очень желательно чтобы скат имел «тормозную площадку», расположенную параллельно грунту, без нее ребенок может травмироваться из-за слишком быстрого и крутого спуска.
- Длина спуска в целях безопасности, не должна превышать высоту площадки горки более чем в два раза, то есть, при высоте горки два метра идеальный скат будет четырехметровым.
- В зоне безопасности вокруг спуска (один метр) не должно быть никаких ограждений, клумб, садовых светильников или прочих объектов игровой площадки — качелей, песочницы, домика и прочего.
- Очень хорошо, если вы укроете зону безопасности специальным покрытием, предупреждающим травматизацию ребенка в случае падения — это могут быть резиновые коврики, специальное покрытие для спортивных площадок или обычный песок.
- Если вы планируете разместить под площадкой горки какие — либо дополнительные объекты, например песочницу или игровой домик, обязательно тщательно подшейте потолок и оборудуйте навес над самой площадкой, иначе песок, пыль и дождевая вода будут частыми «гостями» первого этажа.
- Желательно устанавливать горку так, чтобы часть ее, или хотя бы сам скат, располагались в тени, так как на жарком солнце спуск (особенно металлический или пластиковый) достаточно быстро и сильно разогревается.
- Очень хорошо, если желоб ската будет иметь борта, а для горки предназначенной совсем маленьким детям это обязательное условие!
- Уберите от горки и всей детской площадки клумбы, изобилие цветущих растений привлечет пчел, а их укусы чреваты неприятностями вплоть до анафилактического шока у ребенка.
- Игровая горка — место повышенного травматизма, устанавливайте ее так, чтобы она хорошо просматривалась из окон дома и со всего двора.
Если ваша горка сделана из дерева, то, лучше, если она будет окрашена акриловой краской, а не обычной масляной.
Или вскрыта качественным лаком.
Хотя бы наиболее эксплуатируемая часть горки — ее скат.
Лакокрасочное покрытие должно быть нанесено в несколько слоев и каждый предшествующий слой должен быть тщательно просушен.
Деревянная горка нуждается в ежегодном «техническом осмотре» после зимовки и в периодических ревизиях в течение сезона эксплуатации.
Профессионалы советуют окрашивать поверхность ската ежегодно перед началом сезона.
Перед покраской вся горка обязательно осматривается на предмет рассохшихся элементов, сколов и трещин.
Все обнаруженные недостатки должны быть исправлены, зашлифованы и зашпатлеваны и уже потом, окрашены.
Соблюдайте эти нехитрые правила, и ваши дети смогут долго наслаждаться катанием с качественной и безопасной собственной игровой горки.
Скат для детской горки
Полотно спуска — скат, часть детской игровой горки, подвергающаяся наиболее массированным нагрузкам.
Следственно, она должна быть сделана из качественного, очень износостойкого и безопасного для детей материала.
Во времена нашего детства вариантов, как самой горки, так и ее ската было только два.
Либо металл, долговечный, но обладающий некоторыми недостатками — например, горка с металлическим скатом, установленная под открытым солнцем в считанные часы превращается в настоящую «сковородку». Да и если уж металлический скат сломался, то, увы, починке он практически никогда не подлежит.
Или горка со скатом из дерева. Такую можно и на солнце «выставить». Но, без ежегодного ухода, максимум через пару сезонов, вы получите «терку», усыпанную сколами и заусенцами.
Современные технологии предоставляют нам более широкий выбор.
Постараемся рассмотреть наиболее применимые варианты.
Для начала, материалы, из которых КАТЕГОРИЧЕСКИ нельзя делать скат:
- все виды стекловолоконных поверхностей, абсолютно неприемлемы для любых контактов с детьми
- панели и полотно из ПВХ, крайне хрупкий и не переносящий морозов материал, после первой же зимы покроется небезопасными трещинами с острыми краями
- все поликарбонаты, особенно сотовой структуры, также очень хрупкие, легко раскалывающиеся с образованием очень острых осколков, кроме того, абсолютно не выносят жары и быстро деформируются на солнце
Из чего же сделать долговечный и безопасный для ребенка скат?
Металл:
- оцинкованная или нержавеющая сталь — наиболее долговечный материал
- также можно применить алюкобонд — панель из алюминия, закрепив ее жидкими гвоздями, плюс такой панели в широком выборе цветов
- тщательно крепите металл к основанию и загибайте край — тонкий стальной лист, некачественно подогнанный, может стать причиной очень сильной травмы
- имейте в виду, что любой металл сильно нагревается — старайтесь разместить горку с металлическим скатом в притененном месте, особенно если вы выбрали зеркальную нержавеющую поверхность — она греется сильнее и быстрее любой другой
- выбирайте только ровный лист без сколов и вмятин — исправить уже имеющийся дефект будет невозможно
- лист металла должен быть на много габаритнее основы ската, так как на безопасные подгибы понадобится значительное количество металла
Дерево:
- экологически чистый материал
- можно использовать как цельную доску, так и финскую влагостойкую фанеру, она нисколько не уступает натуральному дереву
- такую горку можно разместить на солнце — до состояния «сковороды» дерево не прогреется
- дополнительный «бонус» деревянного ската — зимой на нем можно залить ледяную горку
- за деревом нужно тщательно и своевременно ухаживать — в противном случае образование сколов и трещин неизбежно
- для повышения скользящих качеств деревянный скат можно обработать специальными маслами, отполировать и вскрыть лаком или жидким сантехническим акрилом
Линолеум:
- как говориться — «дешево и сердито», обрезки линолеума можно очень недорого приобрести в любом большом строительном магазине
- такое покрытие мягкое, особенно если взять линолеум на толстой основе, оно идеально подойдет для совсем маленького ребенка в силу малой травмоопасности
- если проложить скат линолеумом с накатом на борта, то летом такую горку можно будет использовать как водяную, пустив по ней поток воды из шланга
- в зависимости от класса износостойкости используемого вами линолеума его придется периодически менять
- в солнечную погоду линолеум достаточно сильно греется — размещайте такую горку в тени
- скользящие качества линолеума не очень высоки, для совсем малыша это как раз отлично, а для ребятни постарше можно использовать коврики из войлока — они значительно повысят скорость спуска
Пластик:
Современный рынок предлагает широкий выбор готовых пластиковых скатов, которые можно установить на собранную своими руками горку.
- пластиковые скаты практичны, просты в уходе, легко чистятся
- имеют небольшой вес
- они морозоустойчивы, не деформируются и не выгорают под воздействием солнечных лучей
- легко собираются и устанавливаются
- имеют высокие скользящие качества
- экологически безопасны
- обладают ровной поверхностью, защитными бортами и сглаженными углами
- выдерживают вес до ста килограмм (некоторые модели до двухсот пятидесяти)
- выпускаются разнообразной формы — прямыми, спиральными, волнообразными
- имеют большое цветовое разнообразие
- могут быть использованы для установки в бассейне
Детская горка своими руками
Построить детскую горку своими руками не так уж и сложно.
Это, конечно, не песочница, с «возведением» которой справиться любой начинающий домашний мастер.
Но, и в строительстве горки, как говориться, не «ничего военного».
Приложив немного усилий и обладая начальными навыками работы с деревом, с простенькой горкой может «справиться» любой отец или дед.
А восторг ваших детей будет неоценимой наградой!
Итак, для простой горки нам понадобятся:
№ п\п |
Материал |
Назначение |
Количество |
| 1 | Брус деревянный 100*100*1500 мм. | Для опор | 4 шт. |
| 2 | Брус деревянный 20*40*500 мм. | Для усиления верхней площадки (ребра жесткости) | 2 шт. |
| 3 | Брус деревянный 30*30*500 мм. | Для ограждения верхней площадки | 2 шт. |
| 4 | Брус деревянный 30*30*1500 мм. | Для перил | 2 шт. |
| 5 | Доска 20*100*500 мм. | Для соединения опор снизу (придания прочности конструкции) | 4 шт. |
| 6 | Доска 25*100*500 мм. | Для покрытия пола верхней площадки | 5 шт. |
| 7 | Доска 25*100*300 мм. | Для обустройства ступеней | 6-8 шт. (зависит от роста ребенка) |
| 8 | Доска 25*100*3 000 мм. | Для монтажа ограждений ската (+ ребро жесткости) | 2 шт. |
| 9 | Доска половая, 3 000 мм или влагостойкая фанера, толщиной не менее 20 мм. или заводской пластиковый скат | Для устройства ската | 2 шт. Количество штук и их длина зависит от заданной длины ската и его ширины |
| 10 | Пиломатериал для обустройства лестницы: доска или брус | Для тетивы/косоура лестницы | 2 шт. |
| 11 | Саморезы, анкера | Для крепления | Метизы брать оцинкованные, во избежание коррозии. Гвозди лучше не использовать |
Из инструмента, для сооружения горки своими руками, будут нужны:
- рулетка
- молоток
- уровень
- дрель
- рубанок
- пила
- лобзик
Древесину берите только хорошо просушенную, так вы существенно снизите возможность деформации конструкции в процессе эксплуатации.
Все элементы обработайте рубанком, удерите все сучки, зазубрины и неровности. Снимите фаску и тщательно зашкурьте.
Нижние части опор, которые будут контактировать с грунтом, обработайте гидроизолирующим материалом: смолой, мастикой, отработанным машинным маслом и прочим.
Выделенный под установку горки участок выровняйте и разметьте места установки опорных столбов.
В нашем случае это квадрат со сторонами пятьдесят сантиметров.
В углах квадрата выкопайте или пробейте буром шахты глубиной пятьдесят — шестьдесят сантиметров.
Засыпьте подушку из песка и щебенки.
Установите и забетонируйте опорные столбы.
Для придания большей прочности свяжите столбы по низу дополнительными опорами с помощью пазовых соединений и закрепления саморезами.
Соберите пол, уложив подготовленный брус и укрепив на него доски.
Установите ограждение площадки.
Смонтируйте и закрепите скат из половой доски и установите ограждающие борта.
Прикрепляют скат с полом площадки путем пазового скрепления.
Если скат останется деревянным, то тщательно отшлифуйте его уже после окончательной установки и только потом вскройте лаком или покрасьте.
Соберите и установите лестницу.
Именно этот чертеж установку крыши и нижней площадки не предполагал, но на реализованном проэкте они есть, дополнительно нижняя часть обшита и в ней обустроен игровой домик.
Также, при желании, такую базовую модель можно дополнить любой крышей, гамаком или песочницей внизу под площадкой.
Готовую конструкцию вскройте лаком или окрасьте.
Покрытие наносите не менее двух раз и с тщательной просушкой предыдущего слоя.
Не забывайте регулярно осматривать и своевременно чинить вашу деревянную горку, и она прослужит вам достаточно долго.
Детская горка: — фотогалерея
Поделиться статьей:
Статьи по теме Детская горка
Комментарии
Добавить комментарий
pro-remont.org

Детские уличные качели для дачи и особенности их конструкций. Виды качелей. Преимущества и недостатки конструкций из различных материалов. Правила создания детских качелей на загородном участке.
Яркая детская горка
Яркая детская горка
Яркая детская горка
Детская горка
Яркая детская горка