Дизайн типовых квартир (25 фото)
Антон Печёный руководитель студии дизайна
Для каждой эпохи характерны собственные черты, которые в первую очередь проявляются в строительстве многоэтажных жилых домов. Внешнее однообразие, идентичные планировки, использование одинакового строительного материала – вот, что отличает одну серию домов от другой. Несмотря на то, что большинство квартир в настоящее время родом из СССР, создать дизайн типовой квартиры можно таким образом, что он будет отвечать самым современным требованиям.

Имеющиеся в настоящее время типовые жилые дома по эпохе строительства можно разделить на несколько условных категорий. В каждой из них есть свои достоинства и недостатки, которые можно выигрышно подчеркнуть или, напротив, завуалировать, стоит лишь грамотно разработать интерьер типовой квартиры.

Первые типовые дома стали строиться в конце 30-х – начале 50-х годов прошлого столетия и получили название «Сталинки». Квартиры этого типа отличают высокие потолки (до 3,5 метров) и большие площади. Нередко встречались однокомнатные и двухкомнатные квартиры площадью до 50 м² и 70 м² соответственно, а площадь трехкомнатных и вовсе доходила до 85 м². К достоинствам этих домов относится также хорошие шумо- и теплоизоляция, в силу того, что строились они из кирпича.

Оформить интерьер типовой квартиры, причисляющейся к этой категории, не откажется ни один профессионал. Ведь какими бы смелыми не были идеи по дизайну типовой квартиры, воплотить их в жизнь не составит труда.

Конец 50-х годов ознаменовался возведением новых четырех- и пятиэтажных панельных и блочных домов, которые прозвали «Хрущевками». В это время страна остро нуждалась в массовом и недорогом строительстве жилья. Именно поэтому новые квартиры характеризовались невысокими потолками, маленькой кухней (до 6 м²) и совмещенными санузлами. Как правило площадь однокомнатных «Хрущевок» не превышала 30 м², двухкомнатные были не больше 43 м², а общая площадь трехкомнатных – в среднем 60 м².

Создавая органичный и функциональный дизайн типовой квартиры такой серии, приходится стараться. Чтобы хоть как-то увеличить пространство все чаще в «Хрущевках» прибегают к объединению гостиной и кухни и используют некоторые дизайнерские хитрости – отдают предпочтение светлым тонам, приобретают низкую мебель, играют со светом – все это позволяет визуально увеличить площадь помещения.

С середины 60-х годов прошлого века стали возводить девятиэтажные дома, а чуть позже появились и первые двенадцатиэтажки. Достоинствами этих квартир является продуманное расположение комнат и большие площади. Именно поэтому прозвали их квартирами улучшенной планировки. В народе же, по аналогии с предшествующими сериями, их называли «Брежневки», что не совсем справедливо ведь некоторые наиболее удачные проекты используют при строительстве домов даже в настоящее время. Профессиональный дизайн типовых квартир улучшенной планировки, разработанный с учетом требований владельца, позволит превратить стандартное помещение в оригинальное, со своей душой.

С начала 90-х годов XX века термин «дизайн типовых квартир» стал не так актуален, ведь все больше стали отходить от стандартных планировок, и эта тенденция сохранилась и по настоящее время. Каждый новый многоэтажный дом отличается от других. Квартиры в этих домах славятся большими площадями, индивидуальные планировки создаются исходя из требований покупателей, а в качестве отделочных материалов используются самые современные.
Именно с дизайном типовых квартир (если все же использовать это определение) такого вида сталкиваются профессионалы чаще всего. Претворить в жизнь в таких квартирах можно любые дизайнерские фантазии, ограничены они будут лишь пожеланиями хозяина и его возможностями.

Каждый владелец типовой квартиры мечтает превратить ее в особенную, уникальную. Забыть о том, что родом она из СССР и сделать ее современной и стильной. Какой бы невозможной казалась эта задача, приложив небольшие старания и включив воображение, можно создать интерьер типовой квартиры, который ни по каким параметрам не будет уступать оформлению современных «элиток».


Стоимость дизайн-проекта прямо сейчас!
Общая площадь, м2:
0
Объект:
Выберите…Комната1-к квартира2-к квартира3-к квартира4-к квартира5-к квартираТаунхаусКоттедж
1. Укажите площадь
2. Выберите тип объекта
3. Жмите! pechenyi.com
Типовые планировки квартир, серии и типы домов
Серии домов – это группы жилых зданий, полностью или почти полностью идентичных внутри каждой группы по внешнему виду, планировкам квартир, используемым при строительстве материалам. Планировки квартир в таких домах называются типовыми. Типы домов – объединения ряда серий по временному признаку (год разработки типового проекта) или материалу стен. Все типовые жилые дома можно условно разделить на пять периодов строительства.
Первый период, 1950-е года, именно в начале 1950-х появились первые “Сталинки”. Для хороших домов этого периода характерен высокий потолок, удобная планировка квартир, массивные кирпичные стены. Однако, возводились и многоквартирные дома с неудачными планировками для обычных граждан. Некоторые проекты сталинских домов строились и во Второй период Второй период охватывает промежуток времени с 1957 по 1962 год, в городах стало появляться огромное количество пятиэтажек, их стены чаще всего были панельными либо блочными. В народе дома прозвали сначала “Хрущёвками“, а затем и “Хрущобами” по аналогии с трущобами, ведь стеновые панели почти во всех сериях этих жилых домов были очень тонкими, потолки – низкими, а типовые планировки – неудачными.Третий период (1963 – середина 70-х годов) ознаменовался появлением сначала и девятиэтажных, а потом двенадцатиэтажных домов, которые отличались от пятиэтажек увеличенной этажностью, незначительно большей жилой площадью квартир и, зачастую, более удачным расположением комнат, в народе здания получили название “Брежневки“.Четвертый период (середина 70-х – начало 90-х) – время, кода стали возводиться “Поздние брежневки”, на основе Единого Каталога Строительных Деталей. Так называемые Поздние брежневки отличались большим, чем все предыдущие разнообразием, более удачными типовыми планировками квартир. Наиболее удачные серии Четвертого периода были модифицированы и возводятся в настоящее время.Пятый период (середина 90-х – настоящее время) отличается от всех предыдущих попыткой добавить типовым домам индивидуальные черты, появляются дома переменной этажности, комбинированные дома, планировки квартир в типовых домах становятся крайне просторными из-за принятия новых норм жилой площади на человека.tipdoma.com
Планировки квартир в типовых домах
Вариации планировок квартир на рынке недвижимости представлены в богатом ассортименте, из которых можно выбрать ту, что наиболее вам по душе.
Перечень серий зданий жилого типа не малый – это здания жилого назначения, которые объединены в одно типовое направление, имеющие сходство по планировке, внешнему виду и применяемым материалам.
По указанной причине, такие планировки в квартирах принято называть типовыми. Из этого следует, что типовые разновидности жилых зданий — это их совокупность, собранная в одну структуру исходя из серий, признаков принадлежности к конкретным материалам, применяемых при формировании стен, а также года, когда проект дома был разработан.
Дорогие читатели! Наши статьи рассказывают о типовых способах решения юридических вопросов, но каждый случай носит уникальный характер.+7 (499) 703-47-59
Москва, Московская область
+7 (812) 309-16-93
Санкт-Петербург, Ленинградская область
8 (800) 511-69-42
Федеральный номер (звонок бесплатный для всех регионов России)!
Планировки квартир в типовых домах 5 этажей
Когда во главе правления стоял Хрущев, был введен ряд новшеств, затронувших и вопрос с жилой недвижимостью. Он считал, что каждый гражданин должен покинуть ужаснейшие условия, имеющиеся в коммуналках, и переселиться в свое собственное жилье, где жители будут чувствовать себя намного комфортнее.
Это повлекло утверждение активной программы по внедрению целой серии застроек микрорайонов абсолютно идентичными типовыми пятиэтажными домами. Эти кирпичные дома стали называть хрущевками. Сейчас, естественно, планировка в них по современным взглядам может вызвать разве что поверхностный сарказм, но к тому времени, это жилье считалось роскошным.
На фото можно увидеть подобный типовой дом – хрущевку.

Особенность домов
Наглядная планировка жилья того времени.

Многим она близко знакома. Планировка здесь представлена низкими потолками высотой от 2,5 до 2,6 метров, смежными комнатами, совмещенным санузлом, сидячей ванной и прохожей комнатой, где едва ли смогут разойтись двое человек.
Уже на пороге такой квартиры, с легкостью можно отнести ее к этому типу. Возводили такой тип зданий до самой середины восьмидесятых. Кое-где можно было встретить дома на 8 или 9 этажей, несколько иной планировки, престижного класса, однако, все из той же серии.
Большая часть из таких строений едва ли уцелела до наших времен, будучи признанными аварийными. Такие дома до сих пор планомерно сносятся, однако, и среди этих исполинов можно встретить довольно неплохие экземпляры, сохранность которых может удивить. В возведении некоторых домов использовали бетонные блоки, но большая часть строилась из кирпичей.
Эта серия может похвастать экземплярами с более высококлассной планировкой. Прежде всего, это относится к серии I-528, которая может гордиться своими крепко сложенными стенами и довольно высоким уровнем потолка (в 2,7 метра). Славилась она и на совесть установленными оконными рамами, и столь же надежным паркетным полом.
Меньшей респектабельностью обладает серия I-335, где стены несущего назначения обильно утеплены минватой, а вот изоляция перегородок хромает. Толщина их, как порой кажется, достигает пары сантиметров. Тут уж, как говорится, «все на слуху». Также минусом является спаренный санузел и очень небольшой балкончик. В некоторых случаях, последнего и вовсе не было.
Дома того времени, относящиеся к другим сериям

Здесь можно увидеть всем знакомую Брежневку.
Появление брежневок датируется 70 годами, при Брежневском застое. В это время и возникла программа нового направления, цель которой было внедрить дома обновленной планировки в 5 этажей.
Это кирпичные здания. Множество стало называть их усовершенствованными хрущевками, поскольку кухня стала несколько просторней, в прихожей теперь не было тесноты, а уровень потолков заметно прибавил в росте, достигнув идеальных 2,7 метра.
Множество таких домов имело свои лифты и встроенные мусоропроводы, что существенно повышало уровень удобства жильцов. Были дома и панельного типа, однако, кирпич остался излюбленным стройматериалом. Здесь были внушительные лоджии, кладовые и комнаты раздельного размещения.
Дома, отнесенные к поздней эпохе, возводились с конца восьмидесятых годов и по сей день. Разнообразие проектов настолько велико, что шансов попасть на две похожие квартиры практически нет.
Планировки квартир в типовых домах 9 этажей
Дома возводились с начала шестидесятых годов:
- На 9 этажей;
- Стены возведены из кирпича и панелей;
- Материал перекрытий – железобетон;
- Наружное выполнение отличительно строгостью стиля, отсутствием фасадных украшений, часто в кирпичных вариациях, дома обкладывают кафелем, панельные же имеют выносные лифты;
- Количество парадных подъездов — от 3 до 5.
Характеристика квартир:
- Квартиры, размещенные в таких домах, имеют от 1 до 3 комнат;
- На первых этажах размещаются от 3 до 4 квартир;
- Касательно планировки комнат, в 95% случаев в наличии смежные квартиры;
- Потолки высотой до 2,55 метра;
- Пол устлан паркетом;
- В наличии газовая плита;
- Есть один лифт;
- Нет мусоропровода;
- Площадь технического этажа небольшая или же его и вовсе нет;
- Санузлы часто смежного типа;
- Квадратура квартир разная, большей частью небольшая. Это говорит о том, что аренда жилплощади и ее реализация довольно дешевая.
Во времена, когда такое жилье только начали строить, строительные работы проходили в рекордные сроки. Это было связано с постановкой руководством государства цели – строить быстрее, чтобы как можно больше людей было обеспечено крышей над головой. И этой цели достигли. Цена таким достижениям – качество и удобство планировки.
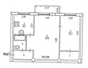
Квартиры с одной комнатой могут быть с такими площадями: от 28 до 32 квадратов общей площади, от 15 до 19 жилой, 6 квадратом кухни, стены, выполненные из кирпича, панели, перекрытия из железобетона, комнаты в большинстве своем смежные.
Схема планировки квартиры с одной комнатой, первый тип

Схема планировки квартиры с одной комнатой, второй тип

Схема планировки квартиры с одной комнатой, третий тип

Схема планировки квартиры с одной комнатой, четвертый тип

Схема планировки квартиры с одной комнатой в панельном доме, первый тип

Квартиры на две комнаты подобных планировок можно встретить с такими параметрами площади: общей в 40-46 кв.м., жилой 26-30 кв.м. и кухней в 6 кв. м.
Схема планировки квартиры с двумя комнатами, первый тип

Схема планировки квартиры с двумя комнатами, второй тип

Схема планировки квартиры с двумя комнатами, третий тип

Схема планировки квартиры с двумя комнатами, четвертый тип

Схема планировки квартиры с двумя комнатами, пятый тип

Схема планировки квартиры с двумя комнатами, шестой тип

Схема планировки квартиры с двумя комнатами, седьмой тип

Схема планировки квартиры с двумя комнатами, восьмой тип

Схема планировки квартиры на две комнаты в панельном доме, первый тип

Схема планировки квартиры на две комнаты в панельном доме, второй тип

Схема планировки квартиры на две комнаты в панельном доме, третий тип

Схема планировки квартиры на две комнаты в панельном доме, четвертый тип

Квартиры на три комнаты с подобной планировкой можно встретить с площадью общей от 54 до 59 кв.м., жилой от 39 до 45 кв.м. и кухни 6 кв.м.
Схема планировки квартиры на три комнаты, первый тип

Схема планировки квартиры на три комнаты, второй тип

Схема планировки квартиры на три комнаты, третий тип

Схема планировки квартиры на три комнаты, четвертый тип

Схема планировки квартиры на три комнаты в панельном доме, первый тип

Если вы хотите узнать, как решить именно Вашу проблему — обращайтесь в форму онлайн-консультанта справа. Это быстро и бесплатно! Или позвоните нам по телефонам:
+7 (499) 703-47-59
Москва, Московская область
+7 (812) 309-16-93
Санкт-Петербург, Ленинградская область
8 (800) 511-69-42
Федеральный номер (звонок бесплатный для всех регионов России)!
o-nedvizhke.ru
Типовые планировки квартир кирпичного дома: сталинки, хрущевки, чешки
Часто проводится перепланировка в кирпичном доме, при которой важно учесть тип квартиры, количество комнат и другие нюансы. Стоит знать каких годов кирпичное жилье, чем оно старее, тем хуже схема планировки. Многие сходятся на мнении, что квартиры кирпичной постройки уступают типовым и улучшенным типовым моделям. Планировка также зависит от этажности здания и иных особенностей. Не всегда жилые площади удобные и функциональные, особенно в многоквартирных домах.

Типовые планировки квартир в кирпичном доме, учитывая серии
Как обустроены «сталинки»?
Чаще приобретается 2-комнатная квартира, отличающаяся многообразной планировкой. Нередко наблюдается коридорное узкое помещение, начинающееся от входа. В других типовых планировках «сталинки» прихожая сразу переходит в просторный холл. Комнаты одинакового размера или разногабаритные — маленькая и большая. Такие квартиры в кирпичном доме отличаются сравнительной просторностью, наименьшая составляет 50 кв. м. Такие постройки 50-го года XX века. Дальнейшее строительство подобной серии домов не считается типовым, поскольку каждое новое жилище утверждалось по индивидуальному плану. В таблице представлены преимущества и недостатки планировки квартир в «сталинке».
| Плюсы | Минусы |
|
|
Схема «хрущевок»
Такие типы построек представляют собой кирпичные 5-этажные многоквартирные дома, которые строились в 60—80-хх годах ХХ века.
В таких квартирах есть проходная комната и все помещения достаточно маленькие.Отличаются неплохим качеством. Нередко покупатели отдают предпочтение квартирам в «хрущевке», нежели в монолитном доме за счет кирпичных стен. Одним минусом является плохой план жилой площади: жилые помещения небольшие, компактные, кухня маленькая. Типовая планировка «хрущевок» отличается тем, что в большинстве квартир проходная комната. Не редкость в таких кирпичных жилых зданиях — совмещенные ванная комната и туалет. Подобные дома строились быстро, что сказалось на качестве. В 5-этажных зданиях лифт и мусоропровод отсутствует, в 9-этажках эти пункты уже присутствуют.
Вернуться к оглавлениюПланировка «чешки»
Особенностью такого многоквартирного дома является большое количество длинных балконов, которые заполняют весь фасад постройки. Также некоторые виды таких зданий имеют балконы, расположенные в «шахматном порядке». Кирпичные дома 9-этажные, при этом технический этаж не предусмотрен. Во всех «чешках» проведен газ и есть один пассажирский лифт. Люди предпочитают селиться в таком доме, поскольку есть разные схемы планировок, многие из которых неплохие. В таблице представлены распространенные квадратуры «чешек».
| Количество комнат | Площадь, м | ||
| Общая | Жилая | Кухня | |
| 1 | 32 | 18 | 6 |
| 40 | 19 | 8 | |
| 2 | 46 | 31 | 6 |
| 48 | 31 | 7 | |
| 50—55 | 33—34 | 8 | |
| 3 | 61 | 42 | 7 |
| 72—76 | 48 | 8 | |
| 4 | 77 | 53 | 7 |
Серия «стекляшка»
В такой квартире комнаты небольшие, но смежные, и маленькая кухня.Перепланировка 3х комнатной квартиры в таком кирпичном здании удобнее, при этом практически отсутствуют проходные помещения. Такой многоквартирный дом выстраивается в 9 и более этажей, в нем есть лифт. Все квартиры имеют балкон, в том числе угловые и расположенные внизу. В однокомнатных квартирах в кирпичном доме большим преимуществом служит лоджия площадью 8—9 метров. Преимуществами таким планировок являются:
- малое количество квартир на одном этаже — не более 4;
- лифт;
- отдельная ванная комната и туалет.
Вернуться к оглавлениюПроекты «стекляшек» не всем подходят, поскольку в таких кирпичных домах низкие потолки и небольшие кухоньки.
Серия «87»
Проекты таких домов из кирпича сходны с жилыми зданиями 96-го типа (прямые наследники «хрущевки»), поскольку имеют одинаковую планировку. Отличия в том, что при строительстве первых использовался красный либо силикатный кирпич. Площадь таких квартир больше, в среднем большая комната занимает около 18 кв. м., а маленькая — 12 кв. м. В каждой квартире балкон с двумя или одним выходом с большой комнаты. У кирпичных домой 87 серии есть такие плюсы:
Такие квартиры очень похожи на те, что строились в домах 96 типа.- гипсовые перегородки между комнатами, что позволяет без проблем проводит перепланировку;
- просторный холл и балкон;
- большое кухонное помещение;
- раздельные туалет и ванная комната.
Планировки в «совмине»
После 87 серии создали современнее дом, в котором проживали исключительно творческая элита и управители. В народе принято именовать «совминами» все дома, выстроенные из красного кирпича. Проекты таких зданий разнообразны, и разрабатывались индивидуально в зависимости от архитектурного проекта. Типичная планировка присутствует лишь в серийных кирпичных «совминах». Особенностями таких зданий являются:
- Просторное помещение.
- Большая площадь кухни — не менее 9 кв. м.
- Раздельные комнаты. Размеры самой маленькой составляют 15 кв. м.
- Лоджия с выходом в кухонное помещение.
- Большой квадратный холл или длинный коридор.
- Просторное парадное помещение с местом для консьержа.
«Башня Вулыха»
Такое название получили кирпичные дома, этажность которых составляет 14 этажей. Лифт и лестницы расположены посередине здания. Различается и количество квартир на этаже — до 8, что больше, нежели в типовых «совминах». Метраж квартиры в «башне Вулыха» также отличается, он меньше. Комната с нишей неправильной формы. Преимущества планировки — раздельные санузлы и просторные комнаты.
Вернуться к оглавлениюКакие лучше?
Рекомендуется приобретать жилье в монолитно-кирпичном доме, поскольку в таких зданиях планировки лучше продуманы и комнаты просторнее. Отдавайте предпочтение планировкам с маленьким балконом или чтобы он был большим, но разделен на 2 части и с двумя входами. Обращайте внимание на формы помещения, чем оно не стандартнее, тем сложнее будет удобно расставить мебель. В «хрущевках» рекомендуется выбирать квартиры пониже, поскольку в летнее время в выше расположенных помещениях жарко.
etokirpichi.ru
Типовые варианты перепланировки квартир — Комплекс градостроительной политики и строительства города Москвы
|
Большую часть жилищного фонда Москвы составляют дома типовых застроек. В настоящее время очень многие жители этих домов хотят перепланировать свою квартиру. Однако зачастую сделать это очень сложно ввиду существующих ограничений (в том числе связанных с безопасностью всех проживающих в доме). Созданный каталог позволит сократить как временные, так и материальные затраты жильцов на разработку проекта перепланировки и его регистрацию. |
При составлении каталога были учтены существующие конструктивные, технологические и санитарно-гигиенические ограничения.
Кроме того, в документе определены недопустимые виды перепланировок, среди которых:
- демонтаж вентиляционных коробов,
- перенос стояков инженерных коммуникаций,
- снос несущих стен помещений,
- расширение санузлов за счет площади кухни или комнаты,
- устройство проемов в несущих стенах (при отсутствии тщательного обследования, обоснования переустройства и инженерных расчетов).
Большинство перепланировок в каталоге предусматривает увеличение санузлов за счет площади коридора, что, в свою очередь, требует разработки проекта. Проект необходимо выполнять на основе технического заключения. Так что без осмотра квартиры специалистом Мосжилинспекции проект разработать невозможно.

Предложенные в каталоге варианты не позволяют затрагивать несущие и внешние стены здания. Исключение составляют некоторые модификации домов типовых серий П44Т и П44М, в которых, начиная с 2007 года, в несущих стенах предусмотрены проемы (в Москве перепланировка квартир осуществляется в зависимости от конкретной серии дома).

Каталог не дает права выполнять перепланировку, а лишь представляет собой варианты, которые можно узаконить, обратившись в Мосжилинспекцию, получить разрешение и приступить к выполнению работ.
При перепланировке и переустройстве всегда есть нюансы. Некоторые варианты допустимы только на последних этажах жилого дома, а некоторые – только на первых.
Наша справка
Каталог разработан ГУП МНИИТЭП — подведомственной организацией Департамента градостроительной политики города Москвы. ГУП МНИИТЭП является автором большинства серий типовых панельных домов.
stroi.mos.ru
Планировка 3 комнатной квартиры: 105 фото самых уникальных идей
Среди современного жилья весьма популярной недвижимостью является 3-комнатная квартира. В зависимости от того, когда было возведено здание и какая у него серия зависит планировка квартир.
Можно сказать, что каждая квартира уникальна, имеющаяся в ней планировка кого-то устраивает, а кого-то нет. Тогда встает вопрос о перепланировке жилой площади. Необходимо детально разобраться в этом вопросе.

Краткое содержимое обзора:
Типичная 3-комнатная планировка
В типовой 3-комнатной квартире жилое пространство распределено различным образом, причем некоторые варианты весьма удобны, другие способны доставить дискомфорт.

Существует вариант с двумя маленькими и одной большой комнатой, с одной комнатой изолированного типа и двумя смежными помещениями. Есть так называемая схема «самолет», когда окна комнат выходят на разные стороны дома.
Оптимальными считаются квартиры с изолированными комнатами. В стандартном типе квартиры с тремя комнатами присутствует кладовое помещение, которое, по мнению многих дизайнеров, можно переоборудовать под гардероб.

Если в семье есть дети, то распределение помещений имеет смысл сделать следующим: одну комнату отвести под детскую, одну оставить для спальни, а большую отдать гостиной. Во многих 3-комнатных квартирах присутствует раздельный санузел, они максимально удалены от лестницы и лифта, площадь составляет от 56 до 80 кв. м.

Разнообразие планировок
Выделяют несколько типов планировок в соответствии с видами домов: «сталинки», «хрущевки», «брежневки» и современные варианты.

Сталинка
«Сталинки» строились в начале 50-х годов. Планировка в кирпичных домах этого типа демонстрировала едва ли не лучшее жилье в Союзе.

Высокие потолки, достигавшие трех метров, изолированные комнаты с удобным расположением, раздельный санузел – свидетельства продуманности жилого пространства.

В квартирах могли поселиться рядовые граждане и номенклатурные работники, причем планировка помещений для последних отличалась повышенным комфортом. Внутреннее убранство квартир госслужащих могло похвастаться просторным холлом и арочными проемами, в домах имелись помещения для прислуги.
Хрущевка
«Хрущевки» возводились с конца 50-х до середины 80-х годов (с учетом доработок и появления новых модификаций). Ранние версии домов имели не очень удачное расположение комнат, толщина панельных стен не обеспечивала качественной теплоизоляции, потолки были невысокими, совмещенным делался санузел. Кухня, как правило, была небольшой площади.

Примерно с 1970 года развернулось широкомасштабное строительство 9-этажек из кирпича или панелей. Потолки в новых квартирах располагались на уровне 2,64 м., а внутренние перегородки не несли на себе общую нагрузку. Именно поэтому в таких домах перепланировка 3-комнатной квартиры была обычным явлением.

Брежневка
«Брежневки» считались улучшенным вариантом «хрущевок». Квартиры были средних размеров, встречались раздельные санузлы. Под кухонным окном обустраивалась ниша для хранения продуктов, имелись антресоли. Кухня была больше – от 7 до 9 кв. м.

Современные варианты могут похвастаться улучшенной планировкой, наличием нескольких санузлов. Расположение комнат по схеме «самолет» или группировка так называемым «вагончиком» – часто встречающиеся планировки.

Элитные квартиры представляют собой самое комфортное жилое пространство, спроектированное таким образом, чтобы удовлетворить все потребности человека.

Расположение комнат определяется предпочтениями заказчика, количество санузлов приравнено к количеству комнат, есть отдельные гардеробные, просторные кухни-студии и т.д.

Нюансы планировки трехкомнатной квартиры
Может быть несколько видов планировки. Открытой обладают квартиры-студии. Их можно получить путем переделки, убрав внутренние перегородки и получив большее пространство. Затем его делят на соответствующие зоны, которым присущ собственный дизайн. Закрытая планировка подразумевает изолированность всех комнат, от коридора их будет отделять дверь.
Частично-закрытый тип планировки представляет собой тандем открытого пространства, например, гостиной и закрытого с изолированными комнатами. Их соединяет небольшой по размеру холл.

При смежной планировке выход в коридор имеется у одной из комнат, другие соединены с ней при помощи дверей или оставлен свободным проход. Наконец, сочетание помещений смежного и изолированного типов дают смешанную планировку.

Отдельно стоит обозначить серьезную архитектурную проблему современного строительства. Речь идет о необходимости «вписывать» планировку помещений в иногда чересчур изысканное наружное оформление зданий.

К примеру, на фото планировки 3-комнатных квартир в глаза бросается не оптимальное обустройство жилья, когда тупые или острые углы мешают установке мебели, изогнутые стены создают трудности их обыгрывания в интерьере.

Выбор жилья: как оценить планировку
Решив приобрести 3-комнатную квартиру, необходимо узнать о том, какие существуют критерии оценки приобретаемой площади. Во-первых, стоит сделать акцент на планировке, для чего учесть общую площадь, то, как располагаются комнаты, форму и размеры кухни.

Также важно знать количество окон в квартире. Еще одним важным пунктом будет наличие или отсутствие балкона (лоджии), их количество и размеры.

Необходимо учесть, какие комнаты являются изолированными, какие стены несут нагрузку, какова толщина стеновой панели, железобетонной конструкции или кирпичной кладки и высота потолков.

Кроме того, немаловажным фактором является расстояние от квартиры до лифта (в случае его наличия), лестницы и мусоропровода. Стоит также просчитать соотношение общей и жилой площади, осведомиться насчет инфраструктуры в районе.

Плюсы трехкомнатной квартиры современного типа
Чтобы уяснить существенные отличия планировки квартир в современных монолитных железобетонных домах от планировки в панельном доме, сравним первые с квартирами «хрущевского» типа. Бесспорно, что бурно развивающееся строительство жилья оказало влияние на качество получаемых помещений.
Сегодня проходные комнаты едва ли можно обнаружить в новостройках. Там, где стена комнаты составляет угол дома, делается качественное утепление, препятствующее образованию сырости.

По площади значительно увеличиваются кухня и ванная комната. Высота потолков составляет 3 м. Кроме того, всегда есть свободное пространство, в котором можно создать функциональную зону.

Все вышесказанное говорит об удобстве и рациональной планировке современного жилья. Оно прекрасно подойдет любой семье, в том числе и с детьми.

Когда квартира с искомой планировкой не попадается в поле зрения, не стоит отчаиваться. Нужно самим попытаться проделать все необходимые работы, благо идей современной планировки квартир на просторах сети можно найти массу.

Существуют общепринятые правила планировки. Сначала выбирается помещение и определяется его дальнейшая функция – это может быть спальня, гостиная со спальным местом, сочетание с рабочим кабинетом. После этого оставшееся пространство делиться на зоны, которые как-то обозначаются.

Фото планировки 3 комнатной квартиры






























dizainmetrov.ru
Планировка трехкомнатной квартиры с размерами и схемами расположения комнат
В современном жилищном строительстве, при котором происходит стабильная глобальная застройка, предоставлен довольно-таки широкий выбор квартир с различными вариантами планировок. Квартиры с огромными лоджиями и десятиметровыми кухнями, с двумя санузлами и эркерами, квартиры элитного класса и даже двухэтажные – каждый человек может подобрать что-то на свой вкус и предпочтения. Одним из самых популярных вариантов является планировка трёхкомнатной квартиры для больших семей.
Идеальным «исходным материалом» можно назвать трёхкомнатные квартиры свободной планировки в новостройках, которые представляют собой стильное и комфортное жильё. В квартирах площадью не меньше 130 кв. м места хватит и взрослым и детям. При грамотно спланированных зонах домочадцам разных возрастных категорий, с разными привычками и темпераментом не придётся мешаться друг другу, благодаря чему все будут находиться в нестеснённых условиях.
План трёхкомнатной квартиры 130 кв. м с размерами комнатНедвижимость бизнес класса включает в себя не только большую общую площадь с высокими трёхметровыми потолками, но и несколько санузлов (как минимум два). Разберём конкретные примеры максимального использования достоинств новостройки.
Вернуться к оглавлениюСодержание материала
Планировка трёхкомнатных квартир в новостройках
В новостройке санузел находится по соседству с маленькой комнатой, поэтому эффективнее и целесообразнее сделать спальню именно в этой комнате. Только необходимо решить: что будет центром при планировке в данной комнате. Будет ли это шкаф-купе или место для сна? Помимо этого, вас может озадачить вопрос о системе хранения. Если системе хранения найдётся место в гостиной, то в спальной комнате царствующее положение займёт кровать.
План трёхкомнатной квартиры в новостройкахПреимуществом нового типа домов является, безусловно, большая площадь. Кроме этого, в квартире имеется и балкон, который может послужить вам рабочим кабинетом. В квартирах свободной планировки большим плюсом является то, что можно свободно обустроить пространство. В спальной комнате поместятся не только стандартная двуспальная кровать и шкаф, но и другая функциональная мебель. Можно дать волю своей фантазии и проявить свои дизайнерские способности в обустройстве.
Любителям необычных спален следует обратить внимание на круглую кровать. Она, конечно, требует чуть больше места, чем стандартная прямоугольная модель, но очень выигрышно смотрится в любой комнате. В спальне нет необходимости использовать дополнительный декор, так как главной достопримечательностью является само ложе.
Для поддержания общей атмосферы на помощь придет необычное освещение, либо потолочный гипсокартонный круг. Кроме этого, можно занавесить кровать красивым, дизайнерским балдахином.
Спальня с круглой кроватьюВернуться к оглавлениюДизайн-проект и план трёхкомнатной квартиры для семьи с детьми
Дизайн трёхкомнатной квартиры изготавливается в соответствии с требованиями обладателей жилья: функциональное оформление пространства светлых оттенков, с присутствием точечных цветовых акцентов без каких-либо излишеств.
Дизайн квартиры с детьми желательно делать в светлых тонахПо характеру такой интерьер должен быть очень сдержанным и спокойным, но вместе с тем уютным благодаря натуральным материалам. Детские комнаты нужно выполнить с учётом индивидуальных потребностей детей. Обстановка должна соответствовать их возрасту.

Преимущества современной планировки квартир
К стандартной планировке квартир ХХ века с двумя комнатами можно отнести проходной вид. Большая комната располагалась рядом с вместительной кладовкой, в которой был выход в спальную комнату.
Смежная планировка двух комнатВ то время многим домашним умельцам приходилось увеличивать жилое пространство, за счет «сноса» кладовки и сооружения новой стены. Таким способом отгораживалась часть зала, и получались две разные комнаты. Однако такой приём способствовал появлению длинного тёмного коридора, но всё-таки иметь раздельные комнаты было приоритетнее эстетики.
Изменение планировкиОтличие современной планировки трёхкомнатной квартиры от квартир, построенных в середине прошлого века, заключается в том, что ванные комнаты с туалетами стали теперь раздельными, как и сами жилые комнаты. Увеличились по площади кухни, ванные. В трёхкомнатных квартирах, почти во всех, появились балконы или вместительные лоджии.
Современная планировка трёхкомнатной квартирыГотовая квартира сегодня – это ещё не конечный результат. Время вносит свои коррективы. Появилось много опытных дизайнеров предлагающих свои услуги в планировке, дизайне интерьера, которые могут при своеобразных, несложных приёмах увеличить или уменьшить площадь жилья, разделить по зонам комнаты с целью их функциональности.
На сегодняшний день планировки квартир в новостройках весьма рациональны и удобны. Четырёх- и пятикомнатные квартиры стали строиться с большей площадью. Потолки тоже заметно «выросли» — от традиционных 2,5 м они увеличились до 3-х м. Появились квартиры с проектами по индивидуальным планировкам и квартиры-студии.
Двухуровневые трёхкомнатные квартирыКвартиры-студии вошли в моду и очень востребованы в современном строительстве. В них почти отсутствуют внутренние стены, а кухня совмещена с большой комнатой. Есть и такие студии, которые состоят только из одного большого помещения с перегородкой для санузла и ванной.
Если вам не удалось найти квартиру с понравившейся планировкой, не стоит расстраиваться. Можно самим попытаться всё это сделать. Есть универсальные правила по планированию, в том числе и спальни. Для начала нужно выбрать помещение и определить его функцию: будет ли это только спальня, гостиная-спальня или же спальня и рабочий кабинет. Затем поделить пространство по основным зонам и как-то их обозначить.
Малогабаритные квартиры зонируются исключительно по цвету и материалам. Квартиры нового типа органично смотрятся, когда в работе применяются такие материалы как гипсокартон, стекло, пластик, текстиль. Также к зонирующему варианту относятся «японские» шторы.
На этом видео можете посмотреть на пример дизайна интерьера трёхкомнатной квартиры.
proekt-sam.ru

Планировки квартир в типовых домах 9 этажей