Дизайн маленьких квартир: 8 оригинальных идей
Наверх Перепланировки- Каталог домов
- Квартира
- Спальня
- Кухня
- Столовая
- Гостиная
- Ванная комната, санузел
- Прихожая
- Детская
- Мансарда
- Маленькие комнаты
- Рабочее место
- Гардеробная
- Библиотека
- Декорирование
- Мебель
- Аксессуары
- Загородный дом
- Ландшафт
- Системы хранения
- Коридор
- Уборка
- Фундамент
- Кровля
- Стены
- Окна
- Двери и перегородки
- Потолок
- Балконы и лоджии
- Внутренние конструкции
- Пол
- Водоснабжение и канализация
- Отопление
- Вентиляция и кондиционирование
- Газо- и энергоснабжение
- Освещение
- Сантехническое оборудование
- Безопасность и домашняя автоматика
- Бани, сауны, бассейны
- Строительные материалы
- Отделочные материалы
- Инструменты
- Техника
- Законы и финансы
- Журнал
- Новости
- События
Форум
www.ivd.ru
Дизайн маленьких квартир (25 фото)
Антон Печёный руководитель студии дизайна
Казалось бы, для чего вообще строят многоэтажные дома, квартиры в которых не отличаются большой площадью? На самом деле есть этому объяснение. Застройщик при одинаковых расходах может заработать в разы больше, а у желающего обзавестись собственным уголком наконец-таки появится возможность осуществить свою мечту, ведь жилье малых площадей стоит дешевле, чем просторные квартиры.
Отделочные материалы

После того, как жилье было куплено, перед владельцем ставится новая цель – сделать маленькую квартиру функциональной и визуально добавить ей пару-тройку квадратных метров, чтобы в ней было комфортно жить и встречать гостей. Эргономичный и привлекательный дизайн маленьких квартир – задача трудная, но ее можно решить. Необходимо лишь знать несколько приемов.

Самым распространенным способом увеличить пространство считается объединение гостиной с кухней. Этот прием используется сегодня в дизайне маленьких квартир повсеместно. Однако прежде чем сносить стены, убедитесь, что они не несущие, иначе вы можете навредить конструкции всего дома.
Отделочные материалы

Некоторые, создавая интерьер маленькой комнаты, даже не догадываются, что визуально увеличить помещение можно правильно подобрав отделочные материалы.

Оптимальным решением станет окрасить стены эмульсией или обклеить их обоями с не слишком ярким рисунком. Что касается напольного покрытия, то нередко дизайнеры, разрабатывая дизайн маленькой квартиры, советуют использовать во всех комнатах одинаковое, как по цвету, так и по фактуре.
Цвет

Еще один вариант того, как визуально добавить несколько квадратных метров помещению – это использовать в дизайне маленькой квартиры светлые оттенки.

Не отказывайтесь от идеи выкрасить стены в белый цвет и положить светлое напольное покрытие. Комната не будет похожа на больничную палату, чего многие страшатся, если вы добавите яркие цветовые акценты.
Освещение

В маленькой комнате должно быть много света. Поэтому проектируя дизайн маленькой квартиры, не ограничивайтесь основным источником света, организовывайте подсветки, добавляйте световые точки. На окна повесьте воздушный тюль или и вовсе не занавешивайте их, обеспечив солнечным лучам беспроблемный доступ. Светлая комната, площадью даже 10 квадратных метров выглядит, чем недостаточно освещенная 20-квадратная.
Мебель

Разрабатывая дизайн маленькой квартиры, многие чаще задаются вопросом «Как расставить мебель?» вместо того, чтобы поинтересоваться (что более резонно): «Какую мебель выбрать?».

В интерьер маленькой комнаты наиболее органично впишется низкая мебель с открытыми спинками – свет, проникающий сквозь них, сделает помещение воздушнее. Уместно использовать стеклянные столы. Их поверхность будет отражать лучи света, что визуально увеличит комнату. По этой же причине следует выбирать мебель с глянцевыми фасадами.
Аксессуары

Несомненно, яркие аксессуары придают помещению завершенность, делают его уютнее. Однако разрабатывая интерьер маленькой комнаты, злоупотребление подобными вещицами может навредить. Привлекая к себе внимание, каждый аксессуар будет «красть» по несколько квадратных сантиметров.
Обойтись вовсе без аксессуаров нельзя, поэтому пусть он будет один, но солидный. Например, интересная картина на стене, шикарный торшер в углу комнаты, привлекательная ваза.

Создать грамотный и продуманный до мелочей дизайн маленькой квартиры – задача трудная, но посильная. Следуя предложенным рекомендациям можно организовать такой интерьер маленькой комнаты, который не только будет радовать глаз, но и сделает жизнь комфортной.


Стоимость дизайн-проекта прямо сейчас!
Общая площадь, м2:
0
Объект:
Выберите…Комната1-к квартира2-к квартира3-к квартира4-к квартира5-к квартираТаунхаусКоттедж
1. Укажите площадь
2. Выберите тип объекта
3. Жмите!
Ещё подборки интерьеров
Кухня-гостиная
(100+ фото)
Кухня
(50+ фото)
Спальня
(100+ фото)
pechenyi.com
10 золотых правил дизайна маленькой квартиры — INMYROOM
Успешный российский дизайнер и декоратор Анна Муравина признается, что до недавних пор заниматься дизайном малогабариток ей не приходилось. Все изменилось, когда Анна купила обычную маленькую квартиру и затеяла в ней грандиозную переделку.
1. Начните с планировки
Часто решить задачу просто красивым декорированием невозможно – необходимо тщательно проработать планировку квартиры. Самое главное – определиться с функциями пространства.
Как правило, количество функций зависит от количества проживающих людей. То есть для одного человека и для семьи из трех-четырех – это совершенно разные задачи, и вторая намного сложнее.
Планировка проекта: Анна Муравина
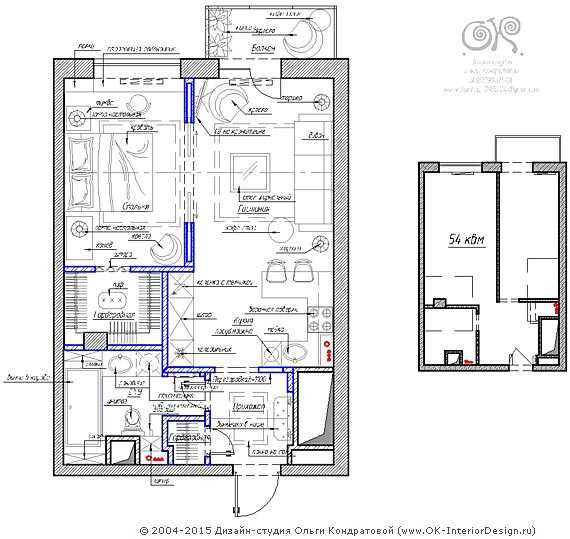
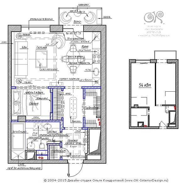
Моя маленькая квартира в Геленджике представляла собой крошечную прихожую и две комнаты-вагончика. Предполагалось, что в одной разместится кухня, в другой – спальня. С планировкой я возилась очень долго, стараясь учесть каждый сантиметр площади. Посмотрите на новый план этой квартиры: на 52 квадратных метрах мне удалось найти место для спальни, гостиной-столовой-кухни, большой ванной комнаты и кладовки-гардеробной.
Конечно, все перегородки были ненесущими, поэтому согласовать перепланировку не составило труда.
2. Работайте с цветом
Поверьте, покраска потолка в белый, контрастный к стенам цвет не решит ваших проблем: он не станет казаться выше – это все сказки.
В маленьких пространствах особенно ценится мастерство дизайнера по созданию иллюзий. Попробуйте выкрасить потолок в один цвет со стенами – вы в буквальном смысле сотрете границы и сделаете пространство визуально больше.
Чтобы совсем забыть о высоте потолка, попробуйте внести контрастный акцент – изящный кант по периметру потолка.
Можно пойти дальше и покрасить в цвет стен двери – в результате получим идеальный фон для предметов и опять-таки визуально увеличим размер помещения.
Еще одно остроумное решение – выкрасить в один тон со стеной мебель. Посмотрите, как здорово работает этот прием в маленькой парижской квартире: мебель буквально растворилась в интерьере.
Дизайн квартиры площадью 19 квадратных метров
4. Отделка – тоже важна
Другой простой, но беспроигрышный способ сделать маленькую квартиру визуально больше – использовать одно напольное покрытие для всей квартиры.
Если вы хотите в комнате постелить паркет, а в прихожей, к примеру, плитку или камень, проследите, чтобы их цвет совпадал по тональности.
5. Продумывайте места для хранения на этапе проектирования
В маленьких квартирах идеально (хоть и не бюджетно) сделать максимальное количество встроенной мебели и разместить всего несколько отдельностоящих предметов, интересных и уникальных.
И не забывайте про кровати с подъемным механизмом: на мой взгляд, это отличное дополнительное место для хранения.
6. Используйте больше зеркал
Зеркала отлично работают в любом пространстве, но в маленьком они просто необходимы.
Кроме обычных зеркал, бывают состаренные – они отлично справляются с разными дополнительными функциями. В своей квартире в Геленджике я сделала в ванной целую стену из состаренного зеркала. Смотрится эффектно и не боится капель воды – из-за неоднородности покрытия их попросту не видно.
Такое же зеркало я поставила на кухню в качестве фартука. И это тоже очень функциональное решение.
Дизайн: Анна Муравина
Еще один из моих любимых приемов – зеркало на зеркале и бра на зеркале. Реализовать такую задачу очень просто!
Дизайн: Анна Муравина
Помните про зеркальную мебель или мебель с зеркальными вставками? Некоторые предметы из придуманных нашей студией для частных проектов нам так приглянулись, что мы запустили их в производство. Например, тумбочки и комоды двух размеров с зеркальными вставками – их мы производим теперь в любом цвете и шпоне.
Дизайнер Анна Муравина
7. Освещение должно быть разнообразным
Свет – один из инструментов создания иллюзий, поэтому архиважно, чтобы в маленькой квартире было несколько сценариев освещения.
Настольные светильники, торшеры, бра – переборщить с источниками света в маленькой квартире крайне сложно. Единственное, чего следует опасаться – одинокой люстры в спальне: абсолютно ненужная вещь, на мой взгляд.
8. Покупайте многофункциональную мебель
Пусть пуфик около дивана служит и местом для сидения, и столиком для подноса с чаем, а обеденный стол легко превращается в рабочий.
И смелей используйте сундуки: этот предмет мебели может превращаться и в диванчик, и в журнальный столик – в зависимости от задачи.
9. Не забывайте про фактуры
Блестящее и матовое, гладкое и шероховатое, кожа и мех – чем разнообразнее используемые вами материалы, тем эффектнее будет результат. И тем интереснее будет рассматривать детали, не задумываясь о размере помещения.
10. Не увлекайтесь мелкими предметами мебели
Часто маленькие квартиры выглядят, как жилище для гномов: состоят из всего очень-очень мелкого. И это еще больше подчеркивает: места хронически не хватает.
В маленьких квартирах гигантский масштаб необходим, как нигде. Максимально высокие двери и порталы, вертикали штор, ширмы, высокое изголовье кровати, торшеры, высокие растения, огромное кресло. Это «сбивает» масштаб и заставляет наше сознание воспринимать квартиру, как более просторную, чем она есть на самом деле. Краеугольный камень декорирования – три масштаба, о которых очень подробно я писала в своей книге «Рецепты счастливого интерьера».
Дизайн: Анна Муравина
Читайте также:
www.inmyroom.ru
Советы по дизайну маленькой квартиры. Красивые интерьеры и дизайн
Многие, слыша о маленькой квартире, представляют себе безрадостное существование в темном и тесном помещении. Ниже мы постарались раскрыть тему реальных дизайнов маленьких квартир, в которых будет действительно интересно и уютно жить.
Зная буквально несколько простых правил по организации пространства, можно избавиться практически от всех проблем маленьких помещений. В сегодняшней статье мы дадим несколько советов по дизайну интерьера маленькой квартиры и расскажем о типичных ошибках, которых можно и нужно избежать.
Уютный интерьер маленькой квартиры с особым вниманием к различным деталям
Раздвижные двери – стильно и необычно!
Такие двери действительно значительно экономят пространство в маленькой квартире. Раздвижная дверь не помешает ни эстетически, ни физически. Наличие мебели также не станет помехой, так как ее спокойно можно поставить вплотную к двери.
С небольшим пространством можно творить чудеса!
Организовать пространство в маленькой квартире – настоящее искусство. Необходимо правильно распределить вещи и сделать помещение настолько функциональным, насколько это возможно. Не используйте во время дизайна темные оттенки, массивную мебель и габардины. Ваша квартира должна быть местом для отдыха и наполнять энергией для новых свершений. Хотя с пунктом насчет темной цветовой гаммы можно поспорить: читайте нашу статью «Три квартиры 40 кв.м. с современным дизайном».
Но как бы то ни было, лучше отдать свое предпочтение светлым оттенкам — белому, персиковому, голубому или пудровому. Такая цветовая гамма создаст ощущение тепла и уюта и визуально расширит пространство.
Дизайн маленькой однокомнатной квартиры
Как известно, лучший стиль для современного дизайна маленькой квартиры – минимализм. Но при этом вам всегда понадобится пространство, в котором будет удобно хранить различные вещи. Проявите творческий подход, используйте углы, в которых можно поместить системы хранения (шкафы, этажерки или полки). Чтобы потолок выглядел визуально выше, разместите высокие стеллажи или сделайте открытые полки в гостиной.
Добавьте в вашу квартиру яркого текстиля или декора
ЧИТАЙТЕ ТАКЖЕ: Дизайн маленькой гостиной, 127 фото
В квартире-студии все доступное место необходимо использовать с умом
Сейчас существует достаточно большой выбор многофункциональной мебели. Стулья, столы, диваны, кровать – все это может послужить отличным местом для хранения вещей.
Межкомнатная стеклянная перегородка – одно из наиболее удачных решений в интерьере. Она не пропускает свет и не крадет и без того маленькую площадь
Интерьер с элементами в стиле ретро – прекрасное решение для небольшой квартиры
Играйте с текстурами и светом!
Белый цвет — один из немногих, который визуально увеличивает комнату и подчеркивает остальные цвета
В небольшой квартире есть место всему, даже прихожей
Покупайте необходимую мебель, которая отлично впишется в общий стиль комнаты
Вам не нужно много мебели в квартире. Отталкивайтесь от своих потребностей. Распланируйте, что конкретно вам потребуется из мебели. Спонтанные решения редко оказываются удачными при создании интерьера небольшой квартиры. Не поддавайтесь соблазну скидок или рекламы. Все, что появится у вас дома, должно быть действительно необходимым, а не просто занимать лишнюю площадь «для красоты».
Не перегружайте свою квартиру дополнительными элементами декора!
Установите дополнительные светильники, чтобы зрительно увеличить пространство комнаты и сделать ее светлее
Дизайн маленькой квартиры должен быть продуман до мелочей. Но это не значит, что вы не можете экспериментировать. Напротив, домашняя обстановка может приобрести оригинальный внешний вид, который будет радовать вас день ото дня.
Оригинальная мебель и аксессуары для дома
Светлые оттенки для стен и мебели визуально увеличивают ширину комнаты
Реальный дизайн маленькой квартиры
Маленькие квартиры – дизайн интерьера не хуже квартир большой площади
Отличное сочетание цветов в дизайне маленькой квартиры-студии
Графические узоры и различные цвета обеспечивают приятный баланс в комнате
Интерьер дает вдохновение на весь день
Просто и со вкусом – берите на заметку
Прозрачная мебель в интерьере и изогнутые линии декора – очень необычное решение
Фото дизайна маленькой комнаты – в квартире всегда будет уютно
На фотографии ниже хороший пример того, как можно хранить вещи, не отнимая много места
Гармоничное оформление обеденной зоны для 2 человек
Отсутствие контраста между мебелью и стенами сделает комнату визуально больше и просторнее. А создать такую иллюзию помогут подвесные люстры.
Отличный пример, как обустроить спальню в маленькой квартире
ЧИТАЙТЕ ТАКЖЕ: Современный дизайн маленькой спальни, 45 фото
Сочетание небольшого количества декоративных элементов – безотказный способ сделать помещение уютнее
Маленькая, но красивая – современный дизайн кухни в небольшой квартире
Правильная и очень удобная организация рабочего места на кухне
Гардеробная комната – даже в небольшой квартирке ей может найтись место
Простое решение для дизайна ванной комнаты
Вид сверху на всю квартиру
Вывод: независимо от того, в какой квартире вы живете (маленькой или большой) вы всегда сможете создать приятную атмосферу в ней и жить в свое удовольствие!
Фото: freshideen.com
homebuilding.ru
Дизайн интерьера маленькой квартиры
Текст: С.К.
Помещение должно быть комфортным и уютным независимо от размера. Даже если квартира или комната по габаритам не вполне отвечает своему назначению, всегда можно найти красивый и интересный выход из положения. Давайте рассмотрим правила и отличные идеи для обустройства небольших помещений.
Маленькая квартира-студия – дизайн интерьера

На чертеже: Планировочное решение квартиры с объединенной кухней-гостиной
Главное и основополагающее, конечно же, — правильная планировка. Чем лучше вы распределите метры в квартире изначально, тем проще и комфортнее вам будет обустраивать квартиру и жить в ней. В маленькой квартире старайтесь избавляться от коридоров, которые всегда съедают полезные метры. Хорошим вариантом избавления от коридора является проходная кухня-гостиная. А в маленькой квартире особенно важно совмещать кухню и место для отдыха. Ведь в противном случае, чтобы добраться от той же гостиной в кухонную зону, вам опять-таки потребуются коридоры. Квартира с совмещенной кухней-гостиной зрительно кажется больше. Благодаря объединению кухонной и диванной зон у вас есть шанс получить в маленькой квартире хотя бы одно относительно просторное помещение. Если квартира совсем маленькая (35-45 метров) и в ней нет возможности обустроить отдельную комнату для сна, то вам стоит перенести спальню в кухню-гостиную. Для этого вам необходимо знать основные правила зонирования помещений.

На чертеже: Планировка современной квартиры с детской и спальней
Если вы располагаете небольшим количеством метров, большую часть следует отдать, конечно же, в пользу общей зоны. Спальни, детские, кабинеты и прочие помещения следует сделать очень и очень компактными, ведь в гостиной вы, как правило, проводите гораздо больше времени, чем в спальне. Лучше всего сразу же запланировать одну или две небольшие гардеробные, которые особенно хороши для небольших квартир, чье пространство нельзя загромождать громоздкими шкафами.

На чертеже: Даже в маленькой квартире можно найти место для двух гардеробных, которые существенно экономят пространство
Цветовые решения для маленьких квартир

На рисунке: Для интерьеров маленьких квартир предпочтительны натуральные светлые оттенки
А теперь о том, какие цвета лучше выбрать для маленькой квартиры. Стены и потолок, двери, а может быть даже и пол (если вы не боитесь ощущения прохлады в помещении) лучше всего сделать светлыми. Это могут быть слегка бежеватые и желтоватые, теплые тона, нейтральные молочные или же белый с легким, почти незаметным, сероватым или голубым оттенком. Здесь все зависит от ваших предпочтений и расположения окон в квартире. Не бойтесь, что белый вам наскучит. Ведь белую квартиру всегда можно с легкостью изменить: новые торшеры, яркий текстиль и декор, столик или кресло. Главное, что, несмотря на все эксперименты, квартира останется светлой и просторной. Очень важно, чтобы цвет стен и пол во всех помещениях квартиры, включая кухню, были одинаковыми. В некоторых случаях исключениями из этого правила могут быть прихожая и ванная.

На фото: Дворцовая люстра и встроенные шкафы помогают визуально приподнять уровень потолка
Чтобы визуально увеличить помещение, расширить его или придать высоту потолкам, используйте зеркала, длинные шторы, высокие двери, лепнину, заходящую на потолок, светильники, люстры с вертикальными украшениями и т.д.
Кухня-гостиная

На фото: В маленьких квартирах принято объединять кухню и гостиную
Небольшая кухня-гостиная (15-25 метров) должна совмещать в себе и кухню, и обеденную зону, и зону для приема гостей, места для хранения кухонной утвари (если в квартире нет кладовки), иногда еще и кабинет, игровую зону для детей и библиотеку. Чтобы уместить все это в столь небольшой метраж и, при этом, не загромоздить пространство, нужно очень внимательно подбирать все предметы интерьера. Расставляя мебель, спланируйте маршруты, по которым будет удобно передвигаться по комнате, не испытывая дискомфорта. Оцените, так ли много ли вы готовите, и нужны ли вам широкие холодильники и изобилие бытовой техники.
Для кухонной зоны отлично подойдет сочетание короткой стенки и маленького острова или барной стойки. В гостиной зоне на полу — большой квадратный ковер, который должен закрывать практически всю поверхность пола, открывая лишь узкую полоску шириной 15-20 см. Лучше поставить один достаточно крупный диван нежели маленький. Отдавайте предпочтение диванам, креслам и столикам на ножках. Под мебелью должен проходить свет, так она выглядит легче, а само помещение — свободнее. И побольше дополнительных светильников: торшеры, бра и настольные лампы. Даже пара книжных полок добавит уюта гостиной.
Особенности спален в маленьких квартирах

На фото: В небольшой квартире можно обойтись и маленькой спальней
В маленькой квартире спальней может стать комната в 8-10 метров, и, поверьте, этого вполне достаточно, так как в этом помещении мы действительно проводим только ночное время суток и очень редко заглядываем туда днем. То, что нужно в спальне, — это двуспальная кровать шириной в 160-189 см, шкаф или комод для белья и вещей (на тот случай, если не хватает места для маленькой гардеробной), стул, кресло, тумбочка, необычная табуретка или столик возле кровати. В спальне вы также можете разместить небольшой туалетный или рабочий стол, пуфик, ковер и полку за спинкой кровати для книг, лампочек и тому подобных вещей. Лучше всего будет исполнить спальню в тех цветах и материалах, что и остальную квартиру.

На фото: В небольших квартирах можно объединить спальню и гостиную
Детская

На фото: Даже в маленькой квартире необходимо найти возможность создать для ребенка свой уголок
Здесь все зависит от возраста ребенка. Для малыша можно обустроить совсем небольшую детскую, ведь пока в этой комнате требуется установить лишь кроватку, комод или шкафчик. Для ребенка постарше обязательно нужно устроить рабочее место. Поэтому вы можете оставить комнату побольше для себя, а когда малыш подрастет, поменять местами детскую и спальню взрослых. Даже в маленькой квартире не размещайте двух или нескольких детей в одной комнате, ведь у каждого должно быть свое личное пространство. Если нет возможности расселить детей, то стоит уделить особое внимание зонированию детской комнаты, чтобы дети могли отдохнуть друг от друга.
Не обязательно выкрашивать стены комнаты в разные цвета или клеить яркие обои. Ведь броские оттенки быстро надоедают. Вы можете с самого раннего возраста прививать ребенку чувство стиля и уюта, тогда он быстро к этому привыкнет.
Рисунки и фото интерьеров квартир. Планировочные решения











www.ok-interiordesign.ru
Современный дизайн маленькой квартиры 2019-2020 — фото: интерьер маленькой квартиры
Во многих глянцевых журналах и на просторах интернета можно увидеть кучу вариантов красивых интерьеров для разных комнат дома или квартиры.
Просторные варианты захватывают оригинальностью, впечатляя и восторгая соискателей современного дизайна.
Но для многих дизайн больших комнат и квартир не подходит, ведь сейчас более актуально бюджетное, небольшое жилье, где будет сложно воплотить столь замысловатые идеи, требующие огромного пространства и немало денежных средств.
Благо, что дизайнеры сегодня заботятся, как о жителях частных домов, так и обладателях маленьких квартир, предлагая интересный интерьер и дизайн на любой вкус.
Команда Ideal Style подготовила для вас, наши дорогие читатели, современный дизайн маленькой квартиры фото в подборке ТОП 50, где предложен красивый и модный дизайн маленькой квартиры в разных стилях.
Мы подобрали для вас стильный дизайн маленькой квартиры, который вдохновит вас на лучшие решения в обустройстве жилья, заставив вас по-новому взглянуть на небольшие комнаты вашего дома.
Современный дизайн маленькой квартиры 2019-2020: фото, оформление комнат
Если у вас однокомнатная или двухкомнатная квартира, в доме довольно тесно и не уютно, как раз время задуматься о том, чтобы поменять дизайн маленькой квартиры, сделав перепланировку или перестановку элементов интерьера.
Дизайн маленькой квартиры можно выполнить, объединяя комнаты, убирая двери и стены, тем самым расширяя пространство в разы.
Наиболее популярным вариантом является дизайн маленькой квартиры студии, который может объединять комнату с кухней, создавая больше пространства, и позволяя хозяевам чувствовать себя очень уютно.
Современный дизайн маленькой квартиры должен быть продуман до мелочей. Так вы сможете не только визуально увеличить пространство, но и преобразить внешний облик жилья.
Убрав двери и стены, вы можете оснастить дизайн маленькой квартиры гипсокартонной аркой или конструкцией, подобрать мебель, которая бы визуально зонировала территорию, либо сделать барную стойку. Этот элемент также поможет четко определить зоны кухни и гостиной.
Кроме названных возможностей зонирования, можно создавать отдельные зоны посредством разных вариантов потолка и полового покрытия, обоев и других видов отделки.
На кухне и в прихожей выложите плитку, а для комнаты подберите паркетную доску, либо ламинат. Ковер также поможет акцентировать внимание на зоне отдыха.
Сегодня очень популярной является мебель-трансформер. Она поможет компактно скрыть много разных вещей, которые не должны быть на виду, но при этом их будет очень легко найти.
Также мебель-трансформер является прекрасным решением для малогабаритных комнат благодаря своей мульти функциональности.
К примеру, очень многие выбирают шкаф – трансформер, который при необходимости раскладывается на письменный стол, кровать, диван и т.п.
Дизайн маленькой квартиры можно увеличить за счет зеркальных и прозрачных перегородок и фасадов на мебели.
Так в квартире будет не только очень комфортно, но и комнаты будут казаться очень просторными и светлыми.
Если квадратные метры позволяют, дизайн маленькой квартиры можно сделать так, что в одной комнате у вас будет и спальня, и кухня, и гостиная.
Удачные примеры зонирования и идеи, как именно зонировать площадь, чтобы дизайн маленькой квартиры был максимально функциональным, вы сможете увидеть ниже.
Дизайн маленькой квартиры фото 2019-2020: идеи интерьера
Кроме перегородок и зеркал, вы можете преобразить пространство комнаты, используя разные варианты освещения.
Так, сейчас пользуются огромной популярностью торшеры, бра, встроенные лампочки и подсветки, оригинальные люстры, которые можно расположить разными способами, встроить в гипсокартонные конструкции или натяжные потолки, балки и т.д.
Чтобы улучшить дизайн маленькой квартиры, стоит особое внимание уделить выбору качественных панорамных окон.
Чтобы свет хорошо проникал в квартиру только при необходимости, оборудуйте окна римскими шторами, нежным светлым тюлем, либо отдайте предпочтение ролетным жалюзям и т.д.
Молодые люди выбирают дизайн маленькой квартиры в стилях лофт, модерн, минимализм, хай тек, каждый из которых по своему оригинален и необычен.
Разные стили дизайна позволяют комбинировать и сочетать материалы отделки, объединяя, к примеру, древесину и каменную кладку, пластик и метал, декор и текстиль.
В моде дизайн маленькой квартиры 2019-2020 в спокойной цветовой гамме, преимущественно светлых тонов, например, сером, бежевом, белом, голубом, розовом, лимонном и т.д.
Конечно же, вы можете дополнить дизайн маленькой квартиры яркими и броскими деталями, но желательно придерживаться гармоничного сочетания трех основных цветов в интерьере, чтобы его не перегружать.
Если у вас в квартире высокие потолки, вам, возможно, понравится очень креативная идея – сделать такой себе второй этаж, где вы сможете разместить миниатюрную спальню, а также расположить шкаф-гардеробную, где будут незаметно храниться все необходимые вещи.
За счет такого решения ваша квартира будет очень функциональной и весьма необычной, привлекая внимание гостей, и радуя вас удобством и комфортом.
Помните об аксессуарах и декоре, которые вносят в ваш уголок эмоции, делают ваш дом живым.
Модный дизайн маленькой квартиры 2019-2020: фото обзор вариантов, как обустроить квартиру 20, 25, 45, 50 кв. метров
На самом деле, лучшими подсказками, как улучшить дизайн маленькой квартиры, являются удачные проекты уже готового жилья.
Мы подобрали для вас дизайн маленькой квартиры, объединяющий кухню и гостиную, спальню и гостиную, столовую, кухню, гостиную и т.д.
Желаем вам удачного ремонта и хороших перемен!
















































ideal-style.ru
Дизайн маленькой квартиры. Более 50 ФОТО, реальных дизайнов
Как сформировать и воплотить в жизнь дизайн маленькой квартиры? В обустройстве интерьера не больших помещений, главную роль играет грамотное зонирование, чтобы создать маленькое уютное гнездышко, которое будет достаточно функциональным и комфортабельных для всех обитателей жилища. В этой статье мы рассмотрим, какие существуют приемы для того чтобы дизайн маленькой квартиры, стал воплощением мечты ее владельцев.
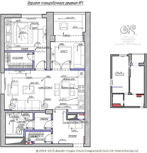
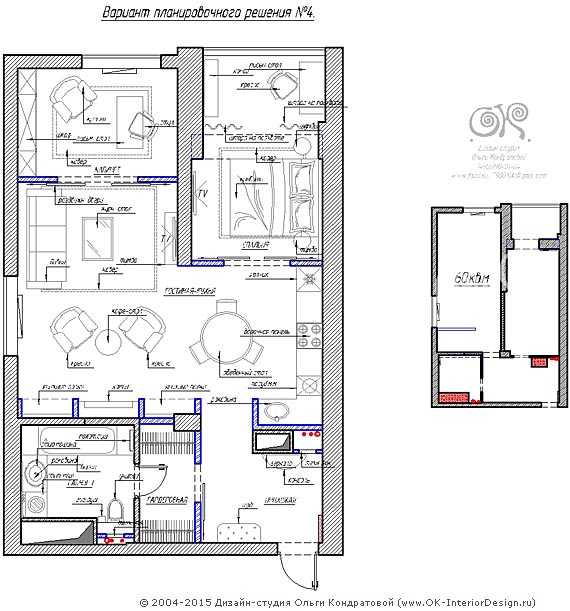
Для начала ознакомьтесь с проектом маленькой двухкомнатной квартиры-хрущевки, берите заметки для Ваших будущего дизайна.
Дизайн маленькой квартиры, новые идеи
Главный упор в идеи по обустройству дизайна маленькой квартиры, необходимо уделять на визуальное увеличение пространства. Используя несколько приемов можно почувствовать себя в таком помещении более комфортно и уютно, даже если площадь комнаты очень мала. На данный момент существует 2 метода визуального расширения пространства это:
- Консервативный метод. Используя этот метод, в помещении полностью меняется внешнее обустройство, визуальный интерьер приобретает другие краски, лишние предметы исключаются из пространства.
- Радикальный метод. При использовании этого метода, меняют полностью планировку квартиры. Соединяют спальню, гостиную и кухню в единое просторное помещение, создают квартиру студию. Или же соединяя только кухню и гостиную получают кухню-студию.
Объединение кухни с гостиной
Идея светового увеличения пространства
Используем зеркала для расширения пространства маленькой спальни
идея для кухни в маленькой квартиреПодоконник-письменный стол и двухъярусные кровати, вот выбор для интерьера маленькой квартиры. Зонирование пространства — это оптимальный выход из положения, когда необходимо разделить пространство между кухней и гостиной или спальни и гостиной. В таких случаях используют шторы, ширму или световое деление пространства на зоны.
Кровать-гардероб идеальное решение для маленькой квартиры
идея рабочей зоны для маленькой детской
Зонирование пространства в квартире-студии
расширение пространства при помощи зонированияАктивно используется зона подоконника, преобразуем его в письменный стол и за счет этого увеличиваем свободную площадь комнаты. Используя такие вот незамысловатые приемы, Вы освободите пространство от лишних вещей и тем самым увеличите пространство.
Интерьер кухни в маленькой квартире
Кухня, это не только место для приготовления пищи, но и вечерняя площадка для уютных вечеров в кругу семьи. В случае маленькой площади кухонного пространство, необходимо правильно использовать каждый квадратный метр помещения. Еще правильно подобранные светлые тона интерьера придадут кухне иллюзию простора, за счет своего светоотражающего свойства. Главное не использовать оттенки холодных тонов, потому что они плохо влияют на аппетит, а в кухне это не совсем уместно. Используйте два или три цвета с плавным переходом одного в дугой. Ну и пожалуй самый главный секрет дизайна маленьких помещений, это большое количество света, используйте различные дополнительные источники освещения и Ваша кухня заиграет.
Читайте подробное описание в статье Как обустроить кухню-студию.
На маленькой кухне используем большой подоконник в качестве продолжения стола
Голубой холодильник, как цветовой акцент на белой кухне
Голубая кухня в хрущевке, правильное использование подоконника
Современная кухня маленькой площади
Еще один вариант белой кухни с голубыми акцентами, смотрится очень нежно
Бело-голубая кухня в хрущевке
Используем каждый метр на маленькой кухне с пользой
Зонирование барной стойкой на маленькой кухне
Римская штора на маленькой кухне помогает экономить пространство
Классическая белая кухня расширяет маленькое помещение
Используем дополнительный вариант подсветки, для вечернего чаепития
Яркая дорожка оживляет стерильно-белую кухню
Расширяем пространство с помощью балкона
Современный дизайн в стиле лофт на маленькой кухне
на маленькой кухне белый цвет это залог успеха в расширении пространстваДизайн маленькой гостиной комнаты
С гостиной будет куда сложнее нежели с преображением маленькой кухни. Тут только белый цвет и обильное освещение не помогут расширить пространство самой главной комнаты квартиры.
Гостиную необходимо полностью преобразить, используйте соединение в единое пространство прихожей, кухни, гостиной и по возможности балкона. Чтобы это сделать необходимо демонтировать все не несущие стены, разделяющие пространство на комнаты. Главное перед этим действием согласовать перепланировку в соответствующих органах.
Добавит эффекта простора и иллюзию свободы, установка арок, вместо межкомнатных дверей. Дизайн маленькой квартиры открывает множество идей по преображению интерьера в различных направлениях. Существует дополнительный вариант по визуальному увеличение площади образовавшейся студии, это создание эркеров. Гостиный эркер — это идеальное решение по преобразованию гостиной и увеличению пространства за счет эффекта продолжения комнаты и дополнительного источника освещения. Эркер зачастую оформляют в классическом стиле, с использованием декора и узоров.
















Дизайн маленькой спальни
Чтобы грамотно оформить малогабаритную спальню, так же воспользуемся методами по оформлению кухни. Нежные светлые тона, обилие света положительно повлияют на увеличение пространства комнаты визуально.
Стиль интерьера при оформлении маленькой спальни, можно подобрать любой, но учитывая малые габариты комнаты лучше использовать минимализм. Убираем из пространства все лишнее.
Пожеланию можно воспользоваться способом преображения, как в гостиной, объединяя пространство. Демонтируем перегородку с гостиной, а спальное место ограждаем любым известным способом зонирования.
Вариант совмещенной спальни с гостиной
Спальное место можно зонировать шторами
Белый интерьер спальни расширяет пространство
Белоснежные стены для маленького помещения спальни
Идея для спальни в черно-белых тонах
Расширение пространства за счет окна во всю стену
Темные стены не сужают пространство спальни
Рабочее место у окна в детской
Интерьер спальни с использованием дерева на стене
Идея для маленькой детской на двоих детей
Использование подиума для увеличения свободного пространства
Яркий подиум для спальни
подиум в узкой спальне переходит в полку на подоконникеИдей по созданию уникального и просторного интерьера для маленькой квартиры превеликое множество, главное использовать вышеперечисленные приемы и следовать идеи по визуальному расширению пространства. Смотрите на готовые варианты и вдохновляйтесь.
Идея дизайна двухкомнатной квартиры в хрущевкеpolyakova-sait.ru
